Фиброцементные панели монтаж, инструкция
Монтируются фиброцементные панели «A-Stone» несложно и это возможно в любое время года. Для монтажа не требуется специальной подготовки, нужно только строгое соблюдение инструкции (инструкция в формате PDF), и аккуратность. При монтаже используются оцинкованные стальные конструкции или деревянные, предварительно обработанные антисептиком и огнестойким составом. Возможно два варианта крепления: видимое (самонарезающими шурупами или на гвозди) и скрытое (на специальные кляммеры).
При монтаже фиброцементных фасадных панелей нет “мокрых” процессов, плиты крепятся с помощью направляющих, и защёлок. За короткий период времени Ваш обычный фасад здания становится модным, современным и безопасным.
Оцинкованная подсистема для монтажа фиброцементных панелейОцинкованная конструкция навесного вентилируемого фасада легко монтируется на существующие стены. При своей простоте система весьма эффективна. А главное, позволяет проводить отделочные работы в любое время года.
Вы всегда можете приобрести у нас оцинкованные профили для монтажа панелей «A-Stone» по самым минимальным ценам.
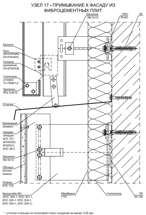
- Кронштейн
- Горизонтальная направляющая
- Вертикальная основная направляющая
- Вертикальная промежуточная направляющая
- Планка вертикального шва
- Кляммер
- Фиброцементная панель A-Stone
- Утеплитель
До начала монтажа
До начала монтажных работ производится геодезическая съемка фасада здания, позволяющая определить неровности и кривизну фасада. Здание разбивается на захватки. На захватке производится разметка и установка маяков, по которым будут устанавливаться и крепиться кронштейны. Разметку необходимо производить с помощью геодезических приборов, высокоточных уровней с большой базой, отвесов.
Монтаж кронштейновПосле разметки фасада в нем сверлят отверстия под дюбеля для крепления кронштейнов к основанию. Количество и шаг кронштейнов определяется проектом в зависимости от архитектурных особенностей здания.
Типовой шаг по горизонтали составляет 600мм, по вертикали -1000 мм. Кронштейны крепятся к стене при помощи различных анкеров, имеющих техническое свидетельство. Типоразмер анкеров определяется по результатам контрольных испытаний несущей способности анкерных дюбелей (анкеров) в зависимости от материала несущей стены. Кронштейны различаются длиной рабочей части. Длина кронштейна зависит от толщины утепляющего слоя. Для снижения теплопотерь и коррозионных процессов, возникающих при контакте разнородных материалов, под кронштейны устанавливаются паронитовые прокладки (терморазрывы).
Крепление утеплителя
В качестве теплоизоляционного слоя в системе с воздушным зазором должен применяться плитный утеплитель. Тип и толщина теплоизоляции определяются теплотехническими расчетами и указываются в проекте. Крепление плит утеплителя производится механическим способом с помощью специальных пластмассовых дюбелей тарельчатого типа с распорным стержнем.
Крепление осуществляются в следующей последовательности:
— установка плиты утеплителя на место
— разметка отверстий под крепители утеплителя
— вырезка отверстий в плите утеплителя
— бурение отверстий в основании с помощью механизированного инструмента ударно-вибрационного действия или алмазными сверлильными коронками
— забивка дюбелей тарельчатого типа в отверстие.
Окончание процесса забивки стержня должно соответствовать моменту, когда торец стержня перестает выступать над прижимной частью дюбеля.
Длину дюбеля и распорного стержня следует выбирать в зависимости от толщины закрепляемого утеплителя. Глубина погружения дюбеля тарельчатого типа в основание должна быть не менее 30мм. Для обеспечения высокого качества выполнения слоя теплозащиты и сохранения его теплотехнических свойств необходимо соблюдать следующие условия:
— при креплении плит утеплителя обеспечивать «перевязку» стыков (по типу кирпичной кладки)
— крепление плит теплоизоляции к наружным ограждающим конструкциям производить дюбелями тарельчатого типа не менее 5 шт. на одну плиту
При двухслойном утеплении плиты утеплителя наружного слоя монтируют с перекрытием швов внутреннего слоя. Предварительно производится крепление первого слоя двумя дюбелями на плиту и окончательное крепление второго слоя еще пятью дюбелями.
Для защиты утеплителя от атмосферных воздействий применяется ветро-гидрозащитная мембрана (пленка).
При монтаже пленка укладывается непосредственно на утеплитель без вентиляционного зазора с нахлестом, для чего на ней пунктирные линии, которые являются ориентиром для нахлеста (150-200 мм).
Горизонтальный профиль представляет собой металлический оцинкованный «Г» — образный профиль (40x40x1,2), который крепится к кронштейнам самонарезающими винтами 4,8×20 мм. Шаг горизонтального профиля соответствует шагу кронштейнов по вертикали и указывается в проекте. Типовым решением является шаг 1000 мм. Положение горизонтального профиля необходимо проверять соответствующими приборами и элементами, поскольку от точности установки зависит плоскостность облицовываемого фасада в пределах проектных допусков. Для компенсации температурных деформаций в горизонтальных направляющих необходимо оставлять зазор 3-5 мм через каждые 5 м. Температурный разрыв профилей устраивается в местах горизонтального стыка фасадных плит.
Вертикальный каркас состоит из основных профилей «П» — образной формы и промежуточных «2»-образных профилей. Основной профиль устанавливается в местах стыковки фасадных плит; промежуточный — в средней части фасадных плит, а также в конструкциях наружного и внутреннего углов, откосов окон. Шаг вертикальных профилей составляет 600 мм. Для компенсации температурных деформаций в вертикальных направляющих необходимо оставлять зазор через каждые 4-5 м. Температурный разрыв профилей устраивается в местах горизонтального стыка фасадных плит. Вертикальные профиля крепятся к горизонтальному профилю самонарезающими винтами 4,8×20 мм.
Монтаж фасадных фиброцементных панелей
Монтаж фасадных панелей «А-Stone» возможен двумя способами: самонарезающими винтами и при помощи специальных кляммеров (для скрытого крепления панелей).
Панели толщиной 12-13 мм крепятся самонарезающими винтами 4,2×32 мм., в предварительно просверленные под потай отверстия.
Крепление саморезов не рекомендуется осуществлять в швы в текстуре панелей, необходимо врезать саморезы в местах с большей толщиной панелей. Шляпки саморезов необходимо окрашивать корректировочной краской. Самонарезающие винты должны отступать от края панели на 20-30 мм во избежание сколов.
Преимущества крепления на саморезы: удешевление крепежных элементов и фасада в целом.
Панели толщиной 15 мм и более крепятся на кляммеры из нержавеющей стали. Кпяммеры предварительно крепятся к вертикальным профилям самонарезающими винтами 4,8×20 мм.
Преимущества крепления на кляммеры: сохранение целостности фасадной плиты при температурных деформациях, упрощение технологии монтажа, равномерное распределение нагрузки, снижение трудозатрат на монтаж панелей, невидимое крепление панели.
При монтаже следует следить, чтобы не было соприкосновение фасадных плит с теплоизоляционным материалом. Минимальная величина воздушного зазора должна быть не менее 40 мм.
Раскладку панелей следует осуществлять исходя из архитектурных особенностей здания.
Следует стремиться к наименьшему количеству реза панелей. Необходимо соблюдение непрерывности шва по высоте.
По окончании сборки каркаса подоблицовочной конструкции, производится монтаж фасадных панелей. Монтаж ведется снизу вверх. В первую очередь устанавливается цокольный отлив таким образом, чтобы расстояние от нижнего края отлива до поверхности земли составляла 50-100 мм. Отлив крепится к вертикальным профилям самонарезающими винтами 4,8×20 мм. Далее монтируется нижний ряд кляммеров и планка вертикального шва. Планка крепится к вертикальному основному профилю в месте стыка панелей.
Затем монтируется фасадная плита. Первая панель опирается на ранее установленные кляммеры. Торцы панели должны плотно прижиматься к планке вертикального шва. Сверху плита закрепляется кляммерами, на которые в свою очередь устанавливаются следующие панели. Расход кляммеров: 4-5 шт. на 1 м* В случае устройства вертикального шва без планки (вертикального шва) сначала устанавливаются панели, при этом необходимо обеспечить зазор между ними6-8мм.
, а затем в шов укладывается уплотнительный жгут для вертикального шва (Вилатерм 10мм.).
Далее аналогичным способом монтируются плиты первого ряда, затем второго и так далее. Горизонтальный стык панелей производится в замок.
Вертикальный стык по разделительным планкам заделывается герметиком, что препятствует проникновению влаги через плоскость фасада и разрушению панелей при температурных деформациях. Герметик наносится на весь стык снизу вверх.
Перед нанесением герметика на плиты наклеивается малярная лента, исключающая попадание герметика на кромки заделываемых плит. Малярная лента после высыхания герметика удаляется.
На внешнем углу торцы панелей срезаются под углом в 45 градусов. Необходимо оставить нетронутой кромку 3-5мм. для нанесения герметика (рис 10). На внутреннем углу плиты стыкуются под прямым углом (рис. 11).
Заполнение оконных и дверных проемов возможно двумя способами:
- Обрамление проемов оцинкованной сталью с полимерным покрытием (рис 12)
- Обрамление проемов фиброцементными плитами того же цвета и текстуры, что и экран основного фасада (рис 13.

)
Монтаж оцинкованного короба
Установка короба из оцинкованной стали производится после монтажа панелей, располагаемых непосредственно под оконным проемом. В первую очередь крепится отлив. Край отлива должен отступать от внешней плоскости панели на 20-30 мм. Во избежание прогиба отлива под него подкладывается фанера толщиной 10 мм. Затем устанавливаются боковые и верхний откосы. Одной стороной откосы крепятся к оконной коробке, а другой к вертикальным профилям несущего каркаса (рис 14). Далее монтируются панели по бокам проема.
Обрамление откосов фиброцементными плитамиДля крепления панелей на откосы необходимо смонтировать оконный каркас из «Г» — образного профиля. Монтаж каркаса произвЬдится до монтажа панелей. Вертикальные элементы каркаса крепятся к горизонтальному профилю фасадной системы. Горизонтальные элементы крепятся к вертикальным элементам оконного каркаса. Крепление осуществляется самонарезающими винтами 4,8×20 мм.
Крепление панелей на откосы выполняется после монтажа панелей основного фасада. Панели режутся нужного размера. В месте сопряжения панелей фасада и панелей откосов торцы обрезаются под углом в 45 градусов с последующей герметизацией стыка. Прямоугольный торец оконной панели вставляется в декоративный профиль, предварительно закрепленного на оконной коробке. Фиксируется плита «Г» — образным профилям оконного каркаса самонарезающими винтами 4,8×32 мм. Шляпки саморезов окрашиваются корректировочной краской.
Монтаж фиброцементных плит для навесных фасадов
Навесные фасадные системы с воздушным зазором включают в себя металлическую или деревянную подконструкцию (каркас), слой теплоизоляции (или без него) и облицовочную плиту.
При монтаже облицовочного экрана следует учитывать температурные деформации подконструкции и температурно-влажностные деформации облицовки.
В связи с этим обязательно использовать ленту EPDM между фиброцементной плитой и металлическими направляющими каркаса. Уплотнительная лента устанавливается по всей длине вертикальной направляющей под облицовочную плиту, обеспечивает плотное прилегание облицовки к направляющей, снижает шумовой эффект от вибрации облицовки, а также обеспечивает дополнительную герметизацию системы.
Крепление облицовочных плит осуществляется с помощью заклепок или самонарезающих винтов из коррозионностойкой стали. При креплении плиты расстояние от саморезов (заклепок) до нижней и верхней кромок плиты: для плит длиной до 1 м – 50 мм, от 1 м до 1,5 м – 100 мм, свыше 1,5 м — 150 мм. Расстояние от саморезов (заклепок) до боковых кромок плиты – min 30 мм, шаг между саморезами (заклепками) по краю плиты – не более 400 мм; допускается крепить середину листа с шагом max 600 мм.
Для исключения возможных разрушений плиты в точках её крепления заклепки необходимо устанавливать в отверстие в сочетании с втулкой, которая не позволяет пережимать плиту при монтаже к направляющей.
Монтажная схема. Вертикальное расположение плит
| Длина плиты | Расстояние от нижней и верхней кромок плиты (L) | Расстояние до винтов от левой и правой кромок плиты |
| ≤1000 мм | 50 мм | min 30 мм |
| 1000 – 1500 мм | 100 мм | |
| ≥1500 мм | 150 мм |
Схема крепления облицовочных плит.
вертикальное расположение
| Длина плиты | Расстояние от нижней и верхней кромок плиты (L) | Примечание |
| ≤1000 мм | 50 мм | Расстояние от оси самореза (заклепки) до края направляющей не менее 2d, где d – диаметр самореза (заклепки) |
| 1000 – 1500 мм | 100 мм | |
| ≥1500 мм | 150 мм |
Как установить фиброцементный сайдинг (сделай сам)
Обновлено: 22 февраля 2023 г.
Как резать, прибивать и устанавливать прочный фибровый сайдинг, а также советы по чеканке и покраске.
Следующий проект›
Семейный мастер на все руки
Половина стоимости сайдинга из фиброцементных плит приходится на оплату труда, поэтому вы можете сэкономить тысячи долларов, установив его самостоятельно.
Специалист по сайдингу показывает инструменты и приемы, необходимые для герметичной установки.
от специалистов по DIY в журнале Family Candyman
- Время
- Сложности
- Стоимость
- . Цементный сайдинг
Цементный сайдинг из древесноволокнистых плит после покраски выглядит так же, как деревянный.
Если вам нужен классический внешний вид деревянного сайдинга в сочетании с долговечностью, фиброцементный сайдинг может быть вашим лучшим выбором. Стеклоцементный сайдинг представляет собой композит, состоящий из портландцемента, кремнезема и древесного волокна. После окрашивания он выглядит почти так же, как дерево. Он доступен во многих стилях и размерах, как гладкий, так и с текстурой дерева, и вы по-прежнему получаете четкие стыки и детали, которые сделают внешний вид вашего дома выделяющимся. Кроме того, он очень устойчив к гниению и насекомым, не горит и красиво окрашивается.

Хайме Вензор занимается производством сайдинга более 15 лет. Он начал с установки в основном винила, но теперь 80 процентов его работы — это фиброцемент. Он заработал хорошую репутацию у своих клиентов, делая все правильно, и он заслужил нашу благодарность, поделившись с нами некоторыми своими знаниями. Так что читайте дальше и узнайте, что Хайме считает наиболее важными советами.
Держите стартер на 1/4 дюйма вниз
Создайте капельницу
Найдите самые изношенные куски сайдинга и разорвите их на 1-1/4 дюйма. стартовые полоски. Эти полосы, установленные внизу, сделают ваш первый ряд сайдинга угловым, чтобы соответствовать остальным рядам. Проведите линию на 1 дюйм выше нижней части обшивки стены в качестве ориентира. Установите эти хрупкие стартовые планки с помощью триммерного пистолета 15-го калибра. Привяжите еще одну линию для нижнего ряда сайдинга, расположив ее так, чтобы она свисала еще на 1/4 дюйма от начала.
Основы прибивания гвоздей
Цементно-фибровый сайдинг можно прибивать вручную, но поскольку он намного тверже и хрупче дерева, вам придется предварительно просверливать отверстия возле любого края.
Вы можете сэкономить кучу времени, используя пневматический пистолет для забивания сайдинга. К сожалению, сайдинговый пистолет обойдется вам в два раза дороже, чем триммер 15-го калибра, и он вдвое менее универсален, поэтому, если установка фиброцемента не является вашим постоянным занятием, вы можете взять его напрокат (около 110 долларов США). неделя). У каждого производителя есть свои рекомендации по забиванию гвоздей, но вот несколько основных правил:- Используйте оцинкованные или нержавеющие гвозди 6d или 8d для сайдинга и установите один гвоздь длиной около 1 дюйма. вниз от верхнего края каждой стойки на расстоянии не более 16 дюймов друг от друга. n Длину гвоздей следует выбирать таким образом, чтобы они проникали в твердую древесину не менее чем на 1-1/4 дюйма (деревянные обшивки, такие как OSB и фанера, считаются за 1-1/4 дюйма, но «мягкие» обшивки, такие как древесноволокнистые плиты и пена — нет).
- Не вбивайте гвозди в обшивку под углом.
- Головки крепежа должны плотно прилегать к сайдингу, а не вбиваться в поверхность.

- Конец каждой доски, образующей стык, необходимо прикрепить к шпильке.
- Стыковые соединения гвоздей в последнюю очередь. Таким образом, вы можете настроить концы каждой доски так, чтобы нижние края идеально совпадали.
Предварительная сборка углов
Используйте гвоздезабивной пистолет для отделки
Гораздо проще предварительно собрать углы на плоской поверхности. Хайме использует 2-1/4 дюйма. оцинкованные гвозди в его ружье 15-го калибра. Он использует гвозди того же размера, чтобы установить углы на стене. Не используйте каркасный пистолет и не пытайтесь сбить углы вместе; это хороший способ сломать обшивочные доски. Кроме того, обрезки гвоздей лучше смотрятся там, где гвозди будут видны, особенно на предварительно обработанной угловой доске. Итак, если у вас нет триммерного ружья 15-го калибра, какая прекрасная «возможность» купить его.
Установка фиброцемента с использованием нескольких специальных приемов
Фото 1: Прикрепите строительную бумагу к обшивке скобами
Отметьте места для стоек вверху и внизу стены.
Прикрепите строительную бумагу к обшивке стены, накладывая верхние части на нижние не менее чем на 2 дюйма. Установите и задвиньте бумагу за оконную накладку.Фото 2: Полосы обшивки гвоздями в верхней части стены
Проведите мелом линии, чтобы отметить расположение фризовой доски, и прибейте обработанные гвоздями полоски обшивки вдоль линий. Держите нижнюю полосу на 1/4 дюйма выше нижней линии.
Фото 3: Используйте циркулярную пилу, чтобы отрезать доску для фриза
Отрежьте доску для фриза по длине с помощью циркулярной пилы, используя угловой угольник в качестве направляющей. Верхний срез заканчивается рашпилем или шлифовальным бруском.
Фото 4: Предварительно просверлите отверстия для облегчения установки
Предварительно просверлите и прибейте гвоздями доски фриза, вбивая два оцинкованных коробчатых гвоздя в каждую стойку. Держите гвозди на расстоянии не менее 3/4 дюйма от краев. Вбейте шляпки гвоздей вплотную к поверхности сайдинга.
Не перегружайте их. Нанесите герметик на угловое соединение внахлест перед установкой второй детали.Фото 5: Прибейте угловые доски
Установите угловые доски, внахлест одна на другую с герметиком в стыке. Прибейте каждые 16 дюймов парой оцинкованных коробчатых гвоздей 8d.
Деталь внутреннего угла
Сшейте внутренние углы так же, как и внешние углы.
Процесс компоновки точно такой же, как и для деревянного сайдинга. Отметьте карандашом места для стоек на потолке и фундаменте, где они не будут закрыты строительной бумагой. Установите строительную бумагу (фото 1), затем следуйте меткам расположения стоек и меловым линиям (фото 2), чтобы ориентироваться как при забивании гвоздей, так и при размещении стыков сайдинга. Мы также используем отделочные плиты из фиброцемента. Поскольку они имеют толщину всего 7/16 дюйма, разорвите 3/8 дюйма. толстые планки из обработанного 2-х бруса и используйте их для обшивки досок фриза (Фото 2). Теперь они будут располагаться примерно на 1/8 дюйма выше сайдинга.

Отрежьте фризовую доску по длине (Фото 3). Цементно-волокнистый сайдинг обладает высокой абразивностью. Даже лезвие с твердосплавными зубьями прослужит лишь часть дня. В домашних центрах можно купить алмазные диски, изготовленные специально для резки фиброцемента. Эти лезвия режут быстро и создают меньше пыли. Но мы добились успеха с менее дорогим алмазным диском для сухой резки по каменной кладке. Просверлите вырезы для электрических коробок и труб с помощью обычных спиральных или лопаточных сверл, а также сделайте внутренние или даже криволинейные разрезы с помощью лобзика с вольфрамовым или твердосплавным шлифовальным диском (эти диски можно приобрести в бытовых центрах и магазинах плитки). При резке стеклопластикового сайдинга поднимается много кварцевой пыли, поэтому работайте на улице и надевайте пылезащитную маску.
Прибейте фризовую доску, просверлив 1/8 дюйма. направляющие отверстия и вбивание двух оцинкованных коробчатых гвоздей в каждую стойку (Фото 4). Ваша длина гвоздя может отличаться от нашей в зависимости от типа внешней обшивки, используемой в вашем доме.
Как правило, используйте гвозди, которые входят в шпильки не менее чем на 1 дюйм. Вбейте шляпки гвоздей вплотную к фиброцементной плите. Если забить слишком глубоко, шляпки раздавят фиброцементную плиту и снизят удерживающую способность гвоздя. Не скрепляйте углы фиброцемента (фото 4). Гвоздь, вбитый в край фиброцементной плиты, расколет ее.Затем сделайте внешний угол (фото 5), следуя тем же шагам, что и для фризовых досок. Убедитесь, что нижняя часть угловых досок покрывает примерно 1/2 дюйма фундамента.
Совет:Если у вас нет доступа к настольной пиле, купите лист обработанной фанеры толщиной 1/2 дюйма и нарежьте полоски обшивки циркулярной пилой.
Внимание!Стригите на открытом воздухе, надевайте пылезащитную маску, чтобы не вдыхать пыль, и держите подальше других.
Разметка подъездных путей
Фото 6. Отметьте места расположения запасных путей
Отметьте верхнюю часть каждого запасного ряда, используя в качестве ориентира опору (см.
«Создание опоры»). Затем нанесите меловые линии, чтобы каждый курс оставался прямым.Фото 7: Установка первого ряда сайдинга
Прибейте 3/8-дюйм. обработанная стартовая полоса вдоль нижней части стены. Затем вырежьте и прибейте первый ряд сайдинга по линии разметки. Оставьте 1/8 дюйма. зазор на конце и прибейте к каждой стойке одиночный оцинкованный коробчатый гвоздь 8d, удерживаемый на расстоянии 1 дюйм от верхнего края.
Деталь стыкового соединения
Плотно соедините ряды сайдинга встык.
Деталь торцевого соединения
Оставьте небольшой зазор между сайдингом и угловой накладкой.
После завершения обшивки выложите ряды сайдинга с помощью столба. (См. «Создание опорного столба».) Прижмите верхнюю часть опорного столба к фризовой доске и разметьте ряды сайдинга (Фото 6) во всех углах, вокруг окон и дверей. Следуя этим меткам разметки, проведите мелом горизонтальные линии. Помните, что эти линии разметки представляют верхнюю часть каждого ряда сайдинга.

Разорвать и прибить 3/8-дюйм. толстая обработанная деревянная стартовая полоса вдоль нижней части стены (над фундаментом). Эта полоса наклонит первую часть сайдинга на правильный угол. Отмерьте и отрежьте по длине первый кусок сайдинга и прибейте его гвоздями (фото 7).
Оставить 1/8-дюйм. зазор, где конец встречается с угловой доской (Фото 7, врезка) и убедитесь, что другой конец приземляется на линию шпилек. Установите следующую деталь так, чтобы ее конец слегка упирался в первую часть (Фото 7, врезка). Продолжайте наносить ряды сайдинга, выравнивая верхние края по меловым линиям макета. Обязательно располагайте стыковые соединения в шахматном порядке, чтобы они не лежали друг на друге, когда вы поднимаетесь.
Совет:Профессионалы используют пневматические гвоздезабиватели (можно взять напрокат), разработанные специально для фиброцементного сайдинга. Они вдвое сократили время забивания гвоздей. Если вы пойдете по этому пути, сначала потренируйтесь, чтобы убедиться, что шляпки гвоздей будут установлены заподлицо.

Изготовление стоечного столба
Отрежьте прямую 1×2 так, чтобы ее длина проходила от фризовой доски до нижней части первого ряда сайдинга. Измерьте расстояние от нижней части столба, чтобы отметить полную ширину первого ряда сайдинга. Помните, что эта отметка обозначает верхнюю часть сайдинга, а не нижнюю часть второго ряда.
С этой точки сделайте разметку на столбе с рекомендуемой экспозицией для вашего запасного пути. Верхний ряд должен быть не менее двух третей ширины нижних рядов. Сверяйте метки макета с оконными и дверными проемами и другими элементами вокруг дома и настраивайте экспозицию, чтобы не отрывать узкие части.
Когда окончательный макет будет в порядке, нарисуйте жирные линии на лицевой стороне и обоих краях опоры с помощью квадрата. Теперь крепко прижмите этаж к фризовой доске по всем углам, а также вдоль окон и дверей. Перенесите разметку на стену и проведите линии мелом. Это гарантирует, что все ряды сайдинга будут идти прямо и равномерно.

Снимите пластиковую накладку
Защитите готовые фиброцементные панели
Готовые сайдинговые панели из стекловолокна поставляются с защитным пластиковым покрытием. Чтобы защитить краску от царапин во время установки, оставьте пластик на месте и сделайте надрезы прямо через него. Снимите пластик после того, как доска была прикреплена к стене.
Промокание стыков
Защита от воды
Заделка стыков не требуется, и некоторые производители запрещают это. Однако прошивать следует за стыками. Вы можете использовать металл, домашнюю пленку или любой другой одобренный WRB (устойчивый к атмосферным воздействиям барьер), но Хайме предпочитает использовать 30-фунтовые. войлочная бумага. С ним легко работать, он дешевый, и не заметно, если шов немного разойдется. Прикрепите его к стене, чтобы он не сдвинулся с места при установке второй части сайдинга.
Расстояние между стыками фиброцементных плит
Фиброцементные плиты не сильно расширяются и сжимаются, но оставляют небольшое пространство для расширения в торцевых стыках, а затем заполняют зазор герметиком.
Однако стыковые соединения должны быть плотно сбиты гвоздями и не должны быть зачеканены. Убедитесь, что все стыковые соединения закреплены на шпильках, и располагайте стыковые соединения в шахматном порядке по мере продвижения вверх по стене.Окна нуждаются в каплеуловителе и зазоре сверху
Детали окна и двери
Независимо от того, устанавливаете ли вы отделочные доски вокруг окон, вам необходимо установить капельник над окном. Вам также нужно будет оставить 1/4 дюйма. зазор (без заделки) между верхней частью окна и планкой или обшивочной доской непосредственно над ним. Это делается для того, чтобы любая вода, которая могла попасть за сайдинг, вытекала наружу. Прикрепите капельную крышку к стене, но не до самого низа капельной крышки, потому что она будет видна через 1/4 дюйма. зазор. Для верхней отделочной доски также потребуется собственная капельная крышка и 1/4 дюйма. зазор. Таким же образом обработайте верхнюю часть дверей.
Это работа для двух человек без калибров для сайдинга
Датчики для сайдинга удерживают доски
Цементно-волокнистый сайдинг тяжелый и ломается, если его слишком сильно согнуть.
Установить это самостоятельно сложно, но возможно с помощью сайдинговых калибров. Эти инструменты не только создают надлежащий зазор (видимая часть сайдинга) между рядами, но и фактически удерживают доски на месте, пока вы прибиваете гвозди. Даже если вы выполняете только одну работу по фиброцементу, размеры сайдинга стоят своих денег.Gecko сайдинговые датчики
Пара показанных здесь SA902 Gecko Gauges стоит около 90 долларов США (доступна благодаря нашей связи с amazon.com), но доступны и более дешевые версии. Большинство толщин регулируются для обеспечения фуги от 5 до 8 дюймов.
Окрашенный и загрунтованный
В этой статье мы решили использовать готовый продукт, но можно пойти и другим путем — просто загрунтовать сайдинг. Этот материал загрунтован и готов к покраске. Вот некоторые факты, которые следует учитывать при принятии решения.
Преимущества загрунтованного: Загрунтованная продукция стоит на 50 % меньше, чем готовая продукция.
Покраска на месте выглядит лучше вблизи, потому что подкрашенная краска и зачеканенные участки не так заметны. Загрунтованную продукцию легче и дешевле монтировать.Преимущества готовых изделий: Цвет готовых изделий не выцветает так быстро. На некоторые виды отделки предоставляется 15-летняя гарантия. Но лучшая часть использования готового продукта заключается в том, что после установки вы закончите и вам не придется красить весь дом.
Резка фиброцементных плит циркулярной пилой
Пылезащитная маска обязательна
Когда вы режете этот материал, пылезащитная маска является минимальной защитой, и это не случайное предупреждение: пыль кремнезема, образующаяся при резке волокна цемент может быть плохой новостью для вашего здоровья!
Диск для пилы по фиброцементным плитам
Вы можете купить диски для фиброцемента, размер которых подходит для любого стиля или размера пилы, в большинстве магазинов для дома.
Доступны тонны устройств для резки фиброцемента, но с большинством работ можно справиться, просто имея пристальный взгляд и стандартную циркулярную пилу, оснащенную лезвием для фиброцемента.
Однако, если вы планируете повесить много фиброцемента, вам понадобится отрезная пила с подходящим лезвием, которое позволит вам разрезать несколько кусков одновременно.Лучше всего подходят виниловые монтажные блоки
Светильники, розетки и вентиляционные отверстия
Большинство производителей фиброцемента изготавливают монтажные блоки для освещения, электрических розеток, линий кондиционирования, вентиляции из ПВХ и т. д. Хайме предпочитает использовать виниловые монтажные блоки, обычно используемые с виниловый сайдинг. Они дешевле и просты в установке, а отверстие нужного размера в пластиковом монтажном блоке можно вырезать канцелярским ножом или ножницами. С фиброцементными блоками придется использовать электролобзик или кольцевую пилу.
MountMaster — одна из марок блоков, продаваемых в Lowe’s и на многих лесопилках. Он доступен более чем в 25 цветах, но вы можете заказать блоки под покраску, если хотите, чтобы они точно соответствовали вашему сайдингу или отделке.

Покрасить, загрунтовать или замазать все кромки
Стыковое соединение
Покрасить кромки стыков.
Торцевое соединение
Заделка краев, которые соприкасаются с углами и отделкой.
Каждый раз, когда вы режете доску, вы создаете открытую поверхность, на которой нет грунтовки или краски для защиты от непогоды. Если обрезанная кромка упирается в угловую стойку или обшивочную доску, ее заделывают. Если обрезанная кромка является частью стыка в середине стены, ее необходимо покрасить (старайтесь использовать заводские кромки на всех стыках). Доски, обрезанные для окон и дверей, также нуждаются в покраске. Закажите комплекты краски и герметик, чтобы они соответствовали цветам отделки и сайдинга. Ваш поставщик сайдинга должен иметь доступ к обоим.
Информация о зазорах
Цементно-волокнистый сайдинг не является пуленепробиваемым — он испортится при длительном воздействии воды. Крайне важно, чтобы вы соблюдали правильное расстояние между сайдингом и поверхностями крыши, а также между сайдингом и горизонтальными поверхностями, такими как земля или цементные плиты и настилы.

Прежде чем начать, проконсультируйтесь с вашим конкретным производителем. Вот некоторые общие рекомендации.Отступ:
- 1/8–1/4 дюйма между сайдингом и накладкой
- 1/4 дюйма между сайдингом и горизонтальным окладом
- 1 дюйм между желобом и прилегающей стеной
- 2 дюйма между сайдингом и крышей, настилами, патио, подъездными путями, ступенями и дорожками (использование отделочных досок из ПВХ — хороший способ выполнить эти зазоры)
- 6 дюймов между сайдингом и землей.
Не пропускайте отбойный оклад
Отбойный оклад
Отбойный оклад необходим для предотвращения стекания воды с крыши и за обшивку соседней стены. Вы провалите проверку, если инспектор не увидит этого на вашей работе. Обойти это сложно, но это помогает, если вы не прибьете обшивку до тех пор, пока не обрежете сайдинг по размеру. Гораздо проще правильно подогнать планку, если вы можете переместить под нее обшивку.
Обрезка фиброцементной плиты вокруг проемов
Разметка сайдинга для установки вокруг окон
Держите сайдинг плотно под подоконником и отметьте положение края окна.
Затем измерьте расстояние от меловой линии до верха сайдинга. Добавьте 1/8 дюйма к вашему измерению. Это ширина выреза.Установите сайдинг с насечкой под окном
Вырежьте паз пилой и вставьте деталь на место, оставив 1/8 дюйма. зазор между сайдингом и подоконником. Заделайте этот зазор позже. Предварительно просверлите и прибейте гвоздь к каждой стойке, в том числе под окном.
Сделайте вырезы лобзиком
Просверлите отверстие 3/8 дюйма. отверстие в углу с помощью стандартного спирального сверла. Вырежьте по линии электролобзиком с твердосплавным лезвием. Затем прибейте кусок сайдинга.
Выемка для обхода окон и дверей. Не забудьте оставить 1/8 дюйма. зазор, где сайдинг соединяется с оконной рамой и подоконником. Этот стык будет зашпаклеван позже. Прибейте верхний край сайдинга вдоль подоконника к каждой стойке. Эти шляпки будут видны, но краска их покроет.
Выемка вокруг окон
Фото 8: Отметьте сайдинг, чтобы он подходил под окна
Держите сайдинг плотно под подоконником и отметьте положение края окна.
Затем измерьте расстояние от меловой линии до верха сайдинга. Добавьте 1/8 дюйма к вашему измерению. Это ширина выреза.Фото 9: Установка сайдинга с насечкой под окном
Вырежьте паз пилой и вставьте деталь на место, оставив 1/8 дюйма. зазор между сайдингом и подоконником. Заделайте этот зазор позже. Предварительно просверлите и прибейте гвоздь к каждой стойке, в том числе под окном.
Фото 10: Отметьте вырезы в сайдинге
Закрепите сайдинг под проемами в стене, такими как эта электрическая коробка. Отметьте ширину и высоту выреза. Предупреждение: отключите питание розетки, прежде чем вынимать ее из коробки.
Фото 11: Сделайте вырез с помощью лобзика
Просверлите отверстие 3/8 дюйма. отверстие в углу с помощью стандартного спирального сверла. Вырежьте по линии электролобзиком с твердосплавным лезвием. Затем прибейте кусок сайдинга.
Фото 12: Отрежьте и установите верхний ряд сайдинга
Обрежьте верхний ряд сайдинга по ширине и прибейте гвозди к каждой стойке.
Оставьте 1/8 дюйма. зазор по верхнему краю. Заполните все 1/8 дюйма. зазоры акриловым латексным герметиком.Пазы для обхода окон и дверей (фото 8 и 9). Не забудьте оставить 1/8 дюйма. зазор, где сайдинг соединяется с оконной рамой и подоконником. Этот стык будет зашпаклеван позже. Прибейте верхний край сайдинга вдоль подоконника к каждой стойке. Эти шляпки будут видны, но краска их покроет.
Проникновение воды в места проходов в стенах может стать проблемой для любого типа сайдинга. Разметьте и сделайте вырез под электрическую коробку (фото 10 и 11). Крышка распределительной коробки снабжена прокладкой для защиты от воды. Для труб, электрических вводов и подобных приспособлений установите сайдинг как можно плотнее, а затем загерметизируйте полиуретановым герметиком или незатвердевающей шпаклевкой для электриков. Разорвите верхний слой сайдинга по ширине и прибейте его гвоздями (Фото 12). Держите эти гвозди на 1 дюйм ниже верхнего края. Опять же, эти шляпки гвоздей будут обнажены.

Купить сайдинг уже загрунтованным. Если будете грунтовать самостоятельно, используйте щелочестойкую грунтовку. Заделайте все стыки акриловым латексным герметиком перед нанесением последних слоев краски. Убедитесь, что герметик заполняет 1/8 дюйма. соединение полностью, чтобы сохранить его водонепроницаемым. Финишное покрытие 100-процентной акриловой латексной краской.
Совет:Если вы живете в регионе с сильными дождями или стена сильно подвержена воздействию воды, наденьте 3-дюймовый герметик. широкая полоса строительной бумаги за стыками. Убедитесь, что нижний край бумаги прилегает к нижнему ряду сайдинга.
Необходимые инструменты для этого проекта
Подготовьте необходимые инструменты для этого проекта «Сделай сам» перед началом работы — вы сэкономите время и нервы.
- Air compressor
- Air hose
- Caulk gun
- Chalk line
- Circular saw
- Cordless drill
- Drill bit set
- Dust mask
- Hammer
- Jigsaw
- Level
- Safety glasses
- Sawhorses
- Квадрат скорости
- Степлер
- Рулетка
Вам также потребуются калибры для сайдинга, диск для циркулярной пилы по фиброцементу, гвоздезабивной инструмент и гвоздезабивной инструмент для сайдинга 15 калибра.

Необходимые материалы для этого проекта
Избегайте походов за покупками в последнюю минуту, подготовив все материалы заранее. Вот список.
- 15 гвоздей из нержавеющей стали или оцинкованных отделочных гвоздей
- 30 фунтов войлока
- 6d оцинкованных гвоздей
- Акриловый герметик
- Drip Cap
- Фотоволоконные цементные сайдинг
- Mark-Out Mlassing
- Paint
- Виниловые монтажные блоки
Первоначально опубликовано: 20 февраля 2018 г.
Проекты
5.
Как установить фиброцементные панели – Forbes Home
- Время работы: 8 часов в день
- Общее время: Две недели и более (установка занимает 10-12 дней, покраска занимает около пяти дополнительных дней)
- Уровень квалификации: Средний
- Стоимость проекта: От 6 000 до 20 000 долларов в зависимости от труда и материалов.
Фиброцементный сайдинг может стоить от 0,70 до 20 долларов за квадратный фут. Около половины стоимости фиброцементного сайдинга приходится на оплату труда. Вы также можете сэкономить деньги, выбрав загрунтованный фиброцементный сайдинг, а не готовый сайдинг.
Монтаж фиброцементного сайдинга занимает несколько дней, так как он требует уплотнения и требует большего внимания к деталям, чем виниловый сайдинг. Когда дело доходит до винилового сайдинга по сравнению с фиброцементным сайдингом, домовладельцы часто выбирают винил, потому что он дешевле и требует немного меньшего обслуживания, а также предлагает множество вариантов, следующих за тенденциями. Фиброцементный сайдинг толще и долговечнее винилового сайдинга, что делает его более привлекательным для домовладельцев.
СОВЕТ: Прежде чем приступить к установке, сравните различные типы сайдинга.
Фиброцемент лучше винила?
Фиброцементный сайдинг может быть лучше для домовладельцев, которые ищут что-то более прочное и толстое, чем виниловый сайдинг, но при этом внешне почти идентичный деревянному сайдингу.
Фиброцементный сайдинг изготавливается из портландцемента, диоксида кремния и древесного волокна и с меньшей вероятностью подвержен обесцвечиванию, вмятинам, плавлению и атмосферным воздействиям.Когда устанавливать фиброцементный сайдинг
Если вы устали от винилового сайдинга или столкнулись со слишком многими проблемами, возможно, пришло время внести изменения. Лучшее время для установки фиброцементного сайдинга — это продолжительная солнечная погода весной или в начале лета. Фиброцементный сайдинг не сжимается и не расширяется так сильно, как виниловый сайдинг, поэтому окно установки немного больше.
Соображения безопасности
Поскольку фиброцементный сайдинг содержит диоксид кремния, при его резке требуется пылезащитная маска. Также желательно иметь защитные очки и перчатки.
Инструменты
- Воздушный компрессор
- Воздушный шланг
- Твердосплавное или вольфрамовое полотно для электролобзика
- Пистолет для герметика
- Меловая леска
- Циркулярная пила
- Аккумуляторная дрель
- Отрезная пила (дополнительно)
- Пылезащитная маска
- Пильный диск для фиброцемента (лучшими считаются алмазные диски)
- Перчатки
- Молоток
- Электролобзик
- Уровень
- Карандаш
- Рашпиль или шлифовальный блок
- Защитные очки
- Козлы
- Боковые упоры (опционально, необходимы при самостоятельной работе)
- Квадрат скорости
- Степлер
- Рулетка
- Гвоздезабивной пистолет 15 калибра
Материалы
- Нержавеющая сталь 15 или оцинкованные гвозди
- Войлок 30 фунтов
- Гвозди оцинкованные 6d
- Акриловый герметик
- Строительная бумага
- Капельница
- Фиброцементный сайдинг
- Откидная планка
- Краска
- Полиуретановый герметик или незатвердевающая шпаклевка для электриков
Реклама
ЭТО РЕКЛАМА, А НЕ РЕДАКЦИОННОЕ СОДЕРЖАНИЕ.
Обратите внимание, что мы получаем компенсацию за любые продукты, которые вы покупаете или подписываетесь через эту рекламу, и эта компенсация влияет на ранжирование и размещение любых предложений, перечисленных здесь. Мы не предоставляем информацию о каждом доступном предложении. Информация и суммы сбережений, изображенные выше, предназначены только для демонстрационных целей, и ваши результаты могут отличаться.Использование капитала вашего дома — это простой способ финансировать новые подъездные пути!
Пройдите предварительную квалификацию за считанные минуты, нажав на свой штат.
Узнать больше
Инструкции
1. Удалите старый сайдинг и перенесите места для стоек стены
Обязательно нанесите вертикальные линии мелом, чтобы указать центр каждой стойки. Прикрепите строительную бумагу к обшивке стены. Установите строительную бумагу, следуя меткам расположения шпилек.
2. Изготовление стартовых полосок
Стартовые планки будут располагаться в нижней части сайдинга и сформируют первый ряд сайдинга под углом, образуя водослив.
Проведите линию на дюйм выше нижней части обшивки стены и используйте обрезной пистолет 15-го калибра для установки стартовых планок. Обязательно сделайте еще одну линию для нижнего ряда сайдинга, чтобы он свисал на 1/4 дюйма от стартовой полосы.СОВЕТ ДЛЯ ПРИБИВАНИЯ ГВОЗДЯМИ: Поскольку фиброцементный сайдинг является хрупким, его нельзя прибить вручную. Предварительно просверлите отверстия по краям или возьмите напрокат пневматический пистолет для забивания сайдинга. Вбивайте гвозди прямо, и они должны быть достаточно длинными, чтобы пройти через 1-¼ дюйма.
Не вбивайте головки крепежа в сайдинг и убедитесь, что каждая планка, образующая стык, закреплена на шпильке. Сохраните стыковые соединения гвоздями напоследок на случай, если вам понадобится внести коррективы.
3. Добавьте полоски обшивки для гвоздей
Добавьте полоски обшивки в верхнюю часть направляющей после отметки места фризовой доски. Держите нижнюю полосу на 1/4 дюйма выше нижней линии.
Обязательно предварительно просверлите отверстия, прежде чем прибивать доски фриза. Используйте два оцинкованных гвоздя для каждой стойки и держите их на расстоянии не менее 3/4 дюйма от краев. Не переусердствуйте с гвоздями и нанесите герметик на угловое соединение внахлест, прежде чем переходить к следующему элементу.Используйте алмазные диски для резки фиброцемента, потому что другие недолговечны. Для выреза используйте электролобзик с вольфрамовым или твердосплавным лезвием.
4. Соберите углы
Используйте плоскую поверхность для изготовления углов. Некоторые профессионалы рекомендуют использовать оцинкованные гвозди диаметром 2,5 дюйма для создания углов и их установки. Фиброцементный сайдинг чрезвычайно хрупок, поэтому не прибивайте его вручную и не используйте каркасный пистолет.
5. Отметьте места для бокового ряда
Вам понадобится этажный столб (подножка размером 1 на 2, которая проходит от фризовой доски до нижней части первого бокового ряда).
Используйте столб, чтобы измерить высоту от нижней части первого ряда и указать полную ширину первого ряда. Продолжайте делать отметки на столбе истории. Верхний ряд должен быть не менее 2/3 ширины нижних рядов.6. Резка плит фиброцементного сайдинга
Резка фиброцементного сайдинга поднимает много небезопасной пыли, поэтому обязательно делайте это на открытом воздухе, надевая подходящую маску. Разорвите стартовую планку из обработанной древесины толщиной 3/8 дюйма в нижней части стены над фундаментом. Отмерьте и отрежьте сайдинг по длине и прибейте его гвоздями.
7. Установка фиброцементного сайдинга
После прибивания первой детали оставьте зазор в 1/8 дюйма в том месте, где конец касается угловой доски. Другой конец должен попасть на шпильку. Следующая часть должна слегка упираться в первую часть и продолжаться, следуя меловым линиям. Верхние края должны совпадать с меловыми линиями. Убедитесь, что стыковые соединения расположены в шахматном порядке, чтобы они не накладывались друг на друга.

8. Удаление пластика
Если вы выбрали готовый фиброцементный сайдинг, удалите пластик, который входит в комплект, после его установки.
9. Отделка кромок
Каждый разрез, который вы делаете с фиброцементным сайдингом, оставляет незащищенный край, который нуждается в защите от непогоды. Зачеканите край, если он собирается выровняться с угловой стойкой или отделкой. Покрасьте край, если он является частью стыкового соединения в середине стены или если он был обрезан, чтобы поместиться над окнами и дверями.
10. Фланцевые стыковые соединения
Убедитесь, что за стыковыми соединениями нанесены оклады, чтобы предотвратить повреждение водой. Некоторые сторонники рекомендуют использовать 30-фунтовую фетровую бумагу для создания атмосферостойкого барьера, другие используют металл или домашнюю пленку. Если вы используете войлочную бумагу, обязательно прикрепите ее к стене.
11. Подгонка сайдинга вокруг окон
Вам потребуется установить на окна капельники и оставить зазор в 1/4 дюйма между верхней частью окна и доской над ним, чтобы вода не могла попасть внутрь.
сайдинг. Прикрепите каплесборник к стене и помните, что для верхней обшивки нужна собственная капельница и зазор.Приближаясь к окнам и проемам, оставьте зазор в 1/8 дюйма между сайдингом и отделкой. Позже заделайте стык акриловым латексным герметиком, но прибейте верхний край сайдинга вдоль подоконника к шпилькам. Используйте электролобзик, чтобы сделать вырезы.
12. Краска
Если вы решили загрунтовать сайдинг, вам нужно закончить работу, покрасив сайдинг.
Когда звонить профессионалу
Любая крупная работа по сайдингу не будет сделана за один день, и поиск времени для самостоятельного выполнения может вызвать проблемы. Проект сайдинга своими руками, скорее всего, займет несколько выходных и, возможно, оставит часть вашего дома открытой для элементов во время проекта.
Если у вас нет времени и вы хотите свести к минимуму воздействие элементов на ваш дом во время проекта сайдинга, то лучше всего позвонить профессионалу, который может выполнить работу быстрее и получить необходимые разрешения для проекта.
Монтаж фиброцементные плиты: Фиброцементные панели монтаж, инструкция
- Много дней
- Промежуточный
- $ 501-1000



Вы можете сэкономить кучу времени, используя пневматический пистолет для забивания сайдинга. К сожалению, сайдинговый пистолет обойдется вам в два раза дороже, чем триммер 15-го калибра, и он вдвое менее универсален, поэтому, если установка фиброцемента не является вашим постоянным занятием, вы можете взять его напрокат (около 110 долларов США). неделя). У каждого производителя есть свои рекомендации по забиванию гвоздей, но вот несколько основных правил:
Прикрепите строительную бумагу к обшивке стены, накладывая верхние части на нижние не менее чем на 2 дюйма. Установите и задвиньте бумагу за оконную накладку.
Как правило, используйте гвозди, которые входят в шпильки не менее чем на 1 дюйм. Вбейте шляпки гвоздей вплотную к фиброцементной плите. Если забить слишком глубоко, шляпки раздавят фиброцементную плиту и снизят удерживающую способность гвоздя. Не скрепляйте углы фиброцемента (фото 4). Гвоздь, вбитый в край фиброцементной плиты, расколет ее.
«Создание опоры»). Затем нанесите меловые линии, чтобы каждый курс оставался прямым.


Однако стыковые соединения должны быть плотно сбиты гвоздями и не должны быть зачеканены. Убедитесь, что все стыковые соединения закреплены на шпильках, и располагайте стыковые соединения в шахматном порядке по мере продвижения вверх по стене.
Установить это самостоятельно сложно, но возможно с помощью сайдинговых калибров. Эти инструменты не только создают надлежащий зазор (видимая часть сайдинга) между рядами, но и фактически удерживают доски на месте, пока вы прибиваете гвозди. Даже если вы выполняете только одну работу по фиброцементу, размеры сайдинга стоят своих денег.
Покраска на месте выглядит лучше вблизи, потому что подкрашенная краска и зачеканенные участки не так заметны. Загрунтованную продукцию легче и дешевле монтировать.
Однако, если вы планируете повесить много фиброцемента, вам понадобится отрезная пила с подходящим лезвием, которое позволит вам разрезать несколько кусков одновременно.

Затем измерьте расстояние от меловой линии до верха сайдинга. Добавьте 1/8 дюйма к вашему измерению. Это ширина выреза.
Оставьте 1/8 дюйма. зазор по верхнему краю. Заполните все 1/8 дюйма. зазоры акриловым латексным герметиком.

Фиброцементный сайдинг может стоить от 0,70 до 20 долларов за квадратный фут. Около половины стоимости фиброцементного сайдинга приходится на оплату труда. Вы также можете сэкономить деньги, выбрав загрунтованный фиброцементный сайдинг, а не готовый сайдинг.
Фиброцементный сайдинг изготавливается из портландцемента, диоксида кремния и древесного волокна и с меньшей вероятностью подвержен обесцвечиванию, вмятинам, плавлению и атмосферным воздействиям.
Обратите внимание, что мы получаем компенсацию за любые продукты, которые вы покупаете или подписываетесь через эту рекламу, и эта компенсация влияет на ранжирование и размещение любых предложений, перечисленных здесь. Мы не предоставляем информацию о каждом доступном предложении. Информация и суммы сбережений, изображенные выше, предназначены только для демонстрационных целей, и ваши результаты могут отличаться.
Проведите линию на дюйм выше нижней части обшивки стены и используйте обрезной пистолет 15-го калибра для установки стартовых планок. Обязательно сделайте еще одну линию для нижнего ряда сайдинга, чтобы он свисал на 1/4 дюйма от стартовой полосы.
Обязательно предварительно просверлите отверстия, прежде чем прибивать доски фриза. Используйте два оцинкованных гвоздя для каждой стойки и держите их на расстоянии не менее 3/4 дюйма от краев. Не переусердствуйте с гвоздями и нанесите герметик на угловое соединение внахлест, прежде чем переходить к следующему элементу.
Используйте столб, чтобы измерить высоту от нижней части первого ряда и указать полную ширину первого ряда. Продолжайте делать отметки на столбе истории. Верхний ряд должен быть не менее 2/3 ширины нижних рядов.
сайдинг. Прикрепите каплесборник к стене и помните, что для верхней обшивки нужна собственная капельница и зазор.