особенности строительства домов, планировка, проекты, фото и видео
В этой статье мы расскажем о том, как строится дачная баня своими руками и о том, что собой представляет это сооружение. Но для начала рассмотрим то, какие типовые проекты дачных бань сегодня актуальны за городом.

На фото — оригинальная конфигурация бани в виде бочки
Особенности дачных бань
На фото — сооружение из кирпича
Повсеместное распространение получают дачные дома из блок контейнеров, впрочем, наряду с такими конструкциями можно приобрести бытовки, оборудованные как полноценная сауна.
Таким образом, дачные дома и бани можно подразделить на две основные категории, а именно, на стационарные и мобильные модификации. Стационарные сооружения строятся для эксплуатации на одном месте, тогда как мобильная бытовка при необходимости может быть перемещена с одного участка на другой без ущерба для функциональности и целостности сооружения.
На фото транспортировка готовых бань-бытовок
Важно: Наряду с очевидными преимуществами дачная бытовка баня имеет существенный недостаток, а именно ее могут похитить в ваше отсутствие.
Для перевозки мобильной бани достаточно небольшого грузовика с открытой платформой и подъёмного крана.
Поэтому приобретая такую бытовку на дачный участок, придется позаботиться о постоянном присмотре.
В строительстве стационарных объектов можно применить проекты дачных домов с баней. Это очень неплохое решение, если вы заинтересованы в среднеразмерном или большом загородном доме с полноценной баней.

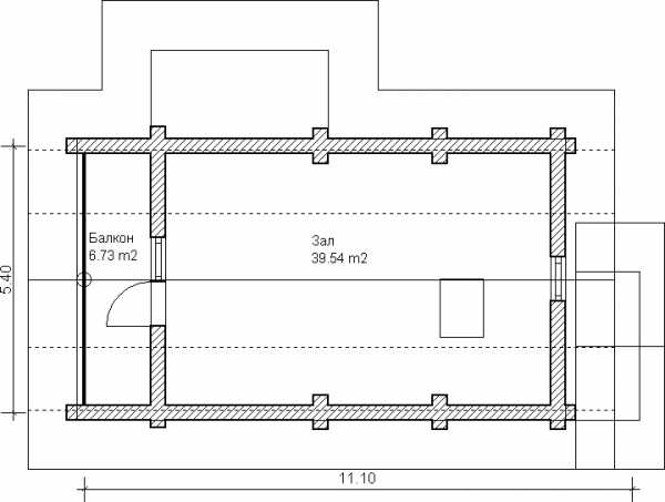
План двухэтажного дома с баней, расположенной на первом уровне
Типовой проект дачного домика с баней представляет собой единое строение, большая часть которого использована под жилые помещения, в то время как треть полезного пространства отводится на парилку и предбанник. Как правило, в таких постройках применяется два различных отопительных устройства: основное — печное отопление и традиционная банная печь.
При строительстве стационарных бань традиционно используется древесина или керамический кирпич.
Строительство бань из керамического кирпича характеризуется трудоемкостью и длительными сроками реализации. Кроме того, цена кирпича высока. Если учесть, что стена строится, как минимум в толщину целого кирпича, можно представить какова себестоимость постройки.
Решением проблемы дороговизны обычного кирпича может стать применение силикатного кирпича или менее дорогих стеновых блоков из керамзитобетона. Из древесных стройматериалов неплохо себя зарекомендовал строительный профилированный брус.
Строим из дерева
Проект дачного дома с баней внутри — это превосходное решение, но только в том случае если участок осваивается с нуля. Если же загородный дом уже есть, целесообразно строить отдельную баню.
Как мы выяснили, применение специально оборудованной бытовки это также неплохое решение, но, к сожалению, не для каждого участка.
Остаётся возведение стационарных объектов из пиломатериалов, например из бруса. Рассмотрим особенности этих проектов, и то, какова инструкция их постройки.
Определяем место для строительства

Завершение строительства бани из бруса
Планировка бани на дачном участке зависит от целого ряда факторов, среди которых:
- Расстояние до загородного дома, согласно правилам пожарной безопасности оно должно быть не менее 15 метров.
- Защищенность от северного ветра. Баню желательно строить так, чтобы основной дом прикрывал ее от холодного ветра.
- Расстояние до водоёма, если таковой присутствует на участке. Близость естественного водоёма — это неплохо, но расстояние до него от бани должно быть не меньше 15 метров, чтобы исключить вероятность затопления с наступлением весны.
- Рельефность, характерная для участка. Баню желательно строить на равнине или на возвышенности, но не в низине.
Важно: На стройплощадку может быть не подведено электричество и в этом случае потребуется аренда дизель генератора для дачи .
Строительство от фундамента до кровли

Строительство стен из бруса на ленточном фундаменте
Инструкция проведения строительных работ включает следующие этапы:
- Закладка фундамента. К бане подводится водопровод и канализация, кроме того слив воды из моечного отделения представляет сдобой сложную конструкцию.
Для того чтобы эти конструкционные элементы разместились под полом, фундамент для дачной постройки домика делаем ленточным. - Поверхность фундамента покрывается слоем гидроизоляции — рубероидом на битумной мастике. Это делается для того чтобы исключить непосредственный контакт древесины с бетоном.
- Поверх гидроизоляции выкладывается нижняя обвязка — это первый уровень бруса с угловым соединением вполдерева, в лапу и т.д. Уложенная обвязка крепится на фундаменте нагелями — деревянными стержнями, которые вбиваются в сквозные отверстия, высверленные в брусе и в бетоне.

Укладка межвенцового уплотнителя
- При укладке второго и следующих венцов в промежуток между брусьями укладывается уплотнитель (джутовая лента). Если этого не сделать, стены будут отличаться высокой теплопроводностью.
- Оконная обсада тоже делается из дерева, но учитывая назначение объекта, чем меньше будет окон, тем лучше.
- Стена-перегородка между предбанником и моечным отделением делается кирпичной, так как к ней будет примыкать печь. На этом же этапе заливается армированная бетонная площадка, на которой будет надстраиваться кирпичная печь.
- Потолок делается подвесным из брусьев с обрешеткой и обивкой из деревянной вагонки. Стропильная система, в отличие от стен, изготавливается не из профилированного, а из обычного обрезного бруса.
- Кровля покрывается шифером или профнастилом.
- При выполнении отделочных работ целесообразно использовать доски из осины. Этот материал уникален тем, что при периодическом контакте с водой он набирает дополнительную прочность.
Важно: Используемые при отделке пиломатериалы не покрываем лаком или олифой, так как при нагревании эти покрытия будут выделять токсичные испарения.
Пол в бане

Схема протекающего пола
Строительство дачных домов и бань это непростая задача, но как показывает практика, сложнее всего обустроить пол в дачном моечном отделении. Пол должен быть деревянным, сквозь него должна стекать вода и, что самое важное, он должен быть теплым. Всем этим требованиям отвечает деревянный протекающий пол, показанный на схеме.
Это сложная двухуровневая конструкция с полноценным бетонным стоком и дощатым покрытием сверху. Доски покрытия уложены с некоторым зазором, так чтобы сквозь них протекала вода. Углубление в бетонном основании, будучи заполненным водой, выполняет функцию естественного сифона.
Вывод
В этой статье мы рассмотрели наиболее популярные разновидности дачных бань и обсудили их особенности. Кроме того, мы рассказали об основных этапах строительства бани из профилированного бруса.
Надеемся, что полученная информация будет применена вами на практике. Если остались какие-либо вопросы посмотрите видео в этой статье.
Добавить в избранное Версия для печати9dach.ru
чертежи и фото » Интер-ер.ру
Загородные и дачные коттеджи иногда имеют общую крышу с баней, верандой, террасой или гаражом. Это учитывается еще на стадии разработки проекта будущего дома. Получить чертеж типовой постройки можно бесплатно. Готовые схемы и фото есть в статье.
Каким может быть проект загородного дома
Собираясь строить дачный коттедж, нужно в первую очередь подумать, что вы хотите получить в итоге. Если попытаться проанализировать самые востребованные проекты, то несомненным фаворитом станет компактное одноэтажное здание с чердаком. Для временного пребывания на даче большего, пожалуй, и не надо. Главное, чтобы все коммуникации были на месте, а внутри было светло, тепло и уютно.
Однако всё чаще владельцы земельных участков стараются создать на приобретенной территории не «времянку», а полноценный домик, где можно жить с комфортом на свежем воздухе и в любое время года принимать гостей. Именно поэтому дачи строят с банями, террасами, верандами, гаражами, а также делают их двухэтажными.

Загородный дом с мансардой
- Периодичность использования здания — только в летний сезон или на протяжении всего года. От этого зависят и толщина стен, и качество утепления конструкции.
- Количество этажей и комнат. Здесь всё зависит от того, насколько велика ваша семья, а также каковы ваши финансовые возможности. Хотя специалисты убеждают, что затраты на двухэтажный дом не намного выше, чем на одноэтажный.
- Бюджет постройки. Один из основных факторов, влияющих на выбор проекта дома.
- Внутреннее наполнение: размеры и расположение комнат, количество и форму окон и т.д. При этом типовые проекты, как правило, предполагают внесение корректив по вкусу и желанию заказчика.
- Величина участка и особенности местного рельефа. От этого зависит не только площадь будущего здания, но и выбор фундамента, а также расположение на территории иных строений.
Совет. Среди самых популярных видов фундамента под дачный дом – ленточный. Он выдерживает как легкие, так и массивные конструкции, долговечен и может быть сделан без привлечения специалистов.
Готовый проект можно купить или найти в свободном доступе совершенно бесплатно. Приобретая типовую схему для возведения дачного дома, вы получаете ряд преимуществ:
- уже разработана вся нужная документация;
- можно сразу же увидеть будущее строение;
- практически исключены непредвиденные ситуации, поскольку подобный проект уже использовался в строительстве, зачастую – неоднократно.
Готовые проекты дачных домов с баней под одной крышей. Плюсы и минусы. Отзывы владельцев
Чаще всего на подобных чертежах можно увидеть баню, вход в которую возможен либо сразу из дома, либо через террасу. При планировке совмещенного здания парилку оборудуют в различных местах, например, в цокольном этаже. Есть варианты, когда баня или сауна становится продолжением дома, т.е. одной из комнат. Иногда персональную домашнюю парилку располагают в едином комплексе с ванной и туалетом.

План двухэтажного дома с баней
Удобства объединенного проекта очевидны:
- круглый год, в любую погоду можно ходить из парилки в дом, одевшись в халат и тапочки;
- не приходится беспокоиться о том, что разгоряченные после бани члены семьи, попав на улицу, подхватят простуду;
- можно сэкономить на стройматериалах, ведь помимо крыши оба здания зачастую имеют общую стену;
- налицо экономия и территории дачного участка: в том месте, где планировалось возведение бани, удастся поставить гараж или сарай.
При этом нельзя забывать и о недостатках, который имеет проект дома и бани под общей кровлей:
- такое строение, особенное возведенное из дерева, имеет высокую степень пожароопасности;
- по той же причине вряд ли удастся застраховать постройку. Многие компании не желают выдавать полис, ведь риск порчи или уничтожения недвижимости огнем слишком велик;
- некоторые службы могут отказать в подключении коммуникаций – чаще всего это происходит, когда при строительстве не были соблюдены определенные требования;
- различные инстанции, например, БТИ, могут не подписать нужные бумаги из-за нарушения норм.
Внимание! СНиП гласит, что расстояние от дачного дома до душа, бани или сауны должно быть минимум 8 м.
Баня и дом с общей крышей – пожалуй, один из наиболее спорных проектов, о чем говорят и отзывы:
- слишком уж разные характеристики температур и влажности имеют дом и баня, поэтому их сочетание в одном проекте нецелесообразно;
- если взять за правило не выходить из бани сразу после завершения процедур, то можно посещать ее без проблем даже зимой. При этом лучше оба здания построить отдельно;
- при недостаточной звукоизоляции громкие «банные посиделки» могут доставлять неудобства членам семьи, находящимся в доме;
- в летний зной топка банной печи – не самая приятная процедура;
- очень удобен проект, где вход в баню сделан из прихожей, параллельно со входом в сам дом;
- в плане риска возникновения пожара совмещенный проект не опаснее, чем дача с печным отоплением;
- баня, пристроенная к дому – хорошее решения для семьи в которой есть пожилые люди или дети.

Дом из сруба с баней
Решившись на разработку и дальнейшее воплощение проекта дачного домика с баней, нужно помнить о некоторых важных нюансах:
- При использовании в строительстве дерева очень часто неизбежны проблемы с сыростью, от которой вся конструкция скорее придет в негодность.
- Большие размеры помещений, увеличенные за счет парной комнаты, повлекут дополнительные расходы на отопление.
- Нужно продумать обустройство системы канализации: общий слив и для бани, и для дома не рекомендуется из-за чрезмерной нагрузки на трубы.
- Для банного помещения нужен отдельный дымоход, а это еще одно отверстие в общей крыше.
- Моечная комната должна иметь пол с протекающей конструкцией (специальными щелями для слива воды) или быть выложена плиткой. В ином случае ее невозможно будет хорошо высушить.
- Добротная вентиляция и хорошее проветривание в бане обязательны! Если пренебречь этим, в доме может поселиться запах сырости. Вывести его очень трудно.
- Планируя установку в банном помещении печки, которая топится дровами, следует обеспечить хорошую тягу, чтобы сажа не оседала на потолках в жилых комнатах.
Совет. Прокладку электрической проводки стоит доверить профессионалам, чтобы не создавать дополнительный риск возгорания конструкции.
Проекты дачных домов с мансардой и верандой: особенности
Чаще всего коттеджи с верандой или мансардой имеют размеры 6х8. Площадь такой постройки колеблется, как правило, от 60 до 75 кв. м. На первом этаже обычно располагают кухню, ванную с туалетом, гостиную, а также саму веранду. В зависимости от разработанного проекта она может быть просторной или маленькой, но от этого не менее комфортной. Веранда – это особое место в доме, где хорошо отдохнуть после напряженного дня, почаевничать и побеседовать, поэтому подобные проекты достаточно популярны.

Дачный дом с мансардой и верандой
Не менее распространено строительство дачных домиков, дополненных не только верандой, но и мансардой. Это отличная возможность использовать чердачное помещение в качестве второго этажа в дачном доме 6х8. Здесь уместно разместить спальню или персональный кабинет. Строительство мансарды имеет следующие преимущества:
- увеличение полезной жилплощади;
- выгодное капиталовложение – полноценный 2-й этаж обходится гораздо дороже;
- привлекательный внешний вид дома;
- сокращение потерь тепла в осенне-зимний период.
Совет. Дачный дом с мансардой и верандой может быть возведен из бруса, бревен, кирпича, каркасно-щитовых панелей или пеноблоков. Каждый из этих материалов имеет плюсы и минусы, а также особенности, которые нужно учитывать, приступая к стройке.
На выбор материала зачастую влияют не только цена, но и скорость возведения здания, а также возможность быстрого заселения. Иногда возможно комбинирование: например, первый этаж строят из брусьев, а второй, с мансардой, делают каркасным. Всё это оговаривается на стадии проектирования.
Строительство каркасного дома для дачи: видео
Дачный дом: фото
inter-er.ru
Проект домика с маленькой баней на дровах

Проект небольшого дома, оборудованного баней с печью, топящейся дровами – самый непритязательный и удобный вариант гостевого помещения для приятного проведения досуга и общения с друзьями.
Маленькая баня, включенная в основной проект небольшого дома для гостей, возведенного на собственном участке, может стать самым востребованным местом для проведения досуга для дружеской компании, родственников и единомышленников.
Популярность гостевых домов, оборудованных баней
Кто бы из нас отказался от мини-комплекса, состоящего из небольшого загородного дома, где частью строения является маленькая баня на дровах?! А если к такому проекту прибавить мансардное помещение с парой гостевых комнат? Такие удачные проекты можно в достаточной мере встретить на просторах Интернета, предлагаемые различными строительными фирмами.
Как правило, на первом этаже располагается весь банный комплекс, включая топочный отсек и гараж под одной крышей. Благодаря ему весь комплекс отапливается за счет банной печи. Поскольку каждая комната примыкает к системе обогрева, потери тепла значительно снижены, а это приводит к экономии средств на энергоносители.
Второй этаж полностью отведен под зону релаксации, в которой располагаются спальни, комнаты отдыха и кабинеты. Проектами данного плана интересуются те заказчики, которые имеют небольшие участки под застройку, где каждый земельный метр должен иметь функциональную нагрузку с максимальной степенью экономии. Помимо земельного вопроса возникает желание, как можно более рационально использовать квадратные метры внутреннего пространства возведенного строения.



Немаловажную роль при работе над индивидуальными проектами небольших помещений с мансардой, отводят устройству фундамента и расчету нагрузок на него. При сооружении дома с мансардным помещением общая нагрузка на фундамент значительно снижается.
Мини-комплексы обладают весьма положительной характеристикой. Они являются очень вместительными. Кроме этого, они достаточно просто компонуются из готовых типовых проектов. Двухэтажные строения легко комплектуются дополнительными помещениями:
- бильярдной
- бассейном
- купелью
- теннисным залом
- библиотекой
- террасой
- верандой
- зимним садом.
Современных типовых проектов, удовлетворяющих любой изысканный каприз заказчика, достаточно много. Среди современных проектов можно встретить такие, которые включают особую зону – детскую игровую комнату. Это полностью продуманный проект, в котором полностью учтен шум детских игр. Он не нарушит процесс отдыха взрослых и не доставит дискомфорт для играющих детей.

Возведение гостевого дома со встроенной баней
Материалом для строительства комплекса дома с баней может быть использовано, либо оцилиндрованное бревно, либо обычный профилированный брус. Выбор, как правило, зависит от финансовых возможностей и желания заказчика.
При возведении бревенчатого дома-бани для гостей, необходимо внести поправку в сроках начала эксплуатации по мере усадки готового строения. Помещение, построенное из керамзитобетонных блоков, клееного или профилированного бруса, требует меньшего количество времени, нежели его отводится при возведении бани из оцилиндрованного бревна. Бревенчатый сруб подвергается существенной и длительной усадке в определенном временном промежутке при которой эксплуатация бани невозможна. Только после ее завершения, а на это может уйти до полугода, в помещении происходит оформление оконных и дверных проемов и проводится внутренняя отделка.
Видео гостевого дома с баней из бруса, обшитого блок-хаусом с баней, верандой и барбекю. Дом находится в эксплуатации с 2010 года:
Если вопрос о сроках эксплуатации стоит очень остро, можно рассмотреть проект возведения дома-бани из каркаса. Такое решение является самым оптимальным, чтобы за короткое время возвести комплекс и приступить к его эксплуатации. Преимущество домов-бань, возведенных из каркаса, заключается в следующем:
- Минимальные сроки строительства за счет быстрого возведения и компоновки составляющих элементов конструкции.
- Гарантированная прочность конструкции.
- Низкая стоимость строительных работ и материалов.
- Максимальное сбережение тепла за счет многослойности плит каркаса и использованию качественных современных утеплителей.
- Возможность устройства недорогого фундамента.

План первого этажа

План второго этажа

Бытует обывательское мнение, что баня, находящаяся под одной крышей с жилыми помещениями, является постоянным источником сырости и несет неприятный застоявшийся «банный дух». В этом отношении можно сказать, что при полном соблюдении норм и правил возведения деревянных строений и жестко придерживаться требований по укладке паро- и гидроизоляции, такие волнения будут совершенно напрасными, а опасения – беспочвенными. Используя современные технологии и строительные материалы очень просто избежать избытка влаги в жилых помещениях.
baniaisauna.ru
Планировка дачного дома с баней / Строительство домов и бань из бревна и бруса
Содержание:
- Дом и баня на загородном участке: особенности планировки.
- Советы по выбору места для бани и дома.
Приобретение загородного или дачного участка для среднестатистического городского жителя сегодня становится не только одним из способов разнообразить свой отдых, но и возможностью заниматься выращиванием овощей и фруктов. Полезные и вкусные плоды со своей земли будут радовать всю семью, но заниматься огородными делами можно только тогда, когда на участке есть место для комфортного отдыха. Дачный дом и баня на загородном участке – не роскошь, а необходимость, которая позволит чувствовать себя уютно и защищенно даже вдали от города. При этом неважно, какой именно дом будет украшать участок – огромный особняк или компактная дача 5х6 из бруса 150х150 мм.
Дом и баня на загородном участке: особенности планировки

Важнейшим вопросом, который приходится решать будущему владельцу дома с баней, является выбор места для этих двух построек. При этом важно понимать, что подход к этому вопросу должен быть серьезным, ведь неудачное расположение может стать проблемой, испортить отдых, а то и вовсе свести на нет все хлопоты по строительству и оформлению участка.
Идеальное место для дома и бани подбирается по совокупности факторов:
- Стороны света. Именно расположение помещений с правильной ориентацией по сторонам света считается важнейшим в процессе поиска места для дома. Жилые помещения и стены с окнами следует разворачивать на юг, восток или юго-восток. Именно эта сторона света гарантирует максимальную освещенность и позволит создать уютную атмосферу, а также сэкономить на электроэнергии. При этом сами дома лучше расположить с северной стороны участка, чтобы минимизировать затенение ими садовой территории.
СОВЕТ! Подбирая расположение дома и окон, обязательно следует предусмотреть сквозное и угловое проветривание, которое обеспечит защиту от появления сырости, плесени и неприятных запахов.
- Рельеф местности. На участке с заметным уклоном банный и дачный дом обязательно размещают на возвышении, чтобы обезопасить строения от влаги и грунтовых вод. Идеальным углом наклона для дачного участка считается показатель в 1-2 градуса, поскольку такой угол оптимален для схода снега и весенних вод, но не критичен для возведения домов и прочих строений.
- Удобство подвода коммуникаций также актуально, особенно в том случае, если дом будет подключаться к газопроводу или водопроводу, а банный дом будет оснащаться полноценной канализационной системой.
- Наличие построек и растений на участке также следует учитывать. Разравнивать землю, выкорчевывать деревья и рушить уже имеющиеся и пригодные для эксплуатации строения не следует. Именно поэтому крайне важным вопросом становится выбор небольших, но компактных построек. Такие проекты домов с баней можно найти на сайте компании «Мастер Дачи»: например, дачный дом из бруса 4х5 с мансардой и баня 3х3 из бруса с каркасным предбанником станут отличным вариантом даже для небольшого участка.
- Кроме функциональных и визуальных особенностей следует учитывать санитарно-технические, а также противопожарные требования. Например, дом должен отстоять от границы участка не менее, чем на 3 метра, а баня от самого дома – на все 5 метров. Соблюдение этих норм кому-то покажется надуманным и мешающим компактному размещению строений, но в случае возникновения критической ситуации такие расстояния могут спасти жизнь.
Советы по выбору места для бани и дома

Кроме классических требований, предъявляемых к размещению строительного тандема «дом – баня», следует учитывать и особенности эксплуатации этих двух построек. Так, дачный дом следует размещать с ориентацией на юг, но при этом надежно защищать окна от слишком ярких солнечных лучей: обычно в качестве защиты выступают вьющиеся растения, беседки или ставни.
СОВЕТ! Выбрав место для дачного дома, следует предусмотреть и обрамление для него: кустарники, клумбы, газон или грядки. При этом они должны быть расположены максимально практично, чтобы не затруднять уход за строением.

Банный дом также нуждается в оптимальном месте на участке. Если на территории участка есть водоем, то место недалеко от него идеально подойдет для строительства бани. Природный водоем можно заменить искусственным, или же разместить удобный бассейн. Чем комфортнее будет оборудовано место вокруг банного дома, тем приятнее будет времяпрепровождение на дачном участке. Также нужно предусмотреть удобный проход от дома к бане, который будет одинаково комфортным и в летнее, и в зимнее время. При этом важно обеспечить защиту бани и дороги к ней от посторонних глаз: обычно в роли заграждения может выступать высокий кустарник или легкая ограда с вьющимися растениями.
Начиная строительство дачного дома и бани на одном участке, следует скрупулезно подойти к вопросу выбора идеального места для построек. Ответственный подход, следование рекомендациям и советам опытных мастеров, а также учет всех норм строительства позволит добиться максимального результата. Дачный дом и баня на загородном участке – идеальное пространство для спокойного семейного отдыха и активного времяпрепровождения с друзьями.
Будет интересно:
masterdachi.ru
Дом-баня: фото, строительство и планировка; как построить дом, совмещенный с баней
Очень часто владельцы загородных участков, перед тем, как строить дом, возводят сначала баню, которая используется под временное жилье, пока основной дом только начинает строиться. Такие бани дома сооружают намного быстрее капитального сооружения и на какой-то период времени они служат хозяевам жилищем. Впоследствии баню оборудуют в соответствии с ее прямым назначением, либо устраивают из нее гостевой домик, иногда даже летнюю кухню. В такой схеме есть свои недостатки и достоинства, которые мы рассмотрим ниже. Хотя рекомендуется баню строить, как отдельно стоящее сооружение, но существуют проекты загородных домиков бань.
Дом с баней: проекты и фото-примеры одноэтажных и двухэтажных построек
К преимуществам можно отнести быстроту возведения своего временного жилья, при этом затраты будут минимальны. На мелкозаглубленный фундамент ставятся каркасные стены. Затем монтируется двускатная кровля. Это может быть мансардная конструкция бани, 2 этаж также иногда предусматривают. Для временного проживания такой дом будет незаменим. Наблюдая за строительством основного дома с близкого расстояния или занимаясь возведением его самостоятельно, не будет необходимости тратить время на дорогу туда и обратно, а постоянный контроль за рабочими только ускорит процесс строительства, да и качество будущего дома будет намного лучше.
К недостаткам можно отнести проблемы, связанные с планировкой, отоплением и инженерными сетями. Также проект дачного дома с баней должен предусматривать тщательную паро- и гидроизоляцию парилки и устройство хорошей вентиляции для вывода избыточного пара и тепла.
Если говорить о планировке дома с баней, то стоит отметить, что в нем должны быть такие помещения, как парилка, моечная, туалет, комната для отдыха и коридор. На мансарде или втором этаже обустраивают гостевые комнаты, спальни и даже лоджии. Хотя такой вариант жилья и далек от возможных удобств коттеджа, но по сравнению с городской квартирой, он не идет ни в какое сравнение.
В качестве обогрева дома бани проекты предусматривают использование инфракрасного напольного отопления или газового котла с радиаторами. Если к участку газ не проведен, в комнаты можно поставить электрические батареи. Не рекомендуется объединять систему отопления с парилкой, так как она когда-нибудь начнет выполнять свои прямые обязанности, а летом домик отапливаться не должен.
Строительство домов и бань на своем участке: выбор материалов и процесс возведения
Материалы для строительства можно применять те же, что и при возведении обычных бань. Но для быстроты и экономии используют каркасные конструкции для бани дома, проекты фото показывает наглядно. Делается ленточный фундамент небольшого заглубления, на него ставится каркас и обшивается досками хвойных пород. Стены и крышу утепляют и гидроизолируют. Можно смонтировать из уже готовых щитов баню дом, отзывы специалистов подтверждают это. Также существует канадская технология, которая в последнее время приобретает все большую популярность.
В настоящее время можно встретить проекты одноэтажных домов с баней встроенной. Она может располагаться не только в загородном коттедже, но и в городской квартире. Для нее возможно найти площади, которые для жилья не годятся. Такую баньку легко поместить как внутри дома, так и в пристройке, подвале, чердаке или чулане. Она не требует отдельного строения, вход в нее предусматривают прямо из коридора, кухни или гостиной. В условиях городской квартиры подойдет просторная ванная комната или кладовка. Встроенные мини-баньки сооружают даже в офисах. Такие помещения тепло-, гидро- и пароизолируют, включая потолок и пол, оборудуют стоком для воды и вентиляцией. Вместо печи-каменки, при невозможности ее устройства, используют электроподогрев.
Фундамент и коммуникации дома-бани
Какие особенности следует учесть при проектировании дома-бани самостоятельно?
Если готовые проекты баня-дом вас не устраивают, то на основании типовых разработок можно сделать свою перепланировку, при которой следует учесть:
- схему инженерных коммуникаций;
- вид фундамента, если печь-каменка, то для нее отдельное основание;
Дом-баня проект должен включать в себя план внутренних помещений:
- Парилка, в длину 1 м, если пологи сидячие, и 2,5 м – лежачие, глубина пологов – 45-60 см, min ширина помещения с учетом каменки 1,5 м.
- Помывочная, располагают рядом с парилкой, 1*1 м для душа.
- Комната отдыха площадью 6м2 – min, оптимально 9-18 м2, следует отделить от парной и душа тамбуром шириной 1м, сделать раздевалку.
- Кухонную зону, лучше отдельное помещение.
- Санузел.
- Коридор-прихожая.
- Крыльцо-веранда.
Спальни устраивают на подчердачном этаже, целесообразно подвести ломаную мансардную крышу. Чтобы перепады температуры и влажности не влияли на микроклимат помещения, огромное внимание следует уделить вентиляции. 
Какие утеплители подходят для внешней и внутренней теплоизоляции совмещенной бани с домом?
Строительство совмещенного дома-бани своими руками предполагает несколько этапов внутренней отделки, основным из которых является утепление. Для внешней теплоизоляции подходят все материалы: минеральные, органические, пластмассовые, можно заказать бесшовное напыление ППУ, цена на услугу весомая, но и качество теплоизоляции на высоком уровне. Утепление стыков и венцов: пакля, пенька, джут, войлок.
Совмещенный дом с баней предполагает несколько помещений с разным микроклиматом, поэтому и теплоизоляцию внутри следует выполнять разными материалами.
Баня, совмещенная с домом, должна быть пожаробезопасна, поэтому для утепления жилых комнат можно использовать пластмассовый утеплитель: сотопласты, пенопласты, поропласты. Для теплоизоляции парилок рекомендуется применять минеральные ваты: каменные (базальт, доломит, известняк) либо шлаковые. 
Какую электропроводку можно использовать в садовом домике с баней?
Чтобы правильно провести электричество в дачный дом с баней необходимо учитывать следующие правила:
- если постройка деревянная, то проводка только открытого типа;
- в помещениях из других материалов можно использовать как скрытый, так и открытый способ прокладки кабеля.
В парилке запрещается устанавливать розетки, плафон для освещения должен быть паронепронизаемый. Дачный домик с баней должен иметь контур заземления. Щиток – влагостойкий бокс, в нем обязательна установка УЗО, либо дифференциальных автоматов.
Провода в парилке можно использовать только термостойкие, медные одно- или многопроволочные, для остального пространства, совместного с парилкой, можно купить обычный кабель, кроме ПУНП. Согласно ГОСТу в части Р 50571.12-96, пункт 703.52 в бане запрещено прокладывать электропроводку в металлической трубе, или использовать кабель с металлической оболочкой. 
Как совместить фундамент, если требуется пристроить к загородному дому, летний домик с баней?
Совместить загородный дом с пристройкой можно, при этом проект летнего домика с баней должен включать в себя отдельный независимый фундамент, как на фото, конечно, строительство лучше заказать «под ключ».
Если планируется самостоятельная пристройка, важно учесть, что основания нельзя привязать жестко, или долить к ленте еще 3 стороны, а 1 сделать общей. Сильное пучение грунта или усадка пристройки, расколет стык, в лучшем случае пойдут трещины.
Основания должны быть независимы, их можно скрепить между собой длинными анкерами, либо арматурой. Для этого в старом фундаменте делаются отверстия до арматуры, к ней привязываются горизонтальные пруты, которые выпускаются и связываются с армирующим каркасом нового основания.
Зимние пучения все равно будут действовать по-разному на старый дом и летний домик с баней, чтобы не появились щели, между фундаментами делается демпферный шов, прокладывается 2 слоя рубероида. 
toolbuild.ru
планировка, проект, фото, видео, каркасный, деревянный дом
Тонкости совмещения дома и бани в проектах
Популярным является возведение домов с баней на территории. В данном вопросе есть перечень требований и особенностей.

- В доме с баней должна быть повышенная техника безопасности.
- В домах, где расположена баня, необходимо произвести детальный, четкий план планировки.
- Если на территории дома находит расположение баня, то важно соблюдать правила техники кондиционирования и вентиляции.
- Для домов с баней важно правильно подобрать материалы для возведения.
Естественно, когда человек запланировал постройку подобного типа, он детально должен быть ознакомлен с правилами техники безопасности. Построение такого сооружения требует внимания и трепетности. Необходимо понимать тонкости такой конструкции, чтобы внедрить в жизнь замысел.
Варианты совмещения бани с домом
Одним из вопросов в процессе создания дома с баней, является правильная планировка помещения. Важно, чтобы баня в доме находилась в безопасном для сооружения месте. Естественно, прежде чем начинать строительство, каждый владелец дома должен нанять толкового проектировщика.
Если вы планируете внести идеи и мечты в проект дома, то необходимо сразу же обдумать, где может быть расположена баня в доме.
Совмещение бани с домом может быть:
- Чаще всего баня в доме находит место в подвальном помещении;
- Бывает, что баня совмещена с санузлом;
- Есть варианты, когда баня находит свое место на вершине здания, так сказать, на крыше.
Если вы уже определились с месторасположением бани в новом доме, то необходимо проконсультироваться со специалистами о возможности нахождения данного сооружения в той или иной части дома.
Многие люди, которые возводят новую крепость для себя и семьи, принимают решение о том, что баня будет иметь вид пристройки возле дома. Естественно, этот вариант идеален для совмещения с домом, но порой есть нюансы, в связи с которыми данные процедуры не осуществляются.
- Этими нюансами могут стать дополнительные расходы на материалы для постройки;
- Также иногда люди отказываются от именно такого варианта в связи с тем, что необходимо проводить дополнительные коммуникации для такого вида постройки.
Времена, когда было строго прописано, что баня должна быть отдельным строением, давно прошли. С современными проектами есть возможность совмещать, казалось бы, несовместимое.
Требования к домам, совмещенным с баней
Понятно, что нельзя просто взять и объединить конструкцию дома и бани в одно целое. Естественно, необходимо соблюдать установленные правила и требования, чтобы совмещение было приятным, а не приносило сплошные проблемы.
Для того, чтобы дом, с находящейся внутри баней, не пострадал через некоторый период времени, важно полностью соблюдать условия безопасности.
Есть нюансы, из-за которых могут появиться проблемы и погрешности во всем здании дома:
- Баня создает влажность;
- Баня, это помещение с опасностью возгорания.
- Конструкция бани может повлиять на ремонтные работы во всех помещениях дома.
В связи со всеми перечисленными опасностями, важно правильно организовать пространство бани и дома в целом.
Чтобы избежать опасности возгорания, можно применить следующие защитные способы:
- Построить баню из огнеупорных материалов, которые не загораются во время попадания искры огня на них;
- Установить в бане специальную систему регулирования температуры в помещении, чтобы в случае перегрева помещения нагревание автоматически останавливалось.
- Организовать возле бани средства для тушения пожара.
Для того чтобы предотвратить высокую влажность в помещении, необходимо:
- Установить систему вентиляции;
- Позаботиться о том, чтобы в помещении, в случае необходимости, можно было проветрить;
- Установить хорошую вытяжку.
- С целью пожарной безопасности, не следует баню располагать вблизи от помещения, с легко воспламеняющимися предметами;
Влияние на ремонт в квартире может быть пагубное в связи с разогревом бани.
Чтобы нахождение бани в помещении не повлияло на состояние материалов, с помощью которых осуществлялся ремонт в квартире, необходимо, чтобы были выполнены правила вентиляции в помещении.
Чтобы избежать сырости в остальных помещениях здания, нужно хорошо проветривать, установить достаточный уровень кондиционирования и регулярно проверять состояние систем, установленных в бане.
Планировка помещения бани
Вариантов вместимости бани в доме огромное количество. Естественно, планирование должно состояться тогда, когда уже точно определена площадь, отведенная под данное помещение. В целом, какого бы размера ни была парилка, есть элементы, которые просто обязаны присутствовать в ее просторах.

- Полочки для сидения отдыхающих;
- Место для камней, накаливающих воздух;
- Подставка для ведра и веника;
- Вентиляционная система;
- Комната для отдыха;
- Бассейн;
- Душевая.
Эти элементы обязательны в каждой бане. Нужно учесть нюансы при выделении пространства под баню в доме.
Преимущества совместного расположения
Преимуществ большое количество, поэтому нужно отдать должное варианту с совместным расположением бани с остальными помещениями в доме.
Какие же плюсы?

- Экономия места;
- Комфортное перемещение по пространству в холодные периоды времени года;
- Когда в доме холодно, можно организовать дополнительный источник подогрева помещения;
- Выгодно с экономический точки зрения;
- Нет необходимости обустраивать дополнительные средства коммуникации на территории участка.
Ввиду всех преимуществ, которые связаны с совместным расположением бани и остальных помещений в доме, сделать ставку на такой вариант обустройства все же стоит.
Недостатки совместного расположения
Помимо преимуществ, есть ряд недостатков совместного расположения бани и остальных помещений в доме.
Такими являются:
- Повышенный риск пожара в доме;
- Высокая влажность во всех помещениях, при неправильной организации вытяжки;
- Риск затопления нижних этажей здания;
- Занимает достаточно немалое пространство в помещении.
Естественно, прежде чем принимать решение, нужно взвесить все плюсы и минусы данного проекта. Но, невзирая на некоторые недостатки, преимуществ все же гораздо больше.
Выбор материала
Выбор материала для построения бани в доме, это один из максимально важных вопросов, к которому необходимо подойти с полной ответственностью. Ведь от того, насколько высококачественные и надежные элементы будут использованы в процессе построения бани в доме, зависит многое. Дом может быть деревянным, каркасном или из бруса и др. материала.
На что обратить внимание при выборе строительных материалов:
- На популярность марки производителя. Речь не идет о том, что нужно покупать материалы самых звучных компаний. Но, прежде чем пойти за покупками, важно ознакомиться с рынком подобных товаров в сети интернет или в журналах данной направленности.
- На стоимость материалов также следует обратить внимание. Конечно, не стоит приобретать самые дешевые материалы, ведь при низкой цене может быть соответствующее качество. Следует выбирать материал, который зарекомендовал себя, как качественное и надежное сырье для обустройства бани. Пусть они будут по средней цене.
- Важно самостоятельно осмотреть каждую деталь покупаемого товара. Проверить, чтобы не было брака и недоработок в каждом элементе.
При любом варианте, нужно обратиться к специалисту, который сможет качественно подсказать, какие именно материалы необходимы для обустройства бани в доме. Профессионал своего дела порекомендует наилучшие материалы, которые подойдут вам и по ценовой политике и по дизайнерскому решению.
Выбор проекта
Проект дома с баней — это, пожалуй, творческая, ответственная и решающая часть планирования построения такой конструкции.
Естественно, нужно подумать, в каком же доме вам хотелось бы прожить всю свою жизнь. Нужно посоветоваться со всеми домочадцами, какое бы они хотели помещение бани. При выборе важно помнить, что баня, это здоровье и отдых. Исходя из этих факторов, необходимо организовывать данное помещение по собственным предпочтениям, интересам и пожеланиям.
Баня и беседка под одной крышей
Если баня нашла свое расположение на нижнем этаже помещения двухэтажного дома, то можно смело придумывать и сооружать различные достройки, пристройки. Проект с баней, соединенной с гаражом или беседкой просто идеален. Это и красиво и гуманно.
Преимущества:
- Беседка может служить вместо комнаты отдыха;
- На беседке можно перекусить или выпить прохладительные напитки;
- Крыша над головой, составляющая часть беседки, поэтому никакие осадки и непогоды не страшны в такой пристройке;
- Можно организовать беседку, которая в холодный период времени будет оборудоваться специальными перегородками, делая помещение теплым и уютным.
Банька с беседкой и барбекю
Вариант такого проекта это высшая степень мечтаний любого человека, возводящего собственный дом. Как же замечательно, выйдя из парилки, оказаться на беседке, где можно приготовить изысканные блюда. Такая планировка поможет ощутить полную гармонию и уют.
С внушительными размерами беседки
Если вы любитель шумных, больших компаний и любите собираться с друзьями, то беседка с внушительными размерами поможет вместить всех гостей в помещении. После баньки присесть в беседке и поговорить по душам, что может быть прекраснее.
Прежде, важно соорудить данную конструкцию из материалов, которые не боятся воды. Ведь после посещения бани и окунания в воду, все люди выходят мокрые.
Вариант строительства сооружения совмещенного с летней кухней
В случае, если у вас планируется в структуре дачного дома летняя кухня и хотите, чтобы помещение было рядом возле бани, то нужно просто организовать пространство бани неподалеку от этого строения. Баня с выходом на летнюю кухню вызывает восторг и дарит массу приятных эмоций.
Этапы строительства
Строительство бани в одноэтажном доме предполагает некоторые усилия. Ведь важно четко продумать все этапы на пути к успешному возведению конструкции.
Естественно, когда речь идет о возведении бани, необходимо поэтапно осуществлять все необходимые действия:
- Сначала обеспечивается прокладка монтажных направлений;
- После этого оборудуется огнеустойчивое и влагонепроницаемое устройство;
- Затем необходимо приступать к организации обустройства покрытий стены, пола и потолка;
- После данного этапа обустраивается внутреннее пространство, в зависимости от запланированной проектировки.
Совмещать ли все вместе баню и дом?
Ознакомившись с деталями и тонкостями обустройства бани в доме, вы, наверняка, уже смогли принять решение о том, стоит ли игра свеч. Если вы не изменили своего мнения в силу особенностей возведения бани на территории дома, то, конечно же, совмещать стоит.
Совмещение бани с домом очень интересное и популярное решение. Решившись на неординарные поступки, можно сделать свою жизнь еще более яркой, насыщенной и полноценной.
krovlya777.ru
9 достоинств и недостатков проектов домов с баней внутри [+8 ФОТО]
Традиционно, когда планируют строительство бани на загородном участке, под нее отводится отдельное место, как правило, расположенное на приличном расстоянии от жилого помещения. Однако, далеко не все могут позволить себе такую роскошь, так как у многих размеры участков ограничены. В таком случае, если не хочется вовсе отказываться от идеи строительства бани, то парную можно сделать внутри дома.

Все под одной крышей
Далее мы рассмотрим проекты бани внутри дома, их виды, а также особенности и недостатки некоторых конструкций.
Виды проектов домов оборудованных баней
Все проекты домов, в которых имеется парная, условно можно поделить на три типа:
- Дом оборудован парной после постройки;
- Проект изначально подразумевает наличие бани. Чаще всего это двухэтажные строения или дома с мансардой;
- Конструкция пристроена отдельно к дому, при этом находится под одной крышей со строением и вход выполнен из дома.

Проект дома-бани с мансардой
Проекты домов оборудованных баней после постройки
Особенности
Проект дома с парной внутри называется «встроенной баней-сауной». По сути это деревянная кабина, обогревающаяся печью-каменкой. В городе обычно используют электрический подогрев, а в загородном доме можно сделать и дровяную печь.

Сборная баня, расположенная внутри дома
Если вы уже решились сделать баню внутри дома, то следует иметь ввиду, что цена ее будет зависеть от нескольких моментов:
- Покупается ли готовое сборное изделие-конструкция или она будет изготовлена своими руками,
- Сложность реализации всего проекта;
- Какие будут использованы материалы;
- Какое будет количество и качество аксессуаров, которыми будет оснащена кабина.
Достоинства

Вход в парилку возможен прямо из дома
Парная внутри дома обладает рядом достоинств, среди которых можно выделить:
- Возможность наслаждаться процессом в любое время года без опасений за свое здоровье.
- Влияние внешней температуры ограничено.
- Не требуется дополнительное место на участке.
- Возможность использовать коммуникационные системы дома.
- Экономия на строительстве.
Недостатки
Конечно же, наряду с достоинствами проект дома с баней внутри обладает и множеством недостатков:
- Если использовать одну отопительную систему, то для прогрева бани понадобится протапливать весь дом.
- Строительство печи внутри парной ухудшает его общую пожарную безопасность.
- Повышенная влажность в помещении, поэтому баню необходимо оборудовать принудительной вентиляционной системой.
- Невозможно разместить баню на берегу водоема.
Совет! Изнутри стены парной лучше всего обшить вагонкой. Материал обладает хорошими эксплуатационными свойствами, кроме того, будет выдержан стиль русской бани.

На фото — дом-баня из бруса
Проект дома-бани
Как правило, такие конструкции используют для загородных дач, когда средства у владельца ограничены. В таком случае парная с моечной и технической комнатой делается на первом этаже, а второй или мансардный этаж отводятся под жилые комнаты.
Такая постройка обладает теми же самыми достоинствами и недостатками, что и вышеописанный проект, за исключением того, что баню можно изначально сделать более просторной и комфортной.
Проект пристроенной бани
Особенности
Так как недостатки парной в доме довольно серьезные, проект можно немножко усложнить и сделать баню под одной крышей с домом, но в то же время за его приделами, т.е. пристроить помещение к дому.

Трехмерный проект бани, пристроенный к дому
Этот вариант обладает рядом очевидных преимуществ, среди которых можно выделить следующие:
- Экономия на подводке электропроводки и водопровода.
- Одной из стен бани будет готовая стена жилья, что также обеспечивает экономию и лучшую сохранность тепла.
- При таком расположении не придется проделывать большой путь от жилья к бане, что очень комфортно в зимнее время.
- Размеры парной не так ограничены, как в случае с организацией внутри дома.
В этом случае особое значение имеет правильное расположение бани. Вход должен быть сделан через отапливаемое помещение, чтобы не было перепада температур. В противном случае тепло будет быстро уходить.
Некоторые же недостатки, присущие вышеописанным проектам, в данной конструкции также присутствуют. Это касается в первую очередь пожарной безопасности и невозможности разместить строение на берегу водоема.

Баня отделанная вагонкой
Размеры пристройки
Если правильно организовать внутреннее пространство бани, то для нее достаточно будет пристройки 2,5м в ширину и 3,5м в длину. Правда, ради такой компактности надо пожертвовать некоторыми помещениями, которые чаще всего делают отельными.
К примеру, помывочную можно совместить с парной, разделив зоны при помощи межкомнатной перегородки. Лучше всего, если эта перегородка будет выполнена из кирпича и отделана кафелем. Это обеспечит необходимый уровень сохранности тепла и влагоизоляцию.
Такая компактность обладает еще одним плюсом – на прогрев этой бани уходит меньше топлива. Причем, дровяную печь можно установить таким образом, чтобы обогревался еще и предбанник.
Фундамент и стены
Главной сложностью проекта является устройство фундамента, так как основание необходимо заглубить на глубину фундамента основного дома. Что касается материала, то лучше всего использовать тот же, из которого построен и сам дом. Это позволит обойтись без устройства стыковочных конструкций, что упросит строительство.
Совет! Перед началом возведения стен необходимо уложить гидроизоляцию. Для этого можно использовать несколько слоев рубероида.

Утепление стен матами
Утепление
Если парная отдельно пристраивается к дому, то особенно ответственно необходимо подойти к утеплению парной. Самым оптимальным вариантом является обшивка стен снаружи матами из минеральной ваты, поверх которых конструкция обшивается сайдингом. Благодаря этому пристройка может гармонично смотреться с фасадом здания.
Пол и потолок парной тоже необходимо утеплить минеральной ватой (читайте также статью «Утепление потолка бани: инструкция по монтажу»). При этом очень важно, чтобы в процессе пароизоляции соблюдалась инструкция. Стены изнутри лучше обшить влагостойкой изоляцией, к примеру, можно использовать Изолон ППЭ.
Вывод
Мы рассмотрели три вида проектов парных расположенных внутри дома. При этом каждый вариант является своего рода компромиссом, поэтому выбирать следует в соответствии с индивидуальными условиями. Наиболее же универсальным будет третий тип проекта, который более всего приближен к бане построенной отдельно, однако он требует больших затрат (см.также статью «Проекты одноэтажных бань – строим самостоятельно»).
Дополнительную информацию по данной теме можно получить из видео в этой статье.
9ban.ru

