Баня на даче своими руками фото проекты. Пошаговая инструкция
Содержание статьи:
Баня приобрела большую популярность в нашей стране, но при этом считается, что она была изобретена в древности в Египте. Египтяне уважали водные процедуры и считали важнейшей задачей поддерживать чистоту своего тела.Баня отличается функциональностью. Многие владельцы загородного жилья желают возвести ее на своем участке. Имея некоторые строительные навыки и необходимые материалы, можно построить баню самостоятельно.

Проектирование бани
Монтажные работы бани начинается с проектирования. На этом этапе учитываются все параметры: размеры, место размещения и выбор материалов. Даже выполняя строительство бани на даче своими руками, проект можно заказать специалистам.
Наибольший спрос на следующие варианты строений:
- Проект постройки 3*3 м, при этом парная и моечная располагаются на площади в 4 кв. метра, а комната отдыха – 3,5 кв. метра.
- План 3*5 м предполагает отдельное расположение моечной и парной. Есть также комната отдыха и терраса.
- Проект 4*4 м состоит из моечной и парной, которые имеют одинаковые площади. На комнату отдыха отводится площадь в 6,46 кв. метров.
- План 5*4 включает парную и моечную, комнату отдыха площадью в 6,62 кв. метра и террасу.
Выбор проекта зависит от того где именно на участке будет располагаться баня на даче.
Расположение планируется с учетом правил безопасности. Данный объект не должен находиться рядом с жилым домом или поблизости от бани соседей. Оригинальным решением будет возведение дачной бани на берегу пруда или реки.
После выбора места размещения бани и создания проекта, следует приступить к выбору строительных материалов. К экономным вариантам относится строительство из кирпича или блоков.
Стоит рассмотреть самые удачные варианты бани площадью 4*5.
Проекты больших бань
Простейший проект бани 4 на 5
Простой проект бани на даче состоит из минимального набора компонентов. Сооружение состоит из одного этажа. В данном проекте отсутствует тамбур, предназначение которого в разделении холодного воздуха с улицы и горячего из помещения. Если предбанника нет, то пользоваться баней в холодное время года нельзя. Так как горячий воздух будет способствовать образованию конденсата на двери.

Проект предполагает наличие следующих помещений:
- Комната отдыха с размерами 2,85*4 метра. В ней расставляется мебель и техника.
- В моечной, размером 1,8*2, располагается унитаз, раковина и душевая.
- Размер парилки 2*2, в ней стоит печь.
Проект бани с террасой 4 на 5
Данный вариант похож на простой проект, но дополняется террасой. При желании ее можно застеклить или обустроить как комфортное место для отдыха.

Проектирование включает следующие помещения:
- Терраса размером 1,5*4 метра.
- Комната отдыха 2*3,5 метра.
- Душевая 1,5*2 м.
- Парилка 2*2 м.
Баня с предбанником 4 на 5
Проект предусматривает размещение предбанника размером 1,1*1,7 м. Это помещение позволяет пользоваться дачной баней в морозы. В нем же можно хранить дрова.

Из предбанника можно выйти в небольшой коридор и в комнату отдыха. Оттуда дверь ведет в моечную и парилку.
Размеры парилки бани
При возведении парилки стоит учитывать правила пожарной безопасности и санитарные нормы. Нельзя располагать полки рядом с печью.
В проекте помещения должно учитываться количество человек, которые будут пользоваться парилкой.
В данном помещении должна поддерживаться высокая температура. Чтобы достичь максимального эффекта рекомендуется обеспечить близкий прогрев от печи. Оптимальным вариантом считается парилка на два места. В зависимости от расположения сидячих или лежачих мест планируются габариты помещения. Для одного человека и сидячего места размер выбирается 0,84*1,15 м. Комфортные параметры помещения для двоих с возможностью вытянуться на лавке, составляют 1,8*2,4 метра.

Если печь выбрана, то габариты помещения поможет вычислить следующее правило: чем дальше человек сидит от печи, тем слабее источник тепла. Если расположиться на расстоянии в 3 метра от источника обогрева, то тепла будет меньше в 4 раза , чем при размещении на расстоянии в полтора метра.
Парилка не должна быть огромной или слишком маленькой. Оптимальная Построить баню высота парилки 2,2-2,4 метра.
В данном помещении устанавливаются 3 полога. Все они имеют высоту в 35 см. При этом верхний полог является самым широким.
Выбираем удобное место под баню
Прежде чем построить баню, необходимо выбрать удобное место на территории. Сделать это правильно помогут следующие правила:
- Не рекомендуется строить баню рядом с любыми водоемами.
- От колодца расстояние должно быть не менее 10 метров.
- Хороший вариант строительства на заднем дворе.
- При проектировании постройки стоит определиться с теплоизоляцией и пароизоляцией.
- Не стоит планировать постройку рядом с полем или дорогой.
- Сооружение дачной бани в южной стороне считается хорошим вариантом.
- Необходимо продумать пожарную безопасность. Стоит затевать стройку подальше от жилого дома.
- Лучше располагать объект подальше от участка соседей.

Ошибки при строительстве бани
Даже при качественном проекте и серьезном подходе возникают ошибки в строительных или отделочных работах. Чтобы минимизировать недочеты при возведении бани на даче своими руками
стоит уделить повышенное внимание следующим моментам:
- Важно грамотно спланировать габариты внутренних помещений. Для строения на два-три человека не должно быть меньше 10 кв.м.
- Высота постройки должна быть 2-2,3 метра. Если потолки ниже, то это неудобно. При более высоких потолках происходит нерациональное расходование теплоносителей.
- Окна лучше располагать с южной или западной стороны. При этом двери размещаются с юга.
- Для уменьшения теплопотерь окна делаются небольшими. Двери должны быть размером не более 75*180 см.
- Баня на даче должна возводиться из легких материалов, которые обладают энергосберегающими свойствами.

Также стоит уделить внимание подбору качественного и безопасного оборудования. При выборе материалов для облицовки не рекомендуется рассматривать смолянистые виды древесины.
Выбор материала
После составления проекта бани на даче следует определиться со строительными материалами. Экономным вариантом считается постройка из блоков и кирпича. Подобные материалы отличаются простотой в уходе и длительным сроком эксплуатации.

Каркасная баня возводится в короткие сроки. Стена такого строения состоит из вагонки, утепляющих слоев, обшивки и облицовочного материала.
Считается, что лучшим материалом для бани является древесина. Это натуральный и экологически чистый материал, который создает особую атмосферу в помещении.

Древесина в качестве строительного материала имеет следующие преимущества:
- Дерево прогревается быстро и не создает конденсат.
- Влажность и жар, образующиеся в постройке из дерева, полезны для здоровья.
- Стены пропускают влагу и воздух.
- Нет ощущения сырости.
- Древесина обладает низкой теплопроводностью.
Строительство бани на даче предполагает следующие этапы:
- сооружение фундамента;
- установка стен;
- монтаж кровли;
- утепление пола и стен;
- отделка фасада;
- монтаж печи и дымохода;
- облицовочные работы;
- установка душевой и унитаза;
- расстановка мебели.
Фундамент для бани на даче
Фундамент дачной бани бывает свайным, ленточным и столбчатым. При этом отличается технология возведения.
Столбчатый
Фундамент столбчатого типа отличается несложным монтажом и небольшими финансовыми вложениями.
Применяется для строений из бруса. Особенностью данной основы является возведение опор только в местах наибольших нагрузок. Это углы строения и места пересечения несущих конструкций и перегородок.

Возведение подобного фундамента имеет следующие особенности:
- Столбы сооружаются из кирпича или камня.
- Расстояние между опорами засыпается щебнем.
- Затем траншеи заливаются раствором.
- Основная нагрузка от постройки приходится на столбы.
Ленточный
Чаще всего баня на даче своими руками и другие загородные строения возводятся на ленточных фундаментах. Подобную основу можно закладывать даже под массивные стены.
Фундамент ленточного типа протягивается по периметру всего строения. При его строительстве не требуется особой спецтехники.

Строительство состоит из следующих этапов:
- Создание траншеи.
- Установка арматурной связки.
- Заливка бетонной смесью.
Если фундамент нужно немного приподнять над грунтом, то производится опалубка.
Свайный
Свайные опоры применяются для дачной бани из бруса и для построек, которые располагаются на подвижных грунтах.

Сваи бывают железобетонные, металлические и из бетона. Они вбиваются или ввинчиваются в грунт до твердого слоя почвы. Поверх свай укладывается плита или ленточный фундамент.
Плитный
На сложных грунтах применяется плитный фундамент, который представляет собой

Это надежный тип фундамента, возведение которого отличается трудоемкостью.
Возведение стен дачной бани
Чтобы построить баню необходимо выбрать качественный раствор, который зависит от разновидности кладки и материала. Стены возводятся с применением шлакоблока, кирпича или газобетона.
Выполняя кладку, не стоит торопиться, чтобы не было деформаций. При строительных работах применяется отвес и уровень.
Заранее стоит определиться с размещением окон и дверей.
Отделка банных помещений производится с помощью вагонки. Внешние работы выполняются из любого материала.
Устройство крыши бани
В завершение строительных работ возводится кровля. Данный элемент выполняет защитную функцию от погодных условий.
При строительстве бани применяются простейшие варианты крыш, без лишних изысков.
Создание прочной кровли требует определенного опыта и знаний технологии возведения.

Конструкция банной кровли
Конструкция крыши для бани предполагает наличие следующих элементов:
- Несущая система из стропил.
- Настил, оснащенный гидроизоляционными материалами и обрешеткой.
- Чердачное перекрытие.
Плоская кровля возводится без перекрытия. Кровли для бани могут быть двускатными или односкатными.
Два ската или один?
В целях сокращения бюджета банная конструкция примыкает к жилому дому. В данном случае используется односкатная кровля. Она представляет собой плоскую крышу, которая характеризуется простотой возведения и невысокой стоимостью.
Для бани часто применяется кровля с двумя скатами. Если крыша высокая, то в пространстве под скатами можно обустроить помещение.
На скос крыши и ее высоту оказывают влияние такие параметры, как климатические особенности и практическое применение пространства.
Дверные и оконные проемы
Установка дверных и оконных проемов не отличается сложностью. От правильности монтажа окон и дверей зависит качество энергосбережения.
При строительстве бани нужно не только подобрать качественный материал, но и выполнить монтаж с учетом всех правил и технологий.
Окна и двери могут быть как деревянные, так и металлопластиковые. В некоторых случаях устанавливаются двери из стекла.

Полы в дачной бане
При строительстве полов для бани на даче требуется качественное утепление. Чтобы пол не сырел и обладал хорошими энергосберегающими свойствами необходимо утеплить цоколь изнутри.
Монтаж пола имеет следующие особенности:
- По фундаменту прокладывается гидроизоляция и утепление с помощью минеральной ваты.
- Пол в душевой заливается с учетом укладки канализационных труб и системы водоснабжения.
- В других помещениях применяется керамзит.
- Укладываются слои пароизоляции и утепления.
- Стелется доска.
Внутренняя и внешняя отделка
Чтобы построить баню необходимо заранее продумать отделочные работы внутри здания и снаружи.
Утепление считается важным этапом любых отделочных работ. Внешние отделочные работы состоят из утепления пенопластом и декоративной облицовки.
Внутренняя отделка сопровождается утеплением с помощью минеральной ваты.

Утепление внутри помещения выполняется следующим образом:
- Поверхность стен покрывается гидроизоляционными материалами.
- Крепится обрешетка из дерева.
- Монтируется пароизоляция и минеральная вата.
- В качестве пароизоляции используется фольга, по которой выполняется отделка.
- Проводится утепление потолка. Между балками прокладывается стеклоткань. Поверх можно положить минеральную вату. Производится пароизоляция и отделка на черновую.
- Внутренняя отделка выполняется с помощью вагонки. Снаружи применяется покраска, сайдинг, облицовочный кирпич или штукатурка.
- Затем монтируется печь и дымоход. На данном этапе следует выполнить качественную герметизацию, чтобы дым не попадал в помещение.
Обустройство дачной бани
Чтобы правильно оформить банное помещение необходимо снабдить баню всеми необходимыми аксессуарами, мебелью и декором.
Обустройство внутри помещения включает проведение электричества, водопровода, канализации и установку печи.
Выполняя разводку электрики, нужно соблюдать требования установки во влажных помещениях.
Фотографии бани на даче
Прежде чем приступить к строительным работам, необходимо составить грамотный проект и выбрать нужный стиль здания.
Интересные варианты можно увидеть на многочисленных фотографиях. Также процесс возведения бани демонстрируют специальные видео уроки.
Пример бани из газосиликатных блоков. Личный опыт своими руками.
На своем дачном участке мы решили построить небольшую баню. Составленный проект предполагал следующие размеры: 5*5,3. Высота потолков равнялась 2,25 м.
Из разнообразия представленных материалов решили остановиться на газосиликатных блоках. Заранее была распланирована двускатная кровля, под которой предполагалось жилое помещение.
Парилка была утеплена и оснащена пароизоляцией. В качестве отделки применялась вагонка. В душевой использовали плитку.
Наш выбор остановился на газосиликатных блоках из – за уникальных свойств данного материала. Он отличается высокими характеристиками теплоизоляции, пожаробезопасностью и стойкостью к гниению.
Под блоки был сделан ленточный фундамент, который был дополнен слоями рубероида для гидроизоляции.

Возведение стен
Для нашей бани были выбраны блоки размерами 20*30*60. Для кладки использовали раствор из цемента и песка в пропорции 1 к 3.
Стены возводились в несколько этапов:
- Монтаж блоков выполнялся с угла. Для выравнивания нужен уровень. Слой раствора наносился на рубероид. Затем укладывался блок, который простукивался ручкой кельмы.
- Последующие ряды блоков устанавливали с небольшим смещением в 15 см. При этом швы нового ряда прикрывают предыдущие.
- Таким же способом возвели фронтоны мансарды, на высоту в 1,9 м.

Отделочные работы в парилке
Внутри парилку облицевали с помощью вагонки. Чтобы на газоблоках не появлялся конденсат, было выполнено дополнительное утепление:
- К стене были прикреплены рейки при помощи саморезов.
- Между ячейками была уложена минеральная вата.
- Затем выполнили пароизоляцию фольгой и специальной пленкой.
- Выполнили обрешетку под вагонку.
- Вагонку монтировали в вертикальном положении при помощи гвоздей.
- После монтажа вагонку покрыли специальным маслом.




Отделка душевой и мансарды
В моечной газосиликатные блоки были облицованы керамической плиткой. Для монтажа мы применили влагоустойчивый клей.

Для отделки мансарды мы использовали вагонку, которую крепили к специальной обрешетке. После монтажа всю вагонку покрыли антисептическими растворами.

Баня из газосиликатных блоков представляет собой отличный вариант. С подобным материалом удобно работать, а по стоимости он выгодней других аналогов.
Горячие темы. Советуем почитать!
postroiv.ru
Баня на даче — описание полного цикла строительства (130 фото)
Баня в нашей стране пользуется особой популярностью. Есть даже мнение, что она является чисто русским изобретением. Хотя версий о том, кто есть подлинный родоначальник парилок, предостаточно. Главное, что благодаря своей функциональности и полезности баня считается желанным объектом многих владельцев загородных участков.

При большом разнообразии современных строительных материалов возвести хорошую баню для дачи под силу каждому. Необходимо лишь располагать свободным временем, иметь элементарные строительные навыки и знать нюансы ее возведения.

Оглавление статьи:
Проект бани
Прежде чем мечта о собственной бане станет реальностью, необходимо пройти крайне важный этап проектирования строения. Составление проекта позволяет воплотить на бумаге все пожелания, дает возможность учесть множество нюансов: от расположения постройки до внутренней отделки парильной комнаты.
Разработка проекта – ответственное мероприятие, его лучше доверить профессионалам, опыт которых поможет организовать весь процесс наилучшим образом. Предварительно имеет смысл просмотреть в сети множество фото бань, построенных на разнообразных участках и в своеобразном стиле. Так будет легче выбрать собственный оригинальный дизайн.

Размер бани напрямую зависит от ее месторасположения на дачном участке. Решение этого вопроса зависит от норм безопасности и конкретных правил размещения строений на территории дачи. Они зафиксированы в соответствующих документах, которые необходимо найти.

По правилам пожарной безопасности баню необходимо располагать на противоположной по отношению к дому стороне участка. Нельзя ее возводить рядом с баней соседей, если таковая у них построена.

Существуют дачные участки с выходом к реке или озеру. На их берегу баня будет смотреться превосходно, к тому же это расположение идеально для того, чтобы быстро освежиться при выходе из парилки.

Материал для строительства
Когда этап проектирования завершен, наступает пора подобрать строительный материал для воплощения задуманного. Здесь все зависит от финансовых возможностей. Баню можно возвести из блока, кирпича или дерева.

Блочная и кирпичная бани являются относительно недорогими постройками, обладающими определенными достоинствами и недостатками. Такую баню проще обслуживать, срок эксплуатации у нее достаточно высок.
Однако по теплосберегающим характеристикам и атмосфере внутри помещения она уступает деревянным аналогам. Поэтому многие придерживаются мнения, что настоящая баня представляет собой сруб и в любом случае должна быть построена из дерева.

Дерево – превосходный экологичный материал, отличающийся особой практичностью. Любой владелец деревянной бани согласится с тем, что в ней царит приятная атмосфера, созданная полезным для органов дыхания смолистым ароматом.

Деревянная баня позволит не только расслабиться в свое удовольствие, она способна укрепить организм и стать изюминкой дачного участка.

Поэтому вопрос о том, как правильно построить современную баню становится приоритетным по сравнению с вопросом финансовым. Вложить средства в собственное здоровье и эстетичный вид дачного участка, бесспорно, имеет смысл.

Этапы возведения бани
Приняв решение сделать баню своими руками, необходимо продумать каждый этап, поскольку это намного упростит работу и сделает ее более слаженной. Этапы возведения будут следующие:
- заливка фундамента;
- строительство стен;
- монтаж кровли;
- фасадные работы;
- установка печи и дымохода;
- утепление стен, пола и потолка;
- настил полов, установка дверей и окон;
- обустройство душевой;
- внутренняя отделка;
- выбор мебели.

Можно разработать и свой план, главное, после этого четко следовать по намеченному пути.

Заливка фундамента
Фундамент является одной из самых важных частей всей постройки. От качества основания напрямую зависит качество всей бани. Вид фундамента под баню определяется с учетом почвы дачного участка, уровня грунтовых вод, габаритов и материалов для возведения.

Выделяют следующие разновидности фундаментов под баню:
- монолитный – универсальная плита для многих видов почв;
- ленточный – простой по исполнению и надежный вариант;
- столбчатый – подходит для плотных почв;
- винтовой – хорош, если участок находится на склоне или почва на нем нестабильна;
- свайно-ростверковый – подойдет в случае наличия на даче плывунов.
Строительство сруба
Работы по возведению сруба почти ничем не отличаются от других видов строительных работ. Самое важное – ответственно подойти к выбору бревен. Материал должен быть качественным, поскольку функций на строение будет возложено немало и срок службы бани каждый дачник хочет получить большой.

В процессе строительства бани для дачи необходимо следить за качеством рубки, от нее зависит герметичность будущих стен.

Правильно возведенный сруб – залог эффективного сохранения тепла внутри помещения. Лучше, если работу будут выполнять профессиональные плотники.

Окна и двери сруба
Расположение и размеры всех проемов необходимо спланировать заранее, чтобы правильно организовать строительные работы. Для выравнивания проемов используют бензопилу, торцы бревен делаются под шип, чтобы затем на них можно было смонтировать косяки.

Последние должны устанавливаться без основательного крепления к стенам. Там, где это необходимо, края проемов ровняются для беспрепятственной установки наличников. После можно приступать к монтажу самих окон и дверей.

При этом материалы, из которых они будут изготовлены, выбираются самим владельцем дачи. Стоит лишь помнить об особенностях эксплуатации бани и о свойствах используемых материалов.
Баня представляет собой уникальное сооружение и все вопросы ее строительства и эксплуатации заслуживают пристального внимания. Баня по праву считается местом, где можно расслабиться после рабочей недели или просто весело отдохнуть с родными, друзьями.

Чтобы почувствовать универсальность и незаменимость такого дачного сооружения как баня, стоит лишь раз попробовать ее чудодейственную силу.

Фото бани на даче











































landshaftadvice.ru
Планируете строить баню своими руками? 5 проектов и 100 фото
Почти каждый хозяин собственного дома мечтает о бане. И даже, если вы не собираетесь строить баню своими руками, то надо хотя бы разобраться в разнообразии проектов бань и их маленьких секретах.

Вы знали, что перед постройкой бани важно сориентировать ее по сторонам света? Обычно дверь в баню располагают с южной стороны — зимой там раньше тает снег и вам не придется часто заниматься его расчисткой. А вот окна лучше расположить на западе — вечером в них будет больше света, ведь, в баню мы обычно ходим по вечерам.

Для возведения сруба бани используется зимний лес — он плотнее и менее подвержен гниению. Не торопитесь затевать баню, когда готов сруб — он должен отстоятся в течение года, и только потом можно приступать к отделочным работам.

На начальном этапе строительства необходимо решить вопрос с выбором места типа бани. Ее можно возвести как отдельностоящее сооружение или пристроить к дому или другой жилой постройке.
Многие считают, что соединение бани и дома может добавить сырости и неприятного запаха в доме. Но, если в бане проложены правильная гидроизоляция, вентиляция и канализация, то вышеупомянутых проблем быть не должно.
С другой стороны, баня сделанная как отдельная постройка, более пожаробезопасна, а небольшая веранда у бани сможет вполне заменить вам садовую беседку.

Очень важным моментом при строительстве бани является закладка фундамента. Фундамент может быть ленточным, столбчатым или свайным. Для строительства бани своими руками лучшим считается столбчатый фундамент, который состоит из бетонных свай, выставленных на глубину около 1.5 метра. Такой фундамент делают из камня, кирпича или бетона.

Для отделки бани внутри лучше использовать материал из таких пород деревьев как тополь, ольха или осина, так как они обладают высокой влагостойкостью и слабой теплопроводностью.Рекомендуем полы делать тоже из дерева, поскольку оно слабо нагревается. Но дерево имеет склонность к гниению, поэтому лучше сделать разборный пол и хотя бы раз в год его проветривать и просушивать на солнце.
Полки в бане могут быть не очень большого размера. Главное, чтобы на них можно было свободно сидеть или удобно лежать. Размер парной должен быть около 6 кв. м. — так и дров не надо много для прогрева, и не тесно. В правильной русской бане температура воздуха около 60 градусов, а влажность 40%. Сравним с финской сауной, где температура 90 градусов и влажность 10%.
Для строительства бани своими руками важным моментом является выбор печки для нагрева парной. От вида печи зависит «легкость» пара. Кирпичная печь прогревается дольше, и должна отстоятся около часа — зато пар идеальный, легкий. Железная печь прогревается быстро, угаром не угрожает, но пар более жесткий.
Печь необходимо установить на фундамент. Она ни в коем случае не должна касаться стен бани. Учтите тот факт, что печь нужно расположить так, чтобы отапливались сразу все помещения бани. На сегодняшний день очень популярны печи с удлиненной топкой. Такие печи позволяют топить в парной с предбанника. Хорошая печь равномерно распределяет тепло по всей бане.

Планировка бани включает в себя три основных помещения: парная, душевая и комната отдыха.

Кроме этих помещений баня может включать в себя маленький внешний бассейн, ведь, баня — это не только пар и жар, но также и закаливание на свежем воздухе. Ведь после парной надо закрыть поры — и с этим лучше всего справляется холодная вода внешнего водоема.
Если у вас нет возможности построить баню из бревен, вы можете выбрать другой вариант строительства из так называемых «деревянных кирпичей».
При таком строительстве деревянные чурки укладываются в цементный раствор как кирпичи.

Так вы не только сэкономите на строительстве бани, но и получите более пожаробезопасный вариант.
Такая баня выглядит вполне прилично и внутри, и, кроме того, таким способом можно легко построить так редко встречающуюся шатровую баню.
Планировка бани позволит вам тщательно продумать требуемый функционал от вашей бани и более точно спрогнозировать свои расходы и трудозатраты.

Планировка бани 1.

Планировка бани 2.

Планировка бани 3.

Планировка бани 4.

Планировка бани 5.
Баня — место непростое, издавна баня по праву считалась самым настоящим лекарем — «В бане мыться заново родиться!» Но есть у бани и свои легенды. Так во времена язычества, славяне, хорошо натопив бани и разложив там чистую одежду, плотно закрывали ее и уходили. Это было время, когда парились умершие предки.
Во времена раннего христианства баня считалась местом подозрительным. Запрещалось в бане вешать иконы и заносить банную утварь в дом. После бани человек должен был окатить себя холодной водой или окунуться в реку — чтобы прогнать от себя нечисть. После посещения бани нельзя было ходить в церковь, грешно было мыться по православным праздникам, а также в среду, пятницу и воскресенье. Таким образом, банным днем стала суббота.
Дух бани — банник, требовал к себе уважения и запрещал заходить в баню после наступления темноты, и принимать баню пьяным. Большим проступком было торопить человека, парящегося в бане или оставлять в бане без присмотра ребенка — их мог утащить банный дух.
Если вы собираетесь построить на своем дачном участке баню, надеемся, что вам пригодились наши маленькие советы. А давние традиции, о которых мы вам рассказали, помогут вам не только получить удовольствие от посещения бани, но и быть предельно внимательными рядом с горячей печью и паром.
Ведь, баня своими руками — это увлекательное и полезное дело, возможно, вам будет интересно познакомиться с современными вариантами бани в нашем видео:
idealsad.com
проектирование, постройка и утепление своими руками (100 фото)
Иметь собственный дачный участок где-нибудь подальше от суеты городов, утопающих в смоге выхлопных газов, становится уже не просто мечтой большинства городских жителей, а требованием времени, некой необходимостью. Именно здесь человек найдет покой, отдохнет душой и телом, а кто-то вырастит, а потом соберет свой собственный урожай и он станет приятным дополнением к семейному столу в долгие зимние дни.
Те, кто уже является счастливым владельцем своего дачного участка, непременно начинает обустраивать свое хозяйство, и важным элементом в этом процессе становится баня.

Присмотритесь к фото бани на даче, их можно найти в сети интернет в большом количестве. Вы непременно заметите всевозможные варианты бань: от простых до более сложных, художественно оформленных и предоставляющие комфортные условия для полноценного отдыха.

Если вы решили возвести на своем дачном участке добротную и комфортную баню, вам необходимо подготовится, разобраться со всеми аспектами будущего строительства, какие материалы будут необходимы, критерии по подбору материалов, а также ответить на множество иных вопросов.
Рассмотрим более подробно основные нюансы возведения бани на даче и все, что необходимо знать тому, кто собрался самостоятельно ее построить.

Краткое содержимое статьи:
Какой будет будущая баня
Прежде чем ответить на вопрос, как построить баню, необходимо определиться: из чего мы будем ее строить. Современные технологии в строительстве и широкий спектр всевозможных материалов, позволяют выбрать вариант с наименьшими материальными затратами, если можно так выразиться – бюджетный, а также конструкцию стоимость которой будет доступна только очень состоятельному человеку.

В зависимости от вида материалов и технологии, можно выделить следующие типы бань:
- Стационарные, капитальные конструкции;
- Так называемая — мини баня. Отличается простотой конструкции и малым временем для ее строительства;
- Передвижные бани. Такие конструкции можно смонтировать на автоприцепе и свободно перевозить.

Передвижной и мини варианты мы не будем описывать в этой статье, при необходимости вы найдете нужную информацию. Остановимся на стационарных, капитальных конструкциях, их особенностях, а также основных аспектах технологии строительства.

Деревянная баня
Это самый распространенный тип и является более предпочтительным, поскольку имеет ряд неоспоримых преимуществ, а именно:
- Дерево является натуральным, экологически чистым материалом, в такой бане человек чувствует себя намного комфортней;
- Фундамент деревянных зданий прост по своей конструкции;
- Нетребовательность к утеплителю;
- Простота обработки. В процессе строительства работать с деревом значительно проще, оно легко обрабатывается;
- Простота проведения отделочных работ.

У деревянных бань имеются некоторые специфические недостатки, к числу которых относятся:
- Необходимость проведения работ по обработке стен специальными материалами предотвращающими гниение под действием влаги;
- Сложность в обслуживании деревянного строения;
- Высокая стоимость дерева.

Каркасная баня
Следующий тип, так называемые каркасные бани. Хотя в качестве основного материала в этом случае также выступает дерево, мы выделили каркасный способ в отдельный вид по причине растущей популярности этой технологии, а также ее особенностей.

У каркасного строительства имеются следующие достоинства:
- Простота и доступность для повторения;
- Малый вес готовой конструкции, вследствие чего устройство фундамента значительно упрощается;
- Невысокая себестоимость.

Несмотря на простоту, каркасный способ вполне подходит для возведения вполне сложных и комфортных бань на дачном участке. Высокая скорость возведения здания, также добавляет популярности данному способу.

Каменная баня
Данный тип используется редко, причина — сложность конструкции самого здания и технологии его возведения. Кроме того: камень быстро промерзает, что бы прогреть и просушить баню в холодный период, требуется значительно больше времени и затрат на отопление.

Каменную баню, как правило, строят в случае, если она будет большая и с бассейном, в противном случае лучше выбрать деревянную или каркасную.

Баня из пеноблока или газоблока
Вполне приемлемый вариант. Строение более легкое, если сравнивать с каменным, а потому устройство фундамента проще и он дешевле. Такая баня возводится достаточно быстро и просто.

Повышенная гигроскопичность материала требует специальной защиты от воды, в этом заключается главный недостаток данного типа.

Баня из арболита
Арболи́т представляет собой «легкий бетон», сделанный из органического наполнителя и скрепленного посредством цементного вяжущего раствора. Это редкий, но вполне приличный вариант.
Сами стены строения собирают из блоков либо делают монолитными. Баня получается теплой, достаточно прочной, а строительство не требует высоких финансовых вложений.

Мы рассмотрели основные варианты для капитальной бани. Выбор того или иного способа полностью зависит от ваших материальных возможностей и предпочтений. Выбрав тип будущей бани, можно переходить к следующему шагу – подобрать место на участке, где она будет расположена.

Как правильно расположить баню на участке
Присмотритесь к тому, как расположены готовые бани на даче у ваших соседей, или ознакомитесь с планами участков в интернете: вы непременно заметите, место, где установлена баня, выбрано не случайно. Давайте попробуем разобрать критерии этого выбора.

Существует следующие фундаментальные правила, которые необходимо учитывать:
- Оптимальным вариантом расположения будет задний двор, место должно быть защищенно от ветров и сквозняков;
- Не устанавливайте баню рядом с дорогой, пыль будет неприятным сюрпризом во время вашего отдыха;
- По возможности выбирайте южную сторону участка;
- Колодец, скважина или иной источник питьевой воды должен быть на расстояние не менее 20 метров от здания бани.

Если ваш участок расположен на берегу водоема или у вас имеется искусственный, располагайте баню в отдаление от него, это позволит избежать подтопления весной или во время дождей.

Особенности проектирования бани
Грамотно созданный, информативный проект, во многом предопределяет удобство будущей бани, а также успех всего процесса строительства. При проектировании учитывайте следующие моменты:
- Высота потолков в бане должна составлять около 2 м. — это оптимальное значение, оно позволит не биться головой и рационально использовать тепло;
- Дверь предпочтительно делать с выходом на юг, а окна – на запад;
- Оптимальный размер дверей составляет: высота 1м. 80 см, ширина 70 – 80 см. Порог делают повыше для правильного распределения и экономии тепла внутри помещения;
- Стены делают из материала с низкой теплопроводностью — это повысит энергетическую эффективность бани;
- Необходимо продумать систему слива и вентиляции, от их грамотного проектирования во многом зависит долговечность и комфорт;
- Не применяйте для внутренней отделки смолянистые породы древесины, в противном случае вы будете неприятно удивлены, когда горячая смола начнет капать на голое тело.
Планируя подумайте о расположение комнат, где и что разместить, но думая о комфорте, не забывайте о функциональности и эффективном использование тепла. Присмотритесь к готовым вариантом, посмотрите фото бани внутри, их можно найти на специализированных сайтах, а также у ваших соседей.

От того, насколько тщательно вы продумаете все на этапе проектирования, будет зависеть качество вашего отдыха в последующем.
Последовательность строительных работ
В процессе строительных работ необходимо придерживаться определенной последовательности:
- Монтаж фундамента;
- Установка стен. В случае применения каркасной технологии, предварительно собирают каркас;
- Сборка крыши. Устанавливают каркас, монтируют обрешетку, укрепляют кровлю;
- Проведение наружных отделочных работ;
- Установка полов;
- Установка печи, монтаж дымоотвода;
- Проведение внутренних отделочных работ.

Все виды современных бань предусматривают один общий элемент – печь, а потому необходимо остановимся на этом моменте более подробно.

Печь для бани
Самый выгодный и простой вариант – купить готовую электрическую печь. Использование современных электрических печей позволяет избавиться от проектирования дымохода, не заботиться о дровах, а также их конструкция обладает высоким КПД, что позволит сэкономить ваш семейный бюджет.

В конструкции электропечи для бани имеется специальный модуль для нагрева камней, это позволяет их успешно использовать не только для разогрева воды и отопления помещения, но и для устройства парилки.

Одним из существенных достоинств печей работающих на электричестве – их безопасность, исключается возможность отравления угарным газом, однако необходимо помнить об электробезопасности.

Если вы сторонник традиционных технологий – купите обычную печь на дровах. Использовать в качестве топлива уголь или другие углеводороды не рекомендуется — в этом случае в бане будет присутствовать запах, что не пойдет на пользу вашему отдыху.

Вам необходимо позаботиться о грамотно спроектированном дымоотводе, он должен эффективно выводить весь дым, иначе возможны отравления. Делать печь своими руками не стоит, если вы конечно не специалист в этой области.

Заключение
Не важно, классическая или это переносная, сборная баня, в любом случае, она станет прекрасным дополнением для отдыха и необходимым элементом для тех, кто живет на даче.

В одной статье рассказать обо всех особенностях строительства бани невозможно в принципе. Мы попытались раскрыть только основные моменты, дальше все уже зависит от вас и вашего желания.
Фото бани на даче


















Смотрите также
Сохраните статью себе на страницу: Присоединяйтесь к обсуждению: Copyright © 2019 LandshaftDizajn.Ru — портал о ландшафтном дизайне №1landshaftdizajn.ru
Баня на даче своими руками
Поездка на дачу является радостным событием, так как там можно заняться огородом или благоустройством участка, а потом отдохнуть, попарившись в бане, при условии, что она там есть. Мы расскажем как правильно сделать баню на даче своими руками, продемонстрируем чертежи, схемы и фото инструкции. Придется немало потрудиться, но оно стоит того.
В своем воображении вы уже, наверное, видите, как подходите к бане, открываете дверь и попадаете в теплый и уютный предбанник, а потом в парную. Да! Именно так всё и будет, но немного позже. Сначала нужно:
- выбрать подходящий проект;
- ознакомиться с этапами строительства;
- закупить строительный материал;
- построить баню и подвести все коммуникации;
- выполнить внутреннюю отделку и только потом париться.
Если, прочитав вступление, у вас не пропало желание сделать баню на даче, то продолжим тему, рассматривая все этапы строительства.
Выбор места под строительство бани
Место под баню нужно правильно выбрать
Часто дачные участки не отличаются большими размерами, но кроме личных предпочтений и удобства есть и нормы, которых необходимо придерживаться. Вначале рассмотрим предпочтения.
- Было бы лучше поставить баню на возвышенности, что существенно упростит организацию слива воды.
- Хорошо, когда баня находится рядом с водоемом или рекой.
- Лучи заходящего солнца, проникающие в парную через окно, снимут стресс, но надо одновременно сделать и так, чтобы вход в баню хорошо просматривался из окна дачного домика. Так можно наблюдать за топящейся баней и за детьми, особенно когда перед входом сооружен бассейн.
- Баню можно сделать в виде пристройки к дому.
Чтобы не возникло конфликтных ситуаций с органами власти или соседями, нужно соблюдать предписания СНиП 30-02-97. Обратив внимание на раздел 6, пункты 6, 7 и 8, вы найдете исчерпывающую информацию по размещению строения на участке, но мы приведем только те цифры, которые вам потребуются для того, чтобы выбрать оптимальное место для бани.
Учитывая меры пожарной безопасности для расположенных на противоположных сторонах проезда строений, нужно придерживаться расстояний, указанных в таблице:
|
Материал, из которого сделаны несущие и ограждающие конструкции |
Расстояние, которое напрямую зависит от материала, использованного при возведении строения |
|||
|
I |
II |
III |
||
|
I |
К этой категории относятся негорючие материалы |
6 м |
8 м |
10 м |
|
II |
Те же строения с использованием деревянных элементов |
8 м |
8 м |
10 м |
|
III |
Деревянные и им подобные строения |
10 м |
10 м |
15 м |
Что касается требований относительно расстояний до соседнего участка, то они тоже недвусмысленны.
|
№ |
Минимально допустимое расстояние между постройками, расположенными на соседском участке |
Расстояние |
|
1 |
Садовый дом |
3 м |
|
2 |
Различного рада хозяйственные постройки (к ним можно отнести и баню) |
1 м |
Также важно учесть требования расположения строений на своем участке – от садового дома душ, баня и сауна должны находиться на расстоянии не менее 8 м.
Кстати, несоблюдение этих норм может привести к судебному разбирательству с соседом и сносу или переносу бани на другое место.
Проект бани
Выбирая проект бани, важно учитывать материал, из которого она будет построена. Может быть несколько типов строения:
- Каркасная баня.
- Деревянная баня (из бруса или оцилиндрованного бревна).
- Баня из кирпича, камня или блоков.
- Строение из арболита.
Определившись с материалом, при выборе проекта убедитесь в том, что он подходит вам по всем критериям.
Планировка небольшой бани 6×3 м
Вариант планировки бани из сруба
Планирование бани для дачи
План бани 6×6 м
Выбор материала
Итак, выбрав подходящий проект, в соответствии с его требованиями нужно заготовить строительные материалы.
- Чаще всего дачники предпочитают возводить каркасные строения, так как они самые дешевые и со своей задачей успешно справляются. Кроме того, ввиду малого веса такой конструкции на фундамент тоже не придется много тратиться.
- Самыми любимыми постройками являются деревянные. Стоимость такого здания будет несколько выше, а фундамент нужно будет сделать более крепкий, в отличие от каркасного строения. Построенная на даче хорошая деревянная баня не нуждается в утеплении.
- Камень и кирпич нечасто используются для строительства бани на даче. Связано это с тем, что для такого тяжелого строения нужен крепкий фундамент, а стены во время долгих отсутствий промерзают и такую баню нужно долго разогревать. Исключением являются строения из пено- и газоблоков. К прочности фундамента требования не такие высокие, стены получаются теплыми, но важно учесть, что этот строительный материал очень гигроскопичен, поэтому его нужно защитить от влаги.
- Арболит тоже нередко используется при строительстве бань. Стены могут быть монолитными или возведенными из блоков. Строение получается теплым, прочным и недорогим.
Материалы для стен
Поскольку в нашей статье идет речь о нескольких возможных вариантах использования различных строительных материалов, то рассмотрим их по отдельности.
Каркасное строение
Материал для каркасной бани должен быть хорошего качества, а бруски сухими и ровными
Стены такой бани изготавливаются в решетчатой конструкции. Для стен каркаса потребуется:
- Брус различного сечения, размеры и количество которого указано в проекте.
- Утеплительный материал с высокими теплоизоляционными качествами для заполнения каркаса. Опять же нужно придерживаться требований относительно использования того или иного утеплительного материала, но здесь нужно учитывать, что в документации часто указывается один тип материала, но не все возможные. Если указанный материал слишком дорогой, то можно обратиться к форумам, чтобы уточнить, что приемлемо в вашем регионе.
- Материал для обшивки каркаса снаружи и изнутри. Чаще всего для наружной обшивки здания используют плиты OSB, обрезную доску, сайдинг или блок-хаус, тогда как изнутри используется вагонка.
Деревянная баня
Используя оцилиндрованное бревно можно очень быстро возвести баню, так как все заранее подготовлено на заводе
Для возведения стен может быть использовано:
- Натуральное окоренное дерево.
- Обрезной брус.
- Профилированный брус.
- Клееный брус.
- Оцилиндрованное бревно.
Баня из кирпича, камня или блоков
Стены такой бани могут быть сделаны из таких материалов:
- Кирпич (керамический или силикатный).
- Камень (бут, известняк, ракушняк).
- Блок (пено-, шлако-, газоблоки).
Строение из арболита
Арболит прочный и легкий, поэтому тоже часто используется в строительных работах
Если есть возможность недорого приобрести опилки (а может и свои есть), то в домашних условиях вполне возможно изготовить арболитовые блоки довольно высокого качества. Также этот строительный материал в виде готовых блоков есть в продаже. Стены возводятся очень быстро. Еще одним преимуществом использования арболита является возможность изготовления монолитных стен путем заливки в опалубку цементно-стружечного раствора.
Материалы для потолка в бане
Предбанник и комната отдыха являются теплыми комнатами, поэтому рекомендуется использовать материалы с низкой теплопроводностью – осину, липу или ольху.
Для обшивки потолка парилки предпочтительней использовать деревянную вагонку, так как она способна выдерживать высокую температуру. В этой комнате нельзя использовать изделия из сосны или ели, при нагреве с этой древесины начинает выделяться смола. Также нельзя подшивать потолок листами ДВП и ДСП, так как влага и высокая температура способствуют выделению паров, способных причинить вред здоровью человека.
Материалы для утепления и пароизоляции
Наружное утепление целесообразно выполнять только при условии, что баня отапливаемая. Вряд ли кто-то будет на даче делать такую роскошь, поэтому мы рассматриваем материалы для внутреннего утепления неотапливаемой бани.
Каркасную баню не нужно утеплять, так как теплоизоляция заложена внутрь конструкции. В деревянной бане нужно сделать обрешетку, в которую вставится утеплитель. Другие виды бань нуждаются в утеплении, выполненном по более сложной технологии.
Для выполнения работы потребуется минеральная вата, толщина которой подбирается в зависимости от материала, использованного при строительстве бани и климатических условий. Обычно укладывается слой не менее 50 мм. Утеплитель может быть в виде матов или в рулонах.
Что касается пароизоляции, то важно знать, что это не гидроизоляция. У каждой свое предназначение. Даже недорогая пароизоляция выполнит свою роль, тогда как гидроизоляцией, использованной не по назначению, можно свести на нет все труды.
На что особенно нужно обратить внимание, так это на то, чтобы не приобрести подделку.
Отделочные материалы
Поскольку речь идет о бане на даче, не будем говорить о шикарных видах отделки. Оптимальным вариантом будет использование дерева: вагонки или ей подобных облицовочных материалов.
Что касается наружной отделки, то это может быть любой материал, который используют для обшивки домов. Если же баня сделана из оцилиндрованного бревна, то было бы неразумно закрывать и без того красивый фасад еще чем-то.
Строительство бани
Теперь рассмотрим, как может быть выполнена постройка бани на даче своими руками. Понятно, что работы будет легче выполнить с помощником, которым может быть кто-то из членов семьи. В начальной стадии выполнения работ кое-какие поручения можно давать детям. Конечно, они сделают далеко не всё и не так быстро, как хотелось бы, но если они будут чувствовать, что в них нуждаются, то они потом будут более бережно относиться к построенной с их участием бане.
Но будем реалистами, маленькие дети помогут немного, а если строить в одиночку, то это будет долгострой, тем более что некоторые работы выполнить в одиночку просто не получится. По ходу чтения статьи, вы будете видеть, когда и сколько помощников может потребоваться – это поможет всё распланировать.
Разметка
Итак, план выбран, с расположением определились, теперь приступим к разметке на местности. Для этого нужно в соответствии с масштабом, указанным в проекте, перенести контур бани на местность. В том месте, где будет находиться угол здания, забивается длинный колышек (или арматура), и от него отмеряются длины двух стен, расположенных под углом 90°. Там забиваются следующие колышки, и от них отмеряются расстояния других стен. Наконец, забивается последний – четвертый колышек.
Теперь, когда есть обозначенный периметр будущего строения, нужно проверить насколько прямыми получились углы. Для этого необходимо выполнить проверку по осям ‒ измерить расстояние от одного колышка до другого. Полученные данные должны совпадать. Если это не так, то плоскость нужно сдвинуть, «укоротив» самую длинную ось. После этого нужно будет проверить не только оси, но и другие размеры, и, при необходимости, вновь подкорректировать.
Если фундамент будет ленточным, то небольшое расхождение можно оставить, но для свайного или столбчатого фундамента разметка должна быть очень точно выполнена.
Так мы обозначили габариты бани в соответствии с проектными данными. Дальнейшая разметка выполняется в зависимости от того, какой будет фундамент. Подробнее об этом можно узнать из таблицы.
|
Вид фундамента |
Где применяется и как выполняется разметка |
|
Плитный
|
Такой тип фундамента ввиду своей дороговизны делается только в тех случаях, когда без него не обойтись. Разметка выполняется по размерам строения или немного больше, когда нужно, чтобы фундамент был шире и длиннее бани. |
|
Ленточный
|
Весьма распространенный вид фундамента. Сравнительно недорогой и прочный. Разметка выполняется таким образом, чтобы залитая бетоном лента проходила по периметру здания и под перестенками. |
|
Столбчатый
|
Этот вид фундамента также нередко можно встретить. В основном используется монтажа на нем деревянных строений. В зависимости от габаритов бани, разметка выполняется по количеству изготавливаемых опор. |
|
Винтовой
|
Считается что такой вид фундамента новый, но это ошибочное заключение, сделанное на основании того, что его стали недавно использовать в гражданском строительстве. Винтовой фундамент прошел проверку временем, так как военные его уже давно начали использовать. Преимуществом устройства фундамента на винтовых сваях является быстрота и несложность его монтажа. Второе преимущество в том, что нет необходимости выполнять земляные работы, поэтому участок останется чистым. Кроме того, с его помощью можно возвести баню даже на участке, имеющем существенный уклон. Разметка делается по количеству свай и никакого отклонения в сторону не допускается. |
Взвесьте все за и против, а потом примите окончательное решение в отношении выбора типа фундамента.
Заливка фундамента
Изготовление мелкозаглубленного ленточного фундамента приемлемо при таких условиях:
- Грунт на участке сухой и несыпучий.
- Уровень грунтовых вод достаточно низкий.
- В зимний период морозы не очень сильные.
- Строения не тяжелое.
Не стремитесь угадать тип фундамента для тяжелого строения. Если не уверены, то пригласите специалистов, которые, выполнив соответствующие проверки, дадут точный ответ.
Начнем с более простого и наиболее часто изготавливаемого для бани мелкозаглубленного фундамента.
- Наружная разметка у нас есть, теперь нужно выполнить внутреннюю, с учетом того, что по ширине фундамент должен быть не менее 50 см, и должен выступать за пределы строения на 5‒10 см с каждой стороны. Поэтому, если баня 3×4 м, то наибольший размер по внешнему периметру будет 3,2×4,2 м.
- Важно учесть место установки печи и одновременно делать фундамент и под нее.
- Для удобства по углам нужно установить конструкции из дерева, похожие на скамейки. Их нужно выставить в одной плоскости по высоте будущей опалубки и к ним прикрепить мерный шнур. Как это сделать, показано на иллюстрации.
Для ленточного фундамента разметка выполняется как по наружному, так и по внутреннему контуру
- Нужно снять плодородный верхний слой почвы и убрать его в сторону, затем копать траншею, глину из которой можно будет потом использовать в качестве подсыпки.
- Что касается глубины траншеи, то в некоторых случаях она может быть и 35 см. Многое зависит от глубины промерзания и самого грунта. Нужно докопаться до прочного глинистого слоя и ни в коем случае не останавливаться на грунте. Поэтому чаще всего глубина бывает в пределах 50‒60 см.
- Дно траншеи нужно выровнять, проверив его горизонтальность уровнем.
- Теперь очередь песчаной подсыпки. Нужно насыпать внутрь траншеи слой песка, толщиной не менее 15 см, смочить водой и хорошо утрамбовать. Для этого было бы удобнее использовать вибротрамбовку, но можно и вручную, с помощью увесистого бруска с прибитыми к нему ручками.
- Следующий слой насыпается щебнем средней фракции и тоже тщательно трамбуется.
- Теперь настал черед опалубки, высота которой должна доходить до натянутого шнура. Сделать ее можно из подручных материалов или леса, заготовленного для других целей, так как эта временная конструкция вскоре после заливки фундамента будет разобрана. Готовые щиты нужно установить вдоль траншеи и хорошо закрепить, иначе залитый бетон может их сдвинуть с места.
Опалубка должна быть надежно закреплена. Также сразу можно вставить гильзу, чтобы потом провести коммуникации
- Чтобы не испачкать доски, да и для того, чтобы бетон не вытекал через щели, изнутри опалубка закрывается полиэтиленовой пленкой, которую нужно закрепить степлером или тонкими гвоздями.
- Теперь надо сделать каркас из металлической или пластиковой арматуры, скрепленной вязальной проволокой.
Выполнить все расчеты можно в нашем онлайн калькуляторе.
- Изготовленный каркас должен не доходить до краев 5 см. Его нужно аккуратно опустить в траншею, чтобы не порвать защищающую опалубку пленку. Чтобы приподнять каркас над подсыпкой, нужно под него подложить куски гранита, так как он, в отличие от кирпича, не рассыплется под воздействием влаги.
- Если сквозь фундамент будут проходить какие-либо коммуникации, то для них нужно оставить отверстия, в чем помогут гильзы, как сделано на фото сверху. Это же касается и изготовления продух.
- Распланируйте свое время так, чтобы залить фундамент бетоном за день, так как перерывы здесь недопустимы – тогда лента не будет монолитной. Удобно бетон доставить миксером и залить прямо с него, в противном случае его придется замешивать в бетономешалке, из расчета, что цемента марки М400 потребуется 1 ведро, песка – 3, щебеня (или гравия) – 5 ведер.
- Залитый бетоном фундамент следует уплотнить вибратором или проштыковать. После усадки нужно добавить немного бетона и выровнять площадку. Если делается основание для деревянного дома, то в не застывшем бетоне надо зафиксировать фундаментные болты.
- Не раньше чем через неделю можно снять опалубку.
Следует помнить, что бетон еще не набрал полную прочность, поэтому с ним нужно обращаться бережно или подождать 28 дней, и только потом строить баню.
Видео: возведение фундамента для бани
Кладка стен
При строительстве бани из блоков, камня или кирпича, нужно по уровню выровнять фундамент цементно-песчаным раствором, и уложить на него рубероид, сложенный вдвое. Кладка начинается с углов. Установив на цементно-песчаный раствор первые блоки, нужно убедиться, что они находятся в одной плоскости и только после этого по верхнему наружному краю натягивается бечевка, которая служит ориентиром для кладки целого ряда строительного материала.
При кладке следующего ряда кладочная смесь может отличаться: на цементно-песчаном растворе возводится стена из кирпича и ракушняка, тогда как для кладки облегченных блоков применяются смеси, рекомендуемые производителем.
Установив перемычки над дверями и окнами нужно установить сверху опалубку и изготовить армопояс, закрепив в нем фундаментные болты для последующего крепления доски мауэрлата. После затвердевания бетона можно будет приступать к изготовлению крыши.
Возведение каркаса бани
Основой такой бани является каркас из дерева, который утепляют и обшивают различными видами отделочных материалов. Нужно выбрать качественные материалы и соблюдать последовательность их монтажа.
Для изготовления каркаса будут нужны доски из хорошо просушенной лиственницы, осины или липы, потому что у этой древесины низкая теплопроводность. Изготовленные щиты будут устойчивы к деформации.
На фундаменте делается каркас нижней обвязки из бруса 100×100 мм. На торцах брусков нужно сделать пропилы в половину толщины и скрепить друг с другом саморезами. Если используются бруски 50×100 мм, то каркас можно собрать встык с помощью металлических уголков. Размеры используемого бруска зависят от типа фундамента, конструкции и размеров бани.
Изготовление основания для каркасной бани
- На следующем этапе устанавливается торцевая обвязочная доска, а уже впритык к ней крепятся лаги пола. Используется брус 50×100 мм.
- С противоположной стороны лаги обрезаются с таким расчетом, чтобы можно было установить вторую торцевую обвязочную доску.
- Лаги нужно расставить так, чтобы между ними вплотную стал заготовленный утеплитель, затем прибиваются торцевые обвязочные доски.
- Каркас стен собирается из бруса 50×100 мм, а затем устанавливается на свои места, все части скрепляются в единую конструкцию.
Для обеспечения пароизоляции каркасной бани нужно использовать пароизоляционную пленку, что позволит избежать накопления влажности внутри каркаса. В качестве теплоизоляционного материала используется минеральная вата или стекловолокно. Они способны обеспечить высокий уровень герметизации, не нарушая естественного воздухообмена.
Утепление и обшивку стен предпочтительнее выполнять после монтажа крыши. Такой подход защитит дерево и утеплитель от намокания.
Пол
Устройство бетонного пола с деревянным настилом
Если в каркасной бане осталось только утеплить пол и настелить половую доску, то для других строений придется больше потрудиться ‒ нужно установить лаги, сделать черновой пол, закрепить пароизоляцию, уложить утеплитель, выполнить гидроизоляцию, настелить половую доску, которую через несколько лет придется менять. Учитывая, что дача на даче не будет основательно просушиваться из-за отсутствия времени на это, ведь после выходных нужно будет спешно уезжать в город, то если есть такая возможность, предпочтительнее будет сделать бетонный пол и облицевать его плиткой. На него укладываются деревянные щиты, которые можно вынести для просушки в сарай и спокойно уехать домой.
Деревянный пол с утеплением
Понятно, что для каркасного и другого строения, установленного на столбчатом или свайном фундаменте, приемлем только деревянный пол с утеплением. Более детально об этом процессе рассказывается в двух следующих роликах.
Видео: как установить балки пола, сделать утепление и обеспечить слив в бане
Строительство крыши
Над любой баней должна быть надежная крыша, но варианты ее создания могут быть разными. В любом случае нужно уложить гидроизоляцию, а затем теплоизоляцию, подумать о типе кровли и о выборе подходящего кровельного материала. Без гидроизоляции пар беспрепятственно проникнет на чердак, и, оседая на балках и стропилах, будет способствовать их быстрому разрушению. Кроме того, образующийся на кровельном материале конденсат начнет стекать на утеплитель, что скажется на свойствах и долговечности последнего.
Большое влияние на выбор вида кровли имеет тип местности, так как нужно учитывать технические параметры строения.
- Так, в дачном поселке, особенно когда он расположен среди высоких деревьев, можно смело делать высокую двускатную крышу.
- Если же дача расположена в степной зоне, продуваемой всеми ветрами, то уклон для крыши нужно сделать минимальным.
- При малых размерах бани и незначительных снеговых нагрузка крыша может быть сделана односкатной. Такая же крыша чаще всего изготавливается на бане, пристроенной к дому.
Чтобы избежать крайностей и ошибок, рекомендуем все расчеты выполнять в онлайн калькуляторе. Так вы будете иметь ясное представление о том, какой тип материала подходит для определенного вида кровли и сколько его потребуется.
Видео: как сделать крышу бани
Внутренняя и наружная отделка
Хотя для внутренней отделки чаще всего используется дерево, не всякая древесина подойдет для этой цели. Нужно правильно подобрать материал, особенно для парилки, в которой при большой влажности создается высокая температура. Сразу стоит сказать, что для отделки этого помещения нельзя использовать пиломатериалы из сосны, а также ДВП, ДСП и линолеум. Поэтому нужно приобретать вагонку из лиственницы или липы.
Что касается других помещений, то там условия не такие экстремальные, поэтому и нет таких высоких требований к используемому материалу ‒ что нельзя применять в парилке, то прекрасно подходит для комнаты отдыха и предбанника. Сосновая вагонка в предбаннике будет источать приятный аромат и создаст ощущение комфорта.
Отделка деревянной и кирпичной бани вагонкой выполняется практически одинаково. Вначале на стену крепится обрешетка, а уже на нее крепится вагонка. Исключением является парная, в которой под обрешеткой должна быть теплоотражающая фольга.
Наружная отделка выполняется не только для того, чтобы сделать баню красивой, но и для ее защиты. Для отделки бани с внешней стороны можно использовать такие материалы:
- Имитация бруса.
- Сайдинг.
- Вагонка.
- Блок-хаус.
- Фасадная плитка.
- Краска.
Вам осталось выбрать подходящий материал и отделать фасад.
Вентиляция в бане
Иногда еще встречается такое мнение, что хорошая вентиляция в парной ни к чему, так как через нее всё тепло выходит, и ее делают очень слабой, либо же она отсутствует вовсе. Но есть и другая крайность, когда процесс вентиляции не контролируется, и тепло улетучивается из бани. В такой парной вверху очень жарко, а ноги мерзнут.
На самом деле во время принятия банных процедур воздух в помещении должен обновляться 2‒3 раза в час, но и этого мало, так как вентиляция должна быть правильно сделана. Обычно входное отверстие находится снизу возле котла, а вытяжное под потолком с противоположной стороны. В то время, пока парная прогревается, вытяжное окно закрыто. Потом оно открывается, и теплый воздух начинает стремительно выходить из помещения. В результате в парной становится прохладно и неуютно. Можно сделать вентиляцию, как на схеме.
Схема циркуляции воздуха в парной
Такое устройство позволяет сдерживать теплый воздух под потолком, а наружу выходит наполовину остывший через отверстие, расположенное ниже (Б), поэтому в парной будет комфортно. Когда нужно основательно проветрить парную, открывается верхнее вентиляционное отверстие (А).
Кроме парилки, вентиляция необходима в каждом помещении бани. Чтобы не терять понапрасну драгоценное тепло, можно сделать так, чтобы была возможность закрывать вентиляционные отверстия в те часы, когда нет надобности в проветривании.
Мебель
Полог и всю мебель для дачной бани можно изготовить самостоятельно. Если нет желания что-то еще мастерить, то в сети есть множество предложений по продаже всего необходимого для дачи.
При большом желании сэкономить на мебели, можно пересмотреть старые запасы. Может быть есть то, что нуждается в ремонте, но никак руки до этого не доходят? После небольшой реставрации такая мебель может прослужить еще немалый срок. Основное требование – не использовать мебель из ДСП, так как этот материал очень быстро испортится от большой влажности.
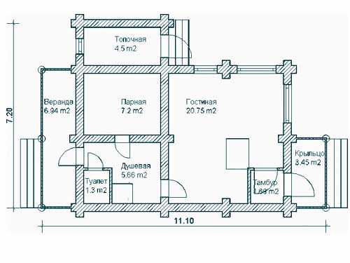
Схемы
План бани 6×7,2 м
6×6 м
5×4 м
4×4 м
3×5 м
3×3 м
Фото: оригинальные бани













kakpravilnosdelat.ru
Строительство бани на даче своими руками: смотрим фото и видео
Многие люди, приобретя дачу, мечтают построить на ней баню, где можно будет расслабиться и отдохнуть после трудовой недели. Строительство бани на даче можно доверить профессионалам, а можно сделать своими руками. Существует большое разнообразие банных построек, однако, лидирует классическая русская баня.
Основным материалом для строительства бани на даче своими руками является дерево или кирпич. Необходимо подобрать качественный материал, чтобы он отличался надежностью и долговечностью.
Как выбрать место под баню
Место для будущей бани подбирают, тщательно изучив свой дачный участок.
- Не стоит возводить баню своими руками вблизи водоемов, иначе может возникнуть угроза ее подтопления.
- Замечательно, если пристройка выполняется к жилому помещению. Это экономит материалы и энергосбережение.
- Лучшим местом для бани считается задний двор, в котором отсутствуют сквозняки.
- Не самым правильным вариантом будет постройка вблизи дороги или рядом с полем. Пыль постоянно будет проникать во внутреннее помещение.
- Лучшая сторона для стройки бани – южная.
- Не желательно строить баню рядом с соседской территорией во избежание возможных конфликтов из-за ее использования.
- Стройку бани необходимо вести подальше от колодца.
Строим баню правильно. Этапы работы
Чтобы после постройки бани не возникло разочарование в каких-либо моментах, необходимо помнить следующее:
- Важна правильная планировка внутренних помещений. Баня на 2–3 человека должна быть 10 м2.
- Высота внутренних помещений составляет 2 метра. Более низкая вызывает определенные неудобства, а при ее превышении возникают дополнительные затраты теплоносителей и помещение прогревается гораздо дольше.
- Желательно возводить дачную постройку дверьми на южную сторону, а окнами – на западную или юго-западную.
- Окна и двери делаются небольшими. Если размеры окон можно менять, то двери делают шириной в 70 сантиметров и высотой в 180. Порог также должен быть высоким. Хоть это и неудобно, но потери тепла существенно снижаются.
- Материал для постройки бани должен быть не только качественным, но еще и обладать высокой способностью энергосбережения.
- Для внутреннего обустройства не применяют смолянистые породы дерева.
Фундамент для дачной бани
После того как место выбрано, его расчищают от мусора и сорняков. Затем копают траншеи под фундамент. Он может быть ленточный, столбчатый и свайный. Для бани из кирпича используют ленточный фундамент, а для деревянной – столбчатый.
Но в основном применяют ленточный фундамент как самый прочный и надежный. Для этого рассчитывают его правильные параметры. Дно траншеи засыпают влажным песком и утрамбовывают. Насыпают щебень сантиметров 20, все это укрепляется арматурой и заливается бетоном. На него кладется гидроизоляционный слой из специального материала, затем кирпичный цоколь в 5 рядов, оставляя в нем отверстие для вентиляции.
Для столбчатого фундамента используются столбы в основных точках планировки. Они могут быть из камня или кирпича, а могут заранее отливаться из бетона. Столбы также делаются из дерева, но такая конструкция недолговечна. Их соединяют между собой кирпичной стенкой, которая выкладывается в один кирпич.
Свайный фундамент используют на даче со сложным грунтом или если участок находится на склоне. В качестве несущих элементов применяется установка свай. Они могут быть металлическими или бетонными.
Строительство стен бани
В качестве материала для стен используют натуральное дерево. Оно обладает многими преимуществами. Это экологичность, способность хорошо сохранять тепло, возможность оказывать успокаивающее воздействие на нервную систему. Однако, все более популярными становятся такие материалы, как кирпич и натуральный камень. Строения из камня гораздо более долговечны и пожаробезопасны. Также часто возводят стены по каркасной технологии, но русский человек все же отдает предпочтение дереву.
Поверх фундамента кладутся самые толстые бревна, верхние из них обрабатываются антисептиком и мастикой, которая устойчива к воздействию влаги. Во время укладки бревен применяют два способа стыка в углах: «в чашу» и «в лапу».
Первый способ заключается в том, что концы бревен выходят за периметр стен. Это способствует защите стыков от сквозняков и попадания воды.
Второй способ более сложен и заключается в том, что при обработке краев бревен необходимо придать им форму «ласточкиного хвоста».
Часто используют еще один способ, когда сбоку первого бревна делается углубление, а в торце стыкующегося бревна делают шип, который должен подходить под размер углубления. Для того чтобы верхний ряд бревен плотно лег на нижний, в верхних бревнах для этого вырезают паз соответствующего размера. На фото показано возведение стен из дерева.
Чтобы утеплить стены, применяется специальный межвенцовый утеплитель. Его нарезают на нужные размеры и крепят при помощи степлера к каждому очередному бревну или брусу. Самым лучшим вариантом утеплителя считается джут.
Возведение крыши бани
После того как стены будут полностью готовы, приступают к устройству крыши. Вначале собирают в единую конструкцию основания крыши и устанавливают там стропила. Затем переходят к устройству обрешетки. Если дымоход будет выходить через крышу, то под него делают специальные отверстия.
После переходят к устройству кровли. Материалы для него могут быть самыми различными, начиная от шифера и заканчивая черепицей.
Полы для бани
Необходимо правильно утеплить полы. Чтобы он был теплым и сухим, утепляют цоколь с внутренней стороны. Для этого необходимо по цокольной части, по кирпичу или фундаменту сделать утепление минеральной ватой и гидроизоляцию. Затем под моечным помещением заливают пол, а в остальных помещениях производят сухую засыпку под пол, используя для этого керамзит. После этого укладывают слой утеплителя и пароизоляции, делают небольшой зазор и застилают доску.
Внешняя и внутренняя отделка
Обычно начинают с теплоизоляции, потому что это очень важный этап в строительстве. Снаружи баню украшают декоративной отделкой или дополнительно утепляют пенопластом, а внутреннее помещение утепляют минеральной ватой.
Для этого стены покрывают гидроизоляцией, наносят деревянную обрешетку и затем закрепляется слой минеральной ваты. Для пароизоляции используется фольга, поверх которой и производят отделку.
Потолок утепляют не только сверху, но и со стороны чердачного помещения, укладывая между балками стеклоткань. Верх засыпается керамзитом или укладывается минеральная вата.
Для отделки внутри банного помещения используют вагонку, для внешней отделки используют любой материал. Это может быть штукатурка, облицовочный кирпич, композитные и другие материалы.
Во время отделки устанавливается печь, делается вывод дымохода.
Установка парной
Размеры парной зависят от количества людей, которые могут мыться одновременно, от размеров печи и видом полока. Если предполагается париться сидя, длина полока должна быть от 50 сантиметров, а если лежа – до 180 сантиметров. Полок оснащается специальным возвышением для головы, а может быть, и плоским.
Для нагрева парной используют печь-каменку. Она может быть любых размеров. После ее установки ее облицовывают на свой вкус.
В зависимости от длительности эксплуатации печи делятся на два вида: для постоянного и периодического режима работы.
Печи постоянного режима работы имеют тонкие стенки и быстро разогреваются. В качестве топлива используется природный газ или электричество. Печи для периодического режима работы имеют толстые стенки, медленно разогреваются и для топки используют дрова.
Таким образом, бани своими руками, фото которых представлены в данной статье, выполняют важнейшие задачи – снимают стресс, расслабляя тело и укрепляя здоровье.
bane.guru
Как разработать и реализовать проекты дачных бань, описание с видео
Проекты дачных бань весьма популярны в России. Связано это с тем, что многие жители нашей страны могут позволить себе возвести это строение на даче. Кроме того, такая баня стоит недорого, и может быть построена самостоятельно, без привлечения к этому процессу профессиональных строителей.
Выбор проекта дачной бани
Вариантов строительства бани на даче имеется несколько. Самый распространённый из них – отдельно стоящее здание. Такие дачные бани, их фото и проекты часто предлагаются многочисленными строительными фирмами в качестве готового варианта строительства. К их плюсам можно отнести простоту конструкции и возможность их использования вне зависимости от использования других зданий на участке.
Минус таких бань – необходимость выделения немаленького по площади земельного участка. Кроме того, что сама баня займет какую-то площадь, существуют еще противопожарные нормы, которые требуют соблюдения значительного расстояния между баней и иными зданиями, возведёнными на загородном участке. К тому же, отдельно стоящая баня требует подведения отдельных инженерных коммуникаций, таких как водопровод и канализация, а это дополнительные расходы.
Второй вариант строительства – возведение сооружений в комплексе, например, можно выбрать проект дачного дома с баней внутри. Этот вариант строительства хорош тем, что вы используете одни инженерные коммуникации и разрабатываете единый план строительства на несколько сооружений одновременно. Не придётся выделять под строительство земельный участок большой площади, что имеет большое значение в том случае, если ваша дача имеет стандартные размеры. В результате можно добиться значительной экономии.
Используя подобный вариант строительства, вы сможете воплотить в жизнь, например, проект дачной бани с мастерской. Кроме того, можно построить совместно с ней гостевой домик или же летнюю веранду под приготовление барбекю. Часто подобные варианты строительства можно увидеть по телевидению — весьма популярны проекты бань, показанных в «Дачном ответе».
Разобравшись с вариантом проекта, стоит перейти к подбору материала для строительства. В настоящее время популярны следующие материалы для загородного строительства бань:
- дерево;
- кирпич;
- пенобетон.
Пенобетон считается самым распространённым материалом для строительства бань на дачном участке. Он дёшевый, и здания из него можно вполне можно построить собственными руками, не нанимая для этого профессионалов. Кроме того, пеноблоки хорошо держат тепло, что позволяет долго поддерживать хороший жар в бане длительное время.
Кроме выбора проекта и материала для строительства, перед началом строительных работ предстоит закупить всё необходимое для них, а также определить место, где баня будет находиться. Стоит также составить смету строительства, для того чтобы отложенных на это денег хватило на выполнение всех технологических операций. Если, например, вы выбрали проект дачной бани компании Аврора или иной строительной фирмы, всю подготовительную работу будут выполнять её специалисты.
Выбор места под строительство бани
Дачные бани на 6 сотках — проекты и их фото — дают представление о том, какие требования предъявляются к месту расположения.
Так, опытные строители советуют:
- Не возводить баню рядом с водоёмом, так как весной при паводке она может быть затоплена. С этой же целью её лучше строить на возвышенности, чтобы обеспечить сток тающих вод от стен здания.
- Здание лучше возводить с подветренной стороны для того, чтобы в случае пожара огонь с неё не перекинулся на жилые здания. Кроме того, если вы решите пристроить к ней веранду для отдыха, то расположите её в затишье для того, чтобы защититься на отдыхе от сквозняков.
- Лучше не затевать стройку рядом с дорогой, так как пыль с неё будет лететь в сторону бани и портить вам банные процедуры.
- Окна лучше всего размещать с солнечной стороны, так как этим вы сможете экономить денежные средства на освещение.
Кроме того, при банном строительстве стоит выдерживать внутреннюю площадь на 2-3 человека в 10 квадратных метров, а высоту внутренних помещений — в 2 метра. Окна и двери нужно делать небольшими, чтобы экономить тепло. Высокий порог также снижает уровень теплопотерь.
Если вы решите избрать для строительства проект дачного дома со встроенной баней, то в этом случае вам не придётся искать дополнительное место на дачном участке, так как баня станет частью жилого дома. Единственное, что стоит предусмотреть отдельно, так это обустройство дополнительной паро- и гидроизоляции и вентиляции. Связано это с повышенной влажностью, характерной для парной. Вот её и нужно своевременно удалять из помещений для того, чтобы в них не возникли очаги гниения.
Кстати, если у вас участок сложной формы или на нём уже возведено много строений, имеет смысл разместить баню «углом». Такой способ позволяет освободить место под размещение инженерных коммуникаций, а также подъезда транспорта и прохода людей. Кроме того, угловое строение позволяет создать на участке полузакрытую зону для отдыха, где можно будет жарить шашлык и отдыхать после парной на природе.
Этапы строительства бани
После того как проект дачного домика с баней утверждён и вы выбрали под его размещение подходящее место, можно приступать непосредственно к строительству.
Если вы решили строить баню из шлакоблоков, вам подойдёт самый простой вариант фундамента – ленточный. Он дёшев, прост в исполнении и не требует применения тяжёлой строительной техники.
Расчистив площадку под фундамент, необходимо будет вырыть по периметру траншею. Далее готовят подушку из гравия и песка, а также материал для армирования. После того как траншея будет подготовлена, в неё можно будет начинать лить раствор. Его можно приготовить самостоятельно, а можно купить уже готовый. После заливки бетон должен отстояться в течение недели. Во время его заливки в траншею необходимо выполнить эту операцию так, чтобы фундамент выступал над поверхностью земли на двадцать-тридцать сантиметров.
Затем нужно будет выполнить гидроизоляцию фундамента. Для этого на него выкладывают рубероид или же промазывают его битумом. Также стоит позаботиться о том, чтобы до начала этой операции все коммуникации были заведены внутрь фундамента.
После того как фундамент будет выполнен, приступают к кладке стен. Обычно кладку ведут в один блок при строительстве из пенобетона. Для этого на первый ярус выкладывают раствор, а уже на него сами блоки. При кладке нужно вести контроль горизонтали, вертикали и углов при помощи строительного уровня и заранее натянутого шпагата.
После выгонки внешних и внутренних стен, оборудования оконных и дверных проемов, переходят к возведению крыши. Если вы строите небольшую баню, можно собрать стропила и всю конструкцию крыши на земле, а уже готовую поднять краном наверх. После окончания такой операции делают обрешётку и монтируют кровельный материал.
Отдельно стоит позаботиться об обустройстве системы отопления. В большинстве случаев за городом баня отапливается кирпичной дровяной каменкой. Её дымоход при этом можно вывести как наверх, так и вбок, в стену строения.
Когда кровля будет обустроена, нужно будет заняться полами. Для этого между заранее заложенных лаг укладывают утеплитель, выполняют паро- и гидроизоляцию, а утеплитель закрывают половыми досками. Потом их можно отделать, например, плиткой или вагонкой.
Выполнение внутренней и внешней отделки
Проект дачного дома с баней также подразумевает и выбор специальных отделочных материалов. При этом в любом случае необходимо будет выполнить пароизоляцию, чтобы под отделкой не скапливалась лишняя влага, что может привести к возникновению процессов гниения в деревянных конструкциях.
После выполнения пароизоляции монтируется утеплитель, при этом утеплять баню можно как изнутри, так и снаружи. Лучше всего использовать материал на основе минеральной ваты, так как она не горит, и не боится влаги. Он выпускается в виде готовых плит и поэтому его установка на место не должна будет доставить особых сложностей.
Обычно бани на даче отделываются вагонкой, хотя существуют и иные варианты отделки. Всё зависит от того дизайна, который вы избрали для неё. Так, например, можно использовать облицовочный кирпич, сайдинг, композитные материалы. При этом они не должны бояться высоких температур и выделять при нагреве вредных для здоровья веществ.
Наружная отделка производится аналогичным способом. При этом отделочные материалы, используемые при такой отделке, должны иметь повышенную устойчивость к механическим повреждениям и воздействию атмосферных осадков. Также не стоит использовать при отделке наружных стен те материалы, которые предназначены только для монтажа внутри помещения, так как они не смогут вам прослужить длительное время, находясь на улице.
Выполняя отделку стен, одновременно сделайте и электропроводку. Она должна или быть скрыта в стенах, или же помещена в специальный негорючий короб. Лучше всего для этой цели пригласить профессионального электрика — ведь в бане повышенная влажность, она может привести к короткому замыканию, что чревато несчастным случаем.
Последним этапом строительства и обустройства бани является её оснащение мебелью и необходимыми аксессуарами. Это полки в парилке, скамьи и шайки в мойке, а также стол и стулья в комнате отдыха, если вы решите её построить. Также можно обустроить отдельное помещение для хранения топлива, чтобы не ходить за ним на улицу.
banyabest.ru


Плитный фундамент
Мелкозаглубленный ленточный фундамент
Столбчатый фундамент
Винтовой фундамент