Планировка дома 6 на 6 с мансардой: фото, проекты
Выполнять планировку здания 6х6 с мансардой нужно только с учетом всех строительных норм. Только при правильной организации всех мероприятий по составлению проекта удается возвести комфортный для проживания дом. Кроме этого, так хозяева могут сэкономить денежные средства при покупке строительных материалов.
Проект №1
Так как постройка площадью 6х6 является малогабаритной, то она отлично выполнит роль садового домика.
Преимущества здесь очевидные:
- Строительство здания может происходить на любом участке;
- Строительство быстрое и недорогое.
- Экономия на отоплении.
- Жилищная проблема решается без долгов и взятия кредита.
Если вы не собираетесь строить замок, а вам нужен домик для комфортного проживания, то здание 6х6 с мансардой – это самое оптимальное решение. Общая площадь постройки будет составлять 50 м2. Для строительства таких домов задействуют газоблоки. А вот какие проекты домов из кирпича с мансардой самые популярные и красивые, можно увидеть на фото в данной статье.
На видео- домик 6 на 6 с двумя комнатами:
Что касается внутренней планировки, то на первом этаже будет расположена кухня, совмещенная со столовой, небольшая прихожая, спальня и санузел. А вот мансарда именно и станет дополнительной комнатой, которая отлично будет выполнять роль детской спальни.
Читайте также материал о проекте дома 8 на 8.
Проект № 2
При использовании этой планировки удается объединить кухню и гостиную. Таким образом, пространство дома сразу увеличивается. Еще есть прихожая, в которой можно поместить шкаф для хранения верхней одежды. Перед домом расположилась большая терраса.
На видео – дом с террасой:
На втором этаже будет сосредоточена спальня для родителей и детская комната небольшого размера. Если у вас в семье два ребенка, то благодаря обустроенной мансарде там можно будет и оборудовать вторую детскую спальню. Таким образом, каждый ребенок будет иметь свое личное пространство. Играть они могут в холле. Там же можно установить шкаф с игрушками. Также будет интересно узнать о том, на какие проекты домов и коттеджей из кирпича стоит обратить своё внимание, поможет понять данная информация.
Какие проекты домов в американском стиле кантри самые популярные, можно понять посмотрев содержание данной статьи.
Для тех кто хочет больше узнать про проекты домов в американском стиле, стоит перейти по ссылке.
А вот какие проекты домов в классическом стиле из кирпича самые популярные и удачные по проекту, можно увидеть в содержании данной статьи: http://2gazon.ru/postroiki/zhilye/proekty/domov-v-klassicheskom-stile.html
Также можно посмотреть существующие лучшие проекты двухэтажных домов из кирпича.
Проект № 3
При таком планировании удается объединить кухню и гостиную. Таким образом, можно обойтись без перегородок. Но вот для выделения санузла они потребуются. На первом этаже можно расположить печь или камин. Подымаясь по лестнице на второй этаж, вы можете увидеть там 2 просторные спальни и одну маленькую, которую также можно оборудовать под спальню. 
Комната, предназначенная для родителей, имеет балкон. За счет лестницы можно придать зрительно гостиной больше пространства. Перед домом находится трасса или можно предусмотреть вариант с крыльцом. Также стоит обратить своё внимание, как выглядят проекты дома с эркером и мансардой, для этого стоит перейти по ссылке и посмотреть фото.
Планировка № 4
Этот проект не предполагает наличие санузла, так что, скорее всего, это садовый домик. Имеет просторную прихожую, удобную и большую кухню и печь. Если подняться по лестнице, то можно оказаться на мансарде. В этом случае ее оформлением каждый хозяин занимается по своему усмотрению. Она может быть спальней для детей, зоной отдыха или помещением для гостей. Для любителей красивых конструкций домов, стоит обратить своё внимание на двухэтажный дом с эркером.

Без туалета
Планировка № 5
Так как дом 6х6 не является большим строением, то необходимо так обустроить его изнутри, чтобы он не казался тесным и загроможденным. На первом этапе будут сосредоточены 3 комнаты – прихожая, кухня со столовой и санузел. Прихожая должна быть просторной. Именно от нее и по лестнице можно перейти на второй этаж. Габариты комнат 3х3. На первом этаже неплохо будет смотреться комната для приема гостей. В таком случае кухня будет отдельным помещением, а еще остается пространство для оборудования кабинета. А вот как выглядят современные дома с плоской крышей, и как правильно подобрать проект для себя, очень подробно изложено в статье.

С кабинетом
А вот пространство, которое находится под лестницей, также стоит использовать разумно. Там можно обустроить место для хранения вещей. Сама лестница должна быть шириной 1 м. Это оптимальный размер для безопасного перемещения по ней 2 людям. Под большой лестницей можно оборудовать библиотеку.
Когда вы поднялись по лестнице на второй этаж, то там можно увидеть мансарду. В ней комнаты сосредоточены так, что выход из них осуществляется в небольшой холл. А уже из него вы попадаете на лестницу. Таким образом, удается организовать своеобразную уединенность. В мансарде санузел отсутствует.
Планировка № 6
На первом этаже можно обустроить столовую, прихожую и санузел. Этот вариант считается базовым. Как правило, заказчик может внести сюда некоторые изменения. Например, он может пожелать обустроить кабинет, гостиную и прочие помещения. Согласно рассматриваемому проекту, часть дома отводится под террасу.

С террасой
Мансарда сосредоточена не над всем первым этажом. Она не относится к той части, где находится прихожая и веранда. Мансарда включает в себя 2 спальни и санузел. Если такая площадь вас не устраивает, но выищите бюджетный вариант, то все можно решить, если соорудить рядом веранду. Причем она может быть неотъемлемой частью дома.
Так как размер дома 6х6 не позволяет воплотить все свои задумки, то необходимо будет отказаться от коридора. Таким образом, вы сможете освободить достаточно места и оборудовать другие комнаты. Кроме этого, отказ от коридора позволит сэкономить на монтаже коммуникаций.
Чтобы увеличить пространство в такой постройке, придется продумать еще на стадии проектирования о наличие нескольких уровней в доме.
Планировка № 7
Используя этот проект, удается все грамотно расположить, поделив жилье на функциональные зоны. Таким образом, можно выделить комнату для отдыха или активной деятельности. Именно на первом этаже стоит обустраивать подобные комнаты.
Также на нижнем этаже должны будут находиться комнаты общего пользования. Когда вы подниметесь по лестнице на второй этаж, то там будет одна комната – это спальня, в которой находится санузел. Но при составлении проекта необходимо учитывать количество человек, которое собирается проживать в доме. Если их 2-3, то второй этап стоит оставить для одной спальни. Если в дом будет заселяться целая семья, то обустроить несколько спален, но только небольшого размера.
На видео – функциональный дом 6 на 6 с мансардой:
Если придерживаться классического распределения пространства, то стоит первый этаж отвести на активные комнаты, куда стоит отнести кухню, столовую и прихожую. За счет подобного совмещённого строительства можно из маленького дома получить просторные комнаты. Ну и конечно, полностью завершить обустройство комнат позволит правильно подобранная мебель.
Дом 6х6 – это далеко не хоромы, но вполне подходит для комфортного проживания. Здесь вся ответственность возлагается именно на сам проект. Если все обдумать верно и правильно обустроить мансарду, то внутреннего пространства будет хватать не только на кухню и спальни, но еще и для гостиной и кабинета.
2gazon.ru
Планировка дома 6 на 6
Это достаточно небольшие дома, полезная площадь которых спланирована максимально рациональным образом. Большинство планов домов 6 на 6 метров — это типовые решения, потому что идея хорошая, и многие архитекторы ее оттачивали. Но, в принципе, сравнивая планировки, вы увидите, что разнообразия в них хватает.

Посмотрите на изображения внизу, любая планировка дома 6 на 6 метров не имеет излишеств. В таких проектах часто объединяют гостиную с кухней и прихожей. Строения не рассчитаны на много человек, поэтому в доме один совмещенный санузел. Да, вариантов готовых проектов не много, поэтому я привел достаточно планов, на основе которых можно разработать документацию для строительства.
Как видно из приведенных выше планов домов 6х6, невозможность строительства большого строения не исключает необходимость устройства веранды для отдыха. Как правило, такие здания больше подходят под определение дачного домика, в котором можно провести время в кругу друзей. Небольшие дома достаточно дешево строить, что видно по сметам. Их часто используют при строительстве щитовых и сип домов, но возможно строительство и по вполне традиционным технологиям, например, по каменной.
Самое главное, что расстояние между стенами минимально составляет 6 метров, так как типовые плиты перекрытия составляют именно такую минимальную длину. Раньше была проблема с тем, чтобы заказать плиты по индивидуальным размерам, все было стандартизировано, поэтому сегодня много вариантов, по какой планировке построить дом с обсуждаемыми габаритами. Интересно, но когда проводилось исследование для написания этой статьи, то выяснилось, что с досками и балками та же история — 6 метров очень популярный материал. Это происходит в силу строительных норм и, может быть, из-за того, что длины вагонов раньше были по 12 метров.

Посмотреть другие варианты планировки дома.
Планировки одноэтажных и двухэтажных домов 6 на 6 метров
Прежде чем привести каталог лучших решений, разделим все варианты на три типа планировок домов 6×6 метров:
- одноэтажные;
- двухэтажные;
- с мансардой.
Это самое принципиальное деление. Гаража в таких домах нет, потому что габариты не позволяют его устроить. Если нужно его чем-то заменить, то вполне нормальным вариантом будет использование большого навеса, который в габариты строения не считается. Кстати, вариант не очень бедно смотрится. Мы работали с проектами коттеджей, владельцы котоых пожелали иметь именно навес, а не гараж. Хоть есть несколько серьезных недостатков, но навес имеет свои преимущества, особенно для дома с небольшими габаритами и при небольшом бюджете.
Еще один момент, который нужно отметить — это устройство лестницы при наличии второго этажа или мансарды. Самым неперспективным решением было бы сооружение лестницы на улице, вы может быть видели такие планировочные решение. Но они противоречат строительным нормам. Поэтому решением может быть одно — установка лестницы в доме, без устройства лестничной клетки. Лестница на второй этаж или мансарду может примыкать к одной из стен (обычно в гостиной), но наиболее практичным вариантом будет поворотная или винтовая конструкция. Как один из вариантов устройства люка в перекрытие — опирание одной-двух плит на балку, поддерживаемую колонной.
proektabc.ru
Проект каркасного дома 6х6: одноэтажного, двухэтажного с мансардой
Какую технологию выбрать при строительстве собственного дома? Каждый из материалов и технологий обладает рядом бесспорных преимуществ, но также они не лишены недостатков. Какие плюсы для вас являются наиболее важными? От этого будет зависеть выбор технологии для возведения собственного уютного домика или просторного коттеджа.
Каркасные дома привлекают скоростью возведения, значительной дешевизной, простотой строительных технологий, экологичностью применяемых материалов, нетребовательностью к рельефу и грунтам, простыми и дешевыми фундаментами. Если вы уже остановились на каркасном домостроении и выбрали габариты вашего дома, то остается выбрать проект каркасного дома 6х6.
Особенности каркасных домов 6 на 6
При относительно небольшой площади каркасные дома подобного размера могут применяться как для дачных построек, так и для постоянного проживания. Небольшой размер дома даже при наличии мансардного или полноценного второго этажа обеспечивает небольшой вес постройки. Это позволяет конструировать более простые типы фундамента – на винтовых или буронабивных сваях, что значительно ускоряет и удешевляет фундаментные работы. Небольшие габариты дома позволяют выполнить монтаж дома под ключ своими руками.
Высокая скорость строительства является отличительной особенностью каркасного домостроения. В случае реализации проекта 6 на 6, независимо от этажности, строительная компания возведет ваш объект под ключ менее чем за 30 дней.
К особенностям планировки каркасного дома 6 на 6 метров следует отнести незначительные размеры комнат или многофункциональность больших по площади помещений. Если для каждого члена семьи в таком проекте пытаться выделить собственный уголок, то это приведет к маленькой площади каждой комнаты. Следует помнить, что при нагромождении большого количества перегородок вы «съедаете» полезную жилую площадь. Часто при планировке дома 6 на 6 отказываются от индивидуального пространства в пользу просторных комнат общего назначения. Кухню, гостиную и столовую объединяют в одну комнату. Мы постараемся рассмотреть планировки различных типов проектов: одноэтажный, с мансардой, полноценный двухэтажный дом.
Проекты одноэтажных каркасных домов 6 на 6
Одноэтажный дом с такими небольшими габаритами относится к экономичным проектам. Трудно себе представить какие-то изюминки в проектировке подобного дома, ведь площадь в 36 кв. метров больше напоминает небольшую однокомнатную квартиру, чем собственный дом для постоянного проживания. Чаще такие проекты используют для дачного домостроения. В случае использования (6 на 6) он имеет 2 или 3 комнаты и совмещенный санузел.
Рассмотрим наиболее простой проект каркасного дома 6 на 6.

Это самый простой проект. Стандартный дом с невысоким цоколем. Самая обычная двухскатная крыша, одна входная дверь и несколько окон. На какую планировку вы можете рассчитывать в таком домике?
Планировка №1
Планировка настолько же проста, как и проект. Она, скорее, подойдет для дачного дома. В этом случае сооружается пристрой для расположения летней кухни и санузла. Сам дом используется только для сна или отдыха.

Планировка №2
Прекрасный пример уютного жилого дома небольших габаритов. Пусть комнаты не отличаются простором, но здесь есть все для комфортного проживания небольшой семьи из 3-4 человек. При небольшой жилой площади удалось разместить кухню, гостиную и место для отдыха.

Планировка №3
В основу этого проекта положен принцип объединения комнаты общего пользования под несколько функций. Здесь мы имеем кухню-гостиную, которая занимает половину жилой площади.
Мы рассмотрели проекты с так называемыми проходными комнатами. То есть, чтобы попасть в какую-либо комнату, требовалось пройти через другую. Возможна ли реализация изолированных комнат в одноэтажном каркасном доме 6 на 6?

Планировка №4

Как видите, даже на такой небольшой площади удалось создать небольшой коридор, который позволил изолировать каждую комнату. Кто-то скажет, что здесь отсутствует котельная. Но есть ли котельная в вашей квартире при поквартирном отоплении? Для отопления такого небольшого здания будет достаточно настенного газового или электрического котла, который можно разместить в кухне.
Стоит ли проектировать скучный дом, даже при наличии всего одного этажа? Можно ли обыграть экономичный каркасный дом таких скромных размерах?

Все тот же дом 6 на 6 с односкатной крышей и одной входной дверью. Стоило лишь создать небольшое крыльцо с еще одним уровнем кровли, и фасад дома заиграл совершенно другими красками. Пусть мы не выиграли в планировке: все те же небольшие комнаты, но насколько привлекательнее стал дом!

Существует масса других способов украсить фасад вашего дома. А можно и отказаться от квадратного формата.

Эркер всегда вносит в проект индивидуальность. Проекты с эркером никогда не выглядят дешевыми, хотя затраты на их обустройство минимальны. Гостиная с эркером всегда будет наполнена светом.

Рекомендуем к прочтению
Проекты двухэтажных каркасных домов 6 на 6
Проект двухэтажного дома – выбор больших семей. При таких же затратах на кровлю и фундамент вы вдвое увеличиваете жилую площадь. Главным принципом планировки двухэтажного каркасного дома является расположение комнат общего пользования на первом этаже, а и личных и гостевых комнат – на втором. Санузел в домах такого размера также располагается на первом этаже. Это упрощает и удешевляет монтаж коммуникаций для санузла. Главной сложностью и особенностью двухэтажного проекта является лестница. Этот элемент при неправильном расположении может занять значительное место в жилой площади дома и существенно увеличить конечную стоимость проекта.
Начнем с самого простого проекта: два этажа, двухскатная крыша.
Как видите, даже двухэтажный дом можно возводить на столбчатом фундаменте. Чем примечателен этот проект? Своей простотой. Он, скорее, напоминает малоэтажное строительство советских времен. Да, в доме удалось разместить все необходимое для комфортной жизни средней семьи. Но как бы вы ни старались с отделкой – такой дом не радует глаз. С двухэтажным домом придется поработать над проектом не только с точки функциональности.
Проект, не отличающийся особенностями планировки. Отсутствие санузла указывает, скорее, на дачную функцию здания. Проект выглядит вполне современным за счет сложной двускатной крыши, которую еще называют теремковой.
Мы уже рассматривали, насколько выигрышным может выглядеть эркер. Как это будет выглядеть в двухэтажном проекте?
Кроме прекрасного внешнего вида, для эркера также нашлась прекрасная функциональность – монтаж лестничного проема. Кроме эркера, в проект прекрасно вписался уютный балкон. Современные проекты трудно представить без обустройства балкона на втором этаже или открытой террасы на первом.
Проекты каркасных домов 6 на 6 с мансардой
Обустройство мансарды вместо полноценного второго этажа применяется гораздо чаще по простой причине – это более дешевый вариант расширения жилой площади дома. Мансардный этаж не требует усиления фундамента или верхней обвязки. Обладает теми же приемами в планировке, но в нем также придется решить проблемы монтажа лестницы.
Самым распространенным приемом обустройства мансардного этажа для каркасного дома 6х6 является ломаная кровля.

Планировка №1

Как обычно, начнем с самого простого проекта для дачного домика: две большие комнаты на первом этаже и одна огромная спальня на втором. Такой дом может использоваться только для временного проживания.
Планировка №2

Вполне жилая планировка с комнатами общего пользования на первом этаже и спальней – на втором. Каркасные перегородки на втором этаже позволяют создать несколько комнат. Обычно это спальни, детские комнаты или рабочий кабинет.
Как и в двухэтажных проектах, сложно представить дом с мансардой без открытого балкона или просторной террасы для отдыха на свежем воздухе. Нередко оба эти элемента присутствуют в проекте каркасного дома 6 на 6 с мансардой.

Пристройка позволит сделать просторную летнюю веранду без ущерба жилой площади основного дома.

Еще один прием для обустройства мансардного этажа – кровля с высоким коньком. Преимуществом такого проекта является простота монтажа стропильной системы, недостаток – значительно меньшая жилая площадь мансардного этажа по сравнению с ломаной кровлей. Планировки таких мансард не отличаются от проектов с ломаной кровлей.
С балконом и террасой

С эркером

Мы рассмотрели лишь простые проекты, которые не требуют особых знаний в архитектуре и строительстве. Они вполне осуществимы собственными руками или некрупными строительными бригадами. Более интересные и сложные проекты лучше доверить строительной компании со стажем и хорошими отзывами в вашем регионе.
Одноэтажный проект с финской крышей
Проект только на первый взгляд кажется простым. Проектирование и монтаж таких конструкций кровли требует точного расчета и правильной ориентации относительно преобладающих ветров.

Сложные проект с применением множества архитектурных приемов
Привлекательное крыльцо, маленький балкон, эркер, сложная полувальмовая кровля. При этом небольшой дом 6х6 не кажется нагромождением элементов. Исполнение такого проекта потребует немалого опыта в каркасном домостроении.

Файферховый финский дом
Весьма популярный вид отделки каркасных домов. Дань традициям финского домостроения.

Коттедж
Трудно поверить, что такой проект реализован по каркасной технологии. Просторная терраса, огромные панорамные окна. Проект требует качественного материала и профессиональных рук.

Необычный проект
Интересный проект в виде бунгало. Небольшая жилая площадь окупается привлекательностью готового дома.

Даже для небольшого каркасного дома 6х6 внешний вид и планировка здания ограничены лишь вашей фантазией. Каркасные конструкции давно вышли за рамки однотипных домиков, обшитых вагонкой. Каркасный дом даже небольших габаритов может стать уютным местом проживания семьи. Главное – учесть пожелания всех домочадцев при выборе проекта.
У Вас есть вопросы о строительстве? Что-то не получается и нужен профессиональный совет? Или хотите поделиться своими успехами? Создавайте новую тему на форуме!
Cоздать новую тему
Рекомендуем к прочтению
Рейтинг автора
Автор статьи
Строительство домов, пристроек, террас и веранд. Стаж 15 лет
Написано статей
zbbr.ru
Проект дачного дома 6 на 6 метров — одноэтажный из пеноблоков
Дом 6 на 6 из пеноблоков
Друзья, сегодня хочу представить вашему вниманию отличный проект дачного дома — недорогой одноэтажный дом из пеноблоков жилой площадью 32 м2. Площадь застройки 6 на 6 метров. Планировка дома такова, что он подойдет для комфортного семьи из 2х-3х человек.
План дома 6 на 6 из пеноблоков
Планировка дома 6 на 6 метров из пеноблоков
Домик имеет два входа — со стороны улицы и со двора. Давайте более детально пройдемся по плану дома.
Через двустворчатые двери попадаем прямо в гостиную-столовую (1). Помещение небольшое, всего 18 метров, но все продумано до мелочей. Оно зонировано на две части — собственно кухня с полноценным фронтом и гостиная, где поместились диван и несколько шкафов.
Из гостиной вход в небольшую спальню (3) площадью 9 кв. метров. Из кухни можно попасть в совмещенный санузел (2), оборудованный душем, площадью 5 кв. метров.
Если нет необходимости устраивать санузел в доме, то это помещение можно превратить в еще одну спальню или кабинет. Дополнительная уличная дверь из кухни ведет на задний двор (в сад).
Одноэтажный дом 6 на 6 из пеноблоков
Дизайн фасада очень интересен — отделка выполнена из двух материалов . Частично дом оштукатурен и покрашен в белый цвет, частично — отделан деревянной вагонкой (как вариант — сайдингом). Благодаря такой необычной комбинированной отделке дом смотрится очень современно и оригинально.
Проект дома 6 на 6 из пеноблоков
Окна двухкамерные одностворчатые. Кровля — металлочерепица. Высота крыши позволяет сделать маленькое жилое помещение в мансарде, которую можно утеплить минеральной ватой толщиной 50 мм.
Дом поставлен на монолитную фундаментную плиту, на мой взгляд — самое лучшее решение для фундамента. Подходит для любого грунта.
Монолитная фундаментная плита для дома из пеноблоков
На рисунке — пример конструкции такого фундамента. На выровненный грунт насыпается уплотненное песчаное основание, а затем, на бетонную подготовку заливается в арматуру бетон.
Проект дачного дома 6 на 6 из пеноблоков
Перед домом находится деревянная пергола, на которую можно пустить виноград или другие лианы (клематис, глицинию, кампсис). По желанию, вместо перголы можно сделать крытую террасу или даже веранду. В последнем случае это сделает дом более теплым и пригодным для всесезонного проживания.
Видео — дом 100 м2 из пеноблоков с мансардой
Поделиться ссылкой:
1dacha-sad.com
Планировки домов 6 на 6
Планировки маленьких домов размером 6 на 6 метров с мансардой. Такие дома могут быть построены как для постоянного проживания небольшой семьи, так и в качестве садовых домиков.

Планировка садового домика
Преимущество домов маленького размера очевидно:
1. Можно построить на любом участке, в том числе и на любом садовом участке.
2. Строить такой дом дешево и быстро.
3. Экономия на налогах.
4. Экономия на коммунальных платежах.
5. Можно решить жилищную проблему, не влезая в кредиты.
Если вам не нужны замки, а нужно просто пространство для жизни, то дом размером 6 на 6 метров вполне подойдет.
Общая площадь дома составляет 50 кв. м. Данные планировки выполнены для домов из газобетонных блоков (это могут быть также твин-блоки, бгм, пенобетонные блоки). При строительстве домов из других материалов, площадь будет отличаться в зависимости от размера строительного материала.
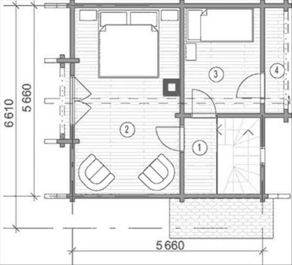
Планировка дома № 1.
Плюсы планировки:
— Благодаря объединенной кухне-гостиной, пространство кажется больше.
-Большой санузел.
-Прихожая, в которой поместится шкаф для верхней одежды. Ящики для обуви можно организовать под лестницей.
-Большая терраса перед домом.

Дом №1. План 1-го этажа
На втором этаже располагается комфортная спальня родителей и небольшая детская комната.

Дом №1. План 2-го этажа
Второй вариант организации второго этажа подойдет для семьи с детьми- погодками. У каждого ребенка будет отдельная спальная комната. А вместе играть они смогут в холле, где поместится и шкаф для игрушек.

Дом №1. План 2 этажа
Дом №2.
Плюсы планировки:
— Объединенная кухня и гостиная, получается большая студия, практически без перегородок. Перегородками выделяется только санузел.
Благодаря этому в помещении легко делать перепланировку.
— Наличие печи, либо камина.
-Лестница на второй этаж находится в гостиной, что визуально увеличивает гостиную.
-Перед домом может быть как терраса, так и просто небольшое крыльцо.

Дом №2. План 1 этажа
На втором этаже дома: спальня для родителей с балконом и детская комната для двух однополых детей.

Дом №2. План 2 этажа
Дом №3.
В этом доме нет санузла, поэтому это скорее только садовый домик.
Плюсы планировки:
— Большая прихожая.
— Удобная и достаточно просторная кухня.
— Наличие печи.

Дом №3. План 1 этажа.
Поднимаясь по лестнице, мы попадаем на классическую мансарду, которую можно организовать как это необходимо вам. Это может быть комната, оформленная в восточном стиле, с множеством матрасов или подушек на полу, в которой поместится много человек, либо детская комната.

Дом №3. План мансарды.
Оцените такое оформление дома: симпатично и при этом дешево. Можно использовать как идею оформления фасада дома к любой из представленных планировок.

Садовый дом
Идеи оформления фасадов дома…
Тэги: Дача, Маленькие дома, Планировки
Оставить отзыв
yoohouse.ru
Дома из бруса 6 на 6: проекты и планировка
Небольшие дома с одной либо несколькими компактными спальнями пользуются большой популярностью среди одиноких людей и небольших семей. Компактное строение из бруса замечательно впишется в экстерьер любого дачного участка.
Представленные проекты отличаются сравнительно невысокими затратами и короткими сроками на их воплощение в зависимости от особенностей участка и пожеланий клиента. Небольшие двухэтажные коттеджи сегодня активно возводят любители загородного отдыха, поскольку провести время в экологичном загородном доме из дерева всегда приятно. Также помещения из бруса пригодны и для круглогодичного проживания.
Особенно интересным решением для любителей отдыха за городом являются проекты, в которых жилой дом объединен с баней либо сауной. Благодаря особенностям проектирования баня и жилые комнаты могут замечательно функционировать в одном помещении, а печкой или котлом для бани можно отапливать весь коттедж в холодное время года.
Двухэтажный дом
Небольшой домик из бруса, построенный по представленному проекту отличается своей необычной уютной внешней отделкой, которая придает строению особого шарма. Двухэтажный коттедж выкрашен в приятные светлые тона, а особым украшением служит небольшое уютное крыльцо.

Внутри дом состоит из четырех разных по площади комнат. Отдельно выделен холл, лестница из которого ведет на второй этаж в самую просторную комнату. Характерной особенностью дома является то, что кухня и гостиная здесь объединены в одной комнате, что дает возможность визуально расширить пространство благодаря правильно подобранной отделке помещения.

Солнечная дача
Дом из сруба по представленному проекту выделяется своей довольно вместительной террасой и балконом на втором этаже. Здесь можно укрыться от палящих лучей солнца летом и проливных дождей в осеннюю пору.

На первом этаже дома оборудована парилка, санузел, холл и небольшая гостиная либо комната отдыха. На втором этаже находится просторное помещение, которое может служить как спальней, так и дополнительной гостиной. По вашему усмотрению в комнате также можно оборудовать кухонную зону.

Дом с террасой
Данный проект особенно интересен своей просторной закрытой террасой, благодаря которой дом имеет довольно необычную привлекательную форму. Следует обратить внимание также на интересный способ укладки фундамента.

На каждом из двух этажей строения имеется небольшой холл, который позволяет отделить жилые комнаты. В доме имеются две просторные комнаты, использовать которые можно по собственному усмотрению. В оригинальной планировке на первом этаже размещается небольшая кухонная зона и гостиная, а на втором этаже можно оборудовать жилую комнату.

Семейное гнездышко
Замечательный проект двухэтажного жилья из бруса с просторной террасой и небольшим балконом на втором этаже. Дом достаточно компактный, чтобы разместиться на небольшом участке земли и может быть построен в сравнительно короткие сроки.

На первом этаже размещены холл, просторная кухня, объединенная со столовой и небольшая комната, которая может послужить маленькой спальней либо просторным санузлом.

Второй этаж вмещают в себя холл и две жилых комнаты, одна из которых является достаточно просторной для размещения в ней большой компании гостей. Здесь можно оборудовать зону отдыха и библиотеку. Таким образом, в доме можно оборудовать три жилых комнаты и, несмотря на свою компактность, он подходит для проживания большой семьи из более, чем трех человек.

Дом с мансардой
Красивый дачный домик из бруса для небольшой семьи. Снаружи проект выглядит очень привлекательно. Благодаря особой форме крыши возможно построить второй мансардный этаж с выходом на балкон.

Планировка предусматривает вход с улицы на кухню дома, которая удачно совмещена с холлом. На просторной террасе также можно устраивать барбекю и отдыхать в теплый период года.

На мансардном этаже находится просторная комната, которая может послужить мастерской офисом либо спальней по усмотрению хозяев.

Дом из бруса
Представленный проект дома из бруса примечателен своей угловатостью. Современное архитектурное решение непременно будет привлекать взоры ваших соседей и прохожих. Благодаря большому количеству просторных окон в доме всегда будет светло и уютно в светлую пору суток.

Внутри оборудована закрытая веранда, в которой можно оборудовать зимний сад, совмещенная с холлом кухня и просторная жилая комната.

На втором этаже размещена мансарда, которую можно использовать в качестве спальни либо комнаты для гостей.

Дача с балконом
Уютный деревянный домик включает в себя два этажа, террасу и небольшой балкон.

Фасад дома выглядит довольно живописно благодаря использование натуральных материалов и проверенных дизайнерских решений.

Внутри расположены две комнаты, которые можно использовать как жилые, а также объединенная с холлом кухня. Особую уютность строению придают терраса и балкончик на втором этаже.

Уютный домик
Небольшой уютный двухэтажный коттедж снаружи выглядит как настоящий деревенский домик. Интересная треугольная форма крыши создает иллюзию наличия просторного чердака.

Фасад выкрашен в натуральные бежевые и коричневые цвета для придания строение натуралистичного вида.

Дом рассчитан на небольшую семью из 1-2 человек, которые часто любят принимать гостей. Внутри можно обустроить одну спальню и две просторные гостиные на первом и втором этаже. Отдельно размещены также кухня и небольшой холл.

Коттедж с большой спальней
Представленный дом из бруса включает в себя два этажа и небольшое крыльцо.

В оригинальном проекте использованы только натуральные материалы, в том числе поставлены деревянные окна из бруса.

Из просторного холла можно войти во все комнаты строения. На первом этаже располагается компактная кухня и комната, которую можно использовать для приема гостей либо в качестве спальни. На втором этаже также размещена просторная жилая комната.

Гостевой домик
Интересный проект дачного домика примечателен интересно треугольной крышей и отсутствием крыльца, благодаря чему на строительство затрачивается меньше строительных материалов и времени.

Фасад имеет очень натуральный вид. Подобные деревянные строения можно встретить повсеместно, поэтому они очень органично будут смотреться и на вашем участке.

Дом поделен на три отдельных жилых комнаты, в одной из которых можно разместить кухню и гостиную.

www.dom-brus.com
Планировка дома 6 на 6 с мансардой: фото, проекты
Собственный коттедж многие считают непозволительной роскошью. Однако мало кто задумывается, что застройщики могут быстро и за сравнительно скромную плату возвести дом под ключ, а во многих случаях семье будет достаточно небольшого домика 6х6. Если это одноэтажный вариант, то в доме компактно разместится кухня, санузел и спальня. В 2-этажном здании появится еще и детская с гостиной. Мансарда также увеличивает полезную площадь дома на 1-2 комнаты. Планировку заказчик разрабатывает сам или рассматривает готовые проекты домов 6х6 у застройщика. Все работы от подготовки фундамента и до подписания акта приемки займут в среднем 3 месяца. Предлагаем посмотреть как может выглядеть дом 6 на 6 с мансардой: проекты и примеры планировки разных вариантов.

Материалы для строительства
Частный дом строят из кирпича, блоков, каркасных щитов или бруса. У каждого материала свои особенности.
Кирпичные дома
- Долговечность (до 150 лет)
- Пожаробезопасность
- Шумоизоляция
- Разнообразие форм, цветов и фактур
- Подходит для любого дизайна здания
Однако кирпич сам по себе дорогой и тяжелый. Доставка до объекта, укладка и усиленный фундамент вызовет дополнительные расходы заказчика.
А так же, на нашем сайте Вы можете ознакомиться с самыми популярными проектами домов из кирпича от строительных компаний, представленных на выставке домов Малоэтажная Страна.
Постройки из газоблоков
- Комфортный микроклимат внутри
- Легкий монтаж и транспортировка
- Пожаробезопасность
- Стоимость ниже, чем у кирпичей в 2 раза
Газобетонные блоки требуют прочного фундамента, трескаются со временем, нуждаются в фасадной отделке.

Предлагаем ознакомиться с самыми популярными проектами домов из газобетонных блоков от строительных компаний, представленных на выставке домов Малоэтажная Страна.
Дома из каркасных щитов
- Быстрый монтаж (5-7 дней)
- Теплосбережение
- Самый дешевый вариант
- Не требует внутренней отделки
- Провода и трубы коммуникаций скрываются внутри щитов
Из готовых каркасных панелей можно построить только типовой дом. Стены не проветриваются, нужна дополнительная система вентиляции. Деревянные панели горят. Срок службы в среднем 100 лет.
На нашем сайте представлены и самые популярные проекты каркасных домов от строительных компаний, представленных на выставке домов Малоэтажная Страна.
Коттеджи из деревянного бруса
- Экологичность
- Идеальный микроклимат
- Простой и недорогой фундамент
- Не обязательна отделка внутри и снаружи
- Немного дороже каркасного строения

Из недостатков брусчатого дома отмечают подверженность грибкам, горение. Защитные пропитки требуют затрат. Некачественная древесина трескается уже через несколько лет эксплуатации. Относительно короткий срок службы – 50-100 лет. Если интересуют деревянные дома 6х6, проекты выставляют на своих сайтах строительные компании.
В каталоге на нашем сайте есть и популярные проекты домов из двойного, клееного и профилированного бруса от строительных компаний, представленных на выставке домов Малоэтажная Страна.
Нужна ли веранда в доме
Загородный дом обычно возводят с верандой – пристройкой с большими окнами во всю стену. Дачный домик 6х6 с мансардой или без нее можно дополнить открытой просторной террасой.
Веранду можно построить как одновременно с домом, так и через 2-3 года. В любом случае для нее нужен отдельный ленточно-столбчатый фундамент. Пристройка не утепляется, нагрузка на основание будет меньше. Чтобы со временем стены не потрескались, рекомендуется оставлять зазор 1 см между домом и верандой.
Расположение пристройки зависит от предпочтений заказчика. Он может быть совмещен с кухней, служить прихожей или иметь отдельный вход с террасы. Размеры помещения индивидуальны, ориентироваться стоит на площадь коттеджа. В доме 6х6 большую пристройку не сделать. Как вариант – расположить ее буквой Г, захватив 1,5 стены.

Веранда совсем не обязательна в загородном доме, но она добавляет полезную площадь. Такая пристройка удобна в качестве столовой или летней кухни. Солнце не жарит, дождь не заливает – идеальное место для семейных посиделок и праздничных застолий.
Назначение мансардного этажа
Одноэтажный дом 6х6 м на участке занимает мало места, но и полезная площадь около 30 кв. м не дает простора для фантазии в планировке. В такой ситуации очень выручает мансардный этаж – чердак, обустроенный для проживания.
Построить его можно в любой момент. Строители уже решили основные проблемы мансарды. Низкий потолок поднимают за счет стен до 1,5 м высотой. Скаты используют для полок, шкафов, окон. Перегрев крыши и шум дождя устраняют качественной изоляцией. Лестницу для экономии места монтируют снаружи.
Фундамент должен быть прочным, чтобы выдержал дополнительную нагрузку. Если изначально дом не рассчитан на мансарду, то основание придется укрепить. А потом уже заниматься реконструкцией.

Какую пользу принесет мансардный этаж:
- Полезная площадь здания увеличится почти в 2 раза
- Окна на скате позволят любоваться звездным небом
- Вид дома станет привлекательней
- Отопление тратить меньше энергии, чем на полноценном этаже
- Экономия бюджета на строительстве
Мансарда идеальна для спальни, детской или комнаты с развлечениями. Дачники любят устраивать там кладовые. Гости с удовольствием останутся ночевать в уютной комнате под крышей. Можно даже уместить небольшой санузел.
Примеры планировки дома 6 на 6
В одноэтажном дачном домике вариантов планировки немного. План дома 6 на 6 можно нарисовать в компьютерной программе или от руки. Если с черчением со школы проблемы, то строительная компания сделает всё сама, учитывая пожелания клиента. В документе должны быть учтены все окна, проемы, даже в какую сторону открываются двери. Точная длина и ширина стен с перегородками. А также расположение инженерных коммуникаций.
В таком небольшом доме важно максимально удобно и рационально разместить жилые и хозяйственные комнаты. Кухню и спальню обязательно разделить перегородкой с дверью. Количество зон в доме зависит от числа проживающих человек. Для двоих взрослых достаточно кухни и спальни. Можно сделать общую гостиную с диваном и телевизором, а супружескую кровать отделить ширмой. Площадь комнаты 16,5 кв. м, кухни – 10,5 кв. м и прихожей – 5,7 кв. м. Если их немного уменьшить, то вместится ванная комната 2х2 м. Если семья с детьми, то больше подойдет план дома 6 на 6 двухэтажный, здесь будет больше пространства для нормального отдыха всех членов семьи.

Отопление в дачном домике проще сделать печным. В кухне всегда теплее от варочной плиты, поэтому топку располагают в комнате. Для красоты и большего теплового эффекта устанавливают камин. Если на кухне отопление не нужно, то печку можно поставить в дальнем углу зала. Дизайн дачного дома 6 на 6 м заказчики придумывают сами или обращаются к профессионалам.
Планировка дома с мансардой
Мансардный этаж с двускатной ломаной крышей добавляет 27 кв. м к полезной площади дома. Лестница скрадывает из нее примерно 1,5 квадрата. Можно ее установить внутри или снаружи, приставив к небольшому балкону.
Наглядно такой дом показан на видео:
Проект дома 6×6 с мансардой получится интересней, чем для одноэтажного варианта. Внизу будет кухня 3х3 м и просторная гостиная 6х3 м. Перед входом войдет открытая терраса 4,5 кв. м и такой же площади прихожая.
На мансарде обустроится спальня 4,5х6 м. Кроме кровати там легко установить гардеробную, книжный шкаф, рабочий стол. Санузел можно сделать на первом этаже вместо террасы или наверху возле лестницы.

Планировка двухэтажного дома с мансардой и верандой
Идеальный вариант – дом 6х6, 2 этажа, планировка которого предусматривает мансарду и веранду. Здесь разместится всё, о чем мечтали. Полноценная кухня, гостиная, ванная и прихожая на первом этаже, 2 просторных спальни – на втором. А мансарда послужит рабочим кабинетом, библиотекой и бильярдной.
Веранду можно пристроить прямоугольником вдоль фасадной стены или квадратом в углу. У окна встанет стол для чаепития, рядом – торшер и кресло-качалка. Удобно будет сделать вход на веранду из гостиной.
Полезная площадь такого дома составит примерно 80 кв. м. И для сада место останется. Единственный нюанс – такой дом обойдется в 3 раза дороже, чем одноэтажный.
m-strana.ru


