фундамент своими руками и как его выбрать
- Монтаж фундамента
- Выбор типа
- Из блоков
- Ленточный
- Плитный
- Свайный
- Столбчатый
- Устройство
- Армирование
- Гидроизоляция
- После установки
- Ремонт
- Смеси и материалы
- Устройство
- Устройство опалубки
- Утепление
- Цоколь
- Какой выбрать
- Отделка
- Устройство
- Сваи
- Виды
- Инструмент
- Работы
- Устройство
- Расчет
Поиск
Фундаменты от А до Я.- Монтаж фундамента
- ВсеВыбор типаИз блоковЛенточныйПлитныйСвайныйСтолбчатый
Фундамент под металлообрабатывающий станок
Устройство фундамента из блоков ФБС
Заливка фундамента под дом
Характеристики ленточного фундамента
- ВсеВыбор типаИз блоковЛенточныйПлитныйСвайныйСтолбчатый
- Устройство
- ВсеАрмированиеГидроизоляцияПосле установкиРемонтСмеси и материалыУстройствоУстройство опалубкиУтепление
Устранение трещин в стенах фундамента
Как армировать ростверк
Необходимость устройства опалубки
Как сделать гидроизоляцию цоколя
- ВсеАрмированиеГидроизоляцияПосле установкиРемонтСмеси и материалыУстройствоУстройство опалубкиУтепление
- Цоколь
- ВсеКакой выбратьОтделкаУстройство
Отделка фундамента камнем
Выбор цокольной плитки для фасада
Что такое цоколь
Как закрыть винтовые сваи
- ВсеКакой выбратьОтделкаУстройство
- Сваи
fundamentaya.ru
Фундамент для каркасной бани своими руками
Самой первой и самой главной основой под любое строение, в том числе и каркасное, является фундамент. От него во многом зависит, насколько долго простоит здание, будут ли перекосы, деформации, трещины в стенах, насколько сильно произойдет усадка. Важно правильно выбрать и построить фундамент для каркасной бани.

Небольшая каркасная банька на участке
От чего зависит выбор
Видов фундаментов, которые могут укладываться под баню, несколько. Однако перед тем, как определиться с видом, необходимо провести некоторый анализ, как самого строения, так и местности, на котором оно будет возводиться.
Итак, строение. Баня, которую строят для себя на даче, чаще всего не очень тяжелая и большая. Это, скорее всего, будет небольшое каркасное здание из предбанника, парилки и душевой. Каркасная баня отличается легкостью, поэтому фундамент не обязательно должен быть монолитным или ленточным. При этом общий вес не будет сильно изменен после установки мебели — редко в баню ставят тяжелые гарнитуры и кровати.

Планировка небольшой бани
Однако если вы строите огромную и большую баня, которую возможно планируете сдавать, то фундамент может ни в чем не уступать обычной основе под дом. Такие бани имеют не три помещения, а гораздо больше, при чем здесь может быть установлен бассейн, который при заполнении водой может весить больше тонны. Все эти нюансы следует учитывать при выборе фундамента.

Планировка большой двухэтажной бани
Если ваша баня – это не первая постройка на участке, то вы уже в курсе, какого вида у вас почва. На песчаных почвах, которые практически не дают усадки, можно устанавливать легкие фундамента. На глинистых или сыпучих почвах, которые особо часто распространены в районе рек и озер, лучше поставить ленточный фундамент, как менее подвижный.
Виды и особенности
Под каркасную баню чаще всего выбирают один из трех видов фундамента:
- ленточный
- свайно-винтовой
- столбчатый
Каждый из этих видов имеет свои особенности, рассмотрим их все.
Ленточный
Ленточный представляет собой монолитный фундамент, который состоит из цементной смеси, залитой в жидком состоянии в опалубку. Опалубка представляет собой каркас для будущего фундамента.

Ленточный фундамент под баню
Плюсы ленточной основы:
- Достаточно надежная.
- Выдерживает большой вес здания.
- Может использоваться на различных почвах.
- Практически не дает усадки.
- Деформация здания даже через какое-то время – минимальна.
Так как это монолитная основа, не происходит сдвигов одной части фундамента относительно другой, поэтому каркасное здание не искривляется.

Ленточный фундамент из кирпича
Минусом ленточного фундамента можно назвать его большую стоимость относительно других видов. При этом приходится заказывать спец технику, которая привезет бетон, выроет траншею под опалубку. Если участок находится далеко от города, стоимость ленточной основы будет в разы больше, чем других видов.
Столбчатый фундамент
Столбчатый фундамент представляет собой основу, которая формируется столбами из цемента или блоков, расположенных на определенном расстоянии друг от друга.
Плюсы:
- Значительно дешевле ленточного.
- Является оптимальным вариантом для легких построек – бытовки, небольшой бани.
- Легко устанавливается своими руками.

Столбчатый фундамент под баню
Минусами столбчатого фундамента является его не универсальность – он подходит только для легких построек, расположенных на песчаных почвах. На глинистых почвах столбы «пляшут», причем неравномерно относительно друг друга, в результате стены дома деформируются, появляются трещины. Для доставки цемента или блоков также необходимо заказывать транспорт, но траншею под столбы можно вырыть самому. Опалубку также можно сделать самому, если планируется использовать цемент. А для блоков она и вовсе не нужна. Подробнее читайте тут.
Свайно-винтовой
Такая основа является практически универсальной под каркасную баню. Ее плюсы:
- Оптимальная цена.
- Может устанавливаться на сложных почвах.
- Высота фундамента регулируется, причем цена от высоты фундамента не меняется.
- Современные качественные сваи обработаны защитным слоем, поэтому не гниют и не портятся.
- Очень быстро устанавливаются – для формирования полноценного фундамента достаточно 1-2 дней.

Свайно-винтовой фундамент под баню
Минусом свайного фундамента является огромное количество низкосортных свай, которые продаются в стране. На производстве грубо нарушаются стандарты в целях экономии – слой защитный делается практически в 2 раза тоньше, чем этого требуют нормы. Используется китайская мало качественная краска, которые сдирается со сваи еще в момент установки. В местах царапин, особенно если почва песчано-гравийная, очень быстро появляется ржавчина, способная за 5 лет повредить винты на пол см вглубь. Повреждение происходят быстрее в щелочных почвах. Более подробно читайте здесь.
Разметка на местности
Какой бы вид фундамента вы ни выбрали, начинать его установку следует с разметки. Однако вы не сделаете качественную разметку без наличия плана. Итак, что должно отображаться в плане?
В плане должны отображаться в первую очередь все размеры стен, особенно несущих. При их планировании вы должны понимать, что внутренние несущие стены необходимы как будущая опора вашей крыши.

Разметка под фундамент
У вас должны быть четко прописаны размеры, без точных размеров сделать фундамент будет невозможно. Маленькую баню сделать проще.
Желательно определиться к моменту построение фундамента с количеством дверей, окон, а также в какой части помещения будет располагаться та или иная комната.

Работа с разметкой фундамента под баню
Если у вас есть план, можно приступать к разметке. Для этого вам потребуется несколько колышек, которые следует вбить по всем углам фундамента. Ширина фундамента также играет свою роль. С помощью веревки вы должны проложить линии внешней и внутренней линии фундамента.
Когда разметка таким образом выполнена, для столбчатого и свайно-винтового фундамента отмечают места закладки столбов или свай. Расстояние между ними должно быть примерно 1,8 – максимум 2 метра. Высота фундамента над уровнем земли делается в районе 50-60 см.
Поэтапная установка
При любом типе фундамента этапы установки очень схожи.

Фундамент для небольшой бани легко сделать своими руками
- Подготовка местности. Сюда входит расчищенные площадки, снятие плодородного слоя почвы, выполнение в случае необходимости анализа состава земли, подготовка подъездных путей для транспорта.
- Разметка.
- Для ленточного или блочного заливного фундамента – подготовка траншеи и опалубки.
- Заливка цементной смеси, установка блоков, вкручивание свай – в общем, главный этап по устройству.
- Проверка геометрии, перепадов высоты и пр.
- Корректировка фундамента при необходимости. Она осуществляется, как правило, с помощью поднятия более низких участков столбчатого или ленточного фундамента. К сожалению, выкрутить сваю назад для поднятия фундамента категорически запрещается. Подробные инструкции по установке всех видов фундамента ищите здесь.
karkasblog.ru
на винтовых сваях, ленточный, столбчатый, и прочие виды; нижняя обвязка, какой лучше и как сделать своими руками – все детали
В наше время набирает обороты каркасное строительство, так как оно имеет множество преимуществ – постройки возводятся быстро, вес у них не большой да и стоимость каркасного строения не высокая. Постройка каркасной бани это отличный способ сэкономить средства и время. но не смотря на то, что такая постройка имеет малый удельный вес, под нее следует возводить основание, иначе есть вероятность потерять и время и деньги, из-за разрушения каркаса. Какой фундамент подойдет под каркасную баню? Как можно сэкономить на возведении основания? Рассмотрим подробнее.
Виды
Есть несколько видов оснований, которые можно применить при строительстве каркасного строения. Выбирая фундамент нужно учитывать массу здания, тип грунта, и другие нагрузки, которые будут оказываться на конкретный фундамент.
Итак, рассмотрим самые распространенные виды фундаментов, которые сооружают под каркасные бани.
На сваях
Это один из типов столбчатого основания, в котором роль опор играют сваи, которые вбиваются или вкручиваются в грунт. Часто их используют на слабых, подвижных пучинистых почвах. Свайные элементы вбивают до плотного слоя грунта, именно они служат опорой для нижней обвязки. Это отличный вариант, если почва на строительной площадке проблемная, но для сооружения такого основания нужна специальная строительная техника, поэтому это основание в частном строительстве применяют очень редко. Однако для малоэтажного строительства вполне подходят следующие два вида.
На винтовых сваях

Этот вид оснований под строения не смотря на то, что появился буквально несколько лет назад, уже завоевал огромную популярность как у частных застройщиков, так и у профессионалов. Сваи вкручиваются в почву, до достижения наконечником плотных грунтовых слоев. Располагаются элементы по схеме, которая позволяет равномерно распределять нагрузку на почву и основание.
Установить винтовые сваи можно на любых грунтах – скальных, пучинистых, на склонах. Преимуществом этого вида основание является тот факт, что их можно вкрутить вручную, самостоятельно. Стоит отметить, что строительство на таком основании не составит труда, так как сваи обвязываются швеллером с двух сторон, что служит основанием для стен.

На буронабивных сваях
Тип свайного основания, при котором готовые столбчатые элементы не используются. В этом случае пробуривается или выкапывается скважина, которая подлежит армированию и потом заливке бетона. Способ обустройства очень трудоемкий. При этом не каждому частному застройщику доступен этот метод, для самостоятельного обустройства, так как требует присутствия тяжелой строительной техники, правильного обустройства дренажной системы, и армирования прямо на строительном участке. Стоит также отметить, что готовые свайные элементы намного прочнее, чем залитые самостоятельно – они могут быстро разрушиться при несоблюдении технологии заливки. И все-же многие умельцы делают самодельные заливные сваи, о чем подробнее можно почитать в статье про свайные фундаменты для бань.
Видео
Ленточный
Пожалуй, самый распространенный и востребованный вид основания, особенно у частных застройщиков. Ленточное основание – это проверенная временем и надежная железобетонная, непрерывная лента, которая полностью повторяет план строения. Ее проводят под всеми несущими стенами и под перегородками, если этого требует вес конструкции. Более подробно о нем здесь.

Это достаточно простое и экономичное в обустройстве основание, которое можно выполнить своими руками, без привлечения строителей и специальной техники. Минус этого основания только в том, что оно очень требовательно относится к характеру почвы – невозможно возвести на влажных и пучинистых грунтах. Есть несколько вариантов ленточного основания:
- Монолитная лента – прочная железобетонная конструкция, которая обустраивается прямо на строительной площадке. Монтируется опалубка, в которой производят армирование и только после этого заливается бетон. Прочность монолитной ленты достаточно большая, способная выдержать большие нагрузки. Но есть существенный недостаток – не выдерживает подвижек грунта, так как сопротивление на излом у ленточного основания очень низкая.
- Ленточный сборный – это основание собирают из готовых железобетонных элементов. В частном строительстве применяют очень редко, так как для доставки элементов на строительную площадку нужна специальная грузовая техника. Кроме этого, для установки плит в траншею требуется кран. Да и прочность подобного основания напрямую зависит от профессионализма и опыта строительной бригады.
- Бутобетонный – вместо железобетона применен естественный бутовый камень, объединенный раствором. Получается лента с большей прочностью, чем классический ленточный, меньше подвергается влиянию влаги. Невысокая цена используемого материала и вероятность работы своими ручками делают такого рода метод крайне заманчивым, однако не везде можно найти этот камень, а поставка в далекие регионы — удовольствие дорогостоящее. Данный факт ограничивает использование подобного вида.

Столбчатый
Несмотря на преимущества ленточного основания, его предпочтительнее всего обустраивать под кирпичные, блочные и легкие монолитные строения. Для более легких построек, таких как деревянные, брусовые и каркасные бани, лучше применить именно столбчатое основание, так как оно намного экономичнее.
Ограничение в применении столбчатых оснований есть – если стены бани сооружаются из тяжелого материала, при этом грунт на строительной площадке слабонесущий. Прежде чем принять решение об обустройстве столбчатого основания, стоит рассмотреть варианты материала, из которого могут быть изготовлены столбы:
- Из монолита – столбы обустраиваются прямо на строительной площадке. Вариант очень хороший, если нужно обустроить столбы определенного размера, но на него уходит большое количество раствора, кроме этого придется армировать каждый элемент. Для качественного выполнения нужно применять вибрационную машину или метод штыкования, чтобы удалить пустоты, которые могу впоследствии повлечь за собой разрушение.
- Из кирпича – отличный вариант, если рельеф на строительной площадки неровный. Благодаря небольшой толщине кирпича, можно подогнать каждый элемент фундамента индивидуально.
Из блоков
В этом случае стоит рассмотреть два варианта блочных оснований:
- блочный ленточный – при обустройстве применяют блоки ФБС (фундаментные блоки строительные) в качестве ленты. Есть несколько преимуществ такой сборки оснований:
- Не нужно ждать затвердения бетона.
- Не надо сооружать армирующий каркас.
- Есть возможность качественно обустроить гидроизоляционный слой.
- блочный столбчатый – их делают из блоков небольшого размера, которые укладываются поперек друг на друга до нужной высоты. Такие столбы очень прочные, так как бетон высушенный в заводских условиях обладает повышенными качественными и прочностными характеристиками.
Из покрышек
Старые покрышки являются отличным строительным материалов из которого можно соорудить основание под каркасную баню. Можно выполнить несколько видов фундаментов:
- столбчатый – уложить покрышки в виде столбиков;
- ленточный – в этом случае они укладываются в виде непрерывной ленты;
- плитный – кладка ведется по всей площадке в два ряда.
Плюсом конструкции из старых шин является:
- экономичность;
- длительный срок службы;
- не требуется обустраивать дополнительную гидроизоляцию;
- устойчивость к перепадам температур.
Недостатком можно считать только то, что под воздействием прямых солнечных лучей старые автошины выделяют вредные для здоровья вещества. Про данный вид больше информации в этой статье.
Плитный

Это сплошная монолитная плита, которая заливается под разные строения. Прочность такого основания очень высокая, поэтому применяют плитные фундаменты на нестабильных, пучинистых склонных к подвижкам почвах. Если установить строение на подобное основание, то ему не будет страшна деформация и разрушение.
Минусом плитных оснований является; большой расход материала, высокая стоимость и трудоемкость процесса. Для каркасной бани лучше не использовать плитный фундамент – это зачастую неоправданно дорого.
От чего зависит выбор
Выбор определенного вида фундамента напрямую зависит от удельного веса строения, и типа почвы на участке.
Так, например:
Скалистый грунт
Скальные и каменистые грунты – это частицы различной фракции, между которыми нет почвенных элементов. Этот вид почвы считается идеальным для обустройства любого вида фундамента, так как отсутствие влаги в составе не позволяет грунту менять свое состояние.
- Песчаный грунт – состоит из песка крупной фракции, который пропускает через себя влагу, при этом хорошо уплотняется при строительстве. Глубина промерзания песчаного грунта, составляет 1 метр.
- Глинистый грунт – неустойчивый, склонный к пучению и размоканию. Промерзает до 1,5-2 метров. Стоит отметить, что если не обустроить хорошую дренажную систему и гравийно-песчаную подушку, то любой фундамент разрушается очень быстро.
- Супеси и суглинки, которые состоят из глины и песка. Достаточно устойчивый грунт, если в его содержании больше песка, чем глины. Он промерзает на 1,5-2 метра и считается неплохой основой для обустройства любых фундаментов.
- Торфяники – грунты насыщенные водой, неустойчивые с неглубоким залеганием донных вод. Торфяники обычно находятся на осушенных болотах и могут очень легко затянуть фундамент, особенно если он будет тяжелым.
К сведению! На болотистых и торфяных почвах можно принять только свайный или свайно-винтовой тип фундаментов.
Что касается остальных видов почв, то основное внимание обращают на удельную массу конструкции. Но так как мы рассматриваем строительство каркасной бани – ее вес не очень большой, поэтому можно применить любой из типов в зависимости от финансовых возможностей и опыта.
Обвязка
Ростверк – это конструкция, которая соединяет установленные в землю столбы по всему периметру основания.
Не нужно думать, что достаточно установить сваи, наварить на них специальные пятки и можно на них устанавливать дом. Стоит понимать, что в столбчатом и свайном основании каждый элемент живет своей отдельной жизнью, особенно если грунт пучинистых и неустойчивый.
Кроме этого стоит понимать, что на каждую сваю будет оказываться разная нагрузка. Сваи может просто повести по отдельности.
Совет! Если хотите сэкономить, то можно сделать обвязку брусом, что отлично подойдет для каркасной бани. Но самый прочный и надежный ростверк – это железобетонная лента.
На данном фото не каркасная баня, но видна обвязка винтового фундамента профильной трубой
Различают четыре вида обвязки фундамента из свай:
- брусом;
- швеллером;
- двутавровой балкой;
- монолитной лентой.
Только обустроив ростверк на свайных, столбчатых и винтовых основаниях можно быть уверенным в том, что строение простоит длительное время и не потребует ремонта в ближайшие несколько лет.
Нижняя обвязка на свайном
С первого взгляда, кажется, что обустроить обвязку свайного фундамента уголком или швеллером кажется простым, эта работа требует определенных навыков:
- необходимо уметь проводить сварочные работы, при этом уровень подготовки должен быть соответствующим;
- нужно точно понимать, как соединить швеллер, без опыта работа будет некачественной;
- швеллер, достаточно тяжелый материал, поэтому придется привлекать помощников.
Но тем ни менее алгоритм действий достаточно простой:
- сваи нужно выровнять по нивелиру;
- швеллер нарезать на элементы нужного размера;
- с применением болтов или сварки соединить швеллер со сваями;
- нанести специальный, антикоррозийный грунт.

При применении сварки для обустройства обвязки, нужно помнить, что тепловое воздействие на сталь меняет ее структуру – ослабляя материал. Поэтому неправильное или неуверенное владение сварочными работами может стать последствием ослабления мест в точках крепления швеллера к опорам.
Особое внимание нужно уделять угловым соединениям, так как именно в этих местах есть большая вероятность ослабления всей конструкции.
Нижняя обвязка на столбчатом
На столбчатом основании лучше всего применить древесину: во-первых она не дорогая, во-вторых простая в обустройстве и обработке. Применять лучше хвойные породы дерева. Преимущества:
- повышенная прочность;
- долговечность;
- невысокая цена;
- смолистость помогает противостоять влаге.
Перед тем как применить древесину для обвязки, ее следует очень хорошо подготовить:
- обработать антисептическими составами, чтобы предотвратить гниение;
- пропитать антипиренами, чтобы снизить горючесть.

Самым подходящим материалом для ростверка будет клееный брус, так как этот материал производят по специальной технологии и склеивают под высоким давлением.
На какой лучше поставить
Существует много мнений по поводу того, какой фундамент обустроить под баню каркасного типа. Одни специалисты считают – так как строение имеет малый удельный вес, можно обойтись столбчатым основанием без ростверка, другие отдают предпочтение сваям, при этом советуют сделать обвязку из клееного бруса.
Есть мнение, что лучше подстраховаться и обустроить малозаглубленное ленточное основание, считая его самым надежным.
Но если денег на обустройство бетонного основания нет, отлично подойдет фундамент из старых автомобильных шин. Здесь главное правильно рассчитать нагрузку, чтобы понимать – сколько рядов покрышек укладывать под строение и правильно рассчитать песчаную подушку под них.
Нужно ли основание под печь
Фундамент под печь устанавливают только в том случае, если вес конструкции более 700 кг. Стоит сразу обратить внимание, основание под печное оборудование обязательно нужно сооружать отдельно от основного. Подробнее в этом материале.

Можно ли обойтись без фундамента
Совсем без основания каркасную баню лучше не обустраивать, конструкция не прослужит долго. Первым делом стоит подготовить строительную площадку, и если нет средств, то уложить деревянные лежни, или стулья на которые впоследствии укладывается обвязка под каркасную баню и собираются стены и кровля строения.
Какой самый простой
Самым простым вариантом опытные частные застройщики считают установку каркасной бани на деревянные стулья или на старые автомобильные покрышки.
Если глинистая почва
Как известно глинистая почва очень неустойчивая, поэтому перед тем как соорудить фундамент, нужно сделать выборку грунта и обустроить хорошую песчаную подушку, и дренажную систему для отвода воды.

Какая нужна глубина
Что касается глубины заложения основания под каркасную баню, об этом можно прочитать в отдельной статье на нашем сайте.
Как сделать своими руками
Несмотря на кажущуюся сложность, практически все виды фундаментов под каркасную баню можно обустроить своими руками, для этого:
- подготовить строительную площадку;
- провести разметку территории;
- обустроить котлован, траншею или ямы ( в зависимости от вида основания). При применении свайно-винтового фундамента, этот шаг можно опустить;
- соорудить опалубку и армирование;
- залить бетон.
Если нужны подробности, то на нашем сайте много информации, по монтажу любых видов фундаментов своими руками (как правильно, сделать своими руками, как залить).
Когда проще заказать, чем делать
Не всегда целесообразно заливать фундамент своими руками, допустим, если у вас нет опыта и вы только слышали, как самому залить фундамент, то лучше не браться за обустройство. Вы должны четко понимать, что даже небольшая ошибка при расчетах и монтаже может быть чревата негативными последствиями — баня очень быстро выйдет из строя и вы потеряете и время и деньги.
Если каркасную баню планируется заказать у строительной компании, под ключ, то стоит доверить заливку фундамента той же бригаде, которая будет монтировать строение.
В заключение
Мы постарались дать достаточно подробную информацию о видах фундаментов и о их возможном применении (можно еще посмотреть эту статью: «Какой лучше фундамент под баню«). Сделать фундамент под баню самостоятельно, или привлечь профессионалов — решать вам.
Вконтакте
Google+
Одноклассники
parilochka.com
как построить самому быстро и без ошибок
Построить каркасную баню своими руками – проще простого. А если ее еще и грамотно утеплить и изолировать от влаги, можно получить в итоге парную, почти ни в чем не уступающую ни кирпичным архитектурным шедеврам, ни массивным сооружениям из оцилиндрованных бревен. И наша статья подробно расскажет о том, как строится каркасная баня своими руками: видео, фото и пошаговые руководства – все для вас!
Заметим, что каркасные бани собственноручно возводятся куда легче, чем кирпичные или брусовые – ни чертежей, ни серьезного фундамента, ни дорогих материалов не нужно. Все настолько просто, что справиться с работой может даже школьник. Главное – знать, как и что делать.
В строительном плане каркасная баня имеет ценное преимущество, что, ввиду своей легкости, она не дает усадки, — чего не избежать рубленным парным. А вот минус – во влажности во время снега и дождя, которая способна проникать во все щели и накапливается внутри каркаса. Именно эту проблему и нужно постараться решить заранее.
Этап I. Проектируем
Итак, по каркасной технологии вы можете построить как небольшую парную на парилку и предбанник, так и двухэтажный загородный дом-баню. Все зависит от вашей фантазии и финансовых возможностей!
Для небольшой каркасной бани вам понадобится сделать простой ленточный или столбчатый фундамент, закупить сухой брус сечением не меньше 20х20 для стоек и обрезную доску:

Для каркасной бани, где будет минимум три помещения, незатейливым фундаментом из бруса уже не обойтись:

По желанию, чтобы сэкономить строительные материалы, вы можете сделать предбанник отдельно, как пристроенную веранду, тогда внутри достаточно будет места для парилки и моечной:

А вот за рубежом довольно популярно каркасной строительство целых двухэтажных домов. Естественно, и фундамент здесь нужен надежный (об этом – ниже), и материал хороший:

Либо сделайте вашу баню более просторной по площади, вместо второго этажа:

Чем этот вариант лучше? Дело в том, что каркасные бани – самые пожаронебезопасные. И худший вариант, если во время возгорания вы с друзьями находитесь в бильярдной на втором этаже. Огонь поднимается быстро, и вам попросту придется прыгать в сугроб – на этот раз не из соображений здоровья и экстремизма после разгоряченных процедур. А вот если дело будет летом…
Этап II. Строим фундамент
Строительство самой простой каркасной бани своими руками обычно не требует предварительного изготовления фундамента ввиду ее легкости. Но, если вы не хотите, чтобы стены стали сыреть, тогда основание делать все-таки придется.
Деревянный брусовый: для мини-бани
Если ваша баня будет от силы 3х4, и стены с крышей планируются легкими, тогда вы можете поставить простой деревянный фундамент, закрепив его кольями по бокам:

Такой фундамент особенно хорош для капризных глинистых почв, которые не страдают избыточной влагой, но при этом сезонно подвижны.
Столбчатый: для высоких грунтовых вод
А вот для строительства на неравномерной и неоднородной почве, где грунтовые воды расположены довольно близко, больше подходит столбчатый фундамент:

Чтобы соорудить такой фундамент, вам не понадобится ни техника, ни дополнительная строительная бригада. Достаточно вооружиться буром, асбестовыми или пластиковыми трубами, и уметь замешивать цемент. После чего переходим к таким шагам:
- Шаг 1. Выравниваем участок.
- Шаг 2. Размечаем место расположение будущих столбов.
- Шаг 3. Бурим отверстия и делаем внизу каждого из них гидроизоляцию.
- Шаг 4. Постепенно заливаем бетон и аккуратно поднимаем трубу.
- Шаг 5. На отметке 20-30 см трубу закрепляем, ожидая застывания бетона, и армируем.
- Шаг 6. Как только застынет основание, заполняем трубу бетоном уже до конца.
- Шаг 7. Формируем ростверк – при помощи обычного крепкого бруса.
Экономично и просто, что и нужно для каркасной бани. А вот как выглядит дальнейшее строительство на таком фундаменте:

Фундамент из блоков: под легкую баню
Для бани средней архитектуры, где будет стоять тяжелая печь и ходить далеко не один человек, хорошо подойдет крепкий фундамент из блоков:

Но строить такой фундамент разрешено только на том грунте, где глубина промерзания не превышает одного метра.
Свайно-винтовой: для сложных почв
Без этого вида фундамента не обойтись, если вы строите солидную каркасную баню (или даже баню-дом), а глубина промерзания грунта находится низко. Тогда до более твердого основания придется добираться современными сваями. Это достаточно простая технология, и обычно можно обойтись рабочей силой четырех человек:
- Шаг 1. Размечаем места будущих свай.
- Шаг 2. Бурим отверстия нужной длины, которую рассчитываем исходя из полученных данных о грунте.
- Шаг 3. Ставим сваи и постепенно ввинчиваем их в землю.
- Шаг 4. Собираем и закрепляем обвязку.

Ленточный: для надежных почв
Если почва на участке пучинистая, то лучше остановить свой выбор на простом ленточном основании. Для того чтобы соорудить такой фундамент, нужно сделать вот что:
- Шаг 1. На выбранном месте проводится планировка, а по ней уже выкапывается траншея – шириной около 40 см и глубиной 50 см.
- Шаг 2. Траншею нужно заполнить песком до уровня земли и послойно утрамбовать, постоянно поливая водой для лучшей усадки.
- Шаг 3. Ставим опалубку – высотой 50 см и шириной – 30 см.
- Шаг 4. Основание в опалубке нужно армировать металлическими трубами и прутками – для прочности.
- Шаг 5. Теперь можно заливать бетон – либо за один подход, либо послойно, но не давая предыдущему слою успеть высохнуть.
- Шаг 6. Поверх всего нужно положить рубероид – для гидроизоляции каркасных стен.
Посмотрите фото, как это делается:

А вот как выглядит строительство небольшой каркасной бани на таком фундаменте:

О сборном ленточном фундаменте вам придется задуматься, если вы собрались строить достаточно большую каркасную баню:

Суть такого основания в том, чтобы создать максимально надежную опору на любом виде почв, кроме плавающих.
Этап III. Укладываем и утепляем полы
Коротко говоря, чтобы сделать полы в каркасной бане, к нижней части их лаг и в комнате отдыха, и в парилке, и в предбаннике нужно прибить бруски с сечением 5х5 см, а на них сверху – настелить доски чернового пола, затем – рубероид, и наконец – минеральные ваты толщиной 10 см либо пенополистирол. А уже под доски чистого пола следует для пароизоляции постелить пергамин:


В моечной же пол делать нужно иначе:
- Шаг 1. Так, для того чтобы в холодные времена он был всегда теплым и высыхал быстро, по всему его периметру нужно сделать обособленный фундамент.
- Шаг 2. Далее снять слой почвы на полметра, и в получившийся котлован засыпать гравий и песок на 10 см слоя. Если вода попадет в такой дренажный колодец, то уйдет в грунт, и приямка делать не нужно будет.
- Шаг 3. В качестве лаг такого пола лучше всего использовать асбестоцементные трубы диаметром 10 см, которые кладутся прямо на фундамент и заливаются бетоном – чтобы тот их удерживал от смещения.
- Шаг 4. Затем в моечной стелется обрезная округлая доска 4-5 см толщиной – на трубы, но с зазором 6-7 миллиметров с резиновыми прокладками, которые прибиваются гвоздями.
- Шаг 5. После всего этого пол можно прижимать плинтусами.
Более подробно – на видео:
Этап IV. Поднимаем стены
Итак, фундамент готов, и мы можем смело переходить к строительству стен каркасной бани. Как вы уже подметили для себя из наших схем, ничего сложного здесь нет.
Итак, еще перед тем, как начать строить стены, важно тщательным образом убедиться, что подготовленная древесина – хорошо просушена. А породы она может быть практически любой (кроме как из березы, которая быстро гниет) – липы, лиственницы или осины, теплопроводность у которых низкая, и строение на долгое время сохраняет свою форму. Причем для внешний обшивки лучше всего подходит именно сосна и лиственница, а для внутренней – любая другая порода дерева, наиболее целебной из которых является осина.

Снаружи все доски нужно будет по окончанию строительства покрыть антисептиком «Текстурол», а внутри вагонку желательно отшлифовать и покрыть в два слоя мебельным лаком. Кроме мойки и парилки, там целесообразна будет специальная пропитка.
Строим стены прямо на фундаменте
Итак, надежней всего сделать нижнюю обвязку из крепкого бруса, например, с сечением 10х10 см, соединив его в углах в четверть и хорошо скрепив гвоздями. Для того же, чтобы нижняя обвязка и установленные угловые стойки не смещались, их нужно ставить на штыри из стали по 2 см, которые вмурованные в бетон. Точно такой же брус можно использовать и для верхней обвязки. А для того, чтобы каркас бани получился достаточно жестким, по углам желательно поставить 8 раскосов.

По стенам теперь нужно установить промежуточные стойки из брусьев с тем же сечением – 10х10 см. И можно класть лаги для пола, в качестве которых хорошо подойдут спаренные доски с параметрами сечения 15х5 см, которые можно класть прямо на гидроизоляцию фундамента.
Поднимаем готовые стены
Иногда удобнее соорудить и скрепить каркасные стены на земле, а затем их просто поднять:

Чем конкретно удобнее? Хотя бы тем, что здесь нет необходимости работать руками выше головы, и они не так затекают. Плюс стены и фундамент можно строить одновременно, если вас работает несколько человек.
И уж точно удобнее поднимать готовые каркасные стены, если вы строите двухэтажную баню:


Этап V. Сооружаем стропильную систему
Балки перекрытия и стропила каркасной бани сооружать лучше всего из досок сечением 15х5 см, ставя их на ребро и скрепляя между собой. В итоге расстояние между стропилами должно получиться 10х12 см. В вертикальном положении их нужно фиксировать «косынками», а сверху – соединять между собой такого же сечения коньковым брусом. Балки же нужно выпустить наружу на расстоянии 40 см. А саму обрешетку для этого сделать можно из доски толщиной 25 см, укладывая ее прямо от конька.
А для скрепления стропильных ферм еще на земле сегодня используют специальные металлические пластины:

Согласитесь, ведь проще собирать стропильную конструкцию прямо на земле, после чего поднимая ее наверх и уже устанавливая готовой. Тем более, когда речь идет о каркасной бане.
И, наконец, в качестве кровельных покрытий больше всего подойдет мягкая черепица, если баня легкая и на условном фундаменте, и металлочерепица, если речь идет о более серьезной постройке.

Если у вас не будет чердака, тогда обязательно утеплите крышу снаружи:

Этап VI. Отделываем стены современными материалами
А теперь – к самой интересной части строительства каркасной бани. Мы ведь не оставим ее в ОСБ? Конечно, самое время подобрать для нее «шубу».
Но покраска краской и штукатурка – не единственные варианты внешней отделки, которую может иметь каркасная баня: отзывы опытных дачников говорят о том, что не важно, настолько простой является ее конструкция – извне ей вполне можно придать дорогой и шикарный вид. А современный строительный рынок предлагает море видов отделки для таких построек, самыми удачными именно для бани из них будут следующие.
Вагонка
Декоративная и имитационная вагонка – самое простое и доступное, чем можно обивать снаружи каркасные бани: такие сооружения получаются очень солидными, и их не стыдно показать знакомым и друзьям, приглашая на банный веник и барбекю на природе.
Располагать вагонку на внешней стене нужно горизонтально, и положив под обивку предварительно гидроизоляцию из пергамина. Крепите при этом цельные листы внахлест, проклеивая все края скотчем – важно тщательно проделать эту операцию, чтобы в бане не возникала ненужная влага.

Термопанели
Традиционная постройка каркасной бани все равно предусматривает обязательное утепление стен, так почему бы это не сделать с помощью термопанелей? По своей сути они представляют собой трехслойную конструкцию с утеплителем – минеральной ватой или пенопластом, заключенными между двумя ПВХ-слоями. Наружная их поверхность обычно выполнена в форме кладки и посыпана спрессованной каменной крошкой.
Сами панели при этом имеют взаимные пазы, а потому образуют монолитный рисунок каменной или кирпичной стены. А сделать такую отделку на бане можно самыми обычными саморезами, которые закрепят панели к профилям на фасадах.
Облицовочный кирпич
Кирпичная ровная кладка идеально вписывается в любой ландшафт дачного участка. И очень красиво она всегда смотрится на бане, причем обложить каркасную конструкцию кирпичом и выложить из него ее начисто – абсолютно разные вещи, как по трудозатратам, так и по цене. А еще между облицовочной кирпичной кладкой и деревянными каркасными стенами можно проложить дополнительное утепление, немного изменив традиционный «пирог», но ни в чем не проиграв.
Виниловый сайдинг
Сайдинг – самый легкий и самый популярный материал для обшивки каркасных бань. Стоит он не дорого, а в монтаже удивительно легок. Да и разнообразии цветов, текстур и толщины не может не радовать.
Блокхаус
Для тех владельцев, кто всю жизнь мечтал об красивой бревенчатой бане, но построил на участке пока только каркасную, есть хорошая новость – с помощью новейшего материала для отделки блок-хауса парную теперь снаружи отличить от настоящего сруба будет невозможно:

Этап VII. Утепляем и пароизолируем
Приступаем к внутренним работам. Типовое устройство каркасной бани таково, что самое страшное для нее – это скопление влаги в то время, когда внутри конструкции – высокая температура воздуха, а на улице – зима. Вот почему без пароизоляции не обойтись. Самый простой вариант – это полиэтиленовая пленка под внутренней вагонкой.
Особенно внимательно нужно подойти к процессу обшивки парилки. Здесь тоже необходима качественная пароизоляция – алюминиевая фольга, пергамин, пароизоляционная пленка и др. Но стоит помнить, что толь и рубероид в этом помещении при нагревании будут источать специфический запах.
Так, по совету опытных строителей утеплять стены каркасной бани лучше всего рулонной «Урсой», толщина которой – 50 мм. Закладывать ее следует между вертикальными стойками, прибивая попутно к ним рейки. В некоторых местах утеплитель можно и прибить к наружным доскам, но только специальными гвоздями с резиновой шайбой под головкой.
Если все сделать именно так, то получится такой слоеный пирог стен бани:
- вагонка наружная;
- пергамин;
- утеплитель;
- пленка полиэтиленовая;
- вагонка внутренняя.
Главное, чтобы внутри стен остался воздушный зазор в 5 см толщиной – это важно.

Но особенное внимание необходимо уделить парилке – здесь важен так называемый «эффект термоса». А потому теплоизолятор укладывать лучше фольгой внутрь помещения, причем в потолке нужно использовать не только фольгированную «Урсу», но и еще 5 см обычного утеплителя.
А стены и потолок парилки лучше всего отделывать целебной осиновой вагонкой, подойдут и тополиные или шпунтованные липовые доски.

И, наконец, технология строительства каркасной бани должна обязательно предусматривать качественную вентиляцию. Для небольшой бани вполне подойдет вытяжная труба из асбоцемента, диаметром 12 см – чтобы в парной не пахло плесенью. Саму трубу достаточно вывести до чердака, и во время банных процедур и горячей топки раскаленный воздух через щель в под дверью будет попадать в мойку, а вытяжной вентиляцией забираться через щели пола и тем самым ногам в этом помещении всегда будет тепло.
Главное – проявить фантазию и помнить, что бюджетная баня по каркасной технологии – не значит некрасивая или неуютная. В руках мастеров, как говорится, все спорится!
Оцените статью: Поделитесь с друзьями!stroy-banya.com
Фундамент каркасной бани руками + видео
Причина популярности возведения каркасной бани обусловлена быстрыми сроками строительства и возможностью выполнить работу собственными руками, без привлечения специалистов. Грамотно подобранный тип фундамента позволяет избежать трещин, перекосов и других деформаций постройки. Изучение факторов, влияющих на выбор основы, и ключевых этапов обустройства позволит правильно организовать выполнение поставленной задачи. Просмотр видео материала устранит пробелы в знаниях по интересующему вопросу.

Факторы, влияющие на выбор основы
Сравнительно легкий вес каркасной бани не освобождает от проблемы выбора подходящего фундамента для постройки. Какой фундамент будет закладываться под каркасную баню определяют два основных фактора: характеристика грунта и общий вес постройки. При изучении почвы обязательно учитывается ее несущая способность к вспучиванию. В большей степени это свойственно глинистой местности, менее всего вспучиванию подвержены хрящи и скалистые породы.
Закладка всех видов фундамента, за исключением плитного, осуществляется ниже уровня промерзания грунта. Поэтому применять ленточную технологию в большинстве случаев не имеет смысла. Чаще выбирают столбчатый фундамент или на винтовых сваях. Это относится к песчаным почвам, не склонным к усадке. Если планируется возводить каркасную баню на болотистой почве или склонной к вспучиванию, прибегают к обустройству плитной конструкции.
При планировании просторной каркасной бани или двухэтажной постройки, конструкции которых обладают значительным весом, следует задуматься о более прочном основании в форме ленточного фундамента.

Способы закладки фундамента
Рассмотрим подробнее характеристики разных типов фундамента, которые применяются при строительстве каркасной бани:
- Столбчатый. Оптимальный вариант для легкой конструкции бани ввиду низкой себестоимости при условии устойчивости грунта. В качестве столбов используется различный материал: кирпич, камень, бетон и железобетон, дерево. Иногда столбчатый фундамент обустраивают из асбестовых труб путем заполнения их бетоном.
- Разновидностью столбчатой технологии является свайно-винтовой фундамент, для закладки которого требуется бурение почвы. Дешевизна и легкость монтажа – главные преимущества метода.
- Основа для каркасной бани из плит обустраивается в случае большой просадки грунта. Редкое применение плитного фундамента объясняется дороговизной строительных работ.
- Ленточная технология – наиболее надежная из всех представленных способов. Она подходит для любого проекта каркасной бани и совместима с различными типами почвы. Существенные затраты – единственный недостаток предложенного варианта. Но высокое качество всегда требует финансовых вложений.
Разметка местности
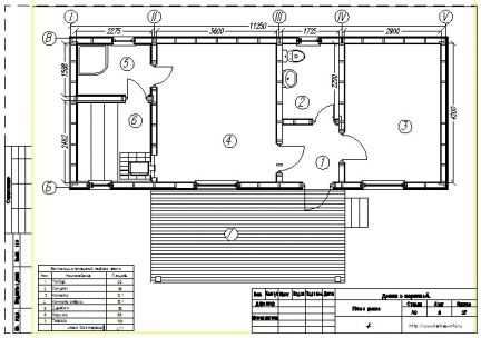
Независимо от выбранной технологии закладки основания для каркасной бани работа начинается с разметки местности. Все действия отталкиваются от существующего плана, в котором отражаются:
- размеры стен;
- внутренние перегородки, служащие опорой для крыши каркасной бани;
- расположение дверных и оконных проемов;
- планировка каркасной бани.
Основные шаги по разметке местности:
- Первоначально вбиваются колышки по внешним углам основания.
- Учитывая ширину фундамента, обозначают его внутренний периметр.
- С помощью веревок прокладывают внешние и внутренние очертания.

Столбчатая основа
Столбчатый фундамент – оптимальный вариант для каркасной бани, которая возводится на песчаной почве. Одно из многочисленных преимуществ метода – отсутствие необходимости возводить перемычки в промежутках между столбами.
Внимание! Глинистый грунт провоцирует неравномерную «усадку» столбов и деформацию всей постройки. Поэтому в такой местности столбчатый фундамент неприемлем.
Основные этапы строительства собственными руками:
- Фундамент для каркасной бани начинают обустраивать с разметки местности.
- Чтобы определить прямые углы необходимо изготовить прямоугольный треугольник на основе длинных досок, соединенных проволокой или веревкой.
- Промежуток между столбами зависит от общей массы конструкции каркасной бани. В среднем расстояние составляет 1,5-2,5 м. Опоры обязательно устанавливаются в местах пересечения внешних и внутренних стен.
- Размер столбов зависит от применяемого материала: для кирпичей он оставляет 50х50 см, при использовании бутобетона – 60х60 см. Легкая каркасная баня позволяет устанавливать опоры меньшим сечением.
- Глубина закладки столбчатого фундамента зависит от уровня промерзания грунта – столбы залегают ниже установленной отметки на 20-30 см.


При формировании столбов следует помнить, что бетон, каменная и кирпичная кладка устойчива перед сжатием, но практически не сопротивляется растяжению. Поэтому надежный столбчатый фундамент получается при строгом соблюдении вертикального уровня. Вариант обустройства подобной основы под каркасную баню предложен в следующем видео:
Свайно-винтовой фундамент
Разновидностью столбчатой основы под каркасную баню является свайно-винтовой метод, который еще называют буровым. Для подготовки полутораметровой ямы с помощью ручного бура потребуется всего 20 минут. Весь процесс включает следующие шаги:
- В грунте с обычной несущей способностью подготавливаются отверстия Ø 24 см.
- Труба из асбеста сечением 20 см помещается внутрь.
- Для выдержки вертикального уровня снаружи она уплотняется грунтом.
- Заливка бетонным раствором проходит в три этапа. Первоначально заполняют треть асбестовой трубы, после чего ее приподнимают, чтобы бетонная смесь сформировала расширенное основание сваи.
- На втором этапе обустройства свайно-винтового фундамента для каркасной бани смесь бетона заливают до уровня 10-15 см ниже верхнего края трубы.
- Раствор уплотняют, пронизывая металлическим прутом, затем фиксируют арматурный стержень.

В зависимости от окружающего климата, застывание проходит в течение недели, после чего можно переходить к монтажу каркасной бани.
Совет! При выборе свай уделите особое внимание качеству покрытия.
В целях экономии защитный слой бывает тоньше положенного. Это приводит к появлению царапин и быстрому развитию ржавчины. Проблема особенно актуальна для щелочных почв.
Материал, как возвести фундамент каркасной бани руками видео, представлен далее:
Ленточный фундамент
Основные преимущества ленточной основы для каркасной бани:
- Наиболее надежная основа, способная выдержать значительный вес конструкции бани.
- Ленточный фундамент применим на любом типе грунта.
- Усадка практически отсутствует.
- Риск деформации постройки минимален.
Весомые достоинства сопровождаются определенными недостатками:
- Расход строительных материалов заметно возрастает.
- Смета каркасной бани на ленточном фундаменте значительно превышает другие технологии.
- Требуется заказ спецтехники для доставки материалов и рытья траншей.
Толщина стен фундамента определяется в зависимости от используемого материала:
- обыкновенный бетон – 25 см;
- бетон-плитняк – 30 см;
- железобетон – 1 м;
- натуральный камень – 5 см.

Чтобы конструкция каркасной бани длительное время сохраняла первозданный вид, глубина залегания ленточного фундамента должна превышать уровень промерзания почвы на 20 см, но при этом быть не более 70 см. Существует две категории подобной основы – мелко заглубленный и заглубленный фундамент. Обычно для каркасной бани применяется первый вариант, средняя глубина залегания составляет 60 см.
Процесс обустройства ленточного основания для каркасной бани состоит из традиционных этапов:
- Формируется опалубка.
- Дно траншеи накрывается подушкой из щебня средней фракции и песка.
- Сверху «подушки» укладывается слой гидроизоляции.
- Затем переходят к монтажу армирующего пояса.
- Установленная арматура заливается бетонным раствором. Чтобы каркасная баня стояла на прочном фундаменте необходимо позаботиться об устранении пузырьков воздуха из бетонной смеси после заливки.
- Демонтаж опалубки проводят после полного застывания раствора из бетона.
Непосредственное строительство каркасной бани начинают после усадки фундамента.
Сделать качественное основание возможно при соблюдении всех рекомендаций касательно размера несущих опор, глубины установки и времени застывания. В противном случае существует риск преждевременного разрушения фундамента и деформации каркасной бани.
bouw.ru
Строительство каркасной бани своими руками
Каркасное строительство понемногу завоевывает популярность в нашей стране. По этой технологии давно строят дома в Канаде, США и Европе. Она давно отработана и надежна, экономична и не требует особых знаний и умений. Ко всему этому стоит добавить, что помещения, построенные по каркасной технологии, лучше сохраняют тепло, что позволяет быстрее протапливать баню и дольше сохранять температуру. Кроме того, каркасную баню можно построить своими руками. Это не займет много времени и потребует минимальных навыков в строительстве.

Один из видов каркасов для бани
Содержание статьи
Какой фундамент нужен под каркасную баню
Так как каркасная баня – легкое сооружение, то для нее достаточно сделать свайный фундамент. Если планируете двухэтажное строение, то необходимо будет ленточное основание.
Выбор материалов
Для изготовления каркаса используют сосновый брус. Его сечение может быть разным: 50*100 мм, 50*75 мм, 40*75 мм и т.п. Выбор пиломатериалов достаточно широк. Для наружной обшивки использовать можно как листовой материал: фанеру, OSB или ЦСП, так и вагонку или доски. Лучше для наружной обшивки бани выбирать материал, имеющий водоотталкивающую пропитку.

Каркас снаружи обшит листовым материалом
Если решили снаружи оббить баню досками, выбирайте хвойные породы, желательно сосну или лиственницу. Они лучше сопротивляются атмосферным явлениям. Набивать их нужно горизонтально, подложив для лучшей гидроизоляции рубероид, толь или любой другой материал с гидроизолирующими свойствами. Горизонтальное расположение досок придаст сооружению большую жесткость. Хороший вариант отделки – снаружи обшить листовым материалом, а поверх него для придания декоративности, оббить стены блокхаусом (снова, желательно лиственница или сосна). Такая баня будет выглядеть как изготовленная из цельных бревен.
Внутренняя отделка – преимущественно лиственные породы древесины. В таком материале не содержится большого количества смол. Лучше использовать липу или осину – они даже при высоких температурах воздуха не обжигают тело, остаются приятно-теплыми на ощупь и оказывают лечебное воздействие, выделяя содержащиеся в древесине фитонциды и ароматические вещества. Внутри бани вагонку монтируют вертикально, тщательно подгоняя планки одну к другой, или используя систему соединения шип-паз.
Как собрать каркас для бани
Общая схема такова: собирается каркас, его верхняя и нижняя обвязка. Монтируется стропильная система кровли, после чего проводят кровельные работы. Затем собранный каркас обшивается снаружи и внутри с одновременной закладкой утеплителя и пароизоляции.

Каркас одной из стен бани
1 – стойка каркаса
2 – верхняя обвязка
3 – нижняя обвязка
4 – ригель
5 – проем оконного блока
Каждая стена собирается отдельной рамой. Делают это на площадке рядом с баней: в зависимости от размеров и используемых материалов каркас стены может весить до 200 кг, что делает его транспортировку нелегким делом, потому выбирайте место для сборки как можно ближе к зданию бани. При сборке каркаса используют заготовленный ранее и выдержанный брус разного сечения.
Сначала собирают цокольную обвязку. Для этого берут брус 50*100 мм, обработанный антисептиком. Его выкладывают по внешнему контуру стен (на фундаменте), затем соединяют гвоздями. Горизонтальность цокольной обвязки проверяется при помощи уровня. Если есть небольшие отклонения, их нужно исправить: подложить в несколько раз свернутый толь, или куски досок, обработанных антисептиком.
Дальше собирают каркас для одной из стен. Для угловых стоек, верхней и нижней обвязки используют брус большего сечения. Промежуточные стойки по толщине должны соответствовать толщине утеплителя. Расстояние между стойками выбирают в зависимости от ширины утеплителя, оптимально – в районе 60 см. Над дверными проемами и под окнами делают дополнительные перемычки — ригели. Нужно сделать дополнительную стойку в тех местах, где рама будет соединяться с другими стенами или перемычками. Соединять между собой брусья можно гвоздями или специальными скобами. Собирая конструкцию, следите за геометрией, проверяйте углы и перпендикулярность стоек и обвязок.

Каркасное строительство — нет ничего проще
Собранный каркас стены устанавливают на цокольную обвязку, подложив на нее рубероид для гидроизоляции. Проверив вертикальность установки, раму закрепляют при помощи временных подкосов. Затем собирают каркас прилегающей стены, который устанавливают аналогично первому. Для обеспечения надежности монтажа верхние и нижние обвязки можно скрепить досками. Перед окончательным укреплением, проверяют правильность углов и вертикальность установленных каркасов, соединяют все части при помощи гвоздей или скоб.
Как сделать кровлю для каркасной бани
Стропильная конструкция собирается на земле и состоит из нескольких одинаковых элементов. Собранные фермы поднимаются и размещаются над стойками.

Для устройства кровли фермы собирают на земле, затем закрепляя их над стойками
Кровлю лучше сделать вентилируемой, для чего проложить специальную пленку, а обрешетку прибивать прямо к брусу. В качестве кровельного материала можно использовать ондулин – он не горит, имеет длительный срок эксплуатации, малый вес и отличные эстетические характеристики.
После того, как кровля готова, нужно смонтировать оконные и дверные блоки, а затем приступать к обшивке и отделке стен.
Внешняя и внутренняя обшивка каркасной бани
Монтировать наружную и внутреннюю обшивку можно одновременно. Обшить каркасную баню можно в таком порядке:
- внутренняя обшивка;
- пароизоляция;
- каркас;
- пароизоляция;
- утеплитель;
- гидроизоляция;
- внешняя обшивка и отделка.

Еще одни вариант обшивки каркаса
В районе парной для лучшей теплоизоляции и в потолок и в стены желательно добавить специальную фольгированную пленку, во всех остальных помещениях можно использовать пергамин. Если уложить рулонные материалы с битумной пропиткой, характерный запах будет в бане постоянно. А битум – это не тот аромат, который нужен для здоровья.

В качестве теплоизоляции парной лучше использовать фольгированную пленку
В качестве утеплителя желательно использовать минеральную вату. Она имеет отличные эксплуатационные характеристики и не горит, что в таком сооружении, как баня очень важно. Но используют также пенопласт, стекловолокно, арболит, древесноволокнистые плиты и т.п. Во время вынужденных перерывов в работе можно собирать и устанавливать каркасы внутренних перегородок, а затем приступить к их отделке.
Черновой потолок можно сделать из OSB (ОСП — Ориентированно Стружечная Плита) или любого другого материала с аналогичными характеристиками. Листы крепятся к балкам перекрытия. К ним подбивается утеплитель (некоторые советуют укладывать три слоя для лучшего сохранения тепла).
Что еще необходимо при постройке бани
Не забудьте, что для обеспечения пожарной безопасности желательно часть прилегающих стен сделать из кирпича. Также для печи большой массы потребуется специальный фундамент, а для того, чтобы обложить железную печь кирпичом, нужно будет сделать усиление пола в этом месте. При установке дровяной печи вам необходимо будет предусмотреть вентиляцию и дымоход. А также в любой бане нельзя забывать об особенностях устройства и гидроизоляции полов в бане.
В общем, особенностей много, но со всем можно при желании разобраться самостоятельно.
baniwood.ru
Фундамент для каркасной бани
Каркасное строительство набирает обороты с каждым днем. И причина его популярности понятна – соблюдая несколько несложных правил, возвести каркасную постройку можно в короткие сроки. Все чаще данный тип строительства используется и при возведении нежилых строений – таких, как, например, баня. Каркасная баня — прекрасный вариант для тех, кто хочет сэкономить не только время, но и средства. Однако до того как начнется непосредственно возведение каркаса, требуется заложить фундамент, который, как известно, является опорной конструкцией строения. Какой же вид фундамент наиболее пригоден для строительства каркасной бани?
Содержание:
Варианты фундаментов
- Плитный фундамент
Это вид фундамента наиболее часто используется, когда строительство производится на грунте с большой просадкой. Плитный фундамент достаточно дорог, поэтому при возведении такой легкой конструкции, как каркасная баня, его используют не часто. - Свайный (столбчатый) фундамент
Выгоден тем, что имеет низкую себестоимость. Именно такой фундамент часто применяется при строительстве зданий, которые имеют легкую несущую способность. Основной несущий элемент такого фундамента – свая (столб). Столб может быть изготовлен из различных материалов – из дерева, бетона, камня, кирпича или железобетона. В некоторых случаях используют также асбестовые трубы, служащие формой, которую впоследствии заполняют бетоном. - Ленточный фундамент
Несомненный фаворит в каркасном строительстве. Фундамент для бани из каркаса, несмотря на легкость конструкции, должен быть качественным и надежным. Ленточные фундаменты успешно используются при возведении строительных конструкций любого типа, для каркасной же бани они подходят идеально. Такой фундамент характеризуется тем, что имеет одинаковую (по всему периметру бани) форму поперечного сечения.
Ленточный фундамент
При всех своих преимуществах – надежности и массивности, ленточный фундамент имеет и некоторые недостатки – например, большой расход материала. Кроме того, возведение данного вида фундамента – процесс довольно трудоемкий.

Фундамент под каркасную баню будет представлять собой систему достаточно толстых стен, которые будут служить основой для будущей бани. Толщина стен рассчитывается индивидуально, в зависимости от того, какой материал будет использоваться:
- бетон-плитняк – 300мм;
- бетон – 250 мм;
- натуральный камень – 50мм;
- железобетон – минимум 100мм.
Существует несколько правил, которые необходимо выполнять для того, чтобы фундамент прослужил долго, а конструкция, возведенная на нем, была надежной и безопасной. Ленточный фундамент необходимо укладывать минимум на 20 сантиметров глубже границы промерзания грунта, но при этом глубина не должна составлять более 70 сантиметров.
Ленточные фундаменты делятся на 2 категории – заглубленный и мелкозаглубленный. При возведении каркасных бань используется мелкозаглубленный вариант фундамента — его глубина, в среднем, составляет 60см. Именно такая разновидность фундамента является оптимальным выбором при возведении каркасной бани.
Столбчатый фундамент
Несмотря на все достоинства ленточного фундамента, его применение более предпочтительно для кирпичных или блочных строений. Для деревянной бани специалисты рекомендуют выбирать столбчатый вариант основания, так как он дает существенную экономию материалов.
Преимущества такого фундамента особенно ясно видны при строительстве брусчатых, рубленых и особенно каркасных бань, которые не требуют устройства специальных перемычек в промежутках между столбами. Использование столбчатых вариантов фундамента на слабонесущих грунтах ограничено при возведении бань, имеющих стены из тяжелых конструкций. Сложности возникнут и при устройстве цоколя, но в банях, где нет необходимости устраивать цоколь, наилучшим решениемстанет устройство именно столбчатого фундамента.

Фундамент начинают строить с разметки на местности. Установку прямых углов проверяют с помощью прямоугольного треугольника, выполненного из веревки, проволоки или длинных досок.
Столбы должны располагаться так, чтобы между ними составляло 1.5-2.5 м. Изготавливают их из железобетона, бутобетона, бетона, кирпича, камня. Они обязательно ставятся под углами бани, под пересечениями стен, под стойками каркаса. Обычно бутобетонные столбы делают с размерами 60×60 см, а кирпичные – 50×50 см, но для легкой каркасной бани сечение столбов может быть уменьшено.
На глубину заложения столбов влияет глубина промерзания почвы – столбы должны залегать на 20-30 см под этой отметкой.
При сооружении столбов не нужно забывать, что кирпичная и каменная кладка, а также бетон хорошо противостоят сжатию, но плохо сопротивляются растяжению. Поэтому очень важно обеспечить вертикальность установки столбов.
Буровой фундамент
Такой тип фундамента является разновидностью столбчатого. Он широко распространен в силу простоты и скорости изготовления. Требуется порядка 20 минут на бурение скважины ручным буром на глубину 1.5 м, существенно экономятся материалы.
В грунте, имеющем обычную несущую способность, нужно просто пробурить отверстие с диаметром 24 см, поместить внутрь асбестоцементную трубу сечением 20 см, снаружи уплотнить ее грунтом, чтобы выдержать вертикальность, после чего залить бетонной смесью.
Сначала заливают примерно на треть высоты. Трубу немного приподнимают, чтобы бетон вышел и образовал уширенное основание сваи. Затем добавляют в трубу смесь так, чтобы она была ниже верхней части трубы на 10-15 см. Ее уплотняют штыкованием и вставляют стержень из арматуры. После этого опора готова, через 5 дней, когда бетон станет достаточно прочным, можно приступать к возведению на этом фундаменте каркасной бани.
Строительство фундамента – важнейший момент возведения бани. Здесь не нужно спешить. Только тщательное искрупулезное выполнение всех работ позволит создать качественное основание, на котором каркасная баня простоит много лет без необходимости проведения серьезного ремонта.
zarmon.net
