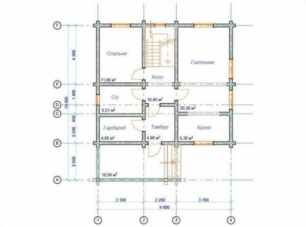
Этапы строительства дома из бруса
Строительство домов из бруса состоит из нескольких этапов, очередность и правильность выполнения которых необходимо соблюдать, не зависимо от того, решили вы построить дом из бруса самостоятельно или обратились к специалистам.
Основные этапы строительства дома из бруса:
- Проектирование дома из бруса;
- Строительство фундамента;
- Укладка первого венца и устройство чернового пола;
- Монтаж стен;
- Сборка стропильной конструкции и монтаж кровли;
- Монтаж дверей и окон;
- Утепление и отделочные работы;
Можно построить загородный дом из бруса для временного или постоянного проживания. Но учитывать способ эксплуатации необходимо заранее. В зависимости от назначения дома выбирают основной строительный материал, то есть брус. Для дачного домика подойдет брус сечением от 120 мм. Дом для постоянного проживания стоит строить из бруса сечением 200-220 мм. Стены из бруса такой толщины обеспечат сохранность тепла в вашем доме.
Возможно изготовление бруса и большего сечения, но это скорее эксклюзив, так как приводит к ощутимому удорожанию строительства. Итак после того как вы определились с условиями эксплуатации и выбрали подходящий материал, надо подготовить проект будущего дома из бруса.
Проект дома из бруса:
Для составления проекта надо определится с основными размерами дома. Следует помнить, что стандартная длина бруса 6 м, и для строительства дома длиннее 6 м будет нужна стыковка бруса по длине. Так же надо определиться с количеством этажей и комнат. Расположением дверных и оконных проемов, высотой стен. Выбрать конструкцию крыши и основные строительные материалы.

С учетом всех этих данных составляется проект дома. Проект потребуется для изготовления бруса, и последующего строительства дома. Поэтому следует ответственно отнестись к его составлению, чтобы избежать неразберихи в дальнейшем.
Строительство фундамента:
Дома из бруса можно возводить на мелкозаглубленном ленточном фундаменте. Так же могут применяться буронабивной или винтовой, свайные фундаменты. Выбор типа фундамента зависит от расчетной нагрузки и особенности грунта на участке. Если после изготовления свайного фундамента можно сразу продолжить возводить дом из бруса, то после заливки ленточного фундамента необходимо выдержать паузу, для набора фундаментом необходимой прочности. После подготовки фундамента можно приступать к укладке первого венца и устройству чернового пола.

Укладка первого венца и устройство временного пола:
На подготовленный фундамент под первый венец укладывают гидроизоляцию (рубироид). На первый венец приходится основная нагрузка в сочетании с повышенным воздействием влаги. Чтобы защитить венец и продлить срок его службы, под него часто подкладывают подвенечную доску сечением 200*50 мм. В качестве материала для подвенечного оклада как правило используют лиственницу.

На подвенечную доску укладывают первый венец. Подвенечный оклад и первый венец, в обязательном порядке должны быть тщательно обработаны антисептикоп. На торцах бруса размечаются и делаются запыли образующие паз на одном брусе и шип на другом (могут быть разной формы в зависимости от метода сборки). Они позволяют более точно соединять брус и исключить продувание углов дома при эксплуатации. В стыки прокладывается утеплитель.

Так же запиливаются места соединения периметра дома с перегородками. Одновременно со сборкой оклада и первого венца устанавливаются лаги. Лаги устанавливаются в уровень оклада если он выполнен из бруса. Или, в случае когда используется подвенечная доска, лаги могут быть установлены в уровень первого венца. По лагам настилается временный пол по которому можно ходить во время сборки сруба. В последствии временный настил убирают и стелят черновой, а затем и чистовой пол.
Монтаж стен:
На углах и по длине первого венца сверлятся отверстия под шканты или нагели в зависимости от применяемого метода сборки. Шканты и нагели позволяют связать венцы дома из бруса между собой и исключить выкручивание бруса. Производится последовательная сборка венцов дома. Каждый последующий венец начинают укладывать после завершения предыдущего. Между венцами стен прокладывают утеплитель, это может быть джут, пакля или мох.

Возле оконных и дверных проемов устанавливаются нагели, во избежании перекосов стены. Через большие пролеты пропускают целый брус, который выпиливают только после усадки дома, перед установкой окон и дверей. Целый брус предотвращает неравномерную усадку или деформацию стены с большими проемами. После сборки стен сруба, сверху устанавливаются и закрепляются балки перекрытия.
Сборка стропильной конструкции и монтаж кровли:
На закрепленных балках перекрытия, для удобства, делают временный настил, и приступают к сборке стропильной конструкции. Двускатная крыша с каркасными фронтонами является самым простым и экономичным вариантом крыши. Для изготовления стропил используют доску сечением 50*200 мм или 50*150 мм. Для каркаса фронтонов можно использовать ту же доску что и для стропил. Обшивается фронтон сайдингом или обрезной доской 25*150 мм.

Стропила собираются и устанавливаются вертикально, на расстоянии не более 1 метра друг от друга. К основанию стропила крепятся гвоздем в подготовленное отверстие, и для надежности стягиваются металлическими скобами или уголками. Для прочности, стропила можно соединить продольной балкой, или несколькими (на больших скатах). Сверху стропил устанавливается коньковая доска, и выполняется утепление крыши и набивка обрешетки (вид обрешетки зависит от выбранного кровельного материала).

На обрешетку скатов расстилается гидроизоляция и крепится кровельный материал. Если фронтоны не обшиваются сразу, то их тоже необходимо закрыть гидроизоляцией, чтобы дождь и снег не забивало внутрь дома. В таком состоянии дом из бруса оставляют на 1-2 года, для сушки и усадки. Только в домах из клеенного бруса можно сразу преступать к монтажу дверей и окон, и отделочным работам.
Монтаж дверей и окон:
После просушки и естественной усадки, можно приступать к монтажу дверей и окон. Непосредственно перед монтажом, дверные и оконные проемы подрезаются и на них устанавливается окосячка сверху и по бокам.

Между срубом и верхним косяком оставляют зазор 8-15 см, для усадки сруба, который заполняется мягким утеплителем (пакля, минвата). Верхний и боковые косяки могут скрепляться друг с другом, но не крепятся к срубу, чтобы не препятствовать его дальнейшей усадке.

В уже обрамленные косяками дверные и оконные проемы устанавливают двери и окна. После этого можно приступать к утеплению и внутренней отделке дома из бруса.
Утепление и отделочные работы:
Дом из бруса, при соблюдении технологий сборки довольно хорошо держит тепло, но чтобы сделать его еще более энергоэффективным, и исключить продувание, стены дома можно утеплить. Утепление можно производить как снаружи, так и изнутри. Для этого используют разные утеплители, но чаще всего минвату. Обязательно утепляют крышу и пол. Также обязательно использовать пароизоляционную подложку, чтобы избежать скопления конденсата в местах утепления, вызывающего интенсивное гниение дерева.

После утепления приступают к отделке. В дома из бруса можно использовать практически любые современные отделочные материалы. В санузлах после определенной подготовки можно укладывать плитку. Для стен и потолков, при отделке домов из бруса, часто используют натуральные материалы (вагонка, блок хаус). Иногда оставляя открытыми балки, в качестве декоративных элементов.
Заключение:
При соблюдении очередности этапов строительства дома из бруса и технологий их проведения, построенный дом будет долго радовать вас теплом и уютом, в неповторимой атмосфере, созданной естественным природным материалом.
Видео: Этапы строительства дома из бруса
xn--90ainkffluc.xn--p1ai
Технология строительства дома из бруса
Все более популярным становится строительство домов из бруса. Этот материал имеет ряд преимуществ, при возведении частного дома или дачи.
Стоит отметить, что для строительства дома из бруса не обязательно прибегать к помощи профессионалов. Небольшая теоретическая подготовка, а также умение пользоваться основными строительными инструментами гарантирует вам успех. Поэтому предлагаем вам изучить поэтапное строительство дома из бруса.
Этапы строительства дома из деревянного бруса
Технология возведения дома или коттеджа из бруса состоит из двух основных этапов, подготовительного и окончательной проверки. Между первым и вторым этапами должно пройти около шести месяцев, за которые дом «усаживается».
Подготовительный этап:
- создание проекта;
- проверка геодезической структуры территории;
- расчистка площадки;
- завоз и размещение материалов.
Первый этап:
- закладка фундамента;
- строительство стен;
- строительство крыши дома.
Второй этап:
- повторная конопатка строения;
- окончательная отделка;
- прокладка коммуникаций.
Последнее, что делается – это проводятся замеры сопротивления, которые показывают, был ли монтаж корректно произведен.
Давайте более тщательно рассмотрим поэтапное строительство дома из бруса, остановившись на каждом из этапов.
Подготовительный этап в среднем занимает месяц. В это время следует изучить геодезический характер территории, на которой будет возводиться дом. Основываясь на геодезических обмерах, документально фиксируется расположение будущего дома. В это время уже должен быть готов и утвержден проект дома.
После этого площадка под дом очищается от сорняков, деревьев и также различных бытовых построек (если они есть). Также подготавливается территория для материала и для временного жилья строителей. Когда все готово, можно приступать к первому этапу.
Не смотря на легкость конструкции, дому все равно нужен фундамент. После того, как залит фундамент, проводится монтаж стен первого этажа, потолков, если предусмотрено, то и монтаж второго этажа. Когда закончен полностью второй этаж, строится крыша, делаются внутренние перегородки. После этого, дом должен «усесться». Для такой легкой конструкции достаточно 6 месяцев, иногда и меньше.
После окончания указанного периода, можно перейти ко второму этапу отделки и прокладки коммуникаций. Стоит отметить, что дома из бруса не требуют дополнительной обработки ни внутри, ни снаружи, поэтому вы можете значительно сэкономить на штукатурке, грунтовке, обоях или краске.
После завершения второго этапа строительства, следует только проверить правильность монтажа здания и оно готово для эксплуатации.
Деревянные ступеньки
Второй этаж
Перегородка из бруса
Потолок в доме из бруса
Ступеньки в доме из бруса крупным планом
Фундамент дома из бруса
Профиль дома из бруса
Гидроизоляция фундамента
postroy-sam.info
Постройка дома из бруса: технология, этапы
Строительство дома является достаточно сложной процедурой. Однако в случае возведения постройки из бруса можно выполнить все этапы данного процесса самостоятельно. Для этого потребуется рассмотреть правила, инструкцию по выполнению строительства. При соблюдении всех норм и рекомендаций можно возвести прочный, долговечный объект.
Как создается постройка дома из бруса, следует рассмотреть перед началом работы. Это позволит выполнить все действия правильно.
Общая характеристика технологии строительства
Постройка дома из бруса (фото представлено далее) производится по особой технологии. Особенности древесины, из которой возводится здание, позволяют выполнить всю процедуру самостоятельно. Для этого не потребуется применять специальную технику. Также справиться с работой можно вместе с небольшим числом помощников (до 4 человек).

Из бруса можно построить самые разные сооружения. Это может быть небольшой дачный домик, который эксплуатируется в летнее время, или большой коттедж, в котором постоянно проживают люди. Из бруса можно построить здание не выше 3 этажей. При этом специалисты рекомендуют выбирать проекты зданий, которые не отличаются сложной конструкцией. В противном случае создавать дом будет сложно. Можно допустить ошибки.
Брус является более предпочтительным стройматериалом, чем бревно, при самостоятельном строительстве. Он имеет прямоугольную форму. Поэтому стены будут идеально ровными. Финишная отделка будет выполняться проще. Брусья плотно прилегают друг к другу, что позволяет избежать появления мостиков холода.
Постройка дома из деревянного бруса позволяет добавить в проект дополнительные элементы конструкции. Это может быть веранда или терраса. Также можно предусмотреть наличие балкона. Они гармонично впишутся в общий стиль постройки.
Дом из бруса может выглядеть очень современно и стильно. Также из этого материала можно создать избушку в этническом стиле. Выбор проекта зависит от вкусовых предпочтений хозяев дома. Самостоятельно проще возводить одноэтажные коттеджи. Это позволит значительно сократить период проведения работы.
Проведение строительных работ может быть в любое время года. Однако в летний период это будет выполнить целесообразнее. Существуют определенные требования к выбору и применению натурального материала, которым является древесина.
Особенности материала
Для постройки дома из бруса своими руками применяются разные типы материалов. Древесина в этом случае может быть разных пород. Брус для строительства может быть клееным, обычным или профилированным. Выбор зависит от особенностей проекта, а также бюджета строительства. Представленные материалы отличаются стоимостью.
Клееный брус представляет собой материал, собранный из досок. Из этих элементов создается строительный материал определенного профиля. Это относительно недорогой тип бруса, который сегодня часто применяют при строительстве домов.
Следует сказать, что длина любой разновидности бруса значительно превышает размер его поперечного сечения. Они отличаются определенными стандартизированными габаритами.

Обыкновенный брус является откалиброванным бревном. Его поперечное сечение может быть квадратным или прямоугольным. Из такого материала возводить дома достаточно просто. Также подобные здания легко утеплять.
Самым современным и дорогостоящим материалом является профилированный брус. Его поверхность отшлифована. Она внешним видом напоминает поверхность вагонки. Такой брус позволяет возводить максимально долговечные постройки. В этом случае между элементами конструкции не будут образовываться очаги гниения. Влага не может проникнуть между плотно прилегающими брусьями.
Одним из важных этапов строительства является создание проекта постройки дома из бруса. Это позволит определить, сколько нужно материалов для постройки дома.
Проектирование
Прежде чем приступить к возведению здания, нужно грамотно создать план постройки дома из бруса. Эту работу лучше доверить профессионалам. Неподготовленный человек может допустить массу ошибок при расчетах. Это не позволит безопасно эксплуатировать постройку.

Чтобы иметь представление о том, как составляется проект дома, следует рассмотреть эту процедуру обзорно. Сначала специалист выезжает на участок, где планируется возводить коттедж или дачу. Далее он определяет геодезические особенности местности. В некоторых случаях нужно оценить, как близко подходят подземные воды к поверхности. Также оценивается степень неровности рельефа.
Далее определяется, какие коммуникации подведены к участку и есть ли возможность и потребность обустроить, например, газопровод, централизованный водопровод и т. д. После этого разрабатывается проект дома. Постройка может быть одноэтажной или состоять из двух этажей. Из бруса чаще строят невысокие коттеджи.
В некоторых проектах предусмотрена вместо второго этажа мансарда. Определяется размер оконных, дверных проемов. Также в план могут быть добавлены дополнительные пристройки (баня, гараж, погреб). Можно предусмотреть наличие просторной террасы или закрытой веранды.
Правильный расчет постройки дома из бруса позволит создать прочное здание. При этом специалист рассчитает вес такого здания, даст рекомендации о выборе типа фундамента, материалов для отделки и т. д. Это позволит создать прочное, долговечное строение.
Фундамент
Создав план строительства, можно точно определить, сколько нужно бруса для постройки дома. Далее можно провести закупку в соответствии с потребностями проекта. Когда все стройматериалы, коммуникации и прочие материалы будут приобретены, можно приступать к строительству дома.
Сначала создается фундамент. Следует сказать, что вес конструкции будет достаточно большим. Поэтому важно создать прочный фундамент. Существует несколько видов основ для дома. Если в проекте предусмотрено обустройство подвала, погреба, следует создавать ленточный фундамент.
Прежде чем приступить к строительству, проводят георазведывательные работы. Если грунт илистый, подземные воды близко подходят к поверхности, фундамент должен быть свайного типа. Сваи ввинчиваются в почву на большую глубину. Это позволит сохранить устойчивость постройки. Такой вариант фундамента подойдет для почвы, которая промерзает на большую глубину.

Для небольших конструкций (например маленький дачный домик) можно остановить выбор на плиточном фундаменте. В этом случае его поверхность будет основанием для обустройства пола.
Постройка дома из деревянного бруса требует создания соответствующего фундамента. Ленточные его разновидности будут оптимальным вариантом для габаритных сооружений. Его вполне можно создать без применения спецтехники. Это наиболее часто встречающийся тип фундамента в частном строительстве.
Подготовка к созданию фундамента
Рассматривая этапы постройки дома из бруса, следует особое внимание уделить возведению фундамента. От его качества зависит безопасность, долговечность будущего здания. В соответствии с составленным ранее планом нужно нанести на участок разметку. Отмечают как наружные стены, так и внутренние перегородки, которые будут несущими.
По созданной разметке выкапывают траншеи. Ширина их должна быть больше на 100 мм, чем стены дома. Траншеи должны иметь глубину не менее 60 см. Если уровень промерзания грунта еще больше, их потребуется дополнительно углубить. Если в доме будет подвал, потребуется вырыть котлован. Для погреба достаточно будет выкопать яму в соответствующем месте.

На дне выкопанных углублений нужно создать песчаную подушку. На нее насыпают слой гравия. Каждый из этих слоев должен иметь толщину не менее 100 мм. Песок и гравий аккуратно разравнивают. Также нижний слой потребуется увлажнить и утрамбовать. Далее нужно применять бетонную смесь. В специализированных магазинах можно приобрести готовые составы. Их просто разводят с водой до нужной консистенции. Слой бетона должен составлять не менее 5 см.
Постройка дома из профилированного бруса или иных его разновидностей предполагает при обустройстве фундамента создать опалубку перед заливкой бетона. Для этого потребуется подготовить доски толщиной около 2,5 см. Из этого материала сбиваются щиты. Они должны возвышаться над уровнем траншеи на 40 см. Специальные распорки позволят конструкции не двигаться.
Фундамент нужно армировать при помощи металлических прутьев. Их сечение должно составлять не менее 10 мм. Их располагают вдоль и поперек в соответствии с конфигурацией траншей. Прутья в местах поворотов и пересечений крепят при помощи вязальной проволоки.
Армировка и опалубка не должны соприкасаться. Между ними оставляют промежуток не менее 5 см.
Заливка фундамента
Технология постройки дома из бруса предполагает выполнение правильной процедуры заливки фундамента. После проведения подготовительных работ нужно замешать бетон. Его марочность должна быть не ниже М400. Смешать цемент с водой нужно в пропорции, которую указал производитель на упаковке.

Специалисты рекомендуют приобретать специальные сухие смеси. В отличие от самостоятельно приготовленных растворов такие материалы имеют в своем составе специальные компоненты. Они увеличивают эксплуатационные показатели бетона. Он становится не подверженным перепадам температуры, заливается без образования пустот и т. д.
Чтобы замешать цементную смесь, нужно применять бетономешалку. Когда будет получена требуемая консистенция раствора, его заливают в подготовленную опалубку при помощи насоса. В бетоне не должны появляться пузырьки воздуха. Для этого рекомендуется приобрести специальное оборудование. Оно при помощи вибрации сделает слой однородным.
В процессе постройки дома из клееного бруса или иных разновидностей этого материала важно уделить созданию фундамента большое внимание. Цементная смесь высыхает около месяца. При этом периодически поверхность бетона нужно увлажнять. Это позволит избежать его растрескивания. Периодичность этого процесса зависит от времени года и температуры окружающей среды. Только при правильном высыхании бетон наберет требуемую прочность.
Возведение стен и крыши
Постройка дома из клееного бруса, а также профилированной или обычной его разновидности требует разных трудозатрат. Это связано с особенностями его обработки. Если применяется брус из цельного древесного массива, потребуется обпилить его со всех сторон. После этого получится материал с ровными поверхностями.

Профилированный брус не потребуется подгонять по размеру. Он имеет в своей конструкции пазы. С их помощью производится крепление. Брус должен иметь нормальную влажность. В противном случае он растрескается при высыхании. Клееные разновидности практически не подвержены усадке.
Обработка дома из бруса после постройки не потребует много усилий. Материал отличается природной красотой фактуры. Поэтому дополнительных работ по шпаклеванию не требуется.
Когда будут созданы стены, можно приступить к монтажу кровли. Для этого нужно смонтировать стропильную систему. На нее укладываются гидроизоляция и теплоизоляция. Верхний слой выполняется из специальных кровельных материалов.
Кровля должна иметь определенный уровень наклона, который соответствует климатическим условиям местности. В зависимости от этого показателя выбирают и отделочные материалы. Это может быть ондулин, профнастил, металлочерепица, шифер и т. д.
Окна, пол, дверные проемы
Постройка дома из бруса своими руками позволяет создать оконные и дверные проемы такими, какие захочет собственник недвижимости. Это нужно обговорить с проектировщиком. Можно выбрать тип дверей. Они могут быть раздвижными, арочными, обычными. Окна могут быть панорамными или обычными.
Обустраивая пол и потолок, нужно обязательно смонтировать слой гидроизоляции. Этот материал укладывают на основание еще до его заливки. Для этого приобретают рулонную, проникающую, обмазочную или заливную гидроизоляцию. Выбор зависит от особенностей эксплуатации постройки.
Также нужно не забыть выполнить гидроизоляцию в подвале, на цокольном этаже. Далее можно приступить к отделке пола. От выбора материалов зависят эстетические качества помещения. Пол должен сочетаться с общим интерьером. Поэтому его нужно продумать заранее.
Пол можно отделать при помощи деревянных досок (паркет, паркетная доска), пробковых панелей, ламината, плитки. Также можно застелить бетонное основание ковролином или линолеумом. Каждый из перечисленных материалов отличается стоимостью и эстетичными характеристиками.
Согласно отзывам экспертов, в деревянном доме лучше всего смотрится пол из досок или ламината. Для современных стилей интерьера можно выбрать иные разновидности материалов.
Отделка дома
Постройка дома из бруса профилированного типа не требует дополнительной отделки. Это красивый, прочный и надежный материал. Если же при возведении здания применяется простой брус, после установки окон и дверей нужно уделить внимание последующей отделке.
Деревянные брусья могут со временем усесть. Этот процесс менее заметен при использовании клееной разновидности. Но если при строительстве применялись простые брусья, нужно подождать, пока древесина полностью просохнет.
Отделку можно выполнять как снаружи, так и изнутри здания. Если применялся простой брус, нужно законопатить щели. Это снизит теплопотери дома. Со временем может потребоваться обустроить слой теплоизоляции. Для этого рекомендуется применять минеральную вату. Утепление можно делать и изнутри помещения. Однако в этом случае нужно учесть множество нюансов. Снаружи выполнить утепление целесообразнее.
Древесину внутри дома не нужно будет грунтовать, красить, клеить на стены обои. Это красивый природный материал, достоинства которого просто потребуется подчеркнуть. Для этого проводится правильное тонирование бруса.
Беленая древесина будет гармонично смотреться в сельском интерьере. Если декор выбран в стиле прованса, можно отдать предпочтение пастельным тонам. Потолок также следует правильно отделать. Можно выбрать тон для балок. Это также подчеркнет непередаваемую атмосферу внутри деревянного дома.
Завершение строительства
Постройка дома из бруса завершается обустройством систем жизнеобеспечения. В первую очередь нужно продумать тип канализации и водопровода. Эта система может быть централизованной или автономной. Второй вариант нужно выбирать, если к участку не подведены канализационные и водопроводные трубы.
Для создания источника воды потребуется вырыть скважину. Эту работу лучше доверить специализированным организациям. Канализация может представлять собой септик. Сегодня существует множество разновидностей подобных систем. Выбор типа септика зависит от количества проживающих в доме людей, а также бюджета строительства.
После создания канализации и водопровода к дому нужно подвести электричество. С поставщиком энергоресурсов к дому потребуется заключить договор. После этого от ближайшего столба линии электропередач к дому подводят кабель. Его можно проложить в земле или протянуть по воздуху.
Если в доме планируется проживать и в зимний период, нужно продумать систему отопления. Выбор зависит от особенностей подачи и стоимости энергоресурсов, которые доступны для данной местности. Можно расставить в помещениях конвекторы или сделать систему теплого пола.
Отопление может быть обустроено от котла. Также можно создать печной тип обогрева помещений. Энергоресурсами, которые позволят согреть дом зимой, могут быть твердое, жидкое топливо, газ, электричество.
Также в доме нужно продумать качественную систему вентиляции. Ее разрабатывает проектировщик еще на этапе планирования строительства.
Рассмотрев, как производится постройка дома из бруса, можно выполнить всю работу своими руками.
fb.ru
Поэтапное строительство дома из бруса
Некоторые строительные материалы, хотя и обладают прочностью и долговечностью, не могут создать в доме позитивный микроклимат. Однако люди используют их из-за их дешевизны. А вот те, которые заботятся о здоровье, предпочитают дома из натуральных материалов. Конечно, камень не может обеспечить достаточной теплоизоляции, поэтому чаще всего используют дерево.
Достоинства клееного бруса
Так как строительные технологии шагнули далеко вперед, современные дома из бруса, полностью отвечают всем требованиям комфортного жилища. Это не простые избы, как было раньше, а комфортабельные коттеджи. Самым лучшим материалом, из которого строят деревянные дома, является клееный брус. Это современный строительный материал, который состоит из склеенных полос древесины, которые склеены между собой. Благодаря этому, такой брус не подвержен деформации, как обыкновенное дерево. Таким образом, в стенах не появляются трещины и зазоры, и дом при должной обработке, будет надежным и долговечным.
Этапы строительства дома
Начинается строительство домов из бруса с выбора проекта. Так как дом должен быть удобным, и соответствовать нужной площади. Ведь семье с несколькими детьми, нужно намного больше пространства, чем просто молодой паре. Также молодой паре стоит подумать над тем, сколько они собираются завести детей, чтобы заблаговременно подготовить для них комнаты. В этом вопросе, вам легко может помочь эксперт компании, у которой вы будете покупать дом, так как у каждой компании есть разные проекты деревянных брусовых домов, которые подойдут для любого клиента.




После выбора проекта, начинаются подготовительные работы. А это планировка и обустройство фундамента. Так как дерево легкий строительный материал, оно не требует очень прочного фундамента. На участках со специфическим рельефом можно использовать даже столбчатый фундамент.
Следующим этапом станет возведение стен. Так как клееный брус является стандартным, и производится согласно размерам. Поэтому строительство стен, напоминает игру в детский конструктор.





Утепление стен



Когда стены готовы, то возводится крыша. Очень часто в деревянных домах делают мансардные этажи, что позволяет значительно расширить полезное пространство в доме. Для крыши желательно использовать легкие кровельные материалы, однако клееный брус может выдержать даже натуральную черепицу.



Последнее, это нанесение на стены защитного покрытия. Стены пропитывают антисептическими и водоотталкивающими пропитками, а также покрывают лаком. Это позволяет продлить срок эксплуатации бруса, а также надолго сохранить его первозданный вид.
Выбор исполнителя работ
Так как построить дом из клееного бруса самостоятельно, практически невозможно, то для его изготовления и монтажа, нужно будет обращаться в строительную компанию. Например компания Модуль Древ — она имеет современное оборудование, а также работает на территории почти всей страны. Поэтому если вы хотите иметь качественный деревянный дом, вам стоит обратиться именно сюда.















www.alimpia-mebel.ru
Технология строительства дома из бруса поэтапно в схемах.
Технология строительства дома из бруса, схема, инструкция сборки, постройка в картинках и фото поэтапно.Данный раздел создан, что бы наглядно понять в картинках на схемах, как строится дома из бруса шаг за шагом. Описание к фото будут минимальны, так картинки информативны и понятны и специально были разработаны с нуля для нашей компании. Такой инструкции по сборке брусового дачного дома вы ни где не найдёте.
Для начала ознакомьтесь с общей информацией по технологией постройки дома, дом с мансардой в разрезе

При строительстве дома из профилированного бруса предлагаем 3 типа фундамента:
1. Столбчатый (на фото)
2. Свайный(винтовые сваи)
3. Ленточный бетонный

Свайно-винтовой фундамент загородного дома

Ленточный бетонный армированный фундамент, применяют для капитальных домов под пмж

Сруб дома из профилированного бруса, смотрите подробную схему

При сборки дома применяют два основных вида угловых соединений:
1. Тип рубки угла в «шип-паз»
2. Тип рубки угла в «пол дерева»
Тип рубки угла в шип-паз(второе название «тёплый угол»)

Тип рубки угла в «пол дерева»

Устройство пола 1 этажа, конструкция представляет, так называемый слоенный пирог

Монтаж венцов сруба осуществляют на два вида нагелей:
1. Деревянные нагеля (на фото)
2. Металлические нагеля

Сборка рядов бруса между собой на металлические нагеля (гвозди 200мм)

Возможны различные варианты профиля бруса и его размера:
1. Размер 140×90мм (для дачных и сезонных домов)
2. Размер 140×140мм (оптимальный вариант)
3. Размер 140×190мм (для домов под пмж)
Обсадные бруски (ройки) в оконные и дверные проёмы для предотвращения негативных воздействия усадки

Компенсатор усадки винтовой в столбы и опоры открытых террас, веранда и крылец

В двухэтажных домах с мансардой применяют два основных типа конструкции крыш:
1. Ломанная крыша (ломанный тип крыши), ниже на фото
2. Двухскатная крыша (двухскатный тип крыши)

Двухскатная крыша садового дома

Устройство мансарды(второго этажа) жилого дома

Схема монтажа кровельного пирога крыши в разрезе
Если у вас остались вопросы, ознакомьтесь с [технологиями в фото] Смотреть реальные [фоторепортажи] со стройплощадок [на главную]
pestovodom.narod.ru
Самостоятельное строительство дома из бруса
Брус является функциональным и не содержит вредных компонентов для построения дома, экономный и легкий в установке. Благодаря этим отличным качествам, брус часто используют для строительства домов. Методология, применяемая во время строительства подобных домов, довольно простая, а также не требует существенных затрат и доступна даже не профессиональным строителям.
Чтобы понять, как строится каркас, рассмотрим последовательность строительство дома, обращая внимание на маленькие нюансы. Брус применяют только для строительства дома, не выше трех этажей.
Правильный строительный материал
Чтобы правильно соорудить дом из бруса своими руками, первоначально, следует уделить особенное внимание виду выбранного материала. Насколько хорошо подобран брус, напрямую зависит методология строительных работ. Построение дома из бруса занимает большое количество времени, но потратиться придется немного больше.

Клеенный брус для строительства
Чтобы склеить брус, применяют особенную клеевую основу, который не препятствует проникновению воздуха через дерево. Строить дом из бруса своими руками, то не лишним будет узнать о возведении фундамента для сооружения. В качестве бюджетного варианта можно выделить сооружения из бруса. Но у таких домов есть существенный недостаток: они нуждаются в довольно долгой усадке каркаса. И исключительно после этой процедуры можно будет приступать к установке крыши.
Разработка проекта
Прежде чем приступать к строительным работам, требуется точно определить размеры сооружения и его площадь, сделать проект и рассчитать число нужного материала. Важно учесть толщину материала. Обычный размер сечения составляет от 100 на 100 до 200 на 200 миллиметров.

первый этап строительство каркасного дома — разработка проекта
Однако наиболее распространенным и легким в установке называют брус, сечение которого составляет 150 на 150 миллиметров. При проектировании стоит учесть нормальную длину бруса – 6 метров. Таким образом, когда одна сторона планируется более 6 метров, то брус стыковывают относительно длины.
Укладывание основы и пола
Строительные работы начинаются с возведения нижней обвязки, выкладываемую на ровный фундамент, предварительно обработанный специальной гитроизоляцией. Для внешних стен применяется брус, сечение которого составляет 150 на 150 миллиметров, а для пола и перегородок внутри дома – 100 на 50 мм. По окончанию укладки первый слой обязательно обработать специальным раствором-антисептиком, потому что этот слой наиболее подвергается деформации.

Строительство бытовки — установка опорного бруса и монтаж начальной обвязки
Фундамент — наиболее трудоемкий производственный процесс. От того, насколько качественно сделан фундамент, зависит прочность сооружения в общем. Для того чтобы сделать правильный выбор фундамента следует учесть некоторые параметры:
- провести исследование грунта;
- рассчитать размеры здания и уровень нагрузки на фундамент;
- особенные характеристики проекта.
На втором этапе монтируют лаги пола, лучше всего класть ребром.

Монтаж лаг пола на опорный брус
На лаги стелют предварительный пол, покрывающийся со всех сторон теплоизоляционным материалом. Для этого подбирают брус, сечение которого составляет 250 на 150 миллиметров.

Схема утепления пола для дома
На третьей фазе выстилают окончательное покрытие из предварительно выбранного материала. Технология строительства дома из бруса достаточно простая, её только следует внимательно изучить.
Стены
Построение стен по-другому можно назвать поочередным выкладыванием рядов. Материал закрепляется нагелями – штырями, используемыми для вертикального подсоединения. Он не дает смещаться и скручиваться материалу. Нагеля производятся из металла или дерева. Первый вариант наиболее надежный, но относительно цены — дороже, нежели деревянные. Монтаж нагелей проходит по методу: 2-3 ряда через каждый. Чтобы это сделать, нужно просверлить отверстия, диаметр которых должен быть 3-4 сантиметра, куда нагеля входят без особенного труда.
Дистанция между креплениями не должно превышать 1,5 метра. Помимо этого, между слоев закладывают уплотнитель, это, как правило, пакля или же льноджутовое полотно. В стыках внешних стен лучше всего из одного бруса вырубить шип нужной формы, а в ином — паз с подобными размерами. Разные ряды бруса чередуют пазами и шипами. Этот метод дает возможность для получения жесткой установки, а углы становятся не продуваемыми.
Когда строится дом в 2 этажа, то стены поднимают на 1200-1500 миллиметров, зависимо от угла планируемой крыши. Для монтажа применяют брус сечением 100 на 150 миллиметров. Установка перегородок производится исключительно по окончанию строительства сруба сооружения. При строительстве 2-х этажного здания с шириной пролета больше 6 метров, должна быть минимум одна перегородка на 1 этаже, которая будет прибавочной основанием для пола на 2-м этаже. Если есть необходимость сократить издержки, то перегородки внутри можно возвести каркасные. Для изоляции от огня полностью дом обрабатывают антипиреном. Достаточно будет нанести при помощи пульверизатора.
Покрытие крыши
Чтобы покрыть крышу возможно применять разнообразные материалы. Существует одно основное правило: изначально следует произвести теплоизоляцию, и только после этого устанавливать кровельный материал.
В первую очередь необходимо выстроить конструкцию из бруса, которая служит опорой крыши. Она обязательно должна укрепляться при помощи стоек, ригелей и раскосов. Для предотвращения возникновения конденсата требуется осуществить пароизоляцию с использованием гитроизоляции.
Системы коммуникаций
При разработке проекта особенное внимание уделяется созданию удобных условий для проживания в дома из бруса. Это обогревание сооружения, подача воды и отвод стоков. Сделать самостоятельную систему обогрева не тяжело, но работа в указанном направлении возможна только после установки проемов.
Выбор отопительных систем напрямую зависит от систем, которые расположены рядом. А вот чтобы оборудовать сток необходимо оборудовать септик.
domikarkas.ru

