чертежи, порядок сборки и видео работы
Одним из способов предварительной подготовки цемента, песка и других сыпучих составляющих, использующихся для приготовления строительных растворов, является их просеивание через сито с различными размерами ячеек.
Для того, чтобы механизировать этот процесс и облегчить работу, можно изготовить механическое устройство с электроприводом. Подобный механизм будет особенно актуален в случае необходимости приготовления большого количества строительных смесей из сыпучих материалов.
Такое устройство называют виброситом или виброгрохотом. Оно имеет достаточно простую конструкцию, а потому вибросито своими руками сделать совсем несложно.Общее устройство конструкции
Изготовление виброгрохота для песка или щебня не потребует большого количества времени. Описание конструкции вибросита предусматривает наличие следующих элементов:
- несущая рама, на которой расположены и закреплены все остальные детали и узлы;
- электропривод, в качестве которого может быть использована электропила, лобзик или дрель;
- внешний ящик (рамка) без дна, установленный на закрепленные мебельные ролики;
- направляющие рельсы из металлического уголка для передвижения по ним роликов;
- вкладываемый ящик с дном из металлической сетки;
- желоб для транспортировки просеянного материала в сборный бункер;
- устройство для регулировки скорости вращения электродвигателя.
Транспортирующий желоб проще всего изготовить из фанеры, но металлическая конструкция будет намного надежнее, особенно в случае просеивания гравия или других крупнозернистых материалов.
Устройство регулировки скорости вращения может быть уже предусмотрено в конструкции электродрели или лобзика. В этом случае отдельный внешний регулятор не понадобится.
Принцип работы вибросита для сыпучих материалов заключается в передаче поступательных движений от электроинструмента на раму с закрепленным ситом. После просеивания материалов внутренняя деревянная рама с ситом поднимается и ненужный отсев сбрасывается.

Необходимые материалы
Для изготовления рамы, двух ящиков и других элементов механизма, вам потребуются:
- деревянные бруски 60х70 мм;
- фанера толщиной 20 мм;
- 6 резиновых или пружинных амортизаторов;
- 4 или 6 мебельных ролика с крепежной рамкой;
- рояльная петля длиной не менее 500 мм;
- металлические уголки для направляющих рельс;
- металлически пластины или полоса для укрепления деревянных деталей конструкции;
- саморезы, болты и гайки.
Следует обратить особое внимание на прочность рояльной петли, поскольку при отбрасывания отсева на нее будут приходиться значительные механические нагрузки.
Размеры основных конструктивных элементов
Перед началом сборки вибросита для песка рекомендуется начертить сборочную схему или простой сборочный чертеж. Это упростит сборочные работы и поможет определить порядок их выполнения.

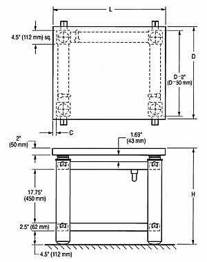
Рекомендуемые размеры несущей рамы (основания):
- длина 1400 мм;
- ширина 600 мм;
- высота 850 мм.
Длина внешнего ящика без дна должна быть равна половине длины несущей рамы. Ширина на 100 мм меньше ширины основания, глубина — не менее 120 мм.
Размеры внутреннего ящика с дном из сетки должны обеспечить его простую выемку из внутренней рамы для свободного опрокидывания и освобождения от скопившегося отсева. Внешний и внутренний ящик соединяются по короткой стороне рояльной петлей, в результате чего существует возможность подъема и опрокидывания внутренней конструкции.

Порядок сборки
Изготовление вибросита начинается со сборки несущей рамы из деревянных брусков в соответствии с чертежом. Для повышения прочности конструкции, соединения деревянных деталей рекомендуется сделать с укреплением металлическими уголками и пластинами.
После этого с внутренней стороны рамы основания необходимо закрепить направляющие рельсы в качестве опоры для движения мебельных роликов. Направляющие уголки скрепляются между собой в единую конструкцию при помощи поперечно установленных деревянных брусков. Для снижения уровня вибрации во время работы между уголками и направляющими необходимо установить 6 или 8 резиновых амортизаторов.
Для закрепления привода для вибросита из электродрели, лобзика или пилы, с одной стороны верхней части опорной рамы необходимо предусмотреть наличие площадки, соответствующей размерам электроинструмента.
После сборки опорной рамы изготавливается и устанавливается желоб из фанеры. Обработанный материал будет по нему поступать в емкость для сбора. Желоб из металла изготовить сложнее, но он обеспечит более длительный срок эксплуатации.
По одной короткой стороне ящики скреплены между собой при помощи рояльной петли.
Снизу внешнего ящика без дна (рамки) закрепляются мебельные ролики, которые обеспечивают легкость передвижения ящиков по рельсам на несущей опоре.Размер ячеек металлической сетки определяется фракцией сыпучего материала, который будет просеиваться. Закрепление сетки на раме лучше всего выполнить при помощи металлической ленты и саморезов.
Рабочий орган электроинструмента соединяется с внешним подвижным ящиком при помощи пружинного соединения, которое обеспечит более плавные колебания при работе механизма. Поступательные движения от электропривода передаются ящикам, и в результате их колебаний по направляющим происходит просеивание материала, насыпанного во внутренний ящик с сеткой.
Потребляемая электрическая мощность механизма зависит от мощности установленного электроинструмента. При этом следует заметить, что чем мощнее электропила, тем можно сделать большими габариты вибросита и обрабатывать за счет этого большие объемы.
Если применить эксцентрик, то в качестве силового агрегата можно использовать электродрель. В этом случае инструмент устанавливается боком к ящикам и приводной механизм будет совершать колебательные движения.Блок регулирования скорости колебаний
Изготовители электроинструмента производят модели с возможностью регулировки скорости вращения двигателя или без такой функции. Во втором случае колебания электропилы могут оказаться слишком частыми, и потребуется дополнительное внешнее устройство для регулировки.
Регулятор реостатного типа можно приобрести в магазинах электротоваров. Одновременно с ним рекомендуется купить автоматический выключатель, который обеспечит дополнительную защиту инструмента и его продолжительную эксплуатацию.
В результате вы сможете обеспечить любую необходимую частоту колебаний рабочих ящиков вибрационного грохота в зависимости от их загрузки и веса обрабатываемого материала, не перегружая электропривод.
Защита электропривода от пыли
Во время работы, особенно с таким материалом как цемент и сухой клей, образуется пыль, попадающая на электропривод. Поэтому установленный электродвигатель рекомендуется накрыть защитным кожухом, конструкция которого не должна перекрывать вентиляционных отверстий инструмента. Такой кожух можно изготовить из 2-литровой пластиковой бутылки.
Готовое собранное вибросито и его работу можно увидеть при приведенном ниже видео.
protrotuarnujuplitku.ru
Как сделать вибростол своими руками
Сегодня все большую популярность обретает тротуарная плитка, появившаяся на отечественном рынке относительно недавно. Это можно объяснить тем, что она не только весьма привлекательная, но еще и абсолютно чистая в экологическом плане. Более того, поверхность, которую выложили подобной плиткой, будет сухой даже после проливного дождя. Такое хорошее достижение промышленности вы сможете изготавливать прямо у себя дома, используя для этого самое нехитрое оборудование, в том числе вибростол.
Для чего нужны вибростолы
Существует несколько основных функций, которые выполняют данные устройства:
- Вибратор, встроенный в оборудование, создается колебания с определенной частотой, передающиеся посредством основы столешницы непосредственно формам со смесью.
- Рабочая поверхность размещается на основе стола при помощи амортизаторов (это способствует поглощению производимых вибраций) или же просто на полу.
Заводская модель стоит очень дорого, гораздо экономнее соорудить себе вибростол своими руками. При этом нужно будет следовать достаточно простым инструкциям, но в этом вопросе, как и во многих других, присутствуют свои нюансы.
Начинаем работу.
Собственно, что собой представляет вибростол? Обычный металлический каркас, на ножках которого установлены специальные вибропружины, двигатель и станина правильной массы. В данной статье вы найдете пошаговую инструкцию касательно процесса изготовления, но при этом вам понадобятся следующие инструменты:
- Электродвигатель.
- Четыре пружины.
- Швеллеры в форме буквы «П».
- Лист стали, из которого мы сделаем стол.

Итак, поехали.

Шаг первый.
Вначале рассмотрим, из каких именно деталей состоит устройство вибростола:
- Собственно рабочая поверхность. Представляет собой жесткое сооружение, больше всего похожее на стол. На него и будут ставиться формы. Размер этой поверхности будет зависеть преимущественно от ваших потребностей.
- Основа вибростола. Еще одна конструкция, на которую мы поставим рабочую поверхность (естественно, если вы не запланировали расположить ее на полу).
- Несколько амортизаторов. Они предназначены для соединения основы вибростола и рабочей поверхности между собой, но это еще не все: благодаря амортизаторам будут поглощаться все производимые устройством колебания, дабы конструкция не смещалась во время работы.
- Наконец, последний пункт — вибратор (или же любой другой прибор, создающий низкочастотные вибрации для того, чтобы утрамбовывать готовый раствор).
Берем швеллеры и свариваем из них два квадрата (это и будет каркас нашей конструкции).
Шаг второй.
Крепим пружины к углам основания, а сверху привариваем лист стали — это наша поверхность стола. Эта поверхность собирается одновременно с фундаментом, а с обратной стороны мы устанавливаем электродвигатель.
В принципе, это все. Оказывается, сделать вибростол своими руками очень просто. Но, несмотря на простоту сооружения и установки, функциональность устройства будет неполной, если не соблюдать при этом определенные правила.
- Самое главное из них — это правильно подобранный вес столешницы. Заметьте, что данный показатель для каждого отдельного случая разный, каких-либо универсальных советов по данном вопросу не существует. При этом будет учитываться не только материал, из которого мы сделаем конструкцию, но и габариты самого стола.
- Материал для изготовления столешницы также играет немаловажную роль. Но при этом вы должны опираться не столько на прочность будущей конструкции, сколько на ее невозмутимости к разного рода вибрациям. Более того, следует учитывать и статично-динамические нагрузки, ведь они тоже будут воздействовать на столешницу самым непосредственным образом.
- Необходимо внимательно рассчитывать амплитуду движения вибростола для того, чтобы изготавливать привлекательные и прочные изделия. А если амплитуду подобрать неправильно, то качество выполняемых работ существенно снизится, как и эффективность агрегата.
- И, наконец, четвертый пункт — выбор электродвигателя. Это необходимо делать по предварительным расчетам. Двигатель при этом будет крепиться по соответствующей схеме. Если сделать это неправильно, то неправильно пойдет технологический процесс, а плитка значительно потеряет в качестве.

О механизме дисбаланса.
Если вы запланировали изготавливать его своими силами, то мы рекомендуем вам обратиться к профессиональному токарю, который сможет подогнать ваш электродвигатель под нужды производства, а также сделает надлежащим образом подшипниковый узел. Благодаря этому наше устройство сможет послужить нам довольно долго.
Вполне очевидно, что, следуя всем нашим рекомендациям, можно без особых усилий изготовить вибростол своими руками.
boldproject.ru
Как сделать вибростол своими руками, чертежи
Несмотря на свой «юный» возраст, тротуарная плитка набирает в нашей стране популярность. Причины этого понятны – материал предлагает отличные технические параметры, эстетичность, экологичность, а также более чем доступную цену. Плитку можно изготовить самостоятельно. В связи с тем, что покупка фабричного станка связано со значительными тратами, нами будет рассмотрена сборка вибростола в домашних условиях.
Принцип работы вибростола
Прежде чем переходить непосредственно к изготовлению вибростола, разберёмся, что это такое. Вибростол – приспособление, поверхность которого может совершать колебательные движения с заранее заданной частотой – порядка 3000 колебаний за минуту. Он может быть использован для производства тротуарной плитки и других изделий из бетона, по технологии вибролитья. С его помощью можно проводить следующие работы:
- Трамбовать цементные, асфальтобетонные смеси с разными фракциями;
- Изготавливать памятники, тротуарную плитку, подоконники, еврозаборы и прочее;
- Производить пеноблоки.
Устройство вибростола для производства тротуарной плитки не отличается сложностью – основу составляет надёжная станина, сверху на которой крепится рабочая поверхность, удерживаемая посредством подвесов или пружин. Эта столешница — важнейший компонент, на ней располагаются рабочие формы с бетоном.
В нижней части станины устанавливается электродвигатель нужной мощности, с расположенным на валу эксцентриком. Последний отвечает за радиальное перемещение центра тяжести у мотора, что обеспечивает тому непрерывное вибрирование. Как правило, самодельный вибростол оснащают двигателями марки ИВ-99 или ИВ-98.
От мотора колебания передаются на рабочий стол, дальше к стальным и полимерным формам. Происходит постепенное оседание, уплотнение бетона, с одновременным выходом из него воздушных пузырьков. Это позволяет получить высококачественное изделие, невосприимчивое к нагрузкам и температурным колебаниям.
Материалы и инструменты для работы
Чтобы сделать вибростол нам потребуется:
- Стальная труба;
- Металлический уголок или профиль швеллерный 50х50 мм;
- Стальной лист под столешницу;
- Пластины из стали;
- Электродвигатель требуемой мощности;
- Стальные пружины или рессоры для обеспечения вибрации;
- Крепёжные элементы – болты и шайбы;
- Сварочный аппарат;
- Болгарка;
- Электродрель;
- Измерительный и разметочный инструмент.
Последовательность проведения работ
Что же, переходим к изготовлению стола для производства тротуарной плитки. Для начала свариваем из швеллера или уголка его основание. Габариты вибростола любые – всё зависит от конкретной ситуации и предпочтений мастера, но наиболее часто они имеют размер 700х700 мм (смотрите чертежи для ознакомления). Важно, чем больше стол, тем мощнее должен быть двигатель. В качестве ножек можно использовать металлическую трубу – высота произвольная, главное, чтобы двигатель не касался пола.
Для большей устойчивости под ножки привариваем пластины. Впрочем, подобное решение актуально лишь для переносной вариации вибростола для изготовления тротуарной плитки, в противном случае ножки можно просто вкопать в землю и залить бетонным раствором.
По углам полученной станины, а также по центру продольных боковин устанавливаем стальные пружины. Их потребуется 6 штук, а взять их можно от клапанов. Устанавливать их следует в предварительно сваренные стаканы. Эти пружины и обеспечивают вибрацию при работе. Сверху на пружины мы укладываем стальной лист, толщиной от 8 мм, к нижней плоскости которого прикручиваем электродвигатель, дополнительно фиксируя его к уголку или швеллеру, расположенному поперёк вибростола. Поверх листа укладываем заранее подготовленные формы и заливаем их раствором. Готовые формы можно купить в любом магазине стройматериалов, а в случае необходимости их без проблем можно сделать самостоятельно.
Важно, чтобы мотор имел разбалансировку, иначе никакой вибрации не получится. Регулирование амплитуды колебаний достигается посредством вращения особого болта, зафиксированного в эксцентрике контргайкой.
Заключение
Мы с вами разобрались, как сделать простейший вибростол по производству тротуарной плитки своими руками. Особой сложностью сборка не отличается, главное заранее подготовить всё необходимое для работы, быть внимательным и терпеливым. Удачи!
osnovam.ru
Разработка своими руками чертежей вибростола для утрамбовки строительных смесей
В принципе, все работы связанные с отлитием элементов из различных строительных смесей могут выполняться и без применения данного аппарата. Но использование его все же крайне желательно. Благодаря ему улучшается не только декоративность поверхностей этих изделий, но и повышается их качество и крепость. Рассмотрим, каким образом это происходит и как собрать такой аппарат самостоятельно.
Принцип работы аппарата и список необходимых материалов
Используемые для отлития различных предметов смеси имеют слишком густую консистенцию. Именно поэтому они не способны, в отличие от более жидких растворов, качественно заполнять собой разнообразные емкости. При заполнении форм, смесь ложится неравномерно, что приводит к образованию воздушных карманов.
Воздух из этих пузырьков при застывании постепенно выходит, но пустота в теле элемента остается. Таким образом, возникают слабые места в, казалось бы, цельнолитом изделии. При чрезмерной нагрузке, или случайном ударе, либо падении такие пустоты становятся причиной поломки всего элемента.
-

- вибростол
-

- чертеж вибростола
Если же пустоты образуются на самом дне формы (где обычно формируется лицевая сторона изделия), то после застывания на поверхности элемента можно обнаружить выемки, впадинки и ямки различных размеров, которые существенно портят внешний вид отлитой формы.
Использование рассматриваемого аппарата помогает избежать этих неприятностей за счет его вибрационной функции. Легкое вибрирование заставляет массу медленно опускаться вниз под давлением собственного веса. В процессе этого воздушные карманы заполняются смесью, а сам воздух вытравливается наружу.
-

- Чертеж вибростола и просеивателя песка
-

- схема станины вибростола
Чтобы собрать своими руками вибростол по чертежу, необходимо предварительно приобрести следующие материалы (все размеры приведены ориентировочно, можно, как увеличивать, так и уменьшать их согласно собственным нуждам):
1. Вибродвигатель.
2. Сварочный аппарат.
3. Пружины – ГРМ «Камаз» — 4 штуки.
4. Металлический лист – 0,3х75х120 см.
5. Профильные трубы – 0,2х2х4 см – 6 метров (для ножек) 2,4 метра (для каркаса под крышку).
6. Металлические уголки – 0,2х4 см – 4 метра.
7. Болты (для крепления двигателя).
8. Спец. краска (для защиты изделия от коррозии).
9. Водопроводные металлические кольца – 4 шт. (диаметр должен совпадать с диаметром пружин, либо быть немного больше).
-

- крепление для вибратора
-

- крепление вибратора на столешнице
-

- основа вибростола
-

- итог работы
ЧИТАТЬ ПО ТЕМЕ:
Добавка в бетон для водонепроницаемости – лучшее решение проблемы его разрушения с течением времени.
Сборка своими руками вибростола по чертежу простой конфигурации
Сборка своими руками вибростола по чертежу, который здесь приведен, происходит в следующем порядке:
1. Сначала все закупленные материалы должны быть распилены на необходимые детали.
2. Трубы, предназначенные для ножек, разделяются на 4 ровных части по 75 см каждая.
3. Трубы, предназначенные для каркаса, разделяются так: 2 части по 60 см и 4 части по 30 см.
4. Уголки разделяются на четыре части, длина которых соответствует длине сторон металлического листа для столешницы, вместе с вычетом сторон отрезов труб для ножек (смотря какой стороной они будут повернуты – 2 или 4 см).
-

- вибростол
-

- пружины вибростола
5. Теперь, согласно сделанному своими руками чертежу вибростола, переходим к сварочным работам и в первую очередь собираем каркас для крепления двигателя к крышке. Из двух 30-ти и двух 60-ти см отрезков свариваем прямоугольник. Посредине него будут приварены еще две короткие детали на некотором расстоянии друг от друга. Данное расстояние должно быть равно расстоянию между местами крепления двигателя. В соответствующих местах на срединных отрезках просверливаются отверстия под крепеж.
6. В углах металлического листа привариваются кольца. В них будут продеваться пружины.
7. Теперь сваривается опорная стойка с ножками. Для этого берутся отрезы труб и уголков. Уголки располагаются так, чтобы их ребра были направлены вверх и наружу от внутренней части конструкции.
8. Сваренная рама для двигателя либо прикручивается саморезами, либо приваривается к крышке стола.
9. На опорную стойку по углам расставляются пружины. Столешница накладывается на стойку так, чтобы пружины вошли в ячейки для них. К дну прикручивается шурупами двигатель. Фиксировать каким-то образом пружины не нужно, так как вес самой столешницы вместе с мотором обеспечивает их надежную фиксацию в положенном месте.
Готовое изделие можно покрыть краской для дополнительной защиты. В процессе работы, скорее всего, понадобится дополнительная регулировка скорости работы мотора, чтобы увеличить, либо уменьшить вибрацию. Именно поэтому он не приваривается намертво к столешнице, а крепится так, чтобы его легко можно было снять.
papamaster.su
Вибростол своими руками для тротуарной плитки
Этот механизм является основой любого производства, связанного с изготовлением тротуарной плитки, заборных панелей, искусственного камня, скульптур и других изделий из литьевого бетона.
Вибрация позволяет качественно и с минимальными затратами уплотнить бетонную смесь, вытеснив из нее воздух. В результате получается однородная структура, в которой цементное молоко обволакивает щебень и песок, равномерно распределенные по всему объему формы.
Принципиальное устройство вибростола довольно простое. Его основой служит жесткая станина, по краям которой закреплены 4 мощные пружины.
На них устанавливается металлическая платформа (столешница) с бортами. Снизу к платформе крепится электродвигатель с эксцентриком. При его вращении возникают вибрационные колебания, передающиеся на форму и бетон, который в ней находится.

В цехах, где изготавливается тротуарная плитка, обычно используется два вида вибростолов: формовочный и выбивочный (распалубочный). В первом происходит уплотнение литьевой бетонной смеси, а второй используют для отделения готового изделия от формы. Принципиальной разницы в их конструкции нет.
Основное отличие состоит в том, что на расформовочном столе устанавливаются насадки с отверстиями, повторяющими контур выбиваемого изделия. Перевернув форму, ее кладут на насадку. Под действием вибрации изделие легко отделяется от формы, выпадает на транспортерную ленту или в руки рабочему.

Расформовочный вибростол
Для домашнего производства вполне хватает и одного формовочного вибростола, поверхность которого отлично подходит для отделения изделий от форм. Для этой цели можно использовать самодельные расформовочные насадки, которые крепятся к столешнице с помощью резьбовых соединений.

Самостоятельное изготовление вибростола
Пользуясь сварочным аппаратом, болгаркой и дрелью, вибростол для производства тротуарной плитки можно изготовить в домашних условиях. Главную деталь этого механизма – вибродвигатель лучше купить отдельно.

В противном случае вам придется экспериментировать с весом эксцентрика, количеством оборотов и мощностью мотора.
Для небольшого вибростола, используемого для формовки тротуарной плитки или столешниц из декоративного бетона, подойдет однофазный площадочный вибратор ВИ-99/Е мощностью 0.5 кВт при 2775 об /мин.
В его конструкции предусмотрена возможность изменения силы вибрации за счет регулировки положения эксцентриковых грузов. Если вы решили приспособить для этих целей обычный электромотор, то при его выборе ориентируйтесь на указанные параметры мощности и количества оборотов.
Решая, как сделать вибростол своими руками, нужно сначала начертить его схему, на которой указать основные размеры и участок, где будет зафиксирован вибромотор. Поскольку вибрация раскручивает резьбовые соединения не хуже гаечного ключа, позаботьтесь о том, чтобы они были снабжены фиксаторами (контргайками и шплинтами).
К работе вибростола предъявляется несколько важных требований:
- Размах колебаний не должен быть слишком большой, а вибрация на всей поверхности столешницы должна быть одинаковой интенсивности. Уплотняемый бетон должен равномерно распределяться в форме, а не отбиваться ее стенками или «кипеть».
- Необходимо точно загружать бетонную смесь в форму. Если ее будет мало, то плитка получится неодинаковой по толщине.
Небольшой самодельный вибростол для удобства в работе должен иметь высоту не менее 80 и не более 90 см. Размеры столешницы подбирают в зависимости от габаритов форм, которые будут использоваться для вибролитья.
Станину такого стола можно сварить из уголка 80 мм, сделав на его ножках площадки для крепления к анкерам. Без такого дополнения ваш стол под действием вибрации будет «гулять» при работе как ему вздумается.

Для изготовления столешницы лучше взять стальной лист толщиной не менее 6 мм. В этом случае вам не придется приваривать к нему снизу косынки для увеличения жесткости. К краям листа нужно приварить стальной уголок 50 мм для создания бортиков.

Стаканы и пружины станины вибростола
Если металла нужной толщины вы не нашли, можно взять более тонкий лист и усилить его, приварив по периметру и в центральной части квадратную трубу или уголок 40х40 мм. В центральной части столешницы нужно приварить два отрезка швеллера с отверстиями для крепления вибромотора.

Стаканы, в которых будут установлены пружины, приваривают по углам станины. Перед тем, как зафиксировать сваркой стаканы на столешнице, нужно точно разметить их положение относительно стаканов станины, чтобы избежать перекоса пружин.
Для изготовления стаканов подойдут отрезки труб длиной 5-7 см и диаметром немного большим, чем диаметр используемых пружин.
Завершив все сварочные работы, к швеллерам под столешницей при помощи болтовых соединений крепится вибродвигатель.
После завершения сборки вибростола, нужно провести его испытание для корректирования амплитуды вибрации, проверки устойчивости и жесткости пружин.
Полезное видео по теме:
greensector.ru
Как сделать вибростол своими руками? :: SYL.ru
Тротуарная плитка появилась на современном строительном рынке относительно недавно, однако уже успела завоевать лидирующие позиции. Она довольна проста в укладке, достаточно экологична и прочна, поэтому дорожки на вашей даче всегда будут оставаться чистыми и сухими. Тем не менее у этого популярного строительного материала есть один существенный недостаток — она не так уж и дешева.
Если вы хотите сэкономить при обустройстве дачного участка и обладаете хотя бы элементарными навыками в строительстве, можно попробовать изготовить ее самостоятельно. Для этого вам понадобится сварочный аппарат и знания о том, как сделать вибростол своими руками. Об этом и поговорим подробнее.
Принцип работы
Прежде чем сооружать вибростол своими руками, давайте для начала выясним, что это такое. Конструкция представляет собой металлическое основание, на которое при помощи пружин или других подвижных соединений крепится абсолютно ровная плита-столешница, куда ставятся формы с бетонной массой. Еще одним элементом конструкции является промышленный вибратор, или электродвигатель с эксцентриками. В момент работы двигателя столешница равномерно вибрирует, при этом из форм, находящихся на ней, выходят пузырьки воздуха, а бетонная смесь плотно спрессовывается.
Изготовление вибростола своими руками — дело несложное. Нужно придерживаться всего двух правил: столешница должна быть идеально плоской, а двигатель подавать равномерные вибрации с маленькой амплитудой колебания. Если пренебречь этими правилами, тротуарная плитка может получиться кривой, из-за чего при ее укладке возникнут проблемы.
Какие они бывают
Если вибростол своими руками вы решили изготовить для домашнего пользования, то вам необходимо запастись схемой или чертежом так называемого формовочного стола, то есть такого, на котором производится непосредственное уплотнение смеси в формах. Дело в том, что при промышленном производстве используется еще один вид столов — выбивочный, или расформовочный. Основное его отличие заключается в том, что он оборудован дополнительной насадкой, повторяющей контуры формочки. После того как плитка окончательно высохла, форму переворачивают и помещает в насадку, от вибрации готовое изделие выпадает в руки рабочему или на специальную транспортировочную ленту. В домашних условиях выбивку можно производить вручную или изготовить насадку отдельно.
Материалы
Итак, если вы решили соорудить вибростол своими руками, вам понадобится:
- сварочный аппарат;
- дрель;
- болгарка;
- металлический лист толщиной не менее 6–8 мм для столешницы;
- трубы для ножек станины;
- уголок или швеллер для рамы стола;
- металлические пластины;
- мощные металлические пружины необходимого диаметра;
- вибратор промышленный или электродвигатель на 220В;
- болты и шайбы для крепления двигателя;
Собирая вибростол своими руками, чертежи для него тоже лучше изготовить самостоятельно. Конечно, сейчас на тематических ресурсах можно найти все, что угодно, но, во-первых, за хорошие подробные чертежи, скорее всего, придется заплатить, а во-вторых, они не учитывают особенности и размеры именно вашей конструкции. Поэтому готовый чертеж лучше взять за основу и пересчитать его под собственные потребности.
Изготовление станины
Итак, как сделать вибростол своими руками?
- Начать нужно со сборки основания. Размеры его могут быть произвольными, все зависит от того, какое количество формочек вы планируете одновременно размещать на столешнице. Стандартным и наиболее удобным считаются размеры 0,7х0,7 м.
- Ножками служат металлические трубы, хотя если их нет, можно изготовить их из швеллера, уголка, квадрата или того, что есть под рукой. В основании ножек привариваются металлические пластины с отверстиями нужного диаметра, они позволят зафиксировать вибростол при помощи анкерных болтов или просто забетонировать его.
- Высота конструкции — также дело сугубо индивидуальное, основным критерием тут является удобство для мастера, вам должно быть комфортно при работе.
- Ножки соединяются между собой при помощи металлической рамы (квадратной или прямоугольной), выполненной из уголка. В итоге у вас должна получиться конструкция, больше всего напоминающая стол без столешницы.
- По углам конструкции привариваются «стаканы» высотой в 5–6 см, выполненные из трубы диаметром чуть больше, чем диаметр пружин. Если «стаканы» сделать не из чего, пружины можно приварить прямо на станину, а на верхнюю их часть прикрепить пластины с отверстиями для болтов.
Теперь нужна платформа
Как видите, изготовить вибростол своими руками достаточно несложно. Станина уже готова, теперь переходим к платформе-столешнице.
- Берем лист железа нужных размеров и при помощи сварки оснащаем его бортиками из металлического уголка, это нужно для того, чтобы в процессе работы формы с бетоном не соскакивали со стола.
- С обратной стороны листа также привариваем «стаканы», аналогичные тем, что вы прикрепили на станину. Следите за тем, чтобы они находились строго над нижними, так как между ними будут располагаться пружины, обеспечивающие необходимую вибрацию.
- В центре нижней части столешницы также нужно приварить два куска П-образного швеллера с отверстиями для болтов подходящего диаметра — тут будет крепиться эксцентриковый двигатель.
Вот и все, вибростол для плитки своими руками готов, теперь осталось закрепить двигатель, перевернуть столешницу и вставить пружины между стаканами.
Подбираем электродвигатель
Конечно, промышленный вибратор или разбалансированный двигатель можно приобрести в магазине. При этом необходимо правильно соотнести вес вашей столешницы и мощность агрегата — слишком слабый не сможет обеспечить достаточной вибрации, а очень мощный может сорвать столешницу с места.
Если вы планируете использовать вибростол недолго, то неплохим решением может стать двигатель от стиральной машины. Он идеально подойдет для этих целей, правда, способен выдержать не более 30 рабочих циклов.
В случае если этого недостаточно, рекомендуется приобрести более долговечную модель, а также оснастить конструкцию потенциометром. Это позволит регулировать уровень вибрации в зависимости от напряжения.
Несколько нюансов
- Для правильной работы вибростола нужно точно рассчитать вес столешницы.
- Амплитуда колебаний должна подбираться исходя из параметров смеси и должна быть одинаковой по всей плоскости стола.
- Необходимо точно отмерять количество смеси, помещаемое в каждую форму, иначе плитки выйдут разными по толщине.
Вибростол из автомобильной покрышки
А можно ли изготовить более простой вибростол? Своими руками чертежи разработать способен далеко не каждый, да и сварочные работы не всем по плечу. Оказывается, можно, правда, он будет не таким долговечным и основательным, да и качество плитки, изготовленной на таком столе, будет немного хуже, но для некоторых это может оказаться неплохим вариантом.
Для такого вибростола вам понадобится столешница, изготовленная из куска фанеры, ДСП или QSB, в центре которой закрепляется двигатель небольшой мощности. Далее конструкция устанавливается на автомобильную покрышку двигателем вниз и закрепляется при помощи шурупов. Для удобства работы и обеспечения лучшей вибрации можно использовать несколько покрышек, поставленных одна на другую и скрепленных между собой.
Изготавливаем плитку
Теперь поговорим о том, как делается тротуарная плитка своими руками. Вибростол у вас уже есть, теперь нужно приобрести или изготовить самостоятельно формы для заливки бетона.
Далее размещаем формы на вибростоле и наполняем их бетонной смесью слоем 3–4 см. Даем постоять на работающем столе около минуты, затем добавляем второй слой, снова включаем вибростол на 40–60 секунд. После этого плитку нужно просушить, не вынимая из формы, в течение 24–48 часов при температуре не менее 15˚С.
Если вы хотите получить разноцветную тротуарную плитку — в бетонную смесь можно добавить специальный краситель нужного оттенка, а для обеспечения дополнительной прочности изделия внести некоторое количество стеклянных или полипропиленовых волокон. Однако не переусердствуйте, иначе плитка может оказаться скользкой.
www.syl.ru
Как сделать вибростол для тротуарной плитки своими руками

Как известно, приспособления для создания плитки довольно дорогие, поэтому вопрос относительно того, как сделать вибростол своими руками, является весьма актуальным.
Оформление садовых дорожек в ландшафтном дизайне играет очень важную роль. Существует несколько способов того, как сделать проходы на участке, обустроить стоянку для авто и дворик перед домом. Наиболее прочным и удобным вариантом является плитка. Но этот материал недешевый. Когда приходится работать на большой территории, обустройство ландшафтного дизайна может потребовать чрезмерно высоких затрат.
Но для экономных мастеров всегда найдется выход. Плитку вполне реально изготовить своими руками. Для этого понадобится специальное оборудование. Но и вибростол для тротуарной плитки своими руками сделать не проблема. Главное — это иметь все необходимые материалы и обладать определенными навыками.
Даже простая брусчатка требует немалого количества времени и сил для изготовления. Более того, если просто загружать бетонную смесь в формы, то в последствии качество готового материала может быть далеким от идеального. И тут на помощь приходит вибростол. Он позволяет сэкономить время и силы при работе с садовой плиткой, но, главное, с его помощью можно получить действительно качественные элементы, которые прослужат долго и не будут требовать замены слишком рано.
Если приобретать вибростол для производства тротуарной плитки уже в готовом виде, то такая покупка будет серьезным ударом по семейному бюджету. Но в его изготовлении нет ничего сложного: это стол, к которому прикреплен двигатель, создающий вибрацию. Главное — это правильно подобрать нужные детали.
Единственное требование к мастеру — это умение работать со сварочным аппаратом. Это очень важный момент, так как все элементы должны крепиться максимально прочно и надежно. В противном случае под действием постоянной вибрации стол быстро распадется на части. После того, как все нужные элементы будут приварены, швы необходимо тщательно зачистить и покрыть стол краской с антикоррозионным эффектом.
Работа с каркасом
Вибростол от обычного стола внешне почти не отличается. Это квадратная либо прямоугольная конструкция с четырьмя ножками. Высота вибростола, как правило, составляет около 90 см. Желательно соорудить такой каркас, чтобы на него можно быть поместить столешницу минимум 70х70 см.
Раму вибростола необходимо изготовить из металла. Это очень важно: в противном случае конструкция не выдержит усиленной работы. Специалисты рекомендуют делать не только основной каркас, но и дополнительные горизонтальные подпорки, которые сделают стол более прочным.
Готовый каркас необходимо вымерить по горизонтали. Это очень важный момент, который нельзя упускать, иначе плитка будет неровной и ее просто не получится нормально использовать для создания аккуратных дорожек. Особое внимание нужно уделить прочности ножек. Их лучше всего изготовить из трубы, диаметр которой должен быть не менее 50 мм. Концы следует тщательно отторцевать, а после надеть на них пластиковые наконечники, чтобы не царапать пол во время использования агрегата. Стол можно сделать и стационарным. Для этого его ножки необходимо забетонировать на глубине 20 см.
Перед завершением работы над каркасом необходимо обязательно проверить все швы и прочность конструкции. Только после этого можно приступать к следующему этапу.
Работа со столешницей
Тут необходимы точные измерения. Столешница должна быть на 4-5 см больше, чем верхняя часть каркаса. Если она будет меньшей либо большей, конструкция может быть неудобной в использовании. Важно следить, чтобы материал, из которого изготовлена верхняя часть вибростола, не имела каких либо неровностей либо перепадов по высоте. Иначе получить качественную плитку на таком оборудовании не получится.
Лучше всего при изготовлении столешницы брать хороший стальной лист. Его толщина должна быть не менее 8 мм. Но, если найти подходящий металл не получилось, можно использовать оргстекло. Его толщина должна быть около 2 см. Подготовленная столешница крепится к основанию при помощи саморезов.
Для того чтобы во время вибрации формы не съезжали, стоит дополнить конструкцию бортиками. Они должны выступать от верха столешницы на 2 см. Лучше всего изготовить их из металлических полосок.
Как добиться хорошей вибрации?
Для лучшего вибрирования основание стола можно оборудовать пружинами. Они будут делить ножки на 2 части, благодаря чему устройство сможет работать в нескольких направлениях. Вибрация может быть горизонтальной либо вертикальной. Кроме того, можно установить режим всестороннего вибрирования.
Главное на этом этапе — правильно отрегулировать уровень отклонения стола. Процесс производится при помощи обрезки лишних витков на пружине.
Среди других настроек стоит выделить положение двигателя. От этого параметра зависит то, в какую сторону начнет вибрировать стол. Если установить вибромотор горизонтально, стол будет работать в вертикальном направлении, и наоборот. Если мастер желает, чтобы стол вибрировал в нескольких плоскостях, двигатель монтируется под углом в 45°.
Каждый из этих способов имеет свои плюсы и минусы. Если заставить стол постоянно работать в вертикальном направлении, то это будет большой нагрузкой на вибромотор. Однако устанавливать двигатель для вибростола горизонтально будет намного проще и удобнее. Тут мотор нагружается не слишком сильно, поэтому и проработает он значительно дольше. Самым трудоемким будет процесс монтажа вибромотора под углом в 45° для обеспечения работы сразу в нескольких направлениях. Этот способ подходит только для тех мастеров, которые хорошо разбираются в технике.
Электродвигатель для вибростола
Для начала необходимо разобраться с тем, где именно будет находиться вибромотор. Чаще всего его располагают на самом столе либо же под столешницей. И в одном, и в другом случае очень важно обеспечить жесткое соединение двигателя и поверхности, на которой будут находиться формы для будущих бетонных изделий. Именно поэтому бывает очень проблематично установить мотор под углом либо вертикально. При его горизонтальном расположении добиться максимального контакта со столешницей будет значительно проще.
Специалисты рекомендуют обратить внимание на то, что при установке вибромотора под столешницей работа будет проводиться проще. Однако такой способ быстро выводит из строя подшипники, поэтому через несколько циклов работы придется проводить ремонтные работы. Если установить двигатель на верхней части стола, монтаж будет несколько сложнее, но и для двигателя такой режим считается более щадящим.
После того, как мастер определится с тем, куда именно и в каком положении будет устанавливаться мотор, необходимо выбрать сам двигатель. Вибромотор несложно изготовить и своими руками из обычного электродвигателя. Важно, чтобы его мощность быть около 1 киловатта. Проводятся работы по созданию двигателя методом расбалансировки. Для этого существует несколько способов. Самым простым будет использование круглого шкива со сточенным участком окружности, который надевается на вал. Кроме того, можно просто приварить к шкиву гайку. От ее размера и веса будет зависеть уровень вибрации.
Но тут нужно учитывать, что изготовленный вибромотор своими руками может не выдержать больших нагрузок и его придется часто ремонтировать. Поэтому, если мастер планирует изготовить большое количество тротуарной плитки, лучше всего приобрести специальный электродвигатель. Самые качественные моторы такого типа выпускаются Ярославским электромеханическим заводом. Модели ИВ98, ИВ99Б и ИВ99Е не только долговечны, но и оснащены специальным устройством, при помощи которого можно регулировать амплитуду колебаний стола.
После того, как все подготовительные работы будут проведены, необходимо правильно и надежно установить мотор. Для этого следует использовать болты и гайки с прорезными шайбами. Так можно закрепить двигатель достаточно качественно, что позволит ему выдержать постоянную вибрацию и не отвалиться. Специальные шайбы будут препятствием для самопроизвольного откручивания гаек.
Вибромотор необходимо дополнительно защитить от воды и различных элементов, которые могут попасть на его в процессе работы. Оптимальным вариантом будет изготовление защитного кожуха. Не стоит забывать о безопасности мастера, который будет работать с данным аппаратом. Электродвигатель должен быть обязательно заземлен. Не будет лишним и монтаж кнопки либо рычага экстренной остановки. Иногда случаются ситуации, когда устройство нужно выключить быстро, не отходя от места изготовления плитки.
sadovod.guru











