Проектирование УШП
Проектирование УШП
Как только, был произведен сбор нагрузок от дома и сделан выбор по таблице Dorocell способа армирования, и марки используемого утеплителя, можно переходить к проектированию. Но здесь нам хотелось бы поговорить о том, что же собой представляет проект утепленной шведской плиты, нужен ли он частному застройщику или человеку решившему построить УШП своими руками.
Если у вас на руках имеется проект УШП составленный грамотными, знающими свое дело специалистами, считайте что половина дела уже сделано. Хороший проект это не просто красивые картинки с размерами, и какими то непонятными цифрами. Хороший проект, включает в себя расчеты всех материалов (труб теплого пола, канализации, утеплителя, бетона и т.д.), а также точные размеры всех конструктивных частей фундамента. Также в примечаниях проекта должны быть указаны способы и средства достижения результата, т.е. должно быть конкретно написано, как и что делать. Исполнителю достаточно просто взять в руки лист проекта, и не задумываясь пошагово выполнять указанное.
К сожалению большинство проектировщиков смутно себе представляют все особенности того или иного строительного процесса Вернее они знают как это должно быть в теории, но понятия не имеют как это все происходит на практике. Из-за этого у исполнителей, простых рабочих, прорабов и мастеров утрачено доверие к конструкторским чертежам, они воспринимают их скорее как справочное пособие, а не как конкретное руководство к действию. Еще раз повторимся, что в большинстве проектов отсутствуют какие-либо указания о способе воплощения нарисованного в жизнь, а если они и есть, то они как правило настолько оторваны от жизни, что если бы строители строго следовали указаниям описанным в чертежах, то им бы никогда не удалось достичь положительного результата.
Хороший рабочий проект утепленной шведской плиты должен включать в себя не только чертежи дренажа, канализации, водоснабжения, электрики и много еще всяких узлов и деталей, но и в обязательном порядке должен содержать чертеж теплого пола. Который, в свою очередь невозможно сделать без теплового расчета всего здания и гидравлического расчета системы напольного отопления.
Проектирование утепленных шведских плит, это достаточно трудоемкий и сложный процесс, так как нужно не только исключить пересечения в одной точке нескольких видов коммуникаций, но и увязать их с армированием и собственно конструктивом дома, а также учесть еще много всяких мелочей и нюансов.
По понятным причинам мы не можем на этой странице полностью опубликовать выполненные нами рабочие проекты УШП, так как они содержат много практических наработок и технологических ноу-хау. Покажем проекты, в том виде, в котором их нельзя использовать в практических целях, но вполне можно разобрать и понять из каких чертежей и спецификаций он сосотоит. Насколько подробно проработаны проекты. Просим извинения за данный факт и надеемся на ваше понимание. Подчеркиваем, что это проекты реальных объектов.
Нельзя отрицать и тот факт, что множество домов и фундаментов построено не только без проекта, но и вообще без какой-либо документации и ничего страшного не происходит. Мы не призываем следовать этим примерам, а просто приведем тот неоспоримый факт, что грамотный проект может сэкономить для застройщика 20-30, а то и все 40 процентов средств потраченных на стройматериалы и оплату труда рабочих. Подумайте, и решите для себя стоит ли экономить в данной ситуации, учитывая насколько сложен и ресурсоемок такой вид фундамента как утепленная шведская плита.
С другой стороны стоимость проектирования УШП, как впрочем, и вообще какого бы то ни было проектирования в нашей стране на наш взгляд необоснованно завышена. Впрочем, это относится не только к проектированию, а и ко всем услугам в сфере малоэтажного строительства. Со временем при наличии конкуренции на этом рынке ситуация должна несколько выправиться. Мы постараемся сделать так, что бы наши коммерческие интересы были экономически обоснованы, и не пересекали грань разумного.
Все это не должно вас останавливать на пути к своей мечте. Мечте о собственном уютном доме, а мы со своей стороны приложим все силы, что бы эта мечта стала явью.
plate-insulate.ru
Проектирование
Данная технология включает в себя не только фундамент, который должен быть рассчитан на предмет распределения нагрузок, но и значительную часть инженерии будущего дома, выполнять которую без проекта – полное безумие. Причем при разработке проекта шведской плиты необходимо иметь готовый проект будущего дома или, как минимум, полную информацию о расположении стен, несущих перегородок и соответствующих нагрузках. Поэтому рекомендуется выполнять проектирование сразу дома вместе с УШП, поскольку это позволяет, кроме точного расчета фундамента, сразу оптимально расположить все коммуникации и спроектировать инженерию как единое целое.
Однако и с проектированием все не так прозаично. На рынке сейчас достаточно много специалистов, профессиональных архитекторов с профильным образованием, которые могут произвести расчеты и сделать проект. Я бы разделил таких специалистов на две группы – тех, которые работают со (в) строительными организациями и тех, которые рисуют проекты независимо. Проблема в том, что специалисты, не имеющие обратной связи со строителями, зачастую, обладая вполне неплохими теоретическими знаниями, придумывают такие проекты, которые потом не оставляют цензурных слов для выражения эмоций у тех, кто пытается воплотить их фантазии в жизнь. Нехватка практических знаний, недостаточное знания стоимости тех или иных материалов и способов монтажа, приводит к тому, что проект может оказаться в реализации дорогим, неоптимальным и, в худшем случае, небезопасным.
Строители, в свою очередь, привыкшие к подобным историям, часто на ходу “творчески перерабатывают” проект под привычные им решения, воспринимая его примерно также, как набросок расположения комнат от руки и строя что-то свое, “по мотивам”. Понятное дело, такой расклад не выгоден ни заказчику, ни исполнителям, потому что первый вообще не знает, что он получит на выходе и можно ли этому доверять, вторые отклоняются от проекта, а это означает, что они крайние в любом случае, если что-то неприятное впоследствии произойдет.
Поэтому, если принято решение разрабатывать проект в одном месте (у частника или проектной организации), а строить – в другом, рекомендую на стадии согласования и разработки проекта ознакомить с ним будущих строителей, чтобы убедиться, что они и архитектор понимают друг друга. Если же вы проектируете ваш дом/ушп в той же организации, которая будет вам строить, но при этом испытываете сомнения, не лишним будет заказать рецензию на проект в профильной фирме.
Наша организация специализируется на проектировании домов из газобетона и технологии нулевого цикла “утепленная шведская плита”. Мы также пишем рецензии на чужие проекты УШП, проверяя расчеты и оставляя по необходимости комментарии. Примерно 45% заявок на проектирования заключаются в просьбе отрецензировать чей-то проект. Мы также проводим технические экспертизы уже выполненных фундаментов по данной технологии.
Будем рады помочь консультацией, обращайтесь.
inplate.ru
Что такое Утепленная Шведская Плита (УШП) и Утепленный Финский Фундамент (УФФ)
Ведя разговор о финском загородном домостроении, нельзя пройти мимо такой важной вещи как строительство фундамента.
Технически, каркасный дом можно поставить на любой фундамент — начиная от бетонной ленты на глубину промерзания, заканчивая обычными валунами, чем собственно и развлекались в прошлом народы, обитавшие на территории нынешней Финляндии и Скандинавии.
Но тем не менее, в наше время, под каркасные дома в этих областях , в основном, используются 2 типа фундаментов. Первый из них уже хорошо известен в России по аббревиатуре УШП (утепленная шведская плита) — на подобной плите в основном строят дома в Швеции и Норвегии. В Финляндии же более распространен другой тип фундамента, который пока не получил у нас широкого распространения и известен «посвященным» под аббревиатурой УФФ — Утепленный Финский Фундамент. Строго говоря финским его назвать сложно, так как на подобном типе фундамента делают дома и в Норвегии, да и в России, его более простая модификация хорошо известна.
Теперь обо всем по-порядку.
УШП — Утепленная Шведская Плита
Вначале немного хвастовства :). Многие знают, что в Россию информацию об УШП принес пользователь Форумхауса известный как Владимир «Таллин». Но вот совсем не многие при этом знают, что само название «Утепленная Шведская Плита» придумал именно я :).
А произошло это следующим образом.
Впервые про подобный фундамент заикнулся один товарищ из Германии, написавший на форумхаусе о том, что строительство подобного типа фундамента, идеально подойдет под каркасный дом . Именно тогда, то что потом стали называть УШП, впервые был опродемонстрировано российской интернет общественности. Было это в июне 2008 года.
К сожалению, с подачи популярного тогда на Форумхаусе строителя, автора шЫдевра под названием Русский Силовой Каркас (Он же РСК, он же впоследствии — Рашен Страшен Каркашен) — товарищ из Германии был затравлен, а его идеи были провозглашены еретическими и для загадочной русской души — неподходящими (кстати впоследствии этот гениальный строитель получил срок, за мошенничество).
Второе пришествие УШП произошло в 2009 году. Тогда на форуме появился новый участник, ныне широко известный — Владимир «Таллин». В одной из тем форумхауса, он рассказал о фундаменте своего дома в Эстонии, который ему не то спроектировал, не то построил строитель из Швеции (Родина отечественной УШП — шведская фирма Dorocell).
Так уж получилось, что на эту тему наткнулся ваш нескромный слуга. То есть я :). А так как я в то время впитывал все доступные знания по каркасному домостроению как губка и попутно был модератором на Форумхаусе, то оценив потенциал идеи, выделил сообщения Владимира «Таллина» в отдельную ветку и немного подумав, назвали ее «Утепленная Шведская Плита». А затем всячески оберегал Владимира на начальных этапах, от попыток травли отечественными любителями заливать плиты по 40см толщиной.
Название к фундаменту прилипло, а Владимир стал «гуру», к которому всем обращались за советом. Про эту историю мне недавно напомнил сам Владимир Таллин, на том же Форумхаусе
Поэтому могу совершенно честно сказать — в том, что УШП получило такое распространение, есть определенная моя личная заслуга. Но перейдем к делу
Общий принцип строительства УШП можно описать следующим образом: это некое огромное «корыто» из пенопласта «фундаментных» марок (способных выдержать большие нагрузки при небольшой относительной деформации). Корыто, представляющее из себя несъемную опалубку, собирается на подготовленной песчано щебеночной подушке обеспечивающей дренаж. Затем в этом корыте укладывается арматурный каркас и сетка, к которой, согласно планировке помещений, закрепляется труба для водяных теплых полов и раскидываются другие коммуникации — водоснабжение, канализация и иногда электрика. Затем все это заливается бетоном и по хорошему, затирается «вертолетами» для получения максимально готовой под финишную отделку поверхности плиты. Важно так же отметить, что плита не простая, а с ребрами жесткости под несущими стенами. То есть толщина плиты отличается под несущими стенами от остальной поверхности.
Это было грубое, примерное, описание того, на что похожа УШП. Ниже вы можете увидеть типичную конструктивную схему:

Оригинальная схема шведской фирмы Dorocell

Интерпретация от Knauf
Преимущества строительства УШП
- Мы получаем утепленный фундамент-плиту, с отделкой цоколя, подходящую для большинства грунтов
- При качественном исполнении, получаем готовое под финишную отделку перекрытие первого этажа
- Интегрированные в плиту коммуникации — разводка водопровода, канализации, части электрики и т.п.
- Система дренажа и водоотведения вокруг дома
- Практически готовая комфортная, низкотемпературная система отопления водяными теплыми полами — к которой достаточно просто подключить котельное оборудование
- Утепление самой плиты и отмостки вокруг дома, убирает явления морозного пучения, которые могут стать большой проблемой для более традиционных лент и плит.
- Энергоэффективность. Это один из самых энергоэффективных вариантов фундаментов — позволяющий экономить на отоплении
- УШП является высокоэффективным теплоаккумулятором, убирая один из часто упоминаемых недостатков каркасных домов — низкую теплоемкость.
Другими словами, строительство УШП в том, что это комплексное решение. Все то же самое можно получить и отдельно. Но делая все отдельно и сложив в совокупности затраты, с 90% вероятностью — у вас получится более дорогое решение.
Недостатки УШП
Разумеется у УШП есть и недостатки, о которых стоит упомянуть. Правда часть из них, относится и к другим плитным фундаментам.
- УШП идеально подходит для ровных участков. На участках с уклоном, строительство УШП как и любого другого плитного фундамента, может вылиться «в копеечку»
- УШП подходит для многих типов грунтов, но не для всех. Например с очень большой осторожностью нужно подходить к строительству УШП на торфяниках и других грунтах с очень низкой несущей способностью.
- Требовательность к квалификации исполнителей. Так как в плиту входит много коммуникаций, требующих грамотной разводки, то далеко не все «строители с опытом» смогут взяться за такой фундамент и не накосячить
- Низкий цоколь. Недостаток условный, но тем не менее, многих напрягает то, что уровень пола в доме практически с уровнем земли за стеной. Российский менталитет привык к высоким цоколям, тогда как в УШП вся толщина конструкции составляет 30см. из которых обычно над землей торчит дай бог 20.
- Материалоемкость. Особенно это актуально сейчас (осень 2014) — когда из за роста курсов валют и санкций, многие материалы имеющие в своей основе импортное сырье (тот же пенопласт) резко дорожают.
- Не смотря на энтузиазм и примеры строительства даже достаточно тяжелых каменных домов на УШП, все таки это фундамент, рассчитанный в первую очередь на более легкие — каркасные и деревянные дома
- Ощутимые разовые финансовые вливания на первоначальном этапе. Минус условный, так как делать все по отдельности, в итоге будет дороже. Зато можно растянуть затраты по времени.
- Ремонтопригодность коммуникаций. Минус условный, так как большинство материалов, используемых в современных системах инженерных коммуникаций, рассчитаны на сроки, явно превышающие наши с вами жизни. Решения же для ремонтопригодности основных коммуникаций (канализация, водоснабжение) есть, но требуют дополнительных затрат. Так что нужно хорошо подумать, насколько оно надо
Сколько стоит построить УШП?
Опять же, частый вопрос — сколько все это удовольствие стоит. В ценах лета 2014 года, средняя стоимость строительства УШП в Санкт-Петербурге составляла порядка 6-6,5тр за м2. В Москве цены были подороже, в среднем 7,5-8тр за м2 в зависимости от степени «раскрученности» и квалификации исполнителей. По другим регионам информации у меня нет. К сожалению, учитывая резкое падение курса рубля и большое количество «имортозависимых» материалов в УШП, цена на нее в следующем году заметно повысится.
То есть строительство УШП 100м2 в среднем обошлась бы заказчику в 600-800тр, в зависимости от региона и аппетитов подрядчика. Сумма не маленькая. Но вернитесь к преимуществам УШП и прикиньте, сколько по отдельности будет стоить — плита, утепление фундамента, стяжка с теплым полом, дренаж, коммуникации и т.п. Возможно, когда вы сложите все затраты, цена УШП покажется уже не такой уж и огромной. Одна только система отопления в оценке «профильных специалистов» может потянуть на 300-400тр.

УШП перед заливкой бетоном, с разведенными трубами теплого пола

После заливки. Снаружи остались только выходы коммуникаций и коллектор теплого пола
УФФ — Утепленный Финский Фундамент
Этот фундамент еще не так популярен как УШП, но уверен, что свое он возьмет. Строго говоря, аббревиатура УФФ появилась на том же Форум хаусе, когда данный тип надо было как то отличить от всех других. Пробовали называть и утепленной финской плитой (УФП) и как то еще, но УФФ это не совсем плита.
Вообще то подобная конструкция хорошо используется в России давно и известна как «лента с полами по грунту». Правда, отличия УФФ от самых простых полов по грунту, практически такое же, как у УШП от «простой» железобетонной плиты.
Своим появлением УФФ обязана другому активному участнику форумхауса, известному под ником Tim1313, который решил ее «реконструировать» для своего дома, пользуясь информацией брата, строившего дома в Финляндии и хорошо знакомого с этой технологией.
Если УШП у нас, это корыто с пенопластом бетоном и теплыми полами, то УФФ — это утепленная лента с «пяткой», выполняющей опорную и несущую роль, с обратной засыпкой хорошо утрамбованным грунтом, и хорошо утепленной стяжкой с теплыми полами. Вариантов таких лент есть много, я приведу схему от финского домостроительного концерна Оматало (Финндомо)

Оригинальная схема финского фундамента от фирмы Omatalo (finndomo)

Упрощенная, но рабочая схема от Tim1313
Реализаций строительства УФФ у тех же скандинавов может быть много — в качестве «ленты», могут использоваться как блоки, так и монолитный бетон, причем в несъемной опалубке из пенопласта. При больших уклонах и в некоторых других случаях, могут отказаться от обратной засыпки и сделать перекрытие ЖБ плитами, с дальнейшем обустройством утепленной стяжки по ним. Могут использоваться разные схемы утепления ленты и периметра. В Норвегии, из за особенностей скальных грунтов, часто делают ленту без пятки, на щебеночной подушке.
Преимущества УФФ
Собственно все те же преимущества, что и у УШП, только к ним можно еще добавить то, что убирает часть недостатков УШП
- Может оказаться более выгодной и менее трудозатратой на участках с уклоном
- Возможность сделать «высокий цоколь» — собственно высота цоколя ограничена только вашими финансами.
- Проще адаптировать под тяжелые дома (увеличивается размер пятки и сечение ленты, конфигурация ленты под несущие стены)
- Вариант с цоколем из блоков, позволяет практически на 100% отказаться от использования опалубки — что экономит и время и деньги.
- Как ни странно, этот тип фундамента «понятнее» отечественным строителям и соответственно проще найти исполнителей.
- Потенциально лучшая ремонтопригодность коммуникаций в отдаленном будущем, так как в отличии от УШП, несущую роль выполняет цоколь и пятка под ним, а стяжка с коммуникациями «развязана» относительно ленты.
- Возможность провести коммуникации, сделать теплый пол и стяжку уже после того, как дом «встанет под крышу» — кстати весьма популярный в скандинавии вариант
Недостатки и стоимость УФФ
Расписывать отдельно стоимость УФФ и ее недостатки смысла нет, так как это вещи взаимосвязанные. Основным недостатком УФФ является бОльшее количество работ, в том числе земляных и большое количество «сыпучки» на обратную засыпку. Соответственно это приводит к увеличению стоимости УФФ относительно УШП. Остальные недостатки — те же что и у «шведской» плиты, за исключением тех, которые решает УФФ.
Но увеличение по стоимости не драматическое. В общем случае УФФ обойдется процентов на 10-15 дороже чем УШП. Хотя в ряде случаев, может оказаться сравнима, если не дешевле. Причем стоимость УФФ будет напрямую зависеть от высоты цоколя, который вы пожелаете. Чем выше — тем дороже.

Опорная пятка и цоколь из блоков

Обратная засыпка с внутренним утеплением

Раскладка теплого пола и заливка стяжки

Опалубка из ЭППС для монолитного цоколя, тоже популярный в скандинавии вариант
(Visited 41 061 times, 36 visits today)
Следующая статья Предыдущая статьяxn--d1ahabdeeoeo2a7a.xn--p1ai
Утепленная шведская плита — Построй свой дом

В предыдущей статье мы рассмотрели основные виды фундаментов. Но у каждого вида фундаментов есть разновидности, которые применяются в зависимости от геологической особенности участка, а также проекта возводимого дома. Таким примером может служить шведский фундамент. Вот о том, что такое утепленная шведская плита УШП, мы и поговорим в этой статье.
Утепленная шведская плита (УШП)
Если вы планируете сделать теплые полы по всей площади первого этажа дома, то обратите внимание на этот вид фундамента. Утепленная шведская плита (УШП) относится к мелкозаглубленным фундаментам. Ее подошва располагается выше глубины сезонного промерзания грунта. Почему она называется утепленной? Утепленная шведская плита УШП — сооружение, объединяющее в один конструктивный элемент собственно фундамент, пол 1 этажа, инженерные коммуникации и систему отопления 1 этажа. Это высокотехнологичный продукт с точностью изготовления элементов 5–15 мм, с рассчитанными нагрузками, выверенными точками вывода коммуникаций, точно спроектированной системой тёплых полов и жесткими требованиями к типу и качеству материалов.
Достоинства утепленной шведской плиты (УШП)
Прежде всего, тем, что на этапе возведения фундамента вы получаете готовый теплый пол первого этажа. В этом и кроется экономия, так как если сначала вы будете делать плиту, а потом теплый пол, это вам выйдет дороже. К тому же, теплый пол, устроенный на готовой плите, уменьшит расстояние до потолка.

Технология строительства шведской плиты УШП
Технология УШП выгодно отличается от других видов мелкозаглубленных фундаментов следующим:
- Утепленная шведская плита объединяет несколько конструктивных элементов разного функционального назначения: конструкцию фундамента и пола первого этажа и уменьшает количество необходимых строительных операций, сокращает сроки строительства.
- Плиты экструзионного пенополистирола, укладываемые в основание фундамента, одновременно утепляют грунт под плитой и полы внутри помещении. Утепление грунта под плитой исключает морозное пучение. Утепление пола препятствует проникновению холода в помещение. Таким образом возникает двойной эффект от утепления.
- Закладываемые в плиту трубы теплого пола превращают её в отопительный прибор. В доме с удельными теплопотерями не более 70–100 Вт/м2 такой теплый пол способен стать основным источником отопления, исключающим необходимость установки радиаторов отопления, при условии проведения теплового расчета дома и проекта теплых полов на его основе.
- Технология УШП имеет относительно небольшую толщину ж/б плиты основания, так как высокопрочный экструзионный пенополистирол, кроме функции утепления, также включается в работу по передаче и распределению нагрузки на грунт, становясь частью несущей конструкции, а также позволяет исключить устройство бетонной подготовки.
- Экструзионный пенополистирол обладает минимальным водопоглощением, что позволяет исключить капилярное поднятие воды.
- Бетон такого фундамента работает в более мягких условиях, по сравнению с традиционными фундаментами, следовательно, действие разрушающих факторов на плиту сводится к минимуму. Это позволяет более эффективно использовать толщину бетона, снижая защитный слой с 70 мм для фундаментов без бетонной подготовки до 20–25 мм и увеличивая эффективное сечение сжатой зоны без увеличения толщины плиты и рёбер.
Что можно построить на утепленной шведской плите
Для того, чтобы понять, подходит вам утепленная шведская плита УШП или нет, необходим тщательный расчет фундамента на основе геологических изысканий вашего участка. Так как толщина плиты небольшая, на нее устанавливают легкие деревянные дома, и дома из газобетона, при условии, что высота газобетонного дома не более двух этажей. При этом для газобетонных домов применяют усиленное армирование, что увеличивает толщину плиты до 40 см.
Из чего строится шведский фундамент
Давайте рассмотрим материалы, которые применяются при строительстве утепленной шведской плиты (УШП).
Экструдированный пенополистирол
В основе плиты, для теплоизоляции применяют экструзионный пенополистирол высокой прочности. Из него же сделаны L-блоки, торцевые элементы, используемые не только как утеплитель, но и как опалубка.
Арматура на шведский фундамент
Для армирования фундамента используют арматуру по ГОСТ 5781-82 Ш 10 АIII и Ш 12 АIII (для Ш10 15 м.п./м2 плиты, для Ш12 4,5 м.п. на 1 м.п. ростверков).
Пленка полиэтиленовая 150–200 мкм. Она применяется для укладки на теплоизоляцию под стяжку.
Бетон для шведской плиты
Бетон В25, F100, W4. Его необходимо 0,15–0,2 м3/ на 1 м2 плиты.
Трубы для утепленной шведской плиты
Для устройства контуров теплого пола применяются полимерные трубы из полиэтилена или полипропилена РЕХ, Р-РЕ, разрешенные для применения в системах отопления с температурой теплоносителя до + 95°С и рабочим давлением не менее 6 бар. Их количество определяется тепловым расчетом для каждого конкретного помещения.
Для фиксации труб к сетке используются пластиковые хомуты (кабельная стяжка). Длинна 150–200 мм. Из расчета 10 шт./м2 пола.
Коллектор для утепленной шведской плиты
Для коммуникации контуров применяется пара коллекторов на 1″ для системы теплого пола в комплекте с расходомерами и спускными воздухоотводными клапанами. Их количество зависит от количества отводов (по числу ветвей).
Для подключения теплого пола к коллектору понадобится обжимной фитинг для подключения труб «Евроконус». Его количество зависит от количества подключаемых ветвей.
Два шаровых крана в/н на 1 дюйм.

Для защиты трубы теплого пола в местах проходов через стены и проемы, на входе в стяжку понадобится защитная гофра из ПНД для труб из полиэтилена 20 мм. Приблизительно 25 м.п. на 1 комплект теплого пола.
Теплоноситель для утепленной шведской плиты
В качестве теплоносителя используется теплоноситель — антифриз или вода в объеме 40–60 л., в зависимости от размера теплого пола. О том какую жидкость выбрать в качестве теплоносителя я рассказал в своей предыдущей статье.
Насос для шведской плиты
Для прокачки и опрессовки системы под давлением 3,8–4,0 бар необходим погружной насос для чистой воды (Малыш, Гном). Напор не меньше h=40 м.
Манометр. Он монтируется в узел для опрессовки системы, состоящий из манометра, обратного клапана, шарового крана и штуцера для подсоединения шланга.
Емкости полиэтиленовые (таз, ведро), из которой будет производится закачка теплоносителя в систему теплого пола.
Инструкция по строительству утепленной шведской плиты УШП
Для того, чтобы построить УШП вам придется запланировать следующие виды работ:

Подготовка основания шведской плиты:
- Разметка осей дома.
- Разметка котлована. Котлован делается больше чем сам фундамент на 1–2 метра с каждой стороны.
- Определение перепадов высот в пятне застройки.
- Определение толщины плодородного слоя.
- Механическая разработка котлована.
- Монтаж закладных под ввод системы водоснабжения. Система водоснабжения закладывается ниже глубины промерзания.
- Устройство дренажной системы
- Монтаж геотекстиля на дно котлована.
- Устройство подушки (щебень, песок) с послойной трамбовкой и увлажнением песка.

Коммуникации шведской плиты:
- Монтаж закладных под ввод и вывод электричества.
- Монтаж системы канализации.

Укладка утеплителя шведской плиты:
- Монтаж L-блоков.
- Монтаж нижнего слоя утепления из экструзионного пенополистирола.
- Монтаж гидроизоляции, укладка ПВХ пленки.
- Монтаж второго слоя утеплителя из экструзионного пенополистирола между будущих ребер жесткости фундамента.

Как армируется шведский фундамент:
- Изготовление хомутов для каркасов.
- Изготовление каркасов.
- Монтаж каркасов в опалубку.

Отопление «теплый пол» шведской плиты:
- Монтаж труб теплого пола.
- Монтаж коллектора.
- Подключение труб к коллектору.
- Опресовка системы теплого пола.

Укладка бетона шведской плиты:
- Подача бетона в опалубку.
- Разравнивание бетона, контроль ровности поверхности по ротационному нивелиру.
- Выравнивание бетона с помощью виброрейки.
- Затирка бетона скребком.
- Затирка бетона затирочной машиной – «вертолетом».

Отмостка шведской плиты:
Укладка экструзионного пенополистирола под отмостку.

В результате всех работ получается утепленная шведская плита — готовый шведский фундамент с вмонтированным в него теплым полом. В следующей статье я расскажу как закрепить насос в скважине своими руками.
Рекомендую еще почитать:
www.ocenin.ru
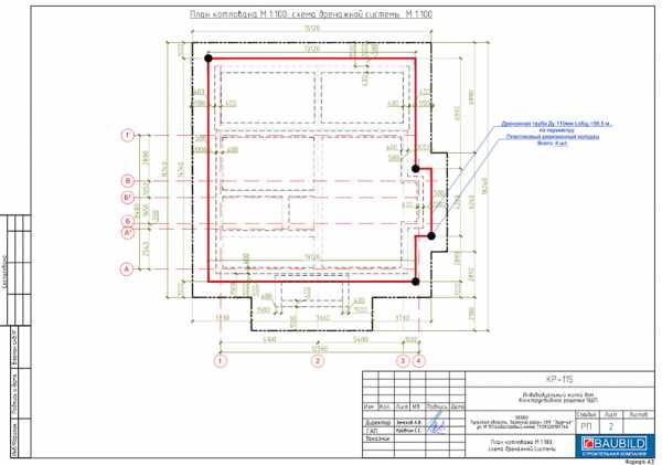
Строительство фундамента УШП. Фотоотчет.
Фундамент — это наиболее важная часть дома, а его качественная реализация — залог будущей надежности. При хорошем фундаменте и дальнейшее строительство не составит лишних проблем. Что касается Утепленной Шведской Плиты (УШП) с системой водяного отопления, то это оптимальное вложение денег. При кажущейся на первый взгляд дороговизне, хорошо выполненный фундамент УШП позволяет сэкономить материал на стяжке пола и уже несет в себе отопление первого этажа.
Понимая значимость хорошего фундамента, к выбору подрядчика подошли ответственно. Из всего многообразия был выбран лучший исполнитель с лучшим оборудованием и наиболее богатым опытом — компания BAUBILD. При выборе много читали отзывов на форумах, смотрели выполненные объекты, общались лично.

Помимо закладки фундаментов УШП, компания BAUBILD занимается и их проектированием, чем мы и воспользовались. Проект сделали достаточно быстро. Студию Z500, выполнявшую нам проект всего дома, проектировать УШП фундамент не просили, так как шведская плита — это узкое направление и тут нужен узконаправленный профессионал.
По ходу дела возникало множество вопросов, на которые Александр Земсков отвечал быстро и профессионально. Не раз сам приезжал на место.

Бригада заехала очень быстро и сразу приступила к делу. За полдня выкопали котлован под фундамент, вывели горизонт, прокопали траншею под дренаж. Работали почти без перекуров.

Глубина котлована:

Реализовали дренаж и поставили дренажные колодцы:

Заложили все геотекстилем и приготовились к засыпке песком.

Засыпка песком была, наверное, самая долгая процедура.Песок возили с речного карьера. То он был закрыт, то очередь. Быстро не получилось.

Всего ходок камазами было около 30.

Каждый слой песка тщательно проливался и утрамбовывался.

После полной засыпки котлована песком стали выкладывать размеры фундамента и размечать закладку коммуникаций. В синей гибкой трубе — ввод электричества в дом.

На фотографии ниже — место под большую террасу. На террасе теплого пола не будет, зальется лишь монолитная плита, которая свяжется с общей монолитной плитой дома.

Предварительно размеченную систему канализации закапываем в песок.

Закопали:

Далее собираем арматурный каркас и укладываем утеплитель.

Закончив с каркасом и уложив утеплитель, раскладываем водяной теплый пол.

Фундамент под большую террасу. Размеры террасы 4м х 6м.

Фундамент под крыльцо:

Из дополнительных коммуникаций в фундамент решили заложить трассу встроенного пылесоса. Спроектировали, закупили необходимые трубы и сделали разводку. Кто-то использует для трассы пылесоса канализационные трубы. Мы же решили сделать по правилам. Обычные трубы канализации соединяются на резинках, а предназначенные для трассы встроенного пылесоса сажаются на специальный клей.


К каждой розетке пылесоса заложили кабель питания.

Закладка трассы и розеток встроенного пылесоса были последним этапом перед заливкой.Начинаем заливку фундамента бетоном.

Залитый бетоном фундамент:

Полный цикл строительства фундамента УШП занял чуть больше двух недель.

Отмостка по периметру фундамента утеплена.

По вопросам покупки данного земельного участка обращайтесь по контактам, размещенным внизу страницы.
Продажа земельного участка с фундаментом Утепленная Шведская Плита от собственника.
domzarechie.ru
Утепленная Шведская Плита
1. Исследование участка.
Для разработки проекта утепленной шведской плиты необходимо иметь достоверную информацию об участке, а именно:
2. Разработка проектной документации.
Для разработки проекта фундамента требуется проект будущего дома для расчета нагрузок с учетом веса дома, расположения стен и перегородок. Если проекта дома еще нет, осуществляется комплексное проектирование УШП и дома. С учетом состава грунта и весовых нагрузок производится расчет:
3. Подготовка котлована
Подготовка котлована включает в себя следующие стадии:
4. Монтаж дренажной системы
5. Устройство подушки
6. Монтаж утеплителя и опалубки
Для защиты фундамента от промерзания и воздействия почвы, связанного с отрицательными температурами, поверх подушки необходимо укладывать теплоизоляцию. В качестве утеплителя используется экструдированный пенополистирол
7. Устройство коммуникаций и армирование
Теплый пол, “встроенный” в фундамент, значительно упрощает дальнейшие работы по обустройству отопления дома.
8. Заливка бетона
Необходимый объем бетона определяется проектом. При грамотном проектировании на объеме бетона осуществляется солидная экономия в сравнении с традиционной плитой
inplate.ru
УШП фундамент — технология устройства и конструкция плиты
Надежный фундамент – необходимый элемент любого здания или сооружения. Современные технологии позволяют делать его более дешевым и функциональным. Одним вариантов для частного строительства является утепленная шведская плита (УШП). Она заменяет традиционные свайные и столбчатые конструкции. Применение УШП в фундаменте – технология, позволяющая получить монолитное водонепроницаемое утепленное основание, которое даст возможность в будущем экономить на энергоносителях.

Что такое УШП?
УШП фундамент представляет собой прочный железобетонный монолит, укладываемый на слой теплоизолирующего материала. Эта технология была изобретена и опробована в суровых климатических условиях Скандинавии, где отлично проявила себя. Поскольку отечественный климат не слишком отличается, то шведская плита нашла применение и в России.
В основе шведского фундамента лежит бетонный монолит, равномерно распределяющий давление на поверхность грунта. Расположенный под ним слой утеплителя защищает от промерзания, поэтому он не вспучивается при морозах, не осаживается при оттепелях. Теплоизоляция делает основание надежным, оно не растрескивается весь срок эксплуатации здания, гарантирует гидроизоляцию и надежную опору для стен.
Особенностью является то, что фундамент УШП имеет небольшую глубину, поэтому его можно применять в сложных условиях:
- при повышенном уровне грунтовых вод;
- на рыхлых, мягких и сыпучих грунтах;
- на ненадежных основаниях, которые могут сдвигаться или вспучиваться.
Основные достоинства и недостатки
Технология с применением плиты УШП позволяет выполнить работы самостоятельно без привлечения тяжелой техники. Во многом она схожа с традиционным ленточным основанием, доказавшим свою надежность. При этом УШП фундамент более практичен и имеет множество других достоинств:
- Не требуется тяжелая техника для выполнения земляных работ, поскольку для строительства потребуется более мелкий котлован. Для небольших коттеджей их делают вручную.
- Монолит, лежащий в основе фундамента УШП, утепляется со всех сторон, под основанием и с боков. Поэтому он не подвержен перепадам температур, что продлевает срок его службы.
- При проектировании в монолит сразу включаются инженерные коммуникации, такие как канализация и водопровод, что удешевляет и ускоряет строительство.
- УШП обладает универсальными характеристиками, поэтому фундамент можно возводить на любой почве. Ее можно использовать для домов высотой до трех этажей.
- Плита является надежным гидроизолятором, что делает здание более долговечным. Она препятствует появлению мостиков холода, поэтому на стенах не появляется конденсат и грибок.
- Верхняя поверхность УШП является готовой основой для пола в помещениях. Это удешевляет отделочные работы в здании.
- В конструкцию включается армирование и укладка теплых полов, что снижает расходы на строительство, ускоряет отделку помещений, делает отопление более экономичным за счет теплоизоляции.
Как всякая технология шведской плиты имеет и свои минусы, главным из которых считается стоимость такого фундамента. Среди других негативных особенностей отмечают:
- Невозможность устройства подвала под домом.
- Мягкость теплоизолирующего слоя может приводить к усадке здания, его могут повредить грызуны.
- Поскольку технология применяется несколько лет, нет достоверных данных о долговечности утеплителя.
- Сложности при строительстве зданий на склонах, ограничение высоты тремя этажами.
Относительно затрат на возведение УШП, деньги на материалы компенсируются возможностью отказаться от тяжелой техники, сделать большую часть работ своими руками. При эксплуатации затраты дополнительно компенсируются за счет теплоизоляции и экономной работы системы отопления.
Конструкция плиты
УШП фундамент — многослойная конструкция в виде пирога, главной частью которой является железобетонная плита. Шведская плита состоит из таких конструктивных элементов:
- Дренажная система из гравийной подушки или слоя из смеси гравия и щебня. Она же является демпфером, компенсирующим деформации почвы при ее замерзании и оттаивании. В дренаж монтируется система водоотвода, по которой талые или грунтовые воды будут отводиться от здания.
- Геотекстиль, отделяющий дренажную систему от грунта, который может его засорить.
- Гидроизоляционный слой отделяющий железобетонный монолит от грунтовых вод.
- Сверху укладывается теплоизолирующий материал, в основании и по контуру фундамента, чтобы избежать появления мостиков холода и обеспечить одинаковую температуру всей плиты.
- Каркас из толстых стальных прутьев, придающий фундаменту из УШП дополнительное сопротивление изгибающим и растягивающим нагрузкам.
- Все виды инженерных коммуникаций прокладываются внутри монолита – силовые и связевые кабели, водопровод, канализация, система теплого пола тоже устраивается на начальном этапе перед заливкой фундамента.
- Бетонная плита, на которую будет приходиться вся нагрузка – ее толщина подбирается, исходя из этажности здания и типа грунта. Под несущими стенами или колоннами делаются ребра жесткости.

При расчете толщины фундамента УШП лучше обратиться к проектировщикам, которые учтут тип грунта, марку раствора и другие характеристики, необходимые для успешного осуществления проекта. Слишком тонкое основание рискует треснуть в любой момент под весом здания, а толстое приведет к необоснованным затратам. В зависимости от расчетных параметров, толщина плиты находится в пределах 15-35 см.
Технология изготовления
Строительство основания по современным технологиям требует четкого соблюдения всех условий. УШП фундамент не является исключением, поэтому при его монтаже требуется выполнение пошаговой инструкции. На первом этапе место тщательно очищается, размечается. Котлован под основание роется на глубину до 0,4 м, это лучше делать при помощи экскаватора, а для небольшого дома это часто делается вручную.
Дно засыпается слоем чистого песка толщиной 15 см, его утрамбовывают, периодически поливая водой для большего уплотнения. На подготовленную поверхность укладывается геотекстиль, при этом полотна на 30 см должны выступать за пределы фундамента. На материале обустраивается дренаж. Для этого на него высыпается слой гравия или щебня фракции от 20 до 40 мм, его толщина достигает 15 см. Иногда это делается в несколько слоев, каждый слой пересыпается песком. После формирования подушки, выступающие края геотекстиля оборачиваются вокруг нее.

В дренаже прокладываются инженерные системы – канализация, водопровод, электрические системы в надежной изоляции. Высота отводов должна учитывать толщину фундамента, для зданий с высоким цоколем потребуется больше материалов.
Опалубка для УШП делается непосредственно из прочного утеплителя. Для этого используют пенополистирольные или фибролитовые плиты толщиной до 10 см. На углах устанавливаются блоки L-образной формы. Теплоизоляция должна быть прочной и не бояться воды. Конструкция укрепляется деревянными элементами из бруса.
Чтобы получилась шведская плита, на дренаж обязательно укладывается гидроизоляция. Допускается применение самого дешевого варианта – рубероида, но лучше использовать современные материалы. Полотнища укладываются внахлест на 150 мм, все стыки герметизируются. Края гидроизоляции должны выступать наружу на толщину будущего монолита.
Далее при возведении фундамента из утепленной шведской плиты, технология требует укладки нескольких теплоизолирующих слоев. Пенополистирольные плиты толщиной 100 мм настилают на гидроизоляцию, в местах прохождения коммуникаций их обрезают. Второй слой утеплителя стелют не сплошным слоем. На местах, где будет пол жилых помещений, под несущими стенами и конструкциями достаточно и одного слоя, поскольку там будут делаться ребра жесткости. При укладке плит, нужно, чтобы они лежали всплошную, иначе могут образоваться мостики холода.

Проводится армирование ростверков, которые будут заливаться бетоном. Для этого применяется арматура 12 мм сориентированная вдоль фундамента. Конструкция укрепляется прутом 10 мм закрепляемым проволокой. Все элементы каркаса связываются в единое целое.
Стальным прутом диаметром 10 мм армируются зоны нагрузки, из нее сваривается решетка с ячейкой 15 см. Ее делают с таким расчетом, чтобы защитный бетонный слой составил не менее 30 мм. На сетку укладываются трубы системы теплый пол, крепятся к ней хомутами. В местах, где будут ребра жесткости, трубки помещаются в гильзы из более прочного материала. Распределители системы выводятся и укрепляются на забитых вертикально прутьях. Систему теплый пол заполняют теплоносителем, проверяют ее герметичность под давлением.
Перед бетонированием выводят и заглушают все инженерные системы, после форму УШП фундамента заполняют бетонным раствором. Погружным вибратором уплотняют смесь, следят за тем, чтобы не образовывалось пустот, особенно возле арматуры. Поверхность монолита тщательно выравнивается и накрывается полиэтиленом. Это обеспечит равномерное твердение раствора, позволит избежать его растрескивания. Летом его нужно периодически поливать водой.
Фундамент из утепленной шведской плиты — это технология, требующая точности и скрупулезного подхода. Только в этом случае получится надежное основание, которое можно сделать своими руками. УШП фундаменты экологичны, не оказывают излишнего давления на грунт и позволяют строить комфортное, современное, эргономичное и качественное жилье.
betonpro100.ru
