Π Π°Π·ΠΌΠ΅ΡΡ Π΄Π²Π΅ΡΠ½ΠΎΠΉ ΠΊΠΎΡΠΎΠ±ΠΊΠΈ ΠΌΠ΅ΠΆΠΊΠΎΠΌΠ½Π°ΡΠ½ΠΎΠΉ Π΄Π²Π΅ΡΠΈ
Π Π°Π½ΠΎ ΠΈΠ»ΠΈ ΠΏΠΎΠ·Π΄Π½ΠΎ ΠΊΠ°ΠΆΠ΄ΠΎΠΌΡ Π²Π»Π°Π΄Π΅Π»ΡΡΡ ΠΊΠ²Π°ΡΡΠΈΡΡ ΠΏΡΠΈΡ ΠΎΠ΄ΠΈΡΡΡ ΡΡΠ°Π»ΠΊΠΈΠ²Π°ΡΡΡΡ Ρ ΠΏΡΠΎΠ±Π»Π΅ΠΌΠΎΠΉ ΠΊΠ°ΠΏΠΈΡΠ°Π»ΡΠ½ΠΎΠ³ΠΎ ΡΠ΅ΠΌΠΎΠ½ΡΠ°, Π² Ρ ΠΎΠ΄Π΅ ΠΊΠΎΡΠΎΡΠΎΠ³ΠΎ ΠΏΠΎΡΡΠ΅Π±ΡΠ΅ΡΡΡ Π·Π°ΠΌΠ΅Π½ΠΈΡΡ Π΄Π²Π΅ΡΠ½ΡΠ΅ ΠΊΠΎΡΠΎΠ±ΠΊΠΈ Π΄Π»Ρ ΠΌΠ΅ΠΆΠΊΠΎΠΌΠ½Π°ΡΠ½ΡΡ Π΄Π²Π΅ΡΠ΅ΠΉ. ΠΠ°Π΄Π°ΡΠ° ΡΡΡΠ°Π½ΠΎΠ²ΠΊΠΈ Π΄Π²Π΅ΡΠ½ΠΎΠΉ ΠΊΠΎΡΠΎΠ±ΠΊΠΈ Π² ΠΏΡΠΎΠ΅ΠΌ Π΄Π²Π΅ΡΠΈ Π½Π΅ ΡΡΠ΅Π±ΡΠ΅Ρ Π²Π»Π°Π΄Π΅Π½ΠΈΡ ΠΊΠ°ΠΊΠΈΠΌΠΈ-Π»ΠΈΠ±ΠΎ ΡΠΏΠ΅ΡΠΈΡΠΈΡΠ΅ΡΠΊΠΈΠΌΠΈ ΡΡΠΎΠ»ΡΡΠ½ΡΠΌΠΈ Π½Π°Π²ΡΠΊΠ°ΠΌΠΈ, Π³Π»Π°Π²Π½ΠΎΠ΅ -Π²Π½ΠΈΠΌΠ°Π½ΠΈΠ΅ΠΈ Π°ΠΊΠΊΡΡΠ°ΡΠ½ΠΎΡΡΡ Π² ΡΠ°Π±ΠΎΡΠ΅.
ΠΠ°ΠΊ ΠΏΠΎΡΡΠ°Π²ΠΈΡΡ Π΄Π²Π΅ΡΠ½ΡΡ ΠΊΠΎΡΠΎΠ±ΠΊΡ, ΠΏΠΎΡΠ»Π΅Π΄ΠΎΠ²Π°ΡΠ΅Π»ΡΠ½ΠΎΡΡΡ ΠΎΠΏΠ΅ΡΠ°ΡΠΈΠΉ
ΠΡΠ±ΡΠ΅ ΡΠ°Π±ΠΎΡΡ ΠΏΠΎ Π·Π°ΠΌΠ΅Π½Π΅ Π΄Π²Π΅ΡΠ½ΡΡ ΠΊΠΎΡΠΎΠ±ΠΎΠΊ Π½Π°ΡΠΈΠ½Π°ΡΡΡΡ Ρ ΠΈΠ·ΡΡΠ΅Π½ΠΈΡ ΡΠΈΡΠΈΠ½Ρ ΠΈ ΡΠΎΡΡΠΎΡΠ½ΠΈΡ ΡΡΠ΅Π½, ΡΡΠ°ΡΠΎΠΉ Π»ΡΡΠΊΠΈ ΠΈ ΠΏΡΠΎΠ΅ΠΌΠ°. ΠΠ°ΡΠ°ΡΡΡΡ ΡΠ°ΠΌΠΈ ΡΡΠ΅Π½Ρ, ΠΊΠΈΡΠΏΠΈΡ ΠΈ Π±Π΅ΡΠΎΠ½ ΡΡΠ΅Π±ΡΡΡ ΠΊΠΎΡΠΌΠ΅ΡΠΈΡΠ΅ΡΠΊΠΎΠ³ΠΎ ΡΠ΅ΠΌΠΎΠ½ΡΠ°, ΠΎΡΠ΄Π΅Π»ΠΊΠΈ ΠΈ Π²ΠΎΡΡΡΠ°Π½ΠΎΠ²Π»Π΅Π½ΠΈΡ ΡΡΡΠΊΠ°ΡΡΡΠΊΠΈ, ΠΏΠΎΡΡΠΎΠΌΡ, ΠΏΠ΅ΡΠ΅Π΄ ΡΠ΅ΠΌ ΠΊΠ°ΠΊ ΡΠΎΠ±ΡΠ°ΡΡ Π΄Π²Π΅ΡΠ½ΡΡ ΠΊΠΎΡΠΎΠ±ΠΊΡ, ΠΏΡΠΈΡ ΠΎΠ΄ΠΈΡΡΡ ΡΠ΄Π°Π»ΡΡΡ Π½Π°Π»ΠΈΡΠ½ΠΈΠΊΠΈ ΠΈ Π²ΠΎΡΡΡΠ°Π½Π°Π²Π»ΠΈΠ²Π°ΡΡ ΡΠ΅Π»ΠΎΡΡΠ½ΠΎΡΡΡ ΠΊΠΈΡΠΏΠΈΡΠ½ΠΎΠΉ ΠΊΠ»Π°Π΄ΠΊΠΈ.
Π‘Π°ΠΌΠ° ΠΏΡΠΎΡΠ΅Π΄ΡΡΠ° ΡΡΡΠ°Π½ΠΎΠ²ΠΊΠΈ Π΄Π²Π΅ΡΠ½ΠΎΠΉ ΠΊΠΎΡΠΎΠ±ΠΊΠΈ ΠΌΠ΅ΠΆΠΊΠΎΠΌΠ½Π°ΡΠ½ΠΎΠΉ Π΄Π²Π΅ΡΠΈ Π½Π΅ΡΠ»ΠΎΠΆΠ½Π°Ρ, ΠΈ Π΅Π΅ Π²ΡΠΏΠΎΠ»Π½Π΅Π½ΠΈΠ΅ ΡΠΊΠ»Π°Π΄ΡΠ²Π°Π΅ΡΡΡ Π² Π½Π΅ΡΠΊΠΎΠ»ΡΠΊΠΎ ΠΏΡΠΎΡΡΡΡ ΠΎΠΏΠ΅ΡΠ°ΡΠΈΠΉ:
- Π‘Π½ΠΈΠΌΠ°ΡΡ Π΄Π²Π΅ΡΡ, ΡΠ°ΡΠΏΠΈΠ»ΠΈΠ²Π°ΡΡ ΡΡΡΠ½ΠΎΠΉ Π½ΠΎΠΆΠΎΠ²ΠΊΠΎΠΉ Π»ΡΡΠΊΡ ΠΏΠΎ ΡΠΈΡΠΈΠ½Π΅ ΠΈ Π°ΠΊΠΊΡΡΠ°ΡΠ½ΠΎ ΡΠ°Π·Π±ΠΈΡΠ°ΡΡ ΡΡΠ°ΡΡΡ ΠΊΠΎΡΠΎΠ±ΠΊΡ, ΠΎΡΠ²ΠΎΠ±ΠΎΠΆΠ΄Π°Ρ Π΄Π²Π΅ΡΠ½ΠΎΠΉ ΠΏΡΠΎΠ΅ΠΌ;
- ΠΠ·ΠΌΠ΅ΡΡΡΡ ΡΠΈΡΠΈΠ½Ρ Π΄Π²Π΅ΡΠ½ΠΎΠ³ΠΎ ΠΏΡΠΎΠ΅ΠΌΠ° ΠΊΠ°ΠΊ ΠΌΠΈΠ½ΠΈΠΌΡΠΌ Π² ΡΠ΅ΡΡΡΠ΅Ρ ΠΌΠ΅ΡΡΠ°Ρ . ΠΡΠ»ΠΈ ΠΏΠ»Π°Π½ΠΈΡΡΠ΅ΡΡΡ ΡΡΡΠ°Π½ΠΎΠ²ΠΊΠ° Π½ΠΎΠ²ΠΎΠΉ Π΄Π²Π΅ΡΠΈ Π±ΠΎΠ»ΡΡΠ΅ΠΉ ΡΠΈΡΠΈΠ½Ρ, ΠΏΠΎΡΡΠ΅Π±ΡΠ΅ΡΡΡ ΠΏΠΎΠ΄ΡΠ΅Π·Π°ΡΡ Π²Π΅ΡΡΠΈΠΊΠ°Π»ΡΠ½ΡΠ΅ ΡΡΠ΅Π½Ρ ΠΏΡΠΎΠ΅ΠΌΠ° Ρ ΠΏΠΎΠΌΠΎΡΡΡ Π±ΠΎΠ»Π³Π°ΡΠΊΠΈ ΠΈ ΠΏΠ΅ΡΡΠΎΡΠ°ΡΠΎΡΠ°. ΠΠΎ Π΄Π΅Π»Π°ΡΡ ΡΡΠΎ Π½Π΅ΠΎΠ±Ρ ΠΎΠ΄ΠΈΠΌΠΎ ΠΊΡΠ°ΠΉΠ½Π΅ Π°ΠΊΠΊΡΡΠ°ΡΠ½ΠΎ, ΡΡΠΎΠ±Ρ Π½Π΅ ΡΠ°Π·Π±ΠΈΡΡ ΠΊΠΈΡΠΏΠΈΡΠ½ΡΡ ΠΊΠ»Π°Π΄ΠΊΡ;
- ΠΠ·ΠΌΠ΅ΡΠΈΡΡ ΡΠΎΡΠ½ΡΡ ΡΠΈΡΠΈΠ½Ρ ΠΈ Π²ΡΡΠΎΡΡ Π½ΠΎΠ²ΠΎΠΉ Π΄Π²Π΅ΡΠΈ. ΠΡΠΌΠ΅ΡΠΈΡΡ Π½Π° ΡΡΠ΅Π½Π΅ Π½Π΅ΠΎΠ±Ρ ΠΎΠ΄ΠΈΠΌΡΠ΅ Π³Π°Π±Π°ΡΠΈΡΡ Π΄Π²Π΅ΡΠ½ΠΎΠ³ΠΎ ΠΏΡΠΎΠ΅ΠΌΠ° Ρ ΡΡΠ΅ΡΠΎΠΌ ΠΏΡΠΈΠΏΡΡΠΊΠΎΠ² Π½Π° ΡΠΎΠ»ΡΠΈΠ½Ρ Π΄ΠΎΡΠΎΠΊ ΠΈ ΡΠΈΡΠΈΠ½Ρ Π·Π°Π·ΠΎΡΠΎΠ². ΠΠ±ΡΠ°Ρ ΡΠΈΡΠΈΠ½Π° ΠΏΡΠΎΠ΅ΠΌΠ° Π±ΡΠ΄Π΅Ρ ΠΎΠΏΡΠ΅Π΄Π΅Π»ΡΡΡΡΡ, ΠΊΠ°ΠΊ ΡΠΈΡΠΈΠ½Π° Π΄Π²Π΅ΡΠ½ΠΎΠΉ ΠΊΠΎΡΠΎΠ±ΠΊΠΈ ΠΌΠ΅ΠΆΠΊΠΎΠΌΠ½Π°ΡΠ½ΠΎΠΉ Π΄Π²Π΅ΡΠΈ ΠΏΠ»ΡΡ 25 ΠΌΠΌ Π½Π° ΡΡΠΎΡΠΎΠ½Ρ Π΄Π»Ρ ΠΌΠΎΠ½ΡΠ°ΠΆΠ½ΡΡ ΡΠ»Π΅ΠΌΠ΅Π½ΡΠΎΠ² ΠΈ ΠΏΠ΅Π½Ρ;
- Π Π°Π·ΠΌΠ΅ΡΠΈΡΡ Π±ΡΡΡ ΠΈΠ»ΠΈ Π΄ΠΎΡΠΊΡ, ΠΊΡΠΏΠ»Π΅Π½Π½ΡΡ Π΄Π»Ρ ΡΠ±ΠΎΡΠΊΠΈ ΠΊΠΎΡΠΎΠ±ΠΊΠΈ, Π·Π°ΠΏΠΈΠ»ΠΈΡΡ ΡΡΡΠΊΠΈ Π½Π° ΠΊΠΎΡΡΠΊΠ°Ρ , ΡΡΠΈΡΡ ΠΏΡΠ΅Π΄Π²Π°ΡΠΈΡΠ΅Π»ΡΠ½ΠΎ Π½Π° ΡΠ°ΠΌΠΎΡΠ΅Π·Π°Ρ ΠΈ ΠΏΡΠΈΠΌΠ΅ΡΠΈΡΡ ΠΊ Π½ΠΎΠ²ΠΎΠΉ Π΄Π²Π΅ΡΠΈ. Π£ΡΡΠ°Π½ΠΎΠ²ΠΈΡΡ ΠΊΠΎΡΠΎΠ±ΠΊΡ Π² Π΄Π²Π΅ΡΠ½ΠΎΠΉ ΠΏΡΠΎΠ΅ΠΌ, ΠΏΡΠΎΠ²Π΅ΡΠΈΡΡ ΡΠΈΡΠΈΠ½Ρ ΠΈ Π·Π°ΡΠΈΠΊΡΠΈΡΠΎΠ²Π°ΡΡ ΡΠ°ΠΌΠΎΡΠ΅Π·Π°ΠΌΠΈ ΠΈ ΠΏΠ΅Π½ΠΎΠΉ.
Π‘ΠΎΠ²Π΅Ρ! ΠΡΠ»ΠΈ Π½Π΅Ρ ΠΏΠΎΠ»Π½ΠΎΠΉ ΡΠ²Π΅ΡΠ΅Π½Π½ΠΎΡΡΠΈ Π² ΡΠ²ΠΎΠΈΡ Π½Π°Π²ΡΠΊΠ°Ρ ΠΈ ΡΠΎΡΠ½ΠΎΠΌ ΠΏΠΎΠ½ΠΈΠΌΠ°Π½ΠΈΠΈ ΡΠΎΠ³ΠΎ, ΠΊΠ°ΠΊ ΡΡΡΠ°Π½ΠΎΠ²ΠΈΡΡ ΠΈ Π²ΡΠΏΠΎΠ»Π½ΠΈΡΡ ΠΊΡΠ΅ΠΏΠ»Π΅Π½ΠΈΠ΅ Π΄Π²Π΅ΡΠ½ΠΎΠΉ ΠΊΠΎΡΠΎΠ±ΠΊΠΈ, ΠΌΠΎΠΆΠ½ΠΎ ΠΏΠΎΡΡΠ°ΡΡΠ²ΠΎΠ²Π°ΡΡ Π² ΠΏΡΠΎΡΠ΅ΡΡΠ΅ Π·Π°ΠΌΠ΅Π½Ρ Π΄Π²Π΅ΡΠ½ΠΎΠΉ ΠΊΠΎΡΠΎΠ±ΠΊΠΈ Ρ ΡΠΎΡΠ΅Π΄Π΅ΠΉ ΠΈΠ»ΠΈ Π΄ΡΡΠ·Π΅ΠΉ, ΡΠ΄Π΅Π»Π°ΡΡ ΠΏΡΠΎΠ±Π½ΡΠΉ Π·Π°ΠΏΠΈΠ» ΡΠ²ΠΎΠΈΠΌΠΈ ΡΡΠΊΠ°ΠΌΠΈ, ΠΈΠ»ΠΈ ΠΏΠΎΡΠΌΠΎΡΡΠ΅ΡΡ Π²ΠΈΠ΄Π΅ΠΎ, Π½Π°ΠΏΡΠΈΠΌΠ΅Ρ:Β
ΠΠ°ΠΊΠΎΠΉ Π²Π°ΡΠΈΠ°Π½Ρ Π΄Π²Π΅ΡΠ½ΠΎΠΉ ΠΊΠΎΡΠΎΠ±ΠΊΠΈ Π²ΡΠ±ΡΠ°ΡΡ
ΠΠ΅ΠΆΠΊΠΎΠΌΠ½Π°ΡΠ½ΡΠ΅ Π΄Π²Π΅ΡΠΈ ΡΠ°Π±ΡΠΈΡΠ½ΠΎΠ³ΠΎ ΠΈΠ·Π³ΠΎΡΠΎΠ²Π»Π΅Π½ΠΈΡ Π·Π°ΡΠ°ΡΡΡΡ Π²ΡΠΏΡΡΠΊΠ°ΡΡΡΡ ΠΈ ΠΏΡΠΎΠ΄Π°ΡΡΡΡ Ρ ΠΊΠΎΠΌΠΏΠ»Π΅ΠΊΡΠΎΠΌ Π΄Π²Π΅ΡΠ½ΠΎΠΉ ΠΊΠΎΡΠΎΠ±ΠΊΠΈ ΡΡΠ°Π½Π΄Π°ΡΡΠ½ΠΎΠΉ ΡΠΈΡΠΈΠ½Ρ Π² ΡΠ°Π·ΠΎΠ±ΡΠ°Π½Π½ΠΎΠΌ Π²ΠΈΠ΄Π΅. Π’Π°ΠΊΠΎΠΉ Π²Π°ΡΠΈΠ°Π½Ρ ΠΈΠ·Π±Π°Π²Π»ΡΠ΅Ρ Π²Π°Ρ ΠΎΡ Π½Π΅ΠΎΠ±Ρ ΠΎΠ΄ΠΈΠΌΠΎΡΡΠΈ ΠΏΠΎΠ΄Π±ΠΈΡΠ°ΡΡ ΡΠΈΡΠΈΠ½Ρ ΠΊΠΎΡΠΎΠ±ΠΊΠΈ ΡΠ²ΠΎΠΈΠΌΠΈ ΡΡΠΊΠ°ΠΌΠΈ, Π½ΠΎ Π³Π°ΡΠ°Π½ΡΠΈΠΉ, ΡΡΠΎ Π΄Π²Π΅ΡΠ½Π°Ρ ΠΊΠΎΡΠΎΠ±ΠΊΠ° ΡΠΎΠ±ΡΠ°Π½Π° ΠΏΡΠ°Π²ΠΈΠ»ΡΠ½ΠΎ, Π½Π΅Ρ. ΠΠΎΡΡΠΎΠΌΡ Π·Π°ΡΠ°ΡΡΡΡ Π΄Π²Π΅ΡΡ Π½Π΅ΠΎΠ±Ρ ΠΎΠ΄ΠΈΠΌΠΎΠΉ ΡΠΈΡΠΈΠ½Ρ ΠΏΠΎΠΊΡΠΏΠ°Π΅ΡΡΡ ΠΎΡΠ΄Π΅Π»ΡΠ½ΠΎ, Π° Π΄ΠΎΡΠΊΠ° ΠΈΠ»ΠΈ ΠΏΠ»ΠΈΡΡ ΠΠΠ-ΠΠΠ€ ΠΎΡΠ΄Π΅Π»ΡΠ½ΠΎ. Π‘ΡΠ°Π½Π΄Π°ΡΡΠ½ΡΠ΅ ΡΠ°Π·ΠΌΠ΅ΡΡ Π΄Π²Π΅ΡΠ½ΡΡ ΠΊΠΎΡΠΎΠ±ΠΎΠΊ β ΡΠΎΠ»ΡΠΈΠ½Π° ΠΈ ΡΠΈΡΠΈΠ½Π° Π΄Π²Π΅ΡΠ΅ΠΉ ΠΏΡΠΈΠ²Π΅Π΄Π΅Π½Ρ Π² ΡΠ°Π±Π»ΠΈΡΠ΅:
ΠΡΠΎΠΌΠ΅ ΡΠΎΠ³ΠΎ, ΠΏΡΠΈ Π²ΡΠ±ΠΎΡΠ΅ ΡΠ°Π·ΠΌΠ΅ΡΠΎΠ² ΠΌΠ°ΡΠ΅ΡΠΈΠ°Π»Π° Π΄Π»Ρ ΠΏΠΎΡΡΡΠΎΠΉΠΊΠΈ Π»ΡΡΠΊΠΈ Π½Π΅ΠΎΠ±Ρ ΠΎΠ΄ΠΈΠΌΠΎ ΡΡΠΈΡΡΠ²Π°ΡΡ, ΡΡΠΎ ΡΠΎΠ»ΡΠΈΠ½Π° Π΄Π²Π΅ΡΠ½ΠΎΠΉ ΠΊΠΎΡΠΎΠ±ΠΊΠΈ ΠΌΠ΅ΠΆΠΊΠΎΠΌΠ½Π°ΡΠ½ΠΎΠΉ Π΄Π²Π΅ΡΠΈ β Π²Π΅Π»ΠΈΡΠΈΠ½Π° ΡΡΠ°Π½Π΄Π°ΡΡΠ½Π°Ρ, Π° Π²ΠΎΡ ΡΡΠ΅Π½Ρ ΠΏΠΎ ΡΠΈΡΠΈΠ½Π΅ Π΄Π°ΠΆΠ΅ Π² ΠΏΡΠ΅Π΄Π΅Π»Π°Ρ ΠΎΠ΄Π½ΠΎΠΉ ΠΊΠ²Π°ΡΡΠΈΡΡ ΠΌΠΎΠ³ΡΡ ΡΠΈΠ»ΡΠ½ΠΎ ΠΎΡΠ»ΠΈΡΠ°ΡΡΡΡ. ΠΠΎΡΡΠΎΠΌΡ ΠΏΠΎ ΠΊΠ°ΠΆΠ΄ΠΎΠΉ ΠΌΠ΅ΠΆΠΊΠΎΠΌΠ½Π°ΡΠ½ΠΎΠΉ Π΄Π²Π΅ΡΠΈ ΠΏΡΠΈΡ ΠΎΠ΄ΠΈΡΡΡ ΠΏΡΠΎΠ²Π΅ΡΡΡΡ ΡΠΈΡΠΈΠ½Ρ Π΄Π²Π΅ΡΠ½ΠΎΠ³ΠΎ ΠΏΡΠΎΠ΅ΠΌΠ°, ΡΠΎΡΡΠ°Π²Π»ΡΡΡ ΡΠ²ΠΎΠΉ ΠΏΠ°ΡΠΏΠΎΡΡ Ρ ΡΠ°Π·ΠΌΠ΅ΡΠ°ΠΌΠΈ ΠΈ ΠΏΡΠΈ Π½Π΅ΠΎΠ±Ρ ΠΎΠ΄ΠΈΠΌΠΎΡΡΠΈ ΠΏΠΎΠΊΡΠΏΠ°ΡΡ Π΄ΠΎΠ±ΠΎΡΠ½ΡΠ΅ ΡΠ»Π΅ΠΌΠ΅Π½ΡΡ, ΠΏΠΎΠ·Π²ΠΎΠ»ΡΡΡΠΈΠ΅ ΡΠ°ΡΡΠΈΡΠΈΡΡ ΠΏΠΎ ΡΠΈΡΠΈΠ½Π΅ Π»ΡΡΠΊΡ Π΄Π²Π΅ΡΠΈ Π΄ΠΎ ΡΠΈΡΠΈΠ½Ρ ΡΡΠ΅Π½.
ΠΠ»Ρ ΠΈΠ·Π³ΠΎΡΠΎΠ²Π»Π΅Π½ΠΈΡ Π»ΡΡΠΊΠΈ ΠΈΠ»ΠΈ Π΄Π²Π΅ΡΠ½ΠΎΠ³ΠΎ ΠΊΠΎΡΠΎΠ±Π° Π½ΡΠΆΠ½ΠΎΠΉ ΡΠΈΡΠΈΠ½Ρ ΡΠ°ΡΠ΅ Π²ΡΠ΅Π³ΠΎ ΠΈΡΠΏΠΎΠ»ΡΠ·ΡΡΡ:
ΠΡΠ»ΠΈ Ρ Π²Π°Ρ Π΅ΡΡΡ Π²ΡΠ±ΠΎΡ, ΠΈΡΠΏΠΎΠ»ΡΠ·ΡΠΉΡΠ΅ Π΄Π»Ρ ΡΠ±ΠΎΡΠΊΠΈ Π΄Π²Π΅ΡΠ½ΠΎΠΉ ΠΊΠΎΡΠΎΠ±ΠΊΠΈ ΠΏΡΠΎΡΠΈΠ»ΠΈΡΠΎΠ²Π°Π½Π½ΡΠ΅ Π΄ΠΎΡΠΊΠΈ ΠΈΠ· Ρ Π²ΠΎΠΉΠ½ΡΡ ΠΏΠΎΡΠΎΠ΄ Π΄ΡΠ΅Π²Π΅ΡΠΈΠ½Ρ. Π’Π°ΠΊΠΎΠΉ ΠΌΠ°ΡΠ΅ΡΠΈΠ°Π» ΠΎΠ±Π»Π°Π΄Π°Π΅Ρ Ρ ΠΎΡΠΎΡΠ΅ΠΉ ΠΎΠ±ΡΠ°Π±Π°ΡΡΠ²Π°Π΅ΠΌΠΎΡΡΡΡ, Π²ΡΡΠΎΠΊΠΎΠΉ ΠΏΡΠΎΡΠ½ΠΎΡΡΡΡ,ΠΈ Π½Π΅ Π½Π°Π±ΠΈΡΠ°Π΅Ρ Π²Π»Π°Π³Ρ, ΠΊΠ°ΠΊ ΠΏΡΠ΅ΡΡΠΎΠ²Π°Π½Π½ΡΠ΅ ΠΌΠ°ΡΠ΅ΡΠΈΠ°Π»Ρ ΠΈΠ· Π±ΡΠΌΠ°Π³ΠΈ ΠΈ Π΄ΡΠ΅Π²Π΅ΡΠ½ΡΡ Π²ΠΎΠ»ΠΎΠΊΠΎΠ½.
Π ΡΠ²Π΅Π΄Π΅Π½ΠΈΡ! Π‘Π°ΠΌΠΎΡΠ΅Π·, Π²Π²Π΅ΡΠ½ΡΡΡΠΉ Π² Π΄ΡΠ΅Π²Π΅ΡΠΈΠ½Ρ ΠΏΠΎ ΠΏΡΠ°Π²ΠΈΠ»Π°ΠΌ, ΠΎΠ±Π΅ΡΠΏΠ΅ΡΠΈΡ 100% ΠΏΡΠΎΡΠ½ΠΎΡΡΠΈ ΡΠΎΠ΅Π΄ΠΈΠ½Π΅Π½ΠΈΡ, Π°Π½Π°Π»ΠΎΠ³ΠΈΡΠ½ΡΠΉ ΠΊΡΠ΅ΠΏΠ΅ΠΆ Π΄Π»Ρ ΠΏΡΠ΅ΡΡΠΎΠ²Π°Π½Π½ΠΎΠΉ Π±ΡΠΌΠ°Π³ΠΈ ΠΎΠ±Π΅ΡΠΏΠ΅ΡΠΈΠ²Π°Π΅Ρ 30% ΡΠ°ΡΡΠ΅ΡΠ½ΠΎΠΉ ΠΏΡΠΎΡΠ½ΠΎΡΡΠΈ ΠΊΡΠ΅ΠΏΠ΅ΠΆΠ°.
ΠΡΠΎΠΌΠ΅ ΡΠΎΠ³ΠΎ,ΠΊΠΎΡΠΎΠ±ΠΊΠ° ΠΈΠ· ΡΠΎΡΠ½Ρ ΠΏΠΎΠ·Π²ΠΎΠ»ΠΈΡ ΡΡΠ°Π²ΠΈΡΡ Π±ΠΎΠ»Π΅Π΅ ΡΡΠΆΠ΅Π»ΡΠ΅ Π΄Π²Π΅ΡΠΈ, Π½Π°ΠΏΡΠΈΠΌΠ΅Ρ, ΠΈΠ· ΠΠΠ€, ΡΡΠ΅ΠΊΠ»Π° ΠΈΠ»ΠΈ ΠΌΠ°ΡΡΠΈΠ²Π° Π΄ΡΠ΅Π²Π΅ΡΠΈΠ½Ρ. ΠΡΠ΅Π²Π΅ΡΠ½ΠΎ-Π²ΠΎΠ»ΠΎΠΊΠΎΠ½Π½ΡΠ΅ ΠΌΠ°ΡΠ΅ΡΠΈΠ°Π»Ρ ΠΏΠΎΠ΄ΠΎΠΉΠ΄ΡΡ ΡΠΎΠ»ΡΠΊΠΎ Π΄Π»Ρ ΡΠ°ΠΌΡΡ Π»Π΅Π³ΠΊΠΈΡ ΠΊΠ°ΡΡΠΎΠ½Π½ΡΡ ΠΊΠΎΠ½ΡΡΡΡΠΊΡΠΈΠΉ.
Π‘ΡΠ°Π²ΠΈΠΌ Π΄Π²Π΅ΡΠ½ΡΡ ΠΊΠΎΡΠΎΠ±ΠΊΡ ΡΡΠ°Π½Π΄Π°ΡΡΠ½ΠΎΠΉ ΡΠΈΡΠΈΠ½Ρ
ΠΠ°ΠΈΠ±ΠΎΠ»Π΅Π΅ ΠΏΠΎΠΏΡΠ»ΡΡΠ½ΡΠΌ ΡΠ°Π·ΠΌΠ΅ΡΠΎΠΌ ΠΌΠ΅ΠΆΠΊΠΎΠΌΠ½Π°ΡΠ½ΡΡ Π΄Π²Π΅ΡΠ΅ΠΉ ΡΡΠΈΡΠ°Π΅ΡΡΡ Π²ΡΡΠΎΡΠ° ΠΏΠΎΠ»ΠΎΡΠ½Π° Π² 200 ΡΠΌ ΠΏΡΠΈ ΡΠΈΡΠΈΠ½Π΅ 80 ΡΠΌ. ΠΡΠΈ ΠΆΠ΅Π»Π°Π½ΠΈΠΈ ΠΌΠΎΠΆΠ½ΠΎ ΠΏΠΎΠ΄ΠΎΠ±ΡΠ°ΡΡ ΠΈ ΡΡΡΠ°Π½ΠΎΠ²ΠΈΡΡ Π΄Π²Π΅ΡΠ½ΡΡ ΠΊΠΎΠ½ΡΡΡΡΠΊΡΠΈΡ ΡΠΈΡΠΈΠ½ΠΎΠΉ 85 ΠΈ Π΄Π°ΠΆΠ΅ 90 ΡΠΌ. ΠΠΎ Π² ΡΡΠΎΠΌ ΡΠ»ΡΡΠ°Π΅ ΠΈΠ·-Π·Π° ΡΠ²Π΅Π»ΠΈΡΠ΅Π½Π½ΠΎΠΉ ΡΠΈΡΠΈΠ½Ρ Π²Π΅ΡΡΠΈΠΊΠ°Π»ΡΠ½ΡΡ ΡΡΠΎΠΉΠΊΡ Ρ Π½Π°Π²Π΅ΡΠ°ΠΌΠΈ ΠΏΡΠΈΡ ΠΎΠ΄ΠΈΡΡΡ ΠΈΠ·Π³ΠΎΡΠ°Π²Π»ΠΈΠ²Π°ΡΡ ΠΈΠ· Π΄ΠΎΡΠΊΠΈ 35-40 ΠΌΠΌ, ΡΡΡΠ°Π½Π°Π²Π»ΠΈΠ²Π°ΡΡ ΡΡΠΈΠ»Π΅Π½Π½ΡΠ΅ Π½Π°Π²Π΅ΡΡ, Π»ΠΈΠ±ΠΎ ΡΠ²Π΅Π»ΠΈΡΠΈΠ²Π°ΡΡ ΠΈΡ ΡΠΈΡΠ»ΠΎ Π΄ΠΎ ΡΡΠ΅Ρ ΡΡΡΠΊ.
Π‘ΠΎΠ±ΠΈΡΠ°Π΅ΠΌ ΠΊΠΎΡΠΎΠ±ΠΊΠΈ Π΄Π²Π΅ΡΠΈ
ΠΠΎΡΠΎΠ±ΠΊΠ° Π΄Π²Π΅ΡΠ½ΠΎΠ³ΠΎ Π±Π»ΠΎΠΊΠ° ΡΠΎΡΡΠΎΠΈΡ ΠΈΠ· ΡΡΠ΅Ρ ΠΎΡΠ½ΠΎΠ²Π½ΡΡ Β ΡΠ°ΡΡΠ΅ΠΉ:
- ΠΡΠΈΡΠ²ΠΎΡΠ½Π°Ρ ΡΠ°ΡΡΡ ΠΊΠΎΡΠΎΠ±ΠΊΠΈ ΠΈΠ»ΠΈ Π·Π°ΠΌΠΎΡΠ½ΠΎΠ³ΠΎ Π±ΡΡΡΠ°. ΠΡΠΎ ΠΎΠ΄ΠΈΠ½ ΠΈΠ· Π²Π΅ΡΡΠΈΠΊΠ°Π»ΡΠ½ΡΡ Π±ΡΡΡΠΎΠ², Π² ΠΊΠΎΡΠΎΡΡΠΉ ΠΌΠΎΠ½ΡΠΈΡΡΠ΅ΡΡΡ ΠΎΡΠ²Π΅ΡΠ½Π°Ρ ΠΏΠ»Π°Π½ΠΊΠ° Π΄Π²Π΅ΡΠ½ΠΎΠ³ΠΎ Π·Π°ΠΌΠΊΠ°;
- ΠΠ°Π²Π΅ΡΠ½Π°Ρ ΡΠ°ΡΡΡ β Π±ΡΡΡ, ΠΊΠΎΡΠΎΡΡΠΉ ΡΠ΅ΡΠ΅Π· ΠΏΠ΅ΡΠ»ΠΈ Π²ΠΎΡΠΏΡΠΈΠ½ΠΈΠΌΠ°Π΅Ρ ΠΈ ΡΠ΄Π΅ΡΠΆΠΈΠ²Π°Π΅Ρ Π²Π΅Ρ Π΄Π²Π΅ΡΠ΅ΠΉ;
- ΠΡΠΈΡΠΎΠ»ΠΎΠΊΠΈ ΠΈΠ»ΠΈ Π²Π΅ΡΡ Π½Π΅Π³ΠΎ ΠΏΠΎΠΏΠ΅ΡΠ΅ΡΠ½ΠΎΠ³ΠΎ Π±ΡΡΡΠ°, ΡΠΎΠ΅Π΄ΠΈΠ½ΡΡΡΠ΅Π³ΠΎ Π²Π΅ΡΡΠΈΠΊΠ°Π»ΡΠ½ΡΠ΅ ΡΡΠΎΠΉΠΊΠΈ.
ΠΡΠ»ΠΈ Π΄Π²Π΅ΡΠΈ ΠΏΠΎΠ»ΡΡΠ°ΡΡΡΡ Π΄ΠΎΡΡΠ°ΡΠΎΡΠ½ΠΎ ΡΡΠΆΠ΅Π»ΡΠΌΠΈ ΠΈΠ»ΠΈ Π±ΠΎΠ»ΡΡΠΎΠΉ ΡΠΈΡΠΈΠ½Ρ, Π² ΠΊΠΎΡΠΎΠ±ΠΊΡ Π΄ΠΎΠΏΠΎΠ»Π½ΠΈΡΠ΅Π»ΡΠ½ΠΎ ΡΡΡΠ°Π½Π°Π²Π»ΠΈΠ²Π°ΡΡ ΠΏΠΎΡΠΎΠΆΠ΅ΠΊ. Π ΠΏΡΠΎΡΠΈΠ²Π½ΠΎΠΌ ΡΠ»ΡΡΠ°Π΅ Π΄Π»Ρ ΠΌΠ΅ΠΆΠΊΠΎΠΌΠ½Π°ΡΠ½ΡΡ ΠΊΠΎΠ½ΡΡΡΡΠΊΡΠΈΠΉ ΠΎΠ±ΡΡΠ½ΠΎΠΉ ΡΠΈΡΠΈΠ½Ρ Π±ΠΎΠ»ΡΡΠ΅ ΠΏΠΎΠ΄ΠΎΠΉΠ΄Π΅Ρ Π-ΠΎΠ±ΡΠ°Π·Π½ΡΠΉ Π²Π°ΡΠΈΠ°Π½Ρ Π»ΡΡΠΊΠΈ.
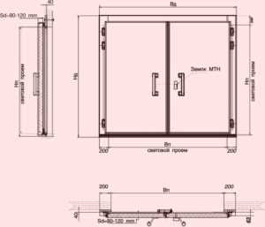
ΠΠΎΡΠ»Π΅ ΠΎΠ±ΠΌΠ΅ΡΠ° Π΄Π²Π΅ΡΠ½ΠΎΠ³ΠΎ ΠΏΠΎΠ»ΠΎΡΠ½Π° ΡΠ°ΡΡΡΠΈΡΡΠ²Π°ΡΡ ΡΠ΅Π°Π»ΡΠ½ΡΠΉ ΡΠ°Π·ΠΌΠ΅Ρ ΠΊΠΎΡΠΎΠ±ΠΊΠΈ, Π΅Π΅ ΡΠΈΡΠΈΠ½Ρ ΠΈ Π²ΡΡΠΎΡΡ. ΠΡΠΎΡΡΠΎ Π²Π·ΡΡΡ ΠΈ ΠΎΠ±ΡΠΈΡΡ Π΄Π²Π΅ΡΠΈ ΠΏΠΎ ΠΊΠΎΠ½ΡΡΡΡ Π½Π΅Π»ΡΠ·Ρ, Π² ΡΡΠΎΠΌ ΡΠ»ΡΡΠ°Π΅ ΠΏΠΎΠ»ΠΎΡΠ½ΠΎ ΠΏΡΠΎΡΡΠΎ Π½Π΅ Π±ΡΠ΄Π΅Ρ ΠΎΡΠΊΡΡΠ²Π°ΡΡΡΡ ΠΈ Π·Π°ΠΊΡΡΠ²Π°ΡΡΡΡ. ΠΠΎΡΡΠΎΠΌΡ ΠΊ ΠΈΠ·ΠΌΠ΅ΡΠ΅Π½Π½ΡΠΌ Π³Π°Π±Π°ΡΠΈΡΠ°ΠΌ ΠΏΡΠΈΡ ΠΎΠ΄ΠΈΡΡΡ Π΄ΠΎΠ±Π°Π²Π»ΡΡΡ ΡΠΈΡΠΈΠ½Ρ Π·Π°Π·ΠΎΡΠΎΠ², ΠΊΠ°ΠΊ Π½Π° ΠΏΡΠΈΠ²Π΅Π΄Π΅Π½Π½ΠΎΠΉ ΡΡ Π΅ΠΌΠ΅.
ΠΠΎ Π½Π°ΡΠ΅Π·ΠΊΠΈ Π²Π΅ΡΡΠΈΠΊΠ°Π»ΡΠ½ΡΡ ΠΈ Π³ΠΎΡΠΈΠ·ΠΎΠ½ΡΠ°Π»ΡΠ½ΡΡ ΡΠ»Π΅ΠΌΠ΅Π½ΡΠΎΠ² ΠΊΠΎΡΠΎΠ±ΠΊΠΈ Π½Π΅ΠΎΠ±Ρ ΠΎΠ΄ΠΈΠΌΠΎ ΠΎΠΏΡΠ΅Π΄Π΅Π»ΠΈΡΡΡΡ ΡΠΎ ΡΠΏΠΎΡΠΎΠ±ΠΎΠΌ ΡΠΎΠ΅Π΄ΠΈΠ½Π΅Π½ΠΈΡ Π΄ΠΎΡΠΎΠΊ ΠΈΠ»ΠΈ Π±ΡΡΡΠ° Π² ΠΎΠ΄Π½Ρ ΠΊΠΎΠ½ΡΡΡΡΠΊΡΠΈΡ. ΠΠ°ΠΈΠ±ΠΎΠ»Π΅Π΅ ΠΏΡΠΎΡΠ½ΡΠΌ ΠΈ ΠΏΡΠΎΡΡΡΠΌ Π² ΠΈΠ·Π³ΠΎΡΠΎΠ²Π»Π΅Π½ΠΈΠΈ ΡΠ²Π»ΡΠ΅ΡΡΡ ΡΡΡΠΊ ΠΏΠΎ ΡΠΈΠΏΡ ΡΠΈΠΏ-ΠΏΠ°Π·. ΠΠ»Ρ ΡΡΠΎΠ³ΠΎ Π²ΡΡΠ΅Π·Π°ΡΡ Π΄Π²Π΅ Π·Π°Π³ΠΎΡΠΎΠ²ΠΊΠΈ Π²Π΅ΡΡΠΈΠΊΠ°Π»ΡΠ½ΡΡ ΡΡΠΎΠ΅ΠΊ- Π½Π°Π²Π΅ΡΠ½ΠΎΠΉ ΠΈ ΠΏΡΠΈΡΠ²ΠΎΡΠ½ΠΎΠΉ ΡΠ°ΡΡΠ΅ΠΉ. Π ΡΠ°ΡΡΠ΅ΡΠ½ΠΎΠΉ Π΄Π»ΠΈΠ½Π΅ ΡΡΠΎΠΉΠΊΠΈ Π½Π΅ΠΎΠ±Ρ ΠΎΠ΄ΠΈΠΌΠΎ Π΄ΠΎΠ±Π°Π²ΠΈΡΡ ΡΠ΄Π²ΠΎΠ΅Π½Π½ΡΡ ΡΠΎΠ»ΡΠΈΠ½Ρ Π·Π°Π³ΠΎΡΠΎΠ²ΠΊΠΈ. ΠΠ½Π°Π»ΠΎΠ³ΠΈΡΠ½ΡΠΌ ΡΠΏΠΎΡΠΎΠ±ΠΎΠΌ ΡΠ°Π·ΠΌΠ΅ΡΠ°ΡΡ ΠΈ Π²ΡΡΠ΅Π·Π°ΡΡ ΠΏΡΠΈΡΠΎΠ»ΠΎΡΠ½ΡΠΉ Π±ΡΡΡ. ΠΠ° ΠΏΡΠΈΡΠΎΠ»ΠΎΠΊΠ΅ Ρ ΠΏΠΎΠΌΠΎΡΡΡ Π΄ΡΠ΅Π»ΠΈ ΠΈ Π½ΠΎΠΆΠΎΠ²ΠΊΠΈ Ρ ΠΎΠ±ΠΎΠΈΡ ΠΊΠΎΠ½ΡΠΎΠ² Π²ΡΡΠ΅Π·Π°ΡΡ ΡΠΈΠΏΡ, Π½Π° Π²Π΅ΡΡΠΈΠΊΠ°Π»ΡΠ½ΡΡ ΡΡΠΎΠΉΠΊΠ°Ρ ΠΏΠΎ Π³ΠΎΡΠΎΠ²ΡΠΌ ΡΠΈΠΏΠ°ΠΌ ΠΏΡΠΈΡΠΎΠ»ΠΎΠΊΠΈ ΡΠ°Π·ΠΌΠ΅ΡΠ°ΡΡ ΠΈ ΡΠ΅ΠΆΡΡ ΠΎΡΠ²Π΅ΡΠ½ΡΡ ΡΠ°ΡΡΡ Π² Π²ΠΈΠ΄Π΅ ΠΏΠ°Π·ΠΎΠ². ΠΠΎΡΠΎΠΆΠ΅ΠΊ ΠΈΠ·Π³ΠΎΡΠ°Π²Π»ΠΈΠ²Π°Π΅ΡΡΡ Π°Π½Π°Π»ΠΎΠ³ΠΈΡΠ½ΠΎ.
ΠΡΠ»ΠΈ ΡΠΈΡΠΈΠ½Π° ΡΡΠ΅Π½Ρ Π±ΠΎΠ»ΡΡΠ΅ ΡΠΎΠ»ΡΠΈΠ½Ρ ΠΊΠΎΡΠΎΠ±Π°, Π΄ΠΎΡΠΊΠΈ Π½Π°ΡΠ°ΡΠΈΠ²Π°ΡΡ Π΄ΠΎΠ±ΠΎΡΠ½ΡΠΌΠΈ ΡΠ»Π΅ΠΌΠ΅Π½ΡΠ°ΠΌΠΈ, ΠΊΠ°ΠΊ Π½Π° ΡΡ Π΅ΠΌΠ΅.
ΠΡΠ»ΠΈ ΡΠΈΡΠΈΠ½Π° ΠΏΡΠΎΠ΅ΠΌΠ° Π² ΡΡΠ΅Π½Π΅ Π±ΠΎΠ»ΡΡΠ΅ ΡΠ°Π·ΠΌΠ΅ΡΠ° ΠΊΠΎΡΠΎΠ±Π°, Π² ΡΡΠΎΠΌ ΡΠ»ΡΡΠ°Π΅ Π½Π° Π½Π°ΡΡΠΆΠ½ΡΡ ΡΠ°ΡΡΡ Π»ΡΡΠΊΠΈ, ΡΠΎ ΡΡΠΎΡΠΎΠ½Ρ ΠΏΠ΅ΡΠ΅Π»ΡΠ½ΠΎΠ³ΠΎ ΠΈΠ»ΠΈ Π½Π°Π²Π΅ΡΠ½ΠΎΠ³ΠΎ Π±ΡΡΡΠ° Π½Π°ΡΠΈΠ²Π°ΡΡ Π΄ΠΎΠΏΠΎΠ»Π½ΠΈΡΠ΅Π»ΡΠ½ΡΠΉ Π±ΡΡΡΠΎΠ²ΡΠΉ ΠΎΡΡΠ΅Π·ΠΎΠΊ, ΠΊΠ°ΠΊ Π½Π° ΡΡ Π΅ΠΌΠ΅. ΠΡΠ»ΠΈ ΡΠΈΡΠΈΠ½Π° ΠΏΡΠΎΠ΅ΠΌΠ° ΡΠ»ΠΈΡΠΊΠΎΠΌ Π²Π΅Π»ΠΈΠΊΠ°, Π°Π½Π°Π»ΠΎΠ³ΠΈΡΠ½ΡΠΌ ΡΠΏΠΎΡΠΎΠ±ΠΎΠΌ Π΄ΠΎΠΏΠΎΠ»Π½ΡΡΡ ΠΈ ΠΏΡΠΈΡΠ²ΠΎΡΠ½ΡΡ ΡΠ°ΡΡΡ ΠΊΠΎΡΠΎΠ±Π°.
Π‘Π±ΠΎΠΊΡ Π»ΡΡΠΊΠΈ Π²ΡΠΏΠΎΠ»Π½ΡΡΡ Π½Π° ΡΠ»ΠΎΠΆΠ΅Π½Π½ΠΎΠΌ Π² Π³ΠΎΡΠΈΠ·ΠΎΠ½ΡΠ°Π»ΡΠ½ΠΎΠΌ ΠΏΠΎΠ»ΠΎΠΆΠ΅Π½ΠΈΠΈ ΠΏΠΎΠ»ΠΎΡΠ½Π΅ Π΄Π²Π΅ΡΠΈ. ΠΠΎΡΠ»Π΅ ΠΏΠΎΠ΄Π³ΠΎΠ½ΠΊΠΈ Π²ΡΠ΅Ρ ΡΠ°ΡΡΠ΅ΠΉ ΠΈ Π²ΡΡΠ°Π²Π½ΠΈΠ²Π°Π½ΠΈΡ ΡΠ³Π»ΠΎΠ² ΠΊΠΎΡΠΎΠ±Π° ΡΡΡΠΊΠΈ ΠΏΡΠΎΠΊΠ»Π΅ΠΈΠ²Π°ΡΡ ΠΈ ΡΠΎΠ΅Π΄ΠΈΠ½ΡΡΡ ΡΡΠΎΠ»ΡΡΠ½ΡΠΌΠΈ ΡΠ°ΠΌΠΎΡΠ΅Π·Π°ΠΌΠΈ. Π§ΡΠΎΠ±Ρ ΡΠΎΡ ΡΠ°Π½ΠΈΡΡ ΠΏΠΎΠ»ΡΡΠ΅Π½Π½ΡΡ Π³Π΅ΠΎΠΌΠ΅ΡΡΠΈΡ Π»ΡΡΠΊΠΈ, ΠΊΠΎΠ½ΡΡΡΡΠΊΡΠΈΡ ΠΎΠ±ΡΠΈΠ²Π°ΡΡ Π΄Π΅ΡΠ΅Π²ΡΠ½Π½ΡΠΌΠΈ ΠΏΠ»Π°Π½ΠΊΠ°ΠΌΠΈ β ΡΠ°ΡΠΏΠΎΡΠΊΠ°ΠΌΠΈ, Π°ΠΊΠΊΡΡΠ°ΡΠ½ΠΎ ΡΠ½ΠΈΠΌΠ°ΡΡ Ρ Π΄Π²Π΅ΡΠ½ΠΎΠ³ΠΎ ΠΏΠΎΠ»ΠΎΡΠ½Π° ΠΈ ΡΡΡΠ°Π½Π°Π²Π»ΠΈΠ²Π°ΡΡ Π² Π΄Π²Π΅ΡΠ½ΠΎΠΉ ΠΏΡΠΎΠ΅ΠΌ.
Π£ΡΡΠ°Π½ΠΎΠ²ΠΊΠ° Π΄Π²Π΅ΡΠ½ΠΎΠΉ ΠΊΠΎΡΠΎΠ±ΠΊΠΈ
ΠΡΡΠΊΠ° Π±ΡΠ΄Π΅Ρ ΡΡΡΠ°Π½ΠΎΠ²Π»Π΅Π½Π° ΠΏΡΠ°Π²ΠΈΠ»ΡΠ½ΠΎ, Π΅ΡΠ»ΠΈ ΠΊΠ°ΠΆΠ΄ΠΎΠ΅ ΠΏΠ΅ΡΠ΅ΠΌΠ΅ΡΠ΅Π½ΠΈΠ΅ ΠΈΠ»ΠΈ Π²ΡΡΠ°Π²Π½ΠΈΠ²Π°Π½ΠΈΠ΅ ΠΊΠΎΠ½ΡΡΠΎΠ»ΠΈΡΠΎΠ²Π°ΡΡ Ρ ΠΏΠΎΠΌΠΎΡΡΡ ΡΡΡΠΎΠΈΡΠ΅Π»ΡΠ½ΠΎΠ³ΠΎ ΡΡΠΎΠ²Π½Ρ. ΠΠ·-Π·Π° ΠΌΠ°Π»ΠΎΠΉ ΠΆΠ΅ΡΡΠΊΠΎΡΡΠΈ ΠΊΠΎΠ½ΡΡΡΡΠΊΡΠΈΡ Β«ΠΈΠ³ΡΠ°Π΅ΡΒ», ΠΏΠΎΡΡΠΎΠΌΡ ΡΡΠ°Π·Ρ ΠΏΠΎΡΠ»Π΅ ΠΌΠΎΠ½ΡΠ°ΠΆΠ° ΠΏΡΠΎΠ΅ΠΌ ΠΊΠΎΡΠΎΠ±Π° ΡΠ»Π΅Π³ΠΊΠ° ΡΠ°ΡΠΊΠ»ΠΈΠ½ΠΈΠ²Π°ΡΡ ΡΠΎΠ½ΠΊΠΈΠΌΠΈ Π΄Π΅ΡΠ΅Π²ΡΠ½Π½ΡΠΌΠΈ Π±ΡΡΡΠΎΡΠΊΠ°ΠΌΠΈ. Π§ΡΠΎΠ±Ρ Π½Π΅ ΠΏΡΠΎΠΈΠ·ΠΎΡΠ»ΠΎ Π²ΡΠ΄Π°Π²Π»ΠΈΠ²Π°Π½ΠΈΡ Π±ΠΎΠΊΠΎΠ²ΠΈΠ½ ΠΈ ΠΏΠΎΡΠΎΠ»ΠΎΡΠ½ΠΎΠ³ΠΎ Π±ΡΡΡΠ° Π²Π½ΡΡΡΡ ΠΊΠ°ΡΠΊΠ°ΡΠ°, ΠΈΡΠΏΠΎΠ»ΡΠ·ΡΡΡ ΠΏΠ°ΡΡ Π΄Π΅ΡΠ΅Π²ΡΠ½Π½ΡΡ ΡΠ°ΡΠΏΠΎΡΠΎΠΊ, ΠΊΠ°ΠΊ Π½Π° ΡΠΎΡΠΎ.
ΠΠΎΡΠΎΠ±ΠΊΡ ΠΏΡΠ΅Π΄Π²Π°ΡΠΈΡΠ΅Π»ΡΠ½ΠΎ Π²ΡΡΠ°Π²Π½ΠΈΠ²Π°ΡΡ ΠΏΠΎ ΠΏΠΎΠΊΠ°Π·Π°Π½ΠΈΡΠΌ ΡΡΠΎΠ²Π½Π΅ΠΌΠ΅ΡΠ° ΠΈ Π΄Π΅Π»Π°ΡΡ Π·Π°ΡΠ΅ΡΠΊΠΈ Π½Π° ΡΡΠ΅Π½Π°Ρ , Π² Π΄Π°Π»ΡΠ½Π΅ΠΉΡΠ΅ΠΌ ΠΎΠ½ΠΈ ΠΏΠΎΠΌΠΎΠ³ΡΡ Π±ΡΡΡΡΠ΅Π΅ Π²ΠΎΡΡΡΠ°Π½ΠΎΠ²ΠΈΡΡ ΠΏΡΠ΅ΠΆΠ½Π΅Π΅ ΠΏΠΎΠ»ΠΎΠΆΠ΅Π½ΠΈΠ΅ Π»ΡΡΠΊΠΈ. ΠΠ΅ΡΠ΅Π²ΡΠ½Π½ΡΡ ΠΊΠΎΠ½ΡΡΡΡΠΊΡΠΈΡ ΠΊΡΠ΅ΠΏΠΈΠΌ ΠΊ ΡΡΠ΅Π½Π΅ Ρ ΠΏΠΎΠΌΠΎΡΡΡ Π΄Π»ΠΈΠ½Π½ΡΡ ΡΠ°ΠΌΠΎΡΠ΅Π·ΠΎΠ², Π΄Π»Ρ ΡΡΠΆΠ΅Π»ΡΡ Π΄Π²Π΅ΡΠ΅ΠΉ ΠΌΠΎΠΆΠ½ΠΎ ΠΈΡΠΏΠΎΠ»ΡΠ·ΠΎΠ²Π°ΡΡ Π°Π½ΠΊΠ΅ΡΠ½ΡΠ΅ ΠΊΡΠ΅ΠΏΠ»Π΅Π½ΠΈΡ.
ΠΠ° ΠΏΡΠΈΡΠΎΠ»ΠΎΠΊΠ΅ ΠΈ Π²Π΅ΡΡΠΈΠΊΠ°Π»ΡΠ½ΡΡ ΡΡΠΎΠΉΠΊΠ°Ρ ΡΠ»Π΅ΠΊΡΡΠΎΠ΄ΡΠ΅Π»ΡΡ ΡΠ²Π΅ΡΠ»ΠΈΠΌ ΠΏΠΎ Π΄Π²Π° ΡΠΎΠ½ΠΊΠΈΡ ΠΎΡΠ²Π΅ΡΡΡΠΈΡ, Π½Π° 0,5 ΠΌΠΌ ΠΌΠ΅Π½ΡΡΠ΅ Π΄ΠΈΠ°ΠΌΠ΅ΡΡΠ° ΡΠ°ΠΌΠΎΡΠ΅Π·Π°. ΠΠ°Π»Π΅Π΅ ΡΠ±ΠΈΡΠ°Π΅ΠΌ Π»ΡΡΠΊΡ, ΠΏΠΎ ΠΎΡΠΌΠ΅ΡΠΈΠ½Π°ΠΌ ΡΠ²Π΅ΡΠ»Π° Π½Π° ΡΡΠ΅Π½Π°Ρ ΠΏΡΠΎΠ±ΠΈΠ²Π°Π΅ΠΌ ΠΎΡΠ²Π΅ΡΡΡΠΈΡ ΠΈ ΡΡΡΠ°Π½Π°Π²Π»ΠΈΠ²Π°Π΅ΠΌ Π΄ΡΠ±Π΅Π»Ρ ΠΏΠΎΠ΄ 6-ΡΠΈ ΠΌΠΈΠ»Π»ΠΈΠΌΠ΅ΡΡΠΎΠ²ΡΠ΅ ΡΠ°ΠΌΠΎΡΠ΅Π·Ρ.
ΠΠΎΠ·Π²ΡΠ°ΡΠ°Π΅ΠΌ Π»ΡΡΠΊΡ Π½Π° ΠΌΠ΅ΡΡΠΎ, Π²ΡΡΠ°Π²Π»ΡΠ΅ΠΌ ΡΠ°ΠΌΠΎΡΠ΅Π·Ρ ΠΈ Π·Π°Π²ΠΎΡΠ°ΡΠΈΠ²Π°Π΅ΠΌ Π½Π° 10-15 ΠΌΠΌ. ΠΠΎΡΠ»Π΅ ΡΡΠΎΠ³ΠΎ Ρ ΠΏΠΎΠΌΠΎΡΡΡ ΡΡΠΎΠ²Π½Ρ Π²ΠΎΡΡΡΠ°Π½Π°Π²Π»ΠΈΠ²Π°Π΅ΠΌ ΠΏΡΠ°Π²ΠΈΠ»ΡΠ½ΠΎΠ΅ ΠΏΠΎΠ»ΠΎΠΆΠ΅Π½ΠΈΠ΅ ΠΊΠΎΡΠΎΠ±Π° ΠΈ Π²Π²ΠΎΡΠ°ΡΠΈΠ²Π°Π΅ΠΌ ΠΊΡΠ΅ΠΏΠ΅ΠΆ Π½Π° Π²ΡΡ Π΄Π»ΠΈΠ½Ρ. Π©Π΅Π»Ρ ΠΌΠ΅ΠΆΠ΄Ρ Π±ΡΡΡΠΎΠΌ ΠΈ ΡΡΠ΅Π½ΠΎΠΉ Π·Π°Π΄ΡΠ²Π°Π΅ΠΌ ΠΏΠ΅Π½ΠΎΠΉ.
ΠΠ°ΠΊΠ»ΡΡΠ΅Π½ΠΈΠ΅
ΠΠΎ Π·Π°ΡΡΡΠ²Π°Π½ΠΈΡ ΠΏΠ΅Π½Ρ Π½Π΅ΠΎΠ±Ρ ΠΎΠ΄ΠΈΠΌΠΎ Π΅ΡΠ΅ ΡΠ°Π· ΠΏΡΠΎΠ²Π΅ΡΠΈΡΡ ΠΏΠΎΠ»ΠΎΠΆΠ΅Π½ΠΈΠ΅ Π΄Π²Π΅ΡΠ½ΠΎΠ³ΠΎ ΠΊΠΎΡΠΎΠ±Π° ΠΏΠΎ Π΄Π°Π½Π½ΡΠΌ ΡΡΡΠΎΠΈΡΠ΅Π»ΡΠ½ΠΎΠ³ΠΎ ΡΡΠΎΠ²Π½Ρ, ΠΏΡΠΈ Π½Π΅ΠΎΠ±Ρ ΠΎΠ΄ΠΈΠΌΠΎΡΡΠΈ Π°ΠΊΠΊΡΡΠ°ΡΠ½ΠΎ ΠΏΠΎΠ΄Π±ΠΈΡΡ Π² ΠΌΠ΅ΡΡΠ΅ ΠΎΡΠΊΠ»ΠΎΠ½Π΅Π½ΠΈΡ. ΠΠΎΡΠ»Π΅ ΡΠΎΠ³ΠΎ ΠΊΠ°ΠΊ ΠΌΠΎΠ½ΡΠ°ΠΆΠ½Π°Ρ ΠΏΠ΅Π½Π° Π½Π°Π±Π΅ΡΠ΅Ρ ΠΏΠΎΠ»ΠΎΠ²ΠΈΠ½Ρ ΠΆΠ΅ΡΡΠΊΠΎΡΡΠΈ, Π½ΡΠΆΠ½ΠΎ Π΅ΡΠ΅ ΡΠ°Π· ΠΎΠ±ΡΡΠ½ΡΡΡ ΡΠ°ΠΌΠΎΡΠ΅Π·Ρ ΠΈ Π·Π°ΠΊΡΡΡΡ ΡΠ»ΡΠΏΠΊΠΈ Π΄Π΅ΠΊΠΎΡΠ°ΡΠΈΠ²Π½ΡΠΌΠΈ ΠΊΠΎΠ»ΠΏΠ°ΡΠΊΠ°ΠΌΠΈ. ΠΠΎΡΠ»Π΅ ΡΡΡΠ°Π½ΠΎΠ²ΠΊΠΈ Π½Π°Π²Π΅ΡΠΎΠ² ΠΊΡΠ΅ΠΏΠΈΠΌ Π½Π°Π»ΠΈΡΠ½ΠΈΠΊΠΈ.rusolymp.ru
Π‘ΡΠ°Π½Π΄Π°ΡΡΠ½Π°Ρ ΡΠΈΡΠΈΠ½Π° ΠΈ ΡΠΎΠ»ΡΠΈΠ½Π° Π΄Π²Π΅ΡΠ½ΠΎΠΉ ΠΊΠΎΡΠΎΠ±ΠΊΠΈ ΠΌΠ΅ΠΆΠΊΠΎΠΌΠ½Π°ΡΠ½ΠΎΠΉ Π΄Π²Π΅ΡΠΈ
Π Π΅ΠΌΠΎΠ½Ρ, ΠΎΡΠΎΠ±Π΅Π½Π½ΠΎ ΠΊΠ°ΠΏΠΈΡΠ°Π»ΡΠ½ΡΠΉ, ΡΠ»ΠΎΠΆΠ½ΡΠΉ ΠΏΡΠΎΡΠ΅ΡΡ. ΠΠ΅ΠΎΠ±Ρ ΠΎΠ΄ΠΈΠΌΠΎ Π·Π°ΡΠ°Π½Π΅Π΅ ΠΏΡΠΎΠ΄ΡΠΌΠ°ΡΡ ΠΌΠ½ΠΎΠ³ΠΈΠ΅ ΠΌΠΎΠΌΠ΅Π½ΡΡ, ΡΡΠΎΠ±Ρ ΠΏΠΎΡΠΎΠΌ Π½Π΅ ΠΏΡΠΈΡΠ»ΠΎΡΡ ΠΏΠ΅ΡΠ΅Π΄Π΅Π»ΡΠ²Π°ΡΡ, ΠΏΠΎΠ΄Π³ΠΎΠ½ΡΡΡ. ΠΠ΄Π½ΠΈΠΌ ΠΈΠ· Π²Π°ΠΆΠ½ΡΡ ΡΠ»Π΅ΠΌΠ΅Π½ΡΠΎΠ² ΠΏΡΠΈ ΠΌΠΎΠ½ΡΠ°ΠΆΠ΅ Π΄Π²Π΅ΡΠ½ΠΎΠ³ΠΎ Π±Π»ΠΎΠΊΠ° ΠΊΠ²Π°ΡΡΠΈΡΡ, ΡΠ²Π»ΡΠ΅ΡΡΡ ΡΠΈΡΠΈΠ½Π° Π΄Π²Π΅ΡΠ½ΠΎΠΉ ΠΊΠΎΡΠΎΠ±ΠΊΠΈ ΠΌΠ΅ΠΆΠΊΠΎΠΌΠ½Π°ΡΠ½ΠΎΠΉ Π΄Π²Π΅ΡΠΈ. ΠΠ»Ρ ΡΡΠΎΠ³ΠΎ, ΡΡΠΎΠ±Ρ Π΄Π²Π΅ΡΡ ΡΡΡΠ°Π½ΠΎΠ²ΠΈΡΡ, Π½ΡΠΆΠ½ΠΎ ΠΏΠΎΠ΄Π³ΠΎΡΠΎΠ²ΠΈΡΡ Π½ΡΠΆΠ½ΡΡ ΡΠ°Π·ΠΌΠ΅ΡΠΎΠ² ΠΏΡΠΎΠ΅ΠΌ Π² ΡΡΠ΅Π½Π΅. ΠΡΡΠ°Π½ΠΎΠ²ΠΈΠΌΡΡ Π½Π° Π²ΠΎΠΏΡΠΎΡΠ΅, ΠΊΠ°ΠΊ ΠΏΡΠ°Π²ΠΈΠ»ΡΠ½ΠΎ ΡΠ°ΡΡΡΠΈΡΠ°ΡΡ ΡΠΈΡΠΈΠ½Ρ ΠΏΡΠΎΠ΅ΠΌΠ°, ΠΊΠΎΡΠΎΠ±ΠΊΠΈ ΠΈ Π΄Π²Π΅ΡΠ½ΠΎΠ³ΠΎ ΠΏΠΎΠ»ΠΎΡΠ½Π°. ΠΡΠΎ Π²Π°ΠΆΠ½ΠΎ, Ρ ΡΠΎΡΠΊΠΈ Π·ΡΠ΅Π½ΠΈΡ Π½ΠΎΡΠΌΠ°Π»ΡΠ½ΠΎΠ³ΠΎ ΡΡΠ½ΠΊΡΠΈΠΎΠ½ΠΈΡΠΎΠ²Π°Π½ΠΈΡ Π΄Π²Π΅ΡΠΈ Π² ΡΠ΅Π»ΠΎΠΌ.

Π‘Ρ Π΅ΠΌΠ° Ρ ΡΠ°Π·ΠΌΠ΅ΡΠ°ΠΌΠΈ Π΄Π²Π΅ΡΠ½ΠΎΠΉ ΠΊΠΎΡΠΎΠ±ΠΊΠΈ ΠΌΠ΅ΠΆΠΊΠΎΠΌΠ½Π°ΡΠ½ΠΎΠΉ Π΄Π²Π΅ΡΠΈ
ΠΠ΅ΡΠ½ΡΡΡΡΡ ΠΊ ΠΎΠ³Π»Π°Π²Π»Π΅Π½ΠΈΡΠ‘ΠΎΠ΄Π΅ΡΠΆΠ°Π½ΠΈΠ΅ ΠΌΠ°ΡΠ΅ΡΠΈΠ°Π»Π°
ΠΡΠ½ΠΎΠ²Π½ΡΠ΅ ΠΏΠ°ΡΠ°ΠΌΠ΅ΡΡΡ Π΄Π²Π΅ΡΠ½ΠΎΠ³ΠΎ Π±Π»ΠΎΠΊΠ°
ΠΠΎΠ»ΡΡΠΈΠ½ΡΡΠ²ΠΎ ΠΏΡΠΎΠΈΠ·Π²ΠΎΠ΄ΠΈΡΠ΅Π»Π΅ΠΉ ΠΏΡΠΈ ΡΠ΅ΡΠΈΠΉΠ½ΠΎΠΌ ΠΏΡΠΎΠΈΠ·Π²ΠΎΠ΄ΡΡΠ²Π΅ Π΄Π²Π΅ΡΠΈ, ΠΊΠΎΡΠΎΠ±ΠΊΠΈ, Π½Π°Π»ΠΈΡΠ½ΠΈΠΊΠΎΠ² ΠΎΡΠΈΠ΅Π½ΡΠΈΡΡΡΡΡΡ Π½Π° ΠΏΡΠΈΠ½ΡΡΡΠ΅ Π² Π΄Π°Π½Π½ΠΎΠΉ ΡΡΡΠ°Π½Π΅ ΡΡΠ°Π½Π΄Π°ΡΡΡ. ΠΠ½ΠΈ ΠΎΡΡΠ°ΠΆΠ΅Π½Ρ Π² ΠΠΠ‘Π’Π°Ρ
(ΠΠΠ‘Π’ 6629-88) ΠΈ ΡΡΡΠΎΠΈΡΠ΅Π»ΡΠ½ΡΡ
Π½ΠΎΡΠΌΠ°Ρ
ΠΈ ΠΏΡΠ°Π²ΠΈΠ»Π°Ρ
(Π‘ΠΠΈΠ). Π‘ΡΠ°Π½Π΄Π°ΡΡ ΠΏΠΎΠ΄Ρ
ΠΎΠ΄ΠΈΡ Π΄Π»Ρ Π΄ΠΎΠΌΠΎΠ², ΠΊΠΎΡΠΎΡΡΠ΅ ΡΡΡΠΎΡΡ, ΠΎΠΏΠΈΡΠ°ΡΡΡ Π½Π° ΡΡΠΈ Π½ΠΎΡΠΌΡ. ΠΠΎ ΠΎΠ½ΠΈ Π½ΠΎΡΡΡ ΡΠΊΠΎΡΠ΅Π΅ ΠΎΠ±ΡΠΈΠΉ ΡΠ΅ΠΊΠΎΠΌΠ΅Π½Π΄Π°ΡΠ΅Π»ΡΠ½ΡΠΉ Ρ
Π°ΡΠ°ΠΊΡΠ΅Ρ.
Π‘ΡΠ΅Π΄ΠΈ ΠΌΠ½ΠΎΠ³ΠΎΠΎΠ±ΡΠ°Π·ΠΈΡ ΠΏΡΠΎΠ΅ΠΊΡΠ½ΡΡ ΡΠ΅ΡΠ΅Π½ΠΈΠΉ, Π΄Π°Π»Π΅ΠΊΠΎ Π½Π΅ Π²ΡΠ΅Π³Π΄Π° ΠΌΠΎΠΆΠ½ΠΎ Π²ΡΠ΄Π΅ΡΠΆΠΈΠ²Π°ΡΡΡΡ ΡΡΠ°Π½Π΄Π°ΡΡΠ½ΡΠ΅ ΡΠ°Π·ΠΌΠ΅ΡΡ ΡΠΎΠ»ΡΠΈΠ½Ρ ΡΡΠ΅Π½, ΠΎΡΠΎΠ±Π΅Π½Π½ΠΎ ΡΡΠΎ Ρ Π°ΡΠ°ΠΊΡΠ΅ΡΠ½ΠΎ Π΄Π»Ρ ΠΌΠΎΠ½ΠΎΠ»ΠΈΡΠ½ΠΎ-ΠΊΠ°ΡΠΊΠ°ΡΠ½ΠΎΠ³ΠΎ ΡΡΡΠΎΠΈΡΠ΅Π»ΡΡΡΠ²Π°. ΠΡΠΈ ΠΌΠΎΠ΄Π½ΠΎΠΉ ΡΠ΅ΠΉΡΠ°Ρ ΡΠ²ΠΎΠ±ΠΎΠ΄Π½ΠΎΠΉ ΠΏΠ»Π°Π½ΠΈΡΠΎΠ²ΠΊΠ΅, Π·Π°ΠΊΠ°Π·ΡΠΈΠΊ ΡΠ°ΠΌ Π²ΡΠ±ΠΈΡΠ°Π΅Ρ, ΠΊΠ°ΠΊΡΡ Π΄Π²Π΅ΡΡ, ΡΠΎΠΎΡΠ²Π΅ΡΡΡΠ²Π΅Π½Π½ΠΎ ΡΠΈΡΠΈΠ½Ρ ΠΏΡΠΎΠ΅ΠΌΠ°, ΠΎΠ½ Ρ ΠΎΡΠ΅Ρ ΡΠ΄Π΅Π»Π°ΡΡ.
Π ΡΡΠΎΠΌ ΡΠ»ΡΡΠ°Π΅, Π½ΡΠΆΠ½ΠΎ Π±ΡΡΡ Π³ΠΎΡΠΎΠ²ΡΠΌ ΠΊ ΡΠΎΠΌΡ, ΡΡΠΎ Π΅ΡΠ»ΠΈ Π²ΡΠ±ΡΠ°Π½Π½Π°Ρ ΡΠΈΡΠΈΠ½Π° Π½Π΅ ΡΠΎΠΎΡΠ²Π΅ΡΡΡΠ²ΡΠ΅Ρ Π½ΠΎΡΠΌΠ°ΡΠΈΠ²Π°ΠΌ, Π΄Π²Π΅ΡΠ½ΠΎΠΉ Π±Π»ΠΎΠΊ ΠΏΡΠΈΠ΄Π΅ΡΡΡ Π·Π°ΠΊΠ°Π·ΡΠ²Π°ΡΡ ΠΈΠ½Π΄ΠΈΠ²ΠΈΠ΄ΡΠ°Π»ΡΠ½ΠΎ. ΠΡΡΠ΅ΡΡΠ²Π΅Π½Π½ΡΠΌ ΡΡΠΎΠΈΡΡ Π±ΡΠ΄Π΅Ρ ΠΎΠ½ Π΄ΠΎΡΠΎΠΆΠ΅, ΡΡΠΆΠ°Π΅ΡΡΡ Π²ΡΠ±ΠΎΡ Π³ΠΎΡΠΎΠ²ΡΡ Π΄Π²Π΅ΡΠ½ΡΡ Π±Π»ΠΎΠΊΠΎΠ².
Π§Π΅ΡΡΠ΅ΠΆ ΠΈ ΡΡΠΊΠΈΠ· Π΄Π²Π΅ΡΠ½ΠΎΠΉ ΠΊΠΎΡΠΎΠ±ΠΊΠΈ
ΠΡΠΎΠ±Π»Π΅ΠΌΠ° Π½Π΅ΡΡΠ°Π½Π΄Π°ΡΡΠ½ΡΡ ΠΏΡΠΎΠ΅ΠΌΠΎΠ² ΡΠ°ΡΡΠΎ Π²ΠΎΠ·Π½ΠΈΠΊΠ°Π΅Ρ ΠΏΡΠΈ ΡΠ΅ΠΊΠΎΠ½ΡΡΡΡΠΊΡΠΈΠΈ ΡΡΠ°ΡΡΡ Π΄ΠΎΠΌΠΎΠ², ΠΎΡΠΎΠ±Π΅Π½Π½ΠΎ Ρ Π±ΠΎΠ»ΡΡΠΎΠΉ Π²ΡΡΠΎΡΠΎΠΉ ΠΏΠΎΡΠΎΠ»ΠΊΠΎΠ², ΠΊ ΠΏΡΠΈΠΌΠ΅ΡΡ, Π² Β«ΡΡΠ°Π»ΠΈΠ½ΠΊΠ°Ρ Β». ΠΠ΅ΠΎΠ±Ρ ΠΎΠ΄ΠΈΠΌΠΎ Π±ΡΠ΄Π΅Ρ Π»ΠΈΠ±ΠΎ ΠΏΠΎΠ΄Π³ΠΎΠ½ΡΡΡ ΠΏΡΠΎΠ΅ΠΌ Π΄ΠΎ ΡΡΠ°Π½Π΄Π°ΡΡΠΎΠ², Π»ΠΈΠ±ΠΎ ΡΠΎΠΆΠ΅ Π·Π°ΠΊΠ°Π·ΡΠ²Π°ΡΡ Π΄Π²Π΅ΡΠΈ ΠΈΠ½Π΄ΠΈΠ²ΠΈΠ΄ΡΠ°Π»ΡΠ½ΠΎ.
ΠΠ΅ΡΠ½ΡΡΡΡΡ ΠΊ ΠΎΠ³Π»Π°Π²Π»Π΅Π½ΠΈΡΠ‘ΡΠ°Π½Π΄Π°ΡΡΠ½Π°Ρ ΡΠΈΡΠΈΠ½Π° ΠΏΡΠΎΠ΅ΠΌΠ°, ΠΊΠΎΡΠΎΠ±ΠΊΠΈ, Π΄Π²Π΅ΡΠ½ΠΎΠ³ΠΎ ΠΏΠΎΠ»ΠΎΡΠ½Π°
ΠΠ΅ΡΠ²Π΅Π΄ΡΡΠΈΠ΅ Π»ΡΠ΄ΠΈ ΡΠ°ΡΡΠΎ ΠΏΡΡΠ°ΡΡ ΠΏΠΎΠ½ΡΡΠΈΡ Β«ΡΠΈΡΠΈΠ½Π° Π΄Π²Π΅ΡΠ½ΠΎΠ³ΠΎ ΠΏΡΠΎΠ΅ΠΌΠ°Β» ΠΈ Β«ΡΠΈΡΠΈΠ½Π° ΠΊΠΎΡΠΎΠ±ΠΊΠΈΒ». ΠΠ° ΡΡΠΎΡ ΠΌΠΎΠΌΠ΅Π½Ρ Π½ΡΠΆΠ½ΠΎ ΠΎΠ±ΡΠ°ΡΠΈΡΡ Π²Π½ΠΈΠΌΠ°Π½ΠΈΠ΅, ΡΠ°ΠΊ ΠΊΠ°ΠΊ ΡΡΠΎ ΠΌΠΎΠΆΠ΅Ρ ΠΏΡΠΈΠ²Π΅ΡΡΠΈ ΠΊ ΡΠΎΠΌΡ, ΡΡΠΎ ΠΏΡΠΈΠ΄Π΅ΡΡΡ ΠΌΠ΅Π½ΡΡΡ ΠΏΡΠΈΠΎΠ±ΡΠ΅ΡΠ΅Π½Π½ΡΠΉ ΠΊΠΎΠΌΠΏΠ»Π΅ΠΊΡ Π΄Π²Π΅ΡΠ½ΠΎΠ³ΠΎ Π±Π»ΠΎΠΊΠ°.

Π’Π°Π±Π»ΠΈΡΠ° ΡΠ°Π·ΠΌΠ΅ΡΠΎΠ² Π΄Π²Π΅ΡΠ½ΠΎΠ³ΠΎ ΠΏΠΎΠ»ΠΎΡΠ½Π°
ΠΡΠ½ΠΎΠ²Π½ΡΠ΅ ΡΠ΅ΡΠΌΠΈΠ½Ρ ΠΈ ΠΎΠ±ΠΎΠ·Π½Π°ΡΠ΅Π½ΠΈΡ:
ΠΡΠΎΠ΅ΠΌ.
- Π¨ΠΈΡΠΈΠ½Π° β ΡΠ°ΡΡΡΠΎΡΠ½ΠΈΠ΅ ΠΌΠ΅ΠΆΠ΄Ρ Π±ΠΎΠΊΠΎΠ²ΠΈΠ½Π°ΠΌΠΈ ΠΏΡΠΎΡΠ΅Π·Π°Π½Π½ΠΎΠ³ΠΎ Π² ΡΡΠ΅Π½Π΅ ΠΎΡΠ²Π΅ΡΡΡΠΈΡ Π΄Π»Ρ ΡΡΡΠ°Π½ΠΎΠ²ΠΊΠΈ ΠΊΠΎΡΠΎΠ±ΠΊΠΈ.
- ΠΡΡΠΎΡΠ° β ΠΈΠ·ΠΌΠ΅ΡΡΠ΅ΡΡΡ ΠΎΡ ΠΏΠΎΠ»Π° Π΄ΠΎ ΠΎΠΊΠΎΠ½ΡΠ°Π½ΠΈΡ ΡΡΠΎΠ³ΠΎ ΠΏΡΠΎΠ΅ΠΌΠ°.
- ΠΠ»ΡΠ±ΠΈΠ½Π° β ΡΠΎΠ»ΡΠΈΠ½Π° ΡΡΠ΅Π½Ρ Π² ΠΏΡΠΎΠ΅ΠΌΠ΅.
ΠΠΎΡΠΎΠ±ΠΊΠ°.
ΠΡΠ΅Π΄ΡΡΠ°Π²Π»ΡΠ΅Ρ ΡΠΎΠ±ΠΎΠΉ ΡΠ°ΠΌΠΎΡΠ½ΡΡ ΠΊΠΎΠ½ΡΡΡΡΠΊΡΠΈΡ, Π² ΠΊΠΎΡΠΎΡΡΡ ΠΌΠΎΠ½ΡΠΈΡΡΠ΅ΡΡΡ Π΄Π²Π΅ΡΡ.
- Π¨ΠΈΡΠΈΠ½Π° β ΡΠ°ΡΡΡΠΎΡΠ½ΠΈΠ΅ ΠΌΠ΅ΠΆΠ΄Ρ ΡΡΠΎΠΉΠΊΠ°ΠΌΠΈ.
- ΠΡΡΠΎΡΠ° β Π΄Π»ΠΈΠ½Π° ΡΡΠΎΠ΅ΠΊ.
- ΠΠ»ΡΠ±ΠΈΠ½Π° β ΡΠΈΡΠΈΠ½Π° Π±ΡΡΡΠ° ΡΡΠΎΠ΅ΠΊ.
ΠΠ²Π΅ΡΠ½ΠΎΠ΅ ΠΏΠΎΠ»ΠΎΡΠ½ΠΎ.
ΠΠ΅ΡΠ½ΡΡΡΡΡ ΠΊ ΠΎΠ³Π»Π°Π²Π»Π΅Π½ΠΈΡΠ‘ΡΠ°Π½Π΄Π°ΡΡΠ½ΠΎΠ΅ ΠΏΠΎΠ»ΠΎΡΠ½ΠΎ ΠΈΠΌΠ΅Π΅Ρ ΠΏΡΡΠΌΠΎΡΠ³ΠΎΠ»ΡΠ½ΡΡ ΡΠΎΡΠΌΡ. Π‘ΠΎΠΎΡΠ²Π΅ΡΡΡΠ²Π΅Π½Π½ΠΎ ΡΠ°Π·ΠΌΠ΅ΡΡ ΠΏΡΡΠΌΠΎΡΠ³ΠΎΠ»ΡΠ½ΠΈΠΊΠ° ΠΈ Π±ΡΠ΄ΡΡ ΡΠΈΡΠΈΠ½ΠΎΠΉ ΠΈ Π²ΡΡΠΎΡΠΎΠΉ, Π° Π³Π»ΡΠ±ΠΈΠ½Π° ΡΠΎΠ»ΡΠΈΠ½ΠΎΠΉ Π΄Π²Π΅ΡΠΈ.
ΠΠΎΡΠΌΠ°ΡΠΈΠ²Π½ΡΠ΅ ΡΠ°Π·ΠΌΠ΅ΡΡ
Π‘ΡΡΠ΅ΡΡΠ²ΡΠ΅Ρ Π½Π΅ΡΠΊΠΎΠ»ΡΠΊΠΎ ΡΡΠ°Π½Π΄Π°ΡΡΠΎΠ², ΠΊΠΎΡΠΎΡΡΡ ΡΡΠ°ΡΠ°ΡΡΡΡ ΠΏΡΠΈΠ΄Π΅ΡΠΆΠΈΠ²Π°ΡΡΡΡ ΡΡΡΠΎΠΈΡΠ΅Π»ΠΈ. ΠΡΠΈ ΠΈΡ ΡΠΎΠ±Π»ΡΠ΄Π΅Π½ΠΈΠΈ ΠΏΡΠΎΠ±Π»Π΅ΠΌ Ρ ΡΡΡΠ°Π½ΠΎΠ²ΠΊΠΎΠΉ Π΄Π²Π΅ΡΠ½ΠΎΠ³ΠΎ Π±Π»ΠΎΠΊΠ° Π½Π΅ Π²ΠΎΠ·Π½ΠΈΠΊΠ°Π΅Ρ.
Π‘ΡΠ°Π½Π΄Π°ΡΡΠ½ΡΠ΅ ΡΠ°Π·ΠΌΠ΅ΡΡ Π΄Π²Π΅ΡΠ½ΠΎΠ³ΠΎ ΠΏΠΎΠ»ΠΎΡΠ½Π°
ΠΡΠ½ΠΎΠ²Π½ΡΠ΅ Π½ΠΎΡΠΌΠ°ΡΠΈΠ²Ρ:
- Π¨ΠΈΡΠΈΠ½Π° Π΄Π²Π΅ΡΠ½ΠΎΠ³ΠΎ ΠΏΡΠΎΠ΅ΠΌΠ° Π΄ΠΎΠ»ΠΆΠ½Π° Π±ΡΡΡ Π½Π° 70 ΠΌΠΌ Π±ΠΎΠ»ΡΡΠ΅ ΡΠΈΡΠΈΠ½Ρ ΠΏΠΎΠ»ΠΎΡΠ½Π° Π΄Π²Π΅ΡΠ΅ΠΉ. ΠΡΠΎ Π½ΡΠΆΠ½ΠΎ Π΄Π»Ρ ΡΠΎΠ³ΠΎ, ΡΡΠΎΠ±Ρ ΠΎΡΡΠ°Π²Π°Π»ΠΎΡΡ ΠΏΡΠΎΡΡΡΠ°Π½ΡΡΠ²ΠΎ Π΄Π»Ρ ΡΡΡΠ°Π½ΠΎΠ²ΠΊΠΈ Π΄Π²Π΅ΡΠ½ΡΡ
ΠΏΠΎΠ»ΠΎΡΠ΅Π½ ΠΈ ΠΈΡ
ΡΡΠ½ΠΊΡΠΈΠΎΠ½ΠΈΡΠΎΠ²Π°Π½ΠΈΡ: 20 ΠΌΠΌ ΡΠΎ ΡΡΠΎΡΠΎΠ½Ρ ΠΏΠ΅ΡΠ΅Π»Ρ, 40 ΠΌΠΌ Ρ ΠΎΡΠΊΡΡΠ²Π°ΡΡΠ΅ΠΉΡΡ ΡΡΠΎΡΠΎΠ½Ρ.
Π‘Ρ Π΅ΠΌΠ° ΠΊΠΎΠ½ΡΡΡΡΠΊΡΠΈΠΈ ΠΊΠΎΡΠΎΠ±ΠΊΠΈ ΠΈ Π΄Π²Π΅ΡΠ½ΠΎΠ³ΠΎ ΠΏΠΎΠ»ΠΎΡΠ½Π°
- ΠΠ°Π·ΠΎΡΡ ΠΏΠΎ ΠΏΠ΅ΡΠΈΠΌΠ΅ΡΡΡ ΠΎΡ Π΄Π²Π΅ΡΠ½ΠΎΠΉ ΠΊΠΎΡΠΎΠ±ΠΊΠΈ Π΄ΠΎ ΠΌΠΎΠ½ΡΠ°ΠΆΠ½ΡΡ
ΡΠ°Π·ΠΌΠ΅ΡΠΎΠ² ΠΏΡΠΎΠ΅ΠΌΠ° Π΄ΠΎΠ»ΠΆΠ½ΠΎ ΡΠΎΡΡΠ°Π²Π»ΡΡΡ ΠΎΡ 50 ΠΌΠΌ Π΄ΠΎ 100 ΠΌΠΌ (Π΄Π»Ρ Π±ΠΎΠ»ΡΡΠΈΡ
ΡΠ°Π·ΠΌΠ΅ΡΠΎΠ² Π΄Π²Π΅ΡΠ΅ΠΉ). ΠΡΠΎ ΡΠ°ΠΊ Π½Π°Π·ΡΠ²Π°Π΅ΠΌΡΠ΅ ΠΌΠΎΠ½ΡΠ°ΠΆΠ½ΡΠ΅ Π·Π°Π·ΠΎΡΡ, ΠΊΠΎΡΠΎΡΡΠ΅ Π΄Π°ΡΡ Π²ΠΎΠ·ΠΌΠΎΠΆΠ½ΠΎΡΡΡ ΠΏΡΠ°Π²ΠΈΠ»ΡΠ½ΠΎ ΡΡΡΠ°Π½ΠΎΠ²ΠΈΡΡ ΠΈ Π²ΡΡΠΎΠ²Π½ΡΡΡ Π΄Π²Π΅ΡΠ½ΡΡ ΠΊΠΎΡΠΎΠ±ΠΊΡ. Π‘ΡΠ΄Π° Π²Ρ
ΠΎΠ΄ΠΈΡ ΠΈ ΡΠΎΠ»ΡΠΈΠ½Π° ΠΊΠΎΡΠΎΠ±Π°, ΡΡΠ°Π½Π΄Π°ΡΡΠ½Π°Ρ 25 ΠΌΠΌ, Π΅ΡΠ»ΠΈ ΡΡΠ° Π²Π΅Π»ΠΈΡΠΈΠ½Π° Π±ΠΎΠ»ΡΡΠ΅, ΡΠΎ ΠΌΠΈΠ½ΠΈΠΌΠ°Π»ΡΠ½ΡΠΉ ΠΌΠΎΠ½ΡΠ°ΠΆΠ½ΡΠΉ Π·Π°Π·ΠΎΡ Π΄ΠΎΠ»ΠΆΠ΅Π½ ΡΠΎΡΡΠ°Π²Π»ΡΡΡ 100 ΠΌΠΌ.
Π§Π΅ΡΡΠ΅ΠΆ Π΄Π²Π΅ΡΠ½ΠΎΠΉ ΠΊΠΎΡΠΎΠ±ΠΊΠΈ Ρ Π·Π°Π·ΠΎΡΠ°ΠΌΠΈ
ΠΡΠΈ ΠΌΠΎΠ½ΡΠ°ΠΆΠ΅ ΠΊΠΎΡΠΎΠ±Π° Π΅Π³ΠΎ Π²ΡΡΡΠ°Π²Π»ΡΡΡ ΠΏΠΎ ΡΡΠΎΠ²Π½Ρ ΠΈ Π·Π°ΠΊΠ»ΠΈΠ½ΠΈΠ²Π°ΡΡ Ρ ΠΏΠΎΠΌΠΎΡΡΡ ΡΠ°ΡΠΏΠΎΡΠΎΠΊ ΠΈΠ· ΡΠ΅ΠΏΡ Π±ΡΡΡΠ°. ΠΠ°ΡΠ΅ΠΌ ΡΠ΅Π»Ρ Π·Π°ΠΏΠ΅Π½ΠΈΠ²Π°ΡΡ. ΠΠΎΠ²Π½ΡΡΡΡ ΠΊΠΎΡΠΎΠ±ΠΊΠΈ ΡΠΎΠΆΠ΅ ΡΡΠ°Π²ΡΡ ΡΠ°ΡΠΏΠΎΡΠΊΠΈ, ΡΠ°ΠΊ ΠΊΠ°ΠΊ ΠΏΠ΅Π½Π°, ΡΠ°ΡΡΠΈΡΡΡΡΡ, ΠΌΠΎΠΆΠ΅Ρ Π²ΡΠ΄Π°Π²ΠΈΡΡ ΡΡΠΎΠΉΠΊΠΈ ΠΈ ΠΏΠ΅ΡΠ΅ΠΌΡΡΠΊΠΈ.
- ΠΠΏΡΠ΅Π΄Π΅Π»ΡΡ Π²ΡΡΠΎΡΡ ΠΊΠΎΡΠΎΠ±Π°, Π½Π΅ΠΎΠ±Ρ ΠΎΠ΄ΠΈΠΌΠΎ ΡΡΠΈΡΡΠ²Π°ΡΡ ΠΏΠΎΡΠΎΠ³, Π² ΡΡΠΎΠΌ ΡΠ»ΡΡΠ°Π΅ ΠΊΠΎΡΠΎΠ±ΠΊΠ° Π΄ΠΎΠ»ΠΆΠ½Π° Π±ΡΡΡ Π²ΡΡΠ΅ Π½Π° 80 ΠΌΠΌ. ΠΠ΅Π· Π½Π΅Π³ΠΎ β Π½Π° 50 ΠΌΠΌ. ΠΠ²Π΅ΡΡ Π² ΡΡΠΎΠΌ ΡΠ»ΡΡΠ°Π΅ Π½Π° 25 ΠΌΠΌ Π΄ΠΎΠ»ΠΆΠ½Π° Π±ΡΡΡ ΡΡΡΠ°Π½ΠΎΠ²Π»Π΅Π½Π° Π²ΡΡΠ΅ Π½Π° 25 ΠΌΠΌ ΠΎΡ ΠΏΠΎΠ»Π° ΠΈ Π³ΠΎΡΠΈΠ·ΠΎΠ½ΡΠ°Π»ΡΠ½ΠΎΠΉ Π²Π΅ΡΡ Π½Π΅ΠΉ ΠΏΠ»Π°Π½ΠΊΠΈ ΠΊΠΎΡΠΎΠ±Π°. Π‘ΡΠ°Π½Π΄Π°ΡΡΠ½Π°Ρ Π²ΡΡΠΎΡΠ° Π΄Π²Π΅ΡΠ½ΠΎΠ³ΠΎ ΠΏΠΎΠ»ΠΎΡΠ½Π° 2 ΡΡΡ. ΠΌΠΌ, 1900 ΠΌΠΌ.
ΠΡΠ½ΠΎΠ²ΠΎΠΉ Π΄Π»Ρ ΡΠ°ΡΡΠ΅ΡΠ° ΡΡΠ°Π½Π΅Ρ Π΄Π²Π΅ΡΠ½ΠΎΠ΅ ΠΏΠΎΠ»ΠΎΡΠ½ΠΎ. Π‘ΡΠ°Π½Π΄Π°ΡΡΠ½Π°Ρ ΡΠΈΡΠΈΠ½Π° ΡΠ°Π·ΠΌΠ΅ΡΠ° Π΄Π²Π΅ΡΠ΅ΠΉ: 600; 700; 800; 900 ΠΌΠΌ.
ΠΡΠΈΠ²Π΅Π΄Π΅ΠΌ ΠΏΡΠΈΠΌΠ΅Ρ ΡΠ°ΡΡΠ΅ΡΠΎΠ² ΠΊΠΎΡΠΎΠ±Π°:
ΠΠ²Π΅ΡΠ½ΠΎΠ΅ ΠΏΠΎΠ»ΠΎΡΠ½ΠΎ 80 ΡΠΌ / 800 ΠΌΠΌ ΠΏΠΎ ΡΠΈΡΠΈΠ½Π΅ ΠΈ 200 ΡΠΌ / 2 ΡΡΡ. ΠΌΠΌ ΠΏΠΎ Π²ΡΡΠΎΡΠ΅.
Π¨ΠΈΡΠΈΠ½Π° Π΄Π²Π΅ΡΠ½ΠΎΠΉ ΠΊΠΎΡΠΎΠ±ΠΊΠΈ: 800 + 70 = 870 ΠΌΠΌ
ΠΡΡΠΎΡΠ°: 2000 + 80 / 50 = 2080 /2050 ΠΌΠΌ
ΠΠΎΡΠΏΠΎΠ»ΡΠ·ΠΎΠ²Π°Π²ΡΠΈΡΡ ΡΠ°ΠΊΠΈΠΌ Π½Π΅ΡΠ»ΠΎΠΆΠ½ΡΠΌ ΡΠ°ΡΡΠ΅ΡΠΎΠΌ, Π²Ρ Π±Π΅Π· ΡΡΡΠ΄Π° ΠΏΠΎΠ»ΡΡΠΈΡΠ΅ ΠΏΡΠ°Π²ΠΈΠ»ΡΠ½ΡΠ΅ ΡΠ°Π·ΠΌΠ΅ΡΡ Π²ΡΠ΅Ρ ΡΠΎΡΡΠ°Π²Π»ΡΡΡΠΈΡ Π΄Π²Π΅ΡΠ½ΠΎΠ³ΠΎ Π±Π»ΠΎΠΊΠ°. Π’Π°ΠΊΠΎΠΉ Π½Π΅ΡΠ»ΠΎΠΆΠ½ΠΎΠΉ ΡΠΎΡΠΌΡΠ»ΠΎΠΉ ΠΏΠΎΠ»ΡΠ·ΡΡΡΡΡ ΠΏΡΠΈ ΡΠ°ΡΡΠ΅ΡΠ΅ ΠΈ Π½Π΅ΡΡΠ°Π½Π΄Π°ΡΡΠ½ΡΡ ΡΠ°Π·ΠΌΠ΅ΡΠΎΠ² ΠΏΠΎΠ»ΠΎΡΠ΅Π½.
Π’Π°Π±Π»ΠΈΡΠ° ΡΠΈΠΏΠΎΠ²ΡΡ ΡΠ°Π·ΠΌΠ΅ΡΠΎΠ² Π΄Π²Π΅ΡΠ½ΡΡ ΠΏΡΠΎΠ΅ΠΌΠΎΠ²
ΠΡΠΈ ΡΠ°ΡΡΠ΅ΡΠ΅ ΠΌΠ΅ΡΠ°Π»Π»ΠΈΡΠ΅ΡΠΊΠΎΠΉ Π²Ρ ΠΎΠ΄Π½ΠΎΠΉ Π΄Π²Π΅ΡΠΈ ΠΈΡΠΏΠΎΠ»ΡΠ·ΡΡΡ ΡΠ΅ ΠΆΠ΅ ΠΏΡΠ°Π²ΠΈΠ»Π°, ΡΠΎΠ»ΡΠΊΠΎ ΠΌΠΈΠ½ΠΈΠΌΠ°Π»ΡΠ½ΠΎΠ΅ ΡΠ°ΡΡΡΠΎΡΠ½ΠΈΠ΅ ΠΎΡ ΠΊΠΎΡΠΎΠ±Π° Π΄ΠΎ ΠΏΡΠΎΠ΅ΠΌΠ° Π΄ΠΎΠ»ΠΆΠ½ΠΎ ΡΠΎΡΡΠ°Π²Π»ΡΡΡ Π½Π΅ ΠΌΠ΅Π½Π΅Π΅ ΠΎΡ 150 Π΄ΠΎ 200 ΠΌΠΌ, ΡΡΠΈΡΡΠ²Π°Ρ ΡΠΈΡΠΈΠ½Ρ ΠΊΠΎΡΠΎΠ±ΠΊΠΈ. ΠΡΠΈ ΠΆΠ΅ ΠΏΠ°ΡΠ°ΠΌΠ΅ΡΡΡ ΡΠ΅ΠΊΠΎΠΌΠ΅Π½Π΄ΠΎΠ²Π°Π½Ρ Π΄Π»Ρ ΡΡΡΠ°Π½ΠΎΠ²ΠΊΠΈ Π΄Π²ΡΡ ΡΡΠ²ΠΎΡΡΠ°ΡΡΡ Π΄Π²Π΅ΡΠ΅ΠΉ. ΠΡΠΈ ΠΌΠΎΠ½ΡΠ°ΠΆΠ΅ ΡΡΠΆΠ΅Π»ΡΡ Π±ΡΠΎΠ½ΠΈΡΠΎΠ²Π°Π½Π½ΡΡ Π΄Π²Π΅ΡΠ΅ΠΉ ΠΏΡΠΈΡ ΠΎΠ΄ΠΈΡΡΡ ΡΡΠΈΠ»ΠΈΠ²Π°ΡΡ ΠΏΡΠΎΠ΅ΠΌ ΠΌΠ΅ΡΠ°Π»Π»ΠΎΠΌ. Π Π°ΡΡΠ΅Ρ Π² ΡΡΠΎΠΌ ΡΠ»ΡΡΠ°Π΅ Π΄ΠΎΠ»ΠΆΠ΅Π½ Π±ΡΡΡ ΠΎΡΠΎΠ±Π΅Π½Π½ΠΎ ΡΡΠ°ΡΠ΅Π»ΡΠ½ΡΠΌ.

ΠΡΠΎΠ΅ΠΊΡ ΠΈ ΡΠ΅ΡΡΠ΅ΠΆ Ρ ΡΠ°Π·ΠΌΠ΅ΡΠ°ΠΌΠΈ Π΄Π²ΡΡ ΡΡΠ²ΠΎΡΡΠ°ΡΡΡ Π΄Π²Π΅ΡΠ΅ΠΉ
ΠΡΠ΄Π΅Π»ΡΠ½ΠΎ ΡΡΠΎΠΈΡ ΠΎΡΡΠ°Π½ΠΎΠ²ΠΈΡΡΡΡ Π½Π° Π΄Π΅ΡΠ΅Π²ΡΠ½Π½ΡΡ ΠΏΠΎΠ»ΠΎΡΠ½Π°Ρ , ΡΡΠ°Π½Π΄Π°ΡΡΠ½ΡΡ ΠΈ ΠΈΠ·Π³ΠΎΡΠΎΠ²Π»Π΅Π½Π½ΡΡ ΠΏΠΎ ΠΈΠ½Π΄ΠΈΠ²ΠΈΠ΄ΡΠ°Π»ΡΠ½ΠΎΠΌΡ Π·Π°ΠΊΠ°Π·Ρ. ΠΠΎΠ»ΡΡΠ°Ρ ΡΠ°ΡΡΡ Π΄Π²Π΅ΡΠ½ΡΡ Π±Π»ΠΎΠΊΠΎΠ² ΠΈΠ· ΠΌΠ°ΡΡΠΈΠ²Π° ΠΈΠΌΠ΅ΡΡ Π±ΠΎΠ»Π΅Π΅ ΡΠΎΠ»ΡΡΡΠ΅ ΡΡΠ΅Π½ΠΊΠΈ ΠΊΠΎΡΠΎΠ±Π°. ΠΡΠΎΠ±Π΅Π½Π½ΠΎ ΡΡΠΎ ΠΊΠ°ΡΠ°Π΅ΡΡΡ ΡΠΈΡΠΎΠΊΠΈΡ Π΄Π²Π΅ΡΠ΅ΠΉ Π½Π° 800; 900 ΠΌΠΌ, Π΄Π²ΡΡΡΠ²ΠΎΡΡΠ°ΡΡΡ ΠΊΠΎΠ½ΡΡΡΡΠΊΡΠΈΠΉ. ΠΠ°ΡΡΠ΅ΡΠ° ΠΈΠ·Π³ΠΎΡΠ°Π²Π»ΠΈΠ²Π°ΡΡ ΠΌΠ°ΡΡΠΈΠ²Π½ΡΠ΅ ΠΊΠΎΡΠΎΠ±ΠΊΠΈ, ΡΡΠΎΠ±Ρ ΡΡΠΈΠ»ΠΈΡΡ ΠΊΠ°ΡΠΊΠ°Ρ. Π ΡΠΎΠΌΡ ΠΆΠ΅ ΡΠ°ΠΊΠΎΠΉ ΠΊΠΎΡΠΎΠ± Π³Π°ΡΠΌΠΎΠ½ΠΈΡΠ½ΠΎ ΡΠΎΡΠ΅ΡΠ°Π΅ΡΡΡ Ρ ΡΡΠΆΠ΅Π»ΡΠΌ Π΄Π΅ΡΠ΅Π²ΡΠ½Π½ΡΠΌ ΠΌΠ°ΡΡΠΈΠ²ΠΎΠΌ. ΠΡΠΎΡ ΠΌΠΎΠΌΠ΅Π½Ρ ΡΠ»Π΅Π΄ΡΠ΅Ρ ΡΡΠΈΡΡΠ²Π°ΡΡ ΠΏΡΠΈ ΡΠ°ΡΡΠ΅ΡΠ΅ Π΄Π²Π΅ΡΠ½ΠΎΠ³ΠΎ ΠΏΡΠΎΠ΅ΠΌΠ°.
ΠΠ΅ΡΠ½ΡΡΡΡΡ ΠΊ ΠΎΠ³Π»Π°Π²Π»Π΅Π½ΠΈΡΠΠ°ΠΊ ΠΏΠΎΡΡΡΠΏΠΈΡΡ Π΅ΡΠ»ΠΈ ΡΠΈΡΠΈΠ½Π° ΠΊΠΎΡΠΎΠ±Π° Π½Π΅ ΡΠΎΠΎΡΠ²Π΅ΡΡΡΠ²ΡΠ΅Ρ Π³Π°Π±Π°ΡΠΈΡΠ°ΠΌ ΠΏΡΠΎΠ΅ΠΌΠ°
ΠΠΎΠ³Π΄Π° ΠΏΡΠΎΠ΅ΠΌ ΠΌΠ΅Π½ΡΡΠ΅ Π½ΡΠΆΠ½ΡΡ Π³Π°Π±Π°ΡΠΈΡΠ½ΡΡ ΡΠ°Π·ΠΌΠ΅ΡΠΎΠ², ΡΠΎ Π² ΡΡΠΎΠΌ ΡΠ»ΡΡΠ°Π΅ Π΅Π³ΠΎ ΠΏΡΠΎΡΡΠΎ ΡΠ°ΡΡΠΈΡΡΡΡ. Π Π·Π°Π²ΠΈΡΠΈΠΌΠΎΡΡΠΈ ΠΎΡ ΠΌΠ°ΡΠ΅ΡΠΈΠ°Π»Π° ΡΡΠ΅Π½ ΠΈΡΠΏΠΎΠ»ΡΠ·ΡΡΡ ΡΠ°Π·Π½ΡΠ΅ ΠΌΠ΅ΡΠΎΠ΄Ρ:
- Π Π±Π΅ΡΠΎΠ½Π΅ ΡΠ½Π°ΡΠ°Π»Π° ΠΏΡΠΎΠ΄Π΅Π»ΡΠ²Π°ΡΡ ΠΏΠ΅ΡΡΠΎΡΠ°ΡΠΎΡΠΎΠΌ ΠΎΡΠ²Π΅ΡΡΡΠΈΡ ΠΏΠΎ ΠΏΠ΅ΡΠΈΠΌΠ΅ΡΡΡ, ΠΏΠΎΡΠΎΠΌ Π½Π°ΠΌΠ΅ΡΠ°ΡΡ Π΄Π΅ΡΠΎΡΠΌΠ°ΡΠΈΠΎΠ½Π½ΡΠΉ ΡΠΎΠ² ΠΈ Π²ΡΠ±ΠΈΠ²Π°ΡΡ ΡΠ°ΡΡΡ ΡΡΠ΅Π½Ρ.

ΠΏΡΠΎΡΠ΅ΡΡ ΡΠ°ΡΡΠΈΡΠ΅Π½ΠΈΡ Π΄Π²Π΅ΡΠ½ΠΎΠ³ΠΎ ΠΏΡΠΎΠ΅ΠΌΠ°
- ΠΠ»Ρ ΡΠΎΠ³ΠΎ ΡΡΠΎΠ±Ρ Π΄Π΅ΠΌΠΎΠ½ΡΠΈΡΠΎΠ²Π°ΡΡ ΡΠ°ΡΡΡ ΠΊΠΈΡΠΏΠΈΡΠ½ΠΎΠΉ ΠΊΠ»Π°Π΄ΠΊΠΈ Π»ΡΡΡΠ΅ ΡΡΡΠ°Π½ΠΎΠ²ΠΈΡΡ ΡΡΡΠ°Ρ ΠΎΠ²ΠΎΡΠ½ΡΠ΅ ΡΠ°ΡΠΏΠΎΡΠΊΠΈ ΠΈΠ· Π΄Π΅ΡΠ΅Π²Π°, ΡΡΠΎΠ±Ρ ΠΊΠΈΡΠΏΠΈΡ Π½Π΅ Π½Π°ΡΠ°Π» ΡΡΠΏΠ°ΡΡΡΡ. ΠΡΠ±ΠΈΡΡ Π°ΠΊΠΊΡΡΠ°ΡΠ½ΠΎ ΡΠ°ΡΡΡ ΠΊΠΈΡΠΏΠΈΡΠ½ΠΎΠΉ ΠΊΠ»Π°Π΄ΠΊΠΈ. ΠΠ°ΡΠ΅ΠΌ ΠΏΠ΅ΡΠ΅Π»ΠΎΠΆΠΈΡΡ Π΅Π΅ Π½Π° ΡΠ΅ΠΌΠ΅Π½ΡΠ½ΡΠΉ ΡΠ°ΡΡΠ²ΠΎΡ ΠΈ ΠΎΡΡΡΡΠΊΠ°ΡΡΡΠΈΡΡ.
- ΠΡΠ»ΠΈ ΡΡΠ΅Π½Π° ΡΠΌΠΎΠ½ΡΠΈΡΠΎΠ²Π°Π½Π° ΠΈΠ· Π³ΠΈΠΏΡΠΎΠΊΠ°ΡΡΠΎΠ½Π° Π½Π° ΠΏΡΠΎΡΠΈΠ»Ρ, ΡΠΎ ΡΠ±ΠΈΡΠ°ΡΡ ΠΎΠ΄Π½Ρ ΠΈΠ· ΡΡΠΎΠ΅ΡΠ½ΡΡ
ΠΏΠ»Π°Π½ΠΎΠΊ, ΠΏΡΠ΅Π΄Π²Π°ΡΠΈΡΠ΅Π»ΡΠ½ΠΎ ΠΏΠΎΠ΄ΡΠ΅Π·Π°Π² ΠΏΠ»ΠΈΡΡ ΠΠΠ. Π£ΡΡΠ°Π½Π°Π²Π»ΠΈΠ²Π°ΡΡ Π½ΠΎΠ²ΡΡ ΡΡΠΎΠΉΠΊΡ ΠΏΠΎ Π½ΡΠΆΠ½ΡΠΌ ΡΠ°Π·ΠΌΠ΅ΡΠ°ΠΌ ΠΈ ΡΠ½ΠΎΠ²Π° Π·Π°ΡΠΈΠ²Π°ΡΡ Π³ΠΈΠΏΡΠΎΠΌ.

- ΠΡΠΎΡΠ΅ Π²ΡΠ΅Π³ΠΎ ΡΠΎ ΡΡΠ΅Π½ΠΎΠΉ ΠΈΠ· Π³ΠΈΠΏΡΠΎΠ²ΠΎΠΉ ΠΏΠ»ΠΈΡΡ. ΠΠ΅ ΠΏΡΠΎΡΡΠΎ ΠΏΠΎΠ΄ΡΠ΅Π·Π°ΡΡ ΠΈ ΡΠ±ΠΈΡΠ°ΡΡ ΡΠ°ΡΡΡ.
Π‘ΠΌΠΎΡΡΠΈΡΠ΅ Π² Π²ΠΈΠ΄Π΅ΠΎ: ΠΏΡΠ°Π²ΠΈΠ»Π° Π·Π°ΠΌΠ΅ΡΠ° Π΄Π²Π΅ΡΠ½ΡΡ ΠΏΡΠΎΠ΅ΠΌΠΎΠ² ΠΏΠ΅ΡΠ΅Π΄ ΠΏΠΎΠΊΡΠΏΠΊΠΎΠΉ ΠΌΠ΅ΠΆΠΊΠΎΠΌΠ½Π°ΡΠ½ΡΡ Π΄Π²Π΅ΡΠ΅ΠΉ.
Π ΡΠΎΠΌ ΡΠ»ΡΡΠ°Π΅, ΠΊΠΎΠ³Π΄Π° ΠΏΡΠΎΠ΅ΠΌ Π±ΠΎΠ»ΡΡΠ΅, Π΅Π³ΠΎ Π½Π°ΡΠ°ΡΠΈΠ²Π°ΡΡ. ΠΡΠΎΡΠ΅ Π²ΡΠ΅Π³ΠΎ ΡΡΠΎ ΡΠ΄Π΅Π»Π°ΡΡ ΠΏΡΠΈ ΠΏΠΎΠΌΠΎΡΠΈ Π³ΠΈΠΏΡΠΎΠΊΠ°ΡΡΠΎΠ½Π°, ΡΡΡΠ°Π½ΠΎΠ²Π»Π΅Π½Π½ΠΎΠ³ΠΎ Π½Π° ΠΏΠ΅ΡΠ΅Π³ΠΎΡΠΎΠ΄ΠΎΡΠ½ΡΠΉ ΠΏΡΠΎΡΠΈΠ»Ρ. ΠΠΎΠΏΠΎΠ»Π½ΠΈΡΠ΅Π»ΡΠ½ΠΎ ΠΏΠ΅ΡΠΈΠΌΠ΅ΡΡ ΡΠ°ΡΡΠΎ ΡΡΠΈΠ»ΠΈΠ²Π°ΡΡ Π±ΡΡΡΠΎΠΌ. ΠΡΠΆΠ½ΠΎ ΠΎΡΠΌΠ΅ΡΠΈΡΡ, ΡΡΠΎ ΡΠΈΡΠΈΠ½Π° Π΄Π²Π΅ΡΠ½ΡΡ ΠΊΠΎΡΠΎΠ±ΠΎΠΊ ΠΌΠ΅ΠΆΠΊΠΎΠΌΠ½Π°ΡΠ½ΡΡ Π΄Π²Π΅ΡΠ΅ΠΉ, ΡΠΎΠ±Π»ΡΠ΄Π΅Π½ΠΈΡ ΠΏΡΠ°Π²ΠΈΠ»ΡΠ½ΡΡ ΠΌΠΎΠ½ΡΠ°ΠΆΠ½ΡΡ Π·Π°Π·ΠΎΡΠΎΠ², ΠΈΠΌΠ΅Π΅Ρ Π²Π΅ΡΠΎΠΌΠΎΠ΅ Π·Π½Π°ΡΠ΅Π½ΠΈΠ΅ ΠΏΡΠΈ ΡΡΡΠ°Π½ΠΎΠ²ΠΊΠ΅ Π΄Π²Π΅ΡΠ½ΠΎΠ³ΠΎ Π±Π»ΠΎΠΊΠ°.svoyadver.ru
Π Π°Π·ΠΌΠ΅ΡΡ ΠΊΠΎΡΠΎΠ±ΠΊΠΈ ΠΌΠ΅ΠΆΠΊΠΎΠΌΠ½Π°ΡΠ½ΡΡ Π΄Π²Π΅ΡΠ΅ΠΉ — ΠΡΡ ΠΎ ΠΌΠ΅ΠΆΠΊΠΎΠΌΠ½Π°ΡΠ½ΡΡ ΠΈ Π²Ρ ΠΎΠ΄Π½ΡΡ Π΄Π²Π΅ΡΡΡ
Π‘ΡΠ°Π½Π΄Π°ΡΡΠ½ΡΠ΅ ΡΠ°Π·ΠΌΠ΅ΡΡ ΠΌΠ΅ΠΆΠΊΠΎΠΌΠ½Π°ΡΠ½ΡΡ Π΄Π²Π΅ΡΠ΅ΠΉ Ρ ΠΊΠΎΡΠΎΠ±ΠΊΠΎΠΉ
ΠΡΠΈ Π²ΡΠ±ΠΎΡΠ΅ ΠΌΠ΅ΠΆΠΊΠΎΠΌΠ½Π°ΡΠ½ΡΡ Π΄Π²Π΅ΡΠ΅ΠΉ. Π³Π»Π°Π²Π½ΠΎΠ΅, Π½Π° ΡΡΠΎ Π½ΡΠΆΠ½ΠΎ ΠΎΠ±ΡΠ°ΡΠΈΡΡ Π²Π½ΠΈΠΌΠ°Π½ΠΈΠ΅ β ΡΡΠΎ ΠΈΡ Π³Π°Π±Π°ΡΠΈΡΡ. ΠΠ΅Π΄Ρ Π΄Π»Ρ ΡΠΎΠ³ΠΎ, ΡΡΠΎΠ±Ρ ΠΈΡΠΏΠΎΠ»Π½ΡΡΡ ΡΠ²ΠΎΠΈ ΡΡΠ½ΠΊΡΠΈΠΈ, ΠΎΠ½ΠΈ Π΄ΠΎΠ»ΠΆΠ½Ρ ΡΠ΅ΡΠΊΠΎ Π²ΡΡΠ°ΡΡ Π² ΠΏΡΠΎΠ΅ΠΌ, ΠΈΠ»ΠΈ ΠΈΠ½Π°ΡΠ΅ Π³ΠΎΠ²ΠΎΡΡ, ΠΈΠΌΠ΅ΡΡ ΠΏΠΎΠ΄Ρ ΠΎΠ΄ΡΡΠΈΠ΅ ΠΏΠ°ΡΠ°ΠΌΠ΅ΡΡΡ ΠΏΠΎ ΡΠΈΡΠΈΠ½Π΅, Π²ΡΡΠΎΡΠ΅ ΠΈ ΡΠΎΠ»ΡΠΈΠ½Π΅. ΠΠ΄ΠΈΠ½ΡΠ΅ ΡΡΡΠ°Π½ΠΎΠ²Π»Π΅Π½Π½ΡΠ΅ ΡΡΠ°Π½Π΄Π°ΡΡΡ, ΠΊΠΎΡΠΎΡΡΡ Π΄ΠΎΠ»ΠΆΠ½Ρ ΠΏΡΠΈΠ΄Π΅ΡΠΆΠΈΠ²Π°ΡΡΡΡ Π²ΡΠ΅ ΠΏΡΠΎΠΈΠ·Π²ΠΎΠ΄ΠΈΡΠ΅Π»ΠΈ, Π½Π΅ ΠΎΠΏΡΠ΅Π΄Π΅Π»Π΅Π½Ρ. ΠΠΎ Π΅ΡΡΡ ΡΡΡΠΎΠΈΡΠ΅Π»ΡΠ½ΡΠ΅ Π½ΠΎΡΠΌΡ, ΠΈΡΡ ΠΎΠ΄Ρ ΠΈΠ· ΠΊΠΎΡΠΎΡΡΡ , Π΄Π΅Π»Π°ΡΡΡΡ Π΄Π²Π΅ΡΠ½ΡΠ΅ ΠΏΡΠΎΠ΅ΠΌΡ. ΠΠΎΡΡΠΎΠΌΡ ΡΠΈΡΠΈΠ½Π°, Π²ΡΡΠΎΡΠ° ΠΈ ΡΠΎΠ»ΡΠΈΠ½Π° Π΄Π²Π΅ΡΠΈ Π½Π°ΠΏΡΡΠΌΡΡ Π·Π°Π²ΠΈΡΠΈΡ ΠΎΡ ΡΡΠΈΡ ΠΏΠΎΠΊΠ°Π·Π°ΡΠ΅Π»Π΅ΠΉ Π΄Π»Ρ Π΄Π²Π΅ΡΠ½ΠΎΠ³ΠΎ ΠΏΡΠΎΠ΅ΠΌΠ°.
Π Π°Π·ΠΌΠ΅ΡΡ ΠΏΠΎΠ»ΠΎΡΠ½Π°
ΠΠΏΠΈΡΠ°ΡΡΡ Π½Π° Π³Π°Π±Π°ΡΠΈΡΡ Π΄Π²Π΅ΡΠ½ΠΎΠ³ΠΎ ΠΏΡΠΎΠ΅ΠΌΠ°, ΡΡΠ°Π½Π΄Π°ΡΡΠ½Π°Ρ ΡΠΈΡΠΈΠ½Π° Π³ΠΎΡΠΎΠ²ΠΎΠΉ Π΄Π²Π΅ΡΠΈ ΠΎΡΠ΅ΡΠ΅ΡΡΠ²Π΅Π½Π½ΡΡ ΠΏΡΠΎΠΈΠ·Π²ΠΎΠ΄ΠΈΡΠ΅Π»Π΅ΠΉ ΠΌΠΎΠΆΠ΅Ρ Π½Π°Ρ ΠΎΠ΄ΠΈΡΡΡΡ Π² Π΄ΠΈΠ°ΠΏΠ°Π·ΠΎΠ½Π΅ ΠΎΡ 550 Π΄ΠΎ 900 ΠΌΠΌ. ΠΠ²ΡΠΎΠΏΠ΅ΠΉΡΠΊΠΈΠ΅ ΠΈΠ·Π΄Π΅Π»ΠΈΡ ΠΌΠΎΠ³ΡΡ ΡΠΎΡΡΠ°Π²Π»ΡΡΡ ΠΏΠΎ ΡΠΈΡΠΈΠ½Π΅ 600, 700, 800 ΠΈΠ»ΠΈ 900 ΠΌΠΌ.
Π ΠΌΠ½ΠΎΠ³ΠΎΠΊΠ²Π°ΡΡΠΈΡΠ½ΡΡ Π΄ΠΎΠΌΠ°Ρ , ΠΊΠ°ΠΊ ΠΏΡΠ°Π²ΠΈΠ»ΠΎ, ΡΠ°Π·ΠΌΠ΅Ρ ΠΏΡΠΎΠ΅ΠΌΠ°, Π° Π·Π½Π°ΡΠΈΡ ΠΈ Π΄Π²Π΅ΡΠΈ, ΠΎΡΠ»ΠΈΡΠ°Π΅ΡΡΡ Π² Π·Π°Π²ΠΈΡΠΈΠΌΠΎΡΡΠΈ ΠΎΡ Π½Π°Π·Π½Π°ΡΠ΅Π½ΠΈΡ ΠΊΠΎΠΌΠ½Π°ΡΡ.
- Π¨ΠΈΡΠΈΠ½Π° 550-600 ΠΌΠΌ ΠΎΠ±ΡΡΠ½ΠΎ Π΄Π΅Π»Π°Π΅ΡΡΡ Π΄Π»Ρ Π΄Π²Π΅ΡΠΈ Π² ΡΡΠ°Π»Π΅Ρ ΠΈ Π²Π°Π½Π½ΡΡ.
- ΠΡΠΎΠ΅ΠΌ Π² 700 ΠΌΠΌ ΡΠΎΠΎΡΡΠΆΠ°ΡΡ Π½Π° Π²Ρ ΠΎΠ΄Π΅ Π² ΠΊΡΡ Π½Ρ.
- ΠΠ²Π΅ΡΡΠΌΠΈ Π² 800 ΠΌΠΌ ΠΎΡΠ΄Π΅Π»ΡΡΡ ΠΆΠΈΠ»ΡΠ΅ ΠΏΠΎΠΌΠ΅ΡΠ΅Π½ΠΈΡ.
- ΠΠΎΠ»ΠΎΡΠ½ΠΎ ΡΠΈΡΠΈΠ½ΠΎΡ 900 ΠΌΠΌ ΡΠ°ΡΡΠΎ ΡΡΡΠ°Π½Π°Π²Π»ΠΈΠ²Π°ΡΡ Π² ΠΊΠ°ΡΠ΅ΡΡΠ²Π΅ Π²ΡΠΎΡΠΎΠΉ Π΄Π²Π΅ΡΠΈ Π½Π° Π²Ρ ΠΎΠ΄Π΅.
ΠΠ°ΠΈΠ±ΠΎΠ»Π΅Π΅ ΡΠ°ΡΠΏΡΠΎΡΡΡΠ°Π½Π΅Π½Π½Π°Ρ ΡΠΎΠ»ΡΠΈΠ½Π° ΡΠΎΠ²ΡΠ΅ΠΌΠ΅Π½Π½ΡΡ Π΄Π²Π΅ΡΠ΅ΠΉ ΠΌΠΎΠΆΠ΅Ρ Π»Π΅ΠΆΠ°ΡΡ Π² ΠΏΡΠ΅Π΄Π΅Π»Π°Ρ 35-40 ΠΌΠΌ. ΠΠΎ Π²ΠΎΠ·ΠΌΠΎΠΆΠ½Ρ ΠΎΡΠΊΠ»ΠΎΠ½Π΅Π½ΠΈΡ ΠΊΠ°ΠΊ Π² ΠΎΠ΄Π½Ρ, ΡΠ°ΠΊ ΠΈ Π΄ΡΡΠ³ΡΡ ΡΡΠΎΡΠΎΠ½Ρ. ΠΠ° Π½Π΅Π³ΠΎ Π²Π»ΠΈΡΡΡ Π²ΠΈΠ΄Ρ ΠΈΠ·Π΄Π΅Π»ΠΈΠΉ ΠΈ ΠΌΠ°ΡΠ΅ΡΠΈΠ°Π», ΠΈΠ· ΠΊΠΎΡΠΎΡΠΎΠ³ΠΎ ΠΎΠ½ΠΈ ΠΈΠ·Π³ΠΎΡΠΎΠ²Π»Π΅Π½Ρ. Π’Π°ΠΊ, ΡΠΎΠ»ΡΠΈΠ½Π° ΡΠ°Π·Π΄Π²ΠΈΠΆΠ½ΡΡ ΠΊΠΎΠ½ΡΡΡΡΠΊΡΠΈΠΉ ΠΌΠΎΠΆΠ΅Ρ ΡΠΎΡΡΠ°Π²Π»ΡΡΡ Π²ΡΠ΅Π³ΠΎ 20 ΠΌΠΌ. Π ΠΏΠΎΠ»ΠΎΡΠ½Π°, Π²ΡΠΏΠΎΠ»Π½Π΅Π½Π½ΡΠ΅ ΠΈΠ· Π΄Π΅ΡΠ΅Π²Π°, ΠΌΠΎΠ³ΡΡ Π΄ΠΎΡ ΠΎΠ΄ΠΈΡΡ ΠΈ Π΄ΠΎ 50 ΠΌΠΌ.
ΠΡΡΠΎΡΠ° Π΄Π²Π΅ΡΠΈ Π΅ΡΠ΅ Π½Π΅ΡΠΊΠΎΠ»ΡΠΊΠΎ Π΄Π΅ΡΡΡΠΈΠ»Π΅ΡΠΈΠΉ Π½Π°Π·Π°Π΄ ΠΌΠΎΠ³Π»Π° ΠΈΠΌΠ΅ΡΡ Π΄Π²Π° Π·Π½Π°ΡΠ΅Π½ΠΈΡ: 1,9 ΠΈΠ»ΠΈ 2 ΠΌΠ΅ΡΡΠ°. Π‘Π΅Π³ΠΎΠ΄Π½Ρ Π²ΡΠ»Π΅Π΄ΡΡΠ²ΠΈΠ΅ ΠΈΡΠΏΠΎΠ»ΡΠ·ΠΎΠ²Π°Π½ΠΈΡ ΡΠ°Π·Π»ΠΈΡΠ½ΡΡ ΡΡΠΈΠ»Π΅ΠΉ ΠΈ Π΄ΠΈΠ·Π°ΠΉΠ½Π΅ΡΡΠΊΠΈΡ ΡΠ΅ΡΠ΅Π½ΠΈΠΉ, ΠΏΡΠ΅Π΄Π»Π°Π³Π°Π΅ΠΌΡΠ΅ ΠΏΡΠΎΠΈΠ·Π²ΠΎΠ΄ΠΈΡΠ΅Π»ΡΠΌΠΈ ΠΏΠ°ΡΠ°ΠΌΠ΅ΡΡΡ ΠΌΠΎΠ³ΡΡ Π΄ΠΎΡΡΠΈΠ³Π°ΡΡ 2,1 ΠΈ Π΄Π°ΠΆΠ΅ 2,3 ΠΌΠ΅ΡΡΠΎΠ². Π‘ΡΠ°Π½Π΄Π°ΡΡΡ ΠΏΠΎ Π²ΡΡΠΎΡΠ΅ Ρ Π½Π°Ρ ΡΠΎΡΡΠ°Π²Π»ΡΡΡ 2 ΠΌΠ΅ΡΡΠ°, Π° Π² ΠΠ²ΡΠΎΠΏΠ΅ 2,1. Π‘ΡΠΎΠΈΡ ΠΎΡΠΌΠ΅ΡΠΈΡΡ, ΡΡΠΎ Π² ΠΏΠΎΡΠ»Π΅Π΄Π½Π΅Π΅ Π²ΡΠ΅ΠΌΡ ΠΏΡΠΎΠ΅ΠΊΡΠΈΡΠΎΠ²ΡΠΈΠΊΠΈ ΠΈ ΡΡΡΠΎΠΈΡΠ΅Π»ΠΈ Π²ΡΠ΅ ΡΠ°ΡΠ΅ ΠΎΠΏΠΈΡΠ°ΡΡΡΡ Π½Π° Π·Π°ΡΡΠ±Π΅ΠΆΠ½ΡΠ΅ Π½ΠΎΡΠΌΡ.
Π Π°Π·ΠΌΠ΅ΡΡ ΠΊΠΎΡΠΎΠ±ΠΊΠΈ
ΠΠ²Π΅ΡΠΈ ΠΌΠΎΠ³ΡΡ ΠΏΡΠΎΠ΄Π°Π²Π°ΡΡΡΡ Π²ΠΌΠ΅ΡΡΠ΅ Ρ Π³ΠΎΡΠΎΠ²ΠΎΠΉ ΠΊΠΎΡΠΎΠ±ΠΊΠΎΠΉ ΠΈ ΡΡΡΠ½ΠΈΡΡΡΠΎΠΉ ΠΈΠ»ΠΈ Π±Π΅Π· Π½Π΅Π΅. ΠΠ½Π° ΠΏΡΠ΅Π΄ΡΡΠ°Π²Π»ΡΠ΅Ρ ΡΠΎΠ±ΠΎΠΉ Π-ΠΎΠ±ΡΠ°Π·Π½ΡΡ ΠΊΠΎΠ½ΡΡΡΡΠΊΡΠΈΡ ΠΈ ΠΌΠΎΠ½ΡΠΈΡΡΠ΅ΡΡΡ ΠΏΠΎ ΠΏΠ΅ΡΠΈΠΌΠ΅ΡΡΡ ΠΏΡΠΎΠ΅ΠΌΠ°, ΠΏΠΎΠΌΠΎΠ³Π°Ρ ΡΠΈΠΊΡΠΈΡΠΎΠ²Π°ΡΡ ΠΏΠΎΠ»ΠΎΡΠ½ΠΎ ΡΡΡΠ½ΠΈΡΡΡΠΎΠΉ. Π‘ΡΠ°Π½Π΄Π°ΡΡΠ½ΡΠ΅ ΡΠ°Π·ΠΌΠ΅ΡΡ Π΄Π²Π΅ΡΠ½ΡΡ ΠΊΠΎΡΠΎΠ±ΠΎΠ² Π΄Π»Ρ ΠΌΠ΅ΠΆΠΊΠΎΠΌΠ½Π°ΡΠ½ΡΡ Π΄Π²Π΅ΡΠ΅ΠΉ Π±ΡΠ΄ΡΡ ΠΎΡΠ»ΠΈΡΠ°ΡΡΡΡ Π΄ΡΡΠ³ ΠΎΡ Π΄ΡΡΠ³Π°, ΠΈ Π·Π°Π²ΠΈΡΠ΅ΡΡ ΠΎΡ Π²Π΅Π»ΠΈΡΠΈΠ½Ρ Π΄Π²Π΅ΡΠ½ΠΎΠ³ΠΎ ΠΏΠΎΠ»ΠΎΡΠ½Π°. ΠΠΎΡΡΠΎΠΌΡ Π»ΡΡΡΠ΅ ΠΏΠΎΠΊΡΠΏΠ°ΡΡ Π΄Π²Π΅ΡΡ Π² ΡΠ±ΠΎΡΠ΅ Ρ ΡΠΆΠ΅ Π³ΠΎΡΠΎΠ²ΠΎΠΉ ΠΊΠΎΡΠΎΠ±ΠΊΠΎΠΉ, ΡΡΡΠ½ΠΈΡΡΡΠΎΠΉ ΠΈ Π½Π°Π»ΠΈΡΠ½ΠΈΠΊΠ°ΠΌΠΈ.
ΠΠ·Π³ΠΎΡΠ°Π²Π»ΠΈΠ²Π°Π΅ΡΡΡ Π΄Π²Π΅ΡΠ½Π°Ρ ΠΊΠΎΡΠΎΠ±ΠΊΠ° ΠΈΠ· Π±ΡΡΡΠΊΠΎΠ², ΠΊΠΎΡΠΎΡΡΠ΅ ΠΌΠΎΠ³ΡΡ ΠΎΡΠ»ΠΈΡΠ°ΡΡΡΡ ΠΏΠΎ ΠΏΠ°ΡΠ°ΠΌΠ΅ΡΡΠ°ΠΌ. ΠΡ ΡΠΈΡΠΈΠ½Π° ΠΊΠΎΠ»Π΅Π±Π»Π΅ΡΡΡ ΠΌΠ΅ΠΆΠ΄Ρ 15 ΠΈ 40 ΠΌΠΌ, Π½ΠΎ ΠΎΠΏΡΠΈΠΌΠ°Π»ΡΠ½ΡΠΌΠΈ ΡΡΠΈΡΠ°ΡΡΡΡ Π·Π½Π°ΡΠ΅Π½ΠΈΡ 30-35 ΠΌΠΌ. ΠΡΠΈ ΠΈΡ ΡΠΎΠ±Π»ΡΠ΄Π΅Π½ΠΈΠΈ ΠΎΠ±Π΅ΡΠΏΠ΅ΡΠΈΠ²Π°Π΅ΡΡΡ Π½Π°Π΄Π΅ΠΆΠ½ΠΎΡΡΡ Π²ΡΠ΅ΠΉ ΠΊΠΎΠ½ΡΡΡΡΠΊΡΠΈΠΈ ΠΈ Π΄Π»ΠΈΡΠ΅Π»ΡΠ½ΡΠΉ ΡΡΠΎΠΊ ΡΠΊΡΠΏΠ»ΡΠ°ΡΠ°ΡΠΈΠΈ.
Π’ΠΎΠ»ΡΠΈΠ½Π° ΠΊΠΎΡΠΎΠ±Π° Π΄ΠΎΠ»ΠΆΠ½Π° ΡΠΎΠΎΡΠ²Π΅ΡΡΡΠ²ΠΎΠ²Π°ΡΡ ΡΠΎΠ»ΡΠΈΠ½Π΅ ΡΡΠ΅Π½Ρ. ΠΡΠΎ Π·Π½Π°ΡΠ΅Π½ΠΈΠ΅ Π²Π°ΠΆΠ½ΠΎ, ΠΏΠΎΡΠΎΠΌΡ ΡΡΠΎ ΠΎΠ½ΠΎ Π½Π΅ Π΄ΠΎΠ»ΠΆΠ½ΠΎ ΠΏΡΠ΅Π²ΡΡΠ°ΡΡ ΡΠΈΡΠΈΠ½Ρ ΠΏΡΠΎΠ΅ΠΌΠ°, Π² ΠΊΠΎΡΠΎΡΡΠΉ Π±ΡΠ΄Π΅Ρ ΠΏΡΠΎΠΈΠ·Π²ΠΎΠ΄ΠΈΡΡΡΡ ΡΡΡΠ°Π½ΠΎΠ²ΠΊΠ°. ΠΠ»Ρ ΠΊΠΈΡΠΏΠΈΡΠ½ΡΡ ΡΡΠ΅Π½ ΡΡΠ°Π½Π΄Π°ΡΡΠ½Π°Ρ ΡΠΎΠ»ΡΠΈΠ½Π° ΡΠΎΡΡΠ°Π²Π»ΡΠ΅Ρ 75 ΠΌΠΌ, Π° Π΄Π»Ρ Π΄Π΅ΡΠ΅Π²ΡΠ½Π½ΡΡ β 100. ΠΡΠ»ΠΈ ΠΊΠΎΠ½ΡΡΡΡΠΊΡΠΈΡ Π±ΠΎΠ»Π΅Π΅ ΡΠ·ΠΊΠ°Ρ, ΡΠΎ Π½ΡΠΆΠ½ΠΎ Π±ΡΠ΄Π΅Ρ ΠΈΡΠΏΠΎΠ»ΡΠ·ΠΎΠ²Π°ΡΡ ΡΠΏΠ΅ΡΠΈΠ°Π»ΡΠ½ΡΠ΅ Π΄ΠΎΠ±ΠΎΡΠ½ΡΠ΅ ΡΠ»Π΅ΠΌΠ΅Π½ΡΡ. Π ΠΊΠΎΡΠΎΠ±, ΠΏΠΎ ΡΠ°Π·ΠΌΠ΅ΡΠ°ΠΌ Π±ΠΎΠ»ΡΡΠΈΠΉ ΡΠ΅ΠΌ ΡΡΠ΅Π½Π°, Π°ΠΊΠΊΡΡΠ°ΡΠ½ΠΎ ΠΈ Π½Π°Π΄Π΅ΠΆΠ½ΠΎ Π·Π°ΠΊΡΠ΅ΠΏΠΈΡΡ Π½Π΅ ΡΠ΄Π°ΡΡΡΡ.
ΠΡΠΈ ΡΠ±ΠΎΡΠ΅ ΠΊΠΎΡΠΎΠ±ΠΊΠΈ Π²ΡΡΡΠ½ΡΡ, Π΄Π»Ρ ΠΎΠΏΡΠ΅Π΄Π΅Π»Π΅Π½ΠΈΡ ΡΠ°Π·ΠΌΠ΅ΡΠ° Π²Π΅ΡΡΠΈΠΊΠ°Π»ΡΠ½ΡΡ ΡΡΠΎΠ΅ΠΊ, ΡΡΠΈΡΡΠ²Π°Π΅ΡΡΡ Π²ΡΡΠΎΡΠ° ΠΏΠΎΠ»ΠΎΡΠ½Π° ΠΈ ΡΠΎΠ»ΡΠΈΠ½Π° Π³ΠΎΡΠΈΠ·ΠΎΠ½ΡΠ°Π»ΡΠ½ΠΎΠΉ ΠΏΠ»Π°Π½ΠΊΠΈ, ΠΌΠΎΠ½ΡΠ°ΠΆΠ½ΡΠΉ Π·Π°Π·ΠΎΡ ΠΈ Π²Π΅Π»ΠΈΡΠΈΠ½Π° Π²Π΅Π½ΡΠΈΠ»ΡΡΠΈΠΎΠ½Π½ΠΎΠΉ ΡΠ΅Π»ΠΈ ΠΈΠ»ΠΈ ΠΏΠΎΡΠΎΠ³Π°. ΠΠ΅Π»ΠΈΡΠΈΠ½Π° Π³ΠΎΡΠΈΠ·ΠΎΠ½ΡΠ°Π»ΡΠ½ΠΎΠΉ ΡΠ°ΡΡΠΈ ΠΎΠΏΡΠ΅Π΄Π΅Π»ΡΠ΅ΡΡΡ ΠΈΡΡ ΠΎΠ΄Ρ ΠΈΠ· ΡΠΈΡΠΈΠ½Ρ Π΄Π²Π΅ΡΠΈ.
Π Π°Π·ΠΌΠ΅ΡΡ ΠΏΡΠΎΠ΅ΠΌΠΎΠ²
ΠΠ½Π°Ρ ΡΡΠ°Π½Π΄Π°ΡΡΠ½ΡΠ΅ ΡΠ°Π·ΠΌΠ΅ΡΡ ΠΌΠ΅ΠΆΠΊΠΎΠΌΠ½Π°ΡΠ½ΡΡ Π΄Π²Π΅ΡΠ΅ΠΉ Ρ ΠΊΠΎΡΠΎΠ±ΠΊΠΎΠΉ ΠΈ ΡΡΡΠ½ΠΈΡΡΡΠΎΠΉ, ΠΌΠΎΠΆΠ½ΠΎ Π±Π΅Π· ΠΏΡΠΎΠ±Π»Π΅ΠΌ ΠΎΠΏΡΠ΅Π΄Π΅Π»ΠΈΡΡ ΡΠΈΡΠΈΠ½Ρ ΠΏΡΠΎΠ΅ΠΌΠ° ΠΏΡΠΈ ΡΡΡΠΎΠΈΡΠ΅Π»ΡΡΡΠ²Π΅ ΡΡΠ΅Π½ ΠΈ ΡΠΎΠΎΡΡΠΆΠ΅Π½ΠΈΠΈ ΠΏΠ΅ΡΠ΅Π³ΠΎΡΠΎΠ΄ΠΎΠΊ. ΠΠ»Ρ ΡΡΠΎΠ³ΠΎ ΠΊ ΡΠΈΡΠΈΠ½Π΅ ΠΏΠΎΠ»ΠΎΡΠ½Π° Π΄ΠΎΠ±Π°Π²Π»ΡΠ΅ΡΡΡ Π΄Π²ΠΎΠΉΠ½Π°Ρ ΡΠΈΡΠΈΠ½Π° Π΄Π²Π΅ΡΠ½ΠΎΠΉ ΠΊΠΎΡΠΎΠ±ΠΊΠΈ ΠΌΠ΅ΠΆΠΊΠΎΠΌΠ½Π°ΡΠ½ΠΎΠΉ Π΄Π²Π΅ΡΠΈ ΠΈ Π²Π΅Π»ΠΈΡΠΈΠ½Π° ΠΌΠΎΠ½ΡΠ°ΠΆΠ½ΠΎΠ³ΠΎ Π·Π°Π·ΠΎΡΠ° Ρ Π΄Π²ΡΡ ΡΡΠΎΡΠΎΠ½. ΠΠ½ ΠΎΠ±ΡΡΠ½ΠΎ ΡΠΎΡΡΠ°Π²Π»ΡΠ΅Ρ 15 ΠΌΠΌ. ΠΠ°ΠΏΡΠΈΠΌΠ΅Ρ, 800+30*2+15*2=890 ΠΌΠΌ.
ΠΡΡΠΎΡΠ° Π²ΡΡΡΠΈΡΡΠ²Π°Π΅ΡΡΡ ΠΏΠΎΠ΄ΠΎΠ±Π½ΡΠΌ ΠΎΠ±ΡΠ°Π·ΠΎΠΌ. ΠΠ»Ρ Π΄Π²Π΅ΡΠΈ Π±Π΅Π· ΠΏΠΎΡΠΎΠ³Π° ΠΎΠ½Π° ΡΠΎΡΡΠ°Π²ΠΈΡ 2000+30+15+5=2050, Π³Π΄Π΅ 5 β ΡΡΠΎ Π²Π΅Π»ΠΈΡΠΈΠ½Π° ΠΎΠ±ΡΠ·Π°ΡΠ΅Π»ΡΠ½ΠΎΠ³ΠΎ Π·Π°Π·ΠΎΡΠ° Π²Π½ΠΈΠ·Ρ ΠΌΠ΅ΠΆΠ΄Ρ ΠΏΠΎΠ»ΠΎΡΠ½ΠΎΠΌ ΠΈ ΠΏΠΎΠ»ΠΎΠΌ Π΄Π»Ρ Π²ΠΎΠ·Π΄ΡΡ ΠΎΠΎΠ±ΠΌΠ΅Π½Π°. ΠΡΠΈ Π½Π΅ΠΎΠ±Ρ ΠΎΠ΄ΠΈΠΌΠΎΡΡΠΈ ΠΎΠ½ ΠΌΠΎΠΆΠ΅Ρ Π±ΡΡΡ ΡΠ²Π΅Π»ΠΈΡΠ΅Π½ Π΄ΠΎ 10 ΠΌΠΌ. Π Π΅ΡΠ»ΠΈ Π΄ΠΎΠΌ ΡΠ½Π°Π±ΠΆΠ°Π΅ΡΡΡ ΡΠΆΠΈΠΆΠ΅Π½Π½ΡΠΌ Π³Π°Π·ΠΎΠΌ, ΡΠΎ Π·Π°Π·ΠΎΡ Π΄ΠΎΠ»ΠΆΠ΅Π½ Π±ΡΡΡ Π½Π΅ ΠΌΠ΅Π½Π΅Π΅ 15-20 ΠΌΠΌ Π΄Π»Ρ ΠΎΠ±Π΅ΡΠΏΠ΅ΡΠ΅Π½ΠΈΡ Ρ ΠΎΡΠΎΡΠ΅ΠΉ Π²Π΅Π½ΡΠΈΠ»ΡΡΠΈΠΈ. ΠΡΠ»ΠΈ Ρ Π²Π°ΡΠ΅ΠΉ Π΄Π²Π΅ΡΠΈ Π±ΡΠ΄Π΅Ρ ΠΏΠΎΡΠΎΠΆΠ΅ΠΊ, ΡΠΎ Π²ΡΡΠΎΡΡ ΠΏΡΠΎΠ΅ΠΌΠ° ΠΎΠΏΡΠ΅Π΄Π΅Π»ΡΡΡ, Π΄ΠΎΠ±Π°Π²ΠΈΠ² Π²ΡΡΠΎΡΡ ΠΏΠΎΡΠΎΠ³Π° ΠΊ ΡΠ°Π·ΠΌΠ΅ΡΡ ΠΏΠΎΠ»ΠΎΡΠ½Π°, ΡΠΈΡΠΈΠ½Π΅ ΠΊΠΎΡΠΎΠ±ΠΊΠΈ ΠΈ ΠΌΠΎΠ½ΡΠ°ΠΆΠ½ΠΎΠΌΡ ΡΠ²Ρ.
Π Π½Π°ΠΎΠ±ΠΎΡΠΎΡ, Π·Π½Π°Ρ ΡΡΠ°Π½Π΄Π°ΡΡΡ Π»Π΅Π³ΠΊΠΎ Π²ΡΡΠΈΡΠ»ΠΈΡΡ ΡΠΈΡΠΈΠ½Ρ Π΄Π²Π΅ΡΠ½ΠΎΠ³ΠΎ ΠΏΠΎΠ»ΠΎΡΠ½Π° Π΄Π»Ρ ΡΠΆΠ΅ ΠΈΠΌΠ΅ΡΡΠΈΡ ΡΡ ΠΏΡΠΎΠ΅ΠΌΠΎΠ². ΠΠ°ΠΏΡΠΈΠΌΠ΅Ρ, Π΄Π»Ρ ΠΏΡΠΎΠ΅ΠΌΠ° 900 ΠΌΠΌ Π½ΡΠΆΠ½Π° Π΄Π²Π΅ΡΡ 800 ΠΌΠΌ. Π Π°ΡΡΡΠΈΡΡΠ²Π°Π΅ΡΡΡ ΡΡΠΎ ΡΠ°ΠΊ: 900-15*2-30*2=810 ΠΌΠΌ. Π ΠΈΠ·Π»ΠΈΡΠ½ΠΈΠ΅ 10 ΠΌΠΌ Π±ΡΠ΄ΡΡ ΡΡΠΏΠ΅ΡΠ½ΠΎ ΡΠΊΡΡΡΡ ΠΏΠΎΠ΄ Π½Π°Π»ΠΈΡΠ½ΠΈΠΊΠ°ΠΌΠΈ.
ΠΡΡΠΈΡΠ»ΡΡ ΡΠ°Π·ΠΌΠ΅ΡΡ, ΠΆΠ΅Π»Π°ΡΠ΅Π»ΡΠ½ΠΎ ΠΏΡΠΈΠ±Π°Π²Π»ΡΡΡ Π²Π΅Π»ΠΈΡΠΈΠ½Ρ Π·Π°Π·ΠΎΡΠ°, ΠΊΠΎΡΠΎΡΡΠΉ ΡΠ΅ΠΊΠΎΠΌΠ΅Π½Π΄ΠΎΠ²Π°Π½ΠΎ ΠΎΡΡΠ°Π²Π»ΡΡΡ ΠΌΠ΅ΠΆΠ΄Ρ ΠΊΠΎΡΠΎΠ±ΠΎΠΌ ΠΈ ΠΏΠΎΠ»ΠΎΡΠ½ΠΎΠΌ Π΄Π²Π΅ΡΠΈ. ΠΠΎ ΠΏΠΎΡΠΊΠΎΠ»ΡΠΊΡ ΠΎΠ½ ΡΠΎΡΡΠ°Π²Π»ΡΠ΅Ρ Π²ΡΠ΅Π³ΠΎ 1-2 ΠΌΠΌ, ΡΠΎ ΠΏΡΠΈ Π³ΡΡΠ±ΡΡ ΡΠ°ΡΡΠ΅ΡΠ°Ρ Π΅Π³ΠΎ ΠΌΠΎΠΆΠ½ΠΎ Π½Π΅ ΡΡΠΈΡΡΠ²Π°ΡΡ.
ΠΠ²ΡΡΡΠ²ΠΎΡΡΠ°ΡΡΠ΅ Π΄Π²Π΅ΡΠΈ
ΠΡΠΈΠ²Π΅Π΄Π΅Π½Π½ΡΠ΅ Π²ΡΡΠ΅ Π·Π½Π°ΡΠ΅Π½ΠΈΡ ΠΏΡΠΈΠΌΠ΅Π½ΠΈΠΌΡ ΠΊ ΠΎΠ΄Π½ΠΎΡΡΠ²ΠΎΡΡΠ°ΡΡΠΌ ΠΊΠΎΠ½ΡΡΡΡΠΊΡΠΈΡΠΌ. ΠΠ²ΡΡΡΠ²ΠΎΡΡΠ°ΡΡΠ΅ ΠΌΠ΅ΠΆΠΊΠΎΠΌΠ½Π°ΡΠ½ΡΠ΅ Π΄Π²Π΅ΡΠΈ ΡΠ°ΡΡΠΎ ΡΡΡΠ°Π½Π°Π²Π»ΠΈΠ²Π°ΡΡΡΡ ΠΏΡΠΈ Π²Ρ ΠΎΠ΄Π΅ Π² Π³ΠΎΡΡΠΈΠ½ΡΡ. ΠΡ ΡΡΠ°Π½Π΄Π°ΡΡΠ½Π°Ρ ΡΠΈΡΠΈΠ½Π° Π²Π°ΡΡΠΈΡΡΠ΅ΡΡΡ Π² Π΄ΠΈΠ°ΠΏΠ°Π·ΠΎΠ½Π΅ ΠΎΡ 1 Π΄ΠΎ 1,4 ΠΌΠ΅ΡΡΠ°. ΠΡΠΈ ΡΡΠΎΠΌ, Π΄Π²ΡΡΡΠ²ΠΎΡΡΠ°ΡΡΠ΅ Π²ΠΈΠ΄Ρ Π΄Π²Π΅ΡΠ΅ΠΉ ΠΌΠΎΠ³ΡΡ ΠΈΠΌΠ΅ΡΡ ΡΠ°Π·Π½ΡΠ΅ ΠΈΠ»ΠΈ ΠΎΠ΄ΠΈΠ½Π°ΠΊΠΎΠ²ΡΠ΅ ΡΠ°Π·ΠΌΠ΅ΡΡ ΠΎΡΠ΄Π΅Π»ΡΠ½ΡΡ ΠΏΠΎΠ»ΠΎΠ²ΠΈΠ½ΠΎΠΊ. ΠΠ°ΠΏΡΠΈΠΌΠ΅Ρ, ΠΈΠ·Π΄Π΅Π»ΠΈΠ΅ ΡΠΈΡΠΈΠ½ΠΎΠΉ 1400 ΠΌΠΌ ΠΌΠΎΠΆΠ΅Ρ ΡΠΎΡΡΠΎΡΡΡ ΠΈΠ· Π΄Π²ΡΡ ΡΠ°ΡΡΠ΅ΠΉ ΠΏΠΎ 700 ΠΌΠΌ ΠΈΠ»ΠΈ ΠΎΠ΄Π½ΠΎΠΉ 600, Π° Π²ΡΠΎΡΠΎΠΉ 800 ΠΌΠΌ.
ΠΠ²Π΅ΡΠΈ ΡΠΎ ΡΠΊΡΡΡΠΎΠΉ ΠΊΠΎΡΠΎΠ±ΠΊΠΎΠΉ
ΠΠ΅ΠΆΠΊΠΎΠΌΠ½Π°ΡΠ½ΡΠ΅ Π΄Π²Π΅ΡΠΈ ΡΠΎ ΡΠΊΡΡΡΠΎΠΉ ΠΊΠΎΡΠΎΠ±ΠΊΠΎΠΉ ΠΈΠΌΠ΅ΡΡ ΡΡΠ΄ ΠΏΡΠ΅ΠΈΠΌΡΡΠ΅ΡΡΠ² ΠΏΠ΅ΡΠ΅Π΄ ΠΎΠ±ΡΡΠ½ΡΠΌΠΈ. ΠΠΎ ΠΈ ΡΠ΅Π½Π° ΡΠ°ΠΊΠΈΡ ΠΊΠΎΠ½ΡΡΡΡΠΊΡΠΈΠΉ Π½Π° ΠΏΠΎΡΡΠ΄ΠΎΠΊ Π²ΡΡΠ΅. Π’ΠΎ ΠΆΠ΅ ΠΊΠ°ΡΠ°Π΅ΡΡΡ ΠΈ ΡΡΠ΅Π±ΠΎΠ²Π°Π½ΠΈΠΉ ΠΊ ΡΠ°Π·ΠΌΠ΅ΡΠ°ΠΌ Π³ΠΎΡΠΎΠ²ΠΎΠ³ΠΎ ΠΏΡΠΎΠ΅ΠΌΠ°.
ΠΠ°Π±Π°ΡΠΈΡΡ ΠΏΡΠΎΠ΅ΠΌΠ° Π΄ΠΎΠ»ΠΆΠ½Ρ ΡΡΡΠΎΠ³ΠΎ ΡΠΎΠΎΡΠ²Π΅ΡΡΡΠ²ΠΎΠ²Π°ΡΡ ΡΡΠ΅Π±ΠΎΠ²Π°Π½ΠΈΡΠΌ ΠΏΡΠΎΠΈΠ·Π²ΠΎΠ΄ΠΈΡΠ΅Π»Ρ Π΄Π²Π΅ΡΠΈ. Π‘ΡΠ΅Π½Π° Π΄ΠΎΠ»ΠΆΠ½Π° Π±ΡΡΡ ΡΠΎΠ²Π½ΠΎΠΉ ΠΏΠΎ Π²Π΅ΡΡΠΈΠΊΠ°Π»ΠΈ. ΠΠΎΠΏΡΡΠΊΠ°Π΅ΡΡΡ ΠΎΡΠΊΠ»ΠΎΠ½Π΅Π½ΠΈΠ΅ Π²ΡΠ΅Π³ΠΎ 1 ΠΌΠΌ Π½Π° ΠΌΠ΅ΡΡ Π²ΡΡΠΎΡΡ. Π’ΠΎΠ»ΡΠΈΠ½Π° ΡΡΠ΅Π½ Π½Π΅ Π΄ΠΎΠ»ΠΆΠ½Π° ΠΏΡΠ΅Π²ΡΡΠ°ΡΡ 80 ΠΌΠΌ. ΠΠΏΡΠΈΠΌΠ°Π»ΡΠ½ΠΎΠ΅ Π·Π½Π°ΡΠ΅Π½ΠΈΠ΅ ΡΠΈΡΠΈΠ½Ρ ΠΌΠΎΠ½ΡΠ°ΠΆΠ½ΠΎΠ³ΠΎ Π·Π°Π·ΠΎΡΠ° ΡΠΎΡΡΠ°Π²Π»ΡΠ΅Ρ 17-20 ΠΌΠΌ ΠΏΠ»ΡΡ/ΠΌΠΈΠ½ΡΡ 10 ΠΌΠΌ. Π Π½Π΅ΠΊΠΎΡΠΎΡΡΡ ΠΌΠΎΠ΄Π΅Π»ΡΡ ΠΈΠ·Π΄Π΅Π»ΠΈΠΉ ΡΠΎ ΡΠΊΡΡΡΠΎΠΉ ΠΊΠΎΡΠΎΠ±ΠΊΠΎΠΉ ΠΎΡΠΊΠ»ΠΎΠ½Π΅Π½ΠΈΡ Π½Π΅ Π΄ΠΎΠΏΡΡΠΊΠ°ΡΡΡΡ Π²ΠΎΠΎΠ±ΡΠ΅. ΠΠ°Π·ΠΎΡ ΠΏΠΎΠ΄ ΠΏΠΎΠ»ΠΎΡΠ½ΠΎΠΌ Π΄ΠΎΠ»ΠΆΠ΅Π½ Π±ΡΡΡ Π² ΠΈΠ΄Π΅Π°Π»Π΅ ΡΠ°Π²Π΅Π½ 4.
ΠΠ²Π΅ΡΠΈ Π½Π° Π·Π°ΠΊΠ°Π·
Π Π°Π·Π½ΠΎΠΎΠ±ΡΠ°Π·ΠΈΠ΅ Π³Π°Π±Π°ΡΠΈΡΠΎΠ² ΠΌΠ΅ΠΆΠΊΠΎΠΌΠ½Π°ΡΠ½ΡΡ Π΄Π²Π΅ΡΠ΅ΠΉ Ρ ΠΊΠΎΡΠΎΠ±ΠΊΠΎΠΉ ΠΈ ΡΡΡΠ½ΠΈΡΡΡΠΎΠΉ, ΠΏΡΠ΅Π΄Π»Π°Π³Π°Π΅ΠΌΡΡ ΠΏΡΠΎΠΈΠ·Π²ΠΎΠ΄ΠΈΡΠ΅Π»ΡΠΌΠΈ, ΠΎΡΠ΅Π½Ρ Π²Π΅Π»ΠΈΠΊΠΎ. ΠΠΎ, Π½Π΅ΡΠΌΠΎΡΡΡ Π½Π° ΡΡΠΎ, ΡΠ°ΡΡΠΎ Π²ΡΡΡΠ΅ΡΠ°ΡΡΡΡ ΡΠΈΡΡΠ°ΡΠΈΠΈ, ΠΊΠΎΠ³Π΄Π° Π½ΠΈ ΠΎΠ΄ΠΈΠ½ ΠΈΠ· Π²ΡΠΏΡΡΠΊΠ°Π΅ΠΌΡΡ ΡΠ°Π·ΠΌΠ΅ΡΠΎΠ² Π½Π΅ ΠΏΠΎΠ΄Ρ ΠΎΠ΄ΠΈΡ ΠΏΠΎΠ΄ ΡΠΆΠ΅ ΡΡΡΠ΅ΡΡΠ²ΡΡΡΠΈΠΉ ΠΏΡΠΎΠ΅ΠΌ. Π ΡΡΠΎΠΌ ΡΠ»ΡΡΠ°Π΅ ΠΌΠΎΠΆΠ½ΠΎ Π»ΠΈΠ±ΠΎ Π΅Π³ΠΎ ΡΠΊΠΎΡΡΠ΅ΠΊΡΠΈΡΠΎΠ²Π°ΡΡ ΡΠ°ΠΊ, ΡΡΠΎΠ±Ρ ΡΠΈΡΠΈΠ½Π° ΠΈ Π²ΡΡΠΎΡΠ° ΡΠΌΠ΅Π½ΡΡΠΈΠ»ΠΈΡΡ ΠΈΠ»ΠΈ ΡΠ²Π΅Π»ΠΈΡΠΈΠ»ΠΈΡΡ Π΄ΠΎ Π½ΡΠΆΠ½ΡΡ , Π»ΠΈΠ±ΠΎ Π·Π°ΠΊΠ°Π·Π°ΡΡ Π΄Π²Π΅ΡΠΈ Π½Π΅ΡΡΠ°Π½Π΄Π°ΡΡΠ½ΡΡ ΠΏΠ°ΡΠ°ΠΌΠ΅ΡΡΠΎΠ².
ΠΠ·Π³ΠΎΡΠ°Π²Π»ΠΈΠ²Π°ΡΡ Π΄Π²Π΅ΡΠΈ ΠΏΠΎ ΠΈΠ½Π΄ΠΈΠ²ΠΈΠ΄ΡΠ°Π»ΡΠ½ΠΎΠΌΡ Π·Π°ΠΊΠ°Π·Ρ ΠΎΠ±Ρ ΠΎΠ΄ΠΈΡΡΡ Π·Π½Π°ΡΠΈΡΠ΅Π»ΡΠ½ΠΎ Π΄ΠΎΡΠΎΠΆΠ΅, ΡΠ΅ΠΌ ΠΏΠΎΠΊΡΠΏΠ°ΡΡ ΡΠΆΠ΅ Π³ΠΎΡΠΎΠ²ΡΠ΅ ΠΈΠ·Π΄Π΅Π»ΠΈΡ. ΠΠΎ ΡΠ°ΠΊΠΎΠΉ ΡΠ°Π³ ΠΏΠΎΠ·Π²ΠΎΠ»ΠΈΡ Π²ΠΎΠΏΠ»ΠΎΡΠΈΡΡ Π½Π΅ΡΡΠ°Π½Π΄Π°ΡΡΠ½ΡΠ΅ ΠΈΠ΄Π΅ΠΈ.
ΠΠΎΡΡΡΠΎΠΉ ΡΠ²ΠΎΡ ΠΌΠ΅ΡΡΡ!
Π Π°Π·ΠΌΠ΅Ρ Π΄Π²Π΅ΡΠ½ΠΎΠΉ ΠΊΠΎΡΠΎΠ±ΠΊΠΈ ΠΌΠ΅ΠΆΠΊΠΎΠΌΠ½Π°ΡΠ½ΠΎΠΉ Π΄Π²Π΅ΡΠΈ: ΡΡΠ°Π½Π΄Π°ΡΡΡ, ΠΏΡΠΈΠΌΠ΅Ρ ΡΠ°ΡΡΡΡΠ°
ΠΡΠ΅ΠΆΠ΄Π΅ ΡΠ΅ΠΌ Π·Π°Π½ΡΡΡΡΡ ΠΎΡΠ΄Π΅Π»ΠΊΠΎΠΉ ΠΏΠΎΠ»Π° ΠΈ ΡΡΠ΅Π½ ΡΠ»Π΅Π΄ΡΠ΅Ρ Π½Π΅ Π·Π°Π±ΡΠ²Π°ΡΡ, ΡΡΠΎ Π² Π»ΡΠ±ΠΎΠΌ ΡΠ»ΡΡΠ°Π΅ ΠΏΡΠΈΠ΄Π΅ΡΡΡ ΡΡΡΠ°Π½Π°Π²Π»ΠΈΠ²Π°ΡΡ ΡΠ°ΠΊΠΎΠΉ Π²Π°ΠΆΠ½ΡΠΉ ΡΠ»Π΅ΠΌΠ΅Π½Ρ Π²ΡΡΠΊΠΎΠ³ΠΎ ΠΈΠ½ΡΠ΅ΡΡΠ΅ΡΠ°, ΠΊΠ°ΠΊ ΠΌΠ΅ΠΆΠΊΠΎΠΌΠ½Π°ΡΠ½ΡΡ Π΄Π²Π΅ΡΡ. Π§ΡΠΎΠ±Ρ Π½Π΅ ΠΎΠΊΠ°Π·Π°ΡΡΡΡ Π² ΡΠΈΡΡΠ°ΡΠΈΠΈ, ΠΊΠΎΠ³Π΄Π° ΠΏΡΠΈΠ΄Π΅ΡΡΡ Π΄ΠΎΡΠ°Π±Π°ΡΡΠ²Π°ΡΡ ΠΎΡΠ΄Π΅Π»ΠΊΡ ΡΡΠ΅Π½, Π»ΠΈΠ±ΠΎ ΠΆΠ΄Π°ΡΡ ΠΈΠ·Π³ΠΎΡΠΎΠ²Π»Π΅Π½ΠΈΡ ΠΌΠ΅ΠΆΠΊΠΎΠΌΠ½Π°ΡΠ½ΡΡ Π½Π΅ΡΡΠ°Π½Π΄Π°ΡΡΠ½ΡΡ Π΄Π²Π΅ΡΠ΅ΠΉ Π½Π° Π·Π°ΠΊΠ°Π· (Π° ΠΎΠ½ΠΈ ΠΎΠ±Ρ ΠΎΠ΄ΡΡΡΡ ΠΏΠΎΡΡΠΈ Π² ΠΏΠΎΠ»ΡΠΎΡΠ° ΡΠ°Π·Π° Π΄ΠΎΡΠΎΠΆΠ΅ ΡΡΠ°Π½Π΄Π°ΡΡΠ½ΡΡ ), Π½ΡΠΆΠ½ΠΎ ΡΡΠ°Π·Ρ ΠΎΠΏΡΠ΅Π΄Π΅Π»ΠΈΡΡ ΡΠ°Π·ΠΌΠ΅Ρ Π΄Π²Π΅ΡΠ½ΠΎΠΉ ΠΊΠΎΡΠΎΠ±ΠΊΠΈ ΠΌΠ΅ΠΆΠΊΠΎΠΌΠ½Π°ΡΠ½ΠΎΠΉ Π΄Π²Π΅ΡΠΈ, ΠΊΠΎΡΠΎΡΡΠΉ Π²Π°ΠΌ ΠΏΠΎΠ΄ΠΎΠΉΠ΄Π΅Ρ.
ΠΠ°ΠΊΠΈΠ΅ ΠΌΠΎΠ³ΡΡ Π±ΡΡΡ ΡΡΠ°Π½Π΄Π°ΡΡΡ?
ΠΠ»Ρ Π½Π°ΡΠ°Π»Π° ΡΠ»Π΅Π΄ΡΠ΅Ρ ΠΎΡΠ΅Π½ΠΈΡΡ ΡΠΎΡΡΠΎΡΠ½ΠΈΠ΅ ΡΡΠ½ΠΊΠ° Π½Π° ΠΏΡΠ΅Π΄ΠΌΠ΅Ρ ΡΠ°Π·Π½ΠΎΠΎΠ±ΡΠ°Π·ΠΈΡ ΠΏΡΠ΅Π΄ΡΡΠ°Π²Π»Π΅Π½Π½ΡΡ ΠΌΠ΅ΠΆΠΊΠΎΠΌΠ½Π°ΡΠ½ΡΡ Π΄Π²Π΅ΡΠ΅ΠΉ, Π° ΡΠ°ΠΊΠΆΠ΅ ΠΈΡ ΠΏΡΠΎΠΈΠ·Π²ΠΎΠ΄ΠΈΡΠ΅Π»Π΅ΠΉ. ΠΠ΅ΠΆΠΊΠΎΠΌΠ½Π°ΡΠ½ΡΠ΅ Π΄Π²Π΅ΡΠΈ ΠΎΡΠ΅ΡΠ΅ΡΡΠ²Π΅Π½Π½ΠΎΠ³ΠΎ ΠΈ ΠΈΠΌΠΏΠΎΡΡΠ½ΠΎΠ³ΠΎ ΠΏΡΠΎΠΈΠ·Π²ΠΎΠ΄ΡΡΠ²Π° ΠΏΠΎ Π±ΠΎΠ»ΡΡΠ΅ΠΉ ΡΠ°ΡΡΠΈ ΠΎΠ±Π»Π°Π΄Π°ΡΡ ΡΡΠ°Π½Π΄Π°ΡΡΠ½ΡΠΌΠΈ ΡΠ°Π·ΠΌΠ΅ΡΠ°ΠΌΠΈ: ΠΏΡΠΈ ΡΠΈΡΠΈΠ½Π°Ρ 60 ΡΠΌ, 70 ΡΠΌ ΠΈΠ»ΠΈ 80 ΡΠΌ Π²ΡΡΠΎΡΠ° ΡΠΎΡΡΠ°Π²Π»ΡΠ΅Ρ 200 ΡΠΌ. ΠΠ½ΠΎΠ³Π΄Π° Π²ΡΡΡΠ΅ΡΠ°ΡΡΡΡ ΠΏΡΠΎΠΈΠ·Π²ΠΎΠ΄ΠΈΡΠ΅Π»ΠΈ, ΠΏΡΠ΅Π΄Π»Π°Π³Π°ΡΡΠΈΠ΅ Π² ΠΊΠ°ΡΠ΅ΡΡΠ²Π΅ ΡΡΠ°Π½Π΄Π°ΡΡΠ° ΡΠΈΡΠΈΠ½Ρ 55 ΡΠΌ ΠΈΠ»ΠΈ 90 ΡΠΌ ΠΏΡΠΈ Π²ΡΡΠΎΡΠ΅ 190 ΡΠΌ. Π’ΠΎΠ»ΡΠΈΠ½Π° ΡΠ°ΠΌΠΈΡ ΠΊΠΎΡΠΎΠ±ΠΎΠΊ Π΄Π»Ρ Π΄Π²Π΅ΡΠ΅ΠΉ ΠΌΠΎΠΆΠ΅Ρ ΠΊΠΎΠ»Π΅Π±Π°ΡΡΡΡ Π² ΠΏΡΠ΅Π΄Π΅Π»Π°Ρ 15-40 ΠΌΠΌ. ΠΡΠΈ Π΄Π°Π½Π½ΡΠ΅ ΠΎΠΊΠ°ΠΆΡΡΡΡ ΠΎΡΠ΅Π½Ρ Π²Π°ΠΆΠ½ΡΠΌΠΈ, ΠΊΠΎΠ³Π΄Π° ΠΏΡΠΈΠ΄Π΅Ρ Π²ΡΠ΅ΠΌΡ ΠΎΠΏΡΠ΅Π΄Π΅Π»ΠΈΡΡ ΡΠ°Π·ΠΌΠ΅Ρ Π΄Π²Π΅ΡΠ½ΠΎΠΉ ΠΊΠΎΡΠΎΠ±ΠΊΠΈ ΠΌΠ΅ΠΆΠΊΠΎΠΌΠ½Π°ΡΠ½ΠΎΠΉ Π΄Π²Π΅ΡΠΈ. ΠΡΠ»ΠΈ Π²Ρ Π½Π΅ ΠΎΠ±ΡΠ°ΡΠΈΠ»ΠΈ Π΄ΠΎΠ»ΠΆΠ½ΠΎΠ³ΠΎ Π²Π½ΠΈΠΌΠ°Π½ΠΈΡ Π½Π° ΡΡΠΈ ΠΏΠ°ΡΠ°ΠΌΠ΅ΡΡΡ ΠΏΡΠΈ ΠΏΠΎΠΊΡΠΏΠΊΠ΅, ΡΠΎ Π·Π°ΠΏΡΠΎΡΡΠΎ ΠΌΠΎΠΆΠ΅ΡΠ΅ ΡΡΠΎΠ»ΠΊΠ½ΡΡΡΡΡ Ρ Π½Π΅ΠΏΡΠΈΡΡΠ½ΠΎΠΉ ΡΠΈΡΡΠ°ΡΠΈΠ΅ΠΉ, ΠΊΠΎΠ³Π΄Π° Π΄Π²Π΅ΡΠ½ΠΎΠΉ Π±Π»ΠΎΠΊ ΠΏΡΠΎΡΡΠΎ Π½Π΅ ΠΏΠΎΠΌΠ΅ΡΠ°Π΅ΡΡΡ Π² ΠΏΡΠΎΠ΅ΠΌ Π² Π½Π΅ΡΡΡΠ΅ΠΉ ΡΡΠ΅Π½Π΅. ΠΡΠΎ ΠΏΠΎΡΡΠ΅Π±ΡΠ΅Ρ ΡΠ°ΡΡΠΈΡΠ΅Π½ΠΈΡ ΠΏΡΠΎΠ΅ΠΌΠ°, ΠΊΠΎΡΠΎΡΠΎΠ΅ Π΄Π°Π»Π΅ΠΊΠΎ Π½Π΅ Π²ΡΠ΅Π³Π΄Π° Π²ΠΎΠ·ΠΌΠΎΠΆΠ½ΠΎ ΠΏΡΠΈΠ½ΡΠΈΠΏΠΈΠ°Π»ΡΠ½ΠΎ ΠΈΠ·-Π·Π° ΠΏΠ»Π°Π½ΠΈΡΠΎΠ²ΠΊΠΈ ΠΊΠ²Π°ΡΡΠΈΡΡ ΠΈΠ»ΠΈ ΠΊΠΎΠ½ΡΡΡΡΠΊΡΠΈΠ²Π½ΡΡ ΠΎΡΠΎΠ±Π΅Π½Π½ΠΎΡΡΠ΅ΠΉ Π½Π΅ΡΡΡΠΈΡ ΡΡΠ΅Π½.
ΠΠ°ΠΊ ΠΎΠΏΡΠ΅Π΄Π΅Π»ΠΈΡΡ ΡΠ°Π·ΠΌΠ΅Ρ Π΄Π²Π΅ΡΠ½ΠΎΠ³ΠΎ ΠΏΡΠΎΠ΅ΠΌΠ°
ΠΠ»Ρ ΡΠΎΠ³ΠΎ ΡΡΠΎΠ±Ρ ΡΡΠΎ ΡΠ΄Π΅Π»Π°ΡΡ, Π½Π΅ΠΎΠ±Ρ ΠΎΠ΄ΠΈΠΌΠΎ ΡΡΠΎΡΠ½ΠΈΡΡ Π½Π΅ΠΊΠΎΡΠΎΡΡΠ΅ ΡΠ°Π·ΠΌΠ΅ΡΡ ΠΈ ΡΠ΅ΡΠΈΡΡ, ΡΡΠ΅Π±ΡΠ΅ΡΡΡ Π»ΠΈ Π½Π°Π»ΠΈΡΠΈΠ΅ Π΄Π΅ΡΠ΅Π²ΡΠ½Π½ΠΎΠ³ΠΎ ΠΏΠΎΡΠΎΠ³Π°. ΠΡΠΆΠ½ΠΎ ΠΎΠΏΡΠ΅Π΄Π΅Π»ΠΈΡΡ:
- ΠΠ΅Π»Π°Π΅ΠΌΡΡ Π²ΡΡΠΎΡΡ ΠΈ ΡΠΈΡΠΈΠ½Ρ ΠΏΠΎΠ»ΠΎΡΠ½Π° Π΄Π²Π΅ΡΠΈ.
- Π¨ΠΈΡΠΈΠ½Ρ ΠΈ ΡΠΎΠ»ΡΠΈΠ½Ρ ΠΈΡΠΏΠΎΠ»ΡΠ·ΡΠ΅ΠΌΠΎΠΉ Π΄Π²Π΅ΡΠ½ΠΎΠΉ ΠΊΠΎΡΠΎΠ±ΠΊΠΈ.
- Π¨ΠΈΡΠΈΠ½Ρ Π΄Π΅ΡΠ΅Π²ΡΠ½Π½ΡΡ Π½Π°Π»ΠΈΡΠ½ΠΈΠΊΠΎΠ².
ΠΡΠΈΠΌΠ΅Ρ ΡΠ°ΡΡΠ΅ΡΠ°
ΠΡΠ΅Π΄ΠΏΠΎΠ»ΠΎΠΆΠΈΠΌ, ΡΡΠΎ Π²ΡΠ±ΡΠ°Π½ΠΎ ΠΏΠΎΠ»ΠΎΡΠ½ΠΎ Π΄Π²Π΅ΡΠΈ Ρ ΡΠ°Π·ΠΌΠ΅ΡΠΎΠΌ 80Ρ 200 ΡΠΌ Ρ ΠΊΠΎΡΠΎΠ±ΠΊΠΎΠΉ ΡΠΎΠ»ΡΠΈΠ½ΠΎΠΉ 2,5 ΡΠΌ. ΠΠ»Ρ ΡΠ°ΡΡΠ΅ΡΠ° ΠΏΡΠΎΠ΅ΠΌΠ° Π΄Π²Π΅ΡΠΈ Π½ΡΠΆΠ½ΠΎ ΠΊ ΡΠΈΡΠΈΠ½Π΅ Π΄Π²Π΅ΡΠΈ Π΄ΠΎΠ±Π°Π²ΠΈΡΡ ΡΠΎΠ»ΡΠΈΠ½Ρ ΠΊΠΎΡΠΎΠ±ΠΊΠΈ, Π½Π°Ρ ΠΎΠ΄ΡΡΠ΅ΠΉΡΡ ΠΏΠΎ ΠΎΠ±Π΅ ΡΡΠΎΡΠΎΠ½Ρ ΠΏΠΎΠ»ΠΎΡΠ½Π°, Π½Π΅ Π·Π°Π±ΡΠ²Π°Ρ ΠΏΡΠΎ ΠΌΠΎΠ½ΡΠ°ΠΆΠ½ΡΠΉ Π·Π°Π·ΠΎΡ ΠΌΠ΅ΠΆΠ΄Ρ Π½ΠΈΠΌΠΈ, Π° ΡΠ°ΠΊΠΆΠ΅ Π±Π»ΠΎΠΊΠΎΠΌ Π΄Π²Π΅ΡΠΈ ΠΈ Π΄Π²Π΅ΡΠ½ΡΠΌ ΠΏΡΠΎΠ΅ΠΌΠΎΠΌ (Ρ ΠΊΠ°ΠΆΠ΄ΠΎΠΉ ΡΡΠΎΡΠΎΠ½Ρ ΠΏΠΎ ΠΏΠΎΠ»ΡΠΎΡΠ° β Π΄Π²Π° ΡΠ°Π½ΡΠΈΠΌΠ΅ΡΡΠ°). Π‘ΠΊΠ»Π°Π΄ΡΠ²Π°Ρ ΡΡΠΈ Π²Π΅Π»ΠΈΡΠΈΠ½Ρ, ΠΏΠΎΠ»ΡΡΠΈΠΌ 88 ΡΠΌ, ΡΡΠΎ Π±ΡΠ΄Π΅Ρ ΠΏΡΠ°ΠΊΡΠΈΡΠ΅ΡΠΊΠΈ ΠΈΠ΄Π΅Π°Π»ΡΠ½ΠΎΠΉ ΡΠΈΡΠΈΠ½ΠΎΠΉ ΠΏΡΠΎΠ΅ΠΌΠ° Π΄Π²Π΅ΡΠΈ, Π² ΠΊΠΎΡΠΎΡΡΠΉ ΠΏΠΎΠΌΠ΅ΡΡΠΈΡΡΡ Π±ΠΎΠ»ΡΡΠΈΠ½ΡΡΠ²ΠΎ Π΄Π²Π΅ΡΠ΅ΠΉ, ΠΏΡΠ΅Π΄Π»Π°Π³Π°Π΅ΠΌΡΡ ΠΏΡΠΎΠΈΠ·Π²ΠΎΠ΄ΠΈΡΠ΅Π»ΡΠΌΠΈ.
ΠΠ½Π°Π»ΠΎΠ³ΠΈΡΠ½ΠΎ ΡΠ°ΡΡΡΠΈΡΡΠ²Π°Π΅ΡΡΡ ΠΈ Π²ΡΡΠΎΡΠ°, ΡΡΠΈΡΡΠ²Π°ΡΡΠ°Ρ Π²ΡΡΠΎΡΡ ΠΏΠΎΡΠΎΠ³Π° Π² ΠΎΠ΄ΠΈΠ½ β Π΄Π²Π° ΡΠ°Π½ΡΠΈΠΌΠ΅ΡΡΠ°. ΠΠ»Ρ Π΄Π²Π΅ΡΠ΅ΠΉ Π±Π΅Π· ΠΏΠΎΡΠΎΠ³Π° ΠΏΠΎΠ»ΡΡΠ°Π΅ΡΡΡ Π²ΡΡΠΎΡΠ° 205 ΡΠΌ, Π° Ρ ΠΏΠΎΡΠΎΠ³ΠΎΠΌ β 208 ΡΠΌ. Π’Π°ΠΊΠ°Ρ Π²ΡΡΠΎΡΠ° ΡΠ°ΠΊΠΆΠ΅ ΠΈΠ΄Π΅Π°Π»ΡΠ½Π°, ΠΈ Π² ΡΠ°ΠΊΠΎΠΉ ΠΏΡΠΎΠ΅ΠΌ Π²ΠΎΠΉΠ΄Π΅Ρ Π±ΠΎΠ»ΡΡΠΈΠ½ΡΡΠ²ΠΎ ΠΏΡΠΎΠΈΠ·Π²ΠΎΠ΄ΠΈΠΌΡΡ Π΄Π²Π΅ΡΠ½ΡΡ ΠΊΠΎΡΠΎΠ±ΠΎΠΊ. ΠΠΎΠ»ΡΡΠ°Π΅ΡΡΡ, ΡΡΠΎ ΠΏΡΠΈ ΡΠ°Π·ΠΌΠ΅ΡΠ°Ρ ΠΏΠΎΠ»ΠΎΡΠ½Π° 80Ρ 200 ΡΠΌ ΠΏΠΎΡΡΠ΅Π±ΡΠ΅ΡΡΡ ΠΏΡΠΎΠ΅ΠΌ 88Ρ 208 ΡΠΌ.
Π ΡΠΈΠΏΠΎΠ²ΡΡ Π΄ΠΎΠΌΠ°Ρ ΡΠΎΠ»ΡΠΈΠ½Π° Π΄Π²Π΅ΡΠ½ΠΎΠ³ΠΎ ΠΏΡΠΎΠ΅ΠΌΠ° ΡΠΎΡΡΠ°Π²Π»ΡΠ΅Ρ 7,5 ΡΠΌ. ΠΠΎΡΡΠΎΠΌΡ, Π±ΠΎΠ»ΡΡΠΈΠ½ΡΡΠ²ΠΎ ΠΏΡΠΎΠ΄Π°Π²Π°Π΅ΠΌΡΡ ΠΊΠΎΡΠΎΠ±ΠΎΠΊ ΠΈΠΌΠ΅ΡΡ ΠΈΠΌΠ΅Π½Π½ΠΎ ΡΠ°ΠΊΡΡ ΡΠΎΠ»ΡΠΈΠ½Ρ, ΡΡΠΎ ΡΠ»Π΅Π΄ΡΠ΅Ρ ΡΡΠΈΡΡΠ²Π°ΡΡ ΠΏΡΠΈ ΠΏΠΎΠ΄Π³ΠΎΡΠΎΠ²ΠΊΠ΅ ΠΏΡΠΎΠ΅ΠΌΠ°. ΠΡΠ»ΠΈ ΠΈΠ·-Π·Π° Π±ΠΎΠ»ΡΡΠ΅ΠΉ ΠΈΠ»ΠΈ ΠΌΠ΅Π½ΡΡΠ΅ΠΉ ΡΠΎΠ»ΡΠΈΠ½Ρ ΡΡΠ΅Π½ Π²ΡΠ΄Π΅ΡΠΆΠ°ΡΡ Π΄Π°Π½Π½ΡΠΉ ΡΠ°Π·ΠΌΠ΅Ρ Π½Π΅ ΡΠ΄Π°Π΅ΡΡΡ, ΡΠΎ ΠΏΠΎΡΠ²Π»ΡΠ΅ΡΡΡ Π½Π΅ΠΎΠ±Ρ ΠΎΠ΄ΠΈΠΌΠΎΡΡΡ ΠΌΠΎΠ½ΡΠ°ΠΆΠ° ΡΠ°ΡΡΠΈΡΠΈΡΠ΅Π»Ρ ΠΊΠΎΡΠΎΠ±ΠΊΠΈ (ΠΎΡΠΊΠΎΡΠ° ΠΈΠ»ΠΈ Π΄ΠΎΠ±ΠΎΡΠ°), Π²ΠΎΠ·ΠΌΠΎΠΆΠ΅Π½ ΡΠ°ΠΊΠΆΠ΅ ΠΏΡΠΎΠ΄ΠΎΠ»ΡΠ½ΡΠΉ ΡΠ°ΡΠΏΠΈΠ» ΠΊΠΎΡΠΎΠ±ΠΎΠΊ ΠΏΡΠΈ Π½Π°Π»ΠΈΡΠΈΠΈ ΡΠΎΠ½ΠΊΠΎΠΉ ΡΡΠ΅Π½Ρ.
ΠΠΎΠ΄Π΅Π»ΠΈΡΡΡΡ ΡΡΠΎΠΉ ΡΡΠ°ΡΡΠ΅ΠΉ Π² ΡΠΎΡΠΈΠ°Π»ΡΠ½ΡΡ ΡΠ΅ΡΡΡ
ΠΡΠ΅ΠΆΠ΄Π΅ ΡΠ΅ΠΌ Π·Π°Π½ΡΡΡΡΡ ΠΎΡΠ΄Π΅Π»ΠΊΠΎΠΉ ΠΏΠΎΠ»Π° ΠΈ ΡΡΠ΅Π½ ΡΠ»Π΅Π΄ΡΠ΅Ρ Π½Π΅ Π·Π°Π±ΡΠ²Π°ΡΡ, ΡΡΠΎ Π² Π»ΡΠ±ΠΎΠΌ ΡΠ»ΡΡΠ°Π΅ ΠΏΡΠΈΠ΄Π΅ΡΡΡ ΡΡΡΠ°Π½Π°Π²Π»ΠΈΠ²Π°ΡΡ ΡΠ°ΠΊΠΎΠΉ Π²Π°ΠΆΠ½ΡΠΉ ΡΠ»Π΅ΠΌΠ΅Π½Ρ Π²ΡΡΠΊΠΎΠ³ΠΎ ΠΈΠ½ΡΠ΅ΡΡΠ΅ΡΠ°, ΠΊΠ°ΠΊ ΠΌΠ΅ΠΆΠΊΠΎΠΌΠ½Π°ΡΠ½ΡΡ Π΄Π²Π΅ΡΡ. Π§ΡΠΎΠ±Ρ Π½Π΅ ΠΎΠΊΠ°Π·Π°ΡΡΡΡ Π²β¦
Β» data-url=Β»http://krutostroi.com/247-razmer-dvernoy-korobki-mezhkomnatnoy-dveri-standarty-primer-rascheta.htmlΒ» data-image=Β»http://krutostroi.com/wp-content/uploads/2015/04/1430335946_razmer_dvernoj_korobki_mezhkomnatnoj_dveri_1-300Γ200.jpgΒ» data-title=Β»Π Π°Π·ΠΌΠ΅Ρ Π΄Π²Π΅ΡΠ½ΠΎΠΉ ΠΊΠΎΡΠΎΠ±ΠΊΠΈ ΠΌΠ΅ΠΆΠΊΠΎΠΌΠ½Π°ΡΠ½ΠΎΠΉ Π΄Π²Π΅ΡΠΈ: ΡΡΠ°Π½Π΄Π°ΡΡΡ, ΠΏΡΠΈΠΌΠ΅Ρ ΡΠ°ΡΡΡΡΠ°Β»>
ΠΠ΅ΠΆΠΊΠΎΠΌΠ½Π°ΡΠ½ΡΠ΅ Π΄Π²Π΅ΡΠΈ: ΡΠ°Π·ΠΌΠ΅ΡΡ Ρ ΠΊΠΎΡΠΎΠ±ΠΊΠΎΠΉ. Π Π°Π·ΠΌΠ΅ΡΡ Π΄Π²Π΅ΡΠ½ΡΡ ΠΊΠΎΡΠΎΠ±ΠΎΠΊ ΠΌΠ΅ΠΆΠΊΠΎΠΌΠ½Π°ΡΠ½ΡΡ Π΄Π²Π΅ΡΠ΅ΠΉ
ΠΡΠΈ ΡΡΡΠΎΠΈΡΠ΅Π»ΡΡΡΠ²Π΅ Π΄ΠΎΠΌΠ° ΠΈΠ»ΠΈ ΡΠ΅ΠΌΠΎΠ½ΡΠ΅ ΡΡΡΠ΅ΡΡΠ²ΡΡΡΠ΅Π³ΠΎ ΠΏΠΎΠΌΠ΅ΡΠ΅Π½ΠΈΡ ΠΏΡΠΈΡ ΠΎΠ΄ΠΈΡΡΡ Π»ΠΈΠ±ΠΎ ΡΡΡΡΠ°ΠΈΠ²Π°ΡΡ Π²Ρ ΠΎΠ΄Π½ΠΎΠΉ ΠΏΡΠΎΠ΅ΠΌ Π² ΡΠΎΠΎΡΠ²Π΅ΡΡΡΠ²ΠΈΠΈ Ρ Π²ΡΠ±ΡΠ°Π½Π½ΠΎΠΉ Π·Π°ΡΠ°Π½Π΅Π΅ ΠΌΠΎΠ΄Π΅Π»ΡΡ Π΄Π²Π΅ΡΠΈ, Π»ΠΈΠ±ΠΎ Π·Π°ΠΊΠ°Π·ΡΠ²Π°ΡΡ ΠΈ ΠΌΠΎΠ½ΡΠΈΡΠΎΠ²Π°ΡΡ Π½ΠΎΠ²ΡΠ΅ ΠΏΠΎΠ»ΠΎΡΠ½Π° Π² ΡΠ΅, ΠΊΠΎΡΠΎΡΡΠ΅ ΡΠΆΠ΅ ΡΡΡΠ΅ΡΡΠ²ΡΡΡ. Π ΠΎΠ±ΠΎΠΈΡ ΡΠ»ΡΡΠ°ΡΡ Π²Π°ΠΆΠ½ΠΎ Π·Π½Π°ΡΡ, ΠΊΠ°ΠΊΡΡ Π²Π΅Π»ΠΈΡΠΈΠ½Ρ ΠΈΠΌΠ΅ΡΡ ΠΊΠ°ΠΊ Π²Ρ ΠΎΠ΄Ρ, ΡΠ°ΠΊ ΠΈ ΠΌΠ΅ΠΆΠΊΠΎΠΌΠ½Π°ΡΠ½ΡΠ΅ Π΄Π²Π΅ΡΠΈ (ΡΠ°Π·ΠΌΠ΅ΡΡ Ρ ΠΊΠΎΡΠΎΠ±ΠΊΠΎΠΉ ΠΈ Π±Π΅Π·).
ΠΠΏΡΠ΅Π΄Π΅Π»ΠΈΠΌΡΡ Ρ ΠΏΠΎΠ½ΡΡΠΈΡΠΌΠΈ
ΠΠ²Π΅ΡΠ½ΡΠΌ Π½Π°Π·ΡΠ²Π°ΡΡ ΠΏΡΠΎΠ΅ΠΌ Π² ΡΡΠ΅Π½Π΅, ΠΊΠΎΡΠΎΡΡΠΉ ΠΏΡΠ΅Π΄Π½Π°Π·Π½Π°ΡΠ΅Π½ Π΄Π»Ρ ΡΡΡΠ°Π½ΠΎΠ²ΠΊΠΈ (ΠΌΠΎΠ½ΡΠ°ΠΆΠ°) Π²Ρ ΠΎΠ΄Π½ΠΎΠ³ΠΎ Π±Π»ΠΎΠΊΠ°. ΠΠ½ ΠΌΠΎΠΆΠ΅Ρ Π±ΡΡΡ Π½Π°ΡΡΠΆΠ½ΡΠΌ ΠΈΠ»ΠΈ Π²Π½ΡΡΡΠ΅Π½Π½ΠΈΠΌ (ΠΌΠ΅ΠΆΠΊΠΎΠΌΠ½Π°ΡΠ½ΡΠΌ). Π’Π°ΠΊ Π½Π°Π·ΡΠ²Π°Π΅ΠΌΡΠΉ ΠΊΠΎΡΠΎΠ± Π΄Π»Ρ Π΄Π²Π΅ΡΠΈ β Π΅Π΅ Π½Π΅ΠΏΠΎΠ΄Π²ΠΈΠΆΠ½Π°Ρ ΡΠ°ΡΡΡ, ΡΠΈΠΊΡΠΈΡΡΠ΅ΠΌΠ°Ρ Π² ΠΏΡΠΎΠ΅ΠΌΠ΅. Π Π½Π΅ΠΌΡ ΠΏΠΎΡΡΠ΅Π΄ΡΡΠ²ΠΎΠΌ ΠΏΠ΅ΡΠ΅Π»Ρ ΠΊΡΠ΅ΠΏΠΈΡΡΡ ΠΏΠΎΠ»ΠΎΡΠ½ΠΎ.
ΠΡΠΈ ΡΠ°ΡΡΠ΅ΡΠ΅ Π²Π΅Π»ΠΈΡΠΈΠ½Ρ Π»ΡΠ±ΠΎΠ³ΠΎ ΠΏΡΠΎΠ΅ΠΌΠ° ΡΡΠ΅Π±ΡΠ΅ΡΡΡ Π·Π½Π°ΡΡ ΡΠ°Π·ΠΌΠ΅ΡΡ Π΄Π²Π΅ΡΠ½ΡΡ ΠΊΠΎΡΠΎΠ±ΠΎΠΊ ΠΌΠ΅ΠΆΠΊΠΎΠΌΠ½Π°ΡΠ½ΡΡ Π΄Π²Π΅ΡΠ΅ΠΉ, Ρ. Π΅. ΠΈΡ Π²ΡΡΠΎΡΡ ΠΈ ΡΠΈΡΠΈΠ½Ρ, Π³Π°Π±Π°ΡΠΈΡΡ Π½Π°Π»ΠΈΡΠ½ΠΈΠΊΠΎΠ². Π’Π°ΠΊΠΆΠ΅ ΠΏΡΠΈΠ΄Π΅ΡΡΡ ΡΡΠΈΡΡΠ²Π°ΡΡ ΡΠΎΠ»ΡΠΈΠ½Ρ ΠΊΠΎΡΠΎΠ±ΠΊΠΈ ΠΈ Π½Π°Π»ΠΈΡΠΈΠ΅ ΠΏΠΎΡΠΎΠ³Π°. ΠΡΠΈ ΡΠ°ΡΡΠ΅ΡΠ΅ ΠΏΡΠΈΠ΄Π΅ΡΡΡ ΠΊ ΡΠΈΡΠΈΠ½Π΅ ΠΏΠΎΠ»ΠΎΡΠ½Π° Π΄ΠΎΠ±Π°Π²ΠΈΡΡ Π³Π°Π±Π°ΡΠΈΡΡ ΠΊΠΎΡΠΎΠ±ΠΊΠΈ Ρ Π΄Π²ΡΡ ΡΡΠΎΡΠΎΠ½, Π° ΡΠ°ΠΊΠΆΠ΅ ΠΏΡΠ΅Π΄ΡΡΠΌΠΎΡΡΠ΅ΡΡ Π½Π΅ΠΎΠ±Ρ ΠΎΠ΄ΠΈΠΌΡΠΉ Π΄Π»Ρ ΠΌΠΎΠ½ΡΠ°ΠΆΠ° Π·Π°Π·ΠΎΡ ΠΌΠ΅ΠΆΠ΄Ρ Π½Π΅Ρ ΠΈ ΡΡΠ΅Π½ΠΎΠ²ΠΎΠΉ ΠΏΠ°Π½Π΅Π»ΡΡ. ΠΠ±ΡΡΠ½ΠΎ ΠΎΠ½ Π±ΡΠ²Π°Π΅Ρ ΠΎΡ 15 Π΄ΠΎ 30 ΠΌΠΌ.
Π‘ΡΠ°Π½Π΄Π°ΡΡΠ½ΡΠ΅ Π²Π΅Π»ΠΈΡΠΈΠ½Ρ Π²ΡΡΠΎΡ Π΄Π²Π΅ΡΠ½ΡΡ ΠΏΡΠΎΠ΅ΠΌΠΎΠ² β 2100 ΠΈ 2400 ΠΌΠΌ. Π ΡΠΈΡΠΈΠ½ΠΎΠΉ ΠΎΠ½ΠΈ ΠΌΠΎΠ³ΡΡ Π±ΡΡΡ ΠΎΡ 700 Π΄ΠΎ 1900 ΠΌΠΌ, ΠΏΡΠΈΡΠ΅ΠΌ ΡΠ΅ ΠΈΠ· Π½ΠΈΡ , ΡΡΡ ΡΠΈΡΠΈΠ½Π° Π½Π΅ ΠΏΡΠ΅Π²ΡΡΠ°Π΅Ρ 1200 ΠΌΠΌ, ΠΏΡΠ΅Π΄Π½Π°Π·Π½Π°ΡΠ΅Π½Ρ Π΄Π»Ρ ΠΎΠ΄Π½ΠΎΡΡΠ²ΠΎΡΡΠ°ΡΡΡ Π΄Π²Π΅ΡΠ΅ΠΉ, Π° Π±ΠΎΠ»Π΅Π΅ ΡΠΈΡΠΎΠΊΠΈΠ΅ β Π΄Π»Ρ Π΄Π²ΡΡ ΡΡΠ²ΠΎΡΡΠ°ΡΡΡ . ΠΡΠ²Π°ΡΡ, ΠΊΡΠΎΠΌΠ΅ ΡΠΎΠ³ΠΎ, Ρ. Π½. ΠΏΠΎΠ»ΡΡΠΎΡΠΎΠΏΠΎΠ»ΡΠ½ΡΠ΅ Π΄Π²Π΅ΡΠΈ β ΠΈΠΌΠ΅ΡΡΠΈΠ΅ Π΄Π²Π΅ ΡΡΠ²ΠΎΡΠΊΠΈ ΡΠ°Π·Π½ΠΎΠΉ ΡΠΈΡΠΈΠ½Ρ.

ΠΠ°ΠΊ ΠΈΠ·ΠΌΠ΅ΡΠΈΡΡ Π΄Π²Π΅ΡΠ½ΠΎΠΉ ΠΏΡΠΎΠ΅ΠΌ
Π¨ΠΈΡΠΈΠ½Π° ΠΏΡΠΎΠ΅ΠΌΠ° ΠΈΠ·ΠΌΠ΅ΡΡΠ΅ΡΡΡ Π² Π΅Π³ΠΎ Π½Π°ΠΈΠ±ΠΎΠ»Π΅Π΅ ΡΠ·ΠΊΠΎΠΉ ΡΠ°ΡΡΠΈ, ΡΠ°ΡΠ΅ Π²ΡΠ΅Π³ΠΎ Π²Π²Π΅ΡΡ Ρ. ΠΠ»Ρ Π±ΠΎΠ»ΡΡΠ΅ΠΉ ΡΠΎΡΠ½ΠΎΡΡΠΈ ΡΠ΅ΠΊΠΎΠΌΠ΅Π½Π΄ΡΠ΅ΡΡΡ ΠΌΠ΅ΡΠΈΡΡ Π΅Π΅ Π² ΡΡΠ΅Ρ ΡΠ°Π·Π½ΡΡ ΠΌΠ΅ΡΡΠ°Ρ . ΠΡΡΠΎΡΠ° β ΠΎΡ ΠΏΠΎΠ»Π° Π΄ΠΎ Π²Π΅ΡΡ Π° ΠΏΡΠΎΠ΅ΠΌΠ° Π² ΡΠ°ΠΌΠΎΠΉ Π½ΠΈΠ·ΠΊΠΎΠΉ ΡΠΎΡΠΊΠ΅. ΠΡΠ»ΠΈ Π½Π° Π³Π»Π°Π· ΡΠ°ΠΊΠΎΠ΅ ΠΌΠ΅ΡΡΠΎ ΠΏΠΎΠ½ΠΈΠΆΠ΅Π½ΠΈΡ Π½Π΅ ΠΎΠ±Π½Π°ΡΡΠΆΠΈΠ²Π°Π΅ΡΡΡ, ΡΡΠΎΠΈΡ ΠΈΠ·ΠΌΠ΅ΡΠΈΡΡ Π΄Π²Π°ΠΆΠ΄Ρ β ΡΠΏΡΠ°Π²Π° ΠΈ ΡΠ»Π΅Π²Π°. ΠΠ»ΡΠ±ΠΈΠ½Π° ΠΊΠΎΡΠΎΠ±ΠΊΠΈ ΡΡΡΠ°Π½Π°Π²Π»ΠΈΠ²Π°Π΅ΡΡΡ ΠΏΡΠΎΠΌΠ΅ΡΠΎΠΌ ΡΠΈΡΠΈΠ½Ρ Π²ΡΠ΅Ρ ΠΎΡΠΊΠΎΡΠΎΠ² Π½Π΅ ΠΌΠ΅Π½Π΅Π΅, ΡΠ΅ΠΌ Π² ΡΡΠ΅Ρ ΠΌΠ΅ΡΡΠ°Ρ .
ΠΠ»Ρ ΠΊΠ°ΡΠ΅ΡΡΠ²Π΅Π½Π½ΠΎΠ³ΠΎ Π²ΡΠΏΠΎΠ»Π½Π΅Π½ΠΈΡ ΡΠ°Π±ΠΎΡΡ Π»ΡΡΡΠ΅ Π²ΡΠ΅Π³ΠΎ Π²ΡΠ·Π²Π°ΡΡ ΠΏΡΠΎΡΠ΅ΡΡΠΈΠΎΠ½Π°Π»ΡΠ½ΠΎΠ³ΠΎ Π·Π°ΠΌΠ΅ΡΡΠΈΠΊΠ°. Π’Π°ΠΊΡΡ ΡΡΠ»ΡΠ³Ρ ΠΏΡΠ΅Π΄ΠΎΡΡΠ°Π²Π»ΡΠ΅Ρ Π±ΠΎΠ»ΡΡΠΈΠ½ΡΡΠ²ΠΎ ΡΠΈΡΠΌ, ΠΏΠΎΡΡΠ°Π²Π»ΡΡΡΠΈΡ ΠΈ ΠΌΠΎΠ½ΡΠΈΡΡΡΡΠΈΡ Π΄Π²Π΅ΡΠΈ. ΠΡΠ»ΠΈ Π·Π°ΠΌΠ΅Ρ ΠΏΡΠΎΠ²ΠΎΠ΄ΠΈΡΡ ΡΠ°ΠΌΠΎΠΌΡ, Π² ΡΠ»ΡΡΠ°Π΅ ΠΏΠΎΠ΄Π°ΡΠΈ Π½Π΅ΡΠΎΡΠ½ΡΡ Π΄Π°Π½Π½ΡΡ Π²Π°ΠΌ ΠΏΡΠΈΠ΄Π΅ΡΡΡ ΠΎΠΏΠ»Π°ΡΠΈΠ²Π°ΡΡ Π²ΠΎΠ·Π²ΡΠ°Ρ Π½Π΅ ΠΏΠΎΠ΄ΠΎΡΠ΅Π΄ΡΠ΅ΠΉ Π΄Π²Π΅ΡΠΈ Π½Π° ΡΠΊΠ»Π°Π΄ ΠΈ ΠΏΡΠΈΠ²ΠΎΠ· Π½ΠΎΠ²ΠΎΠΉ. Π ΡΠ»ΡΡΠ°Π΅ ΠΆΠ΅ Π²ΡΠ·ΠΎΠ²Π° ΠΏΡΠΎΡΠ΅ΡΡΠΈΠΎΠ½Π°Π»Π° Π²Π΅ΡΡ ΡΠΈΡΠΊ Π±Π΅ΡΠ΅Ρ Π½Π° ΡΠ΅Π±Ρ ΡΠΈΡΠΌΠ°-ΠΏΡΠΎΠΈΠ·Π²ΠΎΠ΄ΠΈΡΠ΅Π»Ρ.

ΠΠ°ΠΊ Π½Π΅ ΠΏΠΎΠΏΠ°ΡΡΡ Π²ΠΏΡΠΎΡΠ°ΠΊ
Π§ΡΠΎΠ±Ρ Π½Π΅ ΠΎΠΊΠ°Π·Π°ΡΡΡΡ Π² ΡΠΈΡΡΠ°ΡΠΈΠΈ, ΠΊΠΎΠ³Π΄Π° ΡΠ°Π·ΠΌΠ΅ΡΡ ΠΊΠΎΡΠΎΠ±ΠΎΠ² Π½Π΅ ΡΠΎΠΎΡΠ²Π΅ΡΡΡΠ²ΡΡΡ ΠΏΡΠΎΠ΅ΠΌΠ°ΠΌ, ΡΠ»Π΅Π΄ΡΠ΅Ρ ΡΠΎΡΠ½ΠΎ ΠΎΠΏΡΠ΅Π΄Π΅Π»ΠΈΡΡ ΡΠ²ΠΎΠΈ ΠΏΠ°ΡΠ°ΠΌΠ΅ΡΡΡ. ΠΠΎΠ»ΡΡΠΈΠ½ΡΡΠ²ΠΎ Π΄Π²Π΅ΡΠ΅ΠΉ ΡΠ°Π·Π»ΠΈΡΠ½ΡΡ ΠΏΡΠΎΠΈΠ·Π²ΠΎΠ΄ΠΈΡΠ΅Π»Π΅ΠΉ ΠΈΠΌΠ΅Π΅Ρ ΡΠ½ΠΈΠ²Π΅ΡΡΠ°Π»ΡΠ½ΡΠΉ ΡΠ°Π·ΠΌΠ΅Ρ β ΡΠΈΡΠΈΠ½Π° 60, 70 Π»ΠΈΠ±ΠΎ 80 ΡΠ°Π½ΡΠΈΠΌΠ΅ΡΡΠΎΠ² ΠΏΡΠΈ Π²ΡΡΠΎΡΠ΅ 2 ΠΌ. ΠΡΠ΄Π΅Π»ΡΠ½ΡΠ΅ ΠΏΡΠΎΠΈΠ·Π²ΠΎΠ΄ΠΈΡΠ΅Π»ΠΈ ΠΈΡΠΏΠΎΠ»ΡΠ·ΡΡΡ ΡΡΠ°Π½Π΄Π°ΡΡΠ½ΠΎΠ΅ ΡΠΎΡΠ΅ΡΠ°Π½ΠΈΠ΅ Π²ΡΡΠΎΡΡ Π² 190 ΡΠΌ Ρ ΡΠΈΡΠΈΠ½ΠΎΠΉ 55 ΡΠΌ. Π’ΠΎΠ»ΡΠΈΠ½Π° ΠΊΠΎΡΠΎΠ±ΠΎΠΊ ΠΎΠ±ΡΡΠ½ΠΎ Π²Π°ΡΡΠΈΡΡΠ΅ΡΡΡ ΠΎΡ 15 Π΄ΠΎ 40 ΠΌΠΌ.
ΠΡΠ»ΠΈ Π½Π΅ΡΠ΄Π°ΡΠ½ΠΎ ΠΏΠΎΠ΄ΠΎΠ±ΡΠ°Π½Π½ΡΠΉ ΠΏΠΎ ΡΠ°Π·ΠΌΠ΅ΡΡ Π΄Π²Π΅ΡΠ½ΠΎΠΉ Π±Π»ΠΎΠΊ Π½Π΅ Π²Π»Π΅Π·Π°Π΅Ρ Π² ΠΏΡΠΎΠ΅ΠΌ, ΠΏΠΎΡΠ»Π΅Π΄Π½ΠΈΠΉ ΠΏΡΠΈΠ΄Π΅ΡΡΡ ΡΠ°ΡΡΠΈΡΡΡΡ. ΠΠΎΡΠΎΠΉ ΡΡΠΎ Π±ΡΠ²Π°Π΅Ρ Π½Π΅Π²ΠΎΠ·ΠΌΠΎΠΆΠ½ΠΎ ΠΈΠ·-Π·Π° ΠΎΡΠΎΠ±Π΅Π½Π½ΠΎΡΡΠ΅ΠΉ ΠΏΠ»Π°Π½ΠΈΡΠΎΠ²ΠΊΠΈ. Π ΡΡΠΎΠΌ ΡΠ»ΡΡΠ°Π΅ Π΅Π΄ΠΈΠ½ΡΡΠ²Π΅Π½Π½ΡΠΉ Π²ΡΡ ΠΎΠ΄ β Π·Π°ΠΊΠ°Π·ΡΠ²Π°ΡΡ Π΄Π²Π΅ΡΡ Π½Π΅ΡΡΠ°Π½Π΄Π°ΡΡΠ½ΠΎΠ³ΠΎ ΡΠ°Π·ΠΌΠ΅ΡΠ°, ΡΡΠΎ ΡΠΊΠΎΠ½ΠΎΠΌΠΈΡΠ΅ΡΠΊΠΈ Π½Π΅Π²ΡΠ³ΠΎΠ΄Π½ΠΎ. ΠΠ°ΠΊ ΠΏΡΠ°Π²ΠΈΠ»ΠΎ, ΡΡΠΎΠΈΠΌΠΎΡΡΡ ΡΠ°ΠΊΠΈΡ Π½Π΅ΡΠΈΠΏΠΎΠ²ΡΡ Π±Π»ΠΎΠΊΠΎΠ² Π½Π° 30-50 ΠΏΡΠΎΡΠ΅Π½ΡΠΎΠ² Π΄ΠΎΡΠΎΠΆΠ΅ ΠΎΠ±ΡΡΠ½ΡΡ .
ΠΠΎΠ³Π΄Π° Π΄Π²Π΅ΡΡ Π½Π΅ ΠΏΠΎΠ΄Ρ ΠΎΠ΄ΠΈΡ ΠΊ ΠΏΡΠΎΠ΅ΠΌΡ, ΠΈΠ·ΠΌΠ΅Π½ΠΈΡΡ Π΅Π΅ ΡΠ°Π·ΠΌΠ΅ΡΡ Π² Π±ΠΎΠ»ΡΡΠΈΠ½ΡΡΠ²Π΅ ΡΠ»ΡΡΠ°Π΅Π² Π½Π΅Π²ΠΎΠ·ΠΌΠΎΠΆΠ½ΠΎ. ΠΡΠΊΠ»ΡΡΠ΅Π½ΠΈΠ΅ β ΠΊΠΎΠ½ΡΡΡΡΠΊΡΠΈΠΈ Ρ ΡΠ°Π·Π΄Π²ΠΈΠΆΠ½ΡΠΌΠΈ ΠΏΠΎΠ»ΠΎΡΠ½Π°ΠΌΠΈ. ΠΠ½ΠΈ ΠΏΡΠΎΠ΄Π°ΡΡΡΡ Ρ Π½Π°Π±ΠΎΡΠΎΠΌ Π΄Π΅ΡΠ°Π»Π΅ΠΉ, ΠΏΠΎΠ·Π²ΠΎΠ»ΡΡΡΠΈΠΌ Π²ΡΡΡΠ°Π²ΠΈΡΡ Π½ΡΠΆΠ½ΡΠΉ ΡΠ°Π·ΠΌΠ΅Ρ Π½Π°ΠΏΡΠ°Π²Π»ΡΡΡΠΈΡ , Π° Π²ΡΡΠΎΡΡ ΠΏΠΎΠ»ΠΎΡΠ΅Π½ ΠΌΠΎΠΆΠ½ΠΎ ΡΠ»Π΅Π³ΠΊΠ° ΡΠΌΠ΅Π½ΡΡΠΈΡΡ ΠΌΠ΅Π»ΠΊΠΎΠΉ Π½ΠΎΠΆΠΎΠ²ΠΊΠΎΠΉ ΠΈΠ»ΠΈ ΡΠ»Π΅ΠΊΡΡΠΎΠ»ΠΎΠ±Π·ΠΈΠΊΠΎΠΌ. Π¨ΠΈΡΠΈΠ½Π° ΠΊΠΎΡΡΠ΅ΠΊΡΠΈΡΡΠ΅ΡΡΡ ΡΡΠ΅ΠΏΠ΅Π½ΡΡ Π½Π°ΡΡΠΆΠ΅Π½ΠΈΡ ΠΏΠΎΠ»ΠΎΡΠ½Π°.

ΠΠΎΠ³Π΄Π° ΠΏΡΠ΅Π΄ΡΡΠΎΡΡ ΠΏΠ΅ΡΠ΅Π΄Π΅Π»ΠΊΠΈ
ΠΡΠ²Π°Π΅Ρ, ΡΡΠΎ ΠΏΡΠΎΠ΅ΠΌ Π½Π΅ΡΠΊΠΎΠ»ΡΠΊΠΎ ΡΠΈΡΠ΅ ΠΊΡΠΏΠ»Π΅Π½Π½ΠΎΠΉ Π΄Π²Π΅ΡΠΈ, ΡΠΎΠ³Π΄Π° ΠΏΠΎΡΡΠ΅Π±ΡΠ΅ΡΡΡ Π΅Π³ΠΎ ΡΡΠΆΠ΅Π½ΠΈΠ΅, ΡΡΠΎ ΡΠΎΠΆΠ΅ ΠΎΡΠ½ΠΈΠΌΠ΅Ρ ΠΌΠ°ΡΡΡ ΡΠΈΠ» ΠΈ ΡΡΠ΅Π΄ΡΡΠ². ΠΠΎΠΌΠΈΠΌΠΎ Π½Π΅ΠΎΠ±Ρ ΠΎΠ΄ΠΈΠΌΠΎΡΡΠΈ Π½Π°ΡΠ°ΡΠΈΠ²Π°ΡΡ ΡΡΠ΅Π½Ρ ΠΏΠΎ ΠΎΠ±Π΅ ΡΡΠΎΡΠΎΠ½Ρ ΠΏΠΎΠ»ΠΎΡΠ½Π°, ΠΌΠΎΠΆΠ΅Ρ Π²ΠΎΠ·Π½ΠΈΠΊΠ½ΡΡΡ ΡΠΈΡΡΠ°ΡΠΈΡ, ΠΊΠΎΠ³Π΄Π° Π½Π°Π»ΠΈΡΠ½ΠΈΠΊ Π½Π΅ ΠΏΠΎΠ»Π½ΠΎΡΡΡΡ ΠΏΠ΅ΡΠ΅ΠΊΡΡΠ²Π°Π΅Ρ ΠΏΡΠΎΡΡΡΠ°Π½ΡΡΠ²ΠΎ Π·Π°Π΄Π΅Π»ΠΊΠΈ ΠΌΠ΅ΠΆΠ΄Ρ ΠΏΠ°Π½Π΅Π»ΡΡ ΠΈ ΠΊΠΎΡΠΎΠ±ΠΊΠΎΠΉ. Π ΡΡΠΎΠΌ ΡΠ»ΡΡΠ°Π΅ ΠΏΡΠ΅Π΄ΡΡΠΎΠΈΡ Π΄ΠΎΠΏΠΎΠ»Π½ΠΈΡΠ΅Π»ΡΠ½ΡΠΉ ΠΎΠ±ΡΠ΅ΠΌ ΡΠ°Π±ΠΎΡ ΠΏΠΎ Π΄ΠΎΠΊΠ»Π΅ΠΈΠ²Π°Π½ΠΈΡ ΠΎΠ±ΠΎΠ΅Π² ΠΈΠ»ΠΈ Π΄ΠΎΠΊΠ»Π°Π΄ΡΠ²Π°Π½ΠΈΡ ΠΏΠ»ΠΈΡΠΊΠΈ. Π ΡΠ°ΡΠ΅ Π²ΡΠ΅Π³ΠΎ Π²ΡΠΏΠΎΠ»Π½ΡΡΡ Π΅Π³ΠΎ ΠΏΡΠ΅Π΄ΡΡΠΎΠΈΡ ΡΠ°ΠΌΠΎΡΡΠΎΡΡΠ΅Π»ΡΠ½ΠΎ, ΡΠ°ΠΊ ΠΊΠ°ΠΊ Π½Π°ΠΉΡΠΈ ΠΌΠ°ΡΡΠ΅ΡΠ° Π½Π° ΡΠ°ΠΊΠΎΠΉ ΠΌΠΈΠ·Π΅ΡΠ½ΡΠΉ ΡΡΠΎΠ½Ρ ΡΠ°Π±ΠΎΡ Π½Π΅Π»Π΅Π³ΠΊΠΎ.
ΠΡΠΎΠΌΠ΅ ΡΠΎΠ³ΠΎ, ΠΏΠΎΠΌΠ½ΠΈΠΌ ΠΎ ΡΠΎΠ»ΡΠΈΠ½Π΅ ΡΡΠ΅Π½. Π ΡΡΠ°Π½Π΄Π°ΡΡΠ½ΡΡ Π΄ΠΎΠΌΠ°Ρ ΡΡΠΎ 750 ΠΌΠΌ, ΠΈ Π±ΠΎΠ»ΡΡΠΈΠ½ΡΡΠ²ΠΎ ΠΏΡΠΎΠΈΠ·Π²ΠΎΠ΄ΠΈΡΠ΅Π»Π΅ΠΉ ΡΡΠ°ΡΠ°ΡΡΡΡ Π΄Π΅Π»Π°ΡΡ Π΄Π²Π΅ΡΠ½ΡΠ΅ ΠΊΠΎΡΠΎΠ±ΠΊΠΈ ΡΠΎΠΎΡΠ²Π΅ΡΡΡΠ²ΡΡΡΠ΅Π³ΠΎ ΡΠ°Π·ΠΌΠ΅ΡΠ°. Π ΡΠ»ΡΡΠ°Π΅ Π΅ΡΠ»ΠΈ ΡΠΎΠ»ΡΠΈΠ½Π° ΠΏΠ°Π½Π΅Π»ΠΈ ΠΈ Π²Ρ ΠΎΠ΄Π½ΠΎΠ³ΠΎ Π±Π»ΠΎΠΊΠ° Π½Π΅ ΡΠΎΠ²ΠΏΠ°Π΄Π°Π΅Ρ, ΠΌΠΎΠΆΠ΅Ρ ΠΏΠΎΡΡΠ΅Π±ΠΎΠ²Π°ΡΡΡΡ Π»ΠΈΠ±ΠΎ ΡΠ°ΡΡΠΈΡΠ΅Π½ΠΈΠ΅ ΠΊΠΎΡΠΎΠ±ΠΊΠΈ (Π² Π²ΠΈΠ΄Π΅ Π΄ΠΎΠ±ΠΎΡΠ° ΠΈΠ»ΠΈ ΠΎΡΠΊΠΎΡΠ°), Π»ΠΈΠ±ΠΎ ΠΎΡΠΏΠΈΠ» Π² Π΄ΠΎΠ»Π΅Π²ΠΎΠΌ Π½Π°ΠΏΡΠ°Π²Π»Π΅Π½ΠΈΠΈ. ΠΠ΅Π· ΡΠ°ΠΊΠΎΠΉ Π΄ΠΎΡΠ°Π±ΠΎΡΠΊΠΈ ΡΡΡΠ°Π½ΠΎΠ²ΠΊΠ° Π½Π°Π»ΠΈΡΠ½ΠΈΠΊΠ° Π½Π΅Π²ΠΎΠ·ΠΌΠΎΠΆΠ½Π°, ΡΡΠΎ ΡΠΎΠ½ΡΠ΅Ρ Π²Π½Π΅ΡΠ½ΠΈΠΉ Π²ΠΈΠ΄ ΠΊΠΎΠ½ΡΡΡΡΠΊΡΠΈΠΈ.
ΠΠΎΠ³Π΄Π° ΡΠΎΠ»ΡΠΈΠ½Π° ΡΡΠ΅Π½ ΠΏΠΎ Π²ΡΠ΅ΠΌΡ ΠΏΠ΅ΡΠΈΠΌΠ΅ΡΡΡ ΠΏΡΠΎΠ΅ΠΌΠ° ΠΎΠ΄ΠΈΠ½Π°ΠΊΠΎΠ²Π° (ΡΡΡΠ°Π½Π°Π²Π»ΠΈΠ²Π°Π΅ΡΡΡ ΡΡΠΎ ΠΌΠ½ΠΎΠ³ΠΎΠΊΡΠ°ΡΠ½ΡΠΌ ΠΈΠ·ΠΌΠ΅ΡΠ΅Π½ΠΈΠ΅ΠΌ Π² Π½Π΅ΡΠΊΠΎΠ»ΡΠΊΠΈΡ ΠΊΠΎΠ½ΡΡΠΎΠ»ΡΠ½ΡΡ ΡΠΎΡΠΊΠ°Ρ ), ΠΈΠΌΠ΅Π΅Ρ ΡΠΌΡΡΠ» Π·Π°ΠΊΠ°Π·Π°ΡΡ Π΄Π²Π΅ΡΡ ΠΏΠΎ ΠΈΠ½Π΄ΠΈΠ²ΠΈΠ΄ΡΠ°Π»ΡΠ½ΡΠΌ ΡΠ°Π·ΠΌΠ΅ΡΠ°ΠΌ. ΠΡΠ»ΠΈ ΠΆΠ΅ ΡΠ°Π·Π±ΡΠΎΡ Π² ΠΈΠ·ΠΌΠ΅ΡΠ΅Π½ΠΈΡΡ ΡΠΎΡΡΠ°Π²Π»ΡΠ΅Ρ ΠΎΡ 3 Π΄ΠΎ 30 ΠΌΠΌ, ΡΠΎ Π²ΡΠ΅ ΠΆΠ΅ Π»ΡΡΡΠ΅ ΡΠΌΠ°ΡΡΠ΅ΡΠΈΡΡ Π΄ΠΎΠ±ΠΎΡ, ΠΊΠΎΡΠΎΡΡΠΉ Π·Π°ΡΠ΅ΠΌ ΠΎΠ±ΡΠ΅Π·Π°ΡΡ Π½Π΅ ΠΏΠΎ ΠΏΡΡΠΌΠΎΠΉ, Π° Ρ ΡΡΠ΅ΡΠΎΠΌ ΠΊΡΠΈΠ²ΠΈΠ·Π½Ρ ΡΡΠ΅Π½.
ΠΡΠ»ΠΈ ΠΆΠ΅ ΠΏΠΎΡΠ»Π΅ ΡΡΡΠ°Π½ΠΎΠ²ΠΊΠΈ Π΄Π²Π΅ΡΠΈ ΠΈΠΌΠ΅Π΅Ρ ΠΌΠ΅ΡΡΠΎ ΡΠΌΠ΅Π½Π° Π½Π°ΠΏΠΎΠ»ΡΠ½ΠΎΠ³ΠΎ ΠΏΠΎΠΊΡΡΡΠΈΡ, ΠΌΠΎΠΆΠ΅Ρ Β«Π½Π°ΡΠΈΡΠΎΠ²Π°ΡΡΡΡΒ» Π½Π΅ΠΏΡΠΈΡΡΠ½Π°Ρ Π½Π΅ΠΎΠ±Ρ ΠΎΠ΄ΠΈΠΌΠΎΡΡΡ ΠΏΠΎΠ΄ΡΠ΅Π·Π°ΡΡ Π΄Π²Π΅ΡΡ ΡΠ½ΠΈΠ·Ρ β Π²Π΅Π΄Ρ Π½ΠΎΠ²ΡΠ΅ Π΄ΠΎΡΠΊΠΈ Π±ΡΠ²Π°ΡΡ Π½Π°ΠΌΠ½ΠΎΠ³ΠΎ ΡΠΎΠ»ΡΠ΅ ΡΡΠ°ΡΠΎΠ³ΠΎ Π»ΠΈΠ½ΠΎΠ»Π΅ΡΠΌΠ°. Π’Π°ΠΊΡΡ ΡΠ°Π±ΠΎΡΡ ΠΊΠ°ΡΠ΅ΡΡΠ²Π΅Π½Π½ΠΎ ΡΠΏΠΎΡΠΎΠ±Π΅Π½ Π²ΡΠΏΠΎΠ»Π½ΠΈΡΡ ΡΠΎΠ»ΡΠΊΠΎ ΠΏΡΠΎΡΠ΅ΡΡΠΈΠΎΠ½Π°Π».

ΠΠ΅ΠΆΠΊΠΎΠΌΠ½Π°ΡΠ½ΡΠ΅ Π΄Π²Π΅ΡΠΈ: ΡΠ°Π·ΠΌΠ΅ΡΡ Ρ ΠΊΠΎΡΠΎΠ±ΠΊΠΎΠΉ
Π Π°Π·ΠΌΠ΅ΡΡ Π΄Π²Π΅ΡΠ΅ΠΉ ΡΠ΅Π³Π»Π°ΠΌΠ΅Π½ΡΠΈΡΡΡΡ Π±ΠΎΠ»Π΅Π΅ 30 ΠΠΠ‘Π’ΠΎΠ² ΠΈ Π‘ΠΠΈΠΠΎΠ². ΠΠΏΡΠ΅Π΄Π΅Π»ΠΈΠΌΡΡ Ρ Π½Π°ΠΈΠ±ΠΎΠ»Π΅Π΅ Π²Π°ΠΆΠ½ΡΠΌΠΈ ΠΈΠ· Π½ΠΈΡ .
Π‘ΠΎΠ³Π»Π°ΡΠ½ΠΎ ΠΠΠ‘Π’, Π΄Π²Π΅ΡΠΈ ΠΈΠΌΠ΅ΡΡ ΡΠ»Π΅Π΄ΡΡΡΠΈΠ΅ ΡΠ°Π·ΠΌΠ΅ΡΡ:
β ΠΡΡ ΠΎΠ½Π½Π°Ρ Π΄Π²Π΅ΡΡ: ΡΠΈΡΠΈΠ½Π° 70 ΡΠΌ, Π²ΡΡΠΎΡΠ° β 2 ΠΌ ΠΏΡΠΈ Π³Π»ΡΠ±ΠΈΠ½Π΅ ΠΊΠΎΡΠΎΠ±ΠΊΠΈ 7 ΡΠΌ.
β ΠΠ²Π΅ΡΡ Π² ΡΡΠ°Π»Π΅Ρ ΠΈ Π²Π°Π½Π½ΡΡ ΠΊΠΎΠΌΠ½Π°ΡΡ: ΡΠΈΡΠΈΠ½Π° 55 ΠΈΠ»ΠΈ 60 ΡΠΌ, Π²ΡΡΠΎΡΠ° β 1 ΠΌ 90 ΡΠΌ ΠΈΠ»ΠΈ 2 ΠΌ. ΠΠΎΡΠΎΠ±ΠΊΠ° β ΠΎΡ 5 Π΄ΠΎ 7 ΡΠΌ.
β ΠΠ²Π΅ΡΡ ΠΌΠ΅ΠΆΠΊΠΎΠΌΠ½Π°ΡΠ½Π°Ρ: ΡΠΈΡΠΈΠ½Π° ΠΎΠ±ΡΡΠ½ΠΎ 80 ΡΠΌ, Π²ΡΡΠΎΡΠ° β 2 ΠΌ. ΠΠ»ΡΠ±ΠΈΠ½Π° ΠΊΠΎΡΠΎΠ±ΠΊΠΈ β 5-6 ΡΠΌ.
ΠΡΠ΅Π΄Π½Π°Π·Π½Π°ΡΠ΅Π½Π½ΡΠ΅ Π΄Π»Ρ Π³ΠΎΡΡΠΈΠ½ΠΎΠΉ ΠΌΠ΅ΠΆΠΊΠΎΠΌΠ½Π°ΡΠ½ΡΠ΅ Π΄Π²Π΅ΡΠΈ ΡΠ°Π·ΠΌΠ΅ΡΡ Ρ ΠΊΠΎΡΠΎΠ±ΠΊΠΎΠΉ ΠΈΠΌΠ΅ΡΡ ΡΠ»Π΅Π΄ΡΡΡΠΈΠ΅ (ΡΠ΅ΡΡ ΠΈΠ΄Π΅Ρ ΠΎ Π΄Π²ΡΡ ΡΡΠ²ΠΎΡΡΠ°ΡΡΡ Π΄Π²Π΅ΡΡΡ ): Π²ΡΡΠΎΡΠ° β 2 ΠΌ, ΡΠΈΡΠΈΠ½Π° β 1 ΠΌ 20 ΡΠΌ, Π° Π³Π»ΡΠ±ΠΈΠ½Π° β ΠΎΡ 7 Π΄ΠΎ 20 ΡΠΌ.
ΠΠΎΠΊΡΠΏΠΊΠ° ΡΡΠ°Π½Π΄Π°ΡΡΠ½ΡΡ Π΄Π²Π΅ΡΠ΅ΠΉ ΠΈΠΌΠ΅Π΅Ρ ΡΡΠ΄ ΠΏΡΠ΅ΠΈΠΌΡΡΠ΅ΡΡΠ². ΠΡΠΎ ΡΠΈΡΠΎΠΊΠΈΠΉ Π²ΡΠ±ΠΎΡ, ΠΏΡΠΎΡΡΠΎΡΠ° ΠΌΠΎΠ½ΡΠ°ΠΆΠ° ΠΈ, Π³Π»Π°Π²Π½ΠΎΠ΅, ΡΠΊΠΎΠ½ΠΎΠΌΠΈΡΠ½ΠΎΡΡΡ.
ΠΠΎΡΡΠ°Π²Π»ΡΡ ΠΌΠ΅ΠΆΠΊΠΎΠΌΠ½Π°ΡΠ½ΡΠ΅ Π΄Π²Π΅ΡΠΈ, ΡΠ°Π·ΠΌΠ΅ΡΡ Ρ ΠΊΠΎΡΠΎΠ±ΠΊΠΎΠΉ ΠΈΡ ΠΏΡΠΎΠΈΠ·Π²ΠΎΠ΄ΠΈΡΠ΅Π»Ρ Π² ΠΎΠ±ΡΠ·Π°ΡΠ΅Π»ΡΠ½ΠΎΠΌ ΠΏΠΎΡΡΠ΄ΠΊΠ΅ ΡΠΊΠ°Π·ΡΠ²Π°Π΅Ρ Π½Π° Π·Π°Π²ΠΎΠ΄ΡΠΊΠΎΠΉ ΡΠΏΠ°ΠΊΠΎΠ²ΠΊΠ΅. ΠΠ°Π·ΠΎΡ ΠΎΠΊΠΎΠ»ΠΎ 30 ΠΌΠΌ Π² Π²ΡΡΠΎΡΡ ΠΈ ΡΠΈΡΠΈΠ½Ρ ΠΌΠ΅ΠΆΠ΄Ρ ΠΊΠΎΡΠΎΠ±ΠΊΠΎΠΉ ΠΈ ΠΏΡΠΎΠ΅ΠΌΠΎΠΌ Π½ΡΠΆΠ΅Π½ Π΄Π»Ρ ΠΊΠΎΡΡΠ΅ΠΊΡΠ½ΠΎΠΉ ΡΡΡΠ°Π½ΠΎΠ²ΠΊΠΈ, ΠΊΡΠ΅ΠΏΠ»Π΅Π½ΠΈΡ, ΡΠ΅Π³ΡΠ»ΠΈΡΠΎΠ²ΠΊΠΈ, ΡΡΡΠ°Π½ΠΎΠ²ΠΊΠΈ ΡΠ΅ΠΏΠ»ΠΎ- ΠΈ Π·Π²ΡΠΊΠΎΠΈΠ·ΠΎΠ»ΡΡΠΈΠΈ ΠΈ Π·Π°ΠΏΠΎΠ»Π½Π΅Π½ΠΈΡ ΠΌΠΎΠ½ΡΠ°ΠΆΠ½ΠΎΠΉ ΠΏΠ΅Π½ΠΎΠΉ.

Π Π°Π·Π΄Π²ΠΈΠΆΠ½ΡΠ΅ Π΄Π²Π΅ΡΠΈ
Π ΠΏΠΎΡΠ»Π΅Π΄Π½ΠΈΠ΅ Π³ΠΎΠ΄Ρ ΡΠ΅Π·ΠΊΠΎ Π²ΠΎΠ·ΡΠΎΡΠ»Π° ΠΏΠΎΠΏΡΠ»ΡΡΠ½ΠΎΡΡΡ ΡΠ°Π·Π΄Π²ΠΈΠΆΠ½ΡΡ Π΄Π²Π΅ΡΠ΅ΠΉ. ΠΠ½ΠΈ ΠΎΡΠΈΠ³ΠΈΠ½Π°Π»ΡΠ½Ρ ΠΈ ΡΠ΄ΠΎΠ±Π½Ρ, ΠΏΠΎΠ·Π²ΠΎΠ»ΡΡΡ ΡΠΊΠΎΠ½ΠΎΠΌΠΈΡΡ ΠΌΠ΅ΡΡΠΎ Π² ΠΌΠ°Π»ΠΎΠ³Π°Π±Π°ΡΠΈΡΠ½ΡΡ ΠΊΠ²Π°ΡΡΠΈΡΠ°Ρ ΠΈ ΡΠΊΡΠ°ΡΠ°ΡΡ ΠΈΠ½ΡΠ΅ΡΡΠ΅Ρ Π±ΠΎΠ»ΡΡΠΈΡ ΠΏΠΎΠΌΠ΅ΡΠ΅Π½ΠΈΠΉ. Π Π°Π·Π΄Π²ΠΈΠΆΠ½ΡΠ΅ Π΄Π²Π΅ΡΠΈ ΠΌΠ΅ΠΆΠΊΠΎΠΌΠ½Π°ΡΠ½ΡΠ΅ Π±ΡΠ²Π°ΡΡ ΠΎΠ΄Π½ΠΎΡΡΠ²ΠΎΡΡΠ°ΡΡΠΌΠΈ ΠΈ Π΄Π²ΡΡ ΡΡΠ²ΠΎΡΡΠ°ΡΡΠΌΠΈ. ΠΠ΅ΡΠ²ΡΠ΅ ΡΠ°ΡΡΠΎ ΠΈΡΠΏΠΎΠ»ΡΠ·ΡΡΡΡΡ Π² Π½Π΅Π±ΠΎΠ»ΡΡΠΈΡ ΠΏΠΎΠΌΠ΅ΡΠ΅Π½ΠΈΡΡ , ΠΏΡΠΈ ΠΎΡΠΊΡΡΠ²Π°Π½ΠΈΠΈ ΠΎΠ½ΠΈ ΡΠ΄Π²ΠΈΠ³Π°ΡΡΡΡ Π² ΡΡΠΎΡΠΎΠ½Ρ. ΠΠΎΠ½ΡΠ°ΠΆ ΠΎΡΡΡΠ΅ΡΡΠ²Π»ΡΠ΅ΡΡΡ Π΄ΠΎΡΡΠ°ΡΠΎΡΠ½ΠΎ Π»Π΅Π³ΠΊΠΎ, Π±Π΅Π· ΡΡΡΠ°Π½ΠΎΠ²ΠΊΠΈ Π΄Π²Π΅ΡΠ½ΠΎΠΉ ΠΊΠΎΡΠΎΠ±ΠΊΠΈ.
ΠΡΠΎΡΡΠ΅ (Ρ.Π΅. Π΄Π²ΡΡΡΠ²ΠΎΡΡΠ°ΡΡΠ΅) β ΡΠΈΡΠΎΠΊΠΈΠ΅, ΡΠ΄ΠΎΠ±Π½ΡΠ΅ ΠΈ Π½Π΅ΡΡΡΠΈΠ΅ Π΄Π΅ΠΊΠΎΡΠ°ΡΠΈΠ²Π½ΡΡ ΡΡΠ½ΠΊΡΠΈΡ. Π‘ΡΠ°Π²ΡΡΡΡ Π² ΠΏΡΠΎΡΡΠΎΡΠ½ΡΡ ΠΏΠΎΠΌΠ΅ΡΠ΅Π½ΠΈΡΡ ΠΈ ΡΠΎΡΡΠΎΡΡ, ΠΊΠ°ΠΊ ΠΏΡΠ°Π²ΠΈΠ»ΠΎ, ΠΈΠ· Π΄Π²ΡΡ ΠΏΠΎΠ»ΠΎΠ²ΠΈΠ½ΠΎΠΊ.
Π Π°Π·ΠΌΠ΅ΡΡ ΠΈΡ Π² Π²ΡΡΠΎΡΡ β ΠΎΡ 2 ΠΌΠ΅ΡΡΠΎΠ², Π² ΡΠΈΡΠΈΠ½Ρ β 1-1.8 ΠΌΠ΅ΡΡΠ°, ΠΌΠΎΠΆΠ½ΠΎ Π²ΡΠ±ΡΠ°ΡΡ ΠΈ Π΄ΡΡΠ³ΠΈΠ΅ ΠΏΠ°ΡΠ°ΠΌΠ΅ΡΡΡ.
Π Π°Π·Π΄Π²ΠΈΠΆΠ½ΡΠ΅ Π΄Π²Π΅ΡΠΈ ΠΌΠ΅ΠΆΠΊΠΎΠΌΠ½Π°ΡΠ½ΡΠ΅ ΠΌΠΎΠ³ΡΡ Π±ΡΡΡ ΡΡΠ΅ΠΊΠ»ΡΠ½Π½ΡΠΌΠΈ, ΡΠΊΠ»Π°Π΄Π½ΡΠΌΠΈ ΡΠΈΠΏΠ° Β«Π³Π°ΡΠΌΠΎΡΠΊΠ°Β» (ΠΈΠ· ΡΠ°Π·Π½ΡΡ ΠΌΠ°ΡΠ΅ΡΠΈΠ°Π»ΠΎΠ², ΠΎΡ Π°Π»ΡΠΌΠΈΠ½ΠΈΡ Π΄ΠΎ Π΄Π΅ΡΠ΅Π²Π°), ΡΠΈΠΏΠ° Β«ΠΊΡΠΏΠ΅Β» ΠΈΠ»ΠΈ Β«ΠΏΠ΅Π½Π°Π»Β», Π° ΡΠ°ΠΊΠΆΠ΅ ΠΏΡΠ΅Π΄ΡΡΠ°Π²Π»ΡΡΡ ΡΠΎΠ±ΠΎΠΉ ΡΠΈΡΡΠ΅ΠΌΡ ΡΠ°Π·Π΄Π²ΠΈΠΆΠ½ΡΡ ΠΏΠ΅ΡΠ΅Π³ΠΎΡΠΎΠ΄ΠΎΠΊ.
ΠΡΠΈ 10 ΠΌΠ΅Π»ΠΎΡΠ΅ΠΉ ΠΌΡΠΆΡΠΈΠ½Π° Π²ΡΠ΅Π³Π΄Π° Π·Π°ΠΌΠ΅ΡΠ°Π΅Ρ Π² ΠΆΠ΅Π½ΡΠΈΠ½Π΅ ΠΡΠΌΠ°Π΅ΡΠ΅, Π²Π°Ρ ΠΌΡΠΆΡΠΈΠ½Π° Π½ΠΈΡΠ΅Π³ΠΎ Π½Π΅ ΡΠΌΡΡΠ»ΠΈΡ Π² ΠΆΠ΅Π½ΡΠΊΠΎΠΉ ΠΏΡΠΈΡ ΠΎΠ»ΠΎΠ³ΠΈΠΈ? ΠΡΠΎ Π½Π΅ ΡΠ°ΠΊ. ΠΡ Π²Π·Π³Π»ΡΠ΄Π° Π»ΡΠ±ΡΡΠ΅Π³ΠΎ Π²Π°Ρ ΠΏΠ°ΡΡΠ½Π΅ΡΠ° Π½Π΅ ΡΠΊΡΠΎΠ΅ΡΡΡ Π½ΠΈ Π΅Π΄ΠΈΠ½Π°Ρ ΠΌΠ΅Π»ΠΎΡΡ. Π Π²ΠΎΡ 10 Π²Π΅ΡΠ΅ΠΉ.
ΠΠΈΠΊΠΎΠ³Π΄Π° Π½Π΅ Π΄Π΅Π»Π°ΠΉΡΠ΅ ΡΡΠΎΠ³ΠΎ Π² ΡΠ΅ΡΠΊΠ²ΠΈ! ΠΡΠ»ΠΈ Π²Ρ Π½Π΅ ΡΠ²Π΅ΡΠ΅Π½Ρ ΠΎΡΠ½ΠΎΡΠΈΡΠ΅Π»ΡΠ½ΠΎ ΡΠΎΠ³ΠΎ, ΠΏΡΠ°Π²ΠΈΠ»ΡΠ½ΠΎ Π²Π΅Π΄Π΅ΡΠ΅ ΡΠ΅Π±Ρ Π² ΡΠ΅ΡΠΊΠ²ΠΈ ΠΈΠ»ΠΈ Π½Π΅Ρ, ΡΠΎ, Π²Π΅ΡΠΎΡΡΠ½ΠΎ, ΠΏΠΎΡΡΡΠΏΠ°Π΅ΡΠ΅ Π²ΡΠ΅ ΠΆΠ΅ Π½Π΅ ΡΠ°ΠΊ, ΠΊΠ°ΠΊ ΠΏΠΎΠ»ΠΎΠΆΠ΅Π½ΠΎ. ΠΠΎΡ ΡΠΏΠΈΡΠΎΠΊ ΡΠΆΠ°ΡΠ½ΡΡ .
ΠΠ°ΠΏΠ΅ΡΠ΅ΠΊΠΎΡ Π²ΡΠ΅ΠΌ ΡΡΠ΅ΡΠ΅ΠΎΡΠΈΠΏΠ°ΠΌ: Π΄Π΅Π²ΡΡΠΊΠ° Ρ ΡΠ΅Π΄ΠΊΠΈΠΌ Π³Π΅Π½Π΅ΡΠΈΡΠ΅ΡΠΊΠΈΠΌ ΡΠ°ΡΡΡΡΠΎΠΉΡΡΠ²ΠΎΠΌ ΠΏΠΎΠΊΠΎΡΡΠ΅Ρ ΠΌΠΈΡ ΠΌΠΎΠ΄Ρ ΠΡΡ Π΄Π΅Π²ΡΡΠΊΡ Π·ΠΎΠ²ΡΡ ΠΠ΅Π»Π°Π½ΠΈ ΠΠ°ΠΉΠ΄ΠΎΡ, ΠΈ ΠΎΠ½Π° Π²ΠΎΡΠ²Π°Π»Π°ΡΡ Π² ΠΌΠΈΡ ΠΌΠΎΠ΄Ρ ΡΡΡΠ΅ΠΌΠΈΡΠ΅Π»ΡΠ½ΠΎ, ΡΠΏΠ°ΡΠΈΡΡΡ, Π²ΠΎΠΎΠ΄ΡΡΠ΅Π²Π»ΡΡ ΠΈ ΡΠ°Π·ΡΡΡΠ°Ρ Π³Π»ΡΠΏΡΠ΅ ΡΡΠ΅ΡΠ΅ΠΎΡΠΈΠΏΡ.
11 ΡΡΡΠ°Π½Π½ΡΡ ΠΏΡΠΈΠ·Π½Π°ΠΊΠΎΠ², ΡΠΊΠ°Π·ΡΠ²Π°ΡΡΠΈΡ , ΡΡΠΎ Π²Ρ Ρ ΠΎΡΠΎΡΠΈ Π² ΠΏΠΎΡΡΠ΅Π»ΠΈ ΠΠ°ΠΌ ΡΠΎΠΆΠ΅ Ρ ΠΎΡΠ΅ΡΡΡ Π²Π΅ΡΠΈΡΡ Π² ΡΠΎ, ΡΡΠΎ Π²Ρ Π΄ΠΎΡΡΠ°Π²Π»ΡΠ΅ΡΠ΅ ΡΠ²ΠΎΠ΅ΠΌΡ ΡΠΎΠΌΠ°Π½ΡΠΈΡΠ΅ΡΠΊΠΎΠΌΡ ΠΏΠ°ΡΡΠ½Π΅ΡΡ ΡΠ΄ΠΎΠ²ΠΎΠ»ΡΡΡΠ²ΠΈΠ΅ Π² ΠΏΠΎΡΡΠ΅Π»ΠΈ? ΠΠΎ ΠΊΡΠ°ΠΉΠ½Π΅ΠΉ ΠΌΠ΅ΡΠ΅, Π²Ρ Π½Π΅ Ρ ΠΎΡΠΈΡΠ΅ ΠΊΡΠ°ΡΠ½Π΅ΡΡ ΠΈ ΠΈΠ·Π²ΠΈΠ½.
ΠΠ°ΡΠΈ ΠΏΡΠ΅Π΄ΠΊΠΈ ΡΠΏΠ°Π»ΠΈ Π½Π΅ ΡΠ°ΠΊ, ΠΊΠ°ΠΊ ΠΌΡ. Π§ΡΠΎ ΠΌΡ Π΄Π΅Π»Π°Π΅ΠΌ Π½Π΅ΠΏΡΠ°Π²ΠΈΠ»ΡΠ½ΠΎ? Π ΡΡΠΎ ΡΡΡΠ΄Π½ΠΎ ΠΏΠΎΠ²Π΅ΡΠΈΡΡ, Π½ΠΎ ΡΡΠ΅Π½ΡΠ΅ ΠΈ ΠΌΠ½ΠΎΠ³ΠΈΠ΅ ΠΈΡΡΠΎΡΠΈΠΊΠΈ ΡΠΊΠ»ΠΎΠ½ΡΡΡΡΡ ΠΊ ΠΌΠ½Π΅Π½ΠΈΡ, ΡΡΠΎ ΡΠΎΠ²ΡΠ΅ΠΌΠ΅Π½Π½ΡΠΉ ΡΠ΅Π»ΠΎΠ²Π΅ΠΊ ΡΠΏΠΈΡ ΡΠΎΠ²ΡΠ΅ΠΌ Π½Π΅ ΡΠ°ΠΊ, ΠΊΠ°ΠΊ Π΅Π³ΠΎ Π΄ΡΠ΅Π²Π½ΠΈΠ΅ ΠΏΡΠ΅Π΄ΠΊΠΈ. ΠΠ·Π½Π°ΡΠ°Π»ΡΠ½ΠΎ.
ΠΠ°ΡΠ΅ΠΌ Π½ΡΠΆΠ΅Π½ ΠΊΡΠΎΡΠ΅ΡΠ½ΡΠΉ ΠΊΠ°ΡΠΌΠ°Π½ Π½Π° Π΄ΠΆΠΈΠ½ΡΠ°Ρ ? ΠΡΠ΅ Π·Π½Π°ΡΡ, ΡΡΠΎ Π΅ΡΡΡ ΠΊΡΠΎΡΠ΅ΡΠ½ΡΠΉ ΠΊΠ°ΡΠΌΠ°Π½ Π½Π° Π΄ΠΆΠΈΠ½ΡΠ°Ρ , Π½ΠΎ ΠΌΠ°Π»ΠΎ ΠΊΡΠΎ Π·Π°Π΄ΡΠΌΡΠ²Π°Π»ΡΡ, Π·Π°ΡΠ΅ΠΌ ΠΎΠ½ ΠΌΠΎΠΆΠ΅Ρ Π±ΡΡΡ Π½ΡΠΆΠ΅Π½. ΠΠ½ΡΠ΅ΡΠ΅ΡΠ½ΠΎ, ΡΡΠΎ ΠΏΠ΅ΡΠ²ΠΎΠ½Π°ΡΠ°Π»ΡΠ½ΠΎ ΠΎΠ½ Π±ΡΠ» ΠΌΠ΅ΡΡΠΎΠΌ Π΄Π»Ρ Ρ Ρ.
ΠΡΡΠΎΡΠ½ΠΈΠΊΠΈ: http://dveridoc.ru/vybor/razmer-mezhkomnatnyx-dverej-s-korobkoj.html, http://krutostroi.com/247-razmer-dvernoy-korobki-mezhkomnatnoy-dveri-standarty-primer-rascheta.html, http://fb.ru/article/163639/mejkomnatnyie-dveri-razmeryi-s-korobkoy-razmeryi-dvernyih-korobok-mejkomnatnyih-dverey
gorodverey.ru
Π Π°Π·ΠΌΠ΅ΡΡ Π΄Π²Π΅ΡΠ½ΠΎΠΉ ΠΊΠΎΡΠΎΠ±ΠΊΠΈ ΠΌΠ΅ΠΆΠΊΠΎΠΌΠ½Π°ΡΠ½ΠΎΠΉ Π΄Π²Π΅ΡΠΈ
ΠΠΎΡΠΎΠ±ΠΊΠ° Π΄Π»Ρ ΠΌΠ΅ΠΆΠΊΠΎΠΌΠ½Π°ΡΠ½ΠΎΠΉ Π΄Π²Π΅ΡΠΈ ΠΏΡΠ΅Π΄ΡΡΠ°Π²Π»ΡΠ΅Ρ ΡΠΎΠ±ΠΎΠΉ Π½Π΅ΠΏΠΎΠ΄Π²ΠΈΠΆΠ½ΡΡ ΠΎΡΠ½ΠΎΠ²Ρ ΠΈΠ· Π΄Π΅ΡΠ΅Π²ΡΠ½Π½ΡΡ
ΡΡΠΎΠ΅ΠΊ ΠΈ ΠΏΠ΅ΡΠ΅ΠΊΠ»Π°Π΄ΠΈΠ½Ρ, Π½Π° ΠΊΠΎΡΠΎΡΡΡ ΠΊΡΠ΅ΠΏΠΈΡΡΡ Π΄Π²Π΅ΡΠ½Π°Ρ ΡΡΠ²ΠΎΡΠΊΠ° ΠΏΡΠΈ ΠΏΠΎΠΌΠΎΡΠΈ ΠΏΠ΅ΡΠ΅Π»Ρ. ΠΠ΅ΡΠ΅Π΄ ΠΏΠΎΠΊΡΠΏΠΊΠΎΠΉ Π½Π΅ΠΎΠ±Ρ
ΠΎΠ΄ΠΈΠΌΠΎ Π·Π½Π°ΡΡ ΠΊΠ°ΠΊΠΎΠΉ ΡΠΎΠ»ΡΠΈΠ½Ρ ΠΈ ΡΠΈΡΠΈΠ½Ρ Π΄ΠΎΠ»ΠΆΠ½Π° Π±ΡΡΡ Π΄Π°Π½Π½Π°Ρ ΠΊΠΎΠ½ΡΡΡΡΠΊΡΠΈΡ. Π ΡΠΎΠΌΡ ΠΆΠ΅ Π½ΡΠΆΠ½ΠΎ ΡΡΠ΅ΡΡΡ, Π±ΡΠ΄Π΅ΡΠ΅ Π²Ρ ΡΠΎΠ±ΠΈΡΠ°ΡΡ Π΅Π΅ ΠΈΠ· ΡΠ²ΠΎΠΈΡ
ΠΏΠΈΠ»ΠΎΠΌΠ°ΡΠ΅ΡΠΈΠ°Π»ΠΎΠ² ΠΈΠ»ΠΈ ΠΊΡΠΏΠΈΡΠ΅ Π³ΠΎΡΠΎΠ²ΡΠ΅ Π΄Π΅ΡΠ°Π»ΠΈ Π² ΠΊΠΎΠΌΠΏΠ»Π΅ΠΊΡΠ΅ Ρ Π΄Π²Π΅ΡΠ½ΡΠΌ ΠΏΠΎΠ»ΠΎΡΠ½ΠΎΠΌ. ΠΠΎΠ»Π΅Π΅ ΠΏΠΎΠ΄ΡΠΎΠ±Π½ΠΎ ΠΎ ΡΠ±ΠΎΡΠΊΠ΅ ΠΊΠΎΡΠΎΠ±ΠΊΠΈ Π΄Π»Ρ ΠΌΠ΅ΠΆΠΊΠΎΠΌΠ½Π°ΡΠ½ΠΎΠΉ Π΄Π²Π΅ΡΠΈ, Π²Ρ ΡΠ·Π½Π°Π΅ΡΠ΅ ΠΈΠ· Π΄Π°Π½Π½ΠΎΠΉ ΡΡΠ°ΡΡΠΈ ΠΈ ΠΏΡΠΎΡΠΌΠΎΡΡΠ΅Π² ΠΎΠ·Π½Π°ΠΊΠΎΠΌΠΈΡΠ΅Π»ΡΠ½ΠΎΠ΅ Π²ΠΈΠ΄Π΅ΠΎ.
ΠΠ΅ΡΠ΅Π΄ ΡΠ΅ΠΌ ΠΊΠ°ΠΊ ΡΡΡΠ°Π½ΠΎΠ²ΠΈΡΡ Π΄Π²Π΅ΡΠ½ΡΡ ΠΊΠΎΡΠΎΠ±ΠΊΡ, Π½ΡΠΆΠ½ΠΎ ΡΠ°ΡΡΡΠΈΡΠ°ΡΡ ΠΏΠ°ΡΠ°ΠΌΠ΅ΡΡΡ ΠΏΡΠΎΠ΅ΠΌΠ°: ΡΠΈΡΠΈΠ½Ρ, ΡΠΎΠ»ΡΠΈΠ½Ρ, Π²ΡΡΠΎΡΡ. Π Π°Π·ΠΌΠ΅ΡΡ Π΄Π²Π΅ΡΠ½ΠΎΠ³ΠΎ ΠΏΡΠΎΠ΅ΠΌΠ°, Π±ΡΠ΄ΡΡ Π·Π°Π²ΠΈΡΠ΅ΡΡ ΠΎΡ ΡΠ°Π·ΠΌΠ΅ΡΠΎΠ² ΠΌΠ΅ΠΆΠΊΠΎΠΌΠ½Π°ΡΠ½ΠΎΠΉ Π΄Π²Π΅ΡΠΈ. ΠΠ»Ρ Π½Π°ΡΠ°Π»Π° ΠΎΠΏΡΠ΅Π΄Π΅Π»ΡΠ΅ΠΌΡΡ Ρ Π΅Π΅ ΡΠ°Π·ΠΌΠ΅ΡΠ°ΠΌΠΈ. ΠΡΠΎΠΈΠ·Π²ΠΎΠ΄ΠΈΡΠ΅Π»ΠΈ ΠΏΡΠ΅Π΄Π»Π°Π³Π°ΡΡ ΡΠ°Π·ΠΌΠ΅ΡΡ Π΄Π²Π΅ΡΠ½ΠΎΠ³ΠΎ ΠΏΠΎΠ»ΠΎΡΠ½Π° Π²ΡΡΠΎΡΠΎΠΉ 200 ΡΠΌ, Π° ΡΠΈΡΠΈΠ½ΠΎΠΉ ΠΎΡ 60 Π΄ΠΎ 90 ΡΠΌ. ΠΡΠΈ ΡΡΠΎΠΌ ΡΠΈΡΠΈΠ½Π° ΠΊΠΎΡΠΎΠ±ΠΊΠΈ ΠΏΠΎΠ»ΡΡΠΈΡΡΡ Π±ΠΎΠ»ΡΡΠ΅ ΡΡΠ²ΠΎΡΠΊΠΈ Π½Π° 7 ΡΠΌ, Π° Π²ΡΡΠΎΡΠ° Π½Π° 4,7 ΡΠΌ. Π’ΠΎΠ»ΡΠΈΠ½Π° ΡΡΠ°Π½Π΄Π°ΡΡΠ½ΡΡ ΠΊΠΎΡΠΎΠ±ΠΎΠΊ 25, 40 ΠΈ 60 ΠΌΠΌ, Π½ΠΎ ΡΡΠΈ ΡΠΈΡΡΡ ΠΌΠΎΠ³ΡΡ ΠΌΠ΅Π½ΡΡΡΡΡ Π² Π·Π°Π²ΠΈΡΠΈΠΌΠΎΡΡΠΈ ΠΎΡ ΠΏΡΠΎΠΈΠ·Π²ΠΎΠ΄ΠΈΡΠ΅Π»Ρ. ΠΠ°ΠΏΡΠΈΠΌΠ΅Ρ, Π΄Π»Ρ Π΄Π²Π΅ΡΠ½ΠΎΠ³ΠΎ ΠΏΠΎΠ»ΠΎΡΠ½Π°, ΡΠ°Π·ΠΌΠ΅ΡΠΎΠΌ 60 Ρ 200 ΡΠΌ, ΠΊΠΎΡΠΎΠ±ΠΊΠ° Π±ΡΠ΄Π΅Ρ ΠΈΠΌΠ΅ΡΡ Π³Π°Π±Π°ΡΠΈΡΡ 67 Ρ 204,7 ΡΠΌ.
ΠΠ½ΠΈΠΌΠ°Π½ΠΈΠ΅! ΠΡΡΡΠ΅ Π²ΡΠ΅Π³ΠΎ Π²ΡΠ±ΠΈΡΠ°ΡΡ ΡΠΎΠ»ΡΠΈΠ½Ρ Π΄Π²Π΅ΡΠ½ΠΎΠΉ ΠΊΠΎΡΠΎΠ±ΠΊΠΈ ΡΠ°Π²Π½ΡΡ ΡΠΎΠ»ΡΠΈΠ½Π΅ ΠΏΡΠΎΠ΅ΠΌΠ°. ΠΠ½Π°ΡΠ΅ ΠΏΡΠΈΠ΄Π΅ΡΡΡ ΡΡΡΠ°Π½Π°Π²Π»ΠΈΠ²Π°ΡΡ ΡΠ°ΡΡΠΈΡΠΈΡΠ΅Π»Ρ ΠΈΠ»ΠΈ ΠΎΡΠΏΠΈΠ»ΠΈΠ²Π°ΡΡ Π΅Π΅ Π²Π΄ΠΎΠ»Ρ.
ΠΠ°ΠΏΡΠΈΠΌΠ΅Ρ, ΡΡΠΎΠ±Ρ ΡΠ°ΡΡΡΠΈΡΠ°ΡΡ Π΄Π²Π΅ΡΠ½ΠΎΠΉ ΠΏΡΠΎΠ΅ΠΌ Π΄Π»Ρ ΠΏΠΎΠ»ΠΎΡΠ½Π° ΡΠΈΡΠΈΠ½ΠΎΠΉ 80 ΡΠΌ ΠΈ ΡΠΎΠ»ΡΠΈΠ½ΠΎΠΉ 4 ΡΠΌ, Π½ΡΠΆΠ½ΠΎ ΠΏΡΠΈΠ±Π°Π²ΠΈΡΡ ΠΊ 80 ΡΠΎΠ»ΡΠΈΠ½Ρ ΠΊΠΎΡΠΎΠ±ΠΊΠΈ ΠΈ ΠΌΠΎΠ½ΡΠ°ΠΆΠ½ΡΠ΅ Π·Π°Π·ΠΎΡΡ (1,5-2 ΡΠΌ), Π½Π΅ Π·Π°Π±ΡΠ²Π°Ρ, ΡΡΠΎ ΠΎΠ½ΠΈ ΠΈΠΌΠ΅ΡΡΡΡ Ρ ΠΊΠ°ΠΆΠ΄ΠΎΠΉ ΡΡΠΎΡΠΎΠ½Ρ. Π Π°ΡΡΠ΅Ρ Π΄Π²Π΅ΡΠ½ΠΎΠ³ΠΎ ΠΏΡΠΎΠ΅ΠΌΠ° (Π¨Π΄ΠΏ) Π΄Π»Ρ Π΄Π²Π΅ΡΠ½ΠΎΠ³ΠΎ ΠΏΠΎΠ»ΠΎΡΠ½Π° ΡΠΈΡΠΈΠ½ΠΎΠΉ 80 ΠΈ ΡΠΎΠ»ΡΠΈΠ½ΠΎΠΉ 4 ΡΠΌ:
Π¨Π΄ΠΏ=80+4+4+1,5+1,5= 91 ΡΠΌ
ΠΡΡΠΎΡΠ° ΡΠ°ΡΡΡΠΈΡΡΠ²Π°Π΅ΡΡΡ ΠΊΠ°ΠΊ ΡΡΠΌΠΌΠ° Π²ΡΡΠΎΡΡ Π΄Π²Π΅ΡΠΈ, ΠΏΠ»ΡΡ Π²ΡΡΠΎΡΠ° ΠΏΠΎΡΠΎΠ³Π°, ΡΠΎΠ»ΡΠΈΠ½Π° ΠΊΠΎΡΠΎΠ±ΠΊΠΈ ΠΈ ΠΌΠΎΠ½ΡΠ°ΠΆΠ½ΠΎΠ³ΠΎ Π·Π°Π·ΠΎΡΠ°. ΠΠ±ΡΡΠ½ΠΎ ΠΏΠΎΡΠΎΠ³ΠΈ Π΄Π΅Π»Π°ΡΡ ΡΠΎΠ»ΡΠΊΠΎ Π΄Π»Ρ Π²Ρ ΠΎΠ΄Π½ΡΡ Π΄Π²Π΅ΡΠ΅ΠΉ, ΠΏΠΎΡΡΠΎΠΌΡ Π΄Π»Ρ ΡΠ°ΡΡΠ΅ΡΠ° ΠΌΠ΅ΠΆΠΊΠΎΠΌΠ½Π°ΡΠ½ΡΡ , ΡΡΠΎΡ ΠΏΠΎΠΊΠ°Π·Π°ΡΠ΅Π»Ρ ΠΌΠΎΠΆΠ½ΠΎ Π½Π΅ ΡΡΠΈΡΡΠ²Π°ΡΡ.
Π ΡΠ΅Π»ΡΡ ΡΠΊΠΎΠ½ΠΎΠΌΠΈΠΈ ΠΌΠΎΠΆΠ½ΠΎ ΠΊΡΠΏΠΈΡΡ ΡΠΎΠ»ΡΠΊΠΎ Π΄Π²Π΅ΡΠ½ΠΎΠΉ ΠΏΠΎΠ»ΠΎΡΠ½ΠΎ, Π° ΠΊΠΎΡΠΎΠ±ΠΊΡ ΡΡΡΠ°Π½ΠΎΠ²ΠΈΡΡ ΡΠ°ΠΌΠΎΡΡΠΎΡΡΠ΅Π»ΡΠ½ΠΎ. ΠΡΠΎΡΠ΅ΡΡ ΡΠ±ΠΎΡΠΊΠΈ ΡΠΎΡΡΠΎΠΈΡ ΠΈΠ· ΡΠ»Π΅Π΄ΡΡΡΠΈΡ ΠΎΠΏΠ΅ΡΠ°ΡΠΈΠΉ:
ΠΠ½ΠΈΠΌΠ°Π½ΠΈΠ΅! ΠΠ°Π½Π½Π°Ρ ΡΠ΅Ρ Π½ΠΎΠ»ΠΎΠ³ΠΈΡ ΡΠ±ΠΎΡΠΊΠΈ ΠΊΠΎΡΠΎΠ±ΠΊΠΈ, ΠΏΡΠΈΠ³ΠΎΠ΄Π½Π° ΡΠΎΠ»ΡΠΊΠΎ Π΄Π»Ρ ΡΠ΅Ρ Π΄Π²Π΅ΡΠ΅ΠΉ, Ρ ΠΏΡΠΈΡΠ²ΠΎΡΠΎΠ² ΠΊΠΎΡΠΎΡΡΡ ΠΏΡΡΠΌΠΎΡΠ³ΠΎΠ»ΡΠ½ΠΎΠ΅ ΡΠ΅ΡΠ΅Π½ΠΈΠ΅. ΠΠ»Ρ ΡΠ»ΠΎΠΆΠ½ΡΡ ΡΠ΅ΡΠ΅Π½ΠΈΠΉ ΡΡΠΎΠΉΠΊΠΈ ΠΈ ΠΏΠ΅ΡΠ΅ΠΊΠ»Π°Π΄ΠΈΠ½Ρ Π΄ΠΎΠ»ΠΆΠ½Ρ Π±ΡΡΡ Π·Π°ΠΏΠΈΠ»Π΅Π½Ρ ΠΏΠΎΠ΄ 45Β°.
ΠΠ° ΡΡΠΎΠΌ ΠΌΠΎΠ½ΡΠ°ΠΆ Π΄Π²Π΅ΡΠ½ΠΎΠΉ ΠΊΠΎΡΠΎΠ±ΠΊΠΈ Π³ΠΎΡΠΎΠ². ΠΡΡΠ°Π΅ΡΡΡ ΠΏΡΠΈΠΊΡΡΡΠΈΡΡ ΠΏΠ΅ΡΠ»ΠΈ, Π½Π°Π²Π΅ΡΠΈΡΡ Π΄Π²Π΅ΡΠ½ΠΎΠ΅ ΠΏΠΎΠ»ΠΎΡΠ½ΠΎ ΠΈ ΡΡΡΠ°Π½ΠΎΠ²ΠΈΡΡ Π½Π°Π»ΠΈΡΠ½ΠΈΠΊΠΈ. ΠΡΠΈ Π½Π΅Π±ΠΎΠ»ΡΡΠΎΠΌ ΠΎΠΏΡΡΠ΅ ΡΡΠΎΠ»ΡΡΠ½ΡΡ ΡΠ°Π±ΠΎΡ ΠΈ ΡΠ΅ΡΠΏΠ΅Π½ΠΈΠΈ, ΠΌΠΎΠΆΠ½ΠΎ ΡΡΠΊΠΎΠ½ΠΎΠΌΠΈΡΡ Π΄Π΅Π½ΡΠ³ΠΈ Π½Π° ΡΡΡΠ°Π½ΠΎΠ²ΠΎΡΠ½ΡΡ ΡΠ°Π±ΠΎΡΠ°Ρ , Π³Π»Π°Π²Π½ΠΎΠ΅ ΠΏΡΠ°Π²ΠΈΠ»ΡΠ½ΠΎ ΡΠ΄Π΅Π»Π°ΡΡ Π²ΡΠ΅ Π·Π°ΠΌΠ΅ΡΡ ΠΈ ΠΏΡΠΈΠ΄Π΅ΡΠΆΠΈΠ²Π°ΡΡΡΡ ΠΈΠ½ΡΡΡΡΠΊΡΠΈΠΈ.
ΠΡΠΏΠΎΠ»Π½ΡΡ ΡΠ΅ΠΌΠΎΠ½Ρ, ΡΠ»Π΅Π΄ΡΠ΅Ρ Π½Π΅ Π·Π°Π±ΡΠ²Π°ΡΡ ΠΎ ΡΠΌΠ΅Π½Π΅ Π²Ρ ΠΎΠ΄Π½ΡΡ ΠΈ ΠΌΠ΅ΠΆΠΊΠΎΠΌΠ½Π°ΡΠ½ΡΡ Π΄Π²Π΅ΡΠ΅ΠΉ, Π΅ΡΠ»ΠΈ ΠΎΠ½ΠΈ ΡΠΆΠ΅ ΠΎΡΡΠ»ΡΠΆΠΈΠ»ΠΈ ΡΠ²ΠΎΠΉ ΡΡΠΎΠΊ ΠΈΠ»ΠΈ ΡΡΡΠ°ΡΠΈΠ»ΠΈ ΠΏΡΠ΅Π·Π΅Π½ΡΠ°Π±Π΅Π»ΡΠ½ΡΠΉ Π²ΠΈΠ΄. ΠΠ°ΠΆΠ½ΡΠΌ ΠΊΡΠΈΡΠ΅ΡΠΈΠ΅ΠΌ, Π²Π»ΠΈΡΡΡΠΈΠΌΠΈ Π½Π° ΡΠΊΡΠΏΠ»ΡΠ°ΡΠ°ΡΠΈΠΎΠ½Π½ΡΠ΅ Ρ Π°ΡΠ°ΠΊΡΠ΅ΡΠΈΡΡΠΈΠΊΠΈ Π΄Π²Π΅ΡΠ΅ΠΉ ΡΠ²Π»ΡΡΡΡΡ ΠΏΡΠ°Π²ΠΈΠ»ΡΠ½ΠΎ ΠΏΡΠΎΠ²Π΅Π΄Π΅Π½Π½ΡΠ΅ Π·Π°ΠΌΠ΅ΡΡ Π΄Π²Π΅ΡΠ½ΡΡ ΠΏΡΠΎΠ΅ΠΌΠΎΠ². Π§Π΅ΠΌ Π±ΠΎΠ»Π΅Π΅ ΡΠΎΡΠ½ΠΎ Π±ΡΠ΄ΡΡ ΡΡΡΠ°Π½ΠΎΠ²Π»Π΅Π½Ρ ΡΠ°Π·ΠΌΠ΅ΡΡ, ΡΠ΅ΠΌ Π΄ΠΎΠ»ΡΡΠ΅ ΠΏΡΠΎΡΠ»ΡΠΆΠΈΡ Π΄Π²Π΅ΡΡ, Π±ΡΠ΄Ρ ΠΎΠ½Π° Π²Ρ ΠΎΠ΄Π½ΠΎΠΉ ΠΈΠ»ΠΈ ΠΌΠ΅ΠΆΠΊΠΎΠΌΠ½Π°ΡΠ½ΠΎΠΉ.
Π Π·Π°ΠΌΠ΅ΡΠ°ΠΌ Π½ΡΠΆΠ½ΠΎ ΠΏΠΎΠ΄Ρ
ΠΎΠ΄ΠΈΡΡ ΠΏΡΠ°Π²ΠΈΠ»ΡΠ½ΠΎ, Π²Π½Π°ΡΠ°Π»Π΅ ΡΡΠΎΠΈΡ ΡΠ°Π·ΠΎΠ±ΡΠ°ΡΡΡΡ, ΠΈΠ· ΠΊΠ°ΠΊΠΈΡ
ΡΠ»Π΅ΠΌΠ΅Π½ΡΠΎΠ² ΡΠΎΡΡΠΎΠΈΡ:
ΠΠ° ΡΠΎΡΠΎ- Π΄Π²Π΅ΡΠ½ΡΠ΅ Π΄ΠΎΠ±ΠΎΡΡ
ΠΠ΅ΡΠ΅Π΄ ΡΠ΅ΠΌ ΠΊΠ°ΠΊ ΠΊΡΠΏΠΈΡΡ Π²Ρ ΠΎΠ΄Π½ΡΡ, Π½ΡΠΆΠ½ΠΎ Π½Π΅ ΡΠΎΠ»ΡΠΊΠΎ ΠΏΡΠΎΠ²Π΅ΡΡΠΈ Π·Π°ΠΌΠ΅ΡΡ Π³Π°Π±Π°ΡΠΈΡΠΎΠ² ΠΏΡΠΎΠ΅ΠΌΠ°, Π½ΠΎ ΠΈ ΡΡΡΠ°Π½ΠΎΠ²ΠΈΡΡ Ρ ΠΏΠΎΠΌΠΎΡΡΡ Π²ΡΡΠΈΡΠ»Π΅Π½ΠΈΠΉ ΡΠΎΡΠ½ΡΠ΅ ΡΠ°Π·ΠΌΠ΅ΡΡ ΠΏΠΎΠΊΡΠΏΠ½ΠΎΠ³ΠΎ ΠΈΠ·Π΄Π΅Π»ΠΈΡ.
ΠΡΠ°Π²ΠΈΠ»ΡΠ½ΠΎΠ΅ ΠΏΡΠΎΠ²Π΅Π΄Π΅Π½ΠΈΠ΅ Π·Π°ΠΌΠ΅ΡΠΎΠ²
ΠΠ°ΠΌΠ΅ΡΡΡΡ Π½ΡΠΆΠ½ΠΎ ΡΠΈΡΠΈΠ½Ρ, Π³Π»ΡΠ±ΠΈΠ½Ρ ΠΈ Π²ΡΡΠΎΡΡ. ΠΡΠΎΠ²Π΅ΡΡΡΡ ΠΈΡ ΡΠΎΠΎΡΠ²Π΅ΡΡΡΠ²ΠΈΠ΅ ΡΡΠ°Π½Π΄Π°ΡΡΠ½ΡΠΌ ΡΠ°Π·ΠΌΠ΅ΡΠ°ΠΌ, ΠΏΡΠΈΠ½ΡΡΡΠΌ ΠΠΠ‘Π’ΠΎΠΌ.
ΠΠ΅ΠΎΠ±Ρ ΠΎΠ΄ΠΈΠΌΠΎ ΡΡΡΠ°Π½ΠΎΠ²ΠΈΡΡ ΡΠ°ΡΡΡΠΎΡΠ½ΠΈΠ΅ ΡΠ°ΠΌΠΎΠΉ ΡΠ·ΠΊΠΎΠΉ ΡΠ°ΡΡΠΈ Π΄Π²Π΅ΡΠ½ΠΎΠ³ΠΎ ΠΏΡΠΎΠ΅ΠΌΠ°, Π²ΡΠΌΠ΅ΡΡΡ Π΅Π³ΠΎ ΠΎΡ ΠΎΠ΄Π½ΠΎΠΉ ΡΡΠ΅Π½Ρ Π΄ΠΎ Π²ΡΠΎΡΠΎΠΉ.
ΠΠ° ΡΠΎΡΠΎ β ΡΠΈΡΠΈΠ½Π° Π΄Π²Π΅ΡΠ½ΠΎΠ³ΠΎ ΡΠ°Π·ΠΌΠ΅ΡΠ°
ΠΠ±ΡΡΠ½ΠΎ ΡΡΠ΅Π½Π° ΡΡΠΆΠ°Π΅ΡΡΡ Π² ΠΌΠ΅ΡΡΠ΅, Π³Π΄Π΅ ΡΠ°ΡΠΏΠΎΠ»ΠΎΠΆΠ΅Π½Π° Π΄Π²Π΅ΡΡ, Π½ΠΎ Π΅ΡΠ»ΠΈ ΠΎΠ½Π° ΠΎΠ΄ΠΈΠ½Π°ΠΊΠΎΠ²Π° ΠΏΠΎ Π²ΡΠ΅ΠΌΡ ΠΏΡΠΎΠ΅ΠΌΠ°, ΡΠΎ ΡΠ°Π·ΠΌΠ΅Ρ ΠΌΠΎΠΆΠ½ΠΎ ΠΌΠ΅ΡΠΈΡΡ Π² Π»ΡΠ±ΠΎΠΌ ΠΌΠ΅ΡΡΠ΅. ΠΡΠ»ΠΈ Π΅ΡΠ΅ Π½Π΅ Π΄Π΅ΠΌΠΎΠ½ΡΠΈΡΠΎΠ²Π°Π½Π° ΡΡΠ°ΡΠ°Ρ Π΄Π²Π΅ΡΡ, Π° Π½ΡΠΆΠ½ΠΎ ΡΠΆΠ΅ Π·Π°ΠΊΠ°Π·ΡΠ²Π°ΡΡ Π½ΠΎΠ²ΡΡ, ΡΠΎ ΡΠ°ΡΡΡΠΎΡΠ½ΠΈΠ΅ Π·Π°ΠΌΠ΅ΡΡΠ΅ΡΡΡ ΠΎΡ ΡΠ΅ΡΠ΅Π΄ΠΈΠ½Ρ Π½Π°Π»ΠΈΡΠ½ΠΈΠΊΠΎΠ².
ΠΡΡΠΎΡΠ° ΠΏΡΠΎΠ΅ΠΌΠ°
ΠΠ»Ρ ΡΡΡΠ°Π½ΠΎΠ²ΠΊΠΈ ΡΡΠΎΠ³ΠΎ ΡΠ°Π·ΠΌΠ΅ΡΠ° Π½ΡΠΆΠ½ΠΎ Π½Π°ΠΉΡΠΈ ΡΠ°ΠΌΡΡ Π½ΠΈΠ·ΠΊΡΡ ΡΠΎΡΠΊΡ ΠΏΡΠΎΠ΅ΠΌΠ° ΠΈ ΠΎΡ Π½Π΅Π΅ ΠΌΠ΅ΡΠΈΡΡ ΡΠ°ΡΡΡΠΎΡΠ½ΠΈΠ΅ Π΄ΠΎ Π²Π΅ΡΡ Π½Π΅ΠΉ Π΅Π³ΠΎ ΡΠ°ΡΡΠΈ. ΠΡΠΈ ΡΡΠΎΠΌ Π·Π°ΠΌΠ΅ΡΡΡΡ ΡΠ»Π΅Π΄ΡΠ΅Ρ Π² ΠΌΠ΅ΡΡΠ΅ ΡΡΠΆΠ΅Π½ΠΈΡ, Π΅ΡΠ»ΠΈ ΡΠ°ΠΊΠΎΠ²ΠΎΠ³ΠΎ Π½Π΅ Π½Π°Π±Π»ΡΠ΄Π°Π΅ΡΡΡ, ΡΠΎ Π²ΡΠΏΠΎΠ»Π½ΡΡΡ Π·Π°ΠΌΠ΅ΡΡ ΠΌΠΎΠΆΠ½ΠΎ ΠΏΠΎ Π²ΡΠ΅ΠΌΡ ΠΏΠ΅ΡΠΈΠΌΠ΅ΡΡΡ ΠΏΡΠΎΠ΅ΠΌΠ°.
ΠΡΠΈ Π½Π°Π»ΠΈΡΠΈΠΈ ΡΡΠ°ΡΠΎΠ³ΠΎ ΡΠΊΠ·Π΅ΠΌΠΏΠ»ΡΡΠ° ΠΏΡΠΎΡΡΠΎ ΠΈΠ·ΠΌΠ΅ΡΡΡΡ Π΅Π΅ ΠΏΠΎΠ»ΠΎΡΠ½ΠΎ, ΠΈΠ»ΠΈ ΡΠ°ΡΡΡΠΎΡΠ½ΠΈΠ΅ ΠΎΡ ΡΡΠ΅Π΄Π½Π΅ΠΉ ΡΠ°ΡΡΠΈ Π²Π΅ΡΡ Π½Π΅Π³ΠΎ Π½Π°Π»ΠΈΡΠ½ΠΈΠΊΠ° Π΄ΠΎ ΠΏΠΎΠ»Π°.
ΠΠ° ΡΠΎΡΠΎ β Π²ΡΡΠΎΡΠ° Π΄Π²Π΅ΡΠ½ΠΎΠ³ΠΎ ΠΏΡΠΎΡΠΌΠ°
Π‘ΡΠ°Π½Π΄Π°ΡΡΠ½Π°Ρ Π²ΡΡΠΎΡΠ° Π΄Π²Π΅ΡΠΈ ΡΠ°Π²Π½ΡΠ΅ΡΡΡ 200 ΡΠΌ, Π½ΠΎ Π² ΠΈΠ½ΠΎΠ³Π΄Π° Π΄ΠΎΠΏΡΡΠΊΠ°Π΅ΡΡΡ Π±ΠΎΠ»ΡΡΠΈΠΉ Π΅Π΅ ΡΠ°Π·ΠΌΠ΅Ρ. ΠΠ΅ΠΊΠΎΡΠΎΡΡΠ΅ ΠΏΡΠΎΠΈΠ·Π²ΠΎΠ΄ΠΈΡΠ΅Π»ΠΈ ΠΌΠΎΠ³ΡΡ Π²ΡΠΏΡΡΠΊΠ°ΡΡ ΠΈΠ·Π΄Π΅Π»ΠΈΡ Ρ ΡΠ°Π·ΠΌΠ΅ΡΠ°ΠΌΠΈ Π² ΠΏΡΠ΅Π΄Π΅Π»Π°Ρ ΠΎΡ 2,1 ΠΈ Π΄ΠΎ 2,3 ΠΌ.
ΠΠ»ΡΠ±ΠΈΠ½Π° ΠΏΡΠΎΠ΅ΠΌΠ°
ΠΠ³ΠΎ Π·Π°ΠΌΠ΅Ρ Π½ΡΠΆΠ½ΠΎ ΠΏΡΠΎΠ²ΠΎΠ΄ΠΈΡΡ Π² ΡΡΠ΅Ρ ΡΠΎΡΠΊΠ°Ρ , ΡΠ°ΡΠΏΠΎΠ»ΠΎΠΆΠ΅Π½Π½ΡΡ ΡΠ²Π΅ΡΡ Ρ, ΡΠ½ΠΈΠ·Ρ ΠΈ ΠΏΠΎΡΠ΅ΡΠ΅Π΄ΠΈΠ½Π΅. ΠΡΠΎ Π½Π΅ΠΎΠ±Ρ ΠΎΠ΄ΠΈΠΌΠΎ ΡΡΠΎΠ±Ρ ΡΡΡΠ°Π½ΠΎΠ²ΠΈΡΡ ΡΠ°ΠΌΠΎΠ΅ ΡΠΈΡΠΎΠΊΠΎΠ΅ ΠΌΠ΅ΡΡΠΎ.
Π ΡΠ»ΡΡΠ°Π΅, Π΅ΡΠ»ΠΈ Π² ΠΏΡΠΎΠ΅ΠΌΠ΅ Π΄ΠΎ ΡΠΈΡ ΠΏΠΎΡ ΠΈΠΌΠ΅Π΅ΡΡΡ ΡΡΠ°ΡΠ°Ρ Π΄Π²Π΅ΡΡ, ΡΠΎ Π½Π΅ΠΎΠ±Ρ ΠΎΠ΄ΠΈΠΌΠΎ Π·Π°ΠΌΠ΅ΡΠΈΡΡ ΠΏΠ°ΡΠ°ΠΌΠ΅ΡΡΠ° ΠΊΠΎΡΠΎΠ±ΠΊΠΈ ΠΈ ΡΠ°ΡΡΡΠΎΡΠ½ΠΈΠ΅, Π½Π° ΠΊΠΎΡΠΎΡΠΎΠ΅ Π²ΡΡΡΡΠΏΠ°Π΅Ρ ΠΎΡ Π½Π΅Π΅ ΡΡΠ΅Π½Π°.
ΠΠ° ΡΠΎΡΠΎ β Π³Π»ΡΠ±ΠΈΠ½Π° Π΄Π²Π΅ΡΠ½ΠΎΠ³ΠΎ ΠΏΡΠΎΡΠΌΠ°
Π‘ΡΠ°Π½Π΄Π°ΡΡΠ½ΡΠ΅ ΡΠ°Π·ΠΌΠ΅ΡΡ Π²ΡΠΏΠΎΠ»Π½ΡΡΡΡΡ Π² ΠΏΡΠ΅Π΄Π΅Π»Π°Ρ 60, 70 ΠΈ 80 ΠΌΠΌ.
ΠΠ½Π°Π»ΠΎΠ³ ΡΠ°ΡΡΠ΅ΡΠ° ΠΏΡΠΎΠ΅ΠΌΠ°
ΠΡΠΈ Π²ΡΠ±ΠΎΡΠ΅ ΠΊΠΎΡΠΎΠ±ΠΊΠΈ Π½ΡΠΆΠ½ΠΎ ΡΡΠ΅ΡΡΡ Π·Π°Π·ΠΎΡΡ: Ρ Π²Π΅ΡΡ Π½Π΅ΠΉ ΡΡΠΎΡΠΎΠ½Ρ ΠΈ ΠΏΠΎ ΡΠΈΡΠΈΠ½Π΅ ΠΎΠ½Π° Π΄ΠΎΠ»ΠΆΠ½Π° ΠΏΡΠ΅Π²ΡΡΠ°ΡΡ ΠΏΠΎΠ»ΡΡΠ΅Π½Π½ΡΠΉ ΡΠ°Π·ΠΌΠ΅Ρ Π½Π° 3 ΠΌΠΌ, Π½ΠΈΠΆΠ½ΡΡ Π΅Π΅ ΡΠ°ΡΡΡ ΡΠ²Π΅Π»ΠΈΡΠ΅Π½Π° Π½Π° 10 ΠΌΠΌ.
ΠΡΠΈ ΡΡΡΠ°Π½ΠΎΠ²ΠΊΠ΅ ΠΊΠΎΡΠΎΠ±Π° ΡΠ»Π΅Π΄ΡΠ΅Ρ ΡΡΠ΅ΡΡΡ Π·Π°Π·ΠΎΡΡ ΠΏΠΎ ΠΏΠ΅ΡΠΈΠΌΠ΅ΡΡΡ ΠΊΠΎΡΠΎΠ±Π° ΠΌΠ΅ΠΆΠ΄Ρ Π½ΠΈΠΌ ΠΈ ΡΡΠ΅Π½ΠΎΠΉ, ΠΎΠ½ΠΈ ΡΠΎΡΡΠ°Π²Π»ΡΡΡ 1-1,5 ΠΌΠΌ, ΠΏΠΎΡΡΠΎΠΌΡ Π²Ρ ΠΎΠ΄Π½ΠΎΠΉ ΠΏΡΠΎΠ΅ΠΌ ΠΏΡΠΈΠ½ΠΈΠΌΠ°Π΅ΡΡΡ Π±ΠΎΠ»ΡΡΠΈΠΌ Π½Π° 2 ΠΌΠΌ.
ΠΡΡΠΎΡΠ° Π΄Π²Π΅ΡΠΈ ΠΎΠΏΡΠ΅Π΄Π΅Π»ΡΠ΅ΡΡΡ ΠΈΡΡ ΠΎΠ΄Ρ ΠΈΠ· ΡΠΎΠ³ΠΎ, ΡΡΠΎ ΡΡΠ°Π½Π΄Π°ΡΡΠ½ΡΠΉ Π΅Π΅ ΡΠ°Π·ΠΌΠ΅Ρ ΡΠ°Π²Π½ΡΠ΅ΡΡΡ 200 ΡΠΌ, ΠΊ Π½Π΅ΠΉ Π½ΡΠΆΠ½ΠΎ Π΄ΠΎΠ±Π°Π²ΠΈΡΡ ΡΠ°Π·ΠΌΠ΅Ρ Π²Π΅ΡΡ Π½Π΅Π³ΠΎ Π±ΡΡΡΠ° ΠΊΠΎΡΠΎΠ±Π°, Π° ΡΡΠΎ 25 ΠΌΠΌ ΠΈ Π·Π°Π·ΠΎΡΡ: Π²Π΅ΡΡ Π½ΠΈΠΉ β 3 ΠΌΠΌ, Π° Π½ΠΈΠΆΠ½ΠΈΠΉ β 10 ΠΌΠΌ.
ΠΠ»Ρ Π±Π°Π»ΠΊΠΎΠ½Π½ΡΡ ΠΏΡΠΎΠ΅ΠΌΠΎΠ² Π·Π°Π²ΠΈΡΡΡ ΠΎΡ ΡΠΈΠΏΠ° Π·Π΄Π°Π½ΠΈΡ. ΠΠ»Ρ ΠΌΠ°Π»ΠΎΠ³Π°Π±Π°ΡΠΈΡΠ½ΡΡ ΠΊΠ²Π°ΡΡΠΈΡ Π΅Π³ΠΎ ΡΠΈΡΠΈΠ½Π° ΡΠΎΡΡΠ°Π²Π»ΡΠ΅Ρ β 68 ΡΠΌ. ΠΠΎΠΆΠ½ΠΎ Π²ΡΠΏΠΎΠ»Π½ΠΈΡΡ ΡΠΈΡΠΈΠ½Ρ ΠΌΠ΅Π½ΡΡΠΈΠΌ Π³Π°Π±Π°ΡΠΈΡΠΎΠΌ, Π½ΠΎ ΠΎΠ½Π° Π΄ΠΎΠ»ΠΆΠ½Π° Π±ΡΡΡ Π½Π΅ ΠΌΠ΅Π½ΡΡΠ΅ 61 ΡΠΌ, ΠΈΠ½Π°ΡΠ΅ ΡΠ»ΠΎΠΆΠ½ΠΎ Π±ΡΠ΄Π΅Ρ ΠΏΡΠΎΡ ΠΎΠ΄ΠΈΡΡ Π½Π° Π±Π°Π»ΠΊΠΎΠ½.
ΠΠ° Π²ΠΈΠ΄Π΅ΠΎ- ΡΡΠ°Π½Π΄Π°ΡΡΠ½ΡΠ΅ ΡΠ°Π·ΠΌΠ΅ΡΡ Π΄Π²Π΅ΡΠ½ΠΎΠΉ ΠΊΠΎΡΠΎΠ±ΠΊΠΈ :
Π Π°Π·ΠΌΠ΅ΡΡ ΠΌΠ΅ΠΆΠΊΠΎΠΌΠ½Π°ΡΠ½ΡΡ Π΄Π²Π΅ΡΠ΅ΠΉ
ΠΡ ΡΠ»Π΅ΠΌΠ΅Π½ΡΡ Π²ΡΠΏΠΎΠ»Π½ΡΡΡΡΡ ΠΈΠ· Π΄ΠΎΡΠΎΠΊ ΠΈΠ»ΠΈ Π±ΡΡΡΠ° ΡΠΎΡΠ½Ρ, Π° ΡΠ²Π΅ΡΡ Ρ ΠΎΠ½Π° Π΄Π΅ΠΊΠΎΡΠΈΡΡΠ΅ΡΡΡ ΡΠΏΠΎΠ½ΠΎΠΌ Π΄Π΅ΡΠ΅Π²ΡΠ΅Π² Π±ΠΎΠ»Π΅Π΅ ΡΠ΅Π½Π½ΡΡ ΠΏΠΎΡΠΎΠ΄.
Π’ΠΎΠ»ΡΠΈΠ½Π° ΠΊΠΎΡΠΎΠ±ΠΊΠΈ
Π ΡΡΠ°Π½Π΄Π°ΡΡΠ½ΡΡ ΠΊΠ²Π°ΡΡΠΈΡΠ°Ρ , ΠΏΠΎΡΡΡΠΎΠ΅Π½Π½ΡΡ Π² ΡΠΎΠ²Π΅ΡΡΠΊΠΎΠ΅ Π²ΡΠ΅ΠΌΡ, ΡΡΠΎΡ ΡΠ°Π·ΠΌΠ΅Ρ ΡΠΎΡΡΠ°Π²Π»ΡΠ΅Ρ 7,5 ΠΌΠΌ, ΠΏΠΎΡΡΠΎΠΌΡ ΠΏΠΎΠ΄ Π½ΠΈΡ Π²ΡΠ±ΠΈΡΠ°Π΅ΡΡΡ ΠΊΠΎΡΠΎΠ±ΠΊΠ° Ρ ΡΠ°Π·ΠΌΠ΅ΡΠΎΠΌ 10,8 ΡΠΌ. ΠΡΠ»ΠΈ ΡΠΎΠ»ΡΠΈΠ½Π° ΠΌΠ΅ΠΆΠΊΠΎΠΌΠ½Π°ΡΠ½ΡΡ ΠΏΠ΅ΡΠ΅Π³ΠΎΡΠΎΠ΄ΠΎΠΊ ΡΠ°Π²Π½ΡΠ΅ΡΡΡ 10 ΡΠΌ, ΡΠΎ Π½ΡΠΆΠ½ΠΎ ΡΡΡΠ°Π½Π°Π²Π»ΠΈΠ²Π°ΡΡ ΠΊΠΎΡΠΎΠ±ΠΊΡ 12 ΡΠΌ. ΠΡΠΎ ΡΡΠ°Π½Π΄Π°ΡΡΠ½ΡΠ΅ ΡΠ°Π·ΠΌΠ΅ΡΡ, ΠΊΠΎΡΠΎΡΡΠ΅ ΠΏΡΠΈΠ½ΡΡΡ ΠΎΡΠ΅ΡΠ΅ΡΡΠ²Π΅Π½Π½ΡΠΌΠΈ ΠΠΠ‘Π’Π°ΠΌΠΈ. Π ΠΌΠ΅ΠΆΠΊΠΎΠΌΠ½Π°ΡΠ½ΡΡ Π΄Π²Π΅ΡΡΡ Π·Π°ΡΡΠ±Π΅ΠΆΠ½ΡΡ ΠΈΠ·Π³ΠΎΡΠΎΠ²ΠΈΡΠ΅Π»Π΅ΠΉ Π΄ΠΈΠ°ΠΏΠ°Π·ΠΎΠ½ ΡΠΎΠ»ΡΠΈΠ½Ρ Π΄Π²Π΅ΡΠΈ Π±ΠΎΠ»Π΅Π΅ ΡΠΈΡΠΎΠΊΠΈΠΉ ΠΈ ΠΈΠ΄Π΅Ρ ΠΎΡ 8 Π΄ΠΎ 20,5 ΡΠΌ.
ΠΡΠ»ΠΈ ΡΠΎΠ»ΡΠΈΠ½Π° ΡΡΠ΅Π½Ρ ΠΏΠΎΠ»ΡΡΠ°Π΅ΡΡΡ Π±ΠΎΠ»ΡΡΠ΅ Π²ΡΠ±ΡΠ°Π½Π½ΠΎΠ³ΠΎ ΠΊΠΎΡΠΎΠ±Π°, ΡΠΎ Π΅Π³ΠΎ ΠΌΠΎΠΆΠ½ΠΎ Π΄ΠΎΡΠ°ΡΡΠΈΡΡ, ΠΏΡΠΈΠΌΠ΅Π½ΠΈΠ² Π΄ΠΎΠ±ΠΎΡΠ½ΡΠ΅ ΡΠ»Π΅ΠΌΠ΅Π½ΡΡ ΠΈΠ»ΠΈ ΠΈΡΠΏΠΎΠ»ΡΠ·ΠΎΠ²Π°ΡΡ ΠΊΠΎΠΌΠΏΠ΅Π½ΡΠ°ΡΠΎΡΠ½ΡΡ ΡΠ°ΠΌΡ, ΠΊΠΎΡΠΎΡΠ°Ρ ΠΌΠΎΠΆΠ΅Ρ Π±ΡΡΡ ΡΠ΅Π»Π΅ΡΠΊΠΎΠΏΠΈΡΠ΅ΡΠΊΠΎΠΉ, ΡΠ°ΡΡΠΈΡΠΈΡΠ΅Π»ΡΠ½ΠΎΠΉ ΠΈΠ»ΠΈ Π²ΡΡΡΡΠΏΠ°ΡΡ Π² Π²ΠΈΠ΄Π΅ ΡΡΠ°Π½ΡΡΠΎΡΠΌΠ΅ΡΠ°.
ΠΠ° ΡΠΎΡΠΎ- ΡΠΎΠ»ΡΠΈΠ½Π° ΠΊΠΎΡΠΎΠ±ΠΊΠΈ
ΠΡΠΈ ΠΏΡΠΎΠ²Π΅Π΄Π΅Π½ΠΈΠΈ Π·Π°ΠΌΠ΅ΡΠΎΠ² ΠΌΠ΅ΠΆΠΊΠΎΠΌΠ½Π°ΡΠ½ΡΡ Π΄Π²Π΅ΡΠ΅ΠΉ ΡΠΎΠ»ΡΠΈΠ½Π° ΠΏΡΠΎΠ΅ΠΌΠ° ΠΌΠΎΠΆΠ΅Ρ Π±ΡΡΡ ΡΠ°Π·Π½ΠΎΠΉ, ΡΡΠΎ Π²ΡΠ·Π²Π°Π½ΠΎ ΠΎΡΠΎΠ±Π΅Π½Π½ΠΎΡΡΡΡ ΡΡΠ΅Π½, ΠΎΠ½ΠΈ ΠΌΠΎΠ³ΡΡ Π±ΡΡΡ Π½Π΅ΡΡΡΠΈΠΌΠΈ ΠΈΠ»ΠΈ ΡΡΡΠ°Π½ΠΎΠ²Π»Π΅Π½Π½ΡΠΌΠΈ Π² ΠΊΠ°ΡΠ΅ΡΡΠ²Π΅ ΠΏΠ΅ΡΠ΅Π³ΠΎΡΠΎΠ΄ΠΎΠΊ.
ΠΠ½Π° ΡΠ΅Π³Π»Π°ΠΌΠ΅Π½ΡΠΈΡΠΎΠ²Π°Π½ ΠΈ ΠΌΠΎΠΆΠ΅Ρ ΡΠΎΡΡΠ°Π²Π»ΡΡΡ ΠΎΡ 190 Π΄ΠΎ 200 ΡΠΌ. ΠΡΠΈ ΡΠ°Π·ΠΌΠ΅ΡΡ ΡΠ΄ΠΎΠ²Π»Π΅ΡΠ²ΠΎΡΡΡ Π³Π°Π±Π°ΡΠΈΡΠ°ΠΌ ΠΏΡΠΎΠ΅ΠΌΠ°, Π½Π°Ρ ΠΎΠ΄ΡΡΠΈΡ ΡΡ Π² ΠΏΡΠ΅Π΄Π΅Π»Π°Ρ ΠΎΡ 194 Π΄ΠΎ 203 ΡΠΌ ΠΈΠ»ΠΈ 204-211 ΡΠΌ.
ΠΡΠΈ Π²ΡΡΠΈΡΠ»Π΅Π½ΠΈΠΈ Π²ΡΡΠΎΡΡ Π±ΡΠ΄ΡΡΠ΅ΠΉ Π΄Π²Π΅ΡΠΈ Π½ΡΠΆΠ½ΠΎ ΡΡΠ΅ΡΡΡ ΠΏΠΎΡΠΎΠ³. ΠΠ½ ΠΌΠΎΠΆΠ΅Ρ ΡΠΎΡΡΠ°Π²Π»ΡΡΡ ΠΎΡ 1 Π΄ΠΎ 2 ΡΠΌ, ΠΈ Π² ΠΈΡΠΎΠ³Π΅ ΠΌΠΎΠΆΠ΅Ρ ΠΏΠΎΠ»ΡΡΠΈΡΡΡΡ β 208 ΡΠΌ, Π° Π±Π΅Π· Π½Π΅Π³ΠΎ 206 ΡΠΌ. ΠΡΠΎ ΠΈΠ΄Π΅Π°Π»ΡΠ½Π°Ρ Π²ΡΡΠΎΡΠ°, ΠΊΠΎΡΠΎΡΠ°Ρ ΠΎΡΠ²Π΅ΡΠ°Π΅Ρ ΡΡΠ°Π½Π΄Π°ΡΡΠ½ΡΠΌ ΡΠ°Π·ΠΌΠ΅ΡΠ°ΠΌ ΠΌΠ½ΠΎΠ³ΠΈΠΌ Π΄Π²Π΅ΡΠ½ΡΠΌ ΠΊΠΎΡΠΎΠ±ΠΊΠ°ΠΌ.
Π¨ΠΈΡΠΈΠ½Π° Π΄Π²Π΅ΡΠ½ΠΎΠΉ ΠΊΠΎΠ½ΡΡΡΡΠΊΡΠΈΠΈ
ΠΠ½Π° Π·Π°ΠΌΠ΅ΡΡΠ΅ΡΡΡ ΠΎΡ ΠΎΠ΄Π½ΠΎΠΉ Π΄ΠΎ Π²ΡΠΎΡΠΎΠΉ ΡΡΠ΅Π½Ρ. ΠΠ΅ΠΆΠ΄Ρ ΡΡΠΈΠΌ ΡΠ°ΡΡΡΠΎΡΠ½ΠΈΠ΅ΠΌ Π΄ΠΎΠ»ΠΆΠ½ΠΎ ΠΏΠΎΠΌΠ΅ΡΡΠΈΡΡΡΡ ΠΏΠΎΠ»ΠΎΡΠ½ΠΎ ΠΈ Π΄Π²Π° Π±ΠΎΠΊΠΎΠ²ΡΡ ΡΠ»Π΅ΠΌΠ΅Π½ΡΠ° ΠΊΠΎΡΠΎΠ±Π°. Π‘ΡΠ°Π½Π΄Π°ΡΡΠ½ΠΎΠΉ Π²Π΅Π»ΠΈΡΠΈΠ½ΠΎΠΉ ΠΏΡΠΈΠ½ΡΡΠ° ΡΠΈΡΠΈΠ½Π° Π² 800 ΠΌΠΌ. ΠΡΠ°ΠΊΡΠΈΡΠ΅ΡΠΊΠΈ Π²ΡΠ΅ ΠΏΡΠΎΠΈΠ·Π²ΠΎΠ΄ΠΈΡΠ΅Π»ΠΈ ΠΏΡΠΈΠ΄Π΅ΡΠΆΠΈΠ²Π°ΡΡΡΡ ΠΈΠΌΠ΅Π½Π½ΠΎ ΡΡΠΎΠ³ΠΎ Π³Π°Π±Π°ΡΠΈΡΠ°.
Π Π°Π·ΠΌΠ΅ΡΡ Π΄ΠΎΠ±ΠΎΡΠΎΠ²
ΠΠ½ΠΈ ΠΌΠΎΠ³ΡΡ Π±ΡΡΡ Π½Π΅ ΠΌΠ΅Π½Π΅Π΅ Π²Π°ΠΆΠ½ΡΠΌΠΈ, ΡΠ΅ΠΌ ΡΠ°ΠΌ ΠΊΠΎΡΠΎΠ±. ΠΠ° ΡΡΠ΅Ρ Π½ΠΈΡ ΠΌΠΎΠΆΠ½ΠΎ ΡΡΡΡΠ°Π½ΠΈΡΡ ΠΏΠΎΠ»ΡΠΉ ΡΡΠ°ΡΡΠΎΠΊ Π΄Π²Π΅ΡΠ½ΠΎΠ³ΠΎ ΠΏΡΠΎΠ΅ΠΌΠ°.
ΠΠ½ΠΈ Π±ΡΠ²Π°ΡΡ Π΄Π²ΡΡ ΡΠΈΠΏΠΎΠ²:
- ΠΠ»Π°Π½ΠΊΠΈ, ΠΈΠΌΠ΅ΡΡΠΈΠ΅ Π·Π°ΡΠΈΡΠ½ΡΡ ΠΊΡΠΎΠΌΠΊΡ. ΠΠ½ΠΈ ΡΠΈΠΊΡΠΈΡΡΡΡΡΡ Π² ΠΏΡΠΎΠ΅ΠΌΠ΅ Π½Π° Π³Π²ΠΎΠ·Π΄ΠΈ ΠΈΠ»ΠΈ ΠΊΠ»Π΅Π΅Π²ΡΡ ΠΎΡΠ½ΠΎΠ²Ρ. ΠΡ ΡΠΈΡΠΈΠ½Π° ΠΌΠΎΠΆΠ΅Ρ ΠΈΠ·ΠΌΠ΅Π½ΡΡΡΡΡ ΠΏΡΡΠ΅ΠΌ ΠΏΠΎΠ΄ΠΏΠΈΠ»Π°, Π° Π²ΡΡΠΎΡΠ° ΡΠΎΡΡΠ°Π²Π»ΡΠ΅Ρ 2 ΠΌΠ΅ΡΡΠ°.
- Π’Π΅Π»Π΅ΡΠΊΠΎΠΏΠΈΡΠ΅ΡΠΊΠΈΠ΅ Π΄ΠΎΠ±ΠΎΡΡ. ΠΠΎΠ΄Ρ ΠΎΠ΄ΡΡ Π΄Π»Ρ ΡΠ΅ΡΠ΅Π½ΠΈΡ Π»ΡΠ±ΠΎΠ³ΠΎ Π½Π΅Π΄ΠΎΡΡΠ°ΡΠΊΠ° ΠΏΠΎ ΡΠΈΡΠΈΠ½Π΅. ΠΡ ΡΡΡΠ°Π½ΠΎΠ²ΠΊΠ° ΠΏΡΠΎΠΈΠ·Π²ΠΎΠ΄ΠΈΡΡΡ Π·Π° ΡΡΠ΅Ρ ΡΠΏΠ΅ΡΠΈΠ°Π»ΡΠ½ΠΎΠ³ΠΎ Π·Π°ΠΌΠΊΠ°, ΠΊΠΎΡΠΎΡΡΠΉ ΠΏΡΠ΅Π΄ΡΡΠ°Π²Π»ΡΠ΅Ρ ΡΠΎΠ±ΠΎΠΉ Β«ΡΠΈΠΏ-ΠΏΠ°Π·Β». ΠΠ°Π·, Π²ΡΠΏΠΎΠ»Π½Π΅Π½ Π² ΠΊΠΎΡΠΎΠ±Π΅, Π° ΡΠΈΠΏ Π½Π° Π΄ΠΎΠ±ΠΎΡΠ΅. ΠΡ ΡΠΈΡΠΈΠ½Π° ΡΠ΅Π³ΡΠ»ΠΈΡΡΠ΅ΡΡΡ ΡΠΎ ΡΡΠΎΡΠΎΠ½Ρ Π½Π°Π»ΠΈΡΠ½ΠΈΠΊΠ°.
Π¦Π΅Π»Π΅ΡΠΎΠΎΠ±ΡΠ°Π·Π½ΠΎΡΡΡ ΠΏΡΠΈΠΌΠ΅Π½Π΅Π½ΠΈΡ Π΄ΠΎΠ±ΠΎΡΠΎΠ² ΠΌΠΎΠΆΠ΅Ρ Π±ΡΡΡ ΡΡΡΠ°Π½ΠΎΠ²Π»Π΅Π½Π° ΠΏΠΎΡΠ»Π΅ ΠΏΡΠΎΠ²Π΅Π΄Π΅Π½ΠΈΡ Π·Π°ΠΌΠ΅ΡΠΎΠ² ΡΠΈΡΠΈΠ½Ρ Π΄Π²Π΅ΡΠ½ΠΎΠ³ΠΎ ΠΏΡΠΎΠ΅ΠΌΠ°.
ΠΠ° Π²ΠΈΠ΄Π΅ΠΎ- ΡΠ°Π·ΠΌΠ΅ΡΡ Π΄ΠΎΠ±ΠΎΡΠΎΠ²:
ΠΠ°Π±Π°ΡΠΈΡΡ Π΄Π²ΡΡ ΡΡΠ²ΠΎΡΡΠ°ΡΡΡ ΡΠΊΠ·Π΅ΠΌΠΏΠ»ΡΡΠΎΠ²
ΠΠΎΠΌΡΠΎΡΡΠ½ΡΠΌΠΈ Π΄Π»Ρ ΠΈΡΠΏΠΎΠ»ΡΠ·ΠΎΠ²Π°Π½ΠΈΡ ΡΠ²Π»ΡΡΡΡΡ ΡΠ°Π·ΠΌΠ΅ΡΡ ΠΏΠΎ ΡΠΈΡΠΈΠ½Π΅ Π΄Π²Π΅ΡΠ΅ΠΉ ΡΠΎΡΡΠ°Π²Π»ΡΡΡΠΈΠ΅ 120-180 ΡΠΌ. ΠΡΠ»ΠΈ ΠΏΡΠΎΠ΅ΠΌ Π½Π΅ ΠΏΠΎΠ·Π²ΠΎΠ»ΡΠ΅Ρ ΠΈΡ Π²ΡΠ΄Π΅ΡΠΆΠ°ΡΡ, ΡΠΎΠ³Π΄Π° ΠΏΠΎΠ»ΠΎΡΠ½Π° Π΄Π²Π΅ΡΠ΅ΠΉ Π±ΡΠ΄ΡΡ ΡΠ°Π·Π½ΡΠΌΠΈ ΠΏΠΎ ΡΠΈΡΠΈΠ½Π΅, ΠΎΠ΄Π½Π° ΡΡΠ²ΠΎΡΠΊΠ° ΠΌΠ΅Π½ΡΡΠ΅Π³ΠΎ ΡΠ°Π·ΠΌΠ΅ΡΠ° ΡΠΈΠΊΡΠΈΡΡΠ΅ΡΡΡ Π½Π° ΡΠ²ΠΎΠ΅ΠΌ ΠΌΠ΅ΡΡΠ΅, Π° Π²ΡΠΎΡΠ°Ρ Ρ Π±ΠΎΠ»ΡΡΠΈΠΌΠΈ Π³Π°Π±Π°ΡΠΈΡΠ°ΠΌΠΈ ΠΈΡΠΏΠΎΠ»ΡΠ·ΡΠ΅ΡΡΡ ΠΊΠ°ΠΊ ΠΎΠ±ΡΡΠ½Π°Ρ Π΄Π²Π΅ΡΡ. ΠΠΎΡΠ»Π΅Π΄Π½ΡΡ ΠΈΠΌΠ΅Π΅Ρ ΡΡΠ°Π½Π΄Π°ΡΡΠ½ΡΠ΅ ΡΠ°Π·ΠΌΠ΅ΡΡ, Π° Π΅Π΅ ΠΌΠ΅Π½ΡΡΠΈΠΉ Π°Π½Π°Π»ΠΎΠ³ ΠΈΠ΄Π΅Ρ Π³Π°Π±Π°ΡΠΈΡΠ°ΠΌΠΈ ΡΠ°Π²Π½ΡΠΌΠΈ 1/3 ΠΎΡ Π½Π΅Π΅.
ΠΠ° ΡΠΎΡΠΎ- Π΄Π²ΡΡ
ΡΡΠ²ΠΎΡΡΠ°ΡΡΠ΅ Π΄Π²Π΅ΡΠΈ
ΠΡΡΠΎΡΠ° ΡΠ°ΠΊΠΈΡ Π΄Π²Π΅ΡΠ΅ΠΉ ΠΌΠΎΠΆΠ΅Ρ ΡΠΎΡΡΠ°Π²Π»ΡΡΡ ΠΎΡ 2 Π΄ΠΎ 2,5 ΠΌ. ΠΠ»ΡΠ±ΠΈΠ½Π° Π΄Π²ΡΡ ΡΡΠ²ΠΎΡΡΠ°ΡΡΡ Π΄Π²Π΅ΡΠ΅ΠΉ ΠΏΠΎ ΡΡΠ°Π½Π΄Π°ΡΡΡ ΡΠ°Π²Π½ΡΠ΅ΡΡΡ ΠΎΡ 7,5 Π΄ΠΎ 11 ΡΠΌ.
Π£ΡΡΠ°Π½ΠΎΠ²ΠΈΡΡ ΠΏΠ°ΡΠ°ΠΌΠ΅ΡΡΡ Π΄Π²Π΅ΡΠ½ΡΡ ΠΏΡΠΎΠ΅ΠΌΠΎΠ² Π½Π΅ΡΠ»ΠΎΠΆΠ½ΠΎ, Π΅ΡΠ»ΠΈ Π·Π½Π°ΡΡ Π² ΠΊΠ°ΠΊΠΈΡ ΠΌΠ΅ΡΡΠ°Ρ ΠΈΡ ΡΡΠ΅Π±ΡΠ΅ΡΡΡ ΠΈΠ·ΠΌΠ΅ΡΠΈΡΡ. ΠΠΎΡΡΠ΅ΠΊΡΠΈΡΠΎΠ²ΠΊΠ° ΠΏΠΎΠ»ΡΡΠ΅Π½Π½ΡΡ ΠΏΠ°ΡΠ°ΠΌΠ΅ΡΡΠΎΠ² ΠΏΡΠΎΠΈΠ·Π²ΠΎΠ΄ΠΈΡΡΡ Ρ ΡΡΠ΅ΡΠΎΠΌ Π²ΡΠ΅Ρ Π·Π°Π·ΠΎΡΠΎΠ². ΠΡΠ»ΠΈ Π±ΡΠ΄Π΅Ρ Π΄ΠΎΠΏΡΡΠ΅Π½Π° ΠΎΡΠΈΠ±ΠΊΠ° Π² ΡΠ»ΡΡΠ°Π΅ ΡΡΡΠ°Π½ΠΎΠ²ΠΊΠΈ ΠΌΠ΅ΠΆΠΊΠΎΠΌΠ½Π°ΡΠ½ΡΡ Π΄Π²Π΅ΡΠ΅ΠΉ, ΡΠΎ Π΅Π΅ ΠΌΠΎΠΆΠ½ΠΎ ΠΈΡΠΏΡΠ°Π²ΠΈΡΡ ΠΏΠΎΠ΄ΠΏΠΈΠ»ΠΈΠ² ΠΊΠΎΡΠΎΠ± ΠΈΠ»ΠΈ ΡΡΡΠ°Π½ΠΎΠ²ΠΈΠ² Π΄ΠΎΠ±ΠΎΡΠ½ΡΠ΅ ΡΠ»Π΅ΠΌΠ΅Π½ΡΡ, Ρ Π²Ρ ΠΎΠ΄Π½ΠΎΠΉ Π΄Π²Π΅ΡΡΡ Π΄Π΅Π»ΠΎ ΠΎΠ±ΡΡΠΎΠΈΡ Π½Π΅ ΡΠ°ΠΊ ΠΏΡΠΎΡΡΠΎ. Π ΡΠ»ΡΡΠ°Π΅ Π±ΠΎΠ»ΡΡΠΎΠ³ΠΎ ΠΏΡΠΎΡΠ²Π΅ΡΠ° ΠΌΠ΅ΠΆΠ΄Ρ Π½ΠΈΠΌΠΈ ΠΈ ΡΡΠ΅Π½ΠΎΠΉ ΠΌΠΎΠΆΠ΅Ρ ΠΏΠΎΠ½Π°Π΄ΠΎΠ±ΠΈΡΡΡΡ ΡΡΡΠ°Π½ΠΎΠ²ΠΊΠ° ΠΊΠΎΠ½ΡΡΠΊΠΎΡΠΎΠ±ΠΊΠΈ.
ΠΠ°ΠΊ ΠΏΡΠ°Π²ΠΈΠ»ΡΠ½ΠΎ Π²ΡΡΠΈΡΠ»ΠΈΡΡ ΡΠ°Π·ΠΌΠ΅Ρ ΠΌΠ΅ΠΆΠΊΠΎΠΌΠ½Π°ΡΠ½ΡΡ Π΄Π²Π΅ΡΠ΅ΠΉ Ρ ΠΊΠΎΡΠΎΠ±ΠΊΠΎΠΉ, ΡΡΠ°Π½Π΄Π°ΡΡ ΠΠΠ‘Π’
ΠΡΠΈ ΡΠ΅ΠΌΠΎΠ½ΡΠ΅ Π½Π΅ΠΎΠ±Ρ ΠΎΠ΄ΠΈΠΌΠΎ ΡΠ΄Π΅Π»ΠΈΡΡ Π΄ΠΎΠ»ΠΆΠ½ΠΎΠ΅ Π²Π½ΠΈΠΌΠ°Π½ΠΈΠ΅ ΡΡΡΠ°Π½ΠΎΠ²ΠΊΠ΅ ΠΌΠ΅ΠΆΠΊΠΎΠΌΠ½Π°ΡΠ½ΡΡ Π΄Π²Π΅ΡΠ΅ΠΉ. ΠΠ΅Π·ΡΡΠ»ΠΎΠ²Π½ΠΎ, Π΅ΡΡΡ ΠΎΠΏΡΠ΅Π΄Π΅Π»ΡΠ½Π½ΡΠ΅ ΡΡΠ°Π½Π΄Π°ΡΡΠ½ΡΠ΅ Π³Π°Π±Π°ΡΠΈΡΡ, Π½ΠΎ ΡΡΠΎΠ±Ρ Π½Π΅ ΠΏΡΠΈΡΠ»ΠΎΡΡ ΡΠ°Π·ΡΡΡΠ°ΡΡ ΡΡΠ΅Π½Ρ ΠΈΠ»ΠΈ ΠΌΠ΅Π½ΡΡΡ ΡΠΆΠ΅ Π²ΡΠ±ΡΠ°Π½Π½ΠΎΠ΅ ΠΏΠΎΠ»ΠΎΡΠ½ΠΎ, Π½Π΅ΠΎΠ±Ρ ΠΎΠ΄ΠΈΠΌΠΎ ΠΈΠ·ΡΡΠΈΡΡ Π²ΡΠ΅ Π½ΡΠ°Π½ΡΡ. Π ΡΡΠΎΠΌ Π΄Π΅Π»Π΅ Π²Π°ΠΆΠ½ΠΎ ΠΏΡΠ°Π²ΠΈΠ»ΡΠ½ΠΎ Π²ΡΡΠΈΡΠ»ΠΈΡΡ ΡΠ°Π·ΠΌΠ΅ΡΡ ΠΏΡΠΎΡΠΌΠ°, Π·Π½Π°ΡΡ ΡΡΠ°Π½Π΄Π°ΡΡ ΠΈ ΠΎΡΠΎΠ±Π΅Π½Π½ΠΎΡΡΠΈ ΡΠ°Π·Π½ΡΡ ΡΠΈΠΏΠΎΠ² ΠΊΠΎΠ½ΡΡΡΡΠΊΡΠΈΠΉ. ΠΠ° ΡΠΎΠ²ΡΠ΅ΠΌΠ΅Π½Π½ΠΎΠΌ ΡΡΠ½ΠΊΠ΅ ΠΌΠΎΠΆΠ½ΠΎ Π²ΡΡΡΠ΅ΡΠΈΡΡ ΠΏΡΠΎΠ΄ΡΠΊΡΠΈΡ ΠΎΡΠ΅ΡΠ΅ΡΡΠ²Π΅Π½Π½ΡΡ ΠΈ Π·Π°ΡΡΠ±Π΅ΠΆΠ½ΡΡ, Π²Π°ΠΆΠ½ΠΎ ΠΏΠΎΠΌΠ½ΠΈΡΡ, ΡΡΠΎ ΠΠΠ‘Π’Ρ ΠΎΡΠ»ΠΈΡΠ°ΡΡΡΡ.

ΠΠΠ‘Π’ ΠΏΠΎΠΊΠ°Π·Π°ΡΠ΅Π»ΠΈ ΡΠ°Π·ΠΌΠ΅ΡΠ° ΠΏΠΎΠ»ΠΎΡΠ½Π°
ΠΠ°ΡΠ°ΠΌΠ΅ΡΡΡ Π΄Π²Π΅ΡΠ½ΠΎΠ³ΠΎ ΠΏΠΎΠ»ΠΎΡΠ½Π° Π½Π΅ΠΎΠ±Ρ ΠΎΠ΄ΠΈΠΌΠΎ ΡΡΠΈΡΡΠ²Π°ΡΡ ΠΏΡΠΈ Π²ΡΡΠΈΡΠ»Π΅Π½ΠΈΠΈ ΠΏΡΠΎΡΠΌΠ°. ΠΠ²Π΅ΡΠΈ ΠΈ ΠΊΠΎΡΠΎΠ±ΠΊΠ° ΠΈΠΌΠ΅ΡΡ ΡΡΠ²Π΅ΡΠΆΠ΄ΡΠ½Π½ΡΠ΅ Π³ΠΎΡΡΠ΄Π°ΡΡΡΠ²ΠΎΠΌ ΡΡΠ°Π½Π΄Π°ΡΡΠ½ΡΠ΅ ΡΠ°Π·ΠΌΠ΅ΡΡ.
Π’Π°Π±Π»ΠΈΡΠ° ΠΠΠ‘Π’ ΠΌΠ΅ΠΆΠΊΠΎΠΌΠ½Π°ΡΠ½ΡΡ ΠΏΠΎΠ»ΠΎΡΠ΅Π½:
ΠΠΈΠ΄ ΠΏΠΎΠΌΠ΅ΡΠ΅Π½ΠΈΡΠ¨ΠΈΡΠΈΠ½Π° ΡΠΌΠΡΡΠΎΡΠ° ΡΠΌΠΠ»ΡΠ±ΠΈΠ½Π° ΠΏΡΠΎΠ΅ΠΌΠ° ΡΠΌΠΊΡΡ Π½Ρ702007Π‘Π°Π½ΡΠ·Π΅Π», Π²Π°Π½Π½Π°55-60190-2005-7ΠΊΠΎΠΌΠ½Π°ΡΠ°802007-20ΠΠΎΡΡΠΈΠ½Π°Ρ (Π΄Π²ΡΡΡΠ²ΠΎΡΡΠ°ΡΠ°Ρ Π΄Π²Π΅ΡΡ120 (Π΄Π²Π° ΠΏΠΎΠ»ΠΎΡΠ½Π°)2007-20
ΠΡΠ»ΠΈ ΡΠ°Π½Π΅Π΅ ΠΏΡΠΎΠ²ΠΎΠ΄ΠΈΠ»ΠΈΡΡ ΡΠ΅ΠΌΠΎΠ½ΡΠ½ΡΠ΅ ΡΠ°Π±ΠΎΡΡ, ΡΡΠ΅Π½Ρ Π²ΡΡΠ°Π²Π½ΠΈΠ²Π°Π»ΠΈΡΡ ΠΈΠ»ΠΈ Π΄Π΅ΠΌΠΎΠ½ΡΠΈΡΠΎΠ²Π°Π»ΠΈΡΡ, Π³Π»ΡΠ±ΠΈΠ½Π° ΠΌΠΎΠΆΠ΅Ρ Π½Π΅ ΡΠΎΠΎΡΠ²Π΅ΡΡΡΠ²ΠΎΠ²Π°ΡΡ Π²ΡΡΠ΅ΠΈΠ·Π»ΠΎΠΆΠ΅Π½Π½ΡΠΌ Π΄Π°Π½Π½ΡΠΌ.
Π ΡΠ½ΠΎΠΊ ΠΏΡΠ΅Π΄Π»Π°Π³Π°Π΅Ρ Π±ΠΎΠ»ΡΡΠΎΠΉ Π²ΡΠ±ΠΎΡ Π΄Π²Π΅ΡΠ΅ΠΉ ΠΈ ΠΊΠΎΠΌΠΏΠ»Π΅ΠΊΡΡΡΡΠΈΡ ΠΎΡ ΠΎΡΠ΅ΡΠ΅ΡΡΠ²Π΅Π½Π½ΡΡ ΠΈ Π·Π°ΡΡΠ±Π΅ΠΆΠ½ΡΡ ΠΏΡΠΎΠΈΠ·Π²ΠΎΠ΄ΠΈΡΠ΅Π»Π΅ΠΉ. Π§Π°ΡΠ΅ Π²ΡΠ΅Π³ΠΎ ΠΏΡΠΎΠ΄ΡΠΊΡΠΈΡ ΠΈΠΌΠ΅Π΅Ρ Π²ΡΡΠΎΡΡ 200 ΡΠΌ, ΡΠΈΡΠΈΠ½Ρ 60, 70, 80 ΡΠΌ (ΡΠ΅ΠΆΠ΅ 190 Π½Π° 60, 70,80 ΡΠΌ). Π’ΠΎΠ»ΡΠΈΠ½Π° Π΄Π²Π΅ΡΠ½ΠΎΠΉ ΠΊΠΎΡΠΎΠ±ΠΊΠΈ Π½Π°ΡΠΈΠ½Π°Π΅ΡΡΡ ΠΎΡ 15 ΠΌΠΌ ΠΈ Π΄ΠΎ 45ΠΌΠΌ. ΠΠ½Π°Ρ ΡΡΠ°Π½Π΄Π°ΡΡΡ ΠΈ ΡΠ°Π·ΠΌΠ΅ΡΡ Π΄Π²Π΅ΡΠ½ΠΎΠ³ΠΎ ΠΏΡΠΎΡΠΌΠ° ΠΌΠΎΠΆΠ½ΠΎ Π²ΡΠ±ΡΠ°ΡΡ ΠΎΠΏΡΠΈΠΌΠ°Π»ΡΠ½ΡΠΉ Π²Π°ΡΠΈΠ°Π½Ρ. ΠΡΠ²Π°ΡΡ ΡΠΈΡΡΠ°ΡΠΈΠΈ, ΠΊΠΎΠ³Π΄Π° ΠΈΠ³Π½ΠΎΡΠΈΡΠΎΠ²Π°Π½ΠΈΠ΅ ΠΏΠ°ΡΠ°ΠΌΠ΅ΡΡΠΎΠ² Π·Π°ΠΊΠ°Π½ΡΠΈΠ²Π°Π΅ΡΡΡ ΡΠ°ΡΡΠΈΡΠ΅Π½ΠΈΠ΅ΠΌ ΠΏΡΠΎΡΠΌΠ° ΠΈΠ»ΠΈ Π²ΠΎΠ·Π²ΡΠ°ΡΠ΅Π½ΠΈΠ΅ΠΌ ΡΠΎΠ»ΡΠΊΠΎ ΡΡΠΎ ΠΏΡΠΈΠΎΠ±ΡΠ΅ΡΡΠ½Π½ΠΎΠ³ΠΎ ΠΏΠΎΠ»ΠΎΡΠ½Π°.
ΠΡΠΈ ΠΏΠΎΠΊΡΠΏΠΊΠ΅ ΠΏΠΎΠ»ΠΎΡΠ½Π° Π·Π°ΡΡΠ±Π΅ΠΆΠ½ΠΎΠΉ ΡΠΈΡΠΌΡ Π½Π΅ΠΎΠ±Ρ ΠΎΠ΄ΠΈΠΌΠΎ ΠΎΡΠΎΠ±ΠΎ Π²Π½ΠΈΠΌΠ°ΡΠ΅Π»ΡΠ½ΠΎ ΠΈΠ·ΡΡΠΈΡΡ ΡΠ°Π·ΠΌΠ΅ΡΡ Π²Π΅Π΄Ρ ΠΈΡ ΡΡΠ°Π½Π΄Π°ΡΡ Π½Π΅ΡΠΊΠΎΠ»ΡΠΊΠΎ ΠΎΡΠ»ΠΈΡΠ°Π΅ΡΡΡ.

Π€ΠΎΡΠΌΡΠ»Π° Π·Π°ΠΌΠ΅ΡΠ° Π΄Π²Π΅ΡΠ½ΠΎΠ³ΠΎ ΠΏΡΠΎΠ΅ΠΌΠ°
ΠΡΠ»ΠΈ Π½Π΅ΠΎΠ±Ρ ΠΎΠ΄ΠΈΠΌΠΎ ΡΠ΄Π΅Π»Π°ΡΡ ΠΏΡΠΎΡΠΌ, Π° Ρ Π΄Π²Π΅ΡΡΡ Π²ΠΎΠΏΡΠΎΡ Π΅ΡΠ΅ Π½Π΅ ΡΠ΅ΡΡΠ½, Π½Π΅ΠΎΠ±Ρ ΠΎΠ΄ΠΈΠΌΠΎ Π·Π°ΡΠ°Π½Π΅Π΅ ΡΡΠ΅ΡΡΡ ΡΠ°ΠΊΠΈΠ΅ ΠΌΠΎΠΌΠ΅Π½ΡΡ:
- ΠΠ°Π±Π°ΡΠΈΡΡ ΠΏΠΎΠ»ΠΎΡΠ½Π°: Π²ΡΡΠΎΡΠ° ΠΈ ΡΠΈΡΠΈΠ½Π°,ΡΠΎΠ»ΡΠΈΠ½Π°.
- ΠΠ°Π±Π°ΡΠΈΡΡ Π΄Π²Π΅ΡΠ½ΠΎΠΉ ΠΊΠΎΡΠΎΠ±ΠΊΠΈ: ΡΠΈΡΠΈΠ½Π° ΠΈ ΡΠΎΠ»ΡΠΈΠ½Π°.
- Π¨ΠΈΡΠΈΠ½Π° Π½Π°Π»ΠΈΡΠ½ΠΈΠΊΠΎΠ².
ΠΡΡΠΎΡΠ° (Π Π΄Π²) β 200 ΡΠΌ
Π¨ΠΈΡΠΈΠ½Π° (Π¨ Π΄Π²) β70 ΡΠΌ
Π’ΠΎΠ»ΡΠΈΠ½Π° (Π’ ΠΊ) β 3 ΡΠΌ
ΠΠ»ΠΎΠΊ Π΄Π²Π΅ΡΠΈ (ΠΠ΄) β 2 ΡΠΌ
Π€ΠΎΡΠΌΡΠ»Π° Π²ΡΡΠΈΡΠ»Π΅Π½ΠΈΠΉ ΡΠΈΡΠΈΠ½Ρ Π΄Π²Π΅ΡΠ½ΠΎΠ³ΠΎ ΠΏΡΠΎΡΠΌΠ°:

ΠΠ°ΡΠ°ΠΌΠ΅ΡΡΡ ΠΊΠΎΡΠΎΠ±ΠΊΠΈ ΠΈ Π΄Π²Π΅ΡΠ½ΠΎΠ³ΠΎ ΠΏΠΎΠ»ΠΎΡΠ½Π°
ΠΠ°Π±Π°ΡΠΈΡΡ ΠΊΠΎΡΠΎΠ±ΠΊΠΈ ΠΌΠ΅ΠΆΠΊΠΎΠΌΠ½Π°ΡΠ½ΡΡ Π΄Π²Π΅ΡΠ΅ΠΉ Π΄ΠΎΠ»ΠΆΠ½Ρ ΡΠΎΠΎΡΠ²Π΅ΡΡΡΠ²ΠΎΠ²Π°ΡΡ ΡΠ°Π·ΠΌΠ΅ΡΠ°ΠΌ ΠΏΠΎΠ»ΠΎΡΠ½Π°, ΡΡΠΈΡΡΠ²Π°Ρ Π·Π°Π·ΠΎΡΡ.
Π Π°ΠΌΠ° Π΄ΠΎΠ»ΠΆΠ½Π° Π±ΡΡΡ ΠΏΡΠΎΠΏΠΎΡΡΠΈΠΎΠ½Π°Π»ΡΠ½Π° ΡΠΎΠ»ΡΠΈΠ½Π΅ ΡΡΠ΅Π½Ρ. ΠΡΠ»ΠΈ ΠΎΡΡΠ°ΡΡΡΡ ΡΠ²ΠΎΠ±ΠΎΠ΄Π½ΠΎΠ΅ ΠΌΠ΅ΡΡΠΎ ΠΈΡΠΏΠΎΠ»ΡΠ·ΡΡΡ Π΄ΠΎΠ±ΠΎΡΡ, ΠΊΠΎΡΠΎΡΡΠ΅ ΠΏΠ΅ΡΠ΅ΠΊΡΡΠ²Π°ΡΡ ΠΏΡΠΎΡΠ²Π΅ΡΡ.
ΠΠΎΠ±ΠΎΡ β ΡΡΠΎ ΡΡΠΎΠΉΠΊΠΈ ΠΏΠΎ ΠΏΠ΅ΡΠΈΠΌΠ΅ΡΡΡ ΠΊΠΎΡΠΎΠ±ΠΊΠΈ Π΄Π»Ρ ΡΠ°ΡΡΠΈΡΠ΅Π½ΠΈΡ Π΄Π²Π΅ΡΠ½ΠΎΠ³ΠΎ ΠΊΠΎΡΠΎΠ±Π°.
ΠΠ»Π°Π²Π½ΡΠΌ ΡΠ»Π΅ΠΌΠ΅Π½ΡΠΎΠΌ Π²ΡΡ ΠΆΠ΅ ΠΎΡΡΠ°ΡΡΡΡ ΡΠ°ΠΌΠΈ Π΄Π²Π΅ΡΠΈ. Π‘ΡΠ°Π½Π΄Π°ΡΡ ΠΎΠΏΡΠ΅Π΄Π΅Π»Π΅Π½ ΠΎΠΏΠΈΡΠ°ΡΡΡ Π½Π° ΡΠ°ΠΊΠΈΠ΅ ΠΏΠ°ΡΠ°ΠΌΠ΅ΡΡΡ:
- ΠΡΡΠΎΡΠ° ΠΏΠΎΠ»ΠΎΡΠ½Π° ΠΌΠ΅ΠΆΠΊΠΎΠΌΠ½Π°ΡΠ½ΡΡ Π΄Π²Π΅ΡΠ΅ΠΉ: 190-200 ΡΠΌ. ΠΠ½ΠΎΠ³Π΄Π° Π½Π΅ΠΎΠ±Ρ ΠΎΠ΄ΠΈΠΌ ΠΈΠ½Π΄ΠΈΠ²ΠΈΠ΄ΡΠ°Π»ΡΠ½ΡΠΉ ΠΏΠΎΠ΄Ρ ΠΎΠ΄. ΠΡΠΈ ΡΠ°ΡΡΡΡΠ°Ρ Π½Π΅ΠΎΠ±Ρ ΠΎΠ΄ΠΈΠΌΠΎ ΡΡΠ΅ΡΡΡ Π·Π°Π·ΠΎΡ ΠΌΠ΅ΠΆΠ΄Ρ ΠΎΡΠ½ΠΎΠ²Π°Π½ΠΈΠ΅ΠΌ ΠΈ ΠΏΠΎΠ»ΠΎΠΌ, ΡΡΠΎΠ±Ρ ΠΏΠΎΠ»ΠΎΡΠ½ΠΎ ΡΠ²ΠΎΠ±ΠΎΠ΄Π½ΠΎ ΠΎΡΠΊΡΡΠ²Π°Π»ΠΎΡΡ ΠΈ Π·Π°ΠΊΡΡΠ²Π°Π»ΠΎΡΡ.
- Π¨ΠΈΡΠΈΠ½Π° Π·Π°Π²ΠΈΡΠΈΡ ΠΎΡ ΠΊΠΎΠΌΠ½Π°ΡΡ.
- Π’ΠΎΠ»ΡΠΈΠ½Π° β ΡΠ°Π·Π½Π°Ρ (Π·Π°Π²ΠΈΡΠΈΡ ΠΎΡ ΡΡΠ΅Π±ΠΎΠ²Π°Π½ΠΈΠΉ ΠΏΡΠΎΠΈΠ·Π²ΠΎΠ΄ΠΈΡΠ΅Π»Ρ), ΡΡΠ°Π½Π΄Π°ΡΡ β 4,5 .
ΠΡΠΎΠ±Π΅Π½Π½ΠΎΡΡΠΈ Π΄Π²ΡΡΡΠ²ΠΎΡΡΠ°ΡΡΡ Π΄Π²Π΅ΡΠ΅ΠΉ
ΠΠ»Ρ Π³ΠΎΡΡΠΈΠ½ΠΎΠΉ ΡΠ΄Π°ΡΠ½ΡΠΌ ΡΠ΅ΡΠ΅Π½ΠΈΠ΅ΠΌ Π² Π΄ΠΈΠ·Π°ΠΉΠ½Π΅ ΠΈΠ½ΡΠ΅ΡΡΠ΅ΡΠ° Π±ΡΠ΄Π΅Ρ ΡΡΡΠ°Π½ΠΎΠ²ΠΊΠ° Π΄Π²ΡΡΡΠ²ΠΎΡΡΠ°ΡΡΡ ΠΌΠ΅ΠΆΠΊΠΎΠΌΠ½Π°ΡΠ½ΡΡ Π΄Π²Π΅ΡΠ΅ΠΉ. ΠΠ½ΠΈΠΌΠ°Π½ΠΈΠ΅, ΠΏΡΠΈ Π²ΡΡΠΈΡΠ»Π΅Π½ΠΈΠΈ ΡΠ°Π·ΠΌΠ΅ΡΠΎΠ² Π²Π΅Π»ΠΈΡΠΈΠ½Ρ ΡΠ²Π΅Π»ΠΈΡΠΈΡΡ Π² Π΄Π²Π° ΡΠ°Π·Π°.
Π§ΡΠΎ ΠΊΠ°ΡΠ°Π΅ΡΡΡ ΠΠΠ‘Π’Π°: ΡΡΠ°Π½Π΄Π°ΡΡΠΎΠΌ ΡΠ²Π»ΡΠ΅ΡΡΡ ΡΠΈΡΠΈΠ½Π° ΠΎΡ120 Π΄ΠΎ 150 ΡΠΌ. ΠΡΠΎΡ Π΄ΠΈΠ°ΠΏΠ°Π·ΠΎΠ½ ΠΏΠΎΠ·Π²ΠΎΠ»ΡΠ΅Ρ ΠΏΠΎΠ»ΡΡΠΈΡΡ ΡΠ΄ΠΎΠ±Π½ΡΡ ΠΏΠΎΠ»Π½ΠΎΡΠ΅Π½Π½ΡΡ ΠΈ ΡΡΠ½ΠΊΡΠΈΠΎΠ½Π°Π»ΡΠ½ΡΡ ΠΊΠΎΠ½ΡΡΡΡΠΊΡΠΈΡ. Π’ΠΎΠ»ΡΠΈΠ½Π° β 4,5 ΡΠΌ.
ΠΠΎΠ΄ΡΠΎΠ±Π½ΠΎ ΠΏΡΠΎ Π·Π°ΠΌΠ΅Ρ ΠΈ ΡΡΡΠ°Π½ΠΎΠ²ΠΊΡ:
ΠΡΠ»ΠΈ ΠΏΡΠΎΡΠΌ Π½Π΅ ΡΠΎΠΎΡΠ²Π΅ΡΡΡΠ²ΡΠ΅Ρ Π·Π°Π΄Π°Π½Π½ΠΎΠΉ Π²Π΅Π»ΠΈΡΠΈΠ½Π΅ ΠΈ Π½Π΅ ΠΏΠΎΠ΄Π΄Π°ΡΡΡΡ ΡΠ°ΡΡΠΈΡΠ΅Π½ΠΈΡ Π½Π΅ΠΎΠ±Ρ ΠΎΠ΄ΠΈΠΌΠΎ ΡΠ»Π΅Π΄ΡΡΡΠ΅Π΅:
- ΠΠ΄Π½Π° ΡΡΠ²ΠΎΡΠΊΠ° Π½Π°Ρ ΠΎΠ΄ΠΈΡΡΡ Π² Π·Π°ΡΠΈΠΊΡΠΈΡΠΎΠ²Π°Π½Π½ΠΎΠΌ ΠΏΠΎΠ»ΠΎΠΆΠ΅Π½ΠΈΠΈ ΠΈ ΠΈΡΠΏΠΎΠ»ΡΠ·ΡΠ΅ΡΡΡ ΠΏΠΎ Π½Π΅ΠΎΠ±Ρ ΠΎΠ΄ΠΈΠΌΠΎΡΡΠΈ.
- Π¨ΠΈΡΠΈΠ½Π° ΡΡΠΎΠΉ ΡΠ²ΠΎΡΠΊΠΈ:1/2 ΠΈΠ»ΠΈ 1/3 ΠΎΡ ΡΠΈΡΠΈΠ½Ρ ΡΡΠ°Π½Π΄Π°ΡΡΠ½ΠΎΠΉ ΠΌΠ΅ΠΆΠΊΠΎΠΌΠ½Π°ΡΠ½ΠΎΠΉ Π΄Π²Π΅ΡΠΈ.
- ΠΡΠΎΡΠ°Ρ β ΠΏΠΎΠ»Π½ΠΎΡΠ΅Π½Π½Π°Ρ Π΄Π²Π΅ΡΡ.
ΠΠ±Π° Π²Π°ΡΠΈΠ°Π½ΡΠ° ΠΈΠΌΠ΅ΡΡ Π±ΠΎΠ»ΡΡΠΎΠΉ ΠΏΠ»ΡΡ Π² ΡΡΠ½ΠΊΡΠΈΠΎΠ½Π°Π»ΡΠ½ΠΎΡΡΠΈ: ΡΠ»ΡΡΡΠ°ΡΡ ΠΏΡΠΎΡ ΠΎΠ΄ΠΈΠΌΠΎΡΡΡ: Π»Π΅Π³ΠΊΠΎ Π²Π½ΠΎΡΠΈΡΡ, Π²ΡΠ½ΠΎΡΠΈΡΡ ΠΌΠ΅Π±Π΅Π»Ρ.
Π§ΡΠΎ ΠΊΠ°ΡΠ°Π΅ΡΡΡ Π²ΡΡΠΎΡΡ: Π΅ΡΠ»ΠΈ ΠΏΡΠΎΡΠΌ Π±ΠΎΠ»ΡΡΠ΅ Π·Π°Π΄Π°Π½Π½ΡΡ ΡΡΠ°Π½Π΄Π°ΡΡΠΎΠ² (ΡΠ°Π·ΠΌΠ΅Ρ: 200-210 ΡΠΌ) Π²Π²Π΅ΡΡ Ρ ΠΊΡΠ΅ΠΏΠΈΡΡΡ ΡΠΏΠ΅ΡΠΈΠ°Π»ΡΠ½Π°Ρ Π½Π΅ΠΏΠΎΠ΄Π²ΠΈΠΆΠ½Π°Ρ ΠΏΠ»Π°Π½ΠΊΠ°.

ΠΠ°ΠΊΡΠΈΠΌΠ°Π»ΡΠ½ΡΠ΅ ΡΠ°Π·ΠΌΠ΅ΡΡ ΠΏΠΎΠ»ΠΎΡΠ½Π°
Π‘Π°ΠΌΡΠ΅ ΡΠΈΡΠΎΠΊΠΈΠ΅ Π΄Π²Π΅ΡΠΈ ΡΡΠ°Π½Π΄Π°ΡΡ β 90 ΡΠΌ. Π’ΠΎΠ»ΡΠΊΠΎ ΠΎΠ³ΡΠ°Π½ΠΈΡΠ΅Π½Π½ΠΎΠ΅ ΠΊΠΎΠ»ΠΈΡΠ΅ΡΡΠ²ΠΎ ΠΏΡΠΎΠΈΠ·Π²ΠΎΠ΄ΠΈΡΠ΅Π»Π΅ΠΉ Π²ΡΠΏΡΡΠΊΠ°ΡΡ ΠΏΡΠΎΠ΄ΡΠΊΡΠΈΡ ΡΠ°ΠΊΠΈΡ Π³Π°Π±Π°ΡΠΈΡΠΎΠ². Π Π½ΠΎΠ²ΠΎΡΡΡΠΎΡΡ ΡΠ°ΠΊΠΈΠ΅ ΠΏΠ°ΡΠ°ΠΌΠ΅ΡΡΡ ΠΌΠ΅ΠΆΠΊΠΎΠΌΠ½Π°ΡΠ½ΠΎΠΉ Π΄Π²Π΅ΡΠ½ΠΎΠΉ ΠΊΠΎΡΠΎΠ±ΠΊΠΈ Π½Π΅ ΠΈΡΠΏΠΎΠ»ΡΠ·ΡΡΡ, ΠΏΠΎΡΠΎΠΌΡ, ΠΊΠ°ΠΊ ΠΊΠΎΠ½ΡΡΡΡΠΊΡΠΈΡ ΡΠΌΠΎΡΡΠΈΡΡΡ Π½Π΅Π»Π΅ΠΏΠΎ ΠΈΠ»ΠΈ Π³ΡΠΎΠΌΠΎΠ·Π΄ΠΊΠΎ. ΠΡΡ ΠΆΠ΅ ΡΠ°ΠΊΠΈΠ΅ ΡΠ°Π·ΠΌΠ΅ΡΡ Π²ΡΡΡΠ΅ΡΠ°ΡΡΡΡ:
Π‘Π°ΠΌΡΠΉ Ρ ΠΎΠ΄ΠΎΠ²ΠΎΠΉ ΠΌΠ°ΡΠ΅ΡΠΈΠ°Π» Π΄Π»Ρ ΠΌΠ΅ΠΆΠΊΠΎΠΌΠ½Π°ΡΠ½ΡΡ Π³Π°Π±Π°ΡΠΈΡΠ½ΡΡ (ΠΈ Π½Π΅ ΡΠΎΠ»ΡΠΊΠΎ) ΠΏΠΎΠ»ΠΎΡΠ΅Π½: ΠΠΠ€.
ΠΡΡΠΎΡΠ½ΠΈΠΊΠΈ: http://verydveri.ru/dveri/montazh/kak-ustanovit-korobku-dlya-mezhkomnatnoj-dveri.html, http://fasdoma.ru/vxodnaya-gruppa/dveri/korobka-dvernaya-standartnye-razmery.html, http://golddveri.ru/mezhkomnatnye-dveri/razmer-mezhkomnatnyx-dverej-s-korobkoj-standart.html
gorodverey.ru
ΡΠ°Π·ΠΌΠ΅ΡΡ (ΡΠΎΠ»ΡΠΈΠ½Π° ΠΈ ΡΠΈΡΠΈΠ½Π°) Π΄Π²Π΅ΡΠ½ΠΎΠΉ ΠΊΠΎΡΠΎΠ±ΠΊΠΈ, ΠΊΡΠ΅ΠΏΠ»Π΅Π½ΠΈΠ΅ ΠΈ ΡΠ±ΠΎΡΠΊΠ°, Π²ΠΈΠ΄Π΅ΠΎ Β» VeryDveri.ru
ΠΠΎΡΠΎΠ±ΠΊΠ° Π΄Π»Ρ ΠΌΠ΅ΠΆΠΊΠΎΠΌΠ½Π°ΡΠ½ΠΎΠΉ Π΄Π²Π΅ΡΠΈ ΠΏΡΠ΅Π΄ΡΡΠ°Π²Π»ΡΠ΅Ρ ΡΠΎΠ±ΠΎΠΉ Π½Π΅ΠΏΠΎΠ΄Π²ΠΈΠΆΠ½ΡΡ ΠΎΡΠ½ΠΎΠ²Ρ ΠΈΠ· Π΄Π΅ΡΠ΅Π²ΡΠ½Π½ΡΡ
ΡΡΠΎΠ΅ΠΊ ΠΈ ΠΏΠ΅ΡΠ΅ΠΊΠ»Π°Π΄ΠΈΠ½Ρ, Π½Π° ΠΊΠΎΡΠΎΡΡΡ ΠΊΡΠ΅ΠΏΠΈΡΡΡ Π΄Π²Π΅ΡΠ½Π°Ρ ΡΡΠ²ΠΎΡΠΊΠ° ΠΏΡΠΈ ΠΏΠΎΠΌΠΎΡΠΈ ΠΏΠ΅ΡΠ΅Π»Ρ. ΠΠ΅ΡΠ΅Π΄ ΠΏΠΎΠΊΡΠΏΠΊΠΎΠΉ Π½Π΅ΠΎΠ±Ρ
ΠΎΠ΄ΠΈΠΌΠΎ Π·Π½Π°ΡΡ ΠΊΠ°ΠΊΠΎΠΉ ΡΠΎΠ»ΡΠΈΠ½Ρ ΠΈ ΡΠΈΡΠΈΠ½Ρ Π΄ΠΎΠ»ΠΆΠ½Π° Π±ΡΡΡ Π΄Π°Π½Π½Π°Ρ ΠΊΠΎΠ½ΡΡΡΡΠΊΡΠΈΡ. Π ΡΠΎΠΌΡ ΠΆΠ΅ Π½ΡΠΆΠ½ΠΎ ΡΡΠ΅ΡΡΡ, Π±ΡΠ΄Π΅ΡΠ΅ Π²Ρ ΡΠΎΠ±ΠΈΡΠ°ΡΡ Π΅Π΅ ΠΈΠ· ΡΠ²ΠΎΠΈΡ
ΠΏΠΈΠ»ΠΎΠΌΠ°ΡΠ΅ΡΠΈΠ°Π»ΠΎΠ² ΠΈΠ»ΠΈ ΠΊΡΠΏΠΈΡΠ΅ Π³ΠΎΡΠΎΠ²ΡΠ΅ Π΄Π΅ΡΠ°Π»ΠΈ Π² ΠΊΠΎΠΌΠΏΠ»Π΅ΠΊΡΠ΅ Ρ Π΄Π²Π΅ΡΠ½ΡΠΌ ΠΏΠΎΠ»ΠΎΡΠ½ΠΎΠΌ. ΠΠΎΠ»Π΅Π΅ ΠΏΠΎΠ΄ΡΠΎΠ±Π½ΠΎ ΠΎ ΡΠ±ΠΎΡΠΊΠ΅ ΠΊΠΎΡΠΎΠ±ΠΊΠΈ Π΄Π»Ρ ΠΌΠ΅ΠΆΠΊΠΎΠΌΠ½Π°ΡΠ½ΠΎΠΉ Π΄Π²Π΅ΡΠΈ, Π²Ρ ΡΠ·Π½Π°Π΅ΡΠ΅ ΠΈΠ· Π΄Π°Π½Π½ΠΎΠΉ ΡΡΠ°ΡΡΠΈ ΠΈ ΠΏΡΠΎΡΠΌΠΎΡΡΠ΅Π² ΠΎΠ·Π½Π°ΠΊΠΎΠΌΠΈΡΠ΅Π»ΡΠ½ΠΎΠ΅ Π²ΠΈΠ΄Π΅ΠΎ.
ΠΠ°ΠΊ ΡΠ°ΡΡΡΠΈΡΠ°ΡΡ ΠΏΠ°ΡΠ°ΠΌΠ΅ΡΡ Π΄Π²Π΅ΡΠ½ΠΎΠ³ΠΎ ΠΏΡΠΎΠ΅ΠΌΠ°
ΠΠ΅ΡΠ΅Π΄ ΡΠ΅ΠΌ ΠΊΠ°ΠΊ ΡΡΡΠ°Π½ΠΎΠ²ΠΈΡΡ Π΄Π²Π΅ΡΠ½ΡΡ ΠΊΠΎΡΠΎΠ±ΠΊΡ, Π½ΡΠΆΠ½ΠΎ ΡΠ°ΡΡΡΠΈΡΠ°ΡΡ ΠΏΠ°ΡΠ°ΠΌΠ΅ΡΡΡ ΠΏΡΠΎΠ΅ΠΌΠ°: ΡΠΈΡΠΈΠ½Ρ, ΡΠΎΠ»ΡΠΈΠ½Ρ, Π²ΡΡΠΎΡΡ. Π Π°Π·ΠΌΠ΅ΡΡ Π΄Π²Π΅ΡΠ½ΠΎΠ³ΠΎ ΠΏΡΠΎΠ΅ΠΌΠ°, Π±ΡΠ΄ΡΡ Π·Π°Π²ΠΈΡΠ΅ΡΡ ΠΎΡ ΡΠ°Π·ΠΌΠ΅ΡΠΎΠ² ΠΌΠ΅ΠΆΠΊΠΎΠΌΠ½Π°ΡΠ½ΠΎΠΉ Π΄Π²Π΅ΡΠΈ. ΠΠ»Ρ Π½Π°ΡΠ°Π»Π° ΠΎΠΏΡΠ΅Π΄Π΅Π»ΡΠ΅ΠΌΡΡ Ρ Π΅Π΅ ΡΠ°Π·ΠΌΠ΅ΡΠ°ΠΌΠΈ. ΠΡΠΎΠΈΠ·Π²ΠΎΠ΄ΠΈΡΠ΅Π»ΠΈ ΠΏΡΠ΅Π΄Π»Π°Π³Π°ΡΡ ΡΠ°Π·ΠΌΠ΅ΡΡ Π΄Π²Π΅ΡΠ½ΠΎΠ³ΠΎ ΠΏΠΎΠ»ΠΎΡΠ½Π° Π²ΡΡΠΎΡΠΎΠΉ 200 ΡΠΌ, Π° ΡΠΈΡΠΈΠ½ΠΎΠΉ ΠΎΡ 60 Π΄ΠΎ 90 ΡΠΌ. ΠΡΠΈ ΡΡΠΎΠΌ ΡΠΈΡΠΈΠ½Π° ΠΊΠΎΡΠΎΠ±ΠΊΠΈ ΠΏΠΎΠ»ΡΡΠΈΡΡΡ Π±ΠΎΠ»ΡΡΠ΅ ΡΡΠ²ΠΎΡΠΊΠΈ Π½Π° 7 ΡΠΌ, Π° Π²ΡΡΠΎΡΠ° Π½Π° 4,7 ΡΠΌ. Π’ΠΎΠ»ΡΠΈΠ½Π° ΡΡΠ°Π½Π΄Π°ΡΡΠ½ΡΡ ΠΊΠΎΡΠΎΠ±ΠΎΠΊ 25, 40 ΠΈ 60 ΠΌΠΌ, Π½ΠΎ ΡΡΠΈ ΡΠΈΡΡΡ ΠΌΠΎΠ³ΡΡ ΠΌΠ΅Π½ΡΡΡΡΡ Π² Π·Π°Π²ΠΈΡΠΈΠΌΠΎΡΡΠΈ ΠΎΡ ΠΏΡΠΎΠΈΠ·Π²ΠΎΠ΄ΠΈΡΠ΅Π»Ρ. ΠΠ°ΠΏΡΠΈΠΌΠ΅Ρ, Π΄Π»Ρ Π΄Π²Π΅ΡΠ½ΠΎΠ³ΠΎ ΠΏΠΎΠ»ΠΎΡΠ½Π°, ΡΠ°Π·ΠΌΠ΅ΡΠΎΠΌ 60 Ρ 200 ΡΠΌ, ΠΊΠΎΡΠΎΠ±ΠΊΠ° Π±ΡΠ΄Π΅Ρ ΠΈΠΌΠ΅ΡΡ Π³Π°Π±Π°ΡΠΈΡΡ 67 Ρ 204,7 ΡΠΌ.
ΠΠ½ΠΈΠΌΠ°Π½ΠΈΠ΅! ΠΡΡΡΠ΅ Π²ΡΠ΅Π³ΠΎ Π²ΡΠ±ΠΈΡΠ°ΡΡ ΡΠΎΠ»ΡΠΈΠ½Ρ Π΄Π²Π΅ΡΠ½ΠΎΠΉ ΠΊΠΎΡΠΎΠ±ΠΊΠΈ ΡΠ°Π²Π½ΡΡ ΡΠΎΠ»ΡΠΈΠ½Π΅ ΠΏΡΠΎΠ΅ΠΌΠ°. ΠΠ½Π°ΡΠ΅ ΠΏΡΠΈΠ΄Π΅ΡΡΡ ΡΡΡΠ°Π½Π°Π²Π»ΠΈΠ²Π°ΡΡ ΡΠ°ΡΡΠΈΡΠΈΡΠ΅Π»Ρ ΠΈΠ»ΠΈ ΠΎΡΠΏΠΈΠ»ΠΈΠ²Π°ΡΡ Π΅Π΅ Π²Π΄ΠΎΠ»Ρ.
ΠΠ°ΠΏΡΠΈΠΌΠ΅Ρ, ΡΡΠΎΠ±Ρ ΡΠ°ΡΡΡΠΈΡΠ°ΡΡ Π΄Π²Π΅ΡΠ½ΠΎΠΉ ΠΏΡΠΎΠ΅ΠΌ Π΄Π»Ρ ΠΏΠΎΠ»ΠΎΡΠ½Π° ΡΠΈΡΠΈΠ½ΠΎΠΉ 80 ΡΠΌ ΠΈ ΡΠΎΠ»ΡΠΈΠ½ΠΎΠΉ 4 ΡΠΌ, Π½ΡΠΆΠ½ΠΎ ΠΏΡΠΈΠ±Π°Π²ΠΈΡΡ ΠΊ 80 ΡΠΎΠ»ΡΠΈΠ½Ρ ΠΊΠΎΡΠΎΠ±ΠΊΠΈ ΠΈ ΠΌΠΎΠ½ΡΠ°ΠΆΠ½ΡΠ΅ Π·Π°Π·ΠΎΡΡ (1,5-2 ΡΠΌ), Π½Π΅ Π·Π°Π±ΡΠ²Π°Ρ, ΡΡΠΎ ΠΎΠ½ΠΈ ΠΈΠΌΠ΅ΡΡΡΡ Ρ ΠΊΠ°ΠΆΠ΄ΠΎΠΉ ΡΡΠΎΡΠΎΠ½Ρ.Β Π Π°ΡΡΠ΅Ρ Π΄Π²Π΅ΡΠ½ΠΎΠ³ΠΎ ΠΏΡΠΎΠ΅ΠΌΠ° (Π¨Π΄ΠΏ) Π΄Π»Ρ Π΄Π²Π΅ΡΠ½ΠΎΠ³ΠΎ ΠΏΠΎΠ»ΠΎΡΠ½Π° ΡΠΈΡΠΈΠ½ΠΎΠΉ 80 ΠΈ ΡΠΎΠ»ΡΠΈΠ½ΠΎΠΉ 4 ΡΠΌ:
Π¨Π΄ΠΏ=80+4+4+1,5+1,5= 91 ΡΠΌ

Π‘Ρ Π΅ΠΌΠ° ΡΡΡΠ°Π½ΠΎΠ²ΠΊΠΈ Π΄Π²Π΅ΡΠΈ
ΠΡΡΠΎΡΠ° ΡΠ°ΡΡΡΠΈΡΡΠ²Π°Π΅ΡΡΡ ΠΊΠ°ΠΊ ΡΡΠΌΠΌΠ° Π²ΡΡΠΎΡΡ Π΄Π²Π΅ΡΠΈ, ΠΏΠ»ΡΡ Π²ΡΡΠΎΡΠ° ΠΏΠΎΡΠΎΠ³Π°, ΡΠΎΠ»ΡΠΈΠ½Π° ΠΊΠΎΡΠΎΠ±ΠΊΠΈ ΠΈ ΠΌΠΎΠ½ΡΠ°ΠΆΠ½ΠΎΠ³ΠΎ Π·Π°Π·ΠΎΡΠ°. ΠΠ±ΡΡΠ½ΠΎ ΠΏΠΎΡΠΎΠ³ΠΈ Π΄Π΅Π»Π°ΡΡ ΡΠΎΠ»ΡΠΊΠΎ Π΄Π»Ρ Π²Ρ ΠΎΠ΄Π½ΡΡ Π΄Π²Π΅ΡΠ΅ΠΉ, ΠΏΠΎΡΡΠΎΠΌΡ Π΄Π»Ρ ΡΠ°ΡΡΠ΅ΡΠ° ΠΌΠ΅ΠΆΠΊΠΎΠΌΠ½Π°ΡΠ½ΡΡ , ΡΡΠΎΡ ΠΏΠΎΠΊΠ°Π·Π°ΡΠ΅Π»Ρ ΠΌΠΎΠΆΠ½ΠΎ Π½Π΅ ΡΡΠΈΡΡΠ²Π°ΡΡ.
ΠΠΎΠ½ΡΠ°ΠΆ ΠΊΠΎΡΠΎΠ±ΠΊΠΈ
Π ΡΠ΅Π»ΡΡ ΡΠΊΠΎΠ½ΠΎΠΌΠΈΠΈ ΠΌΠΎΠΆΠ½ΠΎ ΠΊΡΠΏΠΈΡΡ ΡΠΎΠ»ΡΠΊΠΎ Π΄Π²Π΅ΡΠ½ΠΎΠΉ ΠΏΠΎΠ»ΠΎΡΠ½ΠΎ, Π° ΠΊΠΎΡΠΎΠ±ΠΊΡ ΡΡΡΠ°Π½ΠΎΠ²ΠΈΡΡ ΡΠ°ΠΌΠΎΡΡΠΎΡΡΠ΅Π»ΡΠ½ΠΎ. ΠΡΠΎΡΠ΅ΡΡ ΡΠ±ΠΎΡΠΊΠΈ ΡΠΎΡΡΠΎΠΈΡ ΠΈΠ· ΡΠ»Π΅Π΄ΡΡΡΠΈΡ ΠΎΠΏΠ΅ΡΠ°ΡΠΈΠΉ:
- ΠΠΎΠ»ΠΎΡΠ½ΠΎ Π΄Π²Π΅ΡΠΈ ΡΠΊΠ»Π°Π΄ΡΠ²Π°Π΅ΠΌ Π½Π° ΡΠΎΠ²Π½ΠΎΠ΅ Π³ΠΎΡΠΈΠ·ΠΎΠ½ΡΠ°Π»ΡΠ½ΠΎΠ΅ ΠΌΠ΅ΡΡΠΎ ΠΈ ΠΎΠ±ΠΊΠ»Π°Π΄ΡΠ²Π°Π΅ΠΌ Π΅Π³ΠΎ Π΄Π΅ΡΠ΅Π²ΡΠ½Π½ΡΠΌΠΈ Π±ΡΡΡΠΊΠ°ΠΌΠΈ. Π ΡΠΎΡΡΡ, ΠΌΠ΅ΠΆΠ΄Ρ ΠΏΡΠΈΡΠ²ΠΎΡΠ°ΠΌΠΈ ΠΈ Π΄Π²Π΅ΡΡΡ, ΡΠΊΠ»Π°Π΄ΡΠ²Π°Π΅ΠΌ Π»ΠΈΡΡΠΎΠΊ ΠΊΠ°ΡΡΠΎΠ½Π°, ΡΡΠΎΠ±Ρ ΡΠΎΠ·Π΄Π°ΡΡ Π·Π°Π·ΠΎΡ. ΠΠ°ΡΠ΅ΠΌ Π²ΡΡΠ°Π²Π½ΠΈΠ²Π°Π΅ΠΌ ΡΠΎΡΡΡ Π±ΡΡΡΡΠ΅Π² ΠΈ Π²Π΅ΡΡ Π° Π΄Π²Π΅ΡΠΈ.
- ΠΡΠΈΠΊΠ»Π°Π΄ΡΠ²Π°Π΅ΠΌ ΠΊ ΡΠΎΡΡΠ°ΠΌ ΡΡΠΎΠ΅ΠΊ Π²Π΅ΡΡ Π½ΠΈΠΉ Π³ΠΎΡΠΈΠ·ΠΎΠ½ΡΠ°Π»ΡΠ½ΡΠΉ Π±ΡΡΡ. ΠΡΡΠ°Π²Π½ΠΈΠ²Π°Π΅ΠΌ Π΅Π³ΠΎ ΠΏΠΎ ΠΎΠ΄Π½ΠΎΠΉ ΡΡΠΎΡΠΎΠ½Π΅, Π° ΠΏΠΎ ΠΊΡΠ°Ρ Π΄ΡΡΠ³ΠΎΠ³ΠΎ ΠΊΠ°ΡΠ°Π½Π΄Π°ΡΠΎΠΌ ΠΎΡΠΌΠ΅ΡΡΠ΅ΠΌ Π΄Π»ΠΈΠ½Ρ ΠΏΠ»Π°Π½ΠΊΠΈ. ΠΠ·Π»ΠΈΡΠΊΠΈ ΠΎΡΠΏΠΈΠ»ΠΈΠ²Π°Π΅ΠΌ Π»ΠΎΠ±Π·ΠΈΠΊΠΎΠΌ ΠΈΠ»ΠΈ Π½ΠΎΠΆΠΎΠ²ΠΊΠΎΠΉ. Π Π·Π°ΡΠ΅ΠΌ Π½Π° Π²Π½ΡΡΡΠ΅Π½Π½Π΅ΠΉ ΡΠ°ΡΡΠΈ Π΄Π΅Π»Π°Π΅ΠΌ ΡΠ°Π·ΠΌΠ΅ΡΠΊΡ ΠΏΡΠΈΡΠ²ΠΎΡΠ½ΠΎΠΉ ΡΠ°ΡΡΠΈ.

Π£ΡΡΡΠΎΠΉΡΡΠ²ΠΎ Π΄Π²Π΅ΡΠ½ΠΎΠΉ ΠΊΠΎΡΠΎΠ±ΠΊΠΈ
- ΠΠ°Π»Π΅Π΅ Π½Π° ΠΎΡΠΌΠ΅ΡΠ΅Π½Π½ΠΎΠΉ Π·ΠΎΠ½Π΅ Π΄Π΅Π»Π°Π΅ΠΌ ΡΠ°ΡΠΏΠΈΠ»Ρ, ΠΈΡΠΏΠΎΠ»ΡΠ·ΡΡ Π½ΠΎΠΆΠΎΠ²ΠΊΡ Π΄Π»Ρ ΠΌΠ΅ΡΠ°Π»Π»Π°, Π΄Π»Ρ ΡΠΎΠ³ΠΎ ΡΡΠΎΠ±Ρ ΡΡΠ΅Π· Π±ΡΠ» Π°ΠΊΠΊΡΡΠ°ΡΠ½ΡΠΌ. ΠΠ±ΡΠ°Π±Π°ΡΡΠ²Π°Π΅ΠΌ ΠΌΠ΅ΡΡΠΎ ΡΡΠ΅Π·Π° ΡΡΠ°ΠΌΠ΅ΡΠΊΠΎΠΉ ΠΈΠ»ΠΈ Π½ΠΎΠΆΠΎΠ²ΠΊΠΎΠΉ.
- ΠΠΎΡΠ»Π΅ ΡΡΠΎΠ³ΠΎ ΠΌΠΎΠΆΠ½ΠΎ ΠΏΡΠΎΡΠ²Π΅ΡΠ»ΠΈΡΡ ΠΎΡΠ²Π΅ΡΡΡΠΈΡ Π² ΠΏΠ΅ΡΠ΅ΠΊΠ»Π°Π΄ΠΈΠ½Π΅ ΠΈ ΠΏΡΠΈΠΊΡΡΡΠΈΡΡ Π΅Π΅ ΡΠ°ΠΌΠΎΡΠ΅Π·Π°ΠΌΠΈ ΠΊ Π²Π΅ΡΡΠΈΠΊΠ°Π»ΡΠ½ΠΎΠΉ ΡΡΠΎΠΉΠΊΠ΅.
ΠΠ½ΠΈΠΌΠ°Π½ΠΈΠ΅! ΠΠ°Π½Π½Π°Ρ ΡΠ΅Ρ Π½ΠΎΠ»ΠΎΠ³ΠΈΡ ΡΠ±ΠΎΡΠΊΠΈ ΠΊΠΎΡΠΎΠ±ΠΊΠΈ, ΠΏΡΠΈΠ³ΠΎΠ΄Π½Π° ΡΠΎΠ»ΡΠΊΠΎ Π΄Π»Ρ ΡΠ΅Ρ Π΄Π²Π΅ΡΠ΅ΠΉ, Ρ ΠΏΡΠΈΡΠ²ΠΎΡΠΎΠ² ΠΊΠΎΡΠΎΡΡΡ ΠΏΡΡΠΌΠΎΡΠ³ΠΎΠ»ΡΠ½ΠΎΠ΅ ΡΠ΅ΡΠ΅Π½ΠΈΠ΅. ΠΠ»Ρ ΡΠ»ΠΎΠΆΠ½ΡΡ ΡΠ΅ΡΠ΅Π½ΠΈΠΉ ΡΡΠΎΠΉΠΊΠΈ ΠΈ ΠΏΠ΅ΡΠ΅ΠΊΠ»Π°Π΄ΠΈΠ½Ρ Π΄ΠΎΠ»ΠΆΠ½Ρ Π±ΡΡΡ Π·Π°ΠΏΠΈΠ»Π΅Π½Ρ ΠΏΠΎΠ΄ 45Β°.
- ΠΠ°ΡΠ΅ΠΌ ΠΎΡΠΌΠ΅ΡΠ°Π΅ΠΌ ΡΠ°ΡΠΏΠΎΠ»ΠΎΠΆΠ΅Π½ΠΈΠ΅ ΠΏΠ΅ΡΠ΅Π»Ρ. ΠΠ°Π²Π΅ΡΡ Π½Π΅ΠΎΠ±Ρ ΠΎΠ΄ΠΈΠΌΠΎ ΡΡΡΠ°Π½Π°Π²Π»ΠΈΠ²Π°ΡΡ Π½Π° ΡΠ°ΡΡΡΠΎΡΠ½ΠΈΠΈ 20 ΡΠΌ ΠΎΡ Π²Π΅ΡΡ Π° ΠΈ 21 ΡΠΌ ΠΎΡ Π½ΠΈΠ·Π°. ΠΡΠΈΠΊΠ»Π°Π΄ΡΠ²Π°Π΅ΠΌ ΠΏΠ΅ΡΠ»ΠΈ ΠΊ Π±ΡΡΡΡ ΠΈ ΠΎΠ±Π²ΠΎΠ΄ΠΈΠΌ ΠΈΡ ΠΏΠΎ ΠΊΠΎΠ½ΡΡΡΡ ΠΊΠ°ΡΠ°Π½Π΄Π°ΡΠΎΠΌ.
- ΠΡΠΈ ΠΏΠΎΠΌΠΎΡΠΈ ΡΡΠ΅Π·Π΅ΡΠ½ΠΎΠΉ ΡΡΡΠ°Π½ΠΎΠ²ΠΊΠΈ ΠΈΠ»ΠΈ ΡΡΠ°ΠΌΠ΅ΡΠΎΠΊ Π΄Π΅Π»Π°Π΅ΠΌ ΠΏΠ»Π°ΡΡΠΎΡΠΌΡ Π΄Π»Ρ ΠΊΡΠ΅ΠΏΠ»Π΅Π½ΠΈΡ ΠΏΠ΅ΡΠ΅Π»Ρ ΠΈ ΠΏΠΎΡΠ°Π΄ΠΎΡΠ½ΠΎΠ΅ ΠΌΠ΅ΡΡΠΎ ΠΏΠΎΠ΄ Π½ΠΈΠΆΠ½ΡΡ Π΄Π²Π΅ΡΠ½ΡΡ ΠΏΠ΅ΡΠ»Ρ. ΠΠ°Π²Π΅ΡΠΈΠ²Π°Π΅ΠΌ ΠΈΡ Π½Π° ΡΡΠΎΠΉΠΊΠΈ ΠΏΡΠΈ ΠΏΠΎΠΌΠΎΡΠΈ ΡΠ°ΠΌΠΎΡΠ΅Π·ΠΎΠ².
- ΠΠ·ΠΌΠ΅ΡΡΠ΅ΠΌ Π΄Π»ΠΈΠ½Ρ ΠΏΡΠΎΠ΅ΠΌΠ° ΠΈ ΠΎΡΠΌΠ΅ΡΠ°Π΅ΠΌ Π΄Π°Π½Π½ΠΎΠ΅ ΡΠ°ΡΡΡΠΎΡΠ½ΠΈΠ΅ Π½Π° ΡΡΠΎΠΉΠΊΠ°Ρ , ΠΈΠ·Π»ΠΈΡΠΊΠΈ Π½ΡΠΆΠ½ΠΎ ΠΎΡΠΏΠΈΠ»ΠΈΡΡ.
- Π’Π΅ΠΏΠ΅ΡΡ ΠΌΠΎΠΆΠ½ΠΎ ΠΏΡΠΈΡΡΡΠΏΠΈΡΡ ΠΊ ΡΡΡΠ°Π½ΠΎΠ²ΠΊΠ΅ ΠΊΠΎΠ½ΡΡΡΡΠΊΡΠΈΠΈ Π² ΠΏΡΠΎΠ΅ΠΌ. ΠΠ»Ρ ΡΡΠΎΠ³ΠΎ Π°ΠΊΠΊΡΡΠ°ΡΠ½ΠΎ ΠΏΠΎΠ΄Π½ΠΈΠΌΠ°Π΅ΠΌ ΠΊΠΎΡΠΎΠ±ΠΊΡ Ρ ΠΏΠΎΠ»Π° ΠΈ ΡΡΡΠ°Π½Π°Π²Π»ΠΈΠ²Π°Π΅ΠΌ Π΅Π³ΠΎ Π½Π° ΠΌΠ΅ΡΡΠΎ. ΠΡΠ»ΠΈ ΠΎΠ½Π° Π½Π΅ Π²ΠΏΠΈΡΡΠ²Π°Π΅ΡΡΡ Π² ΠΎΡΠ²Π΅ΡΡΡΠΈΠ΅, ΡΠΎ Π΅Π΅ ΠΏΠΎΠ»ΠΎΠΆΠ΅Π½ΠΈΠ΅ ΠΌΠΎΠΆΠ½ΠΎ ΠΎΡΡΠ΅Π³ΡΠ»ΠΈΡΠΎΠ²Π°ΡΡ ΠΏΡΠΈ ΠΏΠΎΠΌΠΎΡΠΈ Π΄Π΅ΡΠ΅Π²ΡΠ½Π½ΡΡ ΠΊΠΎΠ»ΡΡΠΊΠΎΠ².

Π£ΡΡΠ°Π½ΠΎΠ²Π»Π΅Π½Π½Π°Ρ Π΄Π²Π΅ΡΠ½Π°Ρ ΠΊΠΎΡΠΎΠ±ΠΊΠ°
- Π£ΡΠΎΠ²Π½Π΅ΠΌ ΠΈΠ»ΠΈ ΠΎΡΠ²Π΅ΡΠΎΠΌ, ΠΏΡΠΎΠ²Π΅ΡΡΠ΅ΠΌ Π³ΠΎΡΠΈΠ·ΠΎΠ½ΡΠ°Π»ΡΠ½ΠΎΡΡΡ Π²Π΅ΡΡ Π½Π΅Π³ΠΎ Π±ΡΡΡΠ°, ΠΏΠ΅ΡΠΏΠ΅Π½Π΄ΠΈΠΊΡΠ»ΡΡΠ½ΠΎΡΡΡ ΡΡΠΎΠ΅ΠΊ ΠΈ Π²Π΅ΡΡΠΈΠΊΠ°Π»ΡΠ½ΠΎΡΡΡ ΡΠ°ΠΌΠΎΠΉ ΠΊΠΎΡΠΎΠ±ΠΊΠΈ. ΠΠΎΡΠ»Π΅ ΡΡΠΎΠ³ΠΎ, Π΅Π΅ ΠΌΠΎΠΆΠ½ΠΎ Π·Π°ΠΊΡΠ΅ΠΏΠ»ΡΡΡ Π΄ΡΠ±Π΅Π»ΡΠΌΠΈ ΠΊ ΠΎΡΠΊΠΎΡΠ°ΠΌ.
- ΠΡΠ»ΠΈ ΠΊΠΎΡΠΎΠ±ΠΊΠ° ΠΏΡΠΎΡΠ½ΠΎ Π²ΡΡΠ°Π»Π° Π² ΠΏΡΠΎΠ΅ΠΌ, ΠΌΠΎΠΆΠ½ΠΎ ΠΈΠ·Π²Π»Π΅ΡΡ Π²ΡΠ΅ΠΌΠ΅Π½Π½ΡΠ΅ ΠΊΠΎΠ»ΡΡΠΊΠΈ ΠΈ ΡΠ°ΡΠΏΠΎΡΠΊΠΈ ΠΈ ΠΎΡΠΏΠΈΠ»ΠΈΡΡ Π²ΡΡΡΡΠΏΠ°ΡΡΠΈΠ΅ ΡΠ°ΡΡΠΈ ΠΊΠ»ΠΈΠ½ΡΠ΅Π².
ΠΠ° ΡΡΠΎΠΌ ΠΌΠΎΠ½ΡΠ°ΠΆ Π΄Π²Π΅ΡΠ½ΠΎΠΉ ΠΊΠΎΡΠΎΠ±ΠΊΠΈ Π³ΠΎΡΠΎΠ². ΠΡΡΠ°Π΅ΡΡΡ ΠΏΡΠΈΠΊΡΡΡΠΈΡΡ ΠΏΠ΅ΡΠ»ΠΈ, Π½Π°Π²Π΅ΡΠΈΡΡ Π΄Π²Π΅ΡΠ½ΠΎΠ΅ ΠΏΠΎΠ»ΠΎΡΠ½ΠΎ ΠΈ ΡΡΡΠ°Π½ΠΎΠ²ΠΈΡΡ Π½Π°Π»ΠΈΡΠ½ΠΈΠΊΠΈ. ΠΡΠΈ Π½Π΅Π±ΠΎΠ»ΡΡΠΎΠΌ ΠΎΠΏΡΡΠ΅ ΡΡΠΎΠ»ΡΡΠ½ΡΡ ΡΠ°Π±ΠΎΡ ΠΈ ΡΠ΅ΡΠΏΠ΅Π½ΠΈΠΈ, ΠΌΠΎΠΆΠ½ΠΎ ΡΡΠΊΠΎΠ½ΠΎΠΌΠΈΡΡ Π΄Π΅Π½ΡΠ³ΠΈ Π½Π° ΡΡΡΠ°Π½ΠΎΠ²ΠΎΡΠ½ΡΡ ΡΠ°Π±ΠΎΡΠ°Ρ , Π³Π»Π°Π²Π½ΠΎΠ΅ ΠΏΡΠ°Π²ΠΈΠ»ΡΠ½ΠΎ ΡΠ΄Π΅Π»Π°ΡΡ Π²ΡΠ΅ Π·Π°ΠΌΠ΅ΡΡ ΠΈ ΠΏΡΠΈΠ΄Π΅ΡΠΆΠΈΠ²Π°ΡΡΡΡ ΠΈΠ½ΡΡΡΡΠΊΡΠΈΠΈ.
ΠΠ°ΠΊ ΡΠΎΠ±ΡΠ°ΡΡ Π΄Π²Π΅ΡΠ½ΡΡ ΠΊΠΎΡΠΎΠ±ΠΊΡ: Π²ΠΈΠ΄Π΅ΠΎ
ΠΠ²Π΅ΡΠ½Π°Ρ ΠΊΠΎΡΠΎΠ±ΠΊΠ° ΡΠ²ΠΎΠΈΠΌΠΈ ΡΡΠΊΠ°ΠΌΠΈ: ΡΠΎΡΠΎ



ΠΠΊΠΎΠ½ΡΠ°ΠΊΡΠ΅
Google+
verydveri.ru
ΠΡΠ°Π²ΠΈΠ»ΡΠ½ΡΠΉ Π²ΡΠ±ΠΎΡ ΠΎΠΏΡΠΈΠΌΠ°Π»ΡΠ½ΠΎΠ³ΠΎ ΡΠ°Π·ΠΌΠ΅ΡΠ° ΠΌΠ΅ΠΆΠΊΠΎΠΌΠ½Π°ΡΠ½ΡΡ Π΄Π²Π΅ΡΠ΅ΠΉ Ρ ΠΊΠΎΡΠΎΠ±ΠΊΠΎΠΉ
Π ΠΎΡΡΠ΅ΠΌΠΎΠ½ΡΠΈΡΠΎΠ²Π°Π½Π½ΠΎΠΉ ΠΈΠ»ΠΈ ΡΠΎΠ»ΡΠΊΠΎ ΡΡΠΎ ΠΎΡΡΡΡΠΎΠ΅Π½Π½ΠΎΠΉ ΠΊΠ²Π°ΡΡΠΈΡΠ΅, ΠΈΠ»ΠΈ ΡΠ°ΡΡΠ½ΠΎΠΌ Π΄ΠΎΠΌΠ΅ Π½Π΅ ΠΎΠ±ΠΎΠΉΡΠΈΡΡ Π±Π΅Π· ΠΌΠ΅ΠΆΠΊΠΎΠΌΠ½Π°ΡΠ½ΡΡ Π΄Π²Π΅ΡΠ΅ΠΉ. ΠΡΠΈ Π²ΡΠ±ΠΎΡΠ΅ Π½ΡΠΆΠ½ΠΎ ΠΎΠΏΠΈΡΠ°ΡΡΡΡ Π½Π΅ ΡΠΎΠ»ΡΠΊΠΎ Π½Π° Π΄Π΅ΠΊΠΎΡΠ°ΡΠΈΠ²Π½ΡΠ΅, ΡΡΠ½ΠΊΡΠΈΠΎΠ½Π°Π»ΡΠ½ΡΠ΅ ΠΈ ΠΊΠΎΠ½ΡΡΡΡΠΊΡΠΈΠ²Π½ΡΠ΅ ΠΎΡΠΎΠ±Π΅Π½Π½ΠΎΡΡΠΈ, Π½ΠΎ ΠΈ Π½Π° ΡΠΎΠΎΡΠ²Π΅ΡΡΡΠ²ΡΡΡΠΈΠΉ ΡΠ°Π·ΠΌΠ΅Ρ. ΠΠ΅ΠΆΠΊΠΎΠΌΠ½Π°ΡΠ½ΡΠ΅ ΠΏΠΎΠ»ΠΎΡΠ½Π° Ρ ΠΊΠΎΡΠΎΠ±ΠΊΠΎΠΉ Π΄ΠΎΠ»ΠΆΠ½Ρ ΠΈΠΌΠ΅ΡΡ ΠΎΠΏΡΠΈΠΌΠ°Π»ΡΠ½ΡΠ΅ Π³Π°Π±Π°ΡΠΈΡΡ. ΠΡΠΎ ΠΏΠΎΠ·Π²ΠΎΠ»ΠΈΡ ΠΈΠ·Π±Π΅ΠΆΠ°ΡΡ ΡΡΡΠ΄Π½ΠΎΡΡΠ΅ΠΉ Ρ ΡΡΡΠ°Π½ΠΎΠ²ΠΊΠΎΠΉ ΠΈ ΡΠ±Π΅ΡΠ΅ΠΆΡΡ Π²Π°ΡΠΈ ΡΡΠ΅Π΄ΡΡΠ²Π°.
ΠΠΈΠ΄Ρ ΠΌΠ΅ΠΆΠΊΠΎΠΌΠ½Π°ΡΠ½ΡΡ Π΄Π²Π΅ΡΠ΅ΠΉ
ΠΠ΅ΠΆΠΊΠΎΠΌΠ½Π°ΡΠ½ΡΠ΅ ΠΈΠ·Π΄Π΅Π»ΠΈΡ Π±ΡΠ²Π°ΡΡ:
- ΡΠ°ΡΠΏΠ°ΡΠ½ΡΠ΅;
- ΡΠ°Π·Π΄Π²ΠΈΠΆΠ½ΡΠ΅;
- Π΄Π²Π΅ΡΠΈ-ΠΊΡΠΏΠ΅;
- ΠΏΠΎ ΠΏΡΠΈΠ½ΡΠΈΠΏΡ Β«Π³Π°ΡΠΌΠΎΡΠΊΠ°Β».
Π’Π°ΠΊΠΆΠ΅ ΠΏΠΎΠ»ΠΎΡΠ½Π° ΡΠ°Π·Π»ΠΈΡΠ°ΡΡΡΡ ΠΏΠΎ ΡΠΈΠΏΠ°ΠΌ:
- ΠΎΠ΄Π½ΠΎΡΡΠ²ΠΎΡΡΠ°ΡΡΠ΅;
- ΠΏΠΎΠ»ΡΡΠΎΡΠ½ΡΠ΅;
- Π΄Π²ΡΡΡΠ²ΠΎΡΡΠ°ΡΡΠ΅.
Π‘ΡΠ°Π½Π΄Π°ΡΡΡ ΠΌΠ΅ΠΆΠΊΠΎΠΌΠ½Π°ΡΠ½ΡΡ ΠΈΠ·Π΄Π΅Π»ΠΈΠΉ
Π ΠΎΡΠ½ΠΎΠ²Π½ΠΎΠΌ, Π² ΠΊΠ²Π°ΡΡΠΈΡΠ°Ρ
ΠΈ Π΄ΠΎΠΌΠ°Ρ
, ΠΊΠΎΡΠΎΡΡΠ΅ ΡΡΡΠΎΡΡΡΡ ΠΏΠΎ ΡΠΈΠΏΠΎΠ²ΡΠΌ ΠΏΡΠΎΠ΅ΠΊΡΠ°ΠΌ ΠΏΡΠΎΠ΅ΠΌΡ Π΄Π»Ρ ΠΊΠΎΡΠΎΠ±ΠΎΠΊ ΠΌΠ΅ΠΆΠΊΠΎΠΌΠ½Π°ΡΠ½ΡΡ
Π΄Π²Π΅ΡΠ΅ΠΉ ΠΈΠΌΠ΅ΡΡ ΡΡΠ°Π½Π΄Π°ΡΡΠ½ΡΠ΅ ΡΠ°Π·ΠΌΠ΅ΡΡ, ΠΎΠΏΡΠ΅Π΄Π΅Π»ΡΡΡΠΈΠ΅ΡΡ ΠΠΠ‘Π’ΠΎΠΌ 6629-28 ΠΈ ΠΠΠ‘Π’ΠΎΠΌ 19111-2001 Π½Π° Π²Π½ΡΡΡΠ΅Π½Π½ΠΈΠ΅ Π΄Π΅ΡΠ΅Π²ΡΠ½Π½ΡΠ΅ Π΄Π²Π΅ΡΠΈ Π΄Π»Ρ ΠΆΠΈΠ»ΡΡ
ΠΈ ΠΎΠ±ΡΠ΅ΡΡΠ²Π΅Π½Π½ΡΡ
Π·Π΄Π°Π½ΠΈΠΉ.
ΠΡΠΈ ΡΡΠ°Π½Π΄Π°ΡΡΡ ΠΏΡΠΎΠΏΠΈΡΠ°Π½Ρ Π΄Π»Ρ ΡΠΎΠ³ΠΎ, ΡΡΠΎΠ±Ρ ΠΏΠΎΠ΄ΠΎΠ±ΡΠ°ΡΡ Π½Π°ΠΈΠ±ΠΎΠ»Π΅Π΅ ΠΏΠΎΠ΄Ρ ΠΎΠ΄ΡΡΠΈΠ΅ ΠΏΠΎ ΡΠ°Π·ΠΌΠ΅ΡΠ°ΠΌ Π΄Π²Π΅ΡΠΈ ΠΊ ΡΡΡΠ΅ΡΡΠ²ΡΡΡΠΈΠΌ ΠΏΡΠΎΠ΅ΠΌΠ°ΠΌ.
ΠΠ°ΠΊ ΠΎΡΠ΅ΡΠ΅ΡΡΠ²Π΅Π½Π½ΡΠ΅, ΡΠ°ΠΊ ΠΈ Π·Π°ΡΡΠ±Π΅ΠΆΠ½ΡΠ΅ ΠΏΡΠΎΠΈΠ·Π²ΠΎΠ΄ΠΈΡΠ΅Π»ΠΈ ΡΠΎΠ±Π»ΡΠ΄Π°ΡΡ Π΄Π°Π½Π½ΡΠ΅ ΡΡΠ°Π½Π΄Π°ΡΡΡ:
- Π²ΡΡΠΎΡΠ° 2000 ΠΌΠΈΠ»Π»ΠΈΠΌΠ΅ΡΡΠΎΠ²;
- ΡΠΈΡΠΈΠ½Π° 600,700 ΠΈΠ»ΠΈ 800 ΠΌΠΈΠ»Π»ΠΈΠΌΠ΅ΡΡΠΎΠ².
Π¨ΠΈΡΠΈΠ½Π° Π·Π°Π²ΠΈΡΠΈΡ ΠΎΡ ΡΠΎΠ³ΠΎ, Π² ΠΊΠ°ΠΊΠΎΠΌ ΠΏΠΎΠΌΠ΅ΡΠ΅Π½ΠΈΠΈ Π΄ΠΎΠ»ΠΆΠ½Π° ΡΠ°ΡΠΏΠΎΠ»Π°Π³Π°ΡΡΡΡ ΠΌΠ΅ΠΆΠΊΠΎΠΌΠ½Π°ΡΠ½Π°Ρ ΠΊΠΎΠ½ΡΡΡΡΠΊΡΠΈΡ. ΠΠΎΡΡΠΎΠΌΡ ΡΡΡΠ΅ΡΡΠ²ΡΠ΅Ρ ΡΠ°ΠΌΠ°Ρ Π±ΠΎΠ»ΡΡΠ°Ρ ΡΠΈΡΠΈΠ½Π° ΠΌΠ΅ΠΆΠΊΠΎΠΌΠ½Π°ΡΠ½ΠΎΠΉ Π΄Π²Π΅ΡΠΈ, ΠΊΠΎΡΠΎΡΠ°Ρ ΡΠΎΡΡΠ°Π²Π»ΡΠ΅Ρ 900 ΠΌΠΈΠ»Π»ΠΈΠΌΠ΅ΡΡΠΎΠ². ΠΠ΄Π½Π°ΠΊΠΎ ΠΏΠΎΠ»ΠΎΡΠ½ΠΎ Ρ ΡΠ°ΠΊΠΈΠΌ ΡΠ°Π·ΠΌΠ΅ΡΠΎΠΌ Π½Π΅ ΡΠ°ΠΊ ΠΏΠΎΠΏΡΠ»ΡΡΠ½ΠΎ Π² ΠΌΠ°Π³Π°Π·ΠΈΠ½Π°Ρ
, ΠΏΠΎΡΠΎΠΌΡ ΡΡΠΎ Π΅Π³ΠΎ ΠΈΠ·Π³ΠΎΡΠΎΠ²Π»Π΅Π½ΠΈΠ΅ΠΌ Π² ΠΌΠ°ΡΡΠΎΠ²ΠΎΠΌ ΠΏΡΠΎΠΈΠ·Π²ΠΎΠ΄ΡΡΠ²Π΅ Π·Π°Π½ΠΈΠΌΠ°Π΅ΡΡΡ Π½Π΅ ΠΊΠ°ΠΆΠ΄Π°Ρ ΡΠΈΡΠΌΠ°. Π’Π°ΠΊ ΠΊΠ°ΠΊ ΡΠΎΠ²ΡΠ΅ΠΌΠ΅Π½Π½ΡΠ΅ ΠΏΠ»Π°Π½ΠΈΡΠΎΠ²ΠΊΠΈ ΠΌΠ½ΠΎΠ³ΠΎΡΡΠ°ΠΆΠ½ΡΡ
Π΄ΠΎΠΌΠΎΠ² Π½Π΅ ΠΏΠΎΠ΄ΡΠ°Π·ΡΠΌΠ΅Π²Π°ΡΡ Π½Π°Π»ΠΈΡΠΈΠ΅ ΡΠΎΠΎΡΠ²Π΅ΡΡΡΠ²ΡΡΡΠΈΡ
ΠΏΡΠΎΠ΅ΠΌΠΎΠ².
Π‘ ΡΠΎΡΠΊΠΈ Π·ΡΠ΅Π½ΠΈΡ Π²Π½Π΅ΡΠ½Π΅Π³ΠΎ Π²ΠΈΠ΄Π°, ΡΠ°ΠΊΠ°Ρ ΠΌΠ΅ΠΆΠΊΠΎΠΌΠ½Π°ΡΠ½Π°Ρ ΠΊΠΎΠ½ΡΡΡΡΠΊΡΠΈΡ Ρ ΠΊΠΎΡΠΎΠ±ΠΊΠΎΠΉ Π²ΡΠ³Π»ΡΠ΄ΠΈΡ ΠΏΡΠΎΡΡΠΎ ΠΎΠ³ΡΠΎΠΌΠ½ΠΎΠΉ. ΠΠΎΡΡΠΎΠΌΡ Π΅Π΅ ΡΠ»ΠΎΠΆΠ½ΠΎ ΡΡΡΠ°Π½ΠΎΠ²ΠΈΡΡ Π² Π»ΡΠ±ΠΎΠΌ ΠΏΠΎΠΌΠ΅ΡΠ΅Π½ΠΈΠΈ, ΠΏΠΎΡΠΊΠΎΠ»ΡΠΊΡ Π½Π΅ΠΎΠ±Ρ ΠΎΠ΄ΠΈΠΌΠΎ ΡΠΎΠ±Π»ΡΡΡΠΈ Π³Π°ΡΠΌΠΎΠ½ΠΈΡ Ρ ΠΏΡΠΎΡΠΈΠΌ ΠΈΠ½ΡΠ΅ΡΡΠ΅ΡΠΎΠΌ ΠΈ Π΄ΠΈΠ·Π°ΠΉΠ½ΠΎΠΌ. ΠΠ±ΡΡΠ½ΠΎ Π΄Π²Π΅ΡΠΈ Ρ ΡΠΈΡΠΈΠ½ΠΎΠΉ Π² 900 ΠΌΠΈΠ»Π»ΠΈΠΌΠ΅ΡΡΠΎΠ² ΡΡΡΠ°Π½Π°Π²Π»ΠΈΠ²Π°ΡΡ:
- Π² ΠΊΠ²Π°ΡΡΠΈΡΠ°Ρ ΡΡΠ°ΡΠΎΠΉ ΠΏΠ»Π°Π½ΠΈΡΠΎΠ²ΠΊΠΈ;
- Π² ΠΎΡΠΈΡΠ°Ρ .
Π Π°Π·ΠΌΠ΅ΡΡ ΠΌΠ΅ΠΆΠΊΠΎΠΌΠ½Π°ΡΠ½ΡΡ Π΄Π²Π΅ΡΠ΅ΠΉ Π΄Π»Ρ ΡΠ°Π·Π½ΡΡ ΠΏΠΎΠΌΠ΅ΡΠ΅Π½ΠΈΠΉ
Π Π±ΠΎΠ»ΡΡΠΈΠ½ΡΡΠ²Π΅ ΡΠ»ΡΡΠ°Π΅Π², Ρ ΠΎΠ·ΡΠ΅Π²Π° ΠΊΠ²Π°ΡΡΠΈΡ ΠΈΠ»ΠΈ Π΄ΠΎΠΌΠΎΠ² ΠΏΠΎΠ΄Π±ΠΈΡΠ°ΡΡ Π΄Π»Ρ Π²ΡΠ΅Ρ ΠΏΠΎΠΌΠ΅ΡΠ΅Π½ΠΈΠΉ ΠΎΠ΄ΠΈΠ½Π°ΠΊΠΎΠ²ΡΠ΅ ΠΏΠΎΠ»ΠΎΡΠ½Π°. ΠΠ΄Π½Π°ΠΊΠΎ, ΡΠ°Π·Π½ΡΡ ΡΠ°Π·ΠΌΠ΅ΡΠΎΠ².
ΠΡΠΊΠ»ΡΡΠ΅Π½ΠΈΠ΅ΠΌ, Π² ΡΡΠΎΠΌ ΡΠ»ΡΡΠ°Π΅, ΠΌΠΎΠΆΠ΅Ρ ΡΡΠ°ΡΡ ΠΏΠΎΠ»ΠΎΡΠ½ΠΎ Π² Π³ΠΎΡΡΠΈΠ½ΡΡ ΠΊΠΎΠΌΠ½Π°ΡΡ. ΠΠΎΡΠΎΠΌΡ ΡΡΠΎ ΡΡΠ° ΠΊΠΎΠ½ΡΡΡΡΠΊΡΠΈΡ Π½Π΅ΡΠ΅Ρ Π² ΡΠ΅Π±Π΅ ΡΡΠ½ΠΊΡΠΈΡ Π²ΠΈΠ·ΠΈΡΠ½ΠΎΠΉ ΠΊΠ°ΡΡΠΎΡΠΊΠΈ. Π ΡΠΎΠ²ΡΠ΅ΠΌΠ΅Π½Π½ΡΡ ΠΊΠ²Π°ΡΡΠΈΡΠ°Ρ , Π° ΠΎΡΠΎΠ±Π΅Π½Π½ΠΎ Π² ΡΠ»ΡΡΠ°Π΅ ΠΏΠ΅ΡΠ΅ΠΏΠ»Π°Π½ΠΈΡΠΎΠ²ΠΊΠΈ, ΠΌΠΎΠΆΠ½ΠΎ ΡΠ΄Π΅Π»Π°ΡΡ ΡΠΈΡΠΎΠΊΠΈΠΉ ΠΏΡΠΎΠ΅ΠΌ, ΠΎΠΊΠΎΠ»ΠΎ 1220 ΠΌΠΈΠ»Π»ΠΈΠΌΠ΅ΡΡΠΎΠ². Π’Π°ΠΊΠΎΠΉ ΠΏΡΠΎΠ΅ΠΌ ΠΏΠΎΠ·Π²ΠΎΠ»ΡΠ΅Ρ ΡΡΡΠ°Π½ΠΎΠ²ΠΈΡΡ ΡΡΠΈΠ»ΡΠ½ΡΠ΅ Π΄Π²ΡΡΡΠ²ΠΎΡΡΠ°ΡΡΠ΅ Π΄Π²Π΅ΡΠΈ Ρ ΡΠ°Π·ΠΌΠ΅ΡΠΎΠΌ 1190Ρ 1935 ΠΌΠΈΠ»Π»ΠΈΠΌΠ΅ΡΡΠΎΠ², Π³Π΄Π΅ ΡΠΈΡΠΈΠ½Π° ΠΎΠ΄Π½ΠΎΠΉ ΡΡΠ²ΠΎΡΠΊΠΈ 550 ΠΌΠΈΠ»Π»ΠΈΠΌΠ΅ΡΡΠΎΠ². Π’Π°ΠΊΠΈΠΌ ΠΎΠ±ΡΠ°Π·ΠΎΠΌ, ΠΏΠΎΠΌΠ΅ΡΠ΅Π½ΠΈΠ΅ ΠΏΡΠΈΠΎΠ±ΡΠ΅ΡΠ΅Ρ ΠΈΠ·ΡΡΠΊΠ°Π½Π½ΡΠΉ ΠΈ ΡΡΠΈΠ»ΡΠ½ΡΠΉ Π²ΠΈΠ΄.
ΠΠ²Π΅ΡΠ½ΡΠ΅ ΠΏΡΠΎΠ΅ΠΌΡ Π² ΠΊΡΡ ΠΎΠ½Π½ΠΎΠ΅ ΠΏΠΎΠΌΠ΅ΡΠ΅Π½ΠΈΠ΅ ΠΈΠΌΠ΅ΡΡ ΡΠ°Π·ΠΌΠ΅ΡΡ 780Ρ 2050 ΠΌΠΈΠ»Π»ΠΈΠΌΠ΅ΡΡΠΎΠ², ΡΡΠΎ ΠΏΠΎΠ·Π²ΠΎΠ»ΡΠ΅Ρ ΡΡΡΠ°Π½ΠΎΠ²ΠΈΡΡ ΡΡΠ°Π½Π΄Π°ΡΡΠ½ΡΠ΅ ΠΏΠΎΠ»ΠΎΡΠ½Π°. ΠΠ΄Π½Π°ΠΊΠΎ ΠΏΠ΅ΡΠ΅Π΄ ΡΡΡΠ°Π½ΠΎΠ²ΠΊΠΎΠΉ Π½Π΅ΠΎΠ±Ρ ΠΎΠ΄ΠΈΠΌΠΎ Π·Π°Π½Π΅ΡΡΠΈ Π²ΡΡ ΠΌΠ΅Π±Π΅Π»Ρ ΠΈ ΡΠ΅Ρ Π½ΠΈΠΊΡ Π² ΠΊΡΡ Π½Ρ. ΠΠΎΡΠΎΠΌΡ ΡΡΠΎ ΠΌΠΎΠΆΠ΅Ρ ΠΎΠΊΠ°Π·Π°ΡΡΡΡ, ΡΡΠΎ ΠΎΠ½Π° Π½Π΅ Π²Π»Π΅Π·Π°Π΅Ρ Π² ΠΏΡΠΎΠ΅ΠΌ. ΠΠΎΡΡΠΎΠΌΡ ΠΏΠΎΡΡΠ΅Π±ΡΠ΅ΡΡΡ ΡΠ°ΡΡΠΈΡΡΡΡ ΠΏΡΠΎΠ΅ΠΌ ΠΈ ΠΊΠ°ΠΊ ΡΠ»Π΅Π΄ΡΡΠ²ΠΈΠ΅, Π·Π°ΠΊΠ°Π·ΡΠ²Π°ΡΡ Π½Π΅ΡΡΠ°Π½Π΄Π°ΡΡΠ½ΡΡ ΠΊΠΎΠ½ΡΡΡΡΠΊΡΠΈΡ Π±ΠΎΠ»ΡΡΠ΅Π³ΠΎ ΡΠ°Π·ΠΌΠ΅ΡΠ°.
Π‘Π°Π½ΡΠ·Π»Ρ ΠΈΠΌΠ΅ΡΡ ΡΠ°ΠΌΡΠ΅ ΡΠ·ΠΊΠΈΠ΅ Π΄Π²Π΅ΡΠ½ΡΠ΅ ΠΏΡΠΎΠ΅ΠΌΡ, ΠΏΠΎΡΡΠΎΠΌΡ ΡΠ°Π·ΠΌΠ΅ΡΡ Ρ Π½ΠΈΡ :
- 500Ρ 1900 ΠΌΠΈΠ»Π»ΠΈΠΌΠ΅ΡΡΠΎΠ²;
- 550Ρ 1900 ΠΌΠΈΠ»Π»ΠΈΠΌΠ΅ΡΡΠΎΠ²;
- 650Ρ 1900 ΠΌΠΈΠ»Π»ΠΈΠΌΠ΅ΡΡΠΎΠ².
ΠΠ΄Π½ΠΈΠΌ ΠΈΠ· ΡΠ°ΠΌΡΡ ΡΠ°ΡΠΏΡΠΎΡΡΡΠ°Π½Π΅Π½Π½ΡΡ ΡΠ°Π·ΠΌΠ΅ΡΠΎΠ² ΠΌΠ΅ΠΆΠΊΠΎΠΌΠ½Π°ΡΠ½ΠΎΠΉ Π΄Π²Π΅ΡΠΈ Ρ ΠΊΠΎΡΠΎΠ±ΠΊΠΎΠΉ Π΄Π»Ρ ΡΠ°Π½ΡΠ·Π»Π° ΡΠ²Π»ΡΠ΅ΡΡΡ 550Ρ 1900 ΠΌΠΈΠ»Π»ΠΈΠΌΠ΅ΡΡΠΎΠ². ΠΠΎΡΡΠΎΠΌΡ Π½Π°ΠΉΡΠΈ Π΄Π°Π½Π½ΡΠ΅ ΠΈΠ·Π΄Π΅Π»ΠΈΡ Ρ Π»ΡΠ±ΠΎΠ³ΠΎ ΠΏΡΠΎΠΈΠ·Π²ΠΎΠ΄ΠΈΡΠ΅Π»Ρ Π½Π΅ ΡΠΎΡΡΠ°Π²ΠΈΡ ΡΡΡΠ΄Π°.
ΠΠ²Π°ΡΡΠΈΡΡ ΡΠΎΠ²ΡΠ΅ΠΌΠ΅Π½Π½ΠΎΠΉ ΠΏΠ»Π°Π½ΠΈΡΠΎΠ²ΠΊΠΈ ΠΏΡΠ΅Π΄ΡΡΠΌΠ°ΡΡΠΈΠ²Π°ΡΡ Π½Π°Π»ΠΈΡΠΈΠ΅ ΡΠ°ΡΡΠΈΡΠ΅Π½Π½ΡΡ ΠΏΡΠΎΠ΅ΠΌΠΎΠ² Π² ΡΠ°Π½ΡΠ·Π»Π΅. ΠΠ΄Π½Π°ΠΊΠΎ, Ρ ΠΎΠ·ΡΠ΅Π²Π° ΠΊΠ²Π°ΡΡΠΈΡ Π²ΡΠ΅ ΡΠ°Π²Π½ΠΎ ΡΡΡΠ°Π½Π°Π²Π»ΠΈΠ²Π°ΡΡ ΡΠ·ΠΊΠΈΠ΅ ΠΌΠ΅ΠΆΠΊΠΎΠΌΠ½Π°ΡΠ½ΡΠ΅ Π΄Π²Π΅ΡΠΈ Ρ ΠΊΠΎΡΠΎΠ±ΠΊΠΎΠΉ. ΠΡΠΎΡΡΠΎ ΠΏΡΠΈ ΡΡΡΠ°Π½ΠΎΠ²ΠΊΠ΅ ΠΈΡΠΏΠΎΠ»ΡΠ·ΡΡΡ ΡΠΏΠ΅ΡΠΈΠ°Π»ΡΠ½ΡΠ΅ Π΄ΠΎΠ±ΠΎΡΠ½ΡΠ΅ ΡΠ»Π΅ΠΌΠ΅Π½ΡΡ.
ΠΠΎΡΠΎΠ±ΠΊΠ° ΠΌΠ΅ΠΆΠΊΠΎΠΌΠ½Π°ΡΠ½ΠΎΠΉ ΠΊΠΎΠ½ΡΡΡΡΠΊΡΠΈΠΈ

ΠΠΎΡΠΎΠ±ΠΊΠ° ΠΌΠ΅ΠΆΠΊΠΎΠΌΠ½Π°ΡΠ½ΠΎΠΉ Π΄Π²Π΅ΡΠΈ β ΡΡΠΎ ΠΊΠΎΠ½ΡΡΡΡΠΊΡΠΈΡ ΠΈΠ· ΡΡΠ΅Ρ ΡΠ»Π΅ΠΌΠ΅Π½ΡΠΎΠ², ΡΠΎΠ±ΡΠ°Π½Π½Π°Ρ Π² Π²ΠΈΠ΄Π΅ Π±ΡΠΊΠ²Ρ Β«ΠΒ». Π Π°Π·ΠΌΠ΅Ρ ΠΊΠΎΡΠΎΠ±ΠΊΠΈ ΠΏΠΎΠ»Π½ΠΎΡΡΡΡ Π·Π°Π²ΠΈΡΠΈΡ ΠΎΡ ΡΠ°Π·ΠΌΠ΅ΡΠ° Π΄Π²Π΅ΡΠΈ. ΠΠΎ ΠΈ ΠΏΡΠΎΠ΅ΠΌ ΠΏΠΎ Π³Π°Π±Π°ΡΠΈΡΠ°ΠΌ Π½Π΅ Π΄ΠΎΠ»ΠΆΠ΅Π½ Π±ΡΡΡ ΠΌΠ΅Π½ΡΡΠ΅ ΠΈΠ»ΠΈ Π±ΠΎΠ»ΡΡΠ΅. ΠΡΡ ΠΊΠΎΠ½ΡΡΡΡΠΊΡΠΈΡ β ΠΌΠ΅ΠΆΠΊΠΎΠΌΠ½Π°ΡΠ½Π°Ρ Π΄Π²Π΅ΡΡ Ρ ΠΊΠΎΡΠΎΠ±ΠΊΠΎΠΉ β Π΄ΠΎΠ»ΠΆΠ½Π° Π»Π΅Π³ΠΊΠΎ Π² Π½Π΅Π³ΠΎ Π²ΠΏΠΈΡΡΠ²Π°ΡΡΡΡ. Π§ΡΠΎ ΠΊΠ°ΡΠ°Π΅ΡΡΡ ΡΠ°Π·ΠΌΠ΅ΡΠΎΠ², ΡΠΎ ΠΎΠ΄ΠΈΠ½ ΠΈΠ· ΠΏΠ°ΡΠ°ΠΌΠ΅ΡΡΠΎΠ², ΠΊΠΎΡΠΎΡΡΠ΅ ΠΏΠΎΠΌΠΎΠ³ΡΡ ΠΏΡΠΈ ΠΌΠΎΠ½ΡΠ°ΠΆΠ΅ β ΡΡΠΎ ΡΠΈΡΠΈΠ½Π° Π΄Π²Π΅ΡΠ½ΠΎΠΉ ΠΊΠΎΡΠΎΠ±ΠΊΠΈ. Π ΠΎΠ½Π° Π΄ΠΎΠ»ΠΆΠ½Π° ΠΈΠΌΠ΅ΡΡ ΡΠ°Π·ΠΌΠ΅Ρ Π΄Π²Π°Π΄ΡΠ°ΡΡ ΠΏΡΡΡ — ΡΡΠΈΠ΄ΡΠ°ΡΡ ΠΏΡΡΡ ΠΌΠΈΠ»Π»ΠΈΠΌΠ΅ΡΡΠΎΠ².
ΠΡΠ»ΠΈ ΠΆΠ΅ ΡΠ°Π·ΠΌΠ΅ΡΡ Π½Π΅ ΡΠΎΠΎΡΠ²Π΅ΡΡΡΠ²ΡΡΡ ΡΡΠΈΠΌ ΠΏΠ°ΡΠ°ΠΌΠ΅ΡΡΠ°ΠΌ, ΡΠΎ ΡΡΠ΅Π±ΡΠ΅ΡΡΡ ΡΡΠΆΠ°ΡΡ ΠΈΠ»ΠΈ ΡΠ°ΡΡΠΈΡΡΡΡ ΠΏΡΠΎΠ΅ΠΌ, ΡΡΠΎ Π²Π΅ΡΡΠΌΠ° ΡΠ²Π΅Π»ΠΈΡΠΈΠ²Π°Π΅Ρ ΡΡΠΎΠΈΠΌΠΎΡΡΡ ΡΠ΅ΠΌΠΎΠ½ΡΠ°. ΠΠΎΡΠΎΠΌΡ ΡΡΠΎ Π΄Π»Ρ ΡΡΠΆΠ΅Π½ΠΈΡ Π½Π΅ΠΎΠ±Ρ ΠΎΠ΄ΠΈΠΌΠΎ Π±ΡΠ΄Π΅Ρ Π·Π°Π΄Π΅Π»Π°ΡΡ ΡΠ°ΡΡΡ ΠΏΡΠΎΠ΅ΠΌΠ° ΠΈΠ»ΠΈ ΠΌΠΎΠ½ΡΠΈΡΠΎΠ²Π°ΡΡ ΠΊΠΎΠ½ΡΡΡΡΠΊΡΠΈΡ, ΠΈΡΠΏΠΎΠ»ΡΠ·ΡΡ Π΄ΠΎΠ±ΠΎΡΡ ΠΈ ΠΏΡΠΎΡΠΈΠ΅ ΠΌΠ°ΡΠ΅ΡΠΈΠ°Π»Ρ Π΄Π»Ρ ΡΠΎΠ³ΠΎ, ΡΡΠΎΠ±Ρ Π·Π°ΠΏΠΎΠ»Π½ΠΈΡΡ ΠΏΡΡΡΠΎΡΡ ΠΌΠ΅ΠΆΠ΄Ρ ΠΊΠΎΡΠΎΠ±ΠΊΠΎΠΉ ΠΈ ΡΡΠ΅Π½ΠΎΠΉ. Π ΡΠ²ΠΎΡ ΠΎΡΠ΅ΡΠ΅Π΄Ρ, ΡΠ°ΡΡΠΈΡΠ΅Π½ΠΈΠ΅ Π΄Π²Π΅ΡΠ½ΠΎΠ³ΠΎ ΠΏΡΠΎΠ΅ΠΌΠ° Π²Π»Π΅ΡΠ΅Ρ Π·Π° ΡΠΎΠ±ΠΎΠΉ Π΄ΠΎΠΏΠΎΠ»Π½ΠΈΡΠ΅Π»ΡΠ½ΡΠ΅ ΡΡΡΠΎΠΈΡΠ΅Π»ΡΠ½ΡΠ΅ ΡΠ°Π±ΠΎΡΡ.
Π Π½Π΅ΠΊΠΎΡΠΎΡΡΡ ΡΠ»ΡΡΠ°ΡΡ Π½Π΅ΠΎΠ±Ρ ΠΎΠ΄ΠΈΠΌΠΎ ΠΏΡΠΈΠΎΠ±ΡΠ΅ΡΠ°ΡΡ Π½Π΅ ΡΡΠ°Π½Π΄Π°ΡΡΠ½ΡΡ ΠΊΠΎΠ½ΡΡΡΡΠΊΡΠΈΡ, Π° ΠΏΠΎΠ΄ Π·Π°ΠΊΠ°Π· — ΡΡΠΎ ΡΠΆΠ΅ ΡΠΎΠ²ΡΠ΅ΠΌ Π΄ΡΡΠ³Π°Ρ ΡΠ΅Π½Π°. Π₯ΠΎΡΡ, Π΅ΡΠ»ΠΈ Π²ΡΠ±ΡΠ°ΡΡ Π½Π΅Π΄ΠΎΡΠΎΠ³ΠΎΠΉ ΠΌΠ°ΡΠ΅ΡΠΈΠ°Π», ΠΈΠ· ΠΊΠΎΡΠΎΡΠΎΠ³ΠΎ Π±ΡΠ΄Π΅Ρ ΠΈΠ·Π³ΠΎΡΠΎΠ²Π»Π΅Π½Π° ΠΏΡΠΎΠ΄ΡΠΊΡΠΈΡ, ΡΠΎ ΠΌΠΎΠΆΠ½ΠΎ Π·Π½Π°ΡΠΈΡΠ΅Π»ΡΠ½ΠΎ ΡΠ΄Π΅ΡΠ΅Π²ΠΈΡΡ ΠΏΡΠΎΡΠ΅ΡΡ. ΠΡΠΎΠΉ ΠΆΠ΅ ΡΡΠ°ΡΡΠΈ ΠΆΠ΄Π΅Ρ ΠΈ ΠΏΠΎΠΌΠ΅ΡΠ΅Π½ΠΈΠ΅ Ρ Π²ΡΡΠΎΠΊΠΈΠΌΠΈ ΠΏΠΎΡΠΎΠ»ΠΊΠ°ΠΌΠΈ, ΠΏΠΎΡΠΎΠΌΡ ΡΡΠΎ ΡΡΠ°Π½Π΄Π°ΡΡΠ½Π°Ρ ΠΊΠΎΡΠΎΠ±ΠΊΠ° Π½Π΅ Π±ΡΠ΄Π΅Ρ Π·Π΄Π΅ΡΡ ΡΠΌΠΎΡΡΠ΅ΡΡΡΡ ΠΎΡΠ³Π°Π½ΠΈΡΠ½ΠΎ. Π‘Π»Π΅Π΄ΠΎΠ²Π°ΡΠ΅Π»ΡΠ½ΠΎ, Π½Π΅ΠΎΠ±Ρ ΠΎΠ΄ΠΈΠΌΠΎ ΡΡΡΠ°Π½ΠΎΠ²ΠΈΡΡ Π±ΠΎΠ»Π΅Π΅ Π²ΡΡΠΎΠΊΠΈΠ΅ ΠΊΠΎΡΠΎΠ±ΠΊΠΈ ΠΈ ΠΏΠΎΠ»ΠΎΡΠ½Π°, Π° ΠΈΡ ΠΌΠΎΠΆΠ½ΠΎ ΡΠ΄Π΅Π»Π°ΡΡ ΡΠΎΠ»ΡΠΊΠΎ Π½Π° Π·Π°ΠΊΠ°Π·.
ΠΠ»Π°Π²Π½ΠΎΠ΅, ΡΡΠ΅ΡΡΡ, ΡΡΠΎ ΡΠ°Π·ΠΌΠ΅ΡΡ Π΄Π²Π΅ΡΠ½ΠΎΠΉ ΠΊΠΎΡΠΎΠ±ΠΊΠΈ, ΡΠΎ Π΅ΡΡΡ ΠΈ ΡΠΈΡΠΈΠ½Π° ΠΈ Π²ΡΡΠΎΡΠ° Π±ΡΠ»ΠΈ ΠΌΠ΅Π½ΡΡΠ΅ ΠΏΡΠΎΠ΅ΠΌΠ° ΠΏΡΠΈΠΌΠ΅ΡΠ½ΠΎ Π½Π° ΡΡΠΈ ΡΠ°Π½ΡΠΈΠΌΠ΅ΡΡΠ°.
ΠΠ°ΠΊ ΠΏΠΎΠ΄ΠΎΠ³Π½Π°ΡΡ ΠΏΡΠΎΠ΅ΠΌ ΠΏΠΎΠ΄ Π²ΡΠ±ΡΠ°Π½Π½ΡΡ ΠΌΠ΅ΠΆΠΊΠΎΠΌΠ½Π°ΡΠ½ΡΡ Π΄Π²Π΅ΡΡ?
ΠΡΠ²Π°Π΅Ρ ΠΈ ΡΠ°ΠΊ: Π²Ρ Π²ΡΠ±ΡΠ°Π»ΠΈ ΠΈ ΠΏΡΠΈΠΎΠ±ΡΠ΅Π»ΠΈ ΠΈΠ΄Π΅Π°Π»ΡΠ½ΡΡ Π΄Π»Ρ ΡΠ²ΠΎΠ΅Π³ΠΎ ΠΆΠΈΠ»ΠΈΡΠ° ΠΌΠ΅ΠΆΠΊΠΎΠΌΠ½Π°ΡΠ½ΡΡ ΠΊΠΎΠ½ΡΡΡΡΠΊΡΠΈΡ, Π½Π΅ ΠΏΠΎΠ·Π°Π±ΠΎΡΠΈΠ²ΡΠΈΡΡ ΠΎ ΡΠΎΠΌ, ΡΡΠΎ ΠΎΠ½Π° Π½Π΅ ΠΏΠΎΠ΄Ρ ΠΎΠ΄ΠΈΡ ΠΊ ΠΏΡΠΎΠ΅ΠΌΠ°ΠΌ. ΠΠ°ΠΊ ΡΠΆΠ΅ Π±ΡΠ»ΠΎ ΡΠΊΠ°Π·Π°Π½ΠΎ ΡΠ°Π½Π΅Π΅, ΠΌΠΎΠΆΠ½ΠΎ ΡΡΠ·ΠΈΡΡ ΠΈΠ»ΠΈ ΡΠ°ΡΡΠΈΡΠΈΡΡ ΠΏΡΠΎΠ΅ΠΌ. ΠΠ»Ρ ΡΡΠΎΠ³ΠΎ Π½Π΅ΠΎΠ±Ρ ΠΎΠ΄ΠΈΠΌΠΎ Π·Π½Π°ΡΡ:
- Π²ΡΡΠΎΡΡ ΠΈ ΡΠΈΡΠΈΠ½Ρ;
- ΡΠΈΡΠΈΠ½Ρ ΠΈ ΡΠΎΠ»ΡΠΈΠ½Ρ ΠΊΠΎΡΠΎΠ±ΠΊΠΈ;
- ΡΠΈΡΠΈΠ½Ρ Π½Π°Π»ΠΈΡΠ½ΠΈΠΊΠΎΠ² Π΄Π»Ρ ΠΎΠ±ΡΠ°ΠΌΠ»Π΅Π½ΠΈΡ;
- Π²ΡΡΠΎΡΡ ΠΏΠΎΡΠΎΠ³Π°, ΠΏΡΠΈ Π½Π΅ΠΎΠ±Ρ ΠΎΠ΄ΠΈΠΌΠΎΡΡΠΈ.
ΠΠΎΡΠΎΠ³ ΡΠ°ΡΠ΅ Π²ΡΠ΅Π³ΠΎ ΡΡΡΠ°Π½Π°Π²Π»ΠΈΠ²Π°ΡΡ Π²ΠΎΠ·Π»Π΅ Π²Ρ ΠΎΠ΄Π° Π΄Π»Ρ ΡΠΎΠ³ΠΎ, ΡΡΠΎΠ±Ρ ΡΠ΅ΠΏΠ»ΠΎ Π½Π΅ ΡΡ ΠΎΠ΄ΠΈΠ»ΠΎ. ΠΠΎΡΡΠΎΠΌΡ Π½Π°Π»ΠΈΡΠΈΠ΅ Π΅Π³ΠΎ Π² ΠΊΠΎΠ½ΡΡΡΡΠΊΡΠΈΠΈ ΠΌΠ΅ΠΆΠΊΠΎΠΌΠ½Π°ΡΠ½ΡΡ Π΄Π²Π΅ΡΠ΅ΠΉ Π½Π΅ΠΎΠ±ΡΠ·Π°ΡΠ΅Π»ΡΠ½ΠΎ. ΠΠΎ Π² ΡΠΎΠΌ ΡΠ»ΡΡΠ°Π΅, Π΅ΡΠ»ΠΈ ΠΎΠ½ Π±ΡΠ΄Π΅Ρ ΡΡΡΠ°Π½ΠΎΠ²Π»Π΅Π½, ΡΠΎ ΠΌΠ΅ΠΆΠ΄Ρ Π½ΠΈΠΌ ΠΈ Π΄Π²Π΅ΡΠ½ΡΠΌ ΠΏΠΎΠ»ΠΎΡΠ½ΠΎΠΌ Π΄ΠΎΠ»ΠΆΠ΅Π½ ΠΎΡΡΠ°ΡΡΡΡ Π·Π°Π·ΠΎΡ Π΄Π»Ρ Π²ΠΎΠ·Π΄ΡΡ ΠΎΠΎΠ±ΠΌΠ΅Π½Π° Π² 5-10 ΠΌΠΈΠ»Π»ΠΈΠΌΠ΅ΡΡΠΎΠ².
ΠΠ½Π΅ΡΠ½ΠΈΠΉ Π²ΠΈΠ΄ ΠΌΠ΅ΠΆΠΊΠΎΠΌΠ½Π°ΡΠ½ΠΎΠΉ ΠΏΡΠΎΠ΄ΡΠΊΡΠΈΠΈ Ρ ΠΊΠΎΡΠΎΠ±ΠΊΠΎΠΉ
ΠΠ΅ΠΆΠΊΠΎΠΌΠ½Π°ΡΠ½Π°Ρ Π΄Π²Π΅ΡΡ Π²ΡΠ΅Π³Π΄Π° Π½Π° Π²ΠΈΠ΄Ρ. ΠΡΠΎ ΠΏΠ΅ΡΠ²ΠΎΠ΅, ΡΡΠΎ Π²ΠΈΠ΄ΠΈΡ Π»ΡΠ±ΠΎΠΉ ΡΠ΅Π»ΠΎΠ²Π΅ΠΊ Π²Ρ ΠΎΠ΄ΡΡΠΈΠΉ Π² ΠΊΠΎΠΌΠ½Π°ΡΡ. Π‘Π»Π΅Π΄ΠΎΠ²Π°ΡΠ΅Π»ΡΠ½ΠΎ, ΠΏΡΠΈ ΠΏΠΎΠΊΡΠΏΠΊΠ΅ ΠΌΠ΅ΠΆΠΊΠΎΠΌΠ½Π°ΡΠ½ΠΎΠΉ ΠΏΡΠΎΠ΄ΡΠΊΡΠΈΠΈ Π½Π΅ΠΎΠ±Ρ ΠΎΠ΄ΠΈΠΌΠΎ ΠΎΠ±ΡΠ°ΡΠΈΡΡ Π²Π½ΠΈΠΌΠ°Π½ΠΈΠ΅ Π½Π΅ ΡΠΎΠ»ΡΠΊΠΎ Π½Π° ΡΠ°Π·ΠΌΠ΅ΡΡ, ΡΠΎΠΎΡΠ²Π΅ΡΡΡΠ²ΡΡΡΠΈΠ΅ Π΄Π²Π΅ΡΠ½ΡΠΌ ΠΏΡΠΎΠ΅ΠΌΠ°ΠΌ, Π½ΠΎ ΠΈ Π½Π°:
- ΠΌΠ°ΡΠ΅ΡΠΈΠ°Π», ΠΈΠ· ΠΊΠΎΡΠΎΡΠΎΠ³ΠΎ ΡΠ΄Π΅Π»Π°Π½Π° Π΄Π²Π΅ΡΡ;
- Π³Π°ΡΠΌΠΎΠ½ΠΈΡΠ½ΠΎΠ΅ ΡΠΎΡΠ΅ΡΠ°Π½ΠΈΠ΅ Ρ Π΄ΠΈΠ·Π°ΠΉΠ½ΠΎΠΌ ΠΏΠΎΠΌΠ΅ΡΠ΅Π½ΠΈΡ;
- Π΄Π΅ΠΊΠΎΡΠ°ΡΠΈΠ²Π½ΡΠ΅ ΠΎΡΠΎΠ±Π΅Π½Π½ΠΎΡΡΠΈ Π΄Π²Π΅ΡΠ½ΠΎΠΉ ΠΊΠΎΠ½ΡΡΡΡΠΊΡΠΈΠΈ.
Π§ΡΠΎ ΠΊΠ°ΡΠ°Π΅ΡΡΡ ΠΌΠ°ΡΠ΅ΡΠΈΠ°Π»Π°, ΡΠΎ ΠΎΠ΄Π½ΠΈΠΌ ΠΈΠ· ΡΠ°ΠΌΡΡ
ΠΏΠΎΠΏΡΠ»ΡΡΠ½ΡΡ
Π½Π° ΡΠ΅Π³ΠΎΠ΄Π½ΡΡΠ½ΠΈΠΉ Π΄Π΅Π½Ρ ΡΠ²Π»ΡΠ΅ΡΡΡ ΠΠΠ€. ΠΡΠΎ Π²Π΅ΡΡΠΌΠ° Π΄ΠΎΡΡΡΠΏΠ½ΡΠΉ Π² ΡΠΈΠ½Π°Π½ΡΠΎΠ²ΠΎΠΌ ΠΏΠ»Π°Π½Π΅ ΠΌΠ°ΡΠ΅ΡΠΈΠ°Π». ΠΠ΄Π½Π°ΠΊΠΎ, ΠΌΠ΅ΠΆΠΊΠΎΠΌΠ½Π°ΡΠ½ΡΠ΅ Π΄Π²Π΅ΡΠΈ Ρ ΠΊΠΎΡΠΎΠ±ΠΊΠΎΠΉ ΠΈΠ· ΠΠΠ€ Π½Π΅ ΠΌΠΎΠ³ΡΡ ΠΏΠΎΡ
Π²Π°ΡΡΠ°ΡΡΡΡ Π²ΡΡΠΎΠΊΠΈΠΌΠΈ ΠΌΠ΅Ρ
Π°Π½ΠΈΡΠ΅ΡΠΊΠΈΠΌΠΈ Ρ
Π°ΡΠ°ΠΊΡΠ΅ΡΠΈΡΡΠΈΠΊΠ°ΠΌΠΈ. ΠΠΎΡΡΠΎΠΌΡ ΠΌΠ΅ΡΡΠ° ΡΠΎΠ΅Π΄ΠΈΠ½Π΅Π½ΠΈΠΉ Π΄Π²Π΅ΡΠ½ΠΎΠΉ ΠΊΠΎΡΠΎΠ±ΠΊΠΈ ΡΠΎ ΡΡΠ΅Π½ΠΎΠΉ ΡΠ»Π΅Π΄ΡΠ΅Ρ ΡΠΏΡΠΎΡΠ½ΠΈΡΡ Ρ ΠΏΠΎΠΌΠΎΡΡΡ ΡΠΏΠ΅ΡΠΈΠ°Π»ΡΠ½ΡΡ
Π΄Π΅ΡΠ΅Π²ΡΠ½Π½ΡΡ
Π½Π°ΠΊΠ»Π°Π΄ΠΎΠΊ.
ΠΠ΅ΠΆΠΊΠΎΠΌΠ½Π°ΡΠ½Π°Ρ ΠΏΡΠΎΠ΄ΡΠΊΡΠΈΡ ΠΈΠ³ΡΠ°Π΅Ρ Π½Π΅ΠΌΠ°Π»ΠΎΠ²Π°ΠΆΠ½ΡΡ ΡΠΎΠ»Ρ Π² ΠΈΠ½ΡΠ΅ΡΡΠ΅ΡΠ΅ ΠΊΠΎΠΌΠ½Π°ΡΡ. ΠΠ½Π° ΠΌΠΎΠΆΠ΅Ρ Π»ΠΈΠ±ΠΎ ΡΠΊΡΠ°ΡΠΈΡΡ ΠΈ Π΄ΠΎΠΏΠΎΠ»Π½ΠΈΡΡ ΠΎΠ±ΡΠΈΠΉ Π²ΠΈΠ΄ ΠΈΠ½ΡΠ΅ΡΡΠ΅ΡΠ° ΠΈ Π΄ΠΈΠ·Π°ΠΉΠ½Π°, Π»ΠΈΠ±ΠΎ Π²ΡΠ΅ ΠΈΡΠΏΠΎΡΡΠΈΡΡ. ΠΠΎΡΡΠΎΠΌΡ Π²Π°ΠΆΠ½ΠΎ Π²ΡΠ±ΡΠ°ΡΡ Π΄Π²Π΅ΡΡ, ΠΊΠΎΡΠΎΡΠ°Ρ Π½Π΅ Π±ΡΠ΄Π΅Ρ ΠΎΡΠ²Π»Π΅ΠΊΠ°ΡΡ Π½Π° ΡΠ΅Π±Ρ Π²Π½ΠΈΠΌΠ°Π½ΠΈΠ΅. ΠΠΎ Π΅ΡΠ»ΠΈ Π·Π°Π΄ΡΠΌΠ°Π½ΠΎ ΡΠ΄Π΅Π»Π°ΡΡ ΠΌΠ΅ΠΆΠΊΠΎΠΌΠ½Π°ΡΠ½ΡΡ Π΄Π²Π΅ΡΡ ΠΊΠ»ΡΡΠ΅Π²ΡΠΌ ΡΠ»Π΅ΠΌΠ΅Π½ΡΠΎΠΌ Π² Π΄ΠΈΠ·Π°ΠΉΠ½Π΅, ΡΠΎ Π½Π΅ Π½ΡΠΆΠ½ΠΎ Π±ΠΎΡΡΡΡΡ ΡΡΠΊΠΈΡ ΠΏΠΎΠ΄ΡΠ°Ρ ΠΊΠΎΠ½ΡΡΠ°ΡΡΠ½ΡΡ ΠΎΡΡΠ΅Π½ΠΊΠΎΠ² ΠΈ ΡΠ²Π΅ΡΠΎΠ² Π΄Π²Π΅ΡΠΈ.
ΠΠ΅ΠΆΠΊΠΎΠΌΠ½Π°ΡΠ½ΡΠ΅ Π΄Π²Π΅ΡΠΈ ΡΠ°Π·Π»ΠΈΡΠ°ΡΡΡΡ ΠΏΠΎ Π΄ΠΈΠ·Π°ΠΉΠ½Ρ ΠΏΠΎΠ»ΠΎΡΠ΅Π½:
- Π³Π»ΡΡ ΠΈΠ΅ ΠΏΠΎΠ»ΠΎΡΠ½Π°;
- ΠΎΡΡΠ΅ΠΊΠ»Π΅Π½Π½ΡΠ΅ ΠΏΠΎΠ»ΠΎΡΠ½Π°;
- ΠΊΠ°ΡΠ°ΡΡΠΈΠ΅ΡΡ (ΠΌΠ°ΡΡΠ½ΠΈΠΊΠΎΠ²ΡΠ΅) ΠΎΡΡΠ΅ΠΊΠ»Π΅Π½Π½ΡΠ΅ ΠΏΠΎΠ»ΠΎΡΠ½Π°;
- ΡΠ°Π·Π΄Π²ΠΈΠΆΠ½ΡΠ΅ ΠΏΠΎΠ»ΠΎΡΠ½Π°.
ΠΠ΅ΠΆΠΊΠΎΠΌΠ½Π°ΡΠ½Π°Ρ Π΄Π²Π΅ΡΡ ΠΌΠΎΠΆΠ΅Ρ Π±ΡΡΡ ΡΠ°ΠΊΠΆΠ΅ ΠΈΠΌΠ΅ΡΡ Π΄Π΅ΠΊΠΎΡΠ°ΡΠΈΠ²Π½ΠΎΠ΅ ΡΠΊΡΠ°ΡΠ΅Π½ΠΈΠ΅. ΠΠ°ΠΊ ΠΏΡΠ°Π²ΠΈΠ»ΠΎ, ΡΡΠΎ:
- ΡΡΠ΅ΠΊΠ»ΡΠ½Π½ΡΠ΅ Π²ΡΡΠ°Π²ΠΊΠΈ;
- ΠΌΠΎΠ·Π°ΠΈΡΠ½ΡΠ΅ Π²ΡΡΠ°Π²ΠΊΠΈ;
- Π²ΡΡΠ΅Π·Π°Π½Π½ΡΠ΅ ΡΠ·ΠΎΡΡ;
- ΠΊΠΎΠ½ΡΡΠ°ΡΡΠ½ΠΎΠ΅ ΡΠ°Π·Π΄Π΅Π»Π΅Π½ΠΈΠ΅ ΡΠ²Π΅ΡΠΎΠ² Π½Π° Π΄Π²Π΅ΡΠ½ΠΎΠΌ ΠΏΠΎΠ»ΠΎΡΠ½Π΅.
ΠΡΠ±ΠΈΡΠ°Ρ Π΄Π»Ρ ΡΠ²ΠΎΠ΅ΠΉ ΠΊΠ²Π°ΡΡΠΈΡΡ ΠΈΠ»ΠΈ Π΄ΠΎΠΌΠ° Π½Π΅ΡΠΊΠΎΠ»ΡΠΊΠΎ Π΄Π²Π΅ΡΠ΅ΠΉ Π² ΡΠ°Π·Π½ΡΠ΅ ΠΏΠΎΠΌΠ΅ΡΠ΅Π½ΠΈΡ, ΡΠΎ Π»ΡΡΡΠ΅, Π΅ΡΠ»ΠΈ ΠΎΠ½ΠΈ Π±ΡΠ΄ΡΡ ΡΠΎΡΠ΅ΡΠ°ΡΡΡΡ ΡΠ²Π΅ΡΠΎΠΌ ΠΈΠ»ΠΈ Π΄Π΅ΠΊΠΎΡΠ°ΡΠΈΠ²Π½ΡΠΌ ΠΎΡΠΎΡΠΌΠ»Π΅Π½ΠΈΠ΅ΠΌ. Π’ΠΎΠ³Π΄Π° ΠΌΠ΅ΠΆΠΊΠΎΠΌΠ½Π°ΡΠ½Π°Ρ Π΄Π²Π΅ΡΡ Π±ΡΠ΄Π΅Ρ Π»ΠΎΠ³ΠΈΡΠ½ΠΎ Π·Π°Π²Π΅ΡΡΠ°ΡΡ ΠΎΠ±ΡΠ°Π· Π΄ΠΈΠ·Π°ΠΉΠ½Π° ΠΏΠΎΠΌΠ΅ΡΠ΅Π½ΠΈΡ, ΠΈ ΠΏΡΠΈΠ΄Π°Π²Π°ΡΡ Π΅ΠΌΡ ΡΡΠΈΠ»Ρ.
Π£ΡΡΠ°Π½ΠΎΠ²ΠΊΠ° ΠΌΠ΅ΠΆΠΊΠΎΠΌΠ½Π°ΡΠ½ΠΎΠΉ Π΄Π²Π΅ΡΠΈ Ρ ΠΊΠΎΡΠΎΠ±ΠΊΠΎΠΉ
ΠΠ°ΠΊ ΡΠΎΠ»ΡΠΊΠΎ ΠΏΠΎΠ΄ΠΎΠ±ΡΠ°Π½ ΠΏΡΠ°Π²ΠΈΠ»ΡΠ½ΡΠΉ ΡΠ°Π·ΠΌΠ΅Ρ Π΄Π²Π΅ΡΠ½ΠΎΠΉ ΠΊΠΎΡΠΎΠ±ΠΊΠΈ ΠΌΠ΅ΠΆΠΊΠΎΠΌΠ½Π°ΡΠ½ΠΎΠ³ΠΎ ΠΏΠΎΠ»ΠΎΡΠ½Π°, ΡΠΎ ΠΌΠΎΠΆΠ½ΠΎ ΠΏΡΠΈΡΡΡΠΏΠ°ΡΡ ΠΊ Π΅Π³ΠΎ ΡΡΡΠ°Π½ΠΎΠ²ΠΊΠ΅ Π² ΠΏΡΠΎΠ΅ΠΌ. ΠΡΠ»ΠΈ ΡΠΈΠ½Π°Π½ΡΡ ΠΏΠΎΠ·Π²ΠΎΠ»ΡΡΡ, ΡΠΎ Π»ΡΡΡΠ΅ ΠΎΠ±ΡΠ°ΡΠΈΡΡΡΡ Π·Π° ΠΏΠΎΠΌΠΎΡΡΡ ΠΊ ΠΏΡΠΎΡΠ΅ΡΡΠΈΠΎΠ½Π°Π»Π°ΠΌ. ΠΡΠ»ΠΈ ΠΆΠ΅ Ρ ΠΎΡΠ΅ΡΡΡ ΡΡΠΊΠΎΠ½ΠΎΠΌΠΈΡΡ, ΡΠΎ ΠΌΠΎΠΆΠ½ΠΎ Π·Π°Π½ΡΡΡΡΡ ΠΌΠΎΠ½ΡΠ°ΠΆΠΎΠΌ ΡΠ°ΠΌΠΎΡΡΠΎΡΡΠ΅Π»ΡΠ½ΠΎ, ΠΊ ΡΠΎΠΌΡ ΠΆΠ΅ β ΡΡΠΎ Π½Π΅ ΠΎΡΠ΅Π½Ρ ΡΠ»ΠΎΠΆΠ½Π°Ρ ΡΠ°Π±ΠΎΡΠ°.
Π‘Π°ΠΌΡΠΌ ΠΏΡΠΎΡΡΡΠΌ Π²Π°ΡΠΈΠ°Π½ΡΠΎΠΌ Π΄Π»Ρ ΡΡΡΠ°Π½ΠΎΠ²ΠΊΠΈ ΡΠ²Π»ΡΡΡΡΡ ΠΌΠ΅ΠΆΠΊΠΎΠΌΠ½Π°ΡΠ½ΡΠ΅ Π΄Π²Π΅ΡΠΈ Ρ ΠΊΠΎΡΠΎΠ±ΠΊΠΎΠΉ, ΠΊΠΎΡΠΎΡΡΠ΅ Π½Π΅ ΡΡΠ΅Π±ΡΡΡ ΡΠ±ΠΎΡΠΊΠΈ. Π’Π°ΠΊΠΈΠ΅ Π΄Π²Π΅ΡΠΈ Π΄ΠΎΡΡΠ°Π²Π»ΡΡΡΡΡ Π² ΠΊΠΎΡΠΎΠ±ΠΊΠ΅. ΠΡ
ΡΡΠ΅Π±ΡΠ΅ΡΡΡ ΠΏΡΠΎΡΡΠΎ Π·Π°ΠΊΡΠ΅ΠΏΠΈΡΡ Π² ΠΏΡΠΎΠ΅ΠΌ, ΠΈΠ½ΠΎΠ³Π΄Π° Π½ΡΠΆΠ½ΠΎ ΡΠ°ΠΊΠΆΠ΅ ΡΠ°ΠΌΠΎΡΡΠΎΡΡΠ΅Π»ΡΠ½ΠΎ Π·Π°ΠΊΡΠ΅ΠΏΠΈΡΡ Π½Π΅ΠΎΠ±Ρ
ΠΎΠ΄ΠΈΠΌΡΡ ΡΡΡΠ½ΠΈΡΡΡΡ (Π΄Π²Π΅ΡΠ½ΡΠ΅ ΡΡΡΠΊΠΈ, Π·Π°ΠΌΠΊΠΈ) ΠΈ Π½Π°Π»ΠΈΡΠ½ΠΈΠΊΠΈ. Π’Π°ΠΊΠΈΠ΅ Π΄Π²Π΅ΡΠΈ Π·Π½Π°ΡΠΈΡΠ΅Π»ΡΠ½ΠΎ ΡΠΊΠΎΠ½ΠΎΠΌΡΡ Π²ΡΠ΅ΠΌΡ ΠΈ ΡΠΈΠ»Ρ, Π½ΠΎ ΡΡΠΎΡΡ ΠΎΠ½ΠΈ ΠΏΠΎΠ΄ΠΎΡΠΎΠΆΠ΅.
ΠΡΠ΅ ΠΎΠ΄ΠΈΠ½ Π²Π°ΡΠΈΠ°Π½Ρ ΠΎΡΠ½ΠΎΡΠΈΡΠ΅Π»ΡΠ½ΠΎ ΠΏΡΠΎΡΡΠΎΠ³ΠΎ ΠΌΠΎΠ½ΡΠ°ΠΆΠ° β ΡΡΠΎ ΠΊΠΎΠ³Π΄Π° Π΄Π²Π΅ΡΠ½Π°Ρ ΠΊΠΎΡΠΎΠ±ΠΊΠ° Π½Π΅ ΡΠΎΠ±ΡΠ°Π½Π°, Π½ΠΎ Π²ΡΠ΅ ΡΠ°ΡΡΠΈ ΠΈΠΌΠ΅ΡΡ Π½Π΅ΠΎΠ±Ρ ΠΎΠ΄ΠΈΠΌΡΠ΅ ΡΠ°Π·ΠΌΠ΅ΡΡ. Π ΡΠ°ΠΊΠΎΠΌ ΡΠ»ΡΡΠ°Π΅ Π΄Π²Π΅ΡΠ½ΡΡ ΠΊΠΎΡΠΎΠ±ΠΊΡ ΡΠ½Π°ΡΠ°Π»Π° Π½ΡΠΆΠ½ΠΎ ΡΠΎΠ±ΡΠ°ΡΡ Π½Π° ΠΏΠΎΠ»Ρ, Π·Π°ΡΠ΅ΠΌ Π²ΡΡΠ°Π²ΠΈΡΡ Π΅Π΅ Π² Π΄Π²Π΅ΡΠ½ΠΎΠΉ ΠΏΡΠΎΠ΅ΠΌ ΠΈ ΠΏΡΠΈΠΊΡΠ΅ΠΏΠΈΡΡ ΠΊ Π½Π΅ΠΉ ΠΌΠ΅ΠΆΠΊΠΎΠΌΠ½Π°ΡΠ½ΡΡ Π΄Π²Π΅ΡΡ Π½Π° ΠΏΠ΅ΡΠ»ΠΈ. ΠΠ΅ΠΎΠ±Ρ ΠΎΠ΄ΠΈΠΌΡΡ ΡΡΡΠ½ΠΈΡΡΡΡ ΠΈ Π½Π°Π»ΠΈΡΠ½ΠΈΠΊΠΈ ΡΠ°ΠΊΠΆΠ΅ Π½ΡΠΆΠ½ΠΎ Π±ΡΠ΄Π΅Ρ ΡΡΡΠ°Π½Π°Π²Π»ΠΈΠ²Π°ΡΡ ΡΠ°ΠΌΠΎΡΡΠΎΡΡΠ΅Π»ΡΠ½ΠΎ, Π½ΠΎ ΠΏΠΎΡΠ»Π΅ ΡΠΎΠ³ΠΎ, ΠΊΠ°ΠΊ Π΄Π²Π΅ΡΡ Π²ΡΡΠ°Π½Π΅Ρ Π½Π° ΠΌΠ΅ΡΡΠΎ.
Π Π½Π°ΠΏΠΎΡΠ»Π΅Π΄ΠΎΠΊ, ΠΎΠ΄ΠΈΠ½ ΠΈΠ· ΡΠ°ΠΌΡΡ ΡΠ»ΠΎΠΆΠ½ΡΡ Π²Π°ΡΠΈΠ°Π½ΡΠΎΠ² β ΡΡΠΎ ΡΠ±ΠΎΡΠΊΠ° Π΄Π²Π΅ΡΠ½ΠΎΠΉ ΠΊΠΎΡΠΎΠ±ΠΊΠΈ ΠΈΠ· ΠΊΠΎΠΌΠΏΠ»Π΅ΠΊΡΡΡΡΠΈΡ , ΠΊΠΎΡΠΎΡΡΠ΅ Π½Π΅ΠΎΠ±Ρ ΠΎΠ΄ΠΈΠΌΠΎ ΠΏΠΎΠ΄Π³ΠΎΡΠΎΠ²ΠΈΡΡ. ΠΠ΅ΠΆΠΊΠΎΠΌΠ½Π°ΡΠ½ΡΠ΅ Π΄Π²Π΅ΡΠΈ Ρ ΠΊΠΎΡΠΎΠ±ΠΊΠΎΠΉ ΡΠ°ΠΊΠΎΠ³ΠΎ Π²Π°ΡΠΈΠ°Π½ΡΠ° ΠΎΠ΄Π½ΠΈ ΠΈΠ· ΡΠ°ΠΌΡΡ Π΄Π΅ΡΠ΅Π²ΡΡ . ΠΠΎΡΠΎΠΌΡ ΡΡΠΎ Π΄Π²Π΅ΡΠ½ΡΡ ΠΊΠΎΡΠΎΠ±ΠΊΡ Π½ΡΠΆΠ½ΠΎ ΡΠ΄Π΅Π»Π°ΡΡ ΠΏΡΠ°Π²ΠΈΠ»ΡΠ½ΠΎΠ³ΠΎ ΡΠ°Π·ΠΌΠ΅ΡΠ°, ΡΠΎ Π΅ΡΡΡ ΠΎΡΠΏΠΈΠ»ΠΈΡΡ Π½Π΅ΠΎΠ±Ρ ΠΎΠ΄ΠΈΠΌΠΎΠΉ Π΄Π»ΠΈΠ½Ρ ΡΠ»Π΅ΠΌΠ΅Π½ΡΡ. ΠΠ°ΡΠ΅ΠΌ ΡΠΎΠ±ΡΠ°ΡΡ ΠΊΠΎΡΠΎΠ±ΠΊΡ, ΡΡΡΠ°Π½ΠΎΠ²ΠΈΡΡ Π΅Π΅ Π² ΠΏΡΠΎΠ΅ΠΌ, ΠΏΠΎΠ²Π΅ΡΠΈΡΡ Π΄Π²Π΅ΡΡ Π½Π° ΠΏΠ΅ΡΠ»ΠΈ, ΡΡΡΠ°Π½ΠΎΠ²ΠΈΡΡ Π½Π°Π»ΠΈΡΠ½ΠΈΠΊΠΈ ΠΈ ΡΡΡΠ½ΠΈΡΡΡΡ. ΠΠ° ΡΠ±ΠΎΡΠΊΡ ΡΡΠΎΠΉ ΠΊΠΎΠ½ΡΡΡΡΠΊΡΠΈΠΈ ΡΠΉΠ΄Π΅Ρ Π½Π΅ΠΌΠ°Π»ΠΎ Π²ΡΠ΅ΠΌΠ΅Π½ΠΈ.
ΠΠ»Ρ ΠΎΠ±Π΅ΡΠΏΠ΅ΡΠ΅Π½ΠΈΡ Π½Π°ΠΈΠ»ΡΡΡΠ΅Π³ΠΎ ΠΌΠΎΠ½ΡΠ°ΠΆΠ° Π²ΡΠ΅Ρ ΡΠΈΠΏΠΎΠ² ΠΊΠΎΠ½ΡΡΡΡΠΊΡΠΈΠΉ Π½Π΅ΠΎΠ±Ρ ΠΎΠ΄ΠΈΠΌΠΎ ΡΡΠΈΡΡΠ²Π°ΡΡ, ΡΡΠΎΠ±Ρ ΡΠ°Π·ΠΌΠ΅Ρ Π΄Π²Π΅ΡΠ½ΠΎΠΉ ΠΊΠΎΡΠΎΠ±ΠΊΠΈ Π±ΡΠ» ΠΌΠ΅Π½ΡΡΠ΅ ΠΏΡΠΎΠ΅ΠΌΠ° ΡΠΎ Π²ΡΠ΅Ρ ΡΡΠΎΡΠΎΠ½ Π½Π° Π΄Π΅ΡΡΡΡ ΠΈΠ»ΠΈ Π΄Π²Π°Π΄ΡΠ°ΡΡ ΠΌΠΈΠ»Π»ΠΈΠΌΠ΅ΡΡΠΎΠ². Π€ΠΈΠΊΡΠΈΡΡΠ΅ΡΡΡ Π»ΡΠ±Π°Ρ ΠΊΠΎΡΠΎΠ±ΠΊΠ° Π² ΠΏΡΠΎΠ΅ΠΌΠ΅ Ρ ΠΏΠΎΠΌΠΎΡΡΡ ΠΊΠ»ΠΈΠ½ΡΡΠΊΠΎΠ², Π° ΠΏΠΎΡΠΎΠΌ Π·Π°ΠΊΡΠ΅ΠΏΠ»ΡΠ΅ΡΡΡ. ΠΡΠΎΡΡΡΠ°Π½ΡΡΠ²ΠΎ ΠΌΠ΅ΠΆΠ΄Ρ ΡΡΠ΅Π½ΠΊΠ°ΠΌΠΈ ΠΏΡΠΎΠ΅ΠΌΠ° ΠΈ Π²Π½Π΅ΡΠ½ΠΈΡ ΡΡΠΎΡΠΎΠ½ Π΄Π²Π΅ΡΠ½ΠΎΠΉ ΠΊΠΎΡΠΎΠ±ΠΊΠΈ Π½Π΅ΠΎΠ±Ρ ΠΎΠ΄ΠΈΠΌΠΎ Π·Π°ΠΏΠΎΠ»Π½ΠΈΡΡ ΠΌΠΎΠ½ΡΠ°ΠΆΠ½ΠΎΠΉ ΠΏΠ΅Π½ΠΎΠΉ. ΠΠ°ΠΊ ΡΠΎΠ»ΡΠΊΠΎ ΡΡΠ° ΠΏΡΠΎΡΠ΅Π΄ΡΡΠ° Π·Π°Π²Π΅ΡΡΠ΅Π½Π° ΠΌΠΎΠΆΠ½ΠΎ ΡΡΡΠ°Π½ΠΎΠ²ΠΈΡΡ Π½Π°Π»ΠΈΡΠ½ΠΈΠΊΠΈ, ΠΊΠΎΡΠΎΡΡΠ΅ ΡΠΊΡΠΎΡΡ ΠΌΠ΅ΡΡΠ° ΡΠΎΠ΅Π΄ΠΈΠ½Π΅Π½ΠΈΠΉ ΠΊΠΎΡΠΎΠ±ΠΊΠΈ Ρ ΠΏΡΠΎΠ΅ΠΌΠΎΠΌ.
vhod.guru
ΠΠ²Π΅ΡΠ½Π°Ρ ΠΊΠΎΡΠΎΠ±ΠΊΠ°: ΡΠ°Π·ΠΌΠ΅ΡΡ ΡΠΈΠΏΠΎΠ²ΡΠ΅ ΠΈ Π½Π΅ΡΡΠ°Π½Π΄Π°ΡΡΠ½ΡΠ΅
ΠΡΡΠΎΡΠ°, ΡΠΈΡΠΈΠ½Π° ΠΈ ΡΠΎΠ»ΡΠΈΠ½Π° Π΄Π²Π΅ΡΠ½ΠΎΠ³ΠΎ ΠΏΡΠΎΠ΅ΠΌΠ° β ΡΡΠ°Π½Π΄Π°ΡΡΠ½ΡΠ΅ Π΅Π³ΠΎ ΡΠ°Π·ΠΌΠ΅ΡΡ β ΡΠ΅Π³Π»Π°ΠΌΠ΅Π½ΡΠΈΡΠΎΠ²Π°Π½Ρ Π² Π‘ΠΠΈΠ, ΠΈ ΠΌΠΎΠ³ΡΡ ΡΠ°Π·Π»ΠΈΡΠ°ΡΡΡΡ Π² Π·Π°Π²ΠΈΡΠΈΠΌΠΎΡΡΠΈ ΠΎΡ ΠΌΠ°ΡΠ΅ΡΠΈΠ°Π»ΠΎΠ², ΠΈΠ· ΠΊΠΎΡΠΎΡΡΡ ΠΈΠ·Π³ΠΎΡΠΎΠ²Π»Π΅Π½Ρ ΡΡΠ΅Π½Ρ. Π’Π°ΠΊΠΆΠ΅ ΡΠΎΠ»ΡΠΈΠ½Π° Π΄Π²Π΅ΡΠ½ΠΎΠΉ ΠΊΠΎΡΠΎΠ±ΠΊΠΈ Π·Π°Π²ΠΈΡΠΈΡ ΠΈ ΠΎΡ ΠΌΠ°ΡΠ΅ΡΠΈΠ°Π»Π° ΡΠ°ΠΌΠΈΡ Π΄Π²Π΅ΡΠ΅ΠΉ β ΠΌΠ΅ΡΠ°Π»Π»ΠΈΡΠ΅ΡΠΊΠΈΠ΅ ΠΎΠ½ΠΈ ΠΈΠ»ΠΈ Π΄Π΅ΡΠ΅Π²ΡΠ½Π½ΡΡ . Π Π΄ΠΎΠΌΠ°Ρ ΡΡΠ°ΡΠΎΠ³ΠΎ ΡΠΎΠ½Π΄Π° ΠΈ Π½ΠΎΠ²ΠΎΡΡΡΠΎΠΉΠΊΠ°Ρ ΡΡΠΈ ΡΠ°Π·ΠΌΠ΅ΡΡ ΠΌΠΎΠ³ΡΡ ΡΡΡΠ΅ΡΡΠ²Π΅Π½Π½ΠΎ ΠΎΡΠ»ΠΈΡΠ°ΡΡΡΡ ΡΠ°ΠΌΠΈ ΠΏΠΎ ΡΠ΅Π±Π΅, Π° Π±ΡΠ²Π°Π΅Ρ ΠΈ ΡΠ°ΠΊ, ΡΡΠΎ ΡΠ°ΠΌΠΈ ΠΆΠΈΠ»ΡΡΡ ΡΠ΅ΡΠ°ΡΡ ΡΠ΄Π΅Π»Π°ΡΡ ΡΠ΅ΠΌΠΎΠ½Ρ ΠΈ ΡΡΡΠ°Π½ΠΎΠ²ΠΈΡΡ Π½Π΅ΡΡΠ°Π½Π΄Π°ΡΡΠ½ΡΠ΅ Π΄Π²Π΅ΡΠΈ.

ΠΠ°ΠΊΠΎΠ²Ρ ΡΡΠ°Π½Π΄Π°ΡΡΡ
ΠΠ° ΠΎΡΠ½ΠΎΠ²Π΅ ΠΏΠ°ΡΠ°ΠΌΠ΅ΡΡΠΎΠ² ΡΡΠ΅Π΄Π½Π΅ΡΡΠ°ΡΠΈΡΡΠΈΡΠ΅ΡΠΊΠΎΠ³ΠΎ ΡΠ΅Π»ΠΎΠ²Π΅ΠΊΠ°, ΡΠ°Π·ΡΠ°Π±ΠΎΡΠ°Π½Ρ ΡΡΠ°Π½Π΄Π°ΡΡΠ½ΡΠ΅ ΠΏΠ°ΡΠ°ΠΌΠ΅ΡΡΡ Π½Π° Π²Ρ ΠΎΠ΄Π½ΡΠ΅ ΠΈ ΠΌΠ΅ΠΆΠΊΠΎΠΌΠ½Π°ΡΠ½ΡΠ΅ Π΄Π²Π΅ΡΠΈ, ΡΡΠΎΠ±Ρ ΠΈΡΠΏΠΎΠ»ΡΠ·ΠΎΠ²Π°Π½ΠΈΠ΅ ΠΈΡ Π±ΡΠ»ΠΎ ΠΊΠΎΠΌΡΠΎΡΡΠ½ΠΎ ΠΈ Π½Π΅ ΠΏΡΠ΅Π΄ΡΡΠ°Π²Π»ΡΠ»ΠΎ Π½ΠΈΠΊΠ°ΠΊΠΈΡ ΡΡΡΠ΄Π½ΠΎΡΡΠ΅ΠΉ Π² ΠΏΠ΅ΡΠ΅Π΄Π²ΠΈΠΆΠ΅Π½ΠΈΠΈ.
ΠΡΠΈ ΡΡΠΎΠΌ Π΄ΠΎΠ»ΠΆΠ½Ρ ΡΠΎΠ±Π»ΡΠ΄Π°ΡΡΡΡ Π΄ΠΎΠΏΡΡΡΠΈΠΌΡΠ΅ ΡΠ°ΡΡ ΠΎΠΆΠ΄Π΅Π½ΠΈΡ Π² ΠΏΠ°ΡΠ°ΠΌΠ΅ΡΡΠ°Ρ ΡΡΠ΅Π½, Π²Π΅Π΄Ρ ΡΠ°Π·ΠΌΠ΅ΡΡ Π½Π° Π²Ρ ΠΎΠ΄Π½ΡΠ΅ ΠΈ ΠΌΠ΅ΠΆΠΊΠΎΠΌΠ½Π°ΡΠ½ΡΠ΅ ΠΊΠΎΠ½ΡΡΡΡΠΊΡΠΈΠΈ ΡΠ°Π·Π»ΠΈΡΠ°ΡΡΡΡ.
Π‘ΡΠ°Π½Π΄Π°ΡΡΠ½ΡΠΌΠΈ ΠΏΠ°ΡΠ°ΠΌΠ΅ΡΡΠ°ΠΌΠΈ ΡΠ²Π»ΡΡΡΡΡ:
- ΠΡΡΠΎΡΠ° Π΄ΠΎΠ»ΠΆΠ½Π° Π±ΡΡΡ Π² ΠΏΠ΅ΡΠ΅Π΄Π΅Π»Π°Ρ 2 ΠΌΠ΅ΡΡΠΎΠ². ΠΠ΅ΡΠ°Π»Π»ΠΈΡΠ΅ΡΠΊΠΈΠ΅ ΡΡΠΎ Π΄Π²Π΅ΡΠΈ ΠΈΠ»ΠΈ Π½Π΅Ρ β Π½Π΅Π²Π°ΠΆΠ½ΠΎ: ΡΠ°Π·ΠΌΠ΅Ρ Π²Π·ΡΡ ΠΈΠ· ΡΡΠ°Π½Π΄Π°ΡΡΠ½ΠΎΠ³ΠΎ ΡΠΎΡΡΠ° ΡΠ΅Π»ΠΎΠ²Π΅ΠΊΠ° ΠΈΠ· ΡΠ΅Ρ ΡΠΎΠΎΠ±ΡΠ°ΠΆΠ΅Π½ΠΈΠΉ, ΡΡΠΎ ΠΎΠ½ Π΄ΠΎΠ»ΠΆΠ΅Π½ ΡΠ²ΠΎΠ±ΠΎΠ΄Π½ΠΎ ΠΏΠΎΠ΄ Π½Π΅ΠΉ ΠΏΡΠΎΡ ΠΎΠ΄ΠΈΡΡ. ΠΡΠ΅ ΠΎΠ΄Π½Π° ΠΏΡΠΈΡΠΈΠ½Π° ΡΡΡΠ°Π½ΠΎΠ²ΠΊΠΈ ΡΠ°ΠΊΠΎΠ³ΠΎ ΡΡΠ°Π½Π΄Π°ΡΡΠ° β ΡΡΠΎ Π²ΡΡΠΎΡΠ° ΠΏΠΎΡΠΎΠ»ΠΊΠΎΠ².
- Π¨ΠΈΡΠΈΠ½Π° Π²Ρ ΠΎΠ΄Π½ΠΎΠΉ ΠΈ ΠΌΠ΅ΠΆΠΊΠΎΠΌΠ½Π°ΡΠ½ΡΡ Π΄Π²Π΅ΡΠ΅ΠΉ ΠΈΠΌΠ΅Π΅Ρ ΡΠ°Π·Π»ΠΈΡΠ½ΡΠ΅ ΠΏΠ°ΡΠ°ΠΌΠ΅ΡΡΡ. Π£ Π²Ρ ΠΎΠ΄Π½ΠΎΠΉ ΡΡΠΎΡ ΠΏΠΎΠΊΠ°Π·Π°ΡΠ΅Π»Ρ ΡΠ²Π΅Π»ΠΈΡΠ΅Π½ ΠΈ Π²Π°ΡΡΠΈΡΡΡΡΡΡ Π² ΠΏΠ΅ΡΠ΅Π΄Π΅Π»Π°Ρ 80-100 ΡΠΌ. ΠΠΎΠ»ΠΎΡΠΎΠΉ ΡΡΠ°Π½Π΄Π°ΡΡ β 90ΡΠΌ, Π° Ρ ΠΌΠ΅ΠΆΠΊΠΎΠΌΠ½Π°ΡΠ½ΡΡ 70-80 ΡΠΌ, Π½ΠΎ ΠΏΡΠΈ ΡΡΠΎΠΌ ΠΎΠ±ΡΠ·Π°ΡΠ΅Π»ΡΠ½ΠΎ ΡΡΠΈΡΡΠ²Π°ΡΡΡΡ Π³Π°Π±Π°ΡΠΈΡΡ Π»ΡΠ΄Π΅ΠΉ, ΡΡΠΎ Π±ΡΠ΄ΡΡ ΠΏΡΠΎΠΆΠΈΠ²Π°ΡΡ Π² Π΄ΠΎΠΌΠ΅.
ΠΡΠΈ ΠΏΡΠΎΠ΅ΠΊΡΠΈΡΠΎΠ²Π°Π½ΠΈΠΈ Π·Π΄Π°Π½ΠΈΡ ΡΡΠΈΡΡΠ²Π°ΡΡΡΡ ΡΡΠ°Π½Π΄Π°ΡΡΠ½ΡΠ΅ Π½ΠΎΡΠΌΠ°ΡΠΈΠ²Ρ Π‘ΠΠΈΠ Π΄Π»Ρ ΡΡΡΠ°Π½ΠΎΠ²ΠΊΠΈ Π³Π°Π±Π°ΡΠΈΡΠΎΠ² Π΄Π²Π΅ΡΠ½ΡΡ ΠΏΡΠΎΠ΅ΠΌΠΎΠ². Π ΠΊΠΈΡΠΏΠΈΡΠ½ΡΡ Π·Π΄Π°Π½ΠΈΡΡ ΡΠΈΡΠΈΠ½Π° ΡΠΎΡΡΠ°Π²Π»ΡΠ΅Ρ 1,76 β 0,63 ΠΌ, Π² ΠΌΠΎΠ½ΠΎΠ»ΠΈΡΠ½ΡΡ 1,75 β 0,62, Π° Π²ΡΡΠΎΡΠ° 2,25 β 1,87ΠΌ.
Π’Π°ΠΊ ΠΊΠ°ΠΊ Π΄Π²Π΅ΡΠ½ΡΠ΅ ΠΊΠΎΡΠΎΠ±ΠΊΠΈ Π±ΠΎΠ»ΡΡΠΈΠ½ΡΡΠ²Π° ΠΏΡΠΎΠΈΠ·Π²ΠΎΠ΄ΠΈΡΠ΅Π»Π΅ΠΉ ΡΠ°ΡΡΡΠΈΡΠ°Π½Ρ Π½Π° ΡΠΎΠ»ΡΠΈΠ½Ρ ΡΡΠ΅Π½Ρ Π² 12,8 ΡΠΌ, ΠΏΡΠΈΡ ΠΎΠ΄ΠΈΡΡΡ ΡΠΎΠ·Π΄Π°Π²Π°ΡΡ ΠΎΡΠΊΠΎΡΡ Π² ΠΊΠ°ΠΏΠΈΡΠ°Π»ΡΠ½ΡΡ ΡΡΠ΅Π½Π°Ρ . Π’ΠΎΠ»ΡΠΈΠ½Π° ΡΡΠ΅Π½Ρ Π½ΠΈΠΊΠ°ΠΊ Π½Π΅ ΡΠ΅Π³ΡΠ»ΠΈΡΡΠ΅ΡΡΡ Π½ΠΎΡΠΌΠ°ΡΠΈΠ²Π°ΠΌΠΈ, ΠΏΠΎΡΠΊΠΎΠ»ΡΠΊΡ Π½Π΅ ΠΏΡΠ΅Π΄ΡΡΠ°Π²Π»ΡΠ΅Ρ ΡΠΎΠ±ΠΎΠΉ ΠΎΡΠ½ΠΎΠ²Π½ΡΡ Ρ Π°ΡΠ°ΠΊΡΠ΅ΡΠΈΡΡΠΈΠΊΡ ΠΈ Π½Π΅Ρ Π½ΠΈΠΊΠ°ΠΊΠΎΠ³ΠΎ Π΅Π΄ΠΈΠ½ΠΎΠ³ΠΎ ΡΡΠ°Π½Π΄Π°ΡΡΠ° Π΄Π»Ρ ΡΠΎΠ»ΡΠΈΠ½Ρ ΠΏΠ΅ΡΠ΅Π³ΠΎΡΠΎΠ΄ΠΎΠΊ ΠΌΠ΅ΠΆΠ΄Ρ ΠΊΠΎΠΌΠ½Π°ΡΠ°ΠΌΠΈ.

ΠΠ°ΠΊ Π΄Π΅Π»Π°ΡΡ ΡΠ°ΡΡΠ΅ΡΡ
ΠΠ΅ΡΠΎΠ΄ ΠΏΠΎΠ΄Ρ ΠΎΠ΄ΠΈΡ ΠΏΠΎΠ΄ ΠΌΠ΅ΡΠ°Π»Π»ΠΈΡΠ΅ΡΠΊΠΈΠ΅ ΠΈ Π΄ΡΡΠ³ΠΈΠ΅ Π΄Π²Π΅ΡΠΈ. ΠΠ»Ρ Π²ΡΡΠΈΡΠ»Π΅Π½ΠΈΡ Π±Π΅ΡΠ΅ΡΡΡ ΡΠΎΡΠΌΡΠ»Π°:
Π¨ΠΈΡΠΈΠ½Π° = ΠΏΠΎΠ»ΠΎΡΠ½ΠΎ + 26 ΠΌΠΌ + Π»Π΅Π²ΡΠΉ, ΠΏΡΠ°Π²ΡΠΉ ΠΊΠ°ΡΠΊΠ°ΡΠ½ΡΠΉ Π±ΡΡΡ;
ΠΡΡΠΎΡΠ° = 38 ΠΌΠΌ + ΡΡΠ²ΠΎΡΠΊΠ° + Π±ΡΡΡ ΠΊΠΎΡΠΎΠ±ΠΊΠΈ.
Π‘ΡΠ°Π½Π΄Π°ΡΡΠ½ΡΠ΅ ΡΠ°Π·ΠΌΠ΅ΡΡ ΠΊΠΎΡΠΎΠ±Π° Π΄Π»Ρ ΠΌΠ΅ΠΆΠΊΠΎΠΌΠ½Π°ΡΠ½ΠΎΠΉ Π΄Π²Π΅ΡΠΈ: 2100 ΠΌΠΌ β Π²ΡΡΠΎΡΠ°; 70 ΠΌΠΌ β ΡΠΈΡΠΈΠ½Π°; 30 ΠΌΠΌ β ΡΠΎΠ»ΡΠΈΠ½Π°.
Π’ΡΡ Π²ΠΎΠ·ΠΌΠΎΠΆΠ½Ρ Π½Π΅Π·Π½Π°ΡΠΈΡΠ΅Π»ΡΠ½ΡΠ΅ ΡΠ°ΡΡ ΠΎΠΆΠ΄Π΅Π½ΠΈΡ Π² Π·Π°Π²ΠΈΡΠΈΠΌΠΎΡΡΠΈ ΠΎΡ ΠΏΡΠΎΠΈΠ·Π²ΠΎΠ΄ΠΈΡΠ΅Π»Ρ.
ΠΠΎΠ³Π΄Π° Π½ΡΠΆΠ½ΠΎ Π·Π°ΠΊΠ°Π·Π°ΡΡ Π΄Π²Π΅ΡΠΈ, ΡΠ»Π΅Π΄ΡΠ΅Ρ ΡΠ·Π½Π°ΡΡ ΡΠΎΡΠ½ΡΠ΅ ΠΏΠ°ΡΠ°ΠΌΠ΅ΡΡΡ Π΄Π²Π΅ΡΠ½ΠΎΠ³ΠΎ ΠΏΡΠΎΠ΅ΠΌΠ° Π΄Π»Ρ ΠΎΠΏΡΠ΅Π΄Π΅Π»Π΅Π½ΠΈΡ ΡΠΈΡΠΈΠ½Ρ ΠΊΠΎΡΠΎΠ±ΠΊΠΈ Π²ΠΌΠ΅ΡΡΠ΅, Π° ΡΠ°ΠΊΠΆΠ΅ ΠΎΠΏΡΠ΅Π΄Π΅Π»ΠΈΡΡ Π½Π΅ΠΎΠ±Ρ ΠΎΠ΄ΠΈΠΌΠΎΡΡΡ Π΄ΠΎΠ±ΠΎΡΠΎΠ².
ΠΠ΅ΡΡΠ°Π½Π΄Π°ΡΡΠ½ΡΠ΅ ΠΏΠ°ΡΠ°ΠΌΠ΅ΡΡΡ
ΠΡΠ΅Π½Ρ ΡΠ°ΡΡΠΎ Π²Π»Π°Π΄Π΅Π»ΡΡΡ ΠΏΠΎΠΌΠ΅ΡΠ΅Π½ΠΈΠΉ ΠΏΡΠΈΠ½ΠΈΠΌΠ°ΡΡ ΡΠ΅ΡΠ΅Π½ΠΈΠ΅ ΠΈΠ·ΠΌΠ΅Π½ΠΈΡΡ ΡΡΠ°Π½Π΄Π°ΡΡΠ½ΡΠ΅ ΡΠ°Π·ΠΌΠ΅ΡΡ Π΄Π²Π΅ΡΠ½ΡΡ ΠΏΡΠΎΠ΅ΠΌΠΎΠ² Π΄Π»Ρ ΡΠΎΠ³ΠΎ, ΡΡΠΎΠ±Ρ ΠΏΡΠΈΠ΄Π°ΡΡ ΠΆΠΈΠ»ΠΈΡΡ ΠΈ ΠΈΠ½ΡΠ΅ΡΡΠ΅ΡΡ Π±ΠΎΠ»ΡΡΠ΅ ΠΈΠ½Π΄ΠΈΠ²ΠΈΠ΄ΡΠ°Π»ΡΠ½ΠΎΡΡΠΈ ΠΈ ΠΈΠ·ΡΡΠΊΠ°.
- ΠΡ ΠΎΠ΄Π½ΡΠ΅. ΠΠ΅ΡΠ°Π»Π»ΠΈΡΠ΅ΡΠΊΠΈΠ΅ ΡΠ°ΡΠ΅ Π΄Π΅Π»Π°ΡΡΡΡ ΡΠΈΠΏΠΎΠ²ΡΠΌΠΈ, Π° Π΄Π»Ρ ΡΠΊΡΠΊΠ»ΡΠ·ΠΈΠ²Π½ΡΡ Π΄Π΅ΡΠ΅Π²ΡΠ½Π½ΡΡ , Π²Π»Π°Π΄Π΅Π»ΡΡΡ Π½ΠΈΠΊΠΎΠ³Π΄Π° Π½Π΅ ΠΎΡΠΊΠ°ΠΆΡΡΡΡ ΡΠ²Π΅Π»ΠΈΡΠΈΡΡ Π³Π°Π±Π°ΡΠΈΡΡ Π΄Π²Π΅ΡΠ½ΠΎΠ³ΠΎ ΠΏΡΠΎΠ΅ΠΌΠ°, ΠΊΠΎΠ³Π΄Π° ΡΡΠΎ ΠΏΠΎΠ·Π²ΠΎΠ»ΡΡΡ ΠΏΠ°ΡΠ°ΠΌΠ΅ΡΡΡ Π·Π΄Π°Π½ΠΈΡ β ΡΠΌΠ΅ΡΡΠΈΡΡ Π΅Π³ΠΎ ΠΈΠ»ΠΈ ΡΠ°Π·Π΄Π²ΠΈΠ½ΡΡΡ. ΠΡΠ»ΠΈ ΡΠΈΡΠΈΠ½Π° ΡΠ²Π΅Π»ΠΈΡΠΈΠ²Π°Π΅ΡΡΡ Π΄ΠΎ 120-150 ΡΠΌ, ΠΊΠ°ΠΊ ΠΏΡΠ°Π²ΠΈΠ»ΠΎ, ΠΏΡΠΎΠΈΠ·Π²ΠΎΠ΄ΠΈΡΡΡ ΠΌΠΎΠ½ΡΠ°ΠΆ Π΄Π²ΠΎΠΉΠ½ΠΎΠΉ Π΄Π²Π΅ΡΠΈ. Π£Π²Π΅Π»ΠΈΡΠ΅Π½ΠΈΠ΅ ΠΏΠ°ΡΠ°ΠΌΠ΅ΡΡΠΎΠ² Π²ΡΡΠΎΡΡ ΠΏΡΠΎΠΈΠ·Π²ΠΎΠ΄ΠΈΡΡΡ ΠΎΠ±ΡΡΠ½ΠΎ Π΄Π»Ρ ΡΡΡΠ°Π½ΠΎΠ²ΠΊΠΈ Π΄ΠΎΠΏΠΎΠ»Π½ΠΈΡΠ΅Π»ΡΠ½ΡΡ Π²ΡΡΠ°Π²ΠΎΠΊ Π½Π°Π΄ ΠΏΠΎΠ»ΠΎΡΠ½ΠΎΠΌ.
- ΠΠ΅ΠΆΠΊΠΎΠΌΠ½Π°ΡΠ½ΡΠ΅. ΠΡ ΠΌΠΎΠΆΠ½ΠΎ ΠΊΠ°ΠΊ ΡΠ²Π΅Π»ΠΈΡΠΈΠ²Π°ΡΡ, ΡΠ°ΠΊ ΠΈ ΡΠΌΠ΅Π½ΡΡΠ°ΡΡ. ΠΠ»Ρ ΡΠ°ΠΊΠΈΡ ΠΏΠΎΠΌΠ΅ΡΠ΅Π½ΠΈΠΉ, ΠΊΠ°ΠΊ ΠΊΡΡ Π½Ρ ΠΈ Π³ΠΎΡΡΠΈΠ½Π°Ρ, ΠΏΡΠΈΠ½ΠΈΠΌΠ°Π΅ΡΡΡ ΡΠ΅ΡΠ΅Π½ΠΈΠ΅ Π² ΠΏΠΎΠ»ΡΠ·Ρ ΡΠ²Π΅Π»ΠΈΡΠ΅Π½ΠΈΡ Π΄Π²Π΅ΡΠ½ΡΡ ΠΏΡΠΎΠ΅ΠΌΠΎΠ². ΠΡΠΎΠ±Π΅Π½Π½ΠΎ ΡΡΠΎ Π°ΠΊΡΡΠ°Π»ΡΠ½ΠΎ Π΄Π»Ρ ΡΡΡΠ°Π½ΠΎΠ²ΠΊΠΈ ΡΠ°Π·Π΄Π²ΠΈΠΆΠ½ΡΡ Π΄Π²Π΅ΡΠ΅ΠΉ. ΠΠ»Ρ ΡΠ°Π½ΡΠ·Π»ΠΎΠ² ΠΎΠ½ΠΈ ΠΎΠ±ΡΡΠ½ΠΎ ΡΠΎΠΊΡΠ°ΡΠ°ΡΡΡΡ.
ΠΡΠΈ ΠΈΠ·ΠΌΠ΅Π½Π΅Π½ΠΈΠΈ ΠΏΠ°ΡΠ°ΠΌΠ΅ΡΡΠΎΠ² Π΄Π²Π΅ΡΠ½ΠΎΠΉ ΠΊΠΎΡΠΎΠ±ΠΊΠΈ Π½ΡΠΆΠ½ΠΎ ΡΡΠΈΡΡΠ²Π°ΡΡ ΡΠ²Π΅Π»ΠΈΡΠ΅Π½ΠΈΠ΅ Π²ΡΡΠΎΡΡ ΠΏΠΎΠ»Π°.
ΠΠ° ΡΡΠΎ Π±ΡΠ΄Ρ Π²Π»ΠΈΡΡΡ ΡΠ°ΠΊΠΈΠ΅ ΡΠ°ΠΊΡΠΎΡΡ:
- ΠΠΎΠΊΡΡΡΠΈΠ΅ ΠΏΠΎΠ»Π° Π»Π°ΠΌΠΈΠ½Π°ΡΠΎΠΌ. ΠΠ½Π°ΡΠ΅Π½ΠΈΡ ΠΏΡΠΈ ΡΡΠΎΠΌ ΠΌΠ΅Π½ΡΡΡΡΡ Π² ΠΏΡΠ΅Π΄Π΅Π»Π°Ρ 1,5-2 ΡΠΌ;
- ΠΠΈΠ½ΠΎΠ»Π΅ΡΠΌ ΠΌΠ΅Π½ΡΠ΅Ρ Π·Π½Π°ΡΠ΅Π½ΠΈΡ Π² ΠΏΡΠ΅Π΄Π΅Π»Π°Ρ 0,5-1 ΡΠΌ;
- ΠΡΠΎΠ±ΠΊΠΎΠ²ΡΠΉ ΠΏΠΎΠ», ΠΊΠ΅ΡΠ°ΠΌΠΎΠ³ΡΠ°Π½ΠΈΡ ΠΈ ΠΊΠ°ΡΠ΅Π»Ρ β 3-5 ΡΠΌ.
Π‘ΠΎΠ²Π΅ΡΡ ΠΏΠΎ Π²ΡΠ±ΠΎΡΡ Π΄Π²Π΅ΡΠ½ΠΎΠ³ΠΎ ΠΊΠΎΡΠΎΠ±Π° ΠΏΡΠΈ Π½Π΅ΡΡΠ°Π½Π΄Π°ΡΡΠ½ΠΎΠΌ ΠΏΡΠΎΠ΅ΠΌΠ΅
Π‘ΡΡΠ΅ΡΡΠ²ΡΠ΅Ρ ΡΠ²ΠΎΠ΄ ΠΏΡΠ°Π²ΠΈΠ», ΠΊΠΎΡΠΎΡΡΠ΅ Π·Π½Π°ΡΠΈΡΠ΅Π»ΡΠ½ΠΎ ΡΠΏΡΠΎΡΠ°ΡΡ Π·Π°Π΄Π°ΡΡ ΠΏΠΎΠ΄Π±ΠΎΡΠ° ΠΏΡΠ°Π²ΠΈΠ»ΡΠ½ΠΎΠ³ΠΎ Π΄Π²Π΅ΡΠ½ΠΎΠ³ΠΎ ΠΊΠΎΡΠΎΠ±Π° Π΄Π»Ρ Π½Π΅ΡΡΠ°Π½Π΄Π°ΡΡΠ½ΡΡ ΠΏΡΠΎΠ΅ΠΌΠΎΠ².
ΠΠΎΠ³Π΄Π° ΠΌΠ΅Π½ΡΡΡΡΡ ΡΡΠ°Π½Π΄Π°ΡΡΠ½ΡΠ΅ ΠΏΠ°ΡΠ°ΠΌΠ΅ΡΡΡ, Π½ΡΠΆΠ½ΠΎ ΡΡΠ΅ΡΡΡ ΠΏΠ°ΡΠ°ΠΌΠ΅ΡΡΡ ΠΏΡΠΎΡΡΡΠ°Π½ΡΡΠ²Π° ΠΏΠΎΠ΄ ΠΊΠΎΡΠΎΠ±, Π΄Π΅ΡΠ΅Π²ΡΠ½Π½ΡΡ Π±Π°Π»ΠΊΡ ΠΈ Π²ΡΠ΅Ρ ΠΏΡΠΎΡΠΈΡ ΡΠ»Π΅ΠΌΠ΅Π½ΡΠΎΠ² ΠΊΡΠ΅ΠΏΠ»Π΅Π½ΠΈΡ. ΠΡΡΠΎΡΠ° ΡΠΈΡΡΠΎΠ²ΠΎΠ³ΠΎ ΠΏΠΎΠ»Π° Π΄ΠΎΠ»ΠΆΠ½Π° Π±ΡΡΡ ΡΡΡΠ΅Π½Π°, Π° Π² ΡΠ»ΡΡΠ°Π΅, ΠΊΠΎΠ³Π΄Π° Π·Π°ΠΊΠ°Π·Π°Π½ΠΎ ΠΏΠΎΠΊΡΡΡΠΈΠ΅, Π½Π΅ΠΎΠ±Ρ ΠΎΠ΄ΠΈΠΌΠΎ ΡΡΠ΅ΡΡΡ ΠΊΠ°ΠΊΠΈΠ΅ ΡΠ°ΡΡ ΠΎΠΆΠ΄Π΅Π½ΠΈΡ ΠΏΡΠΈ ΡΡΠΎΠΌ ΠΏΡΠΎΠΈΠ·ΠΎΠΉΠ΄ΡΡ.
ΠΠ°Π³Π»ΡΠ΄Π½ΠΎ ΠΏΡΠΎ ΡΠ°Π·ΠΌΠ΅ΡΡ ΠΈ Π·Π°ΠΌΠ΅ΡΡ Π½Π° ΡΠ»Π΅Π΄ΡΡΡΠ΅ΠΌ Π²ΠΈΠ΄Π΅ΠΎ:
Π’Π°ΠΊΠΆΠ΅ Π½Π°Π΄ΠΎ ΡΡΠ΅ΡΡΡ ΡΠΎΠ»ΡΠΈΠ½Ρ ΡΠ»Π΅ΠΌΠ΅Π½ΡΠΎΠ² Π΄Π²Π΅ΡΠ½ΠΎΠ³ΠΎ ΠΊΠΎΡΠΎΠ±Π°, Π²ΡΠ΅ Π²ΠΎΠ·ΠΌΠΎΠΆΠ½ΡΠ΅ ΡΠ΅Π»ΠΈ ΠΌΠ΅ΠΆΠ΄Ρ ΡΡΠ΅Π½Π°ΠΌΠΈ, ΠΊΠΎΡΡΠΊΠ°ΠΌΠΈ. ΠΡΠΎ Π½Π΅ΠΎΠ±Ρ ΠΎΠ΄ΠΈΠΌΠΎ, ΡΡΠΎΠ±Ρ ΠΏΡΠΎΠΈΠ·Π²Π΅ΡΡΠΈ Π² Π΄Π°Π»ΡΠ½Π΅ΠΉΡΠ΅ΠΌ ΠΊΠΎΡΡΠ΅ΠΊΡΠΈΡΠΎΠ²ΠΊΠΈ.
Π¨ΠΈΡΠΈΠ½Π° ΠΏΠΎΠ»ΠΎΡΠ½Π° Π²ΡΠ΅Π³Π΄Π° ΠΌΠ΅Π½ΡΡΠ΅ ΡΠ΅ΠΌ ΠΏΡΠΎΠ΅ΠΌ Π½Π° Π²Ρ ΠΎΠ΄Π½ΡΠ΅ Π΄Π²Π΅ΡΠΈ Π² ΠΏΡΠ΅Π΄Π΅Π»Π°Ρ ΠΎΡ 10 ΡΠΌ.
ΠΠ±ΡΠ·Π°ΡΠ΅Π»ΡΠ½ΠΎ Π½ΡΠΆΠ½ΠΎ ΡΡΠ΅ΡΡΡ Π²ΡΡΠΎΡΡ Π΄Π»Ρ ΡΡΡΠ°Π½ΠΎΠ²ΠΊΠΈ ΠΏΠΎΡΠΎΠΆΠΊΠ°, Π΄Π°ΠΆΠ΅ Π΅ΡΠ»ΠΈ ΡΡΠΎ ΠΌΠ΅ΡΠ°Π»Π»ΠΈΡΠ΅ΡΠΊΠΈΠ΅ Π΄Π²Π΅ΡΠΈ β ΠΎΠ½ ΡΠΎΠΆΠ΅ ΠΏΠΎΡΡΠ΅Π±ΡΠ΅Ρ Π½Π΅ΠΊΠΎΡΠΎΡΠΎΠ΅ ΠΏΡΠΎΡΡΡΠ°Π½ΡΡΠ²ΠΎ, ΠΊΠΎΡΠΎΡΠΎΠ΅ ΡΠΎΠΆΠ΅ Π½ΡΠΆΠ½ΠΎ ΡΡΠ΅ΡΡΡ ΠΏΡΠΈ ΠΈΠ·ΠΌΠ΅ΡΠ΅Π½ΠΈΠΈ ΠΏΠ°ΡΠ°ΠΌΠ΅ΡΡΠΎΠ² Π΄Π»Ρ Π²ΡΠ±ΠΎΡΠ° Π΄Π²Π΅ΡΠ½ΠΎΠΉ ΠΊΠΎΡΠΎΠ±ΠΊΠΈ. ΠΡΠ»ΠΈ ΠΏΡΠ΅Π΄ΠΏΠΎΠ»Π°Π³Π°Π΅ΡΡΡ Π²ΡΠ΄Π΅Π»Π΅Π½ΠΈΠ΅ ΠΎΡΠ΄Π΅Π»ΡΠ½ΠΎΠ³ΠΎ Π²Ρ ΠΎΠ΄Π° ΠΈ Π΅Π³ΠΎ ΡΡΠ΅ΠΏΠ»Π΅Π½ΠΈΡ, ΡΠΎ ΡΠΈΠ»ΡΠ½ΠΎ ΡΠΌΠ΅Π½ΡΡΠ°ΡΡ ΠΏΡΠΎΠ΅ΠΌ Π½Π΅ ΡΠ΅ΠΊΠΎΠΌΠ΅Π½Π΄ΡΠ΅ΡΡΡ. Π ΡΡΠΎΠΌ ΡΠ»ΡΡΠ°Π΅ ΡΡΠ΅Π±ΡΠ΅ΡΡΡ ΡΡΡΠ°Π½ΠΎΠ²ΠΊΠ° ΡΡΡΠΏΠ΅Π½ΡΠΊΠΈ.

ΠΡΠ»ΠΈ Π²ΡΡΠΎΡΡ ΠΏΡΠΎΠ΅ΠΌΠ° Π½Π΅Π΄ΠΎΡΡΠ°ΡΠΎΡΠ½ΠΎ, Π½ΠΎ Π²ΡΠ΅ ΡΠ°Π²Π½ΠΎ Π½Π΅ΠΎΠ±Ρ ΠΎΠ΄ΠΈΠΌΠΎ Π²ΡΠ΄Π΅Π»ΠΈΡΡ ΠΎΡΠ΄Π΅Π»ΡΠ½ΡΠΉ Π²Ρ ΠΎΠ΄ Ρ ΡΡΠ΅ΠΏΠ»Π΅Π½ΠΈΠ΅ΠΌ, ΡΠΎ ΠΈΠ½ΠΎΠ³Π΄Π° Ρ ΠΈΠ΄Π΅Π΅ΠΉ ΡΡΡΠ°Π½ΠΎΠ²ΠΊΠΈ ΡΡΡΠΏΠ΅Π½ΡΠΊΠΈ Π½ΡΠΆΠ½ΠΎ ΡΠ°ΡΠΏΡΠΎΡΠ°ΡΡΡΡ. Π’ΡΡ Π½Π΅ΠΎΠ±Ρ ΠΎΠ΄ΠΈΠΌΠΎ ΠΈΡΠΏΠΎΠ»ΡΠ·ΠΎΠ²Π°ΡΡ ΠΈΠ½Π΄ΠΈΠ²ΠΈΠ΄ΡΠ°Π»ΡΠ½ΡΠΉ ΠΏΠΎΠ΄Ρ ΠΎΠ΄.
ΠΠ°ΠΆΠ΅ ΠΊΠΎΠ³Π΄Π° ΠΏΡΠΎΠΈΠ·Π²ΠΎΠ΄ΠΈΡΡΡ ΠΏΠΎΠ»Π½Π°Ρ ΠΏΠ΅ΡΠ΅ΠΏΠ»Π°Π½ΠΈΡΠΎΠ²ΠΊΠ° ΠΏΠΎΠΌΠ΅ΡΠ΅Π½ΠΈΡ, Π½ΡΠΆΠ½ΠΎ ΡΠΎΠ±Π»ΡΠ΄Π°ΡΡ ΠΠΠ‘Π’ ΡΡΠ°Π½Π΄Π°ΡΡΡ, ΡΡΠΎΠ±Ρ ΠΏΡΠΎΠΈΡΡ ΠΎΠ΄ΠΈΠ»ΠΎ ΠΏΡΠ°Π²ΠΈΠ»ΡΠ½ΠΎΠ΅ ΡΠ°ΡΠΏΡΠ΅Π΄Π΅Π»Π΅Π½ΠΈΠ΅ Π½Π°Π³ΡΡΠ·ΠΎΠΊ Π½Π° ΡΡΠ΅Π½Ρ.
golddveri.ru






