Проектирование и чертежи деревянных и металлических лестниц на второй этаж в доме
Начиная строительство крупного, многоэтажного коттеджа, многие люди часто не задумываются о таком важном элементе, как лестница. После чего, уже в процессе строительства, начинают ломать голову над вопросами её дизайна, проектирования и прочего. Лестницу можно сделать простой и практически незаметной, а можно превратить в настоящее произведение искусства, способное приковывать к себе взгляды всех гостей дома.
Проектирование лестниц считается одним из важных этапов строительства дома. Лестницы способны выгодно подчеркнуть пространство жилого помещения, став его изюминкой. При грамотном подходе к решению данного вопроса, можно получить непревзойденный вариант.
Проект деревянной лестницы в частном домеЛестницы можно разделить на наружные и внутренние. Внутренние лестницы располагаются между этажами жилого дома, обеспечивая беспрепятственное передвижение из одного помещения в другое. Наружные лестницы несут функцию облагораживания парадного входа, ведущего к дому. Помимо этого учитывается, какого типа она будет, чтобы лестница полностью соотносилась с домом (то есть учитываются её размеры по отношению к окружающему пространству).
Проект внешней каменной лестницыСуществует огромное количество разнообразных форм и размеров конструкций, которые порой просто поражают воображение, но, в общем, принято делить все лестницы на два типа.
- Первым являются лестницы с прямыми маршами. Это самый распространённый тип. Его часто используют в общественных, жилых зданиях. Объясняется это тем, что они являются безопасным вариантом и часто делаются блоками, при этом их исполнение гораздо проще, чем криволинейных. Обычно такой тип используют, если нужно объединить два уровня высотой не более трёх метров. Можно, конечно, создать лестничную клетку и высота увеличится, но потребуется больше свободного пространства.
Деревянная лестница с прямыми маршами - Второй тип носит название «криволинейные лестницы». Такой вариант дорогостоящий и сложный в исполнении. Его стоит выполнять только профессионалам с высокой квалификацией. Дизайн, материал при изготовлении может быть любой. Подходит для сложных дизайнерских проектов.
Чертёж и схема устройства криволинейной лестницыВернуться к оглавлениюСодержание материала
Материалы для лестниц, располагающихся на улице
Для проектирования уличных лестниц необходимо выбирать материал стойкий к коррозии вследствие длительного воздействия большого количества влаги и резких перепадов температуры. Превосходным материалом для данного вида считается бронза. Но в силу того, что металл довольно дорогостоящий, доступность подобного сооружения становится ограниченной.
Альтернативой подобной металлической лестнице может стать чугунный вариант. Металл, используемый для изготовления, обладает хорошими характеристиками, и при относительно невысокой стоимости лестницы становятся более доступны широкому классу потребителей. Также в качестве альтернативы металлу можно использовать обработанную различными пропитками древесину.
Деревянную лестницу можно сделать изюминкой дизайна домаВернуться к оглавлениюВыбор материалов для лестниц, находящихся внутри дома
В настоящее время благодаря массе различных технологий существует возможность возведения лестниц с использованием камня, дерева и металла. Весьма лаконично выглядят лестницы, спроектированные с помощью комбинирования металла и дерева или металла и камня. В первом варианте ступеньки выполняются из специально обработанных досок древесины различных пород, а поручни при помощи ковки изготавливаются в литейных мастерских, и затем на месте конструкция собирается воедино.
Комбинированная кованая фигурная лестницаВо втором варианте ступени выкладываются камнем. Необходимо отметить, что мраморные лестницы с коваными перилами можно по праву считать произведением строительного искусства.
Мраморные кованые лестницы поражают своим великолепиемПожалуй, самым распространённым материалом, который используется при изготовлении лестниц, является дерево, работать с которым нужно очень аккуратно. Ясень, бук или дуб нуждаются в одном способе обработки; лиственница, берёза и сосна – в другом.
Вернуться к оглавлениюРасчёт, чертёж и проектирование деревянных лестниц
Прежде чем начинать проектировать лестницу, необходимо ответить на некоторые вопросы. Следует определить, будет ли проектируемая конструкция удачно вписываться в участок площади первого этажа, который предназначен для начала подъёма? Кроме этого, лестница должна подходить к конфигурации и площади проёма в межэтажном перекрытии, через которое будет происходить завершение подъёма на второй этаж.
Чертёж деревянной винтовой лестницы на второй этажНапример, одномаршевая лестница требует, как минимум, один квадратный метр свободного пространства по полу и над собой – проём, который отчасти повторяет её прямоугольный вид, но при этом несколько уменьшен за счёт части, нависающей над первыми ступенями. Эти моменты следует предусмотреть ещё до начала проектирования конструкции.
Допустим, высота потолка составляет 280 см, а толщина перекрытия – 20 см, в итоге получится 300 см. Высота ступеней – 18 см. Таким образом, 300 см делим на 18 см и получаем высоту ступеней 16,6 см. При этом не забывайте о том, что необходимо рассчитать предельно допустимое нависание потолка над начальными ступенями лестницы. Для этого из 280 см следует вычесть 190 см (средний рост человека с небольшим запасом), после чего полученное число (90 см) разделить на высоту ступеней (16,6 см). В результате будет получено 5,4. Это число округлим до 5 и получим именно то количество ступеней, над которыми может находиться межэтажное перекрытие, после которого начинается площадь проёма.
Чертёж деревянной лестницы на второй этаж домаПосле этого необходимо получить более точные параметры, которые включают в себя ширину каждой ступени. Ширина должна быть такой, чтобы на ступени полностью умещалась ступня взрослого человека в своём естественном положении (то есть, перпендикулярно длине ступени). Идеальным вариантом в этом случае считается 30 см. 30 см умножают на 5 (количество ступеней) и получают 150 см. Таким образом, получается, что проём межэтажного перекрытия размерами 4,5 м на 1,56 м должен начинаться через 150 см от начала подъёма по лестнице и заканчиваться через 90 см после этой отметки.
Общая длина лестницы вычисляется по формуле Пифагора – квадрат гипотенузы равен сумме квадратов катетов (32 + 5,42 = 38,16). Квадратный корень этого числа будет 6,18 м. Соответственно, общая длина лестницы составит 6,18 м. По сути, на этих вычислениях процесс создания проекта лестницы (за исключением перил) можно считать завершённым.
В этом видео показано, как происходит детальное проектирование внутренней деревянной лестницы на второй этаж дома.
Вернуться к оглавлениюПроектирование металлических лестниц
Этот вид проектирования довольно распространён. Обусловлено это тем, что металлические лестницы идеально подходят для офисных зданий, а при определённом дизайн-проекте украсят и жилой дом.
При проектировании металлических лестниц следует определиться, какой вид конструкции вы хотели вы видеть в своём интерьере. Это может быть винтовая лестница, лестница на тетивах, консольная лестница или лестница на косоурах.
Винтовая или, как часто её называют, круговая лестница сэкономит пространство, её ступеньки могут быть выполнены из любого материала с поручнями из стали.
Лестницы на косоурах также довольно часто используются (косоур составляет основную опору балки марша и крепится к ступени). Конструкции на тетивах, также как и на косоурах – это разновидность маршевого типа лестниц. Тетивы – это наклонные балки, проступи крепятся изнутри, но похожи на косоуры.
Чертёж и схема устройства лестницы на ломаных боковых косоурахКонсольная лестница выполняются с помощью анкерного крепления без использования косоуров и тетивы, что создаёт впечатление воздушности и лёгкости (при замене пола демонтаж такой лестницы не требуется).
Консольная лестница на второй этаж домаПроектирование лестниц в частных домах лучше производить с помощью специальных программ и доверить это профессионалам. Этот процесс требует специальных знаний и умений. Специалисты предоставят вам вариант, который лучше всего впишется в ваш дизайн-проект и не займёт много места, а главное, будет безопасен для вас и вашей семьи.

Проектирование лестниц в частных домах может быть предварительным и полным. В первом варианте разрабатывается 3D модель, где вы можете рассмотреть виртуальный макет будущей лестницы и изменить некоторые элементы. При полном проектировании также разрабатывают модель, плюс ещё составляется документация (например, спецификация элементов и чертежи деталей).
Если вы решили обратиться в фирму, работающую в другом городе или регионе, есть возможность заказать такое проектирование в режиме онлайн, расчёт в таком случае будет производиться безналичным путём.
Вернуться к оглавлениюДополнительные рекомендации
Крайне не желательно планировать строительство лестниц с отклонением от стандартных размеров лестничного проёма. Если создается проект одномаршевой лестницы, то он должен составлять минимум 1х3 м; винтовой с центральной стойкой – минимум 2 м в диаметре. Уменьшение этих цифр может отрицательно сказаться на некоторых технических показателях (например, угол наклона или высота и ширина ступенек).
Чертёж простого проекта деревянной одномаршевой лестницы на второй этажЛестничная шахта в идеале должна быть изолирована по объёму. Если разделение этажей дверями и стенами будет отсутствовать, то тёплый воздух станет беспрепятственно подниматься вверх, тем самым вызывая тепловой дисбаланс.
При обустройстве лестниц нежелательно применять массивные материалы (балясины, ступени и перила). При изготовлении элементов лестницы рекомендуется отдавать предпочтение клеёной древесине, что в дальнейшем позволит избежать появления трещин на конструкции. Для тех же самых целей между элементами конструкции следует оставлять небольшие зазоры.
Составные части конструкции лучше всего приобретать у одних и тех же производителей, так как это позволит подобрать материал не только одинакового цвета, но и идентичной обработки.
Установка лестницы в деревянном доме должна осуществляться не раньше, чем через 10-12 месяцев после начала эксплуатации здания. Причина заключается в том, что деревянное строение за это время может дать усадку до 10% высоты, что, естественно, отразится на конструкции лестницы, как междуэтажного связующего элемента.
При изготовлении лестницы не рекомендуется использовать смоляные породы древесины. При комнатных температурах, несмотря на многослойное лаковое покрытие, смола через какое-то время выйдет на поверхность деталей конструкции.
Не рекомендуется выбирать проекты лестниц, у которых отсутствуют ограждения (периллы, балясины и столбы). Они, конечно, могут быть красивы, но не слишком безопасны.
Угол наклона лестничного марша должен составлять не менее 20 градусов, ширина ступеней – не менее 100см, а глубина проступи – не менее 25см.
Удобные для ходьбы углы наклона лестничного маршаРасстояние между балясинами не должно превышать 15см, а их наиболее приемлемая высота должна находиться в пределах 85-90см.
Оптимальное расстояние между балясинами деревянной лестницыДля тонировки деревянных лестниц рекомендуется использовать только те покрытия, которые предназначены для отделки паркета и мебели. Те средства, которые применяются для защиты древесины от атмосферного воздействия, могут быть слишком токсичны.
Вернуться к оглавлениюСтроительные правила и нормы
Чтобы спуск и подъём был как можно более удобным, при проектировании лестницы на второй этаж следует придерживаться точного соотношения между расстоянием, на которое человек передвигается вперед, и расстоянием, на которое он опускается или поднимается.
В современном строительстве для определения этого соотношения применяются термины «ширина проступи» и «высота подступенка». Под «высотой подступенка» подразумевается вертикальное расстояние между верхними плоскостями двух последовательных ступеней. Под «шириной проступи» – расстояние между передними краями соседних ступеней.
Схема устройства ступеней лестницыГлавное правило для получения нужной пропорции ступени формулируется следующим образом: 2h + b = S = (60…66) см (сумма удвоенной высоты подступенка и ширины проступи). При этом при проектировании наиболее оптимальной по размерам ступени, стоит учитывать ещё ряд некоторых закономерностей.
Самыми удобными считаются лестницы с соотношением проступи и подступенка b – h = 12 («формула удобства»). Кроме этого, следует учитывать так называемую «формулу безопасности», b + h = 46.
Также стоит помнить о том, что отношение подступенка и проступи определяется маршевым уклоном.
При создании чего-либо в любой сфере деятельности имеются свои установленные нормы и правила, проектирование не является исключением. Они важны для соблюдения безопасности, правильной эксплуатации, комфорта человека.
Нормы проектирования лестниц
Если вас заинтересовал этот пункт, и вы хотели бы углубить свои знания, то вы можете прочитать вторую часть СНиП. Мы же приведём лишь основные нормы проектирования лестниц:
- Трансформируемые лестницы можно сооружать только для доступа к чердачным помещениям. Для основных стоит использовать устойчивые конструкции.
Нормы строительства лестниц в частных домах и других зданиях и сооружениях - Если в здании более двух этажей, то все основные лестницы должны иметь общий пролет.
- Ширина марша должна рассчитываться с учётом прохождения количества человек. Для одного человека эта цифра составляет 80 см, а для двух – это один метр. Если лестница соединяет более двух этажей или является поворотной, то ширина марша должна быть один метр. Рекомендована именно такая цифра для того, чтобы не затруднялось движение при прохождении людей и для переноса крупных вещей и предметов.
- Зазор между маршами, направленных друг к другу во встречном направлении должен быть не меньше 50 мм.
- Число ступеней в одном марше должно быть от трёх до восемнадцати. И желательно делать нечётное количество ступеней для удобства человека.
- Лестничные конструкции должны быть хорошо освещены.
Схема конструкции и устройства простой типовой лестницы в домеВернуться к оглавлениюПравила проектирования лестниц для больших зданий
Правила проектирования лестниц служат для сдачи корректных проектов. Рассмотрим, какие же должны быть соблюдены условия:
- Если здание планируется для большого количества людей, то следует позаботиться о вспомогательных лестницах для различных ситуаций (например, пожары).
Пожарная лестница для дома - Если здание будет выше двух этажей, то следует выбирать только негорючие материалы. Поэтому во многих жилых домах используют бетонные лестницы.
- Для удобства передвижения и безопасности на лестницах, которые будут часто использоваться, следует установить перила, а на первой и последней ступенях – дополнительное освещение.
- Если за дверью начинается лестница, то стоит построить площадку между ней и дверью.
- Для каждого этажа, который выше уровня земли, следует построить хотя бы одну лестницу.
- Если в здании всего пара квартир, то установите конструкции выдвижного типа или приставного.
Правила проектирования лестниц полностью направлены на безопасное передвижение человека по ним. Не стоит также забывать про правильное освещение лестничной конструкции, особенно в тёмное время суток.
Вернуться к оглавлениюПроектирование лестниц онлайн
На сайте www.lesenka.com предлагается онлайн-конструктор лестниц. Сложные и изящные проекты лестниц с помощью него спроектировать будет сложно, но простые проекты для небольших частных домов вполне возможно выполнить и осуществить. Нужно только лишь задать размеры, и в течение 3-5 минут система выполнит проектирование лестницы в режиме онлайн, и у вас на руках сразу будет готовый проект!
proekt-sam.ru
Проектирование лестниц: все, что нужно знать
Пример проекта лестницы на второй этаж.
Один из важнейших этапов при строительстве дома — проектирование лестниц. Выбор формы и типа лестниц в доме находится в прямой зависимости от характеристик помещений, места установки лестницы и расположения проемов между этажами. При этом не стоит забывать про дизайн лестницы, ее совместимость с общим видом помещения.
Общие вопросы проектирования
Начиная строить дом, необходимо представлять какие лестницы и в каких местах будут располагаться. Процесс проектирования включает в себя несколько этапов. Чтобы спроектировать лестницу в частном доме, необходимо рассчитать все ее элементы:
- главные несущие части — косоуры и тетива;
- проступь;
- опорные стойки всего лестничного пролета;
- подступенки (при условии, что лестничный марш будет закрытого типа).
Основные элементы лестниц, на которые стоит обратить внимание при проектировании.
Занимаясь проектом лестницы, кроме основных расчетов необходимо учесть и другие немало важные вопросы:
- Материал, из которого будет строиться конструкция.
- Ступени должны быть изготовлены из материала, на котором обувь не будет скользить. Или же, на всю ширину ступени монтируется полоса, которая препятствует проскальзыванию обуви.
Внутридомовые лестницы часто покрывают ковролином.
- Все ступени должны быть максимально одинаковы по размерам. Перепад размеров ступеней по высоте не должен превышать 5 мм.
- Нагрузка на лестничный марш не должна превышать 220 кг, на ограждения — 100 кг.
- Ступени обязательно должны быть с подступенями, если в перспективе планируется использовать свободное пространство под лестницей.
Пример эффективного использования пространства под лестницей.
- При проектировании лестницы учитывайте наличие дверей на поворотных площадках и куда они открываются.
Начиная проект лестницы в доме, нужно учитывать также следующие факторы:
- удобная и безопасная форма и высота перил;
- глубину и высоту ступеней;
- удобство в эксплуатации и надежность всей конструкции.
Проектирование винтовых лестниц имеет некоторые особенности, поскольку в ней необходимо еще определить направление движения.

1. Против часовой стрелки.
2. По часовой стрелке.
Расчет угла подъема
Безопасность конструкции можно напрямую связать с углом подъема, который определяется как соотношение между высотой и глубиной ступени. Угол наклона можно рассчитать графически, имея за основу данные о высоте потолка помещения и месте монтажа конструкции. При этом, необходимо учесть средние биологические параметры человека: высота подъема ступни и размера шага. Средняя высота подъема ступни человека около 31 см, а размер шага — 63 см.
Для расчета удобства ступенек применяю правило расчета шага:
2 а + b = 63 см, где а — высота ступени, b — глубина проступи.
Расчет среднего шага взрослого человека.
Именно его используют в случае необходимости определить угол наклона лестничного марша. Но эта формула не может быть универсальна для всех вариантов расчета. При необходимости сделать в доме конструкцию более крутую или более пологую, проступи получатся или очень узкие, или очень глубокие.
В таком случае для расчета применяется формула: а+b=46 см.
Эта формула применяется для конструкций, которые имеют либо крутой, либо пологий подъем. Лестница с крутым подъемом будет иметь большой угол наклона и небольшую глубину ступени, пологая будет с меньшим углом наклона и большой глубиной ступени.
Альтернативный метод расчета ступеней (первая часть)
Альтернативный метод расчета ступеней (первая часть)
Рекомендуемый угол наклона лежит в пределах от 30 до 45 градусов. Удобными в эксплуатации являются лестницы, имеющие подступенок высотой от 14 до 17 сантиметров и проступи глубиной от 34 до 37 см.
Пример удобной лестницы
Ширина и высота лестничного марша
Ширина лестницы в частном доме определяется из того, сколько человек будут ею пользоваться одновременно. Полезная ширина — это расстояние между внутренними краями ограждений или же расстояние от стены до внутренней части ограждения. Для движения одного человека проектируют конструкцию с шириной марша от 90 до 100 см. Если по лестнице будет идти встречное движение или возникнет необходимость переноски крупногабаритных вещей, то полезная ширина увеличивается.
| Место расположения лестницы | Полезная ширина |
|---|---|
| Здание с двумя этажами | от 90 до 100 см |
| Здание с тремя этажами и более | от 100 до 110 см |
| Подвал, мансарда, аварийная лестница | от 70 до 80 см |
| Дома повышенного комфорта | от 70 до 80 см |
Высота прохода должна обеспечивать безопасное движение людей. Высотой прохода принято считать вертикальное расстояние от верхнего края проступи и нижнего края верхней конструкции, которой может быть потолок или верхний уровень лестничного марша. Нормативные документы определяют это расстояние не менее 2 метров, а для домов повышенного комфорта в 2.1 метра.
Порой бывает, что и этих расстояний мало, так как во время спуска человек непроизвольно наклоняется вперед и можно получить травму.
Пример чертежа лестницы с указанием высоты прохода.
Поворотная площадка
Немаловажную роль при проектировании лестниц в частном доме играет расчет габаритов поворотной площадки. Площадка может быть прямая, с разворотами на 90, 180 и 360 градусов в зависимости от формы лестницы. Поворотная площадка может проектироваться при необходимости, при этом лестничный пролет между площадками должен иметь не более 15 ступеней. Ширина площадки должна быть по размерам одинаковой с шириной лестничного марша. Длину рассчитывают исходя из свободной площади.
[ot-gallery url=»//lestnitsygid.ru/gallery/varianty-povorotnyx-ploshhadok»]
Немаловажно сделать длину, соразмерную с величиной шага человека, чтобы обеспечить удобное передвижение по площадке. Минимальная длина должна совпадать с размером шага лестницы и быть не менее 1 метра. При расчете площадки к длине шага человека добавляют ширину проступи, по формуле:
M пл =M + a, или же
M пл = 2 (b+a)
где: M пл — длина площадки, M — размер шага лестницы, а — высота ступени, b — глубина проступи.
Важно!
Согласно установленным нормам, минимальная длина площадки должна быть не менее 1 метра, в домах повышенного комфорта — не менее 1,25 метра.
В многоквартирных домах лестничная площадка проектируется таким образом, чтобы по ней можно было перемещаться с габаритными предметами, вроде мебели или бытовой техники.
Ступени
Одной из главных составляющих любой лестницы являются ступени. Исходя из места расположения конструкции и функций, которые на нее возложены, ступени могут иметь свой вид и форму. Для проектирования лестничных конструкций разработаны общепринятые размеры ступеней.
| Место расположения лестничного марша | Максимальная высота, мм | Минимальная ширина, мм |
|---|---|---|
| Наружные входные лестницы | 190 | 260 |
| Лестницы внутри помещений | 200 | 230 |
| Лестницы на чердаках и в подвалах | 210 | 210 |
Высота подступенка при строительстве лестниц составляет от 12 до 20 см, рекомендуемая от 14 до 17 см. Ступени можно изготовить либо врезными, либо седельными. Врезные ступени монтируются в косоуры, седельные монтируются на них сверху.
Тетива или косоур
Главная несущая часть конструкции, тетива или косоур, является основным звеном и требует тщательного расчета. Основа безопасности при эксплуатации лестничного марша в частом доме заложена в правильном выборе размера сечения.
Лестница на тетивах — самый распространенный вариант монтажа. Такая конструкция может быть спроектирована без подступенков, что сделает ее более легкой и дешевой. Тетиву, в основном, делают из дерева или из металла. Наиболее приемлемый вариант — дерево. Плюсом может стать простота обработки и монтажа. Недостатком служит специфика крепления к полу и в перекрытии. Необходимо учесть, что дерево со временем даст усадку, а лестница с тетивой из металла сама может служить опорой перекрытию. Тетива из дерева имеет стандартные габариты. Она должна быть длиной от 2 до 5.5 метров, шириной — 0.3 метра, толщиной — 0.5 метра.
[ot-gallery url=»//lestnitsygid.ru/gallery/lestnicy-na-tetivax»]
Лестничный марш на косоурах смотрится гораздо симпатичнее, но является более трудоемким в производстве. Для проектирования конструкции на косоурах нам понадобятся исходные данные: глубина проступи, высота подступенка, длина и высота лестницы. Размеры планируемой высоты и длины лестницы мы можем получить на планируемом месте монтажа. Допустим, что ее высота будет 2.5 метра, а длина составит 4 метра. Имеем глубину ступенек от 0.25 до 0.4 метра. Мы берем среднюю величину 0.28 метра. Поделив высоту лестницы на глубину ступени, получим число ступенек:
4 метра : 0.28 метра = 14 ступенек.
Далее рассчитываем высоту подступенка. Для этого делим высоту лестницы на количество ступенек:
2.5 метра : 14 = 0.18 метра
Высота подступенка 0.18 метра соответствует установленным стандартам.
Длина косоура прямой конструкции рассчитывается по формуле:
H2 + L2 = K2
K = √(H2 + L2), где
H — высота, L — длина лестничного пролета, K — длина косоура
В нашем расчете длина косоура будет К = √ (2.52 + 42) = 4.7 метра
Прямая лестница на косоурах их дерева.
Высота ограждений
Главная задача ограждения — безопасность людей. Особое внимание следует обратить на крепления между стойками перил и косоурами. При необходимости, эти соединения можно усилить. Лестничные проходы имеют ограждения или сплошные (заполненные), или из балясин.
Важно!
Ограждение лестничных проходов должно быть прочным и выдерживать нагрузку не менее 100 кг.
Проектируя лестницу в частном доме надо учитывать, что высота ограждения у конструкции с прямым маршем должна быть не меньше 90 см, винтовые лестницы должны иметь поручни высотою от 110 см. Перила в ограждении проемов межэтажных перекрытий должны иметь минимальную высоту 90 см. В соответствии с установленными нормативами, расстояние между балясинами не должно превышать 12 см.
В последнее время очень популярными стали ограждения из специального стекла
lestnitsygid.ru
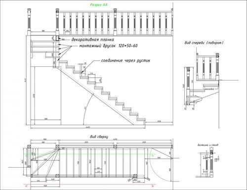
Проектирование лестниц деревянных
Проектирование лестниц деревянных начинается с измерения лестничного марша, причем его окончательных размеров, которые в процессе дальнейшего строительства меняться не будут.
Посмотрим на 1-ый рисунок

Нас интересует высота от пола первого этажа (окончательный вариант), до пола второго этажа, обозначим ее (Н).
Н = Н1 + Н2 + Н3 +Н4, где:
Н1 – высота от пола первого этажа до потолка первого этажа;
Н2 – толщина потолочного покрытия;
Н3 – высота балок или плит перекрытия;
Н4 – толщина напольного покрытия (окончательный вариант).
Посмотрим на 2-ой рисунок

Чертеж расположения ступеней (вид сверху).
Ширина лестничного марша (С) – расстояние от левой стены до правой, причем стены оштукатурены (окончательный вариант).
Длина лестничного марша (А) – расстояние от задней стены до выхода последней ступени на второй этаж.
Линия хода (L) – расстояние от начала первой ступени до конца последней ступени. Линия хода проводится по центру ступеней. Отрезки на каждых ступенях должны быть одинаковыми.
Посмотрим на 3-ий рисунок
Чертеж расположения ступеней (вид сбоку).
Высота прохода (Нп) – минимальное расстояние от потолка первого этажа, до ступени на которой находится человек.
Нп = 1,9…2,0м
Из рисунка видно, что если мы уменьшаем размер (А), следовательно и уменьшается размер (Нп), значит размер (А) необходимо устанавливать таким, при котором (Нп) будет равно не менее 1,9м. Выполняя данное условие, линия хода (L) должна быть не изменой.
L = корень квадратный из ((В * n)2 + Н2), где
В – ширина ступени по линии хода;
n – количество ступеней, n = Н / N, где
N – количество подъемов
Высота проступи по линии хода (h)
Угол подъема линии хода, зависит от высоты проступи. Чем больше высота проступи тем больше угол подъема (круче лестница), и на оборот, чем меньше высота, тем меньше угол.
Посмотрим на 4-ый рисунок
На нем изображены критические геометрические размеры, которые необходимо использовать при расчетах. Проектирование с учетом анатомии человека. Принимаем оптимальные значения используемых величин:
• Угол подъема = 23…37 градусов
• h = 170…200мм
• В = 250…300мм
• В1 – В = меньше 50мм
• 2h + В = 610…640мм
• С = 0,9…1,5м
Используя полученные данные, можно самому спроектировать любую лестницу. Различные варианты показаны на 5-ом рисунке.
Мы рассматриваем вариант построения модели на примере, выделенного в прямоугольную рамочку. Мне нравится она тем, что не надо использовать опорный столб, лестница без подступенков. Это придает модели определенный шарм и ощущение воздушности и элегантности, несмотря на внушительные размеры.
Компьютерные программы для построения чертежей значительно ускорят вашу работу. Если программ нет, не беда. Можно начертить самому, используя миллиметровую бумагу. При строительных работах по возведению здания, лучше заранее спроектировать деревянную лестницу, и предусмотреть место для вашей конструкции.
И так, сделали замеры, перенесли на бумагу, и нарисовали эскиз. Что у нас получилось смотрим на 6-ом рисунке.

По предложенной схеме, можно построить любую деревянную конструкцию.
Вот так примерно, она будет выглядеть.
Мы подобрали оптимальный вариант, если добавим ступень снизу, а сверху уберем, изменятся размеры А и Нч:
А = А – 270мм
Нч = Нч – 175мм
Сохраняя данную пропорцию можно подобрать приемлемый для вас вариант.
Из полученного эскиза можно приступать к проектированию деталей и их изготовлению:
-тетива;
-ступени прямые и забежные;
-столбы;
-декоративные заглушки для столбов;
-балясины;
-поручни;
-элементы декора.
Как изготовить детали конструкции?
Все по порядку.
Изготовление деревянных ступеней для лестниц, подробно описано в следующей статье.
Заказать чертеж
Поделитесь с друзьями!
kak-cdelat.ru
Самостоятельное проектирование лестниц
Чтобы самостоятельно создать чертеж лестницы, нужно учитывать десятки параметров и строительных норм. Владея всей необходимой информацией, можно без труда составить точный и корректный план. Далее рассмотрим все нюансы проектирования.
Классификация лестниц
Чертеж лестницы зависит от её типа. Общепринятая классификация выделяет следующие типы:
- Прямые лестницы. Наиболее простая относительно проектирования и монтажа разновидность. Одно из главных достоинств – простота и безопасность эксплуатации (при соблюдении всех строительных норм). Единственный недостаток – крупные габариты. Поэтому прямые лестницы возводятся преимущественно в коммерческих зданиях (торговые центры, театры и т.д.).
- Поворотные лестницы с площадкой. Такие конструкции возводятся с целью снизить занимаемую площадь и повысить уровень комфорта и безопасности помещения. Поворотная площадка обеспечивает дополнительное удобство, благодаря тому, что на ней могут разойтись несколько людей, двигающихся в разных направлениях. Также облегчается подъем тяжелых предметов. Поворот осуществляется на 90 или 180 градусов, но бывают и более креативные варианты.
- С забежными ступенями. Разновидность схожа с предыдущей, с тем отличием, что вместо площадок устанавливаются ступени. Проступи имеют форму усеченного треугольника. Такая методика позволяет экономить пространство. Конструкции с забежными ступенями отличаются элегантным внешним видом. Главный недостаток – сложность проектирования и установки.

Примеры схем для лестниц различной конфигурации
- Винтовые. Наиболее компактные конструкции, применяемые преимущественно в зданиях маленькой площади. Также винтовые лестницы используются в качестве дополнения к основной.
Важно: лестницы винтового типа рекомендуется использовать при размере проема до 3 м.
- Радиусные и криволинейные конструкции. Самые сложные в проектировании и монтаже разновидности лестниц. Характеризуются нетривиальными формами и замысловатыми линиями. С монтажом и составлением чертежа под силу справиться исключительно профессионалам.
Терминология
- Марш – прямой участок лестничного пролета.
- Проступь – горизонтальная поверхность конструкции.
- Подступенок – вертикальный элемент, на котором держится проступь.
Обратите внимание: в винтовых лестницах он отсутствует.
- Косоур – балка, на которую монтируются ступени.
- Тетивы – тип балок, между которыми врезаются ступени.
- Лестничная площадка – горизонтальный участок лестницы.
- Средняя линия лестницы – условная линия (отображаемая на чертежах), вдоль которой будут ходить люди.
- Просвет – расстояние от ступеней до потолка.
Общие правила проектирования
Нередко люди, хорошо понимающие черчение на школьном курсе, решаются создать чертеж лестницы самостоятельно. Это может привести к плачевным последствиям, если не знать установленных стандартов.
- Общепринятые границы допустимого уклона 25-40 градусов. При превышении значения 45 градусов, будет наблюдаться значительный дискомфорт при спускании/поднимании. Это актуально для лестниц с забежными ступенями. Если уклон предполагается менее 25 градусов (по задумке проектировщика или из-за особенностей здания), желательно оборудовать конструкцию пандусом.
- Рекомендованный диапазон количества ступеней в одном марше от 3 до 18. Данное ограничение создано в целях обеспечения безопасности. Если конструкция будет слишком длинной, велик риск падения.

Пример обозначения основных параметров на чертеже
- Ступени в пределах одного марша должны быть идентичного размера и формы. Это связано с особенностями мозга и мышечной памяти в частности. Люди редко внимательно смотрят под ноги, спускаясь по лестницам, преимущественно доверяя мышечной памяти. Если в конце марша будут отличные ступени, человек может «на автомате» поставить ногу не в то положение и, как следствие, рухнуть вниз.
- Для наружных лестниц дверь (расположенная в конце марша) должна открываться вовнутрь.
Параметры, необходимые для проектировки
Для создания чертежа лестницы на второй этаж, необходимо иметь точный план нижнего помещения. Он должен включать в себя ниши, двери, окна и выступы. Замер оконных и дверных конструкций производятся по наличникам. Необходимо учитывать расположение относительно пола. Также учитываются следующие параметры:
- Высота проёма. Иными словами расстояние от первого до второго этажа. В качестве точки отчета берется чистовое половое покрытие.
- Ширина проёма. В зависимости от типа лестниц, она может быть представлена различной конфигурацией. Наиболее простое решение — прямоугольная.
- Расстояние от потолка до первого этажа. Данный параметр позволяет вычислить высоту прохода.
- Если отсутствует технический план помещений, он составляется вручную. Схематично с соблюдением масштабирования на бумагу наносится чертеж первого и второго этажа.
Строительные нормы
- Основные габариты конструкции не должны меняться. В противном случае не будет обеспечена надлежащая безопасность эксплуатации.
- Рекомендованная ширина проема: 80-90 см.
- Высота перил (ограждения, которые не позволяют упасть вниз) должна быть в пределах 90-120 см. Они должны быть по обе стороны (исключение, если конструкция примыкает к стене).
- Глубина прямых ступеней должна быть в пределах 20-40 см (оптимальные значения 25-32 см). Высота в диапазоне 10-18 см.
- Оптимальный угол уклона – 45 градусов.
Остальные параметры подбираются исходя из помещения, используемых материалов, типа конструкции и факторов эксплуатации.
Формулы для расчетов

Пример схемы прямой лестницы
Чтобы правильно рассчитать основные параметры, применяются общие формулы:
- Теорема Пифагора (2*а + 2*b = c*2). Используется для определения длины лестничного пролета, где а — высота проема, b — длина проекции лестницы и с — протяженность пролета.
- Количество ступеней: Н/h, где Н — высота проёма, h — высота ступени.
- Показатель комфортного перемещения: 2h + Т, где Т — глубина проступи и h — высота подступенка.
- Длина пролета: К * h, где К – количество, а h – глубина ступени.
- Высота прохода. (Н — 2000)/ h, где Н — высота проема (мм), h — высота подступенка.
Условные обозначения
Чертеж лестницы – это проекция на плоскость. Чтобы схема даровала полноту информации, для каждого проекта составляется план и сечение. На обоих чертежах обязательно указывается направление (куда будут подниматься люди). Нижняя точка конструкции отмечается кружком, верхняя стрелкой.
Для предотвращения путаницы при строительстве в плане обозначаются используемые материалы, согласно ГОСТ 5401-50. Полную информацию можно получить в этом нормативном документе, поэтому расскажем только про наиболее популярные материалы:
- Дерево. На торцевых разрезах обозначается в виде круговых и радиальных штрихов. На продольных схемах в виде продольных линиях.
- Бетон. На любых чертежах обозначается в виде точек и кружков хаотичной формы.
- Металл (любого типа). Обозначается в виде штрихов с диагональными линиями. Если толщина элемента менее 2 мм, используется разметка в виде сплошной заливки.

Условные обозначения строительных материалов по ГОСТ
Советы по составлению чертежей для лестниц различного типа
В зависимости от типа конструкции, методика составления чертежа лестницы будет отличаться.
Прямые
Поскольку это наиболее простой тип конструкции, то и с составлением чертежа проблем обычно не возникает. Делается всё в такой последовательности:
- Рассчитывается предполагаемая длина пролета, исходя из размеров помещения.
- На её основе высчитывается количество ступеней (исходя из их формы и габаритов).
- Объявляется ширина лестницы (при достатке пространства её делают таковой, чтобы 2 человека смогли комфортно разойтись).
- Исходя из количества ступеней, определяется количество маршей. При необходимости добавляется площадка, размещая посередине конструкции.
- Получив основные параметры, их переносят чертеж.
- В конце рассчитываются и наносятся на бумагу дополнительные элементы (косоуры, перила, декоративные изделия и т.д.).
Поворотные
Количество маршей варьируется от 2 до 3. Размешаются площадки исходя из размеров и типа помещения, а также параметров проем. Чаще всего переход размещается снизу и посередине – это обеспечивает максимальную безопасность эксплуатации.
Площадка не должна быть меньше по размеру, чем пролет. В качестве элементов крепления лучше использовать косоуры и тетивы. В остальном проектировка не отличается от предыдущего случая.
Забежные лестницы
Лестницы с забежными ступенями отличаются повышенной сложностью, их рекомендуется проектировать с использованием компьютерных программ. При ручном составлении чертежа крайне сложно добиться точности размеров, а даже мельчайшие огрехи приведут к плачевному результату. Наибольшей популярностью пользуется следующий софт: Consultec Staircon, StairDesigner 5.08a PRO, Mastercam и AutoCAD. Последняя программа является приоритетным выбором для непрофессионалов, так как она отличается простым интерфейсом. К тому же она бесплатна, в отличие от остальных.
Основная сложность проектирования – корректно высчитать форму и количество забежных ступеней. Зачастую их конфигурация не постоянна, поэтому для того чтобы все элементы сошлись воедино, требуется точно высчитать градацию. При использовании компьютерных программ, необходимость в расчетах отпадает – система это сделает автоматически. При ручном составлении плана рекомендуется использовать метод пропорций.

План-проект забежной лестницы с обозначением всех элементов
Винтовые
Ещё один вид нетривиальной конструкции. Чтобы ступени сошлись на всех уровнях, необходимо воспользоваться специальной формулой. Расскажем на примере со следующими исходными данными: высота проема Н — 280 см, ширина S — 100 см, диаметр столба — 20 см. Вычисления:
- Диаметр конструкции = 2*S+d;100*2+20= 220 см. Для того чтобы начертить радиус, делим результат на 2, т.е. получаем 110 см.
- В центр полученной окружности помещаем малую окружность радиусом 10 см.
- Далее прочерчиваем окружность с радиусом R Она будет являться средней линией. Середина ступеней =100/2+10=60 см.
- Количество ступеней = 2GR1/s= 2*3,14 +0,6/0,25 = 15, 07. Округляем до целых, получается 15 ступеней.
- Следующим шагом разделяем окружность R1 на 15 одинаковых частей.
- Высота прохода равна 200 см, толщина ступеней 5 см. Итого высота полного витка равняется: 200+5 = 205 см.
- Высота ступеней: Н1/n= 205/15 = 13,7 см.
- Общее количество ступеней: 280/13,7 = 20,44 шт. (после округления – 21). Для компенсации округления необходимо скорректировать в большую сторону размеры первой ступени. Сделать это можно на этапе монтажа, так как изменения будут не критичными.

Примеры чертежей лестниц в разных проекциях
Заключение
Если у вас недостаточно навыков начертательной геометрии, при составлении чертежа рекомендуется воспользоваться компьютерными программами. Так будет исключен фактор погрешности, связанный с банальной неточностью.
viascio.ru
Проектирование лестниц и некоторые чертежи
Нередко в целях сложно-объяснимой экономии будущие владельцы загородной собственности нанимают разных исполнителей. Дом возводится одним подрядчиком, а внутреннее обустройство доверено абсолютно другой компании. В результате чего проектирование лестниц нужно «приспосабливать» к заданным условиям, тем более что зачастую архитектором данные конструкции прорисовываются лишь абстрактно.
Знать о том, как проектируются лестницы, необходимо и тем, кто самостоятельно строит дачный домик. Ведь, несмотря на кажущуюся простоту, предназначенную для комфортного безопасного перемещения конструкцию нельзя отнести к списку простейших.
Выбор материала для лестницы определяет капитальность дома и степень огнестойкости строения. На выбор формы влияет площадь, выделяемого под строительство лестницы пространства, высота потолков, архитектурный стиль. Самой удобной, обеспечивающей максимально безопасный подъем и движение в обратном направлении признают пологую конструкцию с одним маршем и 15ю ступенями.

Проектирование лестниц: типы конструкций, чаще всего применяемые в загородном строительстве
Однако ограниченность пространства зачастую заставляет искать альтернативные компактные в площади варианты, устанавливать сложные винтовые лестницы: чертежи их с забежными ступенями можно «вписать» практически в любой проект. Сооружение с двумя маршами займет больше пространства, чем винтовой вариант, но меньше, чем простой пологий аналог. В его проекте могут быть, как забежные ступени, так и площадка между маршами.

Чертеж лестницы на второй этаж: слева конструкция с забежными ступенями, справа двухмаршевый вариант с лестничной площадкой
Если предполагается проектирование и изготовление лестниц выполнять полностью самостоятельно, то обратить пристальное внимание желательно на древесину в качестве стройматериала. Она проще в обработке, незначительные ошибки можно будет исправить и переделки не будут излишне дорогостоящими. В отличие от монолитных сооружений, залитых из бетона, все составляющие будущей конструкции не нужно делать на объекте. Собирается она из отдельных элементов, как и лестница металлическая: чертеж может быть рассчитан на строительство любого из существующих типов (винтового, двухмаршевого, пологого, П-образного, полукруглого и др.).

Чертеж простой одномаршевой лестницы на второй этаж
Предваряют проектные работы замеры, нужно точно измерить площадь в плане, размеры проема, высоту от нижнего перекрытия до потолка и мощность верхнего перекрытия с толщиной напольного покрытия. Если замеры выполняются с наличием только черновых полов на обоих этажах, нужно учесть предполагаемую высоту будущего пола.
При недостаточно широком проеме придется увеличивать отверстие, прорубать бетон или отпиливать излишки деревянных балок.

Зачастую для проектируемой лестницы приходится увеличивать проем
Внимание. В проемах для лестниц не должно быть никаких коммуникаций.
Чтобы сделать грамотный чертеж лестницы на второй этаж, потребуется точный план помещения на первом. На нем должны быть точно указаны ниши, выступы, окна и двери, если они будут примыкать к лестнице. Замеры дверей выполняются по наличникам, для точного обозначения окна потребуется еще и расположение его относительно пола и габариты подоконника.

Чертеж лестницы с забежными ступенями: ширина в самом узком месте забежной ступени не должна быть меньше 10 см
Необходимые для дальнейших расчетов характеристики:
- ширина марша;
- крутизна;
- число ступеней.
Все указанные параметры зависимы друг от друга, нельзя ни один из них просто назначить произвольно.
Подбираем удобную и безопасную ширину ↑
[include id=»1″ title=»Реклама в тексте»]
При перемещении по лестнице в любом из направлений пользователи не должны испытывать дискомфорт с ощущением слишком узкого пространства и опасности. Под шириной понимают расстояние между двумя поручнями или расстояние между поручнем и ограждающей стеной. Осуществляется ли проектирование винтовых лестниц или элементарных одномаршевых конструкций, для определения данного параметра используются равнозначные строительные стандарты:
- 125 см закладывают в проект при желании добиться повышенной комфортности;
- 110 см, если сооружение будет расположено между двумя стенами;
- 90 см, если конструкция имеет два ограждения либо примыкает одной стороной к стене;
- 80 см с одним ограждением допустимы, если не предполагается использовать лестницу для переноски крупногабаритных предметов;
- 70 см уместны в садовых домиках и в бытовых помещениях.

Ширина лестницы должна обеспечивать свободный проход, не создавать дискомфорта и не внушать ощущение опасности
Следует знать, что под винтовые лестницы чертежи должны выполняться с учетом минимальной ширины в 110 см, оптимальный размер 140 см. Шириной винтовых конструкций является расстояние от края ступени до опорной центральной стойки. Если марши лестниц будут направлены друг другу «навстречу», между ними должно быть расстояние минимум в 10 см.
Крутизна или проще – уклон лестницы ↑
Параметр взаимосвязанный с габаритами ступеней и с площадью проектируемого сооружения. Крутые лестницы занимают мало места, но не отличаются комфортом, пологие варианты удобны, но полезной площади отнимут немало. Желающие совместить комфорт и безопасность перемещения с минимальной потерей площади выбирают двухмаршевые типы, сами выполняют или заказывают чертеж лестницы с забежными ступенями или проект конструкции с лестничной площадкой.

Наиболее удобные углы подъёма лестницы находятся в диапазоне от 23 до 37°, чем круче лестница, тем опасней подъем и спуск по ней
- Вместо лестницы с уклоном 23º можно устроить пологий пандус.
- Наиболее комфортабельный уклон свыше 23º, меньше 37º.
- Уклон в 45º переводит конструкцию в разряд сооружений, спускаться по которым можно, только повернувшись лицом к лестнице.
Свыше 50º уклон может быть только у приставной лестницы.
Расчеты габаритов ступени ↑
Самым удобным для перемещения в обоих направлениях по лестнице признано соотношение, равное сумме ширины проступи (g) с умноженной на два высотой подступенка (h).
g + 2 h = от 62 до 64 см (стандартный шаг взрослого человека по прямой траектории)
Любые вариации со значениями высоты и ширины ступени должны отвечать данному требованию. В зависимости от крутизны будущего сооружения и личных предпочтений расчетным образом подбирают размеры ступеней.

Проектирование и изготовление лестниц: расчет ширины проступи и высоты проступенка зависит от крутизны сооружения и личных предпочтений
Ногу удобно поднимать на высоту не более 32 см, но максимально комфортной высотой ступени считают 15 см. Делать подступенок выше 17 см не рекомендовано. Если выполняется проектирование деревянных лестниц, конструкций из бетона или металла с двумя и более маршами, следует помнить, что удобней всего, чтобы в одном марше было 10-15 ступеней.
В зависимости от назначения лестницы выбирается ширина проступи. Минимум ее 20 см, стандарт 32 см, рекомендованный предел 40 см. Допустимо нависание проступи над подступенком, если габариты конструкции не позволяют сделать достаточно широкую проступь. При проектировании забежных ступеней следует учесть, что меньше 10 см ширины их в узкой части быть не должно.

Максимальное допустимое отклонение высоты подступенка последней ступени в марше
Обратите внимание. Все ступени лестницы должны быть конгруэнтны: с равной шириной и высотой. Максимальное отклонение 0,5 см.
[include id=»2″ title=»Реклама в тексте»]
Количество проступей в маршевых лестницах с площадками всегда на одну единицу меньше, чем количество подступенков, так как одна из проступей располагается на площадке.
Воображаемая средняя линия ↑
Проектировщик лестницы с прямым маршем традиционно прокладывает ее посредине. А вот в криволинейных конструкциях среднюю линию маршей мысленно проводят в 0,4-0,5 м от стойки или края пролета. Ширина забежных ступеней вдоль средней линии должна быть равнозначна ширине ступеней простых прямых маршей.

Средняя линия в проектах с забежными ступенями проходит в 40-50 см от внутреннего ограждения, вдоль средней линии ширина проступи должна быть равна ширине ступени с прямым маршем
Расчет высоты прохода ↑
Просвет – характеристика, которой стоит уделить внимание, если самостоятельный проектировщик заинтересован в обеспечении комфорта.

Комфортный для передвижения просвет должен быть соблюден и при проектировании винтовых лестниц, и при создании проекта простой маршевой конструкции и при изготовлении лестницы на мансарду
Замечено, что при высоте прохода, превышающей рост идущего по лестнице человека на 5 см, он инстинктивно будет пригибаться и втягивать голову. Потому нормой просвета признана высота от 1,9м до 2,0м. Высота прохода по всей протяженности лестницы должна быть равнозначной.
Разобравшись с нюансами проектирования, с задачей расчета и построения лестницы без проблем справится каждый желающий обеспечить свой дом надежной удобной конструкцией. Сведения об особенностях проектирования помогут владельцам загородных особняков, доверившим строительство лестницы сторонним исполнителям, грамотно отслеживать выполнение.
strmnt.com
Проектирование лестницы в частном доме программа
Главная / Библиотека / Как происходит проектирование лестницы на второй этаж
Как происходит проектирование лестницы на второй этаж
При строительстве частного дома вопрос о том, каким должен быть подъем на второй этаж, должен возникнуть еще на этапе проектирования. Лестница может стать незаметным элементом вашего интерьера, но при желании на ней можно сделать акцент, разграничив пространство первого этажа в загородном доме. На фото видно, как с ее помощью можно обыграть дизайн интерьера, вписав ступеньки в общий стиль.

Проект лестницы на второй этаж
Основные этапы проектирования лестницы в частном доме
Планировка лестничной конструкции включает в себя следующие этапы:
- выбор места расположения лестницы;
- определение высоты помещения, а значит, и высоты лестницы;
- отведение площади первого этажа, на которой будет возводиться лестница;
- выяснение возможных предельных нагрузок;
- сравнение множества вариантов конструкций и материалов и выбор нескольких наиболее понравившихся;
- проведение вычислений и расчетов.

Все указанные этапы проводятся в момент проектирования лестницы в частном доме, то есть в момент составления чертежей. Необходимо также исключить вероятность появления трещин, проседания и разрушения конструкции.

Требования СНИП при монтаже лестницы
Согласно требованиям СНИП, выделяют определенные требования к размерам ступеней и ширины марша. При проектировании лестницы в подвал или на второй этаж в частном доме своими руками учтите, что ширина марша должна превышать 90 см. Под шириной марша понимается расстояние между двумя противоположными перилами или стеной и ограждением.

Нормы СНИП подразумевают, что при большом количестве ступеней должны быть предусмотрены промежуточные площадки с ровной поверхностью. Проект лестницы должен быть выполнен с учетом того, что расстояние от любой ступени до самого потолка не должно быть менее двух метров. Это позволит подниматься по ней людям высокого роста.

Лестницы, представленные на видео, выполнены с соблюдением всех требований. Как видите, это не помешало им выглядеть эффектно и оригинально.
Особые требования предъявляются в СНИП к размерам ступеней:
- ступени одного марша не должны отличаться друг от друга размерами, ведь люди инстинктивно поднимают ногу на ту же высоту, которую преодолели перед этим;
- высота подступенка для частного дома допускается в пределах 15-20 см, но никак не ниже 12 см;
- ширина проступи может варьироваться от 25 до 30 см;
- поручни устанавливаются на высоте не менее одного метра от ступеней, а в случае наличия в доме маленьких детей или пожилых людей рекомендовано поднять поручни на высоту как минимум 1,2-1,3 м.

На что стоит обратить внимание при создании проекта лестницы
При проектировании лестницы для монтажа ступеней своими руками учтите следующие параметры:
- расстояние между этажами;
- возможность установки опор;
- предполагаемый дизайн;
- возможность установить как минимум три ступеньки на каждом марше.

Количество ступенек, пролетов, их размеры и габариты не выбираются произвольно, а напрямую зависят от конструкции лестницы. При проектировании учтите, что на подъем тратится гораздо больше сил, чем на спуск или движение по прямой.
Лестничный уклон не должен меняться от марша к маршу. Ограждения должны выдерживать нагрузку до 100 кг на метр и не иметь большого расстояния между балясинами. При проектировании лестницы важно заранее продумать удобное расположение выключателей и хорошую освещенность лестничного проема. Особенно важно предусмотреть в проекте освещение первой и последней ступеней, особенно если рядом с лестницей нет окон, дверей или коридоров. Все проекты рассчитываются индивидуально с учетом требований техники безопасности.
Использование специализированных программ проектирования лестниц
Чертеж всего дома и лестницы в частности лучше всего производить с использованием специализированных программ. Профессиональные чертежи составляются в режиме онлайн и позволяют учесть все особенности вашей квартиры и пожелания будущих жильцов. Современные программы позволяют сделать несколько фото разных вариантов дизайна со всевозможными конструкциями лестниц.
Есть возможность попробовать спроектировать дизайн интерьера самому. Но лучше обратиться к специалисту, ведь этот процесс требует определенных знаний и навыков. Кроме того, программы, которыми пользуются профессионалы, не предоставляются в открытом доступе, поскольку имеют гораздо больше специфических возможностей: подбор оптимального варианта, возможность прокрутить лестницу в нескольких направлениях и изменить некоторые ее составные части. После того, как предварительный проект окончен, программа позволит вам приступить к следующему этапу – расчету технической документации, составлению чертежей и спецификаций. Заметьте, что все процессы будут произведены автоматически.

И обязательно обратите внимание на то, чтобы ваша лестница гармонично вписывалась в общий дизайн: даже самые красивые ступени с позолотой и массивными скульптурами не украсят интерьер, выполненный в стиле хай-тек.
Обзор программ для проектирования лестниц
При возведении любого строения очень важным этапом является проектирование всех элементов будущего здания, от фундамента до крыши. При строительстве дома в два и больше этажей актуальным становится проектирование лестницы.
Лестница — необходимый элемент интерьера не только в многоэтажных зданиях, но и в частных домах. Чтобы она не смотрелась не к месту или не выделялась из общего дизайна нужно верно рассчитать ее местоположение в помещении, выбрать материал для изготовления, то есть правильно подойти к проектированию.
Неправильно произведенные расчеты или подобранные материалы могут сказаться на надежности конструкции и на удобстве эксплуатации. Красивая лестница придаст дому изысканность и неповторимость.
Особенности проектирования
Проектирование начинается с подбора места, в котором она будет занимать меньшую площадь и будет удобна. Затем определяется ее тип и основные характеристики: глубина и высота ступеней, ширина лестничного марша. высота перил. материал изготовления, отделки и декор. Затем просчитываются параметры, определяются расходы на изготовление.
Типы лестниц
Лестницы в доме могут быть различных типов. Наиболее распространенные следующие:
- обычная с межэтажной площадкой;
- угловая;
- винтовая;
- прямая без площадки;
- комбинированная.
При выборе типа нужно учитывать площадь дома, планировку, соответствие общему дизайну помещения.
При проектировании очень важную роль играет то, из чего будет изготовлена конструкция, так как проект должен учитывать свойства используемого материала. В его качестве применяют дерево, металл, железобетон и другие материалы. Для домашнего использования оптимальным будет изготовление лестницы с металлическим каркасом, обшитым деревом. Это удобно, так как из металла можно сделать любую конструкцию. он прочный и может выдержать любые нагрузки и со временем не потеряет своих свойств. Дерево также дает полет для фантазии.
После определения основных характеристик будущей лестницы можно приступать к проектированию. Данный процесс достаточно сложен и ответственен.
Программы для проектирования
Технологии не стоят на месте и сегодня можно найти специальные компьютерные программы для проектирования лестниц. Они легко решают задачи моделирования конструкций любой сложности. С помощью таких программ можно не только сделать проект инженерной конструкции, но и увидеть постройку в 3D-изображении. Сейчас программы для проектирования настолько усовершенствованы, что воспользоваться ими может не только профессиональный дизайнер, но и обычный пользователь. Пользоваться программами можно как онлайн, так и скачать и установить их на компьютер.
Самыми популярными для скачивания программами на сегодняшний день являются следующие.
- Consultec Staircon. Одна из самых известных программ для проектирования лестниц. Системные требования минимальны. Языки интерфейса английский и русский. Программа предназначена для проектирования, контроля изготовления, составления сметы. Поможет подобрать оптимальные материалы для определенных конструкций. Присутствует 3D-визуализация проекта. Проста в использовании, позволяет быстро отредактировать проект. Очень широкий выбор конструкционных деталей, можно сделать лестницу на любой вкус. Программа имеет четкую и понятную структуру, легкое руководство и помощь в проектировании. Она была разработана специально для промышленности, которая специализируется на изготовлении лестниц. Для изготовления проекта потребуется лишь несколько параметров размеры рассчитываются автоматически в различных режимах. На чертежах их можно изменять и дополнять.
- StairDesigner. Это универсальна программа для проектирования лестниц. В ней возможен просмотр 2D и 3D-изображения. С ее помощью можно проектировать лестницы не только для жилых помещений, но и для промышленных зданий. Проектирование включает использование всех составляющих: перила, ступеньки, косоуры, балясины и другие. Проект составляет с учетом материалов и их свойств. В этой программе можно спроектировать изделие любого типа, от простой прямой до винтовой. Также можно создать лестницу нестандартной формы. Программа учитывает все строительные нормы. Также есть функции оптимизации формы лестницы, ступенек, перил. Опции контроля позволяют следить за тем, чтобы ступеньки не были слишком крутыми или маленькими, занимали большую площадь или располагались под большим углом. Таким образом, проектируя лестницу в этой программе можно быть уверенным в удобстве ее использования. На любом этапе проектирования можно увидеть ее в 3D-изображении. Недостатком этой программы является то, что языки интерфейса — английский и немецкий, нет русского.
Compass Staircase. Эта программа соответствует всем возможным требованиям. С ее помощью можно подчеркнуть все детали конструкции и проектировать ее по своим индивидуальным параметрам. Очень широкая библиотека конструкционных деталей. В программе возможен вывод на печать чертежей в масштабе 1:1. независимо от типа лестницы программа предлагает разнообразные решения проектирования даже для сложных конструкций. Возможно комбинирование различных форм и деталей с целью получить идеальный результат. Преимуществом является удобный интерфейс с возможностью русифицирования. Программа позволяет проектировать лестницы за минимальное количество времени.
Каждую из этих программ можно бесплатно скачать на многих сайтах.
Кроме программ, которые можно установить на компьютер, есть и такие, что позволяют проектировать онлайн. Самыми известными из них являются Лесенка.com и Расчет лестницы WeBsr. Для проектирования в этих программах нужно минимальное количество параметров. После ввода размеров в течение нескольких минут можно получить проект будущей лестницы. Кроме того, возможен расчет стоимости изготовления.
Таким образом, проектирование с использованием компьютерных технологий становится легким и увлекательным процессом, с которым справится любой пользователь.
Барсуков Виктор Иванович
Программы для составления проекта лестниц в частном доме

При малоэтажном строительстве домов не обойтись без качественной программы проектирования лестниц на русском языке. Хорошие варианты есть, но многие из них не русифицированы, и неудобны в использовании. В зависимости от технической сложности проекта для расчетов применяется профессиональный инженерный софт и простые утилиты.

Интерфейс программы для проектирования лестниц
Существует целый набор инструментов для моделирования пролетов и 3D изображений лестничных конструкций. Чтобы выбрать необходимый софт надо разобраться в достоинствах и недостатках различных программных продуктов.
Инженерный софт для расчета лестниц
Профессиональные инженеры, в качестве программ для проектирования лестниц на русском языке, используют универсальные продукты. Наиболее часто в проектных компаниях используются: ArchiCad, AutoCad и Лира.
Кроме моделирования общей конструкции программы позволяют подобрать необходимый для строительства материал, учесть его количество, рассчитать затраты на проведение работ и подготовить техническую документацию. Поскольку к каждой лестнице необходим индивидуальный подход, общестроительные программы идеально подходят для проектирования любых типов конструкций.

Проектирование лестницы в программе ArchiCAD
Они одинаково хорошо делают расчет металлической лестницы. чертеж деревянных лестниц и бетонных маршей. Для пользователя софт не простой, требует специфических знаний и навыков.
Чуть проще в использовании SolidWorks. Программа разработана для создания конструкций промышленных объектов. Она позволяет спроектировать 3D модель любого уровня сложности, выдает конструкторскую документацию. Софт снабжен анимацией, проецирует возможности движения, падения, имеет разные степени прорисовки. В SolidWorks легко проверить стыковку деталей лестницы.
Если заниматься строительством лестниц профессионально, стоит освоить работу с подобными инструментами. Но ради однократной постройки неделями изучать сложные инженерные инструменты вряд ли целесообразно.

Проектирование лестницы в программе SolidWorks
Пользовательский софт для проектирования лестниц
Специально для расчетов и моделирования частных конструкций созданы инструменты, которые просты в использовании и на выходе предлагают достаточно информации для производства работ. Такие программы проектирования лестниц на русском языке не слишком сложны в применении. Овладеть принципами работы способен любой, кто знаком с графическими редакторами.
Специализированные конструкторские программы
К специализированному софту относятся те программы, которые разработаны именно для конструирования лестниц:

Названия различных элементов конструкции лестницы
Программа для проектирования лестниц, которая позволяет быстро подготовить макет, составить документацию для контроля производства работ и смету. Готовый лестничный марш можно просмотреть в 3D, в любой момент отредактировать. Для создания модели необходимо задать всего несколько параметров, остальное программа рассчитает автоматически. Инструмент позволяет выгружать результаты в другие программы, например в AutoCad, как целиком, так и подетально.
Compass Staircase
Compass Staircase или Компас применяется для создания подробных конструкций и нестандартных лестничных маршей с забежными ступенями. Имеет большую библиотеку деталей, и возможность их комбинирования. Программа позволяет подготовить чертежи в масштабе 1:1. Быстрота прорисовки макета практически не зависит от его сложности.
«Лестницы» для AutoCad
Специализированное приложение для AutoCad предлагает 25 базовых моделей. Коллекция сокращает время работы над проектами по индивидуальному заказу. Содержит угловые модели, винтовые, криволинейные макеты и лестницы с прямым маршем.
Wagemeyer GmbH
Удобная и несложная программа для проектирования лестниц, с детальной проработкой элементов. Дает возможность вывести изображение для 3D презентации. Предоставляет полную калькуляцию проекта.
Софт разработан для нескольких видов лестниц: стальных, винтовых, деревянных. Кроме этого можно смоделировать варианты установки перилл и ступеней на уже существующие конструкции из любого материала: бетона, стали, дерева, камня.
Размер проектируемого марша ограничен тремя этажами. При совершении ошибок, сопряженных с нарушением строительных норм, программа выделяет их. Есть возможность распечатать каждую деталь отдельно для её производства.
Программа используется как для работы с шаблонами, так и с проектами по индивидуальному заказу.
Оптимизирует расчеты конструкций по подъему, высоте пролета. Вычисления происходят автоматически на основе заданных а. Подходит для всех видов лестниц. Программа удобна для визуализации макета в условиях проекта здания.
Из пользовательских продуктов SEMA — одна из самых трудных в освоении. Все вышеперечисленные программы хорошо подходят для тех, кто занимается изготовлением лестниц на заказ, особенно при использовании станков с числовым программным управлением.
Специализированный и инженерный софт лицензирован и не распространяется бесплатно. В видео показан процесс построения лестницы в программе SEMA.
Софт для моделирования лестниц
Подбирая программу проектирования лестниц на русском языке, не всегда преследуют цель создать схему лестницы на второй этаж и рассчитать материалы. Иногда достаточно простой визуализации, например, для того, чтобы выбрать тип лестницы в контексте помещения или показать клиенту примерный внешний вид будущей конструкции. В таком случае будет проще воспользоваться софтом по компьютерному черчению и графическими редакторами:
Эти приложения применяют, чтобы быстро смоделировать внешний вид лестницы. Принцип работы заключается в сборке конечной конструкции из простых деталей: ступеней, перил, балясин. Декоративных элементов в них отображено не будет, но геометрия вполне даст представление о модели в целом. Кроме этого, задав правильные параметры, станет понятна детальная раскладка проекта.

Интерфейс программы для моделирования лестниц
Автоматизация в графических и чертежных редакторах отсутствует, элементы необходимо прорисовывать и компоновать вручную.
Онлайн-программы и калькуляторы
Для простейших расчетов можно воспользоваться программами проектирования лестниц на русском языке, которые имеются в сети. Существуют утилиты, разработанные инженерами-проектировщиками и небольшие программки, созданные пользователями для частных проектов и выложенные в общий доступ. Удобная программа для расчета лестницы онлайн – конструктор, позволяющий не только сделать вычисления, но и визуализировать результат.
Воспользоваться подобной программой можно, пройдя по ссылкам:
- zhitov.ru/lestnica/;
- lesenka.com/ru/projecting.aspx;
- constructor.stolyarych.ru/#!/1030003000200030004230300080010111111105022112111100211000000000054.

Интерфейс онлайн калькулятора для расчета лестницы в доме
Лестничные калькуляторы позволяют мгновенно вычислить основные размеры лестницы по заданным параметрам. Для проектирования лестниц имеется множество инструментов. Как показывает практика, любой софт, кроме профессионального, имеет ряд ограничений и неудобств.
Проекты часто приходится дорабатывать в нескольких программах, чтобы получить нужный результат. Если с производством или проектированием лестниц связана работа, следует потратить средства, время и усилия на изучение инженерных программных продуктов.
Источники: http://2ladders.ru/lestnicy-na-vtoroj-etazh-2, http://lestnica.guru/raschet/obzor-programm-dlya-proektirovaniya-lestnic.html, http://proekt-sam.ru/lestnica/programmy-proektirovaniya-lestnits-na-russkom-yazyke.html
lestnica-mpl.ru
Дизайн деревянных лестниц в доме: красивые решения
Какую лестницу построить на второй этаж? Этим вопросом задается почти каждый владелец частного дома. Основными критериями выбора являются безопасность и удобство конструкции в эксплуатации. Важен и тот момент, насколько органично она впишется в интерьер. Поэтому дизайн лестницы в деревянном доме не уходит на второй план при составлении проекта.
Варианты дизайна лестниц
Деревянные лестничные конструкции бывают нескольких видов:
- Винтовые лестницы – это эксклюзивное дизайнерское решение для тех, кто хочет внести в домашнюю обстановку изюминку. Внешне они представляют собой конструкции с изогнутыми перилами. Спиральные лестницы очень красивы и придутся по вкусу ценителям модернизма. Но они неудобны для людей пожилого возраста. К недостатку конструкции можно отнести также сложность ее исполнения. Поэтому для их сооружения нередко прибегают к помощи профессионалов.
- Маршевые лестницы подкупают своей простотой, надежностью. Они безопасны в эксплуатации, подходят для людей любого возраста.
Маршевые сооружения – это наиболее часто используемые лестничные конструкции. Различают несколько подвидов лестниц:
- на косоурах;
- на тетивах;
- на больцах.
Лестницы на косоурах
Косоурами называют несущие балки под наклоном, на которых крепятся ступени, ограждения. Методы крепления бывают разными и зависят от количества балок. Исходя из свойств конструкции и формы, они бывают прямыми, ломаными, эвольвентными.
Сооружения на косоурах имеют следующие преимущества перед другими видами лестниц:
- высокий уровень безопасности;
- универсальный внешний облик, благодаря которому они хорошо будут смотреться как в обычном бревенчатом доме, так и в элитном коттедже.
- наличие большого выбора размеров, декора;
- возможность выбора использования подступеней.
Косоурные сооружения привлекательны еще тем, что на основе традиционной модели можно создать красивые деревянные лестницы по индивидуальному заказу. Например, конструкции можно придать легкости за счет стеклянных перил или прозрачных поручней из пластика.
Прозрачные перила создают ощущение легкости и воздушностиЛестницы на тетивах
Основу конструкции составляют боковые несущие балки с пазами, в которые вставляются ступеньки. Для изготовления такого типа лестниц берут зачастую древесину, хотя в последнее время на рынке стали появляться модели из пластика.
Лестницы на тетивах устанавливают, как правило, в небольших загородных домах. Среди положительных моментов таких сооружений отмечают следующие:
- возможность замены отдельных конструктивных элементов;
- несложный монтаж;
- безопасность, высокая прочность;
- широкий выбор формы лестницы: спиральная, Г-образная, с закруглением или прямая;
- возможность реализации разнообразных дизайнерских решений: расстановка балясин в свободной форме, наличие или отсутствие подступеней.
Минусами сооружения на тетивах являются высокоточные расчеты и наличие опыта при выполнении работ. Ошибки в проекте или ненадежные крепления отрицательно скажутся на безопасности объекта. Расхождения несущих балок, выпадение ступеней из пазов чревато получением серьезных травм.
Конструкция на больцах
Больцы – это прочные опоры из металла, закрепленные болтами. Конструкция отличается незамысловатостью, надежностью, долговечностью. Так как несущая балка крепится к потолку, стене или полу металлическими стержнями, сооружения могут выдержать очень большую нагрузку.
Лестницы на больцах хороши тем, что их можно в любое время разобрать, отремонтировать или реконструировать. Для таких сооружений подойдут открытые и закрытые ступени. Они могут быть любой формы, размера.
Красивые лестницы на больцах в деревянном доме придают интерьеру воздушность и легкость из-за отсутствия ярко выраженного несущего элемента. А свободную под ними площадь можно использовать рационально. Например, сделать там небольшую библиотеку, установив 2-3 стеллажа книг.
Винтовые лестницы
Сооружения такого типа отлично подойдут любителям оригинального интерьера, а также владельцам помещений с ограниченным количеством полезных квадратных метров.
Спиральную конструкцию образуют: опорный столб, ступени, ограждения, перила. По форме лестницы бывают самыми разнообразными: от круглых до 8-угольных.
Каркас винтового сооружения производится в большинстве случаев из металла. Однако нередко встречаются модели, сделанные только из дерева. Прочность, долговечность – основные преимущества винтовых лестниц. Однако такие конструкции не рекомендовано устанавливать в домах, где есть дети и люди преклонного возраста с нарушениями опорно-двигательного аппарата.
Материалы для изготовления лестниц
При производстве лестничных конструкций используют:
- древесину;
- бетон;
- стекло;
- металл;
- камень;
- фанеру;
- комбинацию материалов.
Большим спросом пользуются металлические конструкции. Они считаются экологически чистыми, надежными, долговечными, приемлемыми по цене. Нередко практикуют комбинацию этих материалов со стеклом, камнем, пластиком. Это позволяет приблизить конструкции к стилю интерьера.
Комбинация металлокаркаса и ступеней из дереваДеревянная лестница в современном стиле изготавливается из таких древесных пород, как сосна, дуб, бук, пихта, лиственница, береза. Такие конструкции могут дополняться перилами из металла, украшенными ковкой.
Кованые ограждения в корне меняют общее восприятиеСооружение из камня выглядит также не менее эффектно и характеризуется длительным сроком службы. Однако для его установки требуется высокопрочная основа, так как камень является тяжелым материалом.
Камень достаточно тяжелый, поэтому для конструкции из этого материала необходимо прочное основание из бетонаИз натурального камня делают зачастую ступени или подступенки, а все остальные элементы – из искусственного, что существенно облегчает конструкцию. Ненатуральный камень уступает природному по своим характеристикам, но по внешнему виду мало чем от него отличается.
Особенно красиво и богато смотрятся каменные лестницы с ковкой. Интересный вид создают ступени из необработанного камня в сочетании с перилами из искривленных веток.
Ступени из необработанного камня придают интерьеру атмосферу старинного замкаБетон считается самым бюджетным отделочным материалом для лестниц. Несмотря на свою прочность и безопасность, он не отличается своей долговечностью.
Для стилей хайтек, поп-арт, лофт подойдут лестничные конструкции со стеклянными ступенями. Они выполнены из высокопрочного закаленного стекла, поэтому по ним можно смело ходить.
Конструкции со стеклянными ступенями отлично вписываются в стиль хайтекПопулярные стили лестниц
В настоящее время существует много вариантов стилей лестничных конструкций. Их количество постоянно меняется, так как элементы дизайна совершенствуются, дополняются, образуя при этом совершенно новый стиль.
Однако принято выделять несколько самых известных подходов:
- Прованс. Такие лестницы отличаются от других светлым тоном, лаконичностью, легкостью, однообразной балюстрадой. Сооружения в этом французском стиле изготавливают обычно из дерева либо камня. Почитателями такого стиля являются спокойные, уверенные в себе люди.

- Лофт. Для него характерны четкость, прямолинейность контуров, грубые формы. В сооружениях такого типа отсутствуют закрытые перила, фигурные балюстрады. За счет грубых ступеней из дерева этот стиль никогда не спутаешь с другим.

- Американский стиль. Для изготовления конструкций используют дерево, камень, металл, органику. Глядя на такое сооружение, создается впечатление, что оно умеет дышать.

- Скандинавский стиль. Его основные признаки – контрастные цвета, массивная конструкция, дизайн без излишеств. Особенно эффектно смотрится белая лестница в скандинавском стиле в деревянном доме.

- Классика. Спокойные сооружения из натурального камня, дорогостоящей древесины и с коваными элементами декора придают интерьеру изысканность, элегантность.

- Лестницы в стиле шале. Их устанавливают в загородных домах, на дачах. Они бывают поворотными, винтовыми, забежными, одномаршевыми, г-образными.

Цветовые решения
Лестничные сооружения должны быть выполнены в цвете, гармонирующим с интерьером. Сегодня для выбора представлен широкий ассортимент оттенков. Самыми востребованными являются:
- Ореховый цвет. Он представлен разнообразной гаммой оттенков. Лестница орехового цвета может быть как светлой, так и темной, с красным или золотистым оттенком. С «ореховой» лестницей прекрасно сочетаются полосатые обои бежевого цвета, темный пол.

- Цвет венге. Цветовая гамма варьируется от темно-коричневого до почти черного. Конструкция цвета венге хорошо смотрится со светлыми обоями розового, оливкового, фисташкового, молочного цвета.
- Цвет дуб. Дуб бывает любого оттенка, начиная с белого и заканчивая черным. Конструкции такого цвета гармонируют с голубым, золотым, серым, бежевым, желтым оттенками.

Лестничные конструкции могут быть и двухцветными. Например, красиво и богато выглядит сооружение, сочетающее в себе белый и черный цвета.
Варианты перил
Перила – это составные элементы лестничных сооружений, которые выполняют следующие функции:
- служат для удобного, безопасного подъема и спуска;
- выступают в качестве декора.
В конструкцию перил входят поручни, балясины. Под поручнем подразумевается планка, которая идет вдоль марша лестницы. Балясина – это элемент, выполняющий функцию поддержания поручня.
На строительном рынке представлен широкий выбор перил. Они бывают разных моделей:
Выбор того или иного варианта перил зависит от стиля интерьера и вкусовых предпочтений хозяина дома.
Подсветка лестницы
Освещение лестничной конструкции используется для безопасного движения по ней и для украшения. Выбрав тот или иной тип освещения, можно создать подходящую атмосферу в доме.

Подсветка ступеней на лесенке способствует безопасному передвижению по ней в темноте.
Практичное и эстетичное использование пространства под лестницей
Образовавшуюся под лестницей свободную площадь можно использовать с пользой:
- Создать зону отдыха. Уютный диванчик, торшер, книжная полка, журнальный столик и кружечка чая – это все, что нужно после напряженного рабочего дня.

- Организовать рабочее место или кабинет. Это будет прекрасное решение в случае недостаточного количества комнат в доме.

- Поставить шкаф или стеллаж. Декорированный различными предметами, он станет изюминкой вашего интерьера.

Рационально используют не только место под лестницей, но и между ступенями. Под ними создают специальные ящики для хранения вещей: обуви, журналов, газет. Слишком перегружать лестницы вещами не стоит, так как это может привести к разрушению конструкции.
Лестничное пространство между маршами заполняют мягкими сидениями и используют эту зону для чтения любимой книги или вечерних посиделок с близкими людьми.
Лестницы с оригинальным дизайном – фото
Порой дизайнеры так увлекаются своими идеями, что создают из декоративных деревянных лестниц настоящие произведения искусства, от которых невозможно оторвать глаз.
domzastroika.ru

Деревянная лестница с прямыми маршами
Нормы строительства лестниц в частных домах и других зданиях и сооружениях
Пожарная лестница для дома
Compass Staircase. Эта программа соответствует всем возможным требованиям. С ее помощью можно подчеркнуть все детали конструкции и проектировать ее по своим индивидуальным параметрам. Очень широкая библиотека конструкционных деталей. В программе возможен вывод на печать чертежей в масштабе 1:1. независимо от типа лестницы программа предлагает разнообразные решения проектирования даже для сложных конструкций. Возможно комбинирование различных форм и деталей с целью получить идеальный результат. Преимуществом является удобный интерфейс с возможностью русифицирования. Программа позволяет проектировать лестницы за минимальное количество времени.









