Оригинальный проект двухэтажного дома с гаражом и террасой
30.08.2018 | Рубрика: Архитектура, Проекты домов

Говорят, все новое – это хорошо забытое старое. А если оно еще и не забытое, а много лет пользующееся популярностью – тем более. Именно так и получилось с одним из проектов нашего архитектурного бюро. Созданный еще в 2013 году, он до сих пор получает живые позитивные отклики. Поэтому, приступая к проектированию дома с гаражом в деревне Старосъяново Московской области, мы взяли за основу именно этот коттедж. Посмотреть, как он выглядит, можно здесь https://arch-buro.com/proekt-zagorodnogo-doma.html.
Проект двухэтажного дома в стиле модерн-шале: общая планировка и материалы
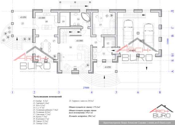
Изначальная задача состояла в том, чтобы спроектировать достаточно просторный дом, в котором хватило бы места и семье клиентов, и их гостям, и организации досуга и развлечений. Из этого запроса мы и исходили. Согласно нашему плану площадь застройки составляет 294 кв. м., благо размеры участка позволяют не экономить на просторе и комфорте.

В проекте двухэтажного дома в Старосъяново предусмотрены просторный гараж на два автомобиля с подъездным пандусом, облицованным плиткой, широкое крыльцо, подняться на которое можно по ступеням оригинальной округлой формы, а также светлая и уютная терраса для посиделок на свежем воздухе в хорошую погоду.

Центральная часть фасада остеклена практически по всей высоте строения. Огромные окна вносят весомый вклад в решение задачи качественной инсоляции. Скатная крыша сложной конфигурации покрыта металлочерепицей элегантного графитового оттенка, стены возведены из экологически безупречного керамического кирпича, усилены наружной теплоизоляцией и облагорожены финишной отделкой.
Для наружного декора мы использовали универсальные материалы, способные выдерживать любые климатические условия: дышащую декоративную фасадную штукатурку, обработанное термическим способом натуральное дерево для вставок и ограждений, а также бетонный искусственный камень, очень похожий на свой природный прототип – дикий камень.

Общая цветовая гамма строения – бело-бежево-коричневая – спокойная, визуально комфортная, умиротворяющая, без ярких вкраплений, о которые спотыкается взгляд.
Внутренняя планировка в проекте дома с гаражом и террасой
В двухэтажном доме получилось, по сути, 3 этажа. Все потому, что мы решили не использовать помещения, находящиеся на уровне цоколя, под банальные погреба и подполы. В высоком цокольном этаже нашлось место и для двух тренажерных залов, и для бильярдной, и для прачечной, и для мастерской. Также здесь расположились котельная и помещение для вентиляции.

Первый этаж в нашем проекте дома с гаражом и террасой спланирован по всем правилам комфорта и функциональности. С крыльца посетители попадают в тамбур. В него, кстати, можно перейти и прямо из гаража. Есть и отдельный вход с террасы – он ведет прямо в кухню. При организации трапез на свежем воздухе это удобно для хозяйки – приготовленные блюда можно быстро вынести к столу.

На первом этаже располагаются также гостиная и столовая, вместительные кладовая и гардеробная, а еще – рабочий кабинет, который может при необходимости модифицироваться в гостевую комнату.
Второй этаж дома – локация отдыха и релакса. Из холла, в который мы попадаем, поднявшись по лестнице, расходятся двери четырех спален. Одна из них соединена с большой гардеробной и просторным санузлом. Рядом находится еще один, более компактный санузел.
Этот дом с гаражом и террасой – наглядный пример того, как стильная современная изысканность и достойный вкус органично сочетаются с практичностью, удобством и домашним уютом.
Архитектурное бюро Алексея Сухова | arch-buro.com
План цокольного этажа:

План 1-го этажа:

План 2-го этажа (мансарда):

Экстерьеры здания:
Похожие темы или то что вам будет интересно посмотреть:
Тэги: 2-х этажный дом, проект коттеджа
Понравилась статья? Поделитесь ей в социальных сетях:
arch-buro.com
двухэтажный особняк с гаражом и террасой
Представляем новый проект от нашего архитектурного бюро – проект огромного двухэтажного каменного дома с террасой и гаражом в коттеджном поселке «Александрово» Истринского района Московской области. 
Нашим бюро выполнен комплексный проект всего участка включая проект угловой бани с террасой, беседкой, барбекю и бассейном. Внешний вид дома и бани выполнены в общем лаконичном стиле.
По согласованию с заказчиком, мы предложили расположить двухэтажный дом в южной части участка на возвышенности. Таким образом, огромный дом зрительно кажется еще больше, возвышаясь и доминируя над всем участком. Справа к дому пристроен теплый гараж на два автомобиля. В гараже расположена котельная и мастерская. Слева, если смотреть с главного фасада, расположена закрытая терраса. В ее продолжении с поворотом за угол дома расположена открытая терраса, на которой можно установить удобные кресла-качалки для принятия солнечных и воздушных ванн, так как дом расположен в экологически чистом районе Московской области и окружен лесом.
Плюсы проекта:
- Большая площадь для всей семьи
- Панорамное остекление
- Гараж на два автомобиля и терраса
- Современная отделка клинкерной плиткой

Как оптимально расположить помещения в большом каменном доме?
Все помещения этого двухэтажного дома поражают своей площадью. На первом этаже дома расположены огромная гостиная, совмещенная с не менее большой кухней-столовой. В гостевой комнате на первом этаже может разместиться семейная пара, при этом, не стесняя хозяев дома. Также на первом этаже хватило места для размещения большого гардероба (около 18 м2), котельной, гостевого санузла, а также уютной закрытой террасы с барбекю. Зона кухни-столовой-гостиной фактически является одним помещением, что, конечно, является большим преимуществом. Можно смотреть телевизор в гостиной и одновременно наблюдать, как для вашего застолья готовится вкусная еда. Из кухни-столовой открывается прекрасный вид на внутренний двор и угловую баню с террасой и бассейном
Планировка первого этажа:
На втором этаже расположены две спальни, занимающие половину этажа, детская комната, гардеробная, постирочная и кладовая, а также два полноценных санузла. Отдельной просьбой заказчика было запроектировать личный рабочий кабинет на втором этаже каменного дома, что и было в точности выполнено.
Планировка второго этажа:

Оцените преимущества проекта большого каменного дома с низкой четырехскатной крышей
Главное достоинство этого нового проекта – гармония величины дома и его пропорций. Дом с низкой четырехскатной крышей не кажется огромным, хотя его общая площадь ни много ни мало 450 квадратных метров. Совмещенный с домом гараж на два автомобиля и расположенная с другой стороны терраса-барбекю находятся как бы под второй единой четырехскатной крышей, визуально пронизывающей дом на уровне первого этажа насквозь.
При заказе эскизного проекта дома более 500 кв.м. Проект забора — Бесплатно!
Четырехскатная низкая крыша прекрасно сочетается со строгим фасадом дома, выполненного в лаконичном европейском стиле.

Фасады дома отделаны клинкерной плиткой под кирпич темно-коричневого благородного оттенка с вертикальными вставками светло-бежевого цвета.
Преимущества клинкерной плитки:
- долговечность
- надежность
- экологичность материала
- негорючесть
- способность противостоять природным факторам (дождь, снег, ультрафиолет)
Конструктивные особенности проекта:
Для данного проекта двухэтажного дома запроектирован ленточный монолитный железобетонный фундамент по периметру и под всеми несущими стенами. Межэтажные перекрытия в доме монолитные железобетонные. Материал стен — экологически чистый керамический камень (двойной щелевой кирпич). Кровля — мягкая битумная черепица.
Преимущества каменного дома:
- двойной щелевой кирпич
- кратная раскладка по высоте и ширине
- каменный дом на века — крепость!

К дому пристроен гараж на два автомобиля с двумя отдельными автоматическими воротами. В гараже нашлось место для котельной с газовым котлом и для мастерской. Вход в гараж и подсобные помещения со стороны улицы, так что выхлопные газы автомобилей никогда не проникнут в дом. Войти на закрытую террасу можно как с улицы, так и из дома, из совмещенной кухни-гостиной. На закрытой террасе можно расположить что угодно, начиная от тандыра, печи для казана, открытого очага, переносного гриля, заканчивая полноценной небольшой летней кухней. Это сразу оценят ваши самые близкие друзья, ведь терраса с барбекью создана для общения. Закрытая терраса плавно переходит в открытую, где теплым летним вечером сидя в уютном шезлонге можно наслаждаться легким шелестом листьев в соседнем лесу. А можно установив на террасу переносной телескоп, любоваться видом звезд Млечного пути, нашей родной галактики.

Этот огромный харизматичный дом достоин быть Вашим! Он придаст Вам уверенность в собственных возможностях и вселит в Вас гордость своими успехами!
Фото нашего проекта дома с фасадом из клинкерной плитки


Если Вам понравился проект, отмечайте его в соцсетях.
Также смотрите похожие статьи:

Проект дома с четырехскатной крышей

Проект бани с террасой из кирпича

Проект гаража с баней из кирпича
Главный архитектор проекта Рябков Сергей Сергеевич
Руководитель проектного отдела
arch-pro.ru
Проект 2х этажного дома модернизм с гаражом и террасой | Dom4m.ru
1
85
Виртуальный тур
-

Видео
Первый этаж: 61,8 / 81,6 м²
Первый этаж:: 61,8 / 81,6 м²

Первый этаж:: 61,8 / 81,6 м²
Второй этаж: 65,7 м²
Второй этаж:: 65,7 м²

Второй этаж:: 65,7 м²
Расположение на участке:

4M688 Проект двухэтажного модернистского дома с гаражом и террасой
Артикул 4M688 Количество этажей: 2 Общая площадь: 147.30 м2 Жилая площадь: 127.50 м2 Высота дома: 6.75 м Высота потолка: 2.80 м Угол наклона кровли: 3 ° Площадь крыши: 71.00 м2 Кубатура: 394.37 м3 Количество спален: 3 Количество санузлов: 2 Гараж: Гараж на одно авто Минимальный размер участка(длина): 17.40 м Минимальный размер участка(ширина): 20.74 м Материалы:
Стены:
dom4m.ru
Проект двухэтажного дома с террасой и гаражом — Проекты коттеджей — Проект и строительство — Материалы
Оглавление —
Пояснительная записка
План 1-го этажа
План 2-го этажа
План кровли
Фасад в осях 1-6
Фасад в осях А-Д
Фасад в осях 6-1
Фасад в осях Д-А
Разрез 1-1
План подошвы фундамента на отм. –2.20
План перекрытия на отм. –0.15
План стен на отм. 0.90
План межкомнатных перегородок на отм. 0.90
План перемычек на отм. 2.70
План ригелей на отм. 3.00
План перекрытия на отм. 3.22
План стен на отм. 4.20
План перегородок на отм. 4.30
План перемычек на отм. 6.20
Спецификации элементов конструкций
План перекрытия на отм. 6.52
План каркаса кровли центральной части дома
План стропил центральной части дома
План стропил террасы
Развертка стены по оси «А»
Развертка стены по оси «В»
Развертка стены по оси «Г»
Развертка стены по оси «1»
Развертка стены по оси «2»
Развертка стены по осям «4» и «5»
Развертка стены по оси «6»
Подстропильные фермы кровли
Армирование фундаментов
Армирование монолитных участков перекрытий
Узлы
Ведомость полов
Декоративные элементы фасадов
ПОЯСНИТЕЛЬНАЯ ЗАПИСКА.
ТЕХНИКО-ЭКОНОМИЧЕСКИЕ ПОКАЗАТЕЛИ ПО ДОМУ:
Площадь застройки – 245.2 м2
Строительный объем – 1400 м3
Полезная площадь –291.3 м2
Жилая площадь – 113.1 м2
КРАТКАЯ ХАРАКТЕРИСТИКА СТРОИТЕЛЬНЫХ КОНСТРУКЦИЙ:
КОНСТРУКТИВНАЯ СХЕМА – несущие продольные и поперечные кирпичные стены.
ФУНДАМЕНТЫ – монолитные ленточные фундаменты глубокого заложения. Подвальное помещение отсутствует.
СТЕНЫ НАРУЖНЫЕ – 250 мм. кирпич + 200мм. утеплитель – ячеистый бетон обьемным весом 350-400кг/м3. Наружная отделка фасадов — из отделочного кирпича, либо фасадного камня.
СТЕНЫ ВНУТРЕННИЕ – 380мм. из кирпича.
ПЕРЕКРЫТИЯ – сборные железобетонные плиты заводского изготовления и монолитные участки.
ПЕРЕГОРОДКИ – из легкого бетона 120мм. оштукатуренные.
ЛЕСТНИЦЫ – деревянные по косоурам из металлопроката.
КРЫША – деревянная стропильная конструкция, стропила из досок и бруса.
КРОВЛЯ – черепичная.
ПРИМЕЧАНИЕ:
Окончательные площади помещений устанавливаются БТИ.
Архитектор А. Давыдов
www.justfx.ru




