Винтовая лестница (50 фото): эффектные интерьерные решения

Металлическая винтовая лестница футуристичного дизайна
В каких интерьерах уместны винтовые лестницы? Из чего их делают, и что нужно знать перед тем, как устанавливать такую лестницу в своем жилище? Ответы – в нашем обзоре!
Пожалуй, одними из самых практичных и эстетичных лестниц являются винтовые. Они экономят место в маленьких пространствах и служат истинным украшением просторных апартаментов. Они настолько универсальны, что могут применяться практически в любом стиле. Сегодня мы расскажем из чего их делают, что нужно учитывать при установке и какие визуальные приемы можно применить, используя этот элемент интерьера.
Содержание:
Что такое винтовая лестница?
Винтовая лестница имеет сложную форму и с первых же секунд привлекает к себе внимание. Её не спутаешь с другими конструкциями. Она состоит из клиновидных забежных ступеней, которые располагаются под определённым радиусом, а также перил и опорных элементов.

Винтовая лестница с деревянными ступенями

Чёрная винтовая лестница с белыми ступенями
В качестве опоры для винтового подъема могут служить:
- Центральный столб;
- Несущая стена;
- Стойка;
- Тетивы;
- Спиралевидные косоуры;
- Больцы.

Голубая винтовая лестница
Какие бывают винтовые лестницы?
Всего известно четыре типа винтовых лестниц. Каждый из них имеет свои особенности и тонкости установки.
1. Первая конструкция состоит из простых ступеней, имеющих клиновидную форму. Широкий конец каждой ступени опирается на стены, которые окружают лестницу, а узкий конец крепится на опорный столб. Последний, в свою очередь, выполняется из толстых концов самих ступеней или же из кирпичной кладки.

Винтовая лестница первого типа
2. Винтовая лестница на второй этаж может выполняться и без участия опорных стен. Этот тип предполагает консольный монтаж отдельных ступеней на среднем монолитном опорном столбе.

Винтовая лестница на опорном столбе
3. Металлические винтовые лестницы считаются одними из самых популярных сегодня. Особенно, стальные конструкции, имеющие внутренний опорный стержень. Он является несущей основой всей лестницы, поэтому его выполняют из металлической трубы с толстыми стенами, диаметр которой равен 50 миллиметрам и больше.

Металлическая винтовая лестница
4. Самые сложные по монтажу и конструкции, но одни из красивейших – лестницы без привычного опорного столба. Крепятся ступени таких лестниц в тетивы, загнутые в форме спирали. Они же переходят в несущие перила.

Самый сложный по исполнению тип винтовых лестниц
Совет. Изготовление винтовых лестниц для дома – дело весьма ответственное и сложное. Если у вас есть такая возможность, то проектировать винтовую лестницу желательно на начальной стадии разработки интерьера. Так, вы точно избежите неприятных ситуаций при монтаже, а также обыграете её стилистическое решение, и предусмотрите дополнительные места хранения под ней (если они потребуются).

Элегантная винтовая лестница в эклектичном интерьере

Необычный дизайн винтовой лестницы в экостиле
Технические особенности монтажа
Какой бы тип подъема вы не выбрали, вам понадобится помощь при установке. Помимо этого, необходимо учитывать особенности помещения и общепринятые технически требования к винтовым лестницам:• Угол поворота винтовых лестниц равен 270-360 °.
• Монтаж возможен в помещениях с высотой потолков не менее 2-х метров.
• Большая часть таких конструкций закручивается против часовой стрелки, так как большая часть людей начинает подъём или спуск с правой ноги.

Лестница из металла в индустриальном стиле
• Широкий конец забежной ступени должен быть не меньше 40 сантиметров (чаще всего равен 41-50 см.), а узкий – 10-ти сантиметров.
• Диаметр опорной части зачастую составляет 20-50 миллиметров.

Массивная лестница с каменными ступенями
• Размеры винтовых подъемов могут быть совершенно разными – узкими и широкими. Они зависят от площади помещения. Но стоит помнить, что винтовая конструкция занимает около 2-2,2 метров площади.

Необычная винтовая лестница из дерева
Совет. Оснастите лестницу удобными перилами, дабы избежать травматизма. Соблюдайте правильную высоту ступеней и рассчитывайте верную ширину проступи. Если в доме есть маленькие дети, делайте закрытые варианты лестницы.

Винтовая лестница с перилами
Материалы
Как известно, винтовая лестница состоит из опоры, ступеней и перил. Все они могут быть выполнены из одного материала или же комбинироваться между собой. Итак, из чего изготавливают каждый из элементов лестницы?

Стильная деревянная лестница
1. Опора:
• асбоцементная или стальная труба;
• бетон;
• камень;
• дерево;
• кирпич.

Яркая винтовая лестница в современном стиле
2. Перила:
• металл;
• клееная древесина твёрдых сортов;
• комбинация дерева и металла.

Красивая лестница чёрного цвета отлично контрастирует с белым диваном
3. Ступени:
• металл;
• пластмасса;
• стекло;
• массив ценных пород древесины (ясень, дуб, бук).
В качестве креплений между этими элементами может служить муфтовое крепление, сварка или болты.

Белая лестница в средиземноморском стиле
Винтовая лестница в интерьере
Такие лестницы популярны сегодня не только потому, что экономят квадратные метры, но и отличаются изяществом, богатством дизайнерских решений и даже могут визуально менять пространство. Например, если вы хотите создать приятную лёгкую атмосферу, то сделайте ставку на стеклянные ступени, которые будут дополнены металлическими балясинами и деревянными перилами. Такой вариант отлично подходит для интерьеров в современном стиле.

Лестница в современном стиле
Кованая винтовая лестница из металла непременно станет украшением загородного дома. Особенно, если он выполнен в классическом стиле.

Кованная лестница
Деревянные лестницы с минималистичным декором будут хорошо смотреться в экостиле, а стеклянные и металлические лестницы отлично впишутся в стиль хай-тек.
Зелёная лестница в стильном интерьере
Закрученные подъемы в частном доме чаще всего выполняют именно эстетическую функцию. Около них нередко ставят консоль интересного дизайна с живыми цветами. В квартире же такие лестницы экономят пространство и под ними могут быть организованы дополнительные места хранения.

Стильная лестница, выполненная в элегантном стиле

Красивая деревянная лестница
Такая конструкция также может выступать и в роли арт-объекта – интересного цвета, необычной формы, с замысловатым декором или светодиодной подсветкой.

Красивая кованная лестница в восточном стиле

Необычная винтовая лестница, которая поражает своей длиной
Совет. Если лестница тёмного цвета, то визуально она кажется больше, но если она контрастирует с белым фоном стен, то выступает уже в роли активного элемента интерьера. Стоит поддержать композицию несколькими декоративными деталями (подушками, шторами, аксессуарами) и пространство преобразится до неузнаваемости.

Лестница необычного дизайна в итальянском интерьере
Выполнена винтовая лестница своими руками или на заказ – не важно. Главное, чтобы были соблюдены все технические моменты и лестница хорошо подходила именно под ваш интерьер. Тогда в нём воцарится приятная и стильная атмосфера.
happymodern.ru
Винтовые лестницы на второй этаж в частном доме: фото, цены
ПОДЕЛИТЕСЬ
В СОЦСЕТЯХ
Винтовая лестница по праву считается королевой среди лестничных систем. Всегда роскошная, с непревзойденным дизайном — такая конструкция служит центральным декоративным элементом, вокруг которого формируется весь интерьер. Винтовые системы лестниц предельно функциональны, но при этом не занимают много полезного пространства. Обзор «Винтовые лестницы на второй этаж в частном доме: фото, цены на конструкции» поможет изучить существующие варианты лестниц и отдать предпочтение функциональной, безопасной и компактной конструкции.

Стильная винтовая лестница из дерева украсит любой интерьер
Винтовая лестница: виды конструкций
Винтовые лестницы являются наиболее привлекательными и необычными конструкциями. Они могут различаться по материалам, применяемым для их изготовления и по стилю конструкции. Классифицируются винтовые лестницы в зависимости от способа опоры проступей (ступеней):
- опора ступеней на стены и столб — в такой конструкции ступени винтовой лестницы клинообразной формы опираются своей широкой частью на периметральные стены, в то время как узкая часть ступеней имеет опору в виде среднего столба. Опорный столб выполняется из камня или может быть набран из утолщений ступеней;
- консольное крепление ступеней вокруг опорного столба — ступени такой винтовой системы консольно крепятся к центральной стойке в виде столба. Крепление ступеней получается довольно жестким, поэтому такая лестница может устанавливаться необязательно рядом со стеной;

Деревянная винтовая лестница с опорой на изогнутую тетиву
- опора ступеней на изогнутую тетиву и ограждение — такая конструкция лестницы не предусматривает центральной опоры. Ступени монтируются в изогнутые спирально тетивы, служащие в то же время и заграждениями. Изготовление такой винтовой конструкции сопряжено с определенными сложностями, однако, она имеет очень привлекательный и оригинальный вид;
- ступени нанизаны узкой частью на обсадную опорную трубу — наиболее распространенный способ крепления ступеней: металлические проступи консольно опираются на внутреннюю опорную стойку в виде трубы. В этой конструкции важно, чтобы труба была не меньше 50 мм в диаметре, так как она выполняет роль несущего элемента в лестничной системе.

Варианты конструкции винтовой лестницы
Для изготовления винтовых лестниц применяются различные материалы, среди которых:
- металл — нержавеющая сталь, легированная сталь, латунь, шлифованный алюминий, чугун;
- дерево — дуб, клен, бук, лиственница, сосна и другие;
- камень, кирпич, керамика, стекло, мрамор.
Для создания винтовых систем применяют разнообразные сочетания материалов, благодаря чему получаются оригинальные и необычные конструкции. Главным их достоинством является высокая прочность и устойчивость к весомым нагрузкам.

Современные винтовые лестницы могут быть самых разнообразных форм и цветов
Расчет винтовых лестниц
Расчет размеров винтовой лестницы во многом зависит от назначения конструкции: будет ли она основная или вспомогательная. Если лестница выполняет роль основной, рекомендуется размер ее ступеней принимать не меньше, чем 90 см в длину, а диаметр проема, в который она будет устанавливаться — 200 см. Получается, что диаметр проема должен быть приблизительно на 20 см больше двух величин длины ступеней. Такая величина проема объясняется необходимостью обустройства винтовой лестничной конструкции ограждением и перилами. Тогда между перилами и поверхностью проема остается зазор в 10 см, что будет способствовать удобному опиранию на поручень. В случае со вспомогательной винтовой лестницей достаточно проема с диаметром 140 см и длиной ступеней 60 см. Обычно такие лестницы используют для подъема на чердак или спуска в подвальное помещение.

Компактная металлическая лестница на чердак
Конструкция винтовых лестниц такова, что при передвижении по ним используется не вся длина ступеней, а только широкая ее часть. Если, к примеру, проектируемая лестница имеет ширину ступени 90 см, то часть от этой ступени будет крепиться к опорному столбу, с другой стороны будет крепиться ограждение. Таким образом, для ходьбы останется около 80 см. Но учитывая, что ступени винтовой конструкции имеют забежное расположение, та их часть, которая крепится у столба, будет нависать над частью последующей ступени. Следовательно, ширина ступени, пригодная для передвижения, сократится еще на 25%. В результате получится, что из всей ступени шириной 90 см использоваться для перемещения будет около 50 см.

Изящная металлическая винтовая лестница
Для достижения более комфортного перемещения, диаметр проема и размеры винтовой лестницы увеличивают. Однако, не следует величину проема принимать более 300 см, в этом случае пространство под занимаемую лестницу позволит установить маршевую конструкцию.
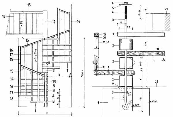
Винтовая лестница своими руками. Чертежи и схемы конструкций
Многочисленные фото винтовых лестниц на второй этаж своими руками свидетельствуют о том, что самостоятельное изготовление таких конструкций вполне возможно. Приступая к изготовлению лестниц, необходимо определить место установки, рассчитать все параметры, разобраться в чертежах винтовых лестниц.

Винтовая лестница с опорой на стены и столб
Для примера рассмотрим винтовую конструкцию лестницы с деревянными клинообразными ступенями и несущей опорой в виде металлического столба. Такую лестницу можно устанавливать как рядом со стеной, так и посредине комнаты.
Схема конструкции лестницы
Основанием конструкции винтовой лестницы служит несущая опора в виде стержня, к которому прикреплены ступени. Как правило, для несущего столба используют массивную металлическую трубу. Опорой ступеней служат прикрепленные к стойке втулки. Их можно изготовить самостоятельно, разрезав стальную трубу на цилиндры определенных размеров. С двух сторон к цилиндрам-втулкам приваривают накладки, имеющие отверстия для насаживания их на опорную стойку.

Обратную сторону ступеней винтовой лестницы можно оборудовать удобными полочками
Для придания втулкам эстетического вида их оклеивают декоративной пленкой соответствующей фактуры. Это может быть имитация дерева или мрамора, в зависимости от сочетания с материалом для ступеней. Иногда в качестве втулок используют деревянные элементы цилиндрической формы. Здесь главное, чтобы торцы всех втулок были параллельны друг другу.
Как сделана винтовая лестница: порядок установки
Монтаж лестницы начинают с установки несущей опоры. Ее длина должна быть больше суммы высоты помещения и толщины верхнего перекрытия на 7 см. На верхнем конце опоры нарезается резьба длиной около 20 см, нижний край опоры бетонируется.

Металл и дерево — популярное сочетание для обустройства винтовых лестниц
Предварительно должны быть заготовлены все необходимые детали лестницы: ступени, втулки распора, манжеты, муфты. Все детали последовательно монтируют на несущей опоре. Как только самая последняя ступень будет установлена, всю систему фиксируют с помощью диска и прикручивания на резьбу крепежной гайки.
Полезный совет! Чтобы со временем лестница при ходьбе не скрипела, необходимо подтягивать верхнюю гайку крепежа по мере усадки проступей.
Далее крепятся все элементы ограждения, проверяется фиксация ступеней и стержней заграждений и окончательно фиксируется верхняя крепежная гайка.

Схема монтажа лестницы
Пояснения к Схеме монтажа лестницы:
| 1 — ступени лестницы; | 12,13 — верхняя и нижняя стойки ограждения; |
| 2 — втулка для распора ступеней; | 14 — угловая стойка ограждения; |
| 3 — несущая опора; | 15 — перила; |
| 4 — резьба для закрепления стойки; | 16 — короткая стойка ограждения; |
| 5 — диск под гайку; | 17 — длинная стойка ограждения; |
| 6 — гайка крепежа; | 18 — добавочная стойка ограждения; |
| 7 — крепление опоры путем бетонирования; | 19 — балюстрада; |
| 8 — фундамент дома; | 20 — соединительный палец; |
| 9 — выступ; | 21 — накладки втулки; |
| 10 — отверстие под ограждение; | 22 — поверхность пола; |
| 11 — крепление ограждения; | 23 — перекрытие. |
Установка винтовой лестницы своими руками из металла: чертежи конструкции
Винтовые лестницы из металла могут быть наружного и внутреннего использования. Если металлическая лестница устанавливается снаружи, она должна гармонировать с оконными решетками и входной дверью. В этом случае довольно уместными будут конструкции винтовых кованых лестниц. Если лестница устанавливается внутри помещения, желательно, чтобы ее дизайн поддерживал стиль интерьера. Винтовые лестницы из металла могут быть сборными, литыми, сварными.
При самостоятельном изготовлении винтовых металлических лестниц рекомендуется ознакомиться и воспользоваться готовыми схемами и чертежами конструкций, которые адаптируют под индивидуальные размеры.

Ступени винтовой лестницы нанизаны узкой частью на обсадную опорную трубу
Расчет металлической конструкции
Расчет всех параметров лестничной системы осуществляется с учетом следующих моментов:
- чтобы передвижение по лестнице было безопасным, расстояние между соседними витками винтовой конструкции должно быть не менее 2 м;
- если конструкция является основной и устанавливается в помещении, диаметр проема должен соответствовать размеру 200 см, а длина ступени 80 см;
- несущая металлическая опора должна быть выбрана в виде трубы с диаметром не меньше 5 см;

Современная винтовая лестница из металла и стекла
- ширина проступи (ступени) по средней линии составляет не меньше 20 см;
- если винтовая лестница окружена периметральными стенами, расстояние от поручня до поверхности стены должно быть около 10 см, чтобы при передвижении по лестнице было удобно держаться за поручень;
- не стоит увеличивать угол подъема лестницы выше 45 градусов;
- винтовая металлическая лестница должна иметь качественное и устойчивое ограждение;
- для безопасного передвижения по ступеням наружной лестницы рекомендуется использовать антискользящие покрытия.

Для безопасного передвижения винтовую лестницу лучше оборудовать надежными перилами и антискользящим покрытием ступеней
Решив изготовить металлическую лестницу самостоятельно, необходимо знать, что такая конструкция потребует знаний и опыта работы со сварочным аппаратом. Самостоятельному изготовлению подлежат металлические конструкции винтовых лестниц на второй этаж эконом-класса. Устройство таких лестниц предусматривает крепление ступеней к опорной металлической стойке. Все элементы лестницы готовятся отдельно в комфортных условиях, а в помещении производится сама сборка лестницы.

Металлическая винтовая лестница — вид сверху
Подготовка элементов и деталей лестницы
Все элементы лестничной конструкции предварительно заготавливаются согласно чертежам и схемам:
- трубу несущей стойки обрезают по размеру высоты помещения;
- трубу большего диаметра такого же размера;
- металлический стержень для изготовления больцевых креплений;
- уголок металлический для изготовления ступеней.

Винтовые металлические лестницы, окрашенные в яркие цвета
Из трубы большего диаметра нарезают цилиндры для втулок-гильз, которые будут фиксировать ступени на определенной высоте. Длина втулки должна соответствовать высоте ступени. Втулки-гильзы должны плотно нанизываться на опорную трубу. Если между трубой и гильзой остается небольшой зазор, дополнительно приваривают кольца для уплотнения. После выполнения работ все сварочные швы зачищают.
Металлический уголок нарезают по шаблону ступеней и сваривают из этих элементов каркас для ступеней. К каждой ступени приваривают гильзу-втулку и также зачищают швы. Подготавливают больцы.

Сборная металлическая винтовая лестница заводского изготовления
Винтовые лестницы имеют очень узкую ширину ступени по линии перемещения. Во время движения по такой лестнице нога, которая ступает ближе к центральной опоре, опирается на часть ступени с меньшей шириной. Это может привести к соскальзыванию ноги, особенно при перемещении вниз.
Полезный совет! Для удобства перемещения по винтовой лестнице, ступени конструкции не следует оснащать подступенками. Это позволит разместить ступню ноги за линией ступени в узком месте.

Винтовые лестницы из стекла и нержавеющей стали выглядят легкими и воздушными
Далее производят сборку всех деталей и элементов винтовой лестницы. Одну за другой на опорную трубу нанизывают втулки со ступенями. Когда все ступени будут собраны, их положение выравнивают согласно чертежам, и все части сваривают между собой. Все сварочные швы шлифуют. Металлическую поверхность лестницы обрабатывают грунтовкой и покрывают краской. Каркас ступеней заполняют облицовочным материалом.
Когда лестница со ступенями смонтирована, приступают к установке ограждений и перил.
Для наглядности процесса монтажа можно использовать фото винтовых лестниц на второй этаж в частном доме.

Окрас лестницы гармонирует с цветовым решением интерьера
Конструкции винтовых лестниц на второй этаж в частном доме: фото в интерьере
Винтовая лестница на второй этаж дома, помимо своей функциональной нагрузки, несет и главную декоративную составляющую. В связи с этим продумывается не только надежность и удобство конструкции, но и ее соответствующий дизайн.
Если вы отдаете предпочтение минимализму или стилю хай-тек, уместным будет выбрать металлическую конструкцию. Такие лестницы выглядят легкими и всегда будут привлекать внимание. Не стоит забывать и о роли цвета лестницы. К примеру, если лестница черного цвета, ее хорошо поддержит темная мебель, черно-белые картины или ковровые покрытия с сочетанием черно-белых полос.

Винтовая лестница — функциональна и компактна
Если в планируемом вами интерьере лестнице отводится место второстепенного декора, следует выбирать варианты конструкций, окрашенных в светлые оттенки. Матовая, не отражающая других предметов лестница, смотрится гораздо легче, чем темная, и будет почти незаметна. Многие выбирают модели, окрашенные в яркие цвета, а иногда и с разноцветными ступенями.
Полезный совет! Чтобы избежать травматизма при передвижении по лестнице, необходимо оснастить конструкцию качественным ограждением, можно сплошным. Особенно это актуально для семей с маленькими детьми.

Винтовые лестницы эконом-класса
К классическому стилю подойдут винтовые лестницы, выполненные из ценных пород дерева. Такие конструкции также следует поддерживать соответствующей мебелью, желательно почти в тон. Особый шарм деревянным лестницам придают ограждения, выполненные из резных балясин. Не менее элегантно выглядят кованые ограждения в сочетании с деревянной конструкцией лестницы.
Используя для соединения уровней деревянную винтовую лестницу, можно наполнить дом теплом и уютом. Ведь дерево — материал, который впитывает энергию солнца, ветра, дождя и передает ее всему помещению.

Деревянные винтовые лестницы на гнутых тетивах
Если вы хотите придать лестнице легкость и прозрачность, можно использовать конструкции со стеклянными ступенями. Ограждения в данных конструкциях можно подбирать самые различные: деревянные перила в сочетании с балясинами из алюминия, горизонтальное алюминиевое ограждение или ограждение из прозрачного пластика.
Винтовые лестницы на второй этаж в частном доме: фото, цены, изготовители
Применение винтовых лестниц не ограничивается только частными и дачными домами, их с удовольствием используют в офисах, гостиницах, спортивных центрах, клубах и других помещениях общественного назначения. Благодаря своей необычной конструкции и оснащению различными декоративными элементами, винтовые лестницы отлично вписываются в интерьер помещения практически любого дизайна.

Кованая винтовая лестница
Соединяя между собой различные уровни, винтовая конструкция существенно экономит пространство, отводящееся на движение по ней. Это позволяет разместить конструкцию даже в небольших по площади двухэтажных домах. Этот факт и повлиял на невероятную популярность винтовых лестниц на второй этаж в частных домах. Фото, цены на реализуемые под заказ изделия можно увидеть на сайтах фирм-производителей. Как правило, компании предлагают свои готовые винтовые лестницы (цены уточняйте у изготовителя). Но многие из них могут воплощать и дизайнерские проекты самих заказчиков, учитывая индивидуальные размеры и личные пожелания.
Статья по теме:
Чердачная лестница с люком: простота, практичность и доступность. Виды, преимущества и недостатки. Как сделать складную лестницу с люком своими руками. Грамотное использование пространства.
Винтовые лестницы на второй этаж в частном доме (фото, цены указаны на соответствующих сайтах), предлагаемые изготовителями, могут быть выполнены в любом стиле: квадратные или овальные ступени, кованые или резные ограждения, деревянные или стеклянные декоративные элементы. Все зависит от ваших индивидуальных предпочтений и выбранного стиля помещения.

Ступени винтовой лестницы можно оформить яркими красками
Полезный совет! Найти профессионального лестничного мастера сегодня не так легко. Придерживайтесь рекомендаций знакомых, назначайте личные беседы, выясняйте все интересующие моменты и ознакомьтесь с портфолио специалиста.
Где купить винтовые лестницы на второй этаж недорого? В интернете можно найти каталоги продукции самых разных производителей. Модели, представленные в них, выполнены из самых различных материалов: металлические, деревянные, комбинированные, с элементами вставок из стекла, мрамора, керамики, витражей и кованых изделий.

Сварная цельнометаллическая винтовая лестница
Многие компании, стремясь сделать доступными цены на изделия для любого покупателя, предлагают системы скидок на наиболее популярные системы лестниц. Ознакомьтесь с ценами на некоторые модели винтовых конструкций, выполненных из различных материалов от компании «Мистер Степ»:
| Модель винтовой лестницы | Материал | Цена за 1 п/м, евро | ||
| Ступени | Поручень | Балясины | ||
| GENIUS 010 T, диаметр 110-160 см, высота 210-380 см, шаг 21 -24 см | Ясень, бук | Ясень, бук | Металлические с тросиками из нержавеющей стали | от 1250 |
| SCENIK ONE T | Ясень | Ясень | Ясень | от 2290 |
| GENIUS 030 T, диаметр 110-160 см, высота 210-380 см, шаг 21 -24 см | Ясень, бук | Ясень, бук | Металлические с тросиками из нержавеющей стали | от 1200 |
| GENIUS 050 T, диаметр 110-160 см, высота 210-380 см, шаг 21 -24 см | Ясень, бук | Ясень, бук | Полированная нержавеющая сталь с прутками из нержавеющей стали | от 1750 |
| SCENIK Sport | Массив ясеня | Ясень | Обработанный алюминий с нержавеющими тросиками | от 2450 |
| SCENIK CHIC-LINE Q | Массив ясеня | Ясень | Анодированный алюминий с тросиками из нержавеющей стали | 2345 |
Чтобы заказать конструкцию винтовой лестницы по приемлемой цене, необходимо предоставить фирме-изготовителю следующие данные:
- схему-план комнаты, в которой планируется установка винтовой лестницы;
- место расположения конструкции относительно комнаты;
- размеры помещения с указанием высоты и диаметра отверстия под винтовую лестницу;
- тип модели лестницы на второй этаж, предпочтительные материалы для ее изготовления, особенности общего стиля помещения.
Учитывая все данные, специалистами в течение короткого времени будут созданы изделия, которые должны строго соответствовать эксплуатационным требованиям и нормам, вне зависимости от выбранного дизайна. Кроме того, в целях безопасности эксплуатации, рекомендовано заказывать лестничные конструкции с оснащением их ограждениями и перилами.

Винтовая лестница впишется в любой стиль интерьера
Реализация лестниц — относительно новый вид услуг в строительной отрасли. Помимо импортных конструкций на рынке представлено много изделий отечественных производителей.
Фирмы, занимающиеся продажей лестниц, обычно принимают заказы на конструкции по индивидуальным проектам. Кроме того, они оказывают услуги по доставке и сборке лестничных систем. Но следует учитывать, что стоимость изготовленной по индивидуальным чертежам лестницы будет на 20% дороже стандартной модели. Выбирать вам.
ОЦЕНИТЕМАТЕРИАЛ Загрузка… ПОДЕЛИТЕСЬ
В СОЦСЕТЯХ
СМОТРИТЕ ТАКЖЕ
REMOO В ВАШЕЙ ПОЧТЕremoo.ru
Винтовые деревянные лестницы своими руками на дачу: фото и цена
Респектабельная винтовая конструкция — изысканная роскошь
Оригинальным и вместе с тем надежным вариантом для интерьера дачи или загородного дома можно назвать винтовую деревянную лестницу. В комплекте готового сборного изделия находятся фото, чертежи и подробные указания по установке. Реально выполнить незатейливую лесенку своими руками, цена ее получится доступной. Однако, чтобы она была надежной и долговечной, потребуется четко следовать рекомендациям профессионалов. С ними и тематическими фото можно ознакомиться, прочитав статью.

Лестница эконом-класса в частном доме
Первый этап: выбор материала
Для опорной стойки конструкции можно использовать деревянную балку достаточного диаметра. Как альтернативный вариант подойдет металлическая труба с толстыми стенками. Чтобы выполненная своими руками конструкция была надежной, диаметр опорного столба должен составлять минимум 50 миллиметров.

Классическая «спираль» с деревянными стойками ограждения
Для ступеней подойдет древесина бука, ясеня, клена или дуба – если его цена соответствует финансовым возможностям. Применяют и хвойные породы – сосну, лиственницу. Цена на эти породы дерева ниже. Важное условие – древесина должна быть хорошо просушена. Предельный процент влажности для материала – 12%.
Что касается ограждений и тетивы, их лучше сделать своими руками посредством склеивания тонких деревянных пластин. Придать требуемый изгиб готовым ламелям довольно трудоемко. Для этого потребуется замочить их в горячей воде, а когда они обмякнут, оформить. Как видно по фото, дерево хорошо комбинируется с металлом, поэтому для ограждения можно использовать балясины и поручни из нержавеющей стали.
Расчеты параметров конструкции
Удобство и безопасность винтовой конструкции зависят во многом от соблюдения технических параметров. Далее перечислены величины, которые потребуется рассчитать, и алгоритм вычислений.
- Общая высота сооружения. Для ее определения нужно прибавить к высоте потолка толщину перекрытия.
- Диаметр конструкции. Складывается из удвоенной длины одной ступени и толщины опорной стойки.
- Высота, заключенная между соседними витками. Ее рекомендуется делать не менее 2 метров. Это исключит вероятность удара головой при подъеме.
- Радиус по линии движения. Для расчета этой величины складывают ширину ступени и диаметр опорного столба, полученную сумму делят на два. Это значение рассчитывают для того, чтобы сделать глубину проступей по траектории движения максимально удобной.
- Глубина ступени. Обычно этот параметр находится в пределах 250-400 мм. Здесь нужно учесть особенности винтовых конструкций. Так как монтироваться будут забежные ступени, наиболее комфортную глубину нужно сделать на линии движения. На расстоянии 150 мм от центральной опорной стойки их глубина должна быть не менее 100 мм. По средней линии рекомендованное значение – 200 мм.
- Высота одной ступени. При расчете этого параметра нужно принимать во внимание расстояние между расположенными рядом витками. Удобной считается высота ступенек 120-220 мм. Для вычислений пользуются правилом: удвоенная глубина проступи и высота ступени должны давать в сумме 600-650 мм. Этот показатель соответствует средней длине шага, поэтому используется для проектирования лестничных маршей.
- Радиус центральной стойки.
- Угол закручивания. Это значение иллюстрирует, как поворачивает траектория движения при подъеме.
- Длина линии подъема. Для расчета данного параметра умножают радиус по линии движения на 2π.
- Длина линии наружного края конструкции. Здесь потребуется умножить 2π на общий радиус.
- Глубина проступи по внешнему краю. Для этого длину линии, приведенную в пункте 10, делят на количество ступенек.
- Количество ступеней. Высоту подъема на второй этаж делят на высоту одной ступени.

Проект винтового лестничного марша
Типичные трудности при расчетах
Одна из наиболее распространенных трудностей – при расчетах по формулам получаются дробные числа, что усложняет заготовку деталей.
При появлении погрешностей соотношение параметров ступенек может нарушиться, а это отрицательно повлияет на надежность конструкции.
Чтобы исправить ситуацию, нижнюю ступень иногда делают чуть ниже, за счет чего размеры последующих выравнивают.

Воздушность конструкции придают отсутствие подступенков и тонкое ограждение
В отличие от маршевых аналогов, цена на которые намного выше, винтовые модели предпочтительно изготавливать без подступенков. Это облегчает подъем на второй этаж. На фото видно, что такие конструкции смотрятся воздушно. Также упрощается процесс изготовления своими руками и снижается цена изделия.
Подготовка проема
От оформления самой конструкции зависит и форма проема. На фото представлены следующие конфигурации: круглые и квадратные.
Предпочтительно подготовить проем еще на стадии строительства дачи или частного дома. Если это не было сделано, потребуется выпилить его в соответствии с проведенными расчетами. Со всех сторон от лестничной конструкции до краев проема должен оставаться зазор в 100 мм. Такая мера предотвратит получение травм при держании за поручень.
На фото видно, что края выпиленного проема облицовывают. Для этого используют балки, облицованные шпоном. С круглыми винтовыми конструкциями приходится сложнее, так как облицовке потребуется придать изгиб. Отделка квадратного проема своими руками, как правило, не вызывает затруднений.
Изготовление деревянных ступенек и других деталей
Есть несколько вариантов, как изготовить ступеньки. Можно приобрести в строительном магазине заготовки и придать им нужную форму. Удалив все лишнее, края нужно зачистить наждачной бумагой. Изготовить проступи можно и из прямоугольной доски. Для этого ее распиливают по диагонали на две части и обрабатывают края и торцы. С внутреннего края проступи высверливают отверстие, равное в диаметре размеру опорного столба.
Дополнительно ступени для винтовой конструкции своими руками можно покрыть несколькими слоями лака.
Для соединения потребуется заготовить гильзы, шайбы и больцы. Для балясин своими руками берут деревянные бруски, при наличии токарного станка их можно оригинально оформить в домашних условиях. Цена готовых точеных балясин довольно высока. На фото конструкций стойки, расположенные на первой и последней ступенях пролета, имеют больший размер, чтобы ограждение смотрелось законченно. Также есть вариант приобрести готовый комплект балясин. Для изготовления изогнутого поручня можно взять тонкие ламели и склеить между собой.
Сборка деталей лестничной конструкции
Вначале устанавливают опорную стойку. Выровняв по вертикали несущую балку, ее бетонируют или крепят анкерными болтами. На установленный столб надевают подготовленные ступени, разделяя их гильзами. Выровняв их положение (на фото видно перекрывание проступей, делают его около 50 мм), детали фиксируют больцами. Далее по широкому краю ступенек на шканты устанавливают балясины. Поверх при помощи саморезов монтируют поручень.
На этом работа над винтовой конструкцией своими руками завершена. Остается только нанести на изделие слой защитного состава. Очень важно соблюдать технологию в процессе строительства, чтобы конструкция получилась надежной и безопасной. Поделитесь собственным опытом по обустройству деревянных ступеней для дачи, оставив комментарий.
Загрузка…makeladder.com
Деревянные винтовые лестницы своими руками: размеры и чертежи
Еще во времена давно забытого средневековья великие архитекторы знали о достоинствах винтовых лестниц. Их сооружали во всех замках исключительно с практической точки зрения, так как они служили своеобразным защитным элементом при нападении врага. Однако, пройдя длительный исторический путь, эти конструкции и в наше время не утратили популярность. Деревянные винтовые лестницы преображают интерьер, а также позволяют решать функциональные задачи в ходе обустройства дома.
Преимущества винтовых лестниц
Выбор подобной интерьерной детали говорит о том, что вы являетесь не только обладателем хорошего вкуса, но и прагматиком. Винтовые конструкции характеризуются рядом преимуществ:
- Экономия пространства. Особенно это актуально для небольших по площади помещений. Даже 1,5 м² достаточно для того, чтобы поставить лестницу. Она располагается вокруг специальной опоры и словно зависает в воздушном пространстве. Именно такое свойство конструкции позволяет экономить полезную площадь.
- Визуально увеличивает высоту низких помещений.
Строительство винтовых лестниц будет значительно ниже по цене, чем маршевых. Это обусловлено относительно небольшим количеством расходных материалов при производстве изделия и невысокими трудозатратами во время его установки. - Несложный процесс изготовления и простой монтаж позволяют сделать лестницу без помощи специалистов.
Винтовые конструкции прекрасно подходят для частного дома или квартиры, так как там отсутствует чрезмерно оживленное движение.
Сооружая у себя дома винтовую лестницу, не следует забывать о технике безопасности. При крутом подъеме конструкции и недостаточно широких ступенях неосторожность и быстрая ходьба могут привести к травме. Но этот недостаток легко устранить за счет крепких поручней. Кроме того, важно правильно произвести расчет размера конструкции, включая забежные ступени и ширину проступи.
Какие материалы можно использовать
В производстве винтовых лестниц применяют различное сырье, от которого напрямую зависит их качество и длительность срока службы.
В роли несущего конструктивного элемента чаще всего служит труба из металла либо деревянный столб. Нередко опору изготавливают из камня, кирпича, бетона и даже асбестоцемента. Ступени крепятся уже к готовому несущему элементу несколькими способами: сваркой, болтами или муфтами.
Перила принято делать из металла, твердых древесных пород или комбинации этих материалов. Что же касается ступеней, то на смену традиционным вариантам из бука, дуба и ясеня пришли изделия из стекла и пластмассы.
Для изготовления винтовых лестниц используют также фанеру. Из этого материала можно делать как отдельные элементы, так и всю конструкцию в целом. Винтовая лестница из фанеры отличается своей экологичностью и невысокой стоимостью.
Для лестницы можно использовать фанеру: в качестве элементов или полной конструкцииРазновидности конструкции
Винтовые лестницы имеют несколько модификаций, отличающихся друг от друга особенностями конструкции и способами крепления ступеней. Однако независимо от их разновидности, ступени устанавливаются всегда радиально с незначительным поворотом каждой из них. В таком положении они напоминают резьбу винта, поэтому данная модель лестниц получила соответствующее название.
Виды винтовых лестницТаким образом, выделяют следующие типы конструкций винтовых лестниц:
- С опорой ступеней на внутренний столб и одну или две стены, расположенные по периметру. Подобные конструкции строятся в неширокой нише или в углу помещения.

- С консольным защемлением ступеней на несущем элементе.

- С креплением ступеней к изогнутым тетивам.

Это наиболее распространенные типы винтовых устройств, которые под силу построить мастеру-самоучке. Другие разновидности считаются более сложными, поэтому их изготовку и монтаж лучше доверить настоящим профессионалам.
Элементы винтовой конструкции
Прежде чем приниматься за изготовление деревянной винтовой лестницы своими руками, разберемся в следующих вопросах:
- из каких элементов она должна состоять;
- месторасположение составных частей;
- способы крепления элементов.
Лестничная конструкция имеет следующие составляющие:
- ступеньки;
- заключительная площадка, расположенная сверху;
- столб, предназначенный для опоры перила и балюстрады;
- главный несущий элемент, являющийся основой конструкции;
- цилиндры, из которых состоит опорный столб;
- балясины, поддерживающие перила;
- перемычки;
- перила в форме винта;
- заграждение на верхнем этаже.
Схема элементов конструкцииВышеперечисленные составляющие образуют единое устройство путем их соединения в узлах:
- Узел «А». Здесь соединяется несущая стойка или труба с заграждением на верхнем этаже. Для этого в тыловой части столба или трубы закрепляется болт либо винт, на который надевается через сквозное отверстие поручень. Сверху привинчивается декоративная крышка, предназначенная для его фиксации.
- Узел «Б» – это место, где соединяются опорный столб и втулка, которая установлена в отверстие ступени.
- Узел «В». В этом участке к опоре крепят шайбы и гильзу, выполняющую декоративную и прижимную функции.
- Узел «Г» – место крепления опоры и основания, установленного в полу.
Соединение узловРасчет параметров винтовой лестницы
Процесс изготовления составляющих частей конструкции начинается, прежде всего, с расчетов. При этом точность их проведения прямо пропорциональна уровню безопасности лестницы в целом.
Чтобы разобраться, как выполняются расчеты, предлагается взять для наглядности конкретный пример со среднестатистическими показателями. Допустим, что ширина лестничного прохода составляет 90 см (как правило, ее размеры варьируются от 70 до 100 см), высота – 270 см, а диаметр опоры – 30 см.
Далее расчеты производятся по следующей схеме:
Определяем диаметр винтовой лестницы, то есть вид сверху в проекции. Для этого ширину лестничного прохода увеличиваем в два раза и прибавляем к полученной цифре диаметр центральной стойки:
(90×2)+30=210 см
Делаем рисунок будущей конструкции. Правильно выполненные чертежи винтовой лестницы из дерева – это гарантия получения хорошего результата.
На листе бумаги чертим окружность, диаметр которой мы получили в предыдущем пункте (210 см). Для удобства рекомендуется использовать масштаб 1:10. Таким образом, диаметр окружности на чертеже составит 21 см.
Чтобы отобразить на рисунке траекторию перемещения человека по лестнице, внутри чертится еще одна окружность. Ее радиус равняется сумме радиуса опоры и лестничной ширины, деленной на 2.
(90+15)/2=52.5см
Рассчитываем число ступеней в каждом витке. Чтобы получить этот параметр, необходима средняя ширина ступени. Учитывая, что обычная ширина этой части конструкции составляет у внешнего ограждения 40–45, то для расчета берется приблизительно середина (траектория перемещения человека) – 25 см.
Для получения точного количество ступеней следует разделить длину окружности, отражающую траекторию движения, на среднюю ширину ступеньки.
(2×3,14×52,5)/25=13,18
Округлив, получим результат 13 ступеней.
Находим высоту ступеней. Делим первую окружность на 15 частей одинакового размера. При этом следует учитывать, что расстояние между первой и последней ступенькой приблизительно равняется росту высокого человека. К примеру, 1м 90 см. К этому показателю добавляется сверху 10 см резерва и толщина ступени 3 см.
190+10+3=203 см
Определяем высоту каждой отдельной ступени. Для этого высота витка делится на количество ступеней:
203/13=15,61
Чтобы подсчитать, сколько будет всего ступеней в лестнице, необходимо высоту всей конструкции разделить на высоту ступени.
270/15=18
Исходя из имеющихся расчетов, можно подсчитать, сколько оборотов совершает лестничная конструкция за весь подъем:
18/13=1,38
Важные нюансы при расчетах и монтаже
Даже небольшие погрешности, допущенные при расчетах, изготовке или установке конструкции, способны привести к тому, что лестница будет небезопасна при подъеме и спуске. Поэтому в процессе работы не рекомендуется пренебрегать правилами и рекомендациями профессионалов:
- середина ступени – это место, куда чаще всего ступает нога человека при подъеме и спуске; для уверенного шага ее ширина должна быть не меньше 20 см.
- минимальный диаметр опоры равен 5 см.
- винтовая лестница и подступенки – это не лучшее сочетание; они мешают полностью поставить стопу, что опасно соскальзыванием ноги и получением в результате этого травмы.
- в одном лестничном витке должно быть минимум 11 ступеней.
- высота витка определяется исходя из роста самого высокого члена семьи плюс запас до 20 см; если проигнорировать данную рекомендацию, то при поднятии и спуске придется в некоторых местах наклоняться, чтобы не получить травму головы.
Изготовление элементов конструкции
Опорный столб
Для изготовления опоры используют трубы из металла диаметром не менее 5 см, а также столбы из таких материалов, как бетон, кирпич и дерево. Их диаметр может варьироваться от 15 до 50 см, а в некоторых случаях и больше.
Центральный столб – основной несущий элемент конструкцииС металлической, бетонной или кирпичной опорой работать сложнее всего. Чтобы зафиксировать на ней ступени, применяют сварку, болты, муфты. К деревянному столбу элементы можно прикрепить без особых трудностей, используя любой метод. Это могут быть металлические уголки или бруски из дерева, которые устанавливают в вертикальном положении в межступенчатые зазоры.
Так как центральная стойка является основным несущим элементом, она должна отличаться высокой прочностью и выдерживать не только общую нагрузку всей конструкции, но и вес человека с багажом.
Ступени
Самым распространенным материалом для их изготовления являются такие древесные породы, как дуб и бук. В отличие от сосны или ели они имеют плотную структуру и способны выдержать возложенную на них нагрузку.
Толщина ступеней зависит от высоты конструкции. Если лестница будет не выше двух метров, то она составляет минимум 5 см. У более высоких конструкций она должна превышать 6 см.
Подбирая материал для ступеней, обращайте внимание на степень его просушки и обработки. По мнению специалистов, покупать лучше оструганные доски. Неравномерно просушенное дерево начнет со временем терять влагу и изменять первоначальную форму. В результате этого потребуется дальнейшая замена ступени, иначе может нарушиться прочность всей лестничной конструкции.
Мастера со стажем рекомендуют применять для ступеней клееную древесину, которую несложно сделать самому. Длина панели из брусков равняется длине ступени, а ширина должна быть такой, чтобы вмещались две размещенные в разных направлениях ступени.
Для изготовления клееной древесины необходимо выполнить следующие действия:
- Собрать бруски в панель так, чтобы в близкорасположенных деталях структурный рисунок был направлен в разные стороны.
- Промазать составляющие элементы панели клеем, стянуть струбцинами и дождаться полного высыхания изделия.
Схема изготовления клееной древесиныЧтобы сэкономить время и силы, нужно заранее подготовить шаблон ступени, по которому они будут расчерчены. Он подготавливается на основании произведенных ранее расчетов и с учетом припуска 0,5 см.
Перенося контуры шаблона на брусковую панель, нужно быть предельно внимательным. Важно точное отображение габарита широкого края детали и предусмотренного под стойку отверстия.
Отдельного внимания заслуживает верхняя ступень конструкции. Она представляет собой площадку, соединяющую лестницу с полом на верхнем этаже. По размеру она больше других ступеней. Кроме того, длину этого элемента иногда нарочно делают еще большей с целью упрочнения лестничной конструкции.
Изготовление верхней ступениВ конце проделанной работы изготовленные ступени складывают в стопку и прочно фиксируют между собой с обеих сторон. Данный «пакетный» способ используют для проделывания отверстий под опорную стойку.
Ограждения и перила
Следующим шагом является изготовление балясин. Для этой цели понадобится клееный брус с минимальным сечением 5×5 см и токарный станок. При отсутствии возможности сделать самому эти элементы их можно купить.
Для обеспечения жесткости конструкции крайним стойкам придают такую форму, чтобы они смогли одновременно соединить две ступени. Это позволит предотвратить их поворачивание на центральной опоре.
Способы крепления стоек-балясин бывают разные:
- путем их вклеивания в проделанные отверстия;
- фиксация к ступеням с помощью специальных креплений;
- приклеивание при помощи сделанных внизу стоек выпилов.
Разметка стоек перил и схема их установкиЗавершающим этапом является нанесение разметки и спиливание верхушек балясин под углом в зависимости от наклонов и поворотов лестничной конструкции. Прекрасный вид винтовым лестницам придают извитые перила из дерева.
Изготавливают их несколькими методами:
- вырезание из цельного куска древесины составных элементов перила и их дальнейшая сборка;
- вырезание перил из клееной древесины;
- соединение элемента из не очень плотного деревянного шпона.
Способ точного изготовления перил
Схема извитых перил из дереваЛюбой из этих методов изготовления является довольно сложным. Для этих целей понадобится соответствующий материал и специальный инструмент. Специалисты рекомендуют купить готовые поручни под заказ в специализированной фирме. Вашей задачей будет только установить их, хотя и эту работу можно доверить мастеру своего дела.
Что касается ассортимента, то на рынке представлен широкий выбор поручней, отличающихся друг от друга по внешнему виду, материалу и цене. Те, кто предпочитает дворцовую роскошь, может купить для винтовых деревянных лестниц на второй этаж резные перила. А для более экономных клиентов есть пластиковые перила с имитацией фактурного рисунка древесины.
Сборка винтовой лестницы
Прежде чем приступать к установке конструкции, необходимо определиться с ее месторасположением и с тем, будет ли она соприкасаться со стеной. Справившись с этой задачей, можно приступать к выполнению пошаговой инструкции:
- Вырежьте в перекрытии окружность требуемой формы и сделайте декоративное обрамление краев.
Вырезание и обрамление проемаДальнейшие действия зависят от особенностей опорной стойки:
- Если вы приобретаете готовый набор винтовой лестницы, то состоящая из отдельных частей опора собирается одновременно со ступенями.
- Если используется монолитная бетонная или кирпичная опора, то на ней наносятся метки, где в дальнейшем будут крепиться кронштейны. Они служат для укладки и фиксации ступеней.
- На деревянный опорный столб большого диаметра ступени крепятся с помощью брусков, высота которых равняется расстоянию между ступенями. Бруски с сечением 3×5 см или 5×5 см крепятся к размеченным на столбе местам саморезами.
- При укладке первой ступени можно подложить с ее широкой стороны деревянный брусок крупного размера.
- Верхняя ступень крепится к полу второго этажа.
- После выставления всех ступеней необходимо установить балясины. Закреплять их можно только после того, как будут срезаны их верхушки под углом, зависящим от уклона и поворотов лестницы.
- Устанавливаются и закрепляются саморезами перила. Чтобы не повредить стойки, рекомендуется сделать предварительно каналы под саморезы.
- Затем крепится плинтус, если это предусмотрено проектом.
Четко выполнив руководство по монтажу винтовой лестницы, приступайте к заключительной отделке. Подберите для конструкции подходящую краску, морилку или обычный бесцветный лак.
Винтовые конструкции – это прекрасное дизайнерское решение для вашего дома или дачи. И независимо от того, выбрали ли вы дорогой вариант или эконом-класс, результат в любом случае вас порадует.
Видео-инструкция по сборке модульной лестницы
Оригинальные винтовые лестницы из дерева – фото
domzastroika.ru
виды и конструктивные особенности (+52 фото)
В двухэтажных домах, особняках, коттеджах важным и функциональным элементом обстановки является лестничная система. Она необходима для подъема на верхний ярус, чердак или мансарду. В условиях ограниченного пространства сложно вписать в интерьер полноценную маршевую конструкцию. Для экономии свободного места идеально подходит винтовая лестница – система вертикального типа, ступени которой расположены по спирали.
В основе винтовой конструкции лежит опора или стержень, по кругу которого размещены забежные ступени. Каждый фрагмент лестничного перехода вкруговую располагается на опорной стойке, расстояние между ступенями, их ширина и форма зависят от выбранной модели. Готовые изделия можно приобрести в разобранном виде и смонтировать по месту установки. Если есть навыки, материалы и инструменты, можно сделать лестницу своими руками.
Плюсы винтовых лестниц
Конструкция винтового типа (круглая или полувинтовая) эффектно смотрится в любом интерьере. Но по комфортности подъема круговая модель уступает маршевым конструкциям, затрудняет поднятие на верхний ярус громоздких предметов мебели.

По другим параметрам винтовые лестницы обладают несомненными преимуществами:
- Не отнимают много свободного места благодаря конструктивным особенностям.
- Модель, изготовленная из качественных материалов, обладает хорошими эксплуатационными характеристиками, компактностью.
- По ценовой доступности винтовые конструкции более привлекательные для среднестатистических потребителей.
- Опорные ступени, основная стойка, перила обладают требуемой устойчивостью, прочностью, выдерживают нагрузки.
- Винтовую модель лестницы можно установить в любой комнате – в центре, у стены, перед входной дверью, у большого окна на террасу.
- В художественно-дизайнерском плане изделия считаются наиболее выразительными из лестничных систем.
- Некоторые варианты лестниц можно приобрести в разобранном виде, чтобы не оплачивать услуги мастеров по установке.
- Универсальное назначение определяет широкую применяемость винтовых систем в частных домовладениях.
Спиралевидная лестница на второй этаж – это вспомогательный ход, обеспечивающий простой подъем на любой верхний ярус, включая чердачное помещение, мансарду. Использование круговых моделей выгодно подчеркивает интерьерный дизайн, вызывает восторг у окружающих.
Главное преимущество винтовых систем – экономия свободного места, возможность монтажа в условиях ограниченного пространства небольших помещений.

Виды конструкций
Винтовые лестницы на второй этаж можно классифицировать по различным признакам на несколько видов: по характеру расположения ступеней, материалу изготовления, форме. Они могут быть с перилами и без них, оснащаться массивными ступенями или очень маленькими и легкими приступками. Иногда для лестниц используют тетиву – специальное ограждение, которое может помочь при установке ступеней.
Основным требованием является наличие мощного стержня-опоры, к которому крепится вся конструкция. Он должен быть установлен четко по уровню, надежно закреплен, чтобы готовая система была строго вертикальной.

Наиболее значимый параметр при выборе является способ крепления забежных ступеней:
- простая модель с клинообразными ступенями – элементы широким концом упираются на смежные стены по периметру, а узким – на опорные стойки;
- консольный тип монтажа забежных ступеней – из главной опоры винтовой конструкции выступают фрагменты лестничной системы, закрепленные на стержне, возможен монтаж в центре помещения;
- модели без опорного столба – монтаж ступеней выполняется в оформленные по спирали тетивы, которые одновременно выполняют роль несущих перил, это сложная система;
- изделия с центральной стойкой – назначение опоры состоит в удерживании лестницы, каждая ступенька «обходит» стержень спирально, проступи прочно закреплены на опоре.
Четыре основных вида конструкцииПеред выбором нужно определиться и с формой изделия. Винтовые системы на второй этаж бывают круглыми (спиральными) и многоугольными (квадратными). Если монтаж выполняется у стены, можно установить модель многоугольной формы – хорошая экономия пространства. В центральной части помещения устанавливают изделия спиральной формы.

Все варианты винтовых лестничных систем условно классифицируют на стационарные и модульные. Лестницы стационарного типа на второй этаж преимущественно выполняют под заказ, чтобы учесть архитектурные особенности помещения.

Модульные изделия выпускают в готовом варианте, после доставки лестницу нужно собрать на месте. Преимущество – возможность демонтажа без повреждения фрагментов лестничной системы.
Модульный тип лестницы более легкий на видНа видео: установка модульной лестницы своими руками.
Варианты винтовых лестниц на второй этаж
Чтобы обеспечить свободу и безопасность подъема на верхний ярус, винтовые лестницы для второго этажа должны отвечать определенным требованиям. Ширина ступеней будет комфортной и безопасной, если размер проступи не меньше 200 мм. Каждый фрагмент должен быть надежно зафиксирован, а лестница – четко выдержанной в вертикальной и горизонтальной плоскости.
Благодаря приемлемой стоимости и простоте монтажа винтовые системы пользуются широким спросом потребителей. Дополнительное преимущество относительно таких лестниц – минимальное давление опоры на пол, возможность интересно обыграть интерьер.
Эконом класса
Готовые лестницы на второй этаж спиральной формы можно приобрести у производителей продукции. Изделия эконом класса стоят недорого, полностью соответствуют требованиям безопасности, продаются в разобранном виде как модульные конструкции. В комплекте обязательно должны быть схема сборки и инструкция.
Компактная модель круглой лестницы выполняет функциональное назначение и обладает хорошими декоративными свойствами.

Особенности лестниц эконом класса:
- высокое качество материала изготовления – металл, дерево;
- вариативная стоимость, определяемая брендом-производителем;
- модели на заказ изготавливают по индивидуальным проектам;
- изделия не уступают дорогим лестницам по гамме и декору;
- простую конструкцию легко установить самостоятельно.
Круговую лестницу можно сделать своими руками. Для этого требуется предварительно выполнить расчеты, составить чертеж и подготовить нужные инструменты, материалы. Но если с самостоятельным конструированием возникают трудности, лучше обратиться к специалистам. Главное требование, которому должна соответствовать винтовая модель эконом класса, – надежность и безопасность подъема/спуска.

На видео: супер дешёвая лестница для дачного дома.
Для маленьких проемов
Владельцы частных домов сталкиваются с проблемой размещения винтовых лестниц в ограниченном пространстве. Несмотря на компактные габариты лестниц, бывает трудно установить выбранную модель в небольшом помещении так, чтобы конструкция вписалась в маленький проем на втором этаже.
Условно можно разделить проемы на три основные категории:
- минимальные (935х650 мм) – допускается монтаж только чердачной лестницы или стремянки, никаких спиралевидных моделей установить на практике не получится;

- небольшие (1200х900 мм) – можно установить малогабаритную конструкцию с углом поворота до 70-90 градусов, но ею нельзя пользоваться постоянно;

- узкие (2300х800 мм) – идеально подходит монтаж компактной винтовой лестницы любой формы и характера крепления ступеней.

В проемы, которые больше указанных размеров, можно монтировать маршевые лестницы, если позволяют габариты помещения. Важно учитывать форму проема на второй этаж – прямоугольная, круглая, полукруглая. Спиральные модели для монтажа в круглое/полукруглое отверстие должны иметь гнутые фрагменты.

Если проем на второй этаж имеет нестандартную форму (трапеция, многогранник, овал), рекомендуется выбирать винтовую лестницу на чердак под заказ. Специалисты примут во внимание нюансы места установки спиралевидных конструкций и заложат нужные размеры в индивидуальный проект.
Квадратные
Словосочетание «квадратная винтовая» не совсем корректное и может ввести в заблуждение. Лестница может быть квадратная по форме, но в ней не сохраняется строгая геометрия. Такая конструкция на второй этаж или чердак выполнена с поворотом под углом и не содержит гнутые элементы. Это нестандартное решение для ограниченного пространства.
Монтаж выполняется вдоль стены с опорой ступеней по периметру и на основной стержень. По форме лестница напоминает «неправильную змейку».

Особенности винтовой модели квадратного типа:
- хорошо помещается в узком небольшом пространстве;
- отличается простотой сборки и легкостью монтажа;
- гармонирует с различными интерьерными стилями;
- может быть основной или вспомогательной конструкцией;
- ширина проступи по линии движения – от 200 мм;
- угол крутизны зависит от свободного пространства;
- хорошо воспринимает оказываемую нагрузку;
- отличается компактными габаритами, небольшим весом.
Квадратная винтовая лестница – тандем спиральной и маршевой конструкции. Ее актуально использовать в узких помещениях или в комнатах, дизайн которых исключает плавные линии и обтекаемые формы. Проектирование модели может выполняться на стадии строительства домов и коттеджей или для готовых помещений. Небольшие экземпляры можно успешно установить на даче.
Изделия уступают по площади прямым маршевым системам и аккуратно вписываются в местах установки, где монтаж других конструкций невозможен технически.

Размеры
Чтобы по винтовой лестнице было удобно подниматься и спускаться, габариты изделия должны соответствовать принятым типоразмерам. Возможно изготовление лестниц по индивидуальному чертежу, а также самостоятельное изготовление.
Стандартные размеры для винтовой лестницы включают следующие параметры:
- Оптимальная ширина ступеней в центральной части – 200 мм, на расстоянии 150 мм от опорного стержня – не менее 100 мм.

- Длина ступеней варьируется, минимальный размер – 600 мм при диаметре лестницы 1400 мм, 800 мм – диаметр 2000 мм.
- Стандартный проем в перекрытии под установку винтовой модели в диаметре составляет 2000 мм.

- Для прохода человека ширина и высота конструкции должна обеспечивать свободу подъема на следующий виток спирали.

- Стандартный диаметр основной металлической опоры из толстостенной трубы – 50 мм.
- Оптимальное расстояние между поручнем и кромкой проема – не менее 100 мм.

Расчет размеров лестницы должен быть точным, чтобы обеспечить требуемую прочность и жесткость. Имеет значение крутизна ступеней – при более развернутом угле поворота по лестнице легче подниматься.
Перила – обязательный атрибут винтовой модели. Экземпляры без перил не обеспечивают требуемую безопасность подъема/спуска.

По материалу
Одно из условий долговечного использования лестниц на второй этаж – качество материала, монтажной фурнитуры и декоративных аксессуаров. Производители предлагают лестницы, выполненные из массива дерева, металла, бетона, стекла, чугуна.
Монолитные бетонные лестницы сложно вписать в обстановку помещения, поскольку они обладают визуальной тяжеловесностью, смотрятся строго и холодно. Что касается лестниц из стекла, то они смотрятся выигрышно, зрительно не «отбирают» свободное пространство. Наибольшую популярность получили деревянные, металлические и чугунные системы, каждая обладает своими характеристиками, плюсами и недостатками.
Деревянные
Установка винтовых лестниц из массива дерева – оптимальный вариант монтажа в доме, коттедже, на даче. Материал излучает приятное тепло, выигрышно смотрится в интерьере, обладает требуемой прочностью и долговечностью. Дерево хорошо поддается обработке, поэтому из разных пород древесины получаются интересные экземпляры с эффектным декором.

Преимущества деревянных винтовых лестниц:
- экологическая чистота материала;
- минимальные габариты для монтажа конструкции;
- многообразие форм и привлекательная текстура;
- высокая прочность, хороший срок эксплуатации при должной обработке;
- небольшой вес, компактные размеры, высокая максимальная нагрузка на ступени;
- можно удачно комбинировать металлические опоры с деревянными фрагментами.

Единственный недостаток лестниц из дерева – они подвержены воздействию влаги и перепадам температуры. Поэтому перед монтажом изделие должно быть обработано антисептиками, покрыто лаком в несколько слоев, чтобы избежать истирания поверхности.
Металлические
Лестницы из металла обладают наибольшей прочностью и сроком эксплуатации. При этом металл хорошо комбинируется с другими материалами (будь то дерево, камень или стекло), ему можно придавать различные формы. Поверхность металла можно окрашивать в любой оттенок, поэтому не возникает проблем с выбором по цвету.

К преимуществам металлических винтовых лестниц относятся:
- многообразие форм и расцветок, комбинированные варианты;
- высокая прочность, надежность конструкции и опоры;
- привлекательное декоративное оформление, все типы установки;
- большой срок эксплуатации, гармоничность в интерьерном дизайне;
- использование для отделки красивых кованных фрагментов;
- высокая устойчивость за счет использования жестких опор.

Система металлической винтовой лестницы интересно смотрится в помещении, ее можно использовать в качестве внутренней и наружной, основной и вспомогательной конструкции.
По сравнению с классической маршевой моделью металлическая винтовая система смотрится невесомо, зрительно не нагружает пространство.

Чугунные
Модели, изготовленные из чугуна – это эксклюзивные лестницы на второй этаж. Каждая конструкция оригинальна, поскольку для производства изделия предварительно готовят литьевую форму. Уникальная особенность чугунных изделий – возможность реализовать сложные ажурные узоры, изящные линии.
Несмотря на дороговизну материала, продолжительность технологического процесса производства, чугунные лестницы пользуются спросом, относятся к разряду элитных моделей.

Особенности и преимущества винтовых изделий из чугуна:
- неповторимость дизайнерских решений, сложный декор;
- высокая прочность и износостойкость, антикоррозийность;
- продолжительный срок эксплуатации, жесткость, надежность;
- эстетическая привлекательность, универсальное назначение;
- реализация интересных элементов – балясины, столбы, перила.

Модная конструкция из чугуна выделяется среди ассортимента лестниц неповторимыми линиями, эксклюзивным дизайном, безупречным качеством. На современном рынке активным спросом пользуются европейские экземпляры (Италия). В некоторых дизайнерских проектах интерьер разрабатывается специально под установки элитных чугунных лестниц.

Винтовые лестничные конструкции – удачное решение для любого частного дома. Они обладают требуемой функциональностью, долговечностью, декоративной привлекательностью. Чтобы сделать подъем и спуск комфортным и безопасным, нужно выбирать качественные модели и проверять надежность конструкции в процессе монтажа.
Сборка винтовой лестницы из фанеры своими руками (1 видео)
Интересные решения (52 фото)
dekormyhome.ru
30 фото красивых деревянных лестниц на второй этаж в частном доме
Владельцы частных домов, имеющих два и более этажа, и владельцы двухуровневых квартир часто сталкиваются с проблемой выбора лестницы. Конечно, когда это малозначительная часть интерьера, находящаяся в укромном уголке дома, не стоит выбирать каких-либо сложных дизайнерских проектов. Иногда лестница может стать центральной частью какого-либо помещения, например холла, гостиной и др. В этом случае от ее внешнего вида будет зависеть презентабельность всего интерьера. К выбору проекта для такой лестницы стоит подходить всей ответственностью.
Лестница из дерева поражает своим великолепием и делает помещение похожим на дворец. Основную декоративную функцию выполняют перила. Именно они делают совершенную простую лестницу поистине незабываемой.Здесь представлены 30 фото красивых деревянных лестниц на второй этаж для частного дома или многоуровневой квартиры. Изучив фото проектов, вы непременно подберете для себя подходящий по дизайну вариант.
Маршевые деревянные лестницы
Этот вид является самым распространенным. Это связано с простотой конструкции, легкостью монтажа и удобством в использовании. К сожалению, данная конструкция требует много свободного пространства. Если ваш дом позволяет поместить такую лестницу, то стоит остановить выбор именно на ней.
Лестница из дерева красиво дополнена декоративными элементами из металла. Данный проект лестницы напоминает стиль средневекового замка. Уместны и массивные ступени.Классические лестницы отличаются простотой форм, лаконичностью и прямыми линиями. Дизайн лестниц в таком стиле утончен. Они очень часто присутствуют лепнины и восхитительные деревянные узоры. Данные конструкции отличаются элегантностью и консервативностью решений.
Простой и лаконичный вариант маршевой лестницы. Безупречно смотрится в классическом интерьере. Полностью деревянная отделка создает ощущение тепла. Происходит единение с природой.
Лестница в классическом стиле никогда не выйдет из моды. Сочетание цветов очень выигрышное. Оно подчеркивает четкость линий.
Использование подсветки ступеней лестницы создаст дополнительный комфорт в ночное время. кроме того это необычайно красиво. Пространство под лестницей скрыто декоративными панелями.
Классическая лестница полностью белого цвета станет заметным акцентом в интерьере.
Пространство под лестницей не должно пустовать. Там можно разместить телевизор или другие предметы мебели. Вариант такой лестницы отлично впишется в классический интерьер.
Лестница при помощи подсветки и фонтана превратилась в струящийся водопад. Создается чувство, что попал в фантастическую страну и скоро по лестнице спуститься принцесса эльфов.Если остановить выбор на стандартной деревянной лестницу, имеющей поворот на 45 градусов, то ради экономии места под ней можно разместить полки, вместительные встроенные шкафы или расположить другие элементы интерьера.
Пространство под богато украшенной лестницей занимает вместительная полка. Очень практично.
Такой вариант лестницы подойдет тем, у кого нет кладовой. Место для хранения вещей получилось вместительным и компактным.
Еще один интересный проект лестницы с прекрасной организацией пространства под ней. Здесь полки и шкафчики. Поместиться много различных вещей.Обычно маршевые лестницы применяют, если в помещении большой перепад уровней. Если перепад более трех метров, то лестничный марш разделяют площадкой.
Красивое и практичное решение позволяет размещать под лестницей тумбы и другие предметы.
Богато декоративная отделка лестницы придает ей величественный вид. В пространстве под лестницей гармонично разместился рабочий стол.Варианты без подступенников имеет более современный внешний вид. Они визуально расширяют пространство. Это очень важно для небольших по размеру помещений. Именно открытые проекты используют в дизайне домов стиле хай-тек.
Отличное дизайнерское решение по совмещению двух цветов делает лестницу яркой и эффектной.
Лестница как-будто парит в воздухе. Визуальный эффект усиливается за счет использования стекла.
Лестница абсолютно не затемняет окно. Свет как бы струится сквозь нее. Добиться такого эффекта позволила конструкция перил и отсутствие подступенников.Маршевая лестница кроме основной своей функции является еще и центральным элементом интерьера, приковывая к себе восхищенные взгляды всех, кто посетит ваш дом.
Такая лестница достойна императорского дворца. Бесподобно красивы массивные резные перила.Винтовые деревянные лестницы
Этот вид лестницы зачастую используется в случае ограниченного пространства. Это не значит, что такая лестница не станет изюминкой интерьера. Сегодня множество дизайн-проектов включают именно винтовую лестницу, как неотъемлемую часть интерьера.
Лестница, красиво закручиваясь уходит в потолок.
Винтовые лестницы действительно занимают минимум места.Винтовые лестницы устанавливают редко. Чаще она идет в качестве вспомогательной для поднятия на чердак или мансарду. Об удобстве данной конструкции можно, конечно, поспорить. Некоторые считают, ее не совсем удобной. Она имеет ряд особенностей, но к ним со временем можно привыкнуть.
Некоторые фото проектов настолько вас поразят, что вы захотите иметь такой шедевр у себя дома.
Винтовая лестница с богато украшенными резными перилами ассоциируется с замком из сказки.
Во дворцах часто использовали винтовые лестницы. Она выглядит очень красиво, уходя змейкой ввысь.С точки зрения безопасности винтовые лестницы необходимо оснащать перилами.
Необычное оформление опоры придает лестнице футуристический вид.
Перила этой лестницы напоминают завивающиеся листья экзотического растения. Опорный стол также выполнен в столь необычном стиле.
Классическое сочетание цветов. Мягкие ступени приятны для босых ног.При выборе лестницы ключевым моментом является назначение помещения, где ее устанавливают. Вариант для прихожей вряд ли будет органично вписываться в дизайн гостиной.
Винтовая лестница на займет много места в прихожей.
Удивительно, как в том ограниченном пространстве уместилась винтовая лестница.
Элегантная спиральная лестница черного цвета. Она подчеркивает стиль интерьера.
Такой дизайн винтовой лестницы сделает деревянный дом теплым и уютным. Массивный опорный столб и ступени создают ощущение надежности.
Модульная винтовая лестница позволяет создавать нестандартные конструкции, которые не займут много место, сохранив при этом функциональность.Принцип проектирования заимствован из природы. Он похож на анатомическое строение позвонков. Такие лестницы очень популярны в дизайне современных домов.
Винтовая лестница без перил напоминает позвоночник животного. Минимализм в конструкции как нельзя лучше подойдет для помещения в современном стиле.Спиральная лестница имеет особую привлекательность. Она будет хороша для домов в стилевом оформлении рококо, ампир, модерн.
lestnicymaster.ru
Винтовые лестницы на фото – особенно красивые

Когда мы видим красивые интерьеры на фото, винтовые лестницы всегда привлекают
внимание и придают помещению какой-то особенный уют. Они выглядят очень мило и
по-домашнему: в доме, выдержанном в деревенском или загородном духе, винтовая лестница на мансарду (фото) будет как нельзя кстати. Эта конструкция особенно удобна, когда пространство
помещения не слишком велико, а потолок второго этажа достаточно высок. В этой
статье мы рассмотрим, как
сделать в доме винтовую лестницу не просто средством передвижения в
вертикальной плоскости, а красивым элементом дизайна помещения.


Основной «строительный материал» для изготовления лестниц – дерево, металл и камень. Такой яркий архитектурный элемент, коим является
лестница, особенно, винтовая, непременно должен быть заметным в интерьере.
Поскольку ее конструкция чаще всего выбирается по причине нехватки места, она
должна быть максимально компактной. Визуальный эффект также важен: чем меньше
количество отдельных деталей, из которых она собрана, тем легче и воздушнее
выглядит вся конструкция, соответственно, камень не слишком подходит для
строительства винтовой
лестницы на второй этаж. Минусом камня является еще и его большой вес, а
поскольку конструкция винтовой лестницы все же не такая монументальная, как у
ее маршевых коллег, перегружать ее не стоит. Впрочем, он вполне может быть
использован для изготовления отдельных элементов, например, ступеней или
поручней.
Если рассматривать винтовые лестницы на фото, чаще всего встречаются комбинированные варианты, в которых
используются металл и дерево. Металл проще поддается обработке и изгибанию, а
это немаловажно при изготовлении тетивы и косоуров, поэтому лестницы винтовые металлические выглядят
наиболее гармонично. Очень популярным вариантом является комбинация
металлических деталей основы и деревянных ступеней и поручней. Самым простым
решением является приобретение готовой конструкции, которые предлагаются
множеством производителей. Такие лестницы представляют собой набор модулей,
которые достаточно универсальны и могут быть установлены в помещениях различной
конфигурации.


Готовые винтовые
лестницы, фото которых можно подробно рассмотреть на сайтах
производителей, состоят из отдельных наборных элементов. В комплект входят: центральная опора, ступени, которые имеют отверстие для опоры и элементы
балюстрады, поручень и лестничная площадка. Кроме того, существует возможность
приобрести дополнительные элементы, если необходимо нарастить лестницу на
большую высоту. Некоторые производители предлагают необработанные деревянные
ступени, которые покупатель может декорировать по своему усмотрению. Металлические
детали таких лестниц обычно окрашены порошковой краской в нейтральные цвета –
белый, серый, черный. В целом дизайн этих конструкций минималистичен, что
делает их универсальными: их можно установить как в жилом помещении, так и в
магазине, кафе или офисе. При желании их можно дополнительно украсить
декоративными элементами: добавить детали ковки, деревянные элементы или другие
оригинальные дизайнерские украшения – фантазия дизайнера ничем не
ограничивается.

Совсем другое впечатление производят фото винтовых лестниц, произведенных на заказ.
Это штучный товар, соответственно, стоимость его будет существенно выше, но
зато и декоративная составляющая в данном случае будет существенно
превалировать. В зависимости от стилевых особенностей окружающего интерьера
производятся они из металла и дерева. Для этого используются благородные породы
древесины, а также особые методики обработки металла – ковка, патинирование и
т.п. В умелых руках мастеров обычные металлические прутки обретают новую жизнь,
превращаясь в виноградные лозы и нежные листья, создавая тонкие ажурные узоры.
Такая лестница станет центральным элементом интерьера, от которого дизайнер
будет строить дальнейшее убранство помещения. Кованые предметы интерьера
прекрасно смотрятся в помещениях, оформленных в средиземноморском, колониальном
стиле, в виде средневекового замка. Они отлично взаимодействуют с натуральным
или искусственным камнем, штукатуркой, терракотой, живыми растениями. Если же
интерьер более тяготеет к классике и в его отделке много древесины, деревянная винтовая лестница, как на фото, здесь будет очень
уместна. Само собой, что сделанная на заказ, она должна быть выполнена с
максимальным изяществом, с применением искусных методик отделки: резьбы, состаривания, патинирования и пр.




Развитие современных отделочных материалов предоставляет
большие возможности для декорирования лестниц, которые позволяют добиться самых
оригинальных эффектов. Так, например, большую популярность приобретают стеклянные ступени и элементы ограждения. Таким образом, вся конструкция
винтовой лестницы (см. на фото) становится настолько в буквальном смысле прозрачной, что визуально практически
исчезает – прекрасная возможность вписать в интерьер предмет, который
технически необходим, но не слишком уместен в данном помещении. Для стильных,
современных интерьеров дизайнеры с готовностью используют в отделке лестниц
прозрачный цветной пластик, элементы подсветки, панели МДФ с рисунком и
перфорацией и многое другое.


postroika.biz

Чердачная лестница с люком: простота, практичность и доступность. Виды, преимущества и недостатки. Как сделать складную лестницу с люком своими руками. Грамотное использование пространства.