Конструкция откатных ворот из металлопрофиля и особенности их изготовления
К воротам, как к одной из самых значимых элементов дачного участка или территории у загородного дома, предъявляются достаточно строгие требования.

Откатные ворота из профнастила
Кроме красивого внешнего вида, эта конструкция должна быть достаточно прочной, неприхотливой в уходе, удобной, надежной и с минимальными расходами по эксплуатации.
Чем хороши откатные ворота?
По сравнению с привычными воротами распашного типа, откатной вариант не так распространен. Но за последнее время его популярность постоянно набирает обороты.
Вот некоторые их достоинства.
• Для обустройства откатных или раздвижных ворот, по сравнению с распашными, нужно совсем немного места (участок вдоль ограждения размером 150–200 мм). В отличие от них, распашные ворота довольно громоздки. Так, при стандартной ширине воротного проема от 4 до 5 м, ширина створок – от 2 до 2,5 м. Такие створки создают неудобство хозяевам участка (при открывании створок вовнутрь) или прохожим (при открывании створок наружу).
• Повышенная надежность. Благодаря тому, что тележки роликов ходят внутри направляющей, — они хорошо защищены от снега и воды. Десять-пятнадцать лет эксплуатации для таких ворот – абсолютная норма.
• Чрезвычайно низкие эксплуатационные расходы. Воротный механизм не нуждается в смазке. Мало того: смазка нежелательна, поскольку прилипающая к ней грязь препятствует свободному движению створок.
• В зимнее время, не нужно очищать от снега большую площадь перед воротами.
• Несложный процесс автоматизации.
Традиционные распашные ворота имеют единственное преимущество перед откатными: чрезвычайную простоту конструкции.

Конструкция откатных ворот
В чем преимущества профнастила?
Достоинства ворот из металлопрофиля.
Металлопрофиль (профнастил) пользуется большой популярностью из-за целого ряда достоинств.
• Небольшой вес (а, значит, нет необходимости в массивных опорах с большой несущей способностью).
• Ограждение из металлопрофиля – отличное препятствие на пути незваных гостей, пытающихся проникнуть на участок. Преодолеть такое ограждение непросто, а незаметно нанести механическое повреждение – нельзя.
• Прочность.
• Богатая цветовая гамма. Наибольшей популярностью пользуется металлопрофиль с защитным полимерным покрытием (не только из-за повышенной надежности и износостойкости, но и по причине большого разнообразия цветовых вариантов).
• Относительно небольшая стоимость.
• Простота возведения. Опыт показывает, что изготовление конструкции из металлопрофиля не представляет затруднений даже для начинающего строителя.

Особенности нагрузки на откатные ворота
Разновидности откатных ворот
Имеется два вида конструкций ворот из металлического профиля откатного типа.
• Створка передвигается по балке, которая установлена выше уровня почвы вдоль стационарной части ограждения (консольный тип). При сдвижении в сторону, проем открывается полностью.
• Несущий профиль укрепляется на опорах по краям воротного проема. По ним перемещаются ролики.
Изготовление таких ворот (с верхним подвесом) менее дорогостоящее, по сравнению с консольным вариантом.
Минус такой конструкции: ограничение проема по высоте направляющей балкой.
Конструкция створки ворот – это рама, изготовленная из профиля с прямоугольным сечением. С одной или двух сторон эта рама зашивается профильными листами. Цвет можно выбрать практически любой.
По направлению открытия воротного полотна различают два вида конструкций из профнастила.
• Ворота открываются в одну сторону.
• Ворота состоят из двух створок, раскрывающихся в разные стороны (секционные, или раздвижные).
Особенности установки
Несмотря на то что по сравнению с распашным вариантом, конструкция откатных ворот несколько сложнее, с их изготовлением может отлично справиться даже начинающий строитель.
Как и во всех случаях с возведением ворот, работы начинаются с фундамента. Вначале устанавливаются опорные столбы. Яма для них на 200–300 мм глубже, чем линия промерзания грунта.
В яму строго вертикально устанавливаются столбы и бетонируются. Если в качестве опор решено использовать кирпичные столбы, в яму вместо столбов помещают сваренные из арматуры закладные элементы.

Особенности конструкции
Для фундамента вырывают траншею в половину расчетной ширины проема. Начинается траншея от столба, в сторону которого ворота будут открываться.
Далее изготавливается закладной каркас из арматуры П-образной формы. Для изготовления каркаса приваривается швеллер (нижняя часть – вровень с землей).
Закладной каркас устанавливают в траншею и бетонируют. Для полного застывания бетона следует подождать неделю-две.
К швеллеру привариваются роликовые тележки. По ним и будет передвигаться направляющая. Если готовое устройство открывается с трудом, его можно отрегулировать.
svoivorota.ru
Как сделать ворота из металлопрофиля своими руками
Металлопрофиль, также широко известный как профнастил, прекрасно подходит для обустройства самых разнообразных конструкций. Этот листовой материал применяется при строительстве кровель, навесов, ограждений и, конечно же, ворот. Самый простой и бюджетный вариант – это классические распашные ворота из профлиста.
Как сделать ворота из металлопрофиля своими руками
Однако при большом желании можно безо всяких проблем разобраться в порядке обустройства передвижных или даже подъемных ворот из металлопрофиля и сделать их своими руками. При грамотном подходе такие ворота станут не только надежной защитой от злоумышленников, но и достойным украшением участка.

При грамотном подходе такие ворота станут не только надежной защитой от злоумышленников, но и достойным украшением участка
Содержание пошаговой инструкции:
Преимущества использования металлопрофиля для сборки ворот
В основе рассматриваемого листового материала лежит оцинкованная сталь, покрытая полимерами. Покрытию можно придавать любой желаемый цвет, что позволяет сделать ворота, которые будут наилучшим образом вписываться в дизайн участка.

Профнастил
У металлопрофиля есть множество преимуществ, выгодно выделяющих его на фоне прочих популярных материалов, а именно:
- высокая жесткость;
- отличные показатели прочности;
- небольшая масса;
- легкость установки;
- неприхотливость в уходе;
- прекрасный внешний вид;
- долговечность.
При условии правильной установки и соответствующего обращения самодельные ворота из металлопрофиля будут служить долгое время, не требуя особого ремонта.
При необходимости их нужно будет лишь мыть и красить. Малый вес делает листы очень удобными и простыми в обращении, всю работу по обустройству ворот можно сделать своими руками, но лучше заручиться помощью хотя бы одного человека, который будет держать листы в процессе их закрепления.

Ворота из металлопрофиля
Ворота из металлопрофиля – это один из наиболее бюджетных, простых и популярных вариантов. При грамотной организации и выполнении работы можно будет получить отличные ворота, сочетающие в себе высокое качество, разумную стоимость и привлекательный внешний вид.
Существует несколько основных типов ворот, которые можно сделать самостоятельно. Самый простой вариант, как уже отмечалось, это распашные ворота. Данная конструкция состоит из пары створок, которые могут открываться внутрь, т.е. на участок, либо же наружу. Однако такие ворота требуют наличия большого пространства для своего открытия.
Изучите основные особенности существующих вариаций и выберите самую подходящую под ваши запросы и возможности.
Особенности ворот разных типов
Существует довольно много разновидностей ворот, которые можно собрать из металлопрофиля. Среди наиболее популярных можно выделить раздвижные, подъемные и распашные ворота.

Ворота распашные из металлопрофиля
Начинающим мастерам, которые ранее не имели опыта обустройства подобных конструкций, следует обратить свое внимание на распашную конструкцию. Функцию основы подобных ворот выполняет одна либо две опорные стойки. На эти стойки монтируется металлический каркас и в завершении крепятся листы металлопрофиля. Створки ворот насаживаются на специальные петли с подшипниками. Калитка обычно прорезается непосредственно в одной из створок, но может быть и отдельной.

Схема каркаса для ворот из профнастила
При желании распашные ворота из профлиста можно оснастить электроприводом, благодаря которому они смогут открываться автоматически. Мощного оборудования не требуется, т.к. листы рассматриваемого материала имеют малый вес.
Не менее популярными являются откатные самодельные ворота. Особенности рассматриваемой конструкции таковы, что для открытия нужно раздвинуть створки ворот в противоположные направления. После открытия конструкции створки будут прятаться за забором. Подобная система удобна тем, что не требует наличия большого свободного пространства перед или за собой для открытия. Но возведение таких ворот возможно только при наличии достаточно места для разведения створок. При этом важно, чтобы забор был ровным.
С обустройством двух упомянутых конструкций вполне возможно справиться своими руками. За более сложные варианты при отсутствии должного опыта браться не рекомендуется.
Подготовка к строительству ворот из металлопрофиля

Ворота из металлопрофиля
Как отмечалось, наиболее простыми в изготовлении являются распашные ворота, поэтому новичкам рекомендуется обратить внимание именно на эту конструкцию. Вся работа сводится к установке пары столбов и закреплению к ним створок, состоящих из каркаса обшитого металлопрофилем. Будет ли калитка отдельной либо же встроенной в одну из створок, решайте сами.
Монтаж ворот из металлопрофиля начинается с выполнения ряда подготовительных задач, в частности – сборки требуемых инструментов, дополнительных приспособлений и материалов.
Набор для самостоятельного изготовления ворот из металлопрофиля
- Болгарка с шлифовальным кругом, подходящим для резки металлопрофиля.
- Сварочный аппарат.
- Электрический шуруповерт.
- Электродрель.
- Рулетка для снятия необходимых замеров.
- Молоток.
- Клепатель.
- Бур.
- Бетономешалка. При ее отсутствии нужно хотя бы подготовить емкость для приготовления раствора.
- Угломер.
- Краска для отделки каркаса. Также часто применяется грунтовка. В этом вопросе ориентируйтесь на свои личные предпочтения и доступный бюджет.
- Лопата.
- Саморезы. Также подойдут заклепки.
Для сборки ворот лучше всего подходит металлопрофиль С8. Материал этой марки имеет толщину порядка 0,6 мм, а высота волны составляет 8 мм. Самодельные ворота из такого профлиста будут иметь аккуратный внешний вид и высокую прочность. Расчет нужного количества материалов выполняется индивидуально в каждом конкретном случае. Ориентируйтесь на выбранную прямоугольную площадь воротных створок.

Профнастил С8
Створки, как уже отмечалось, крепятся к стойкам. Функцию опорных столбов могут выполнять трубы из стали. В большинстве случаев достаточно изделий диаметром около 6 см. Нужную длину опоры подбирайте в соответствии с запланированной высотой будущих самодельных ворот. К рассчитанной длине добавьте еще примерно 30-35% — именно такая часть трубы должна быть вкопана в землю.
При установке столбы заливаются бетонным раствором. Смесь вполне стандартная. Готовится из части цемента (будет достаточно марки М400), трех частей песка и 4-5 частей щебенки. Обязательно используется армирующая проволока. Ее применение поспособствует увеличению прочности и в целом надежности конструкции.
Каркас конструкции традиционно изготавливается из профиля. Отлично подойдет материал шириной 4 см и толщиной 2 см. Эти показатели можно уменьшать или же увеличивать, все зависит от особенностей конкретного случая.

Ворота и калитка из профнастила
Основные этапы работы
Первый этап – подготовка места. В сумме будет 3 вертикальных столба. На два навешиваются створки, на третий – калитка. Важно, чтобы эти стойки располагались в одном ряду с опорными столбами ограждения. Выройте ямы для столбов диаметром порядка 200 мм и глубиной около 100 см. Удобнее всего делать это при помощи садового бура. При отсутствии такого инструмента используйте обыкновенную лопату.
Второй этап – выполнение засыпки. Дно вырытых ям засыпается 10-15-сантиметро

Опорные столбы
Третий этап – приготовление раствора для фиксации опорных столбов. Рецепт раствора приводился выше. Все компоненты нужно перемешать в указанных пропорциях и добавить к ним воду. Бетономешалка позволит приготовить раствор быстрее, но ввиду того что его понадобится небольшое количество можно обойтись и без такого приспособления, замесив бетон в любой подходящей по размеру емкости.
Четвертый этап – установка и фиксация столбов. Возьмите стойки, установите их в подготовленные ямы в строго вертикальном положении и залейте бетонным раствором. Для обеспечения более устойчивой фиксации рекомендуется предварительно приварить к низу стоек по 3 горизонтальные планки. Их можно сделать из металлического уголка, арматурного стержня и прочих подобных изделий. Залейте ямы бетоном и еще раз убедитесь в вертикальности установки столбов. Дождитесь, пока заливка схватится и наберет хотя бы минимальную необходимую прочность. На это понадобится 3-4 дня.

Вариант опорных столбов
Пятый этап – сборка конструкции. Изготовьте кирпичные либо деревянные подставки и установите на них створки ваших будущих ворот. Створки выставляйте максимально ровно. Для проверки горизонтальности используйте уровень. Вертикальность проверяется при помощи отвеса.
Ближе к низу стойки вам нужно наметить место размещения петли, привариваемой к опорному столбу. Каждая створка ворот должна крепиться при помощи не менее чем двух петель. Петли лучше купить в готовом виде. Приварите петли и навесьте створки. Аналогичные действия необходимо выполнить с калиткой. Для придания воротам дополнительной жесткости приварите оба крайних столба к стойкам ограждения.

Сварка ворот из профнастила
Ворота из металлопрофиля имеют довольно большую прочность. Ввиду того что листы имеют малую толщину, ветровые нагрузки будут оказывать на них не самое лучшее воздействие. Для придания конструкции дополнительной жесткости можно соединить верхние края опорных стоек горизонтальной планкой, сделанной из того же материала что и ворота.
Шестой этап – покраска. Также для отделки элементов конструкции можно использовать грунтовку. Подходящий состав вам помогут подобрать в магазине лакокрасочных покрытий.
Седьмой этап – монтаж профнастила. Разрежьте металлопрофиль на части выбранного размера и приступайте к их закреплению. Листы укладываются с нахлестом в одну волну. Для крепления можно использовать разные способы. Чаще всего применяются саморезы. В некоторых ситуациях целесообразнее использовать болты либо клипсы.
Саморезы должны быть предназначены для металла. Болты же выбирайте с учетом высоты металлопрофиля и толщины материала на створках. Отверстия для размещения крепежей следует подготовить заранее. Для этого используется электродрель. Выполняется установка запланированного количества листов, они фиксируются выбранными крепежными элементами, после чего можно будет сразу начинать смело пользоваться воротами.

Схема устройства калитки из профнастила
Таким образом, ничего сложного в самостоятельном возведении ворот из металлопрофиля нет. Следуйте полученным рекомендациям и вы создадите надежную и долговечную конструкцию, не требующую больших затрат на этапе своего возведения и особого ухода в будущем.

Готовые ворота из металлопрофиля
Удачной работы!
Видео – Ворота из металлопрофиля своими руками
svoimi-rykami.ru
Ворота из металлопрофиля своими руками
Советы для самостоятельной установки ворот из металлопрофиля
Простое и практичное изделие
Настоящему мужчине важно, когда он своими руками превращает свой дом и участок в изюминку. Однако к дому прилагается забор, калитка и ворота. К любому забору подойдут ворота из металлопрофиля. Почему именно металлопрофиль? Потому что на сегодняшний день он самый надежный и долговечный, при этом вид у этих ворот будет довольно-таки неплохой. Главное – это то, что можно запросто сделать ворота из металлопрофиля своими руками, используя минимальное количество покупных материалов.
Выбираем конструкцию

На какие критерии надо обращать свое внимание? Во-первых, необходимо определить выносливость на ветровые нагрузки. Нет смысла создавать красивую конструкцию, если первые сильные ветры снесут ее вместе с забором. Во-вторых, учитывается нагрузка на забор. Этот момент тоже важен, так как в дальнейшем ограда покосится в сторону, и исправить это очень сложно. Также желательно обеспечить ворота автоматикой. Это делается для облегчения своей участи во время дождя или снегопада.
Существует два вида ворот – распашные и сдвижные. Конечно, распашные обойдутся вам дешевле, они простые в установке, не сильно нагружают забор, но самостоятельно снабдить их автоматикой будет слишком сложно, а если будете рассматривать вариант покупки – обойдется она еще в ту копеечку, при этом из-за большой нагрузки работать будет ненадежно. Что касается сдвижных ворот – при установке придется прилагать знания и усилия, необходимо дополнительное место для отката створок и, естественно, наличие надежного забора.
Подготавливаем материал для каркаса
Стандартный материал для каркаса
Для ворот нужен прочный и надежный металлический каркас. Для достижения одной плоскости обшиваемой поверхности и для облегчения процесса обшивки, можно использовать рейки из дерева. После этого легче будет саморезы вгонять сквозь дерево. Итак, необходимый материал для каркаса любого типа конструкции:
- Профтруба 60х40х2 мм.
- Профтруба 40х20х2 мм.
- Профнастил или металлический лист 4–6 мм.
- Швеллер длиной 200 или 160 мм.
- Арматура для железобетона 12–14 мм.
Последние два пункта используются только при постройке сдвижных ворот.

Петли с подшипниками
Если вы остановили свой выбор на распашных воротах, то особенно важно уделить внимание каркасу и петлям. Надо понимать, что ворота для въезда не такие, как в обычном гараже, поэтому выделите средства и купите дорогие петли на опорных подшипниках. Устанавливаются петли перед монтажом. Вам понадобится помощник, так как одному эту процедуру проводить сложно. Одной разметки будет мало. Дополнительно надо прижимать петли зажимом, проверяя на глаз. Затем сделать пару «тычков» электродом и только потом приваривать.
Что касается каркаса, то он должен быть устойчивым, чтобы выдерживал большую нагрузку ветра. Можно изготовить каркас с перекрещивающимися подкосами и промежуточной продольной балкой для дополнительной устойчивости.
Последовательность установки
Составные части конструкции
Стоит отметить, что для удобства необходимо сделать чертежи. С их помощью вы не запутаетесь в последовательности выполнения работы. Чертежи не дадут вам забыть о мелких, но важных деталях. Особенно это важно для новичков, ведь не каждый умеет идеально конструировать.
В первую очередь необходимо выбрать место для вертикальных стоек. Учитываем то, что стоек у вас будет три. Из них две будут предназначены для ворот и еще одна для калитки. Опорные столбы и стойки забора должны находиться в одном ряду. Далее, используя садовое сверло, выкапываем три ямы. Примерные их размеры должны составлять 20 см в диаметре и 1 м глубиной.
Ямы под стойки

Затем в уже имеющиеся ямы засыпается щебень или гравий, толщиной около 15 см. Это делается для своеобразной подушки. Затем приступаем к замесу бетонного раствора.
Для раствора используем цемент (марка М400), песок и щебень, в пропорции 1:2:4. Это легко можно сделать самостоятельно – добавляя воду, все элементы смешиваются до однородной массы.
Начинаем вставлять опорные стойки в ямы, и заливаем изготовленным раствором. Обратите внимание, стойки должны находиться ровно и четко по вертикали. Многие строители для придания устойчивости, перед погружением приваривают к нижней части стоек несколько горизонтальных планок. В качестве планок можно использовать уголок из металла, также подойдет и арматура. Дожидаемся, пока бетон полностью просохнет. Точного срока нет для высыхания, все зависит от погоды, но минимум два − три дня.
Монтаж каркаса
Исходя из данных чертежа, необходимо подогнать створки к стойкам. Чтобы это осуществить можно створки ворот поместить на какую-то плоскость – кирпич или деревянный брус. Стоит отметить, что выставлять их надо строго в ровных плоскостях. Отмечаем места, где будет находиться нижняя и верхняя петли, после чего они привариваются. Что касается петель, их должно быть как минимум две. Начинаем навешивать створки. Затем выполняются те же работы со второй створкой и калиткой.
Если ваши ворота предназначены для проезда только легковой машины, то можно по верхним краям опорных стоек горизонтальной металлической полоской соединить их между собой. Это придаст конструкции больше устойчивости.
Обшивка металлопрофилем
Красим калитку и ворота. Все детали должны быть одинакового цвета. Подбираем цветовую гамму к элементам забора. Это будет смотреться гармонично.
Последним этапом является установка металлопрофиля. Конечно же, его нужно подогнать по размерам створок. Существует два способа крепления листов: с помощью кровельных саморезов с резиновыми прокладками или специальных болтов.
Выбрав первый способ, учитывайте, что саморезы нужны только по металлу. Если второй способ вам предпочтительней, то болты необходимо искать той длины, которая будет соответствовать высоте волны металлопрофиля и толщине профиля на створках. Понятно, что для крепления сначала необходимо сделать аккуратные отверстия на металлопрофиле.
Сдвижные ворота
Схематическое изображение сдвижной системы
Совсем недавно сдвижные ворота считались шиком, однако комплектующие стали намного дешевле, поэтому люди со средним достатком могут позволить себе откатные ворота. Выполняются такие ворота несколькими способами:
- С помощью нижних роликов, которые будут ездить по нижнему рельсу. Здесь рельса укладывается на грунт.
- Использование верхнего рельса, когда вся роликовая система крепится в верхней части ворот.
- С помощью опорных роликов, катящихся по нижнему рельсу.
- Рельс установлен на заборе, а ролики на створке.
- Использование плавающего рельса.
Для изготовления и установки такого типа ворот нужны определенные знания и опыт, поэтому специалисты советуют не пытаться самостоятельно возводить такие конструкции. Если все же вы решили рискнуть, то постарайтесь для начала поинтересоваться у опытных строителей о нюансах и конструктивных особенностях таких систем.
Ворота из металлопрофиля своими руками
Ворота из металлопрофиля своими руками
Все чаще, как на приусадебных участках, так и в солидных домах, можно встретить ворота, изготовленные из металлопрофиля. В пользу популярности этого материала выступает его практичность и широкое распространение в строительной индустрии. Кроме того, подобные ворота можно установить собственными руками, что положительно скажется на их стоимости в целом.
Ворота с обшивкой из профлиста
Подробнее о плюсах и минусах металлопрофиля
Данный материал легкодоступен в розничной продаже и имеет массу преимуществ. По этой причине его используют для кровли крыш и установки ворот в домах. Рассмотрим подробнее плюсы металлопрофиля.
- материал довольно прочный, благодаря наличию ребер жесткости по всей поверхности листа. Именно поэтому, он отлично противостоит капризам природы в виде сильного ветра или резких перепадов температур;
- относительно невысокая цена;
- легкость изготовления, для монтажа ворот потребуется нехитрый инструмент, который без труда можно найти в любом хозяйстве;
- выбор цвета материала;
- долговечность металлопрофиля, в зависимости от толщины профиля, производитель может дать гарантию вплоть до 20 лет;
- если хочется украсить металлопрофиль, его можно легко соединить с коваными элементами, что придаст забору неповторимый вид.
Металлопрофиль для ворот
У любого материала, помимо достоинств, есть и недостатки, так у металлопрофиля они следующие: при повреждении лакокрасочного покрытия, на поверхности ворот может развиться коррозия, при соединении частей конструкции необходимо тщательно следить за качеством сварных швов, иначе она может дать течь.
Металлопрофильные ворота, монтаж своими руками
Ворота из металлопрофиля достаточно распространены, именно о них мы и поговорим, а также приведем подробные инструкции, как правильно установить ворота из металлопрофиля своими руками. Прежде чем приступать к монтажу ворот, необходимо определиться, как они будут выглядеть, и составить примерный чертеж.
Расчеты для монтажа
Он поможет рассчитать объем и вид материалов, которые понадобятся при постановке ворот.
Из материалов необходимо будет приобрести:
- металлический профиль круглого или квадратного сечения, с диаметром не менее 100мм, он нам понадобится для организации столбов. Совет при расчете длины профиля: к высоте ворот следует прибавить глубину, на которую он будет бетонироваться и высоту зазора между створками ворот и землей;
- уголок или квадратный профиль, который пойдет на изготовление каркаса и ребер жесткости ворот. Совет: уголок легче и практичнее, чем квадратный профиль;
- антикоррозионную жидкость, которой будут обрабатываться используемые материалы — грунтовку и краску;
- петли для ворот, и конечно, замок.
Материалы для монтажа
Для работы будем использовать следующий инструмент:
- отвес и капроновую нить;
- сварочный полуавтомат;
- для установки и фиксации столбов понадобятся бур и кувалда;
- ножницы по металлу и болгарка.
Инструменты для монтажа
Установка ворот начинается с разметки и установки столбов. При их монтаже следует учитывать размер и вес конструкции, чем она больше и тяжелее, тем крепче должны быть установлены столбы. Для обычных ворот, как правило, используют по две петли на сторону. Чтобы увеличить общую надежность конструкции, можно установить три завеса на одну створку ворот. На их стоимости это не сильно скажется, зато увеличит их надежность и долговечность.
На заранее выбранном месте наносим разметку под столбы, в точках которой вырываем ямы в два раза большего диаметра, чем сама труба и глубина которой должна составлять не менее чем 1 метр. Берем трубу и при непосредственной помощи болгарки отрезаем необходимую длину с учетом глубины закапывания и нужным зазором между воротами и землей. Следующим этапом устанавливаем их в яму и засыпаем щебнем и заливаем бетоном. Совет: столбы следует устанавливать строго перпендикулярно относительно земли, если не соблюсти эту рекомендацию, можно получить кривые ворота, этот дефект не будет возможности исправить в будущем.
Для раствора используем цемент марки 300, который следует разводить в соотношении 1 к 3. Сухую смесь постоянно мешаем до однородности и затем медленно вводим воду, до тех пор, пока раствор не придет к жидкому состоянию, он при заливке должен заполнить все полости и пустоты. Их присутствие серьезно ухудшит прочность конструкции. Бетону для полного высыхания и окончательного схватывания требуется не менее суток.
Многие, вокруг металлических труб устраивают короб из кирпичной кладки, который не только хорошо смотрится, а и способен усилить конструкцию. Для него раствор готовится по тому же принципу, что и для заливки, единственное отличие — он должен быть густым, а не жидким.
Изготавливаем сами ворота
Технология производства створок совершенно не зависит от типа выбранного материала. Что у уголка, что у квадратного профиля, техника применения одинаковая, главное, у вас должна получиться геометрически правильная и жесткая конструкция, которая должна выдержать все элементы ворот и капризы природы. Если же створки получатся кривыми, то дальнейшие работы не имеют смысла, ворота не будут работать должным образом.
Идеальным местом, для выполнения этой работы является сварочный стол, он с легкостью позволит получить идеальную конструкцию. Если под рукой его не окажется, то стол не сложно будет соорудить самостоятельно, тем более, что он может пригодиться в дальнейшем. Для этого берем ровную поверхность, площадь которой больше площади каркаса. На ней раскладываем детали будущих створок, стоит отметить, что каркас должен быть меньше самих створок на 10 см. Для правильного размещения всех элементов, используем уровень. Если все делать на глаз или авось, есть риск получить так называемый пропеллер, который невозможно будет использовать по назначению.
Установка ворот своими руками
Итак, приступаем к изготовлению каркаса. Для этого берем уголок и нарезаем его на части нужной длины, и тщательно зачищаем края при помощи болгарки от возможных заусенец. После этого, размещаем все элементы на ровной поверхности и прихватываем их, именно прихватываем, а не свариваем. Это делается для того, чтобы была возможность проверить при помощи уголка и лески геометрию конструкции. Если все в порядке, ее окончательно сваривают, при этом следует быть аккуратным и внимательным, от высокой температуры конструкцию может повести и ее геометрия исказится. Сварочную окалину зачищаем при помощи болгарки. Для увеличения прочности конструкции, в ее основу, через каждые полметра ввариваются распорки. Калитка выполняется точно таким же способом.
Монтаж металлопрофиля
Совет: при монтаже металлопрофиля на руки следует одеть перчатки, иначе острыми краями можно нанести травму рукам. Берем лист металлопрофиля и вырезаем деталь нужного нам размера. После чего, ложем ее на нашу створку и проделываем все необходимые отверстия под крепеж. При помощи саморезов скрепляем их в единую конструкцию, а затем привариваем петли. Завесы лучше использовать с подшипниками внутри, они более плавно, и долговечно работают. После чего крепим получившиеся ворота к завесам. Следует помнить, что между воротами и землей должен быть проем для беспрепятственного их открытия и закрытия. На последнем этапе на ворота устанавливается замок, на калитку — замок с ручкой или отдельную систему, кому как нравится.
Благодаря статье, теперь практически любой человек сможет самостоятельно провести монтаж ворот из металлопрофиля. Они не только защитят двор от посторонних глаз, а и позволят облагородить дом.
Видео – ворота из металлопрофиля своими руками
Ворота из металлопрофиля своими руками
Ворота и калитка из металлопрофиля своими руками
November 5, 2015
На рынке строительных материалов современный потребитель сегодня может найти множество вариантов для изготовления и дальнейшей установки ворот. Однако профессиональные компании и индивидуальные застройщики продолжают предпочитать профилированный настил, несмотря на то что, помимо него, ассортиментный ряд пополняется новыми решениями, которые являются более современными и технологичными. Столь высокая популярность профилированного настила обусловлена несколькими причинами, среди них можно выделить долговечность, прочность, привлекательный внешний вид, а также демократичную стоимость. Полотна изготавливаются в условиях завода с использованием стального листа по технологии холодного проката. С двух сторон материал защищается слоем оцинковки, который способен предохранять от преждевременного разрушения и коррозии. Для того чтобы добиться повышенных декоративных качеств, листы покрываются полимерным слоем, оттенки которого могут быть самыми разными. Для того чтобы изготовить ворота и калитку из профнастила, будет необходимо только лишь помощь еще одного человека и пара свободных дней.
Подготовительные работы

Если вами будут изготавливаться ворота и калитка из металлопрофиля своими руками, то для начала необходимо подготовить опорные столбы и выкопать ямы для их установки. Опоры могут быть изготовлены из деревянного бруса, выбирать необходимо материал, сечение которого должно быть равно 150 x 150 миллиметров. В качестве материала может выступить круглое цельное бревно с диаметром, равным 20 см или больше. Подойдет и швеллерная балка, важно подготовить ту, что будет обладать толщиной в пределах от 14 до 16 миллиметров. Довольно часто применяется и профильная труба с сечением 80 х 100 миллиметров. Изделие должно иметь стенки с толщиной, эквивалентной 7 миллиметрам. Как только вы определились с материалом, который ляжет в основу опор, можно начинать выкапывать ямы. Их глубина должна быть равна 1/3 высоты столбов, которые будут возвышаться над землей. При этом следует взять во внимание, что створки ворот, как правило, на 0,5 метра меньше самих опор. Данный запас станет гарантировать подъем нижнего края конструкции от земли на 30 см. Нужно оставить еще 20 см сверху, которые пригодятся для укрепления методом сварки декоративных элементов.
Особенности подготовки

Если будет изготавливаться калитка из металлопрофиля своими руками, то важно обеспечить устойчивость всей конструкции. Эта характеристика будет зависеть от прочности столбов. Поэтому рекомендуется выбрать стальной прокат. Для монтажа профильных труб либо швеллерной балки следует подготовить яму, которая должна быть заглублена на 1,2 метра. Важно произвести земляные работы так, чтобы скважина имела диаметр от 20 до 50 см. Подготовленные стальные опоры следует опустить в яму, выставив элементы по уровню строго вертикально. После производится заливка цементного раствора. Важно правильно подготовить столбы, зачистив их поверхность от ржавчины и прогрунтовав. На последнем этапе данные заготовки окрашиваются. Сверху необходимо установить заглушки, которые исключат попадание дождевой воды и снега внутрь.
Выбор профилированного листа

Если вами будет изготавливаться калитка из металлопрофиля своими руками, то важно правильно подобрать материал. На рынке вы встретите три группы, которые отличаются высотой ребра, толщиной, а также прочностью. Маркировка «C» определяет стеновой профлист, который изготавливается из оцинковки незначительной толщины. Он обладает небольшой высотой ребра. Маркировка «НС» представляет лист, который имеет более внушительную высоту волны. Полотну свойственна большая толщина. Материал под маркировкой «Н» — это несущий профлист, который используется при обустройстве кровель и железных ангаров. Ворота и калитка из металлопрофиля своими руками должны изготавливаться из материала под маркой С8 и С10, толщина которого изменяется в пределах от 0,4 до 0,8 миллиметров. Створки из такого полотна будут весить в пределах 40 килограммов.
Совет мастера

Перед началом работ рекомендуется заказать раскрой профильного листа по необходимым габаритам на заводе. Для этого лучше всего использовать специальное оборудование, которое обеспечивает аккуратность линии реза, точность резки и минимизирует возможные повреждения.
Изготовление каркаса

Если вами будут выполняться ворота и калитка из металлопрофиля своими руками, то раму лучше всего сделать с использованием деревянных брусьев, в качестве альтернативного решения выступает профилированная труба. Выбирая последнюю, учтите, что она должна обладать прямоугольным сечением в 40 x 20 миллиметров. Стенки трубы должны быть эквивалентны 2 миллиметрам. Если столбы были установлены металлические, то и рама должна быть выполнена из аналогичного материала. Сборку следует производить на ровной площадке, которая вмещает хотя бы одну створку. Для формирования разных углов следует использовать угольники. С помощью профиля следует сформировать, а после изготовить раму, которая будет иметь вид прямоугольника. Углы дополнительно фиксируются стальными уголками, которые способны придать конструкции более внушительную жесткость. Длинные стороны системы каркасов следует разделить на 3 части и зафиксировать к отмеченным местам перемычки, которые будут ориентированы параллельно. Помимо прочего, важно укрепить соединения стальными уголками. В эти места нужно установить петли ворот.
Установка калитки в створку

Если будет изготавливаться калитка из металлопрофиля своими руками, монтаж которой производится в одну из створок, каркас следует выполнить немного иначе. Таким образом, с помощью поперечных и продольных перемычек в одной из створок следует произвести крепление к прямоугольной раме. Мастер должен создать систему каркаса калитки, которая станет обладать размерами, равными 80 х 180 см. Место расположения петель важно сместить к верхней и нижней кромке ворот.
Обшивка каркаса профильным настилом
Если будет изготавливаться калитка из металлопрофиля своими руками, схема которой поможет вам в проведении работ, то обшить раму следует после сборки каркаса. Для фиксации профиля необходимо применить крепежные элементы по типу шурупов, снабженных шестигранной головкой.
К петлям ворот полотна с волнистой поверхностью следует зафиксировать с помощью болтов, в качестве альтернативного решения можно использовать фиксацию методом сварки. Длина петель должна оказаться не меньше 1 метра, тогда как толщина — не меньше 3 миллиметров. При установке собранных створок рекомендуется применить лебедку, которая устанавливается на балку, уложенную поверх столбов. На землю следует уложить бруски, на которые монтируются створки ворот. Это позволит закрепить на столбе петли методом сварки. Для подстраховки петли дополнительно фиксируются болтами. Если вы задумались о том, как сделать калитку из металлопрофиля своими руками, то после бруски должны быть убраны, чтобы проверить, насколько легко закрывается и открывается вся конструкция.
Заключение
Калитка из металлопрофиля своими руками без сварки изготавливается только в том случае, если мастер не обладает навыками работы со сварочным аппаратом, что бывает редко.
Как стресс влияет на физическое здоровье и внешность женщины? Влияние стресса на психическое и эмоциональное здоровье женщин может быть гораздо более серьезным, чем принято думать. И хотя гормоны и мозг обеспечив.
20 фото кошек, сделанных в правильный момент Кошки — удивительные создания, и об этом, пожалуй, знает каждый. А еще они невероятно фотогеничны и всегда умеют оказаться в правильное время в правил.
7 частей тела, которые не следует трогать руками Думайте о своем теле, как о храме: вы можете его использовать, но есть некоторые священные места, которые нельзя трогать руками. Исследования показыва.
Топ-10 разорившихся звезд Оказывается, иногда даже самая громкая слава заканчивается провалом, как в случае с этими знаменитостями.
Наперекор всем стереотипам: девушка с редким генетическим расстройством покоряет мир моды Эту девушку зовут Мелани Гайдос, и она ворвалась в мир моды стремительно, эпатируя, воодушевляя и разрушая глупые стереотипы.
11 странных признаков, указывающих, что вы хороши в постели Вам тоже хочется верить в то, что вы доставляете своему романтическому партнеру удовольствие в постели? По крайней мере, вы не хотите краснеть и извин.
Источники: http://moyaograda.ru/vorota/otkatnye/iz-metalloprofilya-82.html, http://fundamentt.com/vorota-iz-metalloprofilya-svoimi-rukami/, http://fb.ru/article/213115/vorota-i-kalitka-iz-metalloprofilya-svoimi-rukami
zabor-pro.ru
Каркас для ворот из профиля своими руками
Современный дачный участок или загородный дом невозможно представить без красивого забора, калитки и ворот. Материалов, из которых их можно изготовить, бесчисленное множество, а процесс сборки не такой сложный, как может показаться на первый взгляд.
- Откатная конструкция
- Распашная конструкция
Сегодня все чаще встречаются ворота из профиля. Они просты в изготовлении и установке. В продаже имеется много готовых вариантов. Однако если вы предпочитаете высокое качество и надежность, тогда лучше собрать их самостоятельно. И в отличие от магазинных изделий, их размеры и форма ограничены только вашей фантазией.
Разновидности ворот и их каркасы
Обшивать их исключительно профнастилом необязательно. Существует и масса других, не менее практичных и оригинальных материалов начиная от древесины и заканчивая сэндвич панелями. Но основой любых ворот является их каркас. Именно ему будет посвящена большая часть материалов этой статьи.
Наиболее распространены два вида конструкций: распашные и откатные. Самостоятельно проще собирать распашные ворота, так как они имеют более простую конструкцию, состоящую из двух половинок (в большинстве случаев) или из одной створки. Но в последнем варианте конструкции на петли воздействует большее усилие, и поэтому они должны быть гораздо массивнее.
Распашные ворота

Схема с размерами распашных конструкций
Материалом для изготовления их створок может быть: деревянный брус, металлический уголок, металлическая труба круглого сечения или профиль квадратного сечения. Самым лучшим вариантом можно считать профилированную прямоугольную трубу.
По сравнению с деревянным брусом такой профиль имеет значительно большую прочность и стойкость к атмосферному воздействию, а по сравнению с металлическим уголком – большее количество ребер жесткости при значительно меньшем весе.
Необходимые материалы для сборки каркаса
Для изготовления каркаса понадобятся:
- профильные трубы 40 Х 20 мм;
- профильные трубы 20 Х 20 мм;
- 2 мм сталь для заглушек;
- шариковые петли для створок.
Инструменты для проведения работ
- болгарка;
- отрезной и шлифовальный круг для болгарки;
- сварочный аппарат;
- электроды, толщиной 3 − 4 мм;
- рулетка;
- угольник;
- чертилка по металлу.
Собираем каркас
Элементы распашной конструкции
Металлические составляющие конструкции лучше всего отрезать болгаркой, кругом диаметром 230 мм. С таким кругом время отрезания деталей сокращается, и используется меньше усилий.
Сварочные работы удобнее всего производить инверторным сварочным аппаратом, так как он имеет небольшие размеры и обеспечивает хорошее качество сварки.
Для сборки конструкции, конечно же, лучше воспользоваться готовыми чертежами. Когда все инструменты и материалы подготовлены, можно приступить к непосредственной сборке конструкции. Процесс сборки состоит из следующих этапов:
- В соответствии с чертежом нужно разметить заготовки из профиля, нарезать их и зачистить заусеницы.
- Расположив на поверхности металлические детали в форме прямоугольника, необходимо их закрепить струбцинами и проверить правильность углов при помощи угольника.
- После прихватки сваркой по четырем сторонам, нужно дополнительно проверить правильность углов и размеры диагоналей. Если замечены небольшие отклонения в конструкции, их можно исправить легким постукиванием молотка.
- Для придания дополнительной жесткости конструкции привариваются поперечные перекладины, имеющие длину на 40 мм меньше ширины створки.
- Окончательно проварить швы изделия. Оптимальный ток сварки металла толщиной в 2 мм будет в районе 50 − 60 А.
- Освободить швы от окалины, зачистить их, обработать всю конструкцию антикоррозийным средством и краской.
Высокого качества собираемой конструкции можно достичь, проводя работы на сварочном столе или ровной поверхности. Если пренебречь этим, то собранная конструкция может быть весьма неточной.
Откатные ворота

Схема каркаса откатной конструкции
Такие ворота изготовить значительно сложнее. Их сборка и установка требует намного больше усилий и средств. Однако сейчас такая модель пользуется повышенным спросом. Это не удивительно, ведь их можно оснастить электроприводом, что позволяет открывать и закрывать створку при помощи пульта, не выходя из машины.
После предварительной подготовки места для сборки, инструментов и материалов, можно приступать к изготовлению каркаса:
- Подготовить профиль (понадобятся трубы прямоугольного сечения 50 Х 50 мм или 60 Х 40 мм толщиной стенок 2 мм). Их необходимо очистить от грязи, ржавчины или окалины. После, обезжирить и обработать антикоррозийным грунтом.
- Сборку металлоконструкции можно производить либо на горизонтальной поверхности, либо методом «снизу вверх», последний способ более простой и требует меньших усилий. К нижней направляющей нужно приварить две трубы 30 Х 20 длиной 60 − 80 сантиметров. Это так называемые временные ножки. На этих трубках конструкция будет стоять в процессе сборки, потом их нужно будет удалить.
- Далее, нужно приварить нижнюю горизонтальную трубу нашей металлоконструкции. Варить нужно по 1,5 − 2 сантиметра через каждые 60−70 сантиметров в «шахматном порядке», когда конец шва с одной стороны заканчивается в том месте, где начинается шов с другой. Такой метод сваривания применяется для того, чтобы металлоконструкцию не повело относительно оси.
- Потом приваривают две вертикальные трубы наружного каркаса, а сверху приставляют вторую горизонтальную трубу, и также приваривают. Теперь есть возможность приставить косую для конструкции над противовесом. Приставляя ее по месту, можно тут же ее подрезать по размерам.
- После сборки наружного каркаса, производится подготовка внутренней рамы, для крепления обшивки (в большинстве случаев это профнастил). Обшивка собирается из профиля 40 Х 20 мм.
- Размещать нужно трубу меньшего сечения (40х20 мм) на трубе большего сечения (50 Х 50). Если створка будет обшиваться с одной стороны, тогда трубы нужно сдвигать к тому краю, с которого будет производиться обшивка. Если обшивка будет производиться с двух сторон, тогда трубы нужно размещать по центру. Их тоже нужно приваривать в шахматном порядке, чтобы конструкцию не вело.
- Все швы нужно зачистить болгаркой, а всю раму – обработать грунтовкой и покрасить.
Элементы откатной конструкции
Хоть конструкция откатных ворот и сложнее распашных, но ее сборка под силу почти любому человеку, имеющему хоть какое-то представление о слесарных работах.
Очень важно при сборке каркаса, вне зависимости от его конструкции соблюдать размерность, и чаще сверяться с чертежами. Это позволит вам собрать его без грубых ошибок и постоянных переделок.
moyaograda.ru
Откатные ворота своими руками (+фото)

Еще не так давно организация на участке откатных ворот была непозволительной роскошью из-за дороговизны как деталей, как и работ по установке и монтажу. Однако сегодня откатные ворота перестали быть чем-то недостижимым и могут встречаться на любом участке. В данной статье мы расскажем как сделать откатные ворота своими руками, предоставим чертежи, фотографии и поясняющее видео.
Устройство откатных ворот

Откатные ворота представляют собой сдвижную конструкцию из:
- Непосредственно полотна ворот, закрепленного на направляющих из металлопрофиля.
- Противовеса.
- Роликовых тележек для управления воротами.
- Уловителей и дополнительных, поддерживающих роликов.

На сегодняшний день не представляет труда самостоятельно установить откатные ворота: во многих строительных магазинах или рынках можно приобрести готовые комплекты подходящей фурнитуры для возведения сдвижных ворот определенной ширины проема. Профнастил и металлические профили, а также крепежные элементы приобретаются самостоятельно.
Что нужно для монтажа

После приобретения нужного комплекта можно приступать к монтажу сдвижных ворот. Для этого потребуется:
- Строительный уровень или лазерный нивелир, рулетка, отвертки, плотницкий уголок.
- Мощный перфоратор, шлифовальная машинка, сварочный аппарат.
- Кувалда, лопата, земляной бур, миниатюрная бетономешалка, средства индивидуальной защиты: стерильная маска и защитные очки.
- Кроме металлического профиля разного размера и профнастила нужно приобрести швеллер и крепежные элементы: саморезы для кровли, арматуру в виде металлических брусьев с диаметром в 12–15 мм, защитную краска для металлических деталей откатных ворот.
- Правильно выбранный цемент, гравий и песок.
Подготовка к установке

Сначала определяется место расположения откатных ворот так, чтобы хватило места как для самих ворот, так и для обязательного противовеса.
Длина противовеса составляет половину от длины проема.
Рассчитывая необходимое количество профнастила для откатных ворот, нужно иметь в виду не только размер проема, но и противовес. Он также должен быть обшит выбранным строительным материалом для ворот. Сегодня популярным является профилированный лист.
Перед приобретением металлического профиля нужно выбрать одну из возможных конструкций рамы для откатных ворот. Это может быть 4 отрезка металлопрофиля, прикрепленных по периметру ворот; или же более частая обрешетка.
Установка

Теперь пошагово рассмотрим, что требуется для того, чтобы правильно установить откатные ворота.
- Откатные ворота требуют правильно обустроенного фундамента с обязательным армированием. Кроме того, нижняя направляющая движется за счет тележки с колесиками и вспомогательного ролика на краю полотна ворот, что требует идеально ровной поверхности. Ее может обеспечить изготовление фундамента и ровной бетонной площадки на уровне грунта.
- Для фундамента нужно подготовить траншею глубиной от 60 до 100 см, организовать песчано-гравийную подушку и обязательно армировать основание с помощью металлических прутьев. Одновременно с подготовкой фундамента для ворот бетонируются основные столбы на расстоянии, равном размеру проема. Там, где будет находиться противовес, подготавливается площадка для движения роликовых тележек: к швеллеру снизу приваривается арматура, и конструкция помещается в заготовленную траншею так, чтобы швеллер оказался на уровне грунта и остального бетонного основания под ворота.
- На ровной площадке производится сборка рамы ворот и одновременно – противовеса. Приобретенный металлический профиль большего размера разрезается на отрезки, равные высоте и длине как ворот, так и противовеса. Они свариваются в прочный каркас. Потом производится обрешетка ворот и противовеса металлопрофилем меньшего размера. Вся конструкция шлифуется и красится защитной краской, предотвращающей возникновение ржавчины.
- На готовую раму крепится выбранный строительный материал, например, профнастил. Он фиксируется при помощи саморезов с шагом не больше 20–30 см.
- По заранее рассчитанному уровню нижнего края ворот крепится направляющая. В нее заводятся ролики и устанавливается полотно ворот. На швеллере фиксируются роликовые тележки так, чтобы ворота свободно закрывались и полностью открывались. Специалисты рекомендуют приваривать тележки только после тестового открытия и закрытия откатных ворот.
- На столб, к которому будет двигаться полотно ворот, нужно установить улавливатели, которые надежно будут фиксировать закрытые ворота и удерживать их на месте. Если в качестве опорного столба выступает металлический профиль, то улавливатель крепится непосредственно к нему. Если же опорный столб выполнен из кирпича или дерева, нужно с помощью анкера или дюбелей надежно установить улавливатели – как сверху, так и снизу.
- Если планируется автоматизация ворот, то еще на этапе проектирования следует подумать о размещении силовых кабелей, а также управляющих элементов. Окончательный крепеж автоматики также должен проводиться после окончательного тестирования.
Фото





Видео
Предлагаем вашему вниманию схематичную инструкцию по монтажу откатных ворот.
Рекомендуем вам прочитать статьи о других типах ворот:
www.stroitelstvosovety.ru
Откатные ворота своими руками. Фотоинструкция по установке
В этой статье мы расскажем Вам о всех тонкостях строительства и монтажа, а так же о всех возможных проблемах, с которыми Вы можете столкнуться если решите сделать откатные ворота своими руками. Впервые сталкиваясь с задачей установить откатные ворота, — самой большой загадкой представляется чертеж откатных ворот. На самом деле, конструкция откатных ворот очень простая, схема их установки тоже не сложная и ниже мы расскажем основные принципы установки откатных ворот, поняв которые у Вас больше не останется вопросов относительно того, как установить их своими руками. Но обо всём по порядку.
Откатные ворота. Считаем оптимальную ширину проема
Это самый главный вопрос, на который Вы должны ответить самому себе прежде всего. Под шириной откатных ворот мы будем подразумевать ширину самого створа ворот, т.е. свободное расстояние между столбами ворот при полностью открытых воротах. Для ответа на данный вопрос нужно определиться всего с несколькими моментами:
- Какие автомобили будут въезжать через эти откатные ворота? Только легковые? Газели? Трактора? Камазы?
- Под каким углом будут въезжать все эти автомобили, особенно грузовые?
По собственным ощущениям, откатные ворота должны быть такой ширины, чтобы при проезде через них, между столбами ворот и зеркалами оставался зазор не меньше, чем по 30 см с каждой стороны ( а лучше все 50 см.) А теперь немного статистики о ширине некоторых автомобилей (с учетом зеркал).
- Форд фокус 3 = 2,01 м.
- Форд Эксплорер 2015 = 2,29 м.
- Газель (цельнометаллический фургон) = 2,5 м.
- КамАЗ = 2,9 м.
Только не говорите, что Вы уже всё построили и больше никакие грузовики никогда не будут заезжать к Вам на участок. Уверяю Вас, что в жизни будет достаточно ситуаций, в которых Вам понадобится впускать к себе на участок грузовые машины. А теперь давайте ответим на вопрос о том, под каким углом к Вам смогут заезжать такие машины? Согласно статистике, угол въезда подобных машин на участок составляет 45 градусов к линии ворот. Смотрите сами, длина типового КамАЗа 65111 составляет 7,34 метра, а теперь подойдите к тому месту на своем участке, в котором Вы планируете установить откатные ворота, посмотрите на пространство за ними и попробуйте ответить на вопрос о том, хватит ли грузовику этого пространства для того, чтобы развернуться и заехать в Ваши откатные ворота под прямым углом к линии ворот?
Если мы оказались правы и угол въезда грузовика составит примерно 45° к линии ворот, то согласно теореме Пифагора, чтобы КамАЗ шириной 2,9 метра прошел в створ Ваших ворот под углом 45 градусов ВООБЩЕ БЕЗ ЗАЗОРА между зеркалами и столбами ворот, ширина створа ворот должна составлять 4,1 метра. Однако мы не рекомендуем равняться на эту цифру так как, во-первых, она не учитывает зазора, а во-вторых, существуют ситуации когда проезжающая через створ ворот машина может либо качнуться по какой-либо причине, либо соскользнуть в сторону на снегу, льду или грязи, забуксовать и сместиться в сторону и т.д. Исходя из этих соображений, мы рекомендуем устанавливать откатные ворота с шириной проема не менее 4,5 метров.
Если от теории перейти к практике, то наш собственный опыт говорит о том, что оптимальная ширина створа ворот составляет 4,5 метра, а идеальная ширина створа ворот составляет 5 метров.
Обращаем Ваше внимание на то, что всё, написанное выше, касалось ширины проема ворот, но не ширины полотна ворот! Если говорить о полотне ворот, то тут есть один важный момент, который нужно учитывать. Ширина полотна ворот должна быть примерно сантиметров на 20 больше, чем ширина проема ворот! В противном случае при закрытых воротах у Вас будет щель, заметная под углом к плоскости ворот (см. фото ниже). Если Вы забыли попросить изготовить полотно ворот чуть шире запланированной ширины проема, — Вы можете исправить ситуацию, установив воротные столбы чуть ближе друг к другу, чем планировали. Таким образом Вы уменьшите ширину проема примерно сантиметров на 15-20, но зато избежите образование щели.
Откатные ворота. Нюансы с высотой откатных ворот
Многим может показаться, что данный момент вообще не стоит внимания и обсуждения, но это не так. Отчасти согласимся. Действительно, игнорирование данного момента не создаст Вам никаких существенных проблем кроме эстетических. Многие считают, что если высота полотна забора, примыкающего к воротам составляет 2 метра, то и высота полотна ворот должна быть 2 метра. В реалии это не так. Давайте рассмотрим на примере:
- У нас есть забор, сделанный из профлиста, имеющего высоту 2 метра и установленного без ленты и без зазора снизу. В этом случае, профлист поднимается прямо от земли на высоту 2 метра. (статью об установке забора мы публиковали ранее: Столбы для забора. Без ошибок строим забор своими руками)
- Заказывая или изготавливая самостоятельно каркас полотна ворот, Вы ориентируетесь на такой же профлист, имеющий ту же высоту, что и у забора — 2 метра, не так ли?
А теперь давайте посмотрим, что получится в результате. В обоих случаях Вы ориентируетесь на одинаковую высоту профлиста, но Вы не учитываете то, что в случае с забором, профлист начинается прямо от земли и его верхний край находится на высоте ровно 2 метра над землей. При этом, в случае с воротами, нижний край откатных ворот не может касаться земли, он приподнят примерно на 10 см от земли.
Справедливости ради надо отметить, что зазор между землей и нижней частью ворот регулируется с помощью регулировочных площадок, которые стандартно входят в комплект роликов (смотрите фото справа и фото ниже). Роликовые опоры одеваются и крепятся на регулировочные площадки с помощью гаек, и с помощью этих же гаек высоту установки роликовых опор (а значит и каркаса ворот) можно регулировать в пределах 5 см. В результате, минимальное расстояние от земли будет 10 см, максимальное — 15 см от земли.
Идем дальше. В отличие от забора, профлист ворот обычно вставляется в профиль, из которого состоит каркас полотна ворот, при этом профиль обычно сваривается из трубы прямоугольного сечения 60/40 мм. Уже набежала высота ворот: 100мм + 40мм + 2000мм + 40мм = 2180мм. Но это ещё не всё, так как к полотну ворот снизу приваривается направляющая балка, имеющая высоту 60 мм (для ворот массой до 350 кг). Итого, с учетом направляющей балки, расстояние от поверхности земли до верхнего края ворот уже составляет 2180 мм + 60 мм = 2240 мм. Как видите, согласно расчетам, верхний край ворот оказался на 24 см выше верхнего края забора!
Для справки: размеры направляющих балок, идущих в комплекте с роликами и прочими комплектующими для откатных ворот, различаются (комплектующие для откатных ворот подробнее будут описаны ниже, в конце данной статьи). Каждый комплект имеет своё название, и применяется в зависимости от размера и веса ворот:
- Комплект МИКРО: откатные ворота проемом до 4м и весом до 300кг включительно; размеры направляющей балки МИКРО — высота 55мм, ширина 60мм, толщина 3мм, стандартная длина 4.5м / 5.3м / 6м;
- Комплект ЭКО: откатные ворота проемом до 5м и весом до 500кг включительно; размеры направляющей балки ЭКО — высота 60мм, ширина 70мм, толщина 3.5мм, стандартная длина 5м / 6м / 7м;
- Комплект ЕВРО: откатные ворота проемом до 6м и весом до 800кг включительно; размеры направляющей балки ЕВРО — высота 75мм, ширина 90мм, толщина 4.5мм, стандартная длина 6м / 7м / 8м / 9м;
- Комплект МАКС: откатные ворота проемом до 12м и весом до 2000кг включительно; размеры направляющей балки МАКС — высота 135мм, ширина 130мм, толщина 5мм, стандартная длина 6м / 9м;
Чтобы избежать подобного эстетического промаха, высоту каркаса откатных ворот нужно делать ориентируясь не на высоту заполняющего профлиста, а на высоту забора, примыкающего к воротам.

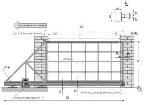
Откатные ворота. Чертеж и схема откатных ворот.
Откатные ворота имеют настолько простую конструкцию, что никакой чертеж ворот Вам не потребуется. Ниже мы поясним Вам схему работы откатных ворот, после чего Вы без труда поймете их конструкцию, что от чего в ней зависит, что и как в ней можно менять на своё усмотрение. Итак, основой всей конструкции сдвижных откатных ворот являются 2 ролика и движующаяся по ним направляющая балка (иногда её называют «направляющим рельсом»). Посмотрите на фото ниже.


Направляющая, двигающаяся по роликам и есть основа всей конструкции. Направляющая приваривается
nauchite.com
чертежи и схема (фото, видео)
28 октября 2015
Просмотров: 1449
Что может быть лучше загородного участка или частного сектора в черте города? Ворота из профнастила откатные своими руками станут идеальным решением в разграничении территории. Собственный дом делает человека более уверенным в себе и независимым, тем более это актуально если сравнивать быт жильцов многоквартирных домов и людей, имеющих собственное отдельно стоящее жилье. К тому же к собственному дому прилагается кое-какая свободная доля приусадебной территории, которую необходимо четко разграничивать. В роли разделительных сооружений, как правило, выступает забор. Он не только отделяет один участок от другого, но и играет роль охранника участка и дома от чужих глаз и незванных гостей. Но забор не может быть сплошным — ему необходимы входные ворота. Именно они послужат точкой доступа к жилищу и обеспечат проем для проезда машины.

Откатные ворота позволяют экономить пространство на участке и не загораживают при открытии проезжую часть перед домом.
Основные разновидности ворот
Старые и громоздкие дворовые и гаражные ворота все больше уходят в вечность. На их место приходят и предстают перед нашими глазами более новые и красочные конструкции, которые не только делают внешний вид дома и территории более современным, но и являются примером рационального использования материальных средств. Ворота по принципу своего устройства подразделяются на два основных вида:
- раздвижные ворота;
- откатные ворота.
Раздвижные ворота являются наиболее популярным и массово используемым вариантом, поскольку имеют достаточно простое устройство и процедуру монтажа. Состоит такой вариант ворот из 2 равноценных частей, которые распахиваются, образовывая свободный проезд для машины или обеспечивая проход людей.
Основные виды ворот.
Принцип монтажа этого вида конструкции заключается в использовании петель, которые присоединяются к опорным столбам с помощью сварки или крепежа с последующим одеванием на них самих створок ворот. Как видим, этот вариант достаточно прост и не материалозатратен, что является значительным преимуществом перед откатным вариантом. Именно поэтому раздвижные ворота из профнастила снискали огромную популярность среди потребителей.
Более дорогостоящим вариантом являются откатные ворота, это обусловлено наличием множества дополнительных элементов, гарантирующих их работу. Да и процедура установки такого вида изделия намного сложнее и ответственнее. Однако откатные ворота имею ряд достоинств, благодаря которым их эксплуатация приносит только положительные эмоции и впечатления. В первую очередь они более компактны и функциональны, что является большим плюсом при условии экономии пространства двора. Кроме того, в совокупности с использованием электромотора появляется возможность полной автоматизации процесса, чем не могут похвастаться раздвижные аналоги.
Вернуться к оглавлению
Инструменты и этапы монтажа откатных ворот
Процедура установки откатных ворот очень сложный и трудоемкий процесс, который требует знания всех тонкостей и нюансов при их монтаже. Лучшим решение в такой ситуации является обращение к профессионалам в области установки подобных изделий, которые качественно и надежно смонтируют все элементы конструкции, кроме того, отладят все механизмы и фурнитуру. В этом случае можно точно быть уверенным в положительном результате при дальнейшем использовании ворот.
Однако существует и противоположный вариант — откатные ворота из профнастила своими руками. Установить такое изделие самостоятельно будет дешевле, но не легче. Конечный результат в целом будет зависеть от ваших стараний и приложенных усилий. Рассмотрим поочередно все этапы конструирования такого вида ворот:
Инструменты для монтажа ворот.
- установка опорных столбов;
- подготовка площадки;
- монтаж каркаса;
- крепеж фурнитуры;
- облицовка профнастилом.
Перечислим инструменты, необходимые для проведения всех этапов установки:
- болгарка;
- карандаш;
- рулетка;
- набор ключей;
- отвертка;
- дрель;
- шуруповерт;
- лопата.
Первым этапом работ по конструированию будущих ворот является установка опорных столбов. Именно на них будет распределена и возложена вся нагрузка при открытии и закрытии полотна, поэтому к процедуре их строительства стоит отнестись с особым вниманием и ответственностью. Для этого выкапываем два углубления высотой около 1 м по обеим сторонам предполагаемого въезда и в эти ямы на всю глубину устанавливаем наши опоры. В качестве материала для их конструирования лучше всего использовать металлическую трубу или швеллер с толщиной стенки металла не менее 16 мм.
Фото 1. Схема откатных ворот.
Установленные опорные элементы заливаем бетоном для лучшей фиксации и обязательно даем им выстояться и просохнуть. Эти процессы займут примерно 20-25 часов. После этого для обретения более гармоничного вида столбы, как правило, обкладывают кирпичом или покрывают краской в зависимости от тона и фактуры основного полотна забора.
Следующим этапом идет процесс подготовки площадки, по которой будут скользить открывающие ролики. Для этого по всей поверхности будущего скольжения необходимо установить опорный швеллер. Перед его монтажом выкапывается весь грунт в месте его укладки. Сам швеллер выполняют путем присоединения к нему кусков арматуры и погружения в подготовленный канал с последующим бетонированием. Готовую конструкцию также оставляем просохнуть на 20-25 часов. По прошествии указанного временного отрезка мы получим два крепких опорных столба и идеально ровную поверхность откатного швеллера, которые и примут всю нагрузку при движении створки ворот.
Вернуться к оглавлению
Каркас — основа откатных ворот
Каркас, используемый для полотна ворот, как правило, выполняется из металлической квадрат-трубы, которую монтируют в форме прямоугольника таким образом, чтобы итоговая плоскость закрывала всю площадь будущих ворот. Также с обратной стороны к нему крепится удерживающий треугольник.
Все манипуляции по соединению трубы можно выполнить с помощью крепежных элементов, но лучшим вариантом является использование сварки, поскольку никакой другой вид монтажа не обеспечит такой надежной фиксации частей каркаса (фото 1).
Вернуться к оглавлению
Схема устройства откатных ворот
Крепление фурнитуры следует осуществлять четко по приложенной инструкции (фото 1). Для этого следует совершить предварительную разметку на поверхности каркаса с помощью карандаша и рулетки, а также четко рассчитать и синхронизировать все совмещающиеся детали. Далее, в намеченные области монтируются все движущие элементы, обеспечивающие движение створки ворот, которые впоследствии фиксируются крепежом.
Фото 2. Движущая составляющая откатных ворот.
Движущая составляющая откатных ворот показана на фото (2).
Завершающим этапом следует облицовка готового каркаса листами профнастила. Она выполняется путем закрепления полотен материала по всей площади ворот с помощью саморезов. Выбор же самих листов осуществляется на основании цвета и фактуры основного забора. Этот процесс не должен вызвать особых затруднений, поскольку современный рынок материалов предоставляет широчайший выбор любых цветовых решений и размеров этого вида изделий.
Все листы закреплены и устройство откатных ворот окончено. Однако следует сказать о существовании и возможности установки дополнительной опции. Ею является монтаж электропривода, который будет автоматически управлять воротами путем нажатия клавиши. Это очень удобно, поскольку дает возможность, не выходя из машины свободно пересечь линию домовладения и установить машину непосредственно в гараж при этом даже не ощутив на себе ни капли воды во время дождя.
Вернуться к оглавлению
Заключение по теме
Откатные ворота набирают популярность благодаря своим неотъемлемым плюсам — это удобство размещения и возможность автоматизации.
По этим параметрам они неоспоримо выигрывают у раздвижных аналогов. Но материальная составляющая и процедура монтажа этого вида изделий требует гораздо больших затрат времени и средств. Однако итоговый результат с лихвой перекроет все затраты.
В конечном счете перед нами предстанут ворота достойные самых высоких оценок, поскольку качество и удобство их использования будет еще на протяжении долгих лет говорить само за себя.
Похожие статьи
Автор:
Иван Иванов
Поделись статьей:
Оцените статью:
Загрузка…Похожие статьи
dizaindachi.ru


