Туалет на даче своими руками. Поэтапное фото
Все мы любим комфорт в повседневной жизни, но редко когда он достается нам просто так, без приложения каких-либо усилий. Кто-то платит за ремонт в своем доме «специалистам», часто получая халтурно сделанную работу, а кто-то предпочитает делать все собственными руками, что без должного подхода, также может привести к возникновению проблем.
При этом любой путь предполагает существенные финансовые затраты, в связи с чем изначально правильно выбранный подход не только спасает ваши нервы в будущем, но и сохраняет семейный бюджет.
И если на данный момент, большинство квартир уже оборудованы всеми необходимыми удобствами, то у дачных участков дела зачастую обстоят несколько хуже, нередко люди приехав из города к себе на дачу, испытывают ряд неудобств, и одно из самых заметных – это отсутствие туалета.
В этой статье я бы хотел рассказать, как с помощью относительно дешевых материалов можно сделать туалет на даче своими руками. Углубится в тонкости данного процесса, объяснить все нюансы и сложности, ведь туалет на даче своими руками, фото которого вы увидите в статье – это совсем не роскошь, а необходимость.
Особенности строительства туалета на даче
Итак, как построить туалет на даче своими руками?
В первую очередь об этом процессе необходимо знать то, что строительство такого сооружения в наше время требует больших затрат, чем раньше, к сожалению, связанно даже не с веянием моды, а с новыми санитарными требованиями, которые жестко указывают на необходимость сохранения экологически чистой среды.

Вместе с тем, остро стоит вопрос об утилизации накопленных отходов жизнедеятельности, потому как необходимость регулярно очищать от них простой туалет на даче может превратить жизнь любого человека в кошмар. Данную проблему помогут решить современные технологии, которые теперь стали значительно дешевле и доступней, что позволяет большинству людей использовать их на своих участках.
Наконец, тут опять же вмешивается желание создать максимально комфортные условия для существования, мало кого теперь устроит небольшая покосившаяся будка с дыркой в полу, что вполне объяснимо, ведь подобные сооружения абсолютно не улучшают дачный отдых, а к тому же, портят вид участка в целом.
В связи с этим, становится понятно, что идеальный туалет для дачи должен быть безопасным для окружающей среды, удобным с точки зрения утилизации отходов, комфортным для пользования и красиво вписывающимся на дачном участке.

После определения основной задачи, необходимо решить ряд других немаловажных вопросов:
1. Основываясь на условиях местности определить, как стоки будут сливаться, куда они будут отводиться, как будет происходить их утилизация.
2. Отыскать подходящее место на дачном участке для установки туалета.
3. Сделать выбор предпочтительного конструктивного решения – это может быть будка или кабина.
4. Найти декоративное оформление, которое бы оптимально соотносилось по сложности строительства и внешнему виду.
5. Определить необходимые на все расходы.
Все эти вопросы в значительной степени взаимосвязаны, поэтому решать их надо в комплексном порядке, думая над тем, как сделать туалет на даче своими руками. Вместе с тем, при строительстве будки можно позволить себе больше свободы, так как от нее зависит только внешний вид и удобство, а самым сложным и дорогим элементом здесь выступает основание.

Из чего строить туалет на даче?
В большинстве случаев лучше всего строить деревянный туалет для дачи, это связанно с дешевизной этого материала, кроме того дерево очень легко обрабатывать, оно имеет хорошие теплоустойчивые характеристики и при грамотном подходе не несет человеку никакого вреда. За счет правильной обработки можно сделать его стойким к погодным условиям и непригодным для развития на нем каких-либо бактерий или насекомых.
Кроме того, легкая деревянная конструкция позволяет сэкономить на фундаменте, который в ряде случаев вообще может не пригодиться, ведь размеры туалета на даче своими руками могут быть небольшими, в таком случае его кабину можно просто поставить на железобетонные монолиты или кирпичи.

Чтобы построить простой туалет на даче своими руками необходимо определится с видами материалов.
Для строительства каркаса зачастую используют обычный брус, пол и стульчак удобно покрывать шпунтованной доской, для внешней обшивки подойдут обрезанные или шпунтованные доски, а для обрешетки крыши хорошо подходят обрезанные и необрезанные доски.
В строительстве обшивки могут быть эффективны доски из водостойкой фанеры или ОСП, которую к тому же можно использовать в создании реек для обрешетки. Хорошим материалом может стать шпунтованная доска, которая при незначительно большей цене превосходит большинство других материалов по своим свойствам.
Для криволинейных участков оптимальным является использование морской шлюпочной доски, которая помимо всего еще и значительно дольше прослужит в той местности, где часто бывают осадки, однако по сравнению со шпунтовой доской она хуже сдерживает порывы ветра.
Все без исключения деревянные элементы должны быть обработаны сначала против гнили, после чего от сырости. Именно такая последовательность является наиболее правильной, при которой доски будут служить наибольшее время.
Те части туалета, которые будут обращены вовнутрь (в сторону выгреба и грунта), необходимо так же обработать битумной мастикой или горячим битумом.

Какой туалет на даче строить?
Даже если вы решили построить простой туалет на даче своими руками нельзя забывать о важности его внешнего вида. Существует целый ряд типов кабин, в виде домика, шалаша, избушки, скворечника. В конечном итоге, всегда можно поэкспериментировать с формами, сделать что-то совершенно необычное, тем не менее, в своей статье я остановлюсь на базовых вариантах, не заходя в области сложного дизайна.
Итак, в чем заключается разница между перечисленными видами кабин:
1. При строительстве шалаша надо понимать, что он крепок, конструктивен, имеет хорошую устойчивость к осадкам и ветру, не требует больших затрат материалов, вместе с тем, он требует много места и страдает от ряда неудобств, в первую очередь от тесноты. Если попытаться сделать его больше, то пропадает выгода от экономии материалов. Сам дизайн примитивен, и может не подойти некоторым дачным участкам.
2. По сложности строительства скворечник даже проще, чем шалаш, он не требует больших затрат материалов и занимает минимальное пространство. Тем не менее, он имеет слабую конструкцию, плохо удерживает температуры, подвержен сквознякам. Несмотря на недостатки, подобная конструкция может быть оптимальной, если предполагается уличный туалет для дачи на летний период.
3. В строительстве домика можно добиться большей теплостойкости и прочности, чем у скворечника. Он так же требует немного земли и материалов, но к нему труднее установить водяной бак. Подобная конструкция позволяет использовать самые разные отделки и элементы оформления.
4. Сложность в возведении избушки превосходит другие типы кабин, к тому же, она требует большего расхода материалов. Вместе с тем, ее граненая форма позволяет создавать очень прочные конструкции, которые хорошо защищены от неблагоприятных климатических условий. В соотношении функциональности и эргономики – это один из лучших вариантов. А возможности для дизайна практически бесконечны.
Когда окончательно выбран вид, необходимо определить размеры туалета на даче.
Для скворечника с домиком идеальными размерами пола и стульчака можно назвать минимум 1.2 метра по ширине и 1.5 метра по глубине. В случае с избушкой и шалашом глубину можно оставить на уровне 1.5 метров, а ширину взять в районе 0.9 метров.
Важно, чтобы от головы вошедшего человека до стенок было как минимум 40 сантиметров расстояния. При этом оптимальной высотой потолка можно назвать несколько метров. В целом, когда встает вопрос о том, как построить туалет на даче, важно помнить, что именно от ваших предпочтений будут зависеть многие его параметры. В связи с этим размер туалета можно корректировать в зависимости от собственного роста и т.д.
Почти все перечисленные выше виды кабин страдают от общего недостатка, а именно подверженности порывам ветра в том случае, если дверь туалета будет не закрыта. Чтобы бороться с этим, нужно просто установить дверь на амбарные петли. Для более прочных конструкций типа избушки можно использовать потайные петли.

Куда ставить туалет на даче?
Нельзя думать о том, как сделать простой туалет на даче без учета таких важных аспектов как место его расположения, особенно если он предполагает наличие выгребной ямы, сооружение которой запрещается, если грунтовые воды расположены на отметке выше 2,5 метров.
Выбор места для строительства должен быть основан на целом ряде факторов, таких как вид грунта, предполагаемый фундамент, удаленность от дома и т.д. Все эти элементы тесно связаны между собой и требуют к себе серьезного подхода, ведь от этого зависит не только удобство, но и безопасность для вас и окружающей среды.
Существуют строгие санитарные нормы, которые запрещают расположение конструкций такого рода на расстоянии ближе, чем 12 метров от ближайшего жилья, а расстояние от водяного источника должно быть как минимум 20 метров. Кроме того, важно помнить и о соседях, которые вряд ли одобрят строительство туалета прямо у них под забором.
Для того чтобы построить туалет на дачу самому, следует сначала определиться, как далеко вы готовы ходить, в ряде случаев отдаление туалета от дома только положительно сказывается на атмосфере дачного участка, а близость дома к выгребной яме может быть совсем неприятной, например, из-за возможных запахов. При этом расположение туалета должно быть доступным для подъезда ассенизаторской машины, ведь максимальная длина ее шланга – примерно 7 метров.
Хорошо, если есть возможность установить туалет в незаметном и уединенном месте, к примеру, в саду, где деревья закрывают его от общего вида. Важно также помнить, что расположение туалета в низине может привести к более быстрому заполнению выгребной ямы, в связи с тем, что большинство осадков будут попадать прямо в нее. А расположение такого строения на высоте может сделать его подверженным сильным порывам ветра.
После того как место было определенно необходимо решить, какой тип выгребной ямы для него подходит.

Разновидности выгребных ям для туалета на даче
Чтобы поэтапно построить туалет на даче важно выбрать правильный тип выгребной ямы. Они отличаются в основном по степени проникновения отходов жизнедеятельности в грунт, и делятся на герметичные ямы, а также ямы с фильтрующим дном.
Герметичные ямы требуют больших денежных трат, в связи с более частой необходимостью в их очистке. Ямы с фильтрующим дном стоят дешевле, однако чреваты загрязнением окружающей среды, кроме того их использование не позволительно с точки зрения санитарных норм.
Существуют разные типы стен для выгребных ям, они могут быть монолитными, кирпичными, пластиковыми, а также состоять из бетонных колец. Каждый вариант имеет свои достоинства и недостатки.
Кирпичные выгребные ямы нельзя назвать дешевыми, тем не менее, они достаточно прочны, их можно делать довольно глубокими, что позволяет сократить необходимость в частой очистке, они имеют достаточно хорошую герметизацию. Возможно создание, как герметичного варианта, так и конструкции с фильтрующим дном.
Пластиковые емкости вполне недорого стоят, однако из-за своих размеров будут требовать более частой очистки, при создании герметичной конструкции, у емкости срезают только верхнюю часть, при создании фильтрующей срезают также и нижнюю часть, при этом дно покрывают фильтрующим слоем.
Конструкции из бетонных колец не могут быть герметичными, потому как легко двигаются в грунте, их использование позволительно только в тех местах, где грунтовые воды располагаются на значительной глубине. После заполнения ямы кольцами ее дно либо закрывают бетонной стяжкой, либо фильтрующим слоем.
Монолитные выгребные ямы из бетона обладают хорошей герметизацией, но из-за особенностей строительства их может быть сложно и дорого делать слишком глубокими, в связи с чем, придется часто их чистить.
Рассуждая о выгребных ямах, можно было бы подумать, что строительство такого рода сооружений чрезвычайно сложно, ниже вы увидите как можно построить туалет на даче, фото, инструкции, описание процесса.

Туалет на даче своими руками поэтапно с фото
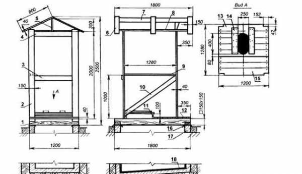
Подойдя к вопросу как самому сделать туалет на даче основательно, возьмем относительно простую и комфортную конструкцию, сопровождая ее возведение фотографиями, ведь чтобы построить туалет на даче своими руками, чертежи не обязательны, это довольно просто сделать и без них.
Фундаментом будут выступать бетонные столбы, для них проделываем отверстия по 130 миллиметров на 0.8 метров. Внутрь вставляем трубы на максимально возможную глубину (например, старые водопроводные). После этого заливаем все раствором, используя рубероид и гильзы.

Обвязкой будет выступать брус 100 на 100, который мы прикрутим к уголкам.

Пол и стульчак покрываем шпунтованными досками. Конструкция для самого стульчака стандартная, ничего особенного, можно сделать ее съемной.

Стойки делаем из бруса 50 на 50.

Крышу делаем из струганных досок 25 на 120, добавляем к ним плоские листы оцинковки, загибая их по краям сзади и спереди, с боков закрываем доски оцинкованным профилем.

Для стен и стульчака берем 9 миллиметров ОСП, с внутренней стороны покрываем их лаком, для уменьшения риска получения заноз, так же лаком покрывается сидение на унитаз.

Наружная обрешетка делается из бруска 25 на 50, подойдет практически любой, поверх него накладываем сайдинг.



В нижней части по периметру конструкции можно положить какие-нибудь обрезки от профнастила, это поможет создать нужный визуальный эффект.

Порог можно отделать оцинковкой.

Для окна у входа можно использовать поликарбонат, для создания вентиляции возможно допущение небольших щелей.

Дверь делается из листа ОСП, снизу и сверху прикладываются доски 25 на 120, с внешней стороны так же ставится доска, оставляется место под сайдинг, скрепить доски с листом ОСП можно простыми саморезами. Также небольшими саморезами к конструкции крепится сайдинг.
Надеюсь, что описание того, как сделать туалет на дачу своими руками, поэтапное фото этого процесса, вдохновят кого-нибудь на новые подвиги в улучшении жизненного комфорта, ведь именно от таких мелочей зависит получение полного удовольствия от дачного отдыха.
Теперь вы знаете, как сделать туалет на даче, какие с этим могут быть сложности и что нужно учитывать.
Туалет на даче своими руками. Видео процесса строительства.
o-remonte.com
Туалет на даче своими руками: чертежи, как построить

С чего начинается обустройство дачного участка? Ну, сударь, у Вас и вопросы. С туалета, разумеется (вариант: «Слышь, ну ты и спросил! С толчка, ежу понятно!»). Вот и посмотрим, что нужно знать и как делать, чтобы быстренько, без лишних хлопот и затрат соорудить туалет на даче. Что это, зачем оно и почему без него вообще никак – см. выше. Посему типовые преамбулы опускаем.
Веяния времени
Дачный туалет нынче совсем не тот, что лет 20 или даже 10 тому назад. И это не просто мода:
- Экологическая обстановка в целом ухудшилась и, соответственно, санитарные требования ужесточились. Традиционные решения вписываются в них далеко не всегда.
- В технологии переработки и нейтрализации отходов жизнедеятельности произошла подлинный переворот, и многие его достижения доступны в быту.
- Увеличились требования людей к качеству жизни, включая не только комфорт с эргономикой, но и внешнее оформление.
Исходя из этого, и будем разбираться, как построить дачный туалет своими руками. С одной небольшой оговоркой: кирпичных и бетонных конструкций коснемся лишь вскользь: это уже капитальное строительство со всеми вытекающими требованиями. На дачном участке отдельный теплый капитальный туалет возвести возможно только в исключительных случаях из-за малой земельной площади. Зато задержимся на архитектурном дизайне нужнейшего строения, что входит в качество жизни, а туалет в этом отношении – один из сложнейших объектов. Если не самый сложный. Тем не менее, поддающийся решению; для примера см. рис.
Разные дачные туалеты
Примечание: туалеты из профлиста на металлокаркасе, откровенно говоря, неуютны – летом парко, в межсезонье холодно. Хорошие металлические кабины делают преимущественно промышленного изготовления с утеплением и внутренней обшивкой. Тогда производственный цикл оказывается дешевле столярки. Если вас все же интересует и этот аспект, то самодельное верхнее строение будет идентично кабине для душа, а пол со стульчаком – описанным далее.
Как красоту наводить поглядим напоследок. Сначала нужно разобраться со строительством, а дизайн уже к нему привязывается. Чтобы построить туалет уютный, чистый, гигиеничный и глазу приятный, нужно прежде решить другие задачи:
- Выбрать тип системы слива, отвода и утилизации стоков исходя из местных условий.
- Определить месторасположение туалета на участке.
- Выбрать вид и конструктивное решение наземного строения; попросту – кабины или будки.
- Разобраться с декоративным его оформлением: что из уместного в данном случае окажется по силам.
- Свести смету расходов на строительство.
Надо сказать, что проблемы эти теснейшим образом взаимосвязаны и возиться с ними нужно со всеми вместе. Несколько в стороне только будка; она с подземной частью и основанием почти не взаимодействует. Так что кабину туалета можно сделать в общем-то какую угодно, причем это самая легкая и дешевая часть работы. Поэтому с нее и начнем.
Будка
Основной материал для постройки, как выше сказано, берем дерево. То, что оно недорого, легко обрабатывается, хорошо хранит тепло, дышит, а после несложной обработки (см. далее) остается безвредным для человека, но приобретает стойкость к непогоде и становится непригодным для поселения разного рода заразы, известно. Однако есть еще обстоятельства, в силу которых деревянный туалет оказывается наилучшим решением для дачи.
О фундаментах и подпорках
Грунт считается пригодным для строительства, если его несущая способность без дополнительных мер по укреплению его и фундамента составляет не менее 1,7 кг кв. см. Переведем в квадратные метры; получим 17 т (!). Площадь туалетной кабины в плане редко когда превышает 2,5-3 кв. м; хозблока – 15-20 кв. м. Мыслимо ли, чтобы они весили 40-50 и 250-350 т соответственно?
Идем дальше. Чрезмернопучинистым считается грунт, пучащийся при промерзании на 12% Берем толщину слоя гумуса, который более всего и вспучивается, в 50 см; это не дача, а эльдорадо. 50х0,12 = 6 см. На однородных рыхлых грунтах равномерно вспучивающейся поверхностью считается такая, размер которой по горизонтали равен 100 абсолютным величинам пучения; в данном случае – 600 см или 6 м.
Бывают ли туалеты или бытовки размерами более 6х6 м в плане? Делаем вывод: туалет на дачном участке можно строить без фундамента. При сезонных подвижках грунта он будет просто приподниматься-опускаться менее чем на 10 см (а скорее всего – на 3-4), ничуть не перекашиваясь, что совершенно незаметно.
Более того, фундамент под туалет строить и не нужно: с учетом отвода земли под стройплощадку с выемкой грунта, из хозоборота изымается как минимум сотка. А если участок уже засажен, что делать? И со строительной точки зрения: ненагруженный заглубленный в грунт фундамент может перекоситься и наклониться сильнее, чем поверхность почвы. Причина – в неравномерном и неоднородном промерзании ее слоев. Фундаментная лента, сваи или столбы чувствуют ее в отличие от поверхности сразу «всем телом».
Примечание: поэтому строители и стремятся покончить с фундаментами пораньше, чтобы до холодов возвести как можно больше стен. Исключение – фундаменты большого заглубления, те зимовать могут без ограничений.
Вывод «без фундамента» дачникам известен и без расчетов со специальными познаниями. Кабины туалетов ставят на кирпичи или готовые небольшие железобетонные монолиты. Однако лучше всего будет уличный туалет поставить на пару бетонных столбиков для шпалер. Их продают не только в южных регионах для виноградников; в местах похолоднее они идут под хмель и другие вьющиеся культуры.
Шпалерные столбы выпускаются длиной 1,2-6 м, с габаритными размерами в плане от 10х12 до 20х30 см. Сечение – трапециевидное, с закругленными углами меньшей стороны. А на большей – такелажные проушины из катанки 6-12 мм. Перепилив их посередине болгаркой и аккуратно разогнув, получим штыри для крепления кабины к основанию.
Примечание: если туалет будет с выгребной ямой, то проблема задней опорной балки кабины (дерево в химически агрессивной среде) не то что разрешается сама собой – она просто не возникает.
В местах с сильными ветрами под будку все-таки желательно сделать опорные стойки из бруса 80х80 или профтрубы 40х40х2. Металлические бетонируют примерно на 30 см глубже гумусного слоя, а деревянные вкапывают на ту же глубину, обработав предварительно очень горячим битумом и обернув рубероидом с обсыпкой (шершавым).
Конструкции
Материалы и обшивка
Пиломатериалы для кабины используются в основном 4-х видов:
- Брус 60х60 или 80х80 – для каркаса.
- Шпунтованная доска 40х(120-150) – для пола и стульчака.
- Обрезная или шпунтованная доска 20-30 мм для внешней обшивки.
- Обрезная или необрезная доска-двадцатка или рейки 50х20 для обрешетки крыши.
Обшивочную доску можно заменить водостойкой фанерой или ОСП толщиной 8-20 мм. В последнем случае реек для обрешетки можно нарезать их них же. Также будет только лучше со всех сторон и лишь немного дороже, если и на обшивку пустить шпунтованную сороковку.
Обшивка шпунтованной доской покажет все свои преимущества, если кабину обшивать горизонтальными поясам. Но тогда непременно нужно гребни шпунтов ориентировать вверх, а пазы – вниз, чтобы избежать накопления в шпунте влаги. Дверь в любом случае обшивается вертикально.

Обшивка шлюпочной доской
Криволинейные участки, вдруг такие потребуются по условиям оформления, лучше обшивать по-морскому шлюпочной доской, см. рис. Также такая обшивка дольше прослужит в местах с обильными осадками, но сильный ветер она держит немного хуже шпунтовой. Имея электролобзик с поворотным башмаком, шлюпочную доску несложно сделать из обрезной; угол наклона козырька доски – около 30 градусов. Козырьки досок должны быть ориентированы вниз по уклону, как на рис.
Массивные, т.е. из массива дерева, пиломатериалы после обрезки в размер нужно обработать: все без исключения препаратами против гнили (биоцидами), а затем дважды пропитать водно-полимерной эмульсией; этот недорогой материал защищает дерево от сырости на долгие годы. Пропитывать нужно именно в такой последовательности, иначе пленка ПВА не пустит биоцид в дерево! А если как надо, то она же предотвратит его улетучивание и вымывание. Детали, обращенные к грунту или выгребу (для настила пола и обшивки стульчака – испод досок) нужно дополнительно обработать горячим битумом или битумной мастикой.
Виды кабин
Деревянный туалет на улице по виду и технологии строительства выполняется в общем-то в 4-х архитектурных формах; см. рис.: шалаш, скворечник, домик, избушка.
Виды деревянных кабин для туалетов
Разница между ними несущественна, но все же есть:
- Шалаш прост конструктивно, прочен, стоек к ветру и осадкам, наименее материалоемок, но отнимает под себя больше земли и неудобен: шаг вправо, шаг влево – стук головой. А для «не стук» нужно брать высоту по коньку до 3 м и более, так что экономия материалов пропадает. Дизайн уместен более всего примитивистски-рустикальный.
- Скворечник еще проще шалаша, дерева на него уйдет не больше, земли отнимает минимум. Но конструкция слаба, а все сооружение плохо держит тепло и легче продувается ветром, это общий недостаток всех строений с односкатной крышей. Под дизайн никуда не годится. Тем не менее, как летний туалет или секция хозблока на задворках за густой растительностью, туалет-скворечник оптимален; особенно благодаря тому, что на его крыше без проблем размещается водяной напорный бак с подогревом от Солнца. Кабина под нагрузкой при этом приобретает дополнительную прочность.
- Домик теплее и немного прочнее скворечника. Материалов и земли требует столько же. Водяной бак пристроить труднее, но художественное оформление и отделка допустимы практически любые.
- Избушка сложнее прочих, материала в отход уходит больше. Благодаря граненой форме очень прочна, выдерживает любые климатические условия. Эргономика и функциональность – лучше не бывает: полка и рукомойник не отнимают площади пола, можно еще и вешалку пристроить. Под дизайн – делай все, что только годится для туалета, да и сама по себе вписывается в любой пейзаж.
О размерах
Рекомендуемые размеры кабин скворечник и домик по полу, вместе со стульчаком – от 1,2 м в ширину и от 1,5 м в глубину. Для шалаша с избушкой глубина та же, но ширина берется от 0,9 м – в шалаше на уровне плеч (это примерно 1,6 м от пола для человека среднего роста в обуви), а в избушке по полу. В блочных хрущевках встречаются туалеты 0,7х1,1 м, то туда не ходят в теплой верхней одежде и огородных бахилах.
Примечание: ширину туалета летней дачи выходного дня допустимо уменьшать до 1 м.
В любом случае от головы стоящего человека до ближайшей стенки должно быть не менее 40 см, это важно при расчете угла наклона стенок шалаша. Высота потолка над полом – не ниже 2,1 м, над стульчаком – от 1,9 м. Высота бортика сиденья над полом также в расчете на тяжелую обувь берется больше стандартных для квартирного унитаза 40 см на 5-6, до 10 см, т.е. 45-50 см, смотря по росту пользователей.
О дверных петлях
У кабин шалаш, скворечник и домик есть общий недостаток: если забыть запереть дверь, то ветер может расхлябать ее вместе с будкой буквально за 10-20 мин. Чтобы избежать этого, дверь желательно навешивать на амбарных петлях, как на поз. 1-3 рис. выше. Прочная избушка этого не боится, ее дверь можно без опаски навешивать на потайных петлях.
Строим будку
Постройку простейшей кабины-скворечника пошагово иллюстрирует рис; весь монтаж ведется на гвоздях 100 мм (для 60 мм бруса) или 150 мм, для бруса 80х80. Обшивку ведут на гвоздях 60-70 мм. Порядок постройки таков:

Строительство туалета-скворечника
- Несущий пояс, или угловые плиты/столбики застилают простым, без посыпки, рубероидом в 2 слоя;
- Немедленно (нестабилизированный к УФ недорогой рубероид на свету быстро портится) собирают нижнюю опорную раму из бруса. Не забудьте обработать!
- Настилают пол до переднего края стульчака. На оставшуюся часть рамы набивают доску той же, что и для пола, толщины. Также не забудьте обработать, особенно с испода;
- Готовят переднюю (большая) и заднюю рамы. Стыки врезаются в полдерева;
- Фасадную раму и задник гвоздями прибивают к низу и связывают стяжками, врезанными на четверть;
- Тем же способом делают каркас стульчака;
- Обшивают стульчак, выпиливают окно сиденья (очко – это вполне легальный технический термин) и обшивают стены;
- Собирают обрешетку крыши;
- Настилают кровлю (любой жесткий кровельный материал), выпиливают туза, навешивают дверь (о ней см. ниже), обшивают углы – готово! Кому там больше приспичило, уже можно!
Описанная методика далеко не единственно допустимая. Постройка будки туалета возможна и другими способами. К примеру, см. довольно подробный ролик:
Видео: туалет на даче своими руками
Что такое сортирный туз?
Это то самое фигурное окошечко над дверью или в ее полотне. Его символика ныне забыта, но в ханжеские Средние Века она была вполне определенной. Сердечко на самом деле не призыв к сексу в отхожем месте, а червовый туз. Он означал, что данная латрина общедоступна. Бубновый – только для прекрасного пола! В старину дамы имели право пользоваться любой свободной кабиной, а кавалеры – лишь для них предназначенными.
Феминизмом или хотя бы равноправием тут и не пахло: те же кавалеры без обиняков надевали на тех, кому пели романсы, пояса целомудрия (чудовищное по своей антисанитарии приспособление), и убийство жены за супружескую измену преступлением не считалось. Галантность галантностью, а право сильного вынь да положь! Трефовый и пиковый тузы не применялись: церковники с военными обидятся. Во времена инквизиции как знать, что еще чреватее было… Дворянин быстренько заколет или зарубит, а святые отцы могли и на костер отправить.
Еще кабины
Вторая по востребованности из туалетных кабин – избушка. Поскольку ее строение сложнее, приводим готовый проект с раскроем досок и расчетом расхода материала, см. рис. Обратите внимание на дверь: ее полотно с такой системой силовых связей выдержит любой ветер и пригодно для любого туалета. Возможно, забытую на будни незапертой дверь и сорвет, но полотно не расшатается и ремонт сведется к перенавешиванию.

Проект туалетной кабины-избушки
На рис. ниже приведены для примера менее подробные чертежи также еще одного скворечника, шалаша и домика. Если разберетесь, как строить избушку, то к ним дальнейших пояснений не понадобится.

Чертежи нескольких туалетных кабин
О туалете в саду
По ряду причин, о которых подробнее будет сказано в конце статьи, туалет на участке, особенно избушку и домик, желательно строить среди деревьев. Однако строительство садового туалета имеет некоторые особенности. Они не столь велики, чтобы задерживаться на их описании, так что просто предлагаем видео:
Видео: строительство садового туалета
Хозблоки
На дачах принято совмещать туалет, душ, сарай; возможно – летнюю кухню и убежище от непогоды (если дома еще нет или дача товарная, где квадраты земли денег дают) в один блок. По крайней мере с точки зрения биохимии стоков это оправдано: на даче доля серых вод (стоков из душа и с кухни) относительно фекальных гораздо меньше, чем в жилом доме, а объем стока невелик, так что думать о раздельной их очистке особого смысла нет. Выгоднее обрабатывать выгребную яму (хозблок допускает только такой вариант утилизации стоков) универсальными средствами. Поэтому поглядим, как бы поспособнее сделать хозблок с душем и туалетом для дачи.

План хозблока «Чебурашка»
На рис. сверху – стихийно-народно придуманный еще при Хрущеве вариант, впоследствии прозванный «Чебурашкой». Комплекты деталей для его сборки по тем же наименованием продаются и поныне. Особенность – предельная простота, дешевизна и достаточная функциональность при минимуме занимаемой площади. Опорные столбы (брус 100х100 или профтруба 40х40х2) вкапываются или бетонируются прямо в грунт. Обшивали когда-то шифером; сейчас – профлистом.

Планировка хозблоков с бытовкой

План углового хозблока
На след. рис. – 2 плана хозблоков посложнее. Их большее помещение может быть использовано не только как склад/сарай, но и как бытовка «от непогоды» с кухней; наличие окна, площадь его и размеры позволяют поставить топчан и стол с камельком, а деревянная обшивка достаточно утепляет. Окупается это большей занимаемой площадью и тем, что вход в туалет с душем – только с улицы, под раздевалку места уже нет.
Наконец, на рис. справа – хозблок для постройки в углу участка, с открытым летним умывальником. Особенность – компактность и совсем крошечные размеры: строение кирпичное, но, если при тех же размерах помещений его выполнить из дерева, размеры в плане сокращаются до 2х2 м.
О выгребе

Устройство уличного туалета
Подробнее о выгребных ямах, ухищрениях при их постройке и способах обходиться без выгреба вовсе поговорим ниже; вообще же септик локальной канализации – большая отдельная тема.
А пока – см. схему на рис., пригодную для дворового туалета и хозблока. Обратите внимание на отражатель 1, для туалета он совершенно необходим, т.к. направляет сброшенные фекалии в переднюю часть ямы. Далее они потихоньку сползают в карман под выкачку, по пути перерабатываясь бактериями. Без отражателя весь биоценоз в яме перепутается, и понадобится примерно вдвое больший ее объем. Серые стоки выводятся в яму без отражателя, но тоже в переднюю часть. Глухая бетонная коробка 4 и глиняный замок 3 на даче также совершенно необходимы для предотвращения инфильтрации в грунт, а назначение ревизионно-прочистной дверцы 2 пояснений не требует.
А как бы в доме?
Оно и понятно, оправляться в тепле – в добре не только комфортней, но и для здоровья полезнее. Однако устроить дачный туалет в доме хоть и вполне возможно, но прежде понадобится решить целый ряд проблем.
Первая – выгреб. Отводить стоки в колодец с инфильтрацией в грунт нереально; по действующим санитарным правилам тогда понадобится выдержать расстояния:
- От источников водоснабжения не менее 30 м, а при обычной в средней полосе геологии – 50-80 м.
- От непроточных водоемов и насаждений пищевых культур – от 30 м.
- От рек и ручьев – от 15 м.
- От строений и дорог – не менее 5 м.
- От неплодовых деревьев, кустов и границы участка – от 2 м.
Все это касается не только своих, но и соседских объектов, подверженных загрязнению. Соседских даже более, т.к. в случае конфликта вся правда по закону будет на их стороне. Т.е., домашне-дачный туалет нужно строить с выгребной ямой глухого типа, требующей периодической откачки. Надо сказать, что с помощью современных средств для выгребных ям она решаема: санбочку за город приходится вызывать не чаще раза в квартал, и всегда есть время скооперироваться на сей счет с соседями.
Примечание: умельцы-дачники не обошли вниманием и выгребные ямы. Напр., как сделать выгреб, посильный для самостроя, не вызывающий возмущения соседей и впоследствии пригодный для узаконивания (не век же дачная амнистия продлится), см. ролик ниже:
Видео: выгребная яма своими руками
Вторая проблема – запах. Ставить смывной унитаз с гидрозатвором (сифоном) над выгребом нельзя даже на даче с избыточным и совершенно бесплатным водоснабжением: излишек влаги погубит бактерии в яме, и понадобится уже не плановая откачка, но аварийная чистка, с оплатой, кроме санбочки, работы бригады сантехников на выезде.
Туалеты с выгребом делают люфт-клозетами; попросту – с толчком в виде воронки с крышкой. Но люфт-клозет не исключает проникновения в помещение запахов, хотя бы вследствие скачков тяги в вентиляции и задувания ее ветром. Поэтому выгреб домашнего туалета нужно проветривать не обычной фановой трубой, а сапуном – вентиляцией с принудительной тягой, создающей в яме давление ниже атмосферного.
Ставить на протяжку сапуна вентилятор – гиблое дело. Бытовой в агрессивной среде долго не протянет; очень дорогой специальный (он должен быть, помимо прочего, еще и взрывобезопасным) придется часто чистить, а чем он там обрастает, этого лучше и не видеть, не то что нюхать или трогать.
Достаточно просто можно устроить туалет в дачном доме с отоплением; варианты для печи и котла см. на рис. Под сапун делают люфт-канал с термоградиентной тягой. Чтобы она действовала и в теплое время года, когда не топят, трубу сапуна (она должна выступать не менее чем на 70 см над устьем дымохода и коньком крыши) выполняют металлической и красят в черный цвет, тут уж Солнышко подогреет.

Вентиляция выгребных ям в домах с отоплением
Однако есть и вариант для сезонных дач без отопления. Вспомним, в первых кирпичных хрущевках довольно грубые фаянсовые унитазы промывались дочиста, многие и ерш на хозяйстве не держали. Почему? Смывной бачок подвешивался под потолком высотой в 2,8 м; для спуска с него свисала груша на цепочке. Итого – напор свыше 2 м. Сильная струя со страшным шумом сносила в выпуск сразу все.
Шум при спуске был не последним обстоятельством, породившим унитазы-компакты. Но в классической раковине с лоханью слабая струя могла вообще ничего не смыть. Тогда и придумали унитазы с косым спуском, см. рис. справа. В них, правда, не присмотришься – а каков у меня нынче стул – и без ерша уже не обойтись, но и слабая струя смывает приемлемо.

Унитаз с косым спуском и наклонным выпуском
Автор, столкнувшись несколько лет тому назад с необходимостью переделать дачный туалет, подумал: не мешало бы поставить что-нибудь с сифоном, чтобы вообще никогда не воняло. Косой уник довольно чисто смывается слабой струей, а что, если дать сильную, как в хрущевском? Меньший расход воды при том же качестве смыва.
Хотел сначала купить дешевый компакт с бачком без дозатора (вода идет, пока кнопка нажата) и поднять его повыше, но потом подумал: а зачем? Тянуться неудобно, воду дают по расписанию, стало быть, нужен еще напорно-накопительный бак. В конце концов взял одну раковину с выпуском вниз, прямо в яму. Под потолком подвесил пластиковый бочонок на 50 л, а воду на смыв подал двумя отрезками пластикового гофра через шаровый вентиль с рукояткой, чтобы резче открывать.
Результат превзошел все ожидания: на смыв уходит до 3 л воды. От 50-л бачка – 15-25 смывов в сутки, на четверых хватает. Чистящее сообщество в яме благоденствует.
Примечание: любая из описанных выше кабин выдержит под потолком и 200-л бочку, но не надо. Пользователи войдут во вкус, яма от избытка влаги закиснет и начнет мгновенно переполняться.
А без выгреба?
Раз с выгребом такие сложности, то нельзя ли как-то сделать отхожее место без выгребной ямы? Можно, и делают. Биотуалеты. Но, во-первых, любая канализация био, т.к. для очистки стоков используются бактерии, природные или искусственные. Во-вторых, туалет, который био-, может оказаться вовсе не био. Так что разберемся получше, как можно на даче осуществить прием и переработку стоков вообще без канализации, т.е. сделать автономный туалет.
Автономные места общего пользования подразделяются прежде всего на химические и биологические. Могут быть и тем, и другим, смотря какой картридж подключен, см. далее. В химических стоки перерабатываются сильными неорганическими окислителями или органическими реагентами абиогенного происхождения (формалин и т.п.) «Химики» дороги, их поглотительная и пропускная способность велика. Содержимое выработанного картриджа очень токсично, его перезаправка и утилизация возможны только сертифицированными специалистами на специальном оборудовании с применением защитных средств, поэтому в быту химические туалеты используются редко.
Биотуалетами принято называть такие, в которых биоценоз перерабатывающих стоки бактерий не возникает стихийно, а создается специально высеваемой культурой. С этой токи зрения глухой выгреб, обрабатываемый современными септиками, тоже биотуалет, но мы рассмотрим варианты без накопления разжиженных стоков и не требующие откачки
Самый старый вид, успешно доживший до наших дней – торфяной туалет с его разновидностью пудр-клозетом, это не одно и тоже. И там, и там используются естественные бактерии из торфяных болот; условия в глубине торфяника очень похожи на таковые в выгребной яме. Торфяные бактерии малоактивны: работают медленно, стоков перерабатывают, в расчете на чистый объем культуры, немного. Но они исключительно жизнестойки, легко «засыпают» и при наступлении благоприятных условий пробуждаются.
Устройство и внешний вид торфяных туалетов
В простом, или компостирующем, торфотуалете (слева на рис.) под люфт-клозетом ставят емкость-сборник на 40-200 л с каменным дренажом – он будет впитывать избыточную влагу, а потом постепенно ее отдавать – и сапуном, отсасывающим вредные газы. Без того или другого устойчивая культура не возникнет, она или высохнет и заснет, или закиснет и погибнет, или отравится и тоже погибнет.
Пользоваться компостирующим торфотуалетом просто: посидев, в воронку высыпают торфокрошку. Сборник периодически вытряхивают на компостную кучу, вылежав 2-3 года, перебродивший и обеззаразившийся компост пригоден на удобрение. Но компостирующий туалет, во-первых, не гарантирует от запаха, во-вторых, как и пудр-клозет, см. ниже, не выносит перегрузок: вдруг на дачу заявилась компания плотно покушать с пивком, зловоние и необходимость полной чистки с перезаправкой гарантированы.
«Пудрум» значит пыль. Этим словом и его производными с разными приставками в романо-германских языках называют в общем любые порошки. Скажем, по-английски gunpowder значит черный порох, а baby powder – детскую присыпку от потертостей. Что такое пудр-клозет, поможет понять отрывок из книги Дж. Даррелла «Моя семья и другие животные» (My Family and Other Animals). Любой, кто читал Даррела (Джеральда, не его старшего брата Лоуренса), знает, что знаменитый натуралист еще и незаурядный писатель.
Итак, «несуразное семейство» Дарреллов, по собственному выражению автора, решило «для поправки здоровья» долго пожить на острове Корфу, ныне Керкира. Пока подыскивали дом для постоянного жилья, остановились в гостинице. Далее – см. скан с печатного текста.

Ящичек, который все-таки отыскала в своей комнате сестра Джеральда, она наверняка вытащила из пудр-клозета. Первые устройства такого рода использовались в качестве ночных горшков и наполнялись торфяной пылью. В виде ведра с торфокрошкой под стульчаком они дошли до нас в средних широтах, т.к. настоящий пудр-клозет эффективен при среднесуточной температуре выше 23 градусов, а ведро с крошкой нужно так или иначе каждый день или чаще опорожнять.
Ящик настоящего пудр-клозета емкостью от 30, а лучше от 50 литров (в центре на рис. выше) наполняется плотно уложенными вертикально пластинами прессованного торфа. В местах, где торфа нет и он дорог, используют пропитанную торфяным экстрактом специальную бумагу, плотную и прочную, но высокопористую, т. наз. крафт-бумагу. С этой-то разновидностью пудр-клозета и столкнулась цивилизованная, без предрассудков, но не весьма сведущая Марго Даррелл. Впрочем, она тогда была в переходном возрасте, а, повзрослев, много помогала брату в его полезном деле.

Стульчаки для биотуалетов
Торфотуалеты продаются в готовом виде. Стационарные (справа на рис. выше) могут использоваться и как пудр-клозет, и как биотуалет на искусственных культурах: выдвижной ящик вмещает и емкость с торфом, и сменные бактериальные картриджи. Никакой подготовки к установке не требуется, будку просто ставят где нужно. Одной заправки торфяным наполнителем хватает для 2-3 человек на 3-4 дня, а с перерывами на 5 дней, на даче выходного дня, на 1-3 месяца.
В продажу поступают и стульчаки для компостирующих туалетов, но тут нужно глядеть в оба. Во-первых, разного рода природоохранные, а по сути мошеннические общества производят изделия типа «супер-пупер-эко-плюс ХХХ» вроде того, что слева на рис. Эко-то они эко, сертифицированы. Но на поверку выходит, что дозатор торфа нужно заправлять специальными гранулами, очень дорогими, иначе сразу ломается. Делают их они же или их подельники. Своего рода сортирный Гербалайф или Nature’s Sushine. В общем, сетевой маркетинг как он есть.
Иногда еще, возможно, просто по неразумению, под видом торфяных продают стульчаки с поворотной кассетой под специальные бактериальные картриджи, справа на рис. Торф в них засыпать можно, и справлять нужду туда тоже можно. Но если картридж просто меняется, то как такое вот на торфе чистить?
В автономных туалетах на микрофлоре используются высокоэффективные бактерии, полученные методами генной инженерии. Для человека они безвредны и безопасны, проверено многолетним опытом, еще с 80-х. Картридж с культурой меняется самостоятельно (процедура не грязнее смены памперсов), но содержимое на удобрение непригодно, нужно сдавать на переработку. Для дачи выходного дня 1 кассеты хватает на лето, для сезонной понадобится 2-3 замены. Однако здесь тоже нужно выбирать осторожно. Без обмана, просто разновидностей всяких много.
Напр., нет смысла брать очень дорогую общественную кабину, поз. 1 на рис. внизу. Да, она теплая, антивандальная, очень много принять способна. Но – срок годности любого бактериального картриджа ограничен вне зависимости от характера пользования. Культура деградирует задолго до того, как вы используете ее поглотительную способность, а стоимость замены кассеты не мала.

Биотуалеты и биоунитазы
Второй подводный камень – кустарные дешевки, поз. 2. Берут «альтернативный» биоунитаз (см. ниже) подешевле, городят вокруг него кабинку. Потом – быстрая деградация, запах, смена картриджа за свои. Скупой платит дважды, как всегда. Если уж брать цельный биотуалет, то дачно-бытовой, поз. 3. Такие дешевле за счет меньшего ресурса по стокам, он рассчитан на семью.
То же самое касается и самих биоунитазов. Высокоемкие общественные, способные работать и на микрофлоре, и на химии, поз. 4, стоят дорого и к ним относится все, что было сказано о готовых биотуалетах. Есть в продаже специальные дачные биоунитазы, поз. 5, подешевле и рассчитанные на семью. Но в их бачок может заливаться не вода (сразу портятся), а специальная жидкость, подаваемая на смыв буквально каплями, так что нужно узнавать, чем он смывается и сколько смывка стоит.
Туалеты-ведра для дачи (поз. 6) бывают со сменными картриджами, рассчитанными на 3-5 чел и 2-5 дней, для дачи выходного дня это не самый плохой вариант. Но бывают и химические условно-одноразовые, они предназначены для разъездных работ, разного рода полевых выездов и т.п. Как правило, их берут в аренду, а по истощении поглотителя или по возвращении домой отдают на перезаправку.
Еще «биодачный» вариант – унитаз с отдельным картриджем, поз. 7. Обходится гораздо дешевле готового туалета. Сделав кабину по своему вкусу или купив ее отдельно, можно получить вполне гигиеничную комнатку, нужную всем, поз. 8. Для дачи это, пожалуй, на сегодняшний день оптимальный вариант: стоимость унитаза и смены картриджей за долгое время меньше, чем нулевого цикла и выгреба для будки.
Примечание: тем не менее, широкому распространению биотуалетов мешает существенное обстоятельство – сконструированные для малых картриджей бактерии неспособны принимать серые стоки. Поэтому для дачи, обитаемой с весны до осени, рекомендовать лучше все-таки глухой выгреб, обрабатываемый бактериями не столь эффективными и требующими большего жизненного пространства, но всеядными.
И о дизайне
То, что дизайн следует из функционала и не должен идти в ущерб ему – азбучная истина. Однако функционал туалета непригляден, и это не закомплексованность. Все живое при отправлении естественных надобностей уязвимо. Стыд – лишь проявление инстинкта самосохранения. Инстинкт размножения может его пересилить, но мочеиспускание и дефекация – не коитус. Поэтому в дизайне туалета нужно очень хорошо знать и тщательно соблюдать меру.
Напр., не нужно заставлять туалет твердить: «Да нет, не туалет я!», как на поз. 1-3 рис. Аляповато это сделано или с высоким мастерством, неважно. Получится что-то вроде оправданий некоего персонажа: «Начальник, да не тырил я зеленый крокодиловый лопарь с 185 баксами и 50 центами и фоткой блондинки лет 30 с пацаном школьного возраста!» На что последовало: «А я тебе, баклан отстойный, разве говорил, какой бумажник был украден?» Раз кабина бросается в глаза, какая уж тут скрытность отправления.

Примеры неудачного и удачного дизайна уличных туалетов
Поз. 4-6 иллюстрируют в общем-то правомерный подход – маскировку. Скромненько промолчим о своей сути, а кому понадобится – покажут или сам найдет. Здесь есть простор для дизайнерских изысков, но только при большом опыте, вкусе и умении работать. Иначе выйдет нечто наподобие поз. 7-9, при виде которых и дизайнер, и психиатр сойдутся в одном: это не дизайн.
Оформляя туалет, лучше всего вспомнить: что естественно, то не безобразно, даже если его и нельзя выставлять напоказ. Конкретно – естественная маскировка для данной надобности: растительность, камень, поз. 10-12. Рустикальный примитивизм с фитодизайном отнюдь не враждуют, поз. 11. Но поскольку будка крупнее человека и обзор из нее хуже, желательно кабину простых естественных форм размещать среди деревьев, поз. 10. Или, как водится в кустиках, прятать среди мелких фитоформ так, чтобы и видно не было, поз. 12. Это в данном случае самый естественный и, значит, самый лучший прием. И наиболее гигиеничный.
что еще почитать:
Вывести все материалы с меткой:vopros-remont.ru
Дачный туалет своими руками. Как сделать туалет на даче — инструкция

Даже если дача представляет собой просто голый участок земли без единой постройки, все равно не обойтись без главного – туалета. Потребность в этой незамысловатой постройке возникает уже спустя несколько часов пребывания на дачном участке. Не смотря на то, что мы все представляем, как должен выглядеть туалет и что необходимо делать, все же не стоит торопиться. В первую очередь следует изучить участок, чтобы понять, какой вид дачного туалета можно построить в конкретном случае, ведь их существует несколько. Затем необходимо определиться, где именно можно поставить туалет, соблюдая при этом санитарные правила и нормы. И только после этого можно приступать к непосредственно строительству. В том, чтобы сделать дачный туалет своими руками, нет ничего сложного. Тем не менее, изготавливать коробку туалета не обязательно самостоятельно. Современный рынок может предложить готовые туалетные домики на любой вкус. В данной статье мы разберем инструкцию, как сделать туалет своими руками, начиная с выбора вида туалета и заканчивая изготовлением домика.
- Какой туалет на даче можно обустроить – виды и особенности
- Где можно разместить дачный туалет – правила и рекомендации
- Туалет на даче своими руками – инструкция строительства пудр-клозета
- Как построить туалет на даче с выгребной ямой
- Дачный туалет люфт-клозет и его особенности
Какой туалет на даче можно обустроить – виды и особенности
На обустроенной даче, где есть дом и фактически можно жить, желательно иметь два туалета – один в доме, а второй на улице. Туалет в доме удобно использовать ночью или в непогоду, когда идет дождь. Все же в доме и теплее и комфортнее. Уличный туалет для дачи необходим для того, чтобы использовать его днем после огородно-садовых работ на участке и не нести грязь с улицы в дом.
Всего существует несколько видов туалетов, которые можно использовать на даче:
- Уличный туалет с выгребной ямой.
- Пудр-клозет.
- Люфт-клозет.
- Биотуалет.
- Химический туалет.
- Торфяной туалет для дачи.
На выбор туалета влияет такой показатель, как уровень залегания грунтовых вод. Если вода находится далеко (глубже 2,5 м) и никогда не поднимается выше этой отметки даже в сезон дождей или весенних паводков, то можно использовать любой из предложенных вариантов туалета. Если же уровень грунтовых вод высокий, вода находится близко от поверхности, то обустраивать туалет с выгребной ямой нельзя.

Уличный туалет с выгребной ямой – старая добрая проверенная временем конструкция. Она представляет собой выгребную яму глубиной до 1,5 м, сверху которой стоит туалетный домик. Нечистоты в яме накапливаются и постепенно разлагаются. Если интенсивность использования такого туалета велика, то заполнение ямы происходит стремительно, нечистоты не успевают ферментироваться. Раньше такую проблему решали просто – снимали туалетный домик, закапывали старую яму, а в другом месте выкапывали новую и ставили сверху туалет. Сейчас же предпочитают чистить выгребные ямы либо с помощью ассенизаторской машины, либо вручную.

Пудр-клозет – вариант туалета для местности, где близко находится вода. В его конструкции вовсе нет выгребной ямы. Вместо нее используется емкость (ведро, бочка, ящик), которая устанавливается сразу под стульчаком. Чтобы нечистоты не слишком напоминали о себе неприятным запахом, после каждого похода в туалет их посыпают сухим торфом, опилками или золой. Сам процесс напоминает припудривание, от чего и произошло название данного вида туалетов «пудр-клозет». После заполнения емкость достается и опорожняется в компостную яму, кучу или другое место. Со временем нечистоты, пересыпанные торфом, превратятся в чудное удобрение.

Люфт-клозет – туалет с герметичной выгребной ямой, которую очищают с помощью ассенизаторской машины. Обычно люфт-клозеты обустраивают непосредственно в доме рядом с наружной стеной дома. Выгребная яма находится снаружи, нечистоты в нее поступают по трубе. Сама яма имеет уклон в сторону от дома для удобства очистки.
Биотуалет – привычная для городских жителей кабинка с емкостью, в которую заливают активные микроорганизмы для переработки нечистот. Наверное, самый простой способ обустройства туалета на даче, так как строить ничего не нужно – можно купить готовый биотуалет любых размеров, как уличный, так и домашний.
Химический туалет отличается от биотуалета только средством переработки нечистот. Здесь используются химические реагенты, поэтому содержимое контейнера после переработки нельзя использовать в качестве удобрения на огороде, в отличие от биотуалета.

Торфяной туалет – это домашний вариант пудр-клозета. По сути пудр-клозет тоже является торфяным туалетом, ведь в нем торф используется для припудривания фекалий. Домашний торфяной туалет – модернизированное достижение цивилизации. Он очень похож на обычный унитаз, только в бачке для воды вместо воды – сухой торф, а вместо труб канализации емкость для нечистот.

Такой туалет можно смело устанавливать внутри дома. Для устранения неприятного запаха в его конструкции предусмотрена вентиляция, которую необходимо вывести на улицу.
Выбор туалета для дачи полностью зависит от ваших личных предпочтений и от условий, которые диктуют правила СанПина.
Где можно разместить дачный туалет – правила и рекомендации
На размещение уличного туалета существуют определенные ограничения. В первую очередь они касаются тех туалетов, в которых нечистоты могут контактировать с грунтом и грунтовыми водами.
- От туалета до источника воды должно быть не менее 25 м. Будь то колодец, скважина, озеро, ручей или другой водный объект. Если дачный участок располагается под некоторым уклоном, то туалет необходимо устанавливать ниже источника забора воды. Это исключит попадание стоков в питьевую воду.
Важно! Обратите внимание, что учитывать следует не только свой источник воды, но и ближайших соседей.
- От туалета до дома и погреба или подвала должно быть минимум 12 м.
- От летнего душа или бани, сауны не менее 8 м.
- Расстояние от постройки для содержания животных до туалета должно быть 4 м.
- От стволов деревьев – 4 м, от кустарников – 1 м.
- От забора до туалета должно быть не менее 1 м.
- Также обязательно учитывается роза ветров при выборе места и расположения уличного туалета, чтобы не досаждать ни себе, ни соседям неприятным амбре.
- Дверь в туалет не должна открываться в сторону соседей.
- Если грунтовые воды ниже 2,5 м, то можно обустраивать любой уличный туалет. Если выше 2,5 м, то туалет с выгребной ямой делать нельзя, только пудр-клозет или люфт-клозет, а также можно ставить биотуалеты. Такие конструкции безопасны в том плане, что нечистоты не могут попасть в грунтовые воды и загрязнить их.
Учтите, что при выборе места для туалета необходимо ориентироваться на объекты не только на своем участке, но и на соседском. Это касается и деревьев, и сараев, и дома, и всего остального. Для туалетов типа пудр-клозет и люфт-клозет перечисленные выше ограничения не действуют, так как в них нечистоты не контактируют с грунтом. Единственное, что придется учесть при их размещении, это розу ветров и удобство использования.
Туалет на даче своими руками – инструкция строительства пудр-клозета
Обустроить дачный туалет собственноручно не так уж и сложно, достаточно обладать начальными плотницкими навыками, инженерным мышлением и запастись помощью друга. Рассмотрим пример строительства туалета на даче по типу пудр-клозет. Как мы уже писали, его особенность в том, что под туалетом нет выгребной ямы. И это значительно облегчает задачу. Во-первых, такой туалет можно располагать рядом с жилым домом. Во-вторых, сама технология строительства несколько легче, не придется рыть котлован. В-третьих, исключено загрязнение грунтовых вод.
Чертеж дачного туалета
Строительство туалета необходимо начать с чертежа, чтобы все элементы и детали имели соответствующие размеры, а не на глазок. В связи с тем, что в пудр-клозете нет выгребной ямы, на чертеже будет представлена только конструкция туалетного домика.
Схематично пудр-клозет можно представить так:

Размеры туалета подбираются так, чтобы им было удобно пользоваться. Например, самый распространенный размер: ширина 1,5 м, глубина 1 м, высота 2,2 м. Размеры могут быть увеличены, если того требуют габариты хозяев. Материал изготовления туалета может быть разным: самые распространенные деревянные туалеты, но можно обшивать стены металлопрофилем, шифером или другим материалом, а также возводить стены из кирпича.
Туалет дачный деревянный – чертеж в разрезе.
Пример 1.


Пример 2.

Вы можете воспользоваться готовым чертежом, а можете составить свой. Главное – соблюдение размеров при строительстве.
Фундамент и опора для туалета

Дачный туалет – это строение, которое не требует тяжелого фундамента. В некоторых источниках Вы можете встретить предложение заливать под туалет ленточный фундамент. На самом деле это лишнее, особенно, если туалет деревянный. Опору для туалетного домика можно сделать двумя способами: первый – закопать столбы-опоры, второй выложить по периметру кирпичи или бетонные блоки.
В качестве столбов-опор можно использовать как деревянный брус или бревно, так и бетонные столбики. Последние более устойчивы к агрессивной среде и прослужат дольше.
- Первым делом размечаем участок. Крайне важно точно определить углы строения.
- Берем 4 асбестоцементные трубы диаметром от 150 мм и обмазываем их снаружи битумной мастикой.
- В углах туалетного домика выкапывает скважины и заглубляем трубы на глубину 50 – 70 см. Глубина заложения труб может быть и больше, это зависит от структуры грунта. Можно сделать 90 см или 1 м.
- На высоту 1/3 трубы их необходимо залить бетонным раствором. Старательно уплотняем бетон, чтобы удалить пузырьки воздуха.
- Внутрь труб вставляем деревянные или бетонные столбы-опоры. Чтобы закрепить их, добавляем бетонный раствор.
Столбы-опоры в данном случае могут выступать и вертикальной частью каркаса, т.е. их необходимо выгнать на высоту 2,3 м от земли. Также необходимо постоянно проверять, чтобы расположение столбов было ровным относительно углов.
Бывают случаи, когда в качестве опоры достаточно закрепить бетонные блоки или кирпичи, на которые затем будет установлен каркас. В таком случае необходимо снять верхний слой грунта на глубину 20 – 30 см и плотно утрамбовать основание. Для большей надежности на дно можно засыпать слой песка. Сверху устанавливаются бетонные блоки, кирпичи или бетонные бордюры.
Изготавливаем каркас уличного туалета

Каркас дачного туалета можно изготовить из деревянного бруса 50х50 мм или 80х80 мм. Более толстый и массивный брус 100х100 мм и больше брать не обязательно. Также можно использовать металлические уголки.

Каркас должен представлять собой конструкцию:
- 4-е несущие вертикальные опоры.
- Обвязка крыши туалета. Продольные брусья для крыши должна выступать за пределы корпуса туалета на 30 – 40 см. Спереди навес будет служить козырьком, а сзади – для отвода дождевой воды подальше от туалета.
- Обвязка или стяжка на уровне будущего стульчака. Обычно брусья обвязки стульчака крепятся в распор к несущим вертикальным опорам. Высота расположения стульчака должна быть удобной – 40 см от пола туалета.
- Диагональные укосины для прочности конструкции на задней и боковых стенках туалета.
- Каркас для крепления двери. Две вертикальные опоры на высоту до 1,9 м и горизонтальная перемычка сверху на этой же высоте.
Обязательно высчитайте высоту стульчака, так как слишком высокое сидение будет неудобным, особенно если среди хозяев есть низкорослые люди. Обозначьте, на каком уровне будет чистовой пол в туалете, и отложите от него 38 – 40 см вверх. Учтите, что сверху обвязки будет еще обшивка толщиной 20 – 25 мм.
Обшиваем корпус туалета, делаем крышу
Дальнейшее строительство дачного туалета заключается в том, чтобы обшить каркас. Так как деревянные туалеты пользуются неизменной популярностью за счет своей самобытной красоты, удобства и комфорта, то стены дачного туалета можно обшить деревянными досками.

Деревянные доски толщиной 15 – 25 мм прибивают к каркасу, плотно подгоняя их друг к другу. Располагать доски необходимо вертикально. Так как крыша будет располагаться с уклоном к задней стенке, то верхнюю часть досок обшивки придется аккуратно срезать под углом.
Вместо дерева можно использовать листы профнастила, шифера или другого материала. С ними намного легче работать, так как потребуется всего три листа для задней и двух боковых стенок. Но в таком туалете значительно менее комфортно находиться, чем в деревянном. А все потому, что не происходит естественный влажностный и воздушный обмен через стены.
На задней стенке туалета необходимо сделать дверцу, через которую можно будет вынимать емкость с нечистотами. Обычно ее делают на всю ширину задней стенки на высоту 40 см (до высоты стульчака). Закрепляется такая дверца на петлях. Выполнить ее можно из тех же деревянных досок.
Крышу дачного туалета обычно кроют тем же материалом, что и все постройки на участке, чтобы строения не выбивались из композиции. Можно использовать листы профнастила или металлочерепицу. В крыше необходимо выполнить отверстие для вентиляционной трубы, которое затем следует тщательно герметизировать.
Если Вы хотите сделать крышу туалета деревянной, то ее обязательно следует покрыть рубероидом или другим рулонным материалом, чтобы дерево не намокало.
Навешиваем дверь
Дверь для дачного туалета обычно делают деревянной. Дверь навешиваем на петлях. Количество петель 2 или 3 зависит от тяжести и массивности двери. Чем тяжелее дверь, тем больше должно быть петель. Механизм закрывания двери в туалет каждый делает, как ему больше нравится: защелка, крючок, шпингалет или деревянная задвижка. Внутри туалета также необходимо установить защелку.
Над дверью следует сделать окошко, через которое сможет проникать естественное освещение. Обычно его делают как можно ближе к крыше, чтобы внутрь не попадала вода во время дождя. Окошко можно застеклить, тогда будет не страшен ни дождь, ни насекомые, которые часто залетают через такие оконца. Как выглядит дачный деревянный туалет, можно увидеть на фото.
Дачный туалет: фото – примеры



Обустраиваем стульчак в туалете
Сиденье или стульчак в дачном туалете выполняют из деревянных досок, вагонки или влагостойкой фанеры. Лучше использовать чистое дерево без добавок, поэтому фанеру исключаем. Каркас будущего стульчака был сделан еще на этапе обустройства каркаса, поэтому сейчас достаточно аккуратно обшить его деревянными досками и окрасить. Посередине вырезаем отверстие, через которое будем справлять нужду. Обязательно проверьте, на какой глубине от начала стульчака следует сделать отверстие, чтобы им было удобно пользоваться.

Под стульчак устанавливаем емкость для нечистот объемом от 20 до 40 л. Кстати, крышку стульчака можно сделать откидывающуюся на петлях, а можно стационарную.
На стене в удобном месте навешиваем емкость для торфа. Внизу ставим ведро для туалетной бумаги. Внутри туалета можно установить умывальник, если это позволяют габариты строения. Тогда под умывальником устанавливаем ведро для помоев.
Как построить туалет на даче с выгребной ямой

Строительство туалета с выгребной ямой несколько сложнее, так как придется обустроить яму для отходов. Туалетный домик для данного вида туалетов ничем не отличается, поэтому мы его затрагивать не будем. Обозначим только, как сделать коммуникации. На схеме представлено, как должна располагаться выгребная яма относительно туалетного домика. Исходя из этого, выполняем разметку участка и приступаем к земляным работам.

- Копаем выгребную яму с уклоном в сторону задней стенки туалета глубиной 1,5 м.
- Дно и стены ямы утрамбовываем глиной слоем 15 – 25 см. Некоторые вместо глины делают стены ямы из дерева, кирпича или бетона. Если грунтовые воды находятся на достаточной глубине, то делать стены выгребной ямы полностью герметичными не обязательно. Достаточно глиняного замка.
- Основание под туалет сбиваем из деревянного бруса 100х100 мм. Также можно использовать тротуарный бордюр или бетонные блоки, уложив их на землю. Если использовать деревянный брус, то его необходимо обработать антисептиком.
- Над выгребной ямой обустраиваем настил из досок. Сначала сбиваем каркас из брусьев. Делаем между ними такое расстояние, чтобы было удобно очищать яму. Учтите, что настил делается за пределами туалетного домика, под домиком остается свободное пространство достаточного размера, чтобы нечистоты попадали в яму.
- Настил необходимо обить снизу рубероидом или другим рулонным материалом.
- За туалетом устанавливаем люк, представляющий собой откидную крышку на петлях. Люк будет использоваться при очистке ямы. Деревянный люк обрабатываем антисептиком.
- Прокладываем вентиляционную трубу из ямы. Устанавливаем ее рядом с задней стенкой туалета, выводим на 70 – 100 см выше крыши туалета. Для этих целей можно использовать обычную канализационную трубу. Сверху на трубу закрепляем козырек, чтобы внутрь не попадала вода и мусор. Закрепляем трубу к задней стенке хомутами. Нижний край вентиляционной трубы должен располагаться на 15 – 20 см ниже уровня пола туалета.
- Сверху устанавливается туалетный домик.
- Вокруг туалета с выгребной ямой необходимо обязательно делать отмостку и отведение дождевой воды, чтобы она не затопила яму с нечистотами.
Если в дальнейшем планируется очищать выгребную яму с помощью ассенизаторской машины, то туалет необходимо так располагать на участке, чтобы машина могла подъехать на достаточное расстояние. Помните, рукав такой машины всего 7 м.
Дачный туалет люфт-клозет и его особенности

Чаще всего дачный туалет типа люфт-клозет устанавливается рядом с жилым домом или внутри дома. Сточная яма располагается снаружи строения, за его стенами. Туалет такого типа можно строить только там, где есть возможность обогревать сточную яму в зимний период. Если же пользоваться туалетом зимой не будут, то перед концом сезона выгребную яму необходимо полностью очистить.
Основное отличие люфт-клозета от других видов туалетов в том, что выгребная яма в нем выполняется полностью герметичной и регулярно очищается с помощью ассенизаторской машины. Вот несколько отличий в строительстве люфт-клозета:
- Герметичная яма, чтобы нечистоты не впитывались в грунт. Можно заливать яму из бетона, выполнять ее из кирпича и оштукатуривать, а можно использовать готовые пластиковые емкости – кессоны.
- Из выгребной ямы обязательно должна идти вентиляционная труба. Проводить ее необходимо через дымоход печи или камина. В свою очередь из дымохода должна идти труба в яму, через которую будет поступать теплый воздух. Это необходимо, чтобы яма не замерзала. Материал вытяжной трубы – асбестоцементная или керамическая.
- Если в доме нет обычной печи или камина, а только газовое отопление, то обогрев выгребной ямы необходимо осуществить с помощью маломощного электронагревателя.
- Над ямой делается крышка/люк. Чтобы крышка не промерзала, ее делают двойной: верхняя – металлическая или чугунная, а нижняя – деревянная. Между крышками укладываем теплоизоляционный материал.
- Уклон ямы должен быть в сторону от дома для удобства ее очистки.
В последнее время все большей популярностью пользуются торфяные туалеты для дачи. Их удобство в том, что их можно смело располагать в доме в любом помещении. Торфяные туалеты легко чистятся, практически не издают запаха, с ними может совладать даже хрупкая женщина или пожилой человек. Также подобные туалеты можно делать на улице, тот же пудр-клозет – всего лишь предшественник современного торфяного туалета.
strport.ru
Как сделать туалет для дачи своими руками: чертежи, фото, пошаговая инструкция
Чтобы обеспечить комфортное пребывание на загородном участке, нужно в первую очередь построить туалет, для возможности справлять естественные потребности. Поскольку система канализации, это редкость на наших дачных массивах, то туалет придётся делать с выгребной ямой. Поэтому, очень важно правильно выбрать расположение туалета, чтобы избежать неприятного запаха и проблем с соседями. Кроме этого, из-за суровой зимы, желательно сделать дачный туалет утеплённым.
Где расположить туалет? Как правильно сделать выгребную яму? Какие материалы использовать при строительстве? И наконец, как построить туалеты разных типов? Всё это вы сможете узнать, прочитав нашу статью.
Расположение туалета на участке
В первую очередь нужно узнать, – насколько близко к поверхности вашего участка находятся грунтовые воды. Если грунтовые воды находятся ближе чем 2,5 метра к поверхности, то по санитарным нормам, выгребную яму делать нельзя. Спасти положение в такой ситуации, поможет пластиковая ёмкость для нечистот, расположенная на небольшой глубине.
Во вторых не располагайте туалет в низинах, это может привести к быстрому заполнению выгребной ямы во время сильного дождя, или в период таяния снега.
В третьих учитывайте фактор запаха, как бы хорошо не был изолирован туалет, неприятные испарения всё равно будут просачиваться из выгребной ямы и портить воздух в округе. По этой причине, лучше всего расположить туалет вдали от жилья и мест отдыха.
В четвёртых выгребная яма любого туалета нуждается в очистке, поэтому при выборе места для туалета, продумайте возможность беспрепятственного подъезда к нему ассенизаторской техники.
Ассенизаторская машина
Изготовление выгребной ямы
Выгребные ямы могут изготавливаться из монолитного бетона, кирпича, пластиковых ёмкостей и бетонных колец. Использование для постройки выгребной ямы баков из металла, не рекомендуется, поскольку со временем, стенки железного бака подвергнутся коррозии и нечистоты начнут загрязнять почву.
Выгребная яма из монолитного бетона
Для изготовления вам понадобятся:
- Цемент.
- Песок.
- Мелкий щебень.
- Арматура.
- Жидкое стекло.
- Проволока для вязки арматуры.
- Опалубка.
- Бетономешалка или емкость для изготовления раствора и лопаты.
Выгребная яма из монолитного бетона
Правильный порядок работ для изготовления выгребной ямы из бетона, заключается в следующих действиях:
- Выройте котлован.
- Утрамбуйте дно котлована и засыпьте его песком.
- Установите прутья арматуры на дно и свяжите их проволокой.
- Изготовьте цементный раствор и залейте им дно котлована слоем 15-20 сантиметров.
- После высыхания цементного раствора, установите на стенки котлована, предварительно изготовленную арматурную решётку.
- После связывания арматуры, установите по периметру стенок котлована – опалубку. Устанавливая опалубку, учитывайте тот факт, что бетонные стенки ямы должны быть выше уровня грунта 10-20 сантиметров, это позволит избежать попадания дождевой или талой воды в яму.
- Залейте опалубку цементным раствором.
- Когда раствор полностью высохнет, снимите опалубку.
- Для дополнительной герметизации ямы, обработайте стенки и дно, жидким стеклом или битумной мастикой.
Выгребная яма из кирпича
Для ямы из кирпича понадобятся:
- Качественный кирпич.
- Цемент.
- Песок.
- Арматура.
- Битумная мастика.
Выгребная яма из кирпича
Чтобы изготовить выгребную яму из кирпича:
- Выройте котлован.
- Также как и в варианте с монолитным бетоном, произведите заливку и армирование дна ямы.
- Произведите кладку кирпича по периметру стенок ямы.
- После высыхания цементного раствора в кладке, произведите штукатурку стен ямы.
- Обработайте стены битумной мастикой.
Выгребная яма из бетонных колец
Выбрав вариант выгребной ямы из железобетонных колец, учтите, что для их перемещения вам понадобится специальная техника. Яма делается следующим образом:
- Выройте котлован круглой формы, размер котлована должен позволять свободно помещать в него бетонные кольца.
- С помощью крана установите в котлован кольца. Следите за тем, чтобы бетонные кольца вставали ровно, без перекосов и щелей.
- Заделайте зазоры между кольцами цементным раствором.
- Засыпьте грунтом пространство между стенками котлована и кольцами.
- Залейте дно котлована цементным раствором, для повышения прочности дна, можете предварительно провести армирование.
- Обработайте швы между кольцами жидким стеклом или битумной мастикой.
Выгребная яма из бетонных колецВыгребная яма из пластиковой емкости
Данный вариант выгребной ямы самый лёгкий в производстве, но требующий затрат на приобретение вместительной пластиковой ёмкости. Форма ёмкости должна позволять свободно откачивать из неё нечистоты.
Для установки пластикового бака вырывается яма. После помещения емкости в котлован пространство между стенками бака и котлована засыпается грунтом.
Выгребная яма из пластиковой ёмкости
Следует отметить, что все перечисленные варианты выгребных ям, можно делать без герметичного дна, только с фильтрующим слоем из щебня или песка. Этот способ устройства выгребной ямы позволяет снизить скорость накопления нечистот, за счёт ухода жидкости непосредственно в почву. Но не герметичные выгребные ямы, запрещены санитарными нормами.
Также при строительстве выгребной ямы не забывайте об отдушине для выхода горючих газов, образующихся при разложении органических веществ и при их значительном скоплении, создающих условия для возгорания.
Варианты туалета для дачи
Туалет из кирпича
Кирпичный туалет гораздо тяжелее по весу, чем деревянный, поэтому его лучше всего строить над выгребной ямой из монолитного бетона и использовать стенки ямы в качестве фундамента.
Туалет из красного кирпича
Этап первый – заливка основания
- Изготовьте опалубку с основным отверстием для поступления нечистот, расположенным по центру и дополнительным для отвода газов, расположенным за стенами туалета.
- Установите опалубку в выгребную яму и закрепите её на нескольких прутьях арматуры.
- Сделайте решётку из прутьев арматуры связанных проволокой и установите её на опалубку.
- Залейте опалубку цементным раствором, толщина слоя должна быть не менее 15 сантиметров.
Основание для кирпичного туалетаЭтап второй – кладка стен
- Произведите кладку первых рядов кирпичей. Во избежание перекосов и неровной кладки используйте уровень и отвес.
- Постепенно увеличивайте число кирпичных рядов, постоянно сверяясь с отвесом и уровнем, особенно это замечание касается, дверного проёма.
- Дойдя до конца дверного проёма, установите перемычку из железных уголков.
- Для устройства односкатной крыши, фронтальную стенку туалета следует делать выше задней на 20-30 сантиметров. Боковые стены делают с косым переходом – от фронтальной к задней стенке.
Кирпичная кладкаЭтап третий – изготовление крыши и установка двери
- Установите на стены продольные балки из брусков сечением 150х50 миллиметров.
- Набейте на балки поперечные рейки сечением 50х20 миллиметров.
- Прибейте к получившейся обрешётке лист шифера, металлочерепицы или профнастила.
- Установите дверную коробку, закрепив её на анкерные болты.
- Повесьте дверное полотно на навесы и установите ручки с замком.
Этап четвёртый – отделка стен, пола и потолка
Отделывать стены и потолок в туалете можно разными материалами. Вешние стены лучше всего отделать материалом, который использовался для отделки других строений на даче. Это позволит сохранить общий стиль участка. Для внутренней отделки, можно использовать панели ПВХ, штукатурку или деревянные рейки. Используя варианты с ПВХ панелями и рейками, у вас появится возможность дополнительного утепления стен и потолка туалета минеральной ватой или пенопластовыми панелями. Для отделки пола в туалете укладывают плитку или просто настилают линолеум.
Обшивка рейкамиЭтап пятый – обустройство туалета
Для более удобного пользования туалетом, на центральное отверстие устанавливают специальные унитазы, у которых отсутствует канализационное «колено». Чтобы не испытывать затруднений в зимний период, желательно провести в туалет отопление. Для полного комфорта, проведите в туалет электричество и сделайте освещение как внутри, так и снаружи.
Унитаз без “колена”
Инструкция в фотографиях по строительству кирпичного туалета, также доступна в ролике:
Деревянный туалет
Преимущество деревянного туалета перед кирпичным в том, что его можно изготовить отдельно от выгребной ямы. Также благодаря лёгкому весу, деревянный туалет можно устанавливать над любым видом выгребной ямы.
Туалет – «скворечник»
Это самый бюджетный вариант деревянного туалета. Туалет «скворечник» позволяет сэкономить финансовые затраты на своё строительство, но это сильно сказывается на его комфорте. Поэтому, данный тип туалета в основном используется как временное решение и при последующем обустройстве участка, заменяется на более основательные конструкции.
Ниже приведены чертежи, по которым вы сможете построить туалет своими руками:

Порядок выполнения работ при изготовлении туалета:
- Сверяясь с чертежом, изготовьте каркас.
- Нарежьте рейки для обшивки каркаса (размеры указаны в таблице).
- Обшейте каркас пол и крышу рейками.
- Изготовьте дверь и повесьте её на петли.
- Закройте крышу рубероидом или другим кровельным материалом.
- Установите туалет на выгребную яму.
- Обработайте каркас и рейки олифой, после этого, покрасьте туалет краской.
Туалет “скворечник”
Подробную инструкцию по изготовлению туалета – «скворечник», в можете посмотреть в ролике:
Туалет – «домик»
«Домик» – более комфортный и прочный вариант деревянного туалета, по сравнению со «скворечником». Для постройки туалета – «домик», требуется больше времени и затрат на стройматериалы, но это себя оправдывает более комфортной эксплуатацией. Ознакомьтесь с чертежами туалета:


Порядок выполнения работ почти такой же, как и при изготовлении туалета «скворечник», главное сверяйтесь чаще с чертежами.
Туалет “домик”
Туалет с душем
Объединение двух бытовых построек в одну, позволяет сэкономить место на дачном участке и сократить расходы на их строительство. Правда такое соседство будет иметь и свой минус, выраженный в виде неприятного запаха во время приёма душа. Поэтому душевую кабинку следует делать более изолированной, без щелей и зазоров.
Данный тип постройки состоит из двух кабин, объединённых под одной крышей и имеющих общую стену. Кабина – предназначенная под туалет, должна быть над выгребной ямой, а кабина для душа, должна иметь слив для воды. Ниже представлены примерные параметры туалета с душем:
Туалет с душем, можно изготовить из: кирпича, шлакоблоков, деревянных реек или досок.
Давайте рассмотрим вариант строительства из дерева. Для работы нам потребуются:
- Четыре бруса длиной по 2,75 метра и четыре бруса по 2 метра, сечением 10х10 сантиметров.
- Брусья сечением 5х10 сантиметров и длиной по 2 метра в количестве 24 штуки.
- Деревянные доски для обрешётки, сечением 1х10 сантиметров.
- Брусья сечением 5х10 сантиметров, длиной по 2 метра, в количестве 12 шт.
- Для пола в туалете, доски сечением 4х15 сантиметров в количестве 20 штук.
- Пластиковые трубы и слив.
- Цементный раствор в количестве полутора куба.
- Фанерные листы для опалубки.
- Песок и гравий, или щебень.
- Металлочерепица или другой кровельный материал.
Каркас туалета с душем
Как изготовить выгребную яму, написано выше, поэтому перейдем сразу к изготовлению каркаса:
- Сделайте нижнюю обвязку, используя бруски сечением 10х10 сантиметров.
- Для возведения каркасных стен, установите по углам брусья сечением 5х10 сантиметров. Для соединения их с нижней обвязкой используйте металлические пластины и уголки. Проверьте правильность положения брусьев с помощью уровня.
- Установите два бруска в каркасе для крепления будущей двери.
- Сделайте верхнюю обвязку, соединив с вертикальными опорами бруски сечением 10х10 сантиметров.
- На верхней обвязке установите три стойки с коньковой доской.
- Сделайте стропила для двускатной крыши с шагом 60 сантиметров, используя доски сечением 1х4 сантиметра.
- Изготовьте обрешётку из обрезных досок.
- Накройте крышу металлочерепицей.
- Перейдите к установке пола кабинке для туалета. Изготовьте каркас для постамента и обшейте его и пол доской толщиной 2 сантиметра.
- Обшейте стены туалета досками.
- Установите пенопластовые панели в каркас и заполните щели монтажной пеной.
- Произведите обшивку внутренних стен.
- Сделайте пол в душе из цементного раствора. Заливая пол, делайте уклон для слива воды.
- Поверх бетонного пола установите чистовой пол из досок.
- Обшейте стены досками и установите пенопластовые панели также как и в туалете.
- Установите двери в проёмы.
- Подведите трубу с водой и установите душ. Если на даче нет водопровода, то установите на крыше кабинки душа бак для нагрева воды на солнце.
- Проведите к кабинкам электричество и сделайте освещение.
Туалет с душем
Как изготовить туалет с душем на трубчатом фундаменте в можете узнать посмотрев видео:
Необычные варианты дачных туалетов
Туалет для дачи можно изготовить практически из любого материала и придать ему самый необычный дизайн. Ниже мы приведём вам фотографии необычных дачных туалетов:
- Туалет из брёвен. Изготовлен по старой технологии, способом укладки брёвен с подходящим диаметром, друг на друга.
Плюсы: красивый дизайн, прочность, долговечность.
Минусы: большой вес, слабая пожарная безопасность, насекомые-вредители. - Туалет из профилированного листа. Бюджетный вариант дачного туалета.
Плюсы: низкая стоимость.
Минусы: ужасный дизайн, ужасная жара внутри летом и сильный холод зимой. - Туалет – карета. Самый необычный дачный туалет на сегодняшний день.
Плюсы: красивый дизайн, оригинальность.
Минусы: сложность изготовления, отсутствие выгребной ямы (исправимо). - Туалет – мельница. Туалет из досок стилизованный под мельницу.
Плюсы: недорогая цена, необычный дизайн.
Минусы: дешёвый вид, слабая пожарная безопасность. - Каменный туалет. Оригинальный туалет из камня.
Плюсы: красивый дизайн, прочность, долговечность, пожарная безопасность.
Минусы: высокая цена, трудность изготовления. - Туалет из соломы. Очень оригинальное использование соломы.
Плюсы: красивый дизайн, экологическая безопасность.
Минусы: недолговечность, очень слабая пожарная безопасность.






Изготовление дачного туалета – непростое дело, требующее хотя бы минимальных навыков в строительстве, поэтому если вы не уверены что справитесь, обратитесь лучше к специалистам. Если же вы считайте, что сможете сделать туалет своими руками, то смело приступайте к работе!
‘; blockSettingArray[0][«minSymbols»] = 0;blockSettingArray[0][«minHeaders»] = 0;blockSettingArray[2] = []; blockSettingArray[2][«setting_type»] = 3; blockSettingArray[2][«element»] = «»; blockSettingArray[2][«directElement»] = «.sb-a»; blockSettingArray[2][«elementPosition»] = 1; blockSettingArray[2][«text»] = ‘
‘; blockSettingArray[2][«minSymbols»] = 0;blockSettingArray[2][«minHeaders»] = 0;blockSettingArray[3] = []; blockSettingArray[3][«setting_type»] = 3; blockSettingArray[3][«element»] = «»; blockSettingArray[3][«directElement»] = «.footer-a»; blockSettingArray[3][«elementPosition»] = 1; blockSettingArray[3][«text»] = ‘
‘; blockSettingArray[3][«minSymbols»] = 0;blockSettingArray[3][«minHeaders»] = 0;blockSettingArray[6] = []; blockSettingArray[6][«setting_type»] = 1; blockSettingArray[6][«element»] = «h3»; blockSettingArray[6][«elementPosition»] = 0; blockSettingArray[6][«elementPlace»] = 5; blockSettingArray[6][«text»] = ‘
‘; blockSettingArray[6][«minSymbols»] = 0;blockSettingArray[6][«minHeaders»] = 5; var jsInputerLaunch = 15;
remboo.ru
Как сделать туалет на даче своими руками: пошаговая инструкция

Если человек решил приобрести загородный участок для отдыха с друзьями или семьей, вопрос, как сделать туалет на даче, возникнет в первую очередь. Домик для отправления естественных физиологических надобностей — обязательный атрибут не только любого жилища, но и приусадебной территории, на которой предстоит находиться не один час. Вполне логично, что каждому хозяину захочется как можно быстрее начать и закончить на даче сооружение нужного всем туалета. И хотя на первый взгляд, кажется, что дело это довольно простое, торопиться не стоит. Следует внимательно изучить дачную территорию и определиться с выбором места для туалетного домика, учитывая ряд санитарных требований. А еще 1 важным моментом является выбор вида уборной, ведь их существует несколько. Какой же туалет лучше построить на территории дачного участка?
Как правильно выбрать место для дворовой уборной?
Удобным и комфортным для жильцов дачи является размещение туалета внутри дома. Здесь тепло и сухо. Не надо выходить на улицу ночью или в дождливый день. Но такой клозет требует длительного времени на сооружение и по затратам выходит дороже. Если человек работает на грядках, предпочтительнее сбегать в дворовую уборную, не думая о том, что можно испачкать землей пол в жилище. Поэтому вначале проще и правильнее будет соорудить туалет на улице. На каком же месте участка надо его разместить? Чтобы сделать все правильно, следует учитывать санитарно-гигиенические требования к обустройству уличных клозетов. Особенно это касается отхожих мест с выгребными ямами.
Поскольку самым неприятным в них является запах, уборные обычно принято располагать не в непосредственной близости от стен жилого дома, а на расстоянии 8-10 м от них. Не стоит высаживать рядом с туалетом деревья и кустарники. Дистанция между ними должна быть в несколько метров. Если на даче имеется колодец, то следует соблюдать между ним и отхожим местом расстояние в 50 м. Если загородное жилище не стоит на отшибе, а окружено участками соседей, нужно подумать и об их комфорте. Нельзя строить дворовую уборную прямо перед их домом, даже если участки разделяет забор (удаленность от изгороди должна составлять не менее 1 м). Лучше разместить клозет так, чтобы соседи не чувствовали запаха из него и не видели его прямо перед собой. Нужно провести наблюдения за ветром, установить, в какую сторону он дует чаще всего. И если там нет вблизи никаких построек, можно в этом месте устраивать уборную.

Туалет лучше несколько отнести от дома
Важным обстоятельством является рельеф дачного участка и наличие под землей грунтовых вод. Если загородная территория имеет уклон, то туалет нужно располагать в низине, чтобы источник забора воды был выше его. В таком случае грязные стоки не попадут в чистую воду. Хорошо, когда грунтовые воды протекают на глубине 2,5 м, т. е. достаточно удалены от поверхности земли. Это значит, что можно строить на своем участке уборную с выгребной ямой. А если глубина уровня грунтовых вод составляет менее 2 м, подойдут виды туалетов с емкостями для сбора нечистот. В противном случае почва и вода могут загрязниться вредными продуктами распада.
Основные виды дворовых уборных
Определившись с местом будущего туалета, стоит задуматься над его конструкцией. В настоящее время есть несколько видов уборных, которые подойдут для дачи:
- биотуалет;
- пудр-клозет;
- торфяная уборная;
- химический туалет;
- уборная с выгребной ямой.
Все вышеперечисленные ватерклозеты, кроме последнего, желательно устанавливать на участках с близким расположением к поверхности земли грунтовых вод. Отхожее место с выгребной ямой обустраивают лишь при глубоком протекании грунтовых вод. Что же собой представляют данные туалетные домики?
Самым простым решением для дачи станет биотуалет. Это кабинка, которую можно купить и установить на своем участке, не тратя время на строительство. Внутри кабинки находится двухсекционная емкость для сбора нечистот. Сюда заливают специальные расщепители фекалий. Они перерабатывают их, и устраняют неприятный запах. Спустя 7-8 дней после начала использования биотуалета его нужно будет очистить от нечистот, слив их либо в другие емкости, либо в почву. Уход за этим туалетом простой. Но минусом такой уборной является для некоторых рачительных хозяев ее стоимость.

Пудр-клозет (торфяной биотуалет)
Химический ватерклозет почти не отличается от биотуалета. Разница заключается лишь в антисептиках, заливаемых в резервуар. Химические реагенты, разрушающие нечистоты, вредны для окружающей среды, ими нельзя удобрять почву на участке. Поэтому такие уборные лучше подходят для городов. Их можно увидеть на строительных площадках или массовых праздничных мероприятиях.
Пудр-клозет — туалетная конструкция без выгребной ямы. Ее заменяет любая объемная емкость (бочка, резервуар), устанавливаемая под стульчак. Все нечистоты, поступающие в емкость, сразу же присыпаются опилками, торфом или золой, словно припудриваются сверху для устранения неприятного аромата. Отсюда и название клозета. Когда резервуар заполняется доверху, его опорожняют и используют содержимое в качестве удобрения.
Вариантом пудр-клозета является торфяной туалет. В сливной бачок засыпают сухой торф, который поступает в резервуар под стульчаком и присыпает нечистоты.
Самой привычной всем, но трудоемкой в постройке считается уборная с выгребной ямой. Сверху над ямой устанавливают туалетный домик. Нечистоты после заполнения ямы либо удаляют вручную, либо в помощь вызывают ассенизаторов.
Как соорудить опору домика под уборную?
Любая хозяйственная постройка начинается с чертежа. Хозяину нужно определиться с размерами будущего клозета, прежде чем закупать строительный материал. Распространены следующие размеры дачного туалета:
- высота — 2 м;
- ширина сторон по 1,5 м;
- глубина 1-1,2 м.
Но можно скорректировать их по своему желанию: сделать конструкцию выше, просторнее.
Чтобы уборную не унесло ветром, надо выполнить для нее опору под каркас. Что касается фундамента, то для небольшого строения он не обязателен. Существует несколько способов сооружения опор. В первом случае можно сделать устойчивое основание из кирпича или блоков. Для этого на месте будущего туалета снимают почву на глубину в 30 см, затем землю тщательно утрамбовывают. Площадку по периметру выкладывают блоками или кирпичом. Сверху на опору устанавливают туалетный домик. В будущем его можно будет легко переместить на другое место.

Основание туалета
Во втором случае в качестве опор можно применить асбестовые трубы с брусьями из дерева. Трубы с диаметром не менее 15 см и длиной 100 см будут устойчивыми и надежными. Вначале по периметру основания в каждом из его 4 углов выкапываются углубления в 50-80 см. В них вертикально устанавливаются асбестовые трубы, внутрь которых на 1/3 заливается бетонный раствор. Затем внутрь таких опор вставляются деревянные брусья длиной от 2,3 м и диаметром 5х5 см. Они будут служить вертикальными частями каркаса будущего туалета. Дерево прочно закрепится в бетонном растворе, только нужно при установке следить за ровностью брусьев, чтобы они были строго вертикальными. Задние брусья должны быть короче передних на 10-15 см, так как крыша домика обычно наклонная.
Изготовление каркаса клозета и его обшивка
Установив вертикальные брусья-опоры и скорректировав их высоту, можно выполнять обвязку каркаса. Верхняя стяжка делается на уровне крыши конструкции. Горизонтальные рейки прибивают по периметру всех сторон домика. Спереди и сзади они должны выступать за границы корпуса на 30 см. Так как крыша делается с небольшим козырьком и отводит от уборной дождевую воду, чтобы та не текла прямо на стену. Нижнюю стяжку выполняют на уровне сиденья или стульчака на высоте 35-40 см от пола уборной. Переднюю стенку не трогают, ведь здесь будет дверь. Чтобы корпус был еще прочнее, на его боковые и заднюю стенки набивают диагональные укосины. На переднюю стенку туалета устанавливают еще 2 опоры вертикальных, их высота — 190 см. По их верхней линии прибивают горизонтальную перемычку. В этот каркас будет вставляться дверь.

Вариант исполнения из дерева
Теперь следует обшить конструкцию выбранным материалом: деревом или металлопрофилем. Теплее и уютнее находиться внутри деревянного туалета. Лучше взять для него доски толщиной 1,5-2 см. Вымеряют материал по высоте и прибивают вертикально к каркасу с 3 сторон. Обязательно следить, чтобы доски плотно прилегали одна к другой, и между ними не было щелей. Снизу на задней стенке надо будет из тех же досок сделать небольшую дверцу. Через нее будет доставаться емкость, заполненная нечистотами. Чтобы этот процесс был легким, дверца делается на высоту стульчака и ширину задней стены уборной. Для крепления дверцы используют петли. Крыша туалетного домика может быть либо шиферной, либо из дерева. Чтобы продлить срок службы деревянной крыши, сверху ее покрывают рубероидом.
Обустройство стульчака и двери в уборной
После того как все 3 стены клозета готовы, можно приступить к изготовлению двери и ее креплению к корпусу конструкции. Размеры двери (ширина, высота) должны совпадать с проемом, для нее подготовленным. Доски сбивают вместе. На корпус туалета и полотно двери прикручивают шурупами по 2 петли, и навешивают дверь на стенку. Прикручивают изнутри и снаружи ручку. Еще 1 важным элементом двери является задвижка. Ее прикрепляют к дверце с 2 сторон. Закрывать дверь можно при помощи обычного крючка, стальной защелки или шпингалета, — это уже личный выбор каждого. Чтобы в уборной было светло, над дверью желательно сделать небольшое окошко и застеклить его. Окошко можно вырезать и на боковой стенке туалета.

Вариант обустройства стульчака
Теперь осталось сделать самую нужную часть туалета — стульчак. Как было сказано выше, высота его обычно составляет не более 40 см. Слишком высокий стульчак неудобен, особенно для детей. Каркас стульчака имеет ширину в 50 см. Его, как и стены уборной, обшивают досками и сверху в центре вырезают отверстие для отправления естественных надобностей. Оно не должно быть слишком большим или маленьким. Под готовый стульчак ставится емкость для нечистот объемом в 30-40 л. Остальная часть пола застилается досками. Деревянный туалетный домик нужно покрасить или покрыть лаком. Когда покрытие высохнет, туалет дополняют последними штрихами. На стенку навешивают емкость для опилок или торфа и держатель (кронштейн) для туалетной бумаги, ставят на пол урну. Пудр-клозет готов!
Как сделать выгребную яму?
Некоторые хозяева предпочитают старые добрые туалеты с выгребными ямами. Как правильно обустроить такую уборную? Для начала следует вырыть саму яму глубиной в 150 см. Уклон делается в сторону задней стены будущего клозета. Затем все стенки и дно ямы плотно утрамбовывают слоем глины (20-25 см), можно выложить их кирпичом. Туалетный домик, который строится, как и пудр-клозет, будет располагаться над передней третью ямы. Основание для уборной делают из деревянных брусьев. Над ямой настилают доски (за пределами клозета) и обивают их снизу рубероидом. В настиле прорезают отверстие и навешивают на петлях крышку. Это будет люк. Из ямы вверх параллельно задней стенке туалета надо вывести трубу для вентиляции. Ее нижний край должен опускаться на 20 см ниже уровня туалетного пола, а верхний на 80 см выходить выше крыши клозета. Рядом с трубой над ямой устанавливают деревянный домик и закрепляют трубу на его задней стенке с помощью хомутов. Далее вокруг уличного туалета для дачи заливают бетонную отмостку (шириной в 1 м). Она не допустит попадания в выгребную яму дождевой воды.
Какую уборную соорудить на загородном участке, каждый хозяин решит самостоятельно, но на любой клозет потребуется немного времени и сил. В строительстве дачного туалета своими руками есть плюсы и минусы. Но когда конструкция будет готова, человек будет гордиться, что сделал ее сам.
sadovod.guru
Дачный туалет своими руками пошагово
Туалет – это то, без чего невозможно представить полноценный дачный участок. Самым простым вариантом дачного туалета является система на основе выгребной ямы. При желании подобный туалет можно сделать своими руками. Нужно лишь ознакомиться с предложенным пошаговым руководством и сделать все в соответствии с инструкцией.

Дачный туалет своими руками пошагово
Содержание пошаговой инструкции:
Подготовка к работе
Прежде чем приступать к выполнению каких-либо операций следует собрать материалы и инструменты, необходимые для обустройства индивидуального туалета.

Дачный туалет своими руками
Набор для строительства дачного туалета
- Брус шириной 100 мм и толщиной 50 мм. При отсутствии этого материала можно использовать обрезную доску.
- Влагоизоляционны
й материал. Традиционно применяется рубероид. - Брус длиной 300 см, сечением 50х50 мм.
- Половая доска 3000х100х25 мм.
- Листы хвойной вагонки.
- Гвозди и саморезы.
- Дверь с сопутствующими элементами и фурнитурой.
- Электродрель.
- Молоток.
- Электролобзик или ножовка.
- Лопата.
- Кровельный материал. Обычно используется обыкновенный шифер. При желании можно сделать кровлю на свое усмотрение.
Количество материалов подбирается индивидуально в соответствии с размерами будущей конструкции. После того как все необходимое будет куплено и собрано в одном месте, можете приступать к выбору подходящего места для размещения туалета.
Где построить дачный туалет?
При выборе места для размещения такой деликатной постройки нужно учитывать ряд важных факторов. Прежде всего, решите, будете ли вы делать уборную с выгребом либо же вам больше подойдет другая конструкция. На этом этапе ориентируйтесь на уровень прохождения подземных вод. Если они проходят на глубине ниже 250 см, можете смело делать уборную с выгребной ямой. В случае же прохождения подземных вод выше отметки в 250 см от конструкции с выгребом лучше отказаться.
Уделите внимание и эстетической составляющей возводимого строения. Здесь важно найти золотую середину – туалет, все-таки, является интимным местом, но и строить его в каком-то труднодоступном участке, до которого в случае чего можно и не добежать, тоже не рекомендуется.

Уделите внимание и эстетической составляющей возводимого строения
Если вы не собираетесь превращать обычный туалет в произведение ландшафтного искусства, лучше всего его делать в каком-то укромном уголке, на сравнительно небольшом удалении от дома.
При выборе подходящего места нужно ориентироваться на действующие санитарные нормы. В особенности важное значение они имеют в случае возведения туалета с выгребом. Если созданная вами яма будет негерметичной, отходы жизнедеятельност
Туалет с выгребом должен находиться на расстоянии не менее 12-14 м от жилого дома. «Сухой» же нужник следует строить на отдалении в 4-5 м и более.
Не забывайте и о своих соседях. Минимально допустимое расстояние между туалетом и границей соседнего участка составляет 1,5-2 м. Более близкое расположение вряд ли понравится владельцам соседней дачи.
Важно, чтобы туалет размещался на максимально возможном расстоянии от скважин и колодцев. Оптимальным считается расстояние в 20-30 м.
Дачный туалет с легкостью может стать источником характерных неприятных ароматов, поэтому при подборе места под его установку необходимо обращать внимание и на такой параметр как роза ветров, характерная конкретно для вашей местности. Разумеется, туалет необходимо регулярно чистить.
Не рекомендуется обустраивать выгреб рядом с террасой либо верандой, т.к. летом неприятные запахи будут более интенсивными, что доставит множество неудобств отдыхающим.
Порядок строительства и обустройства туалета

Порядок строительства и обустройства туалета
Первый этап – подготовка ямы. Обычно делается квадратная яма со сторонами в 100 см и глубиной порядка 2 м. Прежде чем приступать к рытью выгреба четко выделите его пределы.

Первый этап – подготовка ямы
Стены и низ конструкции подлежат усилению. Для решения этой проблемы можно использовать бетонные кольца либо кирпич, также применяются бутовый камень, доски и пр. На дно выгреба насыпается щебенка и тщательно утрамбовывается. На щебенке обустраивается кирпичная кладка либо же делается бетонная стяжка.

Стены и низ конструкции подлежат усилению
Второй этап – обустройство выгребной ямы. Внутренние стенки выгреба подлежат обязательной влагоизоляции. Такая обработка предотвратит проникновение отходов из ямы в грунтовые воды. Для гидроизоляции стены достаточно заштукатурить либо проконопатить.
Третий этап – подготовка фундамента для туалетного домика. Традиционно такие домики устанавливаются на основания столбчатого типа. Углы строения должны опираться на кирпичные столбы, укрытые рубероидом в качестве гидроизоляционно
Четвертый этап – подготовка рамной конструкции. Основа домика собирается из деревянных балок. Предварительно их необходимо обработать грунтовкой и покрасить. Подобная обработка предотвратит преждевременное гниение древесины. Соберите раму и установите ее на кирпичное основание. Выставьте на раму 4 стойки. Обязательно убедитесь в вертикальности их размещения. Для получения надежной фиксации используйте болты. Дополнительно укрепите конструкцию при помощи металлических пластин. Установите балки для кровли, а также стойки для монтажа дверей.

Четвертый этап – подготовка рамной конструкции
Крыша должна иметь небольшой уклон. Для его обеспечения сделайте передние стойки немного длиннее задних. Над выгребом обустройте каркас из деревянных брусков под будущее сидение. Кровлю нужно укрыть рубероидом и выбранным финишным материалом. Чаще всего используется шифер.
Пятый этап – обшивка конструкции. Прибейте к каркасу вертикальные бруски или доски под вагонку, сайдинг или другой выбранный вами материал. Доски крепятся на расстоянии в 150 мм друг от друга. Основание для сидения и внутреннюю поверхность стен тоже нужно обшить вагонкой или другим желаемым материалом.

Пятый этап – обшивка конструкции
Шестой этап – установка дверей. Сбейте дверь, закрепите петли в соответствующих местах и навесьте полотно. При желании установите фурнитуру и дополнительные элементы в виде порожка, наличников и т.п.

Шестой этап – установка дверей
Седьмой этап – обустройство освещения дачного туалета. Чтобы уборной было удобно пользоваться в любое время суток, к ней нужно подвести электричество. Светильник выбирайте на свое усмотрение.

Седьмой этап – обустройство освещения дачного туалета
Также над дверью нужно вырезать окошко желаемой формы. Через него помещение будет освещаться в дневное время.
Восьмой этап – обустройство вентиляции. Чтобы дачный туалет не стал источником неприятных запахов, отравляющих жизнь, уделите должное внимание обустройству вентиляционной системы.

Восьмой этап – обустройство вентиляции
Купите пластиковую трубу диаметром 100 мм и закрепите ее на задней стенке домика при помощи хомутов. Один конец такой трубы нужно заглубить в выгреб примерно на 100 мм, а второй вывести наружу. Для этого вам необходимо предварительно подготовить подходящие отверстия в подиум-сидение и крыше. Длину трубы подбирайте такую, чтобы она возвышалась над кровлей примерно на 20 см. Зашпаклюйте места прохождения трубы через перекрытия. На оголовок вентиляции устанавливается специальная насадка-дефлекто
Это традиционный вариант дачного туалета с выгребной ямой. При желании вы можете отдать выбор в пользу другой конструкции, к примеру, люфт-клозета либо же пудр-клозета.
Особенности обустройства люфт-клозета

Особенности обустройства люфт-клозета
Подобная система является своего рода переходным звеном между конструкцией с ямой и полноценным гигиеническим септиком. В основе конструкции лежит герметичная яма. В дальнейшем чистить такой выгреб сможет исключительно специальная ассенизаторская техника. Подумайте, есть ли в вашей местности компании, специализирующие
Если с чисткой будут проблемы, от устройства такого туалета лучше сразу отказаться.
Конструкция работает по предельно простому принципу. Непосредственно туалет обустраивается рядом с домиком. Унитаз размещают внутри помещения, а выгреб – за его пределами.

Как сделать люфт-клозет
Выройте яму глубиной не менее 100 см. Залейте стенки и дно котлована бетонным раствором. После того как раствор на стенках схватится, дополнительно их нужно будет обработать специальной гидроизоляционно
Через стену дома прокладывается канализационная труба, по которой отходы будут уходить из унитаза в септик. Туалет требует организации качественной принудительной вентиляции. Можете купить специальный вентилятор либо же создать естественную вентиляцию, действие которой основывается на разности температур.

Как построить туалет
В завершении останется установить унитаз, соединить его с выгребной ямой, и туалет будет готов к использованию. От обыкновенного городского туалета подобная система отличается лишь тем, что стоки отводятся не в канализацию, а в оборудованный выгреб.
Как сделать пудр-клозет?

Как сделать пудр-клозет
Подобный туалет не требует обустройства выгреба. Вместо него используется специальная емкость, устанавливаемая под стульчаком. При заполнении до определенного уровня емкость попросту достается и очищается.
В помещении туалета следует установить емкость с опилками, сеном либо торфом. Эти материалы нужно будет засыпать в унитаз после каждого похода в туалет, чтобы уменьшить интенсивность неприятных запахов.

Устройство туалета по типу пудр-клозет
Пудр-клозеты предельно просты и удобны в эксплуатации. Для полноценного использования уборной в ней должна быть организована качественная вентиляция.

Туалет для дачи
При желании через 2-3 года можно будет «переехать», обустроив чистую емкость на новом месте и засыпав старый выгреб землей. Четвертый раз «переезжать» можно будет уже на самое первое место. За эти годы отходы полностью перегниют.
Древесина является прекрасным материалом с множеством преимуществ, но она имеет один серьезный недостаток — в течение своей службы материал несколько деформируется и изменяется в размерах. Через какое-то время между досками, использованными для обшивки стен дачного туалета, появятся щели. Для их маскировки можно использовать узкую рейку. Достаточно просто набить такие реечки поверх щелей и проблема будет решена.

Отдельная особенность люфт-клозета – наличие вытяжной вентиляции выгреба, которая не допускает проникновение сторонних запахов в помещение
Таким образом, в самостоятельном обустройстве дачного туалета нет ничего сложного. Можно сделать как элементарную конструкцию на основе выгребной ямы, так и более современный и совершенный по своим характеристикам туалет. Выбор за вами!
Видео – Дачный туалет своими руками пошагово
svoimi-rykami.ru
как сделать дачный туалет правильно, фото и видео примеры
Содержание:1. Выбор месторасположения туалета на даче
2. Выбор типа туалета
3. Туалеты с выгребными ямами
4. Как сделать люфт-клозет
5. Пудр-клозет своими руками
Одной из первых построек на дачном участке является обычный уличный туалет. Можно первое время обойтись без ограды территории и даже без дома, но без обустройства клозета дачная жизнь не может считаться благоустроенной – нельзя же бегать отдыхающим на свежем воздухе каждый раз по нужде в ближайшие заросли. Как правильно сделать туалет на даче, чтобы он не мешал неприятными запахами и прослужил максимально возможный срок? Подобный вопрос интересует многих владельцев дачного участка.

Выбор месторасположения туалета на даче
Не существует каких-то определенных правил, регламентирующих, как сделать дачный туалет, но ряд обязательных требований есть:
- место расположения клозета должно находиться от источника воды не менее чем в 30 метрах, от жилого строения – в 5 метрах, от границ территории – одного метра;
- при наличии на участке высокого уровня подземных вод не желательно обустраивать туалет на даче с выгребной ямой;
- колодец при установке на пересеченной местности должен находиться выше санузла;
- чтобы исключить неприятные запахи, следует при выборе места ознакомиться с розой ветров на участке;
- необходимо обеспечить подъезд специальной техники к выгребной яме.
Выбор типа туалета
Поскольку на строительство клозета отводится немного времени, для дач рекомендуют использовать такие типы туалетов:
- выгребная яма;
- биотуалет;
- пудр-клозет;
- люфт-клозет.
У всех видов дачных туалетов имеются особенности – их необходимо учитывать до начала строительных работ. Часто выбор варианта не зависит от предпочтений хозяев и финансовой составляющей. Например, когда водоносный горизонт располагается выше 3,5 метров, ничего не остается кроме, как построить пудр-клозет. А вот менее высокое залегание слоя воды дает возможность выбрать любой вариант обустройства туалета. Читайте также: «Как построить туалет на даче своими руками: варианты строительства».
Туалеты с выгребными ямами
Данный тип клозетов, изображенный на фото, относится к наиболее простым конструкциям, которые сделать можно быстро. Обычно устройство выгребной ямы выглядит так – это собственно сама выкопанная яма, куда отправляются нечистоты. Их потом удаляют либо вручную, либо задействуют ассенизаторскую машину (прочитайте также: «Устройство дачного туалета — конструкция на примерах»).

Последовательность действий, как сделать дачный туалет с выгребной ямой, выглядит так:
- Выкапывают яму, имеющую глубину 1,5-2 метра и чаще всего квадратную форму. Ее стены укрепляют либо досками, либо бетонными кольцами или кирпичом. При устройстве ямы можно задействовать старую бочку или положить одну на другую автомобильные шины. Дно бетонируют или отсыпают щебнем. Необходимо все щели законопатить до абсолютной водонепроницаемости, чтобы не допустить попадания нечистот в грунтовые воды.
- Далее требуется строительство кабинки для туалета. Чаще всего, принимая решение как сделать туалет на даче своими руками, делают выбор в пользу строительства домика над ямой, для которого потребуется возвести 4 столбика из кирпича для каждого угла кабинки. Сверху их изолируют рубероидом. Поверх столбиков укладывают раму из бруса 100х100 миллиметров, пропитанную грунтовкой и окрашенную составом, предотвращающим гниение.
По углам вертикально монтируют четыре стойки, закрепляя их металлическими пластинами. Также нужно установить стойки для дверей, не забывая про необходимость сделать уклон для крыши. Прямо над ямой строят каркас для сидения. Поверх конструкции помещают балки для крыши, на которые настилают рубероид и шифер. Читайте также: «Уличный туалет своими руками — постройка и обустройство».
С наружной стороны кабинки на каркас прибивают бруски, соблюдая шаг 15 сантиметров, и поверх монтируют финишную обшивку. С внутренней стороны кабинку облагораживают деревянной или пластиковой вагонкой. Для настила на пол используют крепкую доску. В завершение проводят освещение домика.
- Обустройство вентиляции. Наличие выгребной ямы является причиной неприятного запаха. Полностью устранить его невозможно, но можно значительно уменьшить путем использования герметичной крышки для стульчака и создания качественной вентиляции.
Для ее обустройства используют 100-миллиметровую канализационную трубу, закрепив изделие на задней стенке кабинки хомутами. Трубу проводят через отверстие в подиуме в выгребную яму на 10 сантиметров и другим концом выводят над крышей постройки на 20 сантиметров.
Место стыка трубы с ямой нужно изолировать куском пакли с битумной мастикой, а на конец трубы установить дефлектор.
Как сделать люфт-клозет
До того, как сделать туалет на даче своими руками по типу люфт-клозета роют абсолютно герметичную яму, для очистки которой нужно пользоваться услугами ассенизаторской машины. Яму оклеивают гидроизоляцией, которой может служить глиняная обмазка толщиной 50 сантиметров. Читайте также: «Как сделать туалет в частном доме, конструкция и порядок обустройства».
Люфт-клозет имеет две части, одна из которых — унитаз, расположенный в жилом доме. Отличие заключается в приемнике отходов. Другая часть размещается за пределами постройки и имеет вид выгребной ямы. Ее верхнюю часть оборудуют двойным люком для ассенизаторской машины, в пространство между крышками помещают теплоизолятор.

Пудр-клозет своими руками
Преимущество такого устройства туалета заключается в отсутствии выгребной ямы. Емкость для приема нечистот располагают в стульчаке. Это может быть ведро или простой бак. Принцип функционирования отличается простотой. После каждого посещения санузла, отходы присыпают опилками, торфом или землей из рядом стоящего ящика.
Вентиляцию в пудр-клозете обустраивают в обязательном порядке стандартным способом. Это удобный в эксплуатации вид туалета можно легко скомбинировать с разными дачными строениями.
kanalizaciyadoma.com


