Дизайн квартиры в панельном доме
Каждый собственник или же недавно ставший владелец квартиры в панельном доме, непременно будет думать о ремонте. При этом непременно возникнет вопрос: как же обустроить свое жилье что бы было удобно, но смотрелось красиво и дорого.

В панельном доме стены монолитные и сборно-монолитные, поэтому перепланировать стену или ее часть, чтобы связать ее с другой комнатой, очень проблематично. К счастью, в наше время имеются разнообразные материалы отделки, предметы декора жилья:
- люстры, шторы, ковры и.т.д. Они добавят вашему жилищу уют.
Оглавление статьи:
Идеи для декора и дизайна в панельном доме
- Стиль. Панельным квартирам, наиболее подходящим будет дизайн в стиле кантри или же в этническом стиле.
- Убрать весь ненужный хлам и вещи интерьера, которые вы будете менять.
- Прихожая. Вместительная мебель: шкаф — купе, стол для туалета, подставка для обуви подойдет в самый раз.
- Коридор. Вдоль стены можно поставить небольшие тумбы для хранения зонтов, шапок, коробок с обувью.
- Туалет и ванная, если они объединены, то прекрасно будет смотреться угловая ванна, раковина, бельевой шкафчик, полочка под туалетные принадлежности и стиральная машина.

Сан узел гармонично будет смотреться в не темных тонах.

Что бы ванна выглядела просторнее, плитку нужно положить бежевую или светло — коричневую. Зеркала и натяжные потолки также увеличат визуальное пространство.

Застекленную лоджию или балкон, тоже можно использовать с умом. На лоджию можно поставить небольшой стол и стулья. Бросить коврик, завесить окна жалюзи или шторами, поставить цветы и превратить ее в уютное место, где можно посидеть с друзьями или вечером поужинать с семьей. Балкон так же может служить оранжереей или рабочим кабинетом.

Дизайн однокомнатной квартиры в панельном доме

Очень сложно обустроить однушку, так как одна комната служит спальней, рабочим местом и гостиной. Поэтому нужно использовать для интерьера каждый уголок жилища.

обустройство кухни
В однушке панельного дома, кухня небольшая, с вместимостью только лишь самого необходимого: газ.плита, рабочий стол, раковина, обеденный стол и навесной шкаф для посуды.Холодильник приходится перемещать в коридор, но там и без него места мало.

Что бы было уютнее и просторнее на кухне, можно совместить ее с залом. Обеденную зону переместить в гостиную тем самым освободить площадь под холодильник. Используя высоту стен, повесить на них не глубокие, но высокие кухонные шкафы.

Оформление комнаты в панельном доме
В квартире с одной комнатой, очень сложно менять интерьер. Если площадь гостиной дает возможность, то подходящим вариантом будет установка гипсовой перегородки, отделив тем самым, например: детскую комнату от гостиной.

На перегородку можно повесить красивые картины или рамки с семейными фото.На окнах, в таком случае, будут эффектно смотреться ролл шторы и римские модели, тем самый не загромождая недостающее пространство. В детскую комнату подойдет кресло — кровать или диван-малютку, который можно будет сложить в любое время.

Дизайн двух и трех комнатной квартиры в панельных домах
Жилье где более двух комнат перепланировать не сложно. Если в семь двое человек, то одна из комнат выделяется как спальня. Для нее подойдет классический вариант в стиле рококо, ампир. Другая комната прекрасно подойдет под кабинет, гостевую, столовую. Очень гармонично выглядеть в стиле поп-арт, китч. Если есть чадо в семье, то одна из комнат будет детской.

Обустраивать ее желательно по согласованию с ребенком в зависимости от возраста. Для маленького малыша комнату необходимо сделать светлой, добавить пару картин со зверьками, светильник, мягких игрушек.

Для девочки подростка подойдет дизайн в стиле мебби-шик. Этот романтический стиль придаст комнате очарование. Для мальчика того же возраста, лучше всего будет комната с игровой зоной.В стиле авангард, лофт или хай тек.

Придать изыск вашей квартире, так же можно с помощью декора. Поставить цветочки в вазу или повесить вьющиеся декоративные растения на стене, панно, картина с вышивкой ручной работы и.т.д.

На диван набросайте мягких подушек или игрушек. Рядом с диваном положите приятный ногам ковер. Как вы заметили, не так уж все сложно в создании своего дизайна и интерьера в панельном доме. Главное фантазия!

Фото дизайна квартир в панельных домах







































mirdizajna.ru
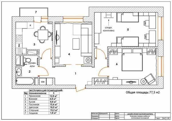
«Вторая жизнь» трешки в типовом панельном доме — INMYROOM
Место
Москва, район Останкинский
Тип дома
панельный дом серии КОПЭ
Метраж
77,5 квадратного метра
Высота потолков
2,7 метра
Питомцы
кошка и собака
Жильцы
семья с двумя маленькими дочерьми
Фото
Денис Комаров
Заказчики обратились к Ирине Кривцовой не в поисках смелых авторских идей, а с просьбой максимально эффективно использовать площадь типовой трешки и создать удобную планировку для проживания с маленькими детьми. Быстрый и качественный – именно такой ремонт они ожидали.
Ванную расширили за счет коридора, также были сделаны ниши-полки. Такие архитектурные формы не уменьшают пространство, зато увеличивают место для хранения различных предметов: от полотенец до шампуней. Существующий проем в гостиной немного расширили, чтобы впустить свет в темную прихожую. При переделке несущие стены не трогали – на согласование перепланировки у клиента просто не было времени. Из-за этого в детской остался небольшой «коридорчик» при входе.

«Без трудностей не обошлось – у квартиры в старом доме оказались свои нюансы, – говорит Ирина. – Для того чтобы кухня была удобной и вместительной, пришлось буквально «вписывать» гарнитур в неудобное пространство, которое было еще к тому же урезано выступающим вентиляционным коробом. Здесь мне помогли строители из компании «Алеф Билд»: стену соседней ванной немного отодвинули вглубь, а также уменьшили на 5 см проем балконной двери, чтобы уместить встроенный холодильник.

Отделка лаконичная: крашеные стены и только в спальне над кроватью акцент из обоев. Основная идея была в том, чтобы противопоставить матовые поверхности стен стеклянным и зеркальным фасадам – Ирина хотела расширить пространство, «сломать» его, впустить в квартиру больше света. Например, отлично «сработали» большие зеркальные полотна в прихожей. На пол положили керамогранит и массивную доску – практично, красиво, надежно.

«Заказчики настаивали на нейтральной цветовой палитре, чтобы атмосферу и настроение интерьера можно было менять с помощью декора и аксессуаров. Для стен гостиной и прихожей я выбрала серо-кофейный оттенок, для спальни и кухни – серебристо-серый. Акценты – в деталях: например, обои в спальне, теплые деревянные фасады мебели, геометрический орнамент на тюле в гостиной. Кстати, этот же рисунок повторяется в художественных полотнах на стене – художник Анна Ермолина написала картины специально для этого проекта. C одной стороны, это именно тот спокойный интерьер, который хотели хозяева, с другой – его нельзя назвать скучным», – делится дизайнер.

«Цена/качество» – именно по этому принципу Ирина подбирала мебель для этой квартиры. Многие предметы нашли в ассортименте недорогих итальянских фабрик, что-то приобрели в интернет-магазине. Ставку сделали на универсальные модели, которые всегда будут актуальны. А вот с декором уже можно было «поиграть»: так в гостиной появились французские вазы винного цвета и красный винтажный светильник, а в спальне – голубые декоративные подушки и серо-бирюзовые вазы, привезенные из Франции.




















Планировка

Обмерный план

План с расстановкой мебели
Бренды, использованные в проекте
Холл
Напольное покрытие: керамогранит, Importa
Мебель: шкаф слева от входной двери, Santalucia
Гостиная
Напольное покрытие: паркетная доска, Karelia
Мебель: Santalucia; диван, Meta
Текстиль: галерея Arben
Декор: куплен во Франции
Спальня
Напольное покрытие: паркетная доска, Karelia
Мебель: кровать, пуф и кресло, Piermaria
Текстиль: галерея Arben
Освещение: торшер Penta, светильник Axo Light
Детская
Напольное покрытие: паркетная доска, Karelia
Мебель: Cia International
Текстиль: галерея Arben
Освещение: SLV, Massive
Кухня
Напольное покрытие: керамогранит, Importa
Мебель: стол, стулья, Friulsedie
Гарнитур: Vismap
Бытовая техника: Bosh
Смесители: Grohe
Освещение: над столом, Penta; остальное, SLV
Ванная комната
Напольное покрытие: Importa
Мебель: тумба с раковиной, Villeroy & Boch
Санфаянс: Laufen; ванна, Roca
Смесители: Hansgrohe
Освещение: SLV
Хотите, чтобы ваш проект был опубликован на InMyRoom? Присылайте фотографии / 3D-визуализации на [email protected]
Создайте интерьер с товарами из магазина InMyRoom:
Купить
Сохранить
30 см44 см30 см
www.inmyroom.ru
Дизайн квартиры в панельном доме (28 фото)
Антон Печёный руководитель студии дизайна
Одинаковость жилищ и похожие, словно две капли воды квартиры, как в «Иронии судьбы», нам уже давно не кажутся такой веселой и привлекательной темой. Но, несмотря на то, что все мы такие разные, нас объединяет одно и то же чувство – ожидание чуда. Мы все ждем, и особенно от новой квартиры, удобства, красоты и, не побоюсь этого громкого слова, уникальности. Но все же решать перепланировку и задумывать даже дизайн однокомнатной квартиры в панельном доме лучше всего с профессионалом. Мы рады будем помочь вам в переделке квартиры, а пока что предлагаем посмотреть уже готовые проекты.
Если вы хотите оживить светлый интерьер, то яркие солнечные цветовые акценты все сразу исправят. 🙂
Классический дизайн гостиной в двухкомнатной квартире панельного дома будет хорошо смотреться, даже если жилая площадь совсем невелика.
Такое весеннее сочетание оттенков создают ощущение света и простора – именно то, что нужно в гостиной!
Яркие стулья на этой кухне – чудо, как хороши!
Как сейчас модно говорит, здесь мы использовали вкусные оттенки. Черничные фасады, например. 🙂
В этом проекте мы отказались от больших шкафов в спальне. Получилось мило и просторно.
У розового цвета много оттенков, и даже он может выглядеть серьезно и презентабельно.
В студии «Печёный» вы точно знаете, что видите дизайн реальных квартир в панельных домах.
Отличный вариант интерьера небольшой спальни. Шкаф-купе хоть и не глубокий, но зато выстроен под самый потолок, а значит, туда может поместиться много полезных и нужных вещей.
Отличная идея – кровать-чердак, а под ним зона отдыха. Здорово экономит место.
Может, крошка-младенец и не запомнит такую красоту… Зато сколько радости для мамы! 🙂
Кстати!
О вашем дизайн-проекте
Дизайнеская скидка — вам!
С нами выгодно! Дизайн-проект полностью окупится за счёт дизайнерских скидок на товары. Почти в каждом магазине у нас есть такая скидка! Мы поделимся ею с вами!
Впишемся в бюджет!
Ещё до начала подбора мебели и отделочных материалов мы определим с вами бюджет. В этот бюджет мы и впишемся. Запредельно дорогие товары исключены!
Планировка без ограничений!
Перепланировка — важнейший этап дизайн-проекта! Мы поработаем над ней до тех пор, пока она вас не устроит. И не важно, сколько будет вариантов: 5, 10, 20… Ограничений нет!
Консультация — бесплатно!
Первый раз делаете ремонт с дизайнером? Мы подробно расскажем, как проходит проектирование, поделимся опытом, поможем определить бюджет и т.д. И все это совершенно бесплатно!
Более 10 лет на рынке!
Это говорит только о том, что мы предлагаем качественный продукт по оптимальной цене, работаем честно и на нас можно положиться!
Гарантия 1 год!
Мы гарантируем качественные чертежи! Если найдется ошибка, мы бесплатно и оперативно устраним их. Гарантия действует в течение года после сдачи дизайн-проекта!
Когда прикладываешь фантазию, то дизайн стандартной квартиры (панельный дом, конечно, не исключение) превращается в оригинальное пространство. Как пример – эта стильная детская.
Пока детки маленькие, им вполне может хватить одного стола на двоих.
Классно, когда можно вместить в санузел и ванную, и душевую!
Двойная раковина – мечта многих семейных пар.
Стоимость дизайн-проекта прямо сейчас!
Общая площадь, м2:
0
Объект:
1-к квартира2-к квартира3-к квартира4-к квартира5-к квартираТаунхаусКоттедж
Ещё подборки интерьеров
Кухня-гостиная
(100+ фото)
Кухня
(50+ фото)
Спальня
(100+ фото)
pechenyi.com
красивые интерьеры внутри стандартной планировки (39 фото)
Когда вы купили или получили квартиру в панельном доме, первым шагом обычно будет её ремонт и обустройство. Изначально возникает множество вопросов, к примеру: «С чего начать работу?», «Какой дизайн выбрать» или «Как сделать квартиру максимально функциональной и уютной?».
Модный дизайн квартиры в панельном домеВ панельном доме существуют некие ограничения. Имеется в виду, что в кирпичном варианте вы можете снести стену или разобрать её часть, чтобы объединить гостиную с кухней. В панельном доме это не всегда возможно, а даже если и есть варианты, их обязательно нужно обусловливать документально, получив разрешение на перестройку в соответствующих органах.
Но не стоит отчаиваться, а лучше рассмотреть более простые варианты, как можно достичь красивого и современного дизайна в квартире, которая находится в панельном доме.
Общие советы по современному дизайну квартиры в панельном доме
Стиль
Конечно, можно выбрать разнообразные стили в интерьере, которые применить в квартирах панельных домов. Но наиболее распространёнными вариантами будут направления минимализма, кантри и этнического стиля.
Интерьер квартиры в стиле минимализмЗдесь главным правилом будет использовать как можно меньше массивной мебели, а изюминка — простота и чувство лёгкости в атмосфере комнаты.
Уборка помещения
Рекомендуется собрать все ненужные вещи, а также те, которыми вы редко пользуетесь, и просто отвезти их на дачу или в гараж. Таким образом, вы отлично сможете разгрузить пространство.
Прихожая в панельном доме
В современных дизайнах прихожей часто используют небольшие компактные пуфики или тумбочки, иногда шкаф-купе или вешалку для хранения верхней одежды. Есть также шкафчик для обуви. Эти предметы мебели достаточно важны, ведь тогда все ваши вещи будут упорядочены и систематизированы, и не будут разбросаны по дому.
Красивая небольшая прихожая в квартиреСанузел в панельной квартире
Обычно в панельных домах санузел не имеет большой квадратуры, поэтому часто жильцам приходит на ум его объединить. Это отличная идея, только предварительно нужно получить разрешение, а также проконсультироваться по всем вопросам с опытными людьми. Если ваш вариант планировки располагает такую возможность – то смело можно затевать ремонт, и получить отличную ванну с туалетом в одном объединённом помещении. Оформить их можно различными способами, учитывая современные тенденции и идеи.
Вариант совмещенного санузлаЦветовое оформление квартир в панельном доме
Здесь тоже много различных нюансов и они будут зависеть лишь от того, какой конечный результат вы желаете достигнуть. Если вы хотите визуально расширить комнату — используй светлые тона красок. Очень часто сейчас делают дизайнерскую акцентную стенку, на которой может висеть картина, стоять кровать или висеть телевизор. На самом деле тут существует множество различных идей, так что можно смело выбирать любую.
Цветовое оформление комнаты
Современный интерьер оформления с помощью ярких акцентовБалкон и лоджия
Если они у вас есть – вы просто счастливчик. И не стоит их загружать всякими ненужными вещами. Балкон в панельном доме можно использовать как дополнительное комнатное помещение, где спокойно может разместиться рабочая зона, или уголок для релаксации.
Контрастный дизайн лоджииСекреты дизайна для расширения пространства
Не всегда все жильцы удовлетворены квадратурой своей квартиры. Но, как говорится, нужно исходить из того, что есть.
На самом деле можно немного постараться и сделать так, что пространство вашей квартиры станет визуально немного больше. Вот несколько идей, как можно этого достичь.
- Цвет. Если сделать торцевые стены немного ярче боковых – получится эффект расширения. Также можно сыграть и на шторах, повесив более яркие варианты, нежели обои. Такие цветовые контрасты отлично играют на общей атмосфере и восприятии помещения.
- Мебель. Конечно, светлая мебель также сыграет свою роль в формировании современного дизайна квартиры. Она не будет загромождать пространство и сделает его легче и просторней. В то же время, если использовать мебель тёмных цветов – можно сыграть на акцентах и выделить ту или иную зоны.
Мебель в светлых тонах интерьераТут важно не только подобрать саму мебель и её цвет, а также сделать правильную расстановку, учитывая некоторые правила и нюансы. Если поместить массивную мебель возле торцевой стены – она не будет смотреться настолько объёмной и разгрузит помещение.
- Зонирование. Один из любимых приёмов в современном дизайне, который позволяет условно поделить пространство на нужные вам зоны, при этом используя самые элементарные приёмы. Зонирование очень важно тем, что позволяет достичь комфортного и удобного раздела помещения.
Всего этого можно добиться, просто используя стеллажи или книжные шкафы, минимальные перегородки в виде барной стойки или живых растений.
Принцип зонирования комнаты - Арка. Этот вариант часто используется в дизайне, особенно может подойти для панельных квартир, где нельзя сносить перегородки. Теперь дверь можно обыграть в виде арки, которая необычно объединит два помещения в одно и предаст некую изюминку вашему интерьеру.
Арка в панельном доме - Декор комнат. Это один из заключительных этапов в оформлении квартиры. Он направлен на то, чтобы достичь максимального комфорта в том помещении, в котором вы находитесь. В современных дизайнах такими дополнительными предметами могут стать ваза с цветами, картина, небольшой коврик и многое другое, что приносит умиротворение и чувство уюта.
Декор комнаты с помощью цветового оформления и картиныСовременный дизайн квартир в панельных домах
Каждое из помещений потребует индивидуального подхода и интерьера. Именно поэтому стоит подойти к вопросу ответственно и детально продумать, что и как вы хотите видеть в каждой из комнат панельной квартиры.
Спальня
В этом помещении одним из центральных вопросов будет решение о правильном выборе и размещении кровати. Здесь есть несколько вариантов, над которыми нужно будет подумать, а именно:
- Покупка раскладной софы. Она будет служить как диваном, так и полноценной двуспальной кроватью, которая сможет сэкономить место в комнате.
Софа в спальне
Практичная кровать-трансформерВ современном дизайне спален часто используют дополнительные аксессуары в виде настенных картин, красивых штор и необычных торшеров.
Кухня
Обычно в панельных домах кухня особо не отличается большой квадратурой и достаточным пространством. Поэтому нашей задачей будет сделать её максимально больше. Если на кухне есть балкон – их можно объединить в одно помещение, при этом сделав на самой кухне рабочую зону, а на балконе поставить обеденный стол. В плане дизайна их можно выделить как отдельные части зонирования, так и скомбинировать в одну полноценную задумку.
Современная кухня в панельном домеДругой вариант – это объединение кухни и гостиной комнаты. Так часто делают, но нужно согласовать с мастерами возможно ли такое для вашей квартиры. Если это не несущая стена и её можно снести – смело объединяйте эти два помещения. Тогда будет не только современно и красиво, но и достаточно практично.
Ванна и туалет
Их можно рассматривать отдельно, либо же тоже объединить в одно пространство. В зависимости от варианта, аналогично оформить в желаемом стиле. Очень часто используют вариант классики, модерна или стиля восточного направления.
Дизайн объединенной ванны и туалетаДетская комната
Здесь особенно нужно будет постараться, ведь это именно та комната, в которой дети проводят почти всё своё свободное время. Она должна быть функциональной, просторной, в меру красочной и яркой.
В плане оформления стен лучше всего пользоваться моющимися обоями, ведь нужно учитывать, что дети постоянно носятся и могут загрязнять их.
Детская комната в пиратском стилеДетскую комнату в современном стиле часто оформляют под тематические дизайны. Это может быть комната пирата, спортивная или в виде космического корабля. Поэтому такие предметы как сундук или чемодан смогут стать отличным аксессуаром не только для дизайна, но и для хранения вещей.
Прихожая
Оформляя эту часть квартиры, стоит помнить, что она является своего рода визиткой вашего дома. В панельных домах основная проблема прихожих – это недостаточно места. Именно поэтому рекомендуется использовать как можно меньше мебели, но при этом, чтобы она была максимально функциональна.
Красивый интерьер прихожейТуда отлично подойдёт небольшой комод или шкафчик для обуви. Вместо громоздкого шкафа можно обойтись небольшой вешалкой, куда есть возможность повесить верхнюю одежду гостей.
Гостиная
Это именно то место, где можно отдохнуть и расслабиться после тяжёлого трудового дня, посмотреть телевизор или посидеть у камина.
Необычное оформления гостиной в панельном домеПроблемное место панельных квартир и гостиной в частности – это её вытянутость. В связи с этим нюансом иногда возникает вопрос, как же правильно её обставить, чтобы можно было комфортно находиться. Отличный вариант выхода из ситуации – это объединить её с кухонной частью.
Понравилась статья? Поделись в соцсетях!decorwind.ru
виды ремонта, 75 фото идей
Новаторские подходы современных дизайнеров буквально творят чудеса, поэтому узкое пространство у входной двери – это не «приговор», а возможность воплощения идей. Конечно, в просторном помещении намного проще делать что-то впечатляющее, если воспользоваться советами специалистов. Небольшая часть узкого коридора, выполняющая функции прихожей, тоже можно достойно оформить. Стильный современный интерьер прихожей в квартире панельного дома – не прихоть. Именно по нему гости судят об уровне жизни хозяев квартиры, их вкусе и достатке.

Строительство панельного дома представляет собой соединение в общую конструкцию прочных панелей из железобетона.

Интерьер прихожей в квартире панельного дома непросто выполнить в соответствии с современными требованиями дизайна.
Оформление в панельном доме малогабаритной прихожей
Быстрое возведение домов, благодаря готовым панельным блокам – преимущество застройки советской и постсоветской эпохи. Их особенность в том, что большая часть этих прочных железобетонных стен – несущие, плюс немного второстепенных перегородок. Некоторые хозяева квартир пытаются их демонтировать, чтобы произвести модернизацию неудобной старой планировки.

Для этого необходимо разрешение городских властей, когда речь идет про дизайн прихожей в квартире в панельном доме с перепланировкой.
Недостаток старых панельных домов – ограниченный метраж, особенно во вспомогательных помещениях. Если не прибегать к радикальной перепланировке, а только использовать методы визуального расширения, то помещение будет смотреться вполне достойно. Конечно, это не прибавит нескольких квадратных метров у входа, как при сносе перегородок.

Узкие стены и низкие потолки не будут визуально «давить» и «сужаться».
Для модернизации пространства узкого коридора и прихожей в панельном доме приемлема реконструкция с разной степенью преображения. Это перепланировка, капитальный или текущий (косметический) ремонт. У каждой разновидности реконструкции есть свои преимущества. Их выбирают по мере необходимости, чтобы частично или полностью обновить пространство у входной двери. Степень модернизации зависит от финансовых возможностей и степени «запущенности» помещения.

Независимо от объема реконструкции, помещение можно преобразить до неузнаваемости.
Косметический ремонт прихожей с малыми затратами
Облицовочные материалы постепенно пачкаются, теряют свою привлекательность и морально устаревают. Когда не нужен капитальный ремонт – все внимание отделочным материалам.

Пути улучшения дизайна коридора связаны с его визуальным восприятием.

Чтобы понять, насколько важно правильно выполнить его отделку, следует определиться с назначением этой части квартиры.
Если по завершении модернизации других комнат на прихожую и коридор не осталось средств, не оставляйте это пространство без обновления. Выполните облицовку недорогими материалами интересной расцветки или с богатой фактурой, имитирующей декоративную штукатурку, дорогой текстиль или природные материалы:
- Древесину;
- Пробку;
- Бамбук;
- Камень.

Прихожая является местом, куда попадают гости, посещая владельцев.
Огромный выбор облицовочных материалов, в сочетании с зеркалами и оригинальным освещением – большие возможности создать особый дизайн маленькой прихожей в квартире в панельном доме. При этом вовсе не предполагается больших затрат на облицовочные материалы. С другой стороны, такая экономия дает возможность позволить себе дорогие декоративные вставки.

Часто, именно по ее состоянию определяют уровень обеспеченности жильцов, их идеи, привычки, вкусы, пристрастия.
Оригинально будут смотреться:
- Элитная напольная плитка, уложенная мозаичным рисунком;
- Чередующиеся деревянные и зеркальные панели;
- Стеклообои под покраску с выразительным рисунком и фактурная штукатурка, покрытая общей интерьерной краской и др.

Прихожая должна выглядеть красивой и стильной, оформленной в соответствии с их возможностями, желаниями, с применением современных отделочных материалов.
Совет. Для дизайна узкого коридора в квартире в панельном доме используйте остатки декора и дорогостоящей облицовки, оставшейся после ремонта других комнат.
Выполняя бюджетный ремонт хрущевской прихожей, например, к приезду дорогих гостей, можно обойтись без больших вложений. Можно оставить прежние полы и потолки, если они приличные, до лучших времен, но обновить то, что требует срочной замены.

Даже если это небольшая прихожая, она должна выполнять свое функциональное назначение.
ТАБЛИЦА
| 1. | Ревизия | Избавляйтесь от старой мебели и всякого хлама, оставьте встроенные шкафы и антресоли, замените их дверцы и фасады. |
| 2. | Стены | Обновите вертикальные поверхности стены (обои, покраска, декоративная штукатурка, зеркальные панели). |
| 3. | Двери | Перекрашивайте или обновляйте межкомнатные и входные дверные полотна, смените фурнитуру. |
| 4. | Осветительные приборы | Смените плафоны, настенные бра или абажур потолочного светильника, добавьте экономные диоды. |
| 5. | Мебель | К встроенным шкафам добавьте вешалку и обувную полку, компактную банкетку или пару пуфиков. |
| 6. | Зеркала | На плоскую поверхность установите большое зеркало (на входную дверь или шкаф) или, поставьте трюмо. |
| 7. | Полы | Постелите линолеум или ламинат, смените плинтус. |
| 8. | Потолок | Бюджетный вариант – покраска, пластиковые панели. |

Желательно разместить на ее скромной территории шкаф, тумбы для одежды, обуви, аксессуаров, зеркало, удобный пуфик.
Модернизация пространства без замены коммуникаций изменит дизайн прихожей в панельном доме, добавит комфорта всей квартире.
Дизайн и фото прихожей после капитального ремонта
Затевая капитальный ремонт, учитывайте степень преображения помещения. Обычно это радикальная модернизация без перепланировки, за исключением расширения или переноса дверных проемов на второстепенной стене (несущие не трогают). Это заметно освежит дизайн узкого коридора в панельной девятиэтажке или 5-этажной хрущевке. Вполне возможно, что для выполнения некоторых работ придется привлекать профильные фирмы, но они гарантируют качество и соблюдение технологий.

С помощью качественных отделочных материалов, правил оформления интерьера можно добиться значительного улучшения функциональности и презентабельности этой комнаты.
Прихожие панельных домов, чаще всего – это длинный коридор или небольшое проходное пространство с несколькими дверными проемами. С замены дверей обычно и начинают, чтобы установить все одинаковые или выполненные в одном стилистическом ключе. Это повлечет большие расходы, зато их не нужно будет менять 10-20 лет.

Необходимо подбирать практичные материалы, которые обладают устойчивостью к частой уборке, мытью с применением специальных веществ.
Совет. Выбирая дверное полотно, обратите внимание на зеркальные и стеклянные вставки, существенно меняющие облик всей прихожей. Если зеркала есть в межкомнатных дверях, тогда можно обойтись без функционального атрибута любой прихожей.
Перед тем как выбирать облицовочные материалы для интерьера прихожей в панельном доме, нужно решить вопрос со скрытыми коммуникациями. Открытые канализационные и водопроводные трубы бесполезно многократно, они портят облик помещения.

Выбирая определенный стиль, следует придерживаться цветовых сочетаний, структуры поверхности изделий, способных создать отделку на высоком эстетическом уровне.
Их лучше поменять на пластиковые во время ремонта кухни санузла, чтобы старые ржавые трубы не прохудились после ремонта, затем скрыть:
Информация по теме
- В нише, специально оформленной в стене;
- За полыми плинтусами;
- За декоративным бортиком.
Рекомендуется также заменить электропроводку и продумать светодизайн всей квартиры и отдельно прихожей, чтобы максимально компенсировать недостаток естественного света. Встроенную подсветку заодно проведите во встроенные шкафы, можно добавить диодную ленту по периметру потолка и вдоль плинтуса по коридору.

При подборе материалов нужно останавливаться на долговечных, экологически чистых образцах, без токсических выделений, с высокими показателями механической, химической прочности, износостойкости.
Не обойтись и без замены покрытия пола. Возможно, понадобится предварительное выравнивание. Современные самовыравнивающиеся смеси устраняют многие дефекты, включая грубо выполненную стяжку своими руками. По идеальной поверхности можно укладывают элитную плитку, паркет, ламинат или делать наливной полимерный пол.

После полной замены облицовки стен продумайте декор.
Вместо низ все внимание может привлекать оригинальной формы мебель или зеркало в необычной рамке. Если решено расширить проход в прихожую или зонировать прихожую с помощью перегородок, решите, из какого материала их лучше выполнить:
- Витражное стекло;
- Гипсокартон;
- Натуральное дерево;
- Композитные материалы.

Это минимум, который преобразит до неузнаваемости прежний интерьер узкого коридора в панельном доме, выполняющего функции прихожей.
Ремонт с перепланировкой в панельном доме
Любители полной трансформации личного пространства нередко затевают ремонт с перепланировкой. Это предполагает:
- Частичный или полный демонтаж стен и перегородок;
- Перераспределение функциональных зон;
- Перенос дверных проемов;
- Объединение площади комнат;
- Расширение одних помещений за счет уменьшения площади других.

Чтобы небольшая прихожая соответствовала требованиям, следует придерживаться правил, которые способны изменить ее функциональность и внешний вид.
Серьезной перестройки не рекомендуется начинать без подключения услуг строительных фирм. Это необходимо, чтобы не рисковать жизнью жильцов панельного дома. Суть перепланировки – перераспределение полезной площади смежных комнат, что заметно преобразит дизайн маленькой прихожей в квартире в панельном доме.
Информация по теме

Замечено, что использование темных цветов при отделке маленькой комнаты, делает ее мрачной, зрительно уменьшает размеры.
Нередко при модернизации хрущевки используются приемы зонирования, что отделить функциональные углы. Это может быть частичная перегородка из гипсокартона или стеклянные дверцы до самого потолка. Помимо стационарных перегородок это может быть раскладная барная стойка между прихожей и столовой, как часто делают в квартире студии.

Светлые оттенки расширяют помещение, а зеркальные или глянцевые поверхности еще больше раздвигают границы, что хорошо заметно на фото.
К излюбленным дизайнерским приемам при реконструкции панельных домов относятся:
- Арки;
- Бортики;
- Ниши;
- Фигурные проемы;
- Сквозные стеллажи;
- Перегородки в виде складной «гармошки».

Эти проёмы могут быть элементами декора, но нередко это еще и полки, сидения и другие функциональные элементы интерьера.
Советы по организации ремонта с перепланировкой.
- Составьте план реконструкции прихожей.
- Возьмите разрешение в БТИ и других надзорных органах городской власти.
- Уточните, какие стены несущие, какие – второстепенные.
- Планируйте ремонт сразу двух смежных помещений, между которым убрали простенок.
- До начала сноса перегородки отключите свет, демонтируйте электропроводку на стене под снос.
- Спланируйте новое освещение.
- Заранее продумайте, каким будет новое покрытие для пола, скорее всего, придется корректировать стяжку и выравнивать поверхность.
- Второстепенная часть перепланировки – выбор отделочных материалов и цветовое решение.

Декорирование стен и потолка влияет на весь дизайн прихожей в квартире в панельном доме. Важно выбрать практичные материалы, на полу предпочтительно покрытие, устойчивое к истиранию, такое как керамогранитная плитка и влагостойкий ламинат.

Мебель стоит покупать в выбранной гамме или отличающуюся на один-два тона от основного цвета, если правилом отделки не стало контрастное сочетание.
Не забудьте о приемах визуального увеличения помещений небольшой площади. В этом помогут хорошо продуманный светодизайн, светлая облицовка, фотообои и зеркала. В приоритете – функциональные предметы и мебель с отменными эстетическими свойствами. В качестве примера смотрите фото дизайна узкого коридора в квартире в панельном доме.

При выборе аксессуаров и декора старайтесь покупать соответствующие по стилистике интерьера.
ВИДЕО: Узкий коридор и прихожая в квартире.
50 вариантов дизайна для прихожей в квартире в панельном доме:
dizainvfoto.ru
Ванная комната в панельном доме (44 фото): ремонт
Бюджетное решение жилищного вопроса – это квартира в панельном доме. И если кухню, коридор или жилую комнату ее владелец всегда старается как-то преобразить, подчеркнуть свою индивидуальность, то ванная комната в панельном доме остается наименее продуманным помещением.
Это происходит потому, что варианты планировки «хрущевок» и «брежневок» ограничивают своих хозяев размерами и комфортом. В конечном итоге жилец больше приспосабливается к своему дому, чем формирует пространство для себя.

Ванная комната в панельном доме
Особенно это сказывается на ванной. По мнению большинства, достаточно недорогой плитки и простой сантехники, чтобы удовлетворить базовые потребности в комнате для гигиены.
Вместе с тем современный рынок стройматериалов позволяет сделать санузел максимально удобным и эффективно спланированным, воплотить любые смелые замыслы по его благоустройству.
Планирование помещения
Вначале следует рассмотреть вопрос о построении раздельного либо совмещенного санузла.
Совмещение санузла всегда выигрывает тем, что увеличивает его полезную площадь, позволяющую более гибко спланировать монтаж сантехники, мебели и освещения.
Также можно сэкономить и на отделочных материалах: сносится подлежащая облицовке плиткой общая стена, а отделка дверного проема, ставшего стеной, выйдет дешевле, чем установка новой двери.
Такой ремонт ванной комнаты в панельном доме удобен для молодых семей или людей в возрасте, проживающих без детей.
Совет!
Если пространство в туалете позволяет установить в нем небольшую раковину со смесителем и псевдобиде, а ванна – стиральную машину, то не стоит объединять комнаты. Исключением является личное пожелание хозяев.
Подбор оборудования для ванной.
Определившись с конфигурацией комнаты, следует организовать ее пространство. Маленькая площадь не позволяет установить одновременно ванну и душевую кабину, шкаф для белья и стиральную машину.
Душевая кабина ли ванная?
Душевая кабина значительно сэкономит место, но лишит возможности полноценного приема ванны, а для семей с маленькими детьми – это очень важно.
А вот угловая ванна среднего размера может сберечь пространство помещения и служить удобным поддоном для душевой кабины.

Угловая ванная в качестве поддона для душа
Совет!
Не заделывайте наглухо нишу под ванной. Оборудуйте ее дверцей для хранения бытовой химии и уборочного инвентаря.
Где ставить стиральную машину?

Вариант установки стиральной машины
Ремонт ванной в панельном доме всегда делается для создания большего комфорта хозяевам квартиры, чем было раньше. Начиная его, стоит по-новому взглянуть на установку крупной бытовой техники.
Существует три варианта монтажа стиральной машины:
- рядом с ванной или душевой кабиной без перегородки от них. Слив из машины организуется непосредственно в сантехнику по специальному отводу или канализацию. Это единственный вариант для стиральных машин с вертикальной загрузкой;
- за перегородкой. Ее установка позволяет создать над стиральной машиной небольшую нишу, возможно с декоративными легкими дверцами.
Это предоставляет дополнительное пространство для сбора белья, хранения банных принадлежностей или косметики; - под раковиной.
Подбор отделочных материалов
На первый взгляд покажется, что ванная в панельном доме не очень требовательна к отделочным материалам.
Однако от их разновидности и качества зависит не только будущий комфорт, но и смысл всей работы.

Натяжной потолок – практично и красиво.
Потолок.
- Побелка – это прошлый век. От нее сразу стоит отказаться.
- Покраска. Метод трудоемкий, требует тщательной подготовки поверхности и затрат на краску для потолка в ванной.
- Пластиковая плитка. Устанавливается легко. При повышенной влажности в местах стыков может проявляться плесень, что испортит покрытие.
- Полихлорвиниловые панели. Позволяют скрыть недостатки потолка, спрятать вентиляцию и установить точечные светильники. Легкий монтаж.
- Реечный потолок – более долговечен и эстетичней предыдущего.
- Навесной потолок в ванной. Устанавливается только специалистами. Имеет все преимущества панельного и реечного потолков. Более надежен во влажном помещении, так как не имеет щелевых стыков.
Стены.
Из множества разновидностей отделки лучше всего обеспечит высокие санитарно-гигиенические условия и достойный внешний вид – кафельная плитка.
Отдельные участки ванной, не подверженные прямому попаданию брызг, могут декорироваться венецианской штукатуркой, влагостойкими обоями, деревом и другими материалами. Но следует принять во внимание, что из-за тесноты помещения в процессе его использования износ таких покрытий усилится.

Зеркала расширяют пространство
Пол.
Как было сказано, наилучшим вариантом будет плиточное покрытие. Однако долговечным и красивым также является и полимерный наливной пол в ванной комнате. Оба варианта позволяют установить систему «теплого пола».
Совет!
Если не используете «теплый пол», то для дополнительного комфорта рекомендуется сделать съемный решетчатый настил из реек дуба или лиственницы.

Деревянный настил – это альтернатива «теплому полу»
Ванные комнаты в панельном доме – это не пережиток прошлого. При правильной организации помещения и качественном учете современных средств эти помещения приобретают новую функциональную форму и неповторимость.
Галерея
eto-vannaya.club
Ремонт трехкомнатной квартиры в панельном доме, фото
На территории нашей страны россияне проживают в панельных домах, которые массово заселялись несколько десятилетий назад. Скорее всего в таких квартирах капитальный ремонт проводился неоднократно. Владельцы помещений желают оформить дизайн интересно, современно, по-новому, чтобы освежить интерьер. Как сделать ремонт трехкомнатной квартиры в панельном доме? Фото готовых помещений и видео помогут выбрать привлекательное оформление по своему вкусу.
Преимущество малогабаритного жилья в том, что небольшое помещение легче и дешевле отремонтировать
Ремонт трехкомнатной квартиры под ключ
Дизайнеры рекомендуют в первую очередь определиться с перечнем планируемых изменений в квартире. Фото, представленные на нашем сайте, помогут выбрать понравившийся дизайн интерьера. Преимущество малогабаритного жилья в том, что небольшое помещение легче и дешевле отремонтировать, чем большие апартаменты. В последнее время минимализм во всем стал очень популярным. Квартиры в панельном доме – это идеальный вариант, чтобы воплотить в жизнь самые невероятные идеи в минималистичном стиле.
Приступая к ремонту, прежде всего нужно освободить квартиру от старой мебели. В панельных домах довольно тесно, и если не избавиться от неактуальных вещей, то на проведение ремонта понадобится вдвое больше времени и сил. Некоторые владельцы малогабаритных помещений решают выполнять ремонт в несколько этапов. Для этого освобождают одну комнату и приступают к ремонту в ней. По окончании всех работ можно начинать ремонт в другой комнате.
Снос всего одной перегородки или кладовки может до неузнаваемости изменить комнату
Хотите что-то изменить в квартире кардинально? Тогда почему бы не сделать перепланировку? Если речь идет об изменениях, которые не касаются несущих конструкций, то перепланировка квартиры в панельном доме – это хорошая идея. На фото можно увидеть различные дизайнерские решения, которые помогли тысячам людей значительно увеличить свободное пространство в малогабаритной квартире. Снос всего одной перегородки или кладовки может до неузнаваемости изменить комнату. Если владельцам сложно определить, какие конструкции можно сносить, а какие нет, нужно проконсультироваться с опытным строителем и обговорить детали.
Владельцы 3-х комнатных панельных квартир иногда решают объединить два помещения в одно. В результате получится просторная гостиная или уютный, удобный коридор. Большая кухня – мечта каждой хозяйки. Возможно, во время капитального ремонта трехкомнатной квартиры в панельном доме стоит расширить пределы кухни? Тогда в ней можно будет красиво оформить несколько зон, например рабочую и для приема гостей. 
Ремонт трехкомнатной квартиры в панельном доме: с чего начать?
Прежде чем приступить к проведению ремонтных работ, стоит решить, каким образом он будет осуществляться. Если запланировано проведение перепланировки и существенные изменения в дизайне квартиры, тогда стоит нанять рабочих-профессионалов, которые выполнят работу быстро и качественно. Капитальный ремонт, проведенный хорошими мастерами, гарантированно порадует владельцев жилья.
Косметический ремонт помещения нередко выполняют своими руками. Это оптимальный вариант для тех, кто желает сэкономить. Во время такого ремонта нет необходимости использовать профессиональный строительный инструмент и оборудование. При подготовке к любым ремонтным работам мастера рекомендуют придерживаться такой последовательности работ:
- Выбрать понравившийся дизайн помещения.
- Найти мастеров и дизайнера для реализации проекта.
- Составить смету и закупить необходимые строительные материалы.
- Обсудить детали с бригадой специалистов.
Владельцы 3-х комнатных панельных квартир иногда решают объединить два помещения в одно
После выбора дизайна помещения остается принять еще одно сложное решение. Необходимо определиться со строительными материалами, которые будут использоваться. В магазинах представлено большое разнообразие отделочных материалов, кафельных плиток, ламината, обоев. Большой выбор цветовых решений и качества часто приводит заказчиков в растерянное состояние. Что поможет сделать правильный выбор? Рекомендуем отказаться от строительных материалов, которые имеют низкое качество. Скорее всего, при изготовлении таких материалов использовались небезопасные для здоровья компоненты. От покупки стоит отказаться, если в состав строительного материала входят:
- свинец, медь, крезол, толуол;
- полиуретан, экструдированный полистирол и пенополистирол;
- поливинилхлорид.
Квартиры в панельном доме – это идеальный вариант, чтобы воплотить в жизнь самые невероятные идеи в минималистичном стиле
Все эти вещества признаны опасными для здоровья. Экологичные материалы из природных компонентов – это то, чему стоит отдать предпочтение. Лучше использовать натуральное дерево, керамическую плитку, ковролин, текстильные или бумажные обои. Перед покупкой стоит внимательно изучить состав, проверить наличие санитарно-эпидемиологического заключения и сертификата качества. Специалисты советуют отказаться от приобретения строительных материалов сомнительного качества.
Ремонт трехкомнатной квартиры: основные этапы работ
Качественный ремонт в квартире возможен только тогда, если специалист придерживается технологии и последовательности проведения всех работ, используя при этом надежные расходные материалы. К основным этапам относятся следующие действия:
- Демонтаж. На этом этапе удаляется старая штукатурка и шпаклевка, старые обои и напольное покрытие, выполняется демонтаж старых оконных рам и дверей. При перепланировке жилья нужно выбить ненужные перестенки.
- Подготовительные работы включают в себя подготовку основания для дальнейшего проведения ремонта. Полы, стены, дверные и оконные проемы подготавливаются по-разному. Однако специалисты легко справятся с этой работой.

- Цементные работы. Заливка стяжки, выравнивание стен и полов, штукатурка – все это обязательные процедуры, которые нужно делать качественно, иначе конечный результат будет неудовлетворительным. На этом этапе нужно получить идеально ровные поверхности, устранить все значительные недостатки.
- Электрика. Замена проводки, установка новых розеток и выключателей – один из самых важных шагов при ремонте в панельном доме.
- Монтаж сантехники. Вся устаревшая сантехника заменяется современной. Многие владельцы устанавливают душевую кабинку и другое оборудование.
Отделочные работы проводятся на заключительном этапе и включают в себя укладку плитки, работы с гипсокартоном, поклейку обоев и проведение множества других, незаметных на первый взгляд работ.
Видео о ремонте трехкомнатной квартиры в панельном доме:
Если вас интересует ремонт трехкомнатной квартиры в панельном доме, фото некоторых вариантов есть в статье. Однако для качественного выполнения этих работ стоит посмотреть видео, ознакомиться с советами профессионалов, а также рекомендациями, некоторые из них представлены в статье. Соблюдая все эти аспекты, удастся сделать ремонт в 3-комнатной квартире недорого, быстро и без особых проблем.
thewalls.ru


Мебель в светлых тонах интерьера
Принцип зонирования комнаты
Арка в панельном доме
Владельцы 3-х комнатных панельных квартир иногда решают объединить два помещения в одно
Квартиры в панельном доме – это идеальный вариант, чтобы воплотить в жизнь самые невероятные идеи в минималистичном стиле