проекты, фото лучших идей и советы специалистов
Ссылка на статью успешно отправлена!
Отправим материал вам на e-mail
Строения с мансардным этажом – практичная и очень привлекательная идея для индивидуального участка. Расходы на обустройство жилого чердака меньше, чем на строительство полноценного этажа, в доме появятся дополнительные квадратные метры. Для дачного участка самый оптимальный вариант – дом с мансардой. Проекты, фото удачных интерьеров и рекомендации опытных строителей – в нашем материале.

Даже небольшая мансарда преобразит фасад дома и сделает его неповторимым
Содержание статьи
Определение мансарды
Под мансардой понимается жилое пространство под крышей. Кровля для обустройства жилого чердака должна иметь двойной скат, такой, чтобы высота чердачного пространства была не менее человеческого роста в самой высокой точке.

Оптимальной считается высота в два метра двадцать сантиметров
Важно! Высокий потолок должен занимать не менее половины площади. Меньшие размеры будут вызывать у человека дискомфортные ощущения.
Наружная стена жилого чердака состоит из двух плоскостей: наклонной и вертикальной. Вертикальная часть строится из основного материала дома, наклонная – состоит из стропил крови и внутренней обшивки.

Соотношение вертикальной и наклонной части зависит от проекта
К сведению! Мансарда в градостроительных нормативах считается жилым этажом.
При строительстве частного дома многие владельцы задумываются над вопросом: отдать предпочтение полноценному этажу или мансарде?
Преимущества и недостатки дачных домов с мансардой: проекты с полным этажом или жилой чердак?
Главным аргументом в пользу мансардного этажа всегда приводится дешевизна его обустройства. Так ли это на самом деле? Снижение расходов обусловлено использованием каркасной конструкции кровли. На практике, чем больше кровля и, соответственно, больше площадь каркаса для обшивки, тем выгоднее мансарда.
Но следует помнить, каким бы просторным не был чердак, он в любом случае занимает меньше полезной площади, чем настоящий этаж. Получается, чтобы сделать мансардное помещение годным для проживания, необходимо предусмотреть такую площадь первого этажа, чтобы она превышала чердачную минимум в два раза.

Ещё один момент, усложняющий задачу: жилой чердак требует обустройства кровли сложной конфигурации и врезки особенных чердачных окон
Чтобы в мансардном помещении создать нормальный микроклимат, необходимо предусмотреть систему вентиляции с принудительной подачей воздуха. Все эти расходы лягут дополнительным бременем при строительстве. И на деле экономия не будет такой уж значительной.
Сторонники мансардного строительства отмечают, что дома с такими «фигурными» крышами выглядят привлекательно. А дизайнеры добавляют, что обустройство жилого чердака имеет множество оригинальных решений.

Одно из таких решений, к примеру, установка больших окон прямо в наклонной части крыши. Если разместить в таком помещении спальню, по ночам можно любоваться звёздным небом не вставая с постели
Рачительные хозяева не любят, когда что-то пропадает зря. В том числе – чердачное пространство. Некоторые превращают его в свалку ненужных вещей. Но на самом деле здесь может разместиться полноценный рабочий кабинет, мастерская, спальня или даже детская комната.
Противники такой рачительности напоминают, что активная эксплуатация пространства под кровлей ухудшает состояние конструкции крыши и значительно усложняет её ремонт.
Точка зрения эксперта
Ярослава Галайко
Ведущий дизайнер и руководитель студии Ecologica Interiors
Задать вопрос«Психологи предупреждают, что низкие потолки мансарды заставляют человека чувствовать себя в замкнутом пространстве, неблагоприятно воздействуя на его психику. Особо впечатлительные натуры даже могут ощущать приступы удушья из-за низких потолков и скошенных стенок. Стоит задуматься об этом факте, планируя детскую комнату на чердаке.»
Сторонники полноценного второго этажа приводят такое сравнение:
| Мансарда | Второй этаж |
|---|---|
| Ограничена в планировке наклонными конструкциями | Имеет полноценные варианты планировки |
| Сложности с обустройством полноценных окон | Отсутствие проблем с организацией естественного освещения |
| Конструкция стенок и потолка мансарды не позволяет беспрепятственно ремонтировать кровлю | Ремонтопригодность крыши и простота конструкции кровли |
| Необходимость в обустройстве сложной кровли | Использование крыши простой формы |
| Потребность в принудительной вентиляции | Использование естественной вентиляции |
| Сильный нагрев помещения в жаркие дни | Сохранение оптимальной температуры благодаря наличию чердачного пространства |
Не смотря на все эти споры и разногласия, проекты дачных домов с мансардой и верандой или гаражом пользуются большой популярностью. Это неудивительно, ведь набирающее огромную популярность каркасное строительство предлагает множество вариантов именно таких строений, с большой полезной площадью и разнообразными планировками. Рассмотрим фото проекты домов с мансардами подробнее.
Статья по теме:
Советы по строительству одноэтажного дома с мансардой: фото оригинальных идей
Обустройством жилого чердака чаще всего озабочены владельцы небольших дачных коттеджей. Прежде чем решиться на такой проект, попросите погостить у своих знакомых, владельцев подобной конструкции. Вдруг вы внезапно почувствуете приступ клаустрофобии или напротив окажетесь под впечатлением от чердачных окон, через которые можно наблюдать облака?

Если сомневаетесь в целесообразности организации жилой комнат в этом месте, подумайте об альтернативных вариантах
Здесь при желании можно разместить гардероб, творческую мастерскую, котельное помещение, тренажёрный зал.
Вот варианты организации чердачного пространства:




Особенным спросом пользуется проект одноэтажного дома с гаражом и мансардой. Такая планировка чрезвычайно удобна. Особенно такой вариант оценят жители северных регионов, которые знают, что такое прогревать машину в морозный день. Когда гараж под одной крышей с домом, даже если в нем нет центрального отопления, температура будет значительно выше, чем на улице. А сам автомобиль будет надёжно защищён от всех капризов погоды.

При строительстве по такому проекту необходимо предусмотреть все меры безопасности: наличие тамбурного помещения и качественной системы вентиляции
Как выглядят проекты домов с мансардой из пеноблоков
Проекты домов с мансардой из пеноблоков, фото которых вам представлены, пользуются большой популярностью у застройщиков индивидуального жилья. Причины такой востребованности в том, что дома из этого материала очень функциональны и выглядят основательно и роскошно. Стоимость возведения такой конструкции ниже, чем расходы на строительство кирпичного дома.

За счёт мансардного этажа полезная площадь дома значительно увеличивается и при этом расходы в целом меньше, чем на возведение полноценного второго этажа из пеноблоков
К сведению! Пеноблочный дом, после возведения первого этажа, уже готов к заселению. Обустроить мансарду можно позже.
Преимущества конструкций из пеноблоков:
- идеальные геометрические формы блоков позволяют создавать прочную и ровную кладку с минимальными швами в несколько миллиметров;
- размеры блоков превосходят размеры кирпича, так что строительство будет вестись ускоренными темпами;
- вспененный бетон отличается высокими показателями энергосбережения и не требует дополнительных утеплителей;
- материал не выделяет токсичные для человеческого организма соединения;
- пенобетон не горюч, не поддерживает развитие плесени и не боится насекомых;
- блоки не деформируются от воздействия влаги или перепада температур;
- материал имеет длительный срок эксплуатации.
Технология строительства конструкций с мансардой имеет некоторые отличительные особенности. Прежде всего, каркас мансарды изготавливается из тщательно просушенной древесины.

Качественный древесный материал не деформируется в процессе эксплуатации
Важно правильно подобрать утеплитель. Для мансард подходят минеральная вата или базальтовые плиты. Эти утеплители хорошо зарекомендовали себя на практике.
Снаружи и внутри кровля обшивается разными материалами. Снаружи укладывается металлочерепица или мягкая кровля. С внутренней стороны каркас обшивается фанерой или плитами OSB.
Точка зрения эксперта
Ярослава Галайко
Ведущий дизайнер и руководитель студии Ecologica Interiors
Задать вопрос«Типовые проекты очень удобны и стоят дешевле индивидуальных. Но в рамках индивидуального проектирования можно предусмотреть многие нюансы: например, обустройство удобных лестниц для пожилых людей и инвалидов или размещение зимнего сада или рабочего кабинета в мансарде.»
В типовых проектах редко закладывается декоративная обработка фасада.

Чем оформить стены решает сам застройщик
Пеноблоки можно просто покрасить, оштукатурить или использовать для отделки фасадные материала: плитку, сайдинг, камень.
Самые лучшие проекты домов с мансардой: фото с чертежами
Хороший проект жилого дома должен учитывать многие факторы:
- климат местности, в которой будет вестись строительство;
- особенности грунта и ландшафта участка;
- сочетание отделки дома с окружающими его строениями и местностью;
- организация максимально комфортных условий проживания для всех членов семьи с учётом их возраста и индивидуальных запросов.
Готовый проект дома с мансардой разрабатывают профессиональные архитекторы с участием специалистов узкого профиля. Важно продумать не только расположение комнат, но и особенности размещения инженерных сетей.
Для дачного участка подходят проекты небольшой площади, 36 – 40 квадратных метров. Этого пространства вполне достаточно для размещения кухни и просторной гостиной на первом этаже и двух компактных спален или рабочего кабинета в мансарде. Дома с площадью свыше 60 квадратных метров вмещают в себя просторную гостиную, спальню и кухню на первом этаже и комнаты на втором.

Пример проекта дома площадью 70 квадратных метров
Для больших домов идеальным было бы строительство террасы, на которую можно выйти с мансардного этажа. Сверху будет открываться великолепный вид на природу.

Здесь можно комфортно отдохнуть и использовать крытую террасу для семейных обедов или дружеских посиделок
Идея! Если дом предусмотрен для круглогодичного проживания, часть крыши можно застеклить и использовать площадь для зимнего сада.
Дачный дом с мансардой: планировка 6х6
Распланировать дом с минимальной площадью не просто. Проект дачного дома 6х6 с мансардой – оптимальный выбор. В этом случае у вас не 36, а как минимум 50 квадратных метров полезной площади.

Пример планировки дома 6х6
Если дача нужна лишь для сезонного посещения, такого пространства вполне достаточно для небольшой семьи. Со временем к дому можно сделать пристройку, если количество членов семьи увеличится. Что следует учитывать в проекте дома с мансардой 6х6:
- максимальное использование каждого сантиметра площади;
- количество людей, одновременно посещающих дом;
- возраст членов семьи;
- периодичность посещения дачного участка.
При планировке дома 6 на 6 с мансардой важно использовать все пространство с максимальной пользой. Традиционно по центру располагают просторную гостиную, имеющую выход в санузел и кухню. Все эти комнаты полностью займут первый этаж. Чтобы не было тесно, подбирают компактную мебель.

Оптимальным выбором станут предметы-трансформеры, легко превращающиеся в спальные места. Если у вас на даче припозднятся гости, разместить их на ночлег будет не сложно
Кухня должна иметь два входа: из комнаты и со двора. Сервировка стола в летней беседке значительно упростится, да и готовить в жаркий день будет легче, настежь открыв выход в сад.
Спальные комнаты в этом варианте размещаются в мансарде. Здесь можно сделать две полноценные спальни для хозяев и детей.
Для санузла достаточно четырёх квадратных метров. Если дача посещается только летом, летний душ можно организовать во дворе. Любители попариться ставят на участке баньку. Если не предусматривать душ или ванную в доме, можно оставить для туалета три квадратных метра. Стиральную машину при этом устанавливают в кухне.
Каркасные дома с мансардой (проекты 6х6) не предусматривают внутренних лестниц. Их размещают снаружи. Этот приём тоже позволяет значительно сэкономить пространство. Для хранения вещей в доме следует предусмотреть компактные антресоли.
Вот примерный план дома с мансардой 6 на 6:

Проект 6х6
Специфика планировки домов 9 на 9 с мансардой: фото удачных решений
Дом общей площадью восемьдесят квадратных метров – популярный проект. Строители отмечают, что этот проект имеет оптимальное соотношение затрат и комфорта проживания. Классическая планировка включает в себя спальню, кухню, гостиную и санузел на первом этаже и ещё две-три комнаты на мансарде. Их можно использовать как дополнительные спальни или организовать в них рабочий кабинет, творческую мастерскую и просторный гардероб.

Пример классической планировки дома 9х9
Ещё один вариант расположения комнат – в планировке дома 8 на 10 с мансардой. Фото пример такой планировки:

Планировка дома 8х10
Что следует знать о планировке дома 10 на 10 с мансардой: фото лучших идей
Сто квадратных метров на первом этаже и ещё семьдесят на втором – в таком доме может постоянно проживать большое семейство. Здесь найдётся место для отдельных комнат детям, спальни родителям, рабочему кабинету, просторной гостиной и кухне. Со стороны дом не выглядит огромным. Проекты дома 10х10 с мансардой из пеноблока производят впечатление компактностью размещения на участке. Но это как раз тот случай, когда внешнее впечатление обманчиво.
Здесь достаточно места не только для размещения санузлов на каждом этаже, но и даже для организации сауны или баньки прямо в доме. Удобная лестница с широким проходом позволит без труда поднять громоздкую мебель.

Подлестничное пространство следует использовать для хранения вещей
В таком доме обычно предусматривают отдельное помещение для котла. Если в доме из пеноблоков есть цокольный этаж, прачечная, приборы отопления, кладовая для хранения инвентаря и домашних закаток размещаются здесь.
Пример планировки:

Планировка дома 10х10
Статья по теме:
Проекты каркасных домов. В статье мы подробно рассмотрим в чем же преимущество данных конструкций, разновидности технологий, средние цены возведения, оригинальные проекты, полезные советы и многое другое.
Примеры оформления интерьеров домов с мансардой внутри: фото
Даже маленькую мансарду можно обставить так, что в ней поместится все самое необходимое. Наклонные плоскости потолков частично скрадывают общую площадь, но можно использовать их для стильного оформления комнаты.

Если выкрасить стропила в контрастные тона – они станут стильной деталью интерьера
Проекты небольших домов с мансардой обычно предполагают размещение на втором этаже спальной комнаты. В дачном варианте логично использовать отделку натуральным деревом.

Чтобы комната не казалась тёмной, ставят светлую мебель и используют светлые аксессуары и текстиль
Если мансарда занимает значительную площадь, задача упрощается. Ниши между стропилами можно использовать в качестве элементов зонирования. В одной – разместить кровать, в другой – рабочий стол у окна или диванчик для отдыха. К вопросу размещения детской комнаты на мансардном этаже стоит подойти особенно внимательно.

Напомним, что скошенные потолки могут вызывать дискомфортные ощущения у ребёнка. Следует максимально компенсировать этот фактор при помощи умелого использования цветов и материалов
Если на мансарде будет располагаться рабочий кабинет, важно продумать освещение.

Максимум естественного света и удобная мебель станут дополнительным стимулом к творчеству
Ещё одна идея планировки дома с мансардой (фото ниже) – размещение гардероба. Здесь можно выстроить компактные и удобные системы хранения.

Гардеробная на чердаке
Дом с мансардой: фото, проекты и главные выводы
Итак, мы подробно рассмотрели все особенности конструкции с мансардным этажом. В чем их преимущества? Мансарду можно обустроить уже после того, как выстроен и заселён первый этаж. Планируя строительство, просто предусмотрите крышу необходимой формы. Это может быть задел на будущее.

Мансардный этаж можно пристроить в любой момент
Использование качественных материалов и проверенного утеплителя – залог успеха. Мансардный этаж минимум в полтора раза увеличит полезную площадь дома. Здесь можно разместить комнаты с разным назначением. Согласитесь, лучше использовать это пространство с пользой, чем превращать его в пыльный чердак!
Загрузка…homemyhome.ru
Дом с мансардой: фото, проекты, особенности планировок
ПОДЕЛИТЕСЬ
В СОЦСЕТЯХ
Среди различных типов жилых сооружений, пригодных для застройки на загородном участке, лидирующие позиции занимает дом с мансардой: фото, проекты и планы такого жилья можно встретить все чаще. Причина популярности этой строительной конструкции кроется в возможности увеличения жилой площади почти в два раза при минимальных затратах на строительство. Рассмотрим наиболее красивые фото-проекты домов с мансардой, их преимущества, недостатки и особенности.

Утепленная мансарда может стать полноценным жилым помещением
Дом с мансардой: фото, проекты, варианты организации пространства
Мансарда – это обычное чердачное помещение, оборудованное и используемое в качестве полноценной одной или нескольких жилых комнат. Традиция эта идет из далекого 17 века, когда бедные семьи вынуждены были жить на чердаках. Но сегодня все изменилось и современные мансарды по своей функциональности и оформлению ничем не уступают стандартному одноэтажному дому.
На чердаке можно организовать спальню с панорамными окнами или домашний спортзал. Просторное светлое помещение отлично подойдет и для создания кабинета, и для большой детской комнаты. Некоторые дизайнеры рекомендуют оборудовать все пространство мансарды под ванную для экономии места на первом этаже. Здесь все зависит только от вашего желания и фантазии.

3D-проект дома с мансардой, небольшой террасой и отдельно стоящим гаражом
Преимущества и недостатки дачных домов с мансардой: проекты популярных планировок
Ряд преимуществ, свойственных домам с мансардой, делает их все более популярными с каждым годом:
- возведение дома с мансардой – одна из самых экономически выгодных строительно-монтажных работ;
- полезная площадь дома увеличивается в два раза, благодаря грамотному использованию чердачного этажа;
- сооружение мансарды не влечет за собой сложностей, связанных с подведением коммуникаций. Как правило, они уже имеются на первом этаже и их достаточно протянуть наверх;

Дом с мансардой, построенный по каркасной технологии
- количество тепла, теряемого через холодный чердак, сокращается в разы. А это серьезная экономия;
- отделку мансардного помещения можно делать постепенно, проживая при этом с комфортом на первом этаже;
- возможных вариантов использования верхнего этажа – великое множество. Там можно организовать мастерскую, бильярдную, гардеробную или любую другую комнату. При этом количество идей для отделки мансарды просто безгранично.

Двухэтажный дом с мансардным помещением и гаражом на два автомобиля
Есть у такого типа домов и недостатки:
- возведение дома с жилым чердачным этажом должно строго соответствовать всем требованиям и нормам. Несоблюдение правил строительства может привести к промерзанию помещения, значительным потерям тепла и конденсации влаги внутри дома;
- мансардные окна – недешевое удовольствие. Из-за специфического профиля, а также некоторых особенностей установки, они могут стоить в 1,5-2 раза дороже обычных;
- в зимний период, обильные осадки могут нарушить естественное освещение верхнего этажа.

Проект кирпичного дома 9,48х8,36 м с мансардой, тремя спальнями и камином на первом этаже
Особенности проектов одноэтажного дома с мансардой: фото лучших вариантов
Для того чтобы мансарда смогла стать вашим излюбленным местом проживания, а не просто холодным чердаком, необходимо учитывать следующие особенности:
- хорошая теплоизоляция – обязательное условие строительства, иначе перепады температуры в верхней части дома не позволят использовать ее постоянно;
- не менее важна и качественная гидроизоляция. Ведь наверняка вам не захочется, чтобы дождевая вода попадала внутрь помещения;

Оригинальная конструкция мансардного окна
- в процессе строительства и оформления мансарды всегда отдавайте предпочтение легким отделочным материалам и мебели. Чрезмерная нагрузка может спровоцировать появление трещин в стенах и фундаменте;
- будет лучше, если пространство мансарды останется цельным. Однако если вы все же хотите разделить его на несколько комнат – используйте гипсокартон. Этот легкий и прочный материал не будет нести слишком большую дополнительную нагрузку на основание дома, но при этом отлично справится с ролью перегородки.

Современный дом с двумя отдельными мансардными помещениями
Готовые проекты домов с мансардой, фото планировок
Сегодня многие строительные фирмы предлагают на выбор каталог готовых проектов домов с мансардой с их последующим строительством и отделкой под ключ. Нанимая подрядчиков, вам необходимо просто выбрать понравившийся проект, и принять работу по завершении.
Для того чтобы самостоятельно спроектировать и построить дом с мансардой, необходимо иметь определенные умения и навыки. Но даже в этом случае не стоит делать все наугад. Есть ряд рекомендаций и норм, соблюдение которых считается обязательным.
Перед строительством еще одного этажа этажа необходимо просчитать дополнительную нагрузку на здание, которая неизбежно возникнет. Если вы решили обустроить чердачное помещение в уже существующем доме, обязательно позаботьтесь о дополнительном укреплении стен.

Интерьер спальной комнаты, обустроенной на мансарде
При расчетах и составлении плана обратите внимание, что минимальная рекомендуемая высота потолка – 2,5 м.
Конструкция крыши – серьезный вопрос в строительстве этого типа домов. В зависимости от площади второго этажа, возможно три варианта обустройства стропильной системы:
- двускатная крыша позволит использовать только 67% существующей площади;
- крыша ломаной конструкции позволяет использовать больше пространства – около 90%;
- ну а если вы хотите увеличить свою жилплощадь ровно в два раза, тогда необходимо поднять крышу как минимум на 1,5 м.

Маленький узкий чердак оборудован в комфортабельную спальню
Подведение коммуникаций на второй этаж – процесс несложный, осуществляется он перед началом отделочных работ, после составления подробного строительного проекта.
Не менее важный момент – планирование расположения окон, лестницы и внутренних перегородок. Обязательно продумайте все заранее и составьте четкий план с указанием размеров.
Небольшой дом с мансардой: планировка 6х6 м
Планировка дома 6 на 6 с мансардой, как правило, подразумевает под собой строительство маленького садового домика. Общая площадь такого сооружения составит около 50 м² и вполне сможет уместить даже маленькую семью.

Проект дома с тремя спальнями в мансардном помещении, 6х6 м
Рассматривая план дома с мансардой 6 на 6 метров, без труда можно заметить немалое количество преимуществ такого жилья. Это и быстрая легкая постройка, и экономия на оплате коммунальных услуг. Одним словом, создавая проект дачного дома 6х6 с мансардой, вы доступным способом решаете жилищную проблему на многие годы.
Статья по теме:
Варианты отделки мансарды своими руками, фото и дизайн
Современные варианты оформления. Как правильно произвести отделку и утепление мансардного помещения различными способами.
К тому же правильная планировка здания 6 на 6 с мансардным этажом поможет вам организовать достаточно функциональное пространство вокруг и чувствовать себя свободно. Вот несколько советов для создания проекта дома с мансардой 6х6 м:
- правильная организация места в прихожей позволит решить проблему с обилием вещей и «разгрузить» дом. Помогут встроенные шкафы и антресоли;
Полезный совет! Используйте подлестничное пространство для обустройства кладовой. Небольшого помещения в 2 м² будет достаточно для хранения сезонных вещей, консервации и различных бытовых мелочей.

Функциональное использование подлестничного пространства
- кухня, объединенная с гостиной, позволит сэкономить немного площади. Здесь же уместно будет организовать лестницу на второй этаж;
- туалет и ванную лучше объединить в общее помещение и установить душевую кабину;
- компенсировать недостаток пространства можно за счет создания перед домом террасы любого размера.
Учитывая все эти нюансы при создании проекта дачного дома 6х6 с мансардой, вы сможете построить уютное, доступное жилье для себя и своей семьи.

Проект дома с мансардой 6,44х6,44 м с двумя спальнями и гардеробной
Также обратите внимание на каркасные дома с мансардой. Проекты 6х6 м и других размеров без труда можно найти в интернете. Возможность самостоятельного и быстрого возведения привлекает все большее количество желающих обзавестись собственным жильем.
Полезный совет! Несмотря на небольшие размеры, можно даже разместить на участке 6х6 дом-баню с мансардой. Обязательно рассмотрите и такой вариант, прежде чем окончательно определиться с планировкой.

Небольшой дом площадью 50 кв.м с террасой и мансардой
Планировка дома 9 на 9 с мансардой
Строительство дома 9х9 м – достаточно распространенное явление. Этот размер признан оптимальным как по строительным затратам, так и по удобству последующего проживания. В классическом варианте планировки, на нижнем этаже располагают кухню, гостиную, санузел и одну спальню. На верхнем этаже по желанию можно расположить либо спальни, либо нежилые комнаты (мастерскую, гардеробную, зимний сад и пр.). Оптимальные размеры дома позволяют с комфортом разместить в нем семью из четырех человек, и при этом не создавать чрезмерных расходов на его содержание.
По сути, проекты таких жилищ очень схожи с планировкой дома 8 на 10 с мансардой. Фото показывают, что отличаются они только формой, которая может быть квадратной или прямоугольной.

Проект дома с мансардой 9х9 м с камином и тремя спальнями
Планировка дома 10 на 10 с мансардой: фото-примеры современных идей
Одна из самых популярных для проживания семьи планировок – дом с мансардой 10 на 10 м. Если у вас больше двоих детей – меньшей площадью жилья просто не обойтись. Несмотря на визуальную компактность, такой дом имеет достаточно внутреннего пространства для размещения большого количества людей.
Размеры дома 10х10 м позволяют получить просторные спальные комнаты, отдельные для каждого члена семьи. Их, как правило, располагают на втором этаже. Здесь же оборудуют хозяйскую ванную комнату.

Просторный дом площадью 140 кв. м с мансардой и гаражом
Первый этаж позволит обустроить просторный зал, или объединенную кухню-гостиную, отдельную столовую или каминную комнату, санузел и гостевую спальню. Лестница в этом случае может располагаться в прихожей, под ней так же уместно организовать, например, выдвижные ящики для хранения вещей.
Рассмотрев предложенные в сети проекты дома 10х10 с мансардой из пеноблока, вы убедитесь, что это еще и финансово доступный вариант для решения жилищного вопроса.

Проект дома 10х10 м с мансардой, тремя спальнями и балконом
Однако строительство дома таких масштабов имеет свои особенности:
- обязательно наличие минимум двух санузлов – по одному на каждом этаже;
- желательно выделить отдельное помещение для котельной, рядом с кухней. Это значительно упростит создание и дальнейшее обслуживание отопительной системы дома;
- поскольку дом будет иметь квадратную форму, хорошо продумайте расположение спален, чтобы максимально рационально использовать имеющееся пространство;
- заранее озаботьтесь вопросом шумоизоляции, иначе в дальнейшем не сможете ни минуты побыть в тишине.

Дом с общей крышей для первого и мансардного этажей
Утепление чердачного помещения
Очевиден тот факт, что для комфортного использования мансарды для проживания, без дополнительной внутренней теплоизоляции никак не обойтись. Монтаж утеплителей под крышей имеет свои сложности и особенности, которые нельзя не учитывать:
- На мансардном этаже, помимо самой поверхности кровли, имеется еще два фронтона и ендова. Если качественно не утеплить и их тоже, то всю вашу работу можно считать бесполезной.
- Выбор пароизоляционных материалов требует особого внимания, так как кровля, предназначенная для защиты помещения от влаги, практически не позволяет образующимся испарения выходить наружу.
- Все материалы, используемые для теплоизоляции мансарды, должны быть предназначены именно для обустройства жилых помещений и отвечать всем экологическим нормам и стандартам.

Дополнительно отапливать чердачное помещение можно с помощью дровяной печи
Полезный совет! Если вы не уверены в своей компетентности, лучше доверить процесс утепления мансарды специалистам. Любые ошибки, допущенные в процессе работы, могут дорого вам обойтись.
Интерьер дома с мансардой: фото внутри помещений
Даже простые проекты и планировки дома с мансардой (фото отлично это демонстрируют) могут сделать ваш дом уникальным. Оригинальные архитектурные решения могут стать изюминкой вашего дома. Поэтому стоит позаботиться не только об экстерьере, но и о внутренней отделке помещений.

На просторной мансарде обустроена полноценная мини-квартира
Если говорить о модных веяниях, то наибольшей популярностью в оформлении домов с мансардой пользуется стиль кантри, шале и эклектика. При этом конструкционные элементы, например, балки перекрытий, остаются на виду. Мебель изготавливается из дерева, уместны резные детали. На окнах текстиль отсутствует, на диванах размещаются вязаные подушки и пледы, а на полу гармонично смотрятся ковры из шкур животных.
Нередко можно встретить и достаточно романтичное оформление чердака в стиле прованс: розовые тона, светлая мягкая мебель, обилие мелких тематических деталей. В этом случае архитектурные выступы, ниши и пр. зашиваются гипсокартоном, стены и потолки отделываются с помощью краски или обоев. Приветствуется текстиль на окнах и балдахинах кроватей, обязательно наличие полок с сувенирами, статуэтками, букетиками засушенных цветов.

Лофт — «родной» стиль чердачных помещений
Расположение мебели в мансарде полностью зависит от ваших требований и предпочтений, но не стоит забывать, что проекты небольших домов с мансардой имеют определенные особенности планировки, которые в дальнейшем повлияют на расстановку предметов мебели:
- если крыша двускатная, то соответственно расположить шкаф у любой из двух наклонных стен не получится. Учитывайте это еще на этапе планирования;
- обязательный элемент дома с мансардой – лестница, ведущая на второй этаж. Тщательно продумайте её расположение таким образом, чтобы она занимала как можно меньше полезной площади, но при этом была максимально удобной и безопасной;
- хорошо продумайте естественное и искусственное освещение верхнего этажа. Мансардные окна дороже обычных, однако они того стоят. Хорошее освещение – один из основополагающих моментов правильного дизайнерского решения.

Интерьер мансарды выполнен в стиле кантри
Проекты домов с мансардой из пеноблоков
Особую популярность в последние годы получило строительство из пенобетона. И, само собой, стало появляться множество проектов домов с мансардой из пеноблоков (фото уже готовых конструкций вы можете найти в интернете). И не удивительно, ведь стоимость такого жилья значительно ниже за счет дешевизны материала. Так, вполне приличный по размеру дом из пеноблока обойдется практически во столько же, сколько и дом из бруса 6х6 с мансардой (проекты и цены вы можете посмотреть на интернет-сайтах производителей).
Полезный совет! Для владельцев автомобилей существует множество проектов одноэтажных домов с мансардой и гаражом. Присмотритесь, возможно, это именно то, что вам нужно.

Дом с мансардным помещением из пеноблоков
Подводя итог, можно сказать, что свою популярность дома с мансардой получили весьма заслуженно. Доступность, большой выбор разнообразных планировок, экономичность содержания и простота строительства – все это делает такой вид жилья очень удобным. К тому же существует возможность получить в два раза больше жилого пространства, потратив средства, равные строительству обычного одноэтажного дома. Поэтому, если вы ищете для себя вариант недорогого и комфортного дома – обязательно рассмотрите идею сделать мансарду на втором этаже.
ОЦЕНИТЕМАТЕРИАЛ Загрузка… ПОДЕЛИТЕСЬ
В СОЦСЕТЯХ
СМОТРИТЕ ТАКЖЕ
REMOO В ВАШЕЙ ПОЧТЕremoo.ru
Проекты домов с мансардой: планировка, дизайн и фото
Любой жилой дом нуждается в проектировании, а особенно тщательно разрабатываются чертежи для домов с мансардами. Такие конструкции различны и обладают особенностями, учитывающимися при планировании строительства.
Чертежи и фотографии проектов одноэтажных домов с мансардой
Дом с мансардой — популярный вариант жилого строения, так как объёмная крыша позволяет создать комфортный дополнительный этаж без больших затрат на строительство полноценной стены, а затем и кровли. При этом обязательно предусматривают хорошую теплоизоляцию верхнего этажа, а также гидрозащиту мансарды. Это позволяет создать оптимальные условия для проживания и организовать комфортную планировку.

На стадии проектирования разрабатывается и внешний вид здания
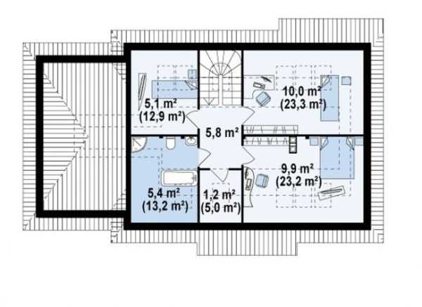
Проекты зданий с мансардой 8 на 10
Жилой одноэтажный дом 8 на 10 позволяет использовать больше конструктивных решений, чем двухэтажные сооружения. При этом отсутствуют существенные затраты на строительство, а здание получается максимально красивым, комфортабельным и долговечным. Для достижения этих целей можно использовать готовые типовые проекты, которые включают в себя подробные чертежи зданий с планировкой, внешним дизайном и другими особенностями.
Основные этапы создания проекта дома 8 на 10 выражены в следующем:
- определение площади, этажности, высоты будущего строения;
- анализ грунта и поверхности участка с целью выбора оптимального вида фундамента;
- разработка внешнего вида сооружения;
- создание проекта и чертежей в профессиональной программе;
- оценка результата, корректирование, подбор строительных материалов.
Существует множество вариантов проектов, но одним из самых универсальных является представленный ниже проект, предполагающий практичность верхнего этажа. Мансарда обустраивается максимально тщательно, образуя полноценное жилое пространство со всеми удобствами. Это позволяет увеличить полезную площадь здания 8 на 10 м.
При проектировании дизайну здания уделяется особое внимание
На чертеже этого варианта присутствует удобная планировка первого этажа с указанием функциональных зон. Параметры помещений можно скорректировать при необходимости, создавая уникальный вариант жилого здания.

На чертеже указывают площадь помещений
Проект мансарды включает в себя спальню, санузел и две жилые комнаты. Таким образом, наличие мансарды позволяет сэкономить на строительстве полноценного этажа, но при этом создать уютное и функциональное пространство.

На просторной мансарде легко обустроить несколько жилых комнат
Другой проект может предполагать наличие на первом этаже просторной столовой, выполняющей функцию гостиной. На верхнем этаже мансардного типа будут размещены полноценные жилые помещения. Несколько выходов на территорию участка сделают проживание комфортным.

В загородном доме предусмотрено несколько выходов на участок
На схеме первого этажа указаны параметры всех помещений, главным из которых является столовая-гостиная. При необходимости это пространство можно разделить на две функциональные зоны, скорректировав проект.

На первом этаже присутствуют два выхода наружу
Мансарда позволяет максимально функционально использовать каждый квадратный метр площади. Поэтому на плане присутствуют три комнаты, холл, практичное лестничное пространство.

Мансарда функциональна и не требует больших затрат на возведение
Любой готовый проект жилого дома 8 на 10 м можно скорректировать в зависимости от личных предпочтений или под готовое основание дома. При этом важно изменить и расчёт нагрузки на несущие конструкции, учесть расположение коммуникаций.
Дома с мансардой 9 на 9
Сооружение дома с мансардой 9 на 9 м позволяет экономить площадь участка застройки, но при этом максимально тщательно обустраивается подкровельное пространство, то есть мансарда. При строительстве учитывают форму крыши, толщину теплоизоляционного слоя и обязательно используют гидро- и пароизоляционные плёнки. Благодаря этому атмосфера мансардного этажа будет комфортной в любое время года.
При проектировании дома 9 на 9 следует учитывать такие особенности, как:
- площадь первого этажа позволяет разместить важные помещения (кухня, санузел и др.) и сделать их просторными;
- фундамент для здания подбирается в зависимости от типа грунта, например, ленточный подходит для твёрдой почвы;
- для дома 9 на 9 требуется тщательная гидро- и теплоизоляция фундамента, грамотное расположение системы отопления.
Одним из примечательных готовых проектов дома 9 на 9 является вариант, в котором присутствуют эркер и мансардное окно. Здание комфортно для постоянного или временного проживания в любое время года.

Дизайн может быть изменён без влияния на внутреннюю планировку
На схеме первого этажа указана возможная планировка с мебелью, но точное расположение предметов определяется индивидуально. Готовый проект даёт возможность организовать пространство в индивидуальном порядке, учитывая особенности образа жизни, личные предпочтения и другие факторы.

Схему легко скорректировать самостоятельно, но не внося кардинальных изменений без профессиональных знаний в архитектуре
План второго этажа включает в себя большую спальню и две дополнительные комнаты. Назначение помещений может быть изменено, а расположение является довольно удобным.

Дополнительные комнаты могут выполнять любые функции
Готовый проект дома 9 на 9, выполненного из газобетонных блоков, предполагает точный расчёт всех параметров. Например, в следующем проекте здание имеет площадь 73 м2 и высоту дома 8 м. При этом угол наклона кровли составляет 18°, а на схеме указаны 3 жилые комнаты. Кровля покрыта металлочерепицей. Фундамент в виде монолитной ленты обеспечивает надёжность здания.

Наружная отделка может быть различной
Схема первого этажа включает в себя гостиную, кухню, санузел, просторную прихожую. Такая планировка отличается комфортабельностью, удобством и функциональностью.

Назначение помещений может определяться индивидуально
В зоне мансарды располагается просторный лестничный узел, несколько комнат. Тщательное утепление кровли позволяет обеспечить комфорт на мансардном этаже.

Объёмная крыша позволяет сделать оптимальную высоту стен
Проектирование зданий 9 на 10 с мансардой
Строительство здания 9 на 10 с мансардой может осуществляться из разных материалов. Обустройство мансарды позволяет сделать возведение максимально экономичным, но жилой дом будет уютным и долговечным. Увеличить функциональное пространство можно с помощью балкона. На первом этаже дома 9 на 10 легко расположить летнюю веранду. Общая площадь строения такого размера позволяет организовать просторные зоны, в которых каждый уголок выполняет определённую функцию.
Дом с балконом на верхнем этаже — один из наиболее уютных вариантов строений с мансардой. Внешний вид здания отличается современным стилем, а строительство осуществляется из качественного кирпича, пеноблоков и других подобных вариантов.
Современный вид здания является одним из преимуществ этого проекта
Особенность этого проекта жилого дома заключается в том, что часть фасада оказывается как бы отодвинута и наверху располагается балкон мансарды. При этом на первом этаже находятся санузел, гостиная, холл и другие функциональные помещения. Таким образом, сочетаются практичность и современный стиль здания.

На первом этаже расположены основные помещения
В помещении мансарды оборудуются жилые комнаты и санузел, возможно обустройство кабинета или другого функционального пространства. Если подведение коммуникаций к санузлу второго этажа вызывает определённые трудности, то это помещение может выполнять любую другую функцию.

Расположение мебели определяется индивидуально
Проектирование зданий 8х10, 9х9 и 9х10 м имеет общие черты. Например, комнаты мансардного этажа часто служат жилым пространством. В готовый проект всегда можно внести индивидуальные изменения, учитывая особенности конструкций.
Проектирование домов с гаражом и мансардой
Строительство и планировка домов с мансардой может включать в себя и такое необходимое помещение, как гараж. Это пространство представляет собой пристройку или выделенную часть здания, в которой располагается транспортное средство. Для комфортной эксплуатации гаража при проектировании разрабатывается схема подвода коммуникаций, отопления, освещения. Внешний дизайн здания с гаражом может иметь один общий стиль или же небольшое визуальное разделение этих строений, например, цветной облицовкой стен.
Особенности проектирования дома с гаражом и мансардой заключаются в следующем:
- стена, разделяющая дом и гараж, должна иметь слой звукоизоляции, а также следует предусмотреть во всех помещениях противопожарную защиту или сигнализацию;
- площадь гаража должна быть достаточной для свободной эксплуатации помещения;
- если мансарда располагается над домом и гаражом, то важно создать надёжную систему перекрытий, теплоизоляции и гидрозащиты.
Универсальным решением является проект одноэтажного дома с мансардой и одноместным гаражом. При этом кровля технического и жилого пространства единая, а мансарда располагается только над жилым пространством.

Единая кровля позволяет создать гармоничный дизайн
Чертёж планировки включает в себя две схемы. На проекте первого этажа подробно указано расположение гаража, выходов из дома, крыльца, веранды и других функциональных зон. Если готовый проект корректируется самостоятельно, то следует избегать кардинальных изменений, ведь в таком случае потребуется профессиональный расчёт параметров конструкции.

Общая кровля над гаражом и домом не требует больших затрат на строительство
Благодаря большому периметру дома на мансарде можно обустроить несколько жилых комнат, санузел. Если же параметры дома меньше, то уменьшается и полезная площадь, обустраиваются только необходимые зоны.

Помещения мансарды являются полноценными и функциональными
Видео: пример проекта дома с мансардой и гаражом
Особенности двухэтажного дома с мансардой
При строительстве двухэтажного здания можно организовать уютное помещение и в области мансарды. Эта зона может быть утеплённой и эксплуатируемой круглогодично. И также востребован вариант только летнего использования чердачного пространства. В первом случае требуется тщательное утепление и гидроизоляция кровли, а во втором обустраивают основные паро- и гидроизоляционные слои крыши под кровельным материалом. В любом случае двухэтажный дом, дополненный функциональной мансардой, является комфортным зданием с большим количеством полезной площади.

Фасад может быть оформлен любым образом в соответствии с выбранным стилем дизайна
Проектирование двухэтажного строения с жилым чердачным помещением требует более тщательного расчёта, чем разработка проекта одноэтажного здания. Обусловлено это тем, что в случае с двухэтажным домом нагрузка на фундамент больше, чем в другом варианте. Поэтому для покрытия кровли, обустройства мансарды используют лёгкие, прочные и качественные материалы, а монтаж и планировка выполняются согласно чертежу.

На первом этаже часто размещают основные помещения, облегчая планировку второго и мансардного этажей
Размеры помещений в готовых проектах могут быть изменены без кардинального влияния на несущие конструкции. Таким образом, можно создать комфортный жилой дом с учётом индивидуальных пожеланий и обеспечить надёжность помещений второго этажа.

На втором этаже часто размещают комнаты отдыха
Двухэтажный дом с мансардой возможно построить на узком участке. Наличие двух этажей и функционального чердачного помещения обеспечивает практичность и удобство здания.
Видео: этапы возведения дома с мансардой
Проектирование многощипцовых мансардных крыш
Многощипцовая кровля является популярной при строительстве зданий с мансардой. Такая крыша имеет несколько углов-скатов и отличается сложной конструкцией стропильной системы. На таких углах часто оборудуют окна мансард, что является практичным и удобным решением.

Многощипцовая кровля имеет сложну систему стропил, но обладает внешней оригинальностью
Сложная многощипцовая кровля подходит для зданий, которые строятся из кирпича, пеноблоков, ракушечника или газобетона. Конструкция может быть симметричной или асимметричной. В первом случае угловые элементы расположены равномерно, а во втором рёбра могут находиться на разных уровнях. Для кровли любого типа требуется прочный мауэрлат, расчёт несущей способности и тщательный выбор материалов для строительства.
Видео: проектирование трёхщипцовой крыши
Фотогалерея: варианты мансардных крыш
Готовые проекты домов с мансардой позволяют узнать особенности разработки таких функциональных строений. Жилые помещения всегда проектируются индивидуально и в зависимости от региона проживания, климатических условий, площади участка и других факторов. Внимательно рассмотрев все варианты, можно создать надёжный и уютный дом с мансардой.
Оцените статью:(1 голос, среднее: 5 из 5)
Поделитесь с друзьями!roofs.club
Дом с мансардой: фото, проекты, особенности планировок
Содержание статьи
Среди различных типов жилых сооружений, пригодных для застройки на загородном участке, лидирующие позиции занимает дом с мансардой: фото, проекты и планы такого жилья можно встретить все чаще. Причина популярности этой строительной конструкции кроется в возможности увеличения жилой площади почти в два раза при минимальных затратах на строительство. Рассмотрим наиболее красивые фото-проекты домов с мансардой, их преимущества, недостатки и особенности.

Утепленная мансарда может стать полноценным жилым помещением
Дом с мансардой: фото, проекты, варианты организации пространства
Мансарда – это обычное чердачное помещение, оборудованное и используемое в качестве полноценной одной или нескольких жилых комнат. Традиция эта идет из далекого 17 века, когда бедные семьи вынуждены были жить на чердаках. Но сегодня все изменилось и современные мансарды по своей функциональности и оформлению ничем не уступают стандартному одноэтажному дому.
На чердаке можно организовать спальню с панорамными окнами или домашний спортзал. Просторное светлое помещение отлично подойдет и для создания кабинета, и для большой детской комнаты. Некоторые дизайнеры рекомендуют оборудовать все пространство мансарды под ванную для экономии места на первом этаже. Здесь все зависит только от вашего желания и фантазии.

3D-проект дома с мансардой, небольшой террасой и отдельно стоящим гаражом
Преимущества и недостатки дачных домов с мансардой: проекты популярных планировок
Ряд преимуществ, свойственных домам с мансардой, делает их все более популярными с каждым годом:
- возведение дома с мансардой – одна из самых экономически выгодных строительно-монтажных работ;
- полезная площадь дома увеличивается в два раза, благодаря грамотному использованию чердачного этажа;
- сооружение мансарды не влечет за собой сложностей, связанных с подведением коммуникаций. Как правило, они уже имеются на первом этаже и их достаточно протянуть наверх;

Дом с мансардой, построенный по каркасной технологии
- количество тепла, теряемого через холодный чердак, сокращается в разы. А это серьезная экономия;
- отделку мансардного помещения можно делать постепенно, проживая при этом с комфортом на первом этаже;
- возможных вариантов использования верхнего этажа – великое множество. Там можно организовать мастерскую, бильярдную, гардеробную или любую другую комнату. При этом количество идей для отделки мансарды просто безгранично.

Двухэтажный дом с мансардным помещением и гаражом на два автомобиля
Есть у такого типа домов и недостатки:
- возведение дома с жилым чердачным этажом должно строго соответствовать всем требованиям и нормам. Несоблюдение правил строительства может привести к промерзанию помещения, значительным потерям тепла и конденсации влаги внутри дома;
- мансардные окна – недешевое удовольствие. Из-за специфического профиля, а также некоторых особенностей установки, они могут стоить в 1,5-2 раза дороже обычных;
- в зимний период, обильные осадки могут нарушить естественное освещение верхнего этажа.

Проект кирпичного дома 9,48х8,36 м с мансардой, тремя спальнями и камином на первом этаже
Особенности проектов одноэтажного дома с мансардой: фото лучших вариантов
Для того чтобы мансарда смогла стать вашим излюбленным местом проживания, а не просто холодным чердаком, необходимо учитывать следующие особенности:
- хорошая теплоизоляция – обязательное условие строительства, иначе перепады температуры в верхней части дома не позволят использовать ее постоянно;
- не менее важна и качественная гидроизоляция. Ведь наверняка вам не захочется, чтобы дождевая вода попадала внутрь помещения;

Оригинальная конструкция мансардного окна
- в процессе строительства и оформления мансарды всегда отдавайте предпочтение легким отделочным материалам и мебели. Чрезмерная нагрузка может спровоцировать появление трещин в стенах и фундаменте;
- будет лучше, если пространство мансарды останется цельным. Однако если вы все же хотите разделить его на несколько комнат – используйте гипсокартон. Этот легкий и прочный материал не будет нести слишком большую дополнительную нагрузку на основание дома, но при этом отлично справится с ролью перегородки.

Современный дом с двумя отдельными мансардными помещениями
Готовые проекты домов с мансардой, фото планировок
Сегодня многие строительные фирмы предлагают на выбор каталог готовых проектов домов с мансардой с их последующим строительством и отделкой под ключ. Нанимая подрядчиков, вам необходимо просто выбрать понравившийся проект, и принять работу по завершении.
Для того чтобы самостоятельно спроектировать и построить дом с мансардой, необходимо иметь определенные умения и навыки. Но даже в этом случае не стоит делать все наугад. Есть ряд рекомендаций и норм, соблюдение которых считается обязательным.
Перед строительством еще одного этажа этажа необходимо просчитать дополнительную нагрузку на здание, которая неизбежно возникнет. Если вы решили обустроить чердачное помещение в уже существующем доме, обязательно позаботьтесь о дополнительном укреплении стен.

Интерьер спальной комнаты, обустроенной на мансарде
При расчетах и составлении плана обратите внимание, что минимальная рекомендуемая высота потолка – 2,5 м.
Конструкция крыши – серьезный вопрос в строительстве этого типа домов. В зависимости от площади второго этажа, возможно три варианта обустройства стропильной системы:
- двускатная крыша позволит использовать только 67% существующей площади;
- крыша ломаной конструкции позволяет использовать больше пространства – около 90%;
- ну а если вы хотите увеличить свою жилплощадь ровно в два раза, тогда необходимо поднять крышу как минимум на 1,5 м.

Маленький узкий чердак оборудован в комфортабельную спальню
Подведение коммуникаций на второй этаж – процесс несложный, осуществляется он перед началом отделочных работ, после составления подробного строительного проекта.
Не менее важный момент – планирование расположения окон, лестницы и внутренних перегородок. Обязательно продумайте все заранее и составьте четкий план с указанием размеров.
Небольшой дом с мансардой: планировка 6х6 м
Планировка дома 6 на 6 с мансардой, как правило, подразумевает под собой строительство маленького садового домика. Общая площадь такого сооружения составит около 50 м? и вполне сможет уместить даже маленькую семью.

Проект дома с тремя спальнями в мансардном помещении, 6х6 м
Рассматривая план дома с мансардой 6 на 6 метров, без труда можно заметить немалое количество преимуществ такого жилья. Это и быстрая легкая постройка, и экономия на оплате коммунальных услуг. Одним словом, создавая проект дачного дома 6х6 с мансардой, вы доступным способом решаете жилищную проблему на многие годы.
К тому же правильная планировка здания 6 на 6 с мансардным этажом поможет вам организовать достаточно функциональное пространство вокруг и чувствовать себя свободно. Вот несколько советов для создания проекта дома с мансардой 6х6 м:
- правильная организация места в прихожей позволит решить проблему с обилием вещей и «разгрузить» дом. Помогут встроенные шкафы и антресоли;

Функциональное использование подлестничного пространства
- кухня, объединенная с гостиной, позволит сэкономить немного площади. Здесь же уместно будет организовать лестницу на второй этаж;
- туалет и ванную лучше объединить в общее помещение и установить душевую кабину;
- компенсировать недостаток пространства можно за счет создания перед домом террасы любого размера.
Учитывая все эти нюансы при создании проекта дачного дома 6х6 с мансардой, вы сможете построить уютное, доступное жилье для себя и своей семьи.

Проект дома с мансардой 6,44х6,44 м с двумя спальнями и гардеробной
Также обратите внимание на каркасные дома с мансардой. Проекты 6х6 м и других размеров без труда можно найти в интернете. Возможность самостоятельного и быстрого возведения привлекает все большее количество желающих обзавестись собственным жильем.

Небольшой дом площадью 50 кв.м с террасой и мансардой
Планировка дома 9 на 9 с мансардой
Строительство дома 9х9 м – достаточно распространенное явление. Этот размер признан оптимальным как по строительным затратам, так и по удобству последующего проживания. В классическом варианте планировки, на нижнем этаже располагают кухню, гостиную, санузел и одну спальню. На верхнем этаже по желанию можно расположить либо спальни, либо нежилые комнаты (мастерскую, гардеробную, зимний сад и пр.). Оптимальные размеры дома позволяют с комфортом разместить в нем семью из четырех человек, и при этом не создавать чрезмерных расходов на его содержание.
По сути, проекты таких жилищ очень схожи с планировкой дома 8 на 10 с мансардой. Фото показывают, что отличаются они только формой, которая может быть квадратной или прямоугольной.

Проект дома с мансардой 9х9 м с камином и тремя спальнями
Планировка дома 10 на 10 с мансардой: фото-примеры современных идей
Одна из самых популярных для проживания семьи планировок – дом с мансардой 10 на 10 м. Если у вас больше двоих детей – меньшей площадью жилья просто не обойтись. Несмотря на визуальную компактность, такой дом имеет достаточно внутреннего пространства для размещения большого количества людей.
Размеры дома 10х10 м позволяют получить просторные спальные комнаты, отдельные для каждого члена семьи. Их, как правило, располагают на втором этаже. Здесь же оборудуют хозяйскую ванную комнату.

Просторный дом площадью 140 кв. м с мансардой и гаражом
Первый этаж позволит обустроить просторный зал, или объединенную кухню-гостиную, отдельную столовую или каминную комнату, санузел и гостевую спальню. Лестница в этом случае может располагаться в прихожей, под ней так же уместно организовать, например, выдвижные ящики для хранения вещей.
Рассмотрев предложенные в сети проекты дома 10х10 с мансардой из пеноблока, вы убедитесь, что это еще и финансово доступный вариант для решения жилищного вопроса.

Проект дома 10х10 м с мансардой, тремя спальнями и балконом
Однако строительство дома таких масштабов имеет свои особенности:
- обязательно наличие минимум двух санузлов – по одному на каждом этаже;
- желательно выделить отдельное помещение для котельной, рядом с кухней. Это значительно упростит создание и дальнейшее обслуживание отопительной системы дома;
- поскольку дом будет иметь квадратную форму, хорошо продумайте расположение спален, чтобы максимально рационально использовать имеющееся пространство;
- заранее озаботьтесь вопросом шумоизоляции, иначе в дальнейшем не сможете ни минуты побыть в тишине.

Дом с общей крышей для первого и мансардного этажей
Утепление чердачного помещения
Очевиден тот факт, что для комфортного использования мансарды для проживания, без дополнительной внутренней теплоизоляции никак не обойтись. Монтаж утеплителей под крышей имеет свои сложности и особенности, которые нельзя не учитывать:

Дополнительно отапливать чердачное помещение можно с помощью дровяной печи
Интерьер дома с мансардой: фото внутри помещений
Даже простые проекты и планировки дома с мансардой (фото отлично это демонстрируют) могут сделать ваш дом уникальным. Оригинальные архитектурные решения могут стать изюминкой вашего дома. Поэтому стоит позаботиться не только об экстерьере, но и о внутренней отделке помещений.

На просторной мансарде обустроена полноценная мини-квартира
Если говорить о модных веяниях, то наибольшей популярностью в оформлении домов с мансардой пользуется стиль кантри, шале и эклектика. При этом конструкционные элементы, например, балки перекрытий, остаются на виду. Мебель изготавливается из дерева, уместны резные детали. На окнах текстиль отсутствует, на диванах размещаются вязаные подушки и пледы, а на полу гармонично смотрятся ковры из шкур животных.
Нередко можно встретить и достаточно романтичное оформление чердака в стиле прованс: розовые тона, светлая мягкая мебель, обилие мелких тематических деталей. В этом случае архитектурные выступы, ниши и пр. зашиваются гипсокартоном, стены и потолки отделываются с помощью краски или обоев. Приветствуется текстиль на окнах и балдахинах кроватей, обязательно наличие полок с сувенирами, статуэтками, букетиками засушенных цветов.

Лофт — «родной» стиль чердачных помещений
Расположение мебели в мансарде полностью зависит от ваших требований и предпочтений, но не стоит забывать, что проекты небольших домов с мансардой имеют определенные особенности планировки, которые в дальнейшем повлияют на расстановку предметов мебели:
- если крыша двускатная, то соответственно расположить шкаф у любой из двух наклонных стен не получится. Учитывайте это еще на этапе планирования;
- обязательный элемент дома с мансардой – лестница, ведущая на второй этаж. Тщательно продумайте её расположение таким образом, чтобы она занимала как можно меньше полезной площади, но при этом была максимально удобной и безопасной;
- хорошо продумайте естественное и искусственное освещение верхнего этажа. Мансардные окна дороже обычных, однако они того стоят. Хорошее освещение – один из основополагающих моментов правильного дизайнерского решения.

Интерьер мансарды выполнен в стиле кантри
Проекты домов с мансардой из пеноблоков
Особую популярность в последние годы получило строительство из пенобетона. И, само собой, стало появляться множество проектов домов с мансардой из пеноблоков (фото уже готовых конструкций вы можете найти в интернете). И не удивительно, ведь стоимость такого жилья значительно ниже за счет дешевизны материала. Так, вполне приличный по размеру дом из пеноблока обойдется практически во столько же, сколько и дом из бруса 6х6 с мансардой (проекты и цены вы можете посмотреть на интернет-сайтах производителей).

Дом с мансардным помещением из пеноблоков
Подводя итог, можно сказать, что свою популярность дома с мансардой получили весьма заслуженно. Доступность, большой выбор разнообразных планировок, экономичность содержания и простота строительства – все это делает такой вид жилья очень удобным. К тому же существует возможность получить в два раза больше жилого пространства, потратив средства, равные строительству обычного одноэтажного дома. Поэтому, если вы ищете для себя вариант недорогого и комфортного дома – обязательно рассмотрите идею сделать мансарду на втором этаже.
ibuildrussia.ru
готовые и типовые. Каталог содержит планировки, планы и чертежи
Красивые проекты мансардных домов: фото, каталогПроекты мансардных домов нашего каталога можно возводить из пенобетона, газоблоков, кирпича, керамических блоков. Проект мансардного дома перед приобретением мы рекомендуем адаптировать к вашему участку и климатической зоне — это будет гарантировать долговечность и высокое качество постройки!
Планы проектов мансардных домов: преимущества
Планы мансардных домов остаются актуальными и в 2017 году благодаря их рациональности. Если решать, какой купить проект дома, выбирая между одноэтажным, мансардным и двухэтажным домом — дом с мансардой самый хороший и оптимальный вариант. Его преимущества заключаются в том, что:
- Планировка мансардных домов делает их теплее одноэтажных и двухэтажных: вы не будете зимой греть чердак впустую.
- Его строительство под ключ обойдется дешевле, чем одноэтажного и двухэтажного жилого дома той же площади (при прочих равных условиях). Поскольку, на одном и том же фундаменте, под одной и той же кровлей дом с мансардой будет иметь большую площадь, чем одноэтажный. Для его строительства потребуется меньше материалов, чем для двухэтажного коттеджа, что существенно уменьшит смету расходов.
- Протяженность коммуникаций в доме с мансардой будет меньше, чем в одноэтажном.
- На участке он будет занимать меньше места, чем одноэтажный дом.
Планировка проектов мансардных домов: особенности
Для того чтобы частный дом с мансардой был комфортным и удобным нужно внимательно отнестись к его особенностям.
Так, например, изменяя угол наклона кровли, высоту аттиковой стены, используя фальшстены внутри мансарды, правильно выбрав мебель и дизайн мансардных домов, можно сделать ее еще более уютной, превратить из несуразного угловатого помещения в уютное, оригинальное гнездышко. Для этого лучше обратиться за помощью к опытным архитекторам и дизайнерам. Наши специалисты проектного отдела за отдельную стоимость при необходимости смогут внести в выбранный план дома с мансардой все указанные изменения.
В большей части наши типовые проекты домов с мансардой предусматривают высоту аттиковой стены 1 м – 1,2 м, что является вполне оптимальным, удобным вариантом. Для того, чтобы мансардный этаж не был «душным» в нем должна быть правильно спроектирована вентиляционная система. Необходимо помнить, что мансардные окна дают больше света, чем люкарны. Хотя люкарны лучшим образом подчеркивают уютный характер мансардного этажа.
Обязательно нужно помнить, что далеко не каждый частный одноэтажный дом можно превратить в мансардный. Для этого в проекте такого дома должны быть изначально учтены многие параметры перекрытия, стропильных конструкций, кровельного пирога, другие, рассчитанные на будущий мансардный этаж.
Проекты домов из пеноблоков, которые можно смотреть в каталоге, могут реализовываться и из керамоблоков, газобетона, других каменных материалов.
При приобретении индивидуальных и типовых архитектурных проектов мансардных домов в нашей компании по среднерыночным ценам, клиенты получают подробную проектную документацию, которая включает 5 разделов: конструктивный, архитектурный и три инженерных (водоснабжение, электроснабжение, вентиляция и отопление). Обращаем ваше внимание на та, что стоимость инженерного раздела составляет 20% от цены, указанной на сайте. Ниже можно посмотреть пример проекта мансардного дома.

Предлагаем вам посмотреть видео-подборку популярных мансардных проектов:
z500proekty.ru
Дом с мансардой: проекты, фото
Дом с мансардой: проекты, фото: планировка дома 8 на 8 с мансардой станет отличным решением для тех, кто стремится построить недорогой и в то же время комфортный вариант жилья. Вначале может показаться, что площади 8×8 м будет недостаточно, но это лишь на первый взгляд. Такое пространство позволяет обустроить просторную гостиную для приема гостей и родственников или сразу несколько спален небольшого размера. Все зависит от того, насколько удачно составлена планировка дома.
Удачная планировка позволяет разместить все нужные помещения на ограниченном размерами участке
Планировка дома с мансардой: преимущества и недостатки
Проекты небольших домов с мансардой, фото которых можно повстречать в большом количестве на страницах журналов и в интернете, рассматриваются многими застройщиками как воплощение идеальной загородной жизни. На самом деле, так оно и есть, поскольку компактные коттеджи предоставляют широкие возможности в вопросах выбора дизайна, планировок и отделочных материалов.

3D модель кирпичного дома с мансардой
к содержанию ↑Особенности планировок домов с мансардой
Коттеджи с мансардным этажом обладают своей специфичностью, которую нельзя не учитывать в процессе проектирования и строительства здания. В силу конструкционных особенностей верхняя часть постройки подвергается влиянию температурных перепадов. Поэтому обустройство качественной теплоизоляции является важнейшим этапом строительства, без которого невозможно создать оптимальные условия для проживания.
Погодные условия также оказывают негативное воздействие на здание. Чтобы защитить помещения от сырости и лишней влаги рекомендуется выполнять укладку гидроизоляционных материалов.
Проекты крыш домов с мансардой обязательно должны учитывать характеристики этого помещения. Для отделочных и кровельных работ стоит выбирать легкие материалы. То же самое касается внутренней меблировки мансардного этажа. По причине большой перегрузки фундаментной части и стен здания нередко возникают трещины. Чтобы этого избежать рекомендуется максимально облегчить вес помещений, размещенных на мансарде.
При составлении проекта мансарды следует выбирать перегородки из гипсокартона и легкие материалы для отделки
Полезный совет! Чаще всего на фото планировок мансарды в частном доме можно увидеть, что данная зона оформляется единым пространством. Однако это далеко не единственный вариант распределения внутренней площади. При желании разбить мансарду на несколько помещений с применением перегородок используйте гипсокартон. Этот вид материала характеризуется облегченным весом и простой системой монтажа.
Немаловажная роль на мансардном этаже отведена оконным конструкциям. Несмотря на то что работы по установке окон на наклонной плоскости сопровождаются высокими затратами, данный прием вполне себя оправдывает.
к содержанию ↑Планы домов с мансардой и их преимущества
В последнее время популярность проектов домов с цокольным этажом и мансардой возрастает. Застройщики все чаще обращают внимание на подобные коттеджи, благодаря большому количеству преимуществ, которыми они располагают.

План одноэтажного дома с мансардой
Достоинства построек с мансардой:
- строительные и монтажные работы позволяют добиться существенной экономии;
- при условии рационального использования чердачного пространства можно увеличить полезную площадь здания почти вдвое;
- мансарда не вызывает сложностей с прокладкой коммуникационных систем, так как все необходимые элементы можно подвести с первого этажа;
- уменьшаются потери тепла через кровлю;
- в процессе строительства мансардного этажа жильцы могут не покидать здание, поскольку первый этаж остается пригодным для проживания;
- на этаже можно организовать нежилые помещения. На фото планов домов с мансардой можно увидеть мастерские, спортивные залы, бильярдные и другие типы комнат;
- широкие возможности дизайна интерьера позволяют проявить творчество и фантазию в процессе отделки и обустройства мансарды.
Планировка первого этажа и мансарды
к содержанию ↑Недостатки проектов каркасных домов с мансардой
Помимо выгодных преимуществ, коттеджи с мансардой имеют и недостатки:
- строительство коттеджей с мансардным этажом требует полного соблюдения технологии. Любые отступления от правил и ошибки с выбором материалов могут стать причиной серьезных последствий, а именно: увеличения тепловых потерь, промерзания помещений, формирования конденсата на стенах и внутри них;
- мансардные окна обходятся значительно дороже, чем обычные. На стоимость окон оказывает влияние не только размер и сложность строения конструкций, но и специфичность монтажных работ;
Обратите внимание! В сравнении с обычной конструкцией стоимость мансардного окна почти в 2 раза больше.

Мансардное окно — красивая, но затратная конструкция
- естественное освещение мансарды – очень важный аспект комфорта. Но он может быть нарушен, если за окнами стоит заснеженная зима. Природное освещение препятствует размножению микробов и благотворно сказывается на зрении, поэтому очень важно обеспечить беспрепятственный доступ солнечного света в помещение.
Фото проектов крыш частных домов с мансардой и особенности планирования
Чтобы получить надежный и красивый дом, необходимо разработать оптимальный план одноэтажного дома с мансардой. При этом нужно учесть все особенности данного строительства и произвести соответствующие расчеты:
- мансардный этаж считается пристройкой к основному зданию, которая обладает существенным весом. Поэтому нельзя выполнять произвольное строительство без усиления первого этажа, ведь это может спровоцировать появление трещин и разрушение фасадной части дома. Если предполагается строительство мансарды на готовые стены, то их следует укрепить;

При проектировании мансарды следует также подумать о кровле и утеплении крыши
- высота потолков мансардного этажа имеет ограничения. Минимально допустимый показатель составляет 2,5 м;
- на фото проектов крыши дома с мансардой могут иметь различную конструкцию, но это не связано с одним только дизайном. В процессе проектирования очень важно подобрать правильный тип кровли. Крыша с двумя скатами способна добавить только 67% полезной площади к той, что уже сформирована основанием дома. Ломаный тип конструкции увеличивает этот показатель до 90%. Чтобы достичь увеличения пространства на 100% достаточно приподнять стропильную систему мансардной крыши на 150 см;
- стоит заранее предусмотреть узловые моменты, связывающие коммуникационные системы первого этажа с мансардой;
- заранее спланируйте размещение лестничных конструкций, окон, дверей и внутренних перегородок.

Планировка мансардного этажа в частном доме
Полезный совет! Используйте готовые проекты и фото лестниц на мансарду в частном доме в качестве основы для расчетов и вдохновения. Поскольку лестница занимает значительную площадь, рекомендуется продумать каждую деталь и подобрать подходящий тип конструкции. Изделие должно быть компактным, но при этом нельзя забывать о надежности, функциональности и безопасности.
- при строительстве коттеджа необходимо придерживаться всех требований пожарной безопасности. Особенно это касается зданий из древесины. Обязательно рассчитайте план эвакуации с мансардного этажа и создайте все условия для того, чтобы этот план был эффективным.
Крыша дома с мансардой: фото, разновидности конструкций
Существует несколько видов крыш частных домов с мансардой, фото которых наверняка привлекали ваше внимание. От типа выбранной для строительства крыши зависит конечная стоимость проекта, а также количество полезной площади на мансардном этаже.

Виды крыш, рис. 1: 1 — односкатная; 2 — двускатная; 3 — вальмовая; 4 — полувальмовая
На фото одноэтажных домов с мансардой можно увидеть следующие виды крыш:
- односкатную – стены здания имеют различную высоту, поэтому плоскость крыши крепится к несущим конструкциям под наклоном. Данный вариант кровли считается самым простым и не нуждается в больших затратах;
- вальмовую или полувальмовую – крыша состоит из 4 скатов, благодаря чему владельцы коттеджа могут максимально эффективно использовать площадь мансарды под свои нужды;
- двускатную – кровля сформирована из двух скатов, расходящихся по разным сторонам друг от друга;
- ломаную – чаще всего такую крышу можно увидеть на фото кирпичных домов с мансардой. Данная кровля имеет два ската, поскольку именно этот тип конструкции считается самым удачным вариантом для небольших коттеджей;

Виды крыш, рис. 2: 5 — ломаная; 6 — купольная; 7 — конусная; 8 — шатровая
Обратите внимание! Строительство ломаной крыши сопровождается дополнительными затратами, так как увеличивается расход материала. Несмотря на сложность монтажа, данный тип кровли очень популярен, поскольку позволяет сформировать большую площадь внутреннего помещения мансарды.
- купольную, конусную, пирамидальную – эти разновидности крыш достаточно сложны и обходятся очень дорого. Они применяются при строительстве коттеджей со сложным конструкционным строением.
Фото крыш домов с мансардой и типы пространств
Пространство мансардного этажа бывает нескольких типов. Это зависит от разновидности кровли, обустраиваемой согласно проекту дома 8×8 с мансардой из пеноблоков, кирпичей или других материалов.
Одноуровневый тип мансардного помещения
Типы мансардных пространств:
- одноуровневые – совмещаются с двускатными и ломаными видами крыш, а также могут дополняться выносными консолями;
- двухуровневые – являются результатом применения опор различного типа.
Работая с проектами небольших домов с мансардой и гаражом очень важно выполнить правильный расчет нагрузок. Причем не только для процесса строительства, но и для дальнейшей эксплуатации.
С одной стороны, план одноэтажного дома с мансардой и гаражом должен учитывать весовые нагрузки, которые возникают в процессе перемещения авто над фундаментной частью здания. С другой стороны, наличие мансардного этажа требует дополнительного усиления стен, так как на них ложится основная нагрузка.

Интерьер двухуровневого мансардного пространства
к содержанию ↑Особенности разработки планов домов 8 на 8 с мансардой
Дома из кирпича с мансардой, фото которых можно повстречать в сети не так популярны, как коттеджи из пеноблоков или древесины. Эта тенденция обуславливается высокой стоимостью материала и более низкой скоростью возведения.
Пеноблоки сегодня очень популярны, поскольку они обладают оптимальными размерами и небольшим весом. Все это стало возможным благодаря инновационной технологии изготовления материала путем смешивания пены и наполнителя под воздействием высокого давления. После этого осуществляется заливка полученной смеси в специальные формы.
Обратите внимание! Уникальность технологии состоит в том, что в процессе застывания внутри блоков формируются мельчайшие пузырьки воздуха. Благодаря этому пеноблоки получаются пористыми. В результате облегчается не только процесс монтажа, но и транспортировка материалов на строительную площадку.
План дома 8 на 8 со спальней на втором этаже
Если планируется разработка одноэтажного проекта, имеющего пристроенный гараж, стоит помнить, что подобное решение обязательно скажется на фасаде дома, фото домов с мансардой наглядным образом отражают это. В таком случае не удастся обойтись без значительного уклона крыши, чтобы иметь возможность перекрыть пристроенный гараж.
Для того чтобы как-то уравновесить конструкцию и добавить небольшую часть утраченной высоты можно опустить основание гаража ниже, чем пролегает соседствующий с ним первый этаж.
к содержанию ↑Фото дачных домов с мансардой и верандой, особенности проектов
Помещение веранды может пристраиваться к дому отдельно. Для этой зоны предусматривается собственная фундаментная часть. Одним из самых модных и популярных решений на сегодня является полное остекление веранды. Дополнив это помещение зеленью, можно создать отличную зону для отдыха. Если вы хотите повысить декоративные свойства веранды, стоит остеклить и ее купол.
Одноэтажный дачный дом с верандой и мансардой
Полностью открытый тип помещения обычно устанавливается в летних домиках. Данное пространство может быть использовано в качестве прихожей, под которую выделяется небольшой отрезок площади.
Дом с габаритными размерами 8×8 м, имеющий и веранду, и мансарду, в перспективе создает немалое количество дополнительной полезной площади. Обычного коттеджа для проживания семьи, состоящей из двоих взрослых и двоих детей, было бы недостаточно. Благодаря мансарде на верхнем этаже появляется возможность разместить 4 спальни, а веранда может рассматриваться как уютная зона отдыха.
Полезный совет! Строительство одноэтажного коттеджа с мансардой обходится значительно дешевле, чем возведение двухэтажной постройки с аналогичной площадью. Воспользуйтесь этим преимуществом.

План деревянного дома с верандой и мансардным этажом
к содержанию ↑Дизайн мансарды: фотогалерея интерьеров в частном доме
При создании дизайна мансарды в частном доме, особенно если речь идет о коттедже из древесины, стоит учитывать то, как именно будет использоваться данное пространство и каким будет стиль интерьера.
Примеры удачных сочетаний:
- Стиль кантри лучше всего будет смотреться на кухне или спальне, расположенной на мансардном этаже.
- Ванная комната и помещение спальни могут быть оформлены в стиле винтаж.
- Сдержанность минимализма подчеркнет достоинства детской, кабинета, спальни или бильярдной.
- Прованс подходит исключительно для кухонь и спален.
- Эко-стиль по-настоящему универсален, он не имеет ограничений в отношении комнат.
- Восточный и этно стиль подойдут для спален или для оформления кальянной комнаты.
Фото отделки мансарды деревянного дома внутри здания
Мансардное пространство подходит для обустройства комнат различного назначения:
- столовая – лучше, если в дизайне помещения будет присутствовать большое количество окон. Рекомендуется разбить площадь на несколько зон, где будет осуществляться готовка, прием пищи и отдых;
- спальня – в вопросе отделки лучше отдать предпочтение пастельным и светлым оттенкам. Для большего комфорта спальню в мансарде можно дополнить небольшой гардеробной, душевой и выходом на балкончик;
- кухня – данный тип помещения в мансарде оборудуется крайне редко. Этот момент обуславливается тем, что основная часть тепла, которое выделяется в процессе использования печи и электроприборов, сразу же уходит наружу через крышу, в то время как комнаты на первом этаже остаются менее отапливаемыми;

Деревянная мансарда, обустроенная под гостиную
- детская – этот вариант распределения площади мансарды считается одним из самых удачных. Главное, чтобы пространство было полностью безопасным. Отделку необходимо сделать светлой и ненавязчивой;
- гардеробная – данное решение позволит освободить нижний этаж от шкафов. Здесь же можно оборудовать небольшую прачечную и зону для сушки белья, а также поместить гладильную доску;
- ванная – обычно идет в качестве дополнения к спальне. Отделка в этом случае будет аналогичной обычному помещению, единственным отличием станет наклонная плоскость потолка.
В помещении мансарды можно организовать зону для отдыха. В зависимости от ваших предпочтений это может быть бильярдная, домашний кинотеатр, спортивный зал с тренажерами или зимний сад. Если вы учитываете технические и эксплуатационные характеристики помещения, наполнение может быть практически любым, как и отделка.
jmsi.ru
планировки с чертежами и фото
×Преимущества дома с мансардой
Планировка мансарды использует поверхность крыши и фронтона для формирования стен и потолка. Мансарда увеличивает жилую площадь дома на 50%. Бесполезный объем чердака одноэтажного дома становится полезным, в результате снижается стоимость строительства одного кв.м. В низких местах под скатами легко размещается невысокая мебель: кровати, комоды или тумбочки. На планировке мансарды в наших чертежах указано расположение мебели под скатом крыши. Вы можете построить одноэтажный дом, а когда будет нужно утеплите крышу, сделайте лестницу, поставьте стены и мансарда готова. Это значительно дешевле, чем делать пристройку к дому. Можно добавить слуховые окна, чтобы вставить простое, а не мансардное окно. Тепло поднимается наверх, поэтому в каркасном доме, мансарду можно не отапливать. Не делайте потолок на мансарде, а лучше тщательно изолируйте скаты крыши, чтобы крыша не нагревалась. Любая течь в крыше сразу становится заметна. Можно сразу сделать ремонт, не ожидайте, когда пойдет плесень. Проекты каркасных домов с мансардой строить легко, так как крыша соединяется со стенами в единую конструкцию.
Недостатки мансарды
Выделяется 3-6 квадратных метра на каждом этаже под лестничную клетку.
В одноэтажном доме не устанавливают лестницу. Объем комнат на мансарде меньше чем в двухэтажном доме.
Больше утеплителя расходуется на скаты крыши в сравнении с плоским потолком;
Ошибки в утеплении и гидроизоляции крыши сложнее исправить, чем в доме с чердаком.
Проекты домов из пеноблоков с мансардой сложнее строить. Конструкция места опирания коньковой балки на фронтоны сложна в испольнении.
Красивый дом
На маленьком участке стройте дом с мансардой или двухэтажный. Проекты с фото помеченные иконкой фотоаппарата это проекты с клиентскими фотографиями готовых домов. В каталоге свыше 1000 проектов красивых домов с мансардой с планировками и фото клиентов.
Проектов домов с мансардой есть в разных стилях
Очень красивые проекты домов с мансардой в английском стиле, во французском стиле прованс и в американском стиле кантри. Проекты домов с мансардой в английском стиле чаще всего делают под двускатной крышей, а во французском стиле под вальмовой крышей. Американские проекты домов с мансардой делают под двускатными и односкатными крышами.
Проекты домов с подвалом или цокольным этажом также популярны, так как добавляют полезную площадь в небольшом доме.
eplan.house
