виды, как выбрать, изготовление своими руками

Дача — это место отдыха от городской суеты и насущных проблем и качели будут его прекрасным дополнением. Качели придутся по душе и взрослым, и детям. Дачные качели могут быть местом для игры с детьми, центром посиделок с друзьями и местом отдыха для всей семьи. В этой статье будет рассказано о разновидностях качелей, как их правильно выбрать и о том, как их изготовить своими руками.
Классификация качелей для дачи
Качели для дачи можно разделить на два вида садовые и подвесные. Садовые качели состоят из опорных стоек, сиденья и навеса для защиты от солнца и дождя. Подвесные качели имеют только сиденье и подвес, и требуют оборудования специального места для их установки.
Садовые качели можно установить в любом месте сада или на веранде. Они бывают переносные и стационарные. Переносные качели можно перемещать по саду и убирать на зиму. Стационарные садовые качели — это капитальное строение, которое устанавливается один раз на весь срок службы. Садовые качели имеют небольшую амплитуду раскачивания и предназначены главным образом для спокойного отдыха.
Рис.1. Садовые качели из дерева. Качели станут прекрасным дополнением сада и будут любимым местом отдыха для всей семьи.
Материалом для изготовления садовых качелей может быть металл или древесина. Металлические качели более компактны и имеют меньший вес. Этот вид качелей обычно переносной. Качели из дерева редко делают переносными из–за их большого веса. Однако деревянные качели лучше впишутся в дизайн любой дачи. К тому же их проще изготовить своими руками, так как не требуется проведения сварочных работ.
Садовые качели для дачи могут быть многоместные и одноместные.
Многоместные качели рассчитаны на 2- 4 человек. Они часто оборудованы навесом для защиты от дождя и солнца. Такие качели будут прекрасным местом отдыха для всей семьи.
Рис.2. Садовые качели из металла. Качели из металла прочные, устойчивые и легкие. Их можно перемещать по саду и убирать на зимнее хранение.
Одноместные садовые качели в основном предназначены для детей и используются для развлечений.
Подвесные качели крепятся на стационарную неподвижную опору или ветку дерева. Они имеют большую амплитуду раскачивания. Качели этого вида предназначены для активного отдыха с детьми.
Рис.3. Подвесные качели. Подвесные качели на даче будут любимым местом отдыха детей с родителями.
В классе садовых подвесных качелей имеются модели и для спокойного отдыха это качели-диваны и качели-гамаки. Подвесные качели-диваны в основном устанавливаются на веранде и крепятся к балкам перекрытия. Качели-гамаки имеют меньший вес и могут использоваться как на веранде, так и на открытом воздухе, но в этом случае необходимо предварительно сделать опору для качелей.
Рис.4. Подвесные качели для спокойного отдыха. Установив подвесные качели в глубине сада можно создать прекрасный уголок уединенности и спокойствия.
Как выбрать качели для дачи
Главное это понять какие качели подойдут именно вам и для каких целей они будут использоваться. Для семейного отдыха отличным решением будут многоместные садовые качели. Для индивидуального отдыха хорошо подойдут подвесные качели-гамак.
Выбирая многоместные садовые качели важно правильно оценить сколько человек будет ими пользоваться, как часто бывают гости и пр. Возможно, что для большой компании одних качелей может оказаться недостаточно.
Садовые качели могут быть оборудованы навесом для защиты от дождя и солнца. Если качели устанавливаются на веранде, то навес вряд ли необходим. Напротив, если качели будут установлены в саду или на открытой площадке, например, перед бассейном, то качели с навесом будут в приоритете.
Качели могут быть изготовлены из дерева или металла. Деревянные качели прекрасно впишутся в дизайн любого сада, но они имеют большой вес и их сложно переносить. Деревянные качели обычно устанавливают один раз на весь срок службы. Качели из металла более легкие и компактные, и их можно легко перемещать по саду.
Рис.5. Качели из металлической трубы. Такие качели прекрасно подойдут для всех членов семьи, как для совместного отдыха, так и для индивидуального.
Выбирая металлические дачные качели важно обратить внимание на диаметр труб из которых они изготовлены чем толще труба, тем прочнее, надежнее и устойчивее будут качели. Для изготовления качелей применяют трубу диаметром от 30 до 60 мм. Такие качели могут выдерживать вес до 300 кг, в то время как их собственный вес не превышает 100 кг. Эти характеристики обязательно нужно уточнить у продавца. Чем массивнее качели, тем они устойчивей и комфортнее, но тем сложнее их переносить.
При выборе качелей не лишним будет подумать о месте установки. Если качели имеют прямые формы несущей опоры, то для этих качелей необходимо ровное основание. Криволинейные опоры могут устойчиво располагаться как на ровной площадке, так и на траве в глубине сада.
Выбирая качели не забудьте поспрашивать знакомых, вероятнее всего кто-то уже приобрел качели и может рассказать вам о достоинствах, недостатках конкретных моделей и дать практические советы.
Качели для активного отдыха с детьми
Для активного отдыха с детьми лучшим выбором будут подвесные качели. Они принесут множество ярких эмоций как детям, так и взрослым.
Детские подвесные качели стоят недорого, а выбор огромен. Если же вы хотите создать индивидуальный стиль загородного участка, то подвесные качели легко сделать своими руками из подручных материалов.
Рис.6. Детские двухместные качели для детей малого и среднего возраста. Качели оснащены ремнями безопасности. Приобретая подвесные качели следует помнить о безопасности их использования, особенно маленькими детьми. В качелях должно быть предусмотрены ремни безопасности для самых маленьких и ограничители для детей среднего возраста. При выборе качелей необходимо обратить внимание на допустимый вес. Он должен быть не меньше, чем вес ребенка.
Опоры для установки качелей должны быть устойчивыми и легко выдерживать вес качелей с ребенком.
Подвесные качели своими руками
Самые простые в изготовлении подвесные качели — это качели из доски. Этот тип качелей прекрасно подойдет для детей среднего и старшего возраста и взрослых.
Качели из доски состоят из сиденья и подвеса. Для сиденья хорошо подойдет доска длиной 40-50 см, шириной 15 см и толщиной 3-4 см. С доски необходимо удалить все заусенцы и сгладить края. По углам доски сверлят отверстия для закрепления подвеса.

Рис.7. Самые простые подвесные качели. Для изготовления качелей понадобиться доска и толстая веревка.
В качестве подвеса прекрасно подойдет толстая веревка или канат. Самый простой и надежный способ крепления сиденья к подвесу — продеть канат через отверстие в доске и зафиксировать его узлом.
Если качели предназначены для взрослых, то в качестве подвеса может применяться металлический трос или цепь. В этом случае удобно использовать рым болт для крепления подвеса к сиденью.
Рис.8. Крепление подвеса к качелям с помощью рым болтов.
Другой популярный вариант подвесных качелей — качели из покрышек. Для изготовления качелей потребуется старая автомобильная покрышка. Покрышка закрепляется к подвесу в 3-4-х точках с помощью рым болта или скобы. В качестве подвеса можно использовать канат или цепь.
Рис.9. Детские качели из старой автомобильной покрышки. Можно использовать не целую покрышку, а вырезать из нее подобие сиденья. Наиболее простым вариантом является сиденье в виде корзинки. Но на самом деле вариантов множество и ограничены они только воображением.
Рис.10. Сиденье детских качелей, изготовленное из автомобильной покрышки.
Не менее простым и интересным вариантом подвесных качелей являются качели из старых стульев. Для изготовления качелей потребуется стул. У стула отпиливают ножки и закрепляют к подвесам.
Рис.11. Сиденье для подвесных качелей из старого плетеного кресла.
Изготавливая качели из стула/кресла важно убедиться, чтобы сиденье было надежно закреплено к подвесам. Иногда может потребоваться дополнительные элементы для усиления конструкции.

Рис.12. Сиденье для качелей из детского стула. К стулу дополнительно закреплены две дощечки для надежного крепления к подвесу.
Интересные качели можно изготовить из старого скейтборда. Это будут качели типа лодочки. На них можно раскачиваться стоя.
Рис.13. Детские качели из скейтборда.
Подвесные качели для дачи можно изготовить практически из любых материалов, которые можно найти на даче. Не бойтесь экспериментировать. Важно только, чтобы качели были безопасными и простыми в использовании.
Опора для подвесных качелей
Для подвесных качелей может использоваться практически любая опора. Главное, чтобы она была надежной, прочной и выдерживала вес качелей. В качестве опоры может использоваться ветка дерева, специальная переносная опора, стационарная деревянная или металлическая, балки перекрытия если качели устанавливаются на крытой веранде.
Для маленьких детей наиболее рационально использовать передвижную металлическую опору. Ее можно приобрести вместе с качелями. Стоимость ее не высокая, а проблем при монтаже и в эксплуатации не возникнет.
Рис.14. Легкая разборная опора для детских качелей.
Качели для детей среднего возраста и взрослых требуют более прочной опоры. Для качелей этого типа, при отсутствии прочного и большого дерева поблизости, потребуется изготовить стационарную опору. Наиболее простая это П-образная опора. Она представляет собой два столба жестко закрепленных в грунт и перекладину к которой закрепляются подвесные качели. Опора может быть изготовлена из деревянных брусьев или из металлической трубы.
Рис.15. Опора для детских качелей из деревянного бруса.
Для надежного крепления опоры в земле делают две ямы глубиной 1м, для этой цели удобно использовать садовый бур. На дно ямы насыпают слой щебня толщиной 20 см. Пространство между стенками ямы и опорой заполняют цементно-песчаным раствором, изготовленным в соотношении 1:3. Через неделю раствор затвердеет и опора будет готова к использованию.
Подвесные качели к опоре необходимо крепить с помощью рым болтов. Это самое простой и надежный способ, который обеспечит высокую амплитуду раскачивания. Он подойдет как для деревянных опор, так и для металлических.
Рис.16. Универсальных способ для крепления любых качелей.
Если качели устанавливаются на веранде, то их легко можно закрепить к балке перекрытия или стропиле кровли с помощью рым болтов.
Рис.17. Качели для открытой веранды.
Качели для спокойного отдыха
Качели для спокойного отдыха — это садовые качели в виде дивана для семейного отдыха и подвесные качели-гамак для уединенного отдыха.
Садовые качели прекрасно подойдут как для проведения посиделок с друзьями, так и для отдыха всей семьи. Садовые качели-диван можно расположить в любом месте сада или на открытой площадке, но в этом случае они должны быть оснащены навесом для защиты от солнца и дождя.
Подвесные качели-гамак станут любимым местом для тех, кто любит уединение. Их можно установить на веранде или в саду, в этом случае к ним придется приобрести или изготовить опору для подвеса.
Садовые качели из дерева своими руками
Наибольшей популярностью пользуются садовые качели. Они самые универсальные и подходят как для семейных посиделок, так и для уединенного отдыха. Садовые качели состоят из опоры, дивана и навеса. Все элементы качелей изготавливаются из дерева.
Рис.18. Садовые качели из дерева — универсальное место отдыха для всей семьи.
Для изготовления деревянных качелей для дачи вам понадобиться дрель, пила по дереву, столярный клей (влагостойкий клей ПВА), рубанок, набор сверл по дереву.
Изготавливать садовые качели желательно из хорошо просушенной древесины. Так сухое дерево не дает усадки и не потеряет форму. Просушить пиломатериалы очень просто. В летний период достаточно их положить на открытом воздухе недели на две. Сушить древесину желательно в тени под укрытием от дождя.
При изготовлении садовых качелей важно не забыть провести обработку древесины антисептиком и покрыть защитным лаком или краской, при этом лак должен быть стойким к влаге и солнечному свету. Отлично подойдет яхтный лак.
Изготовление опоры для качелей
Стационарная опора для дачных качелей наиболее проста и экономична в изготовлении. Она представляет собой два столба закрепленных в земле на глубину 1 м. Для опоры потребуется два бруса сечением от 100х100 мм и длиной 3 м.
Рис.19. Стационарная опора для качелей из деревянного бруса.
Для установки опоры для качелей в земле роют две ямы глубиной 1.2-1.5 м и диаметром 30-40 см. Для этой цели удобно использовать садовый бур. На дно ямы насыпают слой щебня толщиной 20 – 50 см и утрамбовывают. Участок деревянного бруса длиной 1 м с той стороны, которая будет под землей, обмазывают битумной мастикой и заворачивают в рубероид для защиты от гниения. После чего устанавливают опоры в яму и заливают цементным раствором. Цементный раствор изготавливают в соотношении 1:3 (цемент: песок). Через неделю раствор наберет прочность и можно вешать качели.
Недостаток стационарной опоры для качелей — это невозможность перемещать качели по участку и убирать их на зиму. По этой причине часто отдают предпочтения переносному виду качелей.
Самая популярная переносная конструкция опоры для дачных качелей — это две пары брусьев сечением от 80х80 мм, установленных под углом и соединенных между собой. В этом случае качели не закрепляются к грунту.
Рис.20. Переносная деревянная опора для качелей.
Брусья соединяются между собой в полдерева под углом 40-45 градусов. Для повышения жесткости качелей устанавливаются боковая перекладина. Между собой опоры соединяются верхней горизонтальной перекладиной (ригель) и нижней с задней части качелей. К ригелю закрепляется сиденье качелей.
При сборке опор для качелей желательно использовать не саморезы, а клеевое соединение, стянутое болтами. Такой способ соединения более прочный и надежный, и качели прослужат очень долго.
Другой вариант опоры для переносных качелей — это опоры из четырех вертикальных брусьев. В этом случае получается что-то типа беседки, в котором подвешены качели. Такая конструкция будет более тяжелой чем предыдущая и перемещать ее по участку будет очень сложно.
Рис.21. Качели-беседка. Такая конструкция не переносная и устанавливается на весь срок службы качелей.
Интересное решение опор для качелей представлено на фото ниже. Благодаря такой форме опор боковые стойки не загораживают обзор и качели выглядят более открытыми.
Рис.22. Качели с несимметричными опорами.
Изготовления навеса для качелей
Садовые качели, установленные на открытом воздухе желательно оснастить навесом, который защитит вас от палящего зноя и дождя.
Навес состоит из каркаса и настила. Каркас изготавливают из дерева. В качестве настила могут применяться любые кровельные материалы, полибикарбонат или ткань.
Каркас обычно делают односкатным и двускатным. Односкатный каркас часто применяют совместно с тканевым настилом. Получается легкая, изящная конструкция, прекрасно защищающая от солнца и несколько хуже от дождя. Тканевый навес необходимо снимать на зиму. Двускатная крыша садовых качелей применяется на качелях, которые не убирают на зиму. В качестве настила используют битумную черепицу.
Односкатный навес самый простой в изготовлении. Каркас собирают из брусков сечением 20х30 или 30х40 мм, и закрепляют его к опорам качелей под углом 10-20 градусов. Поверх каркаса натягивают ткань.
Рис.23. Односкатный тканевый навес для качелей.
Двускатный навес изготавливают по аналогии с двускатной крышей. Угол наклона двускатного навеса обычно выбирают в диапазоне 10-20 градусов. На опоры и ригель (балка к которой подвешиваются качели) качелей устанавливают стропильную систему из брусков или досок. На стропила закрепляют обрешетку если планируется листовой настил или фанеру если планируется гибкая черепица.
Рис.24. Качели с двускатным навесом.
Для настила не стоит применять профлист и листовое железо, оно сильно нагревается на солнце и отдыхать на садовых качелях будет не комфортно.
Изготовление сиденья для качелей
Сиденье для садовых качелей изготавливается в форме скамейки, только без ножек. Для изготовления сиденья применяются сухие строганные пиломатериалы. Потребуется брусок сечением 30х50 мм для каркаса и бруски или доски толщиной 20 мм для самого сиденья.
Сначала изготавливают каркас. Для этого соединяют бруски под углом примерно 100-110 градусов. Лучший вариант — это скрепить бруски в полдерева с помощью столярного клея и болтов. После высыхания клея на каркас крепят бруски, которые будут выполнять роль сиденья, их можно закрепить саморезами.
Рис.25. Сиденье для качелей из дерева.
Готовое сиденье садовых качелей необходимо подвесить на каркас. Для подвеса может использоваться канат или цепь. Предпочтение стоит отдать цепи так как она более прочная и не перетрется в процессе эксплуатации.
Для подвеса сиденья на ригеле необходимо установить два рым болта или скобы. На сиденье качелей также необходимо закрепить два рым болта с каждой стороны сиденья. Один рым болт закрепляют к сиденью, а второй по середине спинки. Такое расположение креплений не позволяет опрокинуться сиденью во время раскачивания.
Рис.26. Сиденье подвешивается на опору качелей с помощью толстой веревки или цепи. Подвес к сиденью закрепляют с помощью рым болтов.
К закрепленным рым болтам крепятся цепи по средствам карабинов. Длина цепей выбирается исходя из требуемой высоты сиденья и его наклона. Удобно использовать цепи чуть большей длины, чем требуется. Закрепляя карабин к разным звеньям можно менять высоту и угол наклона сиденья качелей.
Эргономичный вариант сиденья для садовых качелей можно изготовить из фанеры. Фанера используется толщиной 20 — 30 мм для изготовления каркаса. На каркас закрепляются бруски сиденья.
Рис.27. Сиденье из фанеры анатомической формы. Размер ячейки 10 см.
Одним из наиболее простых вариантов изготовления сиденья для качелей является использовании старой садовой или домашней мебели. Для сиденья садовых качелей хорошо подойдет старый легкий диван или кресло, мебель из ротанга, легкая садовая скамейка.
Рис.28. Сиденье для качелей из плетеного кресла.
Сиденье для садовых качелей можно изготовить из оставшихся после строительства дома поддонов. Для этого необходимо распилить поддон на две части и соединить их вместе под небольшим углом.
Рис.29. Сиденье для качелей из поддона.
Изготавливая сиденье для качелей важно не забыть о безопасности. Все соединения деталей сиденья желательно проклеить столярным клеем или влагостойким клеем ПВА. Перед окончательной установкой сиденья его необходимо защитить от влаги с помощью лака, краски или антисептика. Повысить комфорт качелей можно с помощью поролоновых матрасов и подушек.
Садовые качели из металла своими руками
Садовые качели из металла можно изготовить самого разнообразного вида благодаря прочности материала и возможности придать ему практически любую форму. Однако без специального гибочного и сварочного оборудования изготовить необычные садовые качели невозможно. Однако если вы владеете сварочным аппаратом, то вы без труда сможете сделать простые, но очень надежные качели.
Рис.30. Качели из металлической трубы прямоугольного сечения.
Качели из металла могут быть подвесные и садовые, переносные и стационарные. Благодаря прочности металла качели можно сделать достаточно легкими и одновременно прочными — это их главное достоинство.
Изготовление опоры
Своими руками достаточно просто сделать два варианта опоры для качелей стационарную и переносную. Оба варианта подходят и для подвесных и для садовых качелей.
Стационарную опору для качелей удобно изготавливать из трубы диаметром от 50 мм. Две трубы закрепляют в земле с помощью цементно-песчаного раствора. К трубам сверху приваривают ригель из трубы того же диаметра. К ригелю приваривают две скобы для подвеса качелей.
Рис.31. Неподвижная опора для качелей П-образной формы из металлической трубы диаметром 60 мм.
Переносные металлические качели удобно изготавливать из трубы квадратного или прямоугольного сечения. Конструкция таких качелей состоит из двух треугольных стоек, связанных между собой ригелем и поперечиной, расположенной в нижней задней части качелей. К ригелю привариваются скобы для подвеса качелей.
Рис.32. Качели из профилированной трубы прямоугольного сечения.
Каркас навеса изготавливается из трубы квадратного сечения 20х20 мм. В качестве кровельного материала для металлических качелей применяют цветной полибикарбонат. Это придает качелям интересный внешний вид.
Изготовление сиденья
Сиденье для металлических качелей может изготавливаться аналогично сиденью для деревянных качелей, а может иметь металлический каркас.
Для металлического каркаса применяют трубу квадратного сечения 20х20 мм. Каркас изготавливается из двух отрезков трубы, сваренных под углом 100-110 градусов. К каркасу приваривают ушки, к которым будет крепиться цепь. Одно ушко приваривают к сиденью, второе к спинке.
К металлическому каркасу закрепляют деревянные бруски, которые служат основой сиденья и спинки.
Рис.33. Сиденье для качелей из металлической профилированной трубы.
Изготавливая металлические качели важно не забыть защитить металл от коррозии. Для этого сначала необходимо удалить все возможные очаги коррозии, которые присутствуют на металле, после чего обезжирить поверхность растворителем и нанести грунтовку по металлу. Заключительный этап — это окраска качелей.
Деревянные элементы качелей необходимо покрыть антисептиком для дерева.
Независимо от того планируете ли вы приобрести или изготовить качели своими руками, для детей или для отдыха вы движетесь по правильному пути. Качели на дачном участке действительно не заменимая вещь. Подвесные качели обязательно понравятся детям. Садовые качели больше подойдут по душе старшему поколению. Качели на даче обязательно станут центром развлечений и местом сбора всей семьи.
mhremont.ru
Качели своими руками: из дерева и металла, для дачи, детей и взрослых
Качели нужны не только для удовольствия. Взрослым они успокаивают нервы, улучшают настроение и приводят в порядок мысли; особенно, если, покачиваясь, созерцать облачка в небесах. Дети и подростки на качелях тренируют вестибулярный аппарат, вырабатывают координацию движений, и, что называется, всем телом чувствуют физику. Школьники, умеющие хорошо качаться на качелях, как правило, лучше успевают и с ходу хватают такие непростые понятия, как напр., момент инерции тела.
Сделать садовые качели своими руками дело нехитрое. Кто в детстве не качался на дощечке, подвешенной к суку дерева на веревках? Или не бултыхался в речку или пруд, раскачавшись на тарзанке? А имея в своем распоряжении некоторое количество материала, простой инструмент да не совсем кривые руки, можно в любой обстановке соорудить уголок отдохновения, по своему действию не уступающий устроенному по всем правилам саду камней, см. рис.
Самодельные качели
Дачная благодать
Уличные и дворовые качели ставят, где место есть. На даче его тоже, в общем-то, не в избытке, но для себя стоит смекнуть, как бы собрать дачные удовольствия в один эдем: и место экономится, и, если уж расслабляться, то чтобы грядки, от которых руки в мозолях, глаза не мозолили. Тут, как заведено, каждый себе хозяин. Однако есть очень хороший универсальный вариант: повесить качели для дачи в перголу, см. рис. Если она, разумеется, достаточно прочна для этого. Выкопать еще и обустроить рядом декоративный прудик – и готов райский уголок своими руками менее чем на 1 сотке.

Дачные качели в перголах
О металлических качелях
Свои собственные качели чаще всего делают из дерева: роднее оно, уютнее и работать с ним проще. Но если, скажем, всем миром оборудовать детскую площадку, тут нужна уже конструкция попрочнее и несгораемая, чтобы и сорванцов не приходилось то и дело одергивать, и хулиганью, которое, увы, никак не переведется, повредить качели было трудно. На такой случай – на рис. ниже чертеж классических, так сказать, дворовых качелей из металла: труб, уголка, полосы, проволоки-катанки, с навесом. Мы же в дальнейшем больше внимания уделим деревянным качелям, кроме тех случаев, когда металл необходим по прочности: для спортивного уголка подростку и др.

Чертежи качелей из металла
Примечание: бывают и случаи, когда металл как конструкционный материал для качелей выбирают по другим критериям. Напр., на поз. 1 рис. справа – кованые качели. Их изготовление требует высокого мастерства, а на заказ очень дорого, но – престиж налицо. А вот на поз. 2 там же – металлические качели из обрезков швеллера. Для умеющих обращаться со сварочным аппаратом и болгаркой их постройка – дело половины дня, а яркая раскраска маскирует утилитарность материала.
Лучшее – детям
Качаться на подвесных качелях начинают не сразу. Малышам, только-только научившимся переставлять как следует свои нижние две, впору покататься на качелях-маятнике. Что, кстати, также развивает моторику и укрепляет опорно-двигательный аппарат. Родители, соорудившие своим отпрысками детские качели-маятник, скоро убеждаются: ссадин на коленках и локтях, разбитых носов, реву и обиды от того и другого заметно поубавилось. Хотя, конечно, все равно не без того. Но качели помогут детям выработать разумную осторожность и здравый смысл, не допуская серьезного травматизма.
Как устроены качели-маятник, известно. Представленный на рис. вариант интересен тем, что металлического крепежа на него требуется аж 11 гвоздей:
Детские качели-маятник
Детали, отмеченные (!), выполняются из твердого мелкослойного лиственного дерева – дуба, бука, граба, ореха. Концы оси маятника можно не обтачивать до идеально круглого: достаточно обстругать более-менее ровно, чтобы встали в гнезда с небольшим натягом, и несколько раз покачать доску, приработаются. Если же волокна в оси и опорных стойках ориентированы взаимно перпендикулярно (что соблюсти элементарно, вырезав их из одной доски), то качели прослужат много лет, а трущиеся поверхности скоро станут зеркально-гладкими и прочными, как из стали на станке выточены.
Качели-маятник можно сделать переносными, чтобы, скажем, на зиму заносить на веранду. 2 способа для этого показаны там же, поз. а и б. По способу а концы стоек бетонируют в негодной шине; способ б очевиден и проще, но оба седока могут повалиться набок вместе с качелями. Кстати, из старых шин для качелей можно извлечь немало другой пользы; далее мы к ним еще вернемся.
Качели для детей постарше делают подвесными, как для взрослых (см. далее), с некоторыми особенностями:

Детские качели для школьников
- Несущую балку качелей из бруса делают с выносом, на который ведет лестница, см. рис. справа.
- Еще лучше, если места достаточно, поставить сбоку дополнительную опору пониже, чтобы в придачу получился и турник, см. рис. ниже. В таком случае весь спортивный уголок, кроме перекладины турника, предпочтительнее сделать из профильной трубы, тогда все сооружение получается прочнее, дешевле и проще технологически.
- Подвес качалки детям, уже умеющим раскачиваться, лучше всего подойдет веревочный схемы 2-2 (см. далее). Тогда можно не нем можно будет, не рискуя защемить, а то и сломать палец цепью, раскачаться, аж дух захватывает. А правильно выбранные материалы и конструкция подвеса не позволят «крутнуть солнце» и спикировать вниз из его верхней точки, или превратиться в выпущенный из пращи снаряд, не умея группироваться для приземления, как акробаты.

Детский спортивный уголок из профильной трубы с качелями
Примечание: выбирая или конструируя качели, не пренебрегайте техникой безопасности! При раскачивании во весь мах скорость качалки в критических точках траектории превышает 50 км/ч! Соответственно, результат срыва или падения с качелей будет равнозначен ДТП на той же скорости.
Качели для маленьких детей
Существуют еще качели для новорожденных и грудничков. Пользы от них немало, но – это медицинское оборудование. Делать такие качели самому настоятельно не рекомендуется, а выбирать покупные и пользоваться ими нужно только по назначению педиатра.
Для малышей примерно от полугода, глазенки которых смотрят уже осмысленно (это значит, что зрение сформировалось и видят они отчетливо), полезны будут детские качели для маленьких, см. рис. справа. Стоят они немало, но сделать подобные самому очень просто из труб, ПВХ или пропиленовых, и обрезка фанеры, см. видео:
Видео: детские качели для малышей
Не забудьте только заглушить концы труб пенопластом: в таком возрасте пальчик в мелкую дырочку пролазит, и сунуть его туда хочется. Качают ребенка в таких качелях, держа подвес руками; в квартире в качестве поперечины подойдет такая же пластиковая труба, вес невелик.
Примечание: именно качели чаще всего основа детского уголка. Что для него еще нужно, и как все это скомпоновать, требует отдельного описания по частям. Для примера, можете посмотреть следующий ролик:
Видео: детская площадка с качелями в программе «Фазенда»
Взрослым и всем-всем-всем
Теперь уместно спросить: а как устроены качели для всей семьи? Чтобы и взрослым покачаться уютно было, и детям тоже понравилось? Компромисс найти вполне возможно: сиденье должно быть со спинкой двойным, но не очень массивным. Седалище – достаточно прочным, чтобы на него можно было становиться ногами уже большому ребенку. Подвес берем цепной, т.к. веревочный при такой нагрузке потянется. Его схема должна обеспечить достаточно легкое раскачивание без помощи со стороны, ограничение угла и скорости раскачки и долгое покачивание после нее.
Делать семейные качели желательно из дерева по указанным выше причинам: уютнее они, для изготовления не требуется сложный инструмент или спецоборудование. Также весьма желательно обойтись 1-2 типоразмерами пиломатериала, причем того, что подешевле – обычной обрезной доски. Для долговечности заготовки пропитывают биоцидами (антисептиками) и гидрофобизаторами (водоотталкивающими средствами).
Поскольку качели – не жилое здание и на воздухе очень быстро просохнут, тратиться на дорогие фирменные средства нет смысла. В качестве биоцида подойдет отработанное моторное масло (отработка), а гидрофобизатора – водно-полимерная эмульсия либо взамен нее клей ПВА или для плитки на водной основе, разбавленный в 3-5 раз. Пропитывают нарезанные в размер заготовки сначала отработкой, а спустя 3-7 дней – эмульсией.
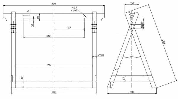
Чертежи семейных качелей такого вот «классического» типа приведены на рис; длина ножек дана в расчете на их заглубление в землю на 0,5 м:

Чертежи семейных качелей из досок
Их особенность в том, что построены они целиком из досок, без использования более дорогого строевого леса, как видно из материальной ведомости, поз. 2. На поз. 3 показан способ подгонки опор перед сборкой: в качестве стапеля используется доска ригеля. Ноги, обрезанные в размер и на угол (см. ниже), прикладывают к стапелю, разводят на нужную ширину (заодно проверяется точность обрезки). Затем накладывается заготовка нижней распорки, выставляется параллельно стапелю по расстоянию ее концов от него, и размечается под обрезку по месту. Из обрезков нижней распорки делают верхние.
Примечание: на рис. справа – способ разметки заготовок ног в расчете на угол между ними в 30 градусов. Маркеры на стальном слесарном угольнике делают из нескольких витков мягкой проволоки с отогнутыми концами.
Качели собственной конструкции
У вас, возможно, возник вопрос: как сделать качели полностью самостоятельно? Схемы, чертежи – это хорошо, но если уже есть материал (допустим, от стройки осталось), которого на качели явно хватит, но в данную конструкцию не укладывается? И не хочется типового изделия, хочется чего-то своего. Наконец, на рис. в начале видно, что шикарнейшие оригинальные качели получаются вообще из сухостоя и отходов от обрезки сада. Как из всего этого сделать красивые, удобные, долговечные и безопасные качели? Что ж, приступим. Порядок следования:
- Размеры;
- Основание и способ крепления к грунту;
- Несущая рама;
- Способы и конструкции подвеса;
- Узлы подвески;
- Качалка, она же сиденье;
- Способы подвеса качалки.
Напоследок рассмотрим еще несколько нетривиальных конструкций и особенные, но устроенные на основе обычных, качели специального назначения.
Размеры и пропорции
Размеры качелей считаются, во-первых, исходя из ширины сиденья парковой скамейки на 1 персону – 60 см; минимальное значение – 40 см. Высоту сиденья над землей берут немного больше стандартной высоты стула 40 см, чтобы можно было, с одной стороны, раскачиваться, не задевая ногами за землю и в то же время, вытянув ноги, можно было затормозить; с другой – чтобы садиться/вставать было еще удобно. Обычно берут 50-55 см, но вообще-то подгоняют под себя, регулируя высоту подвеса, см. далее.
Примечание: для парных качелей с продольной раскачкой высоту подвеса доски (лодочки) берут 0,7 ее длины. Для посадки-высадки тогда необходим помост, а для качалки – плавно действующий тормоз (вдруг кого-то на ней замутит, или он/она испугается и запаникует), приводимый в действие оператором с земли. Поэтому парные качели с продольной раскачкой в быту почти не применяются.
Подвесные качели состоят из несущей рамы (2 опорные стойки + поперечина), подвесной системы и качалки, она же сиденье. Расстояние от краев сиденья до боковых опор берут не менее 150 мм при цепном подвесе типа 2ш-4 или 4-4 (см. далее), для любого другого цепного подвеса от 250 мм, для обычных веревочных подвесов от 350 мм, а для любого подвеса с 1 точкой крепления вверху – не менее 0,7 общей высоты подвесной системы. Эти требования исходят из того, что у любых качелей боковое раскачивание неизбежно, а задевание качалки за опору неприятно и при сильном раскачивании травмоопасно. Т.е., если у нас, к примеру, 40-см сиденье подвешено на веревках, то ширина пролета между опорами должна быть не менее 35+40+35=110 см.
Расстояние от сиденья до поперечины должно быть не меньше роста человека на качелях, чтобы, во-первых, можно было раскачиваться стоя, во-вторых, чтобы, внезапно вставая, не стукнуться головой. Его берут в пределах 190-220 см, смотря по имеющемуся материалу.
Угол между ногами боковых опор берут 30-40 градусов; чаще всего – 30. Тогда, если брать заготовки в половину стандартной длины 6 м, т.е. 3 м, то с учетом заглубления ног и толщины заготовки на сиденье как раз можно будет встать во весь рост. Кроме того, уменьшается занимаемая качелями площадь.
Примечание: толщину материала несущих частей берут исходя из 3-кратной перегрузки при раскачивании. Для качественного деревянного бруса это будет от 150 мм в высоту, а для стальных труб – от 40 мм по диаметру или стороне квадрата.
Крепление к грунту
Ноги деревянных качелей либо вкапывают в землю на 1 м и более, либо бетонируют на глубину 0,5 м. Тогда, с учетом 10 см гравийной подушки, ямы под ноги нужно рыть на 2 штыка лопаты, т.е. 60 см. В тои и другом случае концы ног перед установкой в ямы с запасом в 15-20 см по длине или пропитывают битумной мастикой (40% битума и 60% уайтспирита либо сольвента), или проливают разогретым почти до кипения битумом, и, едва остывшие, обсыпают песком; этот способ лучше предохраняет от гниения.
Для проливки битумом под ногу подкладывают кирпичи, чтобы можно было облить и торец. Льют тонкой струйкой, для чего битум удобно греть в негодной жестянке с оттянутым носиком. Облив одну сторону, ногу немедленно переворачивают и обливают другую сторону, стараясь, чтобы тоже натекло на торец. Песком обсыпают в том же порядке.

Крепление металлических качелей к грунту
С металлическими качелями дело обстоит сложнее: тонкая по сравнению с бревном или брусом труба может со временем или вывернуться из грунта, или надломиться на самым бетоном, т.к. здесь при раскачивании концентрируются нагрузки. Поэтому металлические уличные качели общего пользования нужно делать с опорными рамами в виде цельного треугольника и бетонировать в траншею, тогда заложенная в ней металлическая балка примет на себя значительную часть усилий и разгрузит ноги.
Ноги качелей без дополнительных опорных элементов, наподобие показанных выше из швеллера, бетонируют на глубину не менее 1,2 м независимо от глубины промерзания в данной местности, тогда швеллер сможет передать бетону часть нагрузок. Обычные же качели из металла лучше всего связать по низу дополнительной несущей рамой и прикрепить к земле анкерами не менее 1 м длиной, см. рис. Это, кстати, позволит, если понадобится, без проблем вернуть землю в хозяйственное пользование.
Рама
Дачные качели чаще всего делают на раме из 2-х А-образных опор, связанных поперечной балкой. Иногда, если качели снабжены жестким тентом, раму делают на 4-х столбах с навесом, см. далее. В жарких солнечных местах, где тент необходим все лето, это дает некоторую экономию материала.
В последнее время все большую популярность приобретает рама на λ-образных опорах, слева на рис.:
Несущие рамы качелей
При постройке она дает экономию древесины в целый брус, что при теперешних ценах на пиломатериалы существенно. Но это качели только для взрослых: при раскачке во весь мах несущие балки могут не выдержать – деревянные сломаться, металлические погнуться. Кстати, делать λ-раму из обычной конструкционной стали нельзя, погнется сразу. Нужна очень дорогая спецсталь.
Рамы с траверсой (в центре на рис.) известны всем: качели на суку оно и есть. Специально траверсные рамы делают для качелей акробатических с 1-й точкой подвеса качалки; на них, освоив как следует технику раскачивания, можно выписывать замысловатые пируэты. В таком случае дерево на раму берут двойной толщины, а на забетонированных концах ног должны быть прочно прикрепленные поперечины.
Разновидность траверсной рамы – металлическая передвижная. Делаются они из качественной стали, нагрузки, моменты, центр тяжести и пр. механические премудрости точно рассчитываются. Подобным способом изготовляют популярные (и очень дорогие) качели-шезлонги, справа на рис.
Деревянные рамы
Бревно
Самые эффектные и во многих случаях недорогие качели получаются из бревен. Брать окоренные и оцилиндрованные необязательно: пойдут, как уже сказано, отходы обрезки и сухостой. Рама из последнего, если стволы еще прочные и мощные, в дополнительном подкреплении не нуждается, поз. 1 на рис. Рамы качелей из делового бревна, особенно если они передвижные, т.е. не вкопаны и не забетонированы, нужно укрепить подкосами, поз. 2 и 3. Материала в последнем случае нужно столько же, но рама небо меньше закрывает. Спрашивается, а почему же рамы не заглубляют? Чтобы не портить газон или мощеную площадку, на рис. видно.
Качели из бревен
Если же качели вкапываются или бетонируются, то самая экономная и прочная рама – как у китайских качелей, поз. 4. Хотя такие качели давно известны и в России; их часто делали в березниках, связывая попарно верхушки деревьев. «Русско-китайские» качели также можно сделать незаглубленными, снабдив внизу дополнительной рамой. Чертеж такой конструкции дан на след. рис: ноги – бревна или квадратные брусья, ригель – брус 180х80, нижняя рама – из досок 150х40.

Чертеж деревянной рамы качелей для взрослых
Брус
Обычный, непрофилированный деревянный брус дает возможности сооружения качелей большие, чем бревно. Из бруса легче и дешевле сделать качели с постоянным навесом для жарких стран, поз. 1 на рис. Обычная рама на А-образных опорах из бруса (поз. 2) также получатся проще и прочнее: под весом качалки ноги сжимают ригель (поз. 3) и, чем сильнее нагружены качели, тем крепче держится рама. В раме «русско-китайских» качелей из бруса вверху нужен, как и для бревен, всего 1 крепежный узел, поз. 4, а устройство навеса над качелями из бруса на А-образных опорах также не составляет сложностей, поз. 5.

Качели из бруса
Более того, ригель из бруса можно взять того же, что и на ноги, т.е. уменьшенного сечения (100х100 мм), если по концам подкрепить его накладками из доски, а точки повеса качалки расположить вплотную к ним, поз. 6. Тогда изгибающие ригель моменты как бы перетекут в сжимающие ноги, а нагрузку на сжатие дерево держит хорошо.
Чтобы усилить этот эффект, ригель иногда ставят ниже верхушек опор, поз. 7, но выигрыш в прочности выходит иллюзорным, зато лишний крепеж бросается в глаза, да и денег стоит. Пользуясь этим принципом, лучше верхушки опор обрезать и ригель сверху дополнительно закрепить накладками, поз. 8. Тогда можно будет, если ригель 150х150, а ноги 200х200, сделать выносы ригеля до 1,5 м, а к ним привесить детские качели на веревках, пристроить лестницу с горкой и т.п. Получится семейный качельно-спортивный уголок при расходе материала лишь немного большем, чем на одни качели.
И еще вопрос: а нельзя ли брус заменить доской, скажем, 150х40? Можно, как показано на поз. 9, только выносы делать уже нельзя и высоту опор придется ограничить примерно 1,8 м. Качели будут так же прочны, но намного дешевле, чем брусовые. Ну, и работы уйдет больше – размечать, обрезать, сшивать.
Примечание: описанные выше «классические семейные» качели еще экономнее, но их ноги обязательно нужно бетонировать, иначе дощатая рама окажется непрочной. А показанные на поз. 5, 6 и 9 – передвижные, их можно просто ставить на землю или на пол.
Как поставить раму?
Ригель качелей должен быть горизонтален, иначе качалка будет неприятно вихлять на любом подвесе. Выставлять его пузырьковым уровнем сложно и хлопотно, шланговым ненамного проще, а лазерный нивелир – построитель плоскостей, понятное дело, на хозяйстве просто так не держат.
Выставить ригель качелей можно, воспользовавшись одним из древнейших нивелировочных приборов – египетским отвесом, см. рис. Он вышел из употребления еще в древности вследствие невысокой точности, но на качели его хватит. В качестве нижнего груза можно использовать ведерко с песком, а на верхний пойдет, кроме обычного строительного отвеса, любая железина – болт, гайка.
Подвесы и подвески
Подвес качалки определяет удобство, комфортность и безопасность качелей. Этот достаточно сложный узел должен:
- Как можно меньше препятствовать раскачиванию в безопасных пределах.
- Мягко поглощать энергию качалки, если скорость/угол раскачивания выходят за допустимые.
- Обеспечивать качание без рывков и с как можно меньшими виляниями вбок.
- Акробатический подвес должен обеспечивать то же самое в 2-х плоскостях.
Схемы подвеса качалки обозначаются формулами вида n-m-k, где n – количество точек подвеса вверху, m – количество промежуточных точек подвеса, а k – количество их на качалке. Несколько похоже на колесные формулы паровозов, но это чистое совпадение: у паровоза m не может быть равным 0, т.к. обозначает количество движущих осей, а у качелей – запросто.
Некоторые виды подвесов качалок показаны на рис:

Способы подвески качелей
Подвес вида 1-2 с мягкой гибкой качалкой (на рис. нет) называется летучей трапецией. Подвесы видов 1-m-k применяются в качелях на траверсах. Садовые и дачные качели подвешивают чаще всего способами 2-4 (самый простой), 2-2-4 (не дает чрезмерно раскачиваться) и 2ш-4 (тоже сильно не раскачаешься и никаких вихляний).
Особо следует упомянуть подвес 4-4. Он вообще-то не качельный: как на таком раскачиваться? Однако иногда применяется для оригинальных садовых скамеек (слева на рис.):

Скамейка-качели и беседка-качели
Некоторых умиротворяет небольшое беспорядочное покачивание. Но чаще всего способом 4-4 подвешивают беседки-качели, справа там же. Дело вкуса, кое-кому по нраву. Восточные владыки прошлого, да и теперешнего, говорят, в таких просто млеют в обществе своих наложниц.
Цепь, канат или тяги?
Трос крестовой свивки
Подвес качелей на канате проще всего и, если вы умеете вязать некоторые морские узлы (см. далее), не требует дорогого дополнительного крепежа. Но канат, как известно, тянется, а спирального повива никак не ограничивает раскачивание. Поэтому, во-первых, на канатах лучше подвешивать простейшие детские летние качели, поз. 1 на рис. ниже. Во-вторых, канат брать крестовой свивки, см. рис. справа. В нем большое внутреннее трение, из-за чего его не любят такелажники (падает КПД грузоподъемных механизмов), но для качелей как раз того и нужно, чтобы чадо неразумное не устроило себе сальто-мортале. Диаметр капронового крестового троса для качелей – от 24 мм.
Подвесы качелей
Цепной подвес, поз. 2, дорогой, но по совокупности характеристик оптимален во всех отношениях: цепь прочна, ее износ виден сразу, небольшую раскачку почти не тормозит, а чрезмерную вследствие трения в звеньях гасит. Однако из-за последнего обстоятельства самые маленькие в качелях на цепях для взрослых могут серьезно защемить пальчик; для детских качелей цепи берут мелкокалиберные.
Качалку на жестких тягах (поз. 3 и 4) подвешивают, как правило, на подшипниках. Качается она очень плавно, без малейших виляний, и раскачается на ней, как говорится, и комар. Но такие качели без дополнительных мер безопасности опасны: врезаться головой в каменный забор или бордюр на скорости под 60 км/ч – это уже не происшествие, это трагедия. Поэтому свои, на участке, качели на жестких тягах для детей должны, во-первых, снабжаться качалкой с ограждением, как в качелях для малышей, поз. 3. Во-вторых, пускать на них ребенка без присмотра взрослых все равно нельзя.

Качели с ограничителем раскачивания
В дворовых качелях общего пользования на подшипниках обязательно должен быть предусмотрен ограничитель раскачивания – мало ли кто туда залезет и как он умеет раскачиваться? О простой ограничитель из трубы (см. рис.) качалка бьется, что неприятно. В хороших фирменных моделях качелей на жестких тягах подшипниковые подвесы делают со встроенным гидротормозом, действующим по принципу вискомуфты автомобилей с приводом AWD, но стоят такие узлы подвеса дорого.
Иногда еще раскачивание ограничивают, соединяя жесткие тяги качалки с рамой отрезками цепей, поз. 5. Но, вообще говоря, это выход не из лучших: вследствие разных механических характеристик звеньев подвеса даже небольшое и вполне безопасное раскачивание на таких качелях происходит с ощутимыми рывками.
Примечание: есть еще целый класс подвесов люксовых качелей на системах уравновешенных рычагов, пружин, гидроамортизаторов. Понятно, что дорого и самому не сделать.
Узлы подвески
Критические точки подвеса качелей – узлы крепления. На них приходятся очень большие знакопеременные нагрузки, они подвержены истиранию. Небольшой заусенец на трущейся поверхности крепления даст весьма заметные рывки при раскачке. Поэтому к выбору конструкции узлов крепления нужно подходить со всей ответственностью.
Самый дешевый, но и самый плохой вариант – S-образные крюки, поз. 1 на рис. В их поперечинах концентрируются огромные нагрузки, вероятность внезапного разрушения высока, поэтому такое крепление допустимо только для качелей-лавочек, подвешенных не выше 0,5 м и конструкция которых позволяет покачиваться еле-еле.

Узлы подвески качелей
Самое надежное крепление – на хомутах с карабинами, поз. 2. Основная нагрузка приходится в них на верх балки ригеля, что абсолютно безопасно. Нужно только, чтобы карабины были со страховочными зубьями и антифрикционной вставкой: скольжение тяги подвеса в проушине карабина – это уже аварийный режим при чрезмерном раскачивании.
Надежные хомуты все-таки портят вид качелей, поэтому крепления чаще всего делают на рым-болтах, поз. 3. Непременные условия их максимальной надежности – болт должен проходить сквозь ригель, под гайку, независимо от материала ригеля, должна быть подложена стальная шайба не менее 60 мм диаметром и 4 мм толщиной, и гайка должна быть накрепко законтрена. Пружинные шайбы всех видов при раскачивании не препятствуют постепенному самопроизвольному отворачиванию одинарной гайки!
Надежность рым-болта на абсолютна – на шейку рыма (кольца) приходятся большие напряжения. Абсолютно надежны немного более дорогие U-крюки и такелажные скобы, поз. 4. Под ус крюка в ригеле сверлят глухое отверстие и вводят его туда натуго. Не имея возможности хоть чуть-чуть разогнуться, крюк выдержит невероятную нагрузку, т.к. разрушение металла начинается с микронарушений связей между его кристаллитами.
Рым-болт, U-крюк и, в несколько меньшей степени, такелажная скоба заметно ослабляют ригель, т.к. приложенное сверху сосредоточенное усилие стремится надломить его как раз там, где балка ослаблена отверстием, а штырь крепления при раскачке как бы «раздалбывает» его. Шайба ослабляет этот эффект, но не устраняет его полностью. В результате там, где можно было бы обойтись 100х100 мм цельной балкой, приходится ставить 150х50 мм, а в расчете на раскачку в полный мах и все 200х200 мм.
Бросаются в глаза, но идеальны по всем качествам сквозные крепления с накладкой и верхним подвесом, поз. 5 и 6. Сдвиговые усилия от них свободно растекаются в стороны по балке и стремятся не разорвать, а наоборот, сжать отверстие, его как бы и нет; балка теперь становится равноценной цельной. Кроме того, хотя такой подвес на вид 4-4, кинематически он равносилен цепному 2-2-4, но еще лучше и плавнее гасит чрезмерную раскачку. Если подвес с накладками веревочный, то между карабином и огоном (петлей) троса нужно поставить цельное кольцо, поз. 6.
Также кольцами соединяют ветви цепного подвеса 2-2-4. Верхнюю ветвь приваривают к кольцу или припаивают твердым припоем, а нижние скользят по нему свободно, поз. 7. Только тогда цепной подвес 2-2-4 приобретет нужную кинематику.
Веревочные подвесы хороши тем, что позволяют легко регулировать высоту качалки, но, выполненные «по-цепному», требуют довольно большого количества недешевых крепежных, стопорных и регулировочных деталей и узлов, поз. 6,8 и 9. Однако все их, за одним легко доступным для самостоятельного изготовления исключением, можно заменить морскими узлами соответствующего назначения. Надежность морских узлов проверена тысячелетиями морской практики, а их сложность существует только в расхожем представлении.
Знать 200-400 узлов, как боцману парусного флота, или хотя бы 20-40, как теперешнему яхтсмену, для постройки качелей не нужно, за все про все хватит и 7-9, см. рис:
Морские узлы для качелей
А – якорный узел, или рыбацкий штык, для крепления троса к карабину с антифрикционной прокладкой или промежуточному кольцу. В рым можно проводить до 5 шлагов (витков). На ходовой (свободный) конец троса накладывают простую марку и ею же соединяют ходовой конец с натянутым, показано в красной рамке. Крепление держится, пока трос не сгниет или рым не проржавеет. Якорный узел незатягивающийся, развязать его несложно: достаточно снять или разрезать стягивающую концы марку.
Б – коечный узел, тоже незатягивающийся. Подойдет для верхнего подвеса временных, скажем, на выходные, детских качелей.
В – штык с обносом, то же, что и Б, но уже для взрослых.
Г – стопорный узел, или восьмерка. Для нижнего крепления детских качелей через отверстия в доске.
Д, Ж – заделка конца троса репкой и простым дисковым кнопом. То же, что и Г, но для взрослых, и хвосты троса не болтаются. Хотя вообще-то качалку на веревках за низ крепить лучше вообще без узлов, как описано далее.
З – сетный узел, для связывания 2-х веревок накрест в любом месте без разрезания.
И – так вяжется незатяжная петля на цельной веревке. Можно повесить зонтик, сифон с газировкой, приспособить полочку или что-то еще.
Примечание: есть еще простые узлы для связывания 2-х веревок, одинаковых или разных, напр. ткацкий узел. Однако собирать веревочный подвес качелей из кусков настоятельно не рекомендуется.

Юферс для регулировки подвеса качелей
Осталось решить вопрос регулировки качалки на веревках. Для этого нужны 2 обрезка прочной твердой доски от 30 мм (дуб, бук, вяз, орех), из которых делают бегучие, или висячие, канатные стопоры – юферсы, см. рис. справа. Такими штуковинами регулировалось натяжение такелажа старинных парусников, и ничего – океаны переплывали, Америки-Индии открывали. Используются юферсы совместно со способом подвески качалки, описанным ниже.
Качалка и ее крепление
Качалка для взрослых – это, в общем, садовая скамейка без ножек. Выбирают ее себе по вкусу да по спине с пятой точкой. Снизу взрослую качалку подкрепляют парой поперечных брусьев, а в их концы вводят насквозь рым-болты или U-крюки, как на поз. 4 чертежа «классических семейных» качелей в начале. Крепление за любые точки верха, как на поз. 1 рис., крайне ненадежно. Центробежная сила при раскачивании должна сжимать качалку и прижимать ее к опорам, а не растягивать и отрывать от них.

Способы крепления качалок качелей
Дети очень любят качаться на летучих трапециях, поз. 2 на рис. ниже. Сделать такую можно самому из брезента, укрепив концы деревянными планками, вложенными в нашитые снизу карманы и снабдив люверсами. Но ставить люверсы для штор нельзя, слабы. Если нет в распоряжении парусных люверсов, можно нашить их заменители из стального кольца и суровой, как следует провощенной или смоленой нитки, поз. 3.
Детскую качалку из доски с двухточечным подвесом, поз. 3, делать не рекомендуется любыми способами, велика вероятность переворачивания. Если уж делать качалку на 2-х точках, то из бревнышек, как на поз. 4, а качалку из доски подвесить в 4-х точках, пропустив трос в отверстия, поз. 5.
Однако лучший веревочный подвес и для детей, и для взрослых – петлей в пазах, поз. 6. Для взрослых нижние опорные брусья качалки делают шире, с выносом по 100-200 мм. Они не мешают, наоборот, при легком покачивании на них можно класть книгу, ставить банку пива и т.п. А вдруг пойдет поперечная раскачка, они же послужат хорошими отбойниками-амортизаторами. Подвес в пазы абсолютно надежен, элементарно собирается-разбирается. Регулировка высоты промежуточных точек юферсами позволяет в довольно широких пределах менять не только высоту качалки, но и кинематику подвеса.
Качели из шин
Едва ли не самые любимые детьми качели – из покрышек. Причины тут не только психологические или эргономические, качалка из покрышки – прекрасный амортизатор в экстренных случаях, а взрослому мастеру-папе – отличный качельный материал. Негодную шину можно просто подвесить на сук, поз. 1 на рис., из ее обрезка без особых сложностей получается летучая трапеция: наличие в массе прочной резины стального корда позволяет обойтись без люверсов. Цельная покрышка пойдет на качалку-гнездо для коллективных посиделок мелкоты, поз. 3. Когда двое-трое раскачиваются каждый по-своему, траектория качалки-гнезда на подвесе 1-3 или 1-4 заставляет задумчиво чесать затылок и человека, хорошо знающего математику с физикой.
Качели из покрышек
Наконец, из разрезанных и сложенных разными способами покрышек получаются одинарные качалки-кресла не только для детей, но и для взрослых, поз. 4-6. Популярность качелей из покрышек так велика, что некоторые спортивно-игрушечные и специализирующиеся на товарах для детей фирмы выпускают, специально для качелей… квадратные шины, поз. 7! Остается только воскликнуть вслед за автором «Тартарена из Тараскона»: «Слыхал ли кто-либо когда-то о чем-то подобном?»
Курьезы, но по делу
Раз уж речь пошла о забавных качелях, коснемся еще кой-чего из них, но вполне пригодного для употребления по назначению. Напр., качели-гамаки, слева на рис., хотя гамак уже сам по себе лежачие качели. Наверное, есть в покачивании с дополнительными степенями свободы что-то, что владельцам нравится. Во всяком случае, вреда не будет.
Устройство в центре наверняка понравится детям, но поименовать его, не погрешив против русской грамматики, невозможно. Качель, же, не качели. А фото того, что справа, автор выложил с примечанием: самый простой способ утилизации старого автомобиля. Комментарий был по-английски, так что вполне возможно – во многих странах запада доставить машину на свалку или сдать на металлолом стоит многих хлопот. А тут большая инерция тяжелой качалки позволяет, раскачавшись,покачиваться очень долго, навес сам собой получается, да и мягкий диван комфорта не убавит.
Не те, но качели
Напоследок – о качелях, прямых потомках детских качелей-маятника, но вполне взрослых. И не для развлечения, они помогают справиться с артритом, остеохонрозом, радикулитом без дорогостоящего лечения. Отзывы врачей – положительные.
Речь идет о качелях Яловицына, см. рис.
Хотя это уже медицинское оборудование, но по сути те же качели. А главное, качели Яловицына – один из немногих видов медтехники, который можно сделать самому и использовать самостоятельно в домашних условиях. Разумеется, после консультации с врачом и по его назначению.
stroylegko.com
Качели для взрослых как для детей
Не правда ли, романтично отдыхать, покачиваясь на качелях? Можно расслабившись под монотонное покачивание помечтать, подумать о чем-то возвышенном… Если у Вас есть загородный дом, «таун-хаус» или даже небольшая дача, считайте, что Вам повезло. Качели садовые для одного или двух-трех человек можно установить на даче или садовом участке, ведь они идеально впишутся в такую обстановку.
Садовые качели как развлечение и отдых.
Садовые качели – это прекрасный способ развлечения и для Вас, и для Ваших гостей. А что может лучше помочь от бессонницы, чем покачивание на качелях в тени деревьев? Конечно, не такие жесткие и скрипучие, как стояли возле сельского дома Вашей бабушки или на даче Ваших родителей, а современные и комфортные качели садовые KETTLER. Например, садовые диван-качели с тентом от солнца, которые сделают отдых еще более комфортным и расслабленным. Качаясь на садовых качелях можно отлично заниматься релаксацией прямо во дворе дома или дачи после проведенного дня на огороде или работы в саду.
Какие бывают садовые качели
Качели садовые бывают различных типов, моделей и конфигураций, например, качели в виде гамака или дивана. Мягкие элементы на качели изготавливаются из хлопковой ткани и из непромокаемого материала – поликаттона. Также необходимо предусмотреть чехлы-укрытия, предназначенные для того, чтобы качели надолго сохранили свой внешний вид.


Садовые качели от KETTLER
Что касается моделей садовых качелей KETTLER, то выпускается их нескольких серий, самые популярные из которых MONTANA и AVANTGARDE. Трехместные качели MONTANA отличаются сочетанием легкости, прочности, комфортом и устойчивостью к погоде, а при желании их можно разложить в полутораспальное место. Качели садовые AVANTGARDE – это двухместные качели. Их отличительной характеристикой является стильный вид благодаря алюминиевой раме и хайтек-материалу Текстилен. Конечно, как и все качели садовые от KETTLER, этой модели свойственны прекрасный комфорт, отличное качество и погодоустойчивость.
Диван-качели
Для всех счастливчиков, постоянно обитающих в загородной местности, или любителей отдыха подальше от города, будь то дача или загородный дом, самым лучшим отдыхом является комфортное времяпровождение в саду. Это место, где можно отдохнуть одному, с семьёй или друзьями. А для этого необходима садовая мебель (куда ж без нее!). Но в понятие дачная мебель входят не только столы, стулья и скамейки, но и такая прекрасная вещь, как качели диван.
Диван-качели для дачи – это удовольствие и детям, и взрослым!
Диван-качели представляют собой прочную и устойчивую конструкцию с удобной спинкой и мягким сидением, а для дополнительного удобства можно приобрести к ним подушки. Качели-диван – это не просто приятно, но еще и прекрасное средство для тех, кто испытывает проблемы со сном. Все модели качелей, которые выпускаются фирмой Ketller, оборудованы собственным стационарным навесом для защиты от яркого солнца или неожиданно начавшегося дождя. Диван-качели Ketller изготовлены из алюминия, т. е. они достаточно легкие, и Вы сможете без особых усилий менять место их дислокации, привнося определенный элемент новизны в обстановку сада.
Вам также будут полезны эти статьи:
russianstartuprating.ru
Качели для дачи для взрослых своими руками: как сделать, какие бывают, идеи
Какие бывают качели?
Дачные качели давно перестали считаться элементом роскоши в ландшафтном дизайне. Сооружение может органично украсить территорию, дополнив:
- сад;
- террасу;
- летнюю беседку;
- патио.
Разместить качели для детей и взрослых можно даже возле любимого дерева.
Приобрести конструкцию всегда можно в готовом виде. Версии, созданные своими руками, смотрятся особенно эффекто на приусадебной территории.
Дачные качели бывают разнообразными. Дизайнерское исполнение варианта зависит от предпочтений владельцев территории и стиля ландшафта. На фото представлено несколько распространенных решений, которые удобны и красивы.
Классифицировать разнообразие качелей довольно сложно. Садовые качели могут быть отдельно стоящими. Им не нужны дополнительные опоры. Модель устанавливается самостоятельно, без подвеса. Такие качели можно располагать в любом участке сада и переносить при необходимости. Материал для этой конструкции варьируется от дорогого до бюджетного сырья.
Кованые модели – эффектное украшение сада. Конструкции из металла, обработанного особым образом, оказываются необычным аксессуаром для дачи, истинным произведением искусства. При бережной эксплуатации, элементарном уходе металлические качели беспроблемно служат по несколько десятилетий. Однако данный долговечный вариант является массивным и потребует много места на приусадебной территории.
На заметку! Удобными и стильными являются кованые качели с крышей. Это устойчивое решение, обеспечивающее комфорт для детей и взрослых.

Иной вид подобного сооружения – качели в виде дивана. Их привлекательность заключается в компактности и мобильности. Эти конструкции легко складываются, и их можно убрать перед зимой либо перенести на закрытую террасу.
Подобный вариант, представленный на фото ниже, оснащен не только мягким сиденьем, но и удобной спинкой. Часто сооружение дополняется матрасиком. Такие качели в виде дивана выпускаются из различных материалов. Обычно основой выступают металлические трубы, либо профиль. При выборе этой интерпретации рекомендуется принять в расчет:
- количество позиций спинки;
- наличие водонепроницаемого тента;
- оснащение конструкции фиксаторами от раскачивания;
- предполагаемое число людей, которые будут пользоваться устройством.
Обратите внимание! Очень удобны диваны со съемными чехлами, полочками и подстаканниками.

Еще один вариант – простые складные садовые качели. Они могут быть оснащены москитной сеткой, широким ложем, удобным сиденьем, откидной спинкой.
Бюджетное решение – деревянные качели. Природный материал станет органичным продолжением в оформлении сада. На фото ниже можно рассмотреть такие конструкции, которые привлекательны натуральностью использованного материала, возможностью дополнить каркас из дерева мягкими матрасиками.
Деревянные качели для дачи смотрятся особенно привлекательно, если они оснащены тканевым тентом. Такие стационарные качели, как и версии гамачного типа на цепях, выглядят стильно, современно, легко, элегантно.
Подвесные варианты – одно из наиболее распространенных решений в оформлении сада. Ключевые особенности этих качелей заключаются в использовании округлых форм, деревянных опор, мягкого и удобного сиденья. Как правило, такие качели подвешиваются на пружины.
Помимо популярных версий, встречаются оригинальные, непривычные модели. Они могут быть отдельно стоящими либо фиксируются к дереву. Среди необычных конструкций стоит выделить:
- кресло-качели с плетеной основой из прутьев;
- созданные из шнуров модели с пружиной, способной выдержать вес до 200 кг;
- гамачные изделия;
- варианты из бамбука.
Последнее решение напоминает шезлонг. Изготовление таких строений привлекательно тем, что они подходят для детей и взрослых. Они позволяют вольготно разместиться маме с малышом. Конструкция оснащается одной точкой для крепления.
Подвесные интерпретации – очень распространенные модели. Чаще всего они выполняются из подручных материалов:
- веревки;
- дощечки;
- подшипников.
Сегодня эти версии усовершенствованы. Они оказались максимально прочными, надежными, устойчивыми, комфортными. Крепить их можно на террасе, к опоре под навесом, на улице. Подобные версии всегда можно сделать своими руками, вооружившись досками либо бревнами и канатными веревками.
На заметку! В отдельный вид выделяются модели футуристических форм.

Детские садовые качели – особый тип конструкций. Они могут быть отдельно стоящими, подвесными к стационарной опоре, простыми подвесными. Однако особенно удобными оказываются качели в комплексе.
Из чего сделать качели?
Для создания качелей используются различные материалы. Наиболее распространенным решением являются деревянные модели. На фото ниже можно рассмотреть варианты их исполнения. Создать подобные качели своими руками не составит труда. Для их постройки рекомендуется использовать исключительно прочные сорта древесины:
- дуб;
- кедр;
- ель;
- березу.
Важно, чтобы материал был качественным, без заломов, трещин, сучков.
Деревянные паллеты – иное распространенное решение, которое не запросит большого вложения финансовых средств. Такая опора позволит создать удобные садовые качели для дачи. Изготовление конструкции окажется предельно простым. Паллеты из дерева фиксируются крепкими веревками к основе. Отлично, если есть возможность вкопать под опоры столбы. На сиденье можно положить мягкие подушечки.
Иной распространенный материал, используемый для изготовления качелей, — пластик. Это сырье нельзя назвать натуральным и безопасным в полной мере. Однако его преимуществом выступает предельно низкая стоимость. Пластик подходит только для детей, поскольку взрослых выдержать он вряд ли сможет.
Металлические качели – иной распространенный вариант. Конструкция отличается основательностью, практичностью, удобством. Качели из металла придутся по душе всей семье, так как усесться на них можно всем: от мала до велика. На фото металлические качели для дачи смотрятся солидно, респектабельно, эффектно. Особенно роскошно выглядят кованые версии из металла.
Сиденья для качелей
При изготовлении качелей для дачи следует особое внимание уделить выбору материала для сидений. Самые простые и распространенные решения представлены использованием:
- паллет;
- досок;
- брусьев;
- покрышек.
При создании сидений зачастую используют каркас из металла. Создать качели своими руками можно из любых подручных материалов. Если для стоек всегда можно использовать брусья, то в качестве сидений допускается применение любого подходящего материала, удобного для катания.
Обратите внимание! При изготовлении сидений для качелей можно взять старую ледянку или ненужный скейтборд.
Однако не все бюджетные решения будут привлекательно и солидно смотреться в презентабельном ландшафтном дизайне.
Садовые качели: пошаговая инструкция
Обустроить площадку для отдыха в саду лучше всего из дерева. Чтобы выполнить такие качели, нужно подготовить:
- молоток;
- брусья с параметрами примерно 100х100;
- ножовку;
- рулетку;
- доски для обустройства сиденья;
- цепи и карабины в качестве крепления;
- дрель-шуруповерт;
- гвозди, саморезы;
- бетонный раствор.
Конструкция такого строения чаще всего имеет Л-образную форму. На фото ниже можно увидеть, как выглядят подобные качели.
Опоры для стоек такого сооружения в виде равнобедренного треугольника в верхних точках соединяются перекладиной.
Шаг 1 – Под углом по направлению друг к другу в заранее созданные углубления фиксируются боковые стойки. Иногда целесообразно использовать металлические опоры. Они заливаются бетонной смесью.
Очень важно, чтобы строение было прочным. Именно поэтому глубина ям должна быть не менее 1 метра. Чтобы брусья служили долго, их необходимо покрыть битумным лаком или смолой.
На заметку! Отлично, если есть возможность в качестве основы для качелей использовать металлические стойки.
Шаг 2 – Необходимо увеличить жесткость боковых стоек. Для этого рекомендуется между ними поставить перекладины горизонтального типа. Закрепить данные детали можно металлическими уголками с помощью саморезов.
Там, где будут сходиться брусья, практически в самом верху, следует поставить специальные накладки фиксирующего типа. Они могут быть созданы из фанеры. Детали должны быть выполнены в форме трапеций равнобедренного вида.
Шаг 3 – Следующий этап создания качелей для сада представлен установкой перекладин между боковыми стойками Л-образной формы. Крепление деталей к основе можно производить через хомуты большими гвоздями.
Шаг 4 — Потом перекладину, на которую будет производится крепление цепей в последующем, нужно оснастить крепкими шурупами. Они вворачиваются в остов. Предварительно к этим шурупам привариваются кольца.
Далее при создании качелей собственными силами нужно поработать над цепями дополнительно. К подготовленным перекладинам фиксируются цепи посредством карабинов.
Перед тем, как произвести крепление деталей к брусьям, необходимо скорректировать длину цепей. Здесь важно учесть амплитуду раскачивания сиденья качелей.
Шаг 5 – Производится крепление сидений к качелям из предварительно выбранного материала. Их создание подбирается индивидуально. Можно использовать обыкновенные доски. Чтобы устройство оказалось удобным и комфортным, на основу всегда можно сшить чехол либо положить мягкие подушки.
Мастер-класс по созданию качелей из покрышек
Проще простого собственными силами сделать модель из покрышек, как на фото ниже. Она понравится всей семье.
Для конструкции необходимы:
- болты с кольцами;
- нож;
- 1-2 покрышки;
- цепь, толстая веревка или канат.
Если модуль будет стоять на деревянной основе, то еще потребуется подготовить молоток, гвозди, 3 бруса.
Сначала нужно сделать основу из покрышек. В материале делается 3-4 отверстия по боковым сторонам. В дырки крепится веревка, канат или цепь с помощью болтов с кольцами. Вкрутить крепежи нужно так, чтобы кольца остались сверху. Потом в них вставляется канат.
Можно зафиксировать модуль на дереве. Для этого подойдет прочный сук с диаметром минимум 15 см.
Через ветку нужно перекинуть один конец веревки и зафиксировать его в кольцах. Действие повторяется и с другой стороной.
Если модуль будет стоять на деревянной основе, то в выкопанные ямы нужно поставить брусья и засыпать расстояние между ними щебенкой. Потом материал можно утрамбовывать и присыпать грунтом.
Между балками крепится еще один брус и фиксируется болтами. Горизонтальная опора оснащается металлическими скобами, на которые вешаются канаты с кольцами и сами покрышки.
ogodom.ru
Садовые качели своими руками: комфортный отдых и развлечение
На протяжении всей своей жизни человек не может избавиться от привычек, которые в нем живут еще от материнской колыбели. Поэтому на уединенном участке своей дачи он и строит качели. Детям на забаву, взрослым для отдыха. Они и успокаивают, и расслабляют. Подсознательно срабатывает рефлекс, полученный еще в младенчестве — близость матери, защищенность от всех бед и напастей в колыбели под материнским заботливым крылом.
По своему назначению качели можно разделить на три вида — для детей, для взрослых и семейные. Назначение детских — дать ребенку развлечься, развиться физически и дать немного отдохнуть взрослым. Для взрослых на даче они просто необходимы для комфортного отдыха на свежем воздухе. Семейные объединяют в себе все предыдущие назначения. Приятно всей семьей посидеть на плавно покачивающихся качелях и почитать своему чаду сказки.

Сделать садовые качели своими руками просто и увлекательно. Для этого не потребуется больших физических нагрузок, это не повлечет большие финансовые затраты, но поднимет авторитет внутри семьи. Укрепит значимость отца у детей и мужа у своей любимой супруги. Кто смело идет вперед к неизвестному — тот способен достичь головокружительных высот.
Раз дощечка, два дощечка
Для строительства качелей надо сделать хотя бы примерный чертеж. Он потребуется для правильного выбора материала и его количества. Для детского варианта материала пойдет значительно меньше, чем на семейные качели. И по конструкции они будут проще. Здесь надо всегда помнить о надежности. Лучше сделать конструкцию с запасом прочности.
Качели из дерева — самый приемлемый вариант для дачи. Легко обрабатывается любым доступным инструментом. С помощью электрического инструмента такие качели можно сделать быстро и оригинально.

Конструкция качелей состоит из трех основных деталей — сидения, подвески и опоры. К опоре будет подвешиваться сидение, поэтому она должна выдерживать нагрузки. Подвески могут быть из любого материала, главное — чтобы он обеспечивал гибкость и прочность. В качестве сидения можно применить все, что окажется под рукой.
Опоры имеют П-образную форму. Такая форма за многие годы использования оказалась наиболее прочной и устойчивой. Она состоит из двух ног и перекладины. Ноги опоры можно сделать из бруса или из бревен. Форма ноги любая. Есть много вариантов, в которых нога — это просто вкопанное бревно, а есть нога в форме буквы «А». Выбор варианта — за создателем этого технического проекта.
Качели для малышей
В этих качелях важно все. Опорой может послужить крепкий дубовый сук. Надо только позаботиться, чтобы подвески не повредили его кору и верхний слой древесины. Не стоит просто набрасывать на него веревочные петли. Они перетрут кору и нанесут дереву вред. Лучше закрепить два широких хомута по толщине сука, а к ним прикрепить подвески.

Если подходящего дерева на участке еще нет, то можно вкопать на глубину 50-90 см два вертикальных бревнышка, диаметром от 80 до 120 мм. Концы бревен, которые будут закапываться в землю, желательно обработать битумом и обернуть слоем рубероида. Это продлит жизнь опоре. Вокруг столбиков землю надо засыпать понемногу и постоянно утрамбовывать любыми доступными способами.
Надежность и еще раз надежность
- На установленные столбики крепится перекладина. Ее материал зависит от нагрузки. Можно взять такое же бревно, как и на столбики. Крепится перекладина с помощью болтов, шпилек, хомутов или обычных скоб
- Чтобы перекладина надежно и устойчиво лежала на столбиках, на верхних площадках бревен выпиливают угловое гнездо. В него и будут вкладываться концы перекладины
- В перекладине сверлят два сквозных отверстия для крепления подвесок. Креплением может быть шпилька с крючком или петлей на конце. С помощью больших шайб и гаек она закрепляется на перекладине крючками вниз

- В качестве подвесок подойдет капроновая веревка. Край необходимо опалить, чтобы ее концы не расплетались и не превращались в мочало. Соединить подвески с перекладиной можно карабинами
- Сидение для малыша должно быть удобным и безопасным. Малыши быстро засыпают в качелях, поэтому надо предусмотреть ограждение вокруг сидения. Даже задремавший ребенок будет чувствовать себя комфортно
- В жаркую летнюю погоду для малышей очень желательно сделать навес, чтобы не было попадания прямых солнечных лучей. Можно соорудить и небольшой съемный балдахин, чтобы задремавшего ребенка не беспокоили надоедливые насекомые
Качели для взрослых из дерева
Подобные качели трудно сделать без чертежа. Взрослые — это не дети, у них и вес больше, и желания разные. Поэтому расчет качелей для взрослых надо производить от сидения. Если оно одноместное, то и расчет нагрузок будет меньше. Для многоместных качелей потребуются другие расчеты.

В расчеты надо укладывать и размер сидения. Многие особи женского пола очень любят понежиться на солнышке, позагорать на плавно качающихся качелях. Не очень удобно лежать на коротком сидении, поэтому оно должно устраивать по длине. На таком сидении должна помещаться и вся семья. Удобная спинка, анатомическая кривизна сидения — это важные детали, которые нельзя упускать из вида.
Опоры желательно делать в виде буквы «А». Из древесины прочной и без больших сучков. Здесь будут уместны струганные брусья или доски толщиной не менее 50 мм. Все детали опоры соединяются саморезами диаметром 8-10 мм. Те же требования касаются и перекладины.
В качестве подвесок лучше применить декоративные цепи. Но подойдет и другой материал, который будет обеспечивать нужную прочность.

На опоре желательно закрепить рамку для тента и предусмотреть съемную конструкцию. Если оставить тент на зиму, то под действием солнца, дождевой воды и снега он быстро превратиться в тряпку.
Дизайнерские предложения
Если качели для взрослых или семейные качели предусматривают многолетнее использование, то не будет лишним уложить на площадку плитку. Под качелями всегда образовывается ямка от ног. Потом в эту ямку попадает дождевая вода, разрушается структура почвы. Внешний вид становится неопрятным.
Уложенная под качелями плитка создаст комфортность. Можно выложить плиткой и дорожку к качелям.

Качели из дерева для взрослых желательно защитить от воздействия атмосферной влаги. Деревянные детали можно обработать пропитками, покрыть защитными лаками, которые подчеркнут фактурный рисунок дерева.
Изысканные любители поработать с деревом оформляют опоры и сидения резным орнаментом. Особенно привлекательны конструкции из деревьев, которые больше похожи на коряги. Правильно обработанные, они становятся похожи на причудливых жителей сказок.

Не пытайтесь делать сидения качелей с мягкими покрытиями. С первыми изменениями погоды ион примут в себя много влаги и станут непригодными для отдыха. Лучшее решение – сидение из струганных реек. Мягкие подушки или пледы можно просто положить на время отдыха.
Животные на даче
Небольшая ремарка по поводу наших четвероногих друзей. Среди них достаточно много любителей поваляться на качелях. С чем это связано — непонятно, но факт остается фактом. От них на сидении, особенно в период линьки, остается много шерсти, которую не так просто убрать.

Чтобы как-то облегчить себе задачу, надо обязательно применять только струганные детали из дерева. Выделите какой-нибудь старенький коврик, которым будете застилать сидение качелей.
delaismelo.ru
Качели для дачи усиленные «взрослые» — Законченные проекты
Привет други!
Лето грядёт, не успеем мяукнуть, как оно уже тут как тут. Качелей хотят мои племянницы, а я хочу сделать.
С прошлого лета думаю потихоньку над конструкцией, всё бы ничего, а как сделать шарнир
1. прочным
2. простым в изготовлении
3. неприхотливым
4. «молчаливым»?
Подшипник качения умрёт под дождём (п.3), и это непросто (п.2).
Конструкция, пардон, «палка в дырке» потребует регулярной смазки (п.3), либо будет истошно скрипеть (п.4) и в конце концов сожрёт себя (п.1).
Бронзовая втулка остаётся из наиболее реалистичных вариантов, но бронзу нужно будет закрепить на стальной раме, это ж обоймы из стали вытачивать и запрессовывать, сложно (п.2). Соединения на болтах имеют склонность к люфтам (п.1). Ещё где-то смутно брезжит мысль использовать гаражные петли под сварку. Иметь надёжный фиксатор от разбирания этих петель — для обслуги раз в сезон. Вопрос дополнительный касается выносливости на скручивание, любые качели испытывают на прочность, скручивая штанги. Для этого хватает даже детских силёнок, рычаги то дай боже, плюс инерция и упругость штанг. Справятся ли две гаражные петли?
Посоветуйте в столь ответственном деле! Я сделаю раз, и хочу забыть об этом изделии (согласен вспоминать раз в год), и чтобы никому оно не нанесло травм! То есть сделать нужно с троекратным запасом (оговорюсь, при качании взрослых должен быть троекратный запас, взрослые — те же дети!).
Качели, если позволите, «советского» образца, с жесткими штангами (из круга, предположительно), под ними одноместная (а может и двухместная) «жердочка» — сиденье из дерева, без спинки. Рама — две буквы «А» на бетонных столбиках, залитых в землю.
ЗЫ. Во дворе сколько раз ремонтировали качели описанного образца, но там всё было из стали, шарнир системы «труба + круг» стоял долго, но шумел…
Изменено пользователем юный техникwww.chipmaker.ru
Качели своими руками на даче!
Качели – это такой атрибут оформления приусадебного участка, который никогда не будет лишним и никогда не будет «скучать» от того, что его долгое время никто не использовал. Взрослым наверняка понравится проводить задушевные беседы с друзьями и близкими, мерно покачиваясь на качелях, или просто наслаждаться чтением любимой книги, усевшись поудобнее. А что уж говорить о детях! И мальчишки, и девчонки будут просто в восторге от того, что теперь они на собственном участке могут «взлетать выше ели».
Конечно, сегодня в любом гипермаркете можно купить уже готовые качели для детей или для всей семьи. Но намного больше тепла и позитивных эмоций, безусловно, подарят качели, сделанные своими руками. О самых удачных вариантах и тонкостях их создания поговорим далее.
Качели своими руками: разбираемся в многообразии вариантов
Горизонтальная балка на двух опорных столбах или просто любая крепкая ветка дерева, удобное сиденье, подвешенное на канате, цепях или даже деревянном бруске, — вот вам и качели. Своими руками все это сделать, согласитесь, не так уж трудно. Главное – иметь хотя бы элементарные навыки владения пилой и молотком, а также большое желание сделать приятное своим близким всех возрастов.

Для начала, определитесь с тем, кто же будет чаще кататься на качелях: только взрослые, только дети или и те, и те.
Качели с сиденьем, напоминающим скамью или небольшой диванчик, — это универсальный вариант. Здесь смогут расположиться сразу несколько членов семьи, например, мама с малышом. Для таких качелей своими руками вы можете сделать и яркие мягкие чехлы или подушечки, чтобы сидеть было еще удобнее. А навес над конструкцией убережет от непогоды и ярких солнечных лучей и ее саму, и вас в процессе катания.

Детских же вариантов качелей столько, что глаза разбегаются. Это могут быть и простейшие модели с сиденьем в виде дощечки, подвешенной на канате или цепях; и сиденья в виде стульчика; и качели, похожие на любимые всеми нами «лодочки», на которых смогут кататься сразу несколько детей; и сидения из старых автомобильных покрышек. Главное – чтобы качели для самых маленьких членов семьи были безопасными. Незаменимым с этой точки зрения будет ремень безопасности на сидении.
Умельцы создают замечательные качели даже из паллет – решетчатых деревянных поддонов для хранения различной продукции. Если включить фантазию, например, соединить две паллеты под углом, добавить ярких красок, мягкий матрасик и подушечки, то можно получить настоящий шезлонг, на котором поместятся даже несколько человек. Главное – чтобы он был подвешен прочно.

Как уже было сказано выше, качели с сиденьем, похожим на скамью или диванчик, — это оптимальный вариант для семьи, где любят покататься и взрослые, и дети. Поэтому на этом варианте остановимся подробнее и расскажем, как самостоятельно сделать такие качели на своем участке.
Делаем качели для дачи: этап создания сиденья
Итак, работать будем с деревом. Важно помнить: делаете ли вы стул своими руками, мастерите ли лестницу или беседку из древесины, ей всегда нужна защита от солнца и от влажности, иначе под жаркими солнечными лучами дерево может растрескаться, а от переувлажнения – начать загнивать. Но об отделке древесины поговорим позже. А пока займемся подготовкой необходимых материалов и инструментов.
Для каркаса сиденья рекомендуем взять доску сечением 150х50 мм, а для обшивки – 100х25 мм, то есть немного тоньше. Кроме того, вам потребуются саморезы, лучше из нержавеющей стали, сварная цепь или прочный канат, на который вы будете качели для дачи подвешивать, карабины и винты с кольцами (лучше из оцинкованной стали).

Из инструментов в вашем арсенале должна быть пила, дрель, ножовка или лобзик, наждачная бумага, молоток, шуруповерт, угольник, рулетка.
Вначале определитесь с размерами сидения. Исходя из них, и будем раскраивать доски для сборки каркаса. К слову, сидение лучше делать фигурным, то есть с углублением в области ваших самых мягких мест и с изгибом в области позвоночника (на спинке сидения). Наверняка ведь вы знаете, как выглядят фигурные скамьи, какие обычно ставят в парках.

Итак, вам потребуется отпилить три толстых доски одинаковой длины, которые станут горизонтальной опорой для верха спинки, низа сидения и участка, где стыкуются спинка и сидение. Боковые детали каркаса нужно будет фигурно вырезать лобзиком, если вы решите придать своим качелям для дачи изгибы. Если сидение будет достаточно широким, то в каркасе предусматривают еще одну вертикальную опорную доску – посередине.

Когда каркас собран, приступают к его обшивке. Здесь в дело пойдут доски более тонкие. Набивайте их вплотную друг к другу или оставляя небольшие просветы.
Еще сидению нужны подлокотники. Их делают из двух брусков, скрепленных между собой под углом. Один конец подлокотника крепится к сидению, а другой – к каркасу спинки.
Что касается винтов с кольцами, то одну их пару их крепят там, где подлокотники соединяются с сидением, а другую – ближе к верху спинки.
Далее вам останется только покрасить получившийся диванчик в нужный цвет или просто залакировать, если древесина уже сама по себе красивая. Цепь или канат крепятся к кольцам сидения при помощи карабинов.

Качели садовые своими руками: особое внимание – опоре
Сделать удобное сидение для качелей садовых своими руками – это еще только полдела. Столь же важным этапом является обустройство опоры, на которой сидение будет подвешено. Конечно, можно в таком качестве использовать и толстую ветку дерева. В случае с детскими качелями, особенно переносными, обычно именно так и поступают. Но так как мы с вами решили делать добротные качели садовые своими руками, уделим должное внимание и возведению держащей конструкции.

В качестве исходного материала может выступать достаточно толстый брус, оцилиндрованное бревно, металлическая труба или уголок – все зависит от ваших пожеланий и возможностей. Рекомендуется вертикальные опоры делать не в виде столбов, а в виде А-образных стоек с горизонтальной перекладиной, расположенной от грунта на расстоянии в 1/3 длины столбов. Так конструкция качелей будет более устойчивой. Брусья или столбы, образующие стороны буквы А, должны быть расставлены тем шире, чем шире вы предполагаете сделать сидение качелей.

Поперечная перекладина, на которую и будет навешиваться сидение, крепится к вертикальным опорам при помощи болтов или металлических накладок.
Далее необходимо держащую конструкцию установить в грунт. Для этого выкапывают 4 ямы глубиной от 80 см. На дне каждой из ям формируют «подушку» из щебня, затем устанавливают стойки и заливают скважины бетоном. Очень важно еще до схватывания раствора проконтролировать правильное расположение конструкции по горизонтали и вертикали при помощи строительного уровня.

На поперечной перекладине можно создать несколько пар креплений для цепей/канатов. Так держащая конструкция станет универсальной – подходящей для навешивания и обычных веревочных детских качелей, и семейного диванчика.
Вот так, при помощи самых нехитрых приспособлений и минимальных навыках можно своими руками сделать уютные и надежные качели, которые станут любимым местом дачного отдыха для всех членов семьи!
stroykadoma.org


