Как построить дачный туалет из кирпича своими руками. Поэтапные фотографии строительства кирпичного туалета
Приветствую Вас, друзья.
Как вы думаете: «Какое второе по значимости здание на земельном участке?». Как ни странно прозвучит — это туалет. Мы можем обойтись без бани, сараев и хоз. построек, но без туалета — никуда.
И вот вопрос постройки туалета коснулся и меня, так как старый деревянный покосился, наполовину сгнил и безбожно продувался. К тому же предыдущие хозяева дома имели очень дурную привычку — использовать выгребную яму как мусорную.
Свой выбор я остановил на капитальном строении, которое при правильном подходе должно прослужить не один десяток лет (я надеюсь:)).
Итак, я буду строить дачный туалет из кирпича своими руками, не прибегая к помощи строителей. Все затраты на материалы я выложу в конце статьи.
Плюсы и минусы кирпичного сортира
Постройки из любых материалов имеют как свои преимущества, так и недостатки. Кирпичный туалет тому не исключение.
- Основным преимуществом капитальной постройки является ее долговечность. Кирпич может простоять до 30 лет, не меняя своих эксплуатационных качеств, хорошо удерживает тепло и защищает от внешних воздействий.
- Кирпич не требует внешней отделки
- Для постройки такого сооружения не требуется прибегать к помощи специалистов — можно все сделать самому
Это были достоинства, но также имеются и недостатки:
- Довольно высокая цена постройки
- Статичность — нужно отдавать себе отчет в том, что это строение капитальное и нужно с умом подойти к выбору места.
- Низкая теплопроводность стен.
Это важно для тех, кто пользуется «дачным» туалетом не только в теплое время года.
Итак, если у вас, как и у меня плюсы перевесили минусы, то переходим к выбору чертежа.
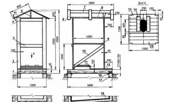
Чертеж туалета из кирпича

Перед постройкой необходимо нарисовать чертеж, чтобы знать размеры уличного туалета.
Рассмотрим чертеж.
Будущий туалет будет шириной 1250 мм и длиной 1400 мм. Высота передней стенки — 2300 мм, высота задней — 2000 мм. Крыша односкатная, шиферная.
Под туалет будет выкопана яма 2200 мм * 2200 мм *2200 мм. Снизу ямы залью ленточный армированный фундамент из бетона высотой 150 мм.
Яма выкладывается внутри красным кирпичом.
Послу укладки лью плиту перекрытия с армировкой. Высота плиты 150 мм.
После набора прочности плиты приступлю к выкладке стен на цементно-песчаный раствор.
После возведения туалета из кирпича сделаю стульчак из дерева по размерам, указанным выше.
Выбор места

Одним из важнейших аспектов строительства кирпичного туалета является грамотный выбор места его расположения. Чтобы будущая постройка не доставляла вам и вашим соседям неприятностей нужно соблюдать следующие условия:
- Если на вашем участке имеется колодец, то расстояние до него должно быть не меньше 8 метров
- Расстояние между домом и туалетом должно быть больше 12 метров
- Нужно соблюсти расстояние от соседнего участка не менее 3 метров
Как видите из рисунка сверху все расстояния соблюдены мною с лихвой. Осталось подготовить материалы и инструмент.
Материалы и инструменты
Для строительства кирпичного туалета нам понадобятся следующие инструменты:
- Бетономешалка
- Уровень строительный
- Лопаты штыковая и совковая
- Тачка или ведра
- Мастерок
- Ножовка
- Отвес
- Болгарка
Необходимые материалы:
- Песок, желательно просеянный
- Цемент
- Щебень
- Кирпич
- Арматура ∅14
- Доска для опалубки
- Шифер
- Доска для крыши
- Уголок металлический на перемычку
- Гвозди, саморезы
Копка ямы

Первым этапом строительства является копка ямы. Размеры будущей выгребной ямы — 2200 мм * 2200 мм * 2200 мм — глубина, ширина и длина соответственно. Копал яму вручную по 2 штыка в день, потом ровнял. В общем ничего сложного:)
Заливка фундамента
Многие из моих знакомых советовали мне не заливать опалубку под выкладку стен, а начать ложить кирпич прямо на твердый грунт (глину). Но я решил, что заливка опалубки будет не лишней.

Установил опалубку, для которой использовал доски 150 мм. Внутри произвел армировку 14-ой арматурой.

Залил бетоном.
Выкладываем яму кирпичом
Спустя неделю бетон застыл и можно выкладывать яму.

Сперва натаскиваю кирпич. Использую старый кирпич, который остался после того, как я пробил окно в спальне дочки.

Начал укладку на песчано — цементный раствор. Через каждые три ряда делаю отверстия шириной примерно на 2 пальца. Слишком широкие делать не стоит, так как через них яма будет забиваться грунтом.

Когда стало высоко работать с кирпичом сделал себе импровизированные леса. Для этого использовал два бруса 200 мм * 50 мм, которые уложил параллельно. На них настелил старые доски, которые прихватил одним гвоздем с каждой стороны.
Укладку кирпича произвожу без шнурки, так как нет больших расстояний и мне хватает уровня. Притом кладка черновая и какой -то запредельной четкости не требуется. Важно не завалить вертикаль!

Потихоньку растем.

Вот и результат. На все работы потратил почти неделю, так как работал один. Бока просыпал грунтом. Полы пока не убираю, так как с ними будет удобно собирать опалубку под заливку плиты перекрытия.
Заливка плиты перекрытия
Итак, друзья — яма готова и можно приступать к монтажу плиты перекрытия.

Для этого буду собирать несъемную опалубку.
Использовать буду доски 150 мм * 50 мм, которые предварительно вскрываю антикоррозионным средством.

Концы досок, которые будут лежать на кирпиче обматываю баннерами (ну нет у меня рубероида:)) и прихватываю скобками.

Два средних бруса сгоняю между собой, чтобы получить перемычку при дальнейшей заливке. Начинаю собирать щит.

К сожалению, так увлекся работой, что забыл фотографировать. В общем сделал щит, собрал щитки под отверстия — основное и для откачки. Накрыл все старым баннером, чтобы избежать потерь бетона при заливке.

Купил на пункте сдачи металла куски арматуры, из которых связал каркас. Сделал опалубку по периметру, которую вынес на 200 мм с каждой стороны, чтобы плита лежала не только на стенах, но и выходила на грунт. Приступил к заливке и тут как назло сломался подшипник на бетономешалке, поэтому доливал вручную.

Ну вот и результат. Пока плита набирает прочности — есть время на починку бетономешалки.
Выкладка стен кирпичом
Пришло время приступить к самой ответственной части строительства кирпичного туалета — возведение стен. Неожиданно пришла помощь в лице моего бати и за два дня мы все сделали.

Пошел дождь, но работа не останавливалась не на минуту.
Немного не рассчитал с общим уровнем по грунту — дело в том, что получилось, что сортир стоит в низине. Чтобы исправить эту неприятность, было принято решение поднять уровень пола на 1 кирпич, затем сделали гидроизоляцию и приступили к стенам.

Работа спорится.

Согласно чертежей туалета было облагорожено отверстие для выкачки. Сделано окошко и уложена дверная перемычка из металлического уголка. На этом этапе стены готовы.
Монтаж крыши
Для своего кирпичного туалета выбрал односкатную крышу из шифера.

В заранее оставленные пазы укладываю балки 100 мм * 50 мм.

Бруски заранее отторцованы и вскрытые антикоррозийным составом. В места соприкосновения с кирпичом уложен рубероид.

Далее набиваю доску дюймовку, раскатываю рубероид и укладываю восьми полосный шифер.

Прибиваю шифер на шиферные гвозди.

Конечный результат. Вылет крыши спереди и сзади по 400 мм, чтобы не забивало дождем.
Заливка чернового пола и отмостки
В связи с неровностью участка уровень полов в туалете пришлось поднимать. Для этого я решил залить черновой пол. Забутовал пространство под заливку кирпичным шлаком и просто пролил жидким раствором.

Далее выставил опалубку

И приступил к заливке отмостки.

Результат.
Монтаж вытяжки
Чтобы неприятные запахи не задерживались нужно сделать вытяжную трубу. Как вы видели еще в момент заливки плиты перекрытия была вмонтирована первая часть трубы, которая опускается в выгребную яму на 40 см.
Трубы использовал пп d = 110 мм. На всю конструкцию высотой 2300 мм пошло две трубы, два уголка по 90° и «грибок», предотвращающий попадания дождя.

Вся конструкция держится на хомуте соответствующего диаметра.

Установка деревянной двери
Друзья, к сожалению не делал фото процесса, так как у меня на блоге вы можете найти все полезные материалы, такие как:

Дверь установлена и запенена.

Вскрыл двери пропиткой, подрезал «обналичку» и жду высыхания для окончательной установки.
Делаем стульчак
Продолжаем делать кирпичный туалет и следующий самый ответственный шаг — монтаж стульчака. Видел у друзей как в дачный туалет устанавливали накопительный бак, собирающий дождевую воду, которая потом использовалась для смыва. Естественно в туалете устанавливали напольный унитаз, но я считаю что это слишком, поэтому стульчак будет классический, деревянный.

Укладываем направляющий брус на пол и крепим его на 90 саморезы.

Ближе к стене ставим второй брус, предварительно оборачиваю их снизу в баннера, которые использую как гидроизоляцию.

Согласно чертежей креплю брусок к стене саморезами и для увеличения прочности ставлю 4 подпорки.Все стягиваю саморезами и металлическими уголками.Выставляю передний брусок.

Зашиваю перед ОСП плитой толщиной 18 мм.

Снизу и сверху креплю распорки.

Формирую короб из ОСП.

Из листа нержавеющей стали делаю короб.

Зашиваю верх листом ОСП.

Прорезаю дырку и стульчак готов.
Заключение

Как видите сделать туалет из кирпича своими руками вполне возможно, хоть весьма трудоемко и затратно. Но я считаю, что цель оправдывает средства. Остались маленькие недочеты — сделать люк для откачки ямы, вставить окно и облагородить туалет изнутри.
Но это все мелочи, главное, что им можно пользоваться!
Надеюсь мой опыт будет вам полезен! Всем удачи!
rukozhopim.ru
Как построить кирпичный туалет на даче своими руками:фото,технология
Технология строительства кирпичного туалета
При выборе места следует учитывать тот фактор, что выгребная яма туалета может влиять на состояние окружающих вещей. Не следует ее располагать вблизи источника воды, так что если рядом есть колодец, то следует туалет располагать на максимально возможном удалении от него, так как он может загрязнить источник. Также следует отметить, что нельзя устанавливать туалет ниже уровня колодца. Не стоит забывать об эстетичности участка, так что лучше установить все не на видном месте. Решить данный вопрос помогает канализация для дачного туалета.
Проект туалета
Прежде чем возводить кирпичный туалет своими руками, следует подготовить проект будущего строения и ямы. Их размеры должны совпадать. Минимальный размер туалета должен составлять 1,3 м в ширину и 1,5 в глубину, но и слишком большие размеры делать не стоит, так как его потом неудобно будет обслуживать. Как правило, сама конструкция состоит из пола с покрытием, четырех стен с дверью и крышей. Стены выкладываются из кирпича, основание пола делается из бетона, крыша обкладывается кровельными материалами.
Подготовительные работы и рытье котлована
Когда вы строите туалет из кирпича на даче, то яму следует делать четко по выбранным размерам. После того, как она будет вырыта, следует обложить ее кирпичом, заштукатурить и забетонировать. После этого дать время схватиться, как правило, 2-3 дня. Бетонирование помогает продлить срок эксплуатации сооружения и уменьшить негативное влияние на окружающую местность.

Планирование и бетонирование
Чтобы построить кирпичный туалет на даче, первый лицевой ряд кладки нужно сделать на сухую, не используя раствор. Это поможет сделать подходящее распределение вертикальных швов, а также убережет от необходимости применять с лицевой стороны половинки. Когда профессионалы делают туалет из кирпича своими руками, то они могут не делать предварительную раскладку, но это может привести к погрешностям в швах.

После этого можно приступать к разметке углов конструкции. Необходимо узнать точные размеры диагоналей и тогда уже натягивать шнур по периметру. После всего этого можно выкладывать цокольный ряд. Даже при относительно небольшой высоте конструкции не следует пренебрегать горизонталью, чтобы пропорции сохранялись и к концу. Это же касается и вертикали углов, так как даже двухметровый кирпичный туалет на даче может резко покоситься.
Когда все углы будут заведены, то нужно натянуть шнур, с учетом последовательности в рядах. Для его закрепления следует воткнуть гвозди в швы. Ориентируясь по шнурам можно продолжать кладку.

Возведение стен
После того, как выгребная яма схватилась, можно приступать к дальнейшим этапам. Перед тем как построить кирпичный туалет своими руками, нужно сделать каркас из бетонных столбов, чтобы тяжелые стены конструкции не способствовали обвалу.
Важно!
На задней стенке желательно оставить несколько маленьких окошек для проветривания.
После того, как будет выложена некоторая часть стены, нужно расширить швы, чтобы раствор не стал крошиться, когда засохнет. Сухая ветошь послужит для сбивания остатков раствора. На каждом ряду нужно использовать уровень, чтобы контролировать ровность вертикальных и горизонтальных линий.

Когда вы будете строить туалет из кирпича на даче, во время кладки наступает этап, где нужно перекрывать оконные и дверные проемы. Для этого пригодится стальной уголок. Проем перекрывается на длину одного кирпича, а для толстых стен может понадобиться два кирпича.

Возведение крыши
Чтобы построить кирпичный туалет на даче своими руками, подойдет простая односкатная крыша. Когда основная коробка уже готова, то можно создавать внутренние перегородки и крышу. Скат не стоит делать в сторону дверей. Лучше создавать угол по бокам или сзади. В качестве материалы подойдет как обыкновенный шифер, так и другие кровельные материалы. «Важно! Профнастил может сильно шуметь во время дождя.» Для создания угла будет достаточно проложить на одной из стенок дополнительный ряд кирпича. Для крепления можно использовать деревянный или металлический каркас, куда можно прикрутить крышу с помощью метизов, или же использовать другие способы.


Вывод
Таким образом, построить туалет из кирпича своими руками, придерживаясь вышеуказанных советов, будет не так уж и сложно. Эти советы не требуют особых профессиональных навыков. Главное, вникнуть в процесс кладки, который является стандартным для многих сооружений из кирпича. Когда строите дачный туалет из кирпича фото желательно делать на каждом этапе работ, чтобы потом в дальнейшем можно было проанализировать результаты.
vivoz-gbo.ru
Туалет и душ на даче своими руками из кирпича, комбинированный, фото
Сооружение туалета и душа на даче, своими руками, является не такой уж сложной задачей, если хорошо понимать, что после чего делать, пользоваться уровнем и использовать качественные материалы.
На нашей даче мы решили построить комбинированный туалет и душ – во-первых, в таком случае мы сэкономим значительное количество материала, а во-вторых, такая конструкция будет смотреться более эстетично.
[alert-info]Туалет нельзя строить рядом с погребом, а также близко к другим постройкам, поскольку это может повредить фундамент.[/alert-info]Как построить комбинированный туалет и душ на даче из кирпича — фото отзыв:
Итак, перед началом строительства туалета и душа нам нужно выбрать участок, расчистить его и сделать разметку.
Разметку делаем сначала только на дачный туалет
Для этого забиваем небольшие колышки в землю и натягиваем шпагат. Это будет разметка для ямы – ширина 130 см, а длина – 140 см. По этой разметке копаем яму глубиной 2 м. Яму можно выкопать и больше, но такого размера нам вполне хватит.

Когда яма выкопана, начинаем выкладывать ее изнутри кирпичом. Мы выбрали кирпич неформатный, коленный, он будет более стойким, и конструкция прослужит намного дольше.
Дно ямы мы не выкладываем, начинаем со стен. Чтобы стены шли ровно, делаем разметку в яме, где начинать класть первый ряд. Для этого к леске привязываем гвоздь и опускаем его вниз с каждой стороны, там, где он прикоснется к земле, и нужно начинать кладку – в таком случае стены будут идеально ровными.

Разметка готова, и начинаем класть стены ямы для туалета
Делая кладку, мы оставляем отверстия между кирпичами. Для этого кирпич кладется только на предыдущий ряд, а с двух боков раствор не кладется, именно здесь оставляем место где-то в 8-10 см. Таким образом, выкладываем все стены ямы.
[alert-info]Отверстия нам нужны для того, чтобы влага впитывалась в землю, а не собиралась внутри ямы.[/alert-info]



После того как яма готова, и раствор высох, начинаем делать фундамент.
Теперь нам нужно сделать разметку и для дачного душа
У нас размеры туалета и душа одинаковые, но, по желанию, можно сделать душ и большим. Итак, внешняя ширина душа будет 130 см, а длина – 140 см. Копаем траншею по разметке шириной 20-25 см. Траншею нужно сначала заложить камнями, кусками кирпича, далее засыпать глиной и залить все это водой. Это делаем для того, чтобы фундамент получился максимально прочным и устойчивым.


Когда глины высохла, на яму кладем железные рельсы, сваи, уголки – что у кого есть. Главное, чтобы железо было очень прочное и толстое. Кладем эти уголки параллельно будущим дверям.

Делаем фундамент для комбинированного дачного туалета и душа своими руками
Сначала делаем опалубку по разметке, далее заливаем ее раствором. Раствор делаем таким образом – 3 к 1 (3 единицы песка, 1 цемента) и добавляем 4 единицы воды. Фундамент сохнет 5-7 дней. В это время делаем пол в туалете. В уголки вкладываем брусья, чтобы они прочно держались, далее вырезаем такие же брусья по размеру ямы (от одной боковой стены фундамента до другой) и закрепляем их с помощью гвоздей.



Когда фундамент высох, начинаем подготовку к возведению стен для туалета и душа на даче
Сначала на фундамент кладем лист рубероида, чтобы влага не поступала в основание, далее кладем стены в полкирпича. Важно также – перед началом возведения стен у нас уже должны быть готовы двери. Их мы устанавливаем на фундамент и закрепляем снизу. Также на время возведения стен их нужно подпирать планками. Далее выкладываем стены. Через каждые 3-4 ряда нужно забивать в двери длинные гвозди, чтобы вмуровать их в кирпичную кладку – так двери будут держаться максимально прочно.


Возводим стены до тех пор, пока высота задней стенки не будет 2 м, а высота передней – на 4 ряда выше. На боковых стенах у нас образуется лесенка. Важно – в последние ряды (передняя и задняя стены) нужно вложить деревянные брусья – основание крыши.
Когда стены возведены, цемент высох, делаем крышу для туалета и душа
Перпендикулярно брусьям кладем доски и прибиваем их. Нам понадобится 10 листов шифера.

Выкладываем по всему периметру крыши и забиваем специальными гвоздями с широкими шляпками.
В общем, наш комбинированный туалет и душ на даче, сделанный своими руками из кирпича, готов.
Осталось только:
- вставить дверь в раму,
- отделать стены и потолок изнутри и снаружи,
- прикрепить крючок,
- провести свет и установить бочок на душ.
Но это уже совсем другой разговор.

domashnij-ochag.ru
Как сделать туалет для дачи своими руками: чертежи, фото, пошаговая инструкция
Чтобы обеспечить комфортное пребывание на загородном участке, нужно в первую очередь построить туалет, для возможности справлять естественные потребности. Поскольку система канализации, это редкость на наших дачных массивах, то туалет придётся делать с выгребной ямой. Поэтому, очень важно правильно выбрать расположение туалета, чтобы избежать неприятного запаха и проблем с соседями. Кроме этого, из-за суровой зимы, желательно сделать дачный туалет утеплённым.
Где расположить туалет? Как правильно сделать выгребную яму? Какие материалы использовать при строительстве? И наконец, как построить туалеты разных типов? Всё это вы сможете узнать, прочитав нашу статью.
Расположение туалета на участке
В первую очередь нужно узнать, – насколько близко к поверхности вашего участка находятся грунтовые воды. Если грунтовые воды находятся ближе чем 2,5 метра к поверхности, то по санитарным нормам, выгребную яму делать нельзя. Спасти положение в такой ситуации, поможет пластиковая ёмкость для нечистот, расположенная на небольшой глубине.
Во вторых не располагайте туалет в низинах, это может привести к быстрому заполнению выгребной ямы во время сильного дождя, или в период таяния снега.
В третьих учитывайте фактор запаха, как бы хорошо не был изолирован туалет, неприятные испарения всё равно будут просачиваться из выгребной ямы и портить воздух в округе. По этой причине, лучше всего расположить туалет вдали от жилья и мест отдыха.
В четвёртых выгребная яма любого туалета нуждается в очистке, поэтому при выборе места для туалета, продумайте возможность беспрепятственного подъезда к нему ассенизаторской техники.
Ассенизаторская машинаИзготовление выгребной ямы
Выгребные ямы могут изготавливаться из монолитного бетона, кирпича, пластиковых ёмкостей и бетонных колец. Использование для постройки выгребной ямы баков из металла, не рекомендуется, поскольку со временем, стенки железного бака подвергнутся коррозии и нечистоты начнут загрязнять почву.
Выгребная яма из монолитного бетона
Для изготовления вам понадобятся:
- Цемент.
- Песок.
- Мелкий щебень.
- Арматура.
- Жидкое стекло.
- Проволока для вязки арматуры.
- Опалубка.
- Бетономешалка или емкость для изготовления раствора и лопаты.
Выгребная яма из монолитного бетонаПравильный порядок работ для изготовления выгребной ямы из бетона, заключается в следующих действиях:
- Выройте котлован.
- Утрамбуйте дно котлована и засыпьте его песком.
- Установите прутья арматуры на дно и свяжите их проволокой.
- Изготовьте цементный раствор и залейте им дно котлована слоем 15-20 сантиметров.
- После высыхания цементного раствора, установите на стенки котлована, предварительно изготовленную арматурную решётку.
- После связывания арматуры, установите по периметру стенок котлована – опалубку. Устанавливая опалубку, учитывайте тот факт, что бетонные стенки ямы должны быть выше уровня грунта 10-20 сантиметров, это позволит избежать попадания дождевой или талой воды в яму.
- Залейте опалубку цементным раствором.
- Когда раствор полностью высохнет, снимите опалубку.
- Для дополнительной герметизации ямы, обработайте стенки и дно, жидким стеклом или битумной мастикой.
Выгребная яма из кирпича
Для ямы из кирпича понадобятся:
- Качественный кирпич.
- Цемент.
- Песок.
- Арматура.
- Битумная мастика.
Выгребная яма из кирпичаЧтобы изготовить выгребную яму из кирпича:
- Выройте котлован.
- Также как и в варианте с монолитным бетоном, произведите заливку и армирование дна ямы.
- Произведите кладку кирпича по периметру стенок ямы.
- После высыхания цементного раствора в кладке, произведите штукатурку стен ямы.
- Обработайте стены битумной мастикой.
Выгребная яма из бетонных колец
Выбрав вариант выгребной ямы из железобетонных колец, учтите, что для их перемещения вам понадобится специальная техника. Яма делается следующим образом:
- Выройте котлован круглой формы, размер котлована должен позволять свободно помещать в него бетонные кольца.
- С помощью крана установите в котлован кольца. Следите за тем, чтобы бетонные кольца вставали ровно, без перекосов и щелей.
- Заделайте зазоры между кольцами цементным раствором.
- Засыпьте грунтом пространство между стенками котлована и кольцами.
- Залейте дно котлована цементным раствором, для повышения прочности дна, можете предварительно провести армирование.
- Обработайте швы между кольцами жидким стеклом или битумной мастикой.
Выгребная яма из бетонных колецВыгребная яма из пластиковой емкости
Данный вариант выгребной ямы самый лёгкий в производстве, но требующий затрат на приобретение вместительной пластиковой ёмкости. Форма ёмкости должна позволять свободно откачивать из неё нечистоты.
Для установки пластикового бака вырывается яма. После помещения емкости в котлован пространство между стенками бака и котлована засыпается грунтом.
Выгребная яма из пластиковой ёмкостиСледует отметить, что все перечисленные варианты выгребных ям, можно делать без герметичного дна, только с фильтрующим слоем из щебня или песка. Этот способ устройства выгребной ямы позволяет снизить скорость накопления нечистот, за счёт ухода жидкости непосредственно в почву. Но не герметичные выгребные ямы, запрещены санитарными нормами.
Также при строительстве выгребной ямы не забывайте об отдушине для выхода горючих газов, образующихся при разложении органических веществ и при их значительном скоплении, создающих условия для возгорания.
Варианты туалета для дачи
Туалет из кирпича
Кирпичный туалет гораздо тяжелее по весу, чем деревянный, поэтому его лучше всего строить над выгребной ямой из монолитного бетона и использовать стенки ямы в качестве фундамента.
Туалет из красного кирпичаЭтап первый – заливка основания
- Изготовьте опалубку с основным отверстием для поступления нечистот, расположенным по центру и дополнительным для отвода газов, расположенным за стенами туалета.
- Установите опалубку в выгребную яму и закрепите её на нескольких прутьях арматуры.
- Сделайте решётку из прутьев арматуры связанных проволокой и установите её на опалубку.
- Залейте опалубку цементным раствором, толщина слоя должна быть не менее 15 сантиметров.
Основание для кирпичного туалетаЭтап второй – кладка стен
- Произведите кладку первых рядов кирпичей. Во избежание перекосов и неровной кладки используйте уровень и отвес.
- Постепенно увеличивайте число кирпичных рядов, постоянно сверяясь с отвесом и уровнем, особенно это замечание касается, дверного проёма.
- Дойдя до конца дверного проёма, установите перемычку из железных уголков.
- Для устройства односкатной крыши, фронтальную стенку туалета следует делать выше задней на 20-30 сантиметров. Боковые стены делают с косым переходом – от фронтальной к задней стенке.
Кирпичная кладкаЭтап третий – изготовление крыши и установка двери
- Установите на стены продольные балки из брусков сечением 150х50 миллиметров.
- Набейте на балки поперечные рейки сечением 50х20 миллиметров.
- Прибейте к получившейся обрешётке лист шифера, металлочерепицы или профнастила.
- Установите дверную коробку, закрепив её на анкерные болты.
- Повесьте дверное полотно на навесы и установите ручки с замком.
Этап четвёртый – отделка стен, пола и потолка
Отделывать стены и потолок в туалете можно разными материалами. Вешние стены лучше всего отделать материалом, который использовался для отделки других строений на даче. Это позволит сохранить общий стиль участка. Для внутренней отделки, можно использовать панели ПВХ, штукатурку или деревянные рейки. Используя варианты с ПВХ панелями и рейками, у вас появится возможность дополнительного утепления стен и потолка туалета минеральной ватой или пенопластовыми панелями. Для отделки пола в туалете укладывают плитку или просто настилают линолеум.
Обшивка рейкамиЭтап пятый – обустройство туалета
Для более удобного пользования туалетом, на центральное отверстие устанавливают специальные унитазы, у которых отсутствует канализационное «колено». Чтобы не испытывать затруднений в зимний период, желательно провести в туалет отопление. Для полного комфорта, проведите в туалет электричество и сделайте освещение как внутри, так и снаружи.
Унитаз без “колена”Инструкция в фотографиях по строительству кирпичного туалета, также доступна в ролике:
Деревянный туалет
Преимущество деревянного туалета перед кирпичным в том, что его можно изготовить отдельно от выгребной ямы. Также благодаря лёгкому весу, деревянный туалет можно устанавливать над любым видом выгребной ямы.
Туалет – «скворечник»
Это самый бюджетный вариант деревянного туалета. Туалет «скворечник» позволяет сэкономить финансовые затраты на своё строительство, но это сильно сказывается на его комфорте. Поэтому, данный тип туалета в основном используется как временное решение и при последующем обустройстве участка, заменяется на более основательные конструкции.
Ниже приведены чертежи, по которым вы сможете построить туалет своими руками:

Порядок выполнения работ при изготовлении туалета:
- Сверяясь с чертежом, изготовьте каркас.
- Нарежьте рейки для обшивки каркаса (размеры указаны в таблице).
- Обшейте каркас пол и крышу рейками.
- Изготовьте дверь и повесьте её на петли.
- Закройте крышу рубероидом или другим кровельным материалом.
- Установите туалет на выгребную яму.
- Обработайте каркас и рейки олифой, после этого, покрасьте туалет краской.
Туалет “скворечник”Подробную инструкцию по изготовлению туалета – «скворечник», в можете посмотреть в ролике:
Туалет – «домик»
«Домик» – более комфортный и прочный вариант деревянного туалета, по сравнению со «скворечником». Для постройки туалета – «домик», требуется больше времени и затрат на стройматериалы, но это себя оправдывает более комфортной эксплуатацией. Ознакомьтесь с чертежами туалета:


Порядок выполнения работ почти такой же, как и при изготовлении туалета «скворечник», главное сверяйтесь чаще с чертежами.
Туалет “домик”Туалет с душем
Объединение двух бытовых построек в одну, позволяет сэкономить место на дачном участке и сократить расходы на их строительство. Правда такое соседство будет иметь и свой минус, выраженный в виде неприятного запаха во время приёма душа. Поэтому душевую кабинку следует делать более изолированной, без щелей и зазоров.
Данный тип постройки состоит из двух кабин, объединённых под одной крышей и имеющих общую стену. Кабина – предназначенная под туалет, должна быть над выгребной ямой, а кабина для душа, должна иметь слив для воды. Ниже представлены примерные параметры туалета с душем:
Туалет с душем, можно изготовить из: кирпича, шлакоблоков, деревянных реек или досок.
Давайте рассмотрим вариант строительства из дерева. Для работы нам потребуются:
- Четыре бруса длиной по 2,75 метра и четыре бруса по 2 метра, сечением 10х10 сантиметров.
- Брусья сечением 5х10 сантиметров и длиной по 2 метра в количестве 24 штуки.
- Деревянные доски для обрешётки, сечением 1х10 сантиметров.
- Брусья сечением 5х10 сантиметров, длиной по 2 метра, в количестве 12 шт.
- Для пола в туалете, доски сечением 4х15 сантиметров в количестве 20 штук.
- Пластиковые трубы и слив.
- Цементный раствор в количестве полутора куба.
- Фанерные листы для опалубки.
- Песок и гравий, или щебень.
- Металлочерепица или другой кровельный материал.
Каркас туалета с душемКак изготовить выгребную яму, написано выше, поэтому перейдем сразу к изготовлению каркаса:
- Сделайте нижнюю обвязку, используя бруски сечением 10х10 сантиметров.
- Для возведения каркасных стен, установите по углам брусья сечением 5х10 сантиметров. Для соединения их с нижней обвязкой используйте металлические пластины и уголки. Проверьте правильность положения брусьев с помощью уровня.
- Установите два бруска в каркасе для крепления будущей двери.
- Сделайте верхнюю обвязку, соединив с вертикальными опорами бруски сечением 10х10 сантиметров.
- На верхней обвязке установите три стойки с коньковой доской.
- Сделайте стропила для двускатной крыши с шагом 60 сантиметров, используя доски сечением 1х4 сантиметра.
- Изготовьте обрешётку из обрезных досок.
- Накройте крышу металлочерепицей.
- Перейдите к установке пола кабинке для туалета. Изготовьте каркас для постамента и обшейте его и пол доской толщиной 2 сантиметра.
- Обшейте стены туалета досками.
- Установите пенопластовые панели в каркас и заполните щели монтажной пеной.
- Произведите обшивку внутренних стен.
- Сделайте пол в душе из цементного раствора. Заливая пол, делайте уклон для слива воды.
- Поверх бетонного пола установите чистовой пол из досок.
- Обшейте стены досками и установите пенопластовые панели также как и в туалете.
- Установите двери в проёмы.
- Подведите трубу с водой и установите душ. Если на даче нет водопровода, то установите на крыше кабинки душа бак для нагрева воды на солнце.
- Проведите к кабинкам электричество и сделайте освещение.
Туалет с душемКак изготовить туалет с душем на трубчатом фундаменте в можете узнать посмотрев видео:
Необычные варианты дачных туалетов
Туалет для дачи можно изготовить практически из любого материала и придать ему самый необычный дизайн. Ниже мы приведём вам фотографии необычных дачных туалетов:

- Туалет из брёвен. Изготовлен по старой технологии, способом укладки брёвен с подходящим диаметром, друг на друга.
Плюсы: красивый дизайн, прочность, долговечность.
Минусы: большой вес, слабая пожарная безопасность, насекомые-вредители.
- Туалет из брёвен. Изготовлен по старой технологии, способом укладки брёвен с подходящим диаметром, друг на друга.

- Туалет из профилированного листа. Бюджетный вариант дачного туалета.
Плюсы: низкая стоимость.
Минусы: ужасный дизайн, ужасная жара внутри летом и сильный холод зимой.
- Туалет из профилированного листа. Бюджетный вариант дачного туалета.

- Туалет – карета. Самый необычный дачный туалет на сегодняшний день.
Плюсы: красивый дизайн, оригинальность.
Минусы: сложность изготовления, отсутствие выгребной ямы (исправимо).
- Туалет – карета. Самый необычный дачный туалет на сегодняшний день.

- Туалет – мельница. Туалет из досок стилизованный под мельницу.
Плюсы: недорогая цена, необычный дизайн.
Минусы: дешёвый вид, слабая пожарная безопасность.
- Туалет – мельница. Туалет из досок стилизованный под мельницу.

- Каменный туалет. Оригинальный туалет из камня.
Плюсы: красивый дизайн, прочность, долговечность, пожарная безопасность.
Минусы: высокая цена, трудность изготовления.
- Каменный туалет. Оригинальный туалет из камня.

- Туалет из соломы. Очень оригинальное использование соломы.
Плюсы: красивый дизайн, экологическая безопасность.
Минусы: недолговечность, очень слабая пожарная безопасность.
Изготовление дачного туалета – непростое дело, требующее хотя бы минимальных навыков в строительстве, поэтому если вы не уверены что справитесь, обратитесь лучше к специалистам. Если же вы считайте, что сможете сделать туалет своими руками, то смело приступайте к работе!
remboo.ru
Туалет из кирпича своими руками (фото)
На начальном этапе строительства частного дома или дачного участка строят туалет из материалов, которые подворачиваются под руку, т.е. временное строение. Однако в некоторых случаях необходим надежный туалет из кирпича, которым комфортнее пользоваться в холодное время года.

Схема устройства туалета.
К выбору места для строительства туалета необходимо отнестись ответственно. Надо учитывать несколько факторов, которые могут повлиять на качество жизни в дальнейшем. Категорически запрещено ставить туалет в непосредственной близости с источниками водоснабжения (колодцы, родники, скважины). При их загрязнении вода станет непригодной для употребления.
Расстояние от туалета до колодцев должно быть максимально удаленным, не менее 30 м. Кроме того, если участок расположен на уклоне, то туалет нельзя строить ниже источников воды. Чаще всего туалет строят на углу участка, что не нарушает общий вид. При этом рядом с ним могут располагаться и другие постройки хозяйственного назначения, например, сарай для хранения садового инвентаря.
Инструменты и материалы
Для того как построить туалет, необходимо наличие следующих материалов и инструментов, которые подготавливают для предстоящего процесса заранее:
Инструменты для кладки кирпича.
- лопата, совковая и штыковая;
- строительные уровни различной длины;
- леска или шнур;
- гвозди;
- молоток и строительная кирочка;
- мастерок;
- приспособление, с помощью которого можно расшивать швы;
- бетон, если нет готового для заливки бетона, то необходим щебень, песок, цемент для приготовления раствора непосредственно при строительстве;
- кирпич;
- дверное полотно и коробка;
- материалы для крыши: шифер, рубероид, профнастил, металлочерепица, мягкая гибкая черепица;
- стекло или стеклянные блоки для окна;
- пластиковая труба.
Само строительство условно можно разбить на 2 этапа: обустройство выгребной ямы и строительство домика туалета. Везде имеются свои особенности и нюансы.
Вернуться к оглавлению
1 этап строительства: подготовка
После того как место для туалета определено, можно приступать к строительству. Первое, что предстоит сделать — это устроить выгребную яму. Она может быть пластиковой, кирпичной, бетонной, в зависимости от используемых материалов.
Так, для пластиковой выгребной ямы используют пластиковые емкости больших объемов, но при этом следует иметь в виду, что срок службы такой емкости не очень длительный. Устройство бетонной выгребной ямы предполагает использование бетонных колец или самостоятельное бетонирование при строительстве. Кирпичная яма образуется путем укладки кирпича на раствор.
Размеры выгребной ямы для дачного туалета из кирпича.
Выгребную яму копают на глубину 1,5 — 2 м. Самыми целесообразными геометрическими размерами являются ширина 1 м, длина 1,3 м. Для того чтобы продлить срок эксплуатации ямы и снизить ее негативное влияние на окружающую среду, днище нужно забетонировать. Для этого в выкопанную яму укладывают слой песка, утрамбовывают, затем слой щебня, утрамбовывают.
После этого заливают бетоном. Желательно, чтобы предварительно была сооружена арматурная сетка. Это позволит бетону не трескаться в дальнейшем и избежать протеканий из ямы. После того как дно окончательно застынет (3-4 дня), можно приступать к строительству стенок ямы.
Если решено строить выгребную яму из кирпича, то на бетонное основание укладывают кирпич на раствор. При этом кирпич должен укладываться плотно, недопустимы зазоры, через которые возможно проникновение стоков в грунт и разрушение конструкции ямы.
Кроме того, при строительстве выгребной ямы необходимо предусмотреть наличие трубы, через которую будет осуществляться опорожнение ямы при ее заполнении. Для этих целей подходит пластиковая труба, которая используется для прокладки канализации. Она должна входить в яму под углом и быть в доступе для специальной техники для опорожнения.
Для того чтобы в выгребную яму не попадал мусор, наружный конец трубы следует прикрыть козырьком или сеткой. Однако эти защитные элементы не должны затруднять работы по очистке ямы ассенизаторами.
Вернуться к оглавлению
2 этап строительства: непосредственное возведение
Схема кладки кирпича вприжим: а – ложковый ряд; б – тычковый ряд: 1–4 – порядок действий.
Когда закончено строительство ямы, можно приступать к строительству домика туалета из кирпича. 1 ряд кладки выполняют без раствора. Это делают для того, чтобы распределить вертикальные швы и не использовать половинки кирпичей на лицевой части строения. После этого приступают к разметке углов.
Для этого измеряют диагонали и после тщательных замеров протягивают шнур по периметру будущего строения. Затем выкладывают 1 ряд кирпичей на раствор. Раствор замешивают из цемента и песка с водой в пропорции 1:3. При этом раствор должен быть эластичным и не стекать с кирпича при нанесении. Горизонталь кладки выставляют по уровню и проверяют каждый раз после укладки кирпича.
Если строение небольших размеров, то выкладывают весь ряд целиком, однако если к туалету примыкает хозяйственная постройка, то сначала выполняют кладку углов. При этом необходимо использовать уровень для строгого соблюдения вертикали. Выводят 4-5 рядов углов и затем приступают к заполнению всего ряда.
Для соблюдения горизонтали необходимо натянуть шнур, который закрепляют при помощи вогнутых в шов гвоздей. Этот шнур будет служить ориентиром для кладки стены. Излишки раствора удаляют концом мастерка, не допуская излишнего загрязнения наружных стен.
Для проникновения света нужно предусмотреть размещение окошка или в процессе кладки уложить несколько стеклоблоков.
Схема видов кирпичной кладки.
Чаще всего окна или стеклянные блоки укладывают на задней стенке. Однако сооружение именно окон, которые открываются, позволит обеспечить вентиляцию туалета.
После выкладки нескольких рядов, когда раствор еще не успел застыть, швы расшивают, применяя для этого специальный инструмент. Сухой жесткой тряпочкой удаляют слегка засохший раствор, тем самым добиваются чистой поверхности стены.
Чтобы усилить дверной проем и не допустить прогибов кладки, используют уголок, который монтируют в процессе кладки. При этом желательно, чтобы уголок был уложен с 2 сторон кирпича.
После того как строительство стен завершено, приступают к кровле. Чаще всего это односкатная крыша, для которой лицевая стена строится немного выше задней, что обеспечивает стекание дождевой воды и скатывание снега.
Балки, на которые впоследствии будет крепиться кровельный материал, можно уложить в верхние ряды кладки. Но их следует обернуть рубероидом, чтобы вода из раствора не проникала в древесину балок. После застывания раствора на балки прибивают доски в качестве обрешетки, на которые крепят выбранный кровельный материал: шифер, металлочерепицу, профнастил.
После окончания строительных работ необходимо приступить к отделочным и монтажу унитаза. Внутренние и наружные стены необходимо оштукатурить. Это защитит наружную часть стены от воздействия внешних агрессивных факторов и продлит срок службы. А внутренняя штукатурка скроет дефекты кладки. Для выполнения отделки следует использовать смеси для наружных и внутренних работ. Теперь вы знаете, как построить туалет. Удачи!
Источник
thewalls.ru
Дачный туалет — Топ 100 лучших фото идей с оригинальным дизайном!
Обустраивая дачный участок, любой его владелец, прежде всего, задумывается о том, чтобы сделать его удобным и функциональным.

И при этом учитывается и такая постройка как туалет. Ведь выезжая на природу, вы отказываетесь от многих благ цивилизации, однако, без некоторых жить совершенно невозможно.

В этой статье мы расскажем вам о том, как правильно и быстро можно возвести на участке туалет. Он будет удобным и прослужит не один сезон. И при этом вам не придется сильно тратиться на него.
С чего следует начинать процесс строительства?
Сразу же стоит отметить, что конструкции из кирпича и бетона рассматриваться не будут, поскольку их строительство является капитальным и позволить его могут далеко не все дачники.

Будут рассмотрены бюджетные варианты, которые собственноручно смогут возвести на своем дачном участке люди даже с небольшим уровнем доходов. С чего же необходимо начинать строительство Разумеется, с подготовительного этапа.

Первое, что нужно сделать, после того как вы совершенно точно определились с тем, что хотите построить туалет, так это выбрать тип слива, отвода и утилизацию стоков. Сделать это можно только опираясь на условия, которые характерны конкретно для вашего участка.

Как только вы для себя выясните это, можете приступать к следующему подготовительному этапу, который подразумевает определение месторасположения конструкции.

Перед тем, как окончательно утвердить местоположение туалета, задумайтесь, является ли оно удобным.

Крайне не рекомендуется устанавливать санузлы возле соседских заборов и в самом видном месте сада. Лучше всего для этого подходят отдаленные участки, вблизи которых произрастают высокие деревья.

После этого вам следует принять решение, которое касается типа конструкции. Вы можете построить либо кабину, либо так называемую будку. В данном случае это полностью зависит от ваших пожеланий и предпочтений. Особых рекомендаций здесь нет.

Далее необходимо продумать, как будет выглядеть готовая конструкция и чем ее можно украсить. Конечно, украшение потребует дополнительных материалов, поэтому если у вас нет возможности приобрести их, откажитесь от декорирования.

Вы можете просто покрасить готовую конструкцию и таким образом сделать ее красивее.

Как только вы закончите с этим, можете приступать к составлению сметы на расходы. Делать это крайне желательно. Ведь таким образом вы узнаете примерную сумму предполагаемых трат и, в случае необходимости, внесете коррективы в смету.

Например, если вы выбрали достаточно дорогостоящие материалы, сможете заменить их на более дешевые аналоги.
Будка или кабина – что выбрать?
Как уже было написано выше, владельцу участка необходимо самостоятельно определиться с выбором конструкции.

Однако, чтобы несколько упростить его, расскажем о некоторых характеристиках данных конструкций. Зная их, вы сможете с легкостью определить, что вам подходит больше.

Будка. Основным материалом, который используется при построении дачного туалета будка, выступает дерево. Однако, речь идет вовсе не о дорогих породах дерева. Зачастую используется обычная дешевая древесина.

Туалет данного типа очень хорошо и долго сохраняет тепло, поэтому находиться в нем в осенний или зимний период будет достаточно комфортно.

При этом летом в такой конструкции будет совершенно не жарко, поскольку изделия из дерева «дышат».

Произведя минимум простых обработок, вы сможете существенно повысить влагоустойчивость конструкции, сделав ее в разы прочнее. Стоит так же отметить, что строительство фундамента в данном случае необязательно.

Кабина. Существует несколько вариаций, которые делают туалет кабину более интересной внешне, нежели будку. Однако, сразу же стоит отметить, что большинство этих вариантов являются крайне неустойчивыми и требуют обязательной закладки фундамента.

Одним из наиболее простых и доступных способов укрепления является размещение на крыше дачного туалета бака с водой.

Прочность кабины под нагрузкой увеличивается и это позволяет вам использовать ее чердак для хранения различных садовых инструментов или другой утвари.

Не забывайте о том, что если вы хотите построить действительно красивый дачный туалет, вам следует отдать предпочтение кабине. Декорировать ее значительно легче и интереснее.

Фото дачного туалета


























dizajninterer.ru
Строительство кирпичного туалета на даче
Знание теории о том, как класть кирпич, — весьма полезная вещь, но именно навыки, закрепленные на практике дают красивую и качественную кладку. Поэтому давайте обсудим этот процесс поэтапно и более подробно. Для наглядного примера можно взять наиболее простое строение, то есть к уличный туалет из кирпича на даче.

Место под туалет следует выбирать подальше от колодцев с питьевой водой и постоянного местонахождения дачников — лучше всего в дальнем углу участка.
Большинство хозяев дачных участков сталкиваются со временем с необходимостью строительства на своем участке туалета. В зависимости от целей его использования (туалет необходим только на дачный период или планируется в доме постоянное проживание) надо определиться с материалами для строительства. Возможны способы возведения туалета из кирпича, дерева, ракушечника. Деревянный туалет на даче не предназначается для длительного применения. Для того чтобы туалет выполнял необходимые функции, лучше всего возводить его из кирпича. Пусть этот вариант обойдется немного дороже, зато срок его эксплуатации окупит с лихвой все затраты.
Как и при любом строительном процессе, при постройке кирпичного туалета на даче необходимо учитывать ряд факторов. Если не принимать во внимание нюансы, в дальнейшем можно получить неприятные проблемы, например, испорченную питьевую воду или неприятные запахи, разносящиеся по участку.
Во-первых, необходимо определиться с размещением постройки. Лучше учитывать при выборе места определенные гигиенические факторы.
Например, туалет должен находиться от скважины с водой или колодца не ближе чем на 30 м.
Схема устройства дачного туалета: 1 — вытяжка; 2 — сиденье на стульчаке; 3 — люк выгребной ямы; 4 — дно с уклоном.
Если туалет будет находиться ближе, то возникает риск загрязненной воды. Когда данное требование не выполняется и туалет расположен в нескольких метрах от колодца, возможен следующий вариант развития событий: колодезная вода перестанет быть питьевой и будет использоваться лишь в технических целях.
Если имеется наклон и участок неровный, то туалет на даче нельзя располагать ниже колодца или скважины. Учитывайте эстетичность вашего участка, поэтому не стройте туалет на видном месте.
Во-вторых, соберите весь необходимый для этой цели инструмент.
Необходимые инструменты и материалы
Для строительства туалета из кирпича понадобятся следующее:
- лопата;
- строительный уровень;
- толстая леска или капроновый шнур;
- гвозди;
- молоток-кирочка;
- приспособление для расшивки швов;
- ветошь;
- удобный мастерок;
- бетон;
- кирпич;
- дверь;
- кровельные материалы;
- стекло для окон.
Планирование и бетонирование
Схема устройства выгребной ямы с бетонным дном. Размеры выгребной ямы: от 1 до 1,3 м в ширину и 1,5 м в глубину.
После того как вы выбрали наилучшее место для строительства туалета на даче с учетом всех необходимых нюансов, начинаем строительство туалета. Для начала необходимо выкопать выгребную яму своими руками. Размер ямы зависит напрямую от размера планируемого туалета. Целесообразно придерживаться размеров приблизительно 1-1,3 м шириной и 1,5 м глубиной, не меньше. Для того чтобы яма выстояла длительное время, ее нужно обложить изнутри кирпичом, а затем оштукатурить. Днище выгребной ямы необходимо сделать ровным и обязательно забетонировать. Для того чтобы раствор схватился полностью, необходимо на 2-3 дня оставить яму. Если использование туалета не рассчитывают на длительное время, то можно обойтись и без бетонирования.
Когда весь необходимый инструмент собран, выкладывается лицевой ряд на сухую, без раствора. Это необходимо для подходящего распределения вертикальных швов и даст возможность избежать использования на лицевой стороне половинок. Опытные каменщики не делают предварительную раскладку, это приводит нередко к огрехам в швах или использованию половинок на лицевой стороне кладки. Вот почему предварительная раскладка — это немаловажный этап работ.
Затем можно начинать разметку углов будущего строения. При этом нужно точно измерить диагонали и только потом натянуть шнур по периметру. Далее выкладывается на раствор первый (цокольный) ряд кирпичей.
Технология кладки кирпичей: а – разравнивание раствора; б – намазывание раствора на кирпич.
Обратите особое внимание на тщательное соблюдение горизонтали. Это необходимое условие для правильной кладки в дальнейшем и соблюдения всех требующихся пропорций.
После этого можно начинать заводить углы. Для правильной и точной кладки наружных углов нужно пользоваться строительным уровнем. Каменщики нередко пользуются отвесом, но вместо него можно использовать и уровень. Результат будет таким же.
Обязательно соблюдайте строгую вертикальность углов, иначе здание может превратиться в пизанскую башню.
Когда углы заведены, между ними необходимо натянуть шнур или леску, соблюдая в рядах последовательность. Для закрепления шнура пользуйтесь гвоздями, воткнутыми в швы.
Ориентируясь по натянутому шнуру, можно приступать сразу же к кладке стены. Следите за толщиной вертикальных и горизонтальных швов. Удаляйте излишки раствора при помощи конца мастерка, стараясь выполнять эту работу, как можно аккуратней, дабы не испачкать лицевую сторону кладки.
Возведение стен туалета на даче
Схема кладки кирпича вприжим: а – ложковый ряд; б – тычковый ряд: 1–4 – порядок действий.
После того как несколько дней постояла выгребная яма и раствор схватился полностью, можно начинать возведение стен своими руками. При строительстве кирпичного туалета нужно учитывать тот факт, что стены получатся достаточно тяжелыми. Чтобы избежать обвала, необходимо перед этим возвести из бетонных столбов каркас. После того как установлен каркас, начинаем строить кирпичные стены. На задней стенке необходимо оставить маленькие окошки (примерно 2 штуки) для обеспечения проветривания туалета. Форма туалета зависит от вашей фантазии, обычно же он имеет прямоугольную форму.
После того как вы выложили определенную часть стены, следует расшить швы, пока раствор не засох и не стал крошиться. Затем сухой ветошью сбить остатки раствора и можно дальше продолжать кладку. Во время этого процесса необходимо регулярно пользоваться уровнем для проверки горизонтальной и вертикальной линии всех стен и углов, только в таком случае вы сможете придерживаться правильной толщины швов и всех необходимых размеров строения.
Схема кладки кирпича вприсык: а – ложковый ряд; б – тычковый ряд: 1–3 – порядок действий.
В процессе кладки своими руками появляется необходимость перекрывать дверные и оконные проемы. Наиболее подходящим для этих целей материалом является стальной уголок. Зависимо от ширины пролета и толщины возводимых стен подбираете нужный вам уголок и отрезаете по заданному размер. Во избежание провисания и для надежности необходимо выбирать надежный уголок и как минимум перекрывать проемы с каждой стороны на длину 1 кирпича. Если толщина стены идентична толщине кирпича, можно пользоваться одним уголком, равным по размеру кирпичу. Но если вы желаете построить капитальное строение, необходимо использовать 2 уголка.
Монтаж крыши туалета на даче
После постройки стен приступаем к крыше. Для кирпичного туалета подходящей будет самая обыкновенная односкатная крыша. Покрыть ее можно любым имеющимся шифером или кровлей.
Крышу для туалета обычно делают односкатной, покрывая его любым из доступных материалом: шифером, металлочерепицей и пр.
По завершении работ по постройке основной коробки своими руками можно начинать кладку внутренних перегородок. Основные способы примерной кладки мы рассмотрели, теперь надо обратить внимание на некоторые детали, которые тоже важны при постройке кирпичного туалета своими руками. Во-первых, нужно просеять песок, который будет использоваться для приготовления раствора. Это даст возможность избежать попадания в раствор мелких камней и даст ему однородную консистенцию. Во-вторых, для хорошей кладки кирпичных стен необходимо придерживаться установленных пропорций цемента и песка. Для кладки это 1:3, то есть 3 части песка на 1 часть цемента. Для удобства пользования раствором, чтобы его не приходилось часто подмешивать, добавьте специальный строительный пластификатор. Его количество высчитывается согласно прилагаемой инструкции.
После окончания внешнего строительства, необходимо оштукатурить стены и установить внутри туалета деревянный короб. В короб можно засыпать золу, опилки, торф.
Стоит упомянуть, что долговечность и надежность строения, сделанного своими руками, связаны не только с качественной кладкой кирпича, но и с надежностью фундамента, на котором расположено строение. При соблюдении всех выше приведенных советов самостоятельное возведение несложных построек позволит вам довольно ощутимо сэкономить бюджет. Все полученные навыки самостоятельного строительства пригодятся в будущем.
Как видите, выше приведенные советы довольно просты и не требуют от вас особых профессиональных навыков. Кроме того, сделанное своими руками строение повысит в значительной степени вашу самооценку и прибавит в глазах близких уважения. Когда вы вникнете в весь процесс кладки, можно сделать задачи более сложными: от простой постройки (туалет на даче) перейти к более сложным типам зданий на своем участке.
1pokirpichy.ru

