как сделать проект дома самому
Для многих людей загородный дом является чем-то наподобие заветной мечты – перспектива отдохнуть от городской суеты в уютном уголке кажется достаточно радужной. Более того, хочется не просто приобрести уже готовое строение с обустроенным приусадебным участком, а создать усадьбу своей мечты, в которой будут правильно воплощены все пожелания относительно дизайна и планировки. Остается только одно – перенести свои задумки на бумагу, а уже затем, составив проект дома и определив его месторасположение на участке, воплощать в жизнь (заниматься непосредственно строительством дома). Если в отношении второго момента, по определению, не может быть никаких сомнений относительно необходимости сторонней помощи – даже в том случае, если вы будете профессиональным строителем, самостоятельно возвести правильный особняк вы не сможете, а вот затраты на составление архитектора можно исключить. Каким образом проектирование и строительство можно удешевить? Да очень просто – выполнить самому его работу вполне возможно, даже не имея каких-либо специальных навыков создания проекта частного дома. Осуществить проектирование дома (нарисовать его на бумаге схематически), на самом деле, не так уж и сложно!
Что нужно учитывать при самостоятельном составлении проекта собственного дома?
Самое главное заключается в том, чтобы разработанный вами проект строительства дома создавался опираясь на следующие принципы:
Множественная функциональность – то есть, возведенный дом по этому проекту будет удобен и практичен во всех отношениях. Проект дома своими руками должен быть не хуже архитекторского;
Простота конструкции – сделать проект дома несложно будет только в том случае, если он не будет предполагать каких-либо изысков. Создание какого-то особо сложного проекта, реализация которого потребует огромного количества творческих изысков, человеку, не имеющему специального образования, крайне не рекомендуется, ибо можно не учесть некоторые принципиально важные вещи;
Эстетичность – конечно же, загородный дом должен выглядеть красиво и радовать взор своих хозяев. Проект надежного дома должен быть еще и эффектным!
Запомните – в том случае, если проект будет создан с учетом этих принципов, то он и в жизни будет очень неплох. Опять –таки, речь идет о достаточно примитивном самостоятельном строении – коттедж премиум-класса любитель не спроектирует. Проектированием домов такого уровня заниматься должен только архитектор – новички здесь очень часто делают ошибки.
Содержание
- Предварительный этап — разведка
- Начало проектирования дома
- Подвальное помещение / фундамент
- Проект первого этажа
- Второй этаж
- Мансарда / крыша
- Утверждение проекта для начала строительства
Геологическая разведка участка дома
С чего начинается «работа над проектом дома своими руками»? В первую очередь, при работе над проектом дома самостоятельно, необходимо провести геологическую разведку участка – оценить характер местности, почвы и узнать уровень стояния грунтовых вод. Лучшее время года для этого – весна, тогда их уровень находится максимально высоко и есть возможность с максимальной достоверностью определить этот показатель. Сделать это очень важно исходя из того, что именно данный показатель имеет наибольшее значение при закладке фундамента частного дома.

Для определения глубины залегания грунтовых вод рекомендуем обратиться к специалисту
Начало проектирования дома
Для наглядного примера наша редакция использовала программу бесплатную демо-версию программы «Визикон». Но все действия вполне можно выполнить и на обычном листе бумаги. Для примера был выбран простой проект двухэтажного дома 10 м х 10 м
Для проектирования домов необходимо будет «вооружиться» обычным тетрадным листом в клеточку и карандашом, задав при этом соответствующий масштаб. Рациональнее всего в данной ситуации будет поступить следующим образом – десять метров участка условно обозначить двумя клеточками. Таким образом, один миллиметр на линейке будет равняться 1 метру в реальной жизни – соотношение один к тысяче.

Шаг 1: наносим контур дома на тетрадный лист с помощью линейки и карандаша в масштабе 1:1000, т.е. 1 мм на бумаге будет равен 1 метру
Нанесение на бумагу контура самого участка, а также будущих строений. В данном случае все работы необходимо осуществлять в строгом соответствии с правильным масштабом – старательно перемеряя каждый метр на земле и нанося его на бумагу в соответствии размеров один к тысяче, вы обеспечиваете надежность и эстетичность возводимого здания. Нарисовать проект таким способом можно очень быстро. Обязательно надо учитывать не только контуры участка, отданного под проектирование и строительство, но и все расположенные объекты на участке, которые находились там еще до его планируемого возведения, и при этом их перенести не представляется никакой возможности. После этого можно будет приступить к проектированию самого здания – для упрощения задания, предположим, что проектируемый дом будет состоять из четырех комнат, кухни и двух санузлов (стандартное жилье для семьи из нескольких человек).
Подвальное помещение / фундамент
Несколько слов относительно проектирования подвального помещения. Необходимо отметить, что далеко не всегда в нем есть необходимость. Например, в том случае, если грунтовые воды стоят высоко, то это будет очень дорогим удовольствием – намного проще будет в проект включить еще одну комнату — как дополнительное помещение.
Проект первого этажа
Наносим на эскиз тамбур и прихожую – а уже из нее будут переходы в кухню и другие комнаты. Располагать помещения необходимо с учетом следующих моментов:
Санузел и кухню следует размещать в непосредственной близости друг к другу – благодаря этому расположению намного проще будет проводить коммуникации;
Очень неплохо, если составленный проект подразумевает отсутствие проходных комнат – это неотъемлемый элемент комфорта;
На первом этаже надо учитывать наличие всех вспомогательных конструкций и помещений – их расположение будет очень важно не только для обеспечения функциональной пригодности дома, но и для комфортного перемещения жильцов.

Шаг 2: чертим все комнаты и помещения первого этажа с необходимым размером
После этого располагаем и планируем все двери нашего дома

Шаг 3: проектируем двери на первом этаже
Затем окна с учетом желаемой освещенности комнат и вашего бюджета

Шаг 4: проектируем окна на первом этаже
В итоге получаем такой первый этаж:

Вот такая получилась 3D модель первого этажа
Прорисовываем второй этаж
Здесь уже все будет намного легче – ведь помещения в доме могут располагаться идентично (самое главное, не менять взаимное расположение санузлов — для того чтобы не усложнять проведение коммуникаций). Вполне достаточно будет спроектировать место расположения входной двери (многие архитекторы рекомендуют делать два входа на второй этаж — дома и с улицы) и окон.

Шаг 5: Аналогично планируем помещения второго этажа. Не забываем про коммуникации — располагаем санузлы и ванную друг под другом

Шаг 6: располагаем двери

Шаг 7: чертим окна второго этажа

Получили вот такую 3D модель второго этажа
Проектирование мансарды и крыши
Решили создать проект дома сами – не нужно будет пытаться нарисовать какую-то слишком «заумную» крышу с большим количеством изгибов. Запомните – крыша является одним из самых важных структурных компонентов в доме, и пытаться создавать дополнительную эстетичность, поставив под вопрос надежность, уж точно не стоит. Это все приведет к тому, что местах изгибов возникнут течи. Рисуете проект – будьте добры, исповедуйте принципы минимализма в архитектуре.

Для проектирования подобной крыши без архитектора не обойтись
Зависимость проектировки дома с изоляцией
Есть одно очень важное правило – все вспомогательные помещения необходимо строить с северной стороны. Несмотря на то, что теплоизоляция, выполняемая при помощи строительных материалов, имеет первостепенное значение, взаимное расположение комнат также нельзя выпускать из виду – хотя бы из-за экономии расхода энергии на обогрев дома.
Утверждение проекта для начала строительства
Необходимость корректировки проекта. Даже в том случае, если вы сами смогли изобразить на бумаге дом своей мечты, необходимо будет перед началом строительства дома все-таки проконсультироваться со специалистами – мнение грамотного прораба или же архитектора лишним не будет. Как минимум, необходимо будет согласовать следующие моменты:
Проведение электрики;
Проведение собственной канализации;
Проведение водоснабжения;
Необходимо понимать, что все указанные выше вопросы не являются художественной или архитектурной частью проекта. Это все — самые рутинные вопросы, грамотный подход к решению которых обеспечивается только профессионалами своего дела. В крайнем случае, любой недосмотр при самостоятельном составлении проекта дома, который допустил человек, не имеющий профильного образования, может быть подкорректирован грамотным прорабом, который практическую сторону любой идеи понимает намного лучше. Хотя даже в том случае, если проект составляется профессиональными архитекторами, то также не исключаются чисто практические недочеты.
Самостоятельная работа над проектом дома и ее преимущества
Проект своего дома вы можете создавать сами – для того, чтобы разработать чертежи взаимного расположения тех или иных помещений, а также определиться с местом дома на участке, не потребуется специальных знаний. Грамотный и ответственный подход к делу обеспечит вам успех мероприятия. Однако в плане проведения коммуникаций надо будет обязательно проконсультироваться с профессионалами. Таким образом можно будет правильно спланировать дом, который прослужит вам верой и правдой.
Читайте про следующие этапы строительства:
Смотрите также видео о том, как сделать проект дома самостоятельно
Читайте про предыдущие этапы строительства:
Проектирование дома самостоятельно: создаем проект дома
4.3 (85.71%) 7 vote[s]Чертеж дома и коттеджей бесплатно проекты и фото
Строительство домов без технической документации может привести к неприятностям. Без точных расчетов невозможно получить прочную конструкцию с должными показателями безопасности и теплопроводности. Кроме того, строительство без проекта – нарушение закона. Рассмотрим примеры проектов, приведем их чертежи и коротко опишем особенности.
Одноэтажный дом с мансардой
Показатели:
- Количество этажей: 1.
- Мансарда: да.
- Общая площадь: 155 м2.
- Размеры: 12,1х9,3 м.
- Непосредственная площадь: 102 м2.
Особенности конструкции:
- Буронабивное основание с ростверком.
- Многоскатная крыша из бруса, покрытая металлочерепицей.
- Полы из шпунтованной доски шириной 0,4 см.
- Подшитие мансарды по стропилам.
- Изготовление окон под проект.
- Профилированный брус 19х19 для стен. Перегородки сооружаются по каркасной технологии, а остров из бруса 5х15.
- Звукоизоляция полов, потолков и чердака минватой 15 и 20 см в толщину. Каркасные перегородки также теплоизолируются материалом в 10 см, дополнительно обладающим звукоизоляционными свойствами.
- Цоколь отделывается декоративной плиткой, а наружные стены обрабатываются защитным покрытием.
- Двери на заказ.
Чертеж этажей
Основные характеристики
Проекты домов с использованием перечисленных материалов – образец экологичности и хорошего вкуса. Брус пропускает воздух, минеральная вата также способствует отличному микроклимату и теплоэффективности. Здание будет сооружаться быстро при соответствующей проектной документации влажности бруса. Площади жилья достаточно для проживания даже большой семьи.Проект садового домика
Основные показатели:
- Общая и необходимая площадь для застройки: 24 и 43 м2 соответственно.
- Веранда: 10 м2.
- Размеры мансардного помещения: 15 м2.
Конструктивные характеристики:
- Фундамент бутобетонный или столбчатый.
- Наружные и внутренние стены из пустотелого керамического и обычного кирпича.
- Для цоколя используется кирпичная кладка.
- Междуэтажные и цокольные перекрытия сооружаются из деревянных балок, утепляются плитной минватой и подшиваются листами гипсокартона (в первом случае) или обрезанными досками (во втором).
- Стропила из дерева, а полы из досок.
- Кровля сооружается с помощью деревянной обрешетки, покрытой асбестоцементными листами.
Чертеж этажей
Краткая оценка
Такие проекты не предназначены для круглогодичного проживания. Технология их строительства и стоимость материалов позволяют свести затраты к минимуму.
Проект двухэтажного сооружения из бюджетных материалов
Показатели площадей здания (м2):
- 77 – первый этаж;
- 48 – второй;
- 23 – гараж;
- 108 – общая.
Особенности:
- Блоки ФБС для фундамента.
- Материал несущих стен – газобетон (утепляется).
- Внутренние перестенки из кирпича.
- Перекрытия создаются из ж/б элементов.
- Сооружение кровли подразумевает закрепление металлочерепицы на деревянные стропила с обрешеткой.
Чертеж расположения комнат
Оценка проекта
Способ сооружения и материалы выбирались для максимальной экономии при строительстве, не влияющей на комфорт проживания. Поэтому стены сооружаются из газоблока, крыша имеет двускатную конструкцию и для фундамента решено использовать блоки ФСБ.
Проект одноэтажного дома с мансардой площадью 245 м2
Конструктивные особенности:
- Монолитное основание – ж\б плита.
- Перекрытия сборного типа – специальные железобетонные конструкции.
- Крыша мансардная. Для ее сооружения применяется битумная черепица, которая крепится на деревянные стропила. Вид: двухскатная.
- Цоколь монолитный ж\б.
- Для кладки перегородок используется силикатный кирпич.
- Внешние стены из газобетонных блоков.
- Окна металлопластиковые.
Чертеж размеров комнат
Впечатление о проекте
Максимальная прочность и долговечность конструкции при условии использования качественных железобетонных элементов. Строительство такого дома достаточно быстрое. А при умелой отделке наружных стен может получиться здание с непревзойденным внешним видом.
Проект простого одноэтажного домика
Особенности:
- Небольшие размеры: 7х7.
- Один этаж без мансарды.
- Площадь: 43 м2.
Конструктивные показатели:
- Стены сооружаются из бревна.
- Сосновая обрезная доска в качестве стропил.
- Основание ленточного типа.
- Крыша шатровая.
- Материал перестенков – брус.
Чертеж внутреннего помещения
Характеристика
Подобный чертеж направлен на сооружение жилья для небольшой семьи или гостевого домика. Количество проживающих: до 4.
Использовать готовые проекты домов и коттеджей можно при сооружении и собственного дома. Только внимательно изучайте чертежи и особенности проектной документации. Часто они рассчитаны на сооружение в определенных условиях и для конкретной местности, поэтому выбранный вариант может и не подойти.
jsnip.ru
Как нарисовать план дома в программе на компьютере или в режиме онлайн
Современный мир пользуется огромным количеством компьютерных технологий, с которыми нарисовать план частного дома очень просто. Специально для проектирования было разработано большое количество многофункциональных программ.

Так выглядит планировка и интерьер дома
Однако эти программы имеют сложный интерфейс. Для работы они используют большое количество самых разных инструментов, причем понять, как ими пользоваться, могут только проектировщики. Поэтому можно воспользоваться другим способом для создания плана дома. Простейшим вариантом считается Word со своим набором инструментов.
Вернуться к оглавлениюСодержание материала
Правила проектирования
Начертить план дома не каждому под силу, для многих это становится проблемой. Если человек никогда такой проблемой не занимался, он может столкнуться с массой трудностей. Чтобы правильно начертить проект дома, требуется соблюдение определенных положений.
- Сначала нужно определить размеры будущего строения. Чтобы начертить качественный план, нужно рулеткой провести точные измерения. Чтобы нарисовать будущее здание, можно пофантазировать и придумать архитектурные дополнения.
- Черчение начинается с проведения осей, показывающих центр капитальных стен.

Пример чертежа фасада дома и планировки
Чтобы начертить план небольшого дома, имеющего прямоугольную форму, необходимо проводить оси посередине внешних стен.
- Вертикальные оси должны иметь буквенное обозначение, а горизонтальные маркируют цифрами. По обозначенным осям выполняется рисунок стены. Затем показываются перегородки внутри дома. Там, где необходимо, нужно начертить будущие двери и расположение окон. Перегородки показываются штрих-пунктирной линией.
- Следующим шагом начертания плана дома будет показ местонахождения используемого оборудования. Отмечается расположение санузла в доме, указывается ванная комната.
- Каждая комната должна иметь экспликационный номер, представляющий собой обычный круг, в котором посередине пишется цифра. Все эти данные заносятся в таблицу, где за каждым числится определенная комната.

Пример экспликационного номера помещений
На плане дома показываются:
На начерченном плане показываются сделанные ранее замеры. В обязательном порядке указываются общие габариты здания. Кроме этого, должна быть прорисована привязка:
- Перегородок;
- Оконных проемов;
- Дверных ниш.
План чертится в определенном масштабе, обычно 1:100, иначе говоря, одному метру соответствует 10 мм линия. В принципе масштаб чертежа подбирается в зависимости от габаритов здания. Он может быть: 1:50; 1:200. Получившемуся рисунку присваивается название «План первого этажа».
Затем выполняется экспликация помещений, сведенная в таблицу, состоящую из нескольких столбцов:

- Первый — экспликационный номер;
- Второй — название помещения;
- Третий — площадь здания.
Таблицу чертят на листе, обрамленном рамкой, с нарисованным штампом.
Вернуться к оглавлениюНесколько популярных программ для проектирования
Безусловно, сегодня проектирование зданий и рисование плана дома делается с помощью компьютерных программ. Все они имеют разную сложность и интерфейс.
Google SketchUp
Эта программа позволит с легкостью спланировать любой дом по заданным параметрам. Она способна просматривать проекты зданий, сделанных в 3D, а также проводить их редактирование.
Программа отличается универсальностью: кроме проектирования можно добавлять к собственному проекту различные детали.
Google SketchUp больше относится к дизайнерской работе. В ней отсутствуют ГОСТы, нет стандартизованных размеров. В программе можно будет вполне реалистично увидеть здание, построенное из строительных материалов, заложенных в плане.

Процесс создания проекта и планировки коттеджа в программе Google SketchUp
Для облегчения работы с программой в нее встроено большое количество обучающего материала. Для современного дизайна имеется возможность добавить базу элементов, разработанных другими пользователями, например, эксклюзивный диван или винтажный стул.
FloorPlan3D
При помощи такой разработки можно сделать перепланировку частного дома. Имеется возможность посмотреть проект будущего здания в трехмерном измерении.
Программа позволяет, кроме создания плана, разработать дизайн интерьера комнат, с учетом всех мелочей.
С ее помощью можно будет сделать подсчет нужного материала для ремонта. Она точно покажет сколько нужно:
- краски;
- обоев;
- шпаклевки.
Вы способны будете даже подсчитать финансовые расходы, которые предстоит затратить на ремонт помещения.
Этой программой может с успехом пользоваться простой любитель и профессионал со стажем. Дело в том, что ее отличает очень доступный и легкий интерфейс. Главными достоинствами этой программы считаются:- Возможность проектирования домов любой этажности;
- Все вычисления нужных площадей происходят в автоматическом режиме;
- Абсолютная точность;
- Большой ассортимент строительных материалов, разнообразие текстуры;
- Проектирование ландшафтного дизайна;
- Добавление декоративных деталей;
- Современный дизайн комнат;
- Типовые библиотеки;
- Интерактивные советы.
ArCon
При помощи такой программы, можно спланировать установку каждой детали, после чего посмотреть, что получилось, в трехмерном пространстве. В программе можно:
Для нормальной работы, программа обеспечена огромной библиотекой, в которой имеется больше 3000 самых разных деталей интерьера. Для показа использованы тысячи отделочных материалов. Вид здания получается очень реалистичным.
AutodeskAutoCad
Пожалуй, это самая известная программа такого рода. Ее использует большинство проектировщиков и любителей. Среди всех подобных программ, занимает лидирующее положение. Ее отличает интуитивно понятный интерфейс, дающий возможность выполнять работу сразу с двумя-тремя файлами.

Пример планировки дома выполненного в AutodeskAutoCad
Важнейшим положительным качеством считается возможность создавать произвольные формы, в соответствии с собственной фантазией. Причем созданный объект можно немедленно просмотреть в трехмерном пространстве.
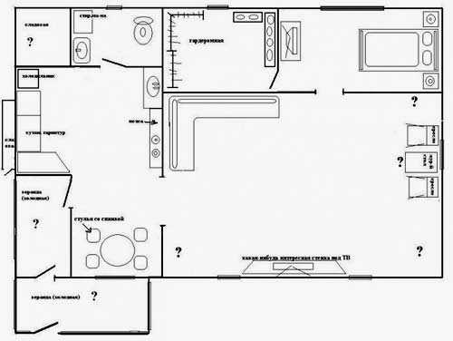
Вернуться к оглавлениюКак самостоятельно нарисовать план дома
Очень многие собираются построить собственный коттедж, кто-то красивый дачный дом 4х6 метров. Чтобы такая постройка стала реальностью, нужно обязательно иметь план, на котором должно быть изображено месторасположение:
- Санузла;
- Всех комнат;
- Кухни;
- Перегородок.

Пример плана коттеджа нарисованного самостоятельно
Чтобы начертить своими руками такой план, требуется выполнить следующие технологические операции:
- Определить все необходимые размеры;
- Показать середину осей капитальных стен;
- Нарисовать перегородки внутри комнаты;
- Наметить месторасположения окон, а также дверных проемов;
- Обозначить местонахождение функционального оборудования:
- Ванной 4 метра;
- Туалета;
- Газовой плиты;
- Водопровода;
- Вентиляции;
- Лестничных клеток.
Каждому объекту присваивается номер. Все данные сводятся в таблицу. Однако необходимо всегда помнить, что можно начертить только планировку коттеджа, а для составления проекта понадобится помощь профессионалов.
Когда рисуется план, на нем нужно в обязательном порядке показать:
- Несущие стены;
- Другие, не столь важные, стены отмечаются пунктирной линией;
- Двери;
- Оконные проемы;
- Подвод воды;
- Систему канализации;
- Вентиляцию;
- Дымоходы.
Для планирования пространства пунктирными линиями показываются границы нежилых территорий. Отдельно отмечаются все требуемые высоты.
planvsem.ru
Рабочие чертежи каркасного дома / каркасный дом своими руками
Устройство каркасного дома

Разрез каркасного дома
Разрез каркасного дома на примере проекта КД-29, приведена схема и технология строительства каркасного дома. Почти все проекты имеют данную
конструкцию. Данная схема зарекомендовала себя, как надёжная, но простая и удобная в сборке. Весь вес крыши приходится на центральную и боковые
нефронтонные стены, которые стоят на фундаменте. Второй этаж собирается с перекрытия второго этажа. Наглядно, с этапами строительства можно ознакомиться,
скачав инструкцию по строительству каркасного дома.

Планы и чертежи сборки фундамента
Комплект рабочих схем и узлов к проекту, содержит: полный чертёж с размерами мест установки анкеров, продухов рабочей арматуры и хомутов, объем бетона и количество арматуры. Технологию и способ экономной сборки опалубки для использования её в последующем для стоек каркаса и обвязок. При свайном фундаменте к проекту идёт также описание и свайное поле со всеми размерами установки свай д108мм и обвязкой швеллером для гарантированной надёжности свай. При желании по месту возможна обвязка свай брусом или доской на ребро по оголовкам.

Стена каркасного дома
Комплект рабочих схем и узлов к проекту, включает: размеры до начала стоек с двух сторон в см., включая проверочные размеры между стойками, места
установки укосин, размеры проёма окна/двери и его усиления, планы последовательности и места установки листов OSB (ОСП) снаружи, также все планы, где
необходимо, содержат комплектовочную ведомость, комментарии и технологию соединения стоек в углах, по технологии тёплый угол, и схему примыкания
внутренних стен. Обратите внимание, что мы специально отказались от гостовского оформления чертежей, чтобы убрать лишние шапки и подписи, и сделать
чертежи на всю страницу. Также, они выполнены в цвете и в сантиметрах, для удобства работы при строительстве.
Фронтон каркасного дома
Комплект рабочих схем и узлов к проекту, включает: размеры до начала стоек в см. и обрешётки крыши, высоту стоек, включая проверочные размеры между
ними, места установок окон, размеры окна и его усиления, планы последовательности и места установки листов OSB (ОСП) снаружи, также, все планы
содержат комментарии и технологию раскладки крепления Ондулина, обрешётки, свесов и устройства паро- ветро- защиты (кровельного пирога).
Сравнение: Обычный чертёж и наши чертежи
Для удобства и скорости работы, мы не стали, как это делают все, делать отдельную комплектовочную ведомость на весь дом, так как работать по ней
крайне неудобно. Представьте, как собирать дом, если для того, чтобы собрать перегородку длиною всего метр-два, вам придётся искать её комплектность в
книге из почти ста! листов. Чтобы у вас не было таких проблем, мы, все необходимые материалы и их точные размеры, указали непосредственно на странице,
где нарисован тот объект, который вы будете собирать в настоящее время, вам не придётся тратить уйму времени, чтобы найти и рассчитать, что вам нужно,
всё указано на схеме — просто и удобно. В любом случаие, ещё дополнительно идёт смета к проекту.
Узлы: Схемы крепления и разметки
К каждому нашему проекту идут не только чертежи и схемы, описания и пояснения, а конечно ещё и узлы, это сильно облегчает и ускоряет процесс правильного строительства. Ниже, первая страничка узлов и схема разметки от проекта кд-1. Так как, это проект небольшого дома, то узлы поместились на двух страницах. Первая, это основные узлы и схема сборки стен с пояснением по разметке. Вторая страница в проекте, это узлы внутренних перегородок, схема и способ впиливания укосин, схема и способ быстрой разметки. А также, на второй странице показан способ и метод утепления перекрытия между этажами, пола первого этажа и т.д.

Инженерные сети
Комплект рабочих схем и узлов к проекту, содержит: схему прокладки и количество оконечных устройств электрики (розетка, выключатели, автоматы защиты и тд и тп), принципиальную схему и вариант установки сантехники для первого/второго этажа, а также вариант устройства дренажа и вентиляции с естественным побуждением с описание минимально желаемого устройства согласно норм и правил на одноквартирные дома.
Подробнее об узлах по технологии KarkasDom, можно прочитать в статье Все узлы каркасного дома.
Все наши проекты обладают множеством достоинств:
1. Проекты разрабатываются под размер материалов из магазина, чтобы пришлось как можно меньше резать и не оставалось обрезков.
2. Также, еще на этапе эскизного проекта подбирались плиты OSB, с учетом наиболее популярных размеров, которые чаще всего есть на складе строй базы.
3. Кровля самая простая в исполнении – двускатная. А это значит, не придется резать Ондулин или металлочерепицу, чтобы сформировать ендовы. Нет дополнительных кровельных элементов, которые удорожат кровлю, а также, нет потенциально опасных мест, которые могли бы протекать.
4. Все проекты сделаны по районированию: Зона 2, СПб и ЛО, что подходит для их строительства по снеговой и ветровой нагрузке в большей части России.
5. Обычно прямоугольный дом. Это самая энергоэффективная и удобная форма дома.
6. Все дома достаточно просты в строительстве, благодаря отсутствию лишних выступов стен.
7. Все размеры указаны в сантиметрах и имеют оригинальное исполнение чертежей и схем.
8. В проектах домов нет ни одной дорогостоящей клееной или двутавровой балки.
9. Габариты дома выбираются для максимальной экономии строй материалов.
10. Стояки, обычно, собраны в одном месте с вентиляцией.
11. Удобная лестница.
Так как все чертежи и планы мы не можем разместить на одной странице то зайдя в раздел, Наше предложение мы можем предложить вам бесплатно все сметы для расчёта во сколько вам обойдётся дом по ценам вашего региона, все планы, чертежи и технологии с подробным описанием, что и как делается и для чего. В общей сложности более 100 страниц цветных чертежей, описаний и комментариев для удобства, скорости и качества работы.
Смотрите в разделе «Видео», это и многие другие видео по строительству каркасных домов:
karkasdom.info
Схемы каркасных домов своими руками (проекты, чертежи, фото)
Современное строительство уже перешагнуло ту планку развития, когда для возведения жилого строения или объекта хозяйственного назначения требовалось бы применение специальной техники и большого расходования строительных материалов. СИП панели сегодня — один из самых лучших композитных материалов, которые могут сделать создание дома посильной задачей даже для людей, не обладающих специальными знаниями и навыками, строительство каркасного дома может быть вполне проведено своими руками.

Содержание статьи
Основные задачи перед началом строительства
Канадский каркасный дом, построенный из СИП панелей, гарантирует своему обладателю множество привлекательных эксплуатационных характеристик, а именно:
- прочность постройки находится на высоком уровне, можно возводить здания в несколько этажей;
- сборка стен и других элементов конструкции не представляет большой сложности, правильно строить дом можно и своими руками, поскольку масса различных деталей достаточно мала;
- срок службы здания из СИП панелей пока не установлен, но совершенно точно можно утверждать, что сегодня существуют дома, построенные более 50 лет назад;
- уровень сохранения тепла находится на очень высоком уровне, каркасный дом из СИП панелей позволяет организовать экономные, энергоэффективные отопление и систему кондиционирования.
Строить каркасный дом из СИП панелей можно без силового каркаса, однако на практике — он сооружается, это позволяет не только увеличить прочность, но и облегчить процесс сборки конструктивов своими руками.

Перед началом строительства требуется разработать или приобрести детальный проект. Он будет включать в себя не только схемы соединения отдельных конструктивов постройки между собой, но и расположение зон прокладки инженерных коммуникаций, места вывода вентиляционных каналов, канализации и других необходимых систем. Имея на руках детализированные проекты, строить дом легко, а точность планирования финансовых трат находится на самом высоком уровне.
Какие схемы необходимы
Если вести речь о готовых проектах каркасных домов разного размера, которые можно приобрести, в том числе в интернете — в составе документации обязательно присутствуют следующие схемы:
- несколько вариантов фундамента, которые будут оптимальны для строительства здания рассчитанной массы, схемы включают расположение опорных точек, в случае ленточного фундамента — его конкретную конфигурацию, рисунок монтажа внутренней арматуры;
- проекты обязательно включают в себя чертежи первого опорного уровня, фактически, настила пола первого этажа, или силового каркаса, опирающегося на столбчатый или свайный винтовой фундамент. Схемы содержат не только перечень конструктивов, но и подробные инструкции, касающиеся методик соединения своими руками;
- обязательно в документацию по проекту включаются схемы и чертежи каждой стены, на которых указываются габаритные размеры, расположение окон, дверных блоков и другие необходимые данные;
- отдельно предоставляются чертежи для строительства балочного каркаса, если таковой предусматривается.

В перечень документов также входят чертежи кровли домов, которая может быть как угодно сложной. На основании предоставленных проектных схем составляется смета, однако стоит отметить, что большинство проектов, которые можно купить в готовом виде, уже содержат перечень конструктивов и полное описание материалов, которые рекомендуется использовать при создании той или иной части конструкции дома.
Схема фундамента
Если для столбчатого или свайного винтового фундамента предоставляется схема расположения опорных точек относительно общей геометрии будущего каркасного дома, то структура конструкции ленточного типа гораздо сложнее. Она включает в себя:
- рекомендации по глубине залегания;
- подробные инструкции относительно создания фундамента;
- схему раскладки арматуры (с указанием расположения каждого элемента с точностью до миллиметра) и рекомендации по ее типу, предоставляются вид структуры сверху, а также разрезы, показывающие обвязку в профиль;
- чертежи соединений металлических отрезков арматуры между собой, а также рекомендации, как правильно сделать перевязку.
На основании подробных данных легко определить, сколько именно понадобится металлического прута для строительства. При этом легко монтировать арматуру без специальных знаний, на чертежах также указывается рекомендуемое расположение опалубки. Используя такие подробные сведения, легко провести все работы строительства домов своими руками.

Схема фронтона
В проектах домов, которые используют единый фронтон каркасного строения, схема данной зоны оформляется отдельно. На ней обязательно указывается:
- размерность и конфигурация конструктивов из СИП панелей, которые необходимы для возведения. Если речь идет о проекте, для реализации которого можно заказать готовый набор деталей, на схеме могут указываться конкретные номерные обозначения элементов;
- расположение и габаритные размеры оконных проемов;
- с точностью до миллиметра – места, где необходимо правильно устанавливать балки силового каркаса.
Схемные чертежи фронтона каркасного дома обязательно содержат указание того, где расположена затяжка стропил двускатной кровли или же другие силовые элементы, необходимые для ее сооружения. Также, чертежи четко нормируют тип бруса, который рекомендуем для сооружения каркаса, а все размеры учитывают конкретную толщину СИП конструктива стен. На основании схем можно не только соорудить фронтон своими руками, но и понять, как на нем закрепить крышу в области верхней обвязки и в точке соединения силовых стоек со стропилами.

Чертежи стен
Для каждой стены каркасного дома, которая входит в проект, прилагается отдельная схема. На ней указывается:
- расположение конструкции на фундаменте;
- схема строительства силового каркаса из бруса;
- рекомендации по монтажу и соединению элементов.
Самые хорошие проекты каркасного дома включают и данные по крепежу. Например, на схеме стены четко указывается, какими саморезами крепить тот или иной конструктив из СИП панелей, какими гвоздями соединять брус между собой, с каким шагом осуществлять крепеж. Такие подробности позволяют не только оптимизировать смету и снизить расходы на строительство, но и соорудить стену своими руками без обладания специальными знаниями.

Другие чертежи
В зависимости от сложности проекта, в него могут входить схемы сооружения кровли домов, междуэтажных перекрытий. В отдельную категорию всегда относятся дома, требующие строительства силовых элементов из кирпича или бетона. Это могут быть как опорные конструкции для санузлов, так и вентиляционные каналы или дымоходы.

Описание проектов каркасных домов, которые можно построить своими руками
Все схемы и чертежи, которые можно купить в готовом виде, гарантируют получение хорошего, современного, прочного и энергоэффективного дома. В зависимости от квалификации и умений будущего владельца, можно приобрести проекты любой сложности. Это могут быть как каркасные дома прямоугольной формы, так и имеющие такие элементы конструкции, как балконы, навесные террасы.
Можно получить проекты двухэтажных домов с мансардой, в этом случае будут прилагаться схемы междуэтажного перекрытия, где обязательно указываются все тонкости, касающиеся будущей прокладки проводки, других коммуникаций, сооружения финальной отделки. Вне зависимости от того, какой вариант дома будет выбран, чертежи и схемы готового проекта позволят провести работы своими руками, оптимизировать расходы, закупая нужное количество расходных материалов.
Вконтакте
Одноклассники
Google+
karkasdom-stroy.ru


