основные принципы, идеи дизайна, фото
В жизни всё происходит циклично. На протяжении сотен лет семьи, состоящие из большого числа людей, ютились в одной большой комнате, устанавливая различного рода заслоны для создания собственных уголков. В советский период увеличился спрос на квартиры с несколькими, пусть маленькими, но выделенными комнатами.
Сегодня вновь появилась мода на просторные помещения, где зоны отделяются не стенами, а фактурой отделочных материалов, цветом или лёгкими перегородками. Квартиры-студии стали престижным и дорогостоящим жильём. Дизайнеры получили возможность осуществлять свои фантазии по планировке и организации больших пространств, где можно применять различные комбинации порой несовместимых вещей.
Планировка квартиры-студии должна учитывать пожелания всех проживающих и органично объединять в себе разные зоны назначения в единую композицию.
Содержание
1 Что представляет собой квартира-студия
1.1 Принципы планировки
1.
2 Преимущества и недостатки жилого помещения без перегородок
2 Варианты зонирования пространства
3 Общие правила подбора мебели
4 Правильное освещение
5 Популярные стили оформления
6 Этапы планировки
7 Варианты планировки для разной площади и формы помещения
7.1 Особенности планировки квартиры-студии для семьи с ребёнком
7.2 Планировка маленькой квартиры с лоджией
7.3 Планировка квартиры-студии с одним окном
7.4 Планировка двухуровневой квартиры-студии
7.5 Большая квартира-студия
8 Оригинальные идеи и интерьерные новинки
8.1 Фотогалерея — примеры удачной планировки квартиры-студии
Что представляет собой квартира-студия
Квартира-студия представляет собой единое жилое пространство, в котором отделён стенами только санузел. Все остальные зоны находятся в одной большой комнате.
Принципы планировки
Главным принципом планировки квартиры-студии является отсутствие бесполезного пространства. Коридоры и маленькие угрюмые комнаты уходят в прошлое. В помещении должно быть много свободного места, воздуха и света.
Преимущества и недостатки жилого помещения без перегородок
К преимуществам жизни в студии можно отнести большое количество воздуха, а значит человек получает чувство свободы. Даже самая маленькая квартирка после сноса стен становится намного больше по площади, соответственно в ней можно разместить несколько функциональных зон.
Дизайнер получает возможность творить и воплощать в реальность любые задумки, не ограничиваясь глухими перегородками.
Однако у такого жилья есть и недостатки:
- студия предполагает, что в ней будет проживать не более двух человек. В противном случае постоянное нахождение большого числа людей в одной комнате будет напрягать и раздражать. Если же молодая семейная пара живёт в разном ритме — это тоже может стать проблемой.
Когда один человек поднялся с кровати и занялся какими-то делами, другой также вынужден будет проснуться; - запах и шум во время готовки будет слышен во всей квартире;
- отсутствует место для уединения.
Таким образом, можно сделать вывод, что для одного человека квартира-студия практически не имеет недостатков. Однако второй, а тем более третий проживающий добавит неудобств.
Варианты зонирования пространства
Студия предполагает обязательное зонирование территории в зависимости от её назначения. Вариантов разграничения несколько. Это могут быть лёгкие перегородки, разделение при помощи мебели, отделочных материалов или цветовой гаммы.
Выделяют следующие условные зоны:
Общие правила подбора мебели
Квартира-студия предполагает единый стиль. Это значит, что все элементы — от кухонного гарнитура до зоны спальни и места приёма гостей, должны гармонично сочетаться и подчёркивать созданный дизайн интерьера.
Ещё одно немаловажное правило подбора мебели для свободной планировки в малогабаритных квартирах — функциональность.
Любой предмет должен быть полезен. Журнальный столик трансформируется в большой обеденный стол. Диван может использоваться в качестве кровати. Встроенный шкаф при необходимости включает в себя специальные приспособления для возможности ежедневной эксплуатации самых дальних участков.
Правильное освещение
Для каждой зоны в квартире-студии используется индивидуальный источник освещения
Единственная люстра, висящая в центре комнаты, ушла в далёкое прошлое. Сегодня наступило время функциональной системы освещения. Вместе с основными электроточками, обеспечивающими равномерный свет во всей квартире, должны зажигаться выделенные зоны. При необходимости подсветить рабочую поверхность в кухне необязательно тратить электроэнергию, задействованную во всем жилом пространстве. Таким образом, каждая функциональная зона должна быть обеспечена индивидуальными софитами, бра, светильниками или другими приборами.
Использование разного уровня яркости создаст в помещении необходимое настроение.
Популярные стили оформления
Небольшие студии, переоборудованные из малогабаритных квартир, используют буквально каждый сантиметр. При этом должна выполняться главная задача — обеспечение свободного пространства. Для таких вариантов подойдут современные стили — хай-тек или минимализм.
Жилые помещения, имеющие большую площадь, могут использовать и другие стили. Классика с массивной мебелью и шикарным оформлением во все времена остаётся востребованной. Модерн привлекает своей оригинальностью. Он часто комбинируется с популярным сегодня экостилем.
Молодёжь зачастую предпочитает этнический скандинавский интерьер с элементами Лофта. Неординарные личности, любящие пофилософствовать, выбирают восточные эскизы. Прованс перекликается с деревенскими мотивами.
Этапы планировки
- В первую очередь необходимо избавиться от всех ненужных перегородок. Создаётся единое пространство. Стоит помнить о том, что любые изменения в планировке следует узаконить в соответствующих инстанциях.
Несущие стены трогать запрещено, это может привести к трагическим последствиям. - На следующем этапе определяются зоны, которые необходимы для жизни в квартире. Нужно заранее продумать возможности освещения каждого участка.
- Выбор цветовой гаммы и фактуры отделочных материалов — важный этап. Для зрительного увеличения пространства рекомендовано использовать светлые тона.
- Основная палитра сохраняется по всей площади единого пространства. Более глубокие оттенки выделяют функциональные зоны.
- Мебель должна подчёркивать выбранный стиль. В небольших квартирах отдаётся предпочтение многофункциональным предметам интерьера.
- Завершающим этапом станут дополнительные элементы декора в виде текстиля и аксессуаров. Они вдохнут в помещение душу и обеспечат необходимое настроение.
Варианты планировки для разной площади и формы помещения
Каждая квартира индивидуальна. Некоторые помещения имеют схожие особенности — достоинства или недостатки, которые можно подчеркнуть или скрыть проверенными способами.
Особенности планировки квартиры-студии для семьи с ребёнком
Квартира-студия для семьи с ребёнком — не самый удобный вариант. Однако при рациональном обустройстве жилья первые несколько лет жизни малыша можно провести в такой квартире.
Использование перегородки — один из способов разделить детское и взрослое спальные места
Семейная кровать для взрослых отделяется от остальной части квартиры раздвижными перегородками. В дневное время помещение имеет единую композицию, ночью образуется небольшая комната.
Простой гипсокартонный короб поможет создать игровую зону для подросшего малыша
Для полноценного развития ребёнка необходимо выделить достаточную площадь, в которой не будет загромождений, появится место для будущих игр. Невысокая конструкция из гипсокартона разделит комнату на зоны.
Вместо межкомнатной двери хорошо использовать шторы
Зонирование комнаты при помощи лёгких штор позволит создать собственный уголок, необходимый для самого младшего члена семьи.
Кровать-чердак — отличное решение для малогабаритной студии
Кровать-чердак для ребёнка значительно сэкономит пространство в комнате. Под спальным местом расположился холодильник и полки для хранения вещей.
Спальный гарнитур на рельсах в дневное время легко сдвигается, освобождая место для игр
Нестандартное, при этом очень интересное решение планировки небольшой квартиры-студии предлагает использование двигающегося по рельсам гарнитура. В дневное время кровать прячется в нишу. На диване можно расположить третьего члена семьи. При этом в комнате остаётся достаточно места для подвижных игр.
Планировка маленькой квартиры с лоджией
Лоджия в квартире-студии — это дополнительная площадь
Простые и лаконичные материалы светлых оттенков зрительно увеличат пространство в малогабаритной квартире-студии. Наличие лоджии позволит физически расширить полезную площадь.
Утеплённый балкон может играть роль ниши
Утеплённый балкон позволит создать дополнительную зону, которая выполнена в едином стиле со всей квартирой.
Удобное оригинальное кресло у большого окна станет приятным бонусом в небольшой квартире-студии.
Стеклянная дверь лоджии зрительно увеличивает помещение без объединения с жилой зоной
Лоджию не обязательно объединять с основным помещением. Для увеличения площади достаточно использовать балкон в качестве жилой зоны — места для отдыха. При необходимости уединиться раздвижные стеклянные двери можно закрыть.
Оригинальное решение для лоджии как рабочего кабинета
Утеплённый балкон часто используют в качестве рабочей зоны. При этом необязательно демонтировать стену под внутренним окном. Её можно преобразовать в оригинальную деталь интерьера.
Можно также расширить кухню за счёт лоджии
Возможность переноса кухонных коммуникаций в зону лоджии создаёт новые варианты для планировки. В этом случае освобождается дополнительное пространство для других целей. Зона приготовления еды не будет нуждаться в искусственном освещении в светлое время суток.
Планировка квартиры-студии с одним окном
Большое окно — хорошее преимущество
Единственное окно на всю студию уменьшает количество естественного дневного освещения.
Но при правильно подобранной цветовой гамме проблема решается довольно успешно.
Стеклянные перегородки могут решить проблему недостатка света
Небольшие студии с одним окном не оставляют возможностей для полёта фантазии. Чаще всего кухня располагается на входе. Стеклянные раздвижные перегородки позволят избежать запахов в момент готовки. В остальное время небольшая по площади квартира будет иметь единую композицию. Зеркальная стена зрительно увеличит площадь помещения.
Кровать лучше всего расположить у окна
Если габариты квартиры позволяют выделить место для полноценной кровати, в помещении с одним окном наиболее приемлемым вариантом для этого выступает зона у окна. Место для отдыха не должно быть проходным.
Барная стойка в данном случае разделяет помещение на зоны и выполняет роль обеденного стола
Студии с единственным оконным проёмом зачастую имеют идентичное расположение функциональных зон. На входе размещается кухня, далее гостиная, которая одновременно выступает местом для сна.
Зона приготовления еды отделена от жилого пространства барной стойкой. Она же выполняет функцию обеденного стола.
При использовании раздвижных дверей для разграничении зон следует добавить дополнительные светильники
Раздвижные двери между гостевой зоной и местом для отдыха позволят уединиться одному из проживающих в квартире-студии. Стоит учитывать, что в этот момент центральная комната остаётся без естественного освещения — необходимо заблаговременно позаботиться о монтаже дополнительных светильников.
Планировка двухуровневой квартиры-студии
При наличии достаточно высоких потолков в квартиру студию можно добавить еще один ярус
Квартиры с потолками, высота которых превышает четыре метра, можно преобразовать в двухуровневые студии. На основном этаже располагается место для готовки и гостевая зона. Второй ярус выделен под спальню. Даже если в комнате много гостей, один из проживающих всегда сможет подняться наверх и побыть в одиночестве.
Помещения в двухуровневых студиях следует решать в едином стиле
Двухуровневые студии всегда выполнены в едином стиле с одинаковой цветовой палитрой.
При таком расположении функциональных зон режим дня одного из проживающих не будет зависеть от бодрствования или сна супруга.
В квартире-студии под самой крышей можно обустроить полноценный второй этаж
Некоторые застройщики многоквартирных домов предлагают к продаже квартиры на верхних этажах, потолки которых позволяют сделать два полноценных этажа. При такой планировке наиболее приемлемым вариантом выступает гостевая зона и кухня на нижнем этаже, выполненная в виде студии, а также размещение санузла. Другая половина квартиры включает спальную зону. В зависимости от площади помещения и количества проживающих людей комнат на втором ярусе может быть несколько.
Наличие дополнительного яруса позволяет разграничить спальные места
Иногда в небольшой квартире приходится ютиться нескольким людям, для которых необходимы индивидуальные зоны отдыха. Высокий потолок может решить эту проблему. По примеру двухъярусных кроватей наращиваются двухуровневые спальни.
Пример использования натуральных материалов в интерьере двухуровневой студии
Даже самую миниатюрную жилую площадь можно обустроить таким образом, чтобы проживающему на ней человеку было комфортно.
Использование качественных натуральных материалов сгладит ощущение тесноты. Аккуратная маленькая кухня с барной стойкой вместо стола расположена у самого входа в квартиру. Над ней располагается небольшая, но вместительная спальня.
Большая квартира-студия
На первый взгляд кажется, что создать интерьер квартиры-студии большого размера не составит труда. На самом деле, такая задача под силу не каждому дизайнеру. Главной целью выступает не использование каждого метра площади, а гармоничное наполнение пространства.
На этом фото хорошо видно, как можно разделить интерьер на зоны без дополнительных перегородок
Активные жизнерадостные семейные пары иногда предпочитают из многокомнатной квартиры создать единый интерьер. Отсутствие перегородок даже в спальне добавляет простора и воздуха. Зональность выделена лишь ковровым покрытием и незначительными деталями.
Обилие естественного света сглажено элементами темных тонов
Яркий пример идеального мужского жилища.
Большое число окон обеспечивает естественное освещение. Чёрные тона, в том числе кирпичная стена тёмного цвета, компенсируют излишнюю яркость.
Пастельные тона и цветочные принты делают помещение светлее и уютнее
Прованс воплощает в себе мечты обустройства квартиры-студии для женщины с романтичной натурой. Светлые тёплые краски создают умиротворяющее настроение. Лёгкие перегородки разграничивают пространство на необходимые зоны.
В данном интерьере композиция строится вокруг двуспальной кровати
Спокойные тона и натуральные отделочные материалы создают эффект экологичности и естественности. Композиционным центром выступает большая двуспальная кровать, прикрытая лёгкими занавесками.
Вместо радикального демонтажа стен можно сделать широкие арочные проёмы
В стандартной трёхкомнатной квартире для создания студии необязательно полностью демонтировать все стены. Широкие арки создадут ощущение цельного пространства, при этом каждая зона выделена небольшими перегородками.
Оригинальные идеи и интерьерные новинки
Подвесная кровать позволяет сэкономить место в малогабаритной студии
Подвесная кровать в дневное время поднимается к потолку и не занимает лишнее пространство.
В данном случае спальное место отделено глухими занавесками и гипсокартонной конструкцией
Кровать, расположенная в нише, спрятана за аккуратными портьерами. Простота в оформлении подчёркивает лаконичность интерьера.
Кровать можно разместить на возвышении, которое может использоваться как место для хранения
Спальное место может располагаться на возвышенности. В нижней части организована система хранения вещей.
Стиль лофт не предполагает большого количества мебели и подойдет активным молодым людям
Недостаток мебели не всегда влечёт за собой отсутствие стиля. Абсолютно белые стены с некоторыми элементами лофта снимают внутренние рамки человека. Такое оформление подойдёт для людей, ценящих внутреннюю свободу и любящих путешествовать.
Оригинальное решение спального места
Ярким акцентом в студии выступает зона для сна.
Уникальность состоит в том, что место отдыха можно без труда передвигать по комнате.
Фотогалерея — примеры удачной планировки квартиры-студии
- Зеркальная стена позволит визуально расширить пространство
- Освещение и цветовые акценты используются для визуального зонирования
- В данном случае интерьер оформлен в сдержанном стиле
- Расставьте акценты с помощью ярких предметов интерьера
- Функциональная перегородка
- Изголовье кровати выполнено в виде декоративной перегородки
- Нестандартное решение для зонирования — перегородка, выполненная из крашенных деревянных балок
- В небольшой квартире-студии можно обустроить уютное жильё
- Если не хотите перегружать интерьер, в качестве перегородки можно использовать лёгкую штору
- Окна — источник естественного света
- Зоны помещения отчётливо выделены
- Способ организации рабочего места и зоны отдыха
- Минимум мебели, максимум пространства
Опыт последних лет показал, что студия представляет собой идеальную планировку для одного человека или молодой семейной пары.
Даже самое небольшое помещение можно обустроить таким образом, чтобы вся необходимая мебель была под рукой. Придерживаясь определённых правил, можно создать прекрасную атмосферу. Распространение получили и большие студии, которые образовались путём объединения сразу нескольких комнат.
- Автор: VasilievaM
- Распечатать
Оцените статью:
(0 голосов, среднее: 0 из 5)
Поделитесь с друзьями!
Не нашли то, что искали? Вернитесь к поиску планировок квартир по параметрам типового проекта. Поддержите проект, расскажите о tipdoma.com в социальных сетях:
Планировка квартиры-студии — 20+ проектов с планами и фото
На сегодняшний день квартиры небольшой площади являются самыми продаваемыми на рынке недвижимости, поэтому, их дизайн, планировка и отделка – актуальные задачи. Мы собрали на данной странице множество схем планировки квартир-студий и фотографий интерьеров.
Под квартирой-студией мы понимаем общее жилое пространство без глухих перегородок (исключая ванную, которая является интимной комнатой). Все функциональные зоны студии: гостиная, кухня, столовая и спальня — находятся в рамках одной общей площади, хотя границы их, как правило, подчёркнуты методами зонирования.
Мы подобрали квартиры разных площадей (от 20 до 50 квадратных метров), в разной стилистике и с совершенно разными планировочными решениями. Надеемся, что эта коллекция чертежей поможет вам определиться с вариантом планировки вашей студии, или натолкнёт на какую-то интересную идею, которая послужит основой для дизайн-проекта.
Страница периодически обновляется и пополняется новыми проектами (следите за обновлениями).
- Содержание
- Проект 1. Классическая планировка студии 35 м2, спальня за раздвижной зеркальной перегородкой
- Проект 2. Студия 40 м2 с раздвижной стеклянной перегородкой между гостиной и спальней
- Проект 3. Студия 28 м2 в скандинавском стиле
- Проект 4.
Квартира 27 м2 с гостиной в лоджии - Проект 5. Микро квартира в мансарде 20 м2
- Проект 6. Планировка большой студии 48 м2, отдельная спальная зона за шторами
- Проект 7. Планировка маленькой студии 27 м2
- Проект 8. Планировка студии 38 м2, спальня около окна
- Проект 9. Планировка узкой студии 29 м2
- Проект 10. Студия 29 м2 с двумя кроватями и гардеробной под сдачу в аренду
- Проект 11. Студия 33 м2, в которой прихожая и кухня объединены
- Проект 12. Квартира 46 м2 со спальней на высоком подиуме
- Проект 13. Квартира студия со спальней на антресоли (2-й уровень)
- Проект 14. Студия 38 м2 с домашним кинотеатром
- Проект 15. Квартира 43 м2 с типичной планировкой (зоны по углам)
- Проект 16. Студия 27 м2 с раскладным диваном
- Проект 17. Простая планировка студии 40 м2 в стиле лофт
- Проект 18. Длинная узкая квартира с кухней и спальней в коридоре
- Проект 19.
Микроквартира 18 м2, оригинальное цветовое зонирование - Проект 20. Студия 36 м2, спальня отгорожена перегородкой от прихожей
- Проект 21. Студия 26 м2 в которой нет дивана (варианты до и после перепланировки)
Проект 1. Классическая планировка студии 35 м2, спальня за раздвижной зеркальной перегородкой
сохранить Автор Дизайнер: Audronė Ambrazienė, Литва
Смотрите все фото проекта: Квартира-студия 35 м2 – 12 фото
Планировка, которую вы видите на схеме, можно назвать классической для квартир, имеющих форму, близкую к квадрату. Всё пространство условно поделено на 4 части, в каждом углу «квадрата» находится какая-то зона (гостиная, спальня, кухня, санузел).
Главная особенность проекта в том, что спальня может полностью отгораживаться от студийного пространства зеркальными раздвижными перегородками.
В закрытом положении перегородки выглядят как обычная «зеркальная стена», а в открытом, гостиная и спальня – единое целое.
Прихожая здесь никак специально не выделена, она является незаметной частью общего пространства квартиры.
Проект 2. Студия 40 м2 с раздвижной стеклянной перегородкой между гостиной и спальней
Смотреть все фото проекта: Студия 40 м2 с раздвижной стеклянной перегородкой
Несмотря на большое единое пространство, всё же, здесь есть одна перегородка, но прозрачная. Стеклянная раздвижная перегородка разделяет спальню и гостиную. В открытом положении студия образует единое пространство. В спальне компактно расположилось рабочее место. Идея проекта в том, что личное пространство всегда можно закрыть перегородкой.
Основная идея проекта в создании общего пространства, но с разделением спальни и гостиной стеклянной раздвижной перегородкой
сохранить
Автор Curly Studio www.
behance.net/Curly_studio
Проект 3. Студия 28 м2 в скандинавском стиле
План квартиры студии 28 м2 (показана только встроенная мебель)
сохранить Автор Эрик Йозефсон, Швеция https://www.instagram.com/josefssonljung/
Смотреть все фото: Маленькая студия в скандинавском стиле
Маленькая студия в Швеции площадью всего 28 квадратных метров представляет собой абсолютно цельное единое пространство. Здесь не применено даже визуального зонирования цветом. Весь интерьер выполнен в едином стиле в светлой цветовой гамме и имеет простейший декор.
Проект 4. Квартира 27 м2 с гостиной в лоджии
Планировка узкой длинной квартиры-студии 28 м2
сохранить Автор Cubiq Studio cubiqstudio.ru/
Смотреть все фото проекта: Квартира-студия 28 м2
Крайне необычная планировка квартиры, которая имеет форму вытянутого прямоугольника (не считая треугольной лоджии).
Спальня, кухня и столовая в одной комнате
сохранить Автор Cubiq Studio cubiqstudio.ru/
Проект 5. Микро квартира в мансарде 20 м2
Схема планировки студии в мансарде 20 м2
сохранить Автор queestearchitecten.com/
Смотрите все фото проекта: Микро квартира 20 м2 в мансарде городского дома
Микроскопический размер квартиры был изначально главной сложностью для архитектора.
Проблему планировки дизайнер решил, совместив все зоны в единое целое. Здесь спальная зона плавно переходит в гостевую и тут же начинается кухонная. Пришлось заказывать специальную мебель по авторским эскизам. Углы были скруглены специально, так как в маленькой комнате такая геометрия позволяет чувствовать себя более уютно.
Проект 6. Планировка большой студии 48 м2, отдельная спальная зона за шторами
Изометрический план однокомнатной квартиры с отдельной спальной зоной
сохранить Автор Студия VAE, Беларусь https://vae.by
Смотрите фото проекта и описание: Квартира-студия 48 м2 с отдельной спальней
Квартира-студия в Минске имеет площадь 46 квадратных метров, благодаря большой площади в ней нашлось место для отдельной гардеробной, достаточно большого санузла и планировочных экспериментов.
Основная идея планировки жилого пространства студии заключается в том, что спальня выделена в отдельную зону. Вокруг подиума кровати установлено четыре колонны, между которыми повешены шторы. Благодаря шторам можно отделять спальное место от остального пространства или объединять.
В квартире использовано множество специальных дизайнерских решений. В том числе возможность устройства домашнего кинозала, в котором кровать – это место просмотра фильмов. Подробнее читайте в полном описании проекта (ссылка выше)
сохранить Автор Студия VAE, Беларусь https://vae.by
Кухня, барная стойка и столовая зона
сохранить Автор Студия VAE, Беларусь https://vae.by
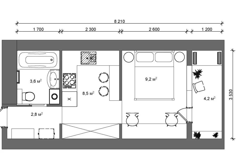
Проект 7. Планировка маленькой студии 27 м2
Планировка студии 27 м2
сохранить
Автор Дизайнер Олег Кургаев https://www.
instagram.com/olegkurgaev_design/
Смотреть весь проект: Квартира-студия 27 м2 – 10 фото
Очень маленькая квартира-студия, площадью всего 27 м2, была спланирована очень практично и функционально. Дизайнеру удалось использовать буквально каждый квадратный сантиметр площади. Кровать отделена реечной деревянной перегородкой с одной стороны и шторой с другой.
Между гостевой зоной и кухней установлена дополнительная зонирующая перегородка. Она не только проводит границу, но и служит стеной для телевизора, который повешен напротив дивана. Единственная проблема — в квартире практически нет мест для хранения, только шкаф в прихожей.
Кровать отделена шторой и реечной перегородкой
сохранить Автор Дизайнер Олег Кургаев https://www.instagram.com/olegkurgaev_design/
Дополнительная перегородка под телевизор, вид от дивана
сохранить
Автор Дизайнер Олег Кургаев https://www.
Проект 8. Планировка студии 38 м2, спальня около окна
Планировка квартиры 38 м2
сохранить Автор Студия Suit House, Украина https://www.suithouse.com.ua
Смотреть все фото проекта: Квартира 38 м2 со спальней около окна
Этот проект нельзя однозначно отнести к студийным, так как спальня здесь полностью отделена, хотя и стеклянной стеной, а не глухой перегородкой. Тем не менее, благодаря использованию стекла визуальная общность пространства сохраняется. Дело в том, что спальня была спланирована рядом с окном, а их всего два в квартире. Поэтому, единственной возможностью сохранить естественный свет в студии было использовать стеклянную перегородку.
Кухня, гостиная и рабочая зона расположились в одной части квартиры, рядом с лоджией, а столовая и спальня в другой. Все эти зоны скомпонованы на небольшой площади, всего 38 квадратных метров.
Проект 9. Планировка узкой студии 29 м2
Планировка студии 29 кв. м, узкая вытянутая квартира
сохранить Автор Андрей и Алена Тимонины, Санкт-Петербург https://www.instagram.com/9003_studio/
Смотреть весь проект: Современная студия 29 м2
Ещё одна квартира узкой и вытянутой формы. Этот проект внешне очень похож на проект, который мы уже рассматривали выше под номером 6. Здесь, точно также, спальное место выделено в отдельный блок. Однако, в данной квартире площадь гораздо меньше и архитектору пришлось перебирать варианты для компактного размещения всех необходимых зон. Так, кухня нашла своё место в коридоре – это главная уникальная особенность данной планировки. Довольно большая площадь рядом со входной дверью выделена под гардеробную.
Отдельный блок для спальни и кухни в современной квартире-студии
сохранить
Автор Андрей и Алена Тимонины, Санкт-Петербург https://www.
instagram.com/9003_studio/
Проект 10. Студия 29 м2 с двумя кроватями и гардеробной под сдачу в аренду
Планировка однокомнатной квартиры 29 м2
сохранить Автор Андрей и Алена Тимонины, Санкт-Петербург https://www.instagram.com/9003_studio/
Смотреть весь проект: Однокомнатная квартира-студия 29 м2 с двумя кроватями
Ещё один оригинальный проект планировочного решения для студии. Дизайн изначально разрабатывался для квартиры под посуточную задачу в аренду. Задача предполагала, что студия должна быть удобна для постояльцев, в количестве от одного до трёх человек. Исходя из этой задачи и продумывалось использование пространства. При входе расположилась вместительная гардеробная со стеллажами. Вход в ванную возможен только через гардеробную, которая отгорожена шторой.
Главная идея – это замаскированные спальные места. Диван расположен у стены, которую, на первый взгляд, можно принять за глухую стену квартиры, но на самом деле за ней скрывается спальная зона.
Диван же может раскладываться и, таким образом, в небольшой студии нашлось пространство для двух кроватей и трёх спальных мест, соответственно.
Гостевая зона, за стеной находится спальное место
сохранить Автор Андрей и Алена Тимонины, Санкт-Петербург https://www.instagram.com/9003_studio/
Спальное место, скрытое за перегородкой + разложен диван
сохранить Автор Андрей и Алена Тимонины, Санкт-Петербург https://www.instagram.com/9003_studio/
Проект 11. Студия 33 м2, в которой прихожая и кухня объединены
Планировка квартиры студии 33 м2
сохранить Автор Studio Makkai Interior, Венгрия https://hu-hu.facebook.com/studiomakkaiinterior/
Смотреть весь проект: Студия 33 м2 в современном стиле
Квартира изначально имела продуманный архитектором застройщика план, в котором предполагалось размещение санузла в нише, а площадь остальной квартиры представляла собой правильную прямоугольную форму.
Дизайнер решил совместить кухню с прихожей, а спальное место отгородить деревянной реечной перегородкой. Оставшееся пространство осталось под просторную гостиную, она занимает больше всего места в студии. Вся система хранения (шкафы) расположена вдоль одной стены гостиной. Таким образом, планировка заключается в достаточно простых, но логичных решениях.
Вид студии от стенного шкафа, слева спальная зона
сохранить Автор Studio Makkai Interior, Венгрия https://hu-hu.facebook.com/studiomakkaiinterior/
Проект 12. Квартира 46 м2 со спальней на высоком подиуме
Планировка однокомнатной квартиры-студии 46 м2
сохранить Автор Студия Форма Дома, Красноярск https://www.formadoma.net
Смотреть весь проект: Однокомнатная квартира-студия 46 м2
Планировка квартиры интересна тем, что в ней пространство разделено не только в горизонтальной плоскости, но и по вертикали.
Так, спальная зона была размещена на высоком подиуме (можно сказать на втором ярусе), а под ним скрыта обширная система хранения. Забраться на кровать можно только по лестнице. Таким образом, был решён вопрос недостатка места для шкафов.
В целом квартиру делят реечные деревянные перегородки, они чётко очерчивают границы между кухней и столовой с одной стороны и спальней с гостиной с другой.
Гостиная и спальня за реечными перегородками
сохранить Автор Студия Форма Дома, Красноярск https://www.formadoma.net
Кровать на высоком подиуме
сохранить Автор Студия Форма Дома, Красноярск https://www.formadoma.net
Проект 13. Квартира студия со спальней на антресоли (2-й уровень)
Планировка студии 35 м2, план нижнего уровня
сохранить
Автор Дизайнер Иван Юнаков, Украина https://33by.
pro/loft.html
Вид от окна на входную дверь и спальню на втором ярусе
сохранить Автор Дизайнер Иван Юнаков, Украина https://33by.pro/loft.html
Все фото проекта: Квартира со спальней на втором ярусе
Если вы стали счастливым обладателем квартиры небольшой площади с высоким потолком (больше трёх метров), то можно рассмотреть создание второго горизонтального яруса (антресоли). В проекте данной квартиры над ванной, прихожей и гардеробной лежит горизонтальное перекрытие, на котором находится спальня. Подняться в спальню можно по современной лестнице вдоль стены. Оставшуюся площадь занимает кухня с гостиной, которые компактно разместились рядом: диван и барный стол четко делят комнату по центру.
Проект 14. Студия 38 м2 с домашним кинотеатром
Планировка студии лофт, 34 м2
сохранить
Автор Татьяна Зотова, Москва https://www.
instagram.com/tz.viz/
Смотреть весь проект: Студия 38 м2 с интегрированным домашним кинотеатром
Главная идея планировки – размещение домашнего кинотеатра в гостиной зоне, поэтому под гостиную отведено много места. Несмотря на это здесь нашлось место для спальни (рядом с окном, за декоративной перегородкой) и кухни, которая естественно является частью общего пространства. Кухонный гарнитур установлен сразу за диваном. Чтобы как-то отделить прихожую, была добавлена дополнительная зонирующая перегородка, которая частично закрывает входную дверь.
Проект 15. Квартира 43 м2 с типичной планировкой (зоны по углам)
Планировка студии 43 м2
сохранить Автор Андрей Попов, Краснодар https://www.instagram.com/popofflive/
Смотрите все фото проекта: Квартира-студия в индустриальном стиле 43 м2
Подобная планировка довольно типична для студии правильной прямоугольной формы, имеющей входную дверь по середине квартиры.
Здесь зоны распределены чётко по углам. Вдоль одной стены – гостиная и спальня с гардеробной, а вдоль противоположной стены – кухня и санузел. Прихожая и небольшой коридорчик расположены в центре между стенами ванной и гардеробной. Спальня отгорожена дизайнерской перегородкой в виде поворотных жалюзи.
Проект 16. Студия 27 м2 с раскладным диваном
Планировка студии 27 м2 с диваном-трансформером
сохранить Автор Дизайнер Виталий Мясников, Москва https://www.instagram.com/vitalymyasnikov.design/
Смотреть все фото проекта: Студия 27 кв.м с раскладным диваном
Проект от московского дизайнера Виталия Мясникова. Очень маленькая квартира площадью всего 27 м2, требовала решений по оптимизации пространства. Планировка была разработана с учётом использование дивана-трансформера. Диван в гостиной очень просто и быстро превращается в кровать для спальни.
Проект 17. Простая планировка студии 40 м2 в стиле лофт
Планировка студии 40 м2
сохранить Автор Арх. студия INT2 https://int2architecture.ru/
Квартира спроектирована архитектурной студией INT2 из Санкт-Петербурга и предназначена под сдачу в аренду. Планировка достаточно простая без сложного зонирования. Из оригинальных решений стоит обратить внимание на стену, которая отделяет ванную комнату, в ней предусмотрена ниша для размещения кухонного оборудования.
Смотреть все фото проекта: Студия лофт 40 м2
Проект 18. Длинная узкая квартира с кухней и спальней в коридоре
Планировка современной студии 35 м2,
сохранить Автор Яна Волкова, Москва volkov-d.com
Проект разработан московским дизайнером Яной Волковой. Главная особенность квартиры заключается в её форме (вытянутый прямоугольник).
Дизайнер отвёл третью часть студии под гостиную, а остальные зоны и комнаты компактно разместил рядом с коридором. В итоге получилась квартира, в которой все вспомогательные зоны находятся в длинном коридоре. Спальня и кухня расположились друг напротив друга, кровать отгорожена раздвижной стеклянной перегородкой.
Смотреть все фото проекта: Современная студия 35 м2 с длинным коридором
Проект 19. Микроквартира 18 м2, оригинальное цветовое зонирование
Планировка квартиры 18 кв.м
сохранить Автор Дизайнер Жан Вадим, Польша https://zarysy.pl/
Площадь квартиры изначально была очень маленькой — всего 18 кв. м. Дизайнеру пришлось применить настоящий талант, чтобы оптимально использовать каждый квадратный сантиметр. Ванная комната имеет неправильную форму, благодаря геометрии перегородок удалось выделить небольшое пространство под душевую кабину, а со стороны жилой части появилась ниша под встроенные шкафы.
Вид на кухню и прихожую из глубины квартиры
сохранить Автор Дизайнер Жан Вадим, Польша https://zarysy.pl/
Главная составляющая проекта – это уникальное цветовое зонирование, благодаря которому удалось оптически увеличить пространство. Автор намеренно ввёл в проект контрастные цвета и подчеркнул зоны цветом, нарушая геометрию прямоугольных помещений.
Смотреть все фото проекта: Маленькая студия с уникальным цветовым зонированием
Проект 20. Студия 36 м2, спальня отгорожена перегородкой от прихожей
Планировка студии 32 м2
сохранить Автор CHI DESIGN, Санкт-Петербург www.chigintseva.ru
Форма квартиры в плане почти квадратная, что позволило создать довольно простую и логичную планировку. Зона спальни отгорожена от прихожей зонирующей перегородкой, благодаря чему образовалась ниша для входной зоны.
Все остальные зоны скомпонованы в рамках общего пространства (гостиная, столовая и кухня). Со стороны столовой кровать дополнительно отделена низкой стеклянной перегородкой из стеклоблоков. Пол в районе кухни и прихожей выложен кафельной плиткой, остальное покрытие – массив.
Смотреть весь проект: Современная квартира-студия с элементами ретро.
Проект 21. Студия 26 м2 в которой нет дивана (варианты до и после перепланировки)
План квартиры 26 м2 до перепланировки
сохранить Автор Денис Свирид https://www.facebook.com/Денис-Свирид-332465766906501/
План после перепланировки, 26 м2
сохранить Автор Денис Свирид https://www.facebook.com/Денис-Свирид-332465766906501/
Эта студия не просто маленькая, она крохотная. С другой стороны, у помещения есть одно явное преимущество – много окон.
Дизайнер Денис Свирид из Мельбурна применил все свои таланты, чтобы оптимизировать пространство. Было принято радикальное решение: отказаться от дивана в гостевой зоне, чтобы расширить свободное пространство перед балконной дверью. Вместо дивана рядом с кроватью было спроектировано место для отдыха. Кровать вписана в отдельный модуль (границы зоны сна подчёркнут), над ней закреплён видеопроектор, таким образом стало возможно смотреть фильмы, находясь в постели.
Ещё одна нестандартная находка – это расположение барной стойки прямо рядом с кроватью, она разграничивает спальню и кухню.
Смотреть весь проект: Маленькая студия в Мельбурне.
Дата последнего обновления:
СМОТРИТЕ ТАКЖЕ
Объекты Квартиры Маленькие однокомнатные квартиры (83)
Галерея
7 проектов дизайна маленьких квартир студий до 30 м2 — фото, описания, планировкаОбъекты Квартиры Маленькие однокомнатные квартиры (61)
Галерея
Дизайн студии со стеклянными перегородками (6 проектов)Объекты Квартиры Маленькие однокомнатные квартиры (56)
Галерея
Проекты квартир-студий в современном стиле (5 проектов с планировками)Объекты Квартиры Маленькие однокомнатные квартиры (83)
Галерея
Проекты маленьких квартир студий в стиле лофт (6 проектов, 80+ фото)
12 идеальных планировок квартир-студий, которые работают
По
Дейдра Салливан
Deirdre Sullivan
Deirdre Sullivan — эксперт по дизайну интерьеров и писательница, которая специализируется не только на дизайне, но и на благоустройстве дома.
Она начала свою карьеру в качестве помощника редактора журнала Elle и имеет более чем десятилетний опыт работы. Дейдра предоставляет контент для таких брендов, как The Spruce и Realtor.com, и выступала на различных конференциях.
Узнайте больше о The Spruce’s Редакционный процесс
Обновлено 30.09.20
Ель / Фото Кристофера Ли
То, что ваша студия меньше 600 квадратных футов, не означает, что она должна быть похожа на крошечную комнату в общежитии. На самом деле, существует множество творческих способов использовать имеющееся у вас пространство и сделать его более открытым и просторным. Конечно, вы не можете волшебным образом расширить площадь своей квартиры (если только вы не снесете стены соседа). Но с небольшим планированием пространства и правильным декором вы можете максимально использовать каждый квадратный дюйм своего дома, чтобы создать взрослый дом, которого вы заслуживаете, и никакой реконструкции не требуется!
Представленные ниже планировки квартир показывают, как легко работать с тем, что есть, и удачно украсить маленькое пространство.
Возможности безграничны — даже при нехватке квадратных метров.
Смотреть сейчас: 5 дизайнерских приемов для квартиры-студии
01 из 12
Сделайте просмотр запоев лучше
Лабль СтудияСделайте свою квартиру колоссальной, создав отдельные жилые зоны. Но сколько квадратных метров вы должны назначить каждой секции?
Подумайте, что сделает вас счастливее дома.
Хотите пригласить друзей на Netflix? Человек, который живет в этой нью-йоркской студии, создал большую гостиную, достойную вечеринки, пожертвовав спальней и столовой.
Если вам не разрешено красить стены, вот еще одна идея, чтобы украсть из этой квартиры — съемные, ободранные и наклеенные обои.
Его легко установить, и он украсит тусклые стены, не ставя под угрозу залог.02 из 12
Превратите свою студию в бутик-отель
Обузданный Нью-ЙоркЕсли вы всегда в пути, а дом — это просто место, где вы принимаете душ и спите, почему бы не оформить свою квартиру как номер в бутик-отеле?
Например, в этом доме площадью 300 квадратных футов есть все, что можно найти в модных квартирах, все расположено в нескольких шагах от кровати, включая шикарную мини-кухню, несколько предметов ретро-мебели и, конечно же, специально подобранный мини-бар (он стоит на подоконнике).
Но изюминкой этой квартиры, как и любого стильного гостиничного номера, является удобная кровать, застеленная простынями с высокой плотностью нитей.
03 из 12
Украсьте как сумасшедший
marionalberge.comКогда дело доходит до украшения небольшого пространства, ничто не сравнится с волшебными способностями расширения комнаты с помощью низкопрофильной мебели середины века.

По сравнению со многими современными стилями, дизайн середины века расположен намного ближе к полу, из-за чего потолки и окна кажутся выше. Так обстоит дело в этой солнечной студии площадью 270 квадратных футов на Монмартре в Париже.
04 из 12
Высокие стремления
Фантастический ФрэнкЕсли у вас высокие потолки, вы можете волшебным образом увеличить площадь, пригодную для жизни, с помощью кровати-чердака.
Это выигрышная идея, которая превратила эту студию площадью 193 квадратных фута в Стокгольме в дуплекс с одной спальней — посмотрите на уютную гостиную.
Но второй уровень — не единственная причина, по которой эта скандинавская прелестница кажется намного больше своего реального размера. Стены и декор выполнены в галерейно-белом цвете. Вместе они размывают начало потолка, создавая эффект открытого и воздушного пространства. Согревающие акценты из металла и кожи не дают яркому белому интерьеру выглядеть антисептическим.

Если вы одержимы хранением, еще одна интересная особенность — лестница со встроенными ящиками. Однако, если вы украдете эту идею, пожалуйста, добавьте поручни для безопасности.
05 из 12
Двухместный диван
Лудин ФастигетсбираЭта квартира на железной дороге в Гётеборге, Швеция, имеет площадь менее 190 квадратных футов. Вот как искусно размещенный декор превратил крохотное жилище в маленькое уютное жилище.
Первоочередной задачей было создание многофункциональной зоны как для сна, так и для общения. Красиво оформленная кровать, которая служит диваном, стала идеальным местом. Длинный письменный стол, а также два небольших столика, которые не умаляют открытости комнаты, добавляют функциональности.
Идеальным завершающим штрихом в этом маленьком гнездышке является уютный марокканский ковер.
06 из 12
Presto, Change-o Layout
Жизнь отредактированаКогда дело доходит до оптимизации крошечных студий, Грэм Хилл мастерски заставляет их чувствовать себя в два раза больше.
Его компания LifeEdited работает с архитекторами и застройщиками над созданием ультрапригодных для жизни микроквартир.Текущий проект Хилла — студия площадью 350 квадратных футов, которую он делит со своим партнером и их двумя собаками. Сохранение гибкости макета является ключом к тому, чтобы сделать их дом многофункциональным.
Мебель двойного назначения делает это возможным. Универсальные предметы, такие как модульный диван и раскладывающийся журнальный столик, могут быстро превратить гостиную Хилла в столовую. Видите стену напротив телевизора? Он скрывает кровать Мерфи.
07 из 12
Work Every Nook
Джонер Изображений / Getty ImagesЭто маленькое гнездо максимально использует каждый уголок и щель, чтобы создать три отдельные жилые зоны.
Небольшое углубление в углу создает идеальное место для кровати и дополнительного места для хранения.
Участок стены перед входом в кухню превращается в уютный уголок для завтрака.

Напротив обеденного стола находится двухместное кресло, которое образует гостиную. Ковер впереди усиливает ощущение разделения между всеми тремя зонами.
08 из 12
Переосмыслите изножье кровати
Лаборатория дизайна БАМРазмещение мебели у изножья кровати — еще один отличный способ создать небольшое разделение между гостиной и спальной зонами. Вы можете использовать диван, письменный стол или и то, и другое, как показано в этом ярком и красочном микролофте в центре Лос-Анджелеса.
В вашей студии есть коридор? Держите основную гостиную в чистоте, разместив в прихожей мебель для хранения и демонстрации.
09 из 12
Дизайн-цели, достойные инвестиций
архитекторыЕсли вы владеете своей квартирой-студией, рассмотрите возможность инвестирования в продуманные встроенные элементы и гибкую мебель. Подобные функции не только сделают ваше пространство огромным, но и могут повысить ценность вашего дома, когда придет время продавать.

Вот несколько целей дизайна, которые могут вас вдохновить. Эта студия в первом микрожилом доме в Нью-Йорке, спроектированном nArchitects, оснащена трансформирующейся мебелью и встроенным хранилищем, позволяющим максимально увеличить площадь в квадратных футах.
Стенка встроенного шкафа за диваном скрывает кровать в стенной нише. Блок под телевизором обеспечивает дополнительное пространство, чтобы держать вещи вне поля зрения. Инновационные решения, такие как журнальный столик двойного назначения и расширяющаяся кухонная консоль, создают больше места для обеда или работы.
10 из 12
Низкие потолки? Нет проблем!
Laurelandwolf.comРазделение пространства для разных целей в коробчатой студии с низкими потолками только кажется сложным.
Секрет в том, чтобы использовать правильную мебель. Этот микро-лофт в Сан-Франциско украшен сочетанием низкопрофильных и длинноногих вещей. Мебель не занимает много места по вертикали, поэтому потолок кажется выше.

В этом удобном для копирования макете полноразмерная кровать размещается рядом с низким диваном, создавая дополнительные места для сидения. Межкомнатная перегородка у изголовья кровати — самый высокий предмет в квартире. Он вырезает обеденный уголок, украшенный мебелью в индустриальном стиле.
11 из 12
Занавески? Да, пожалуйста!
Студии Уайт СтоунНадоело смотреть на кухню, лежа в постели? Вы можете сделать свою спальню более приватной с помощью перегородки.
Есть множество вещей, которые сделают работу, от складных экранов до встроенных раздвижных дверей. Но мы предпочитаем простоту этой перегородки, которая была замечена в квартире студии White Stone Studios в Фениксе.
Это жилище площадью 450 квадратных футов также имеет двор площадью 200 квадратных футов.
5 различных типов комнатных перегородок и как их выбрать
12 из 12
Hello с одной спальней
ДомашнийПревратить свою простую студию в шикарную квартиру с одной спальней вполне возможно с помощью нескольких ключевых элементов.
Три выдающихся предмета превратили эту бывшую аварийную площадку в дом-шкатулку с драгоценностями.Во-первых, это книжный шкаф IKEA KALLAX (он стоит всего 200 долларов!), который вырезал спальню. Если вы ищете решение, которое не блокирует солнечный свет, этот блок — идеальная перегородка для небольшого пространства. Он также обеспечивает практичное хранение, которое необходимо почти каждой квартире-студии.
Затем гостиную украшает прекрасный большой ковер из иката. Так как стены голые, красочное напольное покрытие делает большое стильное заявление.
Что такое часть сопротивления ? Сундук для хранения Lucite. Поскольку предмет кристально чистый, кажется, что он не занимает места на полу.
Как увеличить пространство в квартире-студии
Примеры плана однокомнатной квартиры
Поскольку квартиры-студии имеют такой небольшой размер, они лучше всего подходят для одного человека или пары. Тесные помещения и отсутствие уединения обычно слишком много для двух соседей по комнате.
При этом квартира-студия может быть разумным вариантом для студентов, которые привыкли к компактным жилым помещениям.
Типовые планы этажей и планировки
План квартиры-студии часто имеет форму простого прямоугольника. Еще один отличный вариант — Г-образная форма со спальней на одной стороне, которая обеспечивает небольшое отделение от гостиной и кухни. Оттуда макеты могут варьироваться.
В некоторых планировках квартир-студий предусмотрено место для установки стиральной машины и сушилки, возможно, в чулане, ванной или даже на кухне. У других может быть шкаф для пальто или белья. Для максимального хранения ищите план этажа с гардеробной рядом с местом, где вы разместите кровать.
Для кухни важно, чтобы каждая клеточка пространства была на счету, поэтому ищите верхние и нижние шкафы для хранения. Кроме того, обратите внимание, есть ли рядом с кухней место для небольшого обеденного стола, который также может выполнять двойную функцию в качестве письменного стола или рабочего места.
Поскольку кровать будет находиться в той же комнате, что и кухня, одной из самых важных вещей, которую следует учитывать, является бесшумная техника, особенно если вы чутко спите. Кто хочет слышать ночью холодильник, льдогенератор или посудомоечную машину?
В ванной умывальник со шкафчиками и зеркальный шкафчик с лекарствами помогут вам наилучшим образом использовать пространство. Размер ванной комнаты и такие удобства, как душевая кабина или ванна, будут различаться в зависимости от планировки студии.
Поскольку в студии места мало, вам следует поэкспериментировать с расстановкой мебели, чтобы убедиться, что вы сможете разместить ключевые элементы в этом пространстве. Большие окна от пола до потолка или зеркала могут сделать комнату более просторной. При этом, если вам нравится темная комната, убедитесь, что вы можете найти оконные шторы, которые блокируют свет по утрам.
Идеи дизайна для квартиры-студии
Когда несколько «комнат» объединены в одну, хорошо иметь определенные пространства, и одна из наших любимых идей — использование ковров для определения пространства.

2 Преимущества и недостатки жилого помещения без перегородок
Когда один человек поднялся с кровати и занялся какими-то делами, другой также вынужден будет проснуться;
Несущие стены трогать запрещено, это может привести к трагическим последствиям.
Квартира 27 м2 с гостиной в лоджии
Микроквартира 18 м2, оригинальное цветовое зонирование
Его легко установить, и он украсит тусклые стены, не ставя под угрозу залог.

Его компания LifeEdited работает с архитекторами и застройщиками над созданием ультрапригодных для жизни микроквартир.


Три выдающихся предмета превратили эту бывшую аварийную площадку в дом-шкатулку с драгоценностями.