Стандартные размеры межкомнатных дверей и типовые конструкции
Межкомнатные двери являются важной деталью домашнего интерьера, который привлекает к себе внимание, бросаясь глаза. В частных домах и квартирах наших граждан они бывают чаще всего стандартных размеров. Это существенно облегчает выбор и установку дверной конструкции в сборе и самого дверного полотна.
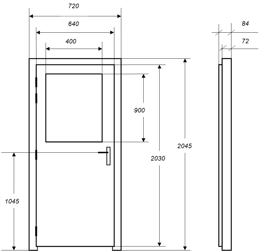
Стандартный размер одинарной межкомнатной двери по ГОСТуСтандартные размеры межкомнатных дверей напрямую зависят от помещения, дверной проем которого они закрывают. Архитектурные особенности обычной квартиры в городской многоэтажке предполагают увеличенный размер дверного проема, ведущего в гостиную и уменьшенный – в кладовку или в другое подсобное помещение. То же касается стандартного размера дверных конструкций в нежилых помещениях, где проемы могут быть либо узкими, либо широкими, то есть существенно отличаться от ГОСТа.
Стандартный размер дверных проемов предусмотрен исключительно для жилых квартир.
Он позволяет производителям межкомнатных дверей разрабатывать модели, согласно ГОСТУ, где:
• При высоте дверного проема в 2000 мм, типовая ширина дверного полотна будет от 600 до 900 мм.
Благодаря этому все известные и отечественные производители межкомнатных дверей составляют коллекции дверных полотен, выполненных по стандартным размерам. Это существенно облегчает выбор покупателей и избавляет их от необходимости расширять или сужать дверной проем для того, чтобы установить понравившуюся модель. Межкомнатные двери для нестандартных проемов изготавливаются по индивидуальным заказам на основании специально снятых замеров.
Именно поэтому при строительстве нового дома рекомендуется предусмотреть в его проекте типовые дверные проемы. Это существенно облегчит, не только выбор дверной конструкции, но и ее монтаж. При этом нужно учесть, что стандартные или, как их еще называют, типовые размеры, распространяются не только на распашные одностворчатые двери, но и на двери-купе и двустворчатые распашные модели, а также маятниковые и конюшенные аналоги, довольно часто устанавливаемые в помещения с новомодным интерьером.
Двустворчатые двери, как правило, являются своеобразной визитной карточкой дома или квартиры, поскольку устанавливают их на входе в гостиную. Для этого в типовых конструкциях предусмотрены расширенные дверные проемы. По этим же стандартам производственными компаниями изготавливаются полотна увеличенного размера. Они идут отдельной линейкой в общей коллекции того или иного бренда.
Увеличенный дверной проем на входе в гостиную в квартирах стандартных многоэтажек имеет следующие параметры:
• Высота – от 2,05 до 2,08 м.• Ширина – от 1,28 до 1,6 м.
Идеально подходящее для него двустворчатое дверное полотно будет иметь ширину створок:
• 0,6 и 0,6 м.• 0,6 и 0,8 м.
• 0,6 и 0,9 м.
По этим стандартным размером рекомендуется делать увеличенный дверной проем в строящихся частных домах. Это избавит вас от хлопот, связанных с заказом нестандартной двери и финансовыми расходами на ее изготовление и монтаж.
Для того, чтобы не ошибиться с размером дверного полотна и удостовериться в том, что дверной проем в вашем доме или квартире является стандартным, рекомендуется измерить ширину и высоту дверной коробки, добавить к ним размер зазоров для монтажа (примерно по 1,5 – 2 см с каждой из сторон), а также толщину напольного покрытия, если оно еще не установлено. Этот нехитрый расчет позволит вам узнать размеры дверного полотна, которое идеально подойдет для вашего дверного проема. На основании полученных данных вы можете выбирать понравившуюся модель. С нашей стороны мы можем порекомендовать просмотреть каталог с дверями Bravo.
Стандартные размеры межкомнатных дверей. Размеры дверей с коробкой, проемов — Своими руками на даче
- Информация о материале
- Просмотров: 2043
При покупке межкомнатных дверей в первую очередь следует обращать внимание на их размеры.
Правильный выбор позволит сократить расходы на подготовку проема и с легкостью установить раму и полотно самостоятельно.
Стандартные размеры межкомнатных дверей
Проще всего подобрать двери для комнат квартир старых домов. В советские время многоэтажки строились по типовым проектам, и размеры проемов во всех помещениях регулировались ГОСТом. Реализуемые сегодня в специализированных магазинах двери также обычно стандартны и имеют идеально подходящие для квартир в блочных домах и хрущевках размеры.
Какие габариты имеют проемы и дверные полотна в старых многоэтажках, можно посмотреть ниже. В таблице указаны стандартные размеры межкомнатных дверей с коробкой.
|
Место установки |
ГОСТ |
Размер двери (см) |
Размер проема (см) |
|
Комнаты |
21-9 |
200-80 |
205-210 х 87-93 |
|
Кухня |
21-8 |
200 х 70 |
205-210 х 77-83 |
|
Дверь из прихожей в зал |
21-10 |
200 х 90 |
205-210 х 97-103 |
|
Санузел |
21-7 |
200 х 60 |
205-210 х 67-73 |
|
Распашные двери в зал |
Две по 200 х 60 |
205-210 х 127-133 |
Стандартные размеры дверных проемов межкомнатных дверей по ширине, таким образом, могут составлять 60-90 см.
Высота у них всегда одинаковая — 2 метра.
Современные двери
В новых многоэтажных зданиях, а также в коттеджах межкомнатные проемы могут иметь самые разные размеры. Какие-либо нормативы в этом отношении в наше время не соблюдаются. Однако очень часто случается так, что и для нетиповых помещений подходят двери стандартных габаритов. К примеру, полотно, сделанное по ГОСТу 21-8, часто является идеальным вариантом для проема санузла или ванной комнаты, а на кухню в зависимости от планировки может вести широкий проем 21-9 или 21-10.
Где взять двери для нестандартных проемов
Первым делом владельцам нетиповых квартир и загородных домов, решившим сменить двери, следует, конечно же, промерить проемы.
Если окажется так, что стандартные размеры межкомнатных дверей им не соответствуют, следует все же предварительно посетить несколько специализированных магазинов.
Возможно, подходящие конструкции подобрать и удастся.
Если же нет — двери придется заказывать в специализирующейся на их изготовлении компании.
В перечень услуг таких фирм обычно входят точные замеры проемов, изготовление конструкций с нуля и их установка.
Разумеется, обойдется смена полотен и коробок в этом случае намного дороже.
Как не ошибиться с выбором
Для того чтобы избежать лишних расходов при замене полотна, конечно же, следует знать не только то, какие имеет стандартный проем межкомнатной двери размеры, но и о том, какие существуют соответствия габаритов нетиповых блоков и проходов. То, какие двери будут самыми подходящими в последнем случае, можно посмотреть в таблицах ниже.
|
Размер проема |
Размер полотна |
Размер блока |
Размер блока с наличниками |
|
635×1935 |
550×1880 |
615×1923 |
747×1990 |
|
685×2055 |
600×2000 |
665×2043 |
797×2110 |
|
885×2055 |
800×2000 |
865×2043 |
997×2110 |
|
685×2155 |
600×2100 |
655×2143 |
797×2210 |
|
885×2155 |
800×2100 |
865×2143 |
997×2210 |
Соответствия блоков и проемов для двустворчатых дверей:
|
1190×1935 |
550×1880 |
1169×1923 |
1300×1990 |
|
1290×2055 |
600×2000 |
1269х2043 |
1400×2110 |
|
1490×2055 |
700×2000 |
1469×2043 |
1600×2110 |
|
1490×2155 |
700×2100 |
1469×2143 |
1600×2210 |
Какой может быть толщина двери
Стандартные размеры межкомнатных дверей с коробкой, таким образом, соответствуют проемам типовых квартир.
При желании сегодня можно подобрать подходящие конструкции и для помещений необычной планировки. Ну или в крайнем случае заказать. Толщина коробок современных дверей также может быть разной. Чаще всего в специализированных магазинах продаются межкомнатные двери на 35 и 40 мм. Иногда также можно встретить модели на 36 и 38 мм. Полотна из натурального дерева обычно имеют толщину в 40 мм. Однако специализирующиеся на изготовлении межкомнатных и входных дверей компании в большинстве случаев оказывают клиентам и такую услугу, как изготовление очень толстых полотен из натурального материала в 50 см.
Разумеется, на толщину при покупке также следует обратить внимание. От этого параметра зависят такие характеристики двери, как:
-
Степень шумоподавления. Чем толще полотно, тем лучше оно задерживает звуки.
-
Прочность полотна.
-
Внешний вид.

Толстые модели выглядят, конечно, солиднее тонких.
Как измерить проем
Таким образом, вы теперь знаете, какими бывают стандартные размеры межкомнатных дверей. Сделать замеры в типовых квартирах, в общем, не слишком сложно (впрочем, как и в нестандартных). Однако при выполнении этой операции все же следует придерживаться определенных правил:
-
Производя замеры по длине и ширине, нужно учитывать возможные изменения размеров. К примеру, толщину будущего напольного покрытия, при необходимости — потолочной отделки и т. д. Очень внимательным следует быть, измеряя в том числе и стандартный дверной проем межкомнатной двери. Размеры по разным причинам (ошибки при строительстве, перепланировки и т. д) от типовых могут отличаться.
-
Перед походом в магазин желательно измерить в том числе и старую дверь.
-
Толщину стены в проеме измеряют с учетом отделки (ГКЛ, пластиковые панели и пр).
Если этот параметр превышает 10 см, необходимо дополнительно покупать или заказывать специальный доборный элемент.
Также перед покупкой двери следует определиться с необходимостью установки порожка. Этот элемент используется обычно в том случае, если пол в разделяемых дверью помещениях находится на разных уровнях.
Таким образом, современные двери могут иметь разную конструкцию и размеры.
Главное при их выборе — сделать точные замеры проемов.
Какими могут быть нестандартные и стандартные размеры межкомнатных дверей, мы с вами разобрались во всех подробностях.
Блоки для квартир в старых домах можно будет приобрести без проблем. Двери же для нетиповых проемов, скорее всего, придется заказывать в специализирующейся на их изготовлении компании.
Грубый проем для дверей – 24”, 28”, 30”, 32” и 36” – размеры проема и таблицы
Если вы планируете переделывать кухню или покупать для нее новые двери, возможно, вы слышали термин «грубый» проем разбросан, как правило, по ширине двери.
Однако сам термин может сбивать с толку — что означает грубое открытие? И какое отношение грубые проемы имеют к размерам дверей?
Ну, грубое открытие или RO для двери относится к расстоянию от края двери до края рамы, которая ее окружает. РО — это аббревиатура от грубого вскрытия. Это измерение необходимо снять до того, как вы пойдете покупать новые двери, и оно может варьироваться в зависимости от размера вашего существующего проема, поэтому обязательно обратите внимание на все эти грубые проемы перед покупкой!
Если вы просто покупаете одну дверь или планируете заменить входную дверь на другую в будущем, вот приблизительные проемы для некоторых из наиболее распространенных размеров дверей.
грубый проем двериСодержание
- Что такое грубый проем двери? 6 размеров, которые необходимо знать
- Черновой проем для 32-дюймовой межкомнатной двери
- Черновой проем для 36-дюймовой двери
- Черновой проем для 30-дюймовой двери
- Черновой проем для двери
- Примерный размер дверного проема
- 32-дюймовая дверная рама
- Размер дверного проема
- Внешний дверной проем, примерный проем
- Обрамление дверного проема, примерный проем
- Правильный способ измерения для новой двери: обеспечение идеальной посадки каждый раз
- 2
- 2
- Черновые проемы для дверей – какой размер вам нужен?
Что такое черновой проем для двери? 6 размеров, которые необходимо знать
Черновые проемы — это внешние размеры проема в вашей стене, включая ширину и высоту, а также расстояние от края одной стороны дверного проема до края противоположной стороны дверного проема.
дверной проем.
Если вас все еще интересует этот термин, и вы покупаете двери, вы должны прочитать эту статью, в которой объясняется все о грубом открытии для различных типов дверей!
Каковы типичные размеры модульных домов…
Пожалуйста, включите JavaScript
Каковы типичные размеры и размеры модульных домов?
Читайте также: Типы дверей – По материалам – Открывающиеся – Складные, Раздвижные, Рулонные
Черновой проем для двери – это пространство внутри вашей рамы, которое будет занимать дверь. Существует шесть стандартных размеров дверей: 24, 28, 30, 32, 34 и 36 дюймов по ширине. Грубый проем должен быть примерно на 2 дюйма шире и на 2-1/2 дюйма выше самой двери, чтобы обеспечить надлежащий зазор и простую установку.
Что такое грубое открытие двери? 6 размеров, которые вам нужно знать Если вы идете на рынок за дверями, они обычно используют термин 2/0 или 2/8.
Здесь это означает, что ширина двери составляет 2 фута-0 дюймов или 2 фута-8 дюймов. Таким образом, для двери 2/0 грубый проем будет 2 фута-2 дюйма (не забудьте просто добавить 2 дюйма к ширине всех размеров двери). Таким образом, мы можем записать грубые проемы (RO) для дверей разных размеров как:
- 2/0 дверь – 2/2 RO
- 2/4 двери – 2/6 RO
- 2/6 дверь –
- 3/0 дверь – 3/2 RO
Примечание. Мы просто добавляем 2 дюйма к ширине двери, чтобы получить примерный размер проема.
Давайте теперь посмотрим, сколько чернового проема в раме вам нужно для дверей определенного размера:
Черновой проем для 32-дюймовой межкомнатной двери
Размер чернового проема в раме для двери размером 32 дюйма будет шириной 34 дюйма. (после прибавления 2” к ширине), а высота будет 82-1/2” (после прибавления 2-1/2” к 80” – это стандартная высота двери 6’-8”.
Черновой проем для 36-дюймовой двери
Размер чернового проема для 36-дюймовой двери будет иметь ширину 38 дюймов (после добавления 2 дюймов к ширине), а высота будет 82-1/2 дюйма ( после добавления 2-1/2” в 80” – это стандартная высота двери 6’-8”.
Черновой проем для 36-дюймовой двери
Черновой проем для 30-дюймовой двери
Черновой каркас размер проема для двери размером 30 дюймов будет 32 дюйма в ширину (после добавления 2 дюймов к ширине), а высота будет 82-1/2 дюйма (после добавления 2-1/2 дюйма в 80 дюймов — то есть стандартная высота двери 6 футов-8 дюймов).
Читайте также: Стеклянные раздвижные двери – Компоненты – Размеры – Преимущества – Недостатки Вот почему мы это делаем:
- Черновой проем для двери остается больше, чем фактический размер двери, чтобы оставалось место для прокладки, обрезки и отделки во время установки. Имея больший проем, вы можете убедиться, что ваша дверь ровная, вертикальная и квадратная, прежде чем прикреплять ее к раме.
- Кроме того, всегда лучше ошибиться в сторону слишком большого, чем слишком маленького
- Для вертикальной и квадратной двери: Место для двери и коробки, которые нужно отрегулировать в проеме.
Несмотря на название, грубое обрамление не всегда бывает ровным и ровным. Если это дополнительное пространство осталось, вы можете идеально выровнять, выровнять и отвесить установку двери.
- Устранение производственных дефектов: Далее, не все двери имеют одинаковые размеры. Вполне вероятно, что двери будут различаться по размеру от производителя к производителю. Обычно это не имеет большого значения, но если ваш грубый проем был узким или точно соответствовал размеру двери и косяка, вы не сможете отрегулировать дверь, чтобы она работала должным образом.
- Учет усадки и расширения: И последнее, но не менее важное: это дает стене возможность расширяться и сжиматься. Ваша стена растет или сжимается в зависимости от времени года. Когда на улице влажно, он впитывает влагу и сжимается, когда температура и уровень влажности падают.
Разница в размерах дверей и грубых проемах невелика, иногда менее 1/16 дюйма, но этого может быть достаточно, чтобы однажды идеально подогнанная дверь прилипала, терлась о раму или не закрывалась должным образом.
Схема грубого открывания двери
Вот таблица грубого открывания двери. Вы можете выбрать размер двери из таблицы и посмотреть соответствующий примерный проем.
Sr. No. Door Size Rough Opening 1. 24” x 80” 26” x 82 ½” 2. 28” x 80” 30” x 82 ½” 3. 30” x 80” 32” x 82 ½” 4. 32” x 80” 34” x 82 ½” 5. 34” x 80” 36” x 82 ½” 6. 36” x 80” 38” x 82 ½” Из всех вышеперечисленных размеров дверей наиболее распространены двери размером 32 дюйма.
Дверная рама 32 дюйма
Во время изготовления рамы, если вам уже доставили двери; вам нужно правильно отрегулировать размер кадра.
Если у вас 32-дюймовая предварительно навесная дверь, вам необходимо обрамить дверь с черновым проемом 34 дюйма в ширину и 82 ½ дюйма в высоту. Если проем маленький, то дверь в него не влезет, а если слишком большой, то будут большие щели, которые будет сложно правильно установить двери.
Размер дверного проема
Размер дверного проема варьируется от производителя к производителю и от компании к компании. Но типичные размеры дверей в США, Великобритании и Австралии:
Для спальни, гостиной – Размер двери – 36 x 80 дюймов – примерный размер проема – 38 x 82 1/2 дюйма
Для ванной комнаты – можно использовать дверь размером 30” x 80” – примерный размер проема – 32” x 82 ½”
Для главной двери – типичный размер 42” x 84” и примерный размер проема – 44” x 86 ½”
Для кухни – можно использовать как 36” x 80”, так и 32” x 80”
Грубый проем наружной двери
Многие домовладельцы сбиты с толку, так как считают, что проем наружной двери такой же, как и проем наружной двери.
что для межкомнатной двери – но это не всегда правильно.
Как правило, межкомнатные и входные двери имеют одинаковую приблизительную ширину проема, но высота может варьироваться от производителя к производителю. Если вы не уверены в рекомендуемом RO, обратитесь к производителю.
Обрамление дверного проема
Если вы приобрели дверь на рынке и не знаете размеры обрамления чернового проема; вот зацепка. Вы можете измерить фактическую дверь, которую вы только что приобрели. Теперь просто добавьте 2 дюйма к этому измерению ширины, и в результате получится приблизительный размер проема для вашей новой двери.
Обрамление чернового проема двери означает добавление зазора сверху и с обеих сторон дверного проема. Такой зазор позволяет точно настроить положение двери при фиксации и закреплении ее на месте.
Если вы занимаетесь обрамлением, вам часто приходится определять грубый проем при обрамлении двери в доме. Поэтому очень важно знать правильный размер двери.
Некоторые другие важные аспекты включают в себя знание правильного размера жатки, триммерной шпильки и типичной шпильки.
Правильный способ измерения новой двери: каждый раз обеспечивать идеальную посадку
Чтобы получить приблизительный проем для двери, вам необходимо измерить ширину и высоту пространства, в котором будет установлена дверь. Для межкомнатной двери измерьте внутреннюю часть каждого косяка. Для наружной двери измерьте расстояние от внешней стороны одного косяка до внешней стороны другого косяка. Добавьте 2 дюйма к каждому измерению, чтобы учесть обрезку. Вот как можно измерить новую дверь:
- Найдите три точки на дверной раме — верхнюю, среднюю и нижнюю.
- Измерьте самую широкую из этих точек, чтобы определить ширину двери.
- С помощью рулетки определите ширину трех областей дверной рамы: пространства слева, пространства справа и пространства двери посередине.
- Возьмите ширину области дверного проема слева и прибавьте ее к ширине области дверного проема справа, и вы сможете оценить общую ширину двери.
Черновые дверные проемы – какой размер вам нужен?
Знаете ли вы, какой размер чернового проема вам нужен для вашей двери? Грубое отверстие — это размер рамы до добавления гипсокартона или других материалов. Важно знать приблизительный размер проема вашей двери, потому что это поможет убедиться, что ваша дверь правильно подходит и хорошо выглядит.
Подробнее: Что делать с зазором между ванной и цементной плитой?
Какой стандартный размер двери в Великобритании?
Новые межкомнатные двери могут вдохнуть новую жизнь в эстетику вашего интерьера. Не говоря уже об улучшении тепло- и звукоизоляции. Это идеальный подарок для вашего дома. Но прежде чем вы начнете покупать новые двери, важно правильно подобрать размер.
Многие считают, что все межкомнатные двери одного размера. К сожалению, это предположение может означать, что у них остались щели в дверных рамах, которые притягивают сквозняки.
Или они строгают много качественной древесины, чтобы втиснуть дверь в раму.
Хорошей новостью является то, что мы предлагаем широкий ассортимент межкомнатных дверей самых разных размеров и стилей. Какими бы ни были размеры и размеры ваших рам, есть большая вероятность, что мы сможем найти для вас идеальные двери, которые подойдут к ним. А если мы не можем, мы предлагаем двери на заказ, которые устанавливаются на заказ.
Здесь мы рассмотрим все, что вам нужно знать о размерах внутренних дверей.
Размеры двери: Какие размеры важны?
Фото Уильяма Уорби на Unsplash
При определении размеров внутренних дверей необходимо ориентироваться на следующие параметры:
- Высота
- Ширина
- Толщина
Что касается толщины двери, важно помнить, что некоторые двери изготавливаются толще, чем другие. Противопожарные двери, например, толще стандартных дверей. Толщина противопожарной двери класса FD30 обычно составляет 44–54 мм.
Стандартные двери обычно имеют толщину от 35 до 40 мм. Эти дополнительные 4 мм помогают сдерживать вредный дым и пламя в течение как минимум 30 минут.
Какой стандартный размер внутренней двери?
Стандартные размеры дверей? Это вопрос, который многие из нас задают, когда ищут новую дверь. И честный ответ… да и нет. Не существует конкретного законодательства или строительных норм, устанавливающих единый размер двери, которого должны придерживаться все жилые помещения. Однако существуют стандарты, которым должны соответствовать двери, и некоторые из них относятся к размеру. Мы коснемся этого позже. Существует также ряд стандартных размеров дверей, которые считаются стандартными по высоте, ширине и толщине.
Наиболее распространенный размер внутренней двери в Великобритании составляет 1981 x 762 x 35 мм. Более известная как дверь размером 2 на 6 футов. Это потому, что размеры составляют примерно 6 на 2 фута в имперских измерениях. Это соответствует самой распространенной ширине и высоте дверной коробки в Великобритании.
Какая стандартная высота двери в Великобритании?
Стандартная высота двери в Великобритании составляет 1981 мм. Это охватывает Англию и Уэльс. Двери в Шотландии немного выше, в среднем 2040 мм.
Какова стандартная ширина двери в Великобритании?
Средняя ширина двери в Великобритании составляет 762 мм. Это стандартная ширина в Англии и Уэльсе. Двери в Шотландии немного уже – 726 мм.
Общие размеры внутренних дверей
Хотя 1981 x 762 x 35 мм является достаточно распространенным размером двери, чтобы считаться стандартным, существует ряд других распространенных размеров.
Внутренние двери обычно имеют размеры от 1981 x 457 x 35 мм до 2040 x 926 x 40 мм, а противопожарные двери FD30 обычно имеют размеры от 1981 x 610 x 44 мм до 2040 x 9 мм.26 х 44 мм.
Если требуется дверь меньшего размера из-за ограниченного пространства на стене, наиболее распространенный размер составляет 1981 x 610 x 35 мм. Хотя не редко можно увидеть двери шириной 686мм.
Для дверей, которые требуют доступа для инвалидных колясок, наиболее распространены размеры 1981 x 838 x 35 мм. Жилище для инвалидов-колясочников также должно иметь ширину проема входной двери в свету не менее 850 мм. Чистый проем рассчитывается путем вычитания 60 мм из размера двери с учетом дверных упоров, петель и толщины двери.
Каков минимальный размер внутреннего дверного проема?
Если у вас небольшой дом, вы можете задаться вопросом, какой минимальный размер может быть для внутренней двери. В соответствии со строительными нормами минимальная ширина внутреннего дверного проема составляет 750 мм при подходе в лоб из коридора шириной 900 мм. Или 775 мм ширина проема в свету при подходе не в лоб, из коридора 1050 мм.
Как насчет двойных дверей?
Если вы хотите установить двустворчатую дверь, важно точно измерить и разделить размер проема на 2. Вам также необходимо учесть раму (если она еще не установлена) и около 2-3 мм с каждой стороны для подгонки подгонки.
Таблица преобразования размеров дверей: имперские и метрические системы
В Британии, где действует Brexit, может раздражать, когда разные производители и продавцы используют разные размеры. Некоторые из нас, естественно, думают в терминах футов и дюймов, в то время как другие думают в терминах метров, сантиметров и миллиметров. Но не волнуйтесь, мы создали эту таблицу преобразования, чтобы помочь вам понять наиболее распространенные измерения. Сравните британские и метрические размеры дверей, чтобы найти подходящий вариант.
Метрическая система (мм)
Британские единицы (дюймы)
Британские единицы (футы и дюймы)
1981 x 457
78″ x 18″
6 футов 6 дюймов x 1 фут 6 дюймов
1981 x 533
78″ x 21″
6 футов 6 дюймов x 1 фут 9 дюймов
1981 x 610
78″ x 24″
6 футов 6 дюймов x 2 фута 0 дюймов
1981 x 686
78″ x 27″
6 футов 6 дюймов x 2 фута 3 дюйма
1981 x 711
78″ x 28″
6 футов 6 дюймов x 2 фута 4 дюйма
1981 x 762
78″ x 30″
6 футов 6 дюймов x 2 фута 6 дюймов
1981 x 838
78″ x 33″
6 футов 6 дюймов x 2 фута 9 дюймов
1981 x 915
78″ x 36″
6 футов 6 дюймов x 3 фута 0 дюймов
1981 x 1067
78″ x 42″
6 футов 6 дюймов x 3 фута 6 дюймов
1981 x 1168
78″ x 46″
6 футов 6 дюймов x 3 фута 10 дюймов
1981 х 1220
78″ x 48″
6 футов 6 дюймов x 4 фута 0 дюймов
1981 x 1372
78″ x 54″
6 футов 6 дюймов x 4 фута 6 дюймов
1981 x 1524
78″ x 60″
6 футов 6 дюймов x 5 футов 0 дюймов
2032 x 813
80″ x 32″
6 футов 8 дюймов x 2 фута 8 дюймов
2134 x 915
84″ x 36″
7 футов 0 дюймов x 3 фута 0 дюймов
2040 x 526
80 1⁄4″ x 20 11⁄16″
6 футов 8 1/4 дюйма x 1 фут 8 11/16 дюймов
2040 x 626
80 1⁄4″ x 24 5⁄8″
6 футов 8 1⁄4 дюйма x 2 фута 5⁄8 дюйма
2040 x 726
80 1⁄4″ x 28 5⁄8″
6 футов 8 1/4 дюйма x 2 фута 4 дюйма 5/8 дюйма
2040 x 826
80 1⁄4″ x 32 1⁄2″
6 футов 8 1⁄4″ x 2′8 1⁄2″
2040 x 926
80 1⁄4″ x 36 7⁄16″
6 футов 8 1⁄4″ x 3 фута 7⁄16″
Размеры внутренних дверей: строительные нормы и правила
Внутренние и внешние двери подпадают под действие строительных норм.
Большинство строительных норм, касающихся дверей, касаются:
- Материал для остекления и защита (часть N)
- Пожарная безопасность (Часть B)
- Звукоизоляция (часть E)
- Сохранение тепла/энергии (часть L)
- Доступ для инвалидов (Часть M)
Последнее оказывает наибольшее влияние на размер двери.
Строительные нормы: ширина внутренней двери
Строительные нормы, части M4(1) и M4(2), гласят, что ширина проема внутренних дверей должна составлять не менее 750 мм при входе из коридора 900мм от лобового. Дополнительная ширина проема 25 мм требуется при подходе не в лоб из коридора 1050 мм. Ширина двери также должна иметь свободный проем 800 мм из коридора шириной 900 мм, когда подход осуществляется не в лоб.
См. правила доступа и использования зданий.
Это относится не только к доступным и приспособленным жилищам, но и к всем жилым помещениям, пригодным для посещения. Это включает в себя ваш дом и относится ко всем внутренним дверям, таким как двери спальни, ванной комнаты и кухни.
Строительные нормы: минимальная высота внутренней двери
Строительные нормы не предусматривают минимальной высоты внутренней двери.
Межкомнатная дверь какого размера мне нужна?
Чтобы определить, какой размер вам нужен, вам нужно взять рулетку и вручную измерить размеры существующей двери. Это должно дать вам представление о том, какой размер вы должны искать при покупке внутренней двери на замену. Имейте в виду, что ваша текущая дверь, возможно, была обрезана по размеру, если ваша дверная рама имеет нестандартные размеры.
Важно быть максимально точным при измерении ваших дверей и избегать оценок. Ознакомьтесь с нашим руководством по измерению внутренних дверей для получения дополнительной информации. Если вы не уверены, пожалуйста, не стесняйтесь позвонить в нашу команду Express Doors Direct.
Мы будем рады ответить на все ваши вопросы по размеру и даже предоставим вам руководство по измерению размеров дверей для замены.
Что делать, если размер моей двери не соответствует стандарту?
Старые дома и сделанные на заказ объекты могут иметь двери нестандартного размера.
В этом случае у вас могут возникнуть проблемы с поиском на нашем веб-сайте того, что точно соответствует вашим размерам.
Но не волнуйтесь.
Большинство внутренних дверей можно обрезать или отрегулировать примерно на 1 см из-за толщины кромки двери. Некоторые двери, например со сплошным сердечником, можно обрезать сильнее.
Мы также можем предложить внутренние двери, изготовленные или вырезанные по размеру вашего дверного проема. Таким образом, вы можете наслаждаться выбором дверей, которые были изготовлены или отделаны в соответствии с вашими потребностями. Поговорите с членом нашей команды об этой услуге.
Найдите идеальное решение с помощью Express Doors Direct
В Express Doors Direct мы можем помочь вам найти идеальное решение для ваших нужд. Мы не только можем помочь вам найти межкомнатную дверь идеального размера, но также предложим отличный выбор материалов, стилей и отделки.
Выбор межкомнатных дверей по размеру
Дверь какого бы размера вы ни искали, мы можем вам помочь.
Стандартный проем межкомнатной двери: Стандартные размеры межкомнатных дверей и проемов



Несмотря на название, грубое обрамление не всегда бывает ровным и ровным. Если это дополнительное пространство осталось, вы можете идеально выровнять, выровнять и отвесить установку двери.

что для межкомнатной двери – но это не всегда правильно.
Некоторые другие важные аспекты включают в себя знание правильного размера жатки, триммерной шпильки и типичной шпильки.
Или они строгают много качественной древесины, чтобы втиснуть дверь в раму.
Стандартные двери обычно имеют толщину от 35 до 40 мм. Эти дополнительные 4 мм помогают сдерживать вредный дым и пламя в течение как минимум 30 минут.




В этом случае у вас могут возникнуть проблемы с поиском на нашем веб-сайте того, что точно соответствует вашим размерам.