обустройство вентиляции и электричества в парной
Полезные для здоровья и настроения свойства сауны известны человечеству достаточно давно. Сегодня у жителей нашей страны посещение парных очень популярно, редко какие мероприятия обходятся без таких посиделок. Многие из нас наверняка задумывались о том, что собственная сауна — это отличная идея. Планировка сауны в своем доме может без проблем воплотиться в жизнь, и многие примеры подтверждают это.

3D проект сауны с верандой
Вернуться к оглавлениюСодержание материала
Где расположить сауну
Принципиально нет разницы, в каком месте квартиры или дома строить сауну. Единственное, что нужно предусмотреть, это возможность обустроить вентиляцию и электроснабжение. Также помещение должно совпадать по размерам с планируемой сауной. Электрические каменки могут позволить расположить парилку в любом месте, ведь нет необходимости разводить огонь и предусматривать систему дымохода.
Следовательно, сауна может появиться и в цокольном этаже дома, и на мансарде бани, и даже на балконе в многоэтажке. Многие скажут, что весьма опасно строить парные в доме из-за влажности. На самом деле, сауна — это очень сухое помещение, поэтому особых мероприятий по монтажу гидроизоляции не понадобится.

Подробная планировка сауны с кухней гостиной
Также сауну можно построить и отдельно от жилого здания. Для строительства могут использоваться кирпич, баня из профилированного бруса, каркасные конструкции. Это приведет к весомым затратам, так как потребуется составить план сауны и выполнить чертеж бани с туалетом и душем, зато у застройщика развяжутся руки в вопросах планировки. Будет отлично, если сауна будет располагаться возле водоема, пусть даже искусственного.Много удовольствия доставит возможность окунуться в прохладную воду между посиделками в парной. В тех случаях, когда есть возможность сделать сауну в виде пристройки к дому, можно существенно сэкономить на прокладке водопровода, электропроводки и канализации.
Вернуться к оглавлениюПланировка сауны
Многие понимают под словом сауна небольшую комнату в доме, с каменной печью и полками. Может быть, для кого-то этого будет достаточно, однако, если застройщик неограничен в средствах можно несколько расширить функциональность сауны.

Проект и планировка сауны с бассейном
К примеру, раздевалка, купель или душевая кабинка, комната для отдыха, тренажерный зал отлично дополнят парилку. Будет неплохо учесть в проекте русской бани бассейн. Проект или чертеж в этом случае будет обязательно необходим, следовательно, и затраты на постройку увеличатся, но это того стоит.Габариты сауны выбираются исходя из количества людей, которые одновременно будут в ней находиться. В основном в парных вмещается от двух до шести человек.
Можно, конечно, сделать сауну для одного, но вряд ли это целесообразно. Скорее всего, посещение бани потеряет весь смысл, ведь без компании друзей и родных этот ритуал потеряет свою притягательность.
План сауны должен предусматривать некий минимальный объем на каждого посетителя. Обычно это около трех кубических метров. Значит, сауна для двоих может уместиться на 3-х квадратных метрах, если ее высота будет два метра.

Оригинальный проект сауны с тренажерным залом
Оптимальным размером парной считается 2х1,8 метра, так как возле любой стены можно обустроить лежак. Если площадь парной будет больше, целесообразно установить полки Г-образного и П-образного типов.Не рекомендуется выполнять план сауны чересчур большим, так как такое помещение будет долго прогреваться, и для того, чтобы держать это тепло понадобиться много энергии.
Вернуться к оглавлениюОбустройство полов бани
Строительство парной необходимо начать с облагораживания пола. Приобретая материалы для отделки, не имеет смысла переплачивать за их теплоизоляционные свойства, ведь это не повлияет на эксплуатационные характеристики.

утепление полов в сауне
В сауне можно встретить не только деревянные полы. Часто для отделки используется гранит или другие искусственные материалы. Нередко, в целях экономии, пол в сауне отделывается керамической плиткой с шероховатой поверхностью, чтобы нельзя было поскользнуться. Еще одним вариантом исполнения пола в сауне является Термодерево. Оно стойко переносит высокую температуру, и, также, обладает «анти скользящей» поверхностью.Пол из дерева предусматривает наличие подложки под лаги. Лучше всего использовать хорошо обработанные доски, толщиной около сорока миллиметров. Крепят их саморезами, пряча шляпки заподлицо, и закрывая эти места заглушками.
Каркас парной
Работа с каркасом бани начинается с монтажа конструкции потолка и его обшивки. Дальше поочередно приступают к монтажу всех стен. Этот способ широко применяется, так как он позволяет добиться надежности и жесткости углов парной, а также менее сложен.
Перед началом монтажа каркаса необходимо измерить диагонали комнаты. Если они не равны, значит помещение непрямоугольное, и необходимо его подкорректировать. Добиться результата можно с помощью тех же брусков каркаса. Если не исправить неровности помещения, можно в конечном итоге получить неаккуратный вид вагонки.
Каркас принято делать из соснового бруса 50х50. То, как брусья будут монтироваться на стену (горизонтально или вертикально), зависит от планируемого расположения вагонки. От стены необходимо отступить расстояние равное ширине теплоизоляционного слоя.

Пример отделки стен в сауне
Начинают монтировать каркас с крайних по периметру брусьев. Их крепят насквозь длинными саморезами или анкерными болтами, а затем устанавливаются промежуточные элементы. Для удобства и точности монтажа можно натянуть нить между основными брусьями. Заранее стоит позаботиться о крепеже каменной печи. Так как печь монтируется на готовую стену, необходимо обеспечить для этого закладные детали в соответствии с ее крепежными отверстиями. Для того чтобы не сбиться в процессе монтажа, можно заранее подготовить примитивный чертеж каркаса. Вернуться к оглавлениюВентиляция для сауны
Во время монтажа каркаса бани необходимо проложить все необходимые коммуникации: электропроводка, вентиляция. Для комфортного пребывания в сауне, к системе вентиляции предъявляются достаточно жесткие требования.
Возле печи необходимо предусмотреть отверстие для притока свежего воздуха, а напротив печи отверстие для вытяжки, через которое воздух будет попадать в основную вентиляционную систему, или прямиком на улицу. Также рекомендуется сделать еще одно вентиляционное отверстие, закрытое шиберной задвижкой, которое необходимо для быстрого проветривания помещения.Стоит отметить, что расположение сауны по отношению к наружным стенам, а также ее конструктивные особенности могут не позволить сделать естественную циркуляцию потоков воздуха.
В таких случаях необходимо обеспечить принудительную вентиляцию.
Для прокладки вентиляционных каналов используется вентиляционная 100-миллиметровая гофра из фольги. Для объединения отдельных частей такой гофры существуют специальные фитинговые соединители и хомуты.

Вентиляционное отверстие в парной
По строительным нормам проходы через капитальные стены гильзуются, а только потом прокладывается вентиляционный канал.Вентиляционное отверстие, через которое в сауну поступает воздух, закрывается решеткой, а вытяжные отверстия отсекаются задвижкой. В процессе пробного запуска необходимо отрегулировать подачу и вытяжку, определив оптимальный режим вентиляции.
Вернуться к оглавлениюЭлектроснабжение парной
Сауна считается пожароопасным помещением, поэтому к электропроводке предъявляются особые требования. Провода должны обладать термостойкой изоляцией, выдерживающей температуры до 180 градусов. Исключается применение металлорукавов, гофры и различных кабельных каналов. Также, по правилам, внутри бани не разрешается соединять провода, устанавливать электротехническую арматуру (выключатели и розетки).
Если существует возможность кинуть провода с наружной стороны стены, необходимо ей воспользоваться, и завести концы в парилку прямо напротив электроприемников. Что касается питания для электропечи, то его лучше всего заложить в стяжку пола.Для освещения необходимо предусмотреть термостойкие светильники, размещаемые на расстоянии не ближе тридцати сантиметров к потолку. Особую атмосферу могут создать светильники, установленные под полками. Все большую популярность набирает оптоволоконное освещение для саун. В таких системах кабельные линии проводят не электрически заряженные частицы, а световое излучение, что делает их более безопасными.

схема электроснабжения в сауне
Все электрические приемники должны подключаться через качественные коммутационные аппараты защиты, предохраняющие систему электроснабжения от коротких замыканий и перенапряжения. Для защиты пребывающих в сауне людей от поражения электрическим током необходимо предусмотреть устройства защитного отключения, попросту – УЗО. Все автоматические выключатели и УЗО следует расположить в отдельном щитке, находящемся вне помещения сауны. Вернуться к оглавлениюТеплоизоляция парной
Очень важно грамотно утеплить помещение бани, ведь от этого зависит, насколько быстро она будет нагреваться, и сколько электроэнергии потребуется на это. Утеплитель укладывается в каркас таким образом, чтобы между отдельными частями не образовывались зазоры.

схема теплоизоляции в парной
Внимательно стоит отнестись к теплоизоляции потолка, потому как в этом месте потери тепла наиболее вероятны.Поверх утеплителя необходимо уложить слой фольгированной бумаги. Стыки отдельных ее частей проклеиваются алюминиевой клейкой лентой. Благодаря использованию фольги достигается лучшее сохранение тепла, сауна быстрее набирает необходимую температуру и дольше остывает.
Вернуться к оглавлениюБассейн в сауне
Выбор бассейна связан не только с необходимой площадью, но и такими нюансами, как тип грунта на участке и наличие необходимых коммуникаций. Бывает, что взглянув на чертеж сауны, можно предусмотреть лишь готовую конструкцию купальни, которая не предполагает земляных работ. Готовые бассейны, в большинстве своем, не располагают к плаванию из-за малых размеров.
На рынке существуют несколько типов готовых купален:
- мобильные;
- мини-бассейны;
- джакузи.
Такой тип бассейна предназначен лишь для того, чтобы охладиться после горячей парной. Для тех, кто хочет обзавестись сауной с большим бассейном, потребуется исследовать грунт, выполнить чертеж бассейна и подводимых коммуникаций. Эту работу лучше всего доверить профессионалам.
planvsem.ru
Как распланировать баню изнутри — лучшие решения для типовых размеров
Раз есть участок, значит, должна быть баня. И точка. Примерно так думает абсолютное большинство хозяев, в чьем распоряжении находятся перспективные и не очень земельные участки. И их можно понять, ведь баня — это не только удовольствие для тела, но и для души. Однако количество получаемого удовольствия, как морального, так и физического, находится в очень строгой корреляции от планировки бани внутри: расположения ключевых функциональных зон, наличия или отсутствия просторного предбанника, обустройства комнаты для отдыха. Тут еще можно вспомнить и об удобной террасе, и о комнате для гостей на мансарде с уютным балкончиком, и даже о зоне барбекю с уже готовым к празднику мангалом. Как грамотно скомпоновать все эти зоны и добиться идеальной планировки бани внутри? Предлагаем вам полезные советы на этот счет с 70 фото уже готовых решений для самых разных размеров.
2 на 2
Планировка бани 2 на 2 чаще всего ограничена и безынтересна по вполне понятной причине — внутри есть серьезный

Разгуляться здесь точно не получится: есть компактная парилка, часть печи для удобства вынесена в предбанник, чтобы можно было ускорить растопку, а мойка благополучно интегрирована в саму парную. В тесноте да не в обиде, как говорится. Обычная высота для таких скромных проектов — 2 метра. Чаще всего этого более чем достаточно для того, чтобы создать в парной действительно комфортный уровень пара и получить от банной процедуры истинное удовольствие.

Один из верных способов сэкономить на квадратных метрах — компактная электрическая печь
. Конечно, любители старой доброй русской баньки тут начнут недовольно роптать, но ведь чувство комфорта должно быть на первом месте, верно? К тому же, большая печь абсолютна не нужна в банях 2 на 2 — в такую скромную внутреннюю планировку лучше вписать небольшую и современную электрическую печь, а освободившееся место с толком использовать для размещения еще одной скамейки.




3 на 3
От самых скромных размеров — к чуть менее скромным. На самом деле, особой разницы между планировкой внутри бани 3 на 3 и предыдущим вариантом нет — и по предложенным фото это очень легко заметить.



Разумным представляется объединение моечной и парилки в одном помещении. Все-таки для того, чтобы комфортно помыться, нужно пространство, а максимум, на что можно рассчитывать при таких стесненных условиях — это небольшой квадрат на 1,5 метра. Либо удлиненный вариант на 2 метра, но с метровой шириной. А вот объединение моечной и парной поможет добиться оптимального варианта:
- и насладиться великолепным паром;
- и удобно освежиться после банной процедуры.





На последнем фото предложен вариант оптимальной внутренней планировки бани для размера 3 на 3 с добавленным сверх этой площади крыльцом. Собственно, это распространенный вариант наращивания общей площади. Тем более, если участок позволяет. И пусть вы сделаете комнату отдыха меньше, но зато сможете пользоваться удобным крыльцом в любое время года.
3 на 4
Чем дальше — тем веселее. Планировки бани 3 на 4 внутри, конечно, не могут похвастаться такой вариативностью, как у решений с общей квадратурой полезной площади, превышающих 50 квадратных метров, но, тем не менее, позволяют грамотно распределить все необходимые функциональные зоны с единственно верной целью — сделать использование банного помещения действительно приятным и запоминающимся.
Разумеется, на общей площади в 12 квадратных метров трудно разместиться большой компании. Поэтому при размещении тех или иных зон следует учитывать наиболее вероятный факт: такой небольшой баней, скорее всего, будет пользоваться семья из 2-3 человек либо дружеская компания на столько же человек. Все, что свыше, так или иначе, но будет немного снижать уровень комфорта. Взглянем на варианты внутренней планировки бани 3 на 4 с объединенными мойкой и парилкой.




Если вы используете печь-каменку, то логично разместить ее между парной и предбанником, чтобы распространить тепло по всей площади постройки. К тому же, вынос топочной части в предбанник позволяет вам увеличивать температуру пара, даже не заходя в парную и не растрачивая, тем самым, тепло, которое так или иначе, но выходит через открытую дверь.
Особое внимание следует уделить оформлению парной:
- не располагайте верхний лежак чересчур высоко — есть риск, что человек будет ударяться головой о потолок, когда будет слазить;
- при обустройстве лежаков учитывайте, сколько человек будет регулярно пользоваться баней;
- не располагайте лежаки чересчур близко от печи в своем стремлении сэкономить место — это не только не приносит удовольствие, но даже опасно для жизни
Вариант планировки 3х4 с мойкой и парилкой отдельно
Если проявить смекалку и некоторую инженерную хитрость, то можно осуществить внутреннюю планировку бани 3х4 с раздельным размещением мойки и парилки. В этом есть немало плюсов:
- принимать душ в прохладном помещении куда приятнее;
- возможность раздельного и одновременного использования моечной и парной;
- температура в парной всегда высокая, а пар — сухой и приятный.
Посмотрите на то, какие есть варианты планировки бани 3х4 именно с раздельной интеграцией двух зон.





4 на 4
Наверное, один из самых сбалансированных вариантов. По крайней мере, в плане средств, которые пойдут на оформление этой бани, и того уровня комфорта, который она логично обещает. С одной стороны, на 16 квадратных метрах трудно воплотить все свои гениальные идеи касаемо планировки. Но вот с другой, при серьезной оптимизации пространства можно получить результат, который по своей функциональности будет мало в чем уступать и в 2 раза более крупным участкам.

На этом фото приведен, пожалуй, самый распространенный пример планировки бани 4 на 4 — внутри все продумано до мелочей. Как таковой комнаты отдыха здесь нет, а ее функцию благополучно берет на себя просторный предбанник. В принципе, это очень удобно: человек, выходя из парной или моечной, может присесть и поговорить со своими друзьями или родственниками, а обогревается комната будет от прилегающей к печи стены.





5 на 4
Задумываясь о планировке бани 5 на 4, можно с уверенностью говорить о том, что имеющейся внутри площади хватает для раздельного оформления моечной и парной. К тому же, остается еще вполне комфортный запас, который можно успешно использовать для оформления просторной комнаты отдыха. Предбанник и раздевалку можно спокойно соединить с ней — это распространенная практика для банных помещений подобного формата.






5 на 5
Пожалуй, классический вариант бани, который очень часто используется по сей день. Отказываться от такого формата не имеет смысла:
- хороший запас полезной площади;
- оптимальное использование каждого сантиметра;
- удобное разделение функциональных зон.
Стандартная планировка такой бани 5 на 5 показана на следующем фото, отражающем все те зоны, что находятся внутри: вход — предбанник — комната отдыха — вход в парную — разделение на моечную. При желании оформляется мансарда, которую можно успешно использовать в качестве одноместной спальни. Хотя если с вами дети, то там могут спокойно разместиться и несколько ребятишек.






5 на 8
Одно из преимуществ крупноформатных банных помещений — это полная свобода действий с точки зрения планировки внутри. Наверняка, вы видели немало фото бань, в которых удобно организована и просторная комната для отдыха, и не менее просторная парилка, и удобный второй этаж — мансарда, где можно разместить бильярдную и даже выход на балкон. Конечно, обилие функциональных зон накладывает отпечаток на основательность подхода к строительству. Вам нужно продумать:
- вопросы тепло и гидроизоляции всех комнат;
- контролировать пожаробезопасность;
- грамотно организовать парное пространство.
Для того, чтобы справиться со всем этим, лучше всего обратиться к специалистам. Они подготовят вам проект планировки бани 5 на 8 под ключ. Впрочем, есть и иной вариант: подсмотреть уже готовые варианты.





6 на 6
В планировке бани 6 на 6 находится место всем необходимым помещениям:
- парной — она может занимать от 6 квадратных метров;
- мойке — от 5 квадратов;
- комнате отдыха и предбаннику — все вместе до 16 квадратов.
Такой размер предполагает и обустройство второго этажа — мансарды. А также вполне можно оформить и небольшую веранду, которой всегда приятно воспользоваться в любое время года. Если у вас в бане установлена железная печь, то ее можно обложить кирпичом — так теплый воздух в парной будет сохраняться куда дольше.





Еще несколько популярных размеров
6 на 4




6 на 3




8 на 8
Обратите внимание на фото планировки бани 8 на 8 — сразу видно, что внутри полно полезного пространства, которое требует от вас только одного: используйте его с толком! Очевидно, что столь крупные бани сегодня — это скорее исключение из правил. Соответственно, чем больше возможностей, тем сложнее в итоге придти к единственно верному решению. Целесообразно в таком случае обратиться к профессиональным специалистам, которые смогут выполнить планировку такой бани максимально качественно. Тем не менее, несколько хороших идей вы почерпнуть вполне можете — из фото, что расположены ниже.









Как правило, в таких больших банях можно сделать хамам: отвести под это дело отдельное помещение, оборудовать его нужными лежаками, поставить массажный столик. Женщины очень любят турецкую баню!
Заключение
Хороший способ выбрать удачную планировку бани — не только внимательно изучить сотни проектов и фото, но и определиться с тем, что вы ожидаете видеть внутри своего сооружения. Если вы планируете пользоваться баней лишь изредка, да и то, исключительно семьей, то совершенно не имеет смысла тратиться на оборудование ненужных зон, которыми все равно мало кто будет пользоваться. Если же вы страстный поклонник старой доброй баньки и не представляете себе выходных без классного пара, приятной компании и задушевных разговоров, то имеет смысл отнестись к планировке более чем серьезно. Ведь на кону не только ваш собственный комфорт — но и ваших гостей. Как там говорят про хозяев? Какой хозяин, такой и дом. Думается, это выражение обнаруживает свою актуальность и в случае с баней.
Фото: vk.com, forumhouse.ru, tutknow.ru, stroyday.ru, torgpoligrom.ru.
vbanepar.ru
Проект сауны, чертежи, фото, видео
Существует большое количество различающихся вариантов саун. Подобное помещение может обустраиваться как в собственном доме, так и в отдельном помещении. Сделать все можно своими руками, если подойти к процессу ответственно, выполнять предложенные рекомендации. Проект сауны с бассейном сложно будет реализовать самостоятельно – потребуется помощь специалистов для выполнения замеров, анализа данных территории.
Проект сауны
Где сауна должна быть размещена
Разместить сауну можно в удобном для жильцов месте дома или квартиры. Важно при этом правильно оборудовать вентиляционные каналы и проложить электропроводку. Рассмотреть следует размер комнаты, которая будет сауной в дальнейшем. При покупке электрической каменки можно не беспокоиться о разведении огня, не потребуется монтаж системы выхода дым из комнаты.
Проекты бань и саун предполагают размещение комнат как в одном из домашних помещений, так и в цоколе. Некоторые выполняют все на балконе квартиры. Некоторые будут говорить, что опасно сооружать в доме подобное помещение, ведь там высокая влажность, способная навредить жилищу. Но это ошибка, ведь сауна – очень сухое помещение, даже гидроизоляция здесь выполняется не усиленная, а обычная, подходящая для множества других простых комнат.
проект дома с сауной
Многие предпочитают строить сауну отдельно от жилища. Конструировать отдельное помещение имеет смысл, если территория позволяет это сделать. Для внешних стен можно использовать кирпич, профилированный брус, каркасные сооружения. Придется составлять план помещения, чертежи, но дополнительные преимущества, например, свободная планировка, являются весомым плюсом.
По возможности, оптимальным вариантом будет постройка возле водоема недалеко от дома. Если сделать пристройку к дому, где будет размещаться сауна, можно значительно сэкономить на прокладке электропроводки.
Планировка помещения
Вариантов планировки достаточно, упирается все в финансовые возможности, наличие территории. Некоторым подойдет небольшая комната, где будет присутствовать печь и несколько полок. Те, кто не ограничен в средствах, может позволить себе несколько дополнительных помещений для удобства расширения функционала.
Проект сауны в доме
По возможности, построить можно даже бассейн, но здесь обязателен чертеж, отчего затраты значительно повысятся. По габаритам построить нужно, учитывая количество людей, которые за один подход будут сидеть в парилке. Чаще всего строят, чтобы помещалось 2-6 человек.
Проектов сауны достаточно, многие различаются габаритами комнат. Для каждого человека требуется минимальный объем в помещениях. В основном, он составляет 3 м3. Получается, если строить для двоих человек, поместить ее можно будет в 3-х м2, высота помещения составит 2м. Не рекомендовано делать сауну сильно большой, ведь прогреть ее будет сложно, тепло будет держаться меньше, а прогревать ее станет сложней.
Обустройство полов
Если сауну планируется построить в уже готовом помещении, первым делом, для обустройства, необходимо облагородить полы. При покупке материалов неважно, какие у них будут теплоизоляционные характеристики – это никак не отразится на качестве.
Монтаж пола
Положить можно не только пол из дерева. Многие используют гранитную кладку, иные материалы. Часто встречается керамическая плитка, в которой внешняя грань с шероховатостями для исключения падений. Другой вариант – использование термодерева, которое обладает высокой стойкостью к повышенным температурам, имеет шероховатую поверхность.
Если использовать такое покрытие, требуется выполнить подложку под лаги. Подойдут 40-миллиметровые доски, хорошо обработанные. Закрепляются они простыми саморезами, но шапки следует спрятать в дереве, закрыть такие места заглушками.
Каркас помещения парной
Первым делом следует смонтировать потолок, обшить его. Потом работают над стенами. До начала работ над каркасом следует измерить диагонали в помещении. Важно, чтобы они совпадали. Если это не так, можно будет с помощью обшивки подкорректировать углы, добиться идеальных пропорций. Помочь в выравнивании поверхности могут каркасные брусы. Стоит сделать помещение идеальным, чтобы внешний вид соответствовал ожиданиям, а вагонка, которая будет ложиться в последнюю очередь, была идеально подогнана одна под одну.
Стандартно каркас делается из соснового бруса 50х50. Класть брусья следует, исходя из положения вагонки. Если она планируется горизонтально, значит, брусья прибиваются вертикально, и наоборот. К стене будет прикреплен теплоизоляционный слой, который требуется отступить брусьями.
Сауна в доме
Сначала прибиваются крайние брусья. Закрепить их можно длинными саморезами, подойдут также анкерные болты. Потом ставятся промежуточные элементы. Чтобы было удобно монтировать остальные части, можно натянуть нить на крайние части. Следует предусмотреть, где будет ставиться печь. Она устанавливается на готовую поверхность, а значит, заранее подготавливается поверхность, закладываются необходимые элементы. Дабы не сбиваться, стоит подготовить набросок, чертеж каркаса.
Выполнение вентиляции
Проект отопленияПри выполнении каркаса, должны прокладываться все требуемые коммуникации. Чтобы проводить время в сауне с комфортом, к вентиляции прикладываются жесткие требования.
Около печи требуется отверстие, где проникнет воздух. Напротив нее монтируется вытяжка, откуда воздух попадет в вентиляцию или сразу на улицу. Можно сделать дополнительное отверстие, открываемое только для проветривания комнаты.
Иногда естественное прохождение воздушных масс не осуществляется. Помогает установка принудительной вентиляции. Капитальные стены должны гильзоваться, после укладывается вентиляция. Закрыть ее нужно решеткой, вытяжка должна закрываться задвижкой. Количество воздуха должно быть отрегулировано путем уменьшения/увеличения отверстий.
Электроснабжение сауны
Помещение сауны является пожароопасным. Потому провода устанавливаются термостойкие, выдерживать температуры до 180оС. Недопустимо использовать металлорукава, гофры. Соединения не допускаются, все выполняется единым целым. Не допускается в помещении установка розеток и выключателей.
Вариант отделкиЕсли можно, провода прокладываются по внешней стороне стен. Концы кабелей заводятся напротив светильников и электроприемников. Питание для электрических печей закладывается в полу. Светильники ставятся термостойкие, размещаться они должны дальше 30см от потолка. Для придания помещению дополнительной красоты, можно установить светильники под полками.
Сауна своими руками должна быть построена только с учетом всех требований безопасности. Сейчас становится популярным установка оптоволоконного освещения. Линии эти проводят электричество с помощью светового излучения, а не электрическими частицами. Потому использование их безопасно, надежно.
Схема электрификации
Теплоизоляция парилки
К утеплению стоит подойти с особой ответственностью. От правильности выполнения процесса будет зависеть скорость нагрева помещения, количество затрачиваемой для этого энергии. Зазоров при закладке утеплителя быть не должно – стоит учесть это при монтаже.
Теплоизоляция сауны
Потолок изолировать стоит тщательно, ведь это место наибольших тепловых потерь в сауне. Наверху утеплителя укладывается фольга. Соединения материала стоит скрепить алюминиевой клейкой лентой. Если фольгированную бумагу не использовать, тепло будет сохраняться значительно хуже, помещение будет быстрей остывать, не сможет набрать требуемую температуру.
jsnip.ru
7 рекомендаций как сделать планировку сауны [+ФОТО]
Любое строительство сауны или бани начинается с планировки, которая включает в себя ее расположение на участке или в доме, а также план помещений в самой бане. Поэтому к выполнению планировки следует подойти очень серьезно, так как именно от нее зависит, какой именно получится конструкция и насколько комфортной будет сауна. Далее мы рассмотрим основные правила и особенности ее планирования.

3D проект финской бани с планировкой
Планировка расположения сауны на участке
При выборе места для строительства сауны следует учитывать следующие моменты:
- Самым оптимальным вариантом планировки сауны на участке является ее возведение возле водоемов, на расстоянии 15-20 метров от берега. Такое расположение обеспечивает сауну неограниченным источником воды, а также возможностью контрастного омовения. Если водоема поблизости нет, то можно организовать искусственный пруд либо установить деревянную бочку-купальню.
- Участок не должен просматриваться от дороги и соседей. Если такого места на участке нет, то сауну можно будет оградить живой изгородью из плетущихся растений или кустарников. Это позволит скрыться от посторонних глаз, чтобы ничего не мешало насладиться банными процедурами в полной мере.
- Кроме того, имеется еще один нюанс планировки бани на участке – в целях пожарной безопасности, строение должно располагаться не ближе чем на 15 метров от жилого дома. Естественно, нельзя пристраивать баню к хозяйственным постройкам и к самому дому.

Финская сауна на берегу водоема
Планировка финской бани
Как уже говорилось выше, прежде чем начать строительство, необходимо выполнить план сауны, который позволит посчитать необходимое количество стройматериала и его стоимость. Кроме того, план – это своего рода инструкция проведению строительства.
Сауна в классическом варианте представляет собой прямоугольное здание, которое поделено на три отсека:
Все существующие планировки бань и саун можно условно поделить на два типа:
- Продольное расположение помещений;
- Смежное расположение помещений.
При продольном размещении, баня имеет прямоугольную «вытянутую» форму, а помещения располагаются один за другим. При смежном расположении, строение имеет квадратную или близкую к квадратной форму.

Продольная планировка финской бани
Оптимальным вариантом является планировка финской бани размером 6х6 метров, поэтому пользуется большой популярностью. Если вы только приобрели загородный участок, то такая финская баня может стать первым капитальным строением и на время заменить строительство основного дома, на которое уйдет гораздо больше времени.
Такая планировка позволяет не только комфортно попариться и помыться, но и отдохнуть в просторной комнате после банных процедур. Кроме того мансардный этаж позволяет организовать там даже бильярдную комнату или тренажерный зал.
К недостаткам этой планировки является относительно высокая цена постройки. Но зато, можно существенно сэкономить время на строительство, используя сухой пиломатериал.
Совет!
Размер парной следует выбирать в зависимости от предполагаемого количества парящихся, из расчета – полтора квадратных метра на одного парящегося.
Планировка перегородок
Как правило, сауны бывают двух типов:
- Одноэтажные;
- С мансардным этажом.
Совет!
Внутренние перегородки следует возводить из того же материала, что и наружные стены, в этом случае они послужат дополнительной опорой и будут выполнять гидроизолирующую функцию.

Планировка — сауна с мансардой 6 на 6 метров
Если рассмотреть проект сауны 6 на 6 метров, то сама баня обладает размером 4х6 метров, остальную площадь занимает веранда или терраса.
Внутренние помещения включают в себя:
- Комнату отдыха площадью 8-9 квадратных метров;
- Помывочную комнату площадью в 4 квадратных метра;
- Саму парную площадью около 5 квадратных метров.
Если строение будет иметь мансардный этаж, то лестницу лучше всего сделать в комнате отдыха, чтобы исключить попадание влаги на второй этаж.
Обратите внимание!
Лестницу на мансардный этаж не стоит устанавливать на террасе, особенно, если баня будет использоваться зимой, так как каждый раз выходить на холод будет неприятно.
Кирпичная печь
Печь
При планировке сауны, необходимо определиться с конструкцией печи и ее расположением. Многие хозяева оказываются перед выбором — возвести кирпичную или установить металлическую печь-каменку.
При выборе следует иметь в виду:
- Кирпичная печь дольше разогревается, но зато хорошо держит тепло и может прогреть большое помещение.
- Металлическая печь легко устанавливается, быстро разогревается, но так же быстро остывает. Кроме того, такая каменка сможет отопить лишь небольшое помещение – моечную и парилку.
Поэтому, если вы хотите париться круглый год, то однозначно надо отдать предпочтение кирпичной печи. Сама каменка устанавливается в парной, но ее лицевая часть с топкой выводится в комнату отдыха.

Устройство металлической каменки
Предложенная планировка является наиболее классическим вариантов, но при желании, конечно же, можно изменить размеры помещений и их расположение.
Финские дома с сауной
Если у вас нет возможности строить отдельно дом и сауну, то отличным выходом из этой ситуации являются проекты финских домов с сауной. Как правило, строение представляет собой одно- или двухэтажное здание, которое имеет собственный стиль и неповторимый дизайн.

На фото — деревянный финский дом
Надо сказать, что финские архитекторы уделяют много времени расположению комнат, поэтому они продуманы до мелочей. Кроме того, планировка финских домов с сауной отличается просторностью помещений. Практически в каждом доме кухня совмещена с гостиной, а на втором этаже расположено большое помещение для встреч или отдыха.
Ещё одной особенностью деревянных финских домов является проектирование террас, которые имеются практически в каждом доме. В домах со вторым этажом или мансардой обязательно присутствует балкон.
Совет!
Финские дома следует собирать из отборной древесины, которой уже более 100 лет.
Связано это с тем, что более молодые деревья имеют тонкий ствол.
Однако, главной отличительной особенностью такого дома, конечно же, является наличие финской бани. Без этого просто немыслима жизнь настоящего финна.

План финской бани с сауной
Сауна располагается в отдельном, небольшом помещении. Это связано с тем, что среди финнов принято посещать баню в одиночку.
Вывод
Разобравшись в нюансах планирования саун и бань, составить план своими руками не составит труда. При этом вы сможете рассчитать стоимость проекта и избежите многих проблем во время самого строительства. При желании, можно упростить задачу и взять за основу готовый план, к примеру, предложенный выше.
Дополнительную информацию по данной теме можно получить из видео в этой статье.
9ban.ru
фото проектов, схемы и чертежи
Многие владельцы частных домов рано или поздно ловят себя на мысли о том, что на территории стоит возвести баню. Это отличная идея, сама баня, парилка и мойка планировка которых может быть самой разнообразной, подарит массу приятных эмоций и множество часов расслабления. Конечно же, к возведению такой конструкции на территории следует тщательно подготовиться. Баня имеет особую атмосферу и требования безопасности, поэтому продумать нужно все до мелочей.
Проект и планировка бани с моечной и парилкой


Очень важно учесть множество факторов, которые станут решающими в вопросе того, какой именно парной быть на придомовой территории участка. Вопросы эти следующие:
- Какое количество людей будет одновременно находиться в парилке. Если несколько, то вполне достаточно будет помещения 3Х4, если же планируется собирать в парной всех друзей, родственников и соседей, то стоит задуматься о большом помещении, в котором каждому будет комфортно.
Планировка двухэтажной бани с душевой - Сколько средств получится выделить на возведение данной конструкции. От этого напрямую зависит, какие покупать материалы, какие размеры парилки можно возвести, а также какая внутренняя отделка может быть в помещении.
- Самостоятельно вы будете строить баню или заказывать услуги профессионалов. Этот факт влияет на скорость появления строения на территории, а также на стоимость места для отдыха.
Оформление интерьера и дизайна комнаты отдыха в бане
Это лишь некоторые факты, которые обязательно нужно учесть в процессе подготовки к строительству места, где можно от души париться, купаться и просто приятно проводить время с задушевными разговорами.
Содержание материала
Что обязательно должно быть в бане
Следует понимать, что должно быть в помещении бани. Это:
Планировка с размерами бани с комнатой отдыха
Каждый может корректировать эти пространства, добавляя что-то свое. Тем не менее, каждое из помещений обязательно должно быть в бане, можно только добавить дополнительное.
Помимо этого, следует возводить строение с учетом требований безопасности, а именно, пожарной безопасности.
Пример отделки и оформления моечной комнаты
Какие материалы для строительства можно выбрать
Чаще всего можно встретить на территориях частных участков бани выполненные из древесины. Тем не менее, в зависимости от того, какая будет планировка бани 4х6 или других размеров, выбор материалов может разниться.
Вариант планировки бани 4 на 6 метров
Подборка вариантов планировок парилки в бане
Чаще всего ставку делают на следующие виды сырья для постройки:
- Каркасная баня. Такой материал может быть собран, как собственноручно, так и с помощью профессиональных строителей. В любом случае сборка достаточно проста, поэтому даже при самых малых навыках в подобном русле, можно воплотить идею и увидеть желаемый результат. Такой материал представляет собой готовые брусья, которые без особого труда можно собрать между собой.
Процесс сборки каркасной бани

- Брусчатка. Это сырье достаточно дорого стоит. При самостоятельном возведении парной из такого материала, нужно контролировать, чтобы каждый элемент был прочно соединен друг с другом. Потраченные деньги вернутся вместе с прекрасными эмоциями, которые возникают при виде такого благородного и богатого строения.
- Бревна. Если ставка сделана в пользу такого материала, то отпадает необходимость в дополнительных затратах на внутреннее и наружное утепление бани. Такое сырье считается надежным и долговечным. Главное, правильно ухаживать за материалом.
Проект и экстерьер бани из бревен

Каждый из представленных материалов достоин, служить основой для возведения бани Главное, следовать правилам и требованиям при самостоятельном построении здания.
Что обязательно должно быть в мойке
Планировка бани 3х5 или других параметров обязательно должна иметь в своих просторах такие помещения, как мойка и парилка, санузел, раздевалку.
Конечно же, по желанию каждый хозяин земельного надела может самостоятельно принимать решение о дополнении пространства неосновными помещениями. Например, бильярд, комната отдыха и многое другое, что только может прийти на ум.
В моечной обязательно должны присутствовать:
- Бассейн или душ с холодной водой;
- Раковина для умывания.
Пример размещения мойки в помещении парилки

Это те атрибуты, без которых в моечной не обойтись Главное, правильно сделать планировку, чтобы все детали располагались на необходимых местах и были комфортны для использования.
Планировка сауны с мойкой и террасой
Стоит также позаботиться о том, чтобы в моечной были преимущественны покрытия, которые выносливы к воздействию влаги и высоким температурам. Это может быть плитка, покрытая специальными растворами древесина.
Пример отделки плиткой мойки в бане


Как правило, душевая или бассейн размещаются таким образом, чтобы было удобно в них заходить после прогревания в парилке, то есть, рядом возле парной.
Что должно присутствовать в парилке
Если просторы бани три на четыре метра, то слишком не разгонишься в процессе обдумывания планировки помещения. В маленьких банях минимальных размеров предбанник, небольшая мойка и сама парная тоже достаточно компактна.
В парной для комфортного применения данного помещения обязательно должны быть ниши, на которых можно присесть. Часто такая конструкция выполнена в виде ступенек.
Чертеж и планировка компактной парилки
Это дает возможность вместить даже в самое маленькое по территории пространство, достаточно много людей. Планировка парной, как правило, стандартна. Обычно в дальнем левом или правом углу расположены источники подогрева. То есть, дрова или камни, на которые поливаются специальные смеси для достижения в помещении нужной температуры. Укладываются источники тепла на специальную жароустойчивую поверхность, благодаря чему становиться возможным, соблюдать технику безопасности.
Планировка и дизайн парилки в бане из дерева

Ниши располагаются под стенкой, обычно «V» образной формы. Посередине помещения парной, как правило, расположена деревянная подставка, которая обеспечивает комфорт при выходе из парилки.
Какая планировка может быть в помещении бани
Каждый самостоятельно выбирает внутреннюю отделку, материал для возведения бани. Этого не скажешь о самом пространстве в помещении. Более идеального плана придумать невозможно, поэтому именно такой стандарт берут во внимание все, кто решил обустроить баньку на территории участка.
Чертеж с размерами и планировка парилки
Варианты планировки парилки в бане
- При входе в парную располагается раздевалка. Это логично и правильно. Ведь вход в пространство парной в одежде и обуви это негигиенично и неправильно. Зайдя в помещение, сразу же следует облачиться в банную одежду или обернуться в простыню.
- Следующим помещением, которое должно быть в бане – это предбанник. Здесь, как правило, размещают столик для чаепития, могут устанавливать бильярд. В общем, на что хватит фантазии, то и воплощается.
Оформление и интерьер предбанника в бане из дерева
Пример отделки предбанника
- Следующим после предбанника является вход в парную. Возле парной, конечно же, размещается моечная или бассейн, в которых можно освежиться после принятия банных процедур.

Конечно, планировка может быть другой. Но именно такой вариант чаще всего используется в силу своего комфорта. В видео рассказывается о правильной проектировке и планировке бани.
На что следует обратить внимание
Планировать внутреннее пространство бани следует на этапе строительства. Именно так можно влить в планировку, интерьер все желаемые детали. Обязательно нужно взять во внимание следующие моменты:
- Планировка должна рассчитываться с учетом размеров пространства. Конечно, каждый владелец земельного надела может варьировать параметры каждого внутреннего помещения. Тем не менее, обычно предбанник по размеру самый большой, на втором месте парная, а мойка, как правило, самая маленькая. При возведении здания нужно четко просчитать, какое помещение, в какой зоне будет расположено, чтобы не допустить погрешностей.
Проект и планировка бани из бруса размером 6х3
Планировка бани с моечной и комнатой отдыха - Обязательно предварительно просчитать количество необходимых для работы материалов. Это поможет с максимально возможной скоростью попасть в готовое пространство бани. Если есть сомнения по поводу размеров парной, лучше приобрести больше материалов для возведения, нежели меньше.
Все эти нюансы могут быть решающими в процессе возведения строения. Самое важное – продумать в деталях каждое из помещений, прежде чем начнется строительство.
Вариант планировки бани с моечной размером 3х6 метров
Проект и планировка деревянной бани 4 на 4
Для чего обдумывать планировку
Некоторым может показаться пустой тратой времени обдумывание внутренней планировки помещения бани. Однако, это далеко не так. Качественно продуманная планировка, поможет сделать баню такой, как мечталось. Факторы, по которым становится понятно, что расположение каждого из помещений должно быть продуманным:
Вариант планировки бани 5 на 5 метров с санузлом

- Только в правильно спланированном помещении можно достичь физической и духовной гармонии;
- Обдуманное до мелочей пространство бани является безопасным для отдыха;
- В парной, где каждая деталь выполнена непросто так, а с предварительным обдумыванием, в любом случае будет красиво;
- Также проектирование внутреннего пространства поможет грамотно использовать каждый сантиметр застройки. А это, в свою очередь, поможет сэкономить личный бюджет.




Когда к важным моментам серьезный и продуманный подход, все получается на высочайшем уровне. Появление бани на территории участка поможет незабываемо проводить время с друзьями или родственниками, вести правильный образ жизни и укрепить здоровье. Поэтому, если хочется увидеть на территории своего частного сектора баньку, следует начать продумывать все нюансы предварительно.
proekt-sam.ru
Проект сауны в частном доме

Проекты саун в доме на первом этаже, цена реализации
Все знают об оздоровительных свойствах сауны. Учитывая особенности российского климата, парная необходима в каждом доме. Она станет наилучшей профилактикой хандры и простудных заболеваний осеннего и зимнего периода. В наше время проекты домов с саунами считаются самыми модными, и их цена тоже радует. Расположив парную в здании, можно обеспечить доступ к ней в любое время, независимо от погоды.
Виды саун и планировка
Перед подбором проекта дома с комфортной сауной стоит для начала определиться с местом размещения парилки и ознакомиться с фото интересных моделей. Для оформления парилки подойдет любое помещение, в котором предусмотрена качественная вентиляция и наличие всех типов коммуникаций.
Если с площадью уже определились, следует решить, сколько человек сможет там разместиться. Для семейной пары будет достаточно кабинки миниатюрного размера, а вот для приема гостей придется предусмотреть, кроме парилки, дополнительную комнату для отдыха.
Встроенная сауна
Такой тип парилки требует в доме немного места. Она удобна отсутствием необходимости куда-нибудь выходить, поскольку находится на первом этаже здания. Проект встроенной бани компактен и его цена получается недорогой. Система отопления основывается на обогревателях, электрической либо газовой печи. Обязательным условием встроенной модели считается хорошая теплоизоляция и вентиляция. В остальных характеристиках, владельцу предоставляют свободу выбора.
Сборная сауна
Весьма удобное решение для обустройства первого этажа здания. По проекту конструкция мобильна и легко собирается. Это отличное качество для тех, кто предпочитает часто менять планировку дома. Подобный тип конструкции может быть:
- Щитовым – предполагает сборку из панелей для стен и потолка.
- Брусковым – подразумевает сборку из специальных брусьев, поэтому баня получается экологичной. Сборка из древесных материалов стоит недорого, и цена может сэкономить бюджет.
Сборный тип сауны по проекту, фото которых представлены в интернете, отражает простоту и красоту русской парилки. Этот тип бани подходит для домов с небольшой площадью, где ценится каждый квадратный метр.
Инфракрасная сауна
Для оформления домов, независимо от этажа, и для квартир подходят проекты инфракрасных саун. Эта небольшая кабинка рассчитана на несколько человек. а ее цена подходит людям со среднестатистическим заработком. В этой домашней парилочке нет высокой температуры, а тело нагревается посредством инфракрасного излучения. Так, кожный покров нагревается на 5 см, а не на 1 см, как в обычной сауне.
Проект дома с инфракрасной сауной предполагает ее размещение на любом этаже, поскольку она не занимает много места и не требует особых условий технического характера.
Эта модель не оказывает действия на дыхание и зрение, поскольку в ней отсутствует пар. К тому же отсутствие скачков давления благотворно влияет на организм. За один сеанс реально потерять до килограмма веса. Если процедуры проводить регулярно, женщины могут избавиться от целлюлита и подтянуть кожу.
Проект дома с инфракрасной сауной можно просмотреть в интернете, где с помощью фото наглядно можно убедиться в комфорте и красоте интерьера. Там представлены варианты одноместные и на несколько человек. В первом случае парилку возможно разместить на этаже в просторной ванной комнате либо на застекленной лоджии.
Инфракрасные сауны, цена которых доступна, могут быть как переносными, так и встроенными. Они не требуют специализированного ухода и принудительной вентиляции.
Правила безопасности в коттедже с парилкой
При желании перепланировки одного из домашних помещений в парилку, необходимо строго проконтролировать соблюдение противопожарных правил:
- В ней потребуется обеспечить однократный воздушный обмен методом организации приточно-вытяжной вентиляции.
- Если создавать парилку 1, 2 и 3-го типа огнестойкости придется отделять помещение противопожарными перегородками высокой огнестойкости.
- Нельзя устанавливать в здании и парилку, в которой помещается более 10-ти людей.
- Минимальное расстояние от стены до электрической печи – 20 см.
- Печь для прогрева парилки должна быть оснащена автоматическим отключением.
Экономные проекты саун в домах
Возведение домов с парилкой требует очень внимательного подхода к вопросу. Основным фактором при выборе проекта дома является его цена. Конечно, работы обойдутся дешевле, если их делать своими силами. Чтобы сэкономить на цене, стоит подобрать типовой проект дома с одним либо несколькими этажами.
Наиболее дешевым вариантом проекта является мини-сауна, которая встроена в ванную комнату. Для этого предварительно стены утепляют стекловатой согласно проекту. Чтобы обеспечить прогрев быстрый сауны и меньший расход энергии, оптимальная толщина утеплителя равна 50-100 мм. Для той же цели высота помещения сауны в доме по проекту не должна оказаться более 2-х метров. Изнутри парилку покрывают паронепроницаемой теплостойкой пленкой.
Деревянная облицовка внутренней стороны парилки в доме по проекту может быть выполнена из вагонки. Чтобы сохранить ее внешнюю привлекательность она покрывается термостойким специальным покрытием. Наружный каркас парилки стоит обшить гипсокартоном, плиточным материалом, керамической плиткой либо панелями из пластмассы.
Проекты одноэтажных домов с сауной
Наибольшей популярностью пользуются проекты зданий с одним этажом и парилкой, поскольку по ним можно быстро возвести загородный коттедж. В них удобно проводить выходные с семьей и друзьями либо жить постоянно. Дизайн подобных построек в основном опирается на естественные природные оттенки.
Преимуществом таких домов с одним этажом принято считать то, что для них требуется небольшая территория. Грамотный проект удачно размещает достаточное количество комнат и сауну. Домашняя парилка может располагаться прямо рядом с гостиной либо террасой. чтобы выйдя из нее можно было окунуться в бассейн.
Не менее популярной является планировка финского здания с парилкой. Это строение объемное в конструктивном плане, а потому отлично вмещает в себе дополнительные домашние пристройки, в число которых входит баня.
Проекты домов с сауной, гаражом и бассейном
Тем, кто владеет небольшим домом, стоит обратить внимание на проекты с бассейном и парилкой прямо в здании. Согласитесь, нет ничего приятнее, чем погружение в прохладный бассейн после парилки. Интерьер домашней бани выполняется в едином стиле с напольным покрытием .
Интересная планировка здания с парилкой и бассейном учитывает потребности каждого члена семейства и создает комфортабельное жилище под одной крышей. В этом доме будет все – гостиная, спальни, зона приема пищи, парилка, и обязательно удобный выход к бассейну и гаражу.
Когда большого помещения под бассейн нет, подойдет планировка дома с парилкой и гаражом. Она будет удобна тем, что не придется возводить дополнительных помещений, отделенных от основного строения, а это экономит средства.
Сама идея обустройства парилки в жилище является привлекательной. Грамотная организация пространства и надежное оборудование позволят соорудить безопасную баню. Выбирать можно из готовых планировок либо заказывать у дизайнеров индивидуальное оригинальное решение.
Проекты домов с наличием саун











Планировка дома – готовые чертежи и планы домов
Проект и планировка сауны
Полезные для здоровья и настроения свойства сауны известны человечеству достаточно давно. Сегодня у жителей нашей страны посещение парных очень популярно, редко какие мероприятия обходятся без таких посиделок. Многие из нас наверняка задумывались о том, что собственная сауна — это отличная идея. Планировка сауны в своем доме может без проблем воплотиться в жизнь, и многие примеры подтверждают это.

3D проект сауны с верандой
Где расположить сауну
Принципиально нет разницы, в каком месте квартиры или дома строить сауну. Единственное, что нужно предусмотреть, это возможность обустроить вентиляцию и электроснабжение. Также помещение должно совпадать по размерам с планируемой сауной. Электрические каменки могут позволить расположить парилку в любом месте, ведь нет необходимости разводить огонь и предусматривать систему дымохода.
Следовательно, сауна может появиться и в цокольном этаже дома. и на мансарде бани. и даже на балконе в многоэтажке. Многие скажут, что весьма опасно строить парные в доме из-за влажности. На самом деле, сауна — это очень сухое помещение, поэтому особых мероприятий по монтажу гидроизоляции не понадобится.

Подробная планировка сауны с кухней гостиной
Также сауну можно построить и отдельно от жилого здания. Для строительства могут использоваться кирпич, баня из профилированного бруса. каркасные конструкции. Это приведет к весомым затратам, так как потребуется составить план сауны и выполнить чертеж бани с туалетом и душем. зато у застройщика развяжутся руки в вопросах планировки. Будет отлично, если сауна будет располагаться возле водоема, пусть даже искусственного.
Много удовольствия доставит возможность окунуться в прохладную воду между посиделками в парной. В тех случаях, когда есть возможность сделать сауну в виде пристройки к дому, можно существенно сэкономить на прокладке водопровода, электропроводки и канализации.
Планировка сауны
Многие понимают под словом сауна небольшую комнату в доме, с каменной печью и полками. Может быть, для кого-то этого будет достаточно, однако, если застройщик неограничен в средствах можно несколько расширить функциональность сауны.

Проект и планировка сауны с бассейном
К примеру, раздевалка, купель или душевая кабинка, комната для отдыха, тренажерный зал отлично дополнят парилку. Будет неплохо учесть в проекте русской бани бассейн. Проект или чертеж в этом случае будет обязательно необходим, следовательно, и затраты на постройку увеличатся, но это того стоит.
Габариты сауны выбираются исходя из количества людей, которые одновременно будут в ней находиться. В основном в парных вмещается от двух до шести человек.
Можно, конечно, сделать сауну для одного, но вряд ли это целесообразно. Скорее всего, посещение бани потеряет весь смысл, ведь без компании друзей и родных этот ритуал потеряет свою притягательность.
План сауны должен предусматривать некий минимальный объем на каждого посетителя. Обычно это около трех кубических метров. Значит, сауна для двоих может уместиться на 3-х квадратных метрах, если ее высота будет два метра.

Оригинальный проект сауны с тренажерным залом
Оптимальным размером парной считается 2х1,8 метра, так как возле любой стены можно обустроить лежак. Если площадь парной будет больше, целесообразно установить полки Г-образного и П-образного типов.
Не рекомендуется выполнять план сауны чересчур большим, так как такое помещение будет долго прогреваться, и для того, чтобы держать это тепло понадобиться много энергии.
Обустройство полов бани
Строительство парной необходимо начать с облагораживания пола. Приобретая материалы для отделки, не имеет смысла переплачивать за их теплоизоляционные свойства, ведь это не повлияет на эксплуатационные характеристики.

утепление полов в сауне
В сауне можно встретить не только деревянные полы. Часто для отделки используется гранит или другие искусственные материалы. Нередко, в целях экономии, пол в сауне отделывается керамической плиткой с шероховатой поверхностью, чтобы нельзя было поскользнуться. Еще одним вариантом исполнения пола в сауне является Термодерево. Оно стойко переносит высокую температуру, и, также, обладает «анти скользящей» поверхностью.
Пол из дерева предусматривает наличие подложки под лаги. Лучше всего использовать хорошо обработанные доски, толщиной около сорока миллиметров. Крепят их саморезами, пряча шляпки заподлицо, и закрывая эти места заглушками.
Каркас парной
Работа с каркасом бани начинается с монтажа конструкции потолка и его обшивки. Дальше поочередно приступают к монтажу всех стен. Этот способ широко применяется, так как он позволяет добиться надежности и жесткости углов парной, а также менее сложен.
Перед началом монтажа каркаса необходимо измерить диагонали комнаты. Если они не равны, значит помещение непрямоугольное, и необходимо его подкорректировать. Добиться результата можно с помощью тех же брусков каркаса. Если не исправить неровности помещения, можно в конечном итоге получить неаккуратный вид вагонки.
Каркас принято делать из соснового бруса 50х50. То, как брусья будут монтироваться на стену (горизонтально или вертикально), зависит от планируемого расположения вагонки. От стены необходимо отступить расстояние равное ширине теплоизоляционного слоя.

Пример отделки стен в сауне
Начинают монтировать каркас с крайних по периметру брусьев. Их крепят насквозь длинными саморезами или анкерными болтами, а затем устанавливаются промежуточные элементы. Для удобства и точности монтажа можно натянуть нить между основными брусьями. Заранее стоит позаботиться о крепеже каменной печи. Так как печь монтируется на готовую стену, необходимо обеспечить для этого закладные детали в соответствии с ее крепежными отверстиями. Для того чтобы не сбиться в процессе монтажа, можно заранее подготовить примитивный чертеж каркаса.
Вентиляция для сауны
Во время монтажа каркаса бани необходимо проложить все необходимые коммуникации: электропроводка, вентиляция. Для комфортного пребывания в сауне, к системе вентиляции предъявляются достаточно жесткие требования.
Возле печи необходимо предусмотреть отверстие для притока свежего воздуха, а напротив печи отверстие для вытяжки, через которое воздух будет попадать в основную вентиляционную систему, или прямиком на улицу. Также рекомендуется сделать еще одно вентиляционное отверстие, закрытое шиберной задвижкой, которое необходимо для быстрого проветривания помещения.
Стоит отметить, что расположение сауны по отношению к наружным стенам, а также ее конструктивные особенности могут не позволить сделать естественную циркуляцию потоков воздуха.
В таких случаях необходимо обеспечить принудительную вентиляцию.
Для прокладки вентиляционных каналов используется вентиляционная 100-миллиметровая гофра из фольги. Для объединения отдельных частей такой гофры существуют специальные фитинговые соединители и хомуты.

Вентиляционное отверстие в парной
По строительным нормам проходы через капитальные стены гильзуются, а только потом прокладывается вентиляционный канал.
Вентиляционное отверстие, через которое в сауну поступает воздух, закрывается решеткой, а вытяжные отверстия отсекаются задвижкой. В процессе пробного запуска необходимо отрегулировать подачу и вытяжку, определив оптимальный режим вентиляции.
Электроснабжение парной
Сауна считается пожароопасным помещением, поэтому к электропроводке предъявляются особые требования. Провода должны обладать термостойкой изоляцией, выдерживающей температуры до 180 градусов. Исключается применение металлорукавов, гофры и различных кабельных каналов. Также, по правилам, внутри бани не разрешается соединять провода, устанавливать электротехническую арматуру (выключатели и розетки).
Если существует возможность кинуть провода с наружной стороны стены, необходимо ей воспользоваться, и завести концы в парилку прямо напротив электроприемников. Что касается питания для электропечи, то его лучше всего заложить в стяжку пола.
Для освещения необходимо предусмотреть термостойкие светильники, размещаемые на расстоянии не ближе тридцати сантиметров к потолку. Особую атмосферу могут создать светильники, установленные под полками. Все большую популярность набирает оптоволоконное освещение для саун. В таких системах кабельные линии проводят не электрически заряженные частицы, а световое излучение, что делает их более безопасными.

схема электроснабжения в сауне
Все электрические приемники должны подключаться через качественные коммутационные аппараты защиты, предохраняющие систему электроснабжения от коротких замыканий и перенапряжения. Для защиты пребывающих в сауне людей от поражения электрическим током необходимо предусмотреть устройства защитного отключения, попросту – УЗО. Все автоматические выключатели и УЗО следует расположить в отдельном щитке, находящемся вне помещения сауны.
Теплоизоляция парной
Очень важно грамотно утеплить помещение бани, ведь от этого зависит, насколько быстро она будет нагреваться, и сколько электроэнергии потребуется на это. Утеплитель укладывается в каркас таким образом, чтобы между отдельными частями не образовывались зазоры.

схема теплоизоляции в парной
Внимательно стоит отнестись к теплоизоляции потолка, потому как в этом месте потери тепла наиболее вероятны.
Поверх утеплителя необходимо уложить слой фольгированной бумаги. Стыки отдельных ее частей проклеиваются алюминиевой клейкой лентой. Благодаря использованию фольги достигается лучшее сохранение тепла, сауна быстрее набирает необходимую температуру и дольше остывает.
Бассейн в сауне
Выбор бассейна связан не только с необходимой площадью, но и такими нюансами, как тип грунта на участке и наличие необходимых коммуникаций. Бывает, что взглянув на чертеж сауны, можно предусмотреть лишь готовую конструкцию купальни, которая не предполагает земляных работ. Готовые бассейны, в большинстве своем, не располагают к плаванию из-за малых размеров.
На рынке существуют несколько типов готовых купален:
Такой тип бассейна предназначен лишь для того, чтобы охладиться после горячей парной. Для тех, кто хочет обзавестись сауной с большим бассейном, потребуется исследовать грунт, выполнить чертеж бассейна и подводимых коммуникаций. Эту работу лучше всего доверить профессионалам.
Сауна в частном доме – проекты, фото, интерьеры, лучшие идеи

Давно известен оздоровительный и расслабляющий эффект от саун в доме. В силу особенностей нашего климата, бани или парные необходимы в каждом доме. Поскольку они могут стать отличной профилактикой, как от простудных заболеваний, так и от осенней депрессии. Если вас интересуют модные тенденции интерьеров бань, и вы хотите посмотреть картинки, которые помогут создать интересный и оригинальный дизайн, тогда представленные в этой статье проекты, фото саун в доме помогут вам в этом. Тем более, что уже давно стало вполне доступным ее обустройство собственными силами.
Оборудуя парную в собственном доме, вы будет иметь возможность посещения ее в любое удобное для вас время. Кроме того, возведение домашней бани позволит существенно экономить место на вашем земельном участке.
Планировка и виды саун
До того, как выбрать проект дома с сауной внутри, необходимо определиться с тем, где вы планируете размещение парилки. Для нее подойдет любое помещение, способное обеспечивать надежную вентиляцию и подведенное ко всем бытовым коммуникациям: электричеству, водопроводу и канализации.
Виды саун в доме
Когда с площадью под домашнюю парную определились, необходимо решить, какое максимальное количество людей она должна вмещать. Для двух человек достаточно будет кабинки-сауны небольших размеров, для отдыха семьей понадобится большая площадь, а для приема гостей нужно будет, помимо парилки, обязательно предусмотреть дополнительную комнату для отдыха.
Проект сауны в частном доме может быть следующего вида:
Встроенная сауна
Парилка встроенного типа занимает немного места. Она удобна тем, что нет необходимости никуда ходить, все находится под рукой. Конструкция встроенной бани очень компактная, может отапливаться с помощью обогревателей, газовой или электрической печек. Единственными условиями для организации встроенной бани является необходимость наличия хорошей вентиляции и теплоизоляция сауны. Во всем остальном у вас полная свобода выбора. К примеру, на этом сайте можно посмотреть и выбрать проекты, фото саун в частном доме такого типа.
Сборная сауна
Очень удобный вариант – сборная парная, поскольку она очень мобильна – легко собирается и разбирается, например, при переездах или изменении планировки в доме. Такие конструкции бывают:
- брусковыми – сборка осуществляется с помощью специальных брусьев. Благодаря чему баня становится очень экологичной, так как собирается только из древесных материалов, которые не выделяют токсинов и вредных паров;
- щитовыми – собираются из специальных панелей для потолка и стен.
Сборная сауна в доме
Сборная сауна в доме, проекты, фото которой представлены в этой статье, показывают, насколько одновременно простым и красивым может быть дизайн бани.
В домах с небольшой площадью, где экономится каждый квадратный метр, сборная парильня является одним из лучших вариантов.
Инфракрасная сауна
Для дома и даже квартир или апартаментов отлично подойдет инфракрасная сауна, представляющая собой кабинку небольших размеров, рассчитанную на несколько человек. В такой домашней бане отсутствует высокая температура, а нагрев тела проводится волной инфракрасных лучей. Это комфортно, потому, что кожа прогревается на расстоянии 5 см, а не 1 см, как в обычной парилке.
Кроме того, инфракрасная баня не оказывает воздействия на дыхательные пути, и вы не будете задыхаться от пара, также в такой парилке не будет скачков давления и можно потерять до 1 кг веса за сеанс. Причем регулярные процедуры уменьшают проявление целлюлита у женщин, кожа становится гладкой и подтянутой.
Проект дома с сауной внутри инфракрасного типа вы можете посмотреть на этом сайте. Здесь представлены, как одноместные, так и варианты на несколько человек. В первом случае парилку можно разместить в просторной ванной комнате или на застекленных лоджии и балконе, во втором же случае потребуется немного больше места, но в целом достаточно будет небольшого угла и наличия розетки.
Инфракрасные сауны бывают встроенными или переносными. За ними не требуется специализированный уход, что очень комфортно и не понадобится организация принудительной вентиляционной системы.
Бюджетные проекты саун в доме
Постройка дома с баней требует серьезного подхода. Одним из самых главных факторов, обуславливающих выбор проекта дома, будущим застройщиком является стоимость строительства дома. Естественно, что такие работы обойдутся значительно дешевле если их выполнять своими силами. Для того, чтобы сэкономить, лучше выбрать типовой проект бюджетного дома с сауной, поскольку его не нужно отдельно заказывать и платить за это.
Самым дешевым вариантом будет мини-парильня, встроенная в ванную комнату. Для этого необходимо стены утеплить минеральной ватой, причем, чтобы баня быстро прогревалась и меньше расходовала энергии на нагрев, толщина такой изоляции должна быть в пределах 50 – 100 мм. С этой же целью высоту внутри сауны необходимо делать не больше 2 м. Утеплитель изнутри парилки покрывают теплостойкой паронепроницаемой пленкой, ламинированной алюминием.
Деревянную облицовку внутри бани можно недорого выполнить из вагонки, а для того, чтобы она всегда оставалась внешне привлекательной, ее необходимо покрыть специальным термостойким составом. Снаружи каркас парильни можно обшить любым плитным материалом, например, гипсокартоном, пластмассовыми панелями или керамической плиткой.
В этой статье предложены самые удачные проекты, фото саун в доме своими руками, где основной задачей было как можно больше сэкономить, и при этом не потерять на комфортности проведения банных процедур. Кроме того, все предложенные варианты отличаются красивым эстетичным видом.
Проекты одноэтажных домов с сауной
Самыми популярными являются проекты одноэтажных домов с сауной для быстрого строительства просторных загородных коттеджей. Они могут использоваться не только для проведения уикенда с друзьями или семьей, в них можно проживать постоянно. В дизайне таких построек применены цвета природных оттенков, сочетающиеся с любым ландшафтом.
Среди преимуществ таких домов можно выделить то, что они занимают небольшую территорию, а за счет грамотной планировки в них помещается достаточное количество помещений, включая сауну.
Проекты саун в доме
Не меньшей популярностью пользуются проекты домов с сауной на первом этаже. Так как, они очень удобны тем, что позволяют попасть в домашнюю парилку, к примеру, прямо из гостиной. Также есть усовершенствованные варианты планировки с выходом из комнаты отдыха на террасу, рядом с которой располагается бассейн.
Еще один вариант — проект финского дома с сауной. Благодаря тому, что такие строения имеют объемные конструкции в них, очень хорошо располагаются дополнительные пристройки, включая домашнюю парилку. Деревянные финские дома отличаются игрой теней и света, а также живописностью. Все благодаря традиционному финскому стилю, предусматривающему отделку первого этажа камнем, а второго – штукатуркой, деревянными рейками или панорамными окнами.
Проекты домов с гаражом, бассейном и сауной
Владельцам больших помещений рекомендуется проект сауны с бассейном в частном доме. Ведь нет ничего приятнее, чем окунуться в прохладную воду после жаркой парилки, кроме того, это отличная закалка для всего организма. Интерьер сауны и помещения для бассейна, как правило, связан напольным покрытием, выполненным в одном стиле.
Интересный проект дома с бассейном, гаражом и сауной, поскольку он учитывает потребности всех членов семьи и позволяет за один раз сделать комфортабельное жилье. В таком доме будет прихожая, гостиная, зоны приема пищи и отдыха, парилка, а также удобный выход к бассейну и гаражу.
Если у вас нет подходящего большого помещения под бассейн, то вам может подойти проект дома с гаражом и сауной. Он также очень удобный и позволяет не возводить новых, отдельно стоящих строений парилки и гаража, что очень экономично.
В целом любой из проектов сауны в доме будет комфортным и удобным. Своя сауна – это всегда лучше, чем платить за аренду и ездить в общественное заведение. Вы сможете отдыхать с друзьями, не ограничиваясь во времени.
Вам будут интересны статьи:
Городская мини-сауна своими руками – проекты и фото саун в квартире Как сделать сауну в частном доме своими руками Небольшая сауна своими руками в загородном доме или на даче Дизайн сауны в доме – фото, устройство, обшивка, бассейн Каким цветом покрасить фасад частного дома — фото и лучшие идеи Покраска вагонки внутри дома — фото интерьеров, лучшие идеи, технология
Масляная краска по дереву — расход на 1м2, как красить, сколько сохнет
Как установить в ванной пластиковые панели
Чем обработать вагонку внутри бани — практические советы и отзывы
Отделка бани внутри своими руками, цены, отзывы, советы
Облицовка стен шпонированными стеновыми панелями – рекомендации
Источники: http://bane.guru/stroitelstvo-bani/proekty/proekty-saun-v-dome-na-pervom-etazhe-cena-realizacii.html, http://planvsem.ru/banya/proekt-i-planirovka-sauny.htm, http://paneligid.ru/sauna-v-chastnom-dome-proekty-foto-interery-luchshie-idei/
v-banyu.ru
самостоятельно определяем размеры и планировку
Приступая к строительству банной постройки, в первую очередь нужно создать проект сауны, который позволит реализовать все свои задумки и превратить фантазии в реальность. Благодаря проектированию вы можете не только распланировать, какой будет желаемая конструкция, но снизить свои затраты на строительство парной. Именно предварительные расчеты, точные чертежи и правильный подход к делу позволяет выбрать самый оптимальный вариант для долговечной постройки.

Планировка сауны
Виды сухих парных
На сегодняшний день людям знакомо несколько типов саун. Они отличаются между собой не только дизайном или размерами. Главными различиями могут выступать температурные условия, тип нагрева, а также колорит парной и организация полезного пространства в бане.
Домашние парные могут размещаться как непосредственно в собственном жилище, так и в отдельном помещении. Поэтому чтобы создать сауну у себя дома нужно в первую очередь понять, какой вид бани подходит именно вам. Самыми распространенными типами парных сооружений, от которых может зависеть и планировка, являются:
- суховоздушная сауна;
- инфракрасная сауна.
Суховоздушная считается одной из самых популярных. Для строительства используются светлые породы дерева: осина или липа. Отделку стен выполняют с помощью древесины с низкой теплопроводностью (кедр, липа, сосна). Размеры сауны намного меньше, чем в паровой бане, так как в ней устанавливаются достаточно мощные металлические печи с парогенератором. Бак с водой закрыт или вовсе находится в моечном отделении.
При проектировке главными комнатами являются парная, предбанник, душевая (бассейн). Именно бассейн в суховоздушной парилке позволяет сделать отдых максимально комфортным и приятным. Если сауна построена отдельным зданием, то в план проекта можно включить веранду или террасу.
Инфракрасные сауны существенно отличаются от суховоздушных парилок. Здесь тело человека обогревается инфракрасными лучами, которые исходят из специального излучателя. Благодаря такому оборудованию температура в комнате достигает 40–60°С, проникая в кожные покровы на глубину до 4 см и мягко воздействуя на организм человека.
Конструкция инфракрасной сауны довольно проста и не требует много места.
Для таких типов саун не обязательно строить отдельное здание. Не нужно иметь определенные знания и навыки обустройства парной. Инфракрасную сауну не надо утеплять, а само оборудование устанавливается непосредственно в кабинку. Поэтому ее можно установить в доме, подобрав место с учетом личных предпочтений и особенностей интерьера.
Проектировка сауны
Первым этапом строительства является проектирование. Схема должна содержать в себе чертежи основных комнат, площадь строения в целом. Надо также предусмотреть нужную высоту потолков и линии прокладки основных коммуникаций в сауне. Здесь же надо указать и расположение основных объектов: печка, полки, двери и окна.
Размеры помещения
Оптимальных габаритов, в принципе, не существует. Каждый хозяин строит сауну, исходя из своих предпочтений, и, конечно же, финансовых возможностей. Минимальным размером может быть маленькая сауна 1,5х3,0 м. Она подходит для тех, кому достаточно небольшой комнаты, чтобы в ней уместились два человека.

А есть те, кто сразу планирует капитальное здание со всеми удобствами внутри. Если вы собираетесь пользоваться сауной лишь в летнее время, то для строительства небольшой бани подойдет строение площадью 12 м². Оно будет состоять из маленькой комнаты отдыха, моечного отделения и парной. А вот сооружения для круглогодичного пользования должно отвечать всем требованиям по эксплуатации такого типа строений. Сюда входит утепление стен, гидроизоляция, монтаж пола, система отопления, а также правильные замеры высоты сауны.
Если же у вас большая семья или вы любите отдыхать в сауне с друзьями, то стоит подумать о строительстве крупного комплекса, допустим, на 30 квадратных метров. Этой площади будет достаточно, чтобы сделать большую парилку и просторную комнату отдыха, а также выделить пространство для моечной и санузла. Если парная будет эксплуатироваться и в зимнее время, то постройку нужно обязательно дополнить тамбуром, который позволит сохранить тепло в помещении.
Особое внимание надо уделить высоте потолков. Специалисты рекомендуют делать их на 1,1 м выше печки в парилке. Это оптимальные параметры для хорошей вентиляции и быстрого прогрева комнаты. При этом стоит учитывать будущие лежаки. Нужно вымерять расстояние от полки до потолка так, чтобы человек в положении сидя чувствовал себя комфортно. Поэтому обычно высоту потолка в бане или сауне делают 2,1 метра.
Двухэтажные проекты
Строения могут быть как одноэтажными, так и 2-этажными. Здания со вторым этажом строятся, как правило, для совмещения жилого помещения с парилкой. Самым оптимальным вариантом для двухэтажной сауны являются проекты 5 на 6 либо 6 на 6 метров.
Комнаты на втором этаже можно выбрать на ваше усмотрение, разделив пространство для комфортного отдыха или проживания семьи.

Проект жилой сауны
Но в любом случае перед началом стройки все детали и размеры каждого помещения в сауне следует правильно рассчитать, определив места дверных и оконных проемов. После того, как вы определились с проектировкой будущего строения можно переходить к воплощению. Для этого стоит выбрать нужный материал для строительства и учесть основные требования, выдвигаемые к постройкам банного типа. И, конечно же, не забудьте о нюансах монтажа вентиляционной, отопительной и противопожарной систем.
Планировка комнат
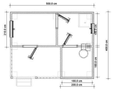
Внутренние помещения бани обязательно включают в себя три единицы. Это комната отдыха, парная и моечное отделение. В зависимости от выбранного проекта вы сможете спланировать каждую комнату вплоть до расстановки мебели. Популярным и практичным решением будет бассейн. Это сделает вашу сауну не просто парилкой, а настоящим банным комплексом. Бассейн желательно обустроить на выходе из парной после моечного отделения.
Оптимальными размерами главных комнат для строения 5х6 могут быть такие.
Габариты помещений
| Помещения | Площадь |
| комната отдыха | 12 м² |
| парная | 3,8 м² |
| помывочное отделение | 4,2 м² |
| терраса | 10 м² |

Планировка сауны 5 на 6
Здесь основное пространство сауны выделяется на комнату отдыха и террасу, где хозяева и гости смогут, например, попить целебного травяного чаю после парилки. Но можно воспользоваться другими расчетами, отделив пространство дополнительной перегородкой и уменьшив площадь террасы. В таком случае размеры основных помещений будут составлять:
- комната отдыха – 12 м²;
- парная – 3,0 м²;
- помывочное отделение – 3,0 м²;
- санузел – 4 м²;
- терраса – 8,0 м².
Терраса при сауне подходит больше для летнего отдыха. Поэтому если вы планируете круглогодичное пользование строением, ее можно заменить тамбуром или закрытой верандой. Тогда банный комплекс будет доставлять вам радость при любых погодных условиях.
Планировка двухэтажной сауны
Проект 2-этажного комплекса позволяет немножко пофантазировать. Ведь благодаря двум этажам вы сможете совместить дачный домик с собственной сауной. Здесь, как и в одноэтажном сооружении, на первом этаже могут находиться парная, моечное отделение, кухня, санузел или комната с бассейном. А вот на втором размещаются жилые комнаты: спальня, гостиная или бильярдная.
В проекте комплекса 6 на 4 с мансардой площадь можно разделить таким образом:
- комната отдыха – 10 м²;
- парная – 5 м²;
- моечная — 3 м²;
- прихожая с террасой – 6 м²;
- мансарда – 18 м².
При планировке комнат для двухэтажной сауны размером 6х5 метров можно создать большую гостевую на втором этаже. На первом же обязательно планируются основные помещения – парная, комната отдыха и помывочное отделение. В данном случае оптимальными размерами для каждого из отсеков являются:

Планировка двухэтажной сауны
- комната отдыха – 16 м²;
- парная – 4 м²;
- моечная – 4 м²;
- тамбур – 2м²;
- терраса – 4 м²;
- гостевая на втором этаже – 20 м².
Если вы не планируете в комплексе с сауной делать помещение с бассейном, то обязательно обустройте душевую. А вот санузел нужно установить на первом этаже, даже если он есть и на втором. Его можно совместить с душевой комнатой или перегородить моечное отделение. Если 2-й этаж будет предназначен для жилья, то на первом все равно должна быть комната для отдыха, в которой вы будете проводить время после банных процедур. Здесь же стоит и установить лестницу на второй этаж.
Такое сооружение имеет как плюсы, так и минусы. К преимуществам стоит отнести возможность построить сразу и дом, и сауну, не только повысив функциональность сооружения, но и сэкономив место на земельном участке. А вот к минусам относятся строгие требования к установке вентиляции, высококачественной системе пожаротушения и необходимости приобретения кондиционера из-за большой температуры воздуха на втором этаже.
Многие люди хотят иметь хорошую сауну на своем загородном участке. Подойти к этому вопросу стоит со всей ответственностью. Ведь только придерживаясь правил проектировки и рационального планирования комнат, можно получить по-настоящему качественную и функциональную собственную парилку.
poparimsya.online

Планировка двухэтажной бани с душевой
Процесс сборки каркасной бани

Проект и экстерьер бани из бревен

Оформление и интерьер предбанника в бане из дерева
Пример отделки предбанника

Проект и планировка бани из бруса размером 6х3
Планировка бани с моечной и комнатой отдыха