Одноэтажный дом с тремя спальнями и террасой, планировка дома 3 комнаты
Проекты одноэтажных домов с тремя спальнями
Основная причина популярности малоэтажного строительства – обеспечение максимально комфортных условий проживания. Это стало возможным благодаря использованию автономных инженерных сетей и внедрению современных материалов и технологий. Одним из востребованных вариантов строительства считаются проекты одноэтажных домов с тремя спальнями.
| С террасой | С гаражом и зимним садом | С большой гостиной |
Особенности проектов одноэтажных домов с тремя спальнями
Одноэтажные здания обладают несколькими преимуществами, которые обусловили широкое распространение таких проектов в частном домостроении:
- Низкая нагрузка на фундамент. Она позволяет возведение постройки в условиях слабонесущих грунтов;
- Отсутствие в проекте лестниц и проходов коммуникаций на более высокие этажи. Благодаря этому, планировка постройки в один этаж позволяет эффективно воспользоваться имеющимся пространством;
- Более высокий уровень комфорта для пожилых людей, маленьких детей и лиц с ограниченными возможностями, так как у них отсутствует необходимость подниматься на второй этаж или еще выше.
Важная особенность проектов одноэтажной постройки – создание оптимальных условий для проживания под одной крышей двух или даже трех поколений одной семьи. Поэтому востребованными становятся такие проекты, которые учитывают размещение как минимум трех спален и наличие одного просторного помещения, где смогут собраться все обитатели. Это необходимо для комфортного проживания многочисленных членов семьи, причем каждое поколение получает собственное автономное пространство.
Примеры готовых проектов
В связи с повышенным спросом разработано множество разнообразных проектов одноэтажных домов с 3-мя и более спальнями.
Типичный пример – проект №58-01. Коттедж высотой в один этаж обладает большой площадью (197,08 кв. м) Она позволяет разместить не только три просторных спальни (от 15,3 до 18,5 кв. м), но и, благодаря грамотной планировке, отделить зону отдыха от гостиной и кухни-столовой обширным холлом (23,7 кв. м.)
Размещение в одноэтажном доме трех спален реально осуществить даже в проекте постройки маленькой площади. Образец подобного решения – проект №59-61 общей площадью всего 102 кв. м. Три спальные комнаты разделены просторной гостиной (20,6 кв. м.), в которой могут комфортно разместиться обитатели дома. Важная особенность плана здания – одна спальня располагается от двух других отдельно. Это делается для размещения там семьи с маленьким ребенком, чтобы его плач или беспокойство не мешали спать остальным. Или напротив, для отдыха пожилых людей подальше от беспокойной и шумной молодежи.
Из газобетона и с саунойНаиболее стандартный вариант одноэтажного коттеджа с тремя спальными комнатами представлен на готовом проекте №62-03. Его черты:
- четкое разделение на зону отдыха и развлечений;
- расположение одной спальной комнаты отдельно от других;
- наличие большого помещения – гостиной площадью 42 кв. м.
Важным бонусом проекта выступает присутствие в планировке просторной кухни-столовой (17,6 кв. м).
С большой гостиной и гардеробнойПроекты домов с 3 спальнями
Проекты домов с 3 спальнями очень популярны в условиях плотной городской застройки и в загородном строительстве . Проекты домов 3 спальни наиболее востребованы ввиду их оптимальной площади и, как следствие, невысокой стоимости строительства дома. Проекты домов с тремя спальнями, как правило, размещаются на средних земельных участках, содержат в своем составе все необходимые помещения и являются полноценными проектами. Проект дома или коттеджа с тремя спальнями может иметь мансарду, гараж, цокольный этаж или подвал.
Дом с 3 спальнями может быть выполнен из различных материалов и по любой технологии строительства.
Все типовые проекты домов с 3 спальнями адаптируются под регион строительства (грунты и местные климатические условия ) и пожелания Заказчиков по материалам стен — БЕСПЛАТНО (кроме проектов, предлагаемых по акции со скидкой). При необходимости, в представленные на сайте типовые проекты домов с тремя спальнями могут быть внесены дополнительные изменения (незначительные изменения в проектах выполняются БЕСПЛАТНО, значительные изменения — за небольшую доплату).
Одноэтажный дом 10×10: планировка комнат, варианты проектов
Одноэтажный дом площадью 10×10 метров предоставляет некоторую свободу действий. Конечно, это не двухэтажный особняк, где у каждого члена семьи будет своя просторная комната, но и не дом площадью в 50 кв.м, куда вместили не только хозяйственную зону, но и две, а то и три-четыре комнаты.
Количество комнат, их размеры, предназначение гораздо проще варьировать, когда площадь дома составляет 100 квадратов. Да и проектов с такой квадратурой намного больше. Рассмотрите наиболее оптимальные проекты для комфортного проживания большой или маленькой семьи с тем, чтобы вам проще было выбрать подходящий вариант.
Преимущества одноэтажного дома 10×10 м
Одноэтажный дом на участке занимает больше места, чем здание такой же площади, но в два этажа. Однако для семьи с детьми или с родственниками преклонного возраста, инвалидами такой вариант более предпочтителен – он безопасней, удобней.
Да и лестница, которая бы вела на второй этаж, отнимала бы полезную площадь.
Но есть и другие достоинства такого здания.
- Полезной площади достаточно для проживания семьи из 4 или даже 5 человек.
- Снижен уровень травматизма ввиду отсутствия лестницы.
- Облегчается уборка дома.
- Дизайн всех комнат дома можно выполнить в одном стиле.
- Дом быстрей согревается и дольше хранит тепло.
- Дом квадратной формы, количество решений велико.
- Фундамент не нуждается в дополнительном усилении, поскольку должен выдерживать лишь один этаж.
Комфортным и просторным может получиться одноэтажный дом 10×10. Планировка комнат, их расположение зависит от размера семьи. Так что в нем будет всем уютно, в том числе и гостям, которые нет-нет, да и захотят остаться на ночь.
Важно: учтите, что указанная площадь 10×10 не означает, что его жилая или общая площадь будет таковой. 10-20 кв.м заберут под себя внешние стены и межкомнатные перегородки, используемые для зонирования.
Поэтому полезного пространства, коим вы и будете оперировать, останется 80-90 м2. И этого вполне хватит – убедитесь сами.
Проект №1 с тремя спальными комнатами и гостиной
Представленный вариант дома имеет общую площадь в 76,55 кв.м, из которых 48,25 – жилая площадь. И лишь одна комната (гостиная) является проходной.
- 2 детские комнаты по 9,32 кв.м.
- Спальня 11,58 кв.м.
- Зал 18,03 кв.м.
- Кухня 7,32 кв.м.
В оставшуюся площадь удалось вместить котельную, санузел, тамбур или предбанник и холл.
Если вам не нужно 2 детских комнаты, одно помещение можно отвести под кабинет или гостевую комнату. Если дом обогревается двухконтурным котлом и котельная не нужна, санузел можно сделать раздельным или использовать высвободившуюся площадь под гардероб, кладовую, сушилку.
Важно: если хотите научиться создавать планы интерьера, читайте нашу статью: 25 лучших программ, приложений и сервисов для дизайнера интерьера. Этот навык полезен каждому, а не только профессиональному дизайнеру.
Проект № 2 с двумя жилыми комнатами и кухней-студией
Небольшой семье не нужны дополнительные жилые комнаты. А гостей в случае надобности можно разместить в гостиной на ночь.
Заметьте, что у этого дома суммарная площадь включает и площадь внешних стен, перегородок.
- От входа вглубь дома ведет коридор (8 кв.м).
- По левую и правую руку от него располагаются двери в спальни по 16 кв.м.
- Коридор переходит в холл, в конце которого отгорожено помещение для технических и хозяйственных нужд площадью 5,4 кв.м. Площадь просторного холла – 18,6 кв.м.
- В доме имеется просторный совмещенный узел (12 кв.м) и кухня, объединенная с гостиной.
При желании кухню можно перенести в техническое помещение, а из гостиной сделать две зоны: гостевую и зону отдыха или оборудовать классный домашний офис.
Если планировку не трогать, то в отгороженном помещении можно обустроить котельную, сушилку, дополнительный санузел или чулан.
Достоинство этого проекта – каждая из комнат, будь то жилая или хозяйственная, не является проходной.
Проект № 3 на две спальни и гостиную
Комнаты должны располагаться в доме не только так, чтобы всем было просторно и комфортно. Следует учитывать и ориентированность дома по сторонам света. Так, ванная комната, кухня, кладовая, котельная вполне переживет недостаток света. А вот спальни, детские комнаты и гостиная нуждаются в длительном и достаточном естественном освещении.
Данный проект имеет общую площадь почти в 80,96 кв.м, при этом жилая – 53,96 кв.м, и жилая зона состоит из 2-х спален и гостиной.
- Спальня 1 – 14,37 кв.м. Может быть гостевой, кабинетом или детской.
- Спальня 2 – 16,07 кв.м.
- Гостиная – 23,52 кв.м.
- Кухня-столовая – 10,91 кв.м.
- Совмещенный санузел – 6,06 кв.м.
В дом ведет тамбур, в конце которого расположена котельная или кладовка площадью 3,28 кв.м.
Площадь дома выступает за квадратуру 10×10 на 2,3 метра. Этими помещениями можно пожертвовать, если размеры участка не позволяют их оставить. А вход сделать с улицы прямо в холл, отгородив его, к примеру, гипсокартонной стеной с дверью.
Достоинство этого варианта в том, что, вместив в площадь дома 3 жилые комнаты, удалось каждую из них сделать раздельной.![]()
Проект № 4 с террасой или верандой
В доме с площадью в 100 квадратов вполне реально распланировать не только жилую зону и кухонно-технические помещения. Можно устроить и открытую террасу, о которой мечтают все, покупающие загородный частный одноэтажный дом 10×10. Планировка комнат при этом будет практичной и комфортной.
Посмотрите сами на предложенный проект. В нем есть три спальни по 11,9; 12,2 и 12,5 кв.м и гостиная 20,2 кв.м. Помещение между комнатами – это кухня, выполняющая и роль столовой площадью 13,1 кв.м. Туалетная комната совмещенная, расположена рядом со входом в дом.
В гостиной четыре окна и раздвижная дверь. Комната получает достаточно много естественного освещения. Поэтому за ней можно сделать стеклянную веранду. И выходить на нее почти прямиком из дома. Если вам такое решение кажется не удобным, вместо одного окна поставьте дверь. А окно можно перенести на место существующих раздвижных дверей.
Такую же террасу, но меньше размером, можно сделать и перед входом в дом.
Любой из представленных вариантов можно изменить. Например, передвинуть стену, чтобы сделать комнату или террасу больше. Снести межкомнатные перегородки, не являющиеся несущими, чтобы сделать комнаты просторней (в стиле лофт). А уж изменить назначение помещения – тут и вовсе будет не так сложно, как кажется. Ведь это частный дом, а не квартира в многоэтажке.
Одноэтажный дом 10×10: планировка комнат и ее основы
Дом 10×10 считается домом средних размеров. К тому же он однокомнатный. И, несмотря на все его преимущества, его внешние стены не раздвинешь, чтобы выделить одну комнату.
Поэтому стоит изначально решить, какие помещения в доме необходимы, а без каких можно обойтись.
- Гостиная нужна. Это не хозяйская спальня, а место сбора всей семьи. Этим помещением пренебрегать не стоит. Отводим ему наиболее просторную комнату.
- Количество спален зависит от размера семьи. Молодая семья может скоро расшириться, поэтому спален должно быть минимум 2.

- Кухня, если позволяет ее площадь, может быть одновременно и столовой. Даже на площадь в 10-13 кв.м поместятся и зона готовки, и обеденный гарнитур.
- Санузел – одно из самых необходимых технических помещений.
- Кладовка. Если есть место – отлично. В ином случае запасы хранят в хозпостройках во дворе. Но уж выделить место в 1,5-2,5 кв.м под нее уж всяко можно на кухне или в холле.
- Гардероб. Без отдельной комнаты под него можно обойтись. Поставьте шкафы-купе от пола до потолка. Это решит проблему размещения вещей. Полезные идеи и советы можно почерпнуть из нашей статьи об оформлении гардеробной комнаты маленького размера.
- Сушилка не является обязательной.
- Котельная нужна только в том случае, если дома стоит печь, установлено паровое отопление. Но большинство семей пользуется двухконтурными котлами, газовым отоплением и устанавливают теплые полы. Поэтому необходимость в этом помещении отпадает и высвобождается дополнительная квадратура. И как раз под кладовку или санузел.
- Терраса. Можно и отказаться, но так не хочется.
Увеличиваем функциональность, не раздвигая стен
Сделать жилую зону просторней можно, внеся коррективы в планировку:
- Санузел сделать совмещенным.
- Часть комнат сделать смежно-раздельными. И за счет площади холла увеличить любую из них.
- Объединить кухню со столовой и/или гостиной.
- Использовать котельную и как кладовку, и как сушилку.
Кухня не должна быть маленькой или очень большой. В первую очередь подумайте о ее функциональности. Вдохновение можно почерпнуть из дизайн проекта интерьера кухни от Senalee Kapelevich.
Вариантов и возможностей масса. Все зависит от вашего совместного семейного решения.
Напоследок интересное видео о проектировании одноэтажного дома (100 кв. м) на узком участке
Проекты одноэтажных домов с 3 спальнями: фото, планировки, дизайн
Спальня – самая важная комната в доме.
Здесь вы будете отдыхать, наслаждаться спокойствием и набираться сил. Так что важно все сделать правильно.
Чтобы вы легче нашли идеальный вариант, мы сделали подборку проектов одноэтажных домов с тремя спальнями. Посмотрите архитектурные планы, советы, интересные фотографии. Узнайте все, что пригодится при выборе дома мечты.
Дальше расскажем о:
- мастер-спальне – главной комнате среди всех;
- остальных спальнях, и что в них сделать;
- правильном распределении спален по этажам;
- интересных дизайнерских решениях.
В конце покажем 8 проектов домов с 3 спальнями и расскажем про их особенности.
Мастер-спальня в доме – сразу о главном
Мастер-спальня – это главная комната в доме. В ней живут хозяева. По сути отдельная квартира внутри коттеджа.
Мастер-спальня занимает больше всего квадратных метров, по сравнению с другими спальнями. Получает дополнительный функционал: выход на балкон, санузел, гардеробную. Создает личное пространство, которое доступно только ее владельцам.
Размещение мастер-спальни в доме
Хозяйскую спальню отделяют от других комнат.
В одноэтажном доме без мансарды между ней и другими спальнями размещают гостиную, кухню, холл. Промежуточные помещения для создания изолированного, уединенного пространства.
В доме с мансардой пространство под крышей иногда полностью отдают под мастер-спальню. Хороший пример такого решения – проект сьют на двоих. Там сделали из мансарды отдельную квартиру-студию.
Частое решение – отделить комнаты холлом. Жильцы получают немного больше приватности без потери в квадратных метрах. Это важно для компактных проектов домов.
Строгих правил по расположению комнат нет. Но есть полезный совет для семей с детьми: меньше возраст ребенка – ближе комнаты к друг другу. Проще вовремя среагировать на любые ситуации, если спальни рядом.
Учитывайте – дети растут. Некоторым нужно больше приватности, чем другим. Со временем может понадобиться немного доработать спальни – разнеси их по разным этажам или хотя бы улучшить звукоизоляцию.
Что сделать в мастер-спальне
Место для сна. Базовый функционал, без которого никуда. Поставьте большую двуспальную кровать. Рядом ночные столики для светильников и всякой мелочи. В ногах комод или небольшую лавочку.
Вам не нужно экономить место. Можно поставить самую большую кровать с любым каркасом, который нравится. Делайте красиво и удобно. Комбинированные варианты для сохранения квадратных метров оставьте детским и гостевым.
Гардеробная. Отдельная комната с полками, ящиками, вешалками под одежду, обувь, аксессуары. Берете содержимое шкафов и выносите сюда.
Удобно и экономит место в самой спальне.
Эффективно используйте пространство под скатами в мастер-спальнях в мансарде. Сделайте гардеробную вдоль них. В места с наименьшей высотой потолков вынесите ящики и полки под обувь, аксессуары.
Санузел. С туалетом, двумя раковинами, душем или ванной. Все необходимое, чтобы привести себя в порядок перед сном. Можно сделать большую душевую со встроенным монитором – будете купаться и смотреть фильмы. Такая идея не теория – ее уже делали в проекте сьюта.
Захотите личную ванную в мансарде – расположите ее над мокрыми зонами первого этажа. Меньше риск затопить что-то ценное при протечке и дешевле прокладывать коммуникации.
Балкон или лоджия. Личная зона отдыха, куда можно попасть только через мастер-спальню. Понравится любителям красивых видов и свежего воздуха.
Что сделать на лоджии зависит от ее размеров. Мало квадратных метров – устройте просто цветочную зону под навесом. Достаточно места – ставьте шезлонги, столик и получайте место для комфортного загара с хорошим видом на садик.
Остальные спальни для детей, родственников, гостей
В проектах одноэтажных домов с 3 спальнями обычно делают мастер-спальню, 2 детских или детскую и гостевую комнату. Стандартный набор, который подходит для большинства семей.
Учитывайте назначение комнат, когда продумываете интерьер. Например, место для творчества и самовыражения пригодится в детской, но для гостевой будет лишним. Таких нюансов много. Дальше расскажем о них.
Помните, все что прочитаете – это советы и идеи.
Поэтому знайте о них, но всегда прислушивайтесь к себе и тому, кто будет жить в комнате. Учитывайте распорядок дня, хобби, предпочтения и пожелания. Только так сделаете удобный дом с дружественной атмосферой.
Спальня для других взрослых
Речь идет в первую очередь о старшем поколении. Но большая часть этих советов сработает и для комнаты подростков.
Что нужно обязательно:
- Кровать. Желательно двуспальная, потому что она универсальна. Два человека в этой спальне живут редко? Берите кровать, где второе спальное место можно сложить под основное.
- Полки и шкафы. Немного пространства для хранения самого личного. Полезно, даже если рядом есть гардеробная и кладовка.
- Прикроватный столик. Удобно для мелких вещей и настольного светильника. Можно заменить настенной подсветкой и мини-комодом на колесиках.
Желательно рабочее место. Стол, где можно поставить компьютер, ноутбук или разложить документы полезен. Заниматься делами в комнате удобнее, чем за обеденным столом.
Обратите внимание на минималистичные дизайны, если важна экономия места.
Стол сделать складным, превращают в полку вдоль стены, делают многофункциональным. Получается удобно и красиво.
Спальня для детей и подростков
Сделать спальню для детей и подростков сложнее. Потому что это развивающиеся личности со своими интересами, желанием самовыражения, хобби и всем прочим, что требует места. Но все нужное можно уместить даже на маленькой площади.
Кровать – больше, чем место для сна. Посмотрите в сторону двухъярусных моделей. Сверху спальное место – снизу компьютерный и письменный стол, шкафы, полки, выдвижные ящики.
Удобно для ребенка, экономит пространство. Не всегда подходит подросткам.
Рабочее место – зона для учебы и хобби. Делайте упор на комфорт. Широкая столешница, где можно поставить компьютер, ноутбук, учебники, тетради, лампочку. Добавьте подсветку на стенах. Можно поэкспериментировать с зонированием светодиодными лентами.
Уделите максимум внимания рабочему месту в детской. Делайте его на вырост – большая рабочая поверхность, которой удобно пользоваться в любом возрасте. Потому что в этом году ребенку нужно только играть в компьютер и делать уроки. А на следующий он захочет рисовать или лепить из глины – тут дополнительное место пригодится.
Спортивный уголок и игровая зона.
Сочетаются друг с другом, поэтому можно объединить в одном месте и сэкономить квадратные метры. Выделите место вдоль стены, где поставите турники, лестницу, канаты, брусья, кольца. Положите на пол специальные прорезиненные коврики, которые смягчат прыжки. Поставите ящик под игрушки.
По мере взросления эту зону можно переделывать. Убирать ставшие ненужными игрушки и расширять спортивный инвентарь. Или вовсе превратить уголок в место под хобби.
Место для хранения личных вещей. Сделайте открытые полки, где ребенок выставит все то, что хочет постоянно видеть и показывать другим. Отдельное место под модельки, коллекционные фигурки или поделки – это всегда хорошо.
Нужен хотя бы один закрытый шкаф. Потому что у ребенка точно будут личные вещи, которые он не хочет показывать посторонним.
Дайте ему такую возможностью.
Для оформления детской спальни тоже есть пара советов.
Используйте отделку, которую легко менять. Выберите специальные самоклеящиеся обои. Много интересных дизайнов, включая 3D-рисунки и легко обновлять. Сможете вместе с ребенком выбрать оформление комнаты и сделать легкий косметический ремонт.
Оставьте место для творчества. Покрасьте угол магнитной и грифельной краской. Тогда ребенок сможет вешать на стену украшения, рисовать, делать заметки. Все без вреда для отделки.
Выделите место под самовыражения. Плакаты, рисунки, картины – дайте ребенку место, где он сможет вешать нравящиеся ему вещи. Фишка в том, что такое место выполняет функцию яркого пятна. Разбавляет интерьер комнаты, перетягивает внимание на себя.
Больше идей и советов про отделочные материалы в нашей подробной статье.
Важные моменты создания двух детских спален
Двумя детям – одинаковые спальни.
Это обязательно. Подробности в интервью с архитектором, рекомендуем почитать. Сейчас расскажем все самое важное кратко.
Правило равных комнат регулярно нарушают в проектах одноэтажных домов с тремя спальнями. Там все они разного размера и функционала. Иногда отличие всего в 1 м2. Чаще одна комната на 2-3 м2 больше и с доступом к балкону, а другая просто маленькая каморка. Это плохо.
Старайтесь сделать одинаковые спальни: размер, доступ к балконам и лоджиям, дополнительный функционал в виде встроенных ванных, гардеробных и так далее. Равенство – ключ к спокойной жизни без споров.
Исключение из правил: сильно разный возраст у детей. Здесь можно заранее договориться и предложить какую-нибудь компенсацию ребенку, который получит меньшую комнату.
Самый интересный ход подсмотрите в проекте мансарда-яхта. Там сделали небольшие каюты для подростков, где места хватит только под кровать. Остальное пространство общее с условным зонированием. Пример абсолютного равенства, которое подходит только для очень дружных детей.
Размещение трех спален в доме
В большинстве проектов домов с тремя спальнями все комнаты размещают на одном этаже. Обычно в мансарде.
Так делают, потому что это стандартное решение. Подходит для семей со взрослыми и маленькими детьми, несколькими поколениями под одной крышей и так далее.
Если в проекте выносят спальню на первый этаж, то подразумевают что она для гостей. Ведь снизу общие зоны, а в мансарде – личные.
Но спальни можно разместить иначе. Поделить их по этажам или сгруппировать. Правильный выбор зависит от состава семьи.
Все 3 спальни в мансарде
Все комнаты в мансарде. Универсальный выбор для любого проекта одноэтажного дома с тремя спальнями.
Подходящий вариант, если въезжаете в дом с маленькими детьми. Тогда они все будут под боком, вы их услышите и придете на помощь в любой момент.
При таком размещении в будущем придется улучшать звукоизоляцию детских. Потому что с ростом у ребенка может появиться хобби. Причем довольно шумное.
Минус такого размещения – минимальная приватность. Комнаты разделяет только небольшой холл.
Мастер-спальня в мансарде
Мастер-спальня на одном этаже, остальные комнаты на другом. Решение для семей со взрослыми детьми или несколькими поколениями под одной крышей.
Мансарда уходит под мастер-спальню с личным санузлом, гардеробной и даже кухней. Там будут жить хозяева дома.
На первом этаже – комнаты других членов семьи. Желательно разделенные гостиными, кухнями и другими нейтральными помещениями.
Плюс такого подхода в максимально приватности. Есть общие комнатки, есть уютные личные островки. Встречи с другими жильцами – только по желанию. Никаких случайных столкновений в небольшом коридорчике.
Гостевая или комната подростка на первом этаже
Одна спальня на первом этаже, остальные на втором. Выбор для семей с двумя детьми сильно разного возраста и тех, кто часто приглашает гостей.
В мансарде детская для маленького ребенка и мастер-спальня. Плюс такого решения в том, что малыш всегда рядом. Родители смогут быстро прийти, сделать все нужное и уйти обратно отдыхать.
Первый этаж в распоряжении подростка или гостей. Это даст личное пространство. Никто никому не мешает.
Минус такого решения один – не все любят первые этажи. В частных домах некоторые предпочитают спать в мансарде, откуда открывается красивый вид.
Несколько идей для создания комфортных спален
Мы подготовили несколько советов по созданию комфортных спален. Узнайте о популярных подходах к дизайну, мебели, созданию удобного места для сна.
Помните – все подходы можно и нужно комбинировать для создания варианта, который нравится вам.
Чем легче менять отделку, тем лучше. Обои с самоклеящейся основой и краска – хорошее решение. Сможете в любой момент обновить дизайн спальни: изменить яркость и общее настроение.
Добавьте текстуру.
Полоски, точки, имитация древесного рисунка, шершавость штукатурки. Все это придает комнате дополнительный объем, изменяет ее восприятие. Хороший ход – скомбинировать маленькие и большие текстуры.
Оживите классический стиль. Для владельцев спален в строгом дизайне – с массивными прикроватными столиками и винтажными лампами. Самое время добавить картину на стену за изголовьем кровати. Что-нибудь яркое, чтобы оживить комнату.
Персонализируйте комнату. Картины, фотографии, плакаты, даже детские рисунки. Использовать можно все. Выделите место для яркого, творческого пятна. И у комнаты появится особый дух, который передает ваше настроение.
Больше подушек. Простейший способ сделать комнату ярче. Набросайте на кровать подушек с принтами, геометрическими рисунками и просто броскими цветами. Цепляет, разбавляет самую серьезную обстановку, легко убрать. Аналогичное работает с коврами.
Комбинируйте цвета. Выберите несколько контрастных оттенков. Дополните их подходящей сдержанной палитрой. Получите идеальную комбинацию цветов, где есть сразу спокойные зоны и яркие пятна.
Тумбочка на колесиках лучше стационарной.
Особенно в маленькой комнате. Чем подвижнее мебель и проще переставить ее, тем лучше.
Многофункциональные кровати. Многоярусные модели со встроенной рабочей зоной и ящиками. Складные варианты, где дополнительное спальное место прячется под основным. Модели, которые скрываются в стене. Вариантов много. Экспериментируйте и экономьте место.
Возьмите мебель на заказ. Дорогое, но лучшее решение для мансарды. Ящики и полки под скатами и угловые шкафы помогут использовать доступное пространство на 100%.
Хотите сэкономить – займитесь хэндмейдом. Возьмите деревянные панели, лак, краску или пленку для оклейки и превратите все это в мебель ручной работы. Есть талант и доступ к станкам – можно сделать гораздо лучше.
Используйте настенные светильники на гибкой ножке. Выглядят современно, светят ярко, можно направить в нужную сторону. Интересное решение для тех, кто любит читать в постели.
Добавьте зеркал. Они помогут привести себя в порядок с утра и визуально расширят комнату. Очень удобно в мансарде, где место ограничено. Можно поднять потолок, отодвинуть стены и ощутить простор.
Создайте уютный уголок. Кресло, столик с лампой, книжные полки. Хорошо подходит для мастер-спальни, где много свободного места.
Больше цветов. Зеленый уголок, а лучше несколько – это всегда хорошо.
Проекты одноэтажных домов с тремя спальнями
Ищите вдохновение для строительства собственного дома мечты – посмотрите нашу подборку одноэтажных коттеджей с 3 спальнями.
Отобрали интересные варианты с разными архитектурными и интерьерными решениями. Смотрите, выбирайте интересное и стройте удобный загородный дом.
Удобная планировка одноэтажного дома со спальнями, гаражами
Желание сделать свое жилье максимально комфортным, удобным, практичным на практике в полной мере не всегда реализуется. Причиной неудач, характерных ошибок зачастую становится непонимание элементарных принципов построения пространства. Бездумное копирование увиденных в телепередачах и на тематических сайтах интерьеров не приводит к достижению целей. Нарушение цветового баланса, изменение масштаба и соотношения размеров элементов декора и конструктивных деталей здания дискредитирует изначальную идею. Часто неудачное решение появляется на стадии проектирования. Например, как оптимально расположить и отделать дом с тремя спальнями, человеку, не имеющему архитектурного или дизайнерского образования, продумать не так просто.
Проект одноэтажного дома с тремя спальнями
В каких случаях целесообразно строить жилье с тремя спальнями
Оптимальным вариантом по определению назначения комнаты станет стадия проектирования.
На этом этапе есть возможность внести технические коррективы, изменить конструктивные элементы, подвести необходимые инженерные коммуникации. Жилье с двумя спальнями является привычным вариантом планировки.
Гораздо реже встречаются варианты с большим количеством комнат для отдыха. Расположение помещений зависит от целевого назначения. Спальни могут быть:
- Детскими.
- Для пожилых людей.
- Гостевыми.
- Для семейных пар.
- Одноместными.
Планировка дома с тремя спальнями
Каждая спальня из вышеперечисленных вариантов имеет свои особенности по способу отделки, наличию необходимых функций, мебели, выходу в общую зону.
Иногда сразу три поколения одной семьи могут проживать на одной площади.
Задача дизайнера сделать жизнь каждого обитателя комфортной. Удачными проектами одноэтажных домов с тремя спальнями можно считать только те, где выполнены задачи технического и эстетического построения пространства.
Оптимальное расположение спальных комнат
Если в доме два и более этажей, то специалисты рекомендуют комнаты отдыха делать наверху. Когда же в наличии всего один уровень, проектировать три спальни гораздо сложнее. Не делают их проходными и не располагают в центре жилья.
По всем правилам, помещения для отдыха и сна должны иметь окна. Естественный свет и приток свежего воздуха в комнату – жизненно необходимое условие. В любом случае одна из стен будет несущей.
Квалифицированные проектировщики, архитекторы и дизайнеры советуют обратить внимание на некоторые важные факторы при планировке спален.
Дом с тремя спальнями: проект с планировкой
Детские
Располагать их желательно на восточной стене дома. Тогда с утра помещение будет наполняться естественным светом, заряжая ребенка энергией на целый день. После обеда солнце перемешается на противоположную сторону, и в детской не будет перегрева. Света достаточно.
Комфортные условия для игр и послеобеденного сна.
Расположение относительно других помещений общей жилой площади не имеет принципиальных ограничений, но не желательно делать за смежной стеной гостиную, где установлен домашний кинотеатр либо другие обитатели дома могут производить шум после укладки детей на ночь.
На нашем сайте Вы можете найти контакты строительных компаний, которые предлагают услугу проектирования домов. Напрямую пообщаться с представителями можно посетив выставку домов «Малоэтажная Страна». Детская
Комнаты для супружеских пар
В отличие от детских, спальня для взрослых не обязательно делается со стороны восточной стены. Дизайнеры рекомендуют ее планировать на южной, юго-западной стороне.
Прямых солнечных лучей либо вообще не будет, либо они будут появляться на короткий период времени.
Идеальные условия для отдыха в любое время суток, если возникает такая необходимость. Желательно близкое расположение ванной и туалетной комнаты.
Можно расположить спальню для взрослых ближе к кухне, чтобы не тревожить других членов семьи ранними завтраками и поздними вечерними разговорами.
Комната для супружеской пары
Спальня для людей старшего поколения
Первостепенное значение при планировании комнаты для пожилых членов семьи имеет максимально комфортное доступное местоположение. Помещение располагают строго на одном уровне с общей жилой зоной. Никаких подиумов, ступеней, приступов. Важно мнение самих обитателей спальни.
В этом возрасте желательно обеспечить людям старшего поколения такие условия, о которых они сами высказались. Если они не хотят прямого солнечного излучения, то комнату располагают на северной или южной стороне.
Солнце с утра будет на восточной стороне, после полудня на западной части дома.
Спальня для людей старшего поколения
Гостевые комнаты
Это помещения временного проживания, а значит таких требований, как для комнат с постоянными обитателями, нет. Расположить гостевую спальню можно в любом удобном месте дома, но не желательно делать ее смежной с детской или комнатой отдыха для пожилых людей.
Важнее оборудовать ее минимальным набором мебели. Кровать, шкаф должны быть обязательно. В качестве дополнительных опций можно установить там телевизор, небольшой холодильник, кондиционер.
В современных реалиях со множеством гаджетов в комнате рекомендуется не менее двух розеток.
Гостевая комната Это может быть интересно! В статье по следующей ссылке читайте про сборные дома.
Нормативы по минимальной площади и объему спальни
Согласно общестроительным правилам, на каждого обитателя помещения должно приходиться не менее 28 м3 воздуха, то есть в среднем 9 м2 и более.
Нормы действуют на всех членов семьи, независимо от их возраста.
Таким образом, если составляется проект одноэтажного дома 10 м на 12 м с тремя спальнями, а проживать здесь будут 6 человек, то минимальная площадь под спальни будет составлять 54 м2. Для оптимизации пространства некоторые функции допускается совмещать.
В спальне взрослых можно устроить кабинет, а детскую спальню зонировать на две части — для отдыха и игровую.
Самой большой комнатой делают либо помещение для детей, чтобы обеспечить им пространство для учебы, отдыха, развлечений, либо место обитания семейной пары, где наверняка будет установлен гардероб, возможно, кабинет, место для любимых занятий.
Большой дом с тремя спальнями и кабинетом
Варианты планировки дома с тремя спальнями
Анализ проектов показывает, что расположение комнат отдыха может быть самым разнообразным. Часто используется вариант с размещением всех спален по одной стене. В этом случае имеются свои плюсы и минусы.
К преимуществам смело можно отнести удаленность от входной двери и тамбура, что особенно актуально для регионов с суровым климатом. К минусам можно отнести то, что при недостаточной звукоизоляции некоторые члены семьи будут мешать другим.
Впрочем, устраняется этот недостаток просто. При проектировании закладывается монтаж шумоизоляционного слоя.
Планировка дома 10 на 12
Когда делается планировка одноэтажного дома 10 м на 12 м с тремя спальнями либо жилья с похожими габаритами, то стоит прислушаться к еще одному совету профессионалов.
Настоятельно рекомендуется как минимум две туалетные комнаты, даже если одна из них будет совсем небольшой. Достаточно установить туда унитаз и раковину. Это действительно бывает очень нужно в отдельные периоды семейной жизни.
Отказавшись от этой идеи, можно впоследствии сильно пожалеть о таком решении.
Обзор визуализации проекта дома с тремя спальнями — в этом видео:
Как улучшить функциональность дома с тремя спальнями
Современный подход к формированию жилого пространства характерен реализацией оригинальных идей технического и эстетического плана.
Широкий выбор отделочных материалов, механизмов, элементов мебели и аксессуаров позволяет формировать практичные, комфортные пространства. Добиться заметных результатов можно как в уже готовом доме, так и в проектируемом.
Во втором варианте возможностей больше, поскольку отсутствует этап перепланировки. Все коммуникационные маршруты и конструктивные элементы выполняются по плану.
Туалетная комната в спальне
Возможны два варианта по исполнению. Если за одной стеной уже есть туалетная комната, то можно сделать второй вход туда из спальни. Небольшая перепланировка помещений не сильно ударит по семейному бюджету, но существенно повысит комфорт и удобство пользования.
Второй вариант предусматривает прокладку всех необходимых коммуникаций — водоснабжение, канализацию, вентиляцию. Более затратный способ. Но он дает полную независимость пользователям, которые могут не подстраиваться под нужды других обитателей дома.
Без монтажа эффективной системы вентиляции устанавливать ванну, душевую кабину в спальне не рекомендуется. Повышенная влажность – точно не лучшее условие для отдыха и сна.
Туалетная комната в спальне
Выход на улицу из спальни
Эта идея все чаще применяется на практике. Хорошо защищенный участок вокруг дома делает выход безопасным. Вмонтировать дополнительную дверь можно в любую спальню. Интересным выглядит это решение как в детской комнате, так и в помещении для семейной пары и пожилых людей.
Устройство дополнительного входа не требует больших вложений. Можно использовать для этой цели оконный проем, расширив его до нужного размера. Популярным вариантом становится стеклянная дверь «в пол», или, как ее часто называют, французская.
Общий план одноэтажного дома с 3 спальнями не изменится, а вот функциональность его существенно повысится.
Выход на улицу из спальни
Трансформируемая комната
Изменения назначения комнаты в большинстве случаев обеспечивается специальной мебелью и инженерными конструкциями.
Трансформировать пространство можно с помощью:
- откидных, раздвижных кроватей;
- трансформирующихся столов;
- раздвижных, откатных, мобильных перегородок;
Кроме того, в современном интерьере широко используется встроенная техника. Проекторы, музыкальные центры. Производители детского и спортивного инвентаря также предлагают богатый ассортимент продукции с изменяющимися качествами.
Детская игровая зона может в считанные минуты быть изменена либо вообще убрана. Некоторые модели тренажеров выпускаются в универсальном исполнении.
Они не занимают много места и могут храниться в ограниченном пространстве, когда не используются по прямому назначению.
Комната-трансформер Это может быть интересно! В статье по следующей ссылке читайте про скандинавские дома.
Заключение
Резюмируя информацию, можно утверждать, что современные технологии и оригинальные идеи для дома с тремя спальнями сделают жизнь его обитателей комфортной, насыщенной и полезной. Для этого нужно адаптировать общестроительные нормы к конкретной конфигурации строения, использовать все имеющиеся преимущества и нивелировать недостатки.
Прочитать позже
Отправим материал на почту
- Автор статьи
- Архитектор и блогер, по теме малоэтажная архитектура
- Юлия Калашникова
Источник: https://m-strana.ru/articles/proekty-odnoetazhnykh-domov-s-tremya-spalnyami-tselesoobraznost-optimalnye-planirovki-i-tekhnicheski/
Одноэтажный дом 10×10: планировка комнат, варианты проектов
Одноэтажный дом площадью 10×10 метров предоставляет некоторую свободу действий. Конечно, это не двухэтажный особняк, где у каждого члена семьи будет своя просторная комната, но и не дом площадью в 50 кв.м, куда вместили не только хозяйственную зону, но и две, а то и три-четыре комнаты.
Количество комнат, их размеры, предназначение гораздо проще варьировать, когда площадь дома составляет 100 квадратов.
Да и проектов с такой квадратурой намного больше. Рассмотрите наиболее оптимальные проекты для комфортного проживания большой или маленькой семьи с тем, чтобы вам проще было выбрать подходящий вариант.
Одноэтажный дом на участке занимает больше места, чем здание такой же площади, но в два этажа. Однако для семьи с детьми или с родственниками преклонного возраста, инвалидами такой вариант более предпочтителен – он безопасней, удобней.
- Да и лестница, которая бы вела на второй этаж, отнимала бы полезную площадь.
- Но есть и другие достоинства такого здания.
- Полезной площади достаточно для проживания семьи из 4 или даже 5 человек.
- Снижен уровень травматизма ввиду отсутствия лестницы.
- Облегчается уборка дома.
- Дизайн всех комнат дома можно выполнить в одном стиле.
- Дом быстрей согревается и дольше хранит тепло.
- Дом квадратной формы, количество решений велико.
- Фундамент не нуждается в дополнительном усилении, поскольку должен выдерживать лишь один этаж.
Комфортным и просторным может получиться одноэтажный дом 10×10. Планировка комнат, их расположение зависит от размера семьи. Так что в нем будет всем уютно, в том числе и гостям, которые нет-нет, да и захотят остаться на ночь.
Важно: учтите, что указанная площадь 10×10 не означает, что его жилая или общая площадь будет таковой. 10-20 кв.м заберут под себя внешние стены и межкомнатные перегородки, используемые для зонирования.
Поэтому полезного пространства, коим вы и будете оперировать, останется 80-90 м2. И этого вполне хватит – убедитесь сами.
Проект №1 с тремя спальными комнатами и гостиной
Представленный вариант дома имеет общую площадь в 76,55 кв.м, из которых 48,25 – жилая площадь. И лишь одна комната (гостиная) является проходной.
- 2 детские комнаты по 9,32 кв.м.
- Спальня 11,58 кв.м.
- Зал 18,03 кв.м.
- Кухня 7,32 кв.
м.
В оставшуюся площадь удалось вместить котельную, санузел, тамбур или предбанник и холл.
Если вам не нужно 2 детских комнаты, одно помещение можно отвести под кабинет или гостевую комнату. Если дом обогревается двухконтурным котлом и котельная не нужна, санузел можно сделать раздельным или использовать высвободившуюся площадь под гардероб, кладовую, сушилку.
Важно: если хотите научиться создавать планы интерьера, читайте нашу статью: 25 лучших программ, приложений и сервисов для дизайнера интерьера. Этот навык полезен каждому, а не только профессиональному дизайнеру.
Проект № 2 с двумя жилыми комнатами и кухней-студией
Небольшой семье не нужны дополнительные жилые комнаты. А гостей в случае надобности можно разместить в гостиной на ночь.
Заметьте, что у этого дома суммарная площадь включает и площадь внешних стен, перегородок.
- От входа вглубь дома ведет коридор (8 кв.м).
- По левую и правую руку от него располагаются двери в спальни по 16 кв.м.
- Коридор переходит в холл, в конце которого отгорожено помещение для технических и хозяйственных нужд площадью 5,4 кв.м. Площадь просторного холла – 18,6 кв.м.
- В доме имеется просторный совмещенный узел (12 кв.м) и кухня, объединенная с гостиной.
При желании кухню можно перенести в техническое помещение, а из гостиной сделать две зоны: гостевую и зону отдыха или оборудовать классный домашний офис.
Если планировку не трогать, то в отгороженном помещении можно обустроить котельную, сушилку, дополнительный санузел или чулан.
Достоинство этого проекта – каждая из комнат, будь то жилая или хозяйственная, не является проходной.
Проект № 3 на две спальни и гостиную
Комнаты должны располагаться в доме не только так, чтобы всем было просторно и комфортно. Следует учитывать и ориентированность дома по сторонам света. Так, ванная комната, кухня, кладовая, котельная вполне переживет недостаток света.
А вот спальни, детские комнаты и гостиная нуждаются в длительном и достаточном естественном освещении.
Данный проект имеет общую площадь почти в 80,96 кв.м, при этом жилая – 53,96 кв.м, и жилая зона состоит из 2-х спален и гостиной.
- Спальня 1 – 14,37 кв.м. Может быть гостевой, кабинетом или детской.
- Спальня 2 – 16,07 кв.м.
- Гостиная – 23,52 кв.м.
- Кухня-столовая – 10,91 кв.м.
- Совмещенный санузел – 6,06 кв.м.
В дом ведет тамбур, в конце которого расположена котельная или кладовка площадью 3,28 кв.м.
Площадь дома выступает за квадратуру 10×10 на 2,3 метра. Этими помещениями можно пожертвовать, если размеры участка не позволяют их оставить. А вход сделать с улицы прямо в холл, отгородив его, к примеру, гипсокартонной стеной с дверью.
Достоинство этого варианта в том, что, вместив в площадь дома 3 жилые комнаты, удалось каждую из них сделать раздельной.
Проект № 4 с террасой или верандой
В доме с площадью в 100 квадратов вполне реально распланировать не только жилую зону и кухонно-технические помещения. Можно устроить и открытую террасу, о которой мечтают все, покупающие загородный частный одноэтажный дом 10×10. Планировка комнат при этом будет практичной и комфортной.
Посмотрите сами на предложенный проект. В нем есть три спальни по 11,9; 12,2 и 12,5 кв.м и гостиная 20,2 кв.м. Помещение между комнатами – это кухня, выполняющая и роль столовой площадью 13,1 кв.м. Туалетная комната совмещенная, расположена рядом со входом в дом.
В гостиной четыре окна и раздвижная дверь. Комната получает достаточно много естественного освещения. Поэтому за ней можно сделать стеклянную веранду. И выходить на нее почти прямиком из дома. Если вам такое решение кажется не удобным, вместо одного окна поставьте дверь. А окно можно перенести на место существующих раздвижных дверей.
Такую же террасу, но меньше размером, можно сделать и перед входом в дом.
Любой из представленных вариантов можно изменить.
Например, передвинуть стену, чтобы сделать комнату или террасу больше. Снести межкомнатные перегородки, не являющиеся несущими, чтобы сделать комнаты просторней (в стиле лофт). А уж изменить назначение помещения – тут и вовсе будет не так сложно, как кажется. Ведь это частный дом, а не квартира в многоэтажке.
Одноэтажный дом 10×10: планировка комнат и ее основы
Дом 10×10 считается домом средних размеров. К тому же он однокомнатный. И, несмотря на все его преимущества, его внешние стены не раздвинешь, чтобы выделить одну комнату.
Поэтому стоит изначально решить, какие помещения в доме необходимы, а без каких можно обойтись.
- Гостиная нужна. Это не хозяйская спальня, а место сбора всей семьи. Этим помещением пренебрегать не стоит. Отводим ему наиболее просторную комнату.
- Количество спален зависит от размера семьи. Молодая семья может скоро расшириться, поэтому спален должно быть минимум 2.
- Кухня, если позволяет ее площадь, может быть одновременно и столовой. Даже на площадь в 10-13 кв.м поместятся и зона готовки, и обеденный гарнитур.
- Санузел – одно из самых необходимых технических помещений.
- Кладовка. Если есть место – отлично. В ином случае запасы хранят в хозпостройках во дворе. Но уж выделить место в 1,5-2,5 кв.м под нее уж всяко можно на кухне или в холле.
- Гардероб. Без отдельной комнаты под него можно обойтись. Поставьте шкафы-купе от пола до потолка. Это решит проблему размещения вещей. Полезные идеи и советы можно почерпнуть из нашей статьи об оформлении гардеробной комнаты маленького размера.
- Сушилка не является обязательной.
- Котельная нужна только в том случае, если дома стоит печь, установлено паровое отопление. Но большинство семей пользуется двухконтурными котлами, газовым отоплением и устанавливают теплые полы. Поэтому необходимость в этом помещении отпадает и высвобождается дополнительная квадратура. И как раз под кладовку или санузел.
- Терраса.
Можно и отказаться, но так не хочется.
Увеличиваем функциональность, не раздвигая стен
Сделать жилую зону просторней можно, внеся коррективы в планировку:
- Санузел сделать совмещенным.
- Часть комнат сделать смежно-раздельными. И за счет площади холла увеличить любую из них.
- Объединить кухню со столовой и/или гостиной.
- Использовать котельную и как кладовку, и как сушилку.
Кухня не должна быть маленькой или очень большой. В первую очередь подумайте о ее функциональности. Вдохновение можно почерпнуть из дизайн проекта интерьера кухни от Senalee Kapelevich.
Вариантов и возможностей масса. Все зависит от вашего совместного семейного решения.
Напоследок интересное видео о проектировании одноэтажного дома (100 кв. м) на узком участке
(22
Источник: https://dizainmania.com/dom-moej-mechty/odnoetazhnyj-dom-10×10-planirovka-komnat-varianty-proektov.html
Проекты одноэтажных домов с планировками и кол-вом материалов
Индивидуальные проекты одноэтажных домов с планировками и указанием количества материалов на стены, площадь кровли, объем бетона на фундамент. Это поможет приблизительно сориентироваться по стоимости строительства дома.
Данные проекты мы не продаем, так как они выполнялись для конкретных заказчиков, но можем спроектировать для вас индивидуальный проект дома или взять за основу любой из представленный проектов и изменить его по вашим пожеланиями.
Достоинства проекта:
- Не стандартный для нашего региона вид дома, выполненный в американском стиле
- Гараж на 2 автомобиля.
- Освещенная прихожая и тамбур с витражами
- Интересное помещение — столовая-зимний сад с потрясающим видом на реку и участок.

| Площадь дома без крылец и террас | 240,6 кв.м. |
| Площадь кровли | 442,2 кв.м. |
| Бетон на фундамент (свайно-ростверковый) | 38,1 куб.м. |
| Блоки на несущие стены | 136,7 куб.м. |
| Штукатурка фасадная и утеплитель | 169,0 кв.м. |
Проект дома №04. Проект одноэтажного дома в современном стиле:
Изюминка данного проекта — необычная, но очень удобная планировка. Три спальни, большая кухня-гостиная с камином и панорамными окнами, прихожая с зонами хранения и библиотекой. Помещение холла может использоваться как детская игровая или кабинет.
| Площадь дома без крылец и террас | 195,3 кв.м. |
| Площадь кровли | 349,0 кв.м. |
| Бетон на фундамент (свайно-ростверковый) | 60,73 куб.м. |
| Блоки на стены | 77,2 куб.м. |
| Кирпич на внутренние стены | 22,6 куб.м. |
| Штукатурка фасадная и утеплитель | 169,0кв.м. |
Проект дома №03. Проект одноэтажного дома с гаражом на 2 машины:
Проект одноэтажного дома для тех, кто любит большие пространства. Три спальных комнаты почти по 20 кв.м. каждая, два санузла более 5 кв.м. Выделены отдельно жилая и общественная зоны. Из гаража удобный выход в тамбур. Все помещения большие и просторные.
| Площадь дома без крылец и террас | 216,1 кв.м. |
| Площадь кровли | 395,34 кв.м. |
| Бетон на фундамент (свайно-ростверковый) | 95,48 куб.м. |
| Блоки на стены | 67,25 куб. м. |
| Кирпич на внутренние стены | 34,67 куб.м. |
| Штукатурка фасадная и утеплитель | 170,23кв.м. |
Проект дома №02. Одноэтажный дом — всё в одном:
На участке не потребуется строить дополнительные постройки, так как под одной крышей есть все необходимое: баня, гараж, котельная, терраса и жилая зона. Жилая зона: две спальные комнаты, кухня-гостиная, гардероб, два санузла. Котельная подойдет для газового котла.
| Площадь дома без крылец и террас | 140,8 кв.м. |
| Площадь кровли | 276,21 кв.м. |
| Бетон на фундамент (мелкозаглубленная лента) | 53,27 куб.м. |
| Блоки на стены | 72,2 куб.м. |
| Кирпич на внутренние стены | 47,53 куб.м. |
| Облицовочный кирпич | 243 кв.м. |
Проект дома №01. Просторный:
| Площадь дома без крылец и террас | 194,8 кв.м. |
| Площадь кровли | 360,15 кв.м. |
| Бетон на фундамент ( монолитная плита ) | 98,76 куб.м. |
| Блоки на стены | 72,2 куб.м. |
| Кирпич на внутренние стены | 47,53 куб.м. |
| Облицовочный кирпич | 243 кв.м. |
Просторный дом из кирпича с тремя спальнями. Достоинства проекта: широкий холл, наличие всех необходимых подсобных помещений: котельная, гардеробная, постирочная, кладовая под лестницей на чердак, и большое пространство для хранения на чердаке. при желании можно организовать кладовую еще на кухне. Холл освещается со стороны гостиной и также из тамбура, благодаря стеклянной перегородке между тамбуром и прихожей.
Котельная рассчитана на газовый котел: есть окно необходимой площади, выход в тамбур, объем помещения более 15 куб.м. Можно вместо постирочной и гардеробной сделать еще одну жилую комнату.
Будет продолжение. Проектов у нас много выполнено.
Одноэтажный дом — это, прежде всего комфорт. Главный плюс — отсутствие лестницы, по которой пришлось бы ходить ежедневно. Проще следить за маленькими детьми когда, вы находитесь на одном этаже. Людям с физическими ограничениями, людям в возрасте, также будет удобнее одноэтажный дом.
Специально не упоминаю про стоимость, так как вопрос спорный, и каждый конкретный случай надо считать. Если коротко:
- одноэтажный дом выйдет столько же или дешевле двухэтажного, если будем сравнивать дома площадью до 120-140 кв.м.
- одноэтажный дом, скорее всего, будет дороже, если сравнивать дома площадью от 160 кв.м. и выше, так как дороже построить фундамент и крышу, чем стены.
- если у вас средняя семья с одним или двумя детьми
- участок более 10 соток (можно и менее, если вам важнее комфорт одноэтажного дома)
- вокруг участка довольно плотная застройка и нет очень красивого вида на горы, лес, и т.д.
- участок сухой и на возвышенности
- вы хотите дом менее 200 кв.м.
- в семье есть люди с ограниченными возможностями
- планируете строить дом своими силами
Не обязательно все пункты должны выполняться.
Выбор всегда остается за вами.
Источник: http://homes66.ru/2017/11/podborka-proektov-odnoetazhnyh-domov-nasha-kopilka/
Проекты одноэтажных домов (Выбор проекта)
Вы в коллекции «Одноэтажная Россия»
Считается, что одноэтажный дом — это вариант «эконом» и строится он из соображений уменьшения затрат на строительство. Это не совсем так. Безусловно, если вам нужна небольшая уютная дача в живописном месте и у вас есть участок скромных размеров, то вы, скорее всего, выберете проект небольшого бюджетного, но при этом стильного и эстетичного дома.
623А «Яркий мир» — коттедж с высокой гостиной и просторной террасой.
Но одноэтажный дом может быть и полноценным особняком площадью 300 и более м2, сориентированным горизонтально. Помещения такого дома расположены в одном уровне, они занимают солидное пространство и предпринимать строительство стоит лишь в том случае, если вы располагаете большим земельным наделом.
Преимущества одноэтажных домов
- Для строительства подойдут любые категории грунта.
- В здании отсутствуют лестницы, это и удешевляет проект и лишает жильцов неудобств, связанных с необходимостью перемещаться между этажами.
- Для монтажа конструкций не требуется техника, которая поднимает стройматериалы на высоту, дешевле стоят услуги строителей, так как работы на втором (и выше) этажах имеют более высокий тариф.
- Низкая нагрузка на фундамент.
- Легкость в обслуживании и эксплуатации.
Схемы коммуникаций в одноэтажном доме довольно сложны из-за большого количества потребительских единиц, но зато, компактны. Грамотное и рациональное составление этих схем не только сделает жизнь владельцев комфортной, но и сэкономит им деньги.
Проекты категории
Дома в этом разделе коллекции можно условно разделить:
- по материалу несущих стен;
- по размерам;
- по комплектации;
Типы наружных стен
В качестве дополнительной комплектации можно рассматривать дома с гаражом-навесом (617А «Пиерида»), с сауной — R93, К129 также с навесом для машины или с бассейном.
МР221 — дом из клееного бруса с парной и гаражом для садовой техники.
В нашей архитектурно-планировочной студии «Альфаплан» есть возможность заказать дополнительно к проекту жилого здания, чертежи бани или другой отдельно стоящей постройки, проект погреба или выполнить разбивочный план участка. Мы рады предоставить вам услуги, которые помогут подобрать идеальный вариант для строительства, чтобы сделать первый уверенный шаг в направлении вашей мечты.
Источник: https://www.alfaplan.ru/catalog/proekty-odnoehtazhnyh-domov/
Проекты одноэтажных домов с двумя спальнями | каталог Проекты коттеджей
Классический проект дома с двумя спальнями интересен молодым или небольшим семьям. Такое жилье по цене сопоставимо с трехкомнатной квартирой, но гораздо комфортней. Рассчитано на семью из двух-четырех человек.
Преимущества дома с двумя спальнями
Современный коттедж, помимо спален, предполагает наличие просторной кухни-столовой, холла, подсобного помещения и одного-двух санузлов. В доме выделены места для отдыха и уединения членов семьи, предусмотрена зона для общения и приема гостей.
Универсальный проект одноэтажного дома с двумя спальнями дорабатывается и приспосабливается под конкретные нужды. Среди преимуществ в пользу строительства такого коттеджа стоит отметить:
- безопасность для маленьких детей;
- удобство передвижения в пределах одного этажа, в том числе для пожилых и больных людей; • экономия на строительных материалах, монтаже водопровода и канализации, сроках возведения;
- удешевление фундамента в сравнении с многоэтажной конструкции;
- бюджетные расходы на содержание и отопление;
- простота и скорость уборки;
Еще один аргумент в пользу небольшого дома — объект легко продать по адекватной цене.
Как выбрать проект дома с двумя спальнями
Чтобы найти подходящий проект дома с двумя спальнями для семьи, нужно четко представлять требования и просмотреть не менее двух десятков готовых вариантов. На этапе выбора стоит пообщаться с экспертами и обладателями таких домов вживую или с участниками тематических форумов. В сети представлены видеоролики, где люди делятся впечатлениями и ошибками.
Критерии выбора:
- репутация и отзывы о компании, которая предлагает типовые проекты;
- удобство планировки;
- архитектурный стиль;
- конфигурация здания;
- число этажей (обратите внимание на одноэтажные дома с мансардой)
- используемые строительные материалы, в том числе для облицовки и крыши;
- технические характеристики — площадь, тип фундамента и отопления, толщину стен;
- наличие террасы, гаража, сауны (с учетом последних налоговых нововведений будет лучше, если эти объекты возводятся под одной крышей)
- полнота представленных чертежей и схем;
Учитываете климатическую зону и особенности грунта на участке под строительство, ориентацию будущего дома по сторонам света.
Так, в условиях средней полосы лучше, если на север выходит глухая стена или окна кухни, подсобного помещения, санузлов Для инсоляции по строительным нормам спальни и другие жилые помещения должны «смотреть» на юг или юго-восток.
Чтобы не ошибиться с выбором, стоит внимательно рассмотреть проект дома с двумя спальнями в формате 3D.
Источник: https://catalog-plans.ru/catalog/odnoetazhnye-s-2-spalniami
10 самых популярных проектов одноэтажных домов!
ASTER 133 м2 ~ 42 496 $ Шатровая кровля, камень и дерево на фасаде — это очень красиво. Спальня хозяев спрятана в глубине дома и имеет окно с видом во двор. Две детские комнаты, гостиная совмещенная со столовой, кухня и большой холл. Перейти к проекту
ATUT 94 м2 ~ 30 080 $ Небольшой аккуратны домик с красивыми фасадами. Прямоугольная форма и простая кровля — делают его недорогим в строительстве. В доме может проживать 3-4 человека. Три спальни и гостиная. Предусмотрена терраса. Перейти к проекту
DEDAL 120 м2 ~ 38 400 $ Очень удобная планировка. Три спальни спрятаны от гостей, есть отдельная ванная комната и гостевой санузел. Из топочной можно выйти во двор. Гостиная совмещена со столовой зоной и рабочей зоной кухни. Перейти к проекту
DECYMA 5 174 м2 ~55 680 $ Достаточно большой и просторный дом с гаражом для двух автомобилей. Четыре спальни, две ванные, постирочная и большая кухня с гостиной — это набор помещений для семьи из 4-5 человек. Перейти к проекту
GRAFIT 110 м2 ~38 325 $ Простой в строительстве дом с двухскатной крышей. Три жилые комнаты и просторная гостиная. В отделке используются элементы дерева, что делает фасад дома «тёплым». Перейти к проекту
GROT 92 м2 ~32 340 $
Один из самых проверенных проектов. Неоднократно строился и полностью исключает любые неточности в проекте.
В том доме всего две спальни и кухня с гостиной. Дом подойдет для молодой семьи или пожилой пары. Есть варианты проект с гаражом и без него. Перейти к проекту
LARA 96 м2 ~30 880 $ Проект дома напоминает любимое многими шале. В доме предусмотрено три спальни и гостиная комната с высоким потолком. В доме так же предусмотрен небольшой зимний сад. Здание смотрится очень эффектно из за больших окон и деревянных пергол. Перейти к проекту
Z 10 135 м2 ~ 43 200 $ Проект одноэтажного дома с шатровой кровлей. Три спальни и гостиная с выходом в зону барбекю. Топочная и два санузла. Проект исполняется практически из любых строительных материалов. Перейти к проекту
KIWI 2 122 м2 ~ 39 168 $
Проект дома с гаражом для двух машин. Дом разделен на две зоны: спальная и зона, в которой можно принимать гостей. Три жилые комнаты и гостиная совмещенная со столовой и кухней. Входная группа и гараж накрыты общей кровлей. Есть небольшая терраса. Перейти к проекту
NEPTUN 4 126 м2 ~40 384 $ Проект с просторной гостиной, и тремя жилыми комнатами. В одной комнате есть своя гардеробная. Из гостиной есть выход на частично крытую террасу. Необычное расположение кухни — из не можно попасть в топочную. В доме есть гараж на один автомобиль. Перейти к проекту
Z 7 79 м2 ~25 546 $
Самый просто в строительстве дом. Минимальное количество строительных материалов делает его одним их самых недорогих с в строительстве. Однако у нас тут полный надо помещений: три спальни, гостиная с кухней, топочная и ванная комната. Перейти к проекту
Источник: https://www.territoria.by/novosti/10-populyarnyix-proektov
Проекты домов дома с 3 спальнями, 1-этажные дома готовые и типовые. Каталог содержит планировки, планы и чертежи
Преимущества строительства одноэтажных домов с тремя спальнями по проекту:
9 причин, по которым необходимо использовать проекты одноэтажных домов с 3мя спальнями при строительстве
Каждый застройщик ищет варианты, каким образом и на чем можно сэкономить во время строительства, как жилых коттеджей, так и помещений сезонного предназначения.
И не задумываясь над тем, что именно проект облегчает строительный процесс и позволяет избежать лишних расходов, застройщики начинают строить частные одноэтажные дома с тремя спальнями без проекта.
В данной статье, мы рассмотрим, почему необходимо купить проекты одноэтажных домов с тремя спальнями. Рассмотрим основные преимущества проектов, также наличие в них схем, эскизов, фото и видео:
Проекты, на основании которых строятся одноэтажные дома с тремя спальнями (фото которых также зачастую прилагаются к ним) дают возможность застройщику представить новый частный дом после завершения строительства.
Проект содержит большой объем информации, которую просто невозможно хранить в голове (планировка, конструктивные расчеты, схемы освещения и коммуникаций, дизайн одноэтажных домов с 3мя спальнями и многое другое).
Однако следует понимать, что это условие выполнимо лишь тогда, когда жилые одноэтажные дома с тремя спальнями возводятся профессиональными строителями с большим опытом.
Авторские оригинальные проекты и типовые одноэтажные дома с 3мя спальнями включают в себя параметры, которые рассчитываются исключительно с соблюдением всех норм строительства и госстандартов.
На основании этого можно быть уверенными в качестве дома, что его стены и фундамент не будет трескаться, перекрытия не прогнуться и будет комфортный климат для проживания.
Одноэтажные коттеджи с тремя спальнями, которые возводились по проекту, как правило, являются целостным организмом, с хорошо продуманной планировкой и учетом большого количества особенностей. Например, планы одноэтажных домов с 3мя спальнями, в которых учтены особенности расположения дома к сторонам света, а также толщина, «пирог», конструкция стен; расположение и размер окон являются более экономичными в плане использования электроэнергии и теплоснабжения.
Строительство по индивидуальным проектам является достаточно популярным, поскольку позволяет застройщикам включать в проект удобную и функциональную планировку.
Планировка одноэтажных домов с 3мя спальнями серьезный вопрос, решать который нужно с ответственностью и не спеша.
Это объясняется тем, что каталог одноэтажных домов с 3мя спальнями предлагает много вариантов планировки, и ошибиться на данном этапе будет дорого стоить в будущем из-за переделки недочетов.
Проект позволяет строителям четко увидеть конечную цель, что позволяет предотвратить ошибки во время строительства и необходимость проведения переделок в будущем, а следовательно избежать излишних расходов.
Строительные компании могут быть привлечены и приступить к выполнению строительных работ исключительно при наличии проекта.
Какие-либо претензии к строителям, касающиеся качества работ по строительству дома, могут быть предъявлены исключительно, опираясь на информацию, которая есть в проекте. Любые устные пожелания по поводу высоты потолков, толщины стен, размера окон не обязывают строителей к их выполнению.
Без наличия проекта невозможно составление сметы, которая выступает надежным инструментом контроля расходов строительных материалов.
На основании проекта может быть просчитана стоимость одноэтажных домов с 3мя спальнями и составлена смета, содержащая информацию о видах, цене и количестве материалов. А это позволяет избежать закупки лишних материалов.
Когда строительство дома идет по плану в соответствии с проектом, можно быть спокойным. Это исключает необходимость постоянного присутствия на стройке.
Источник: http://Z500proekty.ru/doma/tag-3-spalni/tag-odnoetazhnie.html
особенности планировки, создание плана и примеры
В статье я рассмотрю особенности планировки одноэтажного дома с тремя спальнями. Расскажу, главные принципы планировки. Рассмотрю, какая площадь потребуется, как правильно спроектировать одноэтажный дом и представлю примеры планов и проектов.
Особенности планировки одноэтажного дома с тремя спальнями
Создание проекта позволит сэкономить на строительстве
Первой особенностью планировки одно-этажного дома с тремя спальнями является то, что при строительстве не придется устанавливать мощный фундамент.
Поскольку лестницы в одноэтажном доме не будет, в этом отпадает необходимость.
Также важно планировку детально расписать на чертежах. Это позволит заранее рассчитать необходимую сумму на стройматериалы, их количество и организовать рабочий процесс.
Одноэтажный дом с тремя спальнями подразумевает создание планировки с шестью комнатами:
- Три спальни;
- Зал;
- Кухня;
- Санузел (совмещенный).
Особенности планировки:
- Площадь дома должна зависит от количества проживающих человек;
- Котельную проектируют с учетом размеров и технологических особенностей отопительной системы;
- Можно соединить кухню и гостиную в одну комнату;
- Если площадь дома меньше 100 кв.м., то может потребоваться возведение мансарды или цокольного этажа.
Создание проекта
При проживании в холодном климате необходимо сделать в доме тамбур. Его наличие не позволит холодному воздуху попадать в дом. Если тамбур не вписывается в общую концепцию дома, можно сделать его как пристройку. Решение не самое красивое с точки зрения дизайна, но довольно практичное.
Кухню, ванную и туалет лучше разместить рядом. Такое решение позволит сэкономить на стройматериалах для канализации и проведение воды. Также, желательно заранее прорисовать на проекте крупногабаритную мебель. Если отразить мебель на рисунке, можно подстроить план дома так, чтобы она органично вписывалась в дизайн.
При разработке проекта необходимо учитывать климатические особенности регионаКак правило, адаптация уже готового проекта под климат занимает несколько дней. Но такая мера позволяет сэкономить время и денежные средства на строительство.
Также важно учитывать расположение участка (низина или возвышенность), глубины залегания грунтовых вод.
При их близком залегании стоит подумать о хорошем дренаже.
Жилой дом не должен располагаться ближе 3 м от границы участка и 5 м от проезжей части. Если рядом находится водоем, расстояние между ним и домом должно составлять не менее 50 м.
При разработке плана одноэтажного дома важно учитывать климатические условиях региона, где будет строиться дом.
Проект с террасой
В первую очередь, при проектировке домов с террасой важно подумать об освещении и разместить ее так, чтобы окна выходили на южную или восточную сторону.
Наиболее универсальный вариант – когда выход на террасу сделан из гостиной. В этой же стороне расположено окно кухни. Можно сделать широкий подоконник возле этого окна и тогда будет удобно передавать блюда на террасу через него. Все спальные пространства сосредоточены в противоположенной стороне от гостиной, что очень удобно. Так шум из кухни и зала не будет слышен в комнатах для сна.
Такой план дома позволяет увеличить размеры спальни за счет сокращения площади котельной. Кроме этого, в коридоре можно установить общую гардеробную, что также позволить расширить спальни.
Идеальным вариантом будет разместить выход на террасу из гостиной или столовойС коридором
Проект дома с тремя спальными помещениями подразумевает, что в доме будут жить дети и многие родители предпочитают, чтобы детская была вдали от родительской спальни. Что не лишено смысла.
Если разделить дома на 3 части, возможно создать планировку без коридора:
Таким образом получается, что спальные пространства разделяет гостиная и они находятся на разных сторонах дома. Минус такого проекта – спальная комната родителей находится рядом с входной дверью и санузлом, что может быть не очень удобно.
Второй вариант подобного проекта – дом с коридором. Если отдать часть помещения под коридор, то родительская спальная будет более изолированная.
Самая удобная планировка такого дома — когда вход в каждую из спален осуществляется из общего коридораСанузел можно перенести ближе к детским и расположить его между этими двумя спальнями.
Но можно сделать гостиную чуть меньше. В коридоре можно установить гардеробную для детей, что также позволит увеличить площадь спален.
Минус такого проекта – кухня и санузел расположены далеко друг от друга, а это значит, что канализационная и водопроводная система будут сложнее организованы. В свою очередь, это лишние затраты.
Варианты и примеры планов
Пример проекта для семьи с двумя разнополыми детьмиПроект одноэтажного дома с тремя спальнями и гаражом на одну машинуПроект с тремя спальнями и выходом на террасу из гостинойДома с тремя спальнями подходят для многодетных семей. Проектировать одноэтажный дом такого типа довольно сложно. Доверить проект лучше проверенному специалисту, который подробно распишет планировку и при необходимости удобно разметит на проекте гараж.
Планировка 1-этажного дома с тремя спальнями — выбираем проект по вкусу
Планировка 1-этажного дома с тремя спальнями — выбираем проект по вкусу
Проект одноэтажного дома с тремя спальнями и террасой
При планировании террасы, обращать внимание надо сразу на несколько моментов. Первый — для оптимальной освещенности лучше, если терраса выходит на юг или восток. Второе — из какого помещения будет выход. Чаще всего делают выход из гостиной. Это самый логичный случай. Второй случай — из коридора, который, как правило, примыкает к гостиной или кухне (гораздо хуже, но возможно). Обратите внимание, что очень удобно, если рядом с входом на террасу находится кухня — заносить/выносить блюда, напитки и т.п. Ведь терраса часто используется именно для посиделок на открытом воздухе.
Эти два момента уже частично определяют планировку вашего дома — гостиная должна иметь выход на южную или восточную сторону. Значит ее положение определено. К гостиной должна примыкать кухня, а еще желательно все помещения, подключаемые к техническим коммуникациям «собирать» в одной зоне … То есть, вы практически решили, где находятся гостиная, кухня, технические помещения.
Осталось расположить спальни и организовать удобный проход.
С террасы должен открываться интересный вид
Но это еще не все, что надо учесть при планировании террасы. Есть третий момент — ее размер. Тут подход индивидуальный — кому-то требуется много места, кому-то достаточно поменьше. Интересный вариант — Г-образная, которая охватывает южную и восточную стены строения. Если ее остеклить, Можно превратить в летний сад… Если вам это интересно.
И четвертый момент, без которого не обойтись. Терраса интенсивно используется и является любимым местом отдыха, если с нее открывается вид на сад, красиво оформленный задний двор, на речку и т.п. Если же взгляд упирается в забор соседа, никому это не интересно, терраса не используется, постепенно превращается в «техническое помещение» — поставить газонокосилку, сушилку, и т.д. Это определяет еще и положение дома на участке. То есть, большую часть задач по планировке дома вы решили.
Вариант 1: с террасой вдоль всей короткой стены
Давайте рассмотрим несколько проектов одноэтажных домов с тремя спальнями и террасами. Выход на террасу из гостиной. На нее же выходит кухонное окно. Все технические помещения собраны в одном месте и расположены возле кухни. Спальни находятся в противоположном конце дома, что , в общем-то, удобно — можно принимать гостей или смотреть телевизор в гостиной и не мешать тем, кто решил отдохнуть.
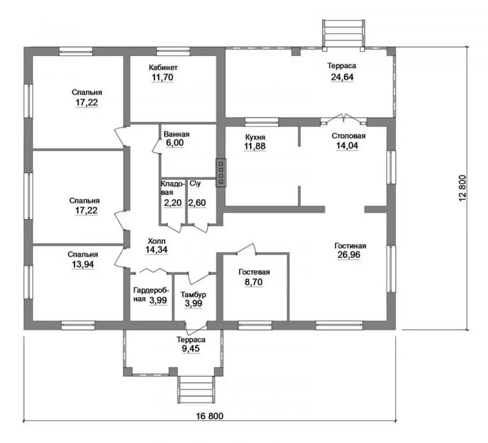
Проект одноэтажного дома с 3 спальнями и террасой
Несущая стена в этом проекте одна — вдоль длинной стороны. Остальные стены — перегородки. Кухня-гостиная едина, но можно установить перегородку и разделить помещения. В этом случае придется выделить часть гостиной, но, при данной площади — почти 17 метров — это не очень критично. Спальни в этом проекте имеют разные размеры: 9, 11, 13 метров. Удобно это или нет — решать вам. При желании, размеры спален можно увеличить за счет уменьшения площади котельной (при 3-х метровых потолках достаточно площади в 5 квадратов, так что ресурс есть.
Самую маленькую спальню можно увеличить, если перенести шкаф на другую стену, сдвинув перегородку, отгораживающую гостиную. Кстати, этот проект одноэтажного дома с тремя спальнями имеет еще один плюс — гардеробную при входе. Это действительно удобно.
Вариант 2: с короткой террасой вдоль длиной стороны дома
Рассмотрим еще один вариант планировки одноэтажного дома с тремя спальнями и террасой. Он отличается положением «влажного» блока — кухни/ванной/котельной/туалета. Они перенесены на противоположную сторону. Площади спальных комнат «выровнены» за счет уменьшения площади кухни. Обратите внимание, что тамбур сделан выносной. Это тоже внесло свой вклад в то, что при относительно небольших размерах дома — 10*14 метров (площадь 140 квадратных метров) — размеры всех комнат солидные, ширина коридора — 1,7 метра, что тоже неплохо.
Проект одноэтажного дома с тремя спальнями и террасой
Терраса имеет выход из гостиной, занимает только часть длинной стены. Если этот вариант обыграть, получится очень неплохо. Например, рядом можно поставить пруд, установить фонтан, разбить красивую клумбу.
С местом под автонавес или гараж
Если рядом с домом надо разместить навес для машины или гараж, можно поенять планировку так чтобы вход в дом был ближе к месту стоянки. Тогда есть возможность объединить навес стоянки и крыльца. Получится может очень даже интересно.
При планировании навеса лучше найти место под две машины. Даже если машина у вас одна, к вам будут приезжать гости и намного удобнее, если ее можно поставить под крышу. Расходы на обустройство не слишком отличаются, а всегда надо смотреть на перспективу. Может и у вас появится вторая машина.
Чем хорош еще навес для машины? Под ним можно оборудовать место для хранения всякого инвентаря: автомобильного, садового. Там же можно отгородить место под дровник или поленницу — чтобы иметь возле дома запас сухих дров. Вообще, использовать эту зону можно по-разному. И оптимальные размеры ее — 8*9 метров или около того.
Это, если площадь участка позволяет. Если нет, можно исходить из минимальных габаритов — на 2 метра шире и на 1,5 длиннее вашего авто.
Представленный выше проект одноэтажного дома с тремя спальнями имеет площадь 100 квадратных метров, выполнен в виде прямоугольника со сторонами 8,8*12 метров. Расположение спален все такое-же — одним блоком, все технические помещения также сведены в одном месте. При такой планировке коридор получается совсем небольшим, что многих обрадует, но это будет «проходная» зона, в которой ничего не поставишь.
Если надо спальню родителей разместить отдельно
При выборе планировки многие считают, что спальню родителей надо располагать на некотором расстоянии от детских. В этом случае подход к планировке меняется — оптимальна вытянутая прямоугольная форма дома. Длинную сторону делят на три части две несущие стены (в приведенных выше проектах несущая стена одна, идет вдоль длиной стороны дома).
Такой, дом с Г-образной планировкой по стоимости выходит более дорогим, Чем прямоугольный или квадратный
Вариант 1: без коридора
Одна треть делится на две спальни для детей, среднюю занимает кухня/гостиная. Еще одна треть делится входной группой. С одной стороны от входа расположена спальня для родителей, с другой — ванная и входной санузел. Насколько удачно такое решение? Плюс тут видится такой — большая кухня/гостиная. Но она — полностью проходная. То есть, уединиться в ней точно не получится. но, Возможно, Вам нравится такая идея, хотя, чтобы оценить удобство/неудобство стоит пожить в таком доме. В результате это далеко не всем нравится, хотя на стадии идеи казалось заманчивым.
Расположение комнат в одноэтажном доме с тремя спальнями — комната родителей расположена отдельно
Обратите внимание, что этот проект одноэтажного дома с тремя спальнями не имеет котельной. Если она необходима, выделить ее можно за счет уменьшения площади кухни/гостиной. Но тогда надо будет продумывать планировку, как организовать вход в нее.
Возможный, но не очень удобный вариант — из кухни, если она будет расположена возле ванной.
Вариант 2: с коридором
Подобную планировку можно реализовать в квадратном доме (на рисунке ниже). Минимально возможные размеры — 12*12 метров. По площади это чуть больше 140 квадратов. Тогда габариты всех помещения близки к оптимальным и гостиная при этом будет выделена. При возможности/желании можно сделать и в прямоугольном доме, просто квадрат, при равном периметре стен имеет выигрыш по площади. Надо сказать, что выигрыш совсем небольшой, так что не стоит на этом особо заморачиватсья. Лучше исходить из удобства, ведь проект одноэтажного дома с тремя спальнями выбираете для собственной жизни. Квадратный будет дом или прямоугольный — не столь важно. Разница в затратах на строительство минимальна.
Проект квадратного одноэтажного дома с тремя спальнями
В данном варианте планировки спальня родителей вообще обособлена. Достоинство приведенного варианта — в детских есть место под гардеробные. Есть тут и недостаток — «мокрые» помещения находятся на противоположных краях дома. Устройство инженерных систем будет сложнее (кроме канализации и водопровода придется думать еще и об отдельной вентиляции).
Не всем нравится идея объединения кухни и гостиной. В данном случае можно легко проблему решить, установив перегородку. Вход в кухню может быть как из коридора, так и из гостиной.
Но, если не вносить других изменений, вход в гостиную только через кухню, что неудобно. Решить проблему можно сделав некоторые трансформации. Первая — «утопленная» входная зона становится «нормальной», в площади стен, разделяющая коридор перегородка убирается. Образуется большая входная зона, но без теплого тамбура. Зато получаем дополнительное большое по площади помещение, которое можно неплохо оборудовать. Правда, это уже другой проект одноэтажного дома с тремя спальнями.
Из этой зоны можно сделать вход в гостиную. Он получается рядом со входом, что вполне логично.
Правда, функциональной остается только часть помещения, но «ущерб» можно минимизировать, приблизив двери.
Один из вариантов
Можно пойти еще дальше — убрать перегородку, отделяющую гостиную от коридора. Стена тут несущая так что потребуется установка колон. Но планировка дома будет в современном стиле — от входа единое пространство, выполняющее роль гостиной и общей комнаты. Для многих это кажется удобным.
Ещё варианты
Имея определенный набор помещений и требования по их расположению, слишком много вариантов не получишь. Приведенные ниже планировки отличаются в некоторых деталях. Может, один из них вам и подойдет.
Одноэтажный дом с тремя спальнями, эркером и террасой
Проект одноэтажного дома с тремя спальнями и террасой (90 кв. м.)
Площадь 130 кв. м, есть кладовка со входом из кухни
Если нужны раздельная кухня и гостиная. Практичное расположение с небольшим коридором
Одноэтажный дом площадью 160 кв. м, с тремя спальнями и кабинетом, котельной и небольшой угловой верандой
Планировка 1-этажного дома с тремя спальнями — выбираем проект по вкусу
Собираясь строить дом, можно заказать его проектирование специалисту, а можно попытаться переделать один из имеющихся вариантов под свои требования. В любом случае, надо четко представлять чего вы хотите. Очень желательно, чтобы ваши желания были хорошо продуманными. Не все, что кажется привлекательным как идея, удобно в эксплуатации. И такие «мелочи» надо знать. Часть информации разберем, пытаясь найти подходящий проект одноэтажного дома с тремя спальнями. Почему так? Потому что это наиболее распространенный вариант, который подходит для семей из 4 человек. Именно таких большинство.
Общие принципы планировки
Когда вы ищите готовые проекты одноэтажных домов с тремя спальнями или пытаетесь создать на основе найденного свой, важно помнить несколько моментов.
- Для условий климата с холодными зимами наличие тамбура крайне желательно.
В этом случае холодный воздух при каждом открывании дверей не будет попадать в жилые помещения. Если тамбур совсем уж не вписывается в пределах стен, его можно вынести и сделать в виде пристройки. Не самое изящное решение, но имеет право на существование. - Все помещения, где требуется подведение воды/канализации (кухня, ванна, туалет, котельная) располагать лучше рядом. Так инженерные системы будут проще, меньше потребуется материалов, получится значительно дешевле.
При планировании дома надо придерживаться определенных правил
Это те принципы, которых желательно придерживаться. Но и это не догма. Все можно решить (кроме требований к котельным). Решения, действительно существуют разные, под разные запросы и вкусы. Требуется только желание и определенная сумма.
Если все три спальни разместить рядом
Многие проекты одноэтажных домов с тремя спальнями спланированы таким образом, что все спальни находятся в одной стороне дома. С одной стороны это удобно. Относительно шумные помещения — гостиная и кухня оказываются в противоположной стороне. С другой стороны, не всем нравится такое расположение — опасаются что дети могут оказаться свидетелями ненужных сцен.
Пример планировки одноэтажного дома с тремя спальнями на 110 квадратных метров
В приведенном выше проекте именно так планировка и сделана: все три спальни находятся в правой стороне дома и имеют примерно одинаковую площадь. Из положительных моментов — все спальни от гостиной далеко. При таком расположении комнат можно в гостиной спокойно смотреть телевизор, принимать гостей, не боясь помешать отдыху.
Из недостатков — туалет и ванная находятся далеко от кухни и котельной. Не самый удобный вариант для прокладки коммуникаций. Из других особенностей — длинный коридор со множеством дверей. Эту площадь никак не используешь, так как свободные простенки очень маленькие.
Проект одноэтажного дома с тремя спальнями и террасой
При планировании террасы, обращать внимание надо сразу на несколько моментов.
Первый — для оптимальной освещенности лучше, если терраса выходит на юг или восток. Второе — из какого помещения будет выход. Чаще всего делают выход на террасу из гостиной. Это самый логичный случай. Второй вариант — выход из коридора, который, как правило, примыкает к гостиной или кухне (гораздо хуже, но возможно). Обратите внимание, что очень удобно, если рядом с входом на террасу находится кухня — заносить/выносить блюда, напитки и т.п. Ведь терраса часто используется именно для посиделок на открытом воздухе.
Эти два момента уже частично определяют планировку вашего дома — гостиная должна иметь выход на южную или восточную сторону. Значит ее положение определено. К гостиной должна примыкать кухня, а еще желательно все помещения, подключаемые к техническим коммуникациям «собирать» в одной зоне … То есть, вы практически решили, где находятся гостиная, кухня, технические помещения. Осталось расположить спальни и организовать удобный проход.
С террасы должен открываться интересный вид
Но это еще не все, что надо учесть при планировании террасы. Есть третий момент — ее размер. Тут подход индивидуальный — кому-то требуется много места, кому-то достаточно поменьше. Интересный вариант — Г-образная терасса, которая охватывает южную и восточную стены строения. Если ее остеклить, можно превратить в летний сад… Если вам это интересно.
И четвертый момент, на который тоже стоит обратить внимание при разработке планировки дома. Терраса интенсивно используется и является любимым местом отдыха, если с нее открывается вид на сад, красиво оформленный задний двор, на речку и т.п. Если же взгляд упирается в забор соседа, никому это не интересно. При таком положении терраса не используется, постепенно превращается в «техническое помещение» — поставить газонокосилку, сушилку, и т.д. Это определяет еще и положение дома на участке. То есть, большую часть задач по планировке дома вы решили.
Вариант 1: с террасой вдоль всей короткой стены
Давайте рассмотрим несколько проектов одноэтажных домов с тремя спальнями и террасами.
В представленном варианте выход на террасу сделан из гостиной. Сюда же выходит кухонное окно. Если сделать широкий подоконник, открывающееся полностью окно, можно передавать блюда через окно.
Все технические помещения собраны в одном месте и расположены возле кухни. Спальни находятся в противоположном конце дома, что, в общем-то, удобно — можно принимать гостей или смотреть телевизор в гостиной и не мешать тем, кто решил отдохнуть.
Проект одноэтажного дома с 3 спальнями и террасой
Дополнительная несущая стена в этом проекте одна — почти посередине вдоль длинной стороны дома. Кухня-гостиная едина, но можно установить перегородку и разделить помещения. В этом случае придется выделить часть гостиной, но, при данной площади — почти 17 метров — это не очень критично.
Спальни, в этом проекте, имеют разные размеры: 9, 11, 13 метров. Удобно это или нет — решать вам. При желании, размеры спален можно увеличить за счет уменьшения площади котельной (при 3-х метровых потолках достаточно площади в 5 квадратов, так что ресурс есть). Самую маленькую спальню можно увеличить, если перенести шкаф на другую стену, сдвинув перегородку, отгораживающую гостиную. Кстати, этот проект одноэтажного дома с тремя спальнями имеет еще один плюс — гардеробную при входе. Это действительно удобно.
Вариант 2: с короткой террасой вдоль длиной стороны дома
Рассмотрим еще один вариант планировки одноэтажного дома с тремя спальнями и террасой. Он отличается положением «влажного» блока — кухни/ванной/котельной/туалета. Они перенесены на противоположную сторону. Площади спальных комнат «выровнены» за счет уменьшения площади кухни. Обратите внимание: тамбур сделан выносной. Это тоже внесло свой вклад в то, что при относительно небольших размерах дома — 10*14 метров (площадь 140 квадратных метров) — размеры всех комнат солидные, ширина коридора — 1,7 метра, что тоже неплохо.
Проект одноэтажного дома с тремя спальнями и террасой
Терраса имеет выход из гостиной, занимает только часть длинной стены.
Если этот вариант обыграть, получится очень неплохо. Например, рядом можно поставить пруд, установить фонтан, разбить красивую клумбу.
С местом под автонавес или гараж
Если рядом с домом надо разместить навес для машины или гараж, можно изменить планировку так чтобы вход в дом был ближе к месту стоянки. Тогда есть возможность объединить навес стоянки и крыльца. Получится может очень даже интересно.
При планировании навеса лучше найти место под две машины. Даже если машина у вас одна, к вам будут приезжать гости и намного удобнее, если ее можно поставить под крышу. Расходы на обустройство не слишком отличаются, а всегда надо смотреть на перспективу. Может и у вас появится вторая машина.
Проект 1 этажного дома стремя спальнями и навесом для машины
Чем хорош еще навес для машины? Под ним можно оборудовать место для хранения всякого инвентаря: автомобильного, садового. Там же можно отгородить место под дровник или поленницу — чтобы иметь возле дома запас сухих дров. Вообще, использовать эту зону можно по-разному. И оптимальные размеры ее — 8*9 метров или около того. Это, если площадь участка позволяет. Если нет, можно исходить из минимальных габаритов — на 2 метра шире и на 1,5 длиннее вашего авто.
Представленный выше проект одноэтажного дома с тремя спальнями имеет площадь 100 квадратных метров, выполнен в виде прямоугольника со сторонами 8,8*12 метров. Расположение спален все такое-же — одним блоком, все технические помещения также сведены в одном месте. При такой планировке коридор получается совсем небольшим, что многих обрадует, но это будет «проходная» зона, в которой ничего не поставишь.
Если надо спальню родителей разместить отдельно
При выборе планировки многие считают, что спальню родителей надо располагать на некотором расстоянии от детских.
В этом случае подход к планировке меняется — оптимальна вытянутая прямоугольная форма дома. Длинную сторону делят на три части две несущие стены.
Такой, дом с Г-образной планировкой по стоимости выходит более дорогим, чем прямоугольный или квадратный
Вариант 1: без коридора
Если разделить дом на три части, есть возможность разработать планировку дома с тремя спальнями без коридора. Одна треть дома делится на две спальни для детей, среднюю часть занимает совмещенная кухня/гостиная, последняя треть делится между входной группой/санузлом и спальней родителей.
Там где расположена спальня для родителей, из кухни/гостиной организован вход в санузел. Насколько удачно такое решение? Плюс тут видится такой — большая кухня/гостиная. Но она — полностью проходная. То есть, уединиться в ней точно не получится. Возможно, вам нравится такая идея. Хотя, чтобы оценить удобство/неудобство, стоит пожить в таком доме. Обычно это далеко не всем нравится, хотя на стадии «идеи» все казалось заманчивым.
Расположение комнат в одноэтажном доме с тремя спальнями — комната родителей расположена отдельно
Обратите внимание, что этот проект одноэтажного дома с тремя спальнями не имеет котельной. Если она необходима, выделить ее можно за счет уменьшения площади кухни/гостиной. Но тогда надо будет продумывать планировку, как организовать вход в нее. Возможный, но не очень удобный вариант — из кухни, если она будет расположена возле ванной. Второй — с улицы. Но тогда уж, можно сделать пристройку к дому. Хотя, это определяется размерами дома.
Вариант 2: с коридором
Планировку с двумя детскими и вынесенной подальше спальней родителей можно реализовать в квадратном доме (на рисунке ниже). Минимально возможные размеры — 12*12 метров. По площади это чуть больше 140 квадратов. В этом случае габариты всех помещения близки к оптимальным (квадратные, имеют площадь более 10 квадратных метров). Гостиная совмещена с кухней но не является проходной.
При возможности/желании можно сделать и в прямоугольном доме, просто квадрат более предпочтителен, так как стоимость квадратного метра жилья получается немного ниже. Надо сказать, что выигрыш совсем небольшой, так что не стоит на этом особо заморачиватсья. Лучше исходить из удобства, ведь проект одноэтажного дома с тремя спальнями выбираете для собственной жизни.
Проект квадратного одноэтажного дома с тремя спальнями
В данном варианте планировки спальня родителей вообще обособлена. Достоинство приведенного варианта — в детских есть место под гардеробные. Есть тут и недостаток — «мокрые» помещения находятся на противоположных краях дома. Устройство инженерных систем будет сложнее (кроме канализации и водопровода придется думать еще и об отдельной вентиляции).
Не всем нравится идея объединения кухни и гостиной. В данном случае можно легко проблему решить, установив перегородку. Вход в кухню может быть как из коридора, так и из гостиной.
Но, если не вносить других изменений, вход в гостиную только через кухню, что неудобно. Решить проблему можно сделав некоторые трансформации. Первая — «утопленная» входная зона становится «нормальной», в площади стен, разделяющая коридор перегородка убирается. Образуется большая входная зона, но без теплого тамбура. Зато получаем дополнительное большое по площади помещение, которое можно неплохо оборудовать. Правда, это уже другой проект одноэтажного дома с тремя спальнями (смотрите ниже).
Из этой зоны можно сделать вход в гостиную. Он получается рядом со входом, что вполне логично. Правда, функциональной остается только часть помещения, но «ущерб» можно минимизировать, приблизив двери.
Один из вариантов
Можно пойти еще дальше — убрать перегородку, отделяющую гостиную от коридора. Стена тут несущая так что потребуется установка колон. Но планировка дома будет в современном стиле — от входа единое пространство, выполняющее роль гостиной и общей комнаты. Для многих это кажется удобным.
Ещё варианты
Имея определенный набор помещений и требования по их расположению, слишком много вариантов не получишь. Приведенные ниже планировки отличаются в некоторых деталях. Может, один из них вам и подойдет.
Одноэтажный дом с тремя спальнями, эркером и террасой
Проект одноэтажного дома с тремя спальнями и террасой (90 кв. м.)
Площадь 130 кв. м, есть кладовка со входом из кухни
Если нужны раздельная кухня и гостиная. Практичное расположение с небольшим коридором
Одноэтажный дом площадью 160 кв. м, с тремя спальнями и кабинетом, котельной и небольшой угловой верандой
Проекты одноэтажных домов с тремя спальнями
Найдено проектов: 0
Найдено проектов: 0
Основная причина популярности малоэтажного строительства – обеспечение максимально комфортных условий проживания. Это стало возможным благодаря использованию автономных инженерных сетей и внедрению современных материалов и технологий. Одним из востребованных вариантов строительства считаются проекты одноэтажных домов с тремя спальнями.
Особенности проектов одноэтажных домов с тремя спальнями
Одноэтажные здания обладают несколькими преимуществами, которые обусловили широкое распространение таких проектов в частном домостроении:
- Низкая нагрузка на фундамент. Она позволяет возведение постройки в условиях слабонесущих грунтов;
- Отсутствие в проекте лестниц и проходов коммуникаций на более высокие этажи. Благодаря этому, планировка постройки в один этаж позволяет эффективно воспользоваться имеющимся пространством;
- Более высокий уровень комфорта для пожилых людей, маленьких детей и лиц с ограниченными возможностями, так как у них отсутствует необходимость подниматься на второй этаж или еще выше.
Важная особенность проектов одноэтажной постройки – создание оптимальных условий для проживания под одной крышей двух или даже трех поколений одной семьи.
Поэтому востребованными становятся такие проекты, которые учитывают размещение как минимум трех спален и наличие одного просторного помещения, где смогут собраться все обитатели. Это необходимо для комфортного проживания многочисленных членов семьи, причем каждое поколение получает собственное автономное пространство.
Примеры готовых проектов
В связи с повышенным спросом разработано множество разнообразных проектов одноэтажных домов с 3-мя и более спальнями. Типичный пример – проект №58-01. Коттедж высотой в один этаж обладает большой площадью (197,08 кв. м) Она позволяет разместить не только три просторных спальни (от 15,3 до 18,5 кв. м), но и, благодаря грамотной планировке, отделить зону отдыха от гостиной и кухни-столовой обширным холлом (23,7 кв. м.)
Размещение в одноэтажном доме трех спален реально осуществить даже в проекте постройки маленькой площади. Образец подобного решения – проект №59-61 общей площадью всего 102 кв. м. Три спальные комнаты разделены просторной гостиной (20,6 кв. м.), в которой могут комфортно разместиться обитатели дома. Важная особенность плана здания – одна спальня располагается от двух других отдельно. Это делается для размещения там семьи с маленьким ребенком, чтобы его плач или беспокойство не мешали спать остальным. Или напротив, для отдыха пожилых людей подальше от беспокойной и шумной молодежи.
Наиболее стандартный вариант одноэтажного коттеджа с тремя спальными комнатами представлен на готовом проекте №62-03. Его черты:
- четкое разделение на зону отдыха и развлечений;
- расположение одной спальной комнаты отдельно от других;
- наличие большого помещения – гостиной площадью 42 кв. м.
Важным бонусом проекта выступает присутствие в планировке просторной кухни-столовой (17,6 кв. м).
Режим работы офисов в праздничные дни:
1.01.20 — 8.01.20 — выходные
но 4.01.20 и 6.01.20 — рабочие дни
Все сообщения читаем и на все ответим!
Идеальное жилище для большой семьи: проекты одноэтажного дома с тремя спальнями
Когда мы задумываемся о переезде в дом или новую квартиру, всегда встаёт вопрос: как выбрать ту жилплощадь, что подойдет всем? Очень часто, не зная нюансов, мы просто откладываем мечту в долгий ящик и продолжаем жить в тех условиях, которые у нас есть.
Однако, не всегда решение столь финансово затратно, как кажется на первый взгляд. Сегодня редакция Homius расскажет о том, как создать идеальный и относительно недорогой проект одноэтажного дома с тремя спальнями, который придётся по душе все членам семьи.
Дом с тремя спальнями – идеальное решение для семьи с двумя детьми
С чего начать: нюансы проектирования одноэтажных строений
Любой объект начинается с составления грамотного плана. Профессиональные проектировщики обязательно предусмотрят важные нюансы, о которых неспециалист даже не подозревает. Однако, редакция Homius обязательно обратит внимание своего читателя на важные моменты, которые стоит учесть, а именно:
- функциональность помещения должна стоять на первом месте;
- коммуникации в проекте должны быть распланированы таким образом, чтобы помещения максимально эффективно пользовались ресурсами. Иными словами, соседние помещения с санузлами должны быть расположены через перегородку;
- если климат вашего региона нельзя назвать комфортным, то необходимо предусмотреть входную группу или небольшой предбанник. Таким образом вы не будите терять драгоценное тепло;
- если планируется проживание более 5 человек, то оптимальным решением будет обустройство двух отдельных санузлов;
- технические помещения необходимо располагать в строгом соответствии с нормативами, иначе их невозможно будет подключить.
Совет! Любой проект опирается, прежде всего, на технические нормы и индивидуальные условия реализации в той или иной местности. Именно поэтому важно учитывать нюансы и прислушиваться к мнению авторитетных специалистов.
В остальном вас может сдерживать только два фактора: финансы и отсутствие фантазии
Особенности проектирования дома с тремя спальнями
Очень важно заранее продумать назначение каждого помещения. Для семей с детьми очень важным становится расположение комнат и санузлов.
Для пар, живущих с престарелыми родителями – удобное расположение и уединение. Важно учесть планировку гостевых помещений, а также спален хозяев дома. У каждого из этих помещений есть свои нюансы планировки и свои особенности. Задача грамотного дизайнера – правильно распланировать не только расстановку комнат, санузлов, но и освещение, наличие шкафов (в том числе и встроенных), расположение веранды или террасы, парковочной зоны и так далее.
Иногда в погоне за дополнительным пространством некоторые проектировщики идут на создание так называемых проходных комнат. Однако, делать это необходимо лишь в крайнем случае
Не забывайте, что идея любого действительно комфортного для проживания жилья – создание индивидуального, изолированного пространства для всех его жителей.
Совет! Продумайте как будет проведена система вентиляции и освещения. На этапе проектирования можно предусмотреть важные изюминки вашего проекта, к примеру, камин в гостиной или большую террасу, или цветник.
Одна из комнат жилого помещения обязательно должна быть несущей. Это обеспечит правильную естественную вентиляцию всему помещению. Как правильно расположить комнаты в доме? Этот вопрос считается самым сложным для реализации. Рассмотрим самые перспективные и экономичные на наш взгляд решения.
План одноэтажного дома с 3 спальнями вдоль одной из стен
Обычно такие проекты используют для того, чтобы отделить шумные зоны от помещений для отдыха. Гостиная и кухня выносятся на одну сторону, а спальни – на другую. Чаще всего проекты предполагают некую «прослойку» в виде технических помещений, чтобы защитить сон домочадцев. Такая планировка подходит для помещений с прямоугольной либо почти квадратной геометрией.
С другой стороны, непосредственная близость всех спален, особенно, если вы планируете уединение, не самый хороший вариант
В этом случае дальние комнаты оказываются слишком далеко от санузла, что мешает спокойному сну остальных членов семьи.
Однако, если такая планировка вам подходит, особенно, если вы живете немногочисленной семьей, то такое решение позволит довольно функционально разместить все зоны.
Планировка одноэтажного дома с тремя спальнями на разные стороны
Более приемлемый вариант для большой семьи – разделение спален на разные стороны. Обычно детские помещения организованы с одной стороны и имеют общий санузел, а спальня родителей – с другой. Либо все помещения разделены коридорами или другими помещениями. Предлагаем изучить несколько интересных на наш взгляд проектов.
Такая типовая планировка 1 этажного дома с 3 спальнями имеет разные вариации, однако, общее правило одно: гостевая спальня, либо детские, должны быть максимально удалены от спальни хозяев дома.
Статья по теме:
Бюджетным и практичным вариантом станет выбор в пользу одноэтажного здания, план которого составить проще и быстрее, чем многоуровневых конструкций. Различные габариты и многообразие дизайнерских решений, рассмотренные в статье, позволят найти проект постройки в один этаж каждому.
Как оптимизировать пространство небольшого одноэтажного дома
Существуют строительные нормы, которые гласят: каждый человек имеет право на свои законные 9 м² площади. Это минимум. Исходя из этого минимума и создаются типовые проекты. Ниже этого предела опускаться нельзя. Вы спросите: а как же выйти из ситуации, когда на строительство «хором» нет возможности? Отвечаем – необходимо оптимизировать остальное пространство.
Самый простой вариант – использовать специальную складную и задвигающуюся мебель
Ещё один вариант – объединить функциональное назначение зон. Как вариант, можно в спальне выделить место под рабочий кабинет. А игровую зону совместить с детской. Главная задача – с умом использовать все пространство. Шкафчики, полочки, выдвигающиеся стенки – используйте максимально всё пространство помещений.
Задел на будущее: как выбрать идеальный проект одноэтажного дома с тремя спальнями
На чтение: 4 минуты Нет времени?
Мечтая о собственном доме, вы наверняка рисовали в своем изображении многочисленные варианты планировки и оформления.
Когда дело доходит до непосредственного составления документов на строительство, конечно, лучше обратиться к профессионалам, но еще до заказа следует определиться с основными требованиями. Чем лучше вы продумаете свои желания, тем идеальнее получится проект. Тема этого материала Housechief.ru – проект одноэтажного дома с тремя спальнями. Это один из самых востребованных вариантов для семейных пар с детьми. Как его выбрать, на что следует обратить внимание и возможные варианты – в нашей статье.
Дом с тремя спальнями – оптимальный выбор семьи с двумя детьми
Читайте в статье
Немного об общих принципах проектирования
Какой бы проект дома вы не выбрали, важно придерживаться нескольких основных принципов, благодаря которым ваше жилье гарантированно будет комфортным и безопасным:
- для регионов с суровыми климатическими условиями следует выбирать планировки с входной группой – коридором или тамбуром;
- помещения, которые необходимо оснащать коммуникациями, следует располагать рядом;
- для семьи из 5 и более человек следует предусмотреть не меньше двух санузлов;
- важно очень внимательно отнестись с проектированию комнаты котельной – для этого есть специальные нормативы, которые нужно неукоснительно соблюдать;
- не стоит жертвовать комфортом в пользу эстетики. Со временем любой архитектурный изыск приестся, а чувство дискомфорта останется навсегда.
Во всем остальном – полагайтесь на свою фантазию и вкус, а также на рамки бюджета строительства
В чем заключаются особенности проектирования дома с тремя спальнями
Прежде чем приступить к процедуре проектирования, нужно определиться с назначением всех комнат. Они могут быть детскими, комнатами для пожилых людей, гостевыми или супружескими спальнями. У каждого из этих назначений есть свои особенности: необходимо понимать, как именно они будут связаны с общей зоной, как освещены и чем оснащены.
Спальни не должны быть проходными
Важный момент – организация естественной вентиляции и освещения.
Последнее правило означает, что хотя бы одна стена комнаты должна быть несущей стеной здания.
Расположение комнат – существенный момент, и существует несколько решений:
План одноэтажного дома с 3 спальнями вдоль одной из стен
Вы найдете множество типовых планировок, в которых все три спальни размещены в одной из сторон дома. Гостиная и кухня расположены отдельно, и это в своем роде удачное решение, потому что ничто не помешает сну: ни музыка в гостиной, ни грохот посуды и ароматы пищи.
Есть в такой планировке свой нюанс – супружеская спальня находится слишком близко к детским комнатам, а это не самый лучший вариант
Еще один недостаток – санузел размещен далековато от спальни, так что придется по ночам путешествовать по темному длинному коридору. Да и сам коридор – нерациональное использование пространства, согласитесь.
Тем не менее, такое расположение имеет право на существование, и вот еще один пример подобного проекта:
Планировка одноэтажного дома с тремя спальнями с отдельным расположением
Отделение родительской спальни от детских комнат диктует свои условия распределения пространства. Можно совсем отказаться от коридора, отделив треть дома под детские спальни, разместив по центру гостиную и распланировав в остальном пространстве спальню родителей и санузел.
В этом случае вы получите просторную проходную гостиную
Неплохая планировка 1 этажного дома с 3 спальнями, если не принимать во внимание необходимость отказаться от поздних вечеринок.
К сведению! Если есть необходимость выделения отдельного помещения под котельную, его можно организовать за счет отделения площади от родительской спальни.
Другая идея планировки – отделение гостиной, совмещенной с кухней, в доме квадратной формы. В этом случае гостиная не будет проходной: она граничит с родительской спальней и отделена от детских. Недостаток только в необходимости тщательно продумать проводку инженерных коммуникаций.
Примеры такого размещения:
Как оптимизировать пространство небольшого одноэтажного дома
Есть нормы, гарантирующие комфорт проживания. Так, на каждого члена семьи должно быть не меньше 9 квадратных метров помещения. Если по каким-то причинам есть необходимость обойтись этим минимумом, можно рассмотреть варианты оптимизации пространства. Для этого можно совместить функциональное назначение комнат. Например, в спальне разместить рабочий кабинет, или разделить детскую комнату на игровую зону и зону отдыха:
В решении этой задачи вам на помощь придут производители трансформирующейся мебели. Особенно много вариантов детской мебели, которая легко превращается в стол или шкаф.
Вы можете использовать и подвижные перегородки для временного зонирования, устанавливать подиумы
С помощью грамотной планировки можно без труда выделить место под дополнительный санузел.
В загородном доме неплохая идея – сделать дополнительный выход из спальни в сад или на террасу.
Значительно сэкономит пространство встроенная бытовая техника
Как правильно адаптировать проект дома под климатические особенности региона
Рассматривая типовые проекты, имейте в виду, что они разработаны без учета климатических особенностей вашего региона. Согласитесь, есть значительная разница, расположен ваш дом на севере Карелии или в районе Сочи? Адаптировать типовой вариант вам помогут в проектном бюро. Специалисты предусмотрят специальную защиту фундамента, стен и кровли, подберут подходящие размеры окон, соотнесут расположение оконных и дверных проемов с ландшафтом участка.
Адаптируя типовой проект, следует учитывать и прохождение коммуникаций по территории участка
Если всего этого не предусмотреть – в процессе стройки вы столкнетесь с многочисленными сложностями, которые не только испортят вам настроение, но и приведут к незапланированным тратам.
Плюсы и минусы одноэтажных домов с тремя спальнями с сравнении с домами в двух уровнях
С финансовой точки зрения строительство дома в двух уровнях или с мансардой – более выгодный вариант.
Основная статья экономии – расходы на обустройство фундамента и кровли. А что в плане комфорта? Одноэтажный дом все так же проигрывает двухэтажному? Оказывается, нет!
Главное неудобство двухуровневой планировки заключается в необходимости перемещения по лестнице
На лестницу нужно выделить место, да еще и продумать ее безопасность: вдруг вашему маленькому ребенку среди ночи захочется в туалет?
Да, удобно, что гостиная и кухня будут на отдельном этаже, но зато в одноэтажном строении вы сможете сделать несколько выходов в сад
Если отвлечься от эстетической составляющей и подумать о практичности – то и тут преимущество у одноэтажных коттеджей. Все ремонтные работы проводить гораздо легче, не нужны леса или подъемники. Еще один нюанс – двухуровневый дом труднее протопить зимой, чем одноуровневый. Площадь теплопотери тут гораздо меньше.
Так что если размеры участка позволяют вам выделить полноценную площадку под одноэтажный дом – действуйте смело.
Строить многоуровневую конструкцию имеет смысл только при необходимости экономить площадь надела
Как правильно выбрать проект?
Есть несколько правил подбора типового проекта 1 этажного дома с 3 спальнями, которые помогут вам сделать оптимальный выбор:
- начните с допустимой площади дома – для этого изучите размеры участка. Вряд ли вам удастся построить полноценный дом в 200 квадратных метров, есть у вас в наличии всего три сотки земли. Строительные нормы диктуют необходимость отступить от границ участка до стен дома 3 метра и от дороги – 5. Подумайте, сколько места вам нужно для сада, где будут находиться хозпостройки, и не слишком ли близко к вам расположен деревянный дом соседа – вдруг пожар? Если вы рискнете построить дом вопреки существующим пожарным и санитарным нормам, не исключено, что после ссоры с соседями вы получите предписание суда снести строение;
Изучите место прохождения инженерных коммуникаций по участку и возможность подключения к ним
- и только после двух предыдущих этапов начинайте рассматривать каталоги типовых проектов.
А отсеяв большую часть из них как неподходящую под ваши требования, вы можете дать волю фантазии. Но не забывайте про комфорт!
Коллекция популярных проектов домов с тремя спальнями
Мы подобрали для вас небольшую коллекцию популярных типовых проектов, которые можно адаптировать под климатические особенности региона. Посмотрите, возможно среди них – дом вашей мечты.
Проекты одноэтажного дома с 3 спальнями из кирпича
Кирпич – самый надежный и долговечный материал для строительства. Из него вы сможете построить здание любой формы. Вот несколько типовых проектов домов с 3 спальнями и гостиной:
целесообразность, оптимальные планировки и технические нормативы. Сколько спален должно быть в доме
Застройщики, выбирая по какому проекту строить свой частный дом, нередко долго определяются с количеством спален в нем. Иметь три спальни для одних будет излишне, а кому-то стольких личных комнат будет мало. На выбор количества спален влияет этажность здания и его площадь.
Проекты трехкомнатных домов (фото, видео, схемы, эскизы, чертежи можно смотреть в данном разделе) достаточно популярны среди застройщиков. Поэтому в 2018 году мы пополнили каталог интересными и оригинальными проектами.
Планы проектов трехкомнатных домов: критерии выбора
Существует несколько критериев, по которым застройщик сможет определить, какой именно архитектурный проект ему нужен:
1. План трехкомнатного дома: участок для строительства
Для того, чтобы избежать лишних затрат при строительстве, купить участок земли выгоднее перед выбором проекта. Это необходимо для того, чтобы учесть реальные характеристики грунта, количество и глубину грунтовой воды, индивидуальные особенности поверхности земли и место расположения въезда на участок относительно сторон света. Эти параметры являются ключевыми в определении этажности и площади будущего дома. Но бывают случаи, в которых удобнее предварительно изучить проекты домов 3 комнатных, выбрать тот, который наиболее вам подходит, а затем искать землю для его строительства.
2. План 3х комнатного дома: денежный вопрос
На конечную цену строительства дома повлияют не только сложность проектных решений в части конструкций, но и материала, в нем заложенные. Сделать стоимость строительства более приемлемой можно путем замены проектных материалов более доступными аналогами, при этом, не забывая вносить в типовой проект соответствующие изменения.
4. План 3 комнатного дома: планы на будущее
Частный дом строится не на одно десятилетие, поэтому важно, чтобы он был удобным для семьи и через 15-20 лет. Расположение и число спален в новом доме лучше выбирать с расчетом на будущее, ведь может возникнуть необходимость совместного проживания с пожилыми родителями или взрослыми детьми. Кроме того о трех спальнях стоит подумать и тем, кто любит приглашать с ночевкой гостей.
5. Проекты домов 3 комнатных: выбираем оптимальные размеры помещений
Площадь частного коттеджа выбирается с учетом предпочтений хозяина, его финансовых возможностей и условий строительства. В любом случае застройщик стремиться к уюту и комфорту. Чтобы не устраивать в доме пустующие углы или наоборот недосчитаться места для любимого кресла-качалки, мы рекомендуем рассчитывать площадь дома на три спальни с учетом 15% запаса. Помимо этого важно не забыть о помещениях, играющих подсобную и связующую роль.
Площади комнат и помещений, оптимальные для строительства частного дома
6. Проекты домов с тремя спальнями: вносим корректировки
Не забудьте, что при желании внести улучшения в купленный вами проект или привести его в соответствие с текущими строительными условиями на территории застройки, вам необходимо обратиться к нашим проектировщикам для внесения изменений в проектную документацию.
За дополнительную оплату специалисты компании создадут также авторский дизайн трехкомнатных домов.
Планировка проектов трехкомнатных домов: одноэтажного дома, двухэтажного и мансардного
Внешний вид жилого дома и удобство его внутреннего пространства напрямую зависят от этажности здания.
Отсутствие необходимости многократных подъемов по лестнице и удобный доступ во все помещения являются неоспоримым достоинством дома в один этаж. Но при этом планы трехкомнатных домов потребуют большей площади земельного надела для его строительства и некоторое увеличение сметы расходов.
Если вы выберете вариант с мансардным этажом, это поможет снизить отток тепла через перекрытие первого этажа, но потребует более сложной кровельной конструкции и внимания к её теплоизоляции.
Любителям двухэтажных планировок, желающим получить готовое жилое пространство второго этажа, стоит учесть удорожание его строительства.
Если же планировка трехкомнатных домов в один этаж позволяет впоследствии устроить чердачное помещение, таким образом можно увеличить полезную площадь внутреннего пространства.
Желаем найти хорошие проекты домов с тремя спальнями для реализации под ключ, лучшим образом соответствующие всем вашим требованиям!
Сегодня большой популярностью у семей, в которых проживают дети и пожилые люди, пользуются одноэтажные дома с тремя спальнями. Это удобная планировка для людей с ограниченной подвижностью. Таким проектам зачастую отдают предпочтение владельцы небольших земельных участков, желающих соорудить уютные и комфортные жилища. Чтобы построить дом одноэтажный с тремя спальнями, необходимо первоначально, создать проект на бумаге, который будет учитывать все детали будущего сооружения. Для этого, можно обратиться к специалистам, но дешевле, спроектировать свой дом самостоятельно.
Как мы уже выяснили, самым первым шагом в процессе сооружения дома, является создание проекта. На данном этапе продумывается планировка будущего сооружения, проводится подсчет возможного объема потребления электричества и воды, приобретаются строительные материалы и выбираются технологии, позволяющие сэкономить на возведении объекта.
Чтобы все члены семьи из 4-5 человек чувствовали себя комфортно, жилье нужно сооружать площадью, 60-100 кв.м. На данном этапе учитываются пожелания обитателей будущего строения. Одноэтажный проект дома с тремя спальнями на фото, может включать в себя большую кухню, объединенную с гостиной, камин, рабочий кабинет, оранжерею, большую кладовую. Какие комнаты будут в доме, зависит от стиля жизни и предпочтений обитателей будущего сооружения.
Определяем ключевые моменты
Чтобы проект отвечал требованиям владельцев, на стадии планировки, важно выделить основные моменты, определяющие назначение здания:
- Для начала определяем, что будем сооружать – дом для постоянного проживания либо дачную постройку.
- Планируем возведение дополнительных сооружений – сарая, погреба, гаража, сауны.
- Определяем количество жильцов и соответствующее число комнат.
- Учитываем геодезическую особенность участка.
- Выделяем участок для создания дворика.
Все пункты, кроме геодезической оценки, вполне можно проработать самостоятельно. На основании ключевых моментов, создается генеральный план, согласно которому возводится дом с тремя спальнями.
О плане подробнее
План, по которому будет осуществляться строительство, создается в 4 этапа:
- Первая стадия – архитектурная. На данном этапе учитываются ключевые моменты, выполняется прорисовка комнат, дверных, оконных проемов, толщина стен и угол наклона кровли.
- Вторая стадия – конструктивная. Она предполагает расчет глубины фундамента, толщины межэтажных перекрытий, местоположение дымохода. Также прописывается конструкция кровли, наличие балок, стропил, просчитывается количество необходимых материалов.
- Третий этап – создание инженерно-технической документации, которая должна включать в себя подробное описание систем вентиляции, водо-, газоснабжения, канализации, отопления.
- Четвертый, заключительный этап – создание дизайн-проекта, определение стиля, цветовой гаммы и расположение меблировки.
Увеличиваем функциональность
Чтобы план дома с тремя спальнями получился удобным и комфортным, необходимо правильно рассчитать расположение и площадь каждой комнаты. Так, площадь гостиной должна вмещать в себя наибольшее возможное количество гостей и, разумеется, всех членов семьи. Кухня может быть функциональной и удобной, если продумана планировка и расположение кухонной мебели.
Для удобства всех членов семьи, рекомендуется выделить комнату для организации гардеробной. Хотя, при желании, гардеробную можно обустроить в каждой комнате. Поскольку, проекты одноэтажных домов с тремя спальнями на фото, обычно включают в себя отдельную отопительную систему, в процессе строительства, важно выделить помещение для котельной.
Когда мы задумываемся о переезде в или , всегда встаёт вопрос: как выбрать ту жилплощадь, что подойдет всем? Очень часто, не зная нюансов, мы просто откладываем мечту в долгий ящик и продолжаем жить в тех условиях, которые у нас есть. Однако, не всегда решение столь финансово затратно, как кажется на первый взгляд. Сегодня редакция Homius расскажет о том, как создать идеальный и относительно недорогой с тремя спальнями, который придётся по душе все членам семьи.
Любой объект начинается с составления грамотного плана. Профессиональные проектировщики обязательно предусмотрят важные нюансы, о которых неспециалист даже не подозревает. Однако, редакция Homius обязательно обратит внимание своего читателя на важные моменты, которые стоит учесть, а именно:
- функциональность помещения должна стоять на первом месте;
- коммуникации в проекте должны быть распланированы таким образом, чтобы помещения максимально эффективно пользовались ресурсами. Иными словами, соседние помещения с должны быть расположены через ;
- если климат вашего региона нельзя назвать комфортным, то необходимо предусмотреть входную группу или небольшой предбанник. Таким образом вы не будите терять драгоценное тепло;
- если планируется проживание более 5 человек, то оптимальным решением будет обустройство двух отдельных санузлов;
- технические помещения необходимо располагать в строгом соответствии с нормативами, иначе их невозможно будет подключить.
Совет! Любой проект опирается, прежде всего, на технические нормы и индивидуальные условия реализации в той или иной местности. Именно поэтому важно учитывать нюансы и прислушиваться к мнению авторитетных специалистов.
Особенности проектирования дома с тремя спальнями
Очень важно заранее продумать назначение каждого помещения. Для семей с детьми очень важным становится расположение комнат и санузлов. Для пар, живущих с престарелыми родителями – удобное расположение и уединение. Важно учесть гостевых помещений, а также спален хозяев дома. У каждого из этих помещений есть свои нюансы планировки и свои особенности. Задача грамотного дизайнера – правильно распланировать не только расстановку комнат, санузлов, но и , наличие (в том числе и встроенных), расположение , парковочной зоны и так далее.
Не забывайте, что идея любого действительно комфортного для проживания жилья – создание индивидуального, изолированного пространства для всех его жителей.
Совет! Продумайте как будет проведена система вентиляции и освещения. На этапе проектирования можно предусмотреть важные изюминки вашего проекта, к примеру, камин в гостиной или большую террасу, или цветник.
Одна из комнат жилого помещения обязательно должна быть несущей. Это обеспечит правильную естественную всему помещению. Как правильно расположить комнаты в доме? Этот вопрос считается самым сложным для реализации. Рассмотрим самые перспективные и экономичные на наш взгляд решения.
План одноэтажного дома с 3 спальнями вдоль одной из стен
Обычно такие проекты используют для того, чтобы отделить шумные зоны от помещений для отдыха. и выносятся на одну сторону, а – на другую. Чаще всего проекты предполагают некую «прослойку» в виде технических помещений, чтобы защитить сон домочадцев. Такая планировка подходит для помещений с прямоугольной либо почти квадратной геометрией.
В этом случае дальние комнаты оказываются слишком далеко от , что мешает спокойному сну остальных членов семьи. Однако, если такая планировка вам подходит, особенно, если вы живете немногочисленной семьей, то такое решение позволит довольно функционально разместить все зоны.
Планировка одноэтажного дома с тремя спальнями на разные стороны
Более приемлемый вариант для большой семьи – разделение спален на разные стороны. Обычно организованы с одной стороны и имеют общий санузел, а спальня родителей – с другой. Либо все помещения разделены или другими помещениями. Предлагаем изучить несколько интересных на наш взгляд проектов.
Такая типовая планировка 1 этажного дома с 3 спальнями имеет разные вариации, однако, общее правило одно: гостевая спальня, либо детские, должны быть максимально удалены от спальни хозяев дома.
Статья по теме:
Единственным минусом может стать лишь необходимость хорошей проработки проекта крыши и скатов. Будет хорошо, если вам удастся ограничиваться простой двускатной крышей. В противном случае, придется выделить дополнительный бюджет на качественную и утепление . Чем больше площадь дома, тем больше и дороже крыша – данный факт стоит учитывать, как при , так и при планировании бюджетов.
Статья по теме:
В специальной публикации нашего онлайн-журнала представлены самые яркие фото фасадов и интерьеров разных стилей и направлений, собраны вдохновляющие идеи планировки и дизайна.
Нюансы выбора лучшего проекта для одноэтажного дома
Первый этап – изучение параметров участка. Оптимальный выбор проекта 1 этажного дома с 3 спальнями зависит от качества земельного участка, его положения (низина или нет), а также залегания грунтовых вод. При близком их расположении стоит позаботиться о полноценной , которая удорожит работы по обустройству котлована под .
Важно! Жилой дом должен быть установлен с учетом строительных норм: не ближе 3 метров от границ участка, 5 метров от дороги. Учитывайте планировку приусадебного участка (без него никуда). Если поблизости расположен водоем, то жилое строение должно быть не ближе, чем на расстоянии в 50 метров от берега.
Лучшие проекты одноэтажных домов с тремя спальнями
Специально для читателей онлайн-журнала Homius мы подобрали интересные проекты, которые помогут подобрать оптимальный вариант для вашего одноэтажного жилища.
Проекты одноэтажного дома с 3 спальнями из кирпича
– один из самых долговечных и дорогих стройматериалов. Он позволяет построить монолитное строение, которое простоит несколько десятков, а то и сотню лет. Причём сложность архитектуры здесь значения не имеет. Современные материалы позволяют использовать кирпич разной консистенции. Использовать его как для облицовки, так и для возведения несущих конструкций. Предлагаем несколько проектов домов с 3 спальнями и гостиной для возведения из кирпича.
Желание сделать свое жилье максимально комфортным, удобным, практичным на практике в полной мере не всегда реализуется. Причиной неудач, характерных ошибок зачастую становится непонимание элементарных принципов построения пространства. Бездумное копирование увиденных в телепередачах и на тематических сайтах интерьеров не приводит к достижению целей. Нарушение цветового баланса, изменение масштаба и соотношения размеров элементов декора и конструктивных деталей здания дискредитирует изначальную идею. Часто неудачное решение появляется на стадии проектирования. Например, как оптимально расположить и отделать дом с тремя спальнями, человеку, не имеющему архитектурного или дизайнерского образования, продумать не так просто.
Источник homemyhome.ru
В каких случаях целесообразно строить жилье с тремя спальнями
Оптимальным вариантом по определению назначения комнаты станет стадия проектирования. На этом этапе есть возможность внести технические коррективы, изменить конструктивные элементы, подвести необходимые инженерные коммуникации. Жилье с двумя спальнями является привычным вариантом планировки. Гораздо реже встречаются варианты с большим количеством комнат для отдыха. Расположение помещений зависит от целевого назначения. Спальни могут быть:
- Детскими.
- Для пожилых людей.
- Гостевыми.
- Для семейных пар.
- Одноместными.
Источник remax.ca
Каждая спальня из вышеперечисленных вариантов имеет свои особенности по способу отделки, наличию необходимых функций, мебели, выходу в общую зону. Иногда сразу три поколения одной семьи могут проживать на одной площади. Задача дизайнера сделать жизнь каждого обитателя комфортной. Удачными проектами одноэтажных домов с тремя спальнями можно считать только те, где выполнены задачи технического и эстетического построения пространства.
Оптимальное расположение спальных комнат
Если в доме два и более этажей, то специалисты рекомендуют комнаты отдыха делать наверху. Когда же в наличии всего один уровень, проектировать три спальни гораздо сложнее. Не делают их проходными и не располагают в центре жилья. По всем правилам, помещения для отдыха и сна должны иметь окна. Естественный свет и приток свежего воздуха в комнату – жизненно необходимое условие. В любом случае одна из стен будет несущей. Квалифицированные проектировщики, архитекторы и дизайнеры советуют обратить внимание на некоторые важные факторы при планировке спален.
Источник m.yandex.com
Детские
Располагать их желательно на восточной стене дома. Тогда с утра помещение будет наполняться естественным светом, заряжая ребенка энергией на целый день. После обеда солнце перемешается на противоположную сторону, и в детской не будет перегрева. Света достаточно. Комфортные условия для игр и послеобеденного сна. Расположение относительно других помещений общей жилой площади не имеет принципиальных ограничений, но не желательно делать за смежной стеной гостиную, где установлен домашний кинотеатр либо другие обитатели дома могут производить шум после укладки детей на ночь.
На нашем сайте Вы можете найти контакты строительных компаний, которые предлагают услугу проектирования домов . Напрямую пообщаться с представителями можно посетив выставку домов «Малоэтажная Страна».
Детская Источник aviarydecor.com
Комнаты для супружеских пар
В отличие от детских, спальня для взрослых не обязательно делается со стороны восточной стены. Дизайнеры рекомендуют ее планировать на южной, юго-западной стороне. Прямых солнечных лучей либо вообще не будет, либо они будут появляться на короткий период времени. Идеальные условия для отдыха в любое время суток, если возникает такая необходимость. Желательно близкое расположение ванной и туалетной комнаты. Можно расположить спальню для взрослых ближе к кухне, чтобы не тревожить других членов семьи ранними завтраками и поздними вечерними разговорами.
Источник chrome-effect.ru
Первостепенное значение при планировании комнаты для пожилых членов семьи имеет максимально комфортное доступное местоположение. Помещение располагают строго на одном уровне с общей жилой зоной. Никаких подиумов, ступеней, приступов. Важно мнение самих обитателей спальни. В этом возрасте желательно обеспечить людям старшего поколения такие условия, о которых они сами высказались. Если они не хотят прямого солнечного излучения, то комнату располагают на северной или южной стороне. Солнце с утра будет на восточной стороне, после полудня на западной части дома.
Источник u-f.ru
Гостевые комнаты
Это помещения временного проживания, а значит таких требований, как для комнат с постоянными обитателями, нет. Расположить гостевую спальню можно в любом удобном месте дома, но не желательно делать ее смежной с детской или комнатой отдыха для пожилых людей. Важнее оборудовать ее минимальным набором мебели. Кровать, шкаф должны быть обязательно. В качестве дополнительных опций можно установить там телевизор, небольшой холодильник, кондиционер. В современных реалиях со множеством гаджетов в комнате рекомендуется не менее двух розеток.
Источник prostroyer.ru
Нормативы по минимальной площади и объему спальни
Согласно общестроительным правилам, на каждого обитателя помещения должно приходиться не менее 28 м 3 воздуха, то есть в среднем 9 м 2 и более. Нормы действуют на всех членов семьи, независимо от их возраста. Таким образом, если составляется проект одноэтажного дома 10 м на 12 м с тремя спальнями, а проживать здесь будут 6 человек, то минимальная площадь под спальни будет составлять 54 м 2 . Для оптимизации пространства некоторые функции допускается совмещать. В спальне взрослых можно устроить кабинет, а детскую спальню зонировать на две части — для отдыха и игровую. Самой большой комнатой делают либо помещение для детей, чтобы обеспечить им пространство для учебы, отдыха, развлечений, либо место обитания семейной пары, где наверняка будет установлен гардероб, возможно, кабинет, место для любимых занятий.
Источник sk-amigo.ru
Варианты планировки дома с тремя спальнями
Анализ проектов показывает, что расположение комнат отдыха может быть самым разнообразным. Часто используется вариант с размещением всех спален по одной стене. В этом случае имеются свои плюсы и минусы. К преимуществам смело можно отнести удаленность от входной двери и тамбура, что особенно актуально для регионов с суровым климатом. К минусам можно отнести то, что при недостаточной звукоизоляции некоторые члены семьи будут мешать другим. Впрочем, устраняется этот недостаток просто. При проектировании закладывается монтаж шумоизоляционного слоя.
Источник vip-1gl.ru
Когда делается планировка одноэтажного дома 10 м на 12 м с тремя спальнями либо жилья с похожими габаритами, то стоит прислушаться к еще одному совету профессионалов. Настоятельно рекомендуется как минимум две туалетные комнаты, даже если одна из них будет совсем небольшой. Достаточно установить туда унитаз и раковину. Это действительно бывает очень нужно в отдельные периоды семейной жизни. Отказавшись от этой идеи, можно впоследствии сильно пожалеть о таком решении.
Видео описание
Обзор визуализации проекта дома с тремя спальнями — в этом видео:
Как улучшить функциональность дома с тремя спальнями
Современный подход к формированию жилого пространства характерен реализацией оригинальных идей технического и эстетического плана. Широкий выбор отделочных материалов, механизмов, элементов мебели и аксессуаров позволяет формировать практичные, комфортные пространства. Добиться заметных результатов можно как в уже готовом доме, так и в проектируемом. Во втором варианте возможностей больше, поскольку отсутствует этап перепланировки. Все коммуникационные маршруты и конструктивные элементы выполняются по плану.
Возможны два варианта по исполнению. Если за одной стеной уже есть туалетная комната, то можно сделать второй вход туда из спальни. Небольшая перепланировка помещений не сильно ударит по семейному бюджету, но существенно повысит комфорт и удобство пользования. Второй вариант предусматривает прокладку всех необходимых коммуникаций — водоснабжение, канализацию, вентиляцию. Более затратный способ. Но он дает полную независимость пользователям, которые могут не подстраиваться под нужды других обитателей дома. Без монтажа эффективной системы вентиляции устанавливать ванну, душевую кабину в спальне не рекомендуется. Повышенная влажность – точно не лучшее условие для отдыха и сна.
Источник myfancyhouse.com
Эта идея все чаще применяется на практике. Хорошо защищенный участок вокруг дома делает выход безопасным. Вмонтировать дополнительную дверь можно в любую спальню. Интересным выглядит это решение как в детской комнате, так и в помещении для семейной пары и пожилых людей. Устройство дополнительного входа не требует больших вложений. Можно использовать для этой цели оконный проем, расширив его до нужного размера. Популярным вариантом становится стеклянная дверь «в пол», или, как ее часто называют, французская. Общий план одноэтажного дома с 3 спальнями не изменится, а вот функциональность его существенно повысится.
Источник archilovers.com
Трансформируемая комната
Изменения назначения комнаты в большинстве случаев обеспечивается специальной мебелью и инженерными конструкциями. Трансформировать пространство можно с помощью:
- откидных, раздвижных кроватей;
- трансформирующихся столов;
- раздвижных, откатных, мобильных перегородок;
Кроме того, в современном интерьере широко используется встроенная техника. Проекторы, музыкальные центры. Производители детского и спортивного инвентаря также предлагают богатый ассортимент продукции с изменяющимися качествами. Детская игровая зона может в считанные минуты быть изменена либо вообще убрана. Некоторые модели тренажеров выпускаются в универсальном исполнении. Они не занимают много места и могут храниться в ограниченном пространстве, когда не используются по прямому назначению.
Источник 4woodi.pl
Заключение
Резюмируя информацию, можно утверждать, что современные технологии и оригинальные идеи для дома с тремя спальнями сделают жизнь его обитателей комфортной, насыщенной и полезной. Для этого нужно адаптировать общестроительные нормы к конкретной конфигурации строения, использовать все имеющиеся преимущества и нивелировать недостатки.
Отправим материал вам на e-mail
Многие мечтают о строительстве собственного дома. Перед тем, как приступить к данному процессу стоит разработать качественный проект будущего сооружения. Как вариант можно подобрать с тремя , которые подходят для проживания семьи из 3-6 человек. Такая планировка рассчитана на размещение детей и родителей под одной крышей. При этом одна из спален принадлежит родителям, а две другие детские или гостевые.
Одноэтажные постройки выглядят стильно и современно снаружи, а внутри отличаются удобствами и комфортом
Проекты домов с тремя спальнями обладают множеством достоинств. Они подходят для проживания престарелых людей, детей или людей с ограниченными физическими возможностями.
Проекты одноэтажных домов значительной площади с тремя спальнями могут быть стандартными и полностью готовыми или индивидуальными. План подобного дома должен включать гостиную, кухню, три спальни, коридор, а также сантехническое помещение. На можно расположить дополнительную спальню.
Полезная информация! Более простым является проект с равными длинами всех стен, так как вытянутые с одной стороны сложнее в реализации.
Статья по теме:
Как выполнить эффективную планировку проекта одноэтажного дома 12х12 с тремя спальнями?Для эффективного расширения полезной площади нужно объединить некоторые помещения и убрать лишние стены. Интересные планировки выполняются для строений с площадью 12 на 12. Важно предварительно произвести оценку помещений и их площади. При этом можно выделить комнаты, которые могут быть совмещены.
Расчеты полезной площади в домеПри создании плана одноэтажного дома с 3 спальнями нужно учитывать особенности проектирования каждой комнаты:
- размеры гостиной зависят от количества человек, которые проживают в доме. Также стоит учитывать возможных гостей;
- площадь кухни рассчитывается в зависимости от планируемого оснащения. При этом нужно продумать размещение габаритной бытовой техники и кухонной утвари;
- в спальнях должно быть оставлено место для ;
- котельная планируется с учетом вида и мощности системы отопления и ее технологических особенностей.
Полезная информация! Существует множество интересных проектов в интернете, которые можно найти бесплатно. Но для нестандартной планировки потребуется помощь специалистов.Характеристики проектов построек одноэтажного типа до 150 кв м с тремя спальнями без мансарды
Если проекты одноэтажных домов с тремя спальнями имеют площадь до 100 кв. м, то возможно потребуется дополнительное расширение за счет дополнительных конструкций. Если здание площадью до 150 кв. м, то можно не обустраивать цокольный или .
Пользуются популярностью следующие способы объединения помещений:
- объединение кладовой и котельной;
- совмещение санузла;
- соединение помещений столовой и гостиной, кухни и столовой, а также гостиной и кухни.
Полезный совет! Столовую можно объединить с другой комнатой в одном пространстве. При этом освободится место для дополнительной комнаты.Планировки с объединением комнат
Существуют разнообразные планировки с совмещением комнат. Помещения можно соединять с помощью . При этом ни одна из комнат не остается проходной. Спальни должны обладать достаточной площадью, чтобы на их территории можно было разместить гардеробную, спальное место и рабочий уголок.
Стоит рассмотреть следующую планировку с гардеробной:
- прихожая совмещается с гардеробной и хозблоком;
- кухня, совмещенная большим проемом с гостиной-столовой;
Рассмотрим проект одноэтажного дома с тремя спальнями
Дом с тремя спальнями одноэтажный
Одноэтажный дом с 3 спальнями имеет преимущества перед двухэтажным сооружением своей доступностью для людей имеющих ограниченную подвижность, пожилых и детей.
Помимо этого многие владельцы земельных участков предпочитают строительство не огромных многоэтажных коттеджей, а небольших уютных домиков в один этаж. Как сделать проект одноэтажного дома на 3 спальни предлагает рассмотреть эта статья.
Содержание статьи
С чего начинается строительство дома
Прежде чем приступить к строительству любого сооружения необходимо обдумать и начертить его проект.
В этом случае можно:
- Получить максимальные удобства от тщательно продуманной планировки дома.
- Четко определить набор строительных материалов, их количество, выясняется предварительная цена приобретения.
- Подсчитать ориентировочно экономический эффект от отопления, использования воды и электричества.
- Экономия в использовании строительных материалов.
- Уменьшаются расходы на строительство дома, и облегчается процесс работы.
Совет: При выборе проекта для строительства одноэтажного дома необходимо учитывать, что для небольших семей используются строения площадью до 100 квадратных метров.
Как проектируется одноэтажный дом с тремя спальнями
Проекты домов одноэтажных с 3 спальнями адаптированы к современному миру. Они идеально смотрятся в лесном массиве. Их планировка обеспечивает ежедневный комфорт всей семье.
Удобный дом с тремя спальнями
Над парадным проходом расположена красиво расширенная крыша, представляющая собой крытое крыльцо.
План одноэтажного дома с тремя спальнями включает в себя:
- Гостиную — это самая большая комната. Здесь расположены специальные отделения в стенах, где устанавливаются шкафы и телевизор. Из гостиной есть выход в сад.
- Кухня. В ней находится кладовка и большое окно, посредством которого можно следить за игрой детей, находящихся во дворе.
- Три спальни, но при необходимости можно пристроить на чердаке еще одну.
- Просторный коридор, через который можно пройти в любую комнату.
- Между гостиной и кухней располагается камин, который связан с отопительной системой, что в зимнее время обеспечивает всему дому полноценное отопление.
- В подсобном помещении находятся санузел и большая ванная комната.
План дома одноэтажный с 3 спальнями
Как увеличить функциональность дома
Прежде чем определить какие помещения можно совместить необходимо, рассмотреть каждую комнату – ее полезную площадь:
- Гостиная рассчитывается с учетом всех членов семьи и максимального количества гостей.
- Размер кухни планируется с точки зрения ее функциональности. Здесь нужно учитывать необходимость удобства приготовления пищи.
- Под гардеробы площадь выделяется в каждой комнате, а можно устроить общий гардероб своими руками.
- Под котельную помещение рассчитывается под котел и его технологические требования.
При распределении помещений по размерам учитывается масса нюансов, поэтому приобрести проекты одноэтажных домов с тремя спальнями бесплатно не получится. Владелец участка понять основные принципы и рассмотреть примеры может, но правильно все рассчитать должен проектировщик-профессионал.
Самыми распространенными объединениями могут быть:
- Совмещение санузла.
- Гостиной и кухни, или столовой и кухни, как показано на фото. В этом случае под две зоны можно выделить одно помещение.
- Котельной и кладовки. Хотя такой вариант и неправильный, но часто встречается в домах.
Совмещение кухни и столовой
При таком совмещении можно максимально использовать площадь и увеличить конкретно жилую комнату в одноэтажном доме с тремя спальнями.
В этом случае:
Три комнаты под помещения для спален – оптимальная планировка для одноэтажного дома. Видео в этой статье сможет помочь понять основные принципы расположения комнат, на которые необходимо обращать внимание перед началом проектирования домов.
Планирование своего дома размерами 10х10 с тремя спальнями
Проект одноэтажного дома 10х10 с тремя спальнями
Одноэтажный дом 10х10 с тремя спальнями хорошо подходит для небольшой семьи, планирующей рождение детей.
Такой дом можно построить быстро или выполнить капитальное строительство из нескольких видов материала:
- «Канадская технология» позволяет быстро выстроить дом и достаточно долгое время эксплуатировать.
- Быстро возможно строительство из пеноблоков, что позволяет экономить время и проводить утепление по простой схеме.
- Строительство из кирпича. В этом случае строить один этаж намного легче.
Самый простой вариант для возведения дома с тремя спальнями –использование пеноблоков или кирпича.
В этом случае необходимо:
- Уложить ленточный фундамент.
- Сделать железобетонные перекрытия.
- Чердачный вариант требует деревянных стропил, плоская крыша – гидроизоляцию железобетонных перекрытий.
Инструкция предлагает, что в доме с тремя спальнями должны быть:
- Гостиная.
- Кладовка.
- При необходимости небольшое помещение под гардероб.
- Кухня.
- Столовая.
- Общий или раздельный санузел.
Совет: При планировании своего жилья необходимо обратить внимание, что некоторые комнаты можно совместить, что позволит увеличить функциональность всего сооружения и использовать всю квадратуру с максимальной пользой.
Строительство каркасного дома
Особенностями строительства каркасных домов являются их:
- Скорость возведения. Достигается благодаря тому, что конструкция коттеджа возводится достаточно быстро.
- Стоимость. Этот показатель снижается за счет уменьшения затрат для возведения тяжелого фундамента и применения дорогостоящих материалов, уменьшения скорости возведения.
- Монтаж конструкций можно производить круглый год, что не отразится на конечном результате.
- Малый вес здания не дает большой усадки, поэтому можно начинать отделку дома сразу по окончании его монтажа.
- При изготовлении каркаса в заводских условиях все материалы обрабатываются для защиты от действия влаги, вредных химических веществ, что предохраняет дом от появления трещин при эксплуатации.
В России принято использовать две основных технологии возведения каркасных домов:
- Канадская, подразумевает использование плотного утеплителя типа экструдированного пенополистирола.
- Финская, использует минираловатные утеплители с низкой плотностью и применением более массивного каркаса.
В любом случае при выборе той или иной технологии основными критериями должны быть:
- Качество строения.
- Долговечность эксплуатации.
- Экономия электроэнергии.
- Простота конструкции.
- Дешевизна дома.
Хотя таким критериям должны отвечать все дома, но проект одноэтажного каркасного дома с тремя спальнями является самым доступным, во всех отношениях.
Недостатком такого строительства при использовании уже готовых каркасных домов — отсутствие в этот момент достаточной суммы денег и определенное ограничение количества материала. Тогда как штучная технология предоставляет возможность поэтапно осваивать имеющиеся средства.
Чтобы спальня была удобной и тёплой
Спальное помещение должно быть самым тёплым в доме — и это понятно. Вопрос тем более актуален, когда спальни расположены на первом этаже, пол которого бывает довольно холодным в зимнее время.
Данной проблеме нужно уделить особое внимание: как в процессе строительства, так и по ходу производства наружных и внутренних отделочных работ. Тогда не только спальни, но и остальные комнаты будут комфортными и уютными.
Итак:
- В частных домах отопление обустраивается автономно. В качестве энергоносителя обычно устанавливают твердотопливную или дровяную печь, газовый котёл. Их работа будет эффективной только в том случае, когда теплоизоляция всех конструкций дома выполнена на должном уровне. В противном случае, перерасход топлива сильно скажется на семейном бюджете.
- И тут уж неважно, каковы габариты здания: небольшой коттедж или проект дома с 5 спальнями – лишние расходы никому не нужны. Самым оптимальным решением в таком случае, была бы организация дополнительного отопления. И тут есть два варианта: использовать потолочные инфракрасные обогреватели, или обустроить систему тёплого пола. Обогреватели не слишком удобны по той причине, что они зависят от электрической сети.
Монтаж инфракрасной плёнки под ламинат
- Кабельные и плёночные полы тоже зависят от электричества, а вот энергоносителем в водяных напольных системах является горячая вода, подогреваемая всё тем же бойлером. По желанию заказчика, тёплые полы могут быть предусмотрены в проекте, и встроены в конструкцию пола первого этажа ещё на стадии строительства.
- К примеру, проект дома с 4 спальнями может предусматривать подогреваемые полы в каждой из них. Выбор конкретного варианта дополнительного подогрева, зависит от конструкции дома, а так же разновидности монтируемого напольного покрытия. Например, стержневые маты лучше монтировать в бетонную стяжку, а инфракрасную плёнку можно закладывать в деревянный пол, и даже под ковролин.
Дизайн подоконной зоны в спальне
- Водяные тёплые полы универсальны, их можно вписать в любую напольную конструкцию, и к тому же, они вполне могут использоваться в качестве основного отопления. Тут даже есть свои плюсы: это избавит от необходимости установки отопительных радиаторов, которые так уродуют интерьер. Тем более что подоконную зону можно использовать в дизайне комнаты с гораздо большей пользой, устроив там лежанку или оборудовав удобное рабочее место.
- Один из вариантов такого практичного использования подоконника вы можете видеть на фото, приведённом выше. Если же отопление в доме обустроено традиционно, и вы чувствуете, что есть необходимость дополнительного обогрева, установить систему напольного обогрева можно даже не демонтируя пол. Только придётся сделать второе напольное покрытие.
- Что касается инфракрасных плёночных нагревателей, то их можно монтировать не только на пол, но и на стены, наклонные поверхности, и даже на потолки. В нашей стране большинство регионов имеют такой климат, что дополнительный подогрев помещений никак не помешает. И тёплые полы как ничто другое, помогают решить данную проблему.
Спальня с примыкающим к ней санузлом
- Подогрев пола важен не только для спален, но и для санузлов, которые нередко к ним примыкают. В большом доме их, как правило, несколько. К примеру, проект дома с пятью спальнями, может предусматривать не менее трёх санузлов, как совмещенных, так и раздельных. Один из них – это гостевой туалет, который обычно располагается на первом этаже, недалеко от входа.
- Второй санузел, совмещенный с ванной, предназначен для общего пользования. Вход в него будет из коридора или холла. К спальням примыкают ванные комнаты для индивидуального пользования их обитателей, и вход в них осуществляется только через изнутри комнаты. Обычно так оборудуют супружеские и гостевые спальные помещения.
Проект дома с тремя спальнями
- Кроме того, современный проект 1 этажного дома с 3 спальнями может предусматривать такую планировку: вестибюль; отдельная кухня; техническое помещение, где установлен бойлер; гардеробная; большая гостиная-столовая с выходом на террасу.
Спальные помещения обычно сосредоточены в одной части дома, противоположной столовой и кухне. Всё очень компактно и удобно – остаётся только подумать над дизайном дома, чтобы его внутреннее содержание не могло никого оставить равнодушным.
Финишная отделка и дизайн интерьера
Конечно, у каждого обитателя свои вкусы и предпочтения, выразить которые он может только в оформлении своей комнаты. Спальни могут, и должны быть разными, а вот остальные помещения желательно отделать в едином стиле — только так можно достичь гармонии.
Итак:
- Выбор варианта дизайна осуществляется в зависимости от назначения и площади конкретного помещения. Многое зависит от конструктивных особенностей дома, ведь в отделке могут участвовать и несущие балки, и деревянные стойки каркаса, и бревенчатая поверхность, и кирпичная кладка.
Проект дома с 3 спальнями в стиле Прованс: коридор
- Очень важно и то, с какой стороны: наружной или внутренней, будет производиться утепление стен. Так что, дать единые рекомендации на все случаи жизни просто невозможно: мы предлагаем варианты, а вы уже решаете, подходит вам это, или нет. Можно обратиться за помощью и к профессиональному дизайнеру, если вас, конечно, не пугает, что цена ремонта при этом значительно увеличится.
- Если вы не сами строите дом, а, к примеру, покупаете коттедж с черновой отделкой, застройщик может предложить на выбор, и, естественно, за отдельную плату, дизайн-проект на оформление интерьера. Если вам понравится концепция, но есть желание изменить некоторые детали, или поменять цветовую гамму, это можно сделать по согласованию. Как говорится: «Любой каприз…».
Проект дома с двумя спальнями: холл и гостиная
- Конечно, проекты домов с пятью спальнями, так или иначе предполагают участие дизайнера, ведь красиво оформить и уютно обставить такой огромный дом самостоятельно довольно сложно. Уж если у человека нашлись средства на подобное жильё, то и на его дизайн деньги найдутся. Наши подсказки для тех, кто таким бюджетом не располагает, стараясь всё сделать своими руками.
- Если стены дома нуждаются в утеплении, то выбирать следует те виды отделочных материалов, которые монтируются на каркас, в ячейки которого можно заложить утеплитель. В таком случае, стены можно обшить гипсокартоном, подобрав вариант красивой финишной отделки. А вариантов, благодаря огромнейшему ассортименту обоев и колеров для водно-дисперсионных красок, великое множество.
Отделка спальни: рельефные обои и структурная краска
- Главное, правильно подобрать и сочетать оттенки, не сделать интерьер монотонным. Для этого, одна стена, или её отдельные участки, могут быть выделены контрастным цветом, узором, интерьерной наклейкой. В принципе, сделать это можно с помощью любых отделочных материалов, многие из которых тоже монтируются на обрешётку — это различные панели, доска, ламинат.
- Все они применяются только для создания акцента, как, впрочем, и облицовочные материалы, монтирующиеся на клей. К ним можно отнести все виды рулонных покрытий, панели из гипса и бамбука с 3Д эффектом, натуральный и декоративный камень, керамическая плитка и различные имитации под кирпич — даже натяжная ПВХ плёнка.
Дизайн стен с 3Д панелями
- Сейчас такое множество новинок, красивых современных отделочных материалов, что порой очень трудно сделать выбор. Допустим, вам нравится простота, минимализм, спартанская обстановка. На помощь придут панели, но не классические из массива дерева, монтирующиеся в нижней части стен, а гладкие, с ярко выраженной древесной фактурой.
- Чаще всего, это МДФ, покрытый древесным шпоном, либо древесно-полимерный композит. Такими панелями можно отделать стену до потолка, но только одну – если не хотите, чтобы ваша спальня была похожа на контору. Чтобы этого не случилось, конфигурации облицовки, её фактуры и расцветки нужно комбинировать, как это сделано на приведённом нами примере.
Современная спальня: отделка панелями
- Отделка стен может быть выполнена совсем скромно и неброско, чтобы подчеркнуть, например, красоту потолочной конструкции или шикарного напольного покрытия. Это значит, что акцент не обязательно делать именно на стене. И если пол нередко застлан ковром, то потолок всегда на виду.
- И тут вариантов великое множество: гипсокартон и натяжное полотно, дерево и стекло, гипсовые панели и лепнина, различные комбинации потолочных отделочных материалов. Один из таких вариантов вы можете видеть на примере снизу. Эта сложная конструкция выполнена из гипсокартона, со вставками натяжной глянцевой плёнки и остеклённых рамок с фотопечатью.
Дизайнерский подвесной потолок в столовой
- Она имеет и практическое значение: делит помещение гостиной-столовой на зоны. Конечно, это дизайнерская работа, и такой потолок дёшево стоить не будет. Но хотя бы в одном помещении, предназначенном для приёма гостей, потолок должен поражать воображение. Для остальных комнат можно выбрать и более скромные варианты.
Не стоит забывать и об аксессуарах: красивые шторы, настенное панно, картины или фотографии на стене в оригинальных рамках, способны оживить и украсить любую комнату — даже без применения дорогих материалов.
Красивых одноэтажных домов с тремя спальнями
Очарование одноэтажных домов или бунгало никогда не выходит из моды. Многие домовладельцы всегда предпочитают их из-за их гибкости, доступности, неприхотливости в обслуживании, а также из-за доступности и экономичности.
Если вы планируете построить одноэтажный дом, вы можете проверить этот пост сегодня, потому что мы представляем четыре проекта одноэтажных домов с тремя спальнями.
Проект дома No.1
House Design # 1 использовал серый цвет, чтобы покрасить его экстерьер. Серый — это нейтральный цвет, неподвластный времени, и его часто используют для окраски фасадов домов. Он очень популярен для наружной окраски, потому что хорошо сочетается с другими цветами, такими как белый, коричневый, бежевый, розовый, пастельно-голубой и черный. Он имеет вневременную привлекательность и в сочетании с правильными цветами создает приятный внешний вид, поскольку не доминирует над другими цветами.
Технические характеристики:
- три спальни
- гостиная
- столовая и кухня
- два туалета и ванны
- прихожая
- рабочая комната
- резерв под другую комнату
- Бюджет: 30 000–50 000 долларов США или 1 песо.5М-2,5М
Проект дома № 2
Этот домик с первого взгляда покоряет своей очень веселой краской — персиковый! Персик — тоже очень красивый цвет для экстерьера. В этой статье говорится, что персик не должен храниться внутри! Персик идеально подходит для домов в стиле ар-деко, а также потрясающе смотрится на одноэтажных домах. Когда вы покрасите его в персиковый цвет, ваш дом мгновенно создаст расслабленную, пляжную атмосферу. Если вам нужен более классический образ, сочетайте его с белыми или кремовыми деталями на отделке.Чтобы создать стиль в карибском стиле, попробуйте добавить пастельные акценты, такие как цвет морской волны, мяты или голубой океан.
Технические характеристики:
- три спальни
- гостиная и столовая
- кухня
- туалеты и ванны
- крыльцо
- Бюджет: 20 000–30 000 долларов США или 1–1,5 млн песо.
Проект дома № 3
Технические характеристики:
- три спальни
- гостиная
- столовая и кухня
- туалет и ванна
- крыльцо Г-образной формы / веранда
- мини-бассейн
- Бюджет: 30 000–50 000 долларов США или 1 песо.5М-2,5М
Проект дома № 4
Технические характеристики:
- три спальни
- гостиная
- столовая и кухня
- туалет и ванна
- передняя и задняя веранды
- Бюджет: 30 000–50 000 долларов США или 1,5–2,5 млн песо.
Если вам нравится этот дизайн и вы хотите запросить план этажа, вы можете связаться с нами, оставив здесь свой комментарий.Наши архитекторы будут очень рады вашей помощи. Каждый день мы публикуем разные дизайны, которые вы можете использовать для своего вдохновения. Вы можете просмотреть другие наши дизайны и связаться с нами, если вам потребуется дополнительная помощь.
Вы можете также посетить другие наши веб-сайты. Вы можете щелкнуть следующие гиперссылки, и вы будете перенаправлены на веб-сайты. Вы можете выбирать из множества дизайнов. У каждого дизайна есть свои уникальные особенности, из которых вы можете почерпнуть идеи для создания своего собственного.Если вам нравится дизайн, не забудьте поделиться на стене, чтобы его увидели другие. Устройтесь поудобнее и наслаждайтесь. Приходите к нам снова в ближайшее время. Спасибо!
- Ulric Home
- План дома Пиной
- Дом и декор
20 дизайнерских идей для 3D-квартиры или одноэтажного плана этажа с тремя спальнями
Иногда очень сложно организовать интерьер, независимо от того, насколько велик или мало доступное пространство. Вы не хотите совершить ошибку, выбрав определенную планировку, которая на самом деле не работает, потому что будет сложно сделать это снова, особенно если вы устанавливаете сухие стены.Хорошо, если у вас есть только открытая планировка, и вы позволяете мебели определять пространство, но это была бы другая история, если вы добавляете постоянные конструкции или особенности. Итак, сегодня мы собираемся предоставить вам список планов трехмерных квартир или одноэтажных планов этажей с тремя спальнями, чтобы дать вам представление о том, как вы могли бы планировать свои пространства.
Использование трехмерных планов этажей может быть полезным для вас, переезжаете ли вы в новый дом, строите новый или просто ищете вдохновение, как обустроить место, в котором вы живете.Используя трехмерные планы этажей, вам будут предложены идеи о том, как можно объединить различные предметы в пространстве. Вы также можете вдохновиться тем, как украсить его с помощью красивых современных домашних планов. На самом деле сложно найти эти трехмерные планы этажей, но не волнуйтесь, мы вам поможем. Мы собрали 20 из этих планов этажей для помещений с тремя спальнями. Давайте прокрутим вниз, посмотрим на макеты и выберем тот, который вам подходит.
1. План с 3 спальнями
Джереми Гамлен
В этом номере есть большая открытая открытая площадка, а также уютная столовая.Эта трехкомнатная квартира идеально подходит для развлечений.
2. Креативная 3D-визуализация
Креативная 3D визуализация
Эта планировка позволяет разместить гостиную, включая зал с телевизором, чтобы домовладельцы могли приятно провести время в тишине, когда это необходимо. Мне нравятся использованные здесь цвета, а также деревянный пол в спальнях.
3. Уимблдон
Аркадский серебряный источник
Если вы хотите что-то простое с нейтральными цветами, это может вам подойти.Обратите внимание, что в этой квартире много встроенных шкафов и туалетов.
4. Три спальни: 3 спальни / 2 ванные — 1320 кв. Футов
Парк на Клермонте
Этот план этажа заставит вас влюбиться в его удобный и просторный дом с тремя спальнями, который придает особый и неповторимый вид, которого вы заслуживаете. В нем есть пол из искусственного дерева, 2-дюймовые жалюзи, а также высококлассная фурнитура и освещение из матового никеля. Также имеется полностью оборудованная кухня с гранитными столешницами, гладкой серебряной посудой, стильной плиткой на фартуке и раковинами под креплением со смесителями на гусиной шее.
5. 3-х комнатный дом План этажа 3D
Джоанг
Этот невероятный план этажа сделает жизнь удобной, давая вам больше времени, чтобы расслабиться и насладиться комфортной жизнью. В нем есть просторная гостиная и обеденная зона. В главной спальне также есть ванная комната и гардеробная.
6. Одноместный этаж, 3 спальни
Pride Purple Group
Простой дизайн домашнего интерьера с двумя верандами, на которые можно попасть через спальни.
7. Визуализация интерьера спальни
Budde Design
Итак, если у вас две машины и вы живете в одноэтажном доме или квартире, то такая планировка вам подходит. Возможно, он не слишком просторный, но в нем есть все, что нужно для жизни.
8. 3D Floor Planz
3D план этажа
Здесь я заметил складные стеклянные двери, которые используются для соединения разных частей дома. В общественных помещениях использовалась открытая планировка с деревянным полом.
9. Три спальни, три ванные комнаты
Т. Кушвант Сингх
Помимо трех спален, здесь есть еще три ванные комнаты. В нем также есть прачечная, в которую можно попасть из кухни. И еще есть крыльцо.
10. Утреннее солнце
Джереми Гамлен
Разве это не потрясающе? Мне нравятся все цвета этого плана этажа. Видно, что дом на возвышении с просторным балконом. Интересно, почему на открытом пространстве есть перегородка, в которой, как мне кажется, нет необходимости.
11. Бирюзовая стена
Budde Design
Сейчас это просторный одноэтажный дом. Помимо гаража на две машины, здесь также есть открытая обеденная зона, прачечная и встроенные шкафы для каждой комнаты. Мне просто не нравится этот коридор, который выглядит закрытым.
12. Драматический серый
3dm цифровой
В этом номере две ванные комнаты с пятью кроватями. Похоже, что во время душа будет длинная очередь, потому что здесь живет около шести человек, у которых всего две ванные комнаты.
13. CH 3 спальни План 2-го этажа
Солис Вэйверли
План этажа простой квадратной формы с небольшой верандой, на которую можно попасть через французские двери. По лестнице, которую вы видите здесь, можно сказать, что эта квартира находится на верхнем этаже.
14. Спальня
Оксизон
На этом макете можно увидеть так много цветов и так много растений, что мне он показался почти тропическим.Очень нравится, что у него есть открытое пространство, где можно наслаждаться видами и обедать.
15. 3 спальни с парковкой
3D план этажа
Интересно отметить, что на этом плане этажа не только парковка, но и дорожка, покрытая брусчаткой. Видно, что между обеденной зоной и гостиной есть перегородка.
16. Риверхилл Карлтон 3D
Riverhill Апартаменты
В планировке использована уникальная форма, но приятно знать, что здесь есть гардеробные и гардеробные для каждой спальни.Также имеется солнечная веранда.
17. Апартаменты Safi
Поиск недвижимости
Если вы из тех, кто любит проводить время на свежем воздухе, то это место для вас, так как здесь есть большая открытая площадка. Думаю, было бы лучше, если бы там был бассейн.
18. Оксизон
Оксизон
У этого также есть просторная открытая площадка, но мне больше нравится планировка этого. Возможно, он не слишком просторный, но в нем есть все, что нужно для комфортного проживания.На крыльцо можно попасть из разных частей дома.
19. Спальня Daily-Light View
Т. Кушвант Сингх
В этой конструкции очень много перегородок. Я могу сказать, что если вы удалите несколько стен, это будет выглядеть красивее, но и в этом случае тоже будет красиво.
20. 3D Floor Planz 2
3D план этажа
Такая красивая планировка, правда? Это не перегружено, и движение действительно хорошее. Но я предпочитаю, чтобы кухня была только открытой планировки.
Я знаю, что вы думаете, потому что я тоже так думаю. Эти трехмерные планы этажей с тремя спальнями выглядят действительно великолепно. Что касается презентационных целей, это действительно здорово. Итак, если вы ищете идеи, как планировать квартиру с тремя спальнями, то, что вы видите в этом списке, вам поможет. Просто выберите, как будет организован транспортный поток в вашем доме, и, конечно же, это также будет зависеть от формы, формы и размера вашей квартиры или одноэтажного дома. Удалось ли вам выбрать из планов этажей выше?
Бонусное видео
Комната на все: 3-х комнатная одноэтажная планировка дома
Этот одноэтажный дом идеален независимо от того, живете ли вы с семьей или отдельно.Когда дело доходит до проектирования и строительства дома, приходится идти на компромиссы. Помимо денег, вам также необходимо учитывать размер вашего участка, местоположение, образ жизни и размер семьи. Вот почему одноэтажный дом — один из лучших вариантов для домовладельцев.
По сравнению с многоэтажным домом, одноэтажный дом стоит меньше, что делает его идеальным для людей с ограниченным бюджетом. Поскольку здесь только один этаж, легче перемещать мебель в дом и из дома или из одной комнаты в другую, особенно если вы живете один или у вас большая мебель.
Этот одноэтажный дом идеален независимо от того, живете ли вы с семьей или отдельно. Он имеет три спальни и две ванные комнаты на площади 119 квадратных метров.
Внешний вид дома очень простой. Белые стены создают чистый и минималистичный вид. Зеленые панельные стены и черепичная крыша завершают общую современную тему. Также весь дом окружен большими стеклянными окнами на стенах.
Одноэтажный дом с просторным гаражом на 2 машины.Он также имеет положение для мини-сада. Разместив садовый гарнитур, вы сможете насладиться в этом заведении поздним завтраком или полдником.
От главного входа вы сразу увидите гостиную в центре и две спальни справа. В главной спальне есть ванная комната с ванной.
Всего в нескольких шагах от рецепции находятся столовая и кухня. Хотя кухня среднего размера, в ней много места для хранения вещей.Он также имеет доступ к служебной зоне сзади, которую можно использовать как грязную кухню или прачечную.
Напротив столовой и кухни находятся еще одна спальня, а также общий туалет и ванна. Во всех спальнях есть встроенные шкафы и развлекательные перегородки.
Вот план этого одноэтажного дома:
Вы предпочитаете жить в одноэтажном доме, подобном этому, или предпочитаете дом гораздо большего размера? Если вы хотите увидеть больше подобных планов дома, обязательно ознакомьтесь с другими планами от House And Decors!
Волшебное число для маленьких семей
Идеальный компромисс между пространством и доступностьюНе слишком маленький… не слишком большой… недорогой, простой в сборке и универсальный.
Это дом с тремя спальнями для вас — планировка, которая становится все популярнее среди американцев от побережья к побережью, и с цифрами, доказывающими, что она останется горячей тенденцией.
Согласно недавно опубликованному исследованию жилищного строительства Бюро переписи населения США — Характеристики нового жилья за 2018 год — из 617000 домов на одну семью, проданных в 2018 году, 278000, или 45 процентов, имели три спальни. Эти цифры могут вырасти в ближайшие годы, когда миллениалы станут старше и найдут более стабильную работу с повышенным доходом, что сделает их готовыми покупать собственные дома и, наконец, покинуть семейное место жительства.И что может быть лучше, чем дом с 3 спальнями, который предлагает идеальный баланс между пространством и функциональностью.
В этой статье подробно рассматриваются планы дома с 3 спальнями и многие особенности, которые делают их привлекательными и привлекательными.
Посмотрите, что можно построить на узком участке! Этот очаровательный одноэтажный дом с 3 спальнями и 2,5 ванными комнатами в стиле ремесленника имеет ширину всего 40 футов, так что он может стоять на участке, ширина которого может достигать 50 футов. Семейный номер с 11-футовыми потолками, камином и выходом на заднюю палубу (план № 120-2563).
Почему популярны планы домов с 3 спальнямиПредставьте себе все захватывающие возможности у вас под рукой, если вы выберете план дома с тремя спальнями. Концепция открытого дома, веранды, террасы, патио, сады, кухня-столовая, все удобства, а также достаточно спален и пространства для удовлетворения потребностей семьи и образа жизни. Это может быть идеальная конфигурация для ряда демографических групп.
Например, молодая пара может спроектировать просторную хозяйскую спальню с хозяйской ванной; Обустройте спальню для ребенка (или будущего дополнения к семье) — а пока используйте третью комнату как гостевой номер, который также можно использовать как семейный номер / комнату для хобби.
«Пустые гнезда», «уменьшители размера» и отдельные специалисты будут иметь большую гибкость при планировании и настройке. Они могут выбрать разделенную главную спальню — с двумя спальнями на противоположной стороне дома для большего уединения и тишины. Сразу же у них может быть выделенная комната для гостей и дополнительное пространство, которое можно преобразовать в домашний офис, тренажерный зал / тренажерный зал, медиацентр, семейную комнату или все, что они хотят иметь в этом пространстве.
В то время как план с двумя спальнями может быть немного тесноват для семей, а план с четырьмя спальнями — слишком большим и дорогим, дом с тремя спальнями — действительно «волшебное число», которое сегодня ищет большинство семей.Площадь домов обычно составляет от 1 500–2 000 кв. Футов до 2 000–2 500 кв. Футов до 2 500–3 000 кв. Футов
.Этот L-образный одноэтажный дом с 3 спальнями в стиле середины века — с его простыми, классическими и минималистскими линиями — представляет собой потрясающее зрелище в любом районе. Его многочисленные привлекательные особенности включают вход во внутренний двор, крытую веранду, открытую планировку и террасу для загара (план № 202-1013).
Характеристики / варианты конструкцииБольшинство современных домов — с одной, двумя, тремя или более спальнями — имеют открытый пол.Поскольку средний план с тремя спальнями составляет от 1500 до 3000 квадратных футов, семьи могут выбрать простой стиль или роскошный дизайн. Помимо открытой планировки этажей, гибких пространств и больших окон, основные характеристики этих домов включают кухонные острова, закусочные, кладовую, одну-две ванные комнаты, часто половину ванны, веранды, террасы, прихожую / прачечную. , Ванная комната Джека и Джилл и пристроенный гараж.
1. Kitchen Islands / Snack / Eating BarsПрекрасным элементом любой современной кухни является островок с баром для закусок.Такая установка дает много преимуществ — начиная с отдельной станции для приготовления пищи, которая позволяет нескольким поварам работать в помещении и готовить еду.
Для тех, кто любит готовить, остров может быть оборудован мойкой, варочной панелью, встроенной разделочной доской, разделочной плитой и другой посудой — и они будут готовы приготовить свои любимые рецепты.
Расставьте вокруг острова барные стулья или стулья, чтобы создать уютный уголок для повседневной трапезы, где друзья и семья могут сидеть и рассказывать истории, смотреть, как они готовят, или отдыхать.Остров также становится «центром домашних заданий» для детей, где родители могут следить за ними и контролировать их школьные проекты.
Еще одна важная функция кухонного острова — это место для хранения вещей. Поваренные книги, кухонные перчатки, кухонные полотенца, подставки для посуды и другая кухонная посуда могут поместиться в дополнительных ящиках, шкафах и полках.
В этом невероятно просторном и красивом доме в стиле модерн середины века, показанном выше, есть все, чтобы сделать его социальным центром дома.Большие стеклянные окна обеспечивают великолепный вид, встроенное освещение, подвесные светильники и огромный кухонный остров с креслами для «обедов на ходу» или неформальных обедов (план № 202-1013).
2. ГрязьДа, семьям нужна «обязательная» площадка для развешивания снега и непромокаемой одежды, пляжной одежды, спортивного снаряжения, рюкзаков, зонтов, головных уборов и открытых полок для обуви, ботинок, шлепанцев сандалий. Прихожую, где семьи хранят все свои вещи на открытом воздухе, можно интегрировать в общий дизайн плана с тремя спальнями.Вы можете организовать прихожую, установив крючки для шляп, курток, зонтов и соорудив полки и ящики для других аксессуаров.
Следует иметь в виду одну вещь: даже со всем снаряжением, непромокаемой одеждой и обувью в прихожей нет причин превращать это пространство в хаотичную «свалку». Используйте свой творческий потенциал, чтобы превратить прихожую в функциональную и презентабельную зону, которая не будет закрыта для ваших гостей.
Все дело в организации и презентации. Это прихожая в современном 1-этажном, 3-х комнатном, 3.Дом на 5 ванных комнат аккуратный, светлый, оборудован крючками для курток и открытыми полками под лавкой для хранения обуви (план №202-1027). 3. ПрачечнаяТак же, как и пристройка, прачечная — еще одна необходимая вещь для семей, выбирающих планировку с тремя спальнями. Давайте смотреть правде в глаза. Нравится ли нам стирать белье или ненавидят идею тратить время на стирку одежды, простыней и полотенец, мы должны это делать. Так почему бы не сделать это приятным, создав удобную, организованную зону?
Поскольку прачечная больше не отводится в подвал, домовладельцы могут превратить ее в светлое пространство, оборудованное стойками для складывания и шкафами, ящиками и полками для хранения вещей.
Не могли бы вы постирать белье в этой комнате? Одноэтажный дом в стиле кантри с европейскими оттенками. К услугам гостей просторная и ярко освещенная прачечная. Есть счетчик для складывания одежды (частично закрытый), шкафы и ящики, доска для прикрепления напоминаний и даже натяжной стержень для недавно отглаженной одежды (план № 153-1943).
4. Джек и Джилл Ванная комнатаВ доме никогда не может быть достаточно ванных комнат.Большинство домов с 3 спальнями имеют две ванные комнаты с туалетом и половину ванны (дамскую комнату). В главной спальне есть собственная ванная комната как часть набора, а остальные две спальни могут иметь общую ванную комнату «Джек и Джилл», которая описывается как ванная с двумя или более входами. Входы могут быть из двух спален или из коридора и спальни — или, если это огромная ванная комната, из коридора и каждой спальни.
Этот план верхнего этажа потрясающего роскошного дома в техасском стиле показывает, что спальни 2 и 3 разделяют ванную комнату Джека и Джилл, в которую есть входы из каждой спальни (каждый вход с собственным туалетным столиком) и распашные двери в общий туалет / душ. участок (план 161-1076)
5. Подъезды и террасыОдной из тенденций, которая продолжает оставаться стильной и популярной, является жизнь на открытом воздухе. От крошечных домов площадью 400 квадратных футов до домов с 3 спальнями и самых больших и роскошных резиденций вы можете ожидать увидеть крытые веранды, патио, террасы и дворы. Современные жилые пространства на открытом воздухе, спроектированные так, как того пожелает семья, имеют камины, грили, удобные зоны для отдыха и столовой — и все удобства, которые делают их уютными, привлекательными и теплыми.
Выйдите в тепло и комфорт крытой террасы и обширного патио из Большой комнаты этого впечатляющего L-образного современного дома с плоскими крышами (план № 202-1027).
Преимущества планов с 3 спальнями1. Доступность и универсальность — План с тремя спальнями экономичен и не обойдется дорого для молодых специалистов или пар, ищущих первый дом. В то же время он предлагает несколько вариантов макетов дизайна и функций.
2. Места хватит всем — в спальнях, жилых помещениях и на открытых площадках.
3. Обычно проста в сборке и обслуживании из-за своего размера
4. Энергоэффективность и экологичность — Планы с 3 спальнями из-за того, что занимают меньше места, используют меньше тепла и кондиционирования воздуха и экономят воду лучше, чем дома большего размера.
Выбор стиляКак и более крупные планы дома, планировка с 3 спальнями также представлена в различных архитектурных стилях: акадский, бунгало, современный, коттедж, деревенский, ремесленный, европейский, фермерский, модерн середины века, техасский стиль, традиционный и другие.Они могут быть одноэтажными, полутораэтажными и двухэтажными.
Одна из наиболее популярных планировок в планах с 3 спальнями — одноуровневые, полутораэтажные или двухэтажные — это главная спальня с разделением. В этой конфигурации главная спальня находится на одном конце, а две другие спальни — на противоположной стороне дома.
Давайте посмотрим на эти фантастические планы с тремя спальнями в различных архитектурных стилях. Один взгляд на них, и вы представите себя живущим в одном из этих великолепных домов.
Одноэтажный план с тремя спальнями акадский стильОдин из самых востребованных домов на сегодняшнем рынке недвижимости, план Acadian имеет самые высокие оценки на юге, особенно на побережье Мексиканского залива. В планах Acadian прослеживается сильное влияние французского и каджунского языков, и они в основном представляют собой одноэтажные модели. Однако они также могут быть спроектированы как полутораэтажные конструкции.
Французские и ремесленные элементы сочетаются в этом очаровательном одноэтажном доме в акадском стиле площадью 1900 кв.f.t жилого пространства, сконфигурированного в виде открытого пола. Дом с 3 спальнями и 2 ванными комнатами имеет раздельную планировку главной спальни (план № 142-1163).
Стиль кантриШагните на крыльцо этого восхитительного одноэтажного дома в стиле кантри с привлекательными распашными дверями и хорошо продуманной входной дверью со сводчатым потолком. Дом включает в себя 2,5 ванны, большую комнату, высокие потолки и заднюю веранду с летней кухней (план № 142-1205).
Сельский стильПодайте лимонад или чай со льдом и расслабьтесь на крыльце этого очаровательного фермерского дома в современном стиле, где также есть 2,5 ванны, большая комната с камином, кухня открытой планировки и рабочий уголок (План № 142- 1180).
Современный стильБлагоустроенный двор и крытые передние и задние веранды — вот некоторые из открытых жилых пространств этого поразительного современного плана с элементами калифорнийского стиля.Одноэтажный дом включает в себя 3 спальни, 2 ванные комнаты, прачечную (план № 158-1306).
Полуторные планы с тремя спальнями Стиль кантри (с элементами декоративно-прикладного искусства)Прекрасный дом в загородном стиле с архитектурными элементами, напоминающими проекты декоративно-прикладного искусства, ремесленников и фермерских домов, с широким крыльцом, фойе с 10-футовыми потолками, большой комнатой с 11-футовыми потолками, 3 спальнями и 2 ванными комнатами (план № 142-1166).
Европейский стильЭтот дом в европейском стиле с акадскими мотивами источает очарование и сдерживает привлекательность от ухоженного внутреннего двора с красочными цветами до привлекательного крыльца. 1,5-этажная резиденция площадью более 1500 кв. Футов включает в себя 3 спальни, 2 ванные комнаты, большую комнату и главную спальню на основном уровне (план дома № 142-1058).
Техасский стильВверху: Это потрясающе 1.Пятиэтажный дом в техасском стиле с элементами кантри располагает 3 спальнями и 2,5 ванными комнатами. Подходящий размер для растущих семей или семей, состоящих из нескольких поколений, включает в себя просторный лофт, подходящий как люкс для свекрови. Внизу: Посмотрите на очаровательно оформленное и меблированное семейное пространство и обеденную зону в доме. Обратите внимание на кирпичный камин и уникальную люстру над обеденным столом (план № 106-1279).
Двухэтажный план с тремя спальнями Стиль бунгалоЖивите в сказочной обстановке в этом красочном и привлекательном доме в стиле бунгало с акцентами мастеров.План 2-этажного этажа включает 1683 кв. Фута жилой площади, 3 спальни и 2,5 ванных комнаты (план № 178-1144).
Коттеджный стильВот еще один красивый дом с 3 спальнями в деревенском стиле. Привлекательный дом в стиле коттеджа с элементами бунгало имеет жилую площадь 2185 кв. Футов с 2 полностью оборудованными ванными комнатами и половиной ванной (план № 142-1096).
Стиль мастераУдивительные внешние особенности — двускатная крыша, белые колонны на каменных постаментах и широкое крыльцо — добавляют привлекательности этому прекрасному плану в стиле Мастера.В двухэтажном доме есть 3 спальни, 2 ванные комнаты, задняя веранда, разделенная планировка главной спальни и прачечная на основном уровне (план № 104-1064).
Благодаря широкому спектру конструктивных особенностей, стилю и, что наиболее важно, доступности, дом с тремя спальнями создает поистине «золотую середину» в доме
.архитектурный ландшафт.
Сноска: Первое изображение в этой статье представляет собой впечатляющий 1,5-этажный дом во французском стиле с 3 спальнями и 2 ванными комнатами с прекрасными удобствами.Для получения дополнительных сведений о доме и его функциях перейдите к плану № 142-1209.
Популярные и стильные: планы этажей с 3 спальнями, которые мы любим — Блог
Кортни Питтман
Эти проекты умных домов отлично подходят для самых разных домовладельцев. Безусловно, наша самая модная конфигурация спален, планы домов с 3 спальнями отличаются широким спектром функциональности и удобства. Работа из дома? Превратите одну из спален в классный домашний офис.Или, возможно, спальню номер три можно использовать как гостевую комнату. Имея на выбор тысячи планов домов, мы предлагаем множество планов домов с 3 спальнями в тоннах архитектурных стилей. Если вы ищете современный дизайн фермерского дома, план дома мастера или более современный дизайн дома, вы обязательно найдете дом своей мечты в нашей коллекции домов с 3 спальнями. Вдохновитесь этими самыми продаваемыми (и новыми!) Планами дома с 3 спальнями.
План загородного дома с большим кухонным островом
План 1074-1
Хотите одноэтажную планировку с открытой планировкой? Этот современный фермерский дом площадью 1814 квадратных футов предназначен для отдыха.Кухня представляет собой большой остров для отдыха. Посмотрите на большую веранду в задней части дома.
План современного фермерского дома с непринужденной атмосферой
План 935-17
Загляните внутрь этого современного плана фермерского дома, который отличается прекрасным течением и расслабляющей атмосферой. Этот дизайн дома — это стиль и удобство с гостиной, которая полностью открывается в обеденную зону и островную кухню. Потрясающая стена из окон (вверху) обеспечивает много естественного света и делает места для встреч яркими и открытыми, а большой камин дарит комфорт и тепло.
Другие интересные моменты, которые нам нравятся: просторный главный шкаф, который соединяется как с прачечной, так и с прихожей, главная спальня с камином и прохладная барная зона между обеденной зоной и кухней. Не пропустите душ на открытом воздухе рядом с главной спальней!
Ознакомьтесь с идеями небольшого домашнего бара от HGTV
Современный дизайн дома с открытой планировкой
План 929-1084
Современный и элегантный, этот дизайн площадью 1948 квадратных футов демонстрирует открытую планировку с множеством продуманных деталей.Например, третья спальня находится рядом с фасадом и включает в себя две точки входа (одну в фойе, а другую в коридор), что означает, что она одинаково хорошо работает как домашний офис или спальная зона. В левой части дома в главной спальне есть окна в крыше в спальне и собственная ванная комната с огромной гардеробной.
Центр дома кажется открытым и ориентированным на кухню, идеально подходящим для непринужденной обстановки. Бонусная комната наверху добавляет возможность дальнейшего расширения.
План этажа с 3 спальнями и дверями сарая
План 929-1083
Уединение и единение находят правильный баланс в этом компактном дизайне, который дает главной спальне отдельный уголок и побуждает всех вместе весело провести время в открытой большой комнате.
Кухня представляет собой островок и выходит на открытую, светлую обеденную зону (обратите внимание на световые люки). Двери сарая, ведущие во второстепенные спальни, добавляют милую деревенскую нотку.Для посещения родственников или старшего ребенка бонусная комната может превратиться в просторный номер.
Изучите тенденции кухонного острова от Builder Online
План дома в деревенском стиле с крыльцом
План 923-127
Хотите максимально просторную планировку? Это может быть план этажа для вас. Передняя и задняя веранды способствуют развлечениям на свежем воздухе, в то время как центральные зоны отдыха непрерывно перетекают из островной кухни в обеденную зону и большую комнату.Взгляните на прохладную крытую веранду с кухней для гриля и камином.
Шикарный современный дизайн фермерского дома
План 430-187
Этот дизайн площадью 2201 квадратный фут сочетает в себе шикарный современный стиль фермерского дома и удобную планировку для семей. В главной спальне есть большая ванная комната (обратите внимание на двойные раковины и большой душ) и прямой доступ в прачечную через гардеробную. Подкрылки сохраняют въезд из гаража в порядок.
В центре дома остров выходит на открытую обеденную зону и большую комнату. Бонусная комната наверху добавляет гибкости.
** Вневременной план узких участков
План 928-323
Идеально подходит для узкого участка, Greenlea от Visbeen Architects дает вам вневременную привлекательность и современную открытую планировку. Кухня приглашает всех провести время на острове, с которого открывается вид на обеденную зону и открытую гостиную. Хотите, чтобы все было организовано? В удобной прихожей достаточно места для хранения вещей.Обратите внимание на просторные спальни.
Классный план дома с открытой планировкой
План 895-110
Современная и классная, эта одноэтажная планировка прекрасно вписывается на узкий участок. Открытая планировка между основными жилыми зонами позволяет легко принимать и развлекать друзей и семью. В отличие от множества небольших домов на существующем внутреннем рынке, этот включает в себя роскошную главную спальню с большим душем, двумя раковинами и гардеробной.Еще одна изюминка, которую мы любим, — это большой кухонный остров.
План этажа с 3 спальнями и гостиной на открытом воздухе
План 895-101
Современный дизайн может казаться легким и ярким, о чем свидетельствует план этажа с 3 спальнями. Внутренний двор соединяется со столовой для легкой и захватывающей жизни в помещении и на открытом воздухе. Мастер-люкс также выходит во двор. В собственной главной ванной комнате расслабьтесь под большим душем и наслаждайтесь двумя раковинами.
План одноэтажного современного фермерского дома
План 1070-31
Стиль, вдохновленный фермерским домом, кажется совершенно современным для этой одноэтажной планировки. Внутри кухня может похвастаться как большим островом, так и большим количеством прилавков, с обеденной зоной все-в-одном в пределах видимости. Для дополнительного удобства в каждой спальне есть полностью оборудованная ванная комната.
Стильный дизайн дома с крыльцом
План 430-192
Изучите тонны фотографий этого элегантного плана дома с 3 спальнями.Наша любимая часть? Кирпичные стены внутри создают приятный вид на большую открытую кухню. Или, может быть, супер-роскошная главная ванная комната, состоящая из двух частей (без разделения!).
Яркий дизайн ранчо
План 888-11
Этот дизайн ранчо дает вам ультра-комфортную главную спальню на первом этаже (взгляните на ту гардеробную), а также открытые места для собраний. Множество окон делают этот дом с 3 спальнями светлым и ярким.Гостевые апартаменты на этом уровне предлагают комнату для посетителей в дополнение к полноценной квартире с одной спальней наверху.
[] (план: 888-11)
Планы домов с 3 спальнями — простые и уникальные планы этажей для семей
Возможности планов дома с 3 спальнямиДома, построенные по плану дома с 3 спальнями, представляют собой отличное вложение в будущее и семью. Разнообразие возможностей трехкомнатных домов с гаражом и без него — воодушевляет.Возможно, поэтому так популярна планировка дома с тремя спальнями.
Три спальни плюс кухня, гостиная и, возможно, столовая предлагают широкий спектр возможностей. Дома с тремя спальнями идеально подходят для новой семьи, которая собирается расти. С небольшим воображением и несколькими двухъярусными кроватями Брэди Банч жила в доме с тремя спальнями.
Конечно, ваша семья не должна быть такой большой, чтобы она могла эффективно использовать план дома площадью 1000 кв. Футов с 3 спальнями. Он также идеально подходит для главной спальни, одной детской спальни и третьей спальни для гостей.Использование третьей спальни в этом сценарии может со временем измениться. Это одна из центральных прелестей плана дома с тремя спальнями. (Это применимо даже к плану крошечного дома с тремя спальнями.)
То, что раньше было спальней для гостей, можно, конечно, превратить в спальню еще одного ребенка. Его также можно было бы превратить в домашний офис. Или, возможно, студия йоги станет частью семейной картины. Или любое другое занятие или хобби. Или в те воскресенья, когда телевизор в гостиной весь день настроен на футбол, спальня номер три может быть альтернативной комнатой для развлечений.
При планировании дома с тремя спальнями у вас, конечно же, есть возможность выделить главную спальню отдельно от других спален. Это может дать каждому немного больше конфиденциальности.
Счастливый средний
Конечно, с планированием семьи амбиции могут возрасти, и у людей может возникнуть соблазн построить больше домов, чем им на самом деле нужно. Планы дома с тремя спальнями — золотая середина. Четыре и более комнат могут быть слишком грандиозными по дизайну для конкретной семьи, что приводит к заброшенной свободной комнате и чудовищной ипотеке.Дом с тремя спальнями — это удачный компромисс между ростом и осмотрительностью.
Одноэтажный дом открытой планировки с 3 спальнями и планировкой
Купить этот план
Об этом плане
Поэтажный план
Сведения о планеКоличество квадратных метров
Кровати / Ванные
Тип фундамента
Наружные стеныРазмеры
Гараж
|


Можно и отказаться, но так не хочется.
м.
В этом случае холодный воздух при каждом открывании дверей не будет попадать в жилые помещения. Если тамбур совсем уж не вписывается в пределах стен, его можно вынести и сделать в виде пристройки. Не самое изящное решение, но имеет право на существование.
А отсеяв большую часть из них как неподходящую под ваши требования, вы можете дать волю фантазии. Но не забывайте про комфорт!