схемы электропроводки + как провести самому
Обязательная часть ремонтных работ в квартире – замена или монтаж электрических кабелей, распределительных коробок, электрощита. Грамотно подобранная схема электропроводки обезопасит жилье от аварий и непредвиденных ситуаций.
Мы расскажем, что нужно предусмотреть при самостоятельной замене или прокладке электрики. У нас вы узнаете, как составить схему и распределить электроточки в однокомнатных, двух- и трехкомнатных квартирах. С учетом наших рекомендаций вы сможете обеспечить себя безотказно действующей энергетической сетью.
Содержание статьи:
Отличительные черты современной электропроводки
Современные бытовые технологии в конце 20 века сделали ощутимый рывок. В домах кроме телевизоров появились компьютеры, системы охраны и видеонаблюдения, мощная бытовая техника, беспроводная связь. В связи с этим разводка электрических кабелей стала намного сложнее, хотя принципы устройства не изменились.
Сложности начинаются с самого первого этапа – проектирования. Чтобы грамотно составить схему проводки в квартире, необходимо заранее знать приблизительную мощность бытовых электроприборов, места их расположения. Одновременно с этим нужно продумать систему освещения во всех помещениях.
Если вы не учтете прокладку компьютерного кабеля и установку роутера для домашней сети, в дальнейшем получите висящие по стене или протянутые по полу провода. В лучшем случае их удастся спрятать в плинтус или зашить в короба
Кроме большого количества новых приборов появилось еще одно отличие: наряду с силовой сетью обязательно присутствует слаботочная система, традиционно включающая в себя телефонные и телевизионные провода, а также компьютерное, охранное, акустическое оборудование и домофон.
Эти две системы (силовую и слаботочную) разделять нельзя, так как все приборы питаются от источников электросети 220 В.
Схема разводки слаботочной системы в квартире. Включает в себя три сети: компьютерную, телефонную и телевизионную.
Для каждой сети предусмотрены свои виды кабеля и оборудование
Изменилось количество эксплуатируемых одновременно приборов и кабелей. Если раньше хватало установки в зале одной люстры, то сейчас многие используют осветительную систему, включающую, кроме люстры, точечные светильники и подсветку.
К увеличению количества техники нужно прибавить увеличение мощности – по этой причине старые кабеля уже не подходят, а размеры электрораспределительного щита заметно выросли.
Для чего нужна схема разводки?
Получается, что устройство современной разводки электрики в квартире – это настоящее искусство, справиться с которым под силу только профессиональному электрику.
Если вы не хотите постоянно менять отделку стен, чтобы маскировать то тут, то там появляющиеся кабеля, рекомендуем перед ремонтом квартиры или строительством дома составить чертеж с обозначением всех значимых объектов, связанных с электричеством: розеток, выключателей, электрощита с , осветительных приборов.
Образец схемы, которую может набросать собственник жилья. Внимание уделено обозначению мест расположения всех электроточек, начиная от электрощита и заканчивая розетками
Ориентируясь на требования или пожелания владельца жилья, электрик составляет принципиальную схему электропроводки в квартире. Его задача – разделить кабеля на группы, чтобы правильно распределить нагрузку, продумать систему управления и защиты и в конечном итоге сделать все, чтобы гарантировать безопасность и комфорт.
Что обязательно нужно учесть при составлении схемы, чертежа, плана работ, необходимого для грамотной ?
Рассмотрим электросеть с точки зрения составляющих частей:
- Автоматические аппараты защиты, установленные в электрическом щите. От их качества и грамотной установки зависит функционирование всего домашнего оборудования и безопасность пользователей.
- Кабеля, провода с правильно подобранным сечением и хорошей изоляцией.
- Розетки и выключатели с качественными контактами, безопасными корпусами.

В частных домах обязательный элемент – вводный автомат и силовой кабель от него к щиту. С помощью регулируют потребляемую мощность и при необходимости отключают всю электроэнергию дома.
Примерная схема электропроводки в частном доме. Главное внимание следует уделить распределению мощностей по автоматическим выключателям и защите каждой выделенной линии
Электросчетчик обычно устанавливается на входе, срезу после вводного автомата.
Разделение электропроводки на группы (линии)
Управлять и контролировать электросетью гораздо легче, если она разделена на несколько линий. В случае возникновения неисправности или аварийной ситуации можно выключить одну группу, тогда как остальные будут функционировать в обычном режиме.
Вариант разделения на 4 группы:
Галерея изображений
Фото из
Предположим, в городской квартире осуществляется прокладка отдельного силового кабеля для стиральной машины. Особенно это актуально для домов старой застройки со слабой электропроводкой, не выдерживающей сильных мощностей
На кухне обычно находится множество приборов, одновременное включение которых также требует монтажа силового кабеля подходящего сечения: варочная плита, духовой шкаф, тостер, мультиварка, микроволновая печь, посудомоечная машина
Санузел – одно или два помещения с повышенным уровнем влажности. Это необходимо учитывать как при монтаже системы освещения, так и при установке розеток, которые должны иметь полагающуюся степень защиты
Так как в каждой комнате обычно более, чем один осветительный прибор, рекомендуют устанавливать несколько отдельных групп. Например, разделить освещение зала (люстра, подсветка, 2 настольные лампы), спальни (2 бра, верхний свет) и детской комнаты (точечное освещение, ночник, настольная лампа)
1 группа – мощная бытовая техника
2 группа – кухонная линия
3 группа – ванная и туалет
4 группа – осветительная система
Далее о каждой электрогруппе более подробно.
Стационарная бытовая техника
Крупная бытовая техника обычно располагается в зоне кухни или санузла.
Схема расположения розеток на кухне. Правила: непосредственно за посудомоечной и стиральной машинами размещать розетки запрещено; лучше использовать влагозащищенные модели (+)
Отдельное подключение кухонной зоны необходимо для проведения ремонта. Если произойдет поломка одного из устройств, потребуется замена. Чтобы не отключать электричество во всей квартире, достаточно выключить один аппарат защиты, отвечающий за стационарное оборудование.
К сожалению, даже дорогая бытовая техника время от времени выходит из строя. Ремонт порой затягивается на несколько часов. Отдельная электрогруппа позволит сохранить комфортное пребывание на кухне и в других помещениях
Что мешает просто отключить сломанный прибор от сети, вытащив вилку из розетки? Дело в том, что у встроенной техники точки подключения к электросети находятся в труднодоступных местах.
К тому же неисправность может произойти не в самом приборе, а в проводке, замаскированной в стене. В этом случае передвинуть рычажок автоматического выключателя гораздо легче.
Выделенная линия для кухни
Кухонная линия традиционно является самой загруженной. Примерно 5-6 агрегатов постоянно включены в сеть, даже если не задействованы. Это относится к холодильнику, духовому шкафу, варочной плите, посудомоечной машине, вытяжке, микроволновке, тостеру. Многие пользуются кухонным электрогрилем, мясорубкой, хлебопечкой, мультиваркой и пр.
Схема электрической разводки для кухни, разделенная на 4 группы. Для мощного бытового оборудования в распределительном щите установлены отдельные автоматы
В данном случае отдельный мощный электрический кабель просто-напросто сделает возможным одновременное применение сразу нескольких устройств.
Если на общей проводке «повиснут» еще и осветительные приборы или водонагреватель, то при включении очередного устройства сеть просто не выдержит и сработает автоматическое отключение.
Подробный разбор схем и вариантов расположения приведен в статье, с которой мы рекомендуем ознакомиться.
Одна или несколько осветительных групп?
Учитывая количество осветительных приборов в каждом помещении, можно сделать одну или несколько линий. Если в зале одна шестирожковая люстра, а в спальне маломощное верхнее освещение и два бра-ночника, то все приборы можно объединить в одну линию.
Однако если гостиная напоминает зал для дискотеки – с люстрами, точечными светильниками, потолочной и настенной подсветкой – то только для нее следует организовать отдельную группу.
Схема разводки точечных или галогенных светильников 220 В для одного помещения, например, для кухни, детской комнаты или прихожей
Если кроме светильников в сеть одной комнаты включены трансформаторы или блоки питания, то ее также рекомендуется подключить к отдельному аппарату защиты.
Помещения с повышенной влажностью
К электроприборам и кабелю в санузле применяются повышенные требования, так как близкое соседство воды – это риск. Чтобы электросеть была безопасной и функциональной, при составлении схемы и монтаже разводки необходимо учитывать ряд правил:
Галерея изображений
Фото из
Правило 1 – установка распределительной коробки
Правило 2 – монтаж розеток для электроприборов
Правило 3 – место установки выключателя
Правило 4 – способ монтажа проводки
Требования распространяются также на выбор фурнитуры, которой придутся пользоваться регулярно – розеток и выключателей. Предположим, степень защиты розеток должна быть не менее IP 44, а еще лучше приобретать специальные устройства с защищающей от брызг крышкой.
От светильников 220 В рекомендуют отказаться в пользу аналогов 12 В.
Трехжильный медный провод вполне подойдет для установки розеток в санузле, но стоит обратить внимание на сечение: для подключения рядовых приборов оно должно быть не менее 2,5 мм², для мощного электрооборудования – 4 мм². Отечественный вариант – ВВГнг
Если в старом жилье в квартирном щитке не предусмотрено заземление, то не только в ванной комнате, но во всей квартире электропроводку придется заменить на трехжильную.
С правилами выбора для обустройства ванных и санузлов предлагаем ознакомиться в статье, посвященной этим вопросам.
Обзор схем электропроводки для жилых помещений
Перейдем к конкретным схемам, которые можно применить в процессе планирования разводки в собственном помещении. При составлении чертежа важно учесть расстановку и мощность стационарной техники, условия использования электроприборов, комфортное для использования размещение розеток и выключателей.
Вариант #1: однокомнатное жилье или студия
Отличительная черта однокомнатного жилья – минимальное, по сравнению с остальными вариантами, количество электроприборов, соответственно, образуется меньшее количество подключаемых линий. Но это не значит, что для кухни или санузла не нужно планировать отдельные группы – общие принципы лучше сохранить.
Вариант схемы проводки для 1-комнатной квартиры с учетом того, что в каждом помещении планируется установить один прибор освещения
Рассмотрим, что обязательно следует предпринять при составлении схемы разводки электрики в однокомнатной квартире:
- выбрать основные параметры электрической сети;
- рассчитать нагрузку, подобрать кабель и УЗО;
- выбрать схему подключения (1 или несколько групп).
Решив эти вопросы, составить схему будет намного легче.
Параметры электрической сети
Сложно заранее решить, какие приборы будут установлены во всей квартире, тем не менее, хотя бы приблизительное их количество необходимо, чтобы правильно подсчитать суммарную мощность.
Важно определить и места их размещения, так как использование удлинителей и фильтров в дальнейшем создаст дополнительные проблемы для сети и испортит дизайн интерьера.
При выборе мест для монтажа розеток и выключателей вспоминаем требования ПУЭ: рекомендуемая высота от пола для установки розеток – 0,3-1,8 м, выключателей – 0,6-0,9 м. Ориентируемся на удобство пользования
Также важно выбрать способ прокладки кабелей – открытый или закрытый.
предполагает укладку проводов поверх декоративной отделки стен. В этом случае чаще всего проводку прикрывают пластиковыми коробами, но в отдельных случаях оставляют на виду.
Монтаж проводов в открытом виде даже приветствуется, если дизайн интерьера выполнен в стиле лофт или кантри: стилизованные винтажные розетки и находящиеся на виду провода являются частью декоративного оформления
Преимущества открытой проводки:
- возможность установки после или во время ремонтных работ;
- быстрый монтаж;
- в любое время можно подключить еще одну линию.
При монтаже скрытой проводки придется штробить стены, чтобы все провода замаскировать под финишной отделкой. Проще с подвесными конструкциями: подводку для системы освещения можно спрятать над натяжным покрытием или коробом из гипсокартона.
У скрытой проводки плюсов немного, но они весомее:
- предъявляются не такие строгие требования к параметрам и условиям монтажа;
- увеличиваются допуски к номинально разрешенным токам;
- сохраняется интерьерная целостность.
Традиционно в новых квартирах используют скрытую разводку, а открытым способом пользуются только в виде исключения (например, при прокладке новой линии в уже отремонтированной квартире).
Расчет нагрузки электросети
Чтобы рассчитать общую нагрузку электроприборов, необходимо знать номинальную мощность электроприемников, номинальный ток и напряжение электросети. Существует множество формул расчета, но лучше воспользоваться готовыми таблицами.
Таблица потребляемых мощностей наиболее распространенных бытовых электроприборов, которые обычно используются жителями квартир. Значения усредненные, поэтому для точного расчета необходимо знать характеристики приборов (+)
Рекомендуем для подсчета точной нагрузки обратиться к инженеру или воспользоваться компьютерной программой, потому что от результата зависит .
При выборе сечения кабеля необходимо учитывать не только материал проводки (медь или алюминий), но и способ прокладки (открытый или закрытый), так как у закрытой проводки теплопроводность меньше, следовательно, и ток также меньше (+)
По правилам, если внутриквартирные сети разделены на группы, то каждую отдельную линию необходимо оборудовать автоматом 25 А.
Следовательно, при разбивке на группы учитываем суммарный номинальный ток (не более 25 А).
Существуют исключения: например, для осветительных сетей достаточно аппарата защиты на 16 А, но при условии, что группа включает в себя не более 20 розеток и ламп одновременно.
Какая схема подключения лучше?
Для однокомнатной квартиры возможны два варианта: питание от одной группы и питание от нескольких групп. Первый вариант в современных условиях практически не применим хотя бы потому, что для использования даже одного мощного бытового прибора (например, стиральной машины) необходима отдельная линия с аппаратом защиты.
Такие схемы могут существовать в квартирах старого жилого сектора, в которых на протяжении долгих лет не проводился ремонт, или на даче, где нет мощного электрооборудования. Получается, что даже для устройства электрики в однокомнатной квартире необходимо разделение на группы.
Примерная схема подключения электроточек по группам. Для кухни выделено целых три группы, обслуживающих электроплиту, малую бытовую технику и осветительную сеть
Эта схема практически применима к любому типу жилья, но точек подключения, соответственно, и линий, в 2- и 3-комнатных квартирах будет больше.
Вариант #2: 2-, 3-комнатная квартира
Принципиально электрическая разводка не зависит от количества комнат, но существует ряд особенностей, которые нужно учесть:
- розеточную сеть лучше разделить на несколько групп – по количеству комнат;
- осветительную систему также необходимо разделить по комнатам;
- для кухни следует выделить как минимум три линии – для приборов освещения, мощного оборудования и малой бытовой техники;
- если санузел раздельный, лучше также использовать разделение на 2 группы.
Учитывая, что большая площадь квартир характерна для жилья элитной категории, в схемы разводки включают охранное оборудование.
Примерная схема установки защитной аппаратуры для квартиры с двумя комнатами.
Предполагается, что кроме розеточных и осветительных групп в квартире установлена система видеонаблюдения и охранная сигнализация
Если составлением схемы и монтажом занимаются специалисты, то и у вас по окончании работ должна остаться схема – на случай ремонта или возникновения непредвиденной ситуации.
Схема установки розеток и осветительных приборов в трехкомнатной квартире. При составлении схемы электропроводки для многокомнатных квартир лучше использовать несколько чертежей, так как в одном сложно обозначить все группы, включая слаботочные
По разработанной схеме прокладки электролиний и установки электроточек можно смело выполнять монтаж . Желательно избегать изменений в спланированной разводке во время производства работ. Однако если в них возникнет необходимость, корректировку схемы нужно делать с учетом вышеизложенных правил.
Составляя , обязательно следует указать входное электрооборудование и параметры кабеля из входной группы.
Выводы и полезное видео по теме
Составить схему электропроводки можно в виде чертежа, сделанного вручную, или используя компьютерную программу. Пример разводки для квартиры в трехмерном компьютерном изображении:
Профессиональные советы от практиков:
Тонкости различных видов подключения розеток и выключателей:
Провести электрическую сеть в квартире, защитив все устройства и правильно распределив нагрузку, можно при одном условии – если вы являетесь квалифицированным электриком.
Работать с распределительным щитом без специального допуска нельзя. Следовательно, поменять розетку или подключить вытяжку можно и самостоятельно, а более серьезные работы лучше перепоручить специалистам.
Хотите поделиться личным опытом в составлении схемы для модернизации или ремонта электролиний в квартире? Есть вопросы или ценные рекомендации? Пишите, пожалуйста, комментарии в расположенном ниже блоке.
пошаговые примеры разводки, монтажа и подключения
Современные требования к электрической проводке взяли высокую планку, так как в квартирах и домах возросло количество электрических приборов.
Поэтому проводка должна выдерживать возможные нагрузки и соответствовать требованиям безопасности.
Во время строительства или капитального ремонта должна быть разработана новая схема электропроводки в квартире, которая учтет возросшие потребности человека в электроэнергии.
По новым стандартам проводку часто прокидывают по потолку Вернуться к оглавлениюСодержание материала
Особенности проводки в новых домах
Проводка, которая делалась в квартирах 40 лет назад, рассчитывалась на работу малого набора приборов – телевизора, холодильника, освещения. Максимальные нагрузки давали электроплиты, чайники и кипятильники.
Сегодня люди покупают компьютеры, системы видеонаблюдения, мощную бытовую технику, устройства беспроводной связи и другое.
При этом принципы проектирования электропроводки не изменились, но стала сложнее и разветвленнее сеть.
Совет! Важно предусмотреть оптимальное количество розеток на приборы, которые будут использоваться жильцами. В противном случае в ход пойдут тройники и удлинители, что приводит к росту нагрузок на отдельные участки проводки и перегреву.
Количество электроточек возрослоДополнительная сложность составления схемы электропроводки заключается в сопоставлении ее рабочих параметров с мощностью приборов.
Поэтому заранее нужно знать, что и где будет стоять, и какие нагрузки на сеть будет оказывать.
Второй момент – правильное освещение помещений, которое осуществляется в соответствии с нормами СП 52.13330.2016.
Наряду с силовой сетью в квартирах используется и слаботочная. Это телевизионные и телефонные кабели, компьютерное оборудование, оптоволоконные сети, домофоны и акустика. Физически их разделять нельзя, так как приборы подключаются к ним одновременно, а значит, при составлении проекта учитывается положение трасс.
Существенно изменилось количества кабеля, нужного для подключения всех приборов. Это относится и к освещению.
Раньше комнаты освещали одной люстрой, а сегодня в моду вошло точечное освещение, которое позволяет равномерно рассеивать свет по площади комнат, что показано на фото ниже.
К каждому светильнику требуется прокинуть провод.
Интересно знать! Современные электрические приборы не такие прожорливые как раньше. Вместо одной лампы накаливания могут работать сразу 10 светодиодных, давая намного больше света. Этот факт позволяет не перегружать общественные сети.
Рекомендуем прочесть: расчет и проектирование искусственного освещения.
Вернуться к оглавлениюЗачем делать проект электропроводки в квартире
Чтобы обеспечить безопасность, провода дополнительно укладываются в гофрированный шланг ПВХ, который занимает намного больше пространства.
Уложить правильно в ряд 10-15 кабелей и раскинуть их по квартире – это искусство. И справиться с задачей может только профессиональный электрик, действующий по схеме.
Кто-то скажет, что электрик – перфекционист, ответим, что работа велась по проектуВторой момент — это необходимость отделки и маскировки коммуникаций. После этого разобраться с расположением большого количества проводников будет невозможно, без частичной порчи ремонта.
Когда у застройщика хранится план, проблем подобного рода не возникает.
План электропроводки квартиры – примерЭлектрик учитывает пожелания клиента по расположению бытовых и нагревательных приборов в помещениях, после чего начинает составление схемы.
Его задача – разбить кабеля на группы так, чтобы они не пересекались, не мешали друг другу, а также была возможность распределить нагрузку в сети равномерно.
Он продумывает систему защиты (некоторые устройства требуют заземления и наличия отдельно вынесенных УЗО), чтобы проводка соответствовала требованиям безопасности.
Схема электрической проводки включает в себя следующие элементы:
- Распределительный щиток, который может быть внутриквартирным или общим.
- Электрический счетчик для контроля над расходом электроэнергии.
- Автоматические устройства защиты, отвечающие за прекращение подачи питания при возникновении утечек, ударов током человека, коротких замыканиях.

- Кабели и провода, с помощью которых осуществляется разводка до электроточек.
- Выключатели и розетки для управления освещением и подключения бытовой техники.
Принцип разделения внутриквартирной сети – зачем это нужно
В распределительном щитке частного дома или квартиры устанавливается вводный автомат, к которому подключается силовой кабель. Этот элемент управляет внутридомовой сетью.
При отключении рубильника, электричество перестает подаваться ко всем точкам. Это удобно в том случае, когда надо быстро и без разбора обесточить провода, но крайне неудобно тогда, кода свет требуется отключить только в определенной комнате.
По этой причине внутридомовая сеть разделяется на несколько групп.
Разветвление внутридомовой сетиЧаще распределение делаются по помещениям, но есть и другие принципы деления:
- Отдельная группа на освещение.
- Подключение мощной бытовой техники.
- Отдельная кухонная линия.
- Обособление туалета и ванны.
Причем сеть может разветвляться на нескольких уровнях, например, отдельное УЗО ставится на электродуховку, что позволит оставить в кухне другие бытовые приборы и освещение включенными, если защита сработает.
Давайте разберем подключение каждой группы по отдельности.
Вернуться к оглавлениюЛиния для освещения
Свет может отключаться раздельно или одним общим выключателем.
Многоуровневое разделение схемы питания Важно! Если в гостиной одна люстра, а в остальных помещениях используются маломощные светильники, есть смысл запитать их совместно – высокой нагрузки на сеть это не создаст.Если же освещение включает в себя россыпь приборов разного типа и назначения, то стоит выполнить разбивку по группам – отдельно основной источник света, отдельно дополнительная точечная подсветка и прочее.
По этому же принципу можно будет отделить помещения, в которых установлено наиболее мощное оборудование.
Также поступают, если в комнате установлены понижающие трансформаторы и различные блоки питания.
Мощная бытовая техника
Относится этот термин к тем аппаратам, которые осуществляют нагрев чего-либо. Например, электрический котел отопления и подогрева воды, электрическая плитка и духовка. При включении они создают высокую нагрузку на сеть – 10 Ампер далеко не предел.
Тэн от духовки может потреблять до 4 кВтНо, во-первых, не все розетки и провода, а, во-вторых, параллельно им могут работать и другие приборы.
Включите одновременно с духовкой электрический чайник, и, вероятно, сработает защита в щитке, и линия обесточится. По этой причине производители крупной бытовой техники рекомендуют отдельное подключение.
При поломке такого прибора, если он подключен независимо, мастеру будет удобно работать. Не придется искать и дотягиваться до вилки, которая обычно находится в труднодоступных местах.
Кухонные приборы
Причины тут те же, что в описанном выше случае. Кухонная сеть — самая загруженная. Тут высокая концентрация мощных электрических приборов.
Сюда входят: стиральная и посудомоечные машины, тостеры, микроволновые печи, мультиварки, хлебопечки, вытяжки, грили, мясорубки, водонагреватель, освещение и так далее.
Это оборудование создает серьезные нагрузки на электрическую сеть Поэтому кухня выделяется в отдельную линию, а особо мощные приборы имеют собственные УЗО, запитанные от вводного автомата.Такое количество приборов требует продуманного расположения розеток. Группу располагают на рабочей зоне, чтобы была возможность подключать мобильные приборы. Отдельно выносятся розетки под крупную бытовую технику.
Помещения с повышенной влажностью
Раньше в ванных и туалетах розеток не ставили, но сегодня и для этого помещения придумано множество приборов.
Пользование ими во влажной среде опасно.
По этой причине помещение нуждается в других устройствах защиты. К схеме электропроводки в ванной есть свои требования:
- Комнатная распределительная коробка не должна выходить внутрь помещения. Устанавливается она в любой удобной соседней комнате или коридоре.
- Каждое устройство, которое будет использоваться в ванной комнате, должно подключаться только к отдельной розетке. Применение удлинителей и тройников не допускается.
- Выключатель для управления освещением комнаты устанавливается, как и коробка, за пределами помещения. Самое удобное место — рядом с дверью.
- Электрический кабель прокладывается максимально близко к потолку. Обязательно используется изолирующая гофра.
Важно! Повышенные требования безопасности предъявляются и к фурнитуре. Степень из защиты должна быть не ниже IP 44. При этом рекомендуется брать розетки с крышкой, выполняющую роль защиты от брызг.
Лампы рекомендуется использовать те, что работают от напряжения 12В. Все приборы, имеющие металлический корпус должны быть заземлены.
Интересно знать! Эта проблема остается нерешаемой для домов старой постройки, в которых заземление не предусмотрено в принципе.
Многие люди заземляют технику на водопроводные трубы, но делать так нельзя, из-за риска поражения электрическим током, причем не только вас, но и соседей.
В старых домах иногда проводят полную реконструкцию электрических сетей, что позволяет смонтировать внешний контур заземления. Если так, то жильцам повезло – осталось заменить внутренние провода.
Замена электрической проводки требует проведения капитального ремонтаВернуться к оглавлениюВарианты схем электрической проводки для квартир
Рассмотрим конкретные проекты электросетей для квартир.
Это поможет работу выполнить самостоятельно, но консультация с профессиональным электриком обязательная.
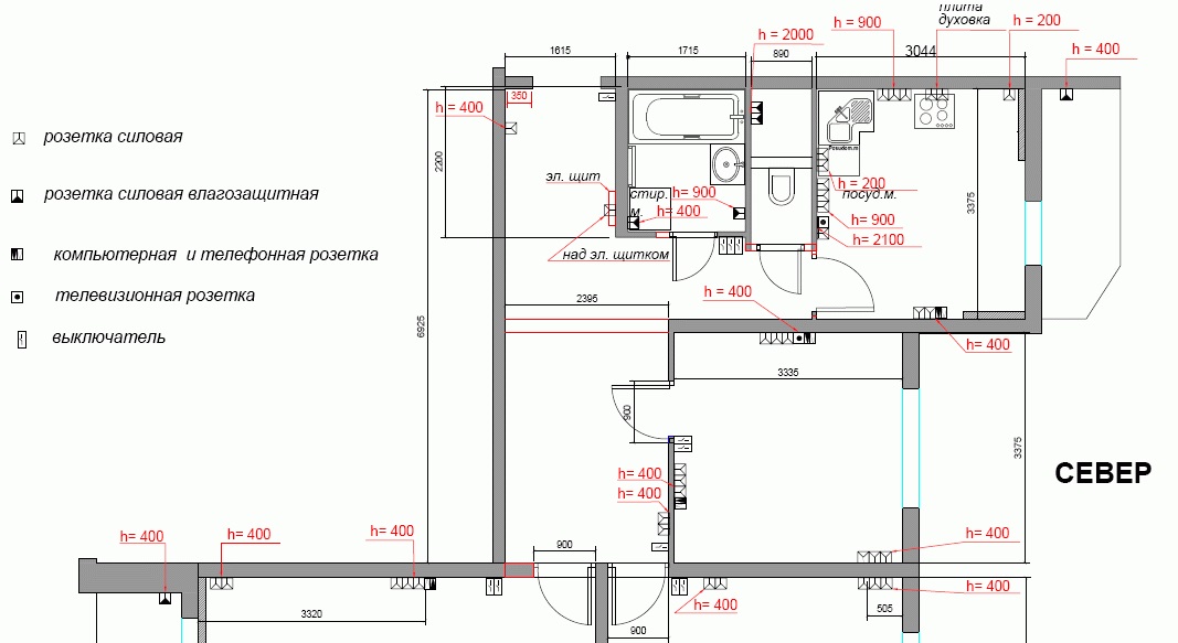
Однокомнатная квартира
К таковым можно отнести и квартиры студии (о планировке квартиры-студии читайте в статье). Помещений в таких квартирах немного, поэтому большого расхода провода не будет. Линий меньше, но обеспечить оптимально расположение каждой нужно. Общие принципы сохраняются.
Лучше жилую комнату, кухню и санузел сделать отдельными группами – такая схема будет оптимальной.
На показанной схеме видно, что линии делятся не по помещениям. В одну группу определено освещение, а во вторую розетки.
Пример схемы электропроводки в однокомнатной квартире — нарисован от рукиНе самое лучшее решение и вот почему. Распределительные коробки нужны на каждую линию, заходящую в комнаты. Многие розетки подключены последовательно, что приведет к отключению целой ветки при перегорании одного единственного провода.
Здесь по-другому. Видно, что отдельную группу составляет освещение в ванной, установленные в ней розетки. По отдельности подключены оставшиеся комнаты – освещение и розетки в них совмещены.
Разделение электрической сети по комнатамНа схема видно что отдельные линии отмечаются разными цветами. Используйте этот прием при самостоятельном проектировании. Обозначение точек также можно легко понять и запомнить.
Составить проект проводки можно посредством использования специальных программ (программы для черчения электрических схем смотрите по ссылке).
Многокомнатные квартиры квартира
Принцип ничем отличаться не будет. Определяем оптимальную схему.
Схема электропроводки в 2-комнатной квартире — образецОднако для подключения нескольких комнат стоит учитывать некоторые особенности:
- Сеть розеток рекомендуется делить на группы по комнатам.
- Также поступают и с системой освещения.
- Для кухонь предусматривается три отдельных линии: под освещение, малые бытовые приборы и технику высокой мощности.
- Отдельно подключается санузел.
Для квартир с большой площадью, которые относятся к категории элитных, предусматривается отдельная ветка на охранные системы.
Сложные схемы нужно поручить составлять специалистам. По окончании их работы на руках должен остаться план, который необходимо хранить на случай возможных поломок и реконструкций.
Вернуться к оглавлениюПараметры электрической сети
После выбора схемы подключения, рассчитываются основные рабочие параметры сети – нагрузка на ветки, подбираются соответствующий кабель и УЗО.
Сделать это непросто, так как сложно заранее представить, сколько приборов будет использоваться, будет ли меняться их количество со временем, а также определить места, где они будут установлены. Та же стиральная машина может стоять в ванной, кухне или коридоре.
Но это можно сделать приблизительно, чтобы у проектировщика появилась возможность рассчитать параметры электропроводки. Естественно, никто не будет подбирать провода впритык (оставляется запас), но и переплачивать за неиспользуемые мощности нет никакого смысла.
Для некоторых приборов подходят только конкретные помещения, хозяевам остается продумать, в какой точке они будут стоять, чтобы протянуть туда кабель и поставить розетку. Это избавит от необходимости пользоваться удлинителями.
Размещение розеток и выключателей в помещении на подробном чертежеБольшинство кабелей прокладывается в квартирах скрыто, но иногда иного решение требуют обстоятельства или задумка дизайнера.
Открытая прокладка провода в деревянном домеУ открытой проводки есть преимущества:
- Подобным образом, без разрушения существующего ремонта, можно заменить старую проводку на новую.
- Без проблем внутреннюю сеть можно дополнительно расширить.
- Для деревянных домов установка открытой проводки с соблюдением отступа от основания считается безопасным решением.
- Установка происходит быстрее.
То что провода остаются на виду, можно посчитать минусом, однако их прячут в декоративные короба, или делают проводку в ретро стиле, подобрав соответствующую фурнитуру.
Стоимость такой проводки будет намного выше скрытойСкрытая прокладка обладает более весомыми плюсами:
- Она подойдет для любого стиля интерьера.

- Экономия на материалах – не требуются короба и даже гофра, если прокладка выполнена по несгораемым конструкциям.
- Меньше вероятность повреждения проводников.
Расчет рабочих нагрузок сети
Выполнить расчет нагрузки на провода несложно — суммировать максимальную потребляемую мощность электрических приборов, подключенных к линии.
Эти данные можно отыскать в паспортах изделий, либо в сводных таблицах.
Потребляемая мощность разных электрических приборовЗная о количестве потребляемого тока в час, можно рассчитать силу тока по следующей формуле: I=P/E, где Р – это мощность, а Е — вольтаж.
Формулы для расчета параметров электрического токаДопустим, были получены результаты, по которым видно, что при одновременном включении на сеть создается нагрузка в 18 Ампер.
Во-первых, подбираются соответствующие розетки, во-вторых, определяется правильное сечение проводника.
Подбор сечения осуществляется по сводным таблицам.
Сечение проводника измеряется в миллиметрах квадратныхДля квартир суммарный ток на отдельную линию не должен превышать 25 Ампер.
Такие же требования и для автоматов защиты, через которые они подключаются. Исключение составляют осветительные сети, на которые можно устанавливать УЗО на 16А.
Вернуться к оглавлениюПрокладка электропроводки в квартире своими руками
По разработанной схеме выполняется установка оборудования. Этот процесс включает в себя много тонкостей. Советуем поручить это дело электрику, но о самых распространенных ошибках знать обязаны все, чтобы суметь проконтролировать работу наемного персонала.
- Прокладка проводов выполняется только горизонтально и вертикально. Косые участки трассы помогут сэкономить провода, но могут стать серьезно проблемой в дальнейшем, когда проводка нечаянно пробивается перфоратором.
Такая прокладка кабеля не допускается
- Распределительные коробки стоит всегда оставлять на виду, так как в любой момент к ним может потребоваться доступ.

- По возможности старайтесь не использовать последовательное подключение розеток.
- Кабели должны быть утопленными в штукатурке на глубину не менее 2 сантиметра. В противном случае при возникновении замыкания, может загореться отделка.
- При прокладке кабеля по сгораемым конструкциям помещаем его в металлическую трубу, можно гофрированную. Это особое требования пожарной безопасности, которое на практике соблюдается редко, и совершенно зря.
По доскам кабель прокладывается в металлической гофре.
- Электрические провода, даже уложенные в гофре, не должные соединяться с токопроводящими несущими конструкциями. К таковым относится каркас для гипсокартонных стен и потолков.
- При установке розеток и выключателей на сгораемые стены, под их коробки прокладывается несгораемый материал, например, паронит.
Листы прокладочного паронита
Видео: пошаговая схема разводки электропроводки в квартире и ее прокладка
Подробная схема проводки двухкомнатной квартиры
Меняем проводку в квартире
Современный план электропроводки квартиры двухкомнатной по многим параметрам отличается от ранее применяемых схем. Дело в том, что современные нагрузки просто несоизмеримы с нагрузками 70-х, 80-х годов, когда строилось большинство панельных домов.
Тогда главными потребителями были несколько лампочек, телевизор и иногда утюг. Современная квартира имеет значительно большее количество электрических приборов и, соответственно, нуждается в других схемах электроснабжения.
Выбор способа прокладки электропроводки в квартире
Открытая проводка
Итак:
- Прежде чем разрабатывать план электропроводки в двухкомнатной квартире, нам следует определиться с ее основными параметрами.
Одним из таковых является способ ее прокладки. На данный момент используются два варианта – открытый и скрытый. - Открытая проводка имеет определенные преимущества:
- Для ее прокладки нет необходимости штробить стены. То есть вы можете выполнить полную замену всех проводов без последующего ремонта во всей квартире.
- Монтируется открытая проводка очень быстро. И при должном умении и наличии рабочих рук полностью смонтировать ее можно буквально за день.
- При необходимости подключения новых электроприемников или выполнения ремонта вам нет необходимости ломать стены.
- Монтаж скрытой проводки выполняется в специальных коробах. При этом провод в коробах обычно имеет дополнительную защиту в виде металлической или самозатухающей гофрированной трубы. Можно, конечно, смонтировать и без использования специальных коробов, но такой вариант больше подойдет подсобным помещениям и сараям, но никак не квартирам.
- Ответвления к розеткам и выключателям также выполняются при помощи специального короба. А сами розетки и выключатели должны быть предназначены для открытой схемы.
- Также может быть использована схема электропроводки в двухкомнатной квартире с ее монтажом в плинтусах. Но такой способ имеет существенные ограничения по количеству используемых проводов и зачастую используется только для разводки в отдельных комнатах или для прокладки к отдельным электроприемникам.
Прокладка провода в плинтусе
Скрытая проводка
Итак:
- Более распространенной является схема разводки электропроводки в двухкомнатной квартире с использованием скрытой электропроводки. Такой способ имеет следующие преимущества:
- В связи с тем, что все элементы такой проводки скрыты от посторонних глаз, она имеет более привлекательный внешний вид
- Не занимает свободного пространства в наших и без того маленьких квартирах
- Скрытая проводка имеет более высокие показатели пропускной и перегрузочной способности ввиду лучшей теплоотдачи.

- Ввиду меньшей требовательности к защите от механических повреждений, цена необходимых материалов заметно ниже.
- Монтаж скрытой проводки осуществляется непосредственно в элементах конструкции вашей квартиры. Для этого делаются небольшие углубления в стене – штробы. В них укладывается проводка с последующим оштукатуриванием.
- Для установки розеток, выключателей и распределительных коробок так же делаются углубления в стене. В них затем монтируют предназначенные именно для скрытой схемы розетки и выключатели.
Расчет и выбор схемы электроснабжения
Расчет проводки
Итак:
- Прежде чем приступить непосредственно к расчету нашей электропроводки нам следует определиться с количеством электроприемников. Для этого необходимо точно определить количество и расположение каждой розетки и светильника. Без этого четкого плана дальнейшие расчеты невозможны.
Обратите внимание! Не следует сознательно завышать количество требуемых вам розеток или освещения. Вам необходимы только те розетки, к которым вы точно знаете, что будет подключено. Установка розеток и сетей освещения на всякий случай, значительно увеличивает стоимость вашей схемы электроснабжения и увеличивает ваши трудозатраты.
- Теперь имея четкое представление о количестве электроприемников, мы можем приступить непосредственно к расчетам требуемого провода. Но пропускная способность проводов в п.1.3 ПУЭ (Правил устройства электроустановок) указывается в амперах, а мощность всех наших приборов обычно указана в ваттах.
- Используя закон Ома, который всем должен быть известен со школьной скамьи, выполняем перерасчет: где P – это мощность прибора в Ваттах (Вт), U – это напряжение вашей электросети в вольтах (В), для однофазной сети напряжение равно 220В, а I – это ток, который будет протекать в проводах в амперах (А).
Примерная мощность различных электроприборов
- Произведя нехитрый расчет, мы получим, что при подключении прибора в 1000Вт, в нашем проводе будет протекать ток в 4,55А. Наша инструкция советует округлить это значение до 5А для создания определенного запаса и упрощения расчетов.
- Теперь приступаем к выбору провода. Он может быть выполнен из меди или алюминия и находится в поливинилхлоридной или резиновой изоляции. Выбор следует осуществлять согласно п.1.3 ПУЭ. Он включает в себя проводника в зависимости от условий прокладки, изоляции, влажности и некоторых других параметров.
- Но все это достаточно сложно и при небольших нагрузках квартиры далеко не всегда оправдано. Поэтому, если вы не проектная контора и выполняете замену проводки своими руками, то советуем вам воспользоваться упрощенным расчетом. Согласно него, медный провод сечением 1 мм2 в нормальном режиме пропускает ток в 10А, а алюминиевый провод таким же сечением — 5А.
Выбор схемы электропроводки
Итак:
- Просчитав все возможные нагрузки, нам следует разделить их на группы. При этом будем руководствоваться п. 6.2.2 ПУЭ, который гласит, что групповые линии должны быть защищены автоматическими выключателями на ток не более 25А. При этом, если вы создаете отдельную группу по сети освещения, то ее обычно оборудуют автоматическим выключателем на 16А.
- При разделении нагрузки на группы отдельно следует учесть мощность потребителей. К таковым относят электрооборудование мощностью 2кВт и более. Это обычно отопительные и нагревательные приборы. Если таковые у вас есть, то их следует запитать отдельным автоматом с соответствующим номинальным током.
На фото изображена схема питания всей квартиры через УЗО
- Без учета мощных потребителей ваш план электропроводки двухкомнатной квартиры должен иметь две – три группы. Одна из которых — сеть освещения и одна или две группы — питающие розетки.
Если у вас получились две группы, питающие розетки, то целесообразно формировать группы в смежных комнатах. То есть одна группа питает розетки в кухне и прихожей, а вторая — в спальне и зале.
Обратите внимание! Согласно п.7.1.37 ПУЭ, установка розеток в ванной комнате разрешена только при подключении ее через УЗО. Если вы устанавливаете розетку в ванной комнате, то желательно включить ее в группу, которая питает розетки кухни. Ведь хотя розетки в кухне не требуют обязательной установки УЗО, данное устройство защиты на кухне будет наиболее целесообразно.
- Отдельно хотелось бы остановиться на сечении используемых проводов. Для групп с автоматическим выключателем на 25А медный провод должен быть сечением не менее 2,5 мм2.
Соответственно для групп на 16А не менее 1,5 мм2. Но в любом случае сечение провода, питающего отдельную группу, не целесообразно делать более провода на вводном автомате.
Обратите внимание! Согласно таблице 7.1.1 ПУЭ, минимальное сечение медного провода до вводного автомата должно быть не менее 2,5 мм2. В то же время минимальное сечение провода группы не должно быть ниже 1 мм2.
Монтаж электропроводки
Итак:
- Конечно, на данный момент существуют многочисленные видео правильной прокладки проводки, но мы остановимся лишь на отдельных моментах. Штробы целесообразно делать в верхней части стены под самым потолком. Конечно, некоторые облегчают себе задачу и располагают электропроводку в стяжке.
Если вы заливаете новую стяжку, то данный вариант конечно достаточно удобен. Но в случае повреждения проводки вам придется выбивать стяжку, что в определенных случаях может привести к необходимости ее полной замены. Кроме того повышается риск поражения электрическим током при затоплении помещения. - Ваша схема электропроводки в 2 х комнатной квартире обязательно должна содержать наличие распределительных коробок. Их целесообразно располагать у входа в комнату на стене ближайшей к ручке двери.
Это обусловлено тем, что именно здесь будет располагаться выключатель освещения комнаты и отсюда значительно удобнее выполнять последующую разводку.
Схема питания всех электроприборов двухкомнатной квартиры
- При прокладке в одной штробе сразу нескольких проводов разных групп, желательно их разделить несгораемым материалом. Это может быть слой штукатурки или гофрированная металлическая труба. Это предотвратит повреждение сразу нескольких проводов при возгорании или перегреве одного из них.
- При подключении розеток, выключателей и других электроприемников следует оставлять небольшой запас провода, достаточный для переразделки провода и повторного подключения.
Вывод
Схема электропроводки двухкомнатной квартиры, в первую очередь, должна быть простой и интуитивно понятной. Не надо ее усложнять, разбрасывая электроприемники одной группы по всей квартире.
Ведь это вы сейчас помните все нюансы разводки, а через год или два это может забыться. Поэтому при прокладке провода пользуйтесь только прямыми углами, а при распределении розеток одной группы не надо разносить их в разные комнаты.
Составление схемы электропроводки однокомнатной квартиры, подбор нужного оборудования
Содержание статьи (кликабельно):
- Какой является типовая схема электропроводки в однокомнатной квартире?
- Правильная схема электропроводки.
- Какими должны быть квартирные автоматы и УЗО.
- Прокладка проводов в жилой комнате.
- Электропроводка на кухне.
- Проводка в ванной.
- От чего зависят маршруты ветвей электропроводки?
- Инструменты для монтажа электропроводки.
Многие люди обладают однокомнатными квартирами. Этот тип жилья, как и любой другой имею свою электрическую сеть. Эта сеть состоит из определенного количества электропроводов и зависит от особенностей размещения комнат в самой квартире.
Все мы хорошо знаем, что большинство квартир, включая однокомнатные, строилось 20-30 и более лет назад. Тогда электропроводка создавалась с помощью алюминиевых кабелей и на сегодняшний день она является непригодной для использования.
В результате владельцы однокомнатных квартир остро нуждаются в замене электропроводки. Для ее замены нужно иметь схему прокладки новой электропроводки. Собственно, в этой статье будет рассмотрено то, какой была схема электропроводки в однокомнатной квартире до сих пор, и какой же должна быть правильная схема?
Стоит отметить, что однокомнатные квартиры создавались в различных типах домов (панельных, кирпичных и т.п.). Соответственно, такое жилье характеризуется различной планировкой. Однако независимо от плана различных однокомнатных квартир схема электропроводки является практически одинаковой.
Единственная разница заключается в разном количестве осветительных устройств и розеток. Конечно, эта особенность напрямую зависит от площади квартиры, которая классифицируется как однокомнатная.
Классическая схема
Сначала обратим внимание на классическую схему электропроводки в нашем типе жилья. Она подается на рисунке ниже.
Рис. 1. Типичная схема проводки в однокомнатной квартире
Как видно из схемы, электропроводка состоит из двух ветвей. Одна из них подает ток в коридор (прихожую) и жилую комнату. Вторая ветвь питает светильники и электрические приборы в ванной и на кухне. Интересным фактом является то, что каждая линия используется как для освещения, так и для обеспечения подачи тока к электроприборам.
Конечно, такая схема не идеальна, поскольку при появлении короткого замыкания в розетке или светильнике состоится обесточивание всей комнаты. Такую ситуацию нельзя назвать очень благоприятной и позитивной.
Стоит отметить, что часто такая классическая схема дополнялась отдельной ветвью для питания электрической плиты. Как известно, плита является мощной и требует больше тока.
В результате для уменьшения нагрузки на контур, который идет в кухню, и для повышения уровня безопасности использовали отдельный кабель с большим поперечным сечением. В общем, такую схему электропроводки лучше не использовать.
Правильная схема электропроводки
Более эффективной и надежной будет такая электропроводка, которая будет предусматривать подведение отдельных кабелей для различных групп электрических устройств.
То есть один кабель должен подавать ток к розеткам, второй — к осветительным приборам, третий — к мощным электроприборам.
Собственно этот принцип учтен в следующей схеме проводки, которая прокладывается в однокомнатной квартире.
Рис. 2. Схема проводки в однокомнатной квартире.
Перед тем, как сделать детальные разъяснения этой схемы, подадим еще одну картинку, на которой подается объяснение всех обозначений.
Рис. 3 Условные обозначения и их объяснение
Цифры, которые видны на плане квартиры, обозначают такие помещения:
- жилая комната;
- кухня;
- ванная комната;
- коридор (прихожая).
Электропроводка обозначается черной и красной линиями. По сути дела каждая из линий, которые подходят к распределительной коробке, является отдельной ветвью проводки.
Так, на схеме видно, что за входом в жилую комнату находится распределительная коробка. К ней подходят две ветви (два контура). Ветвь, обозначенная красным цветом, предназначена для подачи тока на розетки. Черная линия является ветвью, к которой подключаются светильники. На рисунке видно, что в каждую комнату квартиры входят по две такие ветви.
В дальнейшем мы будем проводить объяснение схемы с одновременными рекомендациями по оптимальной организации электропроводки.
На рис. 2 видно, что сразу после входа в квартиру размещается силовой щит. Его еще называют распределительным. Собственно от него и начинается прокладка каждого контура электропроводки.
Этот щит содержит в себе определенное количество автоматических выключателей (АВ) и УЗО. Специалисты отмечают, что одна ветвь электропроводки должна иметь один АВ и одно УЗО. При этом нагрузка на нее не должна превышать двух киловатт. Также, сколько ветвей в квартире, столько АВ и УЗО должно использоваться.
На рис. 2 обозначено семь контуров. Соответственно, в щитке находится по семь автоматических выключателей и УЗО. Характеристики АВ и УЗО зависят от нагрузки, которую будет получать каждый контур.
Характеристики квартирных АВ и УЗО
подключение АВ и УЗО в квартире
Сам распределительный щит подключается к электросчетчику. Подача тока в однокомнатную квартиру осуществляется от электрического щитка, который находится на лестничной площадке. Перед счетчиком монтируют еще квартирный АВ и квартирное УЗО. Их технические характеристики должны зависеть от общей мощности электроприборов, которые будут использоваться в квартире.
Однако есть один нюанс. Может быть так, что вы разместили в однокомнатной квартире такое количество приборов, мощность которых может равняться 6-8 киловаттам. Логично, что квартирные АВ и УЗО должны быть рассчитаны минимум на 37 ампер (8000 ватт / 220 вольт = 36,36 ампер).
Однако установка таких АВ и УЗО является нецелесообразной. Причиной этого является то, что большинство домов имеют старую электропроводку. Это означает то, что 20-30 лет назад на одну квартиру выделялось 1,3-2 киловатта, а не 8. Понятно, что если в квартире включить приборы с большей мощностью, то вас отключит электрический щиток, который размещается в подъезде.
Как отмечают профессиональные электрики, в большинстве случаев максимальная нагрузка на домовую проводку приборами с одной квартиры может составлять 4,3 киловатта. Такую мощность домовая проводка еще может выдержать.
Соответственно, эта цифра и является основной при осуществлении всех расчетов и подбора квартирного автоматического выключателя, УЗО, а также вводного провода.
Полезный совет: в любом случае общая мощность домашних приборов будет больше 4,3 киловатта. Здесь не стоит разочаровываться, поскольку на практике почти нет случаев, когда включается вся бытовая техника.
В тех случаях, когда мощность включенных приборов будет больше 4,3 киловатта, придется некоторые из них выключать самостоятельно. В противном случае главный автомат отключит всю квартиру.
В итоге квартирный АВ должен быть рассчитанным на 25-32 ампера. Количество ампер зависит от площади однокомнатной квартиры. Для малых квартир можно взять АВ на 25 ампер. При этом следует учитывать запас по току, который должен колебаться от 1,3 до 1,5. Квартирное УЗО должно быть рассчитанным на 50А 30мкА.
Таблица 1. Зависимость сечения кабеля от мощности электроприборов
Что касается вводного кабеля, который будет соединять этажный и квартирный распределительные щитки, то он также должен подбираться в зависимости от общей мощности электроприборов. Когда вы знаете эту цифру, то взглянув в таблицу ниже, можете определиться с поперечным сечением вводного кабеля.
Полезный совет: эту табличку следует использовать и для определения поперечного сечения всех кабелей, которые будут использоваться для создания отдельной ветви электропроводки в однокомнатной квартире. Конечно, для этого нужно высчитывать мощность приборов, которые будут питаться от одного контура.
В большинстве случаев вводный кабель для однокомнатной квартиры должен обладать сечением от 4 до 6-ти кв. миллиметров. Конечно, он должен быть медным и трехжильным.
Прокладка проводов в жилой комнате
На рис. 2 отмечено, что освещение коридора и жилой комнаты создается с помощью двух различных контуров. На практике можно сделать так, чтобы коридор и жилая комната освещались от одного контура. Общая люстра или точечное освещение, а также светильники в коридоре вряд ли будут иметь мощность, большую двух киловатт.
Конечно, для соблюдения этого совета, распределительную коробку следует установить на стене у входа в жилую комнату. Дальше от коробки можно развести кабели к светильникам в коридоре и в жилой комнате.
При этом провода к люстре и выключателю в жилой комнате нужно будет прокладывать через дыру в стене. Сечение кабеля, который будет использован для контура для светильников, может равняться 1,5 кв. миллиметра. Номинальный ток автоматического выключателя для этого контура должен составлять десять ампер.
Такими же должны быть и контуры для светильников в ванной и кухне. В принципе для светильников этих двух помещений можно проложить один контур.
На рис. 2 видно, что в жилую комнату, кухню и ванную подходят ветви, к которым подключаются розетки.
Каждая такая ветвь должна быть оснащенной АВ на 25 ампер и УЗО на 30А 30мкА. Наша схема предусматривает установку двух двойных розеток в жилой комнате.
Полезный совет: местоположение розеток может определяться самостоятельно. При этом они должны находиться за электрическими приборами. Поэтому перед проектированием размещения розеток стоит спроектировать местонахождение электрических приборов, а также мебели. Сами розетки должны располагаться на высоте 30-ти сантиметров от пола и в 15 сантиметрах от угла стены.
Количество розеток напрямую зависит от количества электроприборов. При этом есть еще правило, которое гласит, что на каждые шесть квадратных метров должна быть одна розетка. В случае ванны и кухни на эту площадь должно быть две розетки.
Ветка розеточной группы должна создаваться с помощью медного кабеля, сечение которого не является меньшим 2,5 кв. миллиметров. Конечно, сечение можно определить и с помощью таб. 1. В этом случае нужно знать максимальную мощность электрических устройств.
В представленной выше схеме проводки для однокомнатной квартиры (рис. 2) не учтено использование кондиционера в жилой комнате. Для кондиционера нужно вести отдельный контур. Для его создания нужно использовать:
- кабель с сечением 2,5 кв. миллиметра;
- АВ на 16 ампер;
- УЗО, рассчитанным на 20А 30мкА.
Розетка этой ветви должна находиться у кондиционера.
Подытоживая, можно сказать, что в жилом помещении однокомнатной квартиры надо прокладывать три контура.
Проводка на кухне
На кухне обычно используется несколько отдельных контуров. Один на освещение, один на розетки (этот контур ведется кабелем 2х2,5мм) и по одному на каждый из приборов:
- электроварочная панель;
- электроплита;
- проточный водонагреватель;
Каждый из этих контуров ведется отдельно кабелем на 4 мм к автомату на 16А.
Группу из трех-четырех розеток этого контура надо монтировать за нижним шкафчиком, который находится под столешницей. До сих розеток будут подключаться все кухонные приборы. При этом остальные розетки надо размещать в других местах, а точнее там, где будет находиться холодильник и другие габаритные устройства.
В случае использования в однокомнатной квартире электроплиты, следует смонтировать еще одну ветку проводки. Ее особенности зависят от конкретных характеристик самой плиты.
О контуре для освещения для кухни мы упомянули выше.
Проводка в ванной
Остается рассмотреть схему проводки в ванной однокомнатной квартиры. Эта комната является особой и наиболее опасной. Поэтому проводку здесь прокладывают с соблюдением жестких требований. В эту комнату можно выводить два контура: для светильника и электроприборов.
Что касается ветки для светильника, то она является таковой, как и в других комнатах. Исключение составляет место размещения выключателя. Его надо размещать за пределами ванной.
Выключатель должен быть снаружи ванной комнаты
Контур для розеток может быть установлен только тогда, когда он имеет УЗО или распределительный трансформатор. Конечно, каждая розетка должна иметь такой корпус, который является защищенным от влаги. Хотя, на рисунке указана только одна розетка, обычно требуется три. Требования к кабелю и параметрам УЗО, АВ являются такими же, как и к составляющим контура розеточной группы на кухне.
Где монтировать каждую ветку?
Стоит отметить, что схема проводки однокомнатной квартиры определяет не только количество и местоположение розеток, светильников, выключателей, но и определяет маршруты прохождения кабелей. Здесь есть свои нюансы. Они зависят от того, в каком доме находится однокомнатная квартира, и какую отделку будет иметь каждая комната.
Если владельцы будут устанавливать подвесной потолок и отделывать стены гипсокартоном, то маршруты могут быть произвольными. Главное, чтобы кабели размещались только горизонтально и вертикально, а также не перекрещивались. В этом случае электропровода будут прятаться за гипсокартоном.
В том случае, если дом панельный, то электропроводку придется устанавливать или в полу, или в специальных каналах, или в пространстве, которое находится на стыке потолка и стены. Как известно, стены панельных домов нельзя штробить в горизонтальном направлении.
Поэтому горизонтальная проводка будет размещаться в названных выше местах. Вертикальная может проводиться в штробах (такие штробы можно делать).
В кирпичном доме можно прокладывать кабель наиболее коротким путем, поскольку проводка может скрываться как под штукатурку, так и в штробы. В зависимости от этих особенностей обозначают маршруты каждой ветви. Далее берут метр и измеряют необходимое количество электропроводов.
Инструменты для монтажа проводки
Итак, мы знаем, как подобрать каждый элемент электропроводки, а также как и где их размещать. Теперь рассмотрим, какие инструменты необходимо иметь, чтобы установить эти элементы.
Инструменты должны быть представлены:
- Перфоратором с набором буров и долот для бетона, кирпича (зависит от дома).
- Дрелью.
- Болгаркой или штроборезами с алмазным диском (для создания штроб в кирпичном доме).
- Тестером-мультиметром.
- Индикатором-фазоуказателем.
- Набором отверток и гаечных ключей.
- Пассатижами.
- Бокорезами.
- Монтажным ножом.
- Строительным уровнем.
- Шпателем.
Как правильно составить схему проводки в частном доме, также провести ее правильный и надежный монтаж Особенности и некоторые секреты монтажа открытой проводки в деревянном доме своими руками Перфорированный кабель-канал для организации проводки в электрошкафах Проводка в дачном доме своими руками – особенности организации и последовательность монтажа
Проект электроснабжения квартиры
Узнайте стоимость проектирования вашей квартиры или дома по телефонам
+7 (495) 118-32-15, +7 (495) 118-34-20
Вопросы и планировки присылайте на почту [email protected]
Акция: Проект электроснабжения квартиры БЕСПЛАТНО*
*при заключения договора на электромонтажные работы
Для Новостроек Москвы готовим полный пакет документов для включения на 3 фазы 380В по постоянной схеме:
Проект электроснабжения квартиры + Согласование + Документы на монтаж + Отчет Лаборатории + СРО
(Делаем проекты воды, отопления, вентиляции и слабых токов для сдачи в ТСЖ или Управляющую компанию)
- + Более 5000 объектов за 20 лет работы.
- + Срок изготовления проекта 2 дня.
- + Проект отдаем заказчику в печатном и электронном виде.
- + Закажите проект и получите скидку на монтаж!
Наши проекты принимают все ТСЖ новостроек Москвы с 1-го раза.
Мы аккредитованный партнер МосЭнергоСбыт!
Что надо для начала проектирования и сдачи вам готового проекта через 2 дня?
1. План вашего помещения — в любом виде.
2. Понимание что и где вы хотите расположить — отметьте заранее, или прямо у нас в офисе — где будут розетки, выключатели, плита, вытяжка, вентиляция, электрощиты, водонагреватели, теплые полы и т.д.
Всё, больше ничего не надо, просто приходите к нам в офис на метро Новокузнецкая.
Если у вас есть «страшные бумажки» типа Технических условий и Акта балансового разграничения, то хорошо,
если нет — проект будет сделан под заявленную мощность.
Мы участники передачи идеальный ремонт на 1 канале!
Пример обычного задания на проектирование от клиента:
Листы из готового проекта с розеточной сетью и группами освещения:
группы розеточной сети
группы осветительной сети
Преимущества заказа разработки проекта электроснабжения квартиры в МосМонтаж:
1. Это ваша безопасность — защита от перегрузок и возгораний.
2. Это ваши деньги — от инженера-проектировщика зависят объемы последующих работ и материалов. Мы подберем оптимальный вариант!
3. Это ваш дом — мы выполним монтаж электропроводки «под ключ»!
Бонусы от МосМонтаж
+ Лицензии СРО вшиты внутрь проекта, это удобно!
+ Полный комплект документов для ТСЖ и коммерческих помещений: Договор, Лицензии СРО, Проект, Согласование, Лабораторные заключения (замеры), Акты скрытых работ и прочее.
+ Бесплатно даем смету: на работы и на материал
+ Снабжаем материалом, по ценам до 40% ниже рыночных!
В любой проект квартиры, согласно установленным нормам входит:
Проект электроснабжения
Внутренние сети
— Схемы однолинейные электрические
— План расстановки оборудования (без точной привязки)
— Розетки , Светильники
— Спецификация оборудования
Слаботочные проекты
Пожарная сигнализация
Оповещение СОУЭ
— Расстановка оборудования
— Схемы
— Спецификация
— Пояснительная записка.
Проекты по разделам вентиляции, вода канализация, отопление
— Полный расчёт и выбор оборудования
— Расстановка оборудования с привязкой;
— Спецификация оборудования.
— Пояснительная записка.
Пример проекта электроснабжения квартиры
Сеть осветительных приборов
Сеть силовых потребителей
Перечень помещений
Схема контура уравнивания потенциалов в квартире, КУП
Проект выводов под системы кондиционирования
Проект слаботочной сети, Телефон, Телевизор, Интернет
Лист проекта с разделом Теплые полы
Однолинейная схема электрощита в квартире
Увеличенная часть однолинейной схемы с расчетом потребителей по группам
В конце проекта всегда есть перечень всего важного оборудования и материалов используемых в проекте.
Вы всегда будете знать какой кабель надо закупать и какая автоматика вам подойдет.
Пример части спецификации материалов по проекту электроснабжения
Еще примеры проектов
Ждем вас в офисе для бесплатной консультации по инженерным сетям!
Карта проезда в офис, метро Новокузнецкая
Все инженерные сети: электрика, водоснабжение, отопление и вентиляция!
Бесплатный выезд инженера для оценки объемов!
Гарантия на работы 5 лет!
Компания более 20 лет на рынке, есть все Лицензии СРО и МЧС!
Для Госзаказчиков, ТСЖ, Служб эксплуатации действуют партнерские бонусы и скидки!
Заявки на проект и монтажные работы ждем на почту
Для заказа выезда инженера звоните
+7 (495) 118-32-15
+7 (495) 118-34-20
Как нарисовать план электрики в квартире | ВотЭтоРемонт Ру
Составление плана электропроводки в квартире — это то, с чего следует начать при подготовке к будущему ремонту. Все электротехнические работы регламентируются ГОСТ Р 50571.5.52-2011 («Выбор и монтаж электрооборудования. Электропроводки»), СП 31-110-2003 («Проектирование и монтаж электроустановок жилых и общественных зданий»), ПУЭ-7 («Правила устройства электроустановок»). Для тех, кто привык все делать своими руками, придется изучить требования, относящиеся к проектированию.
План электрики – это документ, на основании которого делаются расчеты по токовым нагрузкам и выбираются материалы и оборудование: провод, автоматические выключатели, розетки, выключатели, распределительные коробки и т.д.
Составляем план электрики: обозначение электрики на чертежах
Первое, что придется освоить, это условные обозначения:Еще до начала работ необходимо четко представлять, где будут располагаться выключателя, розетки и светильники. От этого будет зависеть, насколько функциональной будет электрика. Если не продумать хорошо это вопрос, то может оказаться, что часть розеток или выключателей окажутся загроможденными мебелью и придется раскидывать удлинители по всей квартире. Кроме того, необходимо продумать, какую технику вы планируете приобрести, чтобы предусмотреть достаточное количество розеток. Обсуждение этого вопроса в кругу домашних не будет лишним.
Читайте также: Подключение розетки к автомату в щитке
На следующем этапе приступаем к изложению своих планов на бумаге. Для этого необходимо нарисовать план квартиры в масштабе (с окнами и дверными проемами) в двух экземплярах. Можно воспользоваться техническим паспортом или произвести замеры по месту.
Технический паспорт квартиры – это документ, который можно заказать в Бюро технической инвентаризации. В нем присутствует план квартиры с нанесенными размерами.
Далее наносим на план №1 мебель и технику, закрашивая сплошным те предметы, которые требуют подключения к электричеству.
Далее приступаем к нанесению на схему №2 объектов электропроводки: розеток, выключателей, светильников, распределительного щита, сопоставляя их со схемой №2. Основная задача, которая стоит на этом этапе, – определение места установки всех элементов.
Для того чтобы упростить задачу, все точки подключения разбиваются на отдельные группы:
- Освещение кухни и коридора
- Освещение ванной и туалета
- Освещение жилых комнат
- Розетки кухни
- Розетки коридора и жилых комнат
- Подключение электроплиты
- Подключение кондиционера
При разбитии точек подключения на группы важно уяснить один момент: чем тщательнее проработать этот вопрос, тем меньше будут затраты на материалы.
Для снижения затрат на монтаж электрики, провода можно проложить в полах, подвесных потолках и гипсокартонных стенах. На схеме такое подключение обычно отмечают пунктирной линией.
При размещении выключателей важно ориентироваться на расположение петлей на дверях. Выключатель следует располагать с противоположной от места крепления петлей двери стороны, чтобы, заходя или выходя из комнаты, было удобно им пользоваться. Соответственно сами выключатели устанавливаются внутри помещений. Исключение составляют помещения с высокой влажностью (ванная и туалет), на которые их устанавливают снаружи.
Хотя четких требований на каком расстоянии от потолка и полов прокладывается кабель и устанавливаются выключатели и розетки не существует, на основании опыта проведения подобных работ можно дать следующие рекомендации:
- Провода по потолку прокладывается строго перпендикулярно стенам, по стенам – строго вертикально (при опускании к розеткам и выключателям) или горизонтально (при прокладке линии). Благодаря этому снижается риск случайного повреждения проводки при проведении ремонта.
- Прокладка провода по стене осуществляется на расстоянии 200 мм от потолка
- Розетки располагают на расстоянии 300 мм от пола, 100 мм от поверхности кухонной столешницы (снижает риск попадание воды).
- Выключатели располагают на уровне дверной ручки.
Расчет материалов
На основании схемы легко подсчитать количество розеток, выключателей, автоматов (по одному на каждую линию) и провода. Приобретая провод, обязательно купите его с запасом, чтобы избежать ненужных скруток. Подсчитывая длину кабеля учтите, что при заходе в каждую коробку необходимо оставлять запас около 10 см для подключения, то есть к длине каждого отрезка нужно прибавить 20 см. Сделать это можно вручную либо при помощи специальных программ или онлайн-сервисов.
Читайте также: Как правильно собрать электрический щиток в квартире
Проектирование электропроводки онлайн: популярные сервисы и программы
Существует достаточно большое количество приложений с простым и мощным функционалом. Признанным лидером в этой области является программа «AutoCAD», возможности которой выходят далеко за пределы составления простой электрической схемы. Программа платная, но обладает большими возможностями.
«NanoCAD» – более доступная альтернатива, обладающая мощным функционалом за вдвое меньшую цену. У «AutoCAD» и «NanoCAD» есть бесплатные версии с урезанным функционалом, но их возможностей вполне хватает, чтобы начертить план электрики в доме или квартире.
«Eagle» – еще одна популярная программа для рисования схем проводки. Как и две предыдущие имеет платную и бесплатную версии.
«Эльф» – мощный программный комплекс, созданный для инженеров-электриков. Имеет простой интерфейс и множество интересных функций: создание чертежей и спецификаций, подсчет длины провода, набор условных обозначений и т.д.
Наиболее популярные бесплатные программы для расчета электропроводки – «Электрик», «QElectroTech», «1-2-3» и др.
Помимо десктопных приложений можно воспользоваться онлайн-сервисами, которые за небольшую плату помогут составить схему, рассчитать токовые нагрузки и сечение провода, подсчитать длину провода и т.д. Одним из таких сервисов, который к тому же оказывает поддержку пользователей, является «CAD5d».
Оригинал статьи размещен здесь:
http://votetoremont.ru/process-remonta/elektromontazhnye-raboty/kak-narisovat-plan-elektriki-v-kvartire/
Схема электропроводки в квартире: изучаем азы
Схема электропроводки в квартире и любых других помещениях должна разрабатываться до начала проведения электромонтажных работ. Вносить коррективы в этот документ во время монтажа бессмысленно – все должно быть продумано и распланировано заранее. Что включает в себя монтажная схема электропроводки квартиры и как она составляется?
Основные понятия
Электропроводкой называют систему проводов и силовых кабелей, обеспечивающую электричеством одну или несколько комнат квартиры или дома. Ее монтаж должен производиться в строжайшем соответствии с требованиями 7-го издания российских «Правил устройства электроустановок» (ПУЭ-7). С изучение этого документа и должно начинаться составление типовой схемы электропроводки квартиры или доме.
В каких случаях требуется производить монтаж электропроводки? Возможные причины проведения этого вида работ:
- обеспечение электричеством помещений только что отстроенного здания;
- замена пришедшей в негодность старой проводки – в этом случае новая электрическая схема проводки в квартире может не составляться;
- ремонт квартиры;
- приобретение более мощных бытовых электроприборов взамен имеющихся.
Электропроводка подразделяется на:
- открытую;
- скрытую.
Открытые провода в наши дни почти не применяются. Их сменила более надежная и незаметная скрытая проводка.
Скрытая, в свою очередь, подразделяется на:
- сменяемую – прокладываемую внутри пластиковых труб;
- несменяемую – укладывающуюся под слоем штукатурки.
Работы по замене или монтажу проводки должны начинаться с составления схемы электропроводки в квартиреили доме. Что это за схема и как она выглядит? Под названием «типовая схема электропроводки квартиры» скрывается ни что иное, как чертеж плана комнат и других помещений квартиры, на который нанесены условные обозначения электроточек и подходящих к ним проводов.
Составление схемы электропроводки в квартире
Типовая схема проводки в квартире имеет сложную ветвистую структуру: вводные питающие провода делятся на группы, а те, в свою очередь, разветвляются по комнатам. Составление схемы разводки электропроводки в квартире начинается с распределительного этажного щитка.
При составлении монтажной схемы электропроводки квартиры все приборы-потребители электроэнергии распределяются по группам. Чаще всего группы формируются следующим образом:
- I – освещение всех комнат квартиры за исключением санузла;
- II – питание розеток в жилых помещениях;
- III – освещение санузла;
- IV – питание розеток кухни.
Разбиение потребителей на группы позволяет решить следующие две задачи:
- обеспечение автономной работы бытовых и осветительных приборов – поломка, к примеру, холодильника и выключение соответствующего автомата приведут к обесточиванию потребителей только одной, четвертой, группы;
- облегчение поиска неисправностей – зная, в какой группе произошла неисправность, можно легко выявить проблемный участок.
Итак, наша схема разводки электропроводки в квартире выглядит так:
- трехфазный питающий кабель приходит в щиток;
- фазовый провод с щитка через счетчик идет на ввод мощного резервного автомата;
- с вводного автомата фаза уходит на вводные автоматы всех четырех групп;
- ноль, земля и фаза приходят на общую распределительную коробку;
- с общей коробки провода поступают на распределительные коробки комнат и непосредственно к потребителям (электроточкам).
Обычно схема электропроводки в квартире предусматривает подключение кухонных бытовых приборов с общей распределительной коробки: провод для питания плиты сразу прокладывается на кухню. Провода, питающие стиральную машину и кондиционер, идут к своим потребителям. Подключение котла (если он есть) тоже осуществляется с общей коробки. Иначе обстоят дела с розеточными и осветительными проводами. С общего распределителя они прокладываются к комнатным коробкам. Далее схема электрической проводки в квартирепредполагает подключение розеток к розеточному проводу, освещения – к осветительному.
Надеемся, статья поможет вам составить электрическую схему проводки в вашей квартире или любых других помещениях.
Электротехнический план 101: основные сведения об электрическом плане
План нарисован в определенном масштабе и представляет собой схему или списки из нескольких шагов. Он показывает все детали ресурсов и времени для достижения цели. Так что же такое план по электрике ? Давайте кратко обсудим это с его целью и множеством примеров. Если вам это интересно, продолжайте читать.
Что такое план электрооборудования?
Электрический план иногда называют электрическим чертежом или схемой подключения.Это тип технического чертежа, который обеспечивает визуальное представление и описывает схемы и электрические системы. Он состоит из символов и линий, которые демонстрируют клиентам электрический дизайн инженера. Вкратце, электрическая схема описывает положение всех электрических устройств.
Электрический чертеж может включать в себя все эти важные детали, описанные ниже:
- Соединение электрических проводов и других частей системы
- Подключение к системе различных компонентов и приспособлений
- Линии электропередач с такими данными, как размер, напряжение, номинал и емкость.
- Силовые трансформаторы, а также их обмоточные соединения
- Главные выключатели, выключатель и выключатели с предохранителями
- Другое необходимое оборудование, такое как солнечные панели, батареи, генераторы, кондиционер и т. Д.
Цели и преимущества электрического плана
Цели электрического плана
Зачем нужен электрический план или чертеж? Вы, должно быть, думаете, зачем тратить деньги на точный план электроснабжения. Цели электрического плана заключаются в следующем:
- Эти чертежи жизненно важны для документирования, передачи информации и поиска и устранения неисправностей в ваших энергосистемах на месте.
- Точные и обновленные чертежи обеспечивают соответствие вашего здания всем нормам кодекса.
- План охватывает все аспекты. Основное внимание уделяется таким областям, как освещение, электроника, бытовая техника и т. Д.
- Также учитывается структура здания. Например, если в здании есть перила, лестницы или другие компоненты, соответствующие изменения будут внесены.
- Это инструмент тщательного планирования, поскольку он дает подробное представление об электрической и проводной системе вашего здания.
- Он помогает распределять мощность по различным приборам и оборудованию за счет точной работы и установки элементов.
Преимущества электрического плана
- В плане подчеркиваются все потенциальные риски для быстрого внесения поправок до возникновения какого-либо существенного ущерба.
- Это помогает обеспечить безопасную, эффективную и бесперебойную работу вашей системы.
- План электроснабжения экономит время, избегая задержек и проблем. Черновик точно определяет все, чтобы предотвратить опасные ситуации; таким образом, это помогает профессионалам выполнять свою работу вовремя.
- Это также экономит деньги, потому что никому не хочется тратить больше денег, чем они уже имеют. Черновик включает в себя все детали, такие как длина провода, тип кабелей и другие детали, которые вам понадобятся для завершения вашего проекта. Таким образом, вам не придется тратить значительную сумму денег на ненужные вещи.
- Электрический план предотвращает травмы, потому что он точно определяет все предполагаемые области здания, которые могут нанести вред технику.
Как составить электрический план?
Отличная электрическая планировка значительно добавляет эстетичности и уюта зданию. На чертеже должны быть указаны типы приспособлений, местоположения, кабели, переключатели и проводные устройства. Однако электрическая схема может выглядеть пугающей и сложной, но это не так.Это указатели, которые следует помнить при составлении плана электроснабжения.
Шаг 1. Знайте свой макет
Либо используйте программное обеспечение, либо миллиметровую бумагу, и нарисуйте в масштабе разные комнаты. Обязательно укажите такие элементы, как шкафы, прилавки, плита, кровать и другие различные символы.
Шаг 2. Планируйте заранее
После завершения макета сосредоточьтесь на электрическом плане.Проводка проходит через потолки, стены и пол, прежде чем они будут оштукатурены, выложены и закреплены.
Шаг 3. Используйте внутреннюю планировку в качестве отправной точки
Вокруг выходов и входов разместите вентилятор, выключатели переменного тока и свет. Теперь разместите электрические розетки возле прилавков и столов. Затем решите, где разместить большую технику, такую как телевизор, компьютер, стиральная машина, принтер и т. Д.
При составлении электрического плана задайте себе несколько вопросов:
- Могу ли я разместить переключатели в удобном месте?
- Электрическая нагрузка на всей цепи в порядке?
- Достаточно ли я размещаю легкодоступные емкости?
Шаг 4. Изучите свой план
Когда вы закончите с макетом, распечатайте его и пройдитесь по дому, держа его в руках.Так как нет стен и электричества, расположение можно легко изменить; поэтому представьте, что вы включаете и подключаете электроприборы. Это позволит вам разместить выключатели и розетки в лучших местах.
Используйте EdrawMax Online для создания PFD
● Чтобы создать свой электрический план, откройте EdrawMax Online (https://www.edrawmax.com/online/) на своем компьютере и перейдите в раздел «План здания »> «План электрооборудования и связи ».
• Если вы щелкните значок +, вы будете перенаправлены на пустую страницу; Вы также можете щелкнуть любой шаблон в галерее, чтобы открыть его в редакторе, после чего вы сможете начать работу с готовым шаблоном.
● Чтобы создать электрическую схему с нуля, используйте библиотеку символов. Перетаскивайте символы, чтобы создать план. Добавьте окна, двери, свет, выключатели и электрические розетки. Кроме того, вы можете изменить его размер с помощью инструментов редактирования и масштабирования.
● По завершении сохраните или экспортируйте рисунок.
Советы по составлению электрических планов
Вот несколько советов, которые следует учитывать при составлении электрического плана.
1. Подумайте о расстановке мебели
Очень важно спланировать, как вы собираетесь расставить мебель, потому что у вас будет представление, где вы собираетесь разместить выключатели света и электрические розетки.Большинство людей совершают эту ошибку и в конечном итоге помещают их в неудобные места.
2. План дополнительных торговых точек
Ремонт может истощить значительную сумму денег. Допустим, вы хотите приобрести боковые настольные лампы, потолочные светильники для кухни и т. Д. Вы можете купить это не сейчас, но, возможно, через несколько месяцев или год спустя. Наличие этих дополнительных электрических розеток избавит вас от множества неприятностей. Таким образом, сейчас очень важно спланировать и другие устройства.
3. Используйте различные типы источников света
Убедитесь, что вы используете разные типы освещения, чтобы правильно осветить ваш дом, например, акцентное освещение, окружающее освещение и рабочее освещение.
Бесплатные шаблоны электрических планов
Вот несколько шаблонов, которые вы можете бесплатно использовать для создания плана электроснабжения.
План электропроводки дома — Создайте план электрического жилья с помощью этого шаблона.На нем показано расположение ламп, розеток и переключателей, а также их подключение.
Щелкните здесь, если хотите мгновенно загрузить этот шаблон!
Электротехнический план офиса — Этот шаблон от SmartDraw позволит вам настраивать и редактировать, а также поможет вам создать электрический чертеж за считанные минуты.
Щелкните здесь, если вы хотите отредактировать этот шаблон прямо сейчас.
План электропроводки подвала — Если вы хотите начать быстро, используйте этот шаблон электрического плана подвала и спроектируйте его в соответствии с вашими требованиями.
Щелкните здесь, если хотите скачать и отредактировать прямо сейчас.
Схема электрооборудования палаты пациента — С легкостью создайте план электропитания палаты пациента с помощью этого шаблона.
Щелкните здесь, чтобы мгновенно настроить и отредактировать этот шаблон.
Basic Electrical Plan — это настраиваемый шаблон, который вы можете легко загрузить и распечатать.Быстро создавайте свои высокоуровневые электрические планы.
Щелкните здесь, чтобы загрузить и использовать этот шаблон прямо сейчас!
Как читать электрические схемы
Мэг Эскотт
Жизненно важно, чтобы вы научились читать электрические схемы, чтобы вы могли проверить, есть ли вся проводка и освещение, необходимые для поддержания вашего образа жизни.
Нет ничего хуже, чем переехать в новый дом и обнаружить, что вам не хватает розетки, которая вам нужна или того хуже.
Эта страница является частью серии статей о планах дома.
Электротехнические планы являются важными документами для торговцев и подрядчиков, которые будут устанавливать всю электропроводку в вашем доме. Им нужен план для работы, иначе они примут за вас решения, которые могут не совпадать с вашими.
На этой странице мы рассмотрим …
Что такое план электроснабжения?
Когда вы изучаете, как читать электрические схемы, они должны содержать все, что имеет элемент проводки, который включает в себя следующие элементы:
В электрическом плане не будут подробно рассказываться обо всех отдельных необходимых цепях.Ваш электрик и другие подрядчики обладают знаниями, необходимыми для обеспечения того, чтобы схема электропроводки соответствовала вашему проекту и соответствовала требованиям безопасности.
Кстати …
Нормы и стандарты
Как вы понимаете, важно, чтобы ваша электрическая установка была полезной и, прежде всего, безопасной. Вот список действующих норм и стандартов.
Стандарты устанавливают, среди прочего, количество требуемых розеток и расстояние между ними, а также их обработку во влажных помещениях.
Я нахожу удивительным, насколько разные стандарты могут быть в разных странах.
Если вашей страны нет в списке, узнайте, что вы можете узнать о стандарте в вашей стране. Помните, что стандарты могут регулироваться на уровне штата, а не на уровне страны.
Ваш специалист по дизайну и электрик должны быть знакомы с нормами и стандартами в вашем регионе.
На этой странице будут указаны некоторые стандарты США, но цель состоит в том, чтобы вы узнали об этих стандартах, а не в качестве справочника по стандартам.
Условные обозначения схем электрооборудования
Если вы хотите научиться читать электрические схемы, необходимые вам символы описаны в разделе символов на чертежах.
Вы можете бесплатно загрузить набор символов чертежей, чтобы распечатать их, пока вы читаете эту страницу.
Пример схемы электрооборудования
Мы собираемся использовать наш образец дома, чтобы узнать, как читать электрические схемы.
Схема электрооборудования показана поверх плана этажа.Я сторонник того, чтобы показывать мебель на планах этажей, чтобы вы могли правильно оценить, как будет выглядеть пространство в вашем доме.
Расположение мебели также важно для электрического плана. Освещение должно быть расставлено в соответствии с помещениями и мебелью. Например, вам понадобится телевизор и интернет-розетка там, где вы планируете установить телевизор, и вам понадобятся розетки для того, что вы хотите, у кровати в спальне.
Иногда, читая план электроснабжения, вы можете решить внести небольшие изменения, например, в направление распахивания двери.Поэтому стоит научиться читать свои электрические схемы и просматривать их, прежде чем подписывать проект в целом.
Итак, вот полный план электроснабжения нашего образца дома.
Общий план выглядит довольно сложным.
Представить электрический план на веб-странице было непросто. Я сделал символы увеличенными, чтобы их было легче увидеть.
Хорошая идея — иметь один чертеж со всем, что есть на нем, также могут быть полезны отдельные чертежи каждой отдельной системы.
Полезно видеть все в одном месте, чтобы вы могли видеть любые конфликты между системами. Различные профессии также нуждаются в понимании того, как их часть работы влияет на общий план электроснабжения и дизайн дома в целом.
Чертежи отдельных систем упрощают чтение электрических схем для каждой системы.
Как читать электрические схемы — главный совет по пониманию электрических схем
Если вы изо всех сил пытаетесь понять свои планы, попросите профессионального дизайнера или электрика помочь вам с чтением ваших электрических планов.
Схема электрооборудования розеток
План розеток содержит все детали:
- Розетки (внутренние и внешние)
- Розетки для бытовой техники (кухонные приборы, стиральные машины, вентиляторы для ванных комнат, печи)
- Главная электрическая панель
В США существует «правило шести футов» для расстояния между выпускными отверстиями. Это правило гласит, что на длине непрерывной стены длиной более 2 футов не должно быть точки, находящейся дальше 6 футов от розетки.
Элементы, которые могут образовывать «разрыв» в линиях пола, — это двери, окна от пола до потолка, лестницы, камины.
Это означает, что максимальное расстояние между двумя выходными отверстиями вдоль непрерывной стены составляет 12 футов.
Розетки можно устанавливать на любой высоте, наиболее удобной для использования. Например, в офисе может быть удобно расположить розетку в стене над столешницей. Стоит отметить в вашем электрическом плане высоту, на которой вы хотите установить розетки, и записать все розетки, которые отличаются от высоты по умолчанию.
Розетки в основном помещении
Торговые точки расположены по периметру основного пространства, которое включает в себя входную, обеденную и жилую зоны. Вот несколько замечаний:
- Главная электрическая панель, через которую подается электричество в дом и находится блок предохранителей, находится во встроенном шкафу у входной двери.
- В шкафу, в котором находится электрическая панель, сбоку вмонтирована розетка.
- Обеденная зона имеет встроенный блок слева от стола на плане этажа. Напольная розетка для питания встроенного агрегата. Это необходимо для подачи питания на зарядную станцию.
- Этот предмет встроенной мебели также имеет выход, обращенный к столу. Это будет под обеденным столом и будет служить выходом для ноутбука или чего-нибудь еще, необходимого для хобби. Это предотвращает волочение проводов в циркуляционном пространстве.
- За медиа-блоком в жилом помещении 8 розеток. Это будет для телевизора, телефона, спутниковой приставки, игровой консоли, звуковой панели, Wi-Fi роутера, жесткого диска камеры безопасности и запасного.
Цепи выхода лампы
Если хотите, вы можете указать лампы, которые будут подключены к цепи, которой можно управлять с помощью выключателя на стене. Это может быть полезно для одновременного управления несколькими лампами в жилом помещении.
Розетки на кухне
Кухня является особенно интенсивным местом для розеток из-за того, что вся бытовая техника используется либо как стационарная, либо подключается к столешнице, когда это необходимо.
Есть несколько правил касательно розеток на кухонных столешницах.
- Все розетки на столешнице должны иметь защиту GFCI (прерыватели цепи замыкания на землю) и AFCI (прерыватели цепи дуги).
- Любая секция столешницы 1 фут или шире должна иметь выходное отверстие. Столешницу можно считать разбитой на часть кухонной плитой, раковиной или другим подобным препятствием. Это связано с тем, что даже небольшая длина столешницы может быть полезна для прибора, но для нее должна быть розетка, чтобы кабели не приходилось проводить через заднюю часть раковины или варочную панель.
- Розетка должна быть не менее чем через каждые 4 фута. Это означает, что кабель прибора не должен выходить более чем на 2 фута.
Теперь давайте посмотрим на торговые точки на острове.
Опять же, правила касательно торговых точек на острове:
- По крайней мере, одна розетка требуется для первых 9 футов 2 вашего кухонного острова.
- Затем на каждые дополнительные 18 футов требуется дополнительный выпускной патрубок 2 .
Внешний кухонный остров составляет чуть более 28 футов 2 , поэтому требуются 3 розетки. С одного конца в стене есть выходное отверстие, с другой стороны — выходное отверстие, а в центре острова — выходное отверстие для стойки.
Узнайте больше о вариантах розеток для вашей кухни.
Слева расположены розетки для духовки, вытяжки, варочной панели, посудомоечной машины, мусоропровода и холодильника.
Опять же, есть некоторые правила для розеток:
- Для большинства розеток потребуется защита как GFCI (прерыватели цепи замыкания на землю), так и AFCI (прерыватели цепи дугового замыкания), но это зависит от кода в вашем регионе.
- В новом доме или на значительно отремонтированной кухне вся кухонная техника должна быть подключена к собственному контуру, если это необходимо. На практике это означает, что у большинства приборов будет своя собственная цепь.
- Рекомендуется иметь на каждом приборе изолирующие выключатели, чтобы их можно было выключить для обслуживания или в случае аварии. Для духовок и варочных панелей убедитесь, что переключатели хорошо видны и доступны. Может быть лучше визуально сгруппировать их вместе, чем расставлять их тут и там на задней панели.Убедитесь, что вам не нужно тянуться к варочной поверхности, чтобы выключить ее.
Отметьте на электрическом плане, что в электропроводке прибора должно быть достаточно провисания, чтобы его можно было вынуть из корпуса и разместить на ближайшей поверхности (полу или прилавке) для облегчения обслуживания.
Посоветуйтесь со своим электриком, чтобы понять, как они планируют настроить электрические цепи и переключатели для ваших кухонных приборов.
Розетки в ванной
В каждой ванной комнате есть розетка, обозначенная как GCFI (прерыватель цепи замыкания на землю), что делает их более безопасными для использования во влажных помещениях.Их необходимо разместить в пределах 3 футов от умывальника.
В каждой ванной комнате есть вентилятор, для которого требуется электричество.
Печь находится в семейной ванной и требует электроэнергии.
Для некоторых розеток потребуется выключатель, например, вентиляторы для ванной можно выключить на стене. Синие пунктирные линии обозначают соединение между розеткой и выключателем.
Обратите внимание, что синяя линия предназначена для объединения розетки и положения переключателя.Это не обязательно означает, что это точный путь, по которому будет проходить проводка.
Розетки в спальнях
В спальнях расположены розетки по периметру. За прикроватной тумбочкой требуются дополнительные розетки для лампы, возможно, радиоприемника или электрического одеяла. Розетка популярна, если вы хотите зарядить телефон у кровати.
Торговые точки в домашнем офисе
В офисе правильно расположены торговые точки. На столе есть розетка на 4 группы для подключения компьютера и монитора, лампы и умного динамика.
Как читать электрические схемы — верхний совет — расположение розеток и переключателей
Обратите внимание, что розетки и выключатели необходимо привинтить к раме, поэтому точное расположение каждой розетки и выключателя может оказаться невозможным. Если расположение какой-либо конкретной розетки действительно важно, сделайте пометку на плане, чтобы можно было расположить шпильки, или добавьте шпильку для точного расположения выключателя или розетки.
Электроплан — освещение
Понимание вашего плана освещения действительно важно, поскольку ваше освещение является огромным элементом дизайна в вашем доме.Это делает ваш дом пригодным для использования в ночное время и создает (или нарушает) атмосферу.
Ознакомьтесь с серией дизайнерских решений для домашнего освещения.
План освещения не будет полным без информации о цепях и переключателях.
Синие пунктирные линии указывают, какие осветительные приборы включены в какие цепи и какие переключатели управляют цепями.
Пример плана домашнего освещения показывает несколько различных типов освещения:
Освещение в основном помещении (вход, столовая, гостиная)
Основное пространство разделено на три части — прихожую, столовую и гостиную.
- У входа есть четыре встроенных светильника, которые включаются с двух мест (трехпозиционный выключатель) рядом с входной дверью и со стены прямо напротив конца кухонного острова.
- В столовой есть верхний свет над столом, управляемый со стены прямо напротив конца кухонного острова. Может оказаться полезным указать точное приспособление и высоту над столом, на котором он должен быть установлен. Посмотрите идеи освещения столовой, чтобы узнать больше об освещении столовой.
- В зоне отдыха есть шесть встроенных светильников, управление которыми осуществляется из входа и стены напротив кухонного острова. Ознакомьтесь с идеями освещения гостиной, чтобы узнать больше об освещении гостиной.
Освещение кухни
- На кухне есть три потолочных светильника над островом, управление которыми осуществляется с помощью выключателя на стене напротив кухни.
- Тот же переключатель также управляет тремя направленными встраиваемыми лампами, которые светят на блоки напротив острова.
- Также указано освещение под шкафом. Замечу, что это должна быть светодиодная лента. Это освещение управляется выключателем на стене фартука возле холодильника.
Дополнительные сведения об освещении кухни см. В разделе «Идеи освещения кухни».
Освещение главной спальни
- В главной спальне есть 3 встроенных потолочных светильника над каждым окном и набор из трех светильников у изножья кровати. Они находятся на двух отдельных цепях, каждая из которых управляется из трех пространств (четырехпозиционный переключатель) от стены у входа в мастерскую и с каждой стороны кровати.
- Прикроватное освещение будет с лампами, подключенными к розеткам, указанным на электрическом плане розеток.
- Внутри шкафа есть освещение, которое срабатывает, когда дверь шкафа открывается и закрывается без выключателя.
Дополнительные сведения об освещении спальни см. В разделе «Идеи освещения спальни».
Описание 3-х и 4-х позиционных переключателей
Название 3-х и 4-х позиционных переключателей немного сбивает с толку. Число означает на единицу больше, чем количество выключателей, которые будут на стене.
- Трехпозиционный переключатель — это схема, в которой есть 2 выключателя света в разных местах и свет (или несколько огней) в цепи.
- 4-позиционный переключатель — это схема, которая имеет 3 выключателя света в разных местах и свет (или несколько огней) в цепи.
Символы для 3-ходового и 4-ходового переключателя соответственно: S 3 и S 4 .
Освещение основной ванны
В США правила требуют, чтобы хотя бы один потолочный светильник приводился в действие выключателем.
- В главной ванне есть два встроенных светильника: один над душем, а другой над унитазом.
- Над зеркалом свет.
- Все светильники для ванных комнат должны быть влажными.
Дополнительные сведения об освещении ванных комнат см. В разделе «Идеи освещения для ванных комнат».
Освещение для семейной ванной
- Схема освещения в семейной бане такая же, как и в основной, за исключением двух встроенных светильников над ванной.
Освещение спальни
- В спальне есть верхний свет, включаемый выключателем у двери.
- Дополнительно в шкафу есть светодиодное освещение, регулируемое дверным проемом.
- Прикроватное освещение будет с лампой, подключенной к розетке, указанной на плане розеток.
Офисное освещение
- В офисе есть верхний свет, включаемый выключателем у двери.
- На книжной полке также есть освещение, которое включается переключателем на книжной полке.
Наружное освещение
- Есть два настенных светильника у входной двери, которые управляются выключателем внутри двери.
- На балконе также есть два настенных светильника, которые управляются прямо из входной двери. На балконе также есть светодиодное освещение, которое будет проходить по всей длине балконной балки, управляемое из того же места, что и другие светильники.
- Есть еще два внешних светильника с двух других сторон дома. Все внешние фонари подключены к датчикам, поэтому в ночное время они могут работать как сигнальные огни.
Садовое освещение
- В саду есть два фонаря на въезде на подъездную дорожку и несколько фонарей для деревьев.Эти огни управляются таймером, который устанавливает время, в которое свет гаснет вечером и включается утром. Таймер также гарантирует, что свет активируется только в темноте. Таймер можно отключить.
- Сараю также потребуется электричество для розеток и освещения. Эта энергия будет работать под землей от электросети дома.
- Если бы в этом доме были ворота на входе, электропроводку и домофон нужно было бы указать на плане.
Как читать электрические схемы — Совет по освещению
Переключатель регулировки яркости внутреннего освещения позволяет легко создавать различное настроение. Убедитесь, что в вашем плане освещения есть примечание или специальные символы переключателя, указывающие, что внутреннее освещение должно быть регулируемым и должно быть на переключателях яркости.
Схема электрооборудования — данные, связь и детекторы
А теперь пора взглянуть на проводку для интернета, телефона, ТВ и детекторов.
Точки подключения к Интернету, телевидению и телефону расположены вдоль стены жилого помещения напротив входной двери.
Интернет, телевидение и телефонные услуги будут вводиться в дом снаружи за телевизором. Поскольку в других комнатах нет необходимости в точках подключения к телевизору, Интернету или телефону, пунктирными линиями не требуется указывать дальнейшую проводку для этих услуг.
В медиа-блоке будет установлен Wi-Fi-роутер для обеспечения Wi-Fi по всему дому.
В домах требуются детекторы дыма и угарного газа. В этом доме используется детектор 2-в-1. Расположение детекторов обозначено D.
Как читать электрические схемы — Полезный совет
Убедитесь, что электрик, который работает с вашим домом, знаком с работой на жилых объектах. Правила для жилых и коммерческих электроустановок различны, и имеет смысл иметь электрика, который знает свое дело.
Электроплан — система безопасности
В большинстве домов есть система безопасности.Элементы системы могут включать
- Дверной звонок или домофон
- Датчики камеры внутри дома
- Датчики окна (не включены в образец дома)
- Камеры наружного наблюдения. Наружное освещение, управляемое датчиком движения (рассматривается в разделе плана освещения, также играет важную роль в обеспечении безопасности.
- Подъездные ворота (не включены в образец дома)
- Тревожные кнопки (не включены в образец дома)
- В доме-образце есть датчики движения, а панель сигнализации находится рядом с входной дверью.
- Есть также несколько внешних камер с жестким диском в мультимедийном блоке мультимедийного блока в гостиной.
- И не забудьте дверной звонок, подключенный к динамику над встроенным шкафом у двери.
Как читать электрические схемы — Полезный совет
Зона у входной двери становится довольно многолюдной:
- Наружное освещение у входной двери
- Наружное настенное освещение на балконе
- Наружное освещение балконной направляющей
- Освещение входной зоны (внутреннее)
- Освещение гостиной
- Панель сигнализации
Нет ничего плохого в том, чтобы управлять несколькими источниками света или системами в одном месте, на самом деле, я думаю, что часто имеет смысл избегать долгих прогулок и избегать повсюду переключателей и образования «прыщей на стене».Организация панели на стене действительно важна, а расположение переключателей должно быть интуитивно понятным.
Может быть стоит указать, как именно должна быть установлена панель переключателей.
Электросхемы — управление HVAC / отоплением
Может показаться странным включение вашей системы отопления, вентиляции и кондиционирования или отопления в электрическую схему, но ваша печь, водонагреватель и термостаты должны быть подключены.
Я также указал расположение вентиляционных отверстий или регистров и возвратных отверстий.Также рекомендуется проверить их расположение (хотя они и не являются электрическими)! Регистры снабжения не должны мешать занавескам или мебели. Обратные вентиляционные отверстия не должны мешать тому, где вы, возможно, захотите повесить произведения искусства или зеркало.
В нашем образце дома используется водяная печь, которая мгновенно нагревает воду, поэтому резервуар для горячей воды не требуется. Печь находится в шкафу у входа в семейную баню.
В жилом помещении и в каждой комнате есть термостаты, которые подключаются к панели управления HVAC.
Панель управления HVAC находится в шкафу в ванной комнате рядом с печью.
Иногда могут быть указаны электрические тепловые коврики в ванных комнатах, которые требуют подключения, но не в нашем примере дома.
Переход к беспроводной сети
Благодаря более быстрому Интернету и Wi-Fi, а Интернет вещей постоянно растет, все больше и больше систем доступно в беспроводных конфигурациях, в частности:
- Системы безопасности
- Звуковые системы
- Услуги потокового ТВ
- Управление освещением
- HVAC / управление нагревом
Помните, что беспроводная природа этих систем заключается только в обмене данными.Электроэнергия по-прежнему требуется для питания камеры, динамика, телевизора, лампочки и печи / котла. Иногда это можно сделать с помощью аккумулятора, но может быть предпочтительнее, чтобы большинство элементов, требующих питания, были подключены к электросети.
Подробнее о том, как читать планы дома
Home Electrical Plan — Бесплатное программное обеспечение для создания электрических схем
Вид бесплатного программного обеспечения Kozikaza для электрических схемИнструмент, созданный, чтобы помочь вам разработать план электропроводки вашего дома
Электроэнергетический проект? Kozikaza поможет вам с совершенно бесплатным программным обеспечением для планирования электрического дома, доступным в Интернете и простым в использовании.
Придумать план электроснабжения для здания или переделать электричество в старом доме может быть сложно, если вы не занимаетесь бизнесом. Если вы хотите решить эту проблему в одиночку, вам может пригодиться виртуальный план электроснабжения . установить электрическую розетку? Как я могу оптимально подключить точку и ее элементы управления? Как я могу быть уверен, где находится различное электрическое оборудование? Если у вас есть эти вопросы, наша программа для создания электрических схем создана для вас!
Независимо от того, проводите ли вы ремонт старого дома, чтобы привести его в соответствие с последними стандартами в области электротехники, или проводите электромонтаж в новом доме, это позволит вам просто работать над своим планом.Вы сможете протестировать различные варианты и выбрать наиболее подходящий для вас.
Разработайте свой электрический план100% бесплатно — 100% онлайн
От плана вашего дома до вашей электрической сети за несколько кликов
Обзор проекта электрического плана дома с помощью электрического программного обеспечения KozikazaНаши архитекторы разработали для вас бесплатный, полный 2D и программное обеспечение для 3D-проектирования дома. Это позволяет вам создать свой виртуальный дом и напрямую интегрировать свой электрический план .
После того, как вы смоделировали свой дом, нарисовав стены, двери и окна, и обустроили его комнату за комнатой, используя наш каталог 3D-объектов, вы можете переходить к электрическому плану расположения.
Затем добавьте различные элементы на свой план, используя электрических символов : розетка, телефонная розетка, CMV, выключатель, световые точки, электрическая панель, радиатор … Затем в несколько щелчков мыши представьте символических ссылок между электрические элементы и их команды.
Результат: Всего за несколько щелчков мышью вы создадите план электромонтажа своего дома и сможете спокойно приступить к электромонтажным работам! С Kozikaza легко создать план электрооборудования!
.log (‘Комплексное программное обеспечение для простого проектирования электрического плана вашего дома
Набор символов электрического плана KozikazaНаш каталог предлагает множество электрических символов для создания электрического плана вашего дома с помощью нашего программного обеспечения CAO . Вы найдете следующие символы, например: электрический распределительный щит, символ высокой электрической розетки, низкий уровень электрической розетки, мультимедиа, одинарный и двойной переключатель, с кнопкой или переключателем со световым индикатором и т. д.
Бесплатно
Бесплатное программное обеспечение с неограниченными планами
Простое
Интуитивно понятный инструмент для подготовки вашего проекта электроснабжения
Онлайн
План доступен без загрузки программного обеспечения
Шаги по разработке плана электрического монтажа вашего дома:
- Шаг 1. Создайте 3D-план
Design и организуйте свой дом:
Расположите все электрические компоненты y Вам нужно: мебель, бытовая техника, электроприборы и т. д.
- Шаг 2: Разработайте свой электрический план
Перейдите к электрической схеме в меню здания:
Разместите свой компонент на плане с помощью электрических символов и создайте связи между ними.
- Шаг 3: Персонализируйте свои электрические компоненты
Вы можете изменить свойства компонентов:
Высота установки, токи и т. Д.
Совет: Чтобы работать быстрее, вы можете дублировать компоненты и удалять их одним щелчком мыши - Шаг 4: Создать группу элементов
Создать группу элементов:
Легко сгруппировать различные электрические элементы, которые вы хотите добавить в план
- Шаг 5: Получите список электрических элементов
Получите сводку всех элементов вашего плана:
Список покупок Kozikaza позволяет получить доступ к списку покупок, которые вы должны сделать для своего проекта.
Пример электрических схем дома, разработанных с помощью нашего программного обеспечения для электричества
С помощью нашего бесплатного программного обеспечения для электромонтажных работ ваши проекты будут безграничны! Работайте над всеми планами электрических инсталляций вашего дома: планом вашей электрической панели или электрическим планом вашего освещения и различных источников света, ваших выключателей и дистанционных выключателей.
С легкостью управляйте связями между символами, чтобы оптимизировать свои электрические соединения: множественные соединения электрической панели, соединение электрической розетки или соединение выключателя.
С легкостью смоделируйте электрическую схему тумблера со связями между электрическими элементами, чтобы представить проводку: например, подключите два переключателя к лампе.
Таким образом, вы можете собрать все электрические схемы всего за несколько щелчков мышью!
- Обзор схемы электромонтажа дома, спроектированного на Козиказа
Схема электромонтажа индивидуального дома:
Это пример полной схемы электропроводки первого этажа дома. Показаны все электрические элементы, в том числе:
- электрическая панель, подключенная к каждому элементу электрической системы
- различные световые точки, подключенные к переключателям,
- электрические розетки для вашей электроники и т. Д.
- Обзор схемы электрической панели, разработанной на Kozikaza
Схема электрической панели:
Вы также можете провести соединения вашей электрической панели с различными элементами. Вот для примера мы показали схему «коридорный свет», подключив электрическую панель к прожекторам.
- Обзор кухонного электрооборудования, разработанного на Kozikaza
Электрический план кухни:
Этот план был разработан с помощью нашего программного обеспечения и включает в себя все основные элементы кухонного электрического монтажа:
- розетки для ваших приборов: морозильная камера, холодильник , электрическая плита, духовка, вытяжка, посудомоечная машина и т. д.:
- электрические розетки для подключения вашей мелкой бытовой техники
- точки и подвески с переключателями для управления ими
- Обзор плана электромонтажа ванной комнаты, разработанного на Kozikaza
Электромонтаж ванной комнаты:
Вот пример плана, включающего различные элементы, которые вы можете найти в ванной комнате:
- точечные светильники для ванной комнаты и настенный светильник, подключенный к двум выключателям
- электрические розетки для ваших небольших электроприборов
- электрические розетки для стиральной машины и сушилки
Я разработал свой электрический план Благодаря Kozikaza графический интерфейс удобен и интуитивно понятен.
Спасибо за качество вашего инструмента, который для меня является эталоном среди архитектурных программ, и к тому же он бесплатный!
Супер бесплатное программное обеспечение для проектирования электрических схем вашего дома. Легко использовать и понимать, функция копирования и вставки очень полезна.
Как читать электрические схемы
д; встраиваемый люминесцентный тройник
o) линейный люминесцентный встраиваемый, параболический тройник 2х4 дюйма
Масштаб отраженных планов потолка
Отраженные планы потолка должны быть нарисованы в том же масштабе, что и планы этажей.В зависимости от сложности проекта и обработки потолка наиболее распространенным масштабом для жилых и небольших коммерческих проектов является i // = 1′-0 «(метрическая шкала 1:50) и V8» = 1′-0 «(1: 100). метрических) для крупных коммерческих проектов.Масштаб, в котором нарисован план потолка, следует отметить и разместить непосредственно под рисунком, рядом с заголовком или непосредственно под ним. Если для пояснения какой-либо детали потолка требуется увеличенная деталь, это с пометкой или символом на отдельном крупномасштабном чертеже (Рисунок 14-8).
Светильники должны быть нарисованы в виде простых прямоугольников, квадратов или кругов, которые максимально точно отображают фактическое устройство (Рисунок 14-9). Упрощенные формы предотвращают беспорядок в обзоре для удобства распознавания. В большинстве случаев осветительный прибор нарисован в масштабе реальных светильников. Однако в некоторых случаях, таких как миниатюрные точечные светильники, размер может быть преувеличен, поскольку правильно масштабированная единица будет слишком мала для отображения на плане.
ПЛАН ЧАСТИЧНО ОТРАЖАЕМЫЙ ПОТОЛОК
ПЛАН ЧАСТИЧНО ОТРАЖЕННЫЙ ПОТОЛОК
МЕТАЛЛИЧЕСКАЯ ШПИЛЬКА К КОНСТРУКЦИИ ВЫШЕ, КАК ТРЕБУЕТСЯ
ДЕРЕВО
БЛОКИРОВКА, КАК ТРЕБУЕТСЯ
МЕТАЛЛИЧЕСКАЯ ШПИЛЬКА К КОНСТРУКЦИИ ВЫШЕ, КАК ТРЕБУЕТСЯ
BLACKOUT SHADE — см. ТЕХНИЧЕСКИЕ ХАРАКТЕРИСТИКИ.
Рис. 14-8 Увеличенная деталь затемняющей шторы изображена в разрезе и привязана к ее местоположению на мелкомасштабном плане отраженного потолка.
BLACKOUT SHADE — см. ТЕХНИЧЕСКИЕ ХАРАКТЕРИСТИКИ.
ДЕТАЛЬ BLACKOUT 5HADE
Рис. 14-8 Увеличенная деталь затемняющей шторы нарисована в разрезе и привязана к ее местоположению на мелкомасштабном плане отраженного потолка.
Рисунок 14-9 Простые символы используются для обозначения различных типов осветительных приборов и обработки потолка.
в.вом
ПЛАН ЧАСТИЧНО ОТРАЖЕННЫХ ПОТОЛКОВ — 2-Й ЭТАЖ
СИМВОЛ LEGBC
ОБОЗНАЧАЕТ ПЛОСКОСТЬ ПОТОЛКА
ОТДЕЛКА ПОТОЛКА И / ИЛИ ОТДЕЛКА ПРОМЫШЛЕННОЙ СТЕНЫ.
СКРЫТЫЙ ПОДВЕСНОЙ АКУСТИЧЕСКИЙ ПОТОЛК 1’x 1 ‘. ПРОИЗВОДИТЕЛЬ: ARMSTRONG
СЕТКА: ПОЛНОСТЬЮ ДОСТУПНЫЙ СКРЫТЫЙ СПЛАЙН
ПЛИТКА: ТРАВЕРТОНОВАЯ ПЛИТКА С МОНТАЖНЫМ ТРЕЩИМОМ, 12 «x 12» x 3/4 «1/8» СКОШЕННАЯ КРАЯ K4C4, # 592.
НОВЫЙ ПАРАБОЛИЧЕСКИЙ ФЛУОРЕСЦЕНТНЫЙ СВЕТИЛЬНИК 2 X 2 — MANUF: METALUX
МОДЕЛЬ №: 2P3GAX 2UI-5/8 S44 I LEOC8 ЛАМПА С 2 ЕД. ТРУБКИ «U», ЦВЕТ 35 КЕЛЬВИНА
(ПРОВЕРИТЬ ЕСЛИ СТРОИТЕЛЬСТВО. СТЕНД. НА 120 В ИЛИ 277 В И ЗАКАЗАТЬ СООТВЕТСТВУЮЩИМ) НОВЫЙ ВЫХОДНОЙ СВЕТ / АВАРИЙНЫЙ СВЕТ / ПОТОЛОЧНЫЙ МОНТАЖ. (ПРЕДЛАГАЕМОЕ МЕСТОПОЛОЖЕНИЕ) ЛАМПЫ ЛАМПЫ — 6 ДЮЙМОВ ИЗГОТОВЛЕНИЕ: АРХИТЕКТУРНОЕ ОСВЕЩЕНИЕ HALO ОПИСАНИЕ: # H7620T- 360 (RC; ЛАМПА W / 75 PAR 30-FL, С ПРОЗРАЧНЫМ ОТРАЖАТЕЛЕМ АЛЬЗАКА.
OVE NOTE INCADESCENT)
ЛАМЯНАЯ МАШИНА — ОТВЕРСТИЕ 6 ДЮЙМ
ПРОИЗВОДСТВО: АРХИТЕКТУРНОЕ ОСВЕЩЕНИЕ HALO
ОПИСАНИЕ: # H7643T-4670C: ЛАМПА W / 75 PAR 30-FL,
(ИМЕЕТ НАСТРОЙКУ 40 «И ВРАЩЕНИЕ НА 360 ‘) ПРОЗРАЧНЫЙ ОТРАЖАТЕЛЬ АЛЬЗАКА.
НОВЫЙ ФЛУОРЕСЦЕНТНЫЙ СВЕТИЛЬНИК 2X2 НА КОНТУРЕ АВАРИЙНОГО / НОЧНОГО СВЕТА.
(ДОЛЖНЫ СООТВЕТСТВОВАТЬ ВЫШЕ ПРИМЕЧАНИЕ 2×2 ПАРАБОЛИЧЕСКОЕ).
ПЕРЕКЛЮЧАТЕЛЬ ПОДСВЕТКИ HALO ARCHITECTURAL LIGHTING, МОДЕЛЬ ¡(¡DIN-1000. (ЕСЛИ ИЗДЕЛИЕ HALO ДОСТУПНО ТОЛЬКО В БЕЛОМ цвете, ОТПРАВИТЬ С ОТДЕЛКОЙ ИЗ СЛОНОВОЙ КОРИ).
НОВЫЙ ТРЕХСТОРОННИЙ ПЕРЕКЛЮЧАТЕЛЬ
ВЫКЛЮЧАТЕЛЬ
Бра
АМЕРИКАНСКАЯ КОМПАНИЯ ПО СТЕКЛЯННОМУ СВЕТУ
«БЕТСИ ПИТА» 5614-С
ЛАМПА W / 2 40W CANDELABRA
ОТДЕЛКА: СТАНДАРТ
ПОДВЕСКА
АМЕРИКАНСКАЯ КОМПАНИЯ ПО СТЕКЛЯННОМУ СВЕТУ
«БЕТСИ АПЛАЙТ»
ОБЩАЯ ШИРИНА: 23 «
ОБЩАЯ ВЫСОТА: (ПОЛЬЗОВАТЕЛЬСКАЯ) 24 «
ЛАМПА Вт / 3 100 Вт A
ОТДЕЛКА: СТАНДАРТ
НАСТЕННЫЙ РОГ И СТРОБ
WHEELLOCK MT СЕРИЯ.УСТАНОВКА НА 80 «AFF, ГЕНЕРАЛЬНЫЙ ПОДРЯДЧИК OC ДОЛЖЕН ПРОВЕРИТЬ, ЧТО ВЫБРАННЫЙ РОГ И СТРОБ (КОМБИНИРОВАННЫЙ БЛОК) СОВМЕСТИМ С СУЩЕСТВУЮЩЕЙ СИСТЕМОЙ БЕЗОПАСНОСТИ ЗДАНИЯ. план потолка и привязка к легенде со спецификациями.
ПЛАН ОТРАЖЕННОГО ПОТОЛКА
Составление стандартов для плана потолка с отражением
На отраженном плане потолка должны быть четко видны все стены, перегородки и перекрытия, пересекающиеся с потолком.В нем также должны быть указаны изменения высоты потолка и материалов, таких как освещение, спринклеры, детекторы дыма и диффузоры HVAC, которые прикрепляются к потолку или проникают в него. При составлении отраженных планов потолка дизайнер должен воспроизвести стены и проемы этажа, например, двери и окна, на плане этажа, но без отображения таких предметов, как встроенные шкафы, сантехника и т. Д.
Осветительные приборы и другие электрические элементы, показанные на плане отраженного потолка, помечены символами, которые привязаны к легенде (Рисунок 14-10).Рекомендуется нарисовать все электрические обозначения на плане до того, как на него будут нанесены размеры или добавлены примечания. В противном случае символ может упасть на верхнюю часть размера, что потребует перемещения размера. Расположите светильники на плане потолка в соответствии с концепцией светового оформления. Общие типы осветительных приборов на плане освещения включают накладные, встраиваемые, подвесные и направляющие. См. Рисунок 14-11, где приведен список стандартных символов освещения и электрических обозначений.
В коммерческих проектах, где есть подвесной потолок, на планах отраженного потолка будут показаны любые перегородки, которые проходят через плоскость потолка.Также должны быть показаны линии потолочной сетки (называемые «Т-образными» стержнями) (Рисунок 14-12). Другая информация, включенная в план отраженного потолка, — это материалы потолка, высота потолка, уклон потолка, изменение высоты потолка, расположение всех осветительных приборов (включая выходное и аварийное освещение), воздухораспределители и вентиляционные отверстия, панели доступа, динамики, спринклер. головы (если используются) и другие предметы, которые касаются потолочной плоскости или являются ее частью.
Далее дизайнер интерьера должен определить, как должен переключаться свет в помещении.Для жилых или небольших коммерческих помещений
- Рисунок 14-11 Стандартное освещение и электрические символы.
- Рисунок 14-12 Сетка потолка, а также светильники и другие элементы, расположенные внутри нее, показаны в масштабе.
, переключение может отображаться либо на плане отраженного потолка, либо на плане электрического освещения. Дизайн переключения должен основываться на том, сколько требуется индивидуального управления и функции освещения.Потребности в энергосбережении и максимальные нагрузки в цепях также определяют количество и расположение переключателей. Как правило, переключатели расположены рядом с дверью или отверстием, ведущим в помещение. Для больших пространств, содержащих более одной записи, может потребоваться несколько мест переключения.
После размещения переключателей определите, какими светильниками они должны управлять, и обведите это на плане. Это можно сделать двумя способами, в зависимости от размера и сложности плана освещения.
Первый метод — провести линию от настенного переключателя до приборов, которыми он управляет.
СВЕТИЛЬНИКИ В ОТРАЖЕНИИ ПОТОЛКА север
После того, как дизайнер интерьера разработает освещение и переключение, чертеж передается инженеру-электрику, который указывает точную схему, сечения проводов и другие характеристики, необходимые для электрической системы.<ПЕРЕКЛЮЧАТЕЛЬ ЭЛЕКТРИЧЕСКИЙ
4 ПЕРЕКЛЮЧАТЕЛЬ ДИСТАНЦИОННОГО УПРАВЛЕНИЯ Trc
4 ПОГОДОЗАЩИЩЕННЫЙ ВЫКЛЮЧАТЕЛЬ Yujf i НИЗКОВОЛЬТНЫЙ ВЫКЛЮЧАТЕЛЬ STSTEM Tlv
ВЫКЛЮЧАТЕЛЬ ВРЕМЕНИ A ПОТОЛОЧНЫЙ ВЫКЛЮЧАТЕЛЬ
ПРИМЕЧАНИЕ: СПЕЦИАЛЬНЫЙ TTPE ПЕРЕКЛЮЧАТЕЛЯ ANT МОЖЕТ БЫТЬ ОБОЗНАЧЕН С ПОМОЩЬЮ «S» С ДОБАВЛЕНИЕМ ПОДПИСКИ ДЛЯ НАЗНАЧЕНИЯ НЕКОТОРЫХ СПЕЦИАЛЬНЫХ ВАРИАНТОВ СТАНДАРТНЫХ ПЕРЕКЛЮЧАТЕЛЕЙ.
Рисунок 14-15 Еще один метод обозначения элементов управления выключателем света в крупных коммерческих проектах — это использование нижних букв, которые соответствуют световому приспособлению и подходящему настенному выключателю.
Рисунок 14-14 Общие символы переключателей для управления освещением.
н ттт нр м
План освещения 2-го этажа sc: 1/4 «= r-0n
Обозначение материалов
При подготовке плана потолка с отражением дизайнер должен указать типы и расположение конкретных потолочных материалов. Это можно сделать, разместив примечания на плане или обозначив обозначения материала потолка. Двумя наиболее распространенными потолочными системами являются потолки из гипсокартона, которые крепятся к вышеупомянутой конструкции, и подвесные акустические потолки.Другая отделка потолка может включать деревянную облицовку, линейный металл или даже открытые деревянные балки и балки (рис. 14-16). Определение размеров плана потолка в отраженном свете
Поскольку отраженные планы потолка обычно рисуются в масштабе, соответствующем планам этажей, нет необходимости в большом количестве размеров на плане, если только потолок не сломается или не произойдет изменение материалов там, где они явно не расположены у двери, стены , или расположение столбца. Пока отраженный план потолка нарисован в масштабе, размеры помещений и конструкции могут быть сохранены для плана этажа.Однако в некоторых случаях размеры блоков и места крепления необходимо определить. Это особенно верно для больших пространств потолка из гипсокартона, где масштаб не так просто определить, как в сборке подвесного потолка с сеткой (где, например, можно сосчитать единицы, чтобы найти светильник).
При определении размеров отраженного плана потолка можно использовать либо размеры «отделки», либо размеры «обрамления», но выбор должен быть отмечен на планах. Такие элементы, как встраиваемые осветительные приборы, можно точно разместить в готовом пространстве.Если в потолке из гипсокартона будет использоваться точечный светильник, он обычно рассчитывается по его центральной точке, поэтому подрядчик по электрике знает, где установить
ПЛАН ЧАСТИЧНОГО ОТРАЖЕННОГО ПОТОЛКА
шт. Выравнивание и направление рисунков, возможно, потребуется определить прямо на плане. В этих случаях следует давать ссылки, которые легко получить в полевых условиях. Размеры следует отсчитывать от лицевой стороны стены, колонны или воображаемой центральной линии комнаты, как показано на рис. 14-17.
ОТРАЖАЕМЫЙ ПЛАН ПОТОЛОЧНОЙ ПОТОЛОЧНОЙ ЗАЛ
Рисунок 14-17 Встраиваемые вниз светильники на этом плане отраженного потолка имеют размеры относительно друг друга и различных стеновых элементов и потолков.
Контрольный список для отраженных планов потолков
Общий
• Название чертежа, отметьте его масштаб и определить север (или опорное направление).
• При необходимости разработайте спецификацию материалов для потолочного типа и сопоставьте ее с планом.
• Разработайте легенду символа освещения и поместите ее на том же листе, что и первый отраженный план потолка (если требуется более одного), или на соседнем листе.
• Очистите план (или отключите лишнюю информацию в САПР), чтобы стены, пространства и коды клавиш были четкими, темными и очень разборчивыми. Не показывайте предметы, если они не находятся на плоскости потолка или не пересекают ее.
• Нарисуйте основные потолочные перекрытия или проемы выше и назовите их в примечании, включая панели доступа на чердак.
• Стены мешка, если применимо.
• Определитесь с схемами переключения светильников (если дизайнер интерьера несет эту ответственность) и покажите их методом изогнутой линии или с использованием цифр / букв.
• Свяжите отраженный план потолка с другими чертежами (если применимо), тщательно проверяя точность и полноту информации.
Обозначения
• Отметьте, где уровень потолка изменяется или наклоняется, если это напрямую влияет на осветительные приборы и их установку.
• Обратите внимание на особенности, зазоры, высоту готового потолка над чистым полом, выравнивания и другие важные элементы.
• Сделайте перекрестные ссылки на план с символами и ссылку на график освещения, детали и другие чертежи по мере необходимости.
Размеры
• Определите размеры расположения осветительных приборов и изменения типов потолков, которые не сразу заметны. Найдите такие предметы, как колонны или существующие стены.
• Размерные зазоры, центровки и другие управляющие факторы.
• Измерьте размеры бухт освещения и другого структурного освещения или создайте их крупномасштабные чертежи и сделайте перекрестные ссылки.
Схема электрооборудования
Электрические планы могут включать электрические розетки, телефоны, устройства связи и другие элементы, требующие электроэнергии.В небольших проектах эти предметы можно показывать вместе с освещением. Пример этого типа чертежа показан на Рисунке 14-18. В крупных коммерческих проектах план электроснабжения, часто называемый планом питания или питания / связи, показывает розетки и соответствующие электрические устройства отдельно (Рисунок 14-19). В большинстве случаев показаны сантехнические приборы и предметы, такие как шкафы и другие встроенные предметы, чтобы более точно согласовать расположение электрических силовых устройств.В некоторых случаях, например, в условиях открытого офиса, дизайнеры также предпочитают показывать мебель, поскольку во многих случаях она напрямую связана с расположением электрических розеток (рис. 14-20). Дизайнер интерьера готовит план электропитания, а затем направляет его инженеру-электрику для детального описания схем, размеров проводов, коробок и других электрических характеристик. На небольших планах жилых домов чертеж передается непосредственно подрядчику по электрике для выполнения работ в соответствии с принятой практикой.
Телефон и другие системы связи также обычно показаны на электрическом плане. Расположение телефонов, систем громкой связи, компьютерных терминалов, устройств внутренней связи и систем безопасности является обязанностью дизайнера интерьера после консультации со специалистами. Разработчик составляет план питания / связи, который схематически показывает, где требуется питание для специального оборудования. Символы электрических устройств обычно привязаны к легенде, которая находится на том же листе, что и план.Инженер-электрик или другие системные специалисты составляют большую часть подробных спецификаций для этих устройств.
ЭЛЕКТРИЧЕСКИЙ 4 ПЛАН ОСВЕЩЕНИЯ
Рисунок 14-19 В крупных коммерческих проектах отдельные электрические схемы / схемы электропитания с легендой указывают розетки и схемы. Многие архитектурные особенности и другие системы не учитываются, чтобы можно было легко прочитать электрическую схему.
Рисунок 14-20 Схема электропитания часто включает в себя телефон и другие устройства связи.
Рисунок 14-20 Схема электропитания часто включает в себя телефон и другие устройства связи.
опросчик / коммуникационный le <5enp
ПОЛЮЭРНЫЙ / ПЛАН СВЯЗИ
1эпинповкпо.э
Рисунок 14-19 В крупных коммерческих проектах отдельные электрические схемы / схемы электропитания с легендой указывают розетки и схемы. Многие архитектурные особенности и другие системы не учитываются, чтобы можно было легко прочитать электрическую схему.
1эпинповкпо.э
ЧАСТИЧНО
POIUER / ELECTRICAL LE и ENP
Розетка imex @ is «a, f.f».
vault puplex p0v * r розетка ® 18 «a, e.e.-huem.l * cri6 (2)
50a125 / 2i0 AMA-приемник с крышкой из нержавеющей стали @ 24 «ap.p. —
mam »7968
) двухкамерный силовой коммуникационный полюс-wiremoi.p * îoff »-2v, tïle / pata floor co® (flu * mountsp in floor) — 5 pata, i voice — UEtm
ЧАСТИЧНО
ЭНЕРГЕТИЧЕСКИЙ ПЛАН
поллер / коммуникационный le <5enp
[j] СОЕДИНИТЕЛЬНАЯ КОРОБКА W UJMIP © СОЕДИНИТЕЛЬНАЯ КОРОБКА НАПОЛЬНЫЙ ЯДЕР WZ UJ
Шкала электрических схем
Электрические планы коммерческих помещений обычно имеют тот же масштаб, что и планы этажей.Наиболее распространенный масштаб для коммерческих проектов — V8 «= l’-O» (1: 100 метрическая). Однако в сложных установках масштаб может быть увеличен до V4 «= l’-O» (метрическая шкала 1:50). Следует отметить масштаб, в котором нарисован план, и разместить его рядом с заголовком или непосредственно под ним.
Разработка стандартов для схем электрооборудования
На электрических схемах должны быть показаны все внутренние и внешние стены, лестницы и большие устройства, такие как печи, водонагреватели и т. Д., Требующие питания. Встроенные светильники и мебель, например, в ванных комнатах и кухнях, также должны быть нарисованы, чтобы лучше находить электрические розетки и другие устройства.Стены следует рисовать с использованием более легких линий, чтобы они не преобладали на чертеже. Найдите розетки для удобства на стенах, где они должны быть установлены, и обозначьте размер над чистым полом (A.F.F.). Не забудьте отметить любые особые требования, такие как защита от атмосферных воздействий (WP), разъемная проводка или специальные соединения. Общие электрические символы показаны на Рисунке 14-21.
Обозначение материалов
Электрические схемы в основном схематические. Хотя они нарисованы в масштабе, соответствующем планам этажей, электрические устройства часто слишком малы, чтобы их можно было изобразить на чертеже в их точном масштабе.Они нарисованы как крупный символ, чтобы их было легко распознать. Для простоты рисунка такие материалы, как полы и другие предметы, не разграничиваются.
ОБЩИЕ ЭЛЕКТРИЧЕСКИЕ СИМВОЛЫ
проводка розеток для опроса
дуплексная розетка питания дуплексная розетка питания uj / цепь прерывателя замыкания на землю cwp = всепогодный;
дуплексная розетка питания с изолированными клеммами заземления дуплексная розетка питания на выделенной цепи дуплексная розетка питания uj / верхняя половинная коммутационная розетка дуплексная розетка дуплексная розетка с установкой заподлицо на полу g5uadraplex розетка питания заподлицо с полом связь / данные
<4 телефонных выхода
<] Комбинация выхода данных теле / выход данных c может указывать * телеграммы портов данных с нижним индексом;
розетка для кабельного телевидения
Комбинированный модуль теле- и передачи данных, монтируемый заподлицо на полу.выход («можно указать • телеграммы портов данных с нижним индексом;
= 5) напольный ТВ-кабель для установки заподлицо * розетка
| ~ j ~ 1 соединительная коробка 01 / whip
© Распределительная коробка вровень с полом с штыревой системой пожарной сигнализации дымовая сигнализация — прямой провод с резервным аккумулятором аварийное / выходное освещение выходное освещение с резервной батареей y — y блок аварийного освещения жилой h дверной звонок — проверьте расположение звонков 2 minj w / owner ogp вывоз мусора электрический открыватель гаражных ворот и разная электрическая сервисная панель
Рисунок 14-21 Общие электрические символы.
Проектирование электрических схем
Электрические планы нарисованы в масштабе, который обычно соответствует планам этажей. Нет необходимости в большом количестве размеров на электрическом плане, поскольку элементы могут быть расположены в масштабе на планах этажей. Однако в некоторых случаях электрические розетки и другие устройства необходимо подобрать таким образом, чтобы точно разместить их там, где к ним будет легко получить доступ, когда в здании есть люди (рис. 14-22). Это особенно верно для больших пространств стены, где масштаб не может быть точно определен путем масштабирования чертежа.В таких случаях должны быть даны ссылки, которые легко получить в полевых условиях, если размеры измеряются от лицевой стороны стены, колонны или воображаемой центральной линии комнаты. Если для розетки не указан горизонтальный размер, электрик разместит ее максимально близко к замыслу дизайнера. Электрик может прикрепить розетку к стенной стойке, а не размещать ее между двумя стойками, если проектировщик не определил конкретное место.
Рисунок 14-22. Хотя большинство электрических розеток не обязательно точно располагать, есть некоторые исключения, например, в зоне бара, где розетки должны согласовываться с оборудованием.
Рисунок 14-22. Хотя большинство электрических розеток не обязательно точно располагать, есть некоторые исключения, например, в зоне бара, где розетки должны согласовываться с оборудованием.
ЧАСТИЧНАЯ ЭЛЕКТРИЧЕСКАЯ ШИНА
Контрольный список для схем электрооборудования
Общий
• Название чертежа, отметьте его масштаб и определить север (или опорное направление).
• Назовите прилагаемый график электрооборудования и сопоставьте его с планом.
• Добавьте примечания, чтобы прояснить любые сокращения, которые обычно не распознаются.
• Очистите план (или отключите лишнюю информацию в САПР), чтобы стены, пространства и ключевые электрические коды были четкими, темными и очень разборчивыми.
• Свяжите схему электрооборудования с другими чертежами и графиками, тщательно проверяя точность и полноту информации.
Обозначения
• Обратите внимание на особые ситуации, например, устройства, предоставленные владельцем или другими лицами.
• Обратите внимание на особенности, зазоры, расположение выпускных отверстий над чистыми полами, шкафами и другими предметами.
• Обратите внимание на выравнивание и другие важные элементы, влияющие на электрическую схему.
Размеры
• Расположение розеток по размеру и изменения пола или типа стен, влияющие на установку розеток.
• Нанесите размеры выходам на стены, углы или пересечения стен, а также к другим объектам, например колоннам.
• Измерьте соответствующие выпускные отверстия на нужном расстоянии от чистого пола (A.F.F.).
• Размерные зазоры, центровки и другие управляющие факторы.
Механические системы здания обычно называют системой HVAC (отопление, вентиляция и кондиционирование воздуха). Система HVAC обеспечивает комфортную среду обитания в здании. Система не просто обеспечивает отопление зимой и охлаждение летом. Он подает свежий воздух, циркулирует по помещению и удаляет затхлый воздух и запахи. Он также может обрабатывать воздух для контроля влажности, пыли, пыльцы и других нежелательных условий.
Сантехническая система в здании выполняет ряд различных функций, таких как подача воды к людям и машинам за счет повышения давления (подача воды) и выброс воды для удаления под действием силы тяжести (дренаж). Сантехника обслуживает три основных потребности: она обеспечивает воду для потребления людьми, канализационный отвод отходов и механические системы. Вода может использоваться для оборудования или для обслуживания автоматической спринклерной системы, как обсуждается далее в этой главе в разделе «Планы водопровода». В некоторых коммерческих зданиях также может быть система ливневой канализации, которая защищает крышу или другие участки от дождя или наводнения.Такие системы отделены от трубопроводов бытовой канализации и собираются в ливневую канализацию или направляются в канализацию у обочины. В здании также может быть водопад, фонтан, пруд или другой декоративный элемент со специальной системой рециркуляции воды.
Механические и сантехнические чертежи требуют тесного взаимодействия, координации и совместной работы различных специалистов-проектировщиков и подрядчиков. Профессиональные офисы, которые производят чертежи систем отопления, вентиляции и кондиционирования воздуха и сантехники, должны знать об одном
. Продолжить чтение здесь: Планы механических и сантехнических устройств
Была ли эта статья полезной?
Руководство по планированию электроустановок в вашем доме
Будь то новое здание или реконструкция, важно спланировать электрические установки с учетом индивидуальных привычек и требований соответствующих жильцов.Задайте несколько простых вопросов в начале, чтобы избежать перегрузки цепей несколькими высокопроизводительными электроприборами или более частого использования соединительных колодок.
О чем подумать
Вот несколько вещей, о которых следует подумать, чтобы позволить архитекторам, строителям или подрядчикам по электричеству спланировать и реализовать правильную электрическую инфраструктуру:
- Какие электроприборы использовать в какой комнате?
- Где устанавливать источники света (как стационарные, так и розеточные)?
- Где требуется подключение к телевизору, компьютеру или телефону?
- Где должны быть установлены переключатели или модули управления для функций Умного дома?
- Где обычно заряжаются мобильные устройства и нужно ли устанавливать специальные розетки с портами USB?
- Как я хочу управлять наружным освещением?
Затем вы можете решить:
- Количество контуров
- Количество розеток
- Количество подключений лампы
- Количество ТВ и коммуникационных подключений
- Подготовка электрооборудования к функциям «Умного дома», , например, многокомнатные аудиосистемы, управление электрическими рольставнями, сигнализация
Планирование осуществляется на основе максимально точного строительного или поэтажного плана дома или квартиры — либо в оригинале, либо на компьютере с соответствующим программным обеспечением для группового планирования.
Обратите особое внимание на двери и направление их открывания, окна и лестницы, ступени и камины.
Также идеально разместить наиболее важную мебель на плане этажа, так как она будет размещена в комнатах. После того, как вся эта информация будет получена, можно при необходимости провести соответствующие соединения в комнатах.
Планирование кухниПервым планируемым помещением обычно является кухня из-за длительных сроков поставки многих из ее функций.
Кулинарные острова, например, с кухней открытой планировки, примыкающей к гостиной, предъявляют очень специфические требования к планированию освещения и подключению духовок, микроволновой печи, вытяжек или морозильной камеры и холодильника. При заказе новой кухни планирование электрооборудования часто выполняется в виде плана с размерами, чтобы обеспечить правильную реализацию.
Не забудьте рассмотреть множество других электрических кухонных принадлежностей, таких как тостеры, кофеварки, пароварки, блендеры и т. Д.В зависимости от размера кухни можно легко установить от 6 до 15 розеток.
Вы также можете принять во внимание телефонное соединение или, например, скрытый радиоприемник, в электрическом плане кухни.
Пример схемы электрооборудования кухни и прилегающих помещений.
Планировка спален и детскихВ спальне первое, что нужно учитывать, — это освещение вокруг кровати.Если вы хотите сэкономить место, вы также можете спроектировать светильники как настенные светильники.
Вам также могут понадобиться дополнительные розетки рядом с кроватью и вокруг нее, например, для телефона или кабеля для зарядки.
Планировка особенно важна для детских комнат: дети быстро растут, и вам нужно думать об их потребностях по мере взросления, а также прямо сейчас.
Для младенцев, например, может потребоваться тепловая лампа, тогда как, когда малыши пойдут в школу, им может понадобиться письменный стол с соответствующими разъемами для настольной лампы и компьютера.
А подросткам понадобится место в комнате для телефона и интернета, Hi-Fi системы и телевидения.
Планировка гостинойВ гостиной особое внимание нужно уделить электромонтажу. Будьте гибкими и щедрыми с розетками, прежде всего с электрическими соединениями для телевизора и телефона.
Если вы знаете, где должны быть размещены ваши устройства, вы также можете спланировать подключение громкоговорителей, Интернета и антенн, избегая свободно проложенных кабелей дальше по линии.
Планировка санузлаВанные комнаты становятся все больше и больше местом для отдыха, релаксации и хорошего самочувствия, а также практичностью; поэтому изменились и требования к электроустановкам.
Раньше нужно было проектировать только потолочный светильник и розетки для бритв и фенов.
Сегодня в ванной комнате много бытовой техники, которую необходимо учитывать при электромонтаже, а также количество и расположение розеток: электрические зубные щетки, паровые сушилки, душевые кабины, джакузи или сиденья унитаза с подогревом.
Важно отметить, что из-за высокой влажности в ванных комнатах существуют особые правила установки, поэтому обязательно проверьте это при планировании.
Функции умного домаМногие функции, такие как электрические жалюзи, управление индивидуальным освещением и диммерами, датчики движения с камерами, многокомнатные аудиосистемы, межкомнатная связь, управление отоплением или даже кухонными приборами, часто могут управляться централизованно со смартфона. через системы Умного дома (например, Homematic IP).
Такие системыимеют то преимущество, что их можно не только монтировать в домах и квартирах, но также можно гибко интегрировать в качестве промежуточного решения для подключения и брать с собой во время переезда.
Важно, чтобы все установки «Умного дома» были интуитивно понятными и простыми в использовании как со смартфона, так и с отдельных коммутационных компонентов.
Также преимуществом является открытая и, следовательно, расширяемая система; кто знает, какие электрические функции появятся в наших домах в ближайшие годы?
Фото: Fotolia Marcus Hofmann — иллюстрации Хайке Шуберт
Другие интересные статьи:
Как сделать дом в лучшем свете: выбор внешнего освещения
Следите за своим домом, где бы вы ни находились: светодиодная лампа для камеры VESTA
Электропроводка в квартире.Как спланировать электрика в квартире
Электромонтаж в квартире … Увы, как бы ни было особенным в этой сфере, он всегда сталкивается с трудностями. Чтобы у вас их не было, прочтите инструкцию, как сделать разводку — и все правильно. Причем состоит всего из 6 ступеней.
Шаг №1 — Определите, какой тип проводки для использования в квартире более подходит
Существует три типа проводки:
1.Коробки соединительные сквозные . В электрическую заслонку помещается счетчик и несколько автоматов. В подъезде устанавливается щиток, от которого в квартиру пускают питающий кабель. Питающий кабель подходит для распределительных коробок. Они расположены в каждой комнате и соединены между собой последовательно. От распределительных коробок идут провода к розеткам, выключателям и освещению. Этот вид разводки применяется чаще всего.
2. Звезда . Каждый выключатель и розетка подключены напрямую к электрической панели.У каждого свой автоматический выключатель. Плюс такого типа: не нужно обесточивать всю квартиру, если нужно устранить проблемы с вывешиванием одного из элементов. Минус — много проводов и работы при установке, что удорожает монтаж электрики.
Принцип такой же, как и в звезде, только к экрану не подходит одна розетка и выключатель — они сгруппированы вместе.
Для максимальной разводки рекомендуется совмещать в квартире два или все типы.Например, как на фото ниже, где тип разводки звезда и петля.
Шаг №2 — Нарисуйте план квартиры в двух экземплярах
На переднем плане схема расположения выключателей и освещения, а на втором — розетки.
Шаг № 3 — Разделите источники потребления энергии на несколько групп
Каждая группа имеет отдельный автомат. Например:
Номер варианта 1
- Группа 1 — вытяжка и холодильник — нужна машина на 25 А
- Группа 2 — стиральная машина — автомат на 25 А
- Группа 3 — освещение — автомат на 10 А
- Группа 4 — розетки — автомат на 25 А
- Группа 5 — посудомоечная машина — автомат на 25 А
- Группа 6 — плита электрическая — автомат на 32 А
Номер опции 2
- Освещение всех комнат, кухни и коридора — 10 AA
- Розетки для дома — автомат на 25 А
- Розетки в кухне и коридоре — автомат на 25 А
- Освещение и розетки ванной ( Эта группа в любом случае должна быть отделена от других, потому что ванная и туалет относятся к помещениям с повышенной влажностью и к электропроводке предъявляются более строгие требования, чем к электропроводке других комнат) — автомат на 25 А
- Для каждой техники (электрическая плита, посудомоечная машина, стиральная машина) выделяется в одну группу — машина на 25 или 32 А
Разделить потребителей электроэнергии на группы необходимо по двум причинам:
- Если все потребители подключатся к одной машине, то потребуется проложить очень толстый провод, чтобы он выдерживал нагрузку.Да и машину мощную придется покупать. И чем толще проволока и чем мощнее машина, тем они дороже.
- Если вышла из строя одна розетка или выключатель, то необходимо обесточить всю квартиру, чтобы устранить поломку.
Шаг №4 — Определите количество и расположение розеток, светильников и выключателей
На основе существующего оборудования (работающего от электричества) в доме и с учетом будущих покупок рассчитайте оптимальное количество розеток и выключателей для каждого. номер.Помните, розетка в кадке быть не может. Разрешен только один — для электробритв. А потом — через трансформатор надо подключить.
Теперь нужно максимально удобно расположить розетки и выключатели. В этом помогут рекомендации ниже:
- розетки и выключатели слева от входной двери
- розетки на высоте 40 см во всех комнатах, кроме кухни — здесь, в зависимости от комплектов — 95-115 см
- переключатели на высоте 90 см
Места, где вы решили поставить розетки, выключатели и освещение, отметьте на плане соответствующими знаками.
Шаг №5 — Проведите провода от розеток и выключателей к электрическому щиту (на плане, конечно)
Если вы используете тип проводки с распределительными коробками, то от розеток и выключателей провода сначала пойдут в их, а от них до щита.
Вам помогут следующие советы:
- Провода должны проходить только вертикально или горизонтально, но не под углом.
- Нежелательно, чтобы провода пересекались. Если это не так, расположите их на расстоянии не менее 3 мм друг от друга.
- Расстояние от пола или потолка до проводов должно быть не менее 15 см, а от углов, дверных и оконных проемов — не менее 10 см.
- Провода идут к розетке снизу, а к выключателю сверху.
Например, две схемы подключения для электриков
Шаг № 6 — Рассмотрите, сколько проводов и машин вам нужно
Количество проводов будет рассчитано исходя из размера комнат и количества машин будет основано на количестве групп.Помните: все машины должны быть подключены к одной — самой мощной. Если в доме используется электрическая плита, то в этом автомате должно быть не менее 63 А. Ниже другие советы.
- Используйте медный провод. Нежелательно сочетать его с алюминием.
- Желательно, чтобы сечение провода, идущего к электрощиту, составляло 4 квадратных метра. мм., сечение провода для освещения 1,5 кв. мм, остальное — 2,5 кв.
- Будет хорошо, если на каждой машине установить УЗО.Необходимо установить на автомат для ванной и кухни.
- Не подключайте заземление розеток к нулевым проводам, к системе водоснабжения и отопления.
- Между трубами отопления и проводами должно быть не менее 3 см.
Статью принесли пользу? Поверьте, если вы доверите нам ремонт квартиры, то мы принесем гораздо больше пользы.
Все работы, так или иначе связанные с электричеством в доме, потребуют от вас грамотного и серьезного подхода, поэтому схема электропроводки в квартире или частном доме должна быть хорошо продумана, а главное правильно и качественно изготовлена.Так же с электрической схемы и ее установки начнем ремонт в новом жилье или капитальный ремонт в старом. Последовательность действий по установке электропроводки в доме будет следующей. Сначала по стенам прокладывается проводка, которые в будущем будут оклеены штукатуркой и обоями. Под этой отделкой вся проводка находится на долгие годы и не будет вас беспокоить. Для этого перед тем, как приступить к монтажу, необходимо тщательно рассчитать весь план электропроводки квартиры.
Электросхемы — с чего начать?
Чаще всего, когда приближается очередь прокладки электропроводки в доме или квартире, люди не представляют себе конечного результата. А схема подключения должна быть представлена красками. Все потому, что от правильности схемы будет напрямую зависеть общий функционал, а также правильность и непротиворечивость и т. Д. Схема электропроводки дома или квартиры всегда будет начинаться с одной — продумывая план всех электриков.Поясним, почему. Допустим, вы завершили ремонт, не задумываясь об окончательном результате. Закончили весь ремонт, поставили мебель и бытовую технику и … Можно получить массу проблем.
Розетки и выключателимогут быть закрытым диваном или шкафом, а там, где он нужен, его нет, и наоборот. И в таких случаях вы с удовольствием начнете разматывать удлинители по всей квартире до нужных электроприемников. Естественно, что такая новая электропроводка в квартире вам не захочется.Ошибки в квартирах пока относительно терпимы. Но если в частном доме неправильно выполнена электрическая схема дома, то это сулит более серьезные проблемы. Это связано с тем, что в квартирах обычно проводится капитальный ремонт с заменой проводки раз в 20-25 лет. Но в частных домах это все делается либо гораздо реже, либо вообще не делается. Допустим, в многоэтажном доме допущена ошибка, тогда задачи покажутся еще веселее.
Во избежание всех подобных проблем нужно просто успокоиться и решить, как расставить в доме бытовую технику и мебель.Также стоит отметить, что в ближайшее время вы будете покупать и будете зависеть от электричества. Все эти вопросы лучше всего обсуждать с семьей, ведь у каждого будет свое видение ситуации, которое не будет лишним.
Статьи по теме:
Схема подключения — силовая часть
Итак, вы все спокойно обдумали. Теперь нам нужно начать излагать все планы и идеи, которые появились на бумаге. Нарисуйте план своего дома. Например, стандартную однокомнатную квартиру мы разберем, а для частного дома все равно .Для того, чтобы выполнить электросхему квартиры, вам понадобится лист бумаги, ручка, линейка, цветные ручки или карандаши.
На схеме следует указать расположение дверных проемов и стен. Вам не нужны точные размеры, требуется только общее положение. Если вы еще не узнали, то советуем обратиться к одноименной статье.
По примеру должна быть следующая картинка.
Для полноты изложения и простоты пронумеруйте и подпишите все помещения:
- №1 — холл;
- №2 — кухня;
- №3 — санузел;
- №4 — прихожая.
После этого нужно включить в схему место электрика, в котором будет находиться бытовая техника и мебель. Все позиции необходимо пронумеровать, обозначить и выделить цветом потребителей электроэнергии.
Именно для потребителей электроэнергии, выделенных красным, понадобятся розетки. Теперь вам нужно упростить вашу схему, т.е. убираем все элементы, а в тех местах, где будет электроника, наносим на план электропроводки обозначение розеток.Это должно выглядеть примерно так.
Не лишним будет нанести использованные в схеме символы, чтобы избежать путаницы.
Точный размер и расположение розеток необходимо будет указать на схеме после того, как вы определите точное расположение электроники и мебели.
Схема электричества в квартире — осветительная часть
В рассматриваемом примере все осветительные приборы будут расположены в центре комнаты.Начнем с первой комнаты — холла. Координаты нахождения светильников, если вы знаете точные размеры помещения, можете указать в первую очередь. В нашем случае точных размеров у нас нет, поэтому все необходимые замеры мы проведем на первом этапе монтажа, то есть разметке. Надеемся, нам не нужны проблемы с определением центра. Но на всякий случай допустим, что для начала измерьте ширину комнаты, а полученное измерение разделите пополам.
То же самое нужно проделать с длиной комнаты, т.е. отмерьте и разделите пополам. Так вы получите координаты середины комнаты. По этим координатам нужно обозначить центр комнаты и на схеме обозначить крест.
Точно так же вы имеете в виду середину всех комнат.
Прихожая, имеющая L-образную форму, должна быть разделена на 2 части и также обозначена.
Если поменять нанесенные крестики на условные обозначения осветительных приборов, то получится аналогичная схема подключения.
Для выполнения схемы подключения дома своими руками нужно применить выключатели. Для этого нужно определиться с расположением межкомнатных дверей. Кстати, посмотрите ,,, полезную статью. Здесь нужно понимать, в какую сторону откроется дверь — внутрь или наружу, а также вправо или влево. Это нужно сделать так, чтобы установленный выключатель не упал ни за одну дверь.
Следующим шагом является нанесение автоматических выключателей на электрическую схему. Обычно они располагаются внутри помещений таким образом, чтобы, войдя в комнату и открыв дверь, можно было без проблем включить свет, а при выключении — выключить. Исключение составят помещения с повышенной влажностью — ванные комнаты . Это связано с тем, что постоянное проникновение влаги быстро выведет из строя переключатели, если, конечно, вы не используете специальные устройства с повышенной защитой.
Нарисуйте переключатели на вашей схеме, используя легенду. Перед тем, как приступить к монтажу электропроводки в схему, необходимо поставить на выключатели точные размеры — расстояние от дверей, а также высоту от пола.
В результате вы составите две схемы подключения — схему розеток и схему выключателей и осветительных приборов. Первый этап окончен. Теперь у вас есть основная часть электрической схемы.
Схема подключения
Для начала нужно продумать и рассчитать весь маршрут прокладки проводов в доме.Для этого необходимо провести осмотр в помещении, где планируется работа. Также необходимо определиться с отделочными работами, которые необходимо провести. И надо знать: какие потолки, будет ли штукатурка и ее толщина, где несущие стены, будет ли она нужна. Рассмотрим все это на примере.
Например, вы планируете выполнить натяжные потолки. В плане подключения такой вариант просто отличный. В этом случае все работы по разводке можно провести самостоятельно, а также сэкономить много времени и сил, а также материалов.Это связано с тем, что можно использовать комбинированный монтаж электропроводки. То есть монтаж кабелей осуществляется на черновом потолке в гофрированных негорючих трубах, а спуски к выключателям и розеткам — в стенах — петлями.
Этот метод монтажа электропроводки имеет следующие преимущества.
При необходимости замены проводки все работы производятся без обновления штукатурного слоя, а также нет необходимости выполнять тяжелые работы по обустройству плиты.Но большую часть рабочего времени занимает подготовка каналов к прокладке кабеля. Также не нужно протягивать их через каналы плит перекрытия. Это также позволяет экономить энергию, ведь каналы не всегда чистые. К тому же расход проводов здоровый. Это связано с тем, что при кладке на стены нужно избегать различных препятствий, а если вы кладете на потолок, то проводка проводится по кратчайшему пути.
Если у вас на стенах стандартным образом стоит жгут проводов, то нужно обратить внимание на следующие моменты.
- Рекомендуем обходить бетонные полы, которые находятся над дверями и окнами. Это связано с тем, что в них очень сложно сделать швы, а второй причиной будут проблемы при установке карнизов или штор для штор.
- Необходимо правильно найти швеллеры в плитах перекрытий, т.к.в них необходимо будет проложить проводку для светильников.
- Точно рассчитать расположение распределительных коробок. Если это сделать правильно, то также можно значительно снизить расход материала при монтаже электропроводки.
- Если ваш дом монолитно-бетонный, то необходимо составить схему выключателей и розеток таким образом, чтобы они не попадали на основные несущие конструкции. Нарушать их целостность крайне нежелательно.
После учета описанных выше нюансов можно приступать к составлению схемы прокладки провода . Для этого нужно использовать схемы, которые были получены на первом этапе подготовки. Схемы подключения следует наложить друг на друга и получится общая картина.
Начинаем с первой комнаты в доме. Будут нормальные потолки под покраску. Поэтому монтаж будет производиться на стенах, а для люстры укладывать в каналы плиты перекрытия.Также в этой комнате есть две двойные розетки, выключатель и люстра. Проволоку нужно тянуть из самого дальнего угла, потому что там находится первая в цепочке двойная розетка. Остановиться нужно на выходе из комнаты, т.к. будет распределительная коробка.
Не рекомендуется делать розетки шлейфом, это сильно снизит мощность последних в цепи розетки. Надежнее и правильнее будет выполнить все подключения в распределительной коробке.Следовательно, нужно от каждой розетки проложить провод прямо к коробке. Проведите кабели от второго двойного разъема.
После этого протяните провод от люстры к распределительной коробке.
Когда все кабели собраны в одном месте, нужно обозначить место для самой распределительной коробки.
Аналогичным образом необходимо обозначить маршруты прокладки электропроводки в других помещениях.Электропроводка на кухне — можно использовать каналы в плитах, чтобы сократить путь провода от одной из розеток. Передавая их по этим каналам, вы экономите и материал, и свое время.
Сделайте электрическую схему в ванной.
Схема в прихожей. В этом помещении планируется установка подвесного потолка из пластика, в связи с чем возможна разводка потолка в гофрированных трубах поверх потолка.
После описанных выше манипуляций укажите место для силового щита. Как правило, он находится рядом с входом в квартиру.
Начать. Из зала к щиту.
От кухни до откидной створки.
От санузла до силового щита.
И напоследок от прихожей до щита.
Вот схема электропроводки квартиры или частного дома, а дальше можете смело ее воплощать.
Следующим этапом монтажа электропроводки в доме будет расчет сечения провода. Таким расчетом пренебрегать крайне нежелательно, ведь каждое оборудование имеет свою потребляемую мощность, которую должен выдерживать питающий провод. Что ж, после этого вам предстоит разобраться.
В этой статье мы расскажем о простой схеме подачи электроэнергии в квартиру. Виды коммутации в электросхеме квартиры и многое другое.
Домашний мастер самостоятельно выполняет строительные работы в жилых помещениях, монтирует различные электроприборы и как настоящий электрик устраняет возникающие неисправности в электропроводке.
Эта статья поможет:
Избегайте типичных ошибок, которые иногда допускают недостаточно подготовленные рабочие;
Сделать работу электрооборудования безопаснее и безопаснее.
Электросхема квартиры
Каждая комната всегда имеет свои особенности, в соответствии с которыми создается электрическая схема, позволяющая использовать осветительные приборы и отдельные устройства, подключенные к розеткам.
Современные квартиры оснащены электрощитком, к которому подключены три провода электропитания от общей этажной панели:
PE-проводник.
Переключаются на электросчетчик, а затем через автоматические выключатели, дифференциальные автоматы и провода УЗО выводятся потребителям электроэнергии.
Правила подключения электроприборов внутри покрытия квартиры опущены. Это тема отдельной статьи.
С учетом того, что PE-проводник жестко соединяет корпуса всех электрических устройств с общей массой питающей электроустановки для обеспечения условий электробезопасности с целью снятия потенциалов, возникающих при нарушениях изоляции, все его соединения не показаны диаграмму.Это упрощает его восприятие, но мы не забываем о функциях PE-проводника в системе уравнивания и / или снятия потенциалов.
Перед началом монтажных или ремонтных работ важно повторить требования документов, устанавливающих правила эксплуатации электроустановок. Это ПУЭ, ПТЭ, ПТБ. Их нельзя нарушать.
Для лучшего восприятия схемы провода переключения фазы показаны красным цветом, а нули соответственно синими.
Все провода проложены так, чтобы один их конец находился в распределительной коробке, а другой подводился к остальным элементам цепи:
Жилой щит;
Коммутатор;
светильников;
Розетки.
Такой метод упрощает поиск возникающих неисправностей для их устранения. Те же цели — правила создания резервных жил, которые проще переключить в критических ситуациях. Но мало кто ими пользуется.
Стандартное расположение распределительной коробки под потолком ограничивает доступ к ней посторонних.Но индивидуальные владельцы квартир дополнительно покрывают его элементами мебели, ДВП, обоями, гипсокартоном.
Это не так. Электрическая цепь может быть повреждена из-за повреждения изоляции. Электрик будет вынужден проверить провода в распределительной коробке и ему придется разорвать созданную красоту в квартире: убрать мебель, оторвать обои, сдирать камуфляж с покрытий дома.
Типы коммутации проводов
Для соединения проводов используются различные методы:
свитков;
Клеммные колодки;
Колпачки изоляционные СИЗ;
Пружинные клеммы Wago.
На рисунке распределительной коробки места подключения проводов отмечены кружками соответствующего цвета.
Эксплуатация светильников
Обычно используют двухклавишный переключатель, который позволяет создать экономичный, нормальный или яркий режим освещения, подключив разное количество лампочек.
Иногда неподготовленный электрик может совершить ошибку, прервав провода и разрезав переключатель на фазу, а не на фазу, а послав потенциал фазы на лампочки на задней стороне.Схема будет работать, а лампочки будут управляться переключателем. Однако это неверно:
Нейтральный провод не должен быть оборван;
При отключенном выключателе света на лампах постоянно присутствует опасное напряжение.
Обратите внимание на подключение фазного провода к выносному (внутреннему) контакту картриджа. Этот метод демонстрируется схемой. Это снижает вероятность поражения электрическим током человека, который меняет перегоревшую лампочку при включении переключателя, когда на цоколь подается опасный потенциал.
Так светильник подключается к простому одноклавишному переключателю.
Для соединения ламп с несколькими лампочками применяем параллельную схему на каждый ключ. А нулевой провод монтируется напрямую, без переключения каких-либо коммутационных аппаратов.
Правила установки розеток
Уменьшенная схема подключения наглядно показывает способ параллельного включения розеток. Для них необходимо использовать отдельный кабель повышенной мощности, способный длительное время выдерживать тепловые и электрические нагрузки.Более подробно, как установить розетку — читайте здесь.
Напоминание
Внимание! В этой статье мало говорится о роли PE-проводника и заземления всех электроприборов. Им нельзя пренебрегать. Он подключает к цепи заземления все корпуса электроприборов (не забываем про светильники), обеспечивает безопасность людей.
Современная планировка электропроводки двухкомнатной квартиры во многом отличается от ранее применявшихся схем.Дело в том, что современные нагрузки просто несоизмеримы с нагрузками 70-х, 80-х годов, когда строилось большинство панельных домов.
Тогда основными потребителями были несколько лампочек, телевизор, а иногда и утюг. В современной квартире гораздо большее количество электроприборов и, соответственно, требуются другие схемы электроснабжения.
Выбор способа разводки в квартире
Открытая проводка
Итак:
- Прежде чем разработать план электропроводки в двухкомнатной квартире, нам необходимо определиться с ее основными параметрами.Один из них — способ его укладки. На данный момент есть два варианта — открытый и скрытый.
- Открытая проводка имеет определенные преимущества:
- Для ее прокладки нет необходимости громить стены. То есть можно произвести полную замену всех проводов без дальнейшего ремонта во всей квартире.
- Открытая проводка устанавливается очень быстро. А при должном навыке и наличии рук полностью смонтировать его можно буквально за день.
- Если нужно подключить новые электроприемники или провести ремонт, ломать стены не нужно.
- Монтаж скрытой проводки осуществляется в специальных коробах. При этом проволока в ящиках обычно имеет дополнительную защиту в виде металлической или самозатухающей гофрированной трубы. Можно, конечно, монтировать и без использования специальных коробов, но этот вариант больше подходит для подсобных помещений и сараев, а не квартир.
- Ответвление на розетки и выключатели также осуществляется с помощью специальной коробки. А сами розетки и выключатели должны быть рассчитаны на обрыв.
- Электросхему можно использовать и в двухкомнатной квартире с установкой ее в плинтус. Но этот способ имеет существенные ограничения по количеству используемых проводов и часто применяется только для разводки в отдельных помещениях или для прокладки к отдельным электроприемникам.
Скрытая проводка
Итак:
- Более распространенной является разводка электропроводки в двухкомнатной квартире с применением скрытой электропроводки. Этот способ имеет следующие преимущества:
- В связи с тем, что все элементы такой разводки скрыты от посторонних глаз, он имеет более привлекательный внешний вид
- Не занимает свободного места в наших и без того маленьких квартирах
- Скрытая проводка имеет более высокие показатели пропускной способности и перегрузочной способности за счет лучшей теплопередачи.
- В связи с меньшим спросом на защиту от механических повреждений цена на требуемые материалы заметно ниже.
- Монтаж скрытой проводки осуществляется непосредственно в элементах конструкции вашей квартиры. Для этого в стене делают небольшие углубления — штробы. Их прокладывают в электропроводку с последующим оштукатуриванием.
- Для установки розеток, выключателей и распределительных коробок также делаются пазы в стене. Затем монтируют розетки и выключатели, предназначенные для скрытой цепи.
Расчет и выбор схемы электроснабжения
Расчет проводок
Итак:
- Прежде чем мы приступим непосредственно к расчету нашей электропроводки, мы должны определить количество электроприемников. Для этого нужно точно определить количество и расположение каждой розетки и лампы. Без этого четкого плана дальнейшие расчеты невозможны.
Примечание! Не стоит намеренно завышать количество требуемых розеток или освещения.Вам нужны только те розетки, к которым вы точно знаете, что будет подключено. Установка розеток и сетей освещения на всякий случай значительно удорожает вашу схему электроснабжения и увеличивает ваши трудозатраты.
- Теперь имея четкое представление о количестве электроприемников, можно переходить непосредственно к расчету необходимого провода. Но пропускная способность проводов в пункте 1.3 Электротехнических правил (Правил устройства электроустановок) указывается в амперах, а мощность всех наших приборов обычно указывается в ваттах.
- Используя закон Ома, о котором каждый должен знать со школьной скамьи, выполняем пересчет: где P — мощность устройства в ваттах (Вт), U — напряжение вашей электрической сети в вольтах (В), для однофазная сеть, напряжение 220В, это ток, который будет течь по проводам в амперах (А).
- Сделав несложный расчет, мы получаем, что когда устройство подключено к 1000 Вт, ток в проводе будет течь на 4.55A. Наша инструкция советует округлить это значение до 5А для создания определенного запаса и упрощения расчетов.
- Теперь приступим к выбору провода. Он может быть изготовлен из меди или алюминия и иметь изоляцию из поливинилхлорида или резины. Выбор следует делать согласно п. В его состав входит проводник в зависимости от условий прокладки, изоляции, влажности и некоторых других параметров.
- Но все это довольно сложно и при небольших нагрузках на квартиру не всегда оправдано.Поэтому, если вы не являетесь конструкторским бюро и выполняете замену проводки самостоятельно, то советуем воспользоваться упрощенным расчетом. По нему медный провод сечением 1 мм 2 в нормальном режиме пропускает ток 10А, а алюминиевый провод того же сечения — 5А.
Выбор схемы подключения
Итак:
- После расчета всех возможных нагрузок следует разделить их на группы. В этом случае будем руководствоваться п.6.2.2 IPE, в котором говорится, что групповые линии должны быть защищены автоматическими выключателями с током не более 25А. В этом случае, если вы создаете отдельную группу через осветительную сеть, то она обычно оснащается автоматическим выключателем на 16А.
- При разделении нагрузки на группы мощность потребителей следует учитывать отдельно. К ним относится электрооборудование мощностью 2 кВт и более. Обычно это отопительные и отопительные приборы. Если они у вас есть, то они должны питаться от отдельной машины с соответствующим номинальным током.
- Без учета мощных потребителей ваша схема электропроводки двухкомнатной квартиры должна иметь две-три группы. Одна из них — это осветительная сеть и одна-две группы — розетки.
Если у вас есть две группы, которые питают розетки, рекомендуется формировать группы в соседних комнатах. То есть одна группа кормит розетки на кухне и в коридоре, а вторая — в спальне и холле.
Примечание! Согласно п.7.1.37 ПУЭ установка розеток в санузле допускается только при подключении через УЗО. Если вы устанавливаете розетку в ванной, желательно включить ее в группу, которая питает кухонные розетки. Ведь хоть розетки на кухне не требуют обязательной установки УЗО, это устройство защиты на кухне будет наиболее уместным.
- Отдельно хотелось бы остановиться на сечении используемых проводов. Для групп с автоматическим выключателем на 25 А медный провод должен быть сечением не менее 2.5 мм 2.
Соответственно для групп на 16А не менее 1,5 мм 2. Но в любом случае сечение провода, питающего отдельную группу, не рекомендуется делать больше проводов на вводном станке.
Примечание! Согласно Таблице 7.1.1 минимальное сечение медного провода до вводной машины должно быть не менее 2,5 мм 2. При этом минимальное сечение группового провода не должно быть меньше 1 мм 2.
Монтаж электропроводки
Итак:
- Конечно, на данный момент существует множество видеороликов правильной прокладки проводки, но мы остановимся только на отдельных моментах.Штробы желательно делать в верхней части стены под потолком. Конечно, некоторые облегчают задачу и имеют проводку в стяжке.
Если заливать новую стяжку, то этот вариант, безусловно, достаточно удобен. Но в случае повреждения проводки придется выбивать стяжку, что в определенных случаях может привести к необходимости полной замены. Кроме того, увеличивается риск поражения электрическим током при затоплении помещения. - Ваша электросхема в 2-комнатной квартире обязательно должна предусматривать наличие распределительных коробок.Их желательно разместить у входа в комнату на стене двери, ближайшей к ручке.
Это связано с тем, что именно здесь будет располагаться выключатель света комнаты и отсюда гораздо удобнее проводить последующую разводку.
- При прокладке в одном стержне сразу нескольких проводов разных групп желательно разделить их негорючим материалом. Это может быть слой штукатурки или гофрированная металлическая труба. Это предотвратит повреждение сразу нескольких проводов при перегорании или перегреве одного из них.
- При подключении розеток, выключателей и других электроприемников следует оставить небольшой запас провода, достаточный для повторного подключения и повторного подключения.
Заключение
Схема разводки электропроводки двухкомнатной квартиры, в первую очередь, должна быть простой и понятной. Не стоит усложнять, разбрасывая по всей квартире электроприемники одной группы.
Ведь теперь вы запомнили все нюансы с электромонтажом, а через год-два о ней можно будет забыть.Поэтому при прокладке провода используйте только прямые углы, а при разводке розеток одной группы не нужно разносить их по разным помещениям.
В общем, перед нами вот такая маленькая спальня площадью около 14 кв.м. Вот план ее комнаты.
На примере этой спальни я покажу вам, как прокладывать кабельные линии, в каких местах и на какой высоте устанавливать розетки и выключатели, а также другие нюансы.
Изучив всю информацию, вы в принципе сможете выполнить электромонтаж своими руками или хотя бы проверить работу наемных электриков.
Итак, поехали.
И уже по традиции повторюсь. Прежде чем приступить к монтажным работам, нужно составить план мебели в спальне, а для этого нужно максимально, буквально «протестировать» у заказчика, что и где она будет установлена, а желательно с габаритными размерами. . Прекрасно понимаю, что на данном этапе ремонта не все так просто. предпочтения и расстановка мебели.
Другое дело, когда у вас есть готовый проект, утвержденный и согласованный с заказчиком, хотя не всем заказчикам, особенно в небольших провинциальных городках, будет выделена 1, 2 или 3-комнатная квартира для проекта электропроводки по себестоимости затрат на установку.Здесь скорее всего вы будете и установщиком, и дизайнером в одном лице!
Планировка мебели в спальню
Для наглядности я пронумеровал каждую стену в спальне и нанес номера на план.
У стены №1 от дверного проема до угла будет установлена кладовая. На этой стене не будут установлены розетки и выключатели.
К стене №2 будет примыкать конец туалета.Также у стены №2 будет двуспальная кровать с двумя прикроватными тумбами.
Ширина шкафа 60 (см), поэтому от этого угла стены сразу замеряем это расстояние. Затем отступаем от шкафа примерно на 20-30 (см) и отмечаем габаритные размеры первой тумбы (шкаф №1).
Тумбы могут быть разной ширины, но их высота обычно не превышает 50-55 (см). Но чтобы не ошибиться, лучше точно знать конкретную модель бордюрного камня.
В моем примере ширина шкафа 53 (см), а высота 52 (см).
За постаментом № 1 стоит двуспальная кровать шириной 191 (см).
После кровати будет установлена вторая тумба (тумба №2).
В результате мы получили следующий макет стены №1 и стены №2.
Стена №3 — стена с балконным блоком.На нем в принципе ничего устанавливать не планируется. Однако изначально была идея установить на нем выключатель для освещения балкона, но вскоре от него отказались, так как окно достаточно большое, а света из комнаты достаточно для освещения небольшого балкона.
А у нас еще стена №4.
К ней будут примыкать компьютерный стол размером 50х100 (см), комод 40х80 (см) и телевизор (на кронштейне с креплением на стену).
Вот план спальни со всей расставленной мебелью, и теперь можете смело переходить к составлению плана электропроводки.
Электропроводка в спальне
Составим схему подключения, отобразив на плане помещения все розетки, выключатели, светильники, распределительные коробки и т.д., а также способы прокладки кабельных линий.
Начнем со стены №2.
Над каждым шкафом на высоте 60 (см) от чистового пола будут установлены следующие электроустановочные изделия (точки):
- розетка (одинарная), например, для зарядки сотового телефона, планшета и других нужд
- переключатель с одним ключом для настенного кронштейна
- Переключатель проходной (или перекрестный) 1-й группы освещения спальни
- Переключатель проходной (или перекрестный) 2-й группы освещения спальни
Штепсельная розетка № 1 проводится кабелем ВВГнг (3х2,5), а осветительные линии для настенных бра — кабелем ВВГнг (3х1,5).
Кабели укладываются на потолок в пластиковой гофре диаметром 16 (мм) и 20 (мм) и крепятся к ней с помощью пластиковых зажимов. Кстати, потолок в спальне будет натяжным.
Я неоднократно приводил требование СП 31-110-2003 (п. 14.15) о том, что проводка за натяжным потолком при использовании кабеля ВВГнг должна выполняться в пластиковой гофре.Если не хочется бегать с гофрой, можно использовать кабели с пониженным газо- и дымовыделением, например ВВГнг-LS или другие аналогичные.
Вот так это выглядит на плане.
Да, кстати, проводка в этой квартире без распределительных коробок. Достоинства и недостатки этого метода я описал в отдельной статье (), поэтому сейчас не буду на этом останавливаться.
Кабель ВВГнг (3х2,5) проложен от розетки тумбы №1 к розетке шкафа №2, т.е. сделал перемычку между двумя розетками.
Аналогично только от одноклавишного выключателя кронштейна шкафа №1 прокладывается питающий кабель ВВГнг (3х1,5) к однокнопочному выключателю кронштейна шкафа №2.
От каждого шкафа однокнопочного выключателя №1 и шкафа №2 прокладывается соответственно кабель ВВГнг (3х1,5) к месту установки бра.
Каждый настенный светильник (бра) будет управляться только своим.
Обычно бра устанавливают на высоте 130-160 (см) от пола, хотя опять же все зависит от конкретных условий заказчика. Высота установки бра в моем случае — 140 (см) от чистого пола.
Розетка защищена автоматом с номинальным током 16 (А) и групповым УЗО с током утечки 30 (мА), а также линией освещения бра с автоматом 10 (А) и групповое УЗО с током утечки 30 (мА).
В качестве первой группы освещения спальни используется общее освещение в виде 9 потолочных точечных светильников, а в качестве 2-й группы — многоцветная светодиодная лента RGB в нише на потолке (на плане контур в виде красный прямоугольник), которых у меня уже очень много.
Согласно СНиП 23-05-95 «Естественное и искусственное освещение» (Приложение G и Приложение I, пункт 63) освещенность в спальне должна быть от 100 (ЛК) до 150 (ЛК).
Требуемая освещенность легко достигается за счет равномерной установки 9 потолочных светильников, и это будет даже с запасом, к тому же в комнате есть светодиодная подсветка на потолке и два бра.
Освещение в спальне будет регулироваться с трех мест: у входа в комнату и у каждой тумбочки. Таким образом, при входе в помещение будут установлены два одноклавишных проходных переключателя (GSL000161), у тумбы №1 — два однокнопочных крестовых переключателя (GSL000171) и у тумбы №2 — два одноклавишных проходных переключателя. (GSL000161).
Лично мне переключатели удобнее называть переключателями, так как особой разницы в данном случае между этими значениями я не вижу.Поэтому в дальнейшем я буду использовать термин «переключатели».
Чтобы уменьшить количество переключателей, можно было бы использовать двухклавишные вместо одноклавишных сквозных и перекрестных переключателей, но я не нашел двухклавишных перекрестных переключателей в каталоге Glossa от Schneider Electric. Двухклавишные сквозные переключатели есть (GSL000165), но нет двухклавишных перекрестных переключателей.
Я даже по этому поводу на своем Форуме электриков (ссылка на него в верхнем меню сайта) создал отдельную тему и мне сказали, что такие переключатели есть у Schneider Electric, но только для других серий.И этот вариант меня не устроил, так как в квартире планировалось установить все электромонтажные изделия серии Glossa.
Проходные выключатели на входе в спальню устанавливаются не внутри помещения на стене №1, как это обычно делается, а со стороны коридора. Да, согласен, что в комнатах выключатели обычно устанавливают внутри, чтобы управлять освещением комнаты можно было, не выходя из нее, но при этом управление освещением спальни уже выполнено с 3-х мест, поэтому здесь это не принципиально, к тому же в этом случае места для туалета будет чуть больше.
Переключатели проходные устанавливаются на высоте 90 (см) от чистового пола и 15-20 (см) от дверного проема, а точнее угла. Напомним, я уже говорил в одной из статей, что если установить выключатель дальше 25 (см) от дверного проема, он будет смотреться не очень красиво и как бы отдельно от него. Здесь на этой стене размещены еще два переключателя: один для управления освещением соседней комнаты и входа в коридор. Поэтому все переключатели смотрятся на этой стене симметрично и полностью эстетично.
Освещение спальни и соседней комнаты осуществляется кабелем ВВГнг (3х1,5) от квартирного щита.
Сначала вводится кабель ВВГнг (3х1,5) в розетку одноклавишного выключателя соседнего помещения, а оттуда проложена перемычка ВВГнг (3х1,5) в розетку переходных выключателей спальная комната.
Далее от КРУ 1-й группы (общего освещения) кабель ВВГГГ (3х1,5) идет на перекрестный выключатель 1-й группы шкафа No.1. От переключателя 2-й группы (светодиодная подсветка) кабель ВВГГГ (3х1,5) идет к крестовому переключателю 2-й группы постамента №1.
Затем от крестового выключателя 1-й группы (общего освещения) шкафа №1 на проходной выключатель 1-й группы постамента №2 выходит кабель ВВГнг (3х1,5). С крестовым переключателем 2-й группы (светодиодная подсветка) шкафа №1 кабель ВВГнг (3х1.5) идет на проходной выключатель 2-й группы шкафа №2.
К шкафу №1 подходит 4 кабеля и выходит 4 кабеля, т.е. всего 8 кабелей, считая кабель питания.
Далее от первого группового выключателя (общего освещения) шкафа №2 кабель ВВГГГ (3х1,5) идет к первому потолочному свету, а затем все потолочные светильники соединяются между собой шлейфом. От переключателя 2-й группы (светодиодная подсветка) шкафа No.2 кабель ВВГГГ (3х1,5) идет к блоку питания светодиодной ленты.
К шкафу № 2 подходят 4 кабеля и отходят 2 кабеля, т.е. всего 6 кабелей, считая шнур питания бюстгальтера.
Вот так выглядит стена №2 после прокладки всех кабелей.
На момент установки я еще не знал точно, как будет сделано освещение в спальне, поэтому кабели 1-й и 2-й группы сначала вели в центр комнаты, что видно на фотографиях выше.А чуть позже стало известно, что 1-я группа — это общее освещение спальни в виде 9, а 2-я группа — это светодиодное освещение.
А теперь все вышесказанное, касательно стены № 2, переносим на план комнаты спальни в виде электросхемы.
Линия 1-й группы и 2-й группы освещения спальни, а также линия освещения соседней комнаты защищены автоматом на 10 (А) и групповым УЗО с током утечки 30 (мА) .
Переходим к стене №4.
На стене №4 планируется установить следующие электромонтажные изделия (точки):
- блок розеток №1 для различных нужд
- розетка №2 для телевизора
- блок розеток №3 над компьютерным столом
- блок розеток №4 под компьютерный стол
Блок питания блока розеток №1, предназначенный для других нужд (в том числе пылесос, торшер и т. Д.).) осуществляется кабелем ВВГнг (3х2,5) непосредственно от квартирного щита.
Блок розеток №1 включает в себя две общие розетки. Высота установки данного блока розеток 30 (см) от чистового пола.
Перед тем, как планировать размещение точки электромонтажа (розетка, выключатель, диммер и т. Д.), Необходимо знать сторону открывания двери, т.к. при отсутствии такой информации можно ошибиться и установить розетки или выключатели, например, за дверью, что в дальнейшем будет неудобно пользоваться.
В нашем примере дверь спальни откроется на стене номер 4. Дверь имеет ширину 80 (см), поэтому от угла комнаты нам нужно отступить примерно на 100 (см), чтобы дверь не заслоняет розетку при открывании.
От блока розеток №1 кабеля ВВГнг (3х2,5) осуществляется питание блока розеток №2 для телевизора.
Кабели, в отличие от настенных №2, я крепил пластиковыми дюбелями-хомутами на небольшом расстоянии друг от друга.
Еще раз напоминаю, что электропроводка в этой квартире полностью без распределительных коробок, поэтому соединение силового кабеля с кабелем последующей розетки будет осуществляться в розетке именно этой розетки. Подключение будет производиться по шлейфу, но без нарушения требований ПУЭ. Скоро это будет отдельная пояснительная статья, так что подпишитесь на рассылку новостей сайта, чтобы не пропустить интересное.
Розетка №2 для телевизора имеет две общие розетки и одну телевизионную.
Высота установки розеточного блока №2 для телевизора около 150 (см) от чистового этажа. Выше этого уровня устанавливать розетки не имеет смысла; придется сильно задирать голову при просмотре лжи ТВ. Хотя здесь, опять же, лучше уточнить у заказчика, но в последнее время телевизоры стали устанавливать даже на потолке.
Питание розетки ТВ осуществляется напрямую от квартирного слаботочного экрана кабелем РГ-6У.
От блока розеток №2 для телевизора с кабелем ВВГнг (3х2,5) питание блока розеток №3 осуществляется над компьютерным столом. Блок розеток №3 включает в себя три обычные розетки. Это очень удобно, особенно для различных устройств, которые часто подключаются (отключаются) к розетке. Не нужно нагибаться и ползать под столом.
В моем случае они подключат настольную лампу и зарядные устройства различных гаджетов.
Высота установки блока розеток №3 90 (см) от чистового пола. Этого вполне достаточно, ведь большинство стандартных столов имеют высоту не более 70-80 (см). Если стол нестандартный, то укажите его высоту.
От блока розеток №3 с кабелем ВВГнг (3х2,5) осуществляется питание блока розеток №4 под компьютерным столом. Блок розеток №4 включает в себя три обычных розетки и одну розетку для подключения к Интернету.Он подключит блок питания ноутбука, принтер и небольшие активные колонки, а также сеть Интернет для ноутбука.
Питание Интернет-розетки осуществляется напрямую от квартиры экранированным низковольтным кабелем UTP, на котором установлен роутер. Про интернет-розетку в ближайшее время напишу отдельную статью и подробно опишу, как она подключается и устанавливается.
Монтажная высота розеточного блока № 4, а также розеточного блока № 1 составляет 30 (см) от чистового пола.
Вот так выглядит стена №4 после прокладки всех кабелей.
А вот так это будет выглядеть на плане.
Линия стены № 4 защищена автоматом на 16 (А) и групповым УЗО с током утечки 30 (мА).
На этом моя работа закончена и строители приступили к работе.
Для выравнивания стен № 2, 3 и 4 строители решили применить гипсокартон.Но чтобы не уменьшать объемы и столь маленькое помещение, листы гипсокартона решили закрепить не с помощью металлических профилей, а с помощью гипсового клея «Perlfix GF» (Knauf), приклеив тем самым листы гипсокартона. прямо на стены и выравнивая их.
Вот что произошло после установки гипсокартона.
После этого приступил к установке подзроетников.
Об этом у меня есть отдельная подробная статья, поэтому сейчас я не буду на этом останавливаться.
На этом черновой монтаж электропроводки был закончен. После этого строители снова приступили к завершению работы, приступили к отделке стен. Результат такой.
После этого строители занялись поклейкой обоев, укладкой ламината, установкой межкомнатных дверей и т. Д.
Помимо работы строителей, специалистами по натяжным потолкам в спальне был установлен потолок.
А теперь моя очередь делать чистую установку. О том, как установить тот или иной механизм (розетки, выключатели, проходные или перекрестные выключатели, розетки, интернет-розетки, потолочные светильники, бра и т. Д.) Будут отдельные статьи. Еще раз напоминаю не пропускать новые выпуски статей, подписывайтесь на рассылку новостей сайта.
И в заключение статьи предлагаю вашему вниманию материал всей статьи в видеоформате:
Электрический чертеж для архитектурных планов
Неотъемлемая часть любого набора чертежей для строительства здания — это план или план электропроводки.К это тип дизайна и графического представления. Условные обозначения на рисунках (кроме тех, которые использовались ранее в этом тексте) показаны и объяснены в ANS Y32.9, «Графические электрические символы для архитектурных планов», Mu Std 15-3, «Символы электропроводки для архитектурных и электрических схем. Компоновочные чертежи »и в Руководстве по электропроводке в жилых помещениях, опубликованном Отраслевой комитет по проектированию внутренней электропроводки.
Национальный электротехнический кодекс (NEC), опубликованный Национальным управлением пожарной безопасности. Ассоциация (NFPA) и Американский национальный институт стандартов (ANSI), предоставляет минимальные критерии проектирования, необходимые для защиты людей и собственности практически от опасностей, связанных с использованием электричества.Кодекс добровольно написан знающими людьми во всех сферах деятельности. группы, связанные с электротехнической промышленностью, включая союзы, производителей, инспекционные агентства, пользователи, технические общества, подрядчики, коммунальные предприятия, страховые агентства и государственные органы. Многие из этих организаций представлены ассоциациями или обществами. Код не предназначен в качестве проектной спецификации или инструкции для необученного персонала.
NEC распространяется на электрические проводники и оборудование, установленное в или на общественных и частных зданиях, сооружениях, передвижных домах, рекреационных автомобили, промышленные подстанции и другие помещения (дворы, карнавалы, автостоянки и др.). Он также охватывает проводники, соединяющие установки. к подаче электричества и других внешних проводников. В общем, NEC не распространяется на установки на судах, плавсредствах, железных дорогах, самолеты, автомобили или шахты, а также оборудование связи используется коммуникационными коммуникациями или установками под прямым контролем электроэнергетики. NEC является чисто консультативным в отношении NFPA и ANSI обеспокоены, но он предлагается для использования в законодательстве и для нормативных требований. целей.
Многие политические образования (например, города) и страховые компании приняли NEC в целом. Их основная причина для принятия NEC сводить к минимуму или устранять потенциальные опасности, связанные с ненадлежащими электрические установки, такие как пожар и поражение персонала электрическим током. Некоторые политические образования часто имеют более строгие строительные нормы и правила. чем NEC, и они должны соблюдаться при проектировании электрических систем и установки в пределах их юрисдикции.
1. Определения и содержание Национального электротехнического кодекса (NEC)
Поскольку NEC является таким важным документом, лица, занимающиеся производством электрические чертежи архитектурных сооружений должны быть знакомы с это и с другими местными кодами. Эти люди также должны быть сведущими со стандартной терминологией и оборудованием. Для удобства читателя мы даем некоторые определения, используемые в коде, и краткое объяснение его содержимого, так что остальная часть этого раздела может быть более продолжена без труда.Однако следует помнить, что NEC — это стандарт по минимальным требованиям, связанным с электрическими установками, необходимыми за безопасность персонала и имущества; это не стандарт чертежа.
Некоторые определения, используемые в NEC, немного странные по сравнению при их повседневном использовании; однако их следует изучать, потому что они являются своеобразными и важными для правильного использования Кодекса. Несколько из Определения NEC, которые более применимы к содержащейся информации в этом разделе следующие:
Доступный:
Применительно к способам электромонтажа.Возможность удаления или обнажения без повреждение строительной конструкции или отделки, или непостоянное закрытие в зависимости от конструкции или отделки здания. (См. «Скрытый» и «Открытый».)
Применительно к оборудованию: допускающие близкое сближение; не охраняется запертым двери, фасады или другие эффективные средства. (См. «Легко доступный».)
Доступен, легко доступен: (Легко доступен). быстро для эксплуатации, обновления или проверок, не требуя их которым необходим свободный доступ для преодоления препятствий или преодоления препятствий, или прибегать к использованию переносных лестниц, стульев и т. д.(См. «Доступный».)
Ampacity: Ток в амперах, который проводник может выдерживать непрерывно. в условиях использования, не превышая его температурный предел.
Устройство: Утилизационное оборудование, как правило, кроме промышленного, обычно построен в стандартных размерах или типах, который установлен или подключен как устройство для выполнения одной или нескольких функций, таких как стирка одежды, кондиционер, смешивание продуктов, жарка во фритюре и т. д.
Присоединительный штекер (заглушка): устройство, которое при вставке в розетку устанавливает соединение между проводниками прикрепленного гибкого шнур и проводники, постоянно подключенные к розетке.
Ответвительная цепь: проводники цепи между конечным током максимальной токовой защиты. устройство, защищающее цепь и розетку (и).
Устройство. Ответвленная цепь, подающая энергию в одну или несколько розеток. к каким приборам должны быть подключены. Такие схемы не имеют постоянно подключенный осветительный прибор не является частью прибора.
общего назначения: ответвленная цепь, обеспечивающая питание нескольких розеток. для освещения и бытовой техники.
Индивидуальный: Ответвительная цепь, которая питает только одно вспомогательное оборудование.
Многопроволочный: Ответвленная цепь, состоящая из двух или более незаземленных проводников. которые имеют разность потенциалов между ними, и идентифицированный заземленный проводник, который имеет одинаковую разность потенциалов между ним и каждым незаземленным проводник цепи и который подключен к нейтральному проводнику системы.
Здание: отдельно стоящее или отрезанное от прилегающих к нему строение. конструкции противопожарной стеной со всеми отверстиями в ней, защищенными утвержденными противопожарные двери.
Шкаф: корпус, предназначенный для поверхностного или скрытого монтажа. и снабжены рамой, циновкой или накладкой, в которой распашная дверь или двери есть или могут быть подвешены.
Автоматический выключатель: Устройство, предназначенное для размыкания и замыкания цепи неавтоматическим средства и для автоматического размыкания цепи при заданном перегрузке по току без вреда для себя при правильном применении в пределах своего рейтинга.
Скрытый: недоступен из-за конструкции или отделки здания.Провода в скрытых дорожках качения считаются скрытыми, даже если они могут стать доступными после их удаления. (См. «Доступный в применении. к способам подключения »)
Проводник:
Голая. Проводник, не имеющий никакого покрытия или какой-либо электрической изоляции. (См. «Покрытый проводник»)
Крытый. Проводник, заключенный в материал определенного состава или толщины. это не признается настоящим Кодексом как электрическая изоляция.(См. «Дирижер, Голая »)
Изолированный: Проводник, заключенный в материал, имеющий состав и толщину. что признается настоящим Кодексом как электрическая изоляция.
Мертвая передняя часть: без токоведущих частей, подверженных воздействию человека при эксплуатации. сторона оборудования.
Устройство: Блок электрической системы, предназначенный для переноса, но не утилизировать, электроэнергию.
Средства отключения: Устройство или группа устройств, или другие средства с помощью какие проводники цепи могут быть отключены от их источника поставки.
Корпус: Корпус или корпус устройства, либо забор или стены, окружающие его. установка для предотвращения случайного прикосновения персонала к находящимся под напряжением частей или для защиты оборудования от физических повреждений.
Открытый: применительно к токоведущим частям. Возможность непреднамеренного прикосновения или приблизился к человеку ближе, чем на безопасное расстояние. Применяется к частям, не защищенным, изолированным или изолированным надлежащим образом. (См. «Доступно» и «Скрытый.”)
Фидер: все проводники цепи между сервисным оборудованием или генераторный распределительный щит изолированной установки и конечная ответвительная цепь устройство максимального тока.
Заземляющий провод, оборудование: Провод, используемый для подключения не токопроводящие металлические части оборудования, кабельные каналы и другие кожухи к заземленному проводу системы и / или проводнику заземляющего электрода на обслуживающем оборудовании или у источника отдельно производной системы.
Прерыватель цепи при замыкании на землю: Устройство, предназначенное для защиты персонала, который выполняет функции обесточивания цепи или ее части в течение установленного периода времени, когда ток на землю превышает некоторое заданное значение, меньшее, чем требуется для работы устройства максимальной токовой защиты цепи питания.
Осветительная розетка: Розетка, предназначенная для прямого подключения патрона, осветительный прибор или подвесной шнур, заканчивающийся патроном.
Расположение:
Влага: Частично защищенные места под навесами, шатрами, под навесами. открытые веранды и аналогичные места, а также внутренние помещения в зависимости от умеренная влажность, например, в некоторых подвалах, сараях и несколько холодильных складов.
Сухой: Место, обычно не подверженное сырости или сырости. Местоположение классифицировано как сухое, может быть временно подвержено сырости или сырости, как в случае строящегося здания.
Мокрый: Установка под землей, в бетонных плитах или кирпичной кладке. контакт с землей; места, подверженные насыщению водой или другие жидкости, например зоны мойки автомобилей; и места, подверженные воздействию погодные и незащищенные.
Выход: точка в системе электропроводки, в которой ток подается на питание. утилизационное оборудование.
Панель: отдельная панель или группа панелей, предназначенная для сборки. в виде единого щита, включая шины, автомат максимальной токовой защиты устройства, а также с переключателями или без переключателей для управления светом, теплом, или силовые цепи; разработан для размещения в шкафу или ящике для вырезок, размещены внутри или у стены или перегородки и доступны только со стороны фронт.(См. «Коммутатор».)
Raceway: закрытый канал, специально предназначенный для удержания проводов, кабелей, или сборные шины с дополнительными функциями, разрешенными настоящим Кодексом. (Дорожки качения может состоять из металла или изоляционного материала, и термин включает жесткий металлический канал, жесткий неметаллический канал, промежуточный металлический канал, непроницаемый для жидкости гибкий металлический трубопровод, гибкая металлическая трубка, гибкий металлические трубы, электрические неметаллические трубы, электрические металлические трубы, кабельные каналы под полом, кабельные каналы пола из ячеистого бетона, ячеистый металл дорожки качения пола, дорожки качения на поверхности, кабельные каналы и шинопроводы.)
Розетка: Розетка — это контактное устройство, установленное на розетке. для подключения одинарной вилки. (Единая розетка представляет собой одноконтактное устройство, не имеющее других контактных устройств на той же вилке. Множественная розетка — это одно устройство, содержащее две или более розетки.)
Розетка розетки: Розетка, в которой установлена одна или несколько розеток.
Цепь дистанционного управления: Любая электрическая цепь, которая управляет любым другим цепь через реле или эквивалентное устройство.
Услуга: Проводники и оборудование для передачи энергии от Электроснабжение обслуживаемой электропроводки помещения.
Служебно-входные проводники:
Воздушная система: служебные провода между клеммами вспомогательное оборудование и место, обычно находящееся за пределами здания, вдали от стены здания, которые соединяются краном или стыком с отводом обслуживания.
Подземная система: служебные провода между выводами сервисное оборудование и точку подключения к сервисной стороне.(Если служебное оборудование находится вне стен здания, там могут не быть проводниками на входе в обслуживание, или они могут быть полностью снаружи корпус.)
Сервисное оборудование: необходимое оборудование, обычно состоящее из автоматический выключатель или выключатель и предохранители, а также их принадлежности, расположенные рядом точка входа токопроводов в здание, другое строение, или иным образом определенная область и предназначенная для использования в качестве основного элемента управления и средства отключения питания.
Коммутатор: Большая отдельная панель, рама или сборка панелей, на которых установлены, на лицевой или задней панели или на обеих, выключатели максимального тока и другие защитные устройства, автобусы и обычно инструменты. Коммутаторы есть обычно доступны как сзади, так и спереди, и не предназначен для установки в шкафах. (См. «Панельный щит».)
Утилизационное оборудование: Оборудование, использующее электрическую энергию для механические, химические, обогревательные, осветительные или подобные.
Напряжение (цепи): наибольшая среднеквадратичная (эффективная) разность потенциала между любыми двумя проводниками рассматриваемой цепи.
Вкратце, NEC содержит стандарты по установке, применению, конструкции, материалы и оборудование, связанные с электротехнической промышленностью. Стандарты находятся в следующих областях:
1. Конструкция и защита проводки, включая цепи (ответвление, фидер, и т.п.), защитные устройства (предохранители, автоматические выключатели, ограничители перенапряжения, и др.), а также заземления всех типов.
2. Методы и материалы проводки, в том числе кабели, кабельные каналы, шинопроводы, провода, коробки, арматура, щитовые, распределительные щиты и т. д. всех типов.
3. Оборудование общего пользования, такое как гибкие шнуры, осветительные приборы, приборы, отопление — вентиляция — оборудование для кондиционирования воздуха, двигатели, мотор контроллеры, генераторы, трансформаторы, конденсаторы, резисторы, реакторы, и батареи.
4. Оборудование и методы, связанные с особыми профессиями, например: места, где может существовать опасность пожара или взрыва (гаражи, складские помещения). заводы, авиационные ангары), медицинские учреждения, театры, студии, изготовленные здания, дома на колесах и парки, автомобили для отдыха и пристани для яхт или верфи.
5. Особые занятия, такие как опасные зоны, театры, места сборка, промышленные постройки, сельскохозяйственные постройки, мобильные дома, прогулочные транспортные средства, а также пристань для яхт или лодочные верфи.
6. Специальное оборудование, такое как электрические знаки, краны, подъемники, лифты, эскалаторы, электросварщики, звукозаписывающая аппаратура, обработка данных оборудование, рентген, оборудование индукционно-диэлектрического нагрева, металлообработка инструменты, оросительное оборудование и бассейны.
7. Особые электрические условия, например аварийные системы; системы более 600 В; установки до 50 В; дистанционное управление, сигнализация и схемы ограниченной мощности; резервное энергетическое оборудование; и противопожарный системы сигнализации.
8. Системы связи, такие как телефон, телеграф, центральная сигнализация. станции, приемно-передающее оборудование для радио и телевидения, а также кабельное телевидение системы.
Выше было относительно краткое описание терминологии. и содержимое NEC. Если возникнут вопросы, Кодекс должен быть проконсультировался. Его можно получить в NFPA или ANSI.
2. Упрощенные и точные электрические схемы
Настоящая электрическая схема показывает каждый провод и его соединение в системе, или схема.Такая схема представлена на рис. 1а, на котором четыре потолка изображены розетки светильников, две из которых подключены к, и управляется отдельными однополюсными переключателями. Упрощенный Расположение этой ветви показано справа на этом же рисунке. Здесь для световых розеток, выключателей и т. Д. Использованы утвержденные символы. и проволочная трасса, которая может состоять из кабелей с неметаллической оболочкой, армированных кабели или любой одобренный метод прокладки проводов между розетками.Две параллельные черточки на проводе указывают на то, что двухпроводный должен использоваться проводник. Собственно, по нормам, когда устанавливается двухпроводная линия, тире можно не ставить. Если проводник должен состоять более чем из двух проводов, тире обозначают номер провода должны быть указаны на чертеже.
РИС. 1 Схема подключения осветительных розеток в цепи: (а) верно
схема подключения; (б) упрощенная или монтажная схема.
3. Символы проводки на простом плане этажа
Архитектор обычно показывает расположение светильников, удобство и специальные розетки и желаемые коммутационные устройства на поэтажный план. Для небольших простых конструкций требуются символы и проводка. устройства могут быть нарисованы на одном плане этажа (рис. 2), на котором изображены вся информация, необходимая для возведения здания. Для большего или более сложные конструкции, полные детали проводки, вероятно, будут быть нарисованными на отдельных планах этажа, называемых электрическими схемами или электрическими планы.В любом случае упрощенный тип диаграммы, такой как показанный на рис. 1, б. Эту схему разводки нарисует архитектор, инженер или чертежник, знакомый с инженерными и строительными нормами требования.
РИС. 2 План помещения с светильниками, розетками и выключателями. Стандарт
символы подключения приведены ниже.
На плане гостиной (рис. 2) показаны две схемы: (1) трехсторонняя коммутационное устройство для потолочной розетки и (2) аналогичное устройство для двух розеток на северной стене.Символы розеток, включая специальную розетку (указана для ТВ антенны), взято из ANS Y32.9. Также по стандарту провод символы для линий от переключателя к потолочному свету начерчены средним сплошная линия, обозначающая, что провода нужно скрыть в стенах или потолок выше. Если перпендикулярные штрихи поперек провода, жилы должны быть двухжильными. С добавлением немного подробнее о светильниках, поэтажном плане, из которых гостиная план на рис.2 находится отдельно, даст достаточно информации для удовлетворительного установка всей электрической системы.
4. Отдельные планы электрооборудования
Появляется план электрической системы здания малого предприятия. на рис. 3. Этот чертеж был одним из нескольких, включая планы и детали для отопления, кондиционирования и водопровода, которые появились на единой простынь.
На этом электрическом плане показано расположение трех отдельных распределительных щиты и предполагаемое место будущего.Панель C обеспечивает энергоснабжение — в основном для двигателей, на которых работает механическое оборудование; панели A и B подают электричество для освещения, а другие электрические потребности кабинетов 102, 103, 104 и тамбура. Каждая ответвленная цепь документируется стрелкой, указывающей в общем направлении панель и обозначение типа А-2. Это означает, например, что девять люминесцентных светильников в офисе 102 подключены к одной цепи, Нет.2, который запитан на панели А. Отдельная телефонная цепь, закрытая в канале также показан.
Количество символов, которые либо не встречаются, либо отличаются от них. показанные в ANS Y32.9, нарисованы на этом электрическом плане. Настенный кронштейн розетки имеют четыре зубца, которые до сих пор широко используются », но которые не показаны в ANS Y32.9. Длинная и короткая пунктирная линия используется для ножки цепи, независимо от того, проложены ли провода в потолке выше или этажом ниже, а символ с коротким тире используется для переключить ногу.Избегайте путаницы в толковании этих символов. при приготовлении легенды.
5. График и обозначение приспособлений
На рис. 4 показаны условные обозначения и перечень креплений, которые прилагаются к электрическому план на рис. 3. Включение таких графиков и легенд является обычным делом. практика архитекторов и инженеров-консультантов, которые готовят электротехнические макеты и детали для строительства зданий. Установка электрической системы облегчается включение буквы обозначение у каждого символа приспособления и обозначения с перекрестными ссылками в сопроводительном расписании.Точной формы расписаний нет. были стандартизированы. Столбец «примечания» был исключен из оригинала. график, из которого был взят рис. 4 в целях экономии места.
Одним из объяснений непрекращающейся популярности четырех зубцов является то, что многие люди считают, что простой круглый символ, указанный в ANS Y32.9 можно легко спутать с другими круглыми символами, которые могут появляться на рисунки.
РИС. 3 Электрический план небольшого офисного здания.(Брашер, Спенсер и Гойетт,
Архитекторы-инженеры.)
Рисунок должен отражать намерение и максимально кратко. Время, деньги, и аргумент будет сохранен, если будет размещена правильная информация в легенде. Слишком часто человек в поле не видит написанного спецификации, но не видит чертежей и легенды. Если символ для напольного удобства появляется розетка, например, рабочий знает что означает символ, но не какую из 50 доступных комбинаций требуется, если это специально не указано.Теперь, если легенда гласит «НАПОЛЬНОЕ УДОБСТВО ВЫХОДА — Фрэнк Адам FB-3», — точно знает рабочий. какое устройство установить.
РИС. 4 График крепления и легенды для электрического плана небольшого офиса
строительство. (Брашер, Спенсер и Гойетт, архитекторы-инженеры.)
6. Пример схемы электрооборудования
Другая электрическая схема показана на рис. 5; это изображает второй этаж трехэтажного административного здания.Такое расположение пола может подойдет для чертежного или дизайнерского помещения. Символы проводки соответствуют разумно к американскому стандартному коду. Стрелки указывают схему и номер; половинные стрелки указывают частичные цепи.
К этому электрическому плану прилагались легенда, график осветительных приборов, график панели, график выключателя, схема стояка телефонной сети, и электрическая схема стояка. Из них только электрическая схема стояка показан в этом разделе.Прежде чем обсуждать это, несколько слов о том, как энергия распределяется по всей структуре.
РИС. 5 Электротехническая схема офисного здания. (Tanner-Linscott & Associates,
Архитекторы.)
Поскольку электрическая энергия подводится к зданию, она обычно сначала проходит через метр. Отсюда он попадает в главный центр нагрузки. В в небольшом здании или жилом доме этот центр нагрузки состоит из блока предохранителей или автоматический выключатель, к которому подключена каждая ответвленная цепь.Через энергия этих параллельных цепей подается на каждую розетку, лампу или прибор. В более крупной конструкции основным центром нагрузки может быть большой щит, или распределительный щит с автоматическими выключателями, разъединителями и др. управляющие устройства. От этого основного центра нагрузки подается электроэнергия. через большие проводники, называемые фидерами, к центрам нагрузки, часто щитовые доски, или панели, как их иногда называют. Из этих панелей энергия подается через ответвления к каждой розетке, арматуре, прибор или двигатель.Такие факторы, как расположение щитков, напряжение потери в меди и т. д., определяют метод, используемый для подключения филиалы и главные центры нагрузки. Множество различных планировок межсоединений используются. На одном этаже может потребоваться несколько панелей. большого здания, чтобы чрезмерно длинные ветки избегать. Иногда для цепей освещения используются отдельные панели. только и другие только для двигателей и машин. Часто щиты используется для комбинаций типов схемы.
7. Схема электрического стояка
Схема стояка показывает, как электрическая энергия распределяется по зданию. с момента входа в здание до момента прибытия в ответвление. центры. Он отображается в виде фасада и обычно не в масштабе. An электрическая схема стояка для дома, у которого электрическая план показан на рис. 5 появляется на рис. 6. На этой схеме показаны электрические обслуживание, проходящее через четыре метра, затем через четыре выключателя.От переключателей S, S S ток идет к панелям освещения L L и LB. От двух последних щитков энергия идет на освещение и удобство. розетки на первом этаже и к механическому оборудованию на земле и первые этажи. Текущие перемещаются от щитка L через вспомогательный питатель к L, который обеспечивает все электрические услуги на первом этаже, кроме для оборудования кондиционирования. Panel L поставляет электроэнергию большинству схем на втором этаже.Однако электрическая схема для этот этаж (см. рис. 5) указывает на то, что внешнее освещение и механическое оборудование на крыше подключается к щитам нижних этажей.
Спецификация щитка, прилагаемая к схеме подступенка, включает: следующая информация о каждой панели:
1. Количество обслуживаемых ответвлений
2. Максимальный ток (сила тока)
3. Наименование производителя и каталожный номер панели
Аналогичная информация приведена в графике отключения-выключения.
8. Электрические чертежи для больших зданий
Следующая серия рисунков иллюстрирует требуемый тип рисунка. для больших зданий. Стандарты не так сильно помогают в демонстрации таких сложная система; поэтому широко используется орфографическая проекция, графический рисунок, принципиальные схемы, примечания и спецификации. ”A очень краткое описание общей электрической схемы большого офиса здание будет дано со ссылкой на чертежи, которые в некоторых случаях были упрощены по сравнению с оригиналом для ясности.
РИС. 6 Схема подступенка для трехэтажного офисного здания. (Дж.
R. DeRigne & Associates, инженеры-консультанты.)
В здание входят подземные кабели силовой и световой компании. вверху справа, как показано на рис. 7. Они сразу же выводятся в главный служебный вход, который подробно показан на рис.8. В главном служебном входе находятся трансформаторы тока и напряжения (б / у для измерения тока и потенциала), предохранители и переключатели, как показано на однолинейная схема.Электрооборудование от главного служебного входа. подается на два трансформатора по 1000 кВА (см. рис. 7), которые изменяют напряжение до четырехфазного состояния, обеспечивающего трехфазное питание 208 В и Однофазное питание 120 В. От этих трансформаторов выводится ток. через 4-4 (4-фазные) шины 3000-А к главному распределительному щиту, показанному на наглядная форма на рис. 9. От этого распределительного устройства электроэнергия распределяется автобусами в различные части подвала, как показано на рис.7. Собственно сами большие медные или алюминиевые шины не показаны. Только автобусные каналы нарисованы — почти так же, как каналы отопления и кондиционирования нарисованы.
РИС. 7 Часть плана цоколя большого офисного здания с указанием деталей
электротехнического обслуживания. (У. Л. Касселл, инженер-механик, и компания Tanner-Linscott & Associates,
Архитекторы.)
РИС. 8 Графические и однолинейные схемы главного служебного входа большого
офисное здание.
РИС. 9 Графический чертеж главного распределительного щита электроснабжения и освещения большого
офисное здание.
РИС. 10 Часть схемы стояка для большого офисного здания. (У. Л. Касселл,
Инженер-механик.)
Обслуживание верхних этажей осуществляется через большой автобус 3000-A 4-, который показан на обоих фиг. 7 и 10 (схема стояка) — на ответвление нагрузки центры на каждом этаже. На каждом узле нагрузки филиала есть распределительная коробка, выключатели и щитки.Здесь используется металлический прямоугольный кабельные каналы (также называемые «лотками»), в которых размещаются соединительные кабели. С щитов обслуживание распределяется по этажам, как объяснено в следующих двух параграфах.
На рис. 11 показана часть электрического плана первого этажа. Показано в нескольких деталях — центр нагрузки с коробкой для ответвлений кабеля и панели. Особо следует отметить систему воздуховодов под полом, показанную с помощью пунктирных линий.В эти каналы, иногда называемые дорожками качения, помещаются провода для телефонной связи, однофазное электроснабжение на 120 В, и трехфазное питание 208 В при желании. Розетки могут быть размещены в любом точки вдоль каждого из этих каналов, и электрическое обслуживание предоставляется на каждом этих точек. Воздуховоды покрыты слоем 2-1 / 2 дюйма. из бетона, на какой дополнительный напольный материал часто укладывают. Розетки обычно устанавливается после того, как последний был проложен, но перед токопроводящим кабелем проталкивается или протягивается через дорожки качения.Однако дополнительные розетки могут быть размещены вдоль этих каналов после завершения строительства и занят, хотя новую проводку, возможно, придется проткнуть через воздуховоды.
На рис. 12 представлена фотография устанавливаемой системы кабельных каналов. Примечание что дорожки качения часто делятся на несколько отсеков. Это также возможна полная подрешеточная или ячеистая система полов. В конструкции такого типа провода можно прокладывать на всем расстоянии 12 дюймов друг от друга. через комнату в обоих направлениях.Это обеспечивает высокую степень гибкости потому что телефон, мини-компьютер или домофон можно разместить в любом месте комнаты.
Часто желательно подробное описание различных электрических подключений и принадлежностей. или необходимо. Они могут иметь несколько форм и иметь разное количество. информации. Два подробных чертежа показаны на рис. 13.
РИС. 11 Упрощенная электрическая схема первого этажа большого офиса
здание, показывая подпольные воздуховоды.
9. Согласование и организация чертежей
Обычно на каждом чертеже есть области, которые, начиная с электрического точка зрения подрядчика должна быть более полной, чтобы помочь в подготовка заявок. Кроме того, человек, выполняющий установку, получит выгоду от иметь больше информации о правильной или желаемой процедуре во многих ситуациях. Однако на чертеже можно поместить слишком много информации — пытаясь ответить на каждый вопрос, который может возникнуть — и, как следствие, запутать всех, от подрядчика до финального инспектора.Но когда указано специальное обращение, необходимо предоставить соответствующие детали для того, чтобы представить логический и определенный способ установки.
Многие офисы, которые готовят электрические и механические чертежи конструкций улучшили свою координацию со всеми ремеслами, выполняющими работу на работа. Такое согласование (как перед началом работы, так и во время работы) позволяет избежать конфликтов между различными механическими элементами в проекте. Последняя минута изменения оборудования производителями вызывают некоторые конфликты и не могут быть полностью предсказанным заранее.Однако очевидных конфликтов можно избежать. при правильном согласовании при составлении чертежей.
РИС. 12 Монтаж подпольной системы воздуховодов. (Уокер-Паркерсбург.)
РИС. 13 Архитектурные детали: (а) часть спецификации светильника;
(б) детали кабельной разводки. (Район скоростных перевозок в районе залива Сан-Франциско)
Если инженер-консультант выполняет проектирование электропроводки и механики для архитектор, их офисы также должны согласовывать.Такие вещи, как космос для кабельных каналов, воздуховодов и оборудования для кондиционирования воздуха.
ТАБЛИЦА 1 Нагрузки на общее освещение в зависимости от помещения
ТАБЛИЦА 2 Расчет загрузки фидера по занятости
ТАБЛИЦА 3 Допустимые нагрузки для бытовых электроплит, духовок и навесных шкафов
Варочные блоки мощностью более 1,75 кВт
10. Расчет нагрузки
С учетом информации, содержащейся в Национальном электротехническом кодексе (NEC), он можно рассчитать необходимое количество ответвлений и фидеров во многих типах конструкций.Недавно NEC применил термин вольт-амперы. в области общего пользования. Вольт-амперы — это кажущаяся мощность, которая идет через цепь. Математически он состоит из ватт (реальной мощности). и vars (реактивный) (фактически квадратный корень из суммы квадратов). Отношение ватт к вольт-амперам называется коэффициентом мощности. (ПФ). Следовательно, если коэффициент мощности равен 1 или 100 процентам, количество ватт равно количеству вольт-ампер. Поскольку в таблицах с 1 по 3 используется либо вольт-амперы или ватты при 100-процентном коэффициенте мощности, они эквивалентны.Допустим, жилой дом имеет площадь 1490 кв.м, без подвала, чердака и гаража, а также 1 кухонный гарнитур мощностью 2 кВт. Используя таблицы с 1 по 3, мы вычисляем общую световую нагрузку и другие требования следующие:
1. Общая световая нагрузка
1490 кв. Футов при 3 ВА / кв. Фут = 4470 ВА (см. Таблицу 1)
2. Минимальное необходимое количество ответвлений
а. Нагрузка общего освещения (из расчета 115 В): 4470 ± 115 = 39.0 А. Это может управляться тремя двухпроводными цепями на 15 А или двумя двухпроводными цепями на 20 А. (NEC рекомендует одну цепь на каждые 500 кв. Футов)
г. Малая нагрузка: (Раздел 220-3 утверждает, что два или более ответвления на 20 А цепи должны быть установлены для ухода за мелкой бытовой техникой на кухне, прачечная, столовая и зал для завтрака.)
3. Требуемые кормушки минимального размера:
Если используются трехпроводные фидеры на 115/230 В, текущая нагрузка будет быть 12565 ÷ 230, или 55 А.Но поскольку расчетная нагрузка превышает 10 кВА, рабочие токи должны быть на 100 А [230–41 (b) (2)]. Размер питателя может быть выбирается из одной из нескольких таблиц в NEC, в которой даются рейтинги для типы медных, алюминиевых и покрытых медью алюминиевых жил. Кормушки может быть выбран как медный провод № 3 AWG с резиновой изоляцией, например, RHW или RUH, или с изоляцией из термопласта, например THW или TFIWN; или питатель может быть выбран как No.I AWG алюминий или Алюминий, плакированный медью, с такой же изоляцией. Как уже упоминалось ранее в строительных нормах и правилах города могли быть другие требования, не указанные в Национальном кодексе. Канзас-Сити требует, чтобы вся проводка была проложена внутри. канал для зданий (в том числе домов), относящихся к Классу Пожарный район. В других областях необходимо использовать кабелепроводы в дуплексах и многоквартирные дома от двух и более этажей.
РЕЗЮМЕ
Отображение требований к электричеству жилых зданий, офисов, и других структур требует сочетания графической обработки, знаний строительных норм и письменных спецификаций.Для небольших конструкций, например, дома, обычно достаточно показать электрические розетки, светильники и выключатели прямо на планах дома и указать, что требуются устройства переключения. В общем, в остальном схемотехнике расположение оставлено на усмотрение конструктора. Но в больших зданиях это необходимо изобразить все схемотехнические устройства, включая щиток места, чтобы соответствовать требованиям безопасности, чтобы позволить большому количеству гибкости для будущего оборудования и расширения, а также минимизировать расходы электромонтажных работ.Национальные стандарты рисования ANS Y32.9 и Mu Std 15-3 (которые идентичны) следуют большинству инженеров, которые подготовить электрические чертежи. При отображении электрических требований для зданий, необходимо или желательно составить схемы электропроводки, схемы стояков, и графики для приспособлений, дорожек качения, проводов и т. д. Условные обозначения символов иногда используются, особенно если на чертежах используются нестандартные обозначения. Графические изображения и ортогональные изображения некоторых элементов и оборудования часто весьма полезны.Согласование лицом, делающим рисунки с архитектором, мастерами и производителями оборудования очень желательно, потому что это сведет к минимуму конфликты и ненужную установку затраты. Проектировщик и строитель должны соблюдать местные строительные нормы и правила. Если местный кодекс не охватывает ситуацию, необходимо проконсультироваться с NEC. Если местных правил по установке электрооборудования нет, следует использовать NEC.
ВОПРОСЫ
1.Какой авторитет или авторитеты показывает символы, которые будут использоваться при создании план жилого этажа, на котором показано электрическое расположение?
2. Почему диаграммы подступенков обычно не в масштабе?
3. Почему мы не используем шинопроводы в жилых домах?
4. Нарисуйте два разных символа, которые могут использоваться для обозначения телевизионной розетки.
5. Какие заголовки столбцов вы бы использовали для расписания приспособлений для небольшого строительство?
6.Почему не принято показывать две черточки поперек линии цепи для двухпроводного проводника, когда обычно используются три черточки для обозначения трехпроводная схема?
7. Можно ли использовать тот же графический символ для розетки электрической плиты? а для розетки посудомоечной машины?
8. Назовите три различных графика, относящихся к электрической системе. большого здания, которое можно найти на чертежах этого здания.
9.Назовите или опишите две ситуации, в которых линии для проводников сами не показаны на чертежах, описывающих электрическую схему большого здания.
10. Обеспечивает ли ANS Y32.2 графическое изображение электрической системы? резиденции?
11. Кратко опишите три метода обеспечения электрического пола. обслуживание офисного здания, через которое может подаваться электрический ток через равномерно распределенные интервалы по всей комнате или по всей комнате.
12. Где начинается ответвление? Назовите два вида ответвлений.
13. Где находятся устройства максимального тока?
14. Каковы две причины ограничения количества проводов в дорожке качения?
15. Каковы конечные точки фидера (или фидерной цепи)?
16. В чем разница между распределительным щитом и щитом?
17. Какой наименьший рейтинг может иметь щиток? Или поставить это иначе, что определяет минимальный рейтинг щитка?
18.При каких условиях NEC заявляет, что дорожки качения не должны быть установлен?
19. Какие устройства или системы можно использовать для заземления электродов? (Имя четыре.)
20. Каков минимальный рейтинг емкости?
21. Что можно сделать, чтобы избежать конфликтов?
22. Почему некоторые архитекторы (или инженеры-консультанты, занимающиеся электрическими дизайн для архитекторов) считают необходимым или желательным добавить легенды к своим рисункам?
23.Какого рода информация будет содержаться в легенде для электрического Рисование?
ПРОБЛЕМЫ
Многие проблемы разделены на две части. Часть а будет в основном требование к чертежу, а часть b будет включать вычислительные требования. В некоторых случаях инструктору могут потребоваться обе части; в других случаях, только шар. Вычисления не нужно проводить на бумаге для рисования. Тем не мение, они должны быть аккуратными, аккуратными и правильными.
1. На эскизе плана этажа на рис. 14 показаны все электрические розетки. и светильники и отношения между светильниками и переключателями квартиры.
РИС. 14 (Проб. 1.) План многоквартирного дома.
а. Сделайте механический чертеж этого плана, используя утвержденные в настоящее время символы. для проводов, арматуры и розеток. Электропроводка для дуплексных розеток не должны отображаться, за исключением случаев, когда они управляются переключателем.Используйте бумагу 11 X 17 или 12 X 18.
г. Сколько требуется общих цепей на 20 А и бытовых 20 А? Если диапазон нагрузки составляет 8000 Wand 110/220, используются трехпроводные устройства подачи проволоки, какие будет общая текущая нагрузка на первый этаж?
2. Сколько ответвлений на 15 А потребуется для показанного помещения на рис. 2? Сколько разветвлений 20-А потребуется для офиса макет на рис. 5? (Внутренние размеры 22 X 57 футов.Каждый флуоресцентный светильник 80 Вт.)
3. На рисунке 15 показан план квартиры со всеми розетками, светильники и выключатели. Выключатели, в основном, работают верхнее освещение, а в гостиной работают две из четырех розеток.
а. Сделайте чертеж (механический или от руки) этого плана этажа, добавив двери и необходимая проводка. Покажите телевизионные розетки в гостиной и самая большая спальня. Используйте стандартные символы.Используйте бумагу 11 X 17 или 12 X 18.
г. Используется система подачи 115/230 В и три провода, а кухня диапазон рассчитан на 11 кВт. Сколько потребуется ответвлений на 15 А для квартиры? Какая будет общая текущая нагрузка?
РИС. 15 (Проб. 3.) Поэтажный план элитной квартиры.
РИС. 16 (Проб. 4.) План трехкомнатной резиденции.
4. Рисунок 16 — это поэтажный план одноэтажного дома.
а. Изобразите этот план в масштабе 1 / 2i дюйма = 1 фут 0 дюймов. Показать все переключения договоренности, как вы думаете, что они должны быть. Не менее двух дуплексных розеток в гостиной должны управляться переключателями у северного входа. Используйте стандартные символы на всем чертеже.
г. Кухонная плита рассчитана на 11 кВт и имеет трехпроводные устройства подачи 220 В. используются. Сколько потребуется ответвлений (общих и бытовых)? (Какая будет разница, если будет установлен центральный кондиционер?) Какая будет общая текущая нагрузка, которая будет использоваться для вычисления размера кормушек?
5.Рисунок 17 — план первого этажа двухэтажного дома со всеми розетками. и приспособления показаны.
а. Нарисуйте этот план в масштабе дюйма = 1 фут 0 дюймов и покажите все переключения меры, как вы считаете, что они должны быть сделаны. Используйте правильные символы как указано в Приложении. Дополнительно: показать схемы для удобства торговые точки. Используйте бумагу 11 х 17.
г. Предположим, что в доме три спальни и холл наверху. Для 8-кВт кухонная плита и другое оборудование показано, сколько и какое для дома потребуются ответвления? Какая общая энергия требование?
РИС.17 (Проб. 5.) План первого этажа дома.
6. Светильники для проектно-конструкторского помещения показаны на рис. 18. Если люминесцентные лампы рассчитаны на 80 Вт каждая, оцените количество необходимых ответвленных цепей. Возле каждого дома должна быть электрическая розетка. стол письменный. Под каждый ряд светильников ставят по четыре стола, в сумме 24 чертежных стола. Свет будет включаться и выключаться на панели L Другое цепи идут к панели L на другом этаже.Сделайте масштабный рисунок этого комнату и покажите все схемы. Используйте бумагу размером 11 x 17 или 12 x 18.
РИС. 18 (Пробл. С 6 по 8.) План этажа чертежно-дизайнерского помещения.
7. Под каждым светильником, показанным на рис. 18, будут размещены дизайнерские стол письменный. Желательно наличие электрических стиральных машин, телефонов, и электрические калькуляторы на каждом столе. Сделайте подробный чертеж, включающий система кабельных каналов под полом, которая обеспечит эту электрическую услугу ко всем столам.Предположим, что телефонные проводники и проводники 115-а могут размещены вместе в дорожке качения. Используйте бумагу 11 х 17 или 12 х 18.
8. Поскольку телефонная компания возражала против наличия телефонных линий в одном воздуховоде с другими проводниками было решено установить ячеистого типа, Подпольная электропроводка для чертежного помещения на рис. 18. Рисуем пол. план масштабирования, показывая сотовую систему, которая будет поставлять энергию 115 В переменного тока к розеткам на каждом столе, а также отдельные каналы сотовой связи для внутренней связи и телефонная связь к каждому столу.Верхнее освещение может быть включено в рисование. Используйте бумагу размером 11 x 17 или 12 x 18.
РИС. 19 (Проб. 9.) Фасад трехэтажного административного здания.
с электрораспределительным оборудованием.
РИС. 20 (Проб. 10.) Электротехническая и отопительная схема квартир первого этажа.
9. На рисунке 19 показан участок трехэтажного дома с подвалом. Нарисуйте схему подступенка для этого здания в том виде, в котором, по вашему мнению, оно будет спроектировано.Рисунок 6 даст вам представление о том, какие размеры проводов использовать. Используйте XHHW изолированный провод; Изоляция XHHW жаро- и влагостойкая, изготовлена синтетического сшитого полиэтилена. Токоведущие возможности из изолированных медных проводов XHHW во влажных помещениях составляют:
РАЗМЕР ПРОВОДНИКА (AWG) | МОЩНОСТЬ |
14 12 10 8 6 4 3 2 1 | 15 20 30 45 65 85 100 115 130 |
10.Неполный отопительный и электротехнический план одного этажа квартиры. Здание представлено на рис. 20. Также показаны габаритные размеры.





Одним из таковых является способ ее прокладки. На данный момент используются два варианта – открытый и скрытый.