Проекты небольших домов и коттеджей: фото, планировка и чертежи
- Из газобетона
- Каркасные
- Из кирпича
- Из бревна
- Из бруса
- Москва: +7 (495) 505-63-05
СПб: +7 (812) 309-53-00- Россия: +7 (800) 333-53-00
- +7-981-873-67-07
ПН–ПТ, 10:00–19:00
+7 (800) 333-53-00
Заказать звонок
Заказать звонок
ГлавнаяКаталог проектов домовПроекты небольших домов
двухэтажныеиз брусас гаражомс мансардойкаркасныекирпичныеодноэтажныедо 100 м2деревянныес верандойиз газобетонасо вторым светомсовременныес террасойс камином
Проекты небольших домов
Открыть фильтр Открыть фильтр Подбор по параметрам: Фильтр по параметрам:Выбрано проектов: 0
Показать
Проектов не найдено
Категория
Материал стенГазобетон
Кирпич
Брус
Бревно
Каркас
Всего этажей в домеС мансардным этажом
Без мансардного этажа
С цокольным этажом
Без цокольного этажа
Общая площадь (м²) Всего спален Кол-во спален на 1 этаже Кол-во санузлов Кухня и гостинаяС кухней-гостиной
Большая гостиная
Большая кухня
Сортировка по
двухэтажныеиз брусас гаражомс мансардойкаркасныекирпичныеодноэтажныедо 100 м2деревянныес верандойиз газобетонасо вторым светомсовременныес террасойс камином
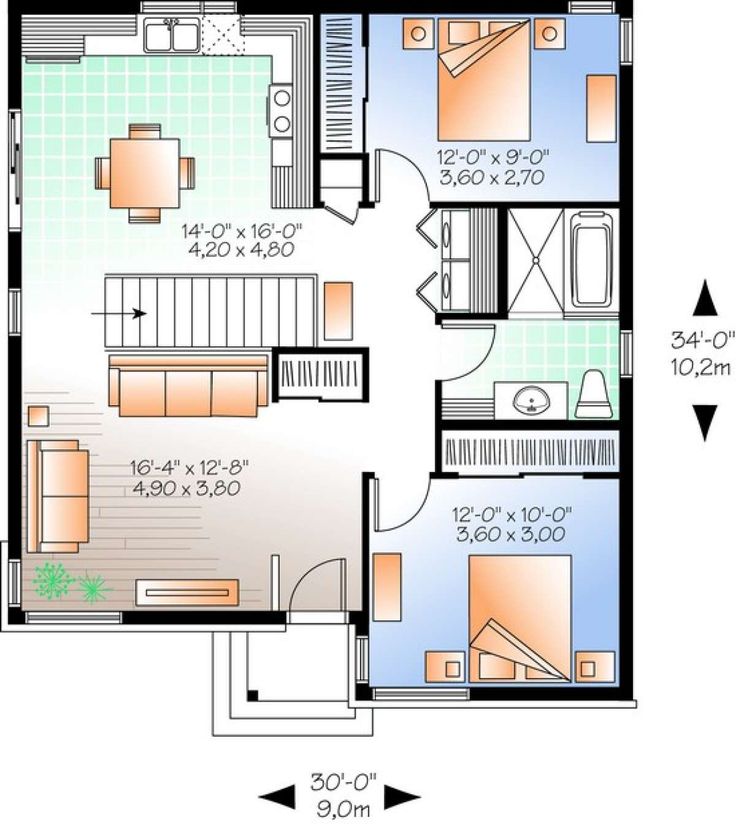
AS-2565 — проект одноэтажного дома из газобетона с котельной и террасой
| Площадь: | 98. 86 м² |
| Габариты: | 8.9 х 12.7 |
| Спален: | 3 |
22 700
AS-2563 — проект одноэтажного дома из газобетона с котельной и террасой
| Площадь: | 94.48 м² |
| Габариты: | 11.3 х 12.2 |
| Спален: | 2 |
21 700
AS-2592 — проект одноэтажного дома из газобетона с котельной и панорамными окнами
| Площадь: | 86. 1 м² |
| Габариты: | 10.7 х 11.4 |
| Спален: | 2 |
19 800
| Площадь: | 113 м² |
| Габариты: | 8.5 х 14.1 |
| Спален: | 3 |
26 000
AS-2142-2 — проект одноэтажного дома из газобетона с террасой и камином
| Площадь: | 34.3 м² |
| Габариты: | 6 х 6 |
| Спален: | 1 |
16 800
AS-2585 — проект дома из газобетона с мансардой и котельной| Площадь: | 118. 6 м² |
| Габариты: | 9 х 13.8 |
| Спален: | 3 |
27 300
AS-2236 — проект одноэтажного дома из газобетона с котельной и панорамными окнами
| Площадь: | 81.1 м² |
| Габариты: | 10.6 х 11.4 |
| Спален: | 3 |
18 700
AS-2342 — проект одноэтажного каркасного дома с котельной и камином
| Площадь: | 94 м² |
| Габариты: | 10. 2 х 12.2 |
| Спален: | 2 |
21 600
AS-2018 — проект двухэтажного дома из газобетона с мансардой и крыльцом
| Площадь: | 63.2 м² |
| Габариты: | 6 х 6 |
| Спален: | 3 |
16 800
AS-2573 — проект одноэтажного дома из газобетона с котельной и террасой
| Площадь: | 81.8 м² |
| Габариты: | 9. 2 х 10.9 |
| Спален: | 2 |
18 800
AS-2071 — проект уютного одноэтажного дома из газобетона
| Площадь: | 71.5 м² |
| Габариты: | 8.2 х 10.3 |
| Спален: | 2 |
16 800
AS-2604F — проект одноэтажного каркасного дома с котельной и панорамными окнами
| Площадь: | 99.1 м² |
| Габариты: | 9.1 х 16.3 |
| Спален: | 3 |
22 800
AS-2074-2 — проект небольшого дома из газобетона с мансардой и террасой
| Площадь: | 83 м² |
| Габариты: | 7 х 8. 8 |
| Спален: | 3 |
19 100
AS-2142 — проект одноэтажного каркасного дома с чердаком и камином
| Площадь: | 34.54 м² |
| Габариты: | 6 х 6 |
| Спален: | 1 |
16 800
| Площадь: | 53.8 м² |
| Габариты: | 6 х 6 |
| Спален: | 2 |
16 800
AS-2235 — проект дома из бруса с мансардой и верандой
| Площадь: | 63. 3 м² |
| Габариты: | 6 х 8 |
| Спален: | 2 |
16 800
AS-1619 — проект одноэтажного дома из кирпича с баней и террасой
| Площадь: | 70.6 м² |
| Габариты: | 10.3 х 12.6 |
| Спален: | 1 |
16 800
AS-1626 — проект красивого дома из газобетона с мансардой
| Площадь: | 93.9 м² |
| Габариты: | 7. 6 х 8.5 |
| Спален: | 2 |
21 600
AS-2350 — проект двухэтажного дома из газобетона с камином и балконом
| Площадь: | 99.9 м² |
| Габариты: | 7.5 х 9.9 |
| Спален: | 3 |
23 000
AS-2054 — проект одноэтажного дома из газобетона с крыльцом
| Площадь: | 64.4 м² |
| Габариты: | 8.6 х 9. 9 |
| Спален: | 2 |
16 800
AS-2302 — проект дома из газобетона с мансардой и крыльцом
| Площадь: | 47.9 м² |
| Габариты: | 6.1 х 6.1 |
| Спален: | 3 |
16 800
AS-2237 — проект одноэтажного каркасного дома с баней и террасой
| Площадь: | 119.95 м² |
| Габариты: | 10.7 х 12.2 |
| Спален: | 3 |
27 600
AS-2337 — проект одноэтажного дома из бруса с чердаком и камином
| Площадь: | 90. 6 м² |
| Габариты: | 9.8 х 11.7 |
| Спален: | 2 |
20 800
AS-2254 — проект двухэтажного дома из кирпича с мансардой и чердаком
| Площадь: | 53.4 м² |
| Габариты: | 6 х 6.6 |
| Спален: | 2 |
16 800
Чтобы занести проект в избранное и пользоваться другими привилегиями сайта, необходимо войти или зарегистрироваться!
Проект добавлен в сравнение
Перейти к сравнению проектовПродолжить
Спасибо за заказ!
Мы перезвоним вам в ближайшее время
Заказать звонок
Мы перезвоним вам в ближайшее времяНажимая кнопку «Жду звонка», вы соглашаетесь с обработкой персональных данных.
Спасибо!
Ваша заявка принята в работу.
Спасибо!
Ваша заявка принята в работу.
Регистрация
Вы зарегистрированы.
Информация для сброса Вашего пароля была отправлена на указанный e-mail.
Сброс пароля
Вы вышли!
Будем рады видеть Вас снова.
Проекты планировки маленького дома: 10 вариантов для вас
В маленьких, даже крошечных, домах есть своя прелесть и особое очарование. И проекты планировки небольших домов могут либо подчеркнуть и увеличить это очарование, либо напрочь его рассеять (в случае неумелого и непрофессионального оформления). Неважно, как вы это назовёте – вынужденное обстоятельство, добровольная простота или микрожизнь. В любом случае, живя в таком домике, вы сэкономите массу денежных знаков, произведёте меньше отходов, потратите гораздо меньше энергии и воды. Есть множество творческих двухуровневых вариантов обустройства крошечных домов для комфортной жизни.
Коттедж на фото умиляет способом использования чердака в качестве дополнительной площади. Приставная лестница к нему очень кстати, иначе до самого верха и не добраться. Ниже, словно всегда там и были, комфортно расположились встроенные шкафчики и раковина.
Дополнительное пространство
Чердак этот совсем не чердак, а ещё одна комфортная спальня. Кровати органично встроены в имеющиеся метры площади, оставляя немного места ещё и для размещения книг.
Спальные места для любящих уединение
Гостевая комната представляет собой одну широкую кровать, практически заполняющую собой всю имеющуюся площадь от стены до стены, но на удивление такое расположение мебели не выглядит неуместным, а комната не смотрится тесной. Подумайте, ведь одно просторное спальное место гораздо лучше, чем два, маленьких и тесных, даже если вы и приложили все усилия, чтобы превратить помещение из крохотного в визуально большое.
Забудьте всё, что вы знали до этого о масштабе
Только то, что рабочий офис располагается в небольшом помещении, не означает, что у вас не может быть возможности владеть открытым пространством.
Разберите одну или две ненужные стенные перегородки и позвольте себе вздохнуть полной грудью.
Коридор? Нет, отличная комната!
Дизайн маленьких помещений может быть очень гостеприимным. Для разделения спальной и рабочей зон стилисты советуют использовать белые занавески, которые ничем не уступают стенам, если бы они там были. Шторами также можно скрыть шкафы или двери, ведущие в зону рабочего пространства, если им в настоящий момент не пользуются.
Три в одном
Для крохотных площадей характерна одна общая проблема – мало места для хранения. Чтобы решить её, приобретите комплекты посуды одного цвета. Разноцветные многообразные наборы пусть останутся для больших столовых.
Гора одноцветных тарелок
Поиграйте с высотой. Опущенный потолок в столовой зоне придаёт интимность и уют, в то время как высокий в кухне вносит в помещение воздушность и простор.
Создание зон
Нью-йоркский таунхаус на фото вполне может поместиться на почтовой марке, насколько малы его размеры.
Но этому малышу не откажешь в стиле и красоте. Скамья цвета свежей весенней зелени в сочетании со столиком в форме лепестков цветка создаёт динамичность и подходит для балконов городских квартир.
На открытом воздухе
После умелого ремонта даже гараж превращается в шикарную жилую площадь.
Неожиданный поворот
Свет заливает столовую, где ранее находился гараж. Простые бетонные полы и промышленные подвесные светильники намекают о структуре помещения в прошлом воплощении.
Вид изнутри
Инновационные детали, такие, как, например, трансформируемая мебель в рабочей зоне превосходно вписываются в небольшое пространство. Глянцевые поверхности отлично сочетаются с промышленным дизайном.
Жилая комната
Большинство основных функций помещения выстроены в центральном кубе, в котором находится ванная, стиральная машина, места для хранения и диван со столом на противоположной стороне.
Всё как на ладони
Ещё один гаражный евроремонт, на этот раз в Сиэтле.
И здесь намного просторнее, чем в предыдущем. Французские двери, высокие окна и мебель, которая присутствует только в центре комнаты, придают ощущение открытости и широты.
Простор для кошек
Ванная комната может быть предметом роскоши. Расположена она практически под самой крышей. Полноценная по размеру, она поставлена на ножки и со всех сторон окружена каменной плиткой.
Место для купания
Крошечная квартирка размером всего 24 квадратных метра расположена в Барселоне на крыше высотного дома. Уникальная складная конструкция мебели позволяет в одном пространстве совмещать зону отдыха, столовую и рабочий кабинет.
Спальная зона
Если сложить кровать и выдвинуть небольшой столик из стены справа, то получится рабочее место. Кухня встроена в противоположную стену и скрыта от глаз, когда в ней нет необходимости. Гладкая поверхность отлично её маскирует.
Деловой кабинет
Снаружи с крыши открывается захватывающий вид на город. На площадке, находящейся на открытом воздухе, расположились джакузи, небольшой диван, стиральная машина и сушилка.
В регионе с мягким климатом имеет смысл задействовать всё открытое пространство, что мы и видим в этом милом варианте планировки.
Почти на улице
Ещё одни трансформирующиеся апартаменты представлены на фото ниже. Здесь в дело идёт большой шкаф, в который помещаются кровать, гардероб и письменный стол. «Стена», которая делит спальню и рабочую зону, на самом деле является открытой дверцей гардероба. Удивительно?
Уникальная стена в действии
Когда подъёмная постель складывается, большая дверь закрывается, оставляя комнату свободной для приёма гостей.
Можно танцевать
Крошечный домик на колёсах хорош тем, что его можно возить за собой как прицеп. Его хозяин Джей Шафер славится тем, что создаёт комфортное жильё в ничтожно малых размерах помещения.
Вид снаружи
Интерьеры в его домах напоминают корабельное убранство кают. Стол, полки и спальные зоны отлично вписываются и подходят друг другу как пазлы.
Дизайн комнатёнки
10 Планов небольших домов с открытой планировкой — Блог
Аврора Зеледон
Сколько стоит построить дом? Ответ зависит от очень многих переменных, от того, где вы строите, до того, какой уровень отделки вы выбираете.
Но если вы пытаетесь уложиться в ограниченный бюджет, начните с основ: планы небольших домов с открытой планировкой — самые дешевые в строительстве. И вам не нужно жертвовать современными удобствами, чтобы снизить расходы, поскольку лучшие на сегодняшний день планы небольших домов демонстрируют выдающуюся привлекательность и современные планы этажей. Вот десять наших любимых планов новых домов, большинство из которых менее 2000 квадратных футов.
Купить план небольшого дома здесь
План дома с тремя спальнями и открытой кухней
План 1070-109
Этот план современного фермерского дома дает вам три спальни на одном уровне, так что его легко обойти. Камин создает теплую атмосферу в большой комнате — устройтесь поудобнее здесь зимой или испеките печенье на просторной открытой кухне. Декоративные балки притягивают взгляд, чтобы сделать небольшой план этажа больше. В главной спальне есть большая гардеробная и собственная ванная комната с пятью предметами интерьера, двойной раковиной и большой современной душевой кабиной.
См. идеи дизайна интерьера небольшого помещения в этой статье от House Beautiful
План современного фермерского дома с задним крыльцом
План 430-238
Планы небольших домов должны быть готовы ко всему. В этом домашнем дизайне у вас есть многофункциональная двухъярусная комната, которая может легко стать домашним офисом, со стильной дверью сарая, готовой обеспечить вам дополнительную конфиденциальность. Открытая планировка красиво перетекает из гостиной в кухню-остров, где снэк-бар станет местом для повседневных встреч. Выйдите на большую заднюю веранду подышать свежим воздухом. Гладкая металлическая крыша придает внешнему виду современный деревенский дом.
План дома ранчо с гардеробными
План 20-2393
Вот что вы не ожидаете от планов небольшого дома: тонны хранения! В каждой спальне этого ранчо есть гардеробная. Третья спальня может даже открываться в столовую, если вы выберете, что делает ее удобным домашним офисом.
Рядом с фасадом есть карманный офис, идеально подходящий для работы из дома. Снаружи сочетание горизонтального и вертикального сайдинга создает современный стиль фермерского дома с оттенком камня, добавляющим чутье ремесленника. Неплохо для того, чтобы иметь всего 1619квадратный фут!
Ознакомьтесь с советами Architectural Digest для небольших помещений здесь
План одноэтажного дома с жилым помещением
Plan 20-2398
Планы небольших домов обычно не включают апартаменты для супругов, но в этом есть. Второй главный люкс, в котором может прекрасно разместиться свекровь или ребенок старшего возраста, находится рядом с фасадом для уединения и включает в себя отдельную ванную комнату. Между тем, открытая планировка позволяет легко проводить время с семьей во время приготовления ужина или просто отдыхать у камина в большом зале. Акценты на металлической крыше придают экстерьеру Craftsman стиль современного фермерского дома.
Выберите понравившиеся варианты планировки ванных комнат.
План роскошного дома площадью до 1400 квадратных футов
План 929-1107
Кто знал, что у вас может быть план роскошного дома площадью менее 1400 квадратных футов? Вот доказательство. Этот эксклюзивный план дома может предоставить вам все виды особых удобств, включая декоративную отделку потолка. Планы дома с тремя спальнями и планировками с раздельными спальнями, как этот, дают вам дополнительную конфиденциальность в главной спальне. Не пропустите большое крыльцо. Солнечный туннель освещает прачечную, а световой люк на кухне также привлекает естественный свет.
План дома престарелых с гаражом на колесах
План 932-337
Ищете планы домов престарелых? Этот замечательный план дома, который прекрасно вписался бы в Техас, Аризону или Нью-Мексико, включает в себя место для парковки RV и гараж на четыре машины. Ух ты! Это позволяет легко парковать свои автомобили и взлетать в любой момент. Конечно, вы можете захотеть остаться дома, когда увидите внутреннюю часть.
Открытые планы этажей не могут быть намного более открытыми, чем эта, со снэк-баром на кухне, выходящим на большую комнату. Терраса на крыше обеспечивает очаровательное место для отдыха в солнечные дни и дает вам жилое пространство на свежем воздухе, не требуя большого участка.
План небольшого дома с круговым крыльцом
План 120-273
Планы домов с закругленными верандами придадут вам мгновенную привлекательность. Этот также демонстрирует современный стиль фермерского дома со свежим, простым сайдингом и акцентом на металлической крыше. Открытая планировка позволяет эффективно использовать каждый квадратный метр, а кухня занимает центральное место. Главная спальня приглашает вас отдохнуть на этом уровне (посмотрите на эту огромную гардеробную), а две спальни и дополнительное пространство занимают второй уровень.
План современного дома для небольшого участка
План 932-317
Современные планы домов бывают разных размеров, от планов роскошных домов до проектов крошечных домов.
Что делать, если вы хотите приличное количество места, но у вас его нет?
Этот план дома имеет площадь 2200 квадратных футов, но площадь конструкции довольно узкая. Это означает, что вам не нужен большой участок земли, чтобы наслаждаться большим пространством! Ультраоткрытая планировка включает в себя большой кухонный остров с большим количеством места для отдыха и приготовления пищи.
На следующем уровне в мастер-каюте есть действительно крутая ванная комната в стиле спа с «мокрой комнатой», в которой ванна находится в огромном душе (только взгляните). Другая спальня и ванная комната на этом этаже при необходимости могут стать домашним офисом. На верхнем уровне третья спальня делит этаж с забавной бонусной комнатой — приготовьте напиток в баре, а затем выйдите в живописный мезонин, чтобы насладиться видом.
План коттеджного дома с видом на бордюр
Plan 57-675
Вы мечтаете о планах загородных домов со сказочной привлекательностью? Если да, то этот очаровательный дизайн небольшого дома может быть для вас.
В нем есть одна спальня, крытое патио и большой гараж. Открытые планы этажей часто подчеркивают кухню, но если вы предпочитаете, чтобы основное внимание уделялось гостиной для более традиционного ощущения, этот дизайн дома будет совершенно правильным. Эркер в обеденном уголке пропускает свет и добавляет очаровательную нотку характера.
План дома ранчо с большим крыльцом
План 57-669
Планы домов на ранчо с верандами, облегчающими выход на улицу. Только представьте, что вы сидите на крыльце в ясный осенний день и наблюдаете, как медленно падают листья. Звучит красиво, правда? Затем отправляйтесь на кухню и приготовьте перекус или устройтесь поудобнее у камина в большой комнате. Планы домов с тремя спальнями и двумя ванными комнатами, как этот, дают вам максимальную универсальность без лишнего пространства.
Ознакомьтесь с планами небольших домов здесь
Планы небольших домов — простые планы этажей
РАСПРОДАЖА НА ХЭЛЛОУИН | СКИДКА 15% НА ВСЕ ПЛАНЫ ДОМА | Введите промокод SPOOKY при оформлении заказа!
- Дом
- План дома
- Планы небольших домов
Форма поиска
Эта коллекция планов небольших домов содержит дома всех стилей дизайна.
Дома с небольшой планировкой, такие как коттеджи, дома-ранчо и хижины, могут стать отличным стартовым домом, пустым гнездовым домом или вторым домом для отдыха. Из-за того простого факта, что эти дома небольшие и поэтому требуют меньше материала, их строительство становится доступным. Другие стили дизайна небольших домов, доступные в этой коллекции COOL, включают традиционный, европейский, каникулярный, А-образный, бунгало, ремесленный и деревенский. Наши доступные планы домов — это планы этажей с отапливаемой жилой площадью менее 1300 квадратных футов, многие из них имеют уникальный дизайн.
Номер плана 45234
2301 Планы
План этажа 2 3
План 80523
988 С подогревом, кв.фут
38’0 Ш x 32’0 Г
Кровати: 2 — Ванна: 2
Сравнить
План 73931
384 Кв.фут с подогревом
16’0 Ш x 24’0 Г
50 Кровати: Ванна: 1
Сравнить
План 56937
1300 кв.
фут с подогревом
28’8 Ш x 60’2 Г
Кровати: 3 — Ванна: 2
Сравнить
План 81310
1196 Кв.фут с подогревом
40’0 Ш x 55’6 Г
1 — 50001 Спальни Ванна: 2Сравнить
План 76474
686 Кв.фут с подогревом
26’0 Ш x 26’0 Г
5 909020 Кровати: Баня: 1Сравнить
План 52011
793 Кв.фут с подогревом
28’0 Ш x 39’0 Г
15Кровати10: 1 — 9
Ванная: 1
Сравнить
План 40823
650 Кв.фут с подогревом
23’0 Ш x 28’3 Г
5
0 Кровати: Ванна: 1
Сравнить
План 80849
960 Кв.фут с подогревом
30’0 Ш x 48’0 Г
Кровати: 2 — Ванна: 1
Сравнить
План 80525
1232 Кв.ф.
Ванна: 2
Сравнить
План 56721
1257 Кв.ф. Ванна: 2
Сравнить
План 59039
600 Кв.фут с подогревом
30′ Ш x 32′ Г
Кровати: 1 — Вань: 1
Сравнение
Видео Тур
План 30040
746 Огрев SQFT
28’4 W X 26’4 D
КЛОНА Ванна: 1
Сравнить
План 64505
864 Кв.фут с подогревом
33′ Ш x 36′ Г
1 —1 Кровати: Ванна: 1
Сравнить
План 80509
928 Кв.фут с подогревом
58’0 Ш x 32’0 Г
Кровати: 2 — Bath: 2
Compare
Plan 92376
953 Heated SqFt
36 W x 42’4 D
Beds: 2 — Baths: 1.5
Compare
Plan 85129
1176 Кв.
фут с подогревом
36’0 Ш x 42’0 Г
Спальных мест: 2 — Ванна: 2
Сравнить
План 68572
395 Кв.ф. Bath: 1
Compare
Plan 95829
641 Heated SqFt
28′ W x 31′ D
Beds: 1 — Baths: 1.5
Compare
Plan 96702
856 С подогревом, кв.фут
30’0 Ш x 38’0 Г
Кровати: 2 — Ванна: 1
Сравнить
План 80519
1037 Кв.ф. Ванна: 2
Сравнить
Гарантия низкой цены
Если вы найдете точно такой же тарифный план на веб-сайте конкурента по более низкой цене, рекламируемой ИЛИ по специальной цене РАСПРОДАЖИ, мы снизим цену конкурента на 5%. от общего количества, а не только 5% от разницы! Чтобы воспользоваться нашей гарантией, позвоните нам по телефону 800-482-0464 или напишите нам на веб-сайт и номер плана, когда будете готовы сделать заказ.

86 м²
1 м²
6 м²
2 х 12.2
2 х 10.9
8
3 м²
6 х 8.5
9
6 м²