100+ фото [Лучшие Идеи 2018]
Содержание
- Летняя кухня на даче: планируем строительство
- Выбор материалов для строительства летней кухни
- Летняя кухня закрытого типа
Дача – уютный домик за чертой города, где можно отдохнуть, побыть наедине с природой и насладиться тишиной. Некоторые садоводы любители проводят здесь только лето, другие же могут отдыхать здесь круглогодично. Поводом для гордости любого собственника дачного участка станет уютная летняя кухня. Летняя кухня – функциональный павильон, где можно заниматься приготовлением пищи и приятным времяпровождением в кругу друзей и близких. Построить летнюю кухню можно самостоятельно, главное выбрать для нее правильный проект и место расположения. Для повышения функциональности здесь устанавливают барбекю, благодаря чему можно готовить мясо на свежем воздухе.


Летняя кухня на даче: планируем строительство
При выборе места для строительства летней кухни на территории дачного участка нужно учесть ряд нюансов, начиная от оборудования, что будет здесь располагаться, заканчивая внутренним убранством и мебелью. При этом важно знать, как далеко постройка будет располагаться от дачного дома, станет ли она его частью или отдельным сооружением.
Если посмотреть правде в глаза, то очевидно, что далеко не все имеют большой земельный участок, поэтому при строительстве летней кухни надо жертвовать огородом или садом. Также нельзя забывать о финансовых затратах, влияющих на размеры и оснащение постройки. Однако, создать комфортную и уютную зону для приготовления пищи можно даже небольших размеров, но при этом она будет иметь привлекательный внешний вид и станет центральной фигурой в ландшафтном дизайне территории.
Нюансы, которые нужно учесть в проекте летней кухни перед началом самостоятельного строительства:
- Постройка должна быть максимально отдаленной от туалета и проезжей части, а также места разведения животных.
- Если летняя кухня будет оснащена мангалом, печью или барбекю, то ее нужно расположить на безопасном расстоянии от построек, которые могут загореться (рекомендованное расстояние – 7 метров).
- Лучше всего расположить летнюю кухню ближе к деревьям, дающим густую тень.
Сюда необходимо провести все коммуникации.- Нужно определить тип постройки – открытая или закрытая конструкция.
- Выбор дизайна.
- Оснащение и оборудование – нужно предусмотреть наличие камина, мангала или печи (газовой или электрической).
- Необходимо учесть ветры, их силу и направление, чтобы дым не шел в зону отдыха гостей.


Выбор материалов для строительства летней кухни
При строительстве летней кухни на даче необходимо подобрать материалы для реализации проекта. Конечно же, лучше отдать предпочтение качественным материалам с длительным сроком службы, но на это влияют финансовые возможности собственника дачного участка, а также его личные предпочтения.
Оригинально и привлекательно будет смотреться летняя кухня, выполненная из древесины и натурального камня. Однако современные технологии не стоят на месте и постоянно развиваются, предлагая все новые строительные материалы, самыми популярными среди которых считают:
- Поликарбонат.
- Профилированный лист.
- Поливинилхлорид и т.д.
В случае если ограждение дачного участка выполнено из кирпича, летнюю кухню лучше всего выполнить из аналогичного материала. Кирпич можно использовать при создании барбекю или камина, пол при этом выкладывают плиткой, хорошо сочетающейся с камнем. Подобная кухня будет не только практичной, но и надежной, так как легко справится с негативным воздействием внешних факторов и атмосферных осадков.


Оригинальным решением станет сочетание камня и дерева. При этом каменные конструкции имеют высокую цену и привлекательный внешний вид, а дерево создаст приятную и комфортную атмосферу. Таким образом, можно создать индивидуальный шедевр, способный радовать собственника дачи на протяжении долгих лет.
Деревянная беседка – изящная и легкая конструкция, которая может использоваться как летняя кухня, при этом она будет хорошо вписываться в ландшафт, а постройка не займет много сил и времени. При этом важно помнить, что деревянные элементы нуждаются в уходе и предварительной обработке, иначе материал будет быстро изнашиваться.
Если речь идет о современных материалах, то ограничения вводятся только по фантазии и финансовых возможностях владельца участка. Летнюю кухню можно выполнить из профилированного листа, металла и сайдинга или материалов, имитирующих натуральные. Если помещение закрытое, то для отделки пола лучше использовать плитку, ламинат или линолеум, а для облицовки стен гипсокартон или вагонку.

Летняя кухня закрытого типа
В случае если выбран проект закрытой летней кухни для строительства на дачном участке собственник получает полноценное здание, использовать которое можно на протяжении всего года, а атмосферные осадки, солнце и ветер не повлияют на этот процесс. Подобная постройка может выступать в роли самостоятельного здания или же являться частью дачного домика. Во втором случае гораздо проще провести все коммуникации, да и по финансам это гораздо дешевле. В качестве оборудования зачастую здесь используют камин, в более редких ситуациях – печь.
Габариты летней кухни не имеют ограничений, они выбираются индивидуально в зависимости от площади дачного участка, вкуса и финансовых возможностей хозяина, а также возможного количества приглашенных гостей. В подобном помещении очень часто создают зону отдыха, оборудуя ее спальным местом можно существенно сэкономить на отоплении дачного домика. Если же на даче будут гости, то их можно расположить здесь, при этом никто не будет мешать друг другу, сохраняя комфортные условия проживания и соседства.

Многие домовладельцы используют для летней кухни веранду открытого типа – это экономный вариант, который не требует проведения капитальных строительных работ. При этом открытую часть веранды остекляют, устанавливая входную дверь для комфортного перемещения.
Если летняя кухня на дачном участке стоит отдельно от основного сооружения, то ее можно совместить с погребом, баней или мастерской – здесь ограничения может ввести только сам собственник участка, его фантазия и денежные ресурсы. Однако, если хозяин участка не отдыхает здесь круглогодично, а использует дачу как зону летнего отдыха, то лучше всего оборудовать летнюю кухню в виде беседки или площадки под навесом. Таким образом, можно не только сэкономить время на строительство, но и деньги, оборудовав комфортную зону для приготовления пищи и отдыха прямо на свежем воздухе.


krov-torg.ru
Летняя кухня на даче с барбекю мангалом фото проекты

В знойную пору летняя кухня на даче с барбекю и мангалом становится спасением для хозяйки. Здесь можно приготовить обед для семьи и гостей, заготовить выращенный урожай на зиму и просто отдохнуть душой и телом. Предлагаем вашему вниманию 9 лучших проектов, которые фонтанируют свежими идеями и ловкими дизайнерскими приемами.
1. Зефир в шоколаде в стиле модерн
Центром всей композиции стал настоящий очаг-барбекю, сложенный опытным мастером. Он же стал и обеденным столом, вокруг которого расположилась полукруглая скамья, способная вместить многочисленных родственников и друзей. А чтобы им не было скучно, на одной из колонн повешен современный плоский телевизор.


Рядом расположилась небольшая зона для ампельных растений, которая разделяет кухонно-столовую часть беседки от пространства для релакса. В зоне отдыха расположился уютный лежак из поддонов, плетеные ротанговые кресла.


Сочетание шоколадно-коричневого и белого цвета в оформлении создает впечатление, что вся беседка – это большой торт с белоснежным кремом под тонкой шоколадной корочкой.
2. Австралийская веранда
Летняя кухня не обязательно должна быть помпезной. Особый шик и уют можно создать из довольно простых материалов. Это особенно важно для тех дач и загородных участков, где нежелательно оставлять ценные предметы на зиму без присмотра.

Легкий и компактный мобильный мангал служит очагом для приготовления блюд. Простая и практичная кухня, тем не менее, содержит вместительный шкаф и широкую разделочную плоскость с мойкой.



Две лавки и стол из древесины выкрашены в белый цвет и отлично выдержат все погодные условия.
Кровля объединена с домом и служит объединяющим элементом. Легкие решетчатые ограждения позволяют проветривать веранду и содержать деревянные конструкции в наилучшем виде.
3. Беседка вокруг сосны
Особенностью проекта стало необычное решение архитектора построить беседку из сухостойной карельской сосны вокруг живого дерева. Стилизация под сруб удачно сочетается с бревенчатым коттеджем.
Для многодетной семьи из 9 человек дизайнеры предусмотрели вместительную многофункциональную коптильню и не менее удобный большой комплекс барбекю. Зону огня изолировали крупной галькой, которая также использована в качестве наполнителя для габионов, служащих опорой для бревенчатой лавки.
В чайной зоне расположился небольшой столик из прикорневого среза большой сосны. Он органично вписывается в общую стилистику.
4. Просторная веранда в средиземноморском стиле
Средиземноморский стиль веранды навеян увлечениями хозяев участка. Перед домом была заложена бетонная плита площадью в 60 м2. Она и стала основой для проекта.
Необычное решение дизайнеров изготовить мебель для беседки из строительных паллет оправдала себя. Поддоны изготавливаются из прочной натуральной древесины. Аккуратная работа и достойное исполнение придали дивану и столу элегантный вид.
Белый цвет мебели, яркие подушки и чехлы создали атмосферу праздника. Решетчатый стеллаж закрыл соседский забор и поддержал общую стилистику. Напольное покрытие выполнено из палубной доски, керамической плитки и ЦСП. Весь дизайн несет в себе напоминание о море и песчаном пляже.
Не менее интересный комплекс представлен в следующем объекте.
5. Альпийское шале
На месте примитивной веранды выросло альпийское шале с изюминкой, да не одной. Итак, по порядку.
- Кухонная зона. Настоящий мангал из камня. Шикарная рабочая поверхность с вместительными шкафами и полками. Подвесной рейлинг для сковородок и кастрюль.

- Остров – барная стойка. В нее встроены полки, которые могут служить поленницей.


- Раздвижные стеклянные стены-двери. В холодное время года они надежно удерживают тепло, а летом раздвигаются, объединяя веранду с садом.

- Стена-жалзи. Поворотные стеллажи можно объединить легким движением руки в полноценную стену. Когда же растениям потребуется больше света, достаточно повернуть панели на 90 градусов и впустить солнечные лучи.


- Стол-трансформер. Компактный журнальный столик легко и быстро превращается в столовый. За ним может расположиться небольшая компания, которую дизайнер усадила на минималистические пластиковые стулья. А чтобы они не выбились из общего стиля, на них накинуты шкурки с искусственным мехом.


Сочетание белого и коричневого – весьма привлекательный контраст, свойственный альпийскому дизайну.
6. С миру по нитке
Нетривиальная задача объединить в одном проекте стилистику из разных стран и даже континентов была поставлена перед опытными дизайнерами. Восточные мотивы читаются в купольной конструкции с медными шарообразными светильниками. Ей вторит яркий текстиль.
Итальянская пергола, соломенный человек и лежаки, покрытые сеном, создают особую атмосферу уюта и единения с природой. Современные кубические кресла отлично гармонируют с африканским столом и классическими металлическими стульями ХХ века.
В результате получилась своеобразная инсталляция, отсылающая зрителя к различным народам, культурам и даже эпохам. В противовес этому пестрому пэчворку предлагаем вашему вниманию простую и невероятно уютную беседку, выполненную в виде террасы – естественного продолжения бани.
7. Взлетная полоса
Воздушность и легкость – именно такие ассоциации возникают при виде этого сооружения. Стреловидные фермы кровли как бы пронзают небо, устремляясь ввысь. Они гармонично связывают кровлю бани с садом. Прозрачное кровельное покрытие наполняет светом пространство.
Многофункциональный мангал, большой обеденный стол и зона отдыха выстроены вдоль центральной «взлетной» линии. На кухне расположился мини-комплекс, состоящий из керамической мойки, смесителя с выдвижным изливом, а также разделочной плоскостью.
Необычно оформлено освещение. Вдоль террасы и садовой дорожки вмонтированы напольные светильники. Вокруг зоны отдыха расположились светящиеся «камни», получающие питание от солнечных батарей.
8. Гриль-домик
Еще один пример органичного сочетания различных стилей и эпох представлен в гриль-домике. За основу сооружения взята геометрия чума суоми. Шестигранная беседка с центральным элементом — очагом-мангалом, исполняющим по совместительству роль стола.
Стилизация домика отсылает нас в эпоху Чехова. Резной буфет, деревянные крашеные стены. Винтажное окно-зеркало с соответствующими светильниками.
Напольная плитка создает рисунок восточного ковра. Ей вторит индийская мебель. Стулья в индустриальном стиле удачно вписались в общую картину и позволили мангалу мягко вписаться в общий колорит.
9. Павильон в стиле конструктивизм
Простые линии, минимализм, основанный на практичности и комфорте. Высокий павильон покрыт поликарбонатом и защищает столовую зону от дождя. Раскладная столовая мебель своим видом напоминает забытые школьные ириски. С нею отлично сочетается столовый сервиз, салфетки и подушки нежного салатного оттенка.

Стол-барбекю расположился рядом с павильоном на террасе в окружении ступенчатых лавок. За ним можно усадить довольно многолюдную компанию.

Еще одна зона отдыха примкнула к павильону. Поднятый на уровень крон деревьев помост – отличное место для релакса. Особенно когда есть уютный мягкий диван.

Под перекрытием расположилось кресло-качеля, в котором одинаково уютно и взрослым, и детям.

Все эти разные по стилю, техническому оснащению и размерам летние кухни-беседки объединяет одно – уют и комфорт, который они дарят своим владельцам. Ведь главное в дизайне – это создать ту атмосферу, в которой человек будет чувствовать себя счастливым.
Не менее интересные проекты смотрите по ссылкам ниже:
«Проект летней кухни на даче»
«Баня с летней кухней».
Werri
ikuch.ru
Проект летней кухни фото
Летняя кухня — это незаменимое место на даче или частном доме, где можно готовить, собираться с друзьями и просто устраивать домашние посиделки. Основные элементы, которые находятся в этом комплексе: навес (крыша), плита для готовки, мебель и мойка. Встречаются два вида: открытые и закрытые. Чаще всего они напоминают беседку или веранду. Ниже представлены интересные фото проектов летних кухонь

Проекты летней кухни с камином
Многофукциональная кухня, которая включает в себя печь, камин, мангал, барбекю.
Каминная установка представляет собой многофункциональный элемент кухни, который можно использовать как печь или барбекю. На фото ниже представлена каминная установка в различных вариациях. Открытые и закрытые конструкции, с установкой различной мебели: стола, стульев, мойкой, аксессуарами, предметами интерьера.







Проекты летней кухни с барбекю.
Открытая кухня, на которой достаточно места для проведения летних праздников, посиделок и приготовления барбекю. Материл — дерево, облицовочный материал — декоративный камень. На гриль-печи можно приготовить блюдо на любой вкус: гриль, шашлык, кебаб, хоровиц, шураско, якинину.


Проекты летних кухонь с мангалом
Мангал необходим для приготовления классического шашлыка. Находится он может под любой установкой, но необходимым элементом является крыша, так как погодные условия могут быть самыми непредсказуемыми.
Читайте также: Летняя кухня на даче с барбекю мангалом




Проекты летней кухни с беседкой фото



Летняя кухня на даче проекты
Любители летнего отдыха на даче обязательным атрибутом считают кухню, на которой можно соединить зону отдыха и зону готовки. Эти зоны можно отделить различными перегородками и приспособлениями. Летнюю кухню можно сделать уникальной с деревянными вставками, уличными лавочками, креслом-качалкой.
Читайте также: Современные проекты летней кухни на даче

Закрытая летняя кухня проекты
Закрытая кухня подходит для посиделок в любую погоду. Стены, окна и двери застеклены.


Видео — Строим летнюю кухню своими руками
Werri
ikuch.ru
Фото беседок с мангалом барбекю для дачи. Проекты
Летом в входные дни все стараются выбраться на природу поехать на дачу и на своём участке самое любимое место это беседка или пристройка к дому в которой установлено барбекю. Запах шашлыка и потрескивание дров полностью оставит позади городскую суету.
В этом обзоре мы представляем много разных вариантов и фотографий деревянных и кирпичных построек, каждый сможет для себя узнать, что то новое.

Это пристройка к дому, в которой можно готовить не только летом, но и зимой.
Летняя кухня на даче с мангалом.

Небольшой размер конструкции со столовой на открытом воздухе, барбекю и печь. Крыша очень простая скатная, но имеет встроенную вытяжку.
Беседка с мангалом.

Это больше чем помещение для готовки шашлыка. Конечно, хочется иметь, как можно больше удобств, здесь проведена вода, есть раковина с канализационной трубой. Кроме устройства для жарки шашлыков, можно устроить коптильню, жаровню, печь.
Навес, пристроенный к дому.

Такая модификация удобна тем, что есть одна капитальная стена, на которой базируется вся конструкция. Удобно провести от дома электричество и даже можно на летнее время поставить холодильник.
Простой пример летней кухни.

Здесь печь независима от деревянного строения. Все стулья и лавки задвигаются под стол для экономии пространства для готовки.
Кухня, пристроенная к забору.

Столбы выполнены из кирпича и отделаны декоративной плиткой. Сооружение прочное, забор тоже каменный, больше подходит для южных районов с гористой местностью. Для нашей полосы, всё можно пристроить и к деревянному забору.
Строение для большой компании.

Отличное место для приёма солидной компании, даже есть барная стойка.
Павильон для большого участка.

Если участок большой и забор не ограждает от ветра, то в плохую погоду можно использовать плёнку ПВХ. Можно самим окантовать плёнку по краям плотной тканью и вставить люверсы, но можно и заказать в специальных мастерских, которые занимаются таким производством.
Для маленького участка.

Если места очень мало, негде расположить большую зону отдыха, то жаровню можно выполнить отдельно стоячей.
Ещё один вид, отдельно стоящий.

Вся часть, где происходит готовка, находится под навесом, который можно пристроить к забору.
Проект с элементами ландшафтного дизайна.




вид сзади вид спереди


вид с боку
Проект беседки с барбекю и кладовой из дерева
Садовое строение в современном дизайне с оборудованием для приготовления пищи и кладовой для дерева. Простая форма, двускатная крыша, идеальное место для отдыха, кулинарных и общественных мероприятий.

Проект — беседка с мангалом. Традиционное здание, без чердака, с полезной площадью 28,6 квадратных метров. Крыша здания представляет собой конструкцию седла угла наклона 35,0 градусов и высотой 5,1 метра.


Примеры дизайна летних кухонь-беседок.
Смотрите далее необходимые строительные материалы для беседки.
| ← Уличное барбекю из кирпича своими руками для дачи фото пошаговая инструкция | Беседки садовые дачные веранда с хозблоком навес пристройка с кухней варианты → |
|---|
| < Предыдущая | Следующая > |
|---|
www.strsezon.ru
Лучшие летние кухни на даче с барбекю: проекты и планировка

Зона отдыха с мангалом — непременный атрибут любого загородного домаДачные участки – это место, куда люди выезжают не только с целью собрать урожай с огорода, но и отдохнуть от городской суеты, подышать свежим воздухом. А какой же отдых без комфорта, шашлыка и шумной компании друзей? В доме зачастую жарко, а под кондиционером сидеть не никак не хочется. Летняя кухня с мангалом на даче – отличный вариант разнообразить времяпровождение и удивить друзей изысканным вкусом.
Какие преимущества имеет летняя кухня с мангалом
Готовить летом в жарком и тесном помещении наслаждение весьма сомнительное. И если люди, живущие в многоэтажках, лишены выбора, то хозяева загородных строений, дач могут сделать летнюю кухню и наслаждаться отдыхом. При этом многие умельцы используют подручные средства для изготовления мангалов. В ход идут и старые бочки, газовые баллоны. Мастера создают настоящие шедевры для летней кухни, например многофункциональную шашлычницу в виде паровоза.

Благоустроенная летняя кухня превратит отдых на даче в настоящее удовольствие
Летняя кухня на даче позволит не только замечательно проводить время, жаря шашлыки на свежем воздухе в любое время года, но и избавит жилое помещение от активного испарения в период консервации.
Что нужно учесть при выборе места:
Основной критерий – основательность. В некоторых случаях можно совместить кухню с подвалом, тогда будет место для хранения закаток либо подземное помещение можно превратить в настоящий винный погреб.
У многих скидывается представление о том, что летняя кухня должна быть обязательно закрытой, но это не всегда так. Красивое кирпичное оформление, высотой в 70-80 см, крыша, защищающая от непогоды, мангал, совмещенный с барбекю и коптильней – все это можно назвать летней кухней.

Основательность — главный критерий при обустройстве летней кухни
Полы в сооружении лучше выложить лиственницей, сделать от дома бегущую дорожку из песчаника. В таком случае, даже если на улице дождь, не будет страшна грязь.
Столы, мангал, раковина отлично смотрятся, если их облицевать клинкерным кирпичом в сочетании с гранитом. Шикарно и изысканно будут выглядеть кованые стулья и столы, осветительные приборы.
Но, самое главное приспособление в таком сооружении – это мангал. Его можно выполнить из красного кирпича. Для облицовки топки следует использовать огнеупорный материал. Многие предпочитают совмещать мангал, барбекю и коптильню. Таким образом, за один раз можно пожарить овощи на сетке, запечь вкусный шашлык на мангале и закоптить судака в коптильне.
Особую атмосферу в дизайн летней кухни придаст небольшой искусственный пруд или фонтан.
Лучшие проекты: летние кухни с барбекю (видео)
Чтобы сделать летнюю кухню с барбекю, понадобятся опорные столбы, которые должны быть углублены для прочности не менее чем на 50 см и обязательно забетонированы. В том случае, если запланирован широкомасштабный проект летней кухни, то нужен будет мелко углубленный фундамент.
Возведение глухих стен проводится с применением кирпича или другого вида камня. Многие предпочитают деревянный брус. Более легкий вариант – сделать стены летней кухни из деревянной вагонки, которая нашивается поверх деревянного или металлического каркаса. Не обязательно стены должны быть глухими, их можно соорудить с просветами, парапетами или перилами.
Специалисты рекомендуют при создании открытой летней кухни с барбекю, полы укладывать с небольшим наклоном, чтобы дождевая вода не застаивалась, а стекала.
Чем оснастить летнюю кухню
Основной атрибут и акцент летней кухни – мангал. Его монтаж лучше провести в средней части сооружения. В таком случае, он будет заметен с любой стороны и придаст конструкции нужный колорит, создаст уютную, отдыхающую и изысканную атмосферу. С обеих сторон устанавливается хозяйственная атрибутика. Это может быть небольшая рабочая поверхность, под которой будет находиться тумба для кухонной утвари, сервировочные принадлежности. Если предусмотрено создание мангала на дровах, то с другой стороны от мангала, монтируется отсек для них и кочегарного инструмента.

Мангал — основной элемент летней кухни
Что следует продумать:
- Основную часть кухни должны занимать кресла, мягкой уголок и большой удобный стол.
- Важно продумать место, где будет находиться раковина. Ведь совсем неудобно бегать в жилой дом и мыть овощи, фрукты, мясо, а затем возвращаться вновь в летнюю кухню.
- Обязательно следует приобрести огнетушитель, особенно в том случае, если кузня выполнена из дерева. Пожарный баллон размещается на территории летней постройки во избежание возгорания.
Важны элементы декора, тогда летняя кухня с мангалом на даче будет предавать особую атмосферу, гости гарантированно оценят тонкий вкус владельца дачной территории. Это могут быть цветы или растения в больших горшках, вазах, созданное своими руками панно, либо занавески – легкие и прозрачные.
Стулья и стол могут быть мягкими, кованными. Отлично вписывается в дачный интерьер плетеная мебель.
Варианты оформления летней кухни (видео)
Дизайнерские проекты летних кухонь
Идеальным стилем для кухни с мангалом или барбекю является продиктованный общей идеей дизайна территории. Говоря простыми словами – кухонный интерьер должен продолжить концепцию и оформление дачного участка и дома.
Если летняя кухня будет располагаться на территории сада, вдалеке от других сооружений, то лучше всего выполнить ее таким образом, чтобы она максимально гармонировала и подходила к природному ландшафту, то есть для монтажа нужно использовать деревянные, натуральные материалы.
Особой популярностью пользуются открытые летние кухни в греческом стиле благодаря своему оригинальному дизайну. Сочетание тематических элементов декора с натуральными материалами, которые используются при сооружении летней кухни, смотрятся не только изысканно, но и придают особую атмосферу всей территории дачи.

Дизайнерские решения могут быть самыми разнообразными
Угловые греческие сооружения удобны не только для жарки шашлыка, но и для приготовления различных блюд.
Летняя кухня с мангалом и барбекю на даче в греческом стиле является многофункциональной конструкцией.
Пользуются спросом сооружения в эко-стиле. Он предусматривает облицовку рабочей поверхности натуральными материалами. Вместительные диваны, большой круглый стол, домашний кинотеатр помогут сделать отдых разнообразным и максимально насыщенным.
Оригинально и необычно смотрятся открытые летние кухни, соединенные с сауной или баней.
Если есть возможность построить хотя бы небольшой бассейн, то можно проводить на даче весь летний отпуск и наслаждаться отдыхом с шашлыками, водными процедурами.
Летние кухни на даче с барбекю (видео)
Дизайн летней кухни на даче с барбекю (фото)















Фотогалерея (20 фото)
akbarsaero.ru
Проект летней кухни с барбекю
Жарить мясо или овощи на печи барбекю под открытым небом, значит зависеть от погодных условий. Внезапный летний ливень может нарушить ваши гастрономические планы и оставить гостей без долгожданного лакомства. Беседки могут не решить проблему, поэтому лучшим выходом из положения нам представляется строительство полноценной летней кухни, которая была бы оборудована всем необходимым, в том числе имела печь барбекю. Но строительство подобной летней кухни невозможно без хорошего проекта, а чтобы его составить, нужны идеи.
Требования к постройке
В данном случае речь пойдет даже не о требованиях к летней кухне с барбекю и ее проекту, а о пожеланиях людей в адрес таких сооружений. Эти пожелания мы проанализировали и систематизировали, в результате чего получили некую общую картину, которую и решили представить на ваш суд. Чего же хотят люди от летней кухни с барбекю?
- Печь для приготовления барбекю должна размещаться под крышей летней кухни или беседки пристроенной к летней кухне в хорошо проветриваемом месте.
- Кроме барбекю неплохо чтобы была русская печь, гриль, мангал и плита с обычными конфорками.
- Желательно, чтобы возле печи и плиты располагалась мойка с раковиной и столешница. Все это сделает приготовление пищи очень удобным.
- В летней кухне с барбекю должно быть место для установки обеденного стола. Желательно, чтобы место находилось на воздухе, но в то же время было хорошо защищено от ветра, палящего солнца и дождя.
- Летняя кухня должна иметь закрытое помещение, где будет находиться комната отдыха.
- Строение должно иметь просторную веранду (необязательно защищенную кровлей), на которой можно было бы расположиться в хорошую погоду, полежать в шезлонге и позагорать.
Обратите внимание! Если летняя кухня будет рассчитана на некоторое количество гостей, то будет неплохо оборудовать ее еще и санузлом.
Воплощение этих пожеланий в конкретном проекте будет зависеть от размера финансовых вложений в строительство и свободного места. Необходимо постараться, чтобы летняя кухня уже на стадии составления проекта была максимально оптимизирована. В ряде случаев можно получить желаемое, изрядно сэкономив, и проекты, о которых мы хотим поговорить далее, тому пример.
Недорогие варианты
Как и обещали, начнем со сравнительно дешевых проектов летних кухонь. Из-за дороговизны материалов и работы любая стройка сегодня – это дорогое удовольствие, поэтому от проекта будет многое зависеть. Даже небольшая летняя кухня функциональнее беседки, но не будем углубляться в рассуждения, а сразу рассмотрим примеры умеренных по цене проектов летних кухонь с уличными барбекю.

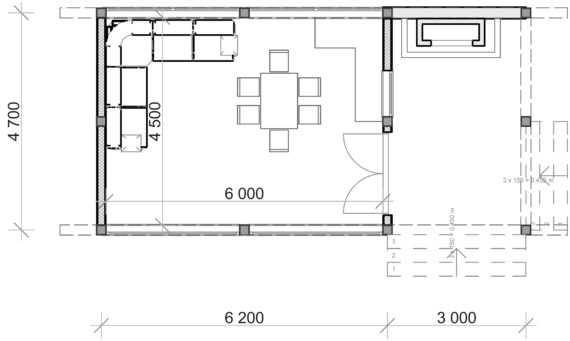
Начнем с простого проекта летней кухни общей площадью 29,28 кв. м. Согласно данному проекту постройка будет состоять из двух частей: открытой террасы площадью 19,20 кв. м и закрытой кухни 10,08 кв. м. На террасе установлен обеденный стол на шесть персон, кроме того остается достаточно места для того, чтобы поместить шезлонги или кресла для послеобеденного отдыха.
Кухня прекрасно подходит для приготовления пищи, поскольку в ней имеется русская печь, печь барбекю и гриль. Хорошая вытяжка и насквозь проветриваемое помещение кухни позволяет без опаски готовить пищу на открытом огне. Помещение кухни достаточно просторно для того, чтобы при желании поместить в нем мойку с раковиной, рабочий столик и скамью, хотя этих элементов проект и не предусматривает.

А вот еще одна сравнительно простая летняя кухня площадью чуть менее 30 кв. м. В данном случае русская печь и печь барбекю располагаются не в закрытом помещении, а на открытой террасе. С точки зрения противопожарной безопасности это лучше, хотя в ветреную погоду готовить будет не очень удобно. Зато в закрытой гостиной можно отдыхать даже в плохую погоду, ну а когда выглянет солнце, то можно будет раздвинуть витрины и комната отдыха окажется на улице.
Проект под ключ предполагает, что в данной летней кухне достаточно места для установки обеденного стола и большого углового дивана, этого хватит, чтобы отдохнуть с комфортом могли 6 человек. Открытая терраса имеет вытянутую форму, так что русская печь и барбекю располагаются в самом конце и не мешают входить в гостиную и выходить из нее.
К сведению! Площадь закрытого помещения летней кухни чуть менее 30 м2, ну а общая площадь постройки 38,5 м2.
Возможно, вам покажется, что реализация любого из этих проектов для вашего бюджета неподъемная ноша. Тогда вы можете обратить внимание на проекты беседок с барбекю и почитать соответствующую публикацию, размещенную на страницах нашего сайта. Беседки построить проще и дешевле, хотя, конечно, не всегда – смотря какие беседки. Иные беседки по площади больше средней летней кухни, но это уже совсем другая история.
Элитные кухни
Если вы любите строить с размахом и у вас имеется соответствующий запас денег, сил и энергии, можете попробовать «замахнуться» на элитную летнюю кухню с печью барбекю. В такой кухне и готовить будет приятно, и большую компанию из друзей принимать удобно. В качестве примеров мы припасли для вас ни один проект таких летних кухонь, так что наберитесь терпения и изучите их, пожалуйста, внимательно.

Первый проект под ключ отличается от какой-нибудь беседки и размерами, и размахом. Согласно проекту данная кухня с барбекю занимает площадь 88,55 м2. Многие жилые дома в нашей стране имеют меньшую площадь. Данная постройка имеет целых 6 отдельных помещений, все помещения крытые, но не все имеют глухие стены. Полностью закрытыми являются так называемое летнее помещение (комната отдыха или гостиная), кладовая, санузел и душ, ну а частично закрытыми остаются галерея и терраса с барбекю.
Проект указывает, что терраса с барбекю является самым просторным элементом строения. Она занимает площадь 27,7 м2. На террасе располагается большой стол минимум на 8 персон, большой угловой диван и зона приготовления пищи. В зоне приготовления пищи установлена русская печь, барбекю, мангал, столешница и мойка с раковиной. Русская печь и барбекю объединены в единую кирпичную конструкцию.

Вот еще один проект элитной летней кухни общей площадью 60 м2. Закрытая часть постройки состоит из кухни площадью почти 20 кв. м. и гостиной 19 кв. м. Русская печь и барбекю располагаются не на кухне, а на открытой веранде площадью 18,76 м2.
Кухня полностью приспособлена для приготовления пищи, а заниматься на ней домашними заготовками просто идеально удобно. Все что нужно под рукой, и мойка с раковиной, и газовая плита, и морозильная камера. А если захотите приготовить мясо на углях, то можно пройти на веранду и сделать все в лучшем виде. Проект шикарный, в то же время он поражает своей простотой и надежностью, никакие беседки с ним не сравнятся.

Проект этой летней кухни с барбекю достоин какого-нибудь элитного курорта. В закрытом помещении располагается кухня-гостиная, сауна, СПА, два санузла, коридор, прихожая и две спальни. На открытом воздухе под навесом разместилась терраса, где в свою очередь установлена русская печь, барбекю и мангал, в общем, все что необходимо, чтобы готовить пищу на открытом огне или углях.
Обратите внимание! Русская печь подойдет для приготовления традиционных русских блюд, ну а остальное пригодится для жарки мяса, рыбы и овощей.
Реализовать подобный проект своими руками ввиду сложности практически невозможно, поэтому для его реализации придется воспользоваться услугами профессиональной строительной бригады, которая возведет объект под ключ.
В заключение отметим, летняя кухня, оборудованная барбекю в отличие от беседки это полнофункциональное строение для полноценного отдыха. В такой кухне можно и печь с барбекю хорошую поставить и комнату отдыха сделать, где при необходимости смогут заночевать ваши гости. Но прежде чем построить такую кухню нужно сделать качественный проект. Надеемся, прочитав данную статью, вы сможете это сделать. Удачи!
besedov.ru
преимущества установки мангала и барбекю на даче, фото беседок и проектов
Многие владельцы дач и загородных домов предпочитают в теплое время года готовить пищу на свежем воздухе, например, на мангале, барбекю или в дровяной печи. А затем, расположившись в беседке, отлично проводить время за ужином в семейном кругу.
Немаловажную роль в создании комфорта и уюта на даче играет проект летней кухни, согласно которому она затем сооружается. Так, он должен включать в себя максимум элементов, чтобы процесс приготовления пищи был удобен и прост.
Летние кухни: фото и проекты
Правильно продуманный и воспроизведенный проект летней кухни, включающий в себя беседку, мангал или барбекю, а также подведенный источник водоснабжения, позволит вам без труда приготовить любимые блюда и не бегать туда-сюда во время готовки. Так, некоторые кухонные объекты на улице могут быть обустроены:
- нишами для посуды;
- ящиками для инструментов;
- столешницами и другими частями кухни.
В интернете вы можете без труда отыскать фото проектов и уже готовых летних кухонь для дач и загородных домов. Многие из них оснащены всем необходимым. Установку и отделку такого сооружения можно заказать в строительной компании или же выполнить самостоятельно. В таком случае нужно следить за соблюдением всех правил постройки такого объекта, как летняя кухня.
Элементы летней кухни
Наиболее распространенный проект летней кухни – это вариант со встроенной печью-барбекю или мангалом. Также она может быть оснащена газовой или электрической печкой. Нередко летняя кухня на даче обустраивается встроенной беседкой на основе облегченных конструкций. Такую беседку без труда можно собрать своими руками, при этом затраты на ее сборку будут минимальными.Если вы сооружаете помещение для приготовления блюд исключительно в теплое время, то, скорее всего, одна стена будет или отсутствовать или же будет остеклена. Есть проекты летних кухонь-трансформеров, когда их можно перестроить под зиму, также есть варианты с сооружением дополнительного помещения для мангала или барбекю, которое обычно делается посредством кирпичной кадки. Иногда мангалы делают и из металла.
Также кухня включает в себя вторую часть помещения — столовую. Здесь же можно поставить закрытый очаг для огня, с помощью которого можно также и отапливать помещение зимой. Стоит отметить, что если установить качественную кухню, то готовить в ней можно будет круглый год, а не только летом.
Преимущества и недостатки летних кухонь для дач
Естественно, что аргументов в пользу установки данного сооружения больше. Среди них:
- готовка блюд в барбекю или на мангале будет увлекательной даже для тех, кто в принципе не любит кухню;
- завтрак или ужин за городом в беседке доставит немало приятных воспоминаний;
- в беседке можно не опасаться по поводу засоров, ведь убирать здесь будет значительно проще, чем в помещении.
Но есть и недостатки у данной идеи:
- строительство летней кухни скажется на семейном бюджете. Чтобы сэкономить, можно беседку или другие элементы кухни собрать своими руками из подручных материалов;
- летняя кухня с беседкой – сооружение сезонное. Смотря, с какой стороны посмотреть. Если соорудить беседку закрытого типа, в ней можно проводить время круглый год. А беседки с барбекю или мангалом могут стать зимой источником дополнительного отопления.
Где устанавливать летную кухню?
Очень важно выбрать правильное место расположения будущей летней кухни. Как правило, она является пристройкой к основному дому, это позволит значительно сэкономить на строительных материалах и времени работы. Преимущества такого варианта размещения такие:
- близость всех инженерных коммуникаций, таких как газ, вода, канализация и электричество. Кухня будет оснащена всеми перечисленными удобствами;
- нет необходимости переносить продукты и утварь из одного конца дачи в другой;
- не будет проблем во время плохой погоды с переходом из основного дома на кухню.
Также обязательно на этапе проекта кухни нужно продумать ее размеры, а также габариты беседки, печей и других элементов постройки. Они зависят от таких факторов, как:
- размера дачи;
- планируемого объема, который вы планируете отвести под строительство;
- финансов;
- индивидуальных пожеланий.
Если вам в интернете пригляделось фото какого-то проекта, не стоит его копировать целиком. Лучше проработать его, адаптировав под свой дачный участок, чтобы он максимально был удобен в вашем случае.
Что нужно для возведения летней кухни своими руками?
Чтобы установить самостоятельно летнюю кухню со встроенным мангалом либо барбекю, нужно приготовить такие материалы, как:
- камни;
- кирпичи;
- смесь бетонную;
- пластик;
- стекло;
- арматуру;
- доски;
- уголки;
- плитку.
Также не забудьте о следующем наборе инструментов:
- болгарка;
- сварочный аппарат;
- молот;
- дрель;
- лобзик с пилкой по металлу;
- зубило;
- бетономешалка;
- уровень;
- молоток;
- мастерок;
- лопата.
Помните, что сделанное самостоятельно барбекю должно быть продумано в плане постоянного проветривания. Само сооружение должно служить защитой от осадков и солнечных лучей. Естественно, что лучшим вариантом будет кухня со съемными стенами, но в плане возведения это сложно. Однако, таким образом вы установите максимальный уровень проветривания летом и изолируете себя от ветра и осадков при наступлении холодов.
Как уже упоминалось, помещение можно совместить с основным домом и упростить процесс ее присоединения к узлам коммуникации. Само сооружение при этом будет выступать в качестве веранды.
Территорию, которая отведена под возведение летней кухни, предварительно должна быть выровнена, также необходимо создать надежный сток дождевой воды. Также утрамбуйте всю почву изнутри помещения, засыпьте ее песком либо гравием, потом забетонируйте и поставьте плитку.
А вот место для барбекю обрабатывается отдельно, а для мангала нужно выбирать максимально прочное основание.
Опыт возведения и обустройства (видео)
Что нужно учитывать при установке летней кухни?
Чаще всего на дачах устанавливают кухни открытого вида. Основой такого сооружения будет кирпич, крышу делают на основе натуральной древесины и покрывают металлочерепицей. Такой вариант строительства будет максимально добротным и долговечным.Беседку и помещение можно собрать из каркаса, изготовленного из древесины, а затем покрыть односкатной крышей. Тип кровли при этом может быть любым, а обшить каркас можно деревянными брусьями.
На дачах или садовых загородных участках многие называют летнюю кухню с печкой зоной барбекю. Сооружать такое строение нужно с учетом соблюдения всех правил безопасности, поскольку все блюда будут готовиться на дровах и углях. Мангал является одним из ключевых атрибутов летней дачной кухни. Его желательно оснащать вытяжной трубой или вентиляционной системой.
Если речь идет о закрытом помещении, то тогда вытяжка обязана быть источником принудительной циркуляции воздуха. Строительство зоны барбекю нужно начинать с возведения фундамента. Далее строит стену и требуемое количество колон, которые будут основанием для будущей крыши.
Пол чаще всего выполняется на основе бетонной стяжки, затем его выкладывают плиткой. Осветительные приборы для кухни нужно размещать под крышей, предварительно обшив ее вагонкой с внутренней стороны. Также при сооружении можно использовать и строительные материалы на основе пластика. Но в таких случаях поверхности должны быть обработаны огнестойким материалом, чтобы защитить строение от пожаров.
Навес, размещенный над помещением, может быть сделан из древесины, или других, более прочных материалов. Терраса может быть оснащена ставнями, также можно сделать съемную перегородку из таких материалов, как:
- дерево;
- стекло;
- пластик.
Если вы планируете установить дровяную печь для приготовления блюд, обязательно позаботьтесь о месте для хранения дров. Также потребуется оборудовать специальную площадку для горячих сковородок и кастрюль, не забудьте обработать все рабочие поверхности на кухне специальными огнестойкими средствами.
Летняя кухня с мангалом для приготовления шашлыков, домашнего плова или других блюд – мечта практически любого дачника. Естественно, позволить соорудить ее по последнему слову техники и дизайна могут себе не все. Поэтому попробуйте сделать хотя бы нечто похожее своими руками, тем более, что это не так сложно и затратно, как может поначалу показаться.
Иногда речь идет не о строительстве полноценной летней кухне открытого или закрытого типа, а лишь о месте приготовления пищи на открытом огне. В таком случае логично будет использовать переносной мангал или соорудить стационарный очаг, который всегда будет под рукой, но при этом не будет портить внешний вид красивого газона. Такое костровище вполне можно сделать своими руками, используя подручные средства, например, колесный диск трактора.

Последовательность действий:
- К металлической части старого колесного диска приварить патрубок. Он нужен для удержания штанги с перекладиной, на которую можно будет подвесить казан, либо закрепить на ней мангал.
- Заглубить диск в землю на одном уровне с грунтом. Обод от тракторного диска будет служить ограждением костровища и опорой для деревянной крышки, которой будет накрываться очаг в то время, когда не используется.
- Выполнить деревянную крышку из досок и реек таким образом, чтобы доски в готовом изделии опирались на верхний край обода, а рейки были утоплены по размеру внутреннего диаметра диска.
Достоинства такого очага заключаются в том, что он используется при необходимости приготовления пищи или желании полюбоваться на открытый огонь, при этом он практически незаметен в обычное время и не препятствует уходу за газоном.
nashgazon.com
