6 идей дизайна квартиры-студии 30 кв.м. с фото. Красивые интерьеры и дизайн
Однокомнатная квартира площадью 30 кв.м. Достаточно ли этого для нормальной жизни? Кто-то даст на этот вопрос отрицательный ответ, мы же говорим: даже в самом маленьком помещении может быть достаточно пространства для всего необходимого, если правильно его оборудовать. Немного фантазии и хитрости, и вы без труда создадите проект самой удобной планировки однокомнатной квартиры. Мы подобрали для вас шесть дизайн-проектов квартир в 30 кв.м.
Дизайн однокомнатной квартиры-студии 30 кв м от Елены Потемкиной

Жилая площадь первого варианта составляет 29 кв.м., на которых в стороне которых располагается кухня, а в центре — угловой диван с настенными полками светящегося светло-серого цвета. Кухонная мебель и тумба под телевизор выполнены в сером антраците.
Интерьер квартиры-студии 30 кв. м.

Стеновое и потолочное оформление разделяет помещение на две функциональные зоны: кухню и гостиную-спальню. В кухонной зоне потолок и стены традиционно окрашены белой штукатуркой. Спальную зону дизайнеры оформили в индустриальном стиле, оставив голые бетонные стены. Рядом с телевизором поставили полуабстрактную картину, поддерживающую общую цветовую гамму и настроение помещения. Связующим звеном между двумя зонами являются светильники: черные, как и вся кухня, они украшены неким подобием абажуров в виде пирамид, относящих нас к индустриальному оформлению спальни.
Красивый ремонт в однокомнатной квартире 30 кв. м. в хрущевке

Индустриальный интерьер в оттенках серого

За кухонной зоной находится ванная комната в современном стиле, оформленная натуральным камнем темно-серого цвета и темным деревом. Душ отгорожен стеклянной стеной.
Маленькая функциональная ванная комната в антраците и темном дереве

Встроенный шкаф с глянцевой поверхностью

Однокомнатная квартира-студия в индустриальном стиле

Дизайн-проект квартиры в 29 кв.м.

ЧИТАЙТЕ ТАКЖЕ: Уютный интерьер квартиры-студии, 4 дизайн-проекта
Дизайн однокомнатной квартиры от Екатерины Ремизовой

Жилая площадь второго варианта составляет всего 20 кв.м., однако все это пространство наполнено элегантностью и девичьим шармом. Мерцающие элементы и блекло-розовые акценты придают интерьеру романтический флер. Дизайнер активно использовала зеркала. Благодаря квартира стала более светлой и зрительно увеличилась.
Светлая однокомнатная квартира-студия — воплощение женственности

Маленькая функциональная кухня оборудована небольшой барной стойкой, за которой уместятся два человека. Раздвижной диван легко превращается в двуспальную кровать. Напротив располагается небольшое рабочее место. Чтобы интерьер выглядел более живым, добавлены рифмующиеся элементы: узор «зебра» на подушках и ковре и привлекающий взгляд шпон из орехового дерева на мебели.
Небольшая встроенная кухня с глянцевыми фасадами

Экзотические материалы — шпон орехового дерева и ковер-«зебра»

Визуализация: с перегородкой между кухней и жилой зоной и без нее

Небольшая рабочая зона

Мягкое непрямое освещение создает вечером приятную атмосферу. Различные источники света и подсветка заботятся об уюте в квартире.
Непрямое освещение создает уютную атмосферу

Раскладной диван становится двуспальной кроватью

Складная кровать — идеальное решение для однокомнатной квартиры

Вид сверху. В центре — раздвижная зеркальная перегородка

Ванная комната с овальной мебелью

Вид сверху — визуализация всей квартиры площадью 20 кв.м.

План дизайна квартиры в 20 кв.м.

Дизайн-проект квартиры в 28 кв.м. от дизайнера Станислава Айнулова

Интерьер однокомнатной квартиры в 28 кв.м. выполнен в скандинавском стиле и привлекает своей простотой. Глаз цепляется за несколько умело подобранных акцентов — яркий пиксельный ковер и стеклянные разноцветные лампы с выделяющимся черным кабелем.
Маленькая однокомнатная квартира-студии в скандинавском стиле

Пол и потолок, выложенные одинаковыми белыми панелями, придают интерьеру ощущение однородности. На смену белому приходит светлое дерево; это же цветовое сочетание выходит за пределы жилой зоны на балкон и в ванную комнату, что смотрится очень едино и гармонично.
Цветные акценты в белом интерьере — стеклянные абажуры

Внешняя стена как будто выложена крашеным кирпичом, и это ощущение поддерживается и на балконе. Пространство балкона расширяет жилое пространство квартиры: небольшая зона отдыха располагается с одной стороны, рабочая зона — с другой.
Стена под крашеный кирпич в качестве акцента как внутри комнаты, так и за ее пределами

Оптимальное использование балконного пространства

Современная ванная комната с угловой душевой кабиной

Необычное решение — угловой туалет

План маленькой однокомнатной квартиры-студии в 28 кв.м.
Дизайн-проект однокомнатной квартиры в 21 кв.м. от Евгения Хана

Следующая квартира имеет площадь всего 21 кв.м., при этом рассчитана на семью из трех человек. Функциональная складная мебель помогает оптимально организовать пространство так, что места хватает на всех жителей небольшой квартиры.
Стол-трансформер превращается из журнального столика в обеденный стол

Прямоугольный журнальный столик раскладывается до внушительного обеденного стола. Диван легко становится двуспальной кроватью. А за стеной из ламелей находится детская кроватка.
Зеркальная стена зрительно расширяет помещение

Одна из стен, посередине которой располагается подставка под телевизор, полностью обита зеркалами. Встроенные шкафы-купе создают место для хранения и позволяют использовать все пространство.
Зеркальная стена как акцент

За белой перегородкой из ламелей — детское спальное место

Мебель-трансформер позволяет оптимально использовать пространство
Складной стол справа от дивана
Раскладная двуспальная кровать в стене
Встроенная мини-кухня с минималистичным дизайном и ярким фартуком

Грамотное использование пространства прихожей — встроенный шкаф

Удобные полки для обуви и антресоли создают дополнительное место для хранения

Дизайн однокомнатной квартиры-студии от Ольги Чекмаревой

Нейтральная цветовая гамма и четкое зонирование придают маленьким помещениям очень приятный, гостеприимный вид. Согласно этому принципу и оформлена следующая квартира: белый цвет, много дерева и четкие линии.
Зонирование помещение с помощью различных материалов

С одной стороны помещения находится светлая кухня, напротив — большой модульный диван. Зона «столовой» зрительно отделена декоративным стенным оформлением из тонких деревянных панелей. Центром комнаты смотрится окно, где располагается уютный уголок для чтения.
Маленькая квартира, оформленная в белом цвете и дереве

Декоративные стеновые панели выделяют зону «столовой»

Большой модульный диван кремово-белого цвета

Зеленые растения придают свежесть интерьеру

Стены и мебель выдержаны в единой цветовой гамме

Деревянный пол и белая сантехника в ванной

Зеркальная стена в небольшой ванной комнате

План расстановки мебели в квартире-студии
Дизайн-проект маленькой квартиры-студии от Юлии Барановой

Непрямое освещение может кардинально преобразить помещение, и примером тому служит следующий дизайн-проект однокомнатной квартиры-студии. Нейтральные светлые оттенки, соответствующее освещение, в основном локализованное на потолке, свежие акценты — все эти элементы, умело скомбинированные, придают интерьеру индивидуальность и уют.
Непрямое освещение и свежие мятные акценты

Спальная зона существенно поднята над уровнем пола и отделена перегородкой. Небольшая ниша рядом с дверью оборудована в качестве функционального рабочего места. Кухня в современном стиле с глянцевыми фасадами находится в отдельном помещении.
Приподнятая и отделенная перегородкой спальная зона

Рабочее место в нише

Маленькая двухцветная кухня

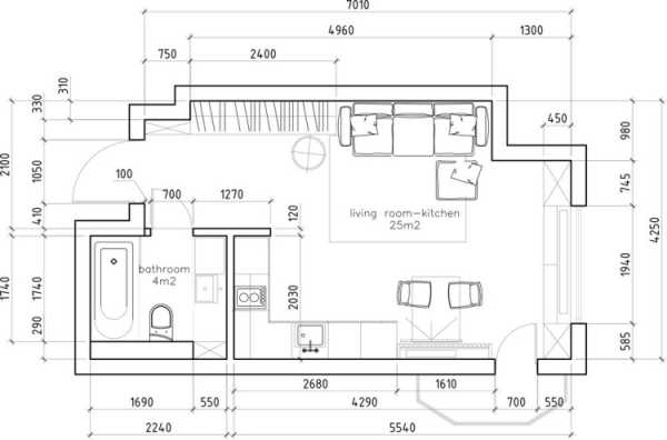
Планировка однокомнатной квартиры-студии 29 кв.м.

homebuilding.ru
фото маленьких однокомнатных вариантов после ремонта
Архитектурно-планировочная концепция жилья, известная в России как «квартира-студия», пользуется растущей популярностью. Тщательно продуманный проект дизайна и качественный ремонт квартиры-студии позволяют превратить небольшое помещение в комфортабельное жилье эконом-класса.
Вопросы перепланировки и зонирования
В нашей стране новостройки с квартирами без внутренних перегородок появились относительно недавно. В домах старой застройки квартиры-студии обычно являются результатом трансформации однокомнатных квартир: для расширения пространства сносится перегородка, отделяющая кухню. Полезную площадь маленькой квартиры также можно увеличить за счет ликвидации кладовок, присоединения к комнате утепленного балкона.Внимание! Любая перепланировка, связанная с полным или частичным сносом перегородок и стен, должна быть согласована в БТИ!
На первом этапе разработки проекта дизайна однокомнатной квартиры важно определиться с основным зонированием помещения: перенос зоны кухни связан с прокладкой новых коммуникаций, для чего требуется поднять уровень пола на несколько сантиметров. Такое решение подходит для маленьких помещений с высокими потолками.
Высота потолка учитывается и при выборе принципа зонирования. В однокомнатных квартирах «хрущевок» не рекомендуется монтировать подиумы и многоуровневые потолки. Визуально разграничить пространство квартиры-студии помогут различные по цвету и фактуре материалы для отделки пола и стен, после окончания ремонта можно положить подходящие ковровые покрытия, добавить декоративные элементы.
В маленькой квартире стоит обойтись без громоздких стационарных перегородок. Взамен стеллажа для разграничения зон желательно использовать экраны, передвижные ширмы, легкие занавески. На фото представлены различные варианты дизайна интерьера квартиры-студии.
Комфорт и уют
Чтобы однокомнатная квартира выглядела просторной и одновременно уютной, рекомендуется после ремонта:
- не хранить на виду мелкие вещи, использовать закрытые шкафы;
- оставлять открытые полки частично пустыми;
- использовать настенные, напольные или настольные светильники в разных функциональных зонах помимо основного освещения.
Важно! Квартира без перегородок быстро заполняется запахами – необходимо предусмотреть установку малошумной вытяжки в кухонной зоне. Также рекомендуется уделить внимание звукоизоляции санузла.
Выбор стиля
После разработки основной концепции зонирования выбирается стилевое решение однокомнатной квартиры-студии. Базовый принцип един – помещение должно выглядеть просторным, наполненным воздухом и светом. Такой подход диктует использование светлых тонов в отделке с добавлением контрастных элементов, выбор эргономичной мебели.
Какие варианты стиля идеально подойдут для маленькой квартиры-студии?
Многообразие дизайнерских стилей в наши дни может вскружить голову любому. Но нельзя думать, что каждый из них можно органично реализовать в любом помещении. Если мы говорим о квартире с ограниченной площадью, то не стоит пытаться сделать ремонт в классическом стиле или использовать приемы барокко. Этим вариантам необходимы большие пространства. Для маленькой квартиры-студии больше подойдут современные стили, такие как:
Хай-тек
Как видно на фото, главный принцип ремонта в данном стиле – практичность. Сдержанный декор, многофункциональная трансформирующаяся мебель, мобильные перегородки, позволяющие менять планировку. Технологический дизайн требует широкого использования таких материалов, как:
- стекло;
- полированный металл;
- пластик;
- кожзаменитель.
Светлая отделка стен дополняется яркими элементами, в том числе кислотных цветов.
Минимализм
Характеризуется отсутствием лишних деталей, простыми линиями. Отделка и мебель – в естественных светлых тонах с дополнением коричневого и серого цвета, вместо занавесок – жалюзи, источники освещения – скрытые. Предпочтение отдается натуральным материалам или их качественной имитации, как на фото. Общий облик такой однокомнатной квартиры-студии соответствует цветовой гамме природных пейзажей.
Скандинавский стиль
Основные черты — белые стены, мебель из натурального дерева, пастельные тона в сочетании с черным и темно-коричневым. Оформляя маленькую квартиру-студию после ремонта необходимо добавить немного ярких аксессуаров красного, синего, зеленого или розового цвета. Пример ремонта квартиры-студии в скандинавском стиле вы можете видеть на фото.
Японский стиль
Условное деление жилья на функциональные зоны, отсутствие стационарных перегородок. Использование для отделки полуобработанного дерева, нешлифованного камня, металла, покрытого патиной. Низкая мебель из гладкого дерева с невыраженной текстурой. Предпочтение уютным светильникам вместо яркого открытого света в маленькой квартире-студии.На фото представлен вариант ремонта маленькой квартиры студии в японском стиле.
Грамотный проект ремонта квартиры-студии позволит сделать жилье красивым, практичным и комфортным.
www.tat-remont.ru
Ремонт квартиры-студии: особенности, фото, дизайн
Квартиры-студии приобрели популярность не так давно. Первой приняла новаторскую стилистику open space в жилых интерьерах Москва, вслед за ней интересное дизайнерское решение приветствовали практически во всех российских регионах. Прежде невозможно было создать жилье в стиле минимализма в силу того, что стандартные планировки зданий не допускали иных решений. В старых домах обустройство авангардных интерьеров тормозили запрет сноса несущих стен и иные юридически-технологические препоны. Сегодня можно на этапе строительства будущего дома задуматься о принципах свободного конструирования помещения.

Однокомнатная студия
Особенности ремонта квартиры-студии
Ремонт однокомнатных квартир-студий имеет свою специфику. Особенности связаны с тем, что потребуется:
- составить проект с учетом требований к условиям проживания в многоквартирных домах, регламентированные СанПиН 2.1.2.2645-10;
- решить инженерные задачи, связанные с привязкой к вентиляционным каналам, электропитанием, водоснабжением, канализацией, теплоснабжением;
- рационально зонировать пространство, чтобы обеспечить комфорт проживания и эстетичное впечатление.
Идеи ремонта квартиры-студии
Ключевые идеи ремонта студи — это, по большому счету, концепция интерьера. К моменту начала работ следует четко представлять, какие функциональные зоны и каким образом будут сочетаться в помещении. Избежать ошибок помогают эскизы и 3D-визуализация проекта.

Дизайн однокомнатной студии
Главное место займет кухня-гостиная. При ее оформлении важно визуально отделить жилую комнату от кухонного блока (однако антагонизмов их стилях и цветовых решениях не приветствуется). Ремонт типовых однокомнатных квартир ради создания студий позволяет сделать это разными способами. Например, разграничивают зоны:
- ламинат и плитка, примененные в качестве напольных покрытий пространств разного функционала;
- барная стойка, выполняющая функции обеденного стола;
- стеклянные или гипсокартонные кулисы;
- разные цвета стен.
Выигрыш площади дает использование встроенного кухонного оборудования, кстати, это способствует снижению уровня шума в квартире.
Для разделения пространства годятся диваны и мягкие уголки, стеллажи, напольные кашпо, торшеры. Зонирование можно выполнить, применяя разного рода ширмы. Чаще всего ими отделяют спальное место.
Для меблировки подойдут многофункциональные предметы и в небольшом количестве. Оптимальный вариант — встроенные шкафы, которые экономят и разгружают пространство. Полезным элементом могут стать антресоли.

Студия
Если ремонт квартиры-студии в вашем понимании предполагает учет остро-модных тенденций, используйте подиумы — они стильно выглядят в интерьере и помогают повысить функциональность пространства. Например, подиум в кухонной зоне можно оформить удобной в уборке плиткой, а на полы гостиной зоны уложить паркет или ковролин. Кроме возможности создать разноуровневые апартаменты, высокие подиумы дают вспомогательное место для хранения вещей.
Дизайн квартиры-студии
Площадь студий не бывает большой, а малые габариты требуют рационального подхода к планировке и каждой мелочи оформления. Уместным акцентом специалисты по интерьеру считают освещение: за счет направленных лучей спотов или рассеянного света люстр можно подчеркнуть определенную зону. Утеплив лоджию или балкон, получаем дополнительные полезные метры. Вариантов множество и все они известны специалистам.

Дизайн студии
По форме многофункциональные комнаты могут быть прямоугольными, квадратными, а также смелой треугольной или трапециевидной конфигурации. Дизайн квартиры-студии разрабатывается с учетом предпочтений будущих владельцев. Самые распространенные варианты с точки зрения стилистики:
- лофт (от английского «чердак») — простой, без изысков;
- прованс — изобилующий декоративными элементами и потому очень уютный;
- хай-тек — используются только полезные предметы мебели;
- фьюжн — допускающий совмещение элементов разных стилей.
В любой интерьер можно органично вписать особо дорогие для владельцев вещи: картины, вазы, фотографии, комнатные растения, статуэтки.
Ремонтом квартиры-студии сложно заниматься без участия профессионалов. Компании, ориентированные на оказание строительных услуг, предлагают множество решений. Узнать, как справиться с превращением квадратных метров в стильное жилье, и получить реальную помощь можно на сайте www.remont-skt.ru. Дизайн, выполненный специалистами с учетом идей клиентов, делает квартиры-студии оригинальными и разнообразными. Выбирать вам, а воплотить идеи всегда готовы профессионалы.
Оставляйте ваши советы и комментарии ниже. Подписывайтесь на новостную рассылку. Успехов вам, и добра вашей семье!chonemuzhik.ru
Ремонт квартир-студий: цены, идеи, фото
Быстрый, качественный и недорогой ремонт квартир-студий в Оренбурге проводит компания «Сокремонт».
Квартиры-студии очень распространены среди молодых и творческих людей, студентов и бездетных пар. В студии отсутствуют межкомнатные перегородки, и правильный ремонт в такой квартире подарит вам дополнительное ощущение свободы и легкости в квартире.
Ремонт в квартире-студии с компанией «Сокремонт»
Наши специалисты готовы провести любой ремонт студии: простую косметическую отделку, капитальный ремонт студии в новостройке, или воплотить ваши смелые дизайнерские решения.
В нашей компании работают мастера по всем видам строительных работ, квалифицированные прорабы и профессиональный дизайнер. Это позволяет нам осуществлять комплексный подход к ремонту, а вам экономить на привлечении сторонних мастеров.
Сколько стоит ремонт студии в Оренбурге?
В нашей компании стоимость ремонта студии рассчитывается индивидуально для каждого клиента. Наш замерщик оценит состояние квартиры, дизайнер выслушает пожелания по ремонту и составит дизайн-проект, прораб оценит состав работ и материалов, и окончательная стоимость будет фиксироваться в договоре на ремонт.
После подписания договора цена не ремонт не меняется, никаких неожиданных затрат вам оплачивать не придется.
Вы можете ознакомиться с ценами на ремонтные работы в нашей компании.
Идеи ремонта квартир-студий: фото
Дизайн квартиры-студии
В любой однокомнатной квартире-студии наши дизайнеры стараются сохранить ощущение простоты, свободы и легкости. Если у клиента нет каких-то особых пожеланий по дизайну, мы предлагаем дизайн в стиле лофт, минимализм или в японском стиле.
Важной особенностью ремонта студий является зональное разграничение кухни и комнаты. Это можно сделать с помощью декоративных перегородок, разных видов напольного и потолочного покрытия или барной стойки.
Кухня в квартире-студии
В кухонной зоне квартиры-студии необходима мощная вытяжка с принудительной вентиляцией над плитой, это избавит вас от распространения запахов по всей квартире.
Чтобы избежать нежелательных загрязнений комнаты во время приготовления пищи, можно установить дополнительные перегородки. Лучше, если они будут прозрачными, из стекла или пластика.
Для экономии пространства мебель в кухню квартиры-студии советуем выбирать встраиваемую.
Зона отдыха в квартире-студии
Здесь важно не загромождать пространство, сделать комнату максимально свободной, поэтому рекомендуем выбирать не громоздкие мебельные конструкции.
Наши дизайнеры при составлении проектов студий выбирают светлые тона, легкий текстиль и глянцевые поверхности. Благодаря этому квартира визуально расширяется, освещение улучшается и сохраняется ощущение простора и легкости.
Рабочая зона в квартире-студии
Для оборудования рабочего места лучше всего подойдет угол помещения. Там можно установить небольшой рабочий стол со всем необходимым, повесить полки или оборудовать встраиваемые ниши.
Интересным вариантом будет утепление и оборудование балкона под кабинет.
Санузел и коммуникации в квартире-студии
Наши специалисты могут провести отделку санузла и следующие работы с коммуникациями:
- демонтаж старых систем;
- установка сантехнических приборов;
- электротехнические работы;
- работа с системами отопления, вентиляции и кондиционирования.
Балкон в квартире-студии
Балкон в квартире-студии — это дополнительное пространство, которым можно расширить комнату, или оборудовать там отдельное помещение.
Идей для ремонта балкона в студии множество: рабочий кабинет, зона отдыха, оранжерея, мастерская и т.д.
cok-remont.com
фото, видео, советы и идеи
Собственное жилье – вопрос важный в жизни каждого человека. И его решают в силу своих возможностей – кто как может. Ведь крыша над головой нужна всем. Некоторые рады даже однокомнатной хрущевке, счастливчиками себя называют и обладатели комнаты в общежитии.
Своя жилплощадь – дело святое. Какой бы она ни была, но она – ваша. Есть и другая сторона медали, которая заключается в том, устраивают ли владельцев те квадратные метры, которые им достались? Особенно остро стоит вопрос у обывателей комнат в общежитии, однокомнатных квартир, о которых мы уже упоминали.
Если вы владелец одной из таких квартир/комнат и мечтаете превратить свою жилплощадь в комфортабельное помещение, тогда вы обратились по нужному адресу. Предлагаем вам обсудить, каким должен быть дизайн интерьера однокомнатной квартиры-студии.
Маленькая квартира-студия: дизайн интерьера, фотоМаленькая квартира-студия: с чего начать?
Прежде чем вы начнете планировать дизайн интерьера маленькой квартиры-студии, сразу же хочется обратить ваше внимание на одну очень важную особенность: не забывайте о том, что квартира должна быть не только функциональной, но и гармоничной и полноценной в плане стиля и уюта.
Следует всё продумать так, чтобы все нужные вам элементы присутствовали, но не приносили много ущерба пространству. Что именно включить в список необходимых составляющих – решать вам.
Советуем рассмотреть несколько вариантов дизайна, чтобы выбрать наилучший вариант, который превратит вашу «однушку» в довольно-таки комфортабельную квартиру.
Обратите внимание! Все акценты в дизайне будут зависеть от того, для кого оформляется дизайн. Ведь в однокомнатной квартире может жить холостой человек либо же молодая семья, которая только соединила свои сердца. В первом случае дизайн будет более индивидуальный, во втором – как индивидуальный, так и общий (совместный).
Квартира-студия: фото, интерьер и планировкаЛюбой проект, не зависимо от того касается ли он ремонта и оформления дизайна помещения или чего-то другого, начинается с плана. Поэтому в нашем случае мы выберем классический вариант для старта – спланируем все наши действия и создадим план-проект.
Учитывая свои запросы, создаем план своей «однушки». Делаем ставку на увеличение физического и визуального пространства. Для этого вам стоит сделать перепланировку квартиры. Но будьте внимательны, ведь сносить любые стены и перегородки вам не позволят с точки зрения закона.
Есть те стены и перегородки, которые можно сносить, и есть те, на которых держится вся конструкция здания, и их ни в коем случае нельзя сносить. Поэтому, прежде чем планировать, проконсультируйтесь у специалистов и определите части квартиры, которые можно будет сносить-укорачивать-перестраивать.
После создания плана проекта нужно будет обязательно утвердить в соответствующих службах.
Заметим, что ликвидация стен и перегородок между основным помещением и вспомогательными – наиболее распространенный и довольно легкий вариант увеличения физического пространства.
Чаще всего убирается стена между гостиной и кухней. Такой вариант не самый лучший, так как не все запахи, идущие из кухни, будут милы обонянию. Но желание дополнительного пространства всегда берет верх и отодвигает негатив на второй план. В конце концов, установку нескольких вытяжек никто не запрещал. Да и «вкусные» запахи все-таки доносятся из кухни чаще всего.
Дизайн интерьера маленькой квартиры-студии, фотоИнтерьер и планировка зон
Без зонирования жилплощади не обойтись, ведь кроме туалета и ванной, которые всегда отделены от общей площади, а так же кухни, интерьер однокомнатной квартиры-студии будет состоять еще из ряда важных зон, которые необходимы человеку.
При планировании воспринимайте однокомнатную квартиру как действительно помещение с одной комнатой, хотя в ней есть и санузел, и коридор, и кухня, и может, даже кладовая.
В «однушке» будут нужны точно такие же зоны, как и в любой индивидуальной комнате. Просто размеры ее будут немного больше.
Санузел и кухня. Поскольку мы уже упоминали о кухне и санузле, давайте завершим разговор об этих зонах. Санузел – ванная и туалет – размещены отдельно и находятся за стенными перегородками.
Кухня, как уже знаем, чаще всего входит в общую площадь комнаты. Лучше всего выделить эту зону с помощью барной стойки. Кроме того, используя подвесные потолки, можно еще раз подчеркнуть ее индивидуальность – выделить как отдельную зону.
Интерьер однокомнатной квартиры-студии фотоОбратите внимание! Любой интерьер однокомнатной квартиры-студии может быть украшен несколькими подвесными потолками. Например, его можно использовать для выделения кухни, рабочей зоны и спортивного уголка.
Для кухни отдаем предпочтение одному из углов комнаты. Такое расположение будет наиболее выгодным. Раковину размещаем в углу кухонной стенки. Вместо обычной плиты выбираем плиту-панель.
Духовку заменяем более компактным вариантом – электрической духовкой, но эконом-класса в плане употребления электроэнергии, которую размещаем на стенке или помещаем в одну из тумбочек и при надобности достаем. Такая духовка не должна быть слишком габаритной и может заменить микроволновку, если речь идет о подогреве еды или готовке горячих бутербродов. Для последних можно приобрести и компактную бутербродницу.
Вы — владелец квартиры-студии 26 кв. м? Фото дизайна, которые вы найдете по ссылке, — это возможность оценить удачность планировки и найти свое решение, если запланирован ремонт.
Как выглядит квартира студия без отделки? Фото смотрите в этой статье.
Чтобы подобрать всю нужную технику, необходимо хорошо подумать и выбрать именно ту, которая будет самой необходимой и, конечно же, не займет много места. Поэтому здесь все будет индивидуально, но стоит придерживаться одного совета: функциональность и компактность – главное правило при подборе техники.
И еще. Мебель и технику на кухне подбирайте более светлых тонов. Эти оттенки визуально увеличат и зону кухни, и комнаты вообще.
Для оформления ванной комнаты и туалета следуйте тем же правилам – функциональность, компактность и светло-серые тона.
Интерьер квартиры-студии 18 кв. м, фотоЗона гостиной. Наиболее подходящий вариант для расположения гостевой зоны – центр комнаты. С ее оформления и стоит начинать, ведь эта зона должна выполнять роль своеобразного эпицентра, вокруг которого будут размещены другие зоны.
Обычно в гостевую зону входит диван, стол, стулья и, если позволяет место, небольшой журнальный столик с полочками (лучше столик-тумбочка на колесиках), на котором можно будет спрятать нужные вещи.
Советуем добавить и несколько пуфов или кресел-подушек, которые при необходимости можно перемещать.
Планировка однокомнатной квартиры-студии, фотоЗона сна. Следующая зона, о которой пойдет речь – зона сна – уникальная зона. Она может существовать как в зоне гостиной, так и отдельно. Все зависит от того, сколько квадратных метров будет в вашем распоряжении.
Диван, который вы используете для гостей, может превращаться в место для сна. А стулья, тумбочка и журнальный столик помогут вам расположить нужные вещи для комфортного сна и приятного утра. Например, вы сможете разместить рядом нужную одежду, будильник, стакан воды или сока, мобильник, ноутбук и прочее.
Старайтесь не загромождать пространство вокруг дивана обилием вещей.
Поэтому диван стоит брать функциональный. Он должен быть не только трансформ-вариантом, но и иметь выдвижной ящик для постельного белья, одежды и других предметов нужных для вас.
Учитывая такие особенности зоны сна и гостевой, мы с уверенностью можем сказать, что эти две зоны лучше совмещать. Но центр комнаты – не закон для этой зоны. Никто не наложил табу на размещение этих зон в других частях комнаты.
Хорошо они будут смотреться и у стены. Тогда центр композиции сместиться к одной из стен. А все остальные зоны будут уходить от гостиной-спальни в две стороны – налево и направо, образуя полукруг.
Обратите внимание! В зоне сна или гостевой должен быть телевизор. Но не выбирайте классический вариант, который нужно ставить на тумбочку или стол. Выберите плазменный телевизор и повесьте на одной из стен.

Рабочая зона. Уникальность этой зоны состоит в том, что для нее в однокомнатной квартире можно и не выделять отдельную зону. Используйте возможности функциональной мебели. Например, размещение компьютерного стола в шкафу-купе.
Совет: если есть возможность использовать диван с высокой спинкой, можно приспособить выдвижную плиту с ножкой для стола, которая легко прячется за спинку дивана.
Часть барной стойки также подойдет для работы. Используя ноутбук и WI-FI, можно свободно обустроить рабочую обстановку. Тем более, если вы много работаете дома, холодильник, чайник, кофе и чай всегда будут неподалеку, чтобы что-то перекусить.
Рабочий стол с ножкой под него можно прикрепить и к одной из стен, чтобы он поднимался и опускался. Такой откидной стол легко можно будет убирать и расставлять, подперев ножкой.
Интерьер квартиры-студии 20 кв. м, фотоСпортивная зона. Многие жильцы однокомнатной квартиры следят за своим здоровьем, поэтому зона спорта тоже актуальна.
Обустроить что-то грандиозное вам не удастся, поэтому отдайте предпочтение тренажеру и штанге в дверном проеме. А коврик для йоги или аэробики всегда можно будет расположить на полу и использовать в удобное вам время. Его легко будет расстелить, а потом убрать.
Может быть, многие предметы мебели придется делать под заказ и это, конечно же, потребует вложения дополнительных средств, но результат обещает быть отменным.
Квартира-студия 30 метров: интерьер, фотоКак видим, интерьер однокомнатной квартиры-студии может и должен быть удобным, функциональным и эстетичным. Главное — тщательно все продумать во время планирования интерьера, а остальное – дело техники.
Смотрите галерею фотографий с образцами мебели для гостиной в современном стиле: шикарная подборка на любой вкус.
Узнайте тут, как правильно скомбинировать обои в зале: смотрите фото с возможными комбинациями в различных цветовых сочетаниях для удачного комбинирования.
Подробно о современных модульных системах для гостиной — читайте по адресу: https://prostilno.ru/mebel/modulnaya-dlya-gostinoj.html
Варианты планировки, обстановки и общие направления в дизайне современных однокомнатных квартир студий предлагаем рассмотреть в видео-сюжете:
Чтобы у вас все получилось, советуем также просмотреть в галерее ниже подборку интерьеров однокомнатных квартир-студий. Фото уже воплощенных в жизнь проектов помогут вам спланировать свое жилье наилучшим образом.
prostilno.ru






Хай-тек
Минимализм
Скандинавский стиль
Японский стиль