ΠΠ΅Π±ΠΎΠ»ΡΡΠΎΠΉ ΠΊΠ°ΡΠΊΠ°ΡΠ½ΡΠΉ Π΄ΠΎΠΌ Π΄Π»Ρ Π½Π΅Π±ΠΎΠ»ΡΡΠΎΠΉ ΡΠ΅ΠΌΡΠΈ
ΠΠ»Π°Π²Π½Π°Ρ Β» Π’Π΅ΠΊΡΡΡ Β» ΠΠ΅Π±ΠΎΠ»ΡΡΠΎΠΉ ΠΊΠ°ΡΠΊΠ°ΡΠ½ΡΠΉ Π΄ΠΎΠΌΠΠ΅Π±ΠΎΠ»ΡΡΠΎΠΉ ΠΊΠ°ΡΠΊΠ°ΡΠ½ΡΠΉ Π΄ΠΎΠΌ β ΡΡΠΎ Π½Π°ΠΈΠ±ΠΎΠ»Π΅Π΅ ΠΎΠΏΡΠΈΠΌΠ°Π»ΡΠ½ΡΠΉ Π²Π°ΡΠΈΠ°Π½Ρ ΠΆΠΈΠ»ΠΎΠ³ΠΎ Π΄ΠΎΠΌΠ° Π΄Π»Ρ Π±ΠΎΠ»ΡΡΠΈΠ½ΡΡΠ²Π° ΡΠΎΠ²ΡΠ΅ΠΌΠ΅Π½Π½ΡΡ Π»ΡΠ΄Π΅ΠΉ Π² ΠΌΠΈΡΠ΅. Π’Π°ΠΊΠΎΠΉ Π΄ΠΎΠΌ ΠΎΠ±Π»Π°Π΄Π°Π΅Ρ ΠΌΠ°ΡΡΠΎΠΉ ΠΏΡΠ΅ΠΈΠΌΡΡΠ΅ΡΡΠ²:
- Π‘ΠΊΠΎΡΠΎΡΡΡ ΡΡΡΠΎΠΈΡΠ΅Π»ΡΡΡΠ²Π°. ΠΠΎΠΌΠ° Π²ΠΎΠ·Π²ΠΎΠ΄ΡΡΡΡ Π±ΡΠΊΠ²Π°Π»ΡΠ½ΠΎ Π·Π° Π½Π΅ΡΠΊΠΎΠ»ΡΠΊΠΎ Π½Π΅Π΄Π΅Π»Ρ Π½Π°ΡΠ΅ΠΉ ΠΊΠΎΠΌΠΏΠ°Π½ΠΈΠ΅ΠΉ. ΠΡΡΠ°Π»ΡΠ½ΡΠ΅ ΡΠ°Π±ΠΎΡΡ, Π½Π°ΠΏΡΠΈΠΌΠ΅Ρ, ΠΎΡΠ΄Π΅Π»ΠΎΡΠ½ΡΠ΅ ΠΌΠΎΠ³ΡΡ Π·Π°Π½ΡΡΡ Π±ΠΎΠ»ΡΡΠ΅ Π²ΡΠ΅ΠΌΠ΅Π½ΠΈ;
- ΠΠΎΡΡΡΠΏΠ½ΡΠ΅ ΡΠ΅Π½Ρ. ΠΠ½ΠΎΠ³ΠΈΠ΅ Π»ΡΠ΄ΠΈ Π½Π΅ ΡΠ°ΡΠΏΠΎΠ»Π°Π³Π°ΡΡ Π±ΠΎΠ»ΡΡΠΈΠΌΠΈ ΡΡΠ΅Π΄ΡΡΠ²Π°ΠΌΠΈ Π΄Π»Ρ ΡΠΎΠ³ΠΎ, ΡΡΠΎΠ±Ρ ΡΡΡΠΎΠΈΡΡ ΡΠ²ΠΎΠΈ Π΄ΠΎΠΌΠ°, ΠΎΠ΄Π½Π°ΠΊΠΎ, ΡΠ°ΡΡΠ½ΡΠ΅ Π΄ΠΎΠΌΠ° β ΡΡΠΎ ΠΈΠ΄Π΅Π°Π»ΡΠ½ΡΠΉ Π²ΡΡ ΠΎΠ΄. Π’Π°ΠΊΠΎΠΉ Π΄ΠΎΠΌ ΠΎΠ±ΠΎΠΉΠ΄Π΅ΡΡΡ ΠΠ°ΠΌ ΠΏΠΎ ΠΏΡΠΈΠ΅ΠΌΠ»Π΅ΠΌΠΎΠΉ ΡΠ΅Π½Π΅;
- ΠΠΊΠΎΠ»ΠΎΠ³ΠΈΡΠ½ΠΎΡΡΡ. Π’Π°ΠΊΠΈΠ΅ Π΄ΠΎΠΌΠ° ΠΈΡΠΏΠΎΠ»ΡΠ·ΡΡΡ Π½Π°ΡΡΡΠ°Π»ΡΠ½ΡΠ΅ ΡΡΡΠΎΠΉΠΌΠ°ΡΠ΅ΡΠΈΠ°Π»Ρ, ΡΡΠΎ ΠΏΠΎΠ·Π²ΠΎΠ»ΡΠ΅Ρ ΡΠ΄Π΅Π»Π°ΡΡ Π±Π»Π°Π³ΠΎΠΏΡΠΈΡΡΠ½ΡΡ Π°ΡΠΌΠΎΡΡΠ΅ΡΡ.
Π’Π°ΠΊΠΈΠΌ ΠΎΠ±ΡΠ°Π·ΠΎΠΌ, ΠΏΠΎΡΡΡΠΎΠΉΠΊΠ° Π΄ΠΎΠΌΠ° Π½Π΅ Π½ΡΠΆΠ΄Π°Π΅ΡΡΡ Π² Π±ΠΎΠ»ΡΡΠΈΡ ΡΠΈΠ½Π°Π½ΡΠΎΠ²ΡΡ Π·Π°ΡΡΠ°ΡΠ°Ρ ΠΈ Π½Π΅ Π²ΡΠ΅Π΄ΠΈΡ ΠΎΠΊΡΡΠΆΠ°ΡΡΠ΅ΠΉ ΡΡΠ΅Π΄Π΅.
ΠΠ°ΠΊ ΠΏΡΠΎΠΈΡΡ ΠΎΠ΄ΠΈΡ ΡΡΡΠΎΠΈΡΠ΅Π»ΡΡΡΠ²ΠΎ?
Π‘Π°ΠΌΠ° ΠΌΠ΅ΡΠΎΠ΄ΠΈΠΊΠ° ΡΡΡΠΎΠΈΡΠ΅Π»ΡΡΡΠ²Π° ΠΊΠ°ΡΠΊΠ°ΡΠ½ΡΡ Π΄ΠΎΠΌΠΎΠ² ΠΎΡΠ»ΠΈΡΠ°Π΅ΡΡΡ ΡΠ²ΠΎΠ΅ΠΉ ΠΏΡΠΎΡΡΠΎΡΠΎΠΉ. ΠΠ΅ΡΠ²ΠΎΠ½Π°ΡΠ°Π»ΡΠ½ΠΎ Π·Π°ΠΊΠ°Π·ΡΠΈΠΊΡ Π½ΡΠΆΠ½ΠΎ ΠΎΠΏΡΠ΅Π΄Π΅Π»ΠΈΡΡΡΡ Ρ ΠΏΠ»Π°Π½ΠΎΠΌ Π½Π΅Π±ΠΎΠ»ΡΡΠΎΠ³ΠΎ ΠΊΠ°ΡΠΊΠ°ΡΠ½ΠΎΠ³ΠΎ Π΄ΠΎΠΌΠ°:
- ΠΡΠ±ΡΠ°ΡΡ Π³ΠΎΡΠΎΠ²ΡΠΉ Π²Π°ΡΠΈΠ°Π½Ρ ΠΏΡΠΎΠ΅ΠΊΡΠ° Π½Π° ΡΠ°ΠΉΡΠ΅;
- ΠΠ°ΠΊΠ°Π·Π°ΡΡ ΡΠΎΠ·Π΄Π°Π½ΠΈΠ΅ ΠΎΡΠΎΠ±ΠΎΠ³ΠΎ ΠΏΡΠΎΠ΅ΠΊΡΠ°.
ΠΠ°ΡΠΈ Π°ΡΡ ΠΈΡΠ΅ΠΊΡΠΎΡΡ ΡΠΌΠΎΠ³ΡΡ ΠΠ°ΠΌ ΠΏΠΎΠΌΠΎΡΡ Π² ΡΠ°Π·ΡΠ°Π±ΠΎΡΠΊΠ΅ ΠΏΠ»Π°Π½Π° Π΄ΠΎΠΌΠ° Ρ ΡΡΠ΅ΡΠΎΠΌ ΠΠ°ΡΠΈΡ ΠΏΠΎΠΆΠ΅Π»Π°Π½ΠΈΠΉ ΠΈ Π±ΡΠ΄ΠΆΠ΅ΡΠ°. ΠΠΎΠΌΠ°Π½Π΄Π° Π°ΡΡ ΠΈΡΠ΅ΠΊΡΠΎΡΠΎΠ², ΠΈΠ½ΠΆΠ΅Π½Π΅ΡΠΎΠ² ΠΈ ΠΊΠΎΠ½ΡΡΡΡΠΊΡΠΎΡΠΎΠ² ΠΏΠΎΠ΄Π³ΠΎΡΠΎΠ²ΠΈΡ Π½Π°ΠΈΠ±ΠΎΠ»Π΅Π΅ ΠΎΠΏΡΠΈΠΌΠ°Π»ΡΠ½ΡΠΉ Π²Π°ΡΠΈΠ°Π½Ρ Π΄Π΅ΡΠ΅Π²ΡΠ½Π½ΠΎΠ³ΠΎ Π΄ΠΎΠΌΠ°, Π²ΠΎΠ·Π²Π΅Π΄Π΅Π½ΠΈΠ΅ ΠΊΠΎΡΠΎΡΠΎΠ³ΠΎ Π±ΡΠ΄Π΅Ρ Π½Π°ΡΠ°ΡΠΎ Π² Π±Π»ΠΈΠΆΠ°ΠΉΡΠ΅Π΅ Π²ΡΠ΅ΠΌΡ ΠΈ Π½Π΅ ΠΏΠΎΡΡΠ΅Π±ΡΠ΅Ρ Π΄ΠΎΠΏΠΎΠ»Π½ΠΈΡΠ΅Π»ΡΠ½ΡΡ Π·Π°ΡΡΠ°Ρ.
ΠΠΎΡΠ»Π΅ ΡΡΠΎΠ³ΠΎ Π½Π°ΡΠ° ΡΠΈΡΠΌΠ° Π·Π°ΠΉΠΌΠ΅ΡΡΡ Π²ΡΠ±ΠΎΡΠΎΠΌ Π½Π°ΡΡΡΠ°Π»ΡΠ½ΡΡ ΡΡΡΠΎΠΉΠΌΠ°ΡΠ΅ΡΠΈΠ°Π»ΠΎΠ² Π΄Π»Ρ Π²ΠΎΠ·Π²Π΅Π΄Π΅Π½ΠΈΡ ΠΊΠ°ΡΠΊΠ°ΡΠ½ΠΎΠ³ΠΎ Π΄ΠΎΠΌΠ°. ΠΠ° ΠΊΠΎΠ½Π΅ΡΠ½ΠΎΠΌ ΡΡΠ°ΠΏΠ΅ ΡΡΡΠΎΠΈΡΠ΅Π»ΡΡΡΠ²Π° ΠΏΡΠΎΠΈΡΡ ΠΎΠ΄ΡΡ ΠΎΡΠ΄Π΅Π»ΠΎΡΠ½ΡΠ΅ ΡΠ°Π±ΠΎΡΡ Π²Π½ΡΡΡΠΈ ΠΈ ΡΠ½Π°ΡΡΠΆΠΈ Π΄ΠΎΠΌΠ°. ΠΠ»Ρ ΡΡΠΎΠ³ΠΎ Π²Π΄ΠΎΠ±Π°Π²ΠΎΠΊ Π²ΡΠ±ΠΈΡΠ°ΡΡΡΡ ΡΠΊΠΎΠ»ΠΎΠ³ΠΈΡΠ½ΡΠ΅ ΠΌΠ°ΡΠ΅ΡΠΈΠ°Π»Ρ.
ΠΡΠΈΠ½ΡΠΈΠΏΡ Π²ΠΎΠ·Π²Π΅Π΄Π΅Π½ΠΈΡ ΠΊΠ°ΡΠΊΠ°ΡΠ½ΠΎΠ³ΠΎ Π΄ΠΎΠΌΠ°
Π‘ΠΎΠΎΡΡΠΆΠ΅Π½ΠΈΠ΅ Π½Π΅Π±ΠΎΠ»ΡΡΠΎΠ³ΠΎ ΠΊΠ°ΡΠΊΠ°ΡΠ½ΠΎΠ³ΠΎ Π΄ΠΎΠΌΠ° ΠΎΠ±Π»Π°Π΄Π°Π΅Ρ ΡΠ½ΠΈΠΊΠ°Π»ΡΠ½ΠΎΠΉ ΡΠ΅Ρ Π½ΠΎΠ»ΠΎΠ³ΠΈΠ΅ΠΉ, ΠΏΠΎΡΡΠΎΠΌΡ Π΅Π³ΠΎ ΠΏΡΠΈΠ½ΡΠΈΠΏΠ°ΠΌΠΈ ΡΠ²Π»ΡΡΡΡΡ:
- ΠΠ°ΠΈΠ±ΠΎΠ»ΡΡΠ΅Π΅ ΠΏΡΠ΅Π΄ΠΏΠΎΡΡΠ΅Π½ΠΈΠ΅ Π½Π°ΡΡΡΠ°Π»ΡΠ½ΡΡ ΡΡΡΠΎΠΉΠΌΠ°ΡΠ΅ΡΠΈΠ°Π»ΠΎΠ²;
- ΠΠΈΠ½ΠΈΠΌΠ°Π»ΡΠ½ΠΎΠ΅ Π½Π΅Π±Π»Π°Π³ΠΎΠΏΡΠΈΡΡΠ½ΠΎΠ΅ Π²ΠΎΠ·Π΄Π΅ΠΉΡΡΠ²ΠΈΠ΅ Π½Π° ΠΎΠΊΡΡΠΆΠ°ΡΡΡΡ ΡΡΠ΅Π΄Ρ;
- ΠΡΡΠΎΠΊΠΎΠ΅ Π·Π½Π°ΡΠ΅Π½ΠΈΠ΅ ΡΠ½Π΅ΡΠ³ΠΎΡΠ±Π΅ΡΠ΅ΠΆΠ΅Π½ΠΈΡ;
- ΠΠ»Π°Π³ΠΎΠ΄Π΅ΡΠ΅Π»ΡΠ½ΡΠΉ ΠΌΠΈΠΊΡΠΎΠΊΠ»ΠΈΠΌΠ°Ρ Π²Π½ΡΡΡΠΈ.
Π’Π°ΠΊΠΈΠΌ ΠΏΡΠΈΠ½ΡΠΈΠΏΠ°ΠΌ Π² ΠΏΠΎΠ»Π½ΠΎΠΉ ΠΌΠ΅ΡΠ΅ ΡΠ»Π΅Π΄ΡΠ΅Ρ Β«ΠΠ°ΡΠΊΠ°Ρ Π½Π° Π²Π΅ΠΊΠ°Β», ΡΠ°ΠΊ ΠΊΠ°ΠΊ Π·Π°Π±ΠΎΡΠΈΡΡΡ ΠΎ ΠΊΠ°ΠΆΠ΄ΠΎΠΌ ΡΠ²ΠΎΠ΅ΠΌ ΠΊΠ»ΠΈΠ΅Π½ΡΠ΅, Π° ΡΠ°ΠΊΠΆΠ΅ ΠΎΠΊΡΡΠΆΠ°ΡΡΠ΅ΠΉ ΡΡΠ΅Π΄Π΅. ΠΠ°ΡΠΈ Π½ΠΎΠ²ΡΠ΅ ΡΠ΅Ρ Π½ΠΎΠ»ΠΎΠ³ΠΈΠΈ ΠΏΠΎΠ·Π²ΠΎΠ»ΡΡΡ Π²ΠΎΠΏΠ»ΠΎΡΠ°ΡΡ Π·Π°ΡΠ²Π»Π΅Π½Π½ΡΠ΅ Π·Π°Π΄Π°ΡΠΈ Π²ΠΎ Π²ΡΠ΅Ρ Π½Π°ΠΏΡΠ°Π²Π»Π΅Π½ΠΈΡΡ .
ΠΠ΄Π½Π°ΠΊΠΎ ΡΠΎ, ΡΡΠΎ ΡΠΎΠΎΡΡΠΆΠ΅Π½ΠΈΠ΅ ΠΏΡΠΎΠΈΡΡ ΠΎΠ΄ΠΈΡ Π΄ΠΎΠ²ΠΎΠ»ΡΠ½ΠΎ ΠΏΡΠΎΡΡΠΎ Π½Π΅Π»ΡΠ·Ρ Π·Π°Π±ΡΠ²Π°ΡΡ, ΡΡΠΎ ΠΎΠ½ΠΎ ΡΡΠ΅Π±ΡΠ΅Ρ Π°ΠΊΠΊΡΡΠ°ΡΠ½ΠΎΠ³ΠΎ ΠΈ ΠΎΡΠ²Π΅ΡΡΡΠ²Π΅Π½Π½ΠΎΠ³ΠΎ Π²ΡΠΏΠΎΠ»Π½Π΅Π½ΠΈΡ Π²ΡΠ΅Ρ ΡΠ°Π±ΠΎΡ. ΠΡΠΎ Π±ΡΠ΄Π΅Ρ ΡΠΏΠΎΡΠΎΠ±ΡΡΠ²ΠΎΠ²Π°ΡΡ ΠΏΡΠΎΠ΄Π»Π΅Π½ΠΈΡ ΡΡΠΎΠΊΠ° ΡΠ»ΡΠΆΠ±Ρ ΠΈ ΠΏΠΎΠ·Π²ΠΎΠ»ΠΈΡ ΠΈΠ·Π±Π΅ΠΆΠ°ΡΡ ΠΏΠΎΡΡΡΠΎΠΉΠΊΠΈ Β«Ρ ΠΎΠ»ΠΎΠ΄Π½ΠΎΠ³ΠΎΒ» Π΄ΠΎΠΌΠ°.
ΠΠΎΡΡΠΎΠΌΡ Π½Π°ΡΠ° ΡΠΈΡΠΌΠ° ΡΠ΅ΠΊΠΎΠΌΠ΅Π½Π΄ΡΠ΅Ρ Π²ΡΠ±ΡΠ°ΡΡ ΡΠΈΠΏΠΎΠ²ΠΎΠΉ ΠΏΠ»Π°Π½, ΠΊΠΎΡΠΎΡΡΠΉ ΠΌΠΎΠΆΠ½ΠΎ Π°Π΄Π°ΠΏΡΠΈΡΠΎΠ²Π°ΡΡ ΠΏΠΎΠ΄ ΡΠ²ΠΎΠΈ Π½ΡΠΆΠ΄Ρ. ΠΠ°ΡΡΡΠΎΠΉΡΠΈΠΊ ΠΏΡΠ΅Π΄Π»Π°Π³Π°Π΅Ρ Π½Π΅Π±ΠΎΠ»ΡΡΠΈΠ΅ ΡΠ°ΡΡΠ½ΡΠ΅ Π΄ΠΎΠΌΠ° ΡΠ°Π·Π»ΠΈΡΠ½ΠΎΠ³ΠΎ ΡΠΈΠΏΠ°.
ΠΡΠΎΠ΅ΠΊΡΡ ΠΊΠ°ΡΠΊΠ°ΡΠ½ΡΡ Π΄ΠΎΠΌΠΎΠ²
Β«ΠΠ°ΡΠΊΠ°Ρ Π½Π° Π²Π΅ΠΊΠ°Β» ΠΏΡΠ΅Π΄ΠΎΡΡΠ°Π²Π»ΡΠ΅Ρ ΡΠ΄Π΅Π»Π°ΡΡ Π²ΡΠ±ΠΎΡ ΠΏΡΠΎΠ΅ΠΊΡΠ° Π½Π΅Π±ΠΎΠ»ΡΡΠΎΠ³ΠΎ ΠΊΠ°ΡΠΊΠ°ΡΠ½ΠΎΠ³ΠΎ Π΄ΠΎΠΌΠ° Π½Π° ΠΎΡΠΈΡΠΈΠ°Π»ΡΠ½ΠΎΠΌ ΡΠ°ΠΉΡΠ΅ karkas-na-veka.ru. ΠΠ°ΡΡΡΠΎΠΉΡΠΈΠΊ ΡΠ΅ΠΊΠΎΠΌΠ΅Π½Π΄ΡΠ΅Ρ ΠΎΠ·Π½Π°ΠΊΠΎΠΌΠΈΡΡΡΡ Ρ ΡΠ°Π·Π»ΠΈΡΠ½ΡΠΌΠΈ Π²Π°ΡΠΈΠ°Π½ΡΠ°ΠΌΠΈ Π΄ΠΎΠΌΠΎΠ², ΠΏΠΎΡΠΌΠΎΡΡΠ΅ΡΡ ΡΠΎΡΠΎΠ³ΡΠ°ΡΠΈΠΈ ΠΈ ΡΠ΅Π½Ρ Π½Π° Π½ΠΈΡ . ΠΠΎΠΌΠ° ΡΠ°Π·Π»ΠΈΡΠ½Ρ ΠΏΠΎ ΠΏΠ»ΠΎΡΠ°Π΄ΠΈ, ΡΡΠ°ΠΆΠ½ΠΎΡΡΠΈ ΠΈ ΠΎΠ±ΠΈΠ»ΠΈΠ΅ΠΌ Π΄ΡΡΠ³ΠΈΡ Π΄ΠΎΠΏΠΎΠ»Π½ΠΈΡΠ΅Π»ΡΠ½ΡΡ ΠΎΠΏΡΠΈΠΉ.
Π‘ΠΎΠΎΡΡΠΆΠ΅Π½ΠΈΠ΅ Π½Π΅Π±ΠΎΠ»ΡΡΠΈΡ ΠΊΠ°ΡΠΊΠ°ΡΠ½ΡΡ Π΄ΠΎΠΌΠΎΠ² ΠΏΠΎΠΏΡΠ»ΡΡΠ½ΠΎ Π² ΡΡΡΠ°Π½Π°Ρ Ρ ΡΠΌΠ΅ΡΠ΅Π½Π½ΡΠΌ ΠΊΠ»ΠΈΠΌΠ°ΡΠΎΠΌ, ΠΈ ΠΎΡΠ½ΠΎΠ²Π°Π½ΠΎ Π½Π° ΠΏΡΠΈΠΌΠ΅Π½Π΅Π½ΠΈΠΈ ΠΏΡΠΈΡΠΎΠ΄Π½ΡΡ ΠΌΠ°ΡΠ΅ΡΠΈΠ°Π»ΠΎΠ² ΠΈ ΡΠΎΠ²ΡΠ΅ΠΌΠ΅Π½Π½ΠΎΠ³ΠΎ ΠΎΠ±ΠΎΡΡΠ΄ΠΎΠ²Π°Π½ΠΈΡ.
ΠΠΎΡΡΡΠΎΠΉΠΊΠ° Π΄ΠΎΠΌΠΎΠ² Π±Π°Π·ΠΈΡΡΠ΅ΡΡΡ Π½Π° ΠΊΠ°ΡΠΊΠ°ΡΠ½ΠΎΠΉ ΡΠ΅Ρ Π½ΠΎΠ»ΠΎΠ³ΠΈΠΈ. ΠΠ°ΡΠΊΠ°Ρ ΠΏΡΠ΅Π΄ΡΡΠ°Π²Π»ΡΠ΅Ρ ΡΠΎΠ±ΠΎΠΉ ΠΆΠ΅ΡΡΠΊΡΡ ΠΈ ΠΏΡΠΎΡΠ½ΡΡ ΠΊΠΎΠ½ΡΡΡΡΠΊΡΠΈΡ. Π‘Π°ΠΌΠΈ ΠΊΠΎΠ½ΡΡΡΡΠΊΡΠΈΠΈ ΠΈΡΠΏΠΎΠ»ΡΠ·ΡΡΡ ΡΠΆΠ΅ Π² Π³ΠΎΡΠΎΠ²ΠΎΠΌ Π²ΠΈΠ΄Π΅, Π½ΠΎ ΠΈΠ½ΠΎΠ³Π΄Π° ΠΌΠΎΠ³ΡΡ ΠΌΠΎΠ½ΡΠΈΡΠΎΠ²Π°ΡΡΡΡ ΠΏΡΡΠΌΠΎ Π½Π° ΡΡΡΠΎΠΉΠΏΠ»ΠΎΡΠ°Π΄ΠΊΠ΅. ΠΡΠ΅ΠΈΠΌΡΡΠ΅ΡΡΠ²ΠΎ ΠΊΠ°ΡΠΊΠ°ΡΠ° Π² ΡΠΎΠΌ, ΡΡΠΎ ΠΎΠ½ Π΄Π΅Π»Π°Π΅Ρ ΡΡΠ΅Π½Ρ Π΄ΠΎΠ²ΠΎΠ»ΡΠ½ΠΎ ΠΏΡΠΎΡΠ½ΡΠΌΠΈ ΠΈ ΠΏΠΎΠ·Π²ΠΎΠ»ΡΠ΅Ρ Π±Π΅Π· ΠΎΡΠΎΠ±ΡΡ ΡΡΠΈΠ»ΠΈΠΉ ΡΡΡΠ°Π½Π°Π²Π»ΠΈΠ²Π°ΡΡ Π΄Π²Π΅ΡΠΈ ΠΈ ΠΎΠΊΠ½Π°.
ΠΠ° ΠΏΠ΅ΡΠ²ΠΎΠ½Π°ΡΠ°Π»ΡΠ½ΠΎΠΌ ΡΡΠ°ΠΏΠ΅ ΡΠ°Π·ΡΠ°Π±ΠΎΡΠΊΠΈ ΡΡ Π΅ΠΌΡ ΠΎΠ³ΡΠΎΠΌΠ½ΠΎΠ΅ Π·Π½Π°ΡΠ΅Π½ΠΈΠ΅ ΡΠ΄Π΅Π»ΡΠ΅ΡΡΡ ΡΡΠ½Π΄Π°ΠΌΠ΅Π½ΡΡ. ΠΡΠΎΠΈΠ·Π²ΠΎΠ΄ΠΈΡΡΡ Π΅Π³ΠΎ ΡΠ°ΡΡΠ΅Ρ, Π² ΡΠ²ΠΎΡ ΠΎΡΠ΅ΡΠ΅Π΄Ρ ΠΏΡΠΈΠ½ΠΈΠΌΠ°Π΅ΡΡΡ Π²ΠΎ Π²Π½ΠΈΠΌΠ°Π½ΠΈΠ΅ Π³Π΅ΠΎΠ³ΡΠ°ΡΠΈΡΠ΅ΡΠΊΠ°Ρ ΠΌΠ΅ΡΡΠ½ΠΎΡΡΡ, ΡΠΈΠΏ Π³ΡΡΠ½ΡΠ° ΠΈ Π³Π»ΡΠ±ΠΈΠ½Π° Π³ΡΡΠ½ΡΠΎΠ²ΡΡ Π²ΠΎΠ΄. ΠΠ°ΠΊΠ»Π°Π΄ΡΠ²Π°Π½ΠΈΠ΅ ΡΠ°Π·Π½ΡΡ ΠΊΠΎΠ½ΡΡΡΡΠΊΡΠΈΠΉ ΡΡΠ½Π΄Π°ΠΌΠ΅Π½ΡΠ° Π·Π°Π²ΠΈΡΠΈΡ ΠΎΡ ΡΠΈΠΏΠ° ΡΡΡΠΎΠ΅Π½ΠΈΠΉ, Π° Π²Π΄ΠΎΠ±Π°Π²ΠΎΠΊ ΠΏΡΠΎΠΈΠ·Π²ΠΎΠ΄ΠΈΡΡΡ Ρ Π½Π°ΠΈΠ±ΠΎΠ»ΡΡΠ΅ΠΉ ΠΏΡΠΎΡΠ½ΠΎΡΡΡΡ ΠΈ Π΄ΠΎΠ»Π³ΠΎΠ²Π΅ΡΠ½ΠΎΡΡΡΡ.
Π ΡΠ²ΡΠ·ΠΈ Ρ ΡΠ΅ΠΌ, ΡΡΠΎ Π±ΠΎΠ»ΡΡΠΈΠ½ΡΡΠ²ΠΎ Π΄ΠΎΠΌΠΎΠ² ΡΡΡΠΎΡΡΡΡ Π½Π° Π½Π΅ΡΠΎΠ²Π½ΠΎΠΉ ΠΏΠΎΠ²Π΅ΡΡ Π½ΠΎΡΡΠΈ, ΡΠΎ ΠΊΠΎΠΌΠΏΠ°Π½ΠΈΡ ΠΈΡΠΏΠΎΠ»ΡΠ·ΡΠ΅Ρ ΠΎΡΠ½ΠΎΡΠΈΡΠ΅Π»ΡΠ½ΠΎ Π½Π΅Π΄ΠΎΡΠΎΠ³ΠΎΠΉ ΡΡΠΎΠ»Π±ΡΠ°ΡΡΠΉ ΡΡΠ½Π΄Π°ΠΌΠ΅Π½Ρ.
ΠΡΠΎΠ³
ΠΠ΅Π±ΠΎΠ»ΡΡΠΈΠ΅ ΠΊΠ°ΡΠΊΠ°ΡΠ½ΡΠ΅ Π΄ΠΎΠΌΠ° Π½Π΅ΡΠ΅Π΄ΠΊΠΎ ΡΡΠ°Π²Π½ΠΈΠ²Π°ΡΡ Ρ ΠΎΠ±ΡΡΠ½ΡΠΌΠΈ ΡΡΠ°Π΄ΠΈΡΠΈΠΎΠ½Π½ΡΠΌΠΈ Π΄Π΅ΡΠ΅Π²ΡΠ½Π½ΡΠΌΠΈ ΡΠΎΠΎΡΡΠΆΠ΅Π½ΠΈΡΠΌΠΈ. ΠΠ΄Π½Π°ΠΊΠΎ ΠΈΡ ΠΎΡΠ½ΠΎΠ²Π½ΡΠΌ Π΄ΠΎΡΡΠΎΠΈΠ½ΡΡΠ²ΠΎΠΌ ΡΠ²Π»ΡΠ΅ΡΡΡ ΡΠΊΠΎΡΠΎΡΡΡ ΡΠ±ΠΎΡΠΊΠΈ ΠΈ ΠΎΡΠ½ΠΎΡΠΈΡΠ΅Π»ΡΠ½ΠΎ ΠΏΡΠΎΡΡΠ°Ρ ΡΠ΅Ρ Π½ΠΎΠ»ΠΎΠ³ΠΈΡ ΡΡΡΠΎΠΈΡΠ΅Π»ΡΡΡΠ²Π°. Π’Π°ΠΊΠΆΠ΅ Π½Π΅ΠΌΠ°Π»ΠΎΠ²Π°ΠΆΠ½ΡΡ ΡΠΎΠ»Ρ ΠΈΠ³ΡΠ°ΡΡ Π½Π°ΡΡΡΠ°Π»ΡΠ½ΡΠ΅ ΡΡΡΠΎΠΉΠΌΠ°ΡΠ΅ΡΠΈΠ°Π»Ρ, ΠΊΠΎΡΠΎΡΡΠ΅ ΠΏΠΎΠ·Π²ΠΎΠ»ΡΡΡ ΠΎΡΡΡΠ°ΡΡ Π±Π»Π°Π³ΠΎΠΏΡΠΈΡΡΠ½ΡΡ Π°ΡΠΌΠΎΡΡΠ΅ΡΡ ΠΆΠΈΠ²ΠΎΠ³ΠΎ.
ΠΠ΅Π·Π²ΡΠ΅Π΄Π½ΠΎΠ΅ Π·Π°ΡΡΡΠ°ΠΈΠ²Π°Π½ΠΈΠ΅ Π΄Π»Ρ ΠΎΠΊΡΡΠΆΠ°ΡΡΠ΅ΠΉ ΡΡΠ΅Π΄Ρ β ΡΡΠΎ Π²Π΅ΡΠΎΠΌΠΎΠ΅ ΠΏΡΠ΅ΠΈΠΌΡΡΠ΅ΡΡΠ²ΠΎ ΠΏΡΠΈ Π²ΠΎΠ·Π²Π΅Π΄Π΅Π½ΠΈΠΈ Π΄ΠΎΠΌΠ°, ΡΠ°ΠΊ ΠΊΠ°ΠΊ ΠΎΡ Π²Π°ΡΡΠ²Π°ΡΡΠ°Ρ Π½Π°Ρ ΠΏΡΠΈΡΠΎΠ΄Π° ΠΏΡΠ΅Π΄ΠΎΡΡΠ°Π²Π»ΡΠ΅Ρ Π½Π°ΠΌ ΡΠ²Π΅ΠΆΠΈΠΉ Π²ΠΎΠ·Π΄ΡΡ ΠΈ Π½Π°ΡΠ° ΠΊΠΎΠΌΠΏΠ°Π½ΠΈΡ Π½Π΅ ΠΆΠ΅Π»Π°Π΅Ρ ΡΡΡΠ³ΡΠ±Π»ΡΡΡ ΡΠΊΠΎΠ»ΠΎΠ³ΠΈΡ.
ΠΡΠ΄ΠΈ Ρ ΠΊΠ°ΠΆΠ΄ΡΠΌ Π³ΠΎΠ΄ΠΎΠΌ Π²ΡΠ΅ ΡΠ°ΡΠ΅ ΠΎΡΠ΄Π°ΡΡ ΠΏΡΠ΅Π΄ΠΏΠΎΡΡΠ΅Π½ΠΈΡ Π½Π΅Π±ΠΎΠ»ΡΡΠΈΠΌ ΠΊΠ°ΡΠΊΠ°ΡΠ½ΡΠΌ Π΄ΠΎΠΌΠ°ΠΌ Π² ΡΠ²ΡΠ·ΠΈ Ρ ΠΈΡ ΡΠ½Π΅ΡΠ³ΠΎΡΠ±Π΅ΡΠ΅ΠΆΠ΅Π½ΠΈΠ΅ΠΌ ΠΈ ΠΌΠ°Π»ΡΠΌΠΈ Π·Π°ΡΡΠ°ΡΠ°ΠΌΠΈ Π½Π° ΠΆΠΈΠ»ΡΠ΅.
ΠΡΠ΄Π°Π²Π°Ρ ΠΏΡΠ΅Π΄ΠΏΠΎΡΡΠ΅Π½ΠΈΠ΅ Π½Π°ΡΠ΅ΠΉ ΠΊΠΎΠΌΠΏΠ°Π½ΠΈΠΈ, ΠΡ ΡΡΠΊΠΎΠ½ΠΎΠΌΠΈΡΠ΅ Π΄Π΅Π½ΡΠ³ΠΈ ΠΈ ΠΏΠΎΠ»ΡΡΠΈΡΠ΅ ΠΊΠ°ΡΠ΅ΡΡΠ²Π΅Π½Π½ΠΎΠ΅ ΠΏΠΎΡΡΡΠΎΠ΅Π½ΠΈΠ΅ Π΄ΠΎΠΌΠ°. ΠΡ ΡΠΌΠΎΠΆΠ΅ΠΌ ΠΏΠΎΡΡΡΠΎΠΈΡΡ, Π° ΠΡ — Π·Π°ΡΠ΅Π»ΠΈΡΡΡΡ Π² ΡΠ΅ΡΠ΅Π½ΠΈΠ΅ ΠΎΠ΄Π½ΠΎΠ³ΠΎ ΡΠ΅Π·ΠΎΠ½Π°!
ΠΠ°ΡΠΊΠ°ΡΠ½ΡΠ΅ ΠΌΠΈΠ½ΠΈ Π΄ΠΎΠΌΠ° | ΠΡΠΎΠ΅ΠΊΡΡ ΠΊΠ°ΡΠΊΠ°ΡΠ½ΡΡ ΠΌΠΈΠ½ΠΈ Π΄ΠΎΠΌΠΎΠ²
ΠΡΠ»ΠΈΡΠΈΡΠ΅Π»ΡΠ½ΠΎΠΉ ΠΎΡΠΎΠ±Π΅Π½Π½ΠΎΡΡΡΡ ΠΊΠ°ΡΠΊΠ°ΡΠ½ΠΎΠ³ΠΎ ΡΡΡΠΎΠΈΡΠ΅Π»ΡΡΡΠ²Π° ΡΠ²Π»ΡΠ΅ΡΡΡ Π½Π΅ ΡΠΎΠ»ΡΠΊΠΎ ΡΠΊΠΎΡΠΎΡΡΡΒ Π²ΠΎΠ·Π²Π΅Π΄Π΅Π½ΠΈΡ ΠΆΠΈΠ»ΡΡ, Π½ΠΎ ΠΈ Π²ΠΎΠ·ΠΌΠΎΠΆΠ½ΠΎΡΡΡ ΡΡΡΠΎΠΈΡΡ ΠΆΠΈΠ»ΡΠ΅ Π΄ΠΎΠΌΠ° Π»ΡΠ±ΠΎΠΉ ΠΏΠ»ΠΎΡΠ°Π΄ΠΈ ΠΈ ΠΏΠ»Π°Π½ΠΈΡΠΎΠ²ΠΊΠΈ. ΠΠΎΠΌΠΏΠ°Π½ΠΈΡ Β«ΠΡΠ΄Π΅ΡΠ½ΠΈΠΊ77Β» ΡΠ°ΡΠΏΠΎΠ»Π°Π³Π°Π΅Ρ ΡΠ΅Ρ Π½ΠΈΡΠ΅ΡΠΊΠΎΠΉ Π²ΠΎΠ·ΠΌΠΎΠΆΠ½ΠΎΡΡΡΡ ΠΈΠ·Π³ΠΎΡΠ°Π²Π»ΠΈΠ²Π°ΡΡ ΡΠ±ΠΎΡΠ½ΡΠ΅ ΡΠ»Π΅ΠΌΠ΅Π½ΡΡ ΠΊΠΎΠ½ΡΡΡΡΠΊΡΠΈΠΈ, ΠΎΡΡΡΠ΅ΡΡΠ²Π»ΡΡΡ ΡΡΡΠΎΠΈΡΠ΅Π»ΡΡΡΠ²ΠΎ ΡΠ°ΠΊΠΈΡ ΠΌΠΈΠ½ΠΈ ΡΡΡΠΎΠ΅Π½ΠΈΠΉ, ΡΡΠΈΡΡΠ²Π°Ρ ΡΠΈΠ½Π°Π½ΡΠΎΠ²ΡΠ΅ Π²ΠΎΠ·ΠΌΠΎΠΆΠ½ΠΎΡΡΠΈ Π·Π°ΠΊΠ°Π·ΡΠΈΠΊΠ° ΠΈ ΡΡΠ΅ΡΡ ΡΠΊΡΠΏΠ»ΡΠ°ΡΠ°ΡΠΈΠΈ ΠΏΠΎΠ΄ΠΎΠ±Π½ΡΡ ΡΡΡΠΎΠ΅Π½ΠΈΠΉ. Π ΡΠ°ΡΠΏΠΎΡΡΠΆΠ΅Π½ΠΈΠΈ Π·Π°ΠΊΠ°Π·ΡΠΈΠΊΠΎΠ² ΠΏΡΠ΅Π΄Π»Π°Π³Π°Π΅ΡΡΡ ΠΌΠ½ΠΎΠ³ΠΎΡΠΈΡΠ»Π΅Π½Π½ΡΠ΅ ΠΏΡΠΎΠ΅ΠΊΡΡ ΠΌΠ°Π»Π΅Π½ΡΠΊΠΈΡ ΠΊΠ°ΡΠΊΠ°ΡΠ½ΡΡ Π΄ΠΎΠΌΠΎΠ², ΠΏΡΠΎΡΡΡΡ ΠΈ ΡΠ΄ΠΎΠ±Π½ΡΡ Π² ΡΠΊΡΠΏΠ»ΡΠ°ΡΠ°ΡΠΈΠΈ. Π’Π°ΠΊΠΈΠ΅ ΠΆΠΈΠ»ΠΈΡΠ° ΠΎΡΠ΅Π½Ρ ΡΠ΄ΠΎΠ±Π½Ρ ΠΊΠ°ΠΊ Π΄Π°ΡΠ½ΡΠΉ Π²Π°ΡΠΈΠ°Π½Ρ, ΠΎΡΠ»ΠΈΡΠ°ΡΡΡ ΡΠ²ΠΎΠ΅ΠΉ ΠΊΠΎΠΌΠΏΠ°ΠΊΡΠ½ΠΎΡΡΡΡ, ΠΎΡΠΈΠ³ΠΈΠ½Π°Π»ΡΠ½ΠΎΡΡΡΡ ΡΠ΅Ρ Π½ΠΈΡΠ΅ΡΠΊΠΈΡ ΡΠ΅ΡΠ΅Π½ΠΈΠΉ ΠΈ ΡΡΠΎΠ²Π½Π΅ΠΌ ΠΊΠΎΠΌΡΠΎΡΡΠ°.
ΠΠ°Π»Π΅Π½ΡΠΊΠΈΠ΅ ΠΊΠ°ΡΠΊΠ°ΡΠ½ΡΠ΅ Π΄ΠΎΠΌΠ°. ΠΡΠ΅ΠΈΠΌΡΡΠ΅ΡΡΠ²Π° ΠΈ ΠΎΡΠΎΠ±Π΅Π½Π½ΠΎΡΡΠΈ ΡΠ°ΠΊΠΎΠΉ ΠΏΠΎΡΡΡΠΎΠΉΠΊΠΈ
Π Π½Π°ΡΡΠΎΡΡΠ΅Π΅ Π²ΡΠ΅ΠΌΡ ΠΈΠΌΠ΅Π΅ΡΡΡ ΠΌΠ°ΡΡΠ° Π²ΠΎΠ·ΠΌΠΎΠΆΠ½ΠΎΡΡΠ΅ΠΉ Π΄Π»Ρ Π±ΡΡΡΡΠΎΠ³ΠΎ ΡΠ΅ΡΠ΅Π½ΠΈΡ ΠΏΡΠΎΠ±Π»Π΅ΠΌ ΠΈ Π·Π°Π΄Π°Ρ, ΡΠ²ΡΠ·Π°Π½Π½ΡΡ Ρ ΠΌΠ°Π»ΠΎΡΡΠ°ΠΆΠ½ΡΠΌ ΡΠ°ΡΡΠ½ΡΠΌ ΡΡΡΠΎΠΈΡΠ΅Π»ΡΡΡΠ²ΠΎΠΌ. ΠΠ°Π»ΠΈΡΠΈΠ΅ ΡΠΎΠ²ΡΠ΅ΠΌΠ΅Π½Π½ΡΡ ΠΌΠ°ΡΠ΅ΡΠΈΠ°Π»ΠΎΠ², Π½ΠΎΠ²ΡΡ ΡΠ΅Ρ Π½ΠΎΠ»ΠΎΠ³ΠΈΠΉ ΠΏΠΎΠ·Π²ΠΎΠ»ΡΡΡ Π±ΡΡΡΡΠΎ ΠΈΠ·Π³ΠΎΡΠΎΠ²ΠΈΡΡ ΠΈ ΠΏΠΎΡΡΡΠΎΠΈΡΡ ΠΌΠΈΠ½ΠΈ Π΄ΠΎΠΌ ΠΏΠΎ ΠΊΠ°ΡΠΊΠ°ΡΠ½ΠΎΠΉ ΡΠ΅Ρ Π½ΠΎΠ»ΠΎΠ³ΠΈΠΈ. Π ΠΎΡΠ»ΠΈΡΠΈΠ΅ ΠΎΡ ΠΆΠΈΠ»ΡΡ Π΄ΠΎΠΌΠΎΠ² Π±ΠΎΠ»ΡΡΠΎΠΉ ΠΏΠ»ΠΎΡΠ°Π΄ΠΈ ΠΈ ΡΠΎ ΡΠ»ΠΎΠΆΠ½ΠΎΠΉ ΠΏΠ»Π°Π½ΠΈΡΠΎΠ²ΠΊΠΎΠΉ Π²Π½ΡΡΡΠ΅Π½Π½ΠΈΡ ΠΏΠΎΠΌΠ΅ΡΠ΅Π½ΠΈΠΉ, ΡΠ°ΠΊΠΈΠ΅ Π΄ΠΎΠΌΠ° ΠΏΡΠΎΡΡΡ, ΠΊΠ°ΠΊ Π΄Π»Ρ ΡΠ΅ΠΌΠΏΠΎΠ² ΡΡΡΠΎΠΈΡΠ΅Π»ΡΡΡΠ²Π°, ΡΠ°ΠΊ ΠΈ Π΄Π»Ρ ΠΏΠΎΡΠ»Π΅Π΄ΡΡΡΠ΅ΠΉ ΡΠΊΡΠΏΠ»ΡΠ°ΡΠ°ΡΠΈΠΈ. ΠΠ°Π»Π΅Π½ΡΠΊΠΈΠΉ ΠΊΠ°ΡΠΊΠ°ΡΠ½ΡΠΉ Π΄ΠΎΠΌ, ΠΏΡΠΎΠ΅ΠΊΡΡ ΠΊΠΎΡΠΎΡΠΎΠ³ΠΎ ΠΌΠΎΠΆΠ½ΠΎ ΡΠ²ΠΈΠ΄Π΅ΡΡ Π½Π° ΡΠ°ΠΉΡΠ΅ ΠΊΠΎΠΌΠΏΠ°Π½ΠΈΠΈ Β«ΠΡΠ΄Π΅ΡΠ½ΠΈΠΊ77Β» β ΡΡΠΎ ΡΠΊΠΎΠ½ΠΎΠΌΠΈΡΠ΅ΡΠΊΠΈ Π²ΡΠ³ΠΎΠ΄Π½ΠΎΠ΅ ΠΈ Π·Π°ΠΌΠ°Π½ΡΠΈΠ²ΠΎΠ΅ ΠΏΡΠ΅Π΄Π»ΠΎΠΆΠ΅Π½ΠΈΠ΅. Π’Π°ΠΊΠ°Ρ ΡΠ΅Ρ Π½ΠΎΠ»ΠΎΠ³ΠΈΡ, ΠΈΡΠΏΠΎΠ»ΡΠ·ΡΠ΅ΠΌΠ°Ρ ΠΏΡΠΈ ΡΡΡΠΎΠΈΡΠ΅Π»ΡΡΡΠ²Π΅ ΠΌΠΈΠ½ΠΈ Π΄ΠΎΠΌΠΎΠ² ΡΠ΄ΠΎΠ±Π½Π° Π΄Π»Ρ ΡΠΎΠΉ ΠΊΠ°ΡΠ΅Π³ΠΎΡΠΈΠΈΒ ΠΊΠ»ΠΈΠ΅Π½ΡΠΎΠ², ΠΊΠΎΡΠΎΡΠ°Ρ ΡΠ΅ΡΠΈΠ»Π° ΠΎΠ±ΠΎΡΡΠ΄ΠΎΠ²Π°ΡΡ ΡΠ²ΠΎΠΉ Π΄Π°ΡΠ½ΡΠΉ ΡΡΠ°ΡΡΠΎΠΊ, Π±ΡΡΡΡΠΎ ΡΠ΅ΡΠΈΡΡ ΡΠ²ΠΎΠΉ ΠΆΠΈΠ»ΠΈΡΠ½ΡΠΉ Π²ΠΎΠΏΡΠΎΡ.
ΠΡΠ΅ΠΈΠΌΡΡΠ΅ΡΡΠ²Π° ΠΌΠΈΠ½ΠΈ Π΄ΠΎΠΌΠΎΠ² ΡΠ»Π΅Π΄ΡΡΡΠΈΠ΅:
- ΡΡΠ°Π²Π½ΠΈΡΠ΅Π»ΡΠ½ΠΎ Π½Π΅Π±ΠΎΠ»ΡΡΠ°Ρ ΡΡΠΎΠΈΠΌΠΎΡΡΡ ΠΆΠΈΠ»ΡΡ Π² ΡΡΠ°Π²Π½Π΅Π½ΠΈΠΈ Ρ ΠΊΠ°ΡΠΊΠ°ΡΠ½ΡΠΌΠΈ Π΄ΠΎΠΌΠ°ΠΌΠΈ Π±ΠΎΠ»ΡΡΠΎΠΉ ΠΏΠ»ΠΎΡΠ°Π΄ΠΈ;
- Π±ΡΡΡΡΠΎΠ΅ ΠΈΠ·Π³ΠΎΡΠΎΠ²Π»Π΅Π½ΠΈΠ΅ ΡΠ±ΠΎΡΠ½ΡΡ ΠΊΠΎΠ½ΡΡΡΡΠΊΡΠΈΠΉ, Π΄ΠΎΡΡΠ°Π²ΠΊΠ° Π½Π° ΠΎΠ±ΡΠ΅ΠΊΡ;
- Π²ΠΎΠ·ΠΌΠΎΠΆΠ½ΠΎΡΡΡ ΡΠ±ΠΎΡΠΊΠΈ ΠΆΠΈΠ»ΠΎΠ³ΠΎ ΡΡΡΠΎΠ΅Π½ΠΈΡ Π² ΡΡΠ»ΠΎΠ²ΠΈΡΡ ΡΠ΅ΡΠ½ΠΎΠΉ Π·Π°ΡΡΡΠΎΠΉΠΊΠΈ;
- Π²ΡΡΠΎΠΊΠΈΠ΅ ΡΠ΅ΠΌΠΏΡ ΡΠ±ΠΎΡΠΊΠΈ ΠΆΠΈΠ»ΠΎΠ³ΠΎ Π΄ΠΎΠΌΠ°, ΠΎΡΠ΄Π΅Π»ΠΊΠ° ΠΈ ΠΏΠΎΠ΄ΠΊΠ»ΡΡΠ΅Π½ΠΈΠ΅ ΠΊ ΠΊΠΎΠΌΠΌΡΠ½ΠΈΠΊΠ°ΡΠΈΡΠΌ.
ΠΡΠΎΠ΅ΠΊΡΡ ΠΊΠ°ΡΠΊΠ°ΡΠ½ΡΡ ΠΌΠΈΠ½ΠΈ Π΄ΠΎΠΌΠΎΠ², Π½Π΅ΡΠΌΠΎΡΡΡ Π½Π° ΠΏΡΠΎΡΡΠΎΡΡ ΡΠ΅Ρ Π½ΠΈΡΠ΅ΡΠΊΠΈΡ ΡΠ΅ΡΠ΅Π½ΠΈΠΉ, ΠΎΡΠ»ΠΈΡΠ°ΡΡΡΡ ΠΎΡΠΈΠ³ΠΈΠ½Π°Π»ΡΠ½ΠΎΡΡΡΡ ΠΈ ΡΠ°ΡΠΈΠΎΠ½Π°Π»ΡΠ½ΠΎΡΡΡΡ. ΠΠΎΠΌΠ° Π½Π΅ ΡΡΠ΅Π±ΡΡΡ ΠΏΠΎΠ΄Π³ΠΎΡΠΎΠ²ΠΊΠΈ ΡΡΠ½Π΄Π°ΠΌΠ΅Π½ΡΠ° Π½Π° ΡΡΠ°ΡΡΠΊΠ΅. ΠΡΠ½ΠΎΠ²Π½ΡΠ΅ ΠΊΠΎΠ½ΡΡΡΡΠΊΡΠΈΠ²Π½ΡΠ΅ ΡΠ»Π΅ΠΌΠ΅Π½ΡΡ ΠΎΠ±Π»Π°Π΄Π°ΡΡ ΠΏΡΠΎΡΠ½ΠΎΡΡΡΡ ΠΈ Π½Π°Π΄Π΅ΠΆΠ½ΠΎΡΡΡΡ. ΠΠ°ΡΠ½ΡΠΉ Π΄ΠΎΠΌ, ΠΏΠΎΡΡΡΠΎΠ΅Π½Π½ΡΠΉ ΠΏΠΎ ΠΏΠΎΠ΄ΠΎΠ±Π½ΠΎΠΉ ΡΠ΅Ρ Π½ΠΎΠ»ΠΎΠ³ΠΈΠΈ ΡΡΡΠΎΠΉΡΠΈΠ², Π° ΠΏΡΠΈ ΡΠΏΠ΅ΡΠΈΠ°Π»ΡΠ½ΠΎΠΉ ΠΎΡΠ΄Π΅Π»ΠΊΠ΅, Π²ΠΏΠΎΠ»Π½Π΅ ΠΏΡΠΈΠ³ΠΎΠ΄Π΅Π½ Π΄Π»Ρ ΠΊΡΡΠ³Π»ΠΎΠ³ΠΎΠ΄ΠΈΡΠ½ΠΎΠ³ΠΎ ΠΏΡΠΎΠΆΠΈΠ²Π°Π½ΠΈΡ. Π’Π°ΠΊΠΎΠ΅ ΡΡΡΠΎΠ΅Π½ΠΈΠ΅ ΠΌΠΎΠΆΠ½ΠΎ ΠΈΡΠΏΠΎΠ»ΡΠ·ΠΎΠ²Π°ΡΡ Π² ΠΊΠ°ΡΠ΅ΡΡΠ²Π΅ ΠΏΡΠΈΡΡΠ°Π΄Π΅Π±Π½ΠΎΠ³ΠΎ ΡΡΡΠΎΠ΅Π½ΠΈΡ. ΠΠ°ΡΠ° ΠΊΠΎΠΌΠΏΠ°Π½ΠΈΡ Π³ΠΎΡΠΎΠ²Π° ΠΏΡΠ΅Π΄Π»ΠΎΠΆΠΈΡΡ Π²Π°ΡΠΈΠ°Π½ΡΡ ΠΌΠΈΠ½ΠΈ ΡΡΡΠΎΠΈΡΠ΅Π»ΡΡΡΠ²Π° Π΄Π»Ρ Π²ΠΎΠ·Π²Π΅Π΄Π΅Π½ΠΈΡ Π½Π° ΠΏΡΠΈΡΡΠ°Π΄Π΅Π±Π½ΠΎΠΌ ΡΡΠ°ΡΡΠΊΠ΅ Π±Π°Π½ΠΈ ΠΈΠ»ΠΈ ΡΠ°ΡΠ½Ρ.
Π§ΡΠΎ ΠΌΡ ΠΏΡΠ΅Π΄Π»Π°Π³Π°Π΅ΠΌ
ΠΠΎΠΌΠΏΠ°Π½ΠΈΡ Β«ΠΡΠ΄Π΅ΡΠ½ΠΈΠΊ77Β» Π³ΠΎΡΠΎΠ²Π° ΠΏΡΠ΅Π΄Π»ΠΎΠΆΠΈΡΡ ΡΠ²ΠΎΠΈΠΌ ΠΊΠ»ΠΈΠ΅Π½ΡΠ°ΠΌ Π²ΡΠ³ΠΎΠ΄Π½ΠΎΠ΅ ΠΈ ΠΏΡΠΎΡΡΠΎΠ΅ ΡΠ΅ΡΠ΅Π½ΠΈΠ΅. ΠΡΠ»ΠΈ Π²Ρ Ρ ΠΎΡΠΈΡΠ΅ ΠΈΠΌΠ΅ΡΡ Π½Π° ΡΠ²ΠΎΠ΅ΠΌ ΡΡΠ°ΡΡΠΊΠ΅ Π² ΠΏΡΠ΅Π΄Π΄Π²Π΅ΡΠΈΠΈ Π»Π΅ΡΠ° Π³ΠΎΡΠΎΠ²ΡΠΉ Π΄Π»Ρ ΠΏΡΠΎΠΆΠΈΠ²Π°Π½ΠΈΡ Π΄Π°ΡΠ½ΡΠΉ Π΄ΠΎΠΌ, ΡΠΎ ΡΠ°ΠΊΠΎΠΉ ΠΌΠΈΠ½ΠΈ Π΄ΠΎΠΌ ΡΠ°ΠΌΡΠΉ ΡΠ΄Π°ΡΠ½ΡΠΉ ΠΈ ΡΠΊΠΎΠ½ΠΎΠΌΠΈΡΠ΅ΡΠΊΠΈ Π²ΡΠ³ΠΎΠ΄Π½ΡΠΉ Π²Π°ΡΠΈΠ°Π½Ρ. ΠΡ Ρ ΠΎΡΠΈΡΠ΅ ΠΈΠΌΠ΅ΡΡ Π½Π° ΡΠ²ΠΎΠ΅ΠΌ ΡΡΠ°ΡΡΠΊΠ΅ ΠΌΠ°Π»Π΅Π½ΡΠΊΠΈΠΉ ΠΊΠ°ΡΠΊΠ°ΡΠ½ΡΠΉ Π΄ΠΎΠΌ, ΠΏΡΠΎΠ΅ΠΊΡΡ ΡΠΆΠ΅ Π³ΠΎΡΠΎΠ²Ρ ΠΈ ΠΆΠ΄ΡΡ Π²Π°Ρ.
ΠΡ Π΄Π΅Π»Π°Π΅ΡΠ΅ Π·Π°ΠΊΠ°Π·, ΠΌΡ ΡΡΡΠΎΠΈΠΌ Π΄Π»Ρ Π²Π°Ρ ΡΠ΄ΠΎΠ±Π½ΠΎΠ΅ ΠΈ ΠΊΠΎΠΌΡΠΎΡΡΠ½ΠΎΠ΅ Π΄Π°ΡΠ½ΠΎΠ΅ ΠΆΠΈΠ»ΡΠ΅, Π±Π°Π½Ρ ΠΈΠ»ΠΈ ΡΠ°ΡΠ½Ρ, ΠΈ Π»ΡΠ±ΠΎΠ΅ Π΄ΡΡΠ³ΠΎΠ΅ ΡΡΡΠΎΠ΅Π½ΠΈΠ΅. ΠΠ°Π»Π΅Π½ΡΠΊΠΈΠ΅ ΠΊΠ°ΡΠΊΠ°ΡΠ½ΡΠ΅ Π΄ΠΎΠΌΠ° Π΄ΠΎΡΡΡΠΏΠ½Ρ ΠΏΠΎ ΡΠ΅Π½Π΅, Π½Π΅ ΠΎΡΠ»ΠΈΡΠ°ΡΡΡΡ ΠΎΡ ΠΊΠ°ΠΏΠΈΡΠ°Π»ΡΠ½ΡΡ ΠΏΠΎΡΡΡΠΎΠ΅ΠΊ ΡΡΠΎΠ²Π½Π΅ΠΌ ΠΊΠΎΠΌΡΠΎΡΡΠ° ΠΈ Π½Π°Π΄Π΅ΠΆΠ½ΠΎΡΡΠΈ. ΠΠ° ΠΏΡΠΈΠ΅ΠΌΠ»Π΅ΠΌΡΠ΅ Π΄Π΅Π½ΡΠ³ΠΈ Π²Ρ Π² ΡΠ΅ΡΠ΅Π½ΠΈΠΈ ΡΠΊΠΎΡΠΎΠ³ΠΎ Π²ΡΠ΅ΠΌΠ΅Π½ΠΈ ΠΏΠΎΠ»ΡΡΠ°Π΅ΡΠ΅ Π² ΡΠ²ΠΎΠ΅ ΡΠ°ΡΠΏΠΎΡΡΠΆΠ΅Π½ΠΈΠ΅ Π³ΠΎΡΠΎΠ²ΠΎΠ΅ ΡΡΡΠΎΠ΅Π½ΠΈΠ΅.
Π‘ΠΌΠΎΡΡΠΈΡΠ΅ ΡΠ°ΠΊΠΆΠ΅: ΠΊΠ°ΡΠΊΠ°ΡΠ½ΡΠ΅ Π΄ΠΎΠΌΠ° ΠΏΠΎΠ΄ ΠΊΠ»ΡΡ
kudesnik77.ru
ΠΠ°Π»Π΅Π½ΡΠΊΠΈΠΉ ΠΊΠ°ΡΠΊΠ°ΡΠ½ΡΠΉ Π΄ΠΎΠΌ Π΄Π»Ρ ΡΠ΅Π³ΠΎ ΠΎΠ½ Π½ΡΠΆΠ΅Π½
ΠΠ»Π°Π²Π½Π°Ρ Β» Π’Π΅ΠΊΡΡΡ Β» ΠΠ°Π»Π΅Π½ΡΠΊΠΈΠΉ ΠΊΠ°ΡΠΊΠ°ΡΠ½ΡΠΉ Π΄ΠΎΠΌΠ§Π°ΡΡΠΎ ΡΡΠ΅Π΄ΠΈ Β Π»ΡΠ΄Π΅ΠΉ Π±ΡΡΡΠ΅Ρ ΠΌΠ½Π΅Π½ΠΈΠ΅, ΡΡΠΎ ΠΊΠΎΡΡΠ΅Π΄ΠΆ ΠΈΠ»ΠΈ Π·Π°Π³ΠΎΡΠΎΠ΄Π½ΡΠΉ Π΄ΠΎΠΌ Π΄ΠΎΠ»ΠΆΠ΅Π½ Π±ΡΡΡ ΠΌΠ°ΡΡΠΈΠ²Π½ΡΠΌ ΠΈ Π±ΠΎΠ»ΡΡΠΈΠΌ. ΠΡΠΎ ΡΡΠΈΡΠ°Π΅ΡΡΡ ΠΏΠΎΠΊΠ°Π·Π°ΡΠ΅Π»Π΅ΠΌ Π΄ΠΎΡΡΠ°ΡΠΊΠ° ΠΈ ΠΎΡΠ½ΠΎΠ²Π°ΡΠ΅Π»ΡΠ½ΠΎΡΡΠΈ. ΠΠ΄Π½Π°ΠΊΠΎ ΡΡΡΠΎΠΈΡΠ΅Π»ΡΡΡΠ²ΠΎ ΡΠ°ΠΊΠΈΡ ΠΌΠΎΠ½ΡΠΌΠ΅Π½ΡΠ°Π»ΡΠ½ΡΡ ΡΡΡΠΎΠ΅Π½ΠΈΠΉ ΡΠ°ΡΡΠΎ ΡΡΠ°Π½ΠΎΠ²ΠΈΡΡΡ Π½Π΅ΠΏΠΎΡΠΈΠ»ΡΠ½ΠΎΠΉ Π·Π°Π΄Π°ΡΠ΅ΠΉ ΠΈ ΠΏΡΠΈΡ ΠΎΠ΄ΠΈΡΡΡ Π±ΡΠ°ΡΡ Π½Π΅ΠΏΠΎΠ΄ΡΠ΅ΠΌΠ½ΡΠ΅ ΠΊΡΠ΅Π΄ΠΈΡΡ.
Π‘Π΅ΠΉΡΠ°Ρ Π²ΡΠ΅ Π±ΠΎΠ»Π΅Π΅ ΠΏΠΎΠΏΡΠ»ΡΡΠ½ΡΠΌ ΡΡΠ°Π½ΠΎΠ²ΠΈΡΡΡ ΠΊΠ°ΡΠΊΠ°ΡΠ½ΠΎΠ΅ Π΄ΠΎΠΌΠΎΡΡΡΠΎΠ΅Π½ΠΈΠ΅. ΠΠ°Π»Π΅Π½ΡΠΊΠΈΠ΅ ΠΊΠ°ΡΠΊΠ°ΡΠ½ΡΠ΅ Π΄ΠΎΠΌΠ° Π·Π°Π²ΠΎΠ΅Π²ΡΠ²Π°ΡΡ Π»ΡΠ±ΠΎΠ²Ρ ΠΈ Π΄ΠΎΠ²Π΅ΡΠΈΠ΅ Ρ Π½Π°ΡΠ΅Π»Π΅Π½ΠΈΡ. Β«ΠΠ°ΡΠΊΠ°ΡΠ½ΠΈΠΊΒ» — ΡΡΠΎ ΠΎΡΠ΅Π½Ρ Π»Π΅Π³ΠΊΠΎΠ΅ ΠΈ Π±ΡΡΡΡΠΎΠ²ΠΎΠ·Π²ΠΎΠ΄ΠΈΠΌΠΎΠ΅ ΡΡΡΠΎΠ΅Π½ΠΈΠ΅, ΠΎΠ½ΠΎ ΠΏΡΠ°ΠΊΡΠΈΡΠ΅ΡΠΊΠΈΠ΅ Π½Π΅ Π΄Π°Π΅Ρ ΡΡΠ°Π΄ΠΊΠΈ, ΠΎΡΠ»ΠΈΡΠ½ΠΎ ΡΠΎΡ ΡΠ°Π½ΡΠ΅Ρ ΡΠ΅ΠΏΠ»ΠΎ. Π’Π°ΠΊΠΎΠΉ Π΄ΠΎΠΌ Π½Π΅ ΡΡΠ΅Π±ΡΠ΅Ρ Π²ΠΎΠ·Π²Π΅Π΄Π΅Π½ΠΈΠ΅ ΡΡΠΆΠ΅Π»ΠΎΠ³ΠΎ ΠΈ ΠΎΡΠ½ΠΎΠ²Π°ΡΠ΅Π»ΡΠ½ΠΎΠ³ΠΎ ΡΡΠ½Π΄Π°ΠΌΠ΅Π½ΡΠ°, ΠΌΠΎΠΆΠ½ΠΎ ΠΎΠ±ΠΎΠΉΡΠΈΡΡ ΠΎΠ±Π»Π΅Π³ΡΠ΅Π½Π½ΠΎΠΉ ΠΊΠΎΠ½ΡΡΡΡΠΊΡΠΈΠ΅ΠΉ ΠΈ Π·Π½Π°ΡΠΈΡΠ΅Π»ΡΠ½ΠΎ ΡΡΠΊΠΎΠ½ΠΎΠΌΠΈΡΡ Π½Π° ΠΌΠ°ΡΠ΅ΡΠΈΠ°Π»Π°Ρ . ΠΠ΄Π°Π½ΠΈΡ Π²ΠΎΠ·Π²ΠΎΠ΄ΡΡΡΡ Π² ΡΠΆΠ°ΡΡΠ΅ ΡΡΠΎΠΊΠΈ, ΠΈ ΠΏΠΎΠΊΡΠΏΠ°ΡΠ΅Π»Ρ Π½Π΅ ΠΏΡΠΈΠ΄Π΅ΡΡΡ Π΄Π»ΠΈΡΠ΅Π»ΡΠ½ΠΎ ΠΆΠ΄Π°ΡΡ Π΄ΠΎΠ»Π³ΠΎΠΆΠ΄Π°Π½Π½ΠΎΠ³ΠΎ Π½ΠΎΠ²ΠΎΡΠ΅Π»ΡΡ. Π¦Π΅Π½Ρ Π½Π° ΡΠΎΠΎΡΡΠΆΠ΅Π½ΠΈΠ΅ Π΄Π΅ΡΠ΅Π²ΡΠ½Π½ΡΡ ΠΈΠ»ΠΈ ΠΊΠΈΡΠΏΠΈΡΠ½ΡΡ Π΄ΠΎΠΌΠΎΠ² ΡΠ°ΡΡΡΡ, ΡΡΡΠΎΠΈΡΠ΅Π»ΡΡΡΠ²ΠΎ ΠΊΠ°ΡΠΊΠ°ΡΠ½ΡΡ Π΄ΠΎΠΌΠΎΠ² ΡΠΎΠ»ΡΠΊΠΎ Π΄Π΅ΡΠ΅Π²Π΅Π΅Ρ. ΠΠ° ΡΠ΅ΡΡΠΈΡΠΎΡΠΈΠΈ Π ΠΎΡΡΠΈΠΈ ΡΠ°ΠΊΠ°Ρ ΡΠ΅Ρ Π½ΠΎΠ»ΠΎΠ³ΠΈΡ ΡΡΠ°Π²Π½ΠΈΡΠ΅Π»ΡΠ½ΠΎ Π½Π΅Π΄Π°Π²Π½ΠΎ Π½Π°ΡΠ°Π»Π° ΠΏΠΎΠ»ΡΠ·ΠΎΠ²Π°ΡΡΡΡ ΠΏΠΎΠΏΡΠ»ΡΡΠ½ΠΎΡΡΡΡ, Ρ ΠΎΡΡ ΠΏΠΎ ΠΎΡΠ΅Π½ΠΊΠ°ΠΌ Π½Π΅ΠΊΠΎΡΠΎΡΡΡ ΠΈΡΡΠΎΡΠΈΠΊΠΎΠ² ΡΡΠΎΠΌΡ Π²ΠΈΠ΄Ρ Π΄ΠΎΠΌΠΎΡΡΡΠΎΠ΅Π½ΠΈΡ ΡΠΆΠ΅ Π±ΠΎΠ»Π΅Π΅ 4000 Π»Π΅Ρ.
ΠΡΡΠΎΡΠΈΡ ΠΊΠ°ΡΠΊΠ°ΡΠ½ΠΎΠ³ΠΎ Π΄ΠΎΠΌΠΎΡΡΡΠΎΠ΅Π½ΠΈΡ
Π’Π°ΠΊΠΎΠΉ Π²ΠΈΠ΄ ΡΡΡΠΎΠΈΡΠ΅Π»ΡΡΡΠ²Π° Π±ΡΠ» ΠΈΠ·Π²Π΅ΡΡΠ΅Π½ Ρ Π΄ΡΠ΅Π²Π½Π΅ΠΉΡΠΈΡ Π²ΡΠ΅ΠΌΠ΅Π½. ΠΠ³ΠΎ ΠΈΡΠΏΠΎΠ»ΡΠ·ΠΎΠ²Π°Π»ΠΈ ΠΏΡΠΎΡΠ²Π΅ΡΠ΅Π½Π½ΡΠ΅ Π³ΡΠ΅ΠΊΠΈ ΠΈ ΡΠΈΠΌΠ»ΡΠ½Π΅, ΡΠ°ΠΊΠΈΠ΅ ΠΏΠΎΡΡΡΠΎΠΉΠΊΠΈ Π²ΡΡΡΠ΅ΡΠ°Π»ΠΈΡΡ ΠΈ Π² ΠΠ³ΠΈΠΏΡΠ΅. ΠΠΎ Π½Π°ΡΠΈΡ Π΄Π½Π΅ΠΉ ΡΠΎΡ ΡΠ°Π½ΠΈΠ»ΡΡ ΠΏΡΠ΅ΠΊΡΠ°ΡΠ½ΡΠΉ ΠΎΠ±ΡΠ°Π·Π΅Ρ Π΄ΠΎΠΌΠ°. ΠΠ½ Π½Π°Ρ ΠΎΠ΄ΠΈΡΡΡ Π½Π° ΡΠ΅ΡΡΠΈΡΠΎΡΠΈΠΈ Π―ΠΏΠΎΠ½ΠΈΠΈ. ΠΡΠ° ΡΡΡΠ°Π½Π° ΠΈΠ·Π²Π΅ΡΡΠ½Π° ΡΠ²ΠΎΠΈΠΌΠΈ Π½Π΅ΠΏΠΎΠ΄ΡΠ°ΠΆΠ°Π΅ΠΌΡΠΌΠΈ ΠΈ ΡΠΌΠ΅Π»ΡΠΌΠΈ ΠΏΠ»ΠΎΡΠ½ΠΈΠΊΠ°ΠΌΠΈ, ΠΈΡ ΠΌΠ°ΡΡΠ΅ΡΡΡΠ²ΠΎ ΡΠ΅Π½ΠΈΠ»ΠΎΡΡ ΡΠ°ΠΊΠΆΠ΅ Π²ΡΡΠΎΠΊΠΎ, ΠΊΠ°ΠΊ ΠΈ ΠΌΠ°ΡΡΠ΅ΡΡΡΠ²ΠΎ Ρ ΡΠ΄ΠΎΠΆΠ½ΠΈΠΊΠΎΠ². ΠΡΠΎ Π±ΡΠ»ΠΈ Π½Π΅ ΠΏΡΠΎΡΡΠΎ Π΄ΠΎΠΌΠ°, Π° ΠΏΡΠΎΠΈΠ·Π²Π΅Π΄Π΅Π½ΠΈΡ ΠΈΡΠΊΡΡΡΡΠ²Π°. ΠΠ°ΠΆΠ΄Π°Ρ ΠΏΠΎΡΡΡΠΎΠΉΠΊΠ° ΠΎΠ±Π»Π°Π΄Π°Π»Π° ΡΠ½ΠΈΠΊΠ°Π»ΡΠ½ΠΎΡΡΡΡ. Π‘Π°ΠΌΡΠΌ ΠΏΠΎΠΏΡΠ»ΡΡΠ½ΡΠΌ ΠΌΠ°ΡΠ΅ΡΠΈΠ°Π»ΠΎΠΌ Π±ΡΠ» ΠΊΠ΅Π΄Ρ, ΠΈΠ·Π²Π΅ΡΡΠ½ΡΠΉ ΡΠ²ΠΎΠ΅ΠΉ ΠΏΡΠΎΡΠ½ΠΎΡΡΡΡ. Π ΠΠ²ΡΠΎΠΏΡ ΠΈΡΠΊΡΡΡΡΠ²ΠΎ Π²ΠΎΠ·Π²Π΅Π΄Π΅Π½ΠΈΠ΅ ΠΊΠ°ΡΠΊΠ°ΡΠ½ΡΡ Π΄ΠΎΠΌΠΎΠ² ΠΏΡΠΈΡΠ»ΠΎ Π² ΠΏΠΎΠ·Π΄Π½Π΅ΠΌ Π‘ΡΠ΅Π΄Π½Π΅Π²Π΅ΠΊΠΎΠ²ΡΠ΅, ΠΎΡΠΎΠ±Π΅Π½Π½ΠΎ ΠΎΠ½ΠΎ Π±ΡΠ»ΠΎ ΡΠ°Π·Π²ΠΈΡΠΎ Π² ΠΠ΅ΡΠΌΠ°Π½ΠΈΠΈ. Π’Π°ΠΊ ΠΊΠ°ΠΊ Π·Π΅ΠΌΠ»ΠΈ ΠΏΠΎΠ΄ Π·Π°ΡΡΡΠΎΠΉΠΊΡ Π±ΡΠ»ΠΈ Π² Π΄Π΅ΡΠΈΡΠΈΡΠ΅, ΠΏΡΠΈΡ ΠΎΠ΄ΠΈΠ»ΠΎΡΡ ΡΠΌΠ΅Π½ΡΡΠ°ΡΡ ΡΠ°Π·ΠΌΠ΅ΡΡ Π²ΠΎΠ·Π²ΠΎΠ΄ΠΈΠΌΡΡ ΠΏΠΎΡΡΡΠΎΠ΅ΠΊ.
Π Π ΠΎΡΡΠΈΠΈ ΠΏΠΈΠΊ ΡΠ°ΡΡΠ²Π΅ΡΠ° ΡΡΠΎΠ³ΠΎ Π²ΠΈΠ΄Π° ΡΡΡΠΎΠΈΡΠ΅Π»ΡΡΡΠ²Π° ΠΏΡΠΈΡΠ΅Π»ΡΡ Π½Π° ΠΏΠΎΡΠ»Π΅Π²ΠΎΠ΅Π½Π½ΠΎΠ΅ Π²ΡΠ΅ΠΌΡ. ΠΠ°ΡΠ΅Π»Π΅Π½ΠΈΠ΅ Π½ΡΠΆΠ΄Π°Π»ΠΎΡΡ Π² Π΄ΠΎΠΌΠ°Ρ , ΠΏΡΠΈΡΠ΅ΠΌ ΠΎΠ½ΠΈ Π΄ΠΎΠ»ΠΆΠ½Ρ Π±ΡΠ»ΠΈ Π±ΡΡΡ Π½Π΅Π΄ΠΎΡΠΎΠ³ΠΈΠΌΠΈ ΠΈ Π²ΠΎΠ·Π²ΠΎΠ΄ΠΈΡΡΡΡ Π² ΠΌΠ°ΠΊΡΠΈΠΌΠ°Π»ΡΠ½ΠΎ ΡΠΆΠ°ΡΡΠ΅ ΡΡΠΎΠΊΠΈ. ΠΡΠΈΠΌΠ΅ΡΠ°ΡΠ΅Π»ΡΠ½ΠΎ, ΡΡΠΎ ΠΌΠ½ΠΎΠ³ΠΈΠ΅ ΠΏΠΎΡΡΡΠΎΠΉΠΊΠΈ ΡΠΎΠ³ΠΎ Π²ΡΠ΅ΠΌΠ΅Π½ΠΈ ΡΠΎΡ ΡΠ°Π½ΠΈΠ»ΠΈΡΡ ΠΈ Π΄ΠΎ Π½Π°ΡΠΈΡ Π΄Π½Π΅ΠΉ, ΡΡΠΎ Π΅ΡΠ΅ ΡΠ°Π· Π΄ΠΎΠΊΠ°Π·ΡΠ²Π°Π΅Ρ Π½Π°Π΄Π΅ΠΆΠ½ΠΎΡΡΡ ΠΈ Π΄ΠΎΠ»Π³ΠΎΠ²Π΅ΡΠ½ΠΎΡΡΡ ΡΠ°ΠΊΠΎΠ³ΠΎ Π΄ΠΎΠΌΠΎΡΡΡΠΎΠ΅Π½ΠΈΡ.
ΠΡΠ΅ΠΈΠΌΡΡΠ΅ΡΡΠ²Π°
ΠΠ°ΡΠ° ΠΊΠΎΠΌΠΏΠ°Π½ΠΈΡ ΡΠ°Π·ΡΠ°Π±Π°ΡΡΠ²Π°Π΅Ρ ΡΠ°Π·Π»ΠΈΡΠ½ΡΠ΅ ΠΏΡΠΎΠ΅ΠΊΡΡ ΠΊΠ°ΡΠΊΠ°ΡΠ½ΡΡ Π΄ΠΎΠΌΠΎΠ². ΠΡ ΡΠΌΠΎΠΆΠ΅ΠΌ Π²ΠΎΠΏΠ»ΠΎΡΠΈΡΡ Π² ΠΆΠΈΠ·Π½Ρ Π»ΡΠ±ΡΠ΅ Π·Π°Π΄ΡΠΌΠΊΠΈ Π·Π°ΠΊΠ°Π·ΡΠΈΠΊΠ°. ΠΡΠ΅ΠΈΠΌΡΡΠ΅ΡΡΠ²Π°ΠΌΠΈ ΠΊΠ°ΡΠΊΠ°ΡΠ½ΠΎΠ³ΠΎ ΡΡΡΠΎΠΈΡΠ΅Π»ΡΡΡΠ²Π° ΡΠ²Π»ΡΡΡΡΡ:
- Β· Π½Π΅Π±ΠΎΠ»ΡΡΠ°Ρ ΡΡΠΎΠΈΠΌΠΎΡΡΡ ΡΡΡΠΎΠ΅Π½ΠΈΡ. ΠΡ ΠΌΠΎΠΆΠ΅ΡΠ΅ Π·Π½Π°ΡΠΈΡΠ΅Π»ΡΠ½ΠΎ ΡΠ±Π΅ΡΠ΅ΡΡ ΡΠ²ΠΎΠΈ Π΄Π΅Π½Π΅ΠΆΠ½ΡΠ΅ ΡΡΠ΅Π΄ΡΡΠ²Π° ΠΈ ΠΏΠΎΡΡΠ°ΡΠΈΡΡ ΠΎΡΠ²ΠΎΠ±ΠΎΠ΄ΠΈΠ²ΡΠΈΠ΅ΡΡ Π΄Π΅Π½Π΅ΠΆΠ½ΡΠ΅ ΡΡΠ΅Π΄ΡΡΠ²Π° Π½Π° ΡΡΠΎ-Π½ΠΈΠ±ΡΠ΄Ρ Π΅ΡΠ΅;
- Β· ΠΎΡΠ΅Π½Ρ Π²ΡΡΠΎΠΊΠΈΠ΅ ΡΠΊΠΎΡΠΎΡΡΠΈ ΡΡΡΠΎΠΈΡΠ΅Π»ΡΡΡΠ²Π°. ΠΠ°Π»Π΅Π½ΡΠΊΠΈΠΉ ΠΊΠ°ΡΠΊΠ°ΡΠ½ΡΠΉ Π΄ΠΎΠΌ Π²ΠΎΠ·Π²ΠΎΠ΄ΠΈΡΡΡ ΡΠΎ Π²ΡΠ΅ΠΌΠΈ Π²Π½ΡΡΡΠ΅Π½Π½ΠΈΠΌΠΈ ΡΠ°Π±ΠΎΡΠ°ΠΌΠΈ ΠΌΠ΅ΡΡΡΠ° Π·Π° Π΄Π²Π°;
- Β· Π²Π°ΠΌ Π½Π΅ Π½ΡΠΆΠ½ΠΎ Π±ΡΠ΄Π΅Ρ ΠΌΠ½ΠΎΠ³ΠΎ ΡΡΠ°ΡΠΈΡΡΡΡ Π½Π° ΡΠΎΠ΄Π΅ΡΠΆΠ°Π½ΠΈΠ΅ ΡΠ°ΠΊΠΎΠ³ΠΎ Π·Π΄Π°Π½ΠΈΡ, ΠΎΠ½ΠΎ Π½Π΅ ΡΡΠ΅Π±ΡΠ΅Ρ Π΄ΠΎΡΠΎΠ³ΠΎ ΠΎΠ±ΡΠ»ΡΠΆΠΈΠ²Π°Π½ΠΈΡ;
- Β· Π΄ΠΎΠΌΠ° ΠΎΡΠ»ΠΈΡΠ½ΠΎ ΡΠΎΡ ΡΠ°Π½ΡΡΡ ΡΠ΅ΠΏΠ»ΠΎ. ΠΠ°ΡΡΠ°ΡΡ Π½Π° ΠΎΡΠΎΠΏΠ»Π΅Π½ΠΈΠ΅ Π±ΡΠ΄ΡΡ Π½Π΅Π²Π΅Π»ΠΈΠΊΠΈ;
- Β· Π½Π΅Π±ΠΎΠ»ΡΡΠ°Ρ ΡΠ΅ΠΏΠ»ΠΎΠ΅ΠΌΠΊΠΎΡΡΡ, ΡΡΠΎ ΡΠ²ΠΎΠΉΡΡΠ²ΠΎ ΠΎΡΠΎΠ±Π΅Π½Π½ΠΎ Π°ΠΊΡΡΠ°Π»ΡΠ½ΠΎ Π΄Π»Ρ ΡΠ΅Ρ , ΠΊΡΠΎ ΠΈΡΠΏΠΎΠ»ΡΠ·ΡΠ΅Ρ Π΄ΠΎΠΌ ΡΠ΅Π·ΠΎΠ½Π½ΠΎ, ΠΎΠ½ Π±ΡΠ΄Π΅Ρ ΠΏΡΠΎΠ³ΡΠ΅Π²Π°ΡΡΡΡ ΠΎΡΠ΅Π½Ρ Π±ΡΡΡΡΠΎ;
- Β· Π²ΡΠ΅ ΠΊΠΎΠΌΠΌΡΠ½ΠΈΠΊΠ°ΡΠΈΠΈ ΠΌΠΎΠΆΠ½ΠΎ Π·Π°ΡΠΈΡΡ Π²Π½ΡΡΡΡ ΡΡΠ΅Π½, ΠΆΠΈΡΠ΅Π»ΠΈ ΡΠ°ΠΊΠΎΠ³ΠΎ Π·Π΄Π°Π½ΠΈΡ Π½Π΅ Π±ΡΠ΄ΡΡ Π²ΠΈΠ΄Π΅ΡΡ ΠΊΠ°Π½Π°Π»ΠΈΠ·Π°ΡΠΈΠΎΠ½Π½ΡΠ΅ ΡΡΡΠ±Ρ ΠΈ ΡΠ»Π΅ΠΊΡΡΠΈΡΠ΅ΡΠΊΠΈΠ΅ ΠΏΡΠΎΠ²ΠΎΠ΄Π°, ΡΡΠΎ ΡΠΎΠ»ΡΠΊΠΎ ΠΏΡΠΈΠ΄Π°ΡΡ ΡΡΡΠ΅ΡΠΈΡΠ½ΠΎΡΡΡ ΠΈ ΠΊΡΠ°ΡΠΎΡΡ ΠΏΠΎΠΌΠ΅ΡΠ΅Π½ΠΈΡΠΌ;
- Β· Π»Π΅Π³ΠΊΠΈΠΉ Π΄ΠΎΡΡΡΠΏ ΠΊ ΠΊΠΎΠΌΠΌΡΠ½ΠΈΠΊΠ°ΡΠΈΡΠΌ, ΠΌΠΎΠΆΠ½ΠΎ Π±Π΅Π· ΠΏΡΠΎΠ±Π»Π΅ΠΌ Π·Π°ΠΌΠ΅Π½ΠΈΡΡ ΡΡΠ΅ΠΏΠ»ΠΈΡΠ΅Π»Ρ ΠΈΠ»ΠΈ ΠΏΡΠΎΠ²ΠΎΠ΄Π°;
- Β· Π·Π½Π°ΡΠΈΡΠ΅Π»ΡΠ½ΠΎ ΡΠ½ΠΈΠ·ΡΡΡΡ Π·Π°ΡΡΠ°ΡΡ Π½Π° Π²ΠΎΠ·Π²Π΅Π΄Π΅Π½ΠΈΡ ΡΡΠ½Π΄Π°ΠΌΠ΅Π½ΡΠ°;
- Β· ΠΌΠ°Π»Π΅Π½ΡΠΊΠΈΠΉ ΠΊΠ°ΡΠΊΠ°ΡΠ½ΡΠΉ Π΄ΠΎΠΌ ΠΏΡΠ°ΠΊΡΠΈΡΠ΅ΡΠΊΠΈ Π½Π΅ Π΄Π°Π΅Ρ ΡΡΠ°Π΄ΠΊΡ, ΠΌΠΎΠΆΠ½ΠΎ ΡΡΠ°Π·Ρ Π½Π°ΡΠ°ΡΡ Π²ΡΠΏΠΎΠ»Π½ΡΡΡ ΠΎΡΠ΄Π΅Π»ΠΎΡΠ½ΡΠ΅ ΡΠ°Π±ΠΎΡΡ
- Β· ΡΠ°ΠΊΠΈΠ΅ ΡΠΎΠΎΡΡΠΆΠ΅Π½ΠΈΡ Π½Π΅ Π½Π΅ΡΡΡ Π² ΡΠ΅Π±Π΅ ΡΠΊΠΎΠ»ΠΎΠ³ΠΈΡΠ΅ΡΠΊΡΡ ΠΎΠΏΠ°ΡΠ½ΠΎΡΡΡ. ΠΡ ΠΌΠΎΠΆΠ΅ΡΠ΅ Π±ΡΡΡ ΡΠ²Π΅ΡΠ΅Π½Ρ, ΡΡΠΎ Π²Π°Ρ Π½Π΅ ΠΏΠΎΡΡΠ΅Π²ΠΎΠΆΠΈΡ ΠΏΠ»Π΅ΡΠ΅Π½Ρ ΠΈΠ»ΠΈ Π³ΡΠΈΠ±ΠΎΠΊ, ΠΌΠ°ΡΠ΅ΡΠΈΠ°Π»Ρ Π½Π΅ Π²ΡΠ΄Π΅Π»ΡΡΡ Π² ΠΎΠΊΡΡΠΆΠ°ΡΡΡΡ ΡΡΠ΅Π΄Ρ Π·Π°Π³ΡΡΠ·Π½ΡΡΡΠΈΡ Π²Π΅ΡΠ΅ΡΡΠ².
ΠΡΠ΅ ΡΡΠΈ ΠΏΡΠ΅ΠΈΠΌΡΡΠ΅ΡΡΠ²Π° ΠΏΠΎΠ·Π²ΠΎΠ»ΡΡΡ ΡΡΠ½ΠΊΡ ΠΊΠ°ΡΠΊΠ°ΡΠ½ΡΡ Π΄ΠΎΠΌΠΎΠ² Π΄ΠΈΠ½Π°ΠΌΠΈΡΠ½ΠΎ ΡΠ°Π·Π²ΠΈΠ²Π°ΡΡΡΡ ΠΈ Π½Π°Ρ ΠΎΠ΄ΠΈΡΡ ΡΠ²ΠΎΠΈΡ ΠΊΠ»ΠΈΠ΅Π½ΡΠΎΠ².
ΠΠ°Π»Π΅Π½ΡΠΊΠΈΠΉ ΠΊΠ°ΡΠΊΠ°ΡΠ½ΡΠΉ Π΄ΠΎΠΌ
Π£ΡΠ»ΠΎΠ²Π½ΠΎ ΠΊ Π½Π΅Π±ΠΎΠ»ΡΡΠΈΠΌ ΡΡΡΠΎΠ΅Π½ΠΈΡΠΌ ΠΌΠΎΠΆΠ½ΠΎ ΠΎΡΠ½Π΅ΡΡΠΈ ΠΏΠΎΡΡΡΠΎΠΉΠΊΠΈ ΠΌΠ΅Π½ΡΡΠ΅ 100 ΠΊΠ²Π°Π΄ΡΠ°ΡΠ½ΡΡ ΠΌΠ΅ΡΡΠΎΠ². ΠΡΠ»ΠΈ Ρ Π²Π°Ρ Π½Π΅Π±ΠΎΠ»ΡΡΠ°Ρ ΡΠ΅ΠΌΡΡ, Π½Π΅ ΡΡΠΎΠΈΡ Π²ΠΎΠ·Π²ΠΎΠ΄ΠΈΡΡ ΠΎΠ³ΡΠΎΠΌΠ½ΡΠ΅ ΠΌΠ½ΠΎΠ³ΠΎΡΡΠ°ΠΆΠ½ΡΠ΅ Π΄ΠΎΠΌΠ°, Π²ΠΎΠ·ΠΌΠΎΠΆΠ½ΠΎ ΠΎΠ³ΡΠ°Π½ΠΈΡΠΈΡΡΡΡ ΠΊΠΎΠΌΠΏΠ°ΠΊΡΠ½ΡΠΌ ΠΈ ΡΡΡΠ½ΡΠΌ ΠΎΠ΄Π½ΠΎΡΡΠ°ΠΆΠ½ΡΠΌ Π΄ΠΎΠΌΠΎΠΌ. Π’Π°ΠΊΠΈΠ΅ Π·Π΄Π°Π½ΠΈΡ ΠΏΠΎΠ²ΡΠ΅ΠΌΠ΅ΡΡΠ½ΠΎ ΡΠ°ΡΠΏΡΠΎΡΡΡΠ°Π½Π΅Π½Ρ Π² ΠΠ²ΡΠΎΠΏΠ΅. ΠΠ½ΠΈ ΠΎΡΠ΅Π½Ρ ΠΊΡΠ°ΡΠΈΠ²ΠΎ ΡΠΌΠΎΡΡΡΡΡΡ, Π·Π°Π½ΠΈΠΌΠ°ΡΡ Π½Π΅Π±ΠΎΠ»ΡΡΡΡ ΠΏΠ»ΠΎΡΠ°Π΄Ρ, ΡΠ°ΠΊΠΈΠΌ ΠΎΠ±ΡΠ°Π·ΠΎΠΌ, ΠΎΡΡΠ°Π΅ΡΡΡ ΠΏΡΠΎΡΡΡΠ°Π½ΡΡΠ²ΠΎ Π½Π° ΡΡΠ°ΡΡΠΊΠ΅, ΠΊΠΎΡΠΎΡΠΎΠ΅ ΠΌΠΎΠΆΠ½ΠΎ ΠΈΡΠΏΠΎΠ»ΡΠ·ΠΎΠ²Π°ΡΡ Π΄Π»Ρ Π²ΠΎΠ·Π²Π΅Π΄Π΅Π½ΠΈΡ Π±Π°Π½ΠΈ ΠΈΠ»ΠΈ Π³Π°ΡΠ°ΠΆΠ°. Π Π·Π΄Π°Π½ΠΈΠΈ ΠΌΠΎΠΆΠ½ΠΎ ΡΠ΄Π΅Π»Π°ΡΡ Π±ΠΎΠ»ΡΡΠΈΠ΅ ΠΏΠ°Π½ΠΎΡΠ°ΠΌΠ½ΡΠ΅ ΠΎΠΊΠ½Π°, ΡΡΠΎΠ±Ρ Π²Ρ ΠΌΠΎΠ³Π»ΠΈ Π½Π°ΡΠ»Π°ΠΆΠ΄Π°ΡΡΡΡ Π²ΠΈΠ΄Π°ΠΌΠΈ ΡΠ²ΠΎΠ΅Π³ΠΎ ΡΡΠ°ΡΡΠΊΠ°.
Π‘ΡΡΠΎΠΈΡΠ΅Π»ΡΡΡΠ²ΠΎ ΠΌΠ°Π»Π΅Π½ΡΠΊΠΈΡ ΠΊΠ°ΡΠΊΠ°ΡΠ½ΡΡ Π΄ΠΎΠΌΠΎΠ² ΠΈΠ΄Π΅Ρ Π² Π½Π΅ΡΠΊΠΎΠ»ΡΠΊΠΎ ΡΡΠ°ΠΏΠΎΠ². ΠΠΎΠΆΠ½ΠΎ Π²ΡΠ΄Π΅Π»ΠΈΡΡ ΠΎΡΠ½ΠΎΠ²Π½ΡΠ΅ ΠΌΠΎΠΌΠ΅Π½ΡΡ:
- Β· ΠΏΠΎΡΠ»Π΅ Π²ΡΡΡΠ°Π²Π»Π΅Π½ΠΈΡ ΠΎΠΏΠ°Π»ΡΠ±ΠΊΠΈ Π·Π°Π»ΠΈΠ²Π°Π΅ΡΡΡ ΡΡΠ½Π΄Π°ΠΌΠ΅Π½Ρ. ΠΠ½ ΠΌΠΎΠΆΠ΅Ρ Π±ΡΡΡ ΡΡΡΡΠΎΠ΅Π½ Π΄Π°ΠΆΠ΅ Π½Π° Π½Π°ΡΡΡΠ΅Π½Π½ΠΎΠΌ Π²ΠΎΠ΄ΠΎΠΉ Π³ΡΡΠ½ΡΠ΅;
- Β· ΡΡΠ½Π΄Π°ΠΌΠ΅Π½Ρ ΠΎΠ±ΡΠ·Π°ΡΠ΅Π»ΡΠ½ΠΎ Π΄ΠΎΠ»ΠΆΠ΅Π½ Π±ΡΡΡ ΡΡΠ΅ΠΏΠ»Π΅Π½, ΡΡΠΎ ΠΏΠΎΠ·Π²ΠΎΠ»ΠΈΡ ΡΠ½ΠΈΠ·ΠΈΡΡ ΡΠ΅ΠΏΠ»ΠΎΠΏΠΎΡΠ΅ΡΠΈ Π² Π΄Π°Π»ΡΠ½Π΅ΠΉΡΠ΅ΠΌ ΠΈ Π·Π½Π°ΡΠΈΡΠ΅Π»ΡΠ½ΠΎ ΡΡΠΊΠΎΠ½ΠΎΠΌΠΈΡΡ Π½Π° ΠΎΡΠΎΠΏΠ»Π΅Π½ΠΈΠΈ;
- Β· Π·Π°ΡΠ΅ΠΌ Π²ΠΎΠ·Π²ΠΎΠ΄ΠΈΡΡΡ ΠΊΠ°ΡΠΊΠ°Ρ. ΠΠ½ ΠΌΠΎΠΆΠ΅Ρ Π±ΡΡΡ Π΄Π΅ΡΠ΅Π²ΡΠ½Π½ΡΠΌ ΠΈΠ»ΠΈ ΠΌΠ΅ΡΠ°Π»Π»ΠΈΡΠ΅ΡΠΊΠΈΠΌ;
- Β· ΠΏΠΎΡΠ»Π΅ ΡΡΠΎΠ³ΠΎ ΡΠ»Π΅Π΄ΡΠ΅Ρ Π²ΠΎΠ·Π²Π΅ΡΡΠΈ ΡΡΡΠΎΠΏΠΈΠ»Π° ΠΈ ΠΏΠΎΠ·Π°Π±ΠΎΡΠΈΡΡΡΡ ΠΎΠ± ΡΡΡΡΠΎΠΉΡΡΠ²Π΅ ΠΊΡΡΡΠΈ.
ΠΠ°ΡΠ° ΠΊΠΎΠΌΠΏΠ°Π½ΠΈΡ ΡΠ°Π·ΡΠ°Π±ΠΎΡΠ°Π΅Ρ ΡΠ½ΠΈΠΊΠ°Π»ΡΠ½ΡΠΉ Π΄ΠΈΠ·Π°ΠΉΠ½ ΠΌΠ°Π»Π΅Π½ΡΠΊΠΎΠ³ΠΎ ΠΊΠ°ΡΠΊΠ°ΡΠ½ΠΎΠ³ΠΎ Π΄ΠΎΠΌΠ°, ΠΏΠΎΠ΄Π±Π΅ΡΠ΅Ρ Π΄Π»Ρ ΠΏΠΎΠΊΡΠΏΠ°ΡΠ΅Π»Ρ ΠΎΠΏΡΠΈΠΌΠ°Π»ΡΠ½ΡΠΉ ΡΡΠ΅ΠΏΠ»ΠΈΡΠ΅Π»Ρ. ΠΠ°ΡΠΊΠ°ΡΠ½ΠΎΠΌΡ Π΄ΠΎΠΌΠΎΡΡΡΠΎΠ΅Π½ΠΈΡ ΠΏΡΠΈΠ½Π°Π΄Π»Π΅ΠΆΠΈΡ Π±ΡΠ΄ΡΡΠ΅Π΅, ΡΠ°ΠΊ ΠΊΠ°ΠΊ ΡΠΎΠΎΡΠ½ΠΎΡΠ΅Π½ΠΈΠ΅ ΡΠ΅Π½Π°-ΠΊΠ°ΡΠ΅ΡΡΠ²ΠΎ Π΄Π»Ρ ΡΠ°ΠΊΠΎΠ³ΠΎ ΡΡΡΠΎΠΈΡΠ΅Π»ΡΡΡΠ²Π° ΠΎΠΏΡΠΈΠΌΠ°Π»ΡΠ½ΠΎΠ΅.
www.karkas-na-veka.ru
ΠΡΠΎΠ΅ΠΊΡ Π½Π΅Π±ΠΎΠ»ΡΡΠΎΠ³ΠΎ ΠΊΠ°ΡΠΊΠ°ΡΠ½ΠΎΠ³ΠΎ Π΄ΠΎΠΌΠΈΠΊΠ° — Π±ΡΡΡ.
ΠΠΎΡΡΡΠΎΠΈΡΡ Π·Π°Π³ΠΎΡΠΎΠ΄Π½ΡΠΉ ΠΊΠΎΡΡΠ΅Π΄ΠΆ β ΡΠΎΠ»ΡΠΊΠΎ Π½Π°ΡΠ°Π»ΠΎ Β«ΠΎΡΠ²ΠΎΠ΅Π½ΠΈΡΒ» Π·Π°Π³ΠΎΡΠΎΠ΄Π½ΠΎΠ³ΠΎ ΡΡΠ°ΡΡΠΊΠ°, Π½Π° ΡΡΠΎΠΌ ΡΡΡΠΎΠΈΡΠ΅Π»ΡΡΡΠ²ΠΎ Π½Π΅ Π·Π°ΠΊΠ°Π½ΡΠΈΠ²Π°Π΅ΡΡΡ. Π Π°Π½ΠΎ ΠΈΠ»ΠΈ ΠΏΠΎΠ·Π΄Π½ΠΎ ΠΏΠ΅ΡΠ΅Π΄ Π²Π°ΠΌΠΈ Π²ΠΎΠ·Π½ΠΈΠΊΠ½Π΅Ρ ΠΏΡΠΎΠ±Π»Π΅ΠΌΠ° Ρ Π½Π΅Π΄ΠΎΡΡΠ°ΡΠΊΠΎΠΌ ΠΏΠΎΠ΄ΡΠΎΠ±Π½ΡΡ ΠΏΠΎΠΌΠ΅ΡΠ΅Π½ΠΈΠΉ. Π‘ΠΎ Π²ΡΠ΅ΠΌΠ΅Π½Π΅ΠΌ Π½Π°ΡΠ½Π΅Ρ Π½Π°ΠΊΠ°ΠΏΠ»ΠΈΠ²Π°ΡΡΡΡ ΡΠ°Π·Π»ΠΈΡΠ½Π°Ρ ΡΡΠ°ΡΠ°Ρ ΠΌΠ΅Π±Π΅Π»Ρ, Π±ΡΠ΄Π΅Ρ ΠΏΡΠΎΠ±Π»Π΅ΠΌΠ° Ρ Ρ ΡΠ°Π½Π΅Π½ΠΈΠ΅ΠΌ ΡΠ°Π΄ΠΎΠ²ΠΎΠ³ΠΎ ΠΈΠ½Π²Π΅Π½ΡΠ°ΡΡ, Π½ΡΠΆΠ½ΠΎ Π±ΡΠ΄Π΅Ρ ΠΌΠ΅ΡΡΠΎ Π΄Π»Ρ ΡΠΊΠ»Π°Π΄ΠΈΡΠΎΠ²Π°Π½ΠΈΡ Π½Π°ΠΈΠ±ΠΎΠ»Π΅Π΅ ΡΠΏΠΎΡΡΠ΅Π±Π»ΡΠ΅ΠΌΡΡ ΡΡΡΠΎΠΈΡΠ΅Π»ΡΠ½ΡΡ ΠΌΠ°ΡΠ΅ΡΠΈΠ°Π»ΠΎΠ², Π² ΡΠΎΠΌ ΡΠΈΡΠ»Π΅ ΠΈ ΠΏΠΈΠ»ΠΎΠΌΠ°ΡΠ΅ΡΠΈΠ°Π»ΠΎΠ². ΠΠ°Ρ Π΄ΠΎΠΌ ΠΌΠΎΠΆΠ½ΠΎ Π±Π΅Π· ΡΡΡΠ΄Π° ΠΏΡΠΈΡΠΏΠΎΡΠΎΠ±ΠΈΡΡ ΠΈ ΠΏΠΎΠ΄ Π½Π΅Π±ΠΎΠ»ΡΡΠΎΠΉ Π΄ΠΎΠΌΠΈΠΊ Π΄Π»Ρ Π»Π΅ΡΠ½Π΅Π³ΠΎ ΠΎΡΠ΄ΡΡ Π°. Π Π΅ΡΠ»ΠΈ ΡΠ΄Π΅Π»Π°ΡΡ Π² Π½Π΅ΠΌ Π°Π²ΡΠΎΠ½ΠΎΠΌΠ½ΠΎΠ΅ ΠΎΡΠΎΠΏΠ»Π΅Π½ΠΈΠ΅ β ΡΠΎ Π² Π½Π΅ΠΌ ΠΌΠΎΠΆΠ½ΠΎ ΠΆΠΈΡΡ ΠΎΡ ΡΠ°Π½Π½Π΅ΠΉ Π²Π΅ΡΠ½Ρ Π΄ΠΎ ΠΏΠΎΠ·Π΄Π½Π΅ΠΉ ΠΎΡΠ΅Π½ΠΈ.

ΠΠ°Π»Π΅Π½ΡΠΊΠΈΠΉ ΠΊΠ°ΡΠΊΠ°ΡΠ½ΡΠΉ Π΄ΠΎΠΌΠΈΠΊ
ΠΡΠΎΠ±Π΅Π½Π½ΠΎΡΡΡ ΡΠ΅Ρ Π½ΠΎΠ»ΠΎΠ³ΠΈΠΈ ΡΡΡΠΎΠΈΡΠ΅Π»ΡΡΡΠ²Π° ΡΠΎΡΡΠΎΠΈΡ Π² ΡΠΎΠΌ, ΡΡΠΎ Π² ΠΊΠ°ΡΠ΅ΡΡΠ²Π΅ ΡΡΠ΅ΠΏΠ»ΠΈΡΠ΅Π»Ρ ΠΌΡ ΠΈΡΠΏΠΎΠ»ΡΠ·ΡΠ΅ΠΌ ΠΎΠΏΠΈΠ»ΠΊΠΈ ΠΈΠ»ΠΈ ΠΊΠ΅ΡΠ°ΠΌΠ·ΠΈΡ β Π½Π°ΠΈΠ±ΠΎΠ»Π΅Π΅ Π΄Π΅ΡΠ΅Π²ΡΠΉ Π²Π°ΡΠΈΠ°Π½Ρ ΠΈΠ· Π²ΡΠ΅Ρ ΡΠ΅Π³ΠΎΠ΄Π½Ρ ΡΡΡΠ΅ΡΡΠ²ΡΡΡΠΈΡ ΠΌΠ°ΡΠ΅ΡΠΈΠ°Π»ΠΎΠ². ΠΠ»Ρ ΡΠ°ΠΊΠΈΡ ΡΡΠ΅ΠΏΠ»ΠΈΡΠ΅Π»Π΅ΠΉ ΡΠ°Π³ Π²Π΅ΡΡΠΈΠΊΠ°Π»ΡΠ½ΡΡ ΡΡΠΎΠ΅ΠΊ Π½Π΅ ΡΠ²Π»ΡΠ΅ΡΡΡ ΡΠ΅Π³Π»Π°ΠΌΠ΅Π½ΡΠΈΡΡΠ΅ΠΌΠΎΠΉ Π²Π΅Π»ΠΈΡΠΈΠ½ΠΎΠΉ, ΡΠ°Π·ΠΌΠ΅ΡΡ ΠΌΠΎΠΆΠ½ΠΎ ΠΈΠ·ΠΌΠ΅Π½ΡΡΡ Ρ ΡΡΠ΅ΡΠΎΠΌ Π΄Π»ΠΈΠ½Ρ ΠΏΠΈΠ»ΠΎΠΌΠ°ΡΠ΅ΡΠΈΠ°Π»ΠΎΠ². ΠΠΎ ΠΌΡ, Π½Π° Π²ΡΡΠΊΠΈΠΉ ΡΠ»ΡΡΠ°ΠΉ, ΡΠ°Π³ ΡΡΠΎΠ΅ΠΊ ΡΠΏΡΠΎΠ΅ΠΊΡΠΈΡΠΎΠ²Π°Π»ΠΈ ΡΠ°ΠΊΠΈΠΌ ΠΎΠ±ΡΠ°Π·ΠΎΠΌ, ΡΡΠΎ ΠΏΡΠΈ ΠΆΠ΅Π»Π°Π½ΠΈΠΈ ΠΊΠ°ΡΠΊΠ°Ρ ΠΌΠΎΠΆΠ½ΠΎ ΠΎΠ±ΡΠΈΡΡ Π»ΠΈΡΡΠ°ΠΌΠΈ ΠΠ‘Π, Π° Π² ΠΊΠ°ΡΠ΅ΡΡΠ²Π΅ ΡΡΠ΅ΠΏΠ»ΠΈΡΠ΅Π»Ρ ΠΈΡΠΏΠΎΠ»ΡΠ·ΠΎΠ²Π°ΡΡ ΠΏΡΠ΅ΡΡΠΎΠ²Π°Π½Π½ΡΡ ΠΌΠΈΠ½Π΅ΡΠ°Π»ΡΠ½ΡΡ Π²Π°ΡΡ. ΠΡΠΎ Π΄Π΅Π»Π°Π΅Ρ Π½Π°Ρ ΠΏΡΠΎΠ΅ΠΊΡ ΡΠ½ΠΈΠ²Π΅ΡΡΠ°Π»ΡΠ½ΡΠΌ ΠΈ ΠΏΡΠΈΠ³ΠΎΠ΄Π½ΡΠΌ Π΄Π»Ρ Π»ΡΠ±ΡΡ ΡΡΠ΅ΠΏΠ»ΠΈΡΠ΅Π»Π΅ΠΉ. ΠΠΏΠΈΠ»ΠΊΠΈ β ΠΎΡΠ»ΠΈΡΠ½ΡΠΉ ΡΡΠ΅ΠΏΠ»ΠΈΡΠ΅Π»Ρ, Π½ΠΎ ΡΠΎ Π²ΡΠ΅ΠΌΠ΅Π½Π΅ΠΌ ΠΎΠ½ΠΈ ΡΠ°Π΄ΡΡΡΡ, ΠΌΠ΅ΠΆΠ΄Ρ ΠΏΠΎΡΠΎΠ»ΠΊΠΎΠΌ ΠΈ ΡΡΠ΅Π½ΠΎΠΉ ΠΎΠ±ΡΠ°Π·ΡΠ΅ΡΡΡ Β«ΠΏΠΎΡΡ Ρ ΠΎΠ»ΠΎΠ΄Π°Β». Π ΠΏΡΠΎΠ΅ΠΊΡΠ΅ ΡΡΡΠ΅Π½Π° ΡΡΠ° ΠΎΡΠΎΠ±Π΅Π½Π½ΠΎΡΡΡ ΠΎΠΏΠΈΠ»ΠΎΠΊ ΠΈ ΠΏΡΠ΅Π΄ΡΡΠΌΠΎΡΡΠ΅Π½Π° Π²ΠΎΠ·ΠΌΠΎΠΆΠ½ΠΎΡΡΡ ΠΈΡ ΠΏΠΎΠ΄ΡΡΠΏΠΊΠΈ ΠΏΠΎ ΠΌΠ΅ΡΠ΅ Π½Π΅ΠΎΠ±Ρ ΠΎΠ΄ΠΈΠΌΠΎΡΡΠΈ.
ΠΠ΅ΠΎΠ±Ρ ΠΎΠ΄ΠΈΠΌΡΠ΅ ΠΌΠ°ΡΠ΅ΡΠΈΠ°Π»Ρ
ΠΠ»Ρ ΠΊΠ°ΡΠΊΠ°ΡΠ½ΠΎΠ³ΠΎ Π΄ΠΎΠΌΠΈΠΊΠ° ΠΈΡΠΏΠΎΠ»ΡΠ·ΡΡΡΡΡ Ρ Π²ΠΎΠΉΠ½ΡΠ΅ ΠΏΠΈΠ»ΠΎΠΌΠ°ΡΠ΅ΡΠΈΠ°Π»Ρ: Π±ΡΡΡ, Π΄ΠΎΡΠΊΠ° ΠΈ Π²Π°Π³ΠΎΠ½ΠΊΠ°. Π Π°Π·ΠΌΠ΅ΡΡ ΠΈ ΠΊΠΎΠ»ΠΈΡΠ΅ΡΡΠ²ΠΎ ΠΏΠΎ ΠΊΠ°ΠΆΠ΄ΠΎΠΌΡ Π²ΠΈΠ΄Ρ ΠΏΠΈΠ»ΠΎΠΌΠ°ΡΠ΅ΡΠΈΠ°Π»ΠΎΠ² ΡΠΊΠ°Π·Π°Π½Ρ Π² Π²Π΅Π΄ΠΎΠΌΠΎΡΡΠΈ ΠΊΠΎΠΌΠΏΠ»Π΅ΠΊΡΠ°. ΠΠ»Ρ ΠΏΠΎΠΊΡΡΡΠΈΡ ΠΊΡΡΡΠΈ ΠΌΠΎΠΆΠ΅ΡΠ΅ ΠΈΡΠΏΠΎΠ»ΡΠ·ΠΎΠ²Π°ΡΡ ΠΏΡΠΎΡΠΈΠ»ΠΈΡΠΎΠ²Π°Π½Π½ΡΠΉ Π»ΠΈΡΡ, ΠΌΠ΅ΡΠ°Π»ΠΎΡΠ΅ΡΠ΅ΠΏΠΈΡΡ ΠΈΠ»ΠΈ Π³ΠΈΠ±ΠΊΡΡ ΡΠ΅ΡΠ΅ΠΏΠΈΡΡ ΠΈΠ· ΠΌΠΎΠ΄ΠΈΡΠΈΡΠΈΡΠΎΠ²Π°Π½Π½ΠΎΠ³ΠΎ Π±ΠΈΡΡΠΌΠ°. ΠΠ°ΠΊΠΎΠΉ ΠΊΠΎΠ½ΠΊΡΠ΅ΡΠ½ΠΎ ΠΈΡΠΏΠΎΠ»ΡΠ·ΠΎΠ²Π°ΡΡ ΠΌΠ°ΡΠ΅ΡΠΈΠ°Π» Π΄Π»Ρ ΠΏΠΎΠΊΡΡΡΠΈΡ ΠΊΡΡΡΠΈ β ΡΠ΅ΡΠ°ΠΉΡΠ΅ ΡΠ°ΠΌΠΈ. ΠΡ ΡΠΎΠ»ΡΠΊΠΎ Π΄ΠΎΠ»ΠΆΠ½Ρ Π²Π°Ρ ΠΏΡΠ΅Π΄ΡΠΏΡΠ΅Π΄ΠΈΡΡ, ΡΡΠΎ Π²ΡΠ΅ ΠΌΠ΅ΡΠ°Π»Π»ΠΈΡΠ΅ΡΠΊΠΈΠ΅ ΠΏΠΎΠΊΡΡΡΠΈΡ Π²ΠΎ Π²ΡΠ΅ΠΌΡ Π΄ΠΎΠΆΠ΄Ρ ΠΈΠ»ΠΈ Π³ΡΠ°Π΄Π° Β«Π±Π°ΡΠ°Π±Π°Π½ΡΡΒ» Ρ ΡΠ°ΠΊΠΎΠΉ ΡΠΈΠ»ΠΎΠΉ, ΡΡΠΎ Π²Ρ Π²ΡΡΠ΄ Π»ΠΈ ΡΠΌΠΎΠΆΠ΅ΡΠ΅ ΠΎΡΠ΄ΡΡ Π°ΡΡ Π² ΡΠ²ΠΎΠ΅ΠΌ Π΄ΠΎΠΌΠΈΠΊΠ΅.

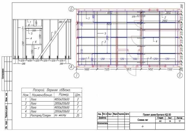
ΠΠ΅Π΄ΠΎΠΌΠΎΡΡΡ ΠΊΠΎΠΌΠΏΠ»Π΅ΠΊΡΠ°

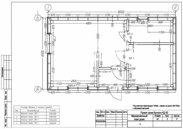
ΠΠ°ΡΠΊΠΈΡΠΎΠ²ΠΎΡΠ½ΡΠΉ ΠΏΠ»Π°Π½ Π΄ΠΎΠΌΠ°

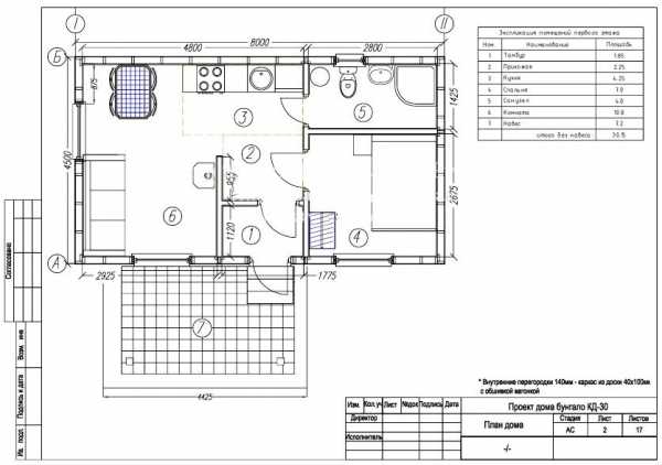
ΠΠ»Π°Π½ Π΄ΠΎΠΌΠ°

Π Π°Π·ΡΠ΅Π· Π΄ΠΎΠΌΠ°

Π€Π°ΡΠ°Π΄Ρ

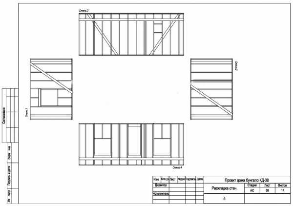
Π Π°ΡΠΊΠ»Π°Π΄ΠΊΠ° ΡΡΠ΅Π½
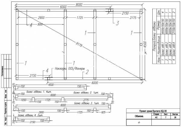
Π€ΡΠ½Π΄Π°ΠΌΠ΅Π½Ρ
Β
Π Π΅ΠΊΠΎΠΌΠ΅Π½Π΄ΡΠ΅ΠΌ Π²Π°ΠΌ ΡΠ΄Π΅Π»Π°ΡΡ ΡΡΠ½Π΄Π°ΠΌΠ΅Π½Ρ Π½Π° Π²ΠΈΠ½ΡΠΎΠ²ΡΡ ΡΠ²Π°ΡΡ . ΠΠΎΠΏΡΠΎΠ±ΡΠ΅ΠΌ ΡΠ±Π΅Π΄ΠΈΡΡ, ΠΏΠΎΡΠ΅ΠΌΡ ΠΌΡ ΠΎΡΡΠ°Π½ΠΎΠ²ΠΈΠ»ΠΈΡΡ ΠΈΠΌΠ΅Π½Π½ΠΎ Π½Π° ΡΡΠΎΠΌ ΡΡΠ½Π΄Π°ΠΌΠ΅Π½ΡΠ΅.
- ΠΠΎΠ΄ Π²Π΅ΡΡ Π΄ΠΎΠΌ ΡΡΠ½Π΄Π°ΠΌΠ΅Π½Ρ ΠΌΠΎΠΆΠ½ΠΎ ΡΠ΄Π΅Π»Π°ΡΡ Π²ΡΠ΅Π³ΠΎ Π·Π° ΠΎΠ΄ΠΈΠ½ Π΄Π΅Π½Ρ ΠΈ Π½Π° Π²ΡΠΎΡΠΎΠΉ Π΄Π΅Π½Ρ Π²Ρ ΡΠΆΠ΅ ΠΌΠΎΠΆΠ΅ΡΠ΅ ΠΏΡΠΎΠ΄ΠΎΠ»ΠΆΠ°ΡΡ Π²ΡΠΏΠΎΠ»Π½ΡΡΡ Π΄ΡΡΠ³ΠΈΠ΅ ΡΠ°Π±ΠΎΡΡ. ΠΡΠ±ΡΠ΅ Π΄ΡΡΠ³ΠΈΠ΅ Π±Π΅ΡΠΎΠ½Π½ΡΠ΅ ΡΡΠ½Π΄Π°ΠΌΠ΅Π½ΡΡ ΡΠΎΠ»ΡΠΊΠΎ Β«Π΄ΠΎΡΡΠΈΠ³Π°ΡΡΒ» Π΄ΠΎΠ»ΠΆΠ½Ρ Π½Π΅ ΠΌΠ΅Π½Π΅Π΅ Π΄Π²ΡΡ Π½Π΅Π΄Π΅Π»Ρ. Π’Π΅ΠΏΠ΅ΡΡ Π΅ΡΠ΅ ΠΏΡΠΈΠ±Π°Π²ΡΡΠ΅ ΠΊ ΡΡΠΎΠΌΡ Π²ΡΠ΅ΠΌΡ Π½Π° ΠΊΠΎΠΏΠ°Π½ΠΈΠ΅ ΡΡΠ°Π½ΡΠ΅ΠΉ, Π½Π° ΡΠ±ΠΎΡΠΊΡ ΠΎΠΏΠ°Π»ΡΠ±ΠΊΠΈ, Π½Π° ΡΠΎΠ·Π΄Π°Π½ΠΈΠ΅ Π°ΡΠΌΠ°ΡΡΡΠ½ΠΎΠΉ ΡΠ΅ΡΠ΅ΡΠΊΠΈ, Π½Π° ΡΠ°Π·Π±ΠΎΡΠΊΡ ΠΎΠΏΠ°Π»ΡΠ±ΠΊΠΈ ΠΈ Π½Π° ΡΠΈΠ½ΠΈΡΠ½ΡΡ ΠΎΡΠ΄Π΅Π»ΠΊΡ ΡΠΎΠΊΠΎΠ»Ρ. Π£Π»Π°Π²Π»ΠΈΠ²Π°Π΅ΡΠ΅ ΡΠ°Π·Π½ΠΈΡΡ ΠΏΠΎ Π·Π°ΡΡΠ°ΡΠ°ΠΌ Π²ΡΠ΅ΠΌΠ΅Π½ΠΈ?
- Π€ΡΠ½Π΄Π°ΠΌΠ΅Π½Ρ Π½Π° Π²ΠΈΠ½ΡΠΎΠ²ΡΡ ΡΠ²Π°ΡΡ ΠΌΠΎΠΆΠ½ΠΎ ΡΡΡΠ°Π½Π°Π²Π»ΠΈΠ²Π°ΡΡ Π½Π° Π»ΡΠ±ΡΡ Π³ΡΡΠ½ΡΠ°Ρ . ΠΠ΅ ΠΈΠΌΠ΅Π΅Ρ Π·Π½Π°ΡΠ΅Π½ΠΈΡ ΡΡΠΎΠ²Π΅Π½Ρ Π³ΡΡΠ½ΡΠΎΠ²ΡΡ Π²ΠΎΠ΄, Π½Π΅ ΠΈΠΌΠ΅Π΅Ρ Π·Π½Π°ΡΠ΅Π½ΠΈΡ Π½Π΅ΡΡΡΠΈΠ΅ ΡΠΈΠ·ΠΈΡΠ΅ΡΠΊΠΈΠ΅ Ρ Π°ΡΠ°ΠΊΡΠ΅ΡΠΈΡΡΠΈΠΊΠΈ Π³ΡΡΠ½ΡΠΎΠ².
- Π Π΅ΡΠ°ΡΡΡΡ ΠΏΡΠΎΠ±Π»Π΅ΠΌΡ Ρ Π΅ΡΡΠ΅ΡΡΠ²Π΅Π½Π½ΠΎΠΉ Π²Π΅Π½ΡΠΈΠ»ΡΡΠΈΠ΅ΠΉ ΠΏΠΎΠ»Π°. ΠΡΡΠΎΡΠ° Π½ΠΈΠΆΠ½Π΅Π³ΠΎ ΠΎΠ±Π²ΡΠ·ΠΎΡΠ½ΠΎΠ³ΠΎ ΡΠ»ΠΎΡ ΡΠ΅Π³ΡΠ»ΠΈΡΡΠ΅ΡΡΡ Π±Π΅Π· ΠΏΡΠΎΠ±Π»Π΅ΠΌ, ΡΡΡΠ±Ρ ΠΌΠΎΠΆΠ½ΠΎ ΠΎΠ±ΡΠ΅Π·Π°ΡΡ Π½Π° ΡΠΎΠΌ ΡΡΠΎΠ²Π½Π΅, Π½Π° ΠΊΠΎΡΠΎΡΠΎΠΌ Π²Ρ ΡΡΠΈΡΠ°Π΅ΡΠ΅ ΡΠ΅Π»Π΅ΡΠΎΠΎΠ±ΡΠ°Π·Π½ΡΠΌ.
ΠΡ ΡΠ²Π΅ΡΠ΅Π½Ρ, ΡΡΠΎ ΡΡΠΈ ΠΏΡΠ΅ΠΈΠΌΡΡΠ΅ΡΡΠ²Π° ΠΏΠΎΠ»Π½ΠΎΡΡΡΡ ΠΏΠΎΠΊΡΡΠ²Π°ΡΡ Π΄ΠΎΠ²ΠΎΠ»ΡΠ½ΠΎ Π²ΡΡΠΎΠΊΡΡ ΡΡΠΎΠΈΠΌΠΎΡΡΡ ΠΎΠ±ΡΡΡΡΠΎΠΉΡΡΠ²Π° ΡΠ°ΠΊΠΈΡ ΡΡΠ½Π΄Π°ΠΌΠ΅Π½ΡΠΎΠ². ΠΡΡΠ°ΡΠΈ, ΡΡΠΎΠΈΠΌΠΎΡΡΡ ΡΡΡΠ΅ΡΡΠ²Π΅Π½Π½ΠΎ ΠΈ ΠΈΡΠΊΡΡΡΡΠ²Π΅Π½Π½ΠΎ ΡΠ²Π΅Π»ΠΈΡΠΈΠ²Π°ΡΡ ΠΏΠΎΠ΄ΡΡΠ΄Π½ΡΠ΅ ΠΎΡΠ³Π°Π½ΠΈΠ·Π°ΡΠΈΠΈ, Π° Π²Ρ ΠΌΠΎΠΆΠ΅ΡΠ΅ ΡΠ°ΠΌΠΈ ΡΡΡΠ°Π½ΠΎΠ²ΠΈΡΡ Π²ΠΈΠ½ΡΠΎΠ²ΡΠ΅ ΡΠ²Π°ΠΈ. ΠΠ½ΡΡΡΠ΅Π½Π½ΠΈΠ΅ ΠΏΠΎΠ»ΠΎΡΡΠΈ ΡΡΡΠ± ΠΌΠΎΠΆΠ½ΠΎ Π½Π°ΠΏΠΎΠ»Π½ΠΈΡΡ Π±Π΅ΡΠΎΠ½ΠΎΠΌ, ΡΡΠΎ Π΅ΡΠ΅ Π±ΠΎΠ»ΡΡΠ΅ ΡΠ²Π΅Π»ΠΈΡΠΈΡ Π½Π°Π΄Π΅ΠΆΠ½ΠΎΡΡΡ ΠΈ Π½Π΅ΡΡΡΠΈΠ΅ ΡΠΏΠΎΡΠΎΠ±Π½ΠΎΡΡΠΈ ΡΡΠ½Π΄Π°ΠΌΠ΅Π½ΡΠ°.
ΠΠ°ΠΊΡΠΈΠΌΠ°Π»ΡΠ½ΠΎΠ΅ ΡΠ°ΡΡΡΠΎΡΠ½ΠΈΠ΅ ΠΌΠ΅ΠΆΠ΄Ρ ΡΠ²Π°ΡΠΌΠΈ 2 ΠΌΠ΅ΡΡΠ°, ΠΊΠΎΠ½Π΅ΡΠ½ΠΎ, ΡΡΠΈ ΠΏΠΎΠΊΠ°Π·Π°ΡΠ΅Π»ΠΈ ΠΌΠΎΠ³ΡΡ Π½Π΅ΠΌΠ½ΠΎΠ³ΠΎ ΠΊΠΎΡΡΠ΅ΠΊΡΠΈΡΠΎΠ²Π°ΡΡΡΡ Ρ ΡΡΠ΅ΡΠΎΠΌ ΠΎΠ±ΡΠ΅Π³ΠΎ Π²Π΅ΡΠ° Π·Π΄Π°Π½ΠΈΡ. ΠΡΠ»ΠΈ Π²Ρ ΠΏΠ»Π°Π½ΠΈΡΡΠ΅ΡΠ΅ ΡΡΡΠ΅ΡΡΠ²Π΅Π½Π½ΠΎ ΡΠ²Π΅Π»ΠΈΡΠΈΡΡ Π²Π΅Ρ Β«Π²Π½ΡΡΡΠ΅Π½Π½Π΅ΠΉ Π½Π°ΡΠΈΠ½ΠΊΠΈΒ», ΡΠΎ Π½Π΅ΠΎΠ±Ρ ΠΎΠ΄ΠΈΠΌΠΎ ΡΠ°ΡΡΡΠΎΡΠ½ΠΈΠ΅ ΠΌΠ΅ΠΆΠ΄Ρ ΡΠ²Π°ΡΠΌΠΈ ΡΠΌΠ΅Π½ΡΡΠ°ΡΡ. Π Π΅ΡΠ΅. Π§Π΅ΠΌ Ρ ΡΠΆΠ΅ Π³ΡΡΠ½Ρ ΠΏΠΎ ΡΠΈΠ·ΠΈΡΠ΅ΡΠΊΠΈΠΌ Ρ Π°ΡΠ°ΠΊΡΠ΅ΡΠΈΡΡΠΈΠΊΠ°ΠΌ, ΡΠ΅ΠΌ Π³Π»ΡΠ±ΠΆΠ΅ Π΄ΠΎΠ»ΠΆΠ½Ρ Π·Π°Π»Π΅Π³Π°ΡΡ ΡΠ²Π°ΠΈ, ΡΠ΅ΠΌ Π±ΠΎΠ»ΡΡΠ΅ Π΄ΠΈΠΌΠ΅ΡΡ Π΄ΠΎΠ»ΠΆΠ½Ρ ΠΈΠΌΠ΅ΡΡ ΠΎΠΏΠΎΡΠ½ΡΠ΅ Π»ΠΎΠΏΠ°ΡΡΠΈ.

ΠΠ»Π°Π½ ΡΡΠ½Π΄Π°ΠΌΠ΅Π½ΡΠ½ΡΡ ΡΡΠΎΠ»Π±ΠΈΠΊΠΎΠ²
ΠΠΈΠΆΠ½ΡΡ ΠΎΠ±Π²ΡΠ·ΠΊΠ° ΠΈ Π»Π°Π³ΠΈ
Β
ΠΠΈΠΆΠ½ΡΡ ΠΎΠ±Π²ΡΠ·ΠΊΠ° Π²ΡΠΏΠΎΠ»Π½Π΅Π½Π° ΠΈΠ· Π±ΡΡΡΡΠ΅Π² 150Γ150Β ΠΌΠΌ, Π²Ρ ΠΌΠΎΠΆΠ΅ΡΠ΅ Π²Π·ΡΡΡ ΠΈ Π±ΠΎΠ»Π΅Π΅ ΠΌΠΎΡΠ½ΡΠ΅ Π±ΡΡΡΡΡ, ΠΌΡ ΠΆΠ΅ ΡΠ°ΡΡΡΠΈΡΡΠ²Π°Π»ΠΈ Π½Π° ΡΡΠ΅Π΄Π½ΠΈΠ΅ Π½Π°Π³ΡΡΠ·ΠΊΠΈ Π½Π° ΠΊΠ°ΡΠΊΠ°Ρ Π΄ΠΎΠΌΠ°. ΠΠ±Π²ΡΠ·ΠΊΠ° Π²ΡΠΏΠΎΠ»Π½ΡΠ΅ΡΡΡ ΠΎΠ±ΡΡΠ½ΡΠΌ ΡΠΏΠΎΡΠΎΠ±ΠΎΠΌ, Π½Π΅ Π·Π°Π±ΡΠ²Π°ΠΉΡΠ΅ ΠΏΡΠΎΠ²Π΅ΡΡΡΡ Π³ΠΎΡΠΈΠ·ΠΎΠ½ΡΠ°Π»ΡΠ½ΠΎΡΡΡ ΠΈ ΡΠ°Π·ΠΌΠ΅ΡΡ Π²ΡΠ΅ΠΉ ΠΊΠΎΠ½ΡΡΡΡΠΊΡΠΈΠΈ. ΠΠ»Ρ Π»Π°Π³ ΠΈΡΠΏΠΎΠ»ΡΠ·ΡΠΉΡΠ΅ Π±ΡΡΡΡΡ 200Γ50Β ΠΌΠΌ. ΠΠ°Π³ΠΈ ΠΌΠΎΡΠ½ΡΠ΅, ΡΠΌΠΎΠ³ΡΡ Π²ΡΠ΄Π΅ΡΠΆΠ°ΡΡ Π±ΠΎΠ»ΡΡΡΡ Π½Π°Π³ΡΡΠ·ΠΊΡ, Π½Π° ΡΠ°ΠΊΠΈΡ Π»Π°Π³Π°Ρ ΠΌΠΎΠΆΠ½ΠΎ Π΄Π΅Π»Π°ΡΡ ΠΊΠ°ΠΌΠΈΠ½Ρ ΠΈΠ»ΠΈ Π±Π°ΡΠ±Π΅ΠΊΡ. ΠΠΎΡΠΊΠΈ Π΄Π»Ρ ΠΏΠΎΠ»Π° ΠΈΠ· Ρ Π²ΠΎΠΉΠ½ΡΡ ΠΏΠΎΡΠΎΠ΄ Π΄ΡΠ΅Π²Π΅ΡΠΈΠ½Ρ, ΡΠ΅ΡΠ½ΠΎΠ²ΠΎΠΉ ΠΏΠΎΠ» ΠΌΠΎΠΆΠ½ΠΎ Π΄Π΅Π»Π°ΡΡ ΠΈΠ· Π»ΠΈΡΡΠΎΠ²ΠΎΠΉ ΠΊΠ»Π΅Π΅Π½ΠΎΠΉ ΡΠ°Π½Π΅ΡΡ, ΠΏΠ»ΠΈΡ ΠΠ‘Π ΠΈΠ»ΠΈ Π½Π΅ΠΎΠ±ΡΠ΅Π·Π½ΡΡ Π΄ΠΎΡΠΎΠΊ. ΠΡΠ±ΠΈΡΠ°ΡΡ Π²Π°ΠΌ, Π½ΠΎ ΠΌΡ ΡΠΎΠ²Π΅ΡΡΠ΅ΠΌ Π½Π΅ ΡΠ²Π»Π΅ΠΊΠ°ΡΡΡΡ ΡΠ»ΠΈΡΠΊΠΎΠΌ Π΄ΠΎΡΠΎΠ³ΠΈΠΌΠΈ ΠΌΠ°ΡΠ΅ΡΠΈΠ°Π»Π°ΠΌΠΈ. ΠΠΎΠ²ΠΎΠ»ΡΠ½ΠΎ ΡΠ°ΡΡΠΎ ΠΈΡ ΡΠ²Π΅Π»ΠΈΡΠ΅Π½Π½Π°Ρ ΡΠ΅Π½Π° ΡΠΎΠ²ΡΠ΅ΠΌ Π½Π΅ ΠΎΡΠ²Π΅ΡΠ°Π΅Ρ ΡΠ²Π΅Π»ΠΈΡΠ΅Π½Π½ΡΠΌ ΡΠΊΡΠΏΠ»ΡΠ°ΡΠ°ΡΠΈΠΎΠ½Π½ΡΠΌ Ρ Π°ΡΠ°ΠΊΡΠ΅ΡΠΈΡΡΠΈΠΊΠ°ΠΌ.

ΠΠΈΠΆΠ½ΡΡ ΠΎΠ±Π²ΡΠ·ΠΊΠ°

Π‘Ρ Π΅ΠΌΠ° Π»Π°Π³
ΠΠ΅ΡΡ Π½ΡΡ ΠΎΠ±Π²ΡΠ·ΠΊΠ°
ΠΠ΅ΡΡΠΈΠΊΠ°Π»ΡΠ½ΡΠ΅ ΡΡΠΎΠΉΠΊΠΈ ΡΠΎΠ΅Π΄ΠΈΠ½ΡΡΡΡΡ Π»Π΅ΠΆΠ½ΡΠΌΠΈ ΠΈΠ· Π±ΡΡΡΡΠ΅Π² 150Γ50Β ΠΌΠΌ, ΡΠΎΠ΅Π΄ΠΈΠ½Π΅Π½ΠΈΠ΅ Π²ΡΠΏΠΎΠ»Π½ΡΠΉΡΠ΅ ΠΏΡΠΈ ΠΏΠΎΠΌΠΎΡΠΈ ΠΌΠ΅ΡΠ°Π»Π»ΠΈΡΠ΅ΡΠΊΠΈΡ ΡΠ³ΠΎΠ»ΠΊΠΎΠ². Π£Π³ΠΎΠ»ΠΊΠΈ Π΄ΠΎΠ»ΠΆΠ½Ρ ΠΈΠΌΠ΅ΡΡ ΡΠ²Π΅Π»ΠΈΡΠ΅Π½Π½ΡΡ ΡΠΎΠ»ΡΠΈΠ½Ρ, ΡΠ°Π΄ΠΈΡΠ΅ ΠΈΡ Π½Π° ΡΠ°ΠΌΠΎΡΠ΅Π·Ρ, Π² ΡΠ΅Π»ΠΎ Π΄Π΅ΡΠ΅Π²Π° ΡΠ°ΠΌΠΎΡΠ΅Π· Π΄ΠΎΠ»ΠΆΠ΅Π½ Π²Ρ ΠΎΠ΄ΠΈΡΡ Π½Π΅ ΠΌΠ΅Π½Π΅Π΅ ΡΠ΅ΠΌ Π½Π° ΡΠ΅ΡΡΡΠ΅ ΡΠ°Π½ΡΠΈΠΌΠ΅ΡΡΠ°. ΠΠ°ΠΊ ΠΈ Π²ΡΠ΅Π³Π΄Π° Π½Π΅ ΡΡΡΠ°Π΅ΠΌ Π²Π°ΠΌ Π½Π°ΠΏΠΎΠΌΠΈΠ½Π°ΡΡ β Π²Π½ΠΈΠΌΠ°ΡΠ΅Π»ΡΠ½ΠΎ ΠΏΡΠΎΠ²Π΅ΡΡΠΉΡΠ΅ Π²ΡΠ΅ ΡΠ°Π·ΠΌΠ΅ΡΡ. ΠΠΎΠΌΠ½ΠΈΡΠ΅, ΡΡΠΎ ΠΊΠ°ΠΆΠ΄Π°Ρ ΠΎΡΠΈΠ±ΠΊΠ° Π²ΠΎ Π²ΡΠ΅ΠΌΡ ΡΡΡΠΎΠΈΡΠ΅Π»ΡΡΡΠ²Π° Π²Π΅ΡΡ Π½Π΅ΠΉ ΠΎΠ±Π²ΡΠ·ΠΊΠΈ ΡΡΡΠ΄Π½ΠΎ ΠΈΡΠΏΡΠ°Π²Π»ΡΠ΅ΡΡΡ. ΠΠ΅ΡΡ Π½ΡΡ ΠΎΠ±Π²ΡΠ·ΠΊΡ ΠΎΠ΄Π½ΠΎΠΌΡ Π½Π΅ ΡΠ΄Π΅Π»Π°ΡΡ, ΠΏΡΠΈΠ΄Π΅ΡΡΡ ΠΎΠ±ΡΠ°ΡΠ°ΡΡΡΡ Π·Π° ΠΏΠΎΠΌΠΎΡΡΡ ΠΊ Π΄ΡΡΠ·ΡΡΠΌ. ΠΠΎΡΡΠ°ΡΠ°ΠΉΡΠ΅ΡΡ ΠΏΠΎΠ·Π²Π°ΡΡ ΡΠ°ΠΊΠΎΠ³ΠΎ Π΄ΡΡΠ³Π°, ΠΊΠΎΡΠΎΡΡΠΉ ΡΠΆΠ΅ ΠΈΠΌΠ΅Π» ΠΎΡΠ½ΠΎΡΠ΅Π½ΠΈΠ΅ ΠΊ ΡΡΡΠΎΠΈΡΠ΅Π»ΡΡΡΠ²Ρ ΠΈ ΡΠΌΠΎΠΆΠ΅Ρ Π²Π°ΠΌ Π΄Π°ΡΡ Π΄Π΅Π»ΡΠ½ΡΠ΅ ΡΠΎΠ²Π΅ΡΡ ΠΏΠΎ Ρ ΠΎΠ΄Ρ Π²ΡΠΏΠΎΠ»Π½Π΅Π½ΠΈΡ ΡΡΡΠΎΠΈΡΠ΅Π»ΡΠ½ΡΡ ΡΠ°Π±ΠΎΡ.

ΠΠ΅ΡΡ Π½ΡΡ ΠΎΠ±Π²ΡΠ·ΠΊΠ°
ΠΡΡΡΠ°
ΠΡΡΡΠ° Π»ΠΎΠΌΠ°Π½Π½Π°Ρ, Π΄Π²ΡΡ ΡΠΊΠ°ΡΠ½Π°Ρ, ΠΈΠΌΠ΅Π΅Ρ ΡΠ²ΠΎΠΈ ΠΎΡΠΎΠ±Π΅Π½Π½ΠΎΡΡΠΈ. ΠΠ΄ΠΈΠ½ ΠΈΠ· ΡΠΊΠ°ΡΠΎΠ² (ΠΏΡΠΈ Π²Ρ ΠΎΠ΄Π΅) ΠΌΡ ΡΠ΄Π΅Π»Π°Π»ΠΈ Π΄Π»ΠΈΠ½Π½ΡΠΌ, ΡΠ΅ΠΏΠ΅ΡΡ ΠΎΠ½ ΡΠ»ΡΠΆΠΈΡ ΠΈ Π² ΠΊΠ°ΡΠ΅ΡΡΠ²Π΅ Π½Π°Π²Π΅ΡΠ°. Π‘Ρ Π΅ΠΌΠ° ΡΡΡΠΎΠΏΠΈΠ» ΡΡΠΈΡΡΠ²Π°Π΅Ρ Π²ΠΎΠ·ΠΌΠΎΠΆΠ½ΡΠ΅ ΠΌΠ°ΠΊΡΠΈΠΌΠ°Π»ΡΠ½ΡΠ΅ ΡΠ½Π΅Π³ΠΎΠ²ΡΠ΅ ΠΈ Π²Π΅ΡΡΠΎΠ²ΡΠ΅ Π½Π°Π³ΡΡΠ·ΠΊΠΈ Π² ΡΠ΅Π³ΠΈΠΎΠ½Π΅, Ρ ΡΡΠ΅ΡΠΎΠΌ ΡΡΠΈΡ ΠΏΠΎΠΊΠ°Π·Π°ΡΠ΅Π»Π΅ΠΉ ΠΏΠΎΠ΄Π±ΠΈΡΠ°Π»ΠΈΡΡ ΠΏΠ°ΡΠ°ΠΌΠ΅ΡΡΡ ΡΡΡΠΎΠΏΠΈΠ» ΠΈ ΠΏΠΎΠ΄ΡΡΡΠΎΠΏΠΈΠ»ΡΠ½ΡΡ Π½Π΅ΡΡΡΠΈΡ ΠΊΠΎΠ½ΡΡΡΡΠΊΡΠΈΠΎΠ½Π½ΡΡ ΡΠ»Π΅ΠΌΠ΅Π½ΡΠΎΠ². ΠΠΈΠΆΠ½ΠΈΠΉ ΡΠΊΠ°Ρ ΡΠ΄Π»ΠΈΠ½Π΅Π½Π½ΠΎΠΉ ΠΊΡΡΡΠΈ ΠΎΠΏΠΈΡΠ°Π΅ΡΡΡ Π½Π° ΡΡΠΎΠ»Π±ΡΠ°ΡΡΠ΅ ΠΎΠΏΠΎΡΡ. ΠΡ ΠΈΡΠΏΠΎΠ»ΡΠ·ΠΎΠ²Π°Π»ΠΈ Π΄Π΅ΡΠ΅Π²ΡΠ½Π½ΡΠ΅ ΠΎΠΏΠΎΡΡ Π½Π° ΡΡΠΎΠ»Π±ΡΠ°ΡΡΡ ΡΡΠ½Π΄Π°ΠΌΠ΅Π½ΡΠ°Ρ , Π²Ρ ΠΌΠΎΠΆΠ΅ΡΠ΅ ΠΏΡΠΈΠΌΠ΅Π½ΠΈΡΡ Π΄ΡΡΠ³ΠΈΠ΅ ΡΠΏΠΎΡΠΎΠ±Ρ. Π‘ΡΠΎΡΠΎΠ½Ρ Π½Π°Π²Π΅ΡΠ° ΠΌΠΎΠΆΠ½ΠΎ ΡΠΊΡΠ°ΡΠΈΡΡ Π΄Π΅ΠΊΠΎΡΠ°ΡΠΈΠ²Π½ΡΠΌΠΈ ΡΠ΅ΡΠ΅ΡΠΊΠ°ΠΌΠΈ, ΠΎΡΡΠ΅ΠΊΠ»ΠΈΡΡ ΠΈΠ»ΠΈ ΡΡΡΠ°Π½ΠΎΠ²ΠΈΡΡ ΠΌΠ΅ΡΠ°Π»Π»ΠΈΡΠ΅ΡΠΊΠΈΠ΅ ΠΈΠ»ΠΈ ΠΏΠ»Π°ΡΡΠΈΠΊΠΎΠ²ΡΠ΅ ΠΆΠ°Π»ΡΠ·ΠΈ.

Π‘Ρ Π΅ΠΌΠ° ΡΡΡΠΎΠΏΠΈΠ»

Π‘Ρ Π΅ΠΌΠ° ΠΊΡΡΡΠΈ
Π€ΠΈΠ½ΠΈΡΠ½Π°Ρ ΠΎΡΠ΄Π΅Π»ΠΊΠ° ΡΠ°ΡΠ°Π΄Π½ΡΡ ΡΡΠ΅Π½
ΠΠ΅ ΡΠ΅ΠΊΠΎΠΌΠ΅Π½Π΄ΡΠ΅ΠΌ Π²Π°ΠΌ ΠΈΡΠΏΠΎΠ»ΡΠ·ΠΎΠ²Π°ΡΡ Π΄Π΅ΡΠ΅Π²ΡΠ½Π½ΡΡ Π²Π°Π³ΠΎΠ½ΠΊΡ β ΠΌΠ½ΠΎΠ³ΠΎ ΠΏΡΠΎΠ±Π»Π΅ΠΌ Ρ ΠΏΠ΅ΡΠΈΠΎΠ΄ΠΈΡΠ΅ΡΠΊΠΈΠΌ ΠΎΠ±ΡΠ»ΡΠΆΠΈΠ²Π°Π½ΠΈΠ΅ΠΌ. ΠΡΡΡΠ΅ ΠΈΡΠΏΠΎΠ»ΡΠ·ΡΠΉΡΠ΅ Π»ΡΠ±ΡΠ΅ ΠΏΠ»Π°ΡΡΠΈΠΊΠΎΠ²ΡΠ΅ ΠΌΠ°ΡΠ΅ΡΠΈΠ°Π»Ρ ΠΈΠ»ΠΈ ΠΌΠ΅ΡΠ°Π»Π»ΠΎΠΏΡΠΎΡΠΈΠ»Ρ. ΠΠ½Π΅ΡΠ½ΠΈΠ΅ ΡΡΠ΅Π½Ρ Π΄ΠΎΠ»ΠΆΠ½Ρ ΠΈΠΌΠ΅ΡΡ ΠΎΡΠ΅Π½Ρ Π½Π°Π΄Π΅ΠΆΠ½ΡΡ Π³ΠΈΠ΄ΡΠΎΠΈΠ·ΠΎΠ»ΡΡΠΈΡ ΠΈ Π΅ΡΡΠ΅ΡΡΠ²Π΅Π½Π½ΡΡ Π²Π΅Π½ΡΠΈΠ»ΡΡΠΈΡ. ΠΠ΅ Π·Π°Π±ΡΠ²Π°ΠΉΡΠ΅ ΠΎΠ± ΡΡΠΎΠΌ.
pilomaterial-stroi.ru
ΠΡΠΎΠ΅ΠΊΡ Π½Π΅Π±ΠΎΠ»ΡΡΠΎΠ³ΠΎ ΠΊΠ°ΡΠΊΠ°ΡΠ½ΠΎΠ³ΠΎ Π΄ΠΎΠΌΠ°. ΠΠ΄Π΅ΠΈ ΠΈ ΡΠΎΡΠΎ
Π Π½Π°ΡΡΠΎΡΡΠ΅Π΅ Π²ΡΠ΅ΠΌΡ ΠΊΠ°ΡΠΊΠ°ΡΠ½ΡΠ΅ Π΄ΠΎΠΌΠ° ΡΡΠ°Π»ΠΈ ΠΏΠΎΠ»ΡΠ·ΠΎΠ²Π°ΡΡΡΡ Π·Π°Π²ΠΈΠ΄Π½ΠΎΠΉ ΠΏΠΎΠΏΡΠ»ΡΡΠ½ΠΎΡΡΡΡ, ΠΏΠΎΡΠΊΠΎΠ»ΡΠΊΡ ΠΎΠ½ΠΈ ΠΌΠΎΠ³ΡΡ Π²ΠΎΠ·Π²ΠΎΠ΄ΠΈΡΡΡΡ Π² ΡΠ°ΠΌΡΠ΅ ΠΊΠΎΡΠΎΡΠΊΠΈΠ΅ ΡΡΠΎΠΊΠΈ. ΠΠΎΠΌΠΈΠΌΠΎ ΡΡΠΎΠ³ΠΎ, ΠΎΠ½ΠΈ ΠΎΡΠ»ΠΈΡΠ½ΠΎ ΠΏΠΎΠ΄Ρ
ΠΎΠ΄ΡΡ Π΄Π»Ρ ΡΡΡΠΎΠΈΡΠ΅Π»ΡΡΡΠ²Π° Π½Π° Π΄Π°ΡΠ½ΠΎΠΌ ΡΡΠ°ΡΡΠΊΠ΅ ΠΈΠ»ΠΈ ΠΆΠ΅ Π΄Π»Ρ ΠΏΠΎΡΡΠΎΡΠ½Π½ΠΎΠ³ΠΎ ΠΏΡΠΎΠΆΠΈΠ²Π°Π½ΠΈΡ Π½Π΅Π±ΠΎΠ»ΡΡΠΈΡ
ΡΠ΅ΠΌΠ΅ΠΉ. ΠΡΠΈΠΌΠ΅ΡΠ°ΡΠ΅Π»ΡΠ½ΠΎ, ΡΡΠΎ Ρ Π½Π΅Π΄Π°Π²Π½Π΅Π³ΠΎ Π²ΡΠ΅ΠΌΠ΅Π½ΠΈ Π²ΠΎΠ·Π²Π΅ΡΡΠΈ Π½Π΅Π±ΠΎΠ»ΡΡΠΎΠΉ ΠΊΠ°ΡΠΊΠ°ΡΠ½ΡΠΉ Π΄ΠΎΠΌ ΡΡΠ°Π»ΠΎ Π΄ΠΎΡΡΡΠΏΠ½ΠΎ ΠΊΠ°ΠΆΠ΄ΠΎΠΌΡ, ΠΏΠΎΡΠΊΠΎΠ»ΡΠΊΡ ΠΏΠΎΡΠ²ΠΈΠ»ΠΎΡΡ Π½Π΅ΠΌΠ°Π»ΠΎ ΠΊΠΎΠΌΠΏΠ°Π½ΠΈΠΉ, Π·Π°Π½ΠΈΠΌΠ°ΡΡΠΈΡ
ΡΡ ΡΡΡΠΎΠΈΡΠ΅Π»ΡΡΡΠ²ΠΎΠΌ ΠΏΠΎΠ΄ΠΎΠ±Π½ΡΡ
ΠΎΠ±ΡΠ΅ΠΊΡΠΎΠ². ΠΠΎΠ²ΠΎΡΡ ΠΎ ΡΠ°ΠΊΠΈΡ
ΡΡΡΠΎΠ΅Π½ΠΈΡΡ
Π½Π΅ ΡΡΠΎΠΈΡ Π΄ΡΠΌΠ°ΡΡ, ΡΡΠΎ ΠΎΠ½ΠΈ ΠΈΠΌΠ΅ΡΡ ΠΏΡΠ΅Π΄Π΅Π»ΡΠ½ΠΎ ΠΌΠ°Π»ΡΠ΅ Π³Π°Π±Π°ΡΠΈΡΡ β Π½Π° ΠΏΡΠ°ΠΊΡΠΈΠΊΠ΅ ΠΈΠ· Π²ΠΏΠΎΠ»Π½Π΅ Π΄ΠΎΡΡΠ°ΡΠΎΡΠ½ΠΎ Π΄Π»Ρ ΠΏΡΠΎΠΆΠΈΠ²Π°Π½ΠΈΡ ΠΎΠ±ΡΡΠ½ΠΎΠΉ ΡΠ΅ΠΌΡΠΈ ΠΈΠ· ΡΡΠ΅Ρ
ΡΠ΅Π»ΠΎΠ²Π΅ΠΊ. ΠΠ°ΡΠΊΠ°ΡΠ½ΠΎΠ΅ ΡΡΡΠΎΠΈΡΠ΅Π»ΡΡΡΠ²ΠΎ ΡΡΠ°Π»ΠΎ ΡΠ°ΡΠΏΡΠΎΡΡΡΠ°Π½Π΅Π½ΠΎ Π² ΠΠ°Π½Π°Π΄Π΅ Π΅ΡΠ΅ Π½Π΅ΡΠΊΠΎΠ»ΡΠΊΠΎ Π΄Π΅ΡΡΡΠΊΠΎΠ² Π»Π΅Ρ Π½Π°Π·Π°Π΄, ΠΎΠ΄Π½Π°ΠΊΠΎ Π½Π° ΡΠ΅ΡΡΠΈΡΠΎΡΠΈΠΈ Π½Π°ΡΠ΅ΠΉ ΡΡΡΠ°Π½Ρ ΡΡΠ° ΡΠ΅Ρ
Π½ΠΎΠ»ΠΎΠ³ΠΈΡ ΠΏΠΎΡΠ²ΠΈΠ»Π°ΡΡ Π½Π΅Π΄Π°Π²Π½ΠΎ.

Β
Π‘Π²ΠΎΠ΅ΠΉ ΠΏΠΎΠΏΡΠ»ΡΡΠ½ΠΎΡΡΡΡ Π² Π ΠΎΡΡΠΈΠΈ ΠΊΠ°ΡΠΊΠ°ΡΠ½ΡΠ΅ Π΄ΠΎΠΌΠ° ΠΎΠ±ΡΠ·Π°Π½Ρ ΡΠ½ΠΈΠΊΠ°Π»ΡΠ½ΡΠΌΠΈ ΠΊΠ°ΡΠ΅ΡΡΠ²Π°ΠΌΠΈ, Π° ΠΈΠΌΠ΅Π½Π½ΠΎ:
β’ ΡΠΎΡ
ΡΠ°Π½ΡΡΡ ΡΠ΅ΠΏΠ»ΠΎ Π²Π½ΡΡΡΠΈ ΠΏΠΎΠΌΠ΅ΡΠ΅Π½ΠΈΡ Π΄Π°ΠΆΠ΅ Π² ΡΠΈΠ»ΡΠ½ΡΠ΅ ΠΌΠΎΡΠΎΠ·Ρ;
β’ Π² ΠΆΠ°ΡΠΊΡΡ ΠΏΠΎΠ³ΠΎΠ΄Ρ ΡΠΎΡ
ΡΠ°Π½ΡΡΡ ΠΌΠΈΠΊΡΠΎΠΊΠ»ΠΈΠΌΠ°Ρ ΠΏΠΎΠΌΠ΅ΡΠ΅Π½ΠΈΡ Π½Π° Π΄ΠΎΠ»ΠΆΠ½ΠΎΠΌ ΡΡΠΎΠ²Π½Π΅;
β’ ΠΏΡΠΎΡΡΠΎΡΠ° Π² ΠΎΠ±ΡΠ»ΡΠΆΠΈΠ²Π°Π½ΠΈΠΈ ΠΈΠ·-Π·Π° Π½Π΅Π±ΠΎΠ»ΡΡΠΈΡ
Π³Π°Π±Π°ΡΠΈΡΠΎΠ²;
β’ ΠΏΡΡΡΡΠΎΡΠ° Π²ΠΎΠ·Π²Π΅Π΄Π΅Π½ΠΈΡ ΠΏΠΎΡΡΡΠΎΠΉΠΊΠΈ.
Β
Β
ΠΠ΅Π±ΠΎΠ»ΡΡΠΈΠ΅ ΠΊΠ°ΡΠΊΠ°ΡΠ½ΡΠ΅ Π΄ΠΎΠΌΠ° Π½Π° ΡΠΎΡΠΎ
ΠΡΠ»ΠΈ ΠΠ°Ρ ΠΈΠ½ΡΠ΅ΡΠ΅ΡΡΠ΅Ρ Π΄Π°Π½Π½Π°Ρ ΡΠ΅ΠΌΠ°ΡΠΈΠΊΠ°, ΡΠΎ ΠΡ Π²ΡΠ΅Π³Π΄Π° ΠΌΠΎΠΆΠ΅ΡΠ΅ Π½Π°ΠΉΡΠΈ Π² ΡΠ΅ΡΠΈ ΠΏΡΠΎΠ΅ΠΊΡΡ ΠΎΠ΄Π½ΠΎΡΡΠ°ΠΆΠ½ΡΡ
Π΄ΠΎΠΌΠΎΠ², ΠΎΡΠΈΠ΅Π½ΡΠΈΡΠΎΠ²Π°Π½Π½ΡΠ΅ Π½Π° ΠΊΠ°ΡΠΊΠ°ΡΠ½ΠΎΠ΅ ΡΡΡΠΎΠΈΡΠ΅Π»ΡΡΡΠ²ΠΎ. Π‘ΡΠ΅Π΄ΠΈ ΡΠ²Π½ΡΡ
ΠΏΡΠ΅ΠΈΠΌΡΡΠ΅ΡΡΠ² ΡΠ°ΠΊΠΈΡ
Π΄ΠΎΠΌΠΎΠ² ΡΡΠΎΠΈΡ Π²ΡΠ΄Π΅Π»ΠΈΡΡ, ΡΡΠΎ ΠΏΡΠΈΠΌΠ΅Π½ΡΠ΅ΠΌΡΠ΅ Π±Π»ΠΎΠΊΠΈ ΠΈΠΌΠ΅ΡΡ ΠΏΡΠ΅Π΄Π΅Π»ΡΠ½ΠΎ ΠΌΠ°Π»ΡΠΉ Π²Π΅Ρ, ΡΡΠΎ Π²Π΅ΡΠΎΠΌΠΎ ΠΎΠ±Π»Π΅Π³ΡΠ°Π΅Ρ ΠΏΡΠΎΡΠ΅ΡΡ Π΄ΠΎΡΡΠ°Π²ΠΊΠΈ ΡΡΡΠΎΠΈΡΠ΅Π»ΡΠ½ΡΡ
ΠΌΠ°ΡΠ΅ΡΠΈΠ°Π»ΠΎΠ² Π½Π° ΠΏΠ»ΠΎΡΠ°Π΄ΠΊΡ, Π³Π΄Π΅ Π±ΡΠ΄Π΅Ρ Π²ΠΎΠ·Π²ΠΎΠ΄ΠΈΡΡΡΡ ΡΡΡΠΎΠ΅Π½ΠΈΠ΅. Π ΠΊΠΎΠ½Π΅ΡΠ½ΠΎΠΌ ΠΈΡΠΎΠ³Π΅ Π»ΡΠ΄ΠΈ ΠΌΠΎΠ³ΡΡ Π½Π΅ΠΌΠ°Π»ΠΎ ΡΡΠΊΠΎΠ½ΠΎΠΌΠΈΡΡ Π½Π° ΡΡΡΠΎΠΈΡΠ΅Π»ΡΡΡΠ²Π΅ ΡΡΠ½Π΄Π°ΠΌΠ΅Π½ΡΠ°, Π° ΡΠ°ΠΊΠΆΠ΅ Π½Π° ΡΠΈΠ·ΠΈΡΠ΅ΡΠΊΠΈΡ
ΡΠ°Π±ΠΎΡΠ°Ρ
, ΠΏΠΎΡΠΊΠΎΠ»ΡΠΊΡ Π²ΡΠ΅ ΠΌΠ°ΡΠ΅ΡΠΈΠ°Π»Ρ Π»Π΅Π³ΠΊΠΈΠ΅. Π ΠΏΡΠΎΡΠ΅ΡΡΠ΅ ΡΡΡΠΎΠΈΡΠ΅Π»ΡΡΡΠ²Π° Π½Π΅ ΠΏΡΠΈΡ
ΠΎΠ΄ΠΈΡΡΡ ΠΈΡΠΏΠΎΠ»ΡΠ·ΠΎΠ²Π°ΡΡ ΡΡΠΆΠ΅Π»ΡΡ ΡΠΏΠ΅ΡΡΠ΅Ρ
Π½ΠΈΠΊΡ, ΡΡΠΎ ΡΠ°ΠΊΠΆΠ΅ ΠΏΠΎΠ·Π²ΠΎΠ»ΡΠ΅Ρ Π·Π½Π°ΡΠΈΡΠ΅Π»ΡΠ½ΠΎ ΡΠΊΠΎΠ½ΠΎΠΌΠΈΡΡ. ΠΠ΅Π±ΠΎΠ»ΡΡΠΈΠ΅ ΠΊΠ°ΡΠΊΠ°ΡΠ½ΡΠ΅ Π΄ΠΎΠΌΠ° Π½Π° ΡΠΎΡΠΎ ΠΌΠΎΠΆΠ΅ΡΠ΅ Π²ΠΈΠ΄Π΅ΡΡ Π² ΡΠ΅ΡΠΈ ΠΈ Π½Π° Π½Π°ΡΠ΅ΠΌ ΡΠ΅ΡΡΡΡΠ΅. Π’Π΅ΠΏΠ΅ΡΡ ΠΈΠΌΠ΅Π΅ΡΡΡ Π²ΠΎΠ·ΠΌΠΎΠΆΠ½ΠΎΡΡΡ Π²ΡΠ±ΡΠ°ΡΡ ΠΈΠΌΠ΅Π½Π½ΠΎ ΡΠΎΡ ΠΏΡΠΎΠ΅ΠΊΡ, ΠΊΠΎΡΠΎΡΡΠΉ ΠΏΠΎΠΊΠ°ΠΆΠ΅ΡΡΡ ΠΠ°ΠΌ Π½Π°ΠΈΠ±ΠΎΠ»Π΅Π΅ ΠΏΠΎΠ΄Ρ
ΠΎΠ΄ΡΡΠΈΠΌ.
ΠΡΠΈΠΌΠ΅ΡΠ°ΡΠ΅Π»ΡΠ½ΠΎ, ΡΡΠΎ ΡΡΠ΅Π½Ρ ΠΊΠ°ΡΠΊΠ°ΡΠ½ΡΡ
ΠΈΠ»ΠΈ ΠΊΠ°ΠΊ ΠΈΡ
Π΅ΡΠ΅ ΠΏΡΠΈΠ½ΡΡΠΎ Π½Π°Π·ΡΠ²Π°ΡΡ ΠΊΠ°Π½Π°Π΄ΡΠΊΠΈΡ
Π΄ΠΎΠΌΠΎΠ², ΠΎΠ±Π»Π°Π΄Π°ΡΡ ΠΏΠΎΠ²ΡΡΠ΅Π½Π½ΡΠΌΠΈ ΡΠ΅ΠΏΠ»ΠΎΠΈΠ·ΠΎΠ»ΡΡΠΈΠΎΠ½Π½ΡΠΌΠΈ Ρ
Π°ΡΠ°ΠΊΡΠ΅ΡΠΈΡΡΠΈΠΊΠ°ΠΌΠΈ, ΠΊΠΎΡΠΎΡΡΡ
ΡΠ΄Π°Π»ΠΎΡΡ Π΄ΠΎΡΡΠΈΡΡ Π±Π»Π°Π³ΠΎΠ΄Π°ΡΡ ΠΏΡΠΈΠΌΠ΅Π½Π΅Π½ΠΈΡ ΠΈΠ½Π½ΠΎΠ²Π°ΡΠΈΠΎΠ½Π½ΡΡ
ΠΌΠ°ΡΠ΅ΡΠΈΠ°Π»ΠΎΠ². ΠΠ΅Π±ΠΎΠ»ΡΡΠΎΠΉ Π΄ΠΎΠΌ ΠΈΠ· ΠΏΠ΅Π½ΠΎΠ±Π»ΠΎΠΊΠΎΠ² ΠΌΠΎΠΆΠ΅Ρ Π±ΡΡΡ ΠΏΠΎΡΡΡΠΎΠ΅Π½ Π²ΡΠ΅Π³ΠΎ Π·Π° Π½Π΅ΡΠΊΠΎΠ»ΡΠΊΠΎ Π½Π΅Π΄Π΅Π»Ρ, ΠΏΠΎΡΠ»Π΅ ΡΠ΅Π³ΠΎ ΠΎΡΡΠ°Π½Π΅ΡΡΡ ΡΠΎΠ»ΡΠΊΠΎ Π²ΡΠΏΠΎΠ»Π½ΠΈΡΡ ΠΊΠΎΡΠΌΠ΅ΡΠΈΡΠ΅ΡΠΊΠΈΠ΅ ΡΠ°Π±ΠΎΡΡ. ΠΡΠΈΠΌΠ΅ΡΠ°ΡΠ΅Π»ΡΠ½ΠΎ, ΡΡΠΎ ΡΡΠΎΡ ΠΌΠ°ΡΠ΅ΡΠΈΠ°Π» Π΄Π°ΠΆΠ΅ ΠΏΡΠΈ Π²ΡΠ΅Ρ
ΡΠ²ΠΎΠΈΡ
ΡΠ°Π·ΠΌΠ΅ΡΠ°Ρ
ΠΌΠΎΠΆΠ΅Ρ Π΄Π΅ΡΠΆΠ°ΡΡ ΡΠ΅ΠΏΠ»ΠΎΡΡ Π²Π½ΡΡΡΠΈ ΠΏΠΎΠΌΠ΅ΡΠ΅Π½ΠΈΡ Π½Π°ΠΌΠ½ΠΎΠ³ΠΎ Π»ΡΡΡΠ΅, Π½Π΅ΠΆΠ΅Π»ΠΈ ΠΎΠ±ΡΡΠ½ΡΠΉ ΠΊΠΈΡΠΏΠΈΡ. ΠΡΠ»ΠΈ Π³ΠΎΠ²ΠΎΡΠΈΡΡ ΠΎ ΡΠ°ΠΌΡΡ
ΡΡΠΊΠΈΡ
Π΄ΠΎΡΡΠΎΠΈΠ½ΡΡΠ²Π°Ρ
ΠΊΠ°ΡΠΊΠ°ΡΠ½ΡΡ
ΡΡΡΠΎΠ΅Π½ΠΈΠΉ, ΡΠΎ Π·Π΄Π΅ΡΡ Π² ΠΏΠ΅ΡΠ²ΡΡ ΠΎΡΠ΅ΡΠ΅Π΄Ρ Π²ΡΠ΄Π΅Π»ΡΠ΅ΡΡΡ ΠΈΡ
ΠΏΡΠ΅Π΄Π΅Π»ΡΠ½ΠΎ Π½ΠΈΠ·ΠΊΠ°Ρ ΡΡΠΎΠΈΠΌΠΎΡΡΡ. ΠΡΠΎΠ΅ΠΊΡ Π½Π΅Π±ΠΎΠ»ΡΡΠΎΠ³ΠΎ ΠΊΠ°ΡΠΊΠ°ΡΠ½ΠΎΠ³ΠΎ Π΄ΠΎΠΌΠ° ΠΌΠΎΠΆΠ΅Ρ ΡΡΠ°ΡΡ ΠΎΡΠΏΡΠ°Π²Π½ΠΎΠΉ ΡΠΎΡΠΊΠΎΠΉ Π½Π°ΡΠ°Π»Π° ΡΡΡΠΎΠΈΡΠ΅Π»ΡΡΡΠ²Π° ΠΈ ΡΠ΅ΠΏΠ΅ΡΡ Π½Π΅Ρ Π½Π°Π΄ΠΎΠ±Π½ΠΎΡΡΠΈ Π΅Π³ΠΎ Π·Π°ΠΊΠ°Π·ΡΠ²Π°ΡΡ Π² ΡΠΏΠ΅ΡΠΈΠ°Π»ΡΠ½ΡΡ
ΠΊΠΎΠΌΠΏΠ°Π½ΠΈΡΡ
, ΠΏΠΎΡΠΊΠΎΠ»ΡΠΊΡ ΡΠ°ΠΊΠΈΠ΅ ΠΏΡΠΎΠ΅ΠΊΡΡ ΡΡΠ°Π»ΠΈ Π΄ΠΎΡΡΡΠΏΠ½Ρ Π² ΡΠ΅ΡΠΈ ΠΈΠ½ΡΠ΅ΡΠ½Π΅Ρ.
ΠΠΎΠΏΡΠΎΡΡ ΡΠΊΠΎΠ»ΠΎΠ³ΠΈΡΠ΅ΡΠΊΠΎΠΉ ΡΠΈΡΡΠΎΡΡ ΡΡΡΠΎΠ΅Π½ΠΈΠΉ Π² Π½Π°ΡΡΠΎΡΡΠ΅Π΅ Π²ΡΠ΅ΠΌΡ ΠΎΠ±ΡΡΠΆΠ΄Π°ΡΡΡΡ Π΄ΠΎΡΡΠ°ΡΠΎΡΠ½ΠΎ ΡΠΈΡΠΎΠΊΠΎ ΠΈ Π½Π΅ΡΠ΅Π΄ΠΊΠΎ ΡΡΠ° ΡΠ΅ΠΌΠ° ΠΏΠΎΠ΄Π½ΠΈΠΌΠ°Π΅ΡΡΡ Π² ΠΎΡΠ½ΠΎΡΠ΅Π½ΠΈΠΈ ΠΊΠ°ΡΠΊΠ°ΡΠ½ΠΎΠ³ΠΎ ΡΡΡΠΎΠΈΡΠ΅Π»ΡΡΡΠ²Π°. ΠΠΎΠ²ΠΎΡΡ ΠΎΡΠΊΡΠΎΠ²Π΅Π½Π½ΠΎ, ΠΌΠΎΠΆΠ½ΠΎ ΡΠΌΠ΅Π»ΠΎ ΡΡΠ²Π΅ΡΠΆΠ΄Π°ΡΡ ΠΎ Π²ΡΠ΅Π΄Π΅ Π»ΡΠ±ΠΎΠ³ΠΎ ΡΡΡΠΎΠΈΡΠ΅Π»ΡΡΡΠ²Π° Π΄Π»Ρ ΠΏΡΠΈΡΠΎΠ΄Ρ ΠΈ ΠΊΠ°ΡΠΊΠ°ΡΠ½ΠΎΠ΅ ΡΡΡΠΎΠΈΡΠ΅Π»ΡΡΡΠ²ΠΎ Π½Π΅ ΡΡΠ°Π½Π΅Ρ ΠΊΠ°ΠΊΠΈΠΌ-ΡΠΎ ΠΈΡΠΊΠ»ΡΡΠ΅Π½ΠΈΠ΅ΠΌ. ΠΠ°ΡΠΊΠ°ΡΠ½ΡΠ΅ Π΄ΠΎΠΌΠ° ΡΡΡΠΎΡΡΡΡ Π² Π±ΠΎΠ»ΡΡΠΈΠ½ΡΡΠ²Π΅ ΡΠ»ΡΡΠ°Π΅Π² ΠΈΠ· Π΄ΡΠ΅Π²Π΅ΡΠΈΠ½Ρ, ΡΡΠΎ ΡΠΆΠ΅ Π³ΠΎΠ²ΠΎΡΠΈΡ ΠΎΠ± ΡΡΠ΅ΡΠ±Π΅ ΠΏΡΠΈΡΠΎΠ΄Π΅. ΠΠ΅Π±ΠΎΠ»ΡΡΠΎΠΉ Π΄ΠΎΠΌ ΠΈΠ· Π±ΡΡΡΠ° Π±ΡΠ΄Π΅Ρ ΡΠ²Π»ΡΡΡΡΡ ΡΡΡΠΎΠ΅Π½ΠΈΠ΅ΠΌ, ΠΌΠ°ΠΊΡΠΈΠΌΠ°Π»ΡΠ½ΠΎ ΡΠΊΠΎΠ»ΠΎΠ³ΠΈΡΠ΅ΡΠΊΠΈ ΡΠΈΡΡΡΠΌ, ΠΎΠ΄Π½Π°ΠΊΠΎ ΠΏΡΠΈ ΡΡΠΎΠΌ Π±ΡΠ΄Π΅Ρ Π½Π°Π½Π΅ΡΠ΅Π½ Π²ΡΠ΅Π΄ ΠΏΡΠΈΡΠΎΠ΄Π΅ Π½Π° ΡΡΠ°ΠΏΠ΅ Π΅Π³ΠΎ ΡΡΡΠΎΠΈΡΠ΅Π»ΡΡΡΠ²Π°. Π‘ Π΄ΡΡΠ³ΠΎΠΉ ΡΡΠΎΡΠΎΠ½Ρ, Π½Π΅ΡΠ΅Π΄ΠΊΠΎ ΠΏΡΠΈΠΌΠ΅Π½ΡΡΡ ΠΎΡΡ
ΠΎΠ΄Ρ ΠΏΠΈΠ»ΠΎΡΠ°ΠΌ Π΄Π»Ρ ΡΠΎΠ·Π΄Π°Π½ΠΈΡ ΠΊΠ°ΡΠΊΠ°ΡΠ½ΡΡ
Π±Π»ΠΎΠΊΠΎΠ² Π΄Π»Ρ ΡΡΡΠΎΠΈΡΠ΅Π»ΡΡΡΠ²Π°, ΠΏΠΎΡΡΠΎΠΌΡ ΠΌΠ΅ΡΠΎΠ΄ ΠΊΠ°Π½Π°Π΄ΡΠΊΠΎΠ³ΠΎ Π²ΠΎΠ·Π²Π΅Π΄Π΅Π½ΠΈΡ Π·Π΄Π°Π½ΠΈΠΉ ΠΌΠΎΠΆΠ½ΠΎ ΠΏΠΎΠ·ΠΈΡΠΈΠΎΠ½ΠΈΡΠΎΠ²Π°ΡΡ ΠΊΠ°ΠΊ ΡΠ°ΠΌΡΠΉ Π»ΠΎΡΠ»ΡΠ½ΡΠΉ ΠΏΠΎ ΠΎΡΠ½ΠΎΡΠ΅Π½ΠΈΡ ΠΊ ΠΏΡΠΈΡΠΎΠ΄Π΅. ΠΡΠ»ΠΈ ΡΠ°ΠΊΠΈΠ΅ Π΄ΠΎΠΌΠ° Π²ΡΠ·ΡΠ²Π°ΡΡ Ρ ΠΠ°Ρ ΠΈΠ½ΡΠ΅ΡΠ΅Ρ ΠΈ ΠΈΠΌΠ΅ΡΡΡΡ ΠΏΠ»Π°Π½Ρ Π½Π° Π²ΠΎΠ·Π²Π΅Π΄Π΅Π½ΠΈΠ΅ ΡΠΎΠ±ΡΡΠ²Π΅Π½Π½ΠΎΠ³ΠΎ ΡΠ°ΠΊΠΎΠ³ΠΎ Π΄ΠΎΠΌΠ°, ΡΠΎ ΠΈΠΌΠ΅Π½Π½ΠΎ ΡΠΌΡΡΠ» ΠΏΠΎΡΠΌΠΎΡΡΠ΅ΡΡ Π½Π΅Π±ΠΎΠ»ΡΡΠΈΠ΅ ΠΊΠ°ΡΠΊΠ°ΡΠ½ΡΠ΅ Π΄ΠΎΠΌΠ° Π½Π° ΡΠΎΡΠΎ, ΠΊΠΎΡΠΎΡΡΠ΅ ΠΌΠΎΠΆΠ½ΠΎ Π½Π°ΠΉΡΠΈ Π² ΠΈΠ½ΡΠ΅ΡΠ½Π΅ΡΠ΅. ΠΡΠΈΠΌΠ΅ΡΠ°ΡΠ΅Π»ΡΠ½ΠΎ, ΡΡΠΎ ΠΊΠ°ΡΠΊΠ°ΡΠ½ΠΎΠ΅ ΡΡΡΠΎΠΈΡΠ΅Π»ΡΡΡΠ²ΠΎ ΠΌΠΎΠΆΠ΅Ρ ΠΏΡΠΎΠΈΠ·Π²ΠΎΠ΄ΠΈΡΡΡΡ ΠΈΠ· ΡΠ°Π·Π½ΡΡ
ΠΌΠ°ΡΠ΅ΡΠΈΠ°Π»ΠΎΠ², ΠΎΠ΄Π½Π°ΠΊΠΎ ΡΡΡΡ ΡΠ΅Ρ
Π½ΠΎΠ»ΠΎΠ³ΠΈΠΈ ΠΎΡ ΡΡΠΎΠ³ΠΎ Π½Π΅ ΠΌΠ΅Π½ΡΠ΅ΡΡΡ.
ΠΠ°ΠΊΠ°Π·ΡΠΈΠΊ Π² Π»ΡΠ±ΠΎΠΌ ΡΠ»ΡΡΠ°Π΅ ΠΏΠΎΠ»ΡΡΠ°Π΅Ρ Π²ΠΎΠ·ΠΌΠΎΠΆΠ½ΠΎΡΡΡ Π·Π°ΡΠ΅Π»ΠΈΡΡΡΡ Π² Π½ΠΎΠ²ΡΠΉ Π΄ΠΎΠΌ Π² ΠΌΠ°ΠΊΡΠΈΠΌΠ°Π»ΡΠ½ΠΎ ΠΊΠΎΡΠΎΡΠΊΠΈΠ΅ ΡΡΠΎΠΊΠΈ, ΡΠ°ΠΊ ΠΊΠ°ΠΊ ΠΊΠ°ΡΠΊΠ°ΡΠ½ΠΎΠ΅ ΡΡΡΠΎΠΈΡΠ΅Π»ΡΡΡΠ²ΠΎ Π·Π°Π½ΠΈΠΌΠ°Π΅Ρ Π½Π°ΠΌΠ½ΠΎΠ³ΠΎ ΠΌΠ΅Π½ΡΡΠ΅ Π²ΡΠ΅ΠΌΠ΅Π½ΠΈ, ΡΠ΅ΠΌ ΡΡΠ΅Π±ΡΠ΅ΡΡΡ Π·Π°ΡΡΠ°ΡΡ Π½Π° Π½Π΅Π±ΠΎΠ»ΡΡΠΎΠΉ ΠΊΠΈΡΠΏΠΈΡΠ½ΡΠΉ Π΄ΠΎΠΌ ΡΠ΅Ρ
ΠΆΠ΅ ΡΠ°Π·ΠΌΠ΅ΡΠΎΠ².
Β
proecty-domov.ru
ΠΎΡΠΎΠ±Π΅Π½Π½ΠΎΡΡΠΈ ΠΊΠ°ΡΠΊΠ°ΡΠ½ΠΎ-ΡΠΈΡΠΎΠ²ΡΡ ΠΏΠΎΡΡΡΠΎΠ΅ΠΊ, ΡΠΎΡΠΎ ΠΈ Π²ΠΈΠ΄Π΅ΠΎ
Π ΡΡΠΎΠΉ ΡΡΠ°ΡΡΠ΅ ΠΌΡ ΡΠ°ΡΡΠΌΠΎΡΡΠΈΠΌ, ΠΊΠ°ΠΊ ΠΏΠΎΡΡΡΠΎΠΈΡΡ ΠΊΠ°ΡΠΊΠ°ΡΠ½ΡΠΉ ΡΠ°Π΄ΠΎΠ²ΡΠΉ Π΄ΠΎΠΌΠΈΠΊ ΡΠ²ΠΎΠΈΠΌΠΈ ΡΡΠΊΠ°ΠΌΠΈ Π½Π° Π·Π°Π³ΠΎΡΠΎΠ΄Π½ΠΎΠΌ ΡΡΠ°ΡΡΠΊΠ΅. ΠΠ½ ΠΏΠΎΠ·Π²ΠΎΠ»ΠΈΡ Π·Π½Π°ΡΠΈΡΠ΅Π»ΡΠ½ΠΎ ΡΠ²Π΅Π»ΠΈΡΠΈΡΡ ΡΡΠ½ΠΊΡΠΈΠΎΠ½Π°Π»ΡΠ½ΠΎΡΡΡ Π²Π°ΡΠ΅ΠΉ Π΄Π°ΡΠΈ ΠΏΡΠΈ ΠΎΡΠ½ΠΎΡΠΈΡΠ΅Π»ΡΠ½ΠΎ Π½Π΅Π±ΠΎΠ»ΡΡΠΈΡ ΡΠΈΠ½Π°Π½ΡΠΎΠ²ΡΡ Π·Π°ΡΡΠ°ΡΠ°Ρ . ΠΠ°ΠΌ ΠΏΠΎΡΡΠ΅Π±ΡΠ΅ΡΡΡ Π²ΡΠΏΠΎΠ»Π½ΠΈΡΡ Π²ΡΠ΅Π³ΠΎ Π»ΠΈΡΡ Π½Π΅ΡΠΊΠΎΠ»ΡΠΊΠΎ ΠΌΠΎΠ½ΡΠ°ΠΆΠ½ΡΡ ΠΎΠΏΠ΅ΡΠ°ΡΠΈΠΉ.

Π€ΠΎΡΠΎ Π½Π΅Π±ΠΎΠ»ΡΡΠΎΠ³ΠΎ ΠΊΠ°ΡΠΊΠ°ΡΠ½ΠΎΠ³ΠΎ Π΄ΠΎΠΌΠ° Π΄Π»Ρ Π²Π°ΡΠ΅ΠΉ Π·Π°Π³ΠΎΡΠΎΠ΄Π½ΠΎΠΉ Π΄Π°ΡΠΈ
Π‘ΡΡΠΎΠΈΡΠ΅Π»ΡΠ½ΡΠ΅ ΡΠ°Π±ΠΎΡΡ
ΠΠ΅ΡΠ΅Π΄ Π½Π°ΡΠ°Π»ΠΎΠΌ ΡΡΡΠΎΠΈΡΠ΅Π»ΡΠ½ΡΡ ΡΠ°Π±ΠΎΡ ΡΠ»Π΅Π΄ΡΠ΅Ρ ΡΠΎΡΡΠ°Π²ΠΈΡΡ ΠΏΡΠΎΠ΅ΠΊΡ Π±ΡΠ΄ΡΡΠ΅Π³ΠΎ Π΄ΠΎΠΌΠΈΠΊΠ°:
Π¨Π°Π³ 1-ΡΠΉ: ΠΏΡΠΎΠ΅ΠΊΡ

ΠΡΠΈΠΌΠ΅Ρ Π²ΠΎΠ·ΠΌΠΎΠΆΠ½ΠΎΠΉ ΠΏΠ»Π°Π½ΠΈΡΠΎΠ²ΠΊΠΈ ΠΊΠΎΠΌΠ½Π°Ρ ΠΈ Π±ΡΠ΄ΡΡΠ΅ΠΉ ΠΌΠ΅Π±Π΅Π»ΠΈ
ΠΡΠ»ΠΈΡΠΈΡΠ΅Π»ΡΠ½Π°Ρ ΡΠ΅ΡΡΠ° ΡΠ°Π΄ΠΎΠ²ΠΎΠ³ΠΎ ΠΊΠ°ΡΠΊΠ°ΡΠ½ΠΎΠ³ΠΎ Π΄ΠΎΠΌΠΈΠΊΠ° Π·Π°ΠΊΠ»ΡΡΠ°Π΅ΡΡΡ Π² Π΅Π³ΠΎ Π½Π΅Π±ΠΎΠ»ΡΡΠΈΡ ΡΠ°Π·ΠΌΠ΅ΡΠ°Ρ , ΠΊΠΎΡΠΎΡΡΠ΅ ΠΎΠ±ΡΡΠ½ΠΎ ΡΠΎΡΡΠ°Π²Π»ΡΡΡ 4 Π½Π° 4 ΠΈΠ»ΠΈ 6 Π½Π° 6 ΠΌΠ΅ΡΡΠΎΠ². Π‘ΡΠΎΠ»Ρ Π½Π΅Π±ΠΎΠ»ΡΡΡΡ ΠΏΠ»ΠΎΡΠ°Π΄Ρ Π²Ρ Π²ΠΏΠΎΠ»Π½Π΅ ΠΌΠΎΠΆΠ΅ΡΠ΅ ΡΠ°ΡΠΏΡΠ΅Π΄Π΅Π»ΠΈΡΡ ΠΏΠΎΠ΄ Π±ΡΡΠΎΠ²ΡΠ΅ Π½ΡΠΆΠ΄Ρ ΡΠ°ΠΌΠΎΡΡΠΎΡΡΠ΅Π»ΡΠ½ΠΎ.
ΠΠ° ΡΠ΅ΡΡΠ΅ΠΆΠ΅ ΡΠ»Π΅Π΄ΡΠ΅Ρ ΠΎΡΠΌΠ΅ΡΠΈΡΡ ΡΠ»Π΅Π΄ΡΡΡΠ΅Π΅:
- Π’ΠΎΡΠ½ΡΠ΅ ΡΠ°Π·ΠΌΠ΅ΡΡ Π½Π΅ΡΡΡΠΈΡ ΡΡΠ΅Π½ ΠΈ Π²Π½ΡΡΡΠ΅Π½Π½ΠΈΡ ΠΏΠ΅ΡΠ΅Π³ΠΎΡΠΎΠ΄ΠΎΠΊ.
- ΠΡΠΈΡ ΠΎΠΆΡΡ, ΠΊΡΡ Π½Ρ, Π³ΠΎΡΡΠΈΠ½ΡΡ ΠΈ ΡΠΏΠ°Π»ΡΠ½Ρ. ΠΡΠΎ ΠΌΠΈΠ½ΠΈΠΌΠ°Π»ΡΠ½ΡΠΉ Π½Π°Π±ΠΎΡ ΠΊΠΎΠΌΠ½Π°Ρ, ΠΊΠΎΡΠΎΡΡΠΉ ΠΏΠΎΠ·Π²ΠΎΠ»ΠΈΡ Π²Π°ΠΌ ΠΈΡΠΏΠΎΠ»ΡΠ·ΠΎΠ²Π°ΡΡ ΠΏΠΎΡΡΡΠΎΠΉΠΊΡ Π² ΠΊΠ°ΡΠ΅ΡΡΠ²Π΅ ΠΏΠΎΠ»Π½ΠΎΡΠ΅Π½Π½ΠΎΠ³ΠΎ ΠΆΠΈΠ»ΡΡ.
- ΠΠ΅ΡΡΠΎΡΠ°ΡΠΏΠΎΠ»ΠΎΠΆΠ΅Π½ΠΈΠ΅ ΡΡΠ°ΡΠΈΠΎΠ½Π°ΡΠ½ΠΎΠΉ ΡΡΠΆΡΠ»ΠΎΠΉ ΠΌΠ΅Π±Π΅Π»ΠΈ, ΡΠ°ΠΊ ΠΊΠ°ΠΊ Π²ΠΎΠ·ΠΌΠΎΠΆΠ½ΠΎ ΠΏΠΎΡΡΠ΅Π±ΡΠ΅ΡΡΡ ΡΡΠΈΠ»Π΅Π½ΠΈΠ΅ ΠΏΠΎΠ΄ Π½Π΅ΠΉ ΡΡΠ½Π΄Π°ΠΌΠ΅Π½ΡΠ° Π΄ΠΎΠΌΠ° Π΄Π»Ρ Π΄Π°ΡΠ½ΠΎΠ³ΠΎ ΡΡΠ°ΡΡΠΊΠ°.
Π‘ΠΎΠ²Π΅Ρ: Π΅ΡΠ»ΠΈ ΠΏΠ»Π°Π½ΠΈΡΡΠ΅ΡΠ΅ ΠΈΡΠΏΠΎΠ»ΡΠ·ΠΎΠ²Π°ΡΡ Π·Π΄Π°Π½ΠΈΠ΅ ΠΊΡΡΠ³Π»ΡΠΉ Π³ΠΎΠ΄, ΡΠΎ ΡΠ»Π΅Π΄ΡΠ΅Ρ ΡΡΠ°Π·Ρ Π²ΠΊΠ»ΡΡΠΈΡΡ Π² ΠΏΡΠΎΠ΅ΠΊΡ ΡΠ°ΡΠΏΠΎΠ»ΠΎΠΆΠ΅Π½ΠΈΠ΅ ΠΏΠ΅ΡΠΊΠΈ.
ΠΡΠΎ ΠΏΠΎΠ·Π²ΠΎΠ»ΠΈΡ ΡΠΎΠ·Π΄Π°Π²Π°ΡΡ ΠΏΠΎΠ΄Ρ ΠΎΠ΄ΡΡΠΈΠΉ Π΄Π»Ρ ΠΏΡΠΎΠΆΠΈΠ²Π°Π½ΠΈΡ ΠΌΠΈΠΊΡΠΎΠΊΠ»ΠΈΠΌΠ°Ρ Π΄Π°ΠΆΠ΅ Π² Π·ΠΈΠΌΠ½Π΅Π΅ Π²ΡΠ΅ΠΌΡ.
- ΠΡΠ΅ ΠΎΠΊΠ½Π° ΠΈ Π΄Π²Π΅ΡΠΈ.
Π¨Π°Π³ 2-ΠΎΠΉ: ΡΡΠ½Π΄Π°ΠΌΠ΅Π½Ρ

Π‘ΡΠΎΠ»Π±ΡΠ°ΡΡΠΉ ΡΡΠ½Π΄Π°ΠΌΠ΅Π½Ρ β ΡΠΊΠΎΠ½ΠΎΠΌΠ½ΠΎ ΠΈ ΠΏΡΠ°ΠΊΡΠΈΡΠ½ΠΎ
ΠΡΠΈ Π²ΠΎΠ·Π²Π΅Π΄Π΅Π½ΠΈΠΈ Π»ΡΠ±ΠΎΠ³ΠΎ Π΄ΠΎΠΌΠ° ΡΠ°ΡΡΠΌΠ°ΡΡΠΈΠ²Π°ΡΡΡΡ ΡΡΠΈ Π²Π°ΡΠΈΠ°Π½ΡΠ° ΠΎΡΠ½ΠΎΠ²Π°Π½ΠΈΡ:
| ΠΠΈΠ΄ ΡΡΠ½Π΄Π°ΠΌΠ΅Π½ΡΠ° | ΠΠΏΠΈΡΠ°Π½ΠΈΠ΅ | ΠΡΠ»ΠΈΡΠΈΡΠ΅Π»ΡΠ½ΡΠ΅ ΡΠ΅ΡΡΡ |
| ΠΠΎΠ½ΠΎΠ»ΠΈΡΠ½ΡΠΉ | Π¦Π΅Π»ΡΠ½Π°Ρ ΠΆΠ΅Π»Π΅Π·ΠΎΠ±Π΅ΡΠΎΠ½Π½Π°Ρ ΠΏΠ»ΠΈΡΠ° ΠΏΠΎ Π²ΡΠ΅ΠΉ ΠΏΠ»ΠΎΡΠ°Π΄ΠΈ ΡΡΡΠΎΠ΅Π½ΠΈΡ |
|
| ΠΠ΅Π½ΡΠΎΡΠ½ΡΠΉ | ΠΠ΅ΡΠΎΠ½Π½Π°Ρ ΠΏΠΎΠ»ΠΎΡΠ° Π²Π΄ΠΎΠ»Ρ Π²ΡΠ΅Π³ΠΎ ΠΏΠ΅ΡΠΈΠΌΠ΅ΡΡΠ° Π·Π΄Π°Π½ΠΈΡ |
|
| Π‘Π²Π°ΠΉΠ½ΡΠΉ | ΠΠ΅ΡΠΊΠΎΠ»ΡΠΊΠΎ Π±Π΅ΡΠΎΠ½Π½ΡΡ ΡΡΠΎΠ»Π±ΠΎΠ² ΠΏΠΎΠ΄ ΡΠΎΡΠΊΠ°ΠΌΠΈ, ΠΈΡΠΏΡΡΡΠ²Π°ΡΡΠΈΠΌΠΈ Π½Π°ΠΈΠ±ΠΎΠ»ΡΡΠΈΠ΅ Π½Π°Π³ΡΡΠ·ΠΊΠΈ |
|
Π‘ ΡΡΡΡΠΎΠΌ ΡΠΎΠ³ΠΎ, ΡΡΠΎ Π² Π½Π°ΡΠ΅ΠΌ ΠΏΡΠΎΠ΅ΠΊΡΠ΅ ΠΎΡΡΡΡΡΡΠ²ΡΠ΅Ρ ΡΠΎΠΊΠΎΠ»ΡΠ½ΡΠΉ ΠΈ Π²ΡΠΎΡΠΎΠΉ ΡΡΠ°ΠΆΠΈ, Π° Π²ΠΎΠ·ΠΌΠΎΠΆΠ½ΠΎΡΡΡ ΡΡΠΊΠΎΠ½ΠΎΠΌΠΈΡΡ Π²ΡΠ΅Π³Π΄Π° ΠΏΡΠΈΠ²Π΅ΡΡΡΠ²ΡΠ΅ΡΡΡ, ΠΎΡΡΠ°Π½Π°Π²Π»ΠΈΠ²Π°Π΅ΠΌ ΡΠ²ΠΎΠΉ Π²ΡΠ±ΠΎΡ Π½Π° Π·Π°ΠΊΠ»Π°Π΄ΠΊΠ΅ ΡΡΠΎΠ»Π±ΡΠ°ΡΠΎΠ³ΠΎ ΠΎΡΠ½ΠΎΠ²Π°Π½ΠΈΡ.
ΠΠ½ΡΡΡΡΠΊΡΠΈΡ Π²ΡΠΏΠΎΠ»Π½Π΅Π½ΠΈΡ Π½Π΅ΠΎΠ±Ρ ΠΎΠ΄ΠΈΠΌΡΡ ΡΠ°Π±ΠΎΡ:
- ΠΠ°Π½ΠΎΡΠΈΠΌ ΡΠ°Π·ΠΌΠ΅ΡΠΊΡ ΠΏΠΎΠ΄ ΡΠ°ΡΠΏΠΎΠ»ΠΎΠΆΠ΅Π½ΠΈΠ΅ Π΄Π΅Π²ΡΡΠΈ ΠΈΠ»ΠΈ Π±ΠΎΠ»Π΅Π΅, Π² Π·Π°Π²ΠΈΡΠΈΠΌΠΎΡΡΠΈ ΠΎΡ ΠΏΠ»Π°Π½ΠΈΡΠΎΠ²ΠΊΠΈ, ΡΠ²Π°ΠΉ.
- ΠΡΠΊΠ°ΠΏΡΠ²Π°Π΅ΠΌ Π² Π·Π΅ΠΌΠ»Π΅ ΡΠΌΡ Π³Π»ΡΠ±ΠΈΠ½ΠΎΠΉ ΠΏΠΎΠ»ΡΠΎΡΠ° ΠΌΠ΅ΡΡΠ° ΠΈ ΡΠ΅ΡΠ΅Π½ΠΈΠ΅ΠΌ Π΄Π²Π°Π΄ΡΠ°ΡΡ ΡΠ°Π½ΡΠΈΠΌΠ΅ΡΡΠΎΠ².
Π‘ΠΎΠ²Π΅Ρ: Π΄Π»Ρ ΡΠΎΠ·Π΄Π°Π½ΠΈΡ ΠΏΠΎΠ΄Ρ ΠΎΠ΄ΡΡΠΈΡ ΠΎΡΠ²Π΅ΡΡΡΠΈΠΉ Π² Π³ΡΡΠ½ΡΠ΅ ΠΌΠΎΠΆΠ½ΠΎ ΠΈΡΠΏΠΎΠ»ΡΠ·ΠΎΠ²Π°ΡΡ Π±ΡΡ. Π’Π°ΠΊ Π²Ρ ΡΠΏΡΠ°Π²ΠΈΡΠ΅ΡΡ Ρ Π·Π°Π΄Π°ΡΠ΅ΠΉ Π±ΡΡΡΡΠ΅Π΅ ΠΈ Π°ΠΊΠΊΡΡΠ°ΡΠ½Π΅Π΅.

ΠΡΡΠ΅Π½ΠΈΠ΅ Π³ΡΡΠ½ΡΠ° ΠΏΠΎΠ΄ ΡΠ°Π·ΠΌΠ΅ΡΠ΅Π½ΠΈΠ΅ Π±Π΅ΡΠΎΠ½Π½ΡΡ ΡΡΠΎΠ»Π±ΠΎΠ²
- ΠΡΡΠ°Π²Π»ΡΠ΅ΠΌ Π°ΡΠ±Π΅ΡΡΠΎΠ²ΡΡ ΡΡΡΠ±Ρ ΡΠ°ΠΊ, ΡΡΠΎΠ±Ρ Π΅Ρ ΠΊΡΠ°Ρ Π²ΠΎΠ·Π²ΡΡΠ°Π»ΠΈΡΡ Π½Π΅ ΠΌΠ΅Π½Π΅Π΅ ΡΠ΅ΠΌ Π½Π° 15 ΡΠΌ Π½Π°Π΄ ΡΡΠΎΠ²Π½Π΅ΠΌ ΠΏΡΠΎΠΌΠ΅ΡΠ·Π°Π½ΠΈΡ ΠΏΠΎΡΠ²Ρ.
- ΠΠ°ΡΡΠΏΠ°Π΅ΠΌ Π½Π° Π΄Π½ΠΎ Π΄Π²Π°Π΄ΡΠ°ΡΠΈΡΠ°Π½ΡΠΈΠΌΠ΅ΡΡΠΎΠ²ΡΠΉ ΡΠ»ΠΎΠΉ ΠΏΠ΅ΡΡΠ°Π½ΠΎΠΉ ΠΏΠΎΠ΄ΡΡΠΊΠΈ.
- ΠΡΠΎΠΊΠ»Π°Π΄ΡΠ²Π°Π΅ΠΌ Π²Π½ΡΡΡΠΈ ΠΏΠΎ ΡΡΠ΅Π½ΠΊΠ°ΠΌ ΡΡΡΠ±Ρ ΡΡΠ±Π΅ΡΠΎΠΈΠ΄ Π΄Π»Ρ ΡΠΎΠ·Π΄Π°Π½ΠΈΡ Π³ΠΈΠ΄ΡΠΎΠΈΠ·ΠΎΠ»ΡΡΠΈΠΈ.
- Π£ΡΡΠ°Π½Π°Π²Π»ΠΈΠ²Π°Π΅ΠΌ Π°ΡΠΌΠ°ΡΡΡΡ.
- ΠΠ°Π»ΠΈΠ²Π°Π΅ΠΌ Π±Π΅ΡΠΎΠ½Π½ΡΠΌ ΡΠ°ΡΡΠ²ΠΎΡΠΎΠΌ, ΡΠΎΡΡΠ°Π² ΠΊΠΎΡΠΎΡΠΎΠ³ΠΎ ΠΎΡΠΎΠ±ΡΠ°ΠΆΡΠ½ Π² ΡΠ»Π΅Π΄ΡΡΡΠ΅ΠΉ ΡΠ°Π±Π»ΠΈΡΠ΅:
| ΠΠ½Π³ΡΠ΅Π΄ΠΈΠ΅Π½Ρ | Π‘ΠΎΠΎΡΠ½ΠΎΡΠ΅Π½ΠΈΠ΅ |
| Π¦Π΅ΠΌΠ΅Π½Ρ | 1 |
| ΠΠ΅ΡΠΎΠΊ | 3 |
| Π©Π΅Π±Π΅Π½Ρ | 5 |
| ΠΠΎΠ΄Π° | 4,5 |
ΠΠΎΡΠ»Π΅ ΡΡ Π²Π°ΡΡΠ²Π°Π½ΠΈΡ ΡΠ΅ΠΌΠ΅Π½ΡΠ° ΠΌΠΎΠΆΠ½ΠΎ ΠΏΡΠΈΡΡΡΠΏΠ°ΡΡ ΠΊ Π΄Π°Π»ΡΠ½Π΅ΠΉΡΠΈΠΌ ΡΠ°Π±ΠΎΡΠ°ΠΌ.
Π¨Π°Π³ 3-ΠΈΠΉ: ΠΊΠ°ΡΠΊΠ°Ρ
- ΠΠ΅ΡΡΠΌ Π±ΡΡΡ Ρ ΡΠ΅ΡΠ΅Π½ΠΈΠ΅ΠΌ 150 Π½Π° 100 ΠΌΠΌ ΠΈ Π²ΡΠΊΠ»Π°Π΄ΡΠ²Π°Π΅ΠΌ ΠΈΠ· Π½Π΅Π³ΠΎ Π½ΠΈΠΆΠ½ΡΡ ΠΎΠ±Π²ΡΠ·ΠΊΡ Π²Π΄ΠΎΠ»Ρ ΠΏΠ΅ΡΠΈΠΌΠ΅ΡΡΠ° Π±ΡΠ΄ΡΡΠ΅Π³ΠΎ Π·Π΄Π°Π½ΠΈΡ, Π° ΡΠ°ΠΊΠΆΠ΅ ΠΏΠΎΡΡΠ΅Π΄ΠΈΠ½Π΅ Π½Π° ΠΏΠ΅ΡΠ΅ΡΠ΅ΡΠ΅Π½ΠΈΠΈ ΠΊΠΎΠΌΠ½Π°Ρ.

ΠΡΠΈΠΌΠ΅Ρ ΡΠ°Π·ΠΌΠ΅ΡΠ΅Π½ΠΈΡ Π½ΠΈΠΆΠ½Π΅ΠΉ ΠΎΠ±Π²ΡΠ·ΠΊΠΈ
Π‘ΠΎΠ²Π΅Ρ: ΡΠ΅ΠΊΠΎΠΌΠ΅Π½Π΄ΡΠ΅ΡΡΡ ΠΏΡΠ΅Π΄Π²Π°ΡΠΈΡΠ΅Π»ΡΠ½ΠΎ ΠΎΠ±ΡΠ°Π±ΠΎΡΠ°ΡΡ Π΄ΡΠ΅Π²Π΅ΡΠΈΠ½Ρ Π°Π½ΡΠΈΡΠ΅ΠΏΡΠΈΠΊΠ°ΠΌΠΈ. ΠΡΠΎ Π·Π½Π°ΡΠΈΡΠ΅Π»ΡΠ½ΠΎ ΠΏΠΎΠ²ΡΡΠΈΡ Π΅Ρ ΡΠΊΡΠΏΠ»ΡΠ°ΡΠ°ΡΠΈΠΎΠ½Π½ΡΠ΅ ΡΡΠΎΠΊΠΈ, ΠΏΠΎΠ·Π²ΠΎΠ»ΠΈΠ² ΠΈΠ·Π±Π΅ΠΆΠ°ΡΡ ΠΏΡΠ΅ΠΆΠ΄Π΅Π²ΡΠ΅ΠΌΠ΅Π½Π½ΠΎΠ³ΠΎ Π³Π½ΠΈΠ΅Π½ΠΈΡ.
- Π‘Π²Π΅ΡΠ»ΠΈΠΌ ΠΎΡΠ²Π΅ΡΡΡΠΈΡ Π² Π±ΡΡΡΠ΅ ΠΈ Π±Π΅ΡΠΎΠ½Π΅, ΠΏΠΎΡΠ»Π΅ ΡΠ΅Π³ΠΎ ΡΠΈΠΊΡΠΈΡΡΠ΅ΠΌ ΠΎΠ±Π²ΡΠ·ΠΊΡ ΡΠ°ΠΌΠΎΡΠ΅Π·Π°ΠΌΠΈ Ρ Π΄ΡΠ±Π΅Π»ΡΠΌΠΈ.
- ΠΠ΅ΠΆΠ΄Ρ ΡΠΎΠ±ΠΎΠΉ Π΄Π΅ΡΠ΅Π²ΡΠ½Π½ΡΠ΅ ΡΠ»Π΅ΠΌΠ΅Π½ΡΡ ΡΠ±ΠΈΠ²Π°Π΅ΠΌ Π³Π²ΠΎΠ·Π΄ΡΠΌΠΈ, ΠΈΡΠΏΠΎΠ»ΡΠ·ΡΡ ΡΠΈΠΏ ΡΠΎΠ΅Π΄ΠΈΠ½Π΅Π½ΠΈΡ Β«Π² ΠΏΠΎΠ»Π΄Π΅ΡΠ΅Π²Π°Β».
- ΠΠ°Π»Π΅Π΅ ΡΡΡΠ°Π½Π°Π²Π»ΠΈΠ²Π°Π΅ΠΌ Π²Π΅ΡΡΠΈΠΊΠ°Π»ΡΠ½ΡΠ΅ Π±Π°Π»ΠΊΠΈ.

ΠΠ΅ΡΡΠΈΠΊΠ°Π»ΡΠ½ΡΠ΅ ΡΡΠΎΠΉΠΊΠΈ Ρ Π²Π΅ΡΡ Π½Π΅ΠΉ ΠΎΠ±Π²ΡΠ·ΠΊΠΎΠΉ
- Π‘Π²Π΅ΡΡ Ρ ΡΠΎΠ΅Π΄ΠΈΠ½ΡΠ΅ΠΌ ΠΌΠ΅ΠΆΠ΄Ρ ΡΠΎΠ±ΠΎΠΉ Π²ΡΠ΅ ΡΡΠΎΠΉΠΊΠΈ, ΠΎΠ±ΡΠ°Π·ΡΡ, ΡΠ°ΠΊΠΈΠΌ ΠΎΠ±ΡΠ°Π·ΠΎΠΌ, Π²Π΅ΡΡ Π½ΡΡ ΠΎΠ±Π²ΡΠ·ΠΊΡ.
- ΠΠ±ΡΠΈΠ²Π°Π΅ΠΌ ΠΏΠΎΠ»ΡΡΠΈΠ²ΡΠΈΠΉΡΡ Β«ΡΠΊΠ΅Π»Π΅ΡΒ» Π±ΡΡΡΠΎΠΌ 100 Π½Π° 100 ΠΌΠΌ.
Π¨Π°Π³ 4-ΡΠΉ: ΠΊΡΠΎΠ²Π»Ρ

Π‘Π°Π΄ΠΎΠ²ΡΠΉ ΠΊΠ°ΡΠΊΠ°ΡΠ½ΠΎ-ΡΠΈΡΠΎΠ²ΠΎΠΉ Π΄ΠΎΠΌΠΈΠΊ Ρ Π΄Π²ΡΡ ΡΠΊΠ°ΡΠ½ΠΎΠΉ ΠΊΡΡΡΠ΅ΠΉ
ΠΠ»Ρ Π²Π°ΡΠ΅Π³ΠΎ ΠΏΡΠΎΠ΅ΠΊΡΠ° Π»ΡΡΡΠ΅ Π²ΡΠ΅Π³ΠΎ ΠΏΠΎΠ΄ΠΎΠΉΠ΄ΡΡ Π΄Π²ΡΡ ΡΠΊΠ°ΡΠ½Π°Ρ ΠΊΡΡΡΠ°, ΠΈΠΌΠ΅ΡΡΠ°Ρ ΡΡΡΠ΅ΡΠΈΡΠ½ΡΠΉ Π²ΠΈΠ΄ ΠΈ ΠΎΡΠ»ΠΈΡΠ½ΠΎ Π·Π°ΡΠΈΡΠ°ΡΡΠ°Ρ ΠΎΡ Π°ΡΠΌΠΎΡΡΠ΅ΡΠ½ΡΡ ΠΎΡΠ°Π΄ΠΊΠΎΠ². ΠΠ»Ρ ΡΠΎΠ·Π΄Π°Π½ΠΈΡ ΡΡΡΠΎΠΏΠΈΠ» ΠΈΡΠΏΠΎΠ»ΡΠ·ΡΠ΅ΠΌ Π±Π°Π»ΠΊΠΈ Ρ ΡΠ΅ΡΠ΅Π½ΠΈΠ΅ΠΌ 100 Π½Π° 50 ΠΌΠΌ. Π‘Π²Π΅ΡΡ Ρ ΠΆΠ΅ ΡΠΊΡΡΠ²Π°Π΅ΠΌ ΠΊΠΎΠ½ΡΡΡΡΠΊΡΠΈΡ Π΄ΠΎΡΠΊΠ°ΠΌΠΈ 150 Π½Π° 25 ΠΌΠΌ ΠΈ ΠΏΠΎΠ»ΠΎΡΠ½Π°ΠΌΠΈ ΡΡΠ±Π΅ΡΠΎΠΈΠ΄Π°.
Π¨Π°Π³ 5-ΡΠΉ: Π²Π½ΡΡΡΠ΅Π½Π½ΡΡ ΠΎΡΠ΄Π΅Π»ΠΊΠ°
ΠΠ°ΡΠΊΠ°ΡΠ½ΡΠΉ ΡΠ°Π΄ΠΎΠ²ΡΠΉ Π΄ΠΎΠΌ ΡΠ²ΠΎΠΈΠΌΠΈ ΡΡΠΊΠ°ΠΌΠΈ Π½Π΅ Π±ΡΠ΄Π΅Ρ Π·Π°ΠΊΠΎΠ½ΡΠ΅Π½ Π±Π΅Π· Π²ΡΠΏΠΎΠ»Π½Π΅Π½ΠΈΡ Π²Π½ΡΡΡΠ΅Π½Π½ΠΈΡ ΡΠ°Π±ΠΎΡ:
- ΠΠΎΠ»:
- Π£ΡΡΠ°Π½Π°Π²Π»ΠΈΠ²Π°Π΅ΠΌ Π»Π°Π³ΠΈ.
- ΠΠ΅ΠΆΠ΄Ρ Π½ΠΈΠΌΠΈ ΡΠΊΠ»Π°Π΄ΡΠ²Π°Π΅ΠΌ ΡΡΠ΅ΠΏΠ»ΡΡΡΠΈΠ΅ ΠΌΠ°ΡΠ΅ΡΠΈΠ°Π»Ρ, Π² ΠΊΠ°ΡΠ΅ΡΡΠ²Π΅ ΠΊΠΎΡΠΎΡΡΡ
ΠΌΠΎΠΆΠ½ΠΎ ΠΈΡΠΏΠΎΠ»ΡΠ·ΠΎΠ²Π°ΡΡ ΠΌΠΈΠ½Π΅ΡΠ°Π»ΡΠ½ΡΡ Π²Π°ΡΡ, ΠΏΠ΅Π½ΠΎΠΏΠ»Π°ΡΡ ΠΈΠ»ΠΈ Π²ΠΎΠΉΠ»ΠΎΠΊ.

Π£ΡΠ΅ΠΏΠ»Π΅Π½ΠΈΠ΅ ΠΏΠΎΠ»ΠΎΠ²ΠΎΠΉ ΠΊΠΎΠ½ΡΡΡΡΠΊΡΠΈΠΈ Π±Π°Π·Π°Π»ΡΡΠΎΠ²ΠΎΠΉ Π²Π°ΡΠΎΠΉ
- ΠΠ°ΠΊΡΡΠ²Π°Π΅ΠΌ Π²ΡΡ ΠΏΠΎΠ»ΠΎΠ²ΠΎΠΉ Π΄ΠΎΡΠΊΠΎΠΉ.
- ΠΠΎΡΠΎΠ»ΠΎΠΊ ΠΈ ΡΡΠ΅Π½Ρ ΠΎΠ±ΡΠΈΠ²Π°Π΅ΠΌ Π²Π°Π³ΠΎΠ½ΠΊΠΎΠΉ. ΠΡΠΈ ΡΡΠΎΠΌ ΡΠ°ΠΊΠΆΠ΅ ΠΌΠΎΠΆΠ½ΠΎ ΠΏΡΠΎΠΈΠ·Π²Π΅ΡΡΠΈ Π΄ΠΎΠΏΠΎΠ»Π½ΠΈΡΠ΅Π»ΡΠ½ΠΎΠ΅ ΡΡΠ΅ΠΏΠ»Π΅Π½ΠΈΠ΅, Π΅ΡΠ»ΠΈ Π²Ρ ΠΏΠ»Π°Π½ΠΈΡΡΠ΅ΡΠ΅ ΠΏΡΠΈΠ΅Π·ΠΆΠ°ΡΡ Π½Π° Π΄Π°ΡΡ Π·ΠΈΠΌΠΎΠΉ.

ΠΠ½ΡΡΡΠ΅Π½Π½ΡΡ ΠΎΡΠ΄Π΅Π»ΠΊΠ° ΠΊΠ°ΡΠΊΠ°ΡΠ½ΠΎΠΉ ΠΏΠΎΡΡΡΠΎΠΉΠΊΠΈ
ΠΠΊΠΎΠ½ΡΠ°ΡΠ΅Π»ΡΠ½ΡΠΌ ΡΡΠ°ΠΏΠΎΠΌ ΡΠ²Π»ΡΠ΅ΡΡΡ ΠΏΠΎΠ΄Π²ΠΎΠ΄ΠΊΠ° Π½Π΅ΠΎΠ±Ρ
ΠΎΠ΄ΠΈΠΌΡΡ
ΠΊΠΎΠΌΠΌΡΠ½ΠΈΠΊΠ°ΡΠΈΠΉ ΠΈ ΡΠ°Π·ΠΌΠ΅ΡΠ΅Π½ΠΈΠ΅ ΠΌΠ΅Π±Π΅Π»ΠΈ Π½Π° Π΄Π°ΡΠ΅. ΠΠΎΡΠ»Π΅ ΡΡΠΎΠ³ΠΎ ΠΌΠΎΠΆΠ½ΠΎ ΡΠΌΠ΅Π»ΠΎ ΠΏΡΠΈΠ³Π»Π°ΡΠ°ΡΡ Π³ΠΎΡΡΠ΅ΠΉ Π΄Π»Ρ ΠΏΡΠ°Π·Π΄Π½ΠΎΠ²Π°Π½ΠΈΡ Π·Π°Π²Π΅ΡΡΠ΅Π½ΠΈΡ ΡΡΡΠΎΠΈΡΠ΅Π»ΡΠ½ΡΡ
ΡΠ°Π±ΠΎΡ.
ΠΠ°ΠΊΠ»ΡΡΠ΅Π½ΠΈΠ΅
ΠΠ°Π»ΠΈΡΠΈΠ΅ ΡΠ°Π΄ΠΎΠ²ΠΎΠ³ΠΎ Π΄ΠΎΠΌΠΈΠΊΠ° Π½Π° Π·Π°Π³ΠΎΡΠΎΠ΄Π½ΠΎΠΌ ΡΡΠ°ΡΡΠΊΠ΅ ΠΏΠΎΠ·Π²ΠΎΠ»ΡΠ΅Ρ ΠΈΡΠΏΠΎΠ»ΡΠ·ΠΎΠ²Π°ΡΡ Π΅Π³ΠΎ Π΄Π»Ρ Π²ΡΠ΅ΠΌΠ΅Π½Π½ΠΎΠ³ΠΎ ΠΈΠ»ΠΈ Π΄Π°ΠΆΠ΅ ΠΏΠΎΡΡΠΎΡΠ½Π½ΠΎΠ³ΠΎ ΠΏΡΠΎΠΆΠΈΠ²Π°Π½ΠΈΡ, ΠΏΠΎΠ»Π½ΠΎΡΠ΅Π½Π½ΠΎΠ³ΠΎ ΠΏΡΠΈΡΠΌΠ° Π³ΠΎΡΡΠ΅ΠΉ, Ρ ΡΠ°Π½Π΅Π½ΠΈΡ Ρ ΠΎΠ·ΡΠΉΡΡΠ²Π΅Π½Π½ΡΡ ΠΏΡΠΈΠ½Π°Π΄Π»Π΅ΠΆΠ½ΠΎΡΡΠ΅ΠΉ. ΠΠ½ ΡΠ°ΠΊΠΆΠ΅ ΠΏΠΎΡΠ»ΡΠΆΠΈΡ Π±Π°Π·ΠΎΠ²ΡΠΌ ΠΏΠΎΠΌΠ΅ΡΠ΅Π½ΠΈΠ΅ΠΌ Π΄Π»Ρ ΡΡΡΠΎΠΈΡΠ΅Π»Π΅ΠΉ Π² ΡΠ»ΡΡΠ°Π΅ Π²ΠΎΠ·Π²Π΅Π΄Π΅Π½ΠΈΡ Π±ΠΎΠ»ΡΡΠΎΠ³ΠΎ ΠΊΠΎΡΡΠ΅Π΄ΠΆΠ°.
ΠΠ°ΡΠΊΠ°ΡΠ½ΡΠΉ Π΄ΠΎΠΌ Π½Π° Π·Π°Π³ΠΎΡΠΎΠ΄Π½ΠΎΠΌ ΡΡΠ°ΡΡΠΊΠ΅, Π³ΠΎΡΠΎΠ²ΡΠΉ ΠΊ ΡΠΊΡΠΏΠ»ΡΠ°ΡΠ°ΡΠΈΠΈ
Π ΡΠ°ΠΌΠΎΠ΅ Π³Π»Π°Π²Π½ΠΎΠ΅, ΡΡΠΎ ΠΏΠΎΡΡΡΠΎΠΈΡΡ Π΅Π³ΠΎ ΠΌΠΎΠΆΠ½ΠΎ ΡΠΎΠ±ΡΡΠ²Π΅Π½Π½ΡΠΌΠΈ ΡΠΈΠ»Π°ΠΌΠΈ Π±Π΅Π· ΠΏΡΠΈΠ²Π»Π΅ΡΠ΅Π½ΠΈΡ ΡΠΏΠ΅ΡΠΈΠ°Π»ΠΈΡΡΠΎΠ², Π³Π»Π°Π²Π½ΠΎΠ΅ Π·Π°ΠΏΠΎΡΡΠΈΡΡ ΡΠ΅ΡΠΏΠ΅Π½ΠΈΠ΅ΠΌ, Π²Π½ΠΈΠΌΠ°Π½ΠΈΠ΅ΠΌ ΠΈ ΡΠ»Π΅Π΄ΠΎΠ²Π°ΡΡ ΠΏΡΠΈΠ²Π΅Π΄ΡΠ½Π½ΡΠΌ Π²ΡΡΠ΅ ΡΠ΅ΠΊΠΎΠΌΠ΅Π½Π΄Π°ΡΠΈΡΠΌ.ΠΠΈΠ΄Π΅ΠΎ Π² ΡΡΠΎΠΉ ΡΡΠ°ΡΡΠ΅ ΠΎΠ·Π½Π°ΠΊΠΎΠΌΠΈΡ Π²Π°Ρ Ρ Π΄ΠΎΠΏΠΎΠ»Π½ΠΈΡΠ΅Π»ΡΠ½ΠΎΠΉ ΠΈΠ½ΡΠΎΡΠΌΠ°ΡΠΈΠ΅ΠΉ. Π£Π΄Π°ΡΠ½ΠΎΠ³ΠΎ Π²ΡΠΏΠΎΠ»Π½Π΅Π½ΠΈΡ ΠΌΠΎΠ½ΡΠ°ΠΆΠ½ΡΡ ΡΠ°Π±ΠΎΡ!
ΠΠΎΠ½ΡΠ°Π²ΠΈΠ»Π°ΡΡ ΡΡΠ°ΡΡΡ? ΠΠΎΠ΄ΠΏΠΈΡΡΠ²Π°ΠΉΡΠ΅ΡΡ Π½Π° Π½Π°Ρ ΠΊΠ°Π½Π°Π» Π―Π½Π΄Π΅ΠΊΡ.ΠΠ·Π΅Π½ ΠΠΎΠ±Π°Π²ΠΈΡΡ Π² ΠΈΠ·Π±ΡΠ°Π½Π½ΠΎΠ΅ ΠΠ΅ΡΡΠΈΡ Π΄Π»Ρ ΠΏΠ΅ΡΠ°ΡΠΈΠΡΠ»ΠΈΡΠ½Π°Ρ ΡΡΠ°ΡΡΡ 0
9dach.ru
ΠΠ°Π»Π΅Π½ΡΠΊΠΈΠ΅ ΠΊΠ°ΡΠΊΠ°ΡΠ½ΡΠ΅ Π΄ΠΎΠΌΠ°
ΠΠ°Π»Π΅Π½ΡΠΊΠΈΠ΅ ΠΊΠ°ΡΠΊΠ°ΡΠ½ΡΠ΅ Π΄ΠΎΠΌΠ° ΡΠΊΠΎΠ½ΠΎΠΌ ΠΊΠ»Π°ΡΡΠ°
ΠΠΎΡΡΡΠΎΠΈΡΡ ΡΠΎΠ±ΡΡΠ²Π΅Π½Π½ΠΎΠ΅ ΠΆΠΈΠ»ΡΠ΅ Π·Π° Π½Π΅Π±ΠΎΠ»ΡΡΡΡ ΡΡΠΌΠΌΡ ΡΠ΅ΠΏΠ΅ΡΡ ΡΡΠ°Π»ΠΎ Π²ΠΎΠ·ΠΌΠΎΠΆΠ½ΠΎ Π±Π»Π°Π³ΠΎΠ΄Π°ΡΡ ΠΊΠ°ΡΠΊΠ°ΡΠ½ΠΎΠΉ ΡΠ΅Ρ Π½ΠΎΠ»ΠΎΠ³ΠΈΠΈ, ΠΏΠΎ ΠΊΠΎΡΠΎΡΠΎΠΉ ΡΡΡΠ΅ΡΡΠ²ΡΡΡ Π³ΠΎΡΠΎΠ²ΡΠ΅ ΠΏΡΠΎΠ΅ΠΊΡΡ Π½Π΅ ΡΠΎΠ»ΡΠΊΠΎ ΠΎΠ³ΡΠΎΠΌΠ½ΡΡ ΠΊΠΎΡΡΠ΅Π΄ΠΆΠ΅ΠΉ, Π½ΠΎ ΠΈ ΠΌΠ°Π»Π΅Π½ΡΠΊΠΈΡ Π΄ΠΎΠΌΠΎΠ² ΡΠΊΠΎΠ½ΠΎΠΌ ΠΊΠ»Π°ΡΡΠ°. ΠΠ»Π°Π½ΠΈΡΡΠ΅ΡΠ΅ ΡΡΠΊΠΎΠ½ΠΎΠΌΠΈΡΡ? ΠΠ±ΡΠ°ΡΠ°ΠΉΡΠ΅ΡΡ Π² ΠΊΠΎΠΌΠΏΠ°Π½ΠΈΡ ΠΠΠ Β«ΠΠ ΠΠΠΠ’Π‘Π’Π ΠΠ-ΠΒ».
Β
Β
Β 
Π‘ΡΡΠΎΠΈΡΠ΅Π»ΡΡΡΠ²ΠΎ ΠΌΠ°Π»Π΅Π½ΡΠΊΠΎΠ³ΠΎ ΠΊΠ°ΡΠΊΠ°ΡΠ½ΠΎΠ³ΠΎ Π΄ΠΎΠΌΠ° Ρ ΠΊΠΎΠΌΠΏΠ°Π½ΠΈΠ΅ΠΉ ΠΠΠ Β«ΠΠ ΠΠΠΠ’Π‘Π’Π ΠΠ-ΠΒ»
-
Β ΠΡΠ΅ΠΈΠΌΡΡΠ΅ΡΡΠ²Π° ΠΌΠ°Π»Π΅Π½ΡΠΊΠΈΡ ΠΊΠ°ΡΠΊΠ°ΡΠ½ΡΡ Π΄ΠΎΠΌΠΎΠ² ΡΠΊΠΎΠ½ΠΎΠΌ ΠΊΠ»Π°ΡΡΠ° Π·Π°ΠΊΠ»ΡΡΠ°Π΅ΡΡΡ Π² ΡΠ»Π΅Π΄ΡΡΡΠ΅ΠΌ. ΠΠ°ΠΏΡΠΈΠΌΠ΅Ρ, ΠΌΠΎΠ»ΠΎΠ΄Π°Ρ ΡΠ΅ΠΌΡΡ ΠΈΠ· Π΄Π²ΡΡ ΡΠ΅Π»ΠΎΠ²Π΅ΠΊ ΠΆΠ΅Π»Π°Π΅Ρ ΠΆΠΈΡΡ ΠΎΡΠ΄Π΅Π»ΡΠ½ΠΎ, Π½ΠΎ Π΄Π΅Π½Π΅ΠΆΠ½ΡΡ ΡΡΠ΅Π΄ΡΡΠ² Π½Π΅ Ρ Π²Π°ΡΠ°Π΅Ρ Π½Π° ΡΡΡΠΎΠΈΡΠ΅Π»ΡΡΡΠ²ΠΎ ΠΎΠ³ΡΠΎΠΌΠ½ΠΎΠ³ΠΎ ΠΊΠΎΡΡΠ΅Π΄ΠΆΠ° ΠΈΠ»ΠΈ Π½Π° ΠΏΠΎΠΊΡΠΏΠΊΡ Π±Π»Π°Π³ΠΎΡΡΡΡΠΎΠ΅Π½Π½ΠΎΠΉ ΠΊΠ²Π°ΡΡΠΈΡΡ. ΠΠ°ΡΠΊΠ°ΡΠ½ΡΠΉ Π΄ΠΎΠΌ ΡΠΊΠΎΠ½ΠΎΠΌ ΠΊΠ»Π°ΡΡΠ° ΡΡΠ°Π½Π΅Ρ Π°Π»ΡΡΠ΅ΡΠ½Π°ΡΠΈΠ²Π½ΡΠΌ Π²Π°ΡΠΈΠ°Π½ΡΠΎΠΌ.
Β
Β 
-
ΠΠΎ-ΠΏΠ΅ΡΠ²ΡΡ , Π½Π° ΠΏΠ΅ΡΠ²ΠΎΠ΅ Π²ΡΠ΅ΠΌΡ ΠΆΠΈΠ»ΡΠ΅ Π±ΡΠ΄Π΅Ρ Π²ΠΏΠΎΠ»Π½Π΅ ΡΡΡΡΠ°ΠΈΠ²Π°ΡΡ ΠΌΠΎΠ»ΠΎΠ΄ΡΡ ΡΠ΅ΠΌΡΡ. ΠΠΎ ΠΌΠ΅ΡΠ΅ ΡΠΎΠ³ΠΎ, ΠΊΠ°ΠΊ Π±ΡΠ΄ΡΡ ΡΠΎΠΆΠ΄Π°ΡΡΡΡ Π΄Π΅ΡΠΈ, ΠΊ Π½Π΅Π±ΠΎΠ»ΡΡΠΎΠΌΡ ΠΊΠ°ΡΠΊΠ°ΡΠ½ΠΎΠΌΡ Π΄ΠΎΠΌΡ ΠΌΠΎΠΆΠ½ΠΎ Π²ΡΠ΅Π³Π΄Π° ΠΏΡΠΈΡΡΡΠΎΠΈΡΡ Π΄ΠΎΠΏΠΎΠ»Π½ΠΈΡΠ΅Π»ΡΠ½ΡΡ ΠΆΠΈΠ»ΡΡ ΠΏΠ»ΠΎΡΠ°Π΄Ρ.
Β
-
ΠΡΠ΅ ΠΎΠ΄ΠΈΠ½ Π²Π°ΡΠΈΠ°Π½Ρ. ΠΡΠ»ΠΈ Π²Ρ ΠΏΠ»Π°Π½ΠΈΡΡΠ΅ΡΠ΅ ΠΏΠΎΡΡΡΠΎΠΈΡΡ Π·Π°Π³ΠΎΡΠΎΠ΄Π½ΡΠΉ Π΄ΠΎΠΌΠΈΠΊ Π΄Π»Ρ Π»Π΅ΡΠ½Π΅Π³ΠΎ ΠΎΡΠ΄ΡΡ Π°, ΠΌΠ°Π»Π΅Π½ΡΠΊΠΈΠΉ ΠΊΠ°ΡΠΊΠ°ΡΠ½ΡΠΉ Π΄ΠΎΠΌ ΡΠΊΠΎΠ½ΠΎΠΌ ΠΊΠ»Π°ΡΡΠ° ΠΈ Π² ΡΡΠΎΠΌ ΡΠ»ΡΡΠ°Π΅ Π±ΡΠ΄Π΅Ρ ΠΏΡΠΎΡΡΠΎ Π½Π΅Π·Π°ΠΌΠ΅Π½ΠΈΠΌ. ΠΠ΅Π΄Ρ ΠΌΠ°Π»ΠΎ ΠΊΡΠΎ Π³ΠΎΡΠΎΠ² Π²ΠΊΠ»Π°Π΄ΡΠ²Π°ΡΡ Π² ΡΠ°Π΄ΠΎΠ²ΡΠΉ ΠΈΠ»ΠΈ Π΄Π°ΡΠ½ΡΠΉ Π΄ΠΎΠΌ ΠΎΠ³ΡΠΎΠΌΠ½ΡΠ΅ Π΄Π΅Π½Π΅ΠΆΠ½ΡΠ΅ ΡΡΠ΅Π΄ΡΡΠ²Π°. ΠΡΠ°ΠΊΡΠΈΡΠ΅ΡΠΊΠΈ Π²ΡΠ΅ ΠΌΠ΅ΡΡΠ°ΡΡ ΠΎΠ±ΠΎΠΉΡΠΈΡΡ Π½Π΅Π±ΠΎΠ»ΡΡΠΈΠΌΠΈ ΡΡΠΌΠΌΠ°ΠΌΠΈ ΠΈ ΠΏΡΠΈ ΡΡΠΎΠΌ ΠΈΠΌΠ΅ΡΡ ΠΊΠΎΠΌΡΠΎΡΡΠ°Π±Π΅Π»ΡΠ½ΠΎΠ΅ ΠΊΠ°ΡΠ΅ΡΡΠ²Π΅Π½Π½ΠΎΠ΅ ΠΆΠΈΠ»ΡΠ΅, Π² ΠΊΠΎΡΠΎΡΠΎΠ΅ Π±ΡΠ΄Π΅Ρ ΠΏΡΠΈΡΡΠ½ΠΎ ΠΏΡΠΈΠ΅Ρ Π°ΡΡ ΠΈ ΠΎΡΠ΄ΠΎΡ Π½ΡΡΡ Ρ Π½Π°ΠΈΠ±ΠΎΠ»ΡΡΠΈΠΌ ΠΊΠΎΠΌΡΠΎΡΡΠΎΠΌ.
Β
Β 
-
ΠΠ½ΠΎΠ³ΠΈΠ΅ ΡΡΡΠΎΠΈΡΠ΅Π»ΡΠ½ΡΠ΅ ΠΊΠΎΠΌΠΏΠ°Π½ΠΈΠΈ ΠΏΡΠ΅Π΄Π»Π°Π³Π°ΡΡ ΠΊΠ»ΠΈΠ΅Π½ΡΠ°ΠΌ Π³ΠΎΡΠΎΠ²ΡΠ΅ ΠΏΡΠΎΠ΅ΠΊΡΡ Π½Π΅Π±ΠΎΠ»ΡΡΠΈΡ ΠΊΠ°ΡΠΊΠ°ΡΠ½ΡΡ Π΄ΠΎΠΌΠΎΠ². Π ΡΠΎΠΆΠ°Π»Π΅Π½ΠΈΡ, ΡΡΠΎΠΈΠΌΠΎΡΡΡ Π²ΡΠ΅Ρ ΠΊΠΎΠΌΠΏΠ»Π΅ΠΊΡΡΡΡΠΈΡ ΠΈ ΡΡΠ»ΡΠ³ ΡΠΏΠ΅ΡΠΈΠ°Π»ΠΈΡΡΠΎΠ² Π½Π΅ Π²ΡΠ΅Π³Π΄Π° ΡΠΎΠΎΡΠ²Π΅ΡΡΡΠ²ΡΠ΅Ρ Π²Π°ΡΠΈΠΌ ΡΡΠ΅Π±ΠΎΠ²Π°Π½ΠΈΡΠΌ.
Β
Β 
-
ΠΡΠ»ΠΈ Π²Ρ ΠΎΠ±ΡΠ°ΡΠΈΡΠ΅ΡΡ Π² ΠΊΠΎΠΌΠΏΠ°Π½ΠΈΡ ΠΠΠ Β«ΠΠ ΠΠΠΠ’Π‘Π’Π ΠΠ-ΠΒ», Π³Π΄Π΅ ΡΠ°Π±ΠΎΡΠ°ΡΡ Π²ΡΡΠΎΠΊΠΎΠΊΠ²Π°Π»ΠΈΡΠΈΡΠΈΡΠΎΠ²Π°Π½Π½ΡΠ΅ ΡΠΏΠ΅ΡΠΈΠ°Π»ΠΈΡΡΡ Ρ Π±ΠΎΠ»ΡΡΠΈΠΌ ΠΎΠΏΡΡΠΎΠΌ, Π²Π°ΠΌ ΠΏΡΠ΅Π΄Π»ΠΎΠΆΠ°Ρ ΡΠ½ΠΈΠΊΠ°Π»ΡΠ½ΡΠ΅ ΠΏΡΠΎΠ΅ΠΊΡΡ Π½Π΅Π΄ΠΎΡΠΎΠ³ΠΈΡ ΠΊΠ°ΡΠΊΠ°ΡΠ½ΡΡ Π΄ΠΎΠΌΠΎΠ² ΡΠΊΠΎΠ½ΠΎΠΌ ΠΊΠ»Π°ΡΡΠ°. Π‘ΠΎΠΎΡΠ²Π΅ΡΡΡΠ²Π΅Π½Π½ΠΎ, Π²Ρ ΡΠΌΠΎΠΆΠ΅ΡΠ΅ ΡΡΠΊΠΎΠ½ΠΎΠΌΠΈΡΡ Π·Π½Π°ΡΠΈΡΠ΅Π»ΡΠ½ΡΡ ΡΡΠΌΠΌΡ Π½Π° ΠΎΠΊΠΎΠ½ΡΠ°ΡΠ΅Π»ΡΠ½ΠΎΠΉ ΡΡΠΎΠΈΠΌΠΎΡΡΠΈ ΡΡΡΠΎΠΈΡΠ΅Π»ΡΡΡΠ²Π°.
Π£Π½ΠΈΠΊΠ°Π»ΡΠ½ΠΎΠ΅ ΠΏΡΠ΅Π΄Π»ΠΎΠΆΠ΅Π½ΠΈΠ΅ ΠΎΡ ΠΊΠΎΠΌΠΏΠ°Π½ΠΈΠΈ ΠΠΠ Β«ΠΠ ΠΠΠΠ’Π‘Π’Π ΠΠ-ΠΒ»
Π Π½Π°ΡΡΠΎΡΡΠ΅Π΅ Π²ΡΠ΅ΠΌΡ ΠΌΡ ΠΏΡΠ΅Π΄Π»Π°Π³Π°Π΅ΠΌ Π³ΠΎΡΠΎΠ²ΡΠ΅ ΠΏΡΠΎΠ΅ΠΊΡΡ Π½Π΅Π±ΠΎΠ»ΡΡΠΈΡ ΠΊΠ°ΡΠΊΠ°ΡΠ½ΡΡ Π΄ΠΎΠΌΠΎΠ². ΠΡΠ΅ ΠΊΠΎΠΌΠΏΠ»Π΅ΠΊΡΡΡΡΠΈΠ΅ ΡΠΆΠ΅ ΠΈΠΌΠ΅ΡΡΡΡ Π² Π½Π°Π»ΠΈΡΠΈΠΈ. ΠΠΎΡΡΡΠΎΠΈΡΡ Π΄ΠΎΠΌ ΠΏΠΎ Π³ΠΎΡΠΎΠ²ΠΎΠΌΡ ΠΏΡΠΎΠ΅ΠΊΡΡ ΠΈ ΠΏΡΠΈ Π½Π°Π»ΠΈΡΠΈΠΈ Π΄ΠΎΠΌΠΎΠΊΠΎΠΌΠΏΠ»Π΅ΠΊΡΠ° Π²Ρ ΡΠΌΠΎΠΆΠ΅ΡΠ΅ Π² ΡΡΠΈΡΠ°Π½Π½ΡΠ΅ Π½Π΅Π΄Π΅Π»ΠΈ.
Β Β 
ΠΡ Π³ΠΎΡΠΎΠ²Ρ Π²Π·ΡΡΡ Π½Π° ΡΠ΅Π±Ρ Π²ΡΠ΅ Π·Π°Π±ΠΎΡΡ ΠΏΠΎ ΠΎΡΠ³Π°Π½ΠΈΠ·Π°ΡΠΈΠΈ ΠΈ ΠΏΡΠΎΠ²Π΅Π΄Π΅Π½ΠΈΡ ΡΡΡΠΎΠΈΡΠ΅Π»ΡΡΡΠ²Π°. ΠΠ°ΠΌ Π½Π΅ Π½ΡΠΆΠ½ΠΎ ΠΎΡΠ²Π»Π΅ΠΊΠ°ΡΡΡΡ ΠΎΡ ΡΠΎΠ±ΡΡΠ²Π΅Π½Π½ΡΡ Π½Π΅ΠΎΡΠ»ΠΎΠΆΠ½ΡΡ Π΄Π΅Π». ΠΠΎΡΡΠ°ΡΠΎΡΠ½ΠΎ Π»ΠΈΡΡ ΠΎΡΠΎΡΠΌΠΈΡΡ Π·Π°ΡΠ²ΠΊΡ, Π·Π°ΠΊΠ»ΡΡΠΈΡΡ Π΄ΠΎΠ³ΠΎΠ²ΠΎΡ, ΡΠΎΠ³Π»Π°ΡΠΎΠ²Π°ΡΡ ΠΏΡΠΎΠ΅ΠΊΡ ΠΈ ΠΏΡΠΎΠΈΠ·Π²Π΅ΡΡΠΈ ΠΎΠΏΠ»Π°ΡΡ. ΠΡ Π·Π°ΡΠ΅Π»ΠΈΡΠ΅ΡΡ Π² ΡΠΎΠ±ΡΡΠ²Π΅Π½Π½ΡΠΉ Π΄ΠΎΠΌ Π² ΡΡΡΠΎΠ³ΠΎ ΡΡΡΠ°Π½ΠΎΠ²Π»Π΅Π½Π½ΡΠ΅ ΡΡΠΎΠΊΠΈ. ΠΠ°ΡΠ΅ΡΡΠ²Π΅Π½Π½ΠΎΠ΅ ΠΆΠΈΠ»ΡΠ΅ Π·Π° ΡΠΌΠ΅ΡΠ΅Π½Π½ΡΡ ΡΡΠΌΠΌΡ β ΡΡΠΎ ΡΠ΅Π°Π»ΡΠ½ΠΎΡΡΡ, Π΅ΡΠ»ΠΈ Π²Ρ ΡΠΎΡΡΡΠ΄Π½ΠΈΡΠ°Π΅ΡΠ΅ Ρ ΠΊΠΎΠΌΠΏΠ°Π½ΠΈΠ΅ΠΉ ΠΠΠ Β«ΠΠ ΠΠΠΠ’Π‘Π’Π ΠΠ-ΠΒ».
Β ΠΠ΅ΡΠ΅ΠΉΡΠΈ ΠΊ:
1.Β ΠΠ°Π»ΡΠΊΡΠ»ΡΡΠΎΡ ΡΠ°ΡΡΠ΅ΡΠ° ΠΊΠ°ΡΠΊΠ°ΡΠ½ΡΡ
Π΄ΠΎΠΌΠΎΠ² Ρ ΠΌΠ°Π½ΡΠ°ΡΠ΄Π½ΡΠΌ ΡΡΠ°ΠΆΠΎΠΌ
2.Β Π’Π΅Ρ
Π½ΠΎΠ»ΠΎΠ³ΠΈΡ ΡΡΡΠΎΠΈΡΠ΅Π»ΡΡΡΠ²Π° ΠΊΠ°ΡΠΊΠ°ΡΠ½ΠΎΠ³ΠΎ Π΄ΠΎΠΌΠ°
3.Β Π‘ΡΠΎΠΈΠΌΠΎΡΡΡ ΡΡΡΠΎΠΈΡΠ΅Π»ΡΡΡΠ²Π° ΠΊΠ°ΡΠΊΠ°ΡΠ½ΡΡ
Π΄ΠΎΠΌΠΎΠ² Ρ ΡΠ΅Π½ΠΎΠΉ ΠΏΠΎΠ΄ ΠΊΠ»ΡΡ
4.Β ΠΠ΅ΡΠΏΠ»Π°ΡΠ½ΡΠ΅ ΠΏΡΠΎΠ΅ΠΊΡΡ ΠΊΠ°ΡΠΊΠ°ΡΠ½ΡΡ
Π΄ΠΎΠΌΠΎΠ²
5.Β Π‘ΡΠ΅Π½Ρ ΠΊΠ°ΡΠΊΠ°ΡΠ½ΠΎΠ³ΠΎ Π΄ΠΎΠΌΠ°
6.Β Π€ΡΠ½Π΄Π°ΠΌΠ΅Π½Ρ Π΄Π»Ρ ΠΊΠ°ΡΠΊΠ°ΡΠ½ΠΎΠ³ΠΎ Π΄ΠΎΠΌΠ°
7.Β Π‘ΡΡΠΎΠΏΠΈΠ»Π° ΠΊΠ°ΡΠΊΠ°ΡΠ½ΠΎΠ³ΠΎ Π΄ΠΎΠΌΠ°
8.Β ΠΠ΅Π½ΡΠΈΠ»ΡΡΠΈΡ Π² ΠΊΠ°ΡΠΊΠ°ΡΠ½ΠΎΠΌ Π΄ΠΎΠΌΠ΅
9.Β ΠΠ°Π½Π°Π»ΠΈΠ·Π°ΡΠΈΡ Π² ΠΊΠ°ΡΠΊΠ°ΡΠ½ΠΎΠΌ Π΄ΠΎΠΌΠ΅
10.Β ΠΠ»Π΅ΠΊΡΡΠΎΠΏΡΠΎΠ²ΠΎΠ΄ΠΊΠ° Π² ΠΊΠ°ΡΠΊΠ°ΡΠ½ΠΎΠΌ Π΄ΠΎΠΌΠ΅
11.Β ΠΡΠΎΠ΅ΠΊΡΡ Π΄ΠΎΠΌΠΎΠ² Π΄ΠΎ 100ΠΌ2
12.Β ΠΡΠΎΠ΅ΠΊΡΡ Π΄ΠΎΠΌΠΎΠ² Π΄ΠΎ 200ΠΌ2
13.Β ΠΡΠΎΠ΅ΠΊΡΡ Π΄ΠΎΠΌΠΎΠ² Π΄ΠΎ 300ΠΌ2
14.Β ΠΠΎΡΡΡΠΎΠ»ΠΈΠΎΒ
15.Β ΠΠ°ΡΠΊΠ°ΡΠ½ΡΠΉ Π΄ΠΎΠΌ Π² ΡΠ°ΡΡΡΠΎΡΠΊΡ
16.Β ΠΠ°ΡΠΈ ΠΊΠ»ΠΈΠ΅Π½ΡΡ
17.Β ΠΠΎΠ½ΡΠ°ΠΊΡΡ
ΠΠΎΠ·Π²ΠΎΠ½ΠΈΡΠ΅ Π½Π°ΠΌ
+7(495)665-15-42
ΠΡ ΠΏΡΠΈΠ΅Π΄Π΅ΠΌ ΠΈ ΠΏΠΎΡΡΡΠΎΠΈΠΌ ΠΠ°ΠΌ Π΄ΠΎΠΌ
proectstroy-p.ru


Β
Β 

Β
Β 
Β
Β 