Портал камина своими руками: пошаговая инструкция по изготовлению
Портал камина своими руками: пошаговая инструкция по изготовлению
В 21 веке люди стараются обустраивать свое жилье как можно красивее, сделать своеобразный островок уюта, где так приятно отдыхать от повседневности.
Огромной популярностью в декорировании интерьера в последнее время пользуются камины. Большое разнообразие моделей и видов каминов дает возможность разместить их даже в малогабаритных городских квартирах.
Но для получения максимальной гармонии камина с дизайном комнаты стоит соорудить портал для камина своими руками – это декоративный внешний короб, в который монтируют камин.
Содержание:
Как сделать портал для камина своими руками
Модели
По стилевому направлению порталы отличаются таким образом:
- В классическом стиле – максимально популярный тип порталов, и их отличительной чертой стала строгость дизайна.
Как правило, для этого не нужны дополнительные декоративные элементы.
- В стиле кантри – обычно такой тип порталов предназначен для дровяного камина и их делают из камней (кирпичей).
- В стиле hi-tech – делают из стекла и стали.
- В стиле модерн – отличительным свойств такого типа порталов будет смешение современных изысканий и классики. Эти порталы подойдут почти в каждый интерьер.
Виды каминных порталов в зависимости от вида очага:
- Для фальш-камина.
- Для электрического камина.
- С дровяной закрытой топкой.
- С открытой дровяной топкой.
Если вы все же решились на то, чтобы соорудить каминный портал собственноручно, то важно крайне внимательно отнестись к подбору материала, из которого вы собираетесь его сконструировать. Его выбор будет зависеть от разновидности камина, для которого он предназначается. Стоит запомнить следующее:
- Для декоративных и электрических каминов при изготовлении портала можно применять пластик, листы гипсокартона, древесину и полиуретан.

- Для дровяных каминов применяют песчаник, мрамор, кирпич, гранит, камень искусственного и натурального происхождения. Также можно применять древесину и листы гипсокартона, но в таком случае потребуется укладка дополнительной термозащиты.
Теперь рассмотрим варианты каминов.
Вариации имитации очага (портал)
Естественно, что в городской квартире нереально установить настоящий камин дровяного типа. Но не стоит расстраиваться – есть отличная альтернатива. В зависимости от предпочтений вы сможете выбрать 1 из 3 предложенных вариантов:
- Электрический камин – вариант прекрасен тем, что для него не требуется монтаж особой вентиляционной системы, а еще не стоит покупать топочные материалы, так как он работает лишь от простой электрической розетки. Его можно с легкостью установить собственноручно, установка (и демонтаж) не требуют особых умений и знаний. Имитация пламени получается благодаря встроенному 3D экрану или паровому генератору с подсветкой снизу.
Не забывайте о том, что электрокамин помимо декоративной функции играет роль отопительного прибора – площадь обогревания камина составляет около 20 квадратных метров. - Биокамин – под него совсем несложно сделать портал для камина из гипсокартона своими руками. В последнее время модной тенденцией стал биокамин с настоящим горящим огнем, но для него не требуется вытяжка, потому что дым, копоть и неприятный аромат просто отсутствуют. Это ни что иное, как чудо техники: ультрасовременное, экономичное и в полной мере безопасное. В чем секрет работы? Каминный очаг оборудован встроенным нержавеющим блоком, в который вливают специализированное биотопливо, сделанное на базе этилового спирта. При сгорании топливо образует двуокись углерода, пар и выделяет тепловую энергию – это все продукты горения, и они безопасные, а еще не оказывают вредоносное воздействие на окружающих. Огонь от топлива получится ровным, красивым, ярким, а еще не образует копоть, искры и дым.
- Фальшивый (декоративный) камин.
Такой вариант как нельзя лучше подойдет для тех, кто хочет видеть в своем интерьере камин, но по определенным причинам не стоит тратить на это много денег. Фальш-камины можно с легкостью собрать своими руками, и по сути, это обычный пустой каминный портал, который дополнительно украшен угольками, дровами, имитацией пламени и пр. Для сооружения подойдут почти все материалы – при желании его можно делать даже из ненужных коробок.
Из чего сделать портал? Материалы изготовления
Есть несколько вариантов.
Древесина
Создание портала из натуральной древесины считается довольно сложным занятием, нежели при применении иных типов материала. Все дело в том, что древесина начинает деформироваться под влиянием температурных перепадов и влажности, и потому данный портал подойдет далеко не для всех каминов. Для того, чтобы свести к минимум негативное воздействие перечисленных выше факторов, стоит применят лишь хорошо просушенные бруски и деревянные щиты.
Для выполнения работ используйте клеевой синтетический состав, в котором нет воды. На поверхности портала со всех сторон должно быть качественное изготовление посредством акрилового термозащитного лакового покрытия. Можно использовать старые предметы мебели (шифоньеры, шкафы и тумбы) для экономии средств.
Полиуретан
Такой материал довольно часто применяют для создания каминного портала. Он имеет высокую степень устойчивости к износу, не трескается, не крошится, а еще не подвергается образованию сколов. Еще он довольно устойчив к температурам, и потому полиуретановый портал можно применять при монтаже электрического камина. Еще одним преимуществом стало многообразие вариантов конечного оформления – его можно окрашивать, покрывать патиной или позолотой. Такая конструкция будет долго служить, потому что обладает довольно малым весом.
МДФ
Мелкодисперсная фракция древесины (она же МДФ) представляет собой довольно популярный материал при создании каминных порталов.
МДФ изготовляют из древесных мелких опилок, которые скреплены между собой посредством лигнина и парафина, а еще он довольно податливый, его можно с легкостью обрабатывать и прекрасно переносит повышенную влажность воздуха. Материал не склонен к деформации.
ДСП
Портал для камина из ДСП – довольно популярная конструкция. Часто ее делают и из ЛДСП (ламинированной древесно-стружечной плиты). Такой материал совсем недорогой, имеет высокую степень устойчивости к повышенным уровням температур и всевозможным механическим воздействиям, обладает вид натуральной древесины. Но он не подойдет для того, чтобы делать оригинальный рельеф, потому что тонкая обработка такого материала в полной мере исключена.
Фанера
При выборе листов фанеры для того, чтобы собирать каминный портал, стоит учесть для этого пригодится только фанера для внутренней отделки помещения. она обладает определенной маркировкой, 1-4, причем 1 – это наивысшее качество поверхности.
Посредством такой фанеры можно делать достаточно изящный портал под камин, а если фанерные листы скреплять посредством деревянных брусков, то выйдет передвижная легкая конструкция, которую можно двигать от стен к стенам. Естественно, что при неоспоримых преимуществах есть и ощутимый минус – даже с учетом водоустойчивой обработки поверхности листов влага когда-то все же проникнет внутрь и начнется деформационный процесс.
Листы гипсокартона
Такой вариант является максимально дешевым и простым. Но при процессе конструирования следует учесть такой нюанс – это сооружение создается еще при планировке помещения, а остальные передвижения и корректировка недопустимы. По этой причине следует тщательно согласовывать размеры и остальные атрибуты, к примеру, наличие отверстий вентиляции и места для электрической проводки. Достоинством листов гипсокартона стала его пластичность, посредством него можно придавать каминному порталу любые формы.
Натуральный камень
Максимально дорогой, и при этом самый красивый материал для создания портала.
За счет неоднородной структуре материала каждый портал, сделанный из него, будет уникальным. Процесс создания из него достаточно трудоемкий, но портал из камня будет радовать вас в течение долгих лет и придаст интерьеру элегантный и богатый внешний вид.
Паркетная доска
Обычно такие порталы становятся именно фальш-каминами, но есть возможность встраивать туда неглубокие электрические камины. Такая конструкция смотрится оригинально, тем более если она изготовлена из разных по текстуре и цвету кусочков. Для покупки красивого оттенка доски при подготовке рекомендовано обрабатывать морилкой.
Фальш-портал для камина своими руками
Итак, когда вы определитесь с выбором и подберете ту или иную разновидность камина, а еще решите, в какой части квартиры будет выполнен монтаж.
После можно будет планировать изготовление портала. Для начала подготовьте подробный чертеж, на котором прописаны все размеры всех портальных элементов. Стоит учесть все нюансы и перепроверить полученные данные несколько раз – это куда проще, нежели переделывать при процессе конструирования.
Пошаговый план изготовления портала собственноручно представлен ниже:
- В месте дислокации камина стоит перенеси на пол и стены чертеж главных элементов.
- Сделайте каркас из металлического профиля (рекомендуется применять направляющий и стоечный), а затем прикрепите его к стене.
- После стоит сделать «подиум» из профиля, т.е. дно портала, а после можно сформировать каркаса портала с топкой. Каркас обязательно следует усилить, и для этого каждые 0.2 метра по общей площади закрепите поперечные балки и стоечных профилей.
В подготовленный короб нужно вставить электрический камин, и эта исходная «примерка» крайне важна, так как на таком этапе строительного процесса еще есть возможность поправлять возможные огрехи, к примеру, если камин входит туго, то важно увеличить габариты топки – отвинчивать профиль, сдвинуть его на требуемое расстояние и закрутить заново.

- Далее можно перейти к обшивке короба гипсокартонными листами. Применяйте саморезы с длиной не больше 2.5 см и мелкой резьбой, в идеале черного цвета. Обшивать его можно и в 1, и в 2 слоя – все зависит от выбор декоративных материалов. обычные украшения может быть выполнен при обшивке в 1 слой, сложный (украшение портала искусственным камнем и гипсовой лепниной) нуждается в двойном слое.
- Возьмите грунтовочный состав глубокого проникновения и как можно лучше обработайте всю поверхность из листов гипсокартона.
- До нанесения декоративных элементов стоит покрывать все шпаклёвочным слоем, а для угловой защиты выбирайте угловой перфорированный профиль.
- Остальные действия будут зависеть от выбранного метода декорирования. Если вы хотите окрасить портал, то нужно зашкурить поверхность до получения идеальной гладкой, а после нанести краску. Если нужна отделка портала плиткой или иными декоративными элементами, то важно просто приклеивать их на подготовленные поверхности посредством специализированного клеевого состава.

- Поверх двойного слоя листов гипсокартона делают так называемую каминную полку – именно на ней будут рамки для фото и остальные приятные мелочи. Так как на нее будет оказана определенная нагрузка, то важно укреплять все посредством дополнительного профиля и закреплять к стене. Полка визуально должна выглядеть, словно единое целое с общей портальной конструкцией.
- Для максимально эффективного вида вы сможете дополнять конструкцию портала подножием и боковинам, которые делают посредством гипсовой отделки, камня или иных материалов для украшения.
Приведенная выше пошаговая инструкция портала своими руками прекрасно подойдет в изготовлении фальш-камина, но для него требуется дополнительное декорирование в виде зеркала на задней стене, красиво уложенные дрова в очаге и имитация огня. Ваша фантазия станет лучшим помощником на этом этапе отделочного процесса.
youtube.com/embed/N72I5TUBlEM?feature=oembed» frameborder=»0″ allow=»accelerometer; autoplay; clipboard-write; encrypted-media; gyroscope; picture-in-picture» allowfullscreen=»»>Рейтинг
( Пока оценок нет )
0 2 662.
Олег Сомов/ автор статьи
Опытный строитель с более чем 10 летнем стажем Каркасных и Фахверковых домов из клеенного бруса, делюсь опытом с читателями моего сайта, жмите звездочку и делитесь с друзьями, если было полезно!
Понравилась статья? Поделиться с друзьями:
Портал для камина из гипсокартона
Портал для камина – это углубление, в которое вставляется камин.
Он также должен выполнять декоративную функцию, поэтому особое внимание уделяется его дизайну. В продаже есть готовые конструкции, но гораздо интереснее сделать портал своими руками.
Разновидности порталов
Порталы для электрокаминов могут иметь разную конструкцию. Они могут быть переносными и стационарными.
Переносная модель должна иметь достаточную глубину и ширину. Высота должна быть небольшой. Еще одна важная особенность переносного портала – его прочность и устойчивость. Он изготавливается как отдельная конструкция, поэтому вы должны быть уверены в том, что никакие внешние воздействия не повлияют на него.
Стационарные модели создаются на этапе отделки камина. Для их создания могут использоваться разные материалы.
Важные требования к конструкции
Форма может быть самой разной, но при ее создании важно соблюдать следующие требования:
- Размеры должны соответствовать размерам камина и помещения. Очень большой короб будет смотреться громоздко и нелепо в маленькой комнате.
А узкий короб небольшого размера просто «потеряется» в просторной комнате. - Короб для камина из гипсокартона должен быть оснащен вентиляционным отверстием. Если оно будет отсутствовать, камин будет перегреваться, и это может спровоцировать загрязнение воздуха и даже пожар.
- Выбирая форму для каминного короба, учитывайте место, где он будет стоять. В углу уместно делать угловые конструкции, а у стены или в центре комнаты – круглые и прямоугольные.
- С отделочным материалом необходимо определиться заранее. Если вы подберете для декора искусственный камень или стеклянную мозаику, то для создания каркаса вам понадобятся усиленные металлические профили и более плотные листы гипсокартона.
Из чего можно сделать портал для электрокамина?
Для этого подойдет паркетная доска, дерево, керамическая плитка, гипсокартонный лист и т.д. Каждый материал имеет свои достоинства и недостатки, но предпочтение все же лучше отдать последнему материалу.
Преимущества гипсокартона:
- Возможность создания любой формы
- Возможность демонтажа и переустановки
- Использование любого вида отделки
- Портал для камина из гипсокартона занимает минимум места, поэтому портал можно монтировать в комнате любого размера
- Низкая цена
Как выбрать форму портала и стиль оформления
Форму и дизайн для каминного портала необходимо выбрать на этапе подготовки.
В этом случае вам удастся избежать типичных ошибок.
Согласуйте стиль портала и камина. Общая конструкция должна быть гармоничной и реалистичной, поэтому об ее дизайне позаботьтесь заранее. Есть несколько стилей для оформления камина:
- Классический стиль
Каминный портал декорируется барельефами, колоннами, статуями. Он отличается выраженной индивидуальностью и статусностью и впишется в интерьер такого же стиля.
- Стиль хай-тек
Подойдет тем, кто не любит лишних деталей. Его главная особенность – оригинальная нестандартная форма и отделка из современных материалов (стекла, нержавеющей стали т.д.).
- Стиль модерн
Портал для камина, выполненный в этом стиле, отличается простыми линиями и формами. Он имеет довольно скромный вид и сочетает в себе классику и современные технологии. Основной акцент сделан на области топки.
- Стиль кантри
Такой камин очень похож на настоящий, потому что отделывается камнем или кирпичом, а над порталом идет деревянная балка.
Выделяется периметр топки.
О форме. Современные технологии позволяют выбрать для конструкции любую форму. Самыми популярными сегодня считаются такие:
- Прямоугольная
Такая форма подойдет для любого помещения, поскольку она удобная и практична. Это самая распространенная форма.
- Угловая
Хороший вариант для маленький квартиры, не занимает много места. Может быть как ровным, так и изогнутым. Камину с полукруглым стеклом подойдет такой же полукруглый портал.
И еще один важный момент: не скрывайте очаг за каминным порталом. Сегодня очаги для каминов имеют интересный, красивые дизайнерские решения, поэтому не нужно прятать его за порталом. Лучше поместить его на одном уровне с порталом, а не прятать вглубь. Если вас не устраивает дизайн предложенных в магазине очагов, выберите очаг-вставку, у которых нет конкретного оформления. Дизайн общей конструкции можно будет придумать самостоятельно.
Расположение портала
По месту расположения камины бывают:
- Напольными
- Встроенными
- Подвесными
Выбор модели по этому параметру зависит от особенностей помещения. На что нужно обратить внимание при выборе модели?
- Учитывайте размеры комнаты, каминного портала и очага
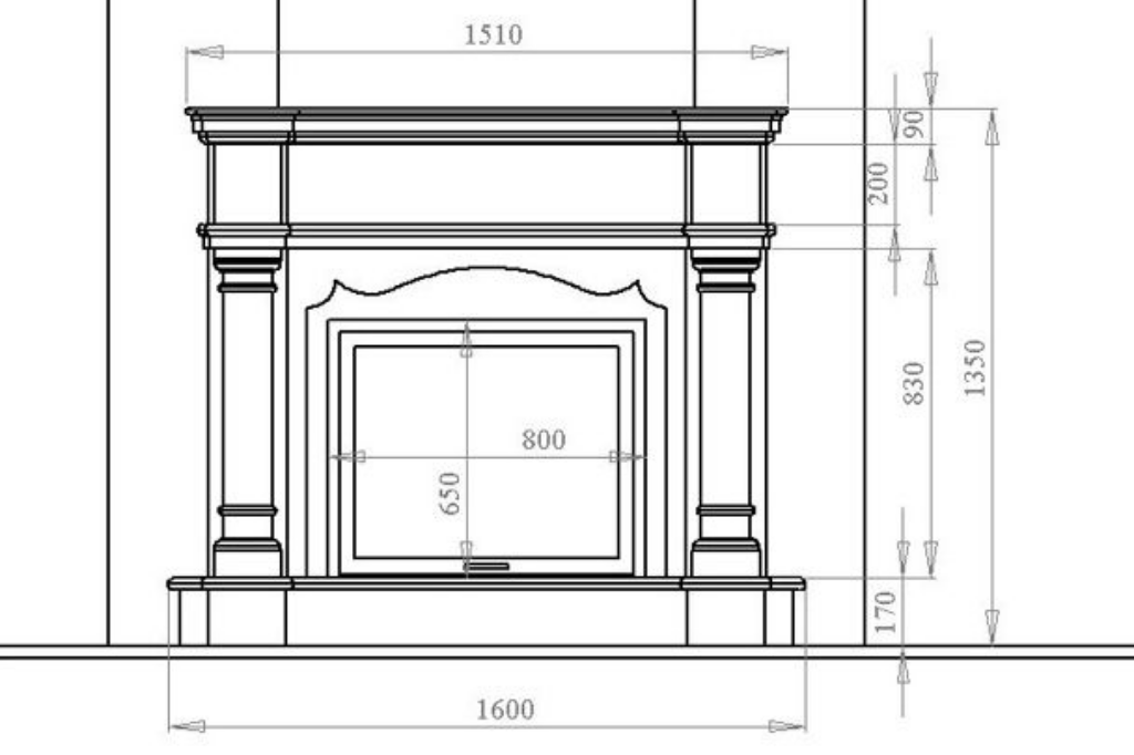
Они должны быть соизмеримы и смотреться гармонично. Если вы устанавливаете напольную конструкцию, то должны позаботиться о том, чтобы рядом было достаточно свободного пространства. Если у вас нет возможности это пространство выделить, отдайте предпочтение настенным моделям. Они не только экономят площадь, но и гармонично вписываются в уже готовый дизайн комнаты. Ширина очага должна составлять примерно половину ширины портала и 2/3 его высоты.
- Покупайте очаг до создания портала
Большая часть производителей изготавливает очаги по стандартным размерам. Все их можно просмотреть в каталогах фирмы.
Кроме размеров, очаги также отличаются по конфигурации деталей управления, расположению отверстий для воздуха и сетевого шнура, наличию декоративных и фиксирующих деталей. Чтобы все эти особенности не создавали вам трудностей, изготовление портала должно происходить после покупки очага.
Портал для камина своими руками из гипсокартона: этапы работы
Работа по созданию портала для электрокамина своими руками из гипсокартона начинается с подбора необходимых инструментов и материалов:
- листы гипсокартона
- шпатель
- уровень
- рулетка
- ножницы для резки металла
- шуруповерт и саморезы
- нож
- простой карандаш
Как сделать портал из гипсокартона для электрокамина: пошаговая инструкция.
- Создание чертежа
Сделать качественную конструкцию без предварительных эскизов невозможно. Особенно если вы начинающий мастер. Желательно составлять чертеж не в масштабе, а в натуральную величину.
Обязательно обозначьте на бумаге все детали, в том числе и элементы дизайна. Если вы не уверены, что каминный портал из гипсокартона у вас получится с первого раза, создайте его макет. Он позволит увидеть возможные промахи при создании чертежа.
- Создание каркаса
Для сооружения каркаса для каминного портала из гипсокартона используются металлические профили. Понадобятся 2 разновидности профилей: направляющие и стоечные. Их нужно надежно фиксировать, поскольку от этого зависит устойчивость конструкции. Все детали конструкции проверяйте с помощью строительного уровня.
- Проведение проводки
На этом этапе желательно использовать кабели с «самозатухающей» изоляцией. Непосредственно в портале для электрокаминов кабель уложите в «рукав» из металла. Если в квартире есть заземление, используйте трехжильный кабель и керамическую розетку.
- Обшивка
После того, как вы установили проводку, можно переходить к обшивке портала для камина:
- из гипсокартонных листов вырежьте все необходимые детали
- шуруповертом прикрепите вырезанные детали к металлическому профилю
- зашпаклюйте стыки между деталями с помощью герметика
- укрепите углы конструкции металлическими уголками
- зашпаклюйте все поверхности, нанесите грунтовку
- примерьте полученную конструкцию к очагу, исправьте при необходимости недостатки
- Создание вентиляции
В гипсокартонных листах сделайте отверстия, чтобы во время работы камин не перегревался.
- Выбор дизайна
При выборе дизайн порталов для электрокаминов из гипсокартона необходимо ориентироваться на их стиль. Для стиля кантри подойдут кусочки кирпича и искусственный камень. Можно также использовать ручную роспись. Они фиксируются на поверхности с помощью специального клея или «жидких» гвоздей. Для декора в современном стиле можно выбрать фактурную штукатурку или ВД-краску. Красиво смотрится короб, украшенный стеклянной мозаикой.
После завершения всех работ нужно дать коробу «устояться», а потом соединить с очагом.
Построить короб для электрического камина не так уж и сложно. Тем более если выбрать для этого такой податливый материал, как гипсокартон. Он позволяет создавать конструкции самых разных, необычных форм. Стоит он недорого, если вы испортите одну из деталей, можно будет докупить материал. Начинающим мастерам и дизайнерам следует предварительно создать эскиз и макет, а также ответственно отнестись ко всем замерам.
Благодаря этим рекомендациям вы будете долго наслаждаться камином, сделанным своими руками.
Понравилось? Поделитесь в соц. сетях!
вариант из гипсокартона или камня
Электрокамин — хороший выход из ситуации, когда хочется придать помещению уют и изысканность одновременно, но построить настоящий каменный камин по каким-то причинам не получается .
Причем в магазинах можно купить электрокамин, как говорится, в сборе, то есть и портал, и очаг сразу. При этом стоимость готового портала зачастую превышает даже стоимость очага, а его внешний вид не всегда соответствует интерьеру вашей комнаты. Поэтому, если вы умеете работать с гипсокартоном, вы сможете сделать портал для электрокамина своими руками.
Материал портала
В принципе, собрать портал для электрокамина своими руками можно не из гипсокартона, а из фанеры или ДСП, обшив их понравившимся отделочным материалом. Однако это не лучший вариант.
Если исходить из требований пожарной безопасности, то портал лучше собирать из негорючих (или трудно горючих) материалов, так как покупной камин является электробытовым прибором, который, как и другие подобные устройства, может все-таки стать источником возгорания в один не очень прекрасный день.
И фанера, и ДСП (и другие подобные материалы) в своем составе содержат частицы древесины, которые, в отличие от гипсокартона, очень хорошо горят. С другой стороны, работать с гипсокартоном не очень сложно, да и клеем (который входит в состав фанеры и ДСП) не приходится дышать.
Как сделать портал для электрокамина: пошаговая инструкция и рекомендации
Портал для электрокамина не обязательно покупать в магазине. Вы можете сделать оригинальное украшение своими руками. Процесс этот довольно трудоемкий, но совсем не сложный, если придерживаться некоторых правил и рекомендаций специалистов, которые представлены в этой статье.
Каминный портал представляет собой внешнюю раму с небольшим углублением, предназначенным для установки огня. Установка портала – трудоемкий процесс. Для проведения такой операции многие приглашают опытных специалистов. Однако стоимость такой услуги довольно высока. Если вы хотите сэкономить, портал для камина можно сделать самостоятельно.
Для этого не требуется никаких сложных приспособлений и приспособлений. Главное – строго придерживаться инструкции, представленной в этой статье. Однако для начала необходимо определиться со стилем портала и создать его проект. Рассмотрим все эти вопросы более подробно.
Разновидности стилей портала
Электрокамин устанавливается дома не только для обеспечения комфортной температуры, но и для украшения дизайна помещения. Портал может быть выполнен в разных стилях, поэтому нужно заранее определиться, на каком из них вы остановитесь. Рассмотрим разнообразие самых популярных фасонов и их характеристики:
- классический. Это самая распространенная версия портала. Он легко впишется в дизайн любого помещения: загородного дома, вил, дачи, квартиры или даже офиса. Такой портал легко сделать самостоятельно, ведь он имеет простую и строгую конструкцию. Он не предусматривает сложных форм и дополнительных украшений. Можно сделать портал в классическом стиле, используя натуральное дерево или камень;
- высокие технологии.
Этот стиль подходит для современного интерьера. Он предусматривает сочетание различных материалов, чаще всего стекла и металла. Самостоятельно сделать такой портал проблематично, но вполне возможно, если приобрести специальное оборудование для резки стекла и металла. Создание портала потребует предельной точности и полной самоотдачи; - современный. Если вы хотите внести разнообразие в интерьер, портал в стиле модерн – лучшее решение. Такое изделие будет отличаться оригинальной формой и изысканным цветом. Модерн универсален, поскольку сочетает в себе сразу несколько модных тенденций. Портал в этом стиле легко установить в помещениях с разным интерьером и назначением.
Важно! При выборе стиля портала нужно учитывать стиль самого помещения. Они должны быть в гармонии. Если комната обставлена в стиле хай-тек, а портал в стиле барокко, то такой интерьер будет смотреться нелепо.
Как правильно разработать портал самостоятельно?
При самостоятельной разработке портала часто допускают одни и те же ошибки.
Это приводит к порче материалов и салона. Чтобы правильно спроектировать продукт, нужно избегать следующих ошибок:
- Несовместимые стили. Как было отмечено выше, стиль интерьера комнаты и самого портала должны соответствовать друг другу. Но, кроме этого, важно, чтобы стиль портала соответствовал самому камину. Очаг и обрамление должны гармонировать, поэтому лучше, если стиль будет единым.
- Нереалистично. Если вы хотите, чтобы электрокамин был похож на настоящий, то вам придется уделить много времени созданию портала. Желательно изучить фотографии реальных порталов и постараться в точности повторить конструкцию.
Важно! Для реалистичного камина не обязательно размещать его на полу. Очаг можно установить на любом уровне, ведь главное придерживаться стилевой концепции и использовать при изготовлении портала натуральные материалы.
- Скрытие рамки за порталом. Обрамление очага не должно быть скрыто за порталом, ведь оно должно подчеркивать стиль камина, а не превосходить его.
Очаги, имеющие оригинальный дизайн, необходимо устанавливать на одном уровне с порталом. - Несоответствие размера. Иногда размеры очага, портала и самого помещения не соответствуют друг другу. Не стоит устанавливать в маленьком помещении большой электрокамин, или делать большой портал с маленьким очагом. Размеры должны быть гармоничны.
- Упущены важные моменты при покупке очага. Многие люди сначала делают портал, а уже потом берутся за очаг. Однако это неправильный подход. Во-первых, следует приобрести сам электрокамин. При его выборе нужно учитывать массу различных критериев: вес, размер, функциональность, тип и многое другое. И только когда камин дома, нужно приступать к разработке плана портала.
Важно! Чтобы избежать распространенных ошибок при проектировании портала, нужно не торопиться. Лучше потратить больше времени, чем потом переделывать работу.
Полезные советы по созданию порталов от специалистов
- При выборе материалов для портала нужно учитывать стиль выбранного электрокамина.
По этому вопросу желательно проконсультироваться с дизайнером, чтобы в интерьере не было дисгармонии. - Установку портала необходимо производить в перчатках. Важно предотвратить все возможные опасности и не поцарапать очаг. Если портал из натурального камня, то вам потребуется помощь при монтажных работах. Натуральный камень тяжелый.
- Портал для электрокамина необходимо измерить несколько раз. Даже несколько лишних миллиметров могут привести к обрушению конструкции и повреждению очага.
- Изготавливать порталы из натурального дерева или камня необходимо только при наличии опыта работы с такими материалами. Отсутствие опыта может привести к порче дорогостоящего сырья.
- При выборе деревянного портала следует использовать только синтетический столярный клей. Он обеспечит надежную фиксацию конструкции. Другие типы клеев не могут сделать это лучше.
- Для создания красивого и гармоничного портала следует заранее составить план чертежа. Для этого измеряются все размеры помещения и выбранного очага.

Пошаговая инструкция по созданию обрамления для камина из гипсокартона
Прежде чем приступить к созданию портала для электрокамина, необходимо уделить время выбору основного материала. Сегодня для этой цели можно использовать: ДСП, паркетную плитку, гипсокартон, брус, натуральное дерево, камень или фанеру. Иногда для этой цели используют даже обычный картон, но такой портал может прослужить совсем недолго.
Самый оптимальный вариант из всего вышеперечисленного гипсокартон . Имеет множество неоспоримых преимуществ:
- доступная цена. В отличие от паркетной доски, дерева и камня гипсокартон стоит сущие копейки. Тем более, что для портала нужно совсем немного;
- простота в работе. Гипсокартон – податливый материал, с которым справится даже неопытный мастер;
- неограниченные возможности дизайна. Этот строительный материал легко режется, придается необычная форма, окрашивается или оклеивается обоями;
- легкий вес.
Монтаж гипсокартона не требует применения сложных и дорогих строительных приспособлений. У каждого хорошего владельца есть все необходимые инструменты для создания портала.
Для создания красивого портала из гипсокартона не нужно привлекать специалистов и экономить. Стоимость такой затеи будет минимальной, если правильно следовать инструкции и не допускать ошибок. Конечно, у портала из гипсокартона есть и недостатки. Например, его нельзя переместить после установки. Он моментально вписывается в интерьер и надежно крепится к стенам, поэтому вы не сможете его потом передвинуть. Однако если вы захотите измениться, то такой портал можно легко демонтировать.
Важно! При создании портала для камина особое внимание следует уделить плану. На ней должны быть указаны вентиляция и электропроводка.
Что понадобится для создания портала из гипсокартона? Необходимо подготовить:
- рабочий чертеж;
- металлический оцинкованный профиль;
- саморезы;
- краска;
- гипс;
- гипсокартон.

Подготовив все вышеперечисленные материалы, можно приступать к самому процессу строительства. Для этого необходимо четко следовать этой пошаговой инструкции:
Шаг №1. Перенос разметки на стены. Для этого можно использовать строительный уровень, обычную линейку и простой карандаш.
Шаг №2. Создание конструкции подиума. Для этого используется металлический профиль. Крепить их нужно к стене и друг к другу саморезами. А затем подиум обшивается гипсокартоном. Расстояние между шурупами должно быть не более двухсот миллиметров.
Важно! На этом этапе все коммуникации необходимо скрыть за подиумом. Это создаст более реалистичный камин, потому что другие не увидят проводов.
Этап №3. Построение каркаса. Каркас усилен профилем. Расстояние между ними должно быть до пятнадцати сантиметров. На этом этапе следует примерить топку, чтобы убедиться, что она находится в правильном положении. Это позволит избежать вынужденного демонтажа декора для внесения изменений.
Шаг №4. Снятие верхней части портала. Конструкцию необходимо удлинить до самого потолка. Это необходимо, если в помещении делается ремонт. Если стены уже отделаны, нет необходимости расширять портал.
Этап № 5. Обшивка верха. Для этого используем тот же гипсокартон и саморезы.
Шаг №6. Отделка. Отделка проводится в несколько этапов. Сначала всю поверхность гипсокартона необходимо тщательно загрунтовать, а затем нанести слой шпаклевки.
Важно! Для создания интересного рельефа на портале лучше использовать гипсовую штукатурку. Разбавлять его нужно немного гуще, чем указано на упаковке.
Шаг 7. Покраска. Сначала нужно дать время штукатурке. Он должен полностью высохнуть. Затем можно нанести слой краски. Краску следует наносить в два слоя, а затем покрывать слоем лака. Это обезопасит его.
Важно! Для покраски портала лучше выбрать фасадную краску. В процессе работы она не растечется.
Этап 8. Оформление портала и установка очага. Готовый камин можно украсить оригинальными вазами, фотографиями в рамках или шкатулками.
Вариантов создания портала из гипсокартона очень много. Рассмотрим другой, более простой вариант. Для этого нужно подготовить все, что было указано в предыдущей инструкции + доска для верха, облицовочный камень и жидкие гвозди. Процесс создания такого портала практически идентичен. Сначала нужно соорудить каркас, обшить его гипсокартоном и обработать грунтовкой. Затем гипсокартонный лист декорируется облицовочным камнем или плиткой. Сверху на портал кладется мебельный щит. Как видите, весь процесс очень прост и не займет много времени.
Камин из паркетной доски: делаем правильно
Если после недавнего капитального ремонта у вас осталась паркетная доска, то не стоит ее сразу выбрасывать. Из него можно сделать очень красивый портал для электрокамина. Тем более, что такую работу можно выполнить самостоятельно.
Что для этого нужно? Во-первых, следует выделить не менее трех часов свободного времени. Во-вторых, нужно подготовить некоторые материалы:
- остатки паркетной доски;
- три маленьких бруска;
- саморезы;
- клей строительный;
- морилка различных оттенков.
Основой конструкции будут бруски. Их нужно прикрепить к стене саморезами. После установки каркаса можно приступать к подготовке паркетной доски. Его нужно вырезать и покрыть морилкой. Каждую доску следует прикрепить к основе, а затем друг к другу с помощью клея. Для того чтобы доски можно было закрепить на каркасе, следует соорудить опору. Клей должен сохнуть около суток. Затем на портал можно установить украшения и сам очаг.
Важно! К порталу такого типа отлично подойдет классический очаг. Его глубина не должна быть больше семи сантиметров. Это связано с шириной паркетной доски. Как правило, она не превышает пятнадцати сантиметров.
Рекомендации по созданию порталов из камня и дерева
Данные виды каминных порталов относятся к сложным.
Сделать их правильно можно только при наличии определенного опыта и знаний. Каменный электрокамин представляет собой тяжелую конструкцию. При его установке нужно точно рассчитать нагрузку на пол. Для создания такого портала нужно использовать технику печной кладки. Вы можете выбрать любой дизайн и тип самого кирпича. Самое главное правило – материал и форма портала должны идеально сочетаться с интерьером помещения.
Дерево – еще один очень популярный материал для создания каминных порталов. Он способен придать изделию особенное изящество и роскошь. Такой портал будет уместен в любом элитном интерьере. Однако создать и установить его самостоятельно невозможно, если у вас нет специального оборудования и опыта.
Важно! Для создания оригинального камина следует использовать дорогие породы дерева. Для этого отлично подойдет дуб, ясень или тополь.
Сделать оригинальный портал из дерева могут только профессионалы. Для этого мастер должен подобрать лучшее сырье.
Доски должны быть абсолютно сухими и из одной породы дерева. Доски склеиваются только синтетическим клеем. В своем составе содержит воду, что позволяет добиться отличной фиксации натуральной древесины. После высыхания клея доски можно обработать мелкой наждачной бумагой в шероховатых местах. Если вы хотите сохранить естественную структуру дерева, то можно обойтись и без него. Завершающий этап монтажа деревянного портала – покрытие поверхности лаком. Желательно наносить несколько слоев. Лак сохранит первозданный вид дерева на долгие годы.
Недорогие и уникальные камины ручной работы представлены в нашем каталоге:
Каминный портал Caryatid Imperador Light
85 700 ₽
Подробнее
90 003
Каминный портал Empire Bella Rosso
73 200 ₽
Подробнее
Каминный портал Empire Sunny
73 200 ₽
Подробнее
Каминный портал Caryatid Imperador Dark
85 700 ₽
Подробнее
Каминный портал Empire Emperador Light
73 200 ₽
Подробнее 9000 3
Портал Каминской Империи Империя Эмперадор Дарк
73 200 ₽
Подробнее
Полезная информация? Сохраните ссылку:
Остались вопросы? Мы будем рады помочь!
Столешница
Сверху портал для электрокамина нужно будет закрыть столешницей.
Чаще всего для этой цели используют готовые столешницы из искусственного камня. Но вы можете выбрать и другие варианты:
- сделать столешницу из толстой фанеры (или ее двух слоев), а затем обложить сверху плиткой;
- сделать полностью деревянную столешницу, придав ей оттенок и затем вскрыв лаком;
- заказать по вашим размерам столешницу из МДФ с пластиковым верхним слоем и т.д.
Портальная форма для электрокамина
Электрокамин можно установить как вдоль стены, так и разместить в углу помещения. Именно от выбранного расположения очага будет зависеть форма каминного портала. Однако не следует забывать, что при его угловом размещении камин займет немного больше места, чем если бы он был установлен всего у одной стены.
По своей форме портал в этих случаях будет иметь либо прямоугольную форму (с дополнительными декоративными выступами), либо форму треугольника, плотно вставленного в угол комнаты.
Собираем портал
Определившись с местом установки камина, рисуем на листе бумаги эскиз будущего вида портала.
Если вы не очень умеете обращаться с гипсокартоном (или другим выбранным вами материалом), лучше ограничиться самой простой формой портала, сосредоточившись на его внешней отделке.
Нанесите на свой эскиз размеры портала, который вы собираетесь собирать, рассчитайте количество необходимого вам материала (не забывайте, что листовой материал будет крепиться к каркасу, которым могут быть как деревянные бруски, так и металлический профиль) и идем забивать. Некоторые магазины предоставляют услугу сразу по распиливанию больших листов материала на мелкие кусочки, поэтому возьмите с собой чертеж, чтобы потом дома меньше приходилось делать.
Поскольку портал электрокамина не обязательно будет прикручен к полу (достаточно прикрепить его потом к стене, чтобы уберечь от случайных падений), каркас портала для электрокамина своими руками можно быть собраны в неправильном месте, где вы будете устанавливать его.
- Сначала соберите нижнюю часть рамы (нижний прямоугольник или треугольник).

- Прикрепите к нему вертикальные стойки.
- Сделайте верхнюю обвязку стоек.
- Установите портал на место и с помощью уголков прикрепите его к стене.
- Закрепите листовой материал (саморезами).
- Уложите и прикрепите столешницу к порталу.
- Оберните столешницу газетой или полиэтиленом, чтобы она не испачкалась.
- Зашпаклевать щели и швы на поверхности портала.
- Облицуйте каминный портал любым материалом (керамической плиткой, искусственным декоративным камнем и т.п.).
- Поместите очаг внутрь портала.
Сборка каркаса
Разнообразие форм и конструкций каминных порталов не позволяет использовать единую пошаговую инструкцию по их установке. В каждом случае будут нюансы сборочных работ. Но общий ход их таков:
- Выполняется разметка: на полу и стенах отмечается положение направляющих профилей, образующих контур портала и топки.
- Основание задней плоскости ниши, состоящее из двух вертикальных стоек и двух горизонтальных перекладин, крепится к стене с помощью дюбелей.
Их изготавливают из направляющего профиля. Высота нижней поперечины равна высоте подиума, на котором будет располагаться камин. - К стене крепятся направляющие профили, которые ограничивают пространство камеры сгорания.
Если топка имеет криволинейную форму, то и профиль нужно будет согнуть. Это легко сделать, если вырезать направляющие через равные промежутки. Другой вариант – использовать гибкий профиль.
- Направляющие крепятся к полу.
- Передние стойки установлены. С задними они соединяются поперечинами, размер которых определяет глубину будущего камина. Положение элементов контролируют уровнем и фиксируют саморезами.
- Таким же образом крепятся стойки тумбы и обвязываются горизонтальными перекладинами.
- На завершающем этапе устанавливаются наружные своды печи и другие горизонтальные перемычки, необходимые для придания конструкции жесткости.
Следующее видео поможет вам наглядно представить процесс сборки рамы.
Дымоход
Для полной имитации настоящего камина над ним можно сделать дымоход из тех же материалов, что и портал. Его глубина обычно всего 10 сантиметров, но отделка должна быть либо точно такой же, как у портала, либо гармонично его дополнять. Дымоход также можно использовать как подставку под телевизор.
Сам дымоход должен начинаться сразу над порталом, а заканчиваться, упираясь в потолок. Поэтому его необходимо собирать одновременно с изготовлением каркаса портала.
Комментарии:
Колян
Отличная пошаговая инструкция. Обязательно сделаю для дачи.
Семеныч
Подскажите, гипсокартон у вас потолочный или стеновой?
Василий
Семёныч, мне кажется потолок лучше — он легче, а сама конструкция довольно маленькая и имеет кучу жёстких профилей.
Корнейчук
Семёныч, используйте потолочную, но если будете использовать как камин с искусственным пламенем (парогенератором), то внутреннюю часть «топки» необходимо сделать из влагостойкой стеновой.
Обычно вы можете купить отделку в хозяйственных магазинах.
Оставить комментарий отменить ответ
Похожие записи
Электрокамин Electrolux — ваш союзник в создании уюта в вашем доме. Фото
Встраиваемые электрокамины – разберемся в плюсах и минусах
Настенный электрокамин согревает и дарит уют
Фото подборка электрокаминов в гостиную
камин камин для электрокамина
В современном мире люди стараются как можно красивее обустроить свой дом, создать в нем островок уюта, где так приятно отдохнуть от повседневной суеты. Большой популярностью для украшения интерьера в последние годы пользуются камины. Огромное разнообразие типов и моделей позволяет разместить их даже в городских малогабаритных квартирах. Однако для достижения идеальной гармонии камина с дизайном помещения необходимо соорудить для него портал – внешний декоративный короб, в который устанавливается камин.
Виды
В зависимости от типа очага каминные порталы делятся на:
- Открытые дровяные порталы;
- Порталы с закрытым дровяным горением;
- Порталы для электрокаминов;
- Порталы для фальш-каминов.

Если вы решили построить портал самостоятельно, то вам нужно быть очень внимательным при выборе материала, из которого вы планируете его соорудить. Его выбор зависит от типа камина, для которого он предназначен. Так что помните:
- Для электрических и декоративных каминов в конструкции портала можно использовать гипсокартон, пластик, полиуретан, дерево;
- Для дровяных каминов используется мрамор, песчаник, гранит, кирпич, натуральный и искусственный камень. Также можно использовать гипсокартон и дерево, но нужно соорудить дополнительную теплозащиту.
Самый простой и дешевый вариант изготовления портала для камина своими руками – это гипсокартон. Однако при ее проектировании следует учитывать следующий нюанс – эта конструкция создается еще на этапе планировки помещения; дальнейшие перемещения и корректировки не допускаются. Поэтому необходимо тщательное согласование размеров и других необходимых атрибутов, таких как наличие вентиляционных отверстий и места для проводки.
Преимуществом гипсокартона является его пластичность, с его помощью каминному порталу можно придать любую форму.
Дизайн
- Сначала выберите тип камина, для которого вы собираетесь соорудить портал из гипсокартона. Если вы живете в городской квартире, лучше всего выбрать электрический или биокамин;
- Определитесь с формой и размером портала. Выбранный камин должен в него вписаться. Также необходимо соотнести желаемый размер портала с параметрами помещения, не делать его слишком большим или слишком маленьким;
- Далее подготавливаем подробную схему, на которой указываем размеры всех элементов портала, рассчитываем количество необходимых для строительства материалов. Учитывайте все нюансы и несколько раз перепроверяйте данные — это гораздо проще, чем переделывать что-то уже в процессе проектирования.
Как сделать
- В выбранном месте камина перенести на стены и пол рисунок его основных элементов;
- Изготовить каркас из металлического профиля (рекомендуется использовать направляющий и стоечный профиль), прикрепить к стене;
- Далее соорудить из профиля так называемый «подиум» — дно портала, после чего можно сформировать каркас самого портала с топкой.
Каркас должен быть усилен; для этого закрепляем поперечные балки из стоечного профиля через каждые 15–20 см по всей его площади; - В подготовленный короб вставьте электронагреватель. Такая предварительная «примерка» очень важна, так как на данном этапе строительства еще есть возможность исправить возможные недочеты, например, если камин герметичен, то нужно увеличить размер топки – профиль откручиваем, отодвигаем на нужное расстояние и снова прикручиваем;
- Перед обшивкой каркаса листами гипсокартона в корпусе электрокамина необходимо проделать отверстия с внутренней стороны портала напротив вытяжных каналов;
- Следующий этап – обшивка короба листами гипсокартона. Используйте винты длиной не более 2,5 см с мелкой резьбой, желательно черного цвета. Обшивать можно как в один, так и в два слоя – это зависит от выбора материалов для отделки. Простой декор можно выполнить однослойной обшивкой, а для сложного (например, отделка портала искусственным камнем, лепниной из гипса) потребуется двойной слой;
- Берем грунтовку глубокого проникновения и тщательно пропитываем всю поверхность гипсокартона;
- Перед нанесением декоративных элементов поверхность портала необходимо покрыть слоем шпаклевки; для защиты углов выбирайте перфорированный угловой профиль;
- Ваши дальнейшие действия зависят от выбранного способа украшения.
Если вы собираетесь красить свой портал, отшлифуйте поверхность до идеальной гладкости, затем покрасьте. Если ваша цель – облицовка портала плиткой или другими декоративными элементами, то просто приклейте их на подготовленную поверхность при помощи специального клея; - Поверх портала сооружается так называемая каминная полка из двойного слоя гипсокартона — именно на нее вы будете ставить свои рамки с фотографиями и прочие безделушки. Так как на него будет приходиться определенная нагрузка, необходимо усилить его дополнительным профилем и прикрепить к стене. Визуально полка должна быть единым целым с общей конструкцией портала;
- Для более эффектного вида можно дополнить конструкцию портала боковинами и подставкой для ног, которые выполнены с использованием гипса, камня или других отделочных материалов.
Приведенный выше план пошагового монтажа гипсокартонного портала для электрокамина подойдет и для изготовления фальш-камина, но потребует дополнительного декора в виде зеркала на задней стенке, имитации огня , красиво уложенные дрова в очаге и т.
д. Ваша фантазия будет лучшим помощником на этом этапе отделки.
Дизайн
По стилю порталы бывают:
- В классическом стиле. Самый распространенный тип порталов. Их отличительная черта – строгость дизайна, четкость линий. Как правило, они не требуют дополнительных украшений. Покрасьте портал белой краской, можно добавить немного позолоты;
- В стиле кантри. Если вы хотите выбрать такой дизайн для своего портала из гипса, украсьте его плиткой под натуральный камень или кирпич. В качестве украшений поставьте на каминную полку бронзовые безделушки;
- В стиле хай-тек. Как правило, такие порталы изготавливаются из стали и стекла, но если вы настроены выполнить свой портал в этом стиле, обклейте его черной глянцевой самоклеющейся пленкой, добавьте зеркальные или стеклянные вставки, поставьте стекло на каминную полку. Сверху можно повесить телевизор;
- В стиле модерн. Отличительной чертой этого типа порталов является смешение классических и современных исследований.
Каминный портал из гипсокартона своими руками: Портал для камина из гипсокартона, строим своими руками

Как правило, для этого не нужны дополнительные декоративные элементы.
Не забывайте о том, что электрокамин помимо декоративной функции играет роль отопительного прибора – площадь обогревания камина составляет около 20 квадратных метров.
Такой вариант как нельзя лучше подойдет для тех, кто хочет видеть в своем интерьере камин, но по определенным причинам не стоит тратить на это много денег. Фальш-камины можно с легкостью собрать своими руками, и по сути, это обычный пустой каминный портал, который дополнительно украшен угольками, дровами, имитацией пламени и пр. Для сооружения подойдут почти все материалы – при желании его можно делать даже из ненужных коробок.
Для выполнения работ используйте клеевой синтетический состав, в котором нет воды. На поверхности портала со всех сторон должно быть качественное изготовление посредством акрилового термозащитного лакового покрытия. Можно использовать старые предметы мебели (шифоньеры, шкафы и тумбы) для экономии средств.

А узкий короб небольшого размера просто «потеряется» в просторной комнате.
Этот стиль подходит для современного интерьера. Он предусматривает сочетание различных материалов, чаще всего стекла и металла. Самостоятельно сделать такой портал проблематично, но вполне возможно, если приобрести специальное оборудование для резки стекла и металла. Создание портала потребует предельной точности и полной самоотдачи;
Очаги, имеющие оригинальный дизайн, необходимо устанавливать на одном уровне с порталом.
По этому вопросу желательно проконсультироваться с дизайнером, чтобы в интерьере не было дисгармонии.
Монтаж гипсокартона не требует применения сложных и дорогих строительных приспособлений. У каждого хорошего владельца есть все необходимые инструменты для создания портала.


Их изготавливают из направляющего профиля. Высота нижней поперечины равна высоте подиума, на котором будет располагаться камин.
Каркас должен быть усилен; для этого закрепляем поперечные балки из стоечного профиля через каждые 15–20 см по всей его площади;
Если вы собираетесь красить свой портал, отшлифуйте поверхность до идеальной гладкости, затем покрасьте. Если ваша цель – облицовка портала плиткой или другими декоративными элементами, то просто приклейте их на подготовленную поверхность при помощи специального клея;