практические советы по выбору, 100+ реальных фото примеров
Раньше увидеть барную стойку можно было только непосредственно в барах и пабах. Идея установить ее дома могла показаться даже странной — кому нужен собственный бар? Однако американский кинематограф существенно изменил восприятие этого элемента интерьера — все чаще барные стойки устанавливают на кухнях в самых обычных домах и квартирах.

Оказалось, что это не только стильно, но и действительно удобно — барная стойка может выполнять множество функций. В этой статье мы рассмотрим особенности установки барной стойки на кухне. А советы экспертов помогут вам найти идеальный вариант именно для вашего дома или квартиры.
Подобрать стойку можно к любому интерьеруПреимущества установки барной стойки на кухне
Для многих барная стойка в доме кажется элементом престижа — красивый, но не слишком полезный предмет мебели, который показывает статус владельца. Однако это в корне неверно.

Правильно подобранная барная стойка может выполнять сразу несколько функций:
- Прежде всего, это дополнительная рабочая поверхность. Если вы любите готовить, то должны понимать, как это удобно, когда можно использовать еще одну столешницу. На бар может полностью заменить гарнитур, за исключением его функциональных деталей — подставок под раковину и варочную панель. К тому же, за счет того, что барная стойка обычно делается выше стандартного гарнитура, у вас будет меньше уставать спина и поясница во время готовки.
- Барная стойка также может заменить обеденный стол. Если у вас небольшая семья и вы не привыкли устраивать обильных застолий на кухне, такой вариант поможет сэкономить значительное количество места. Главное, выбрать такую стойку, чтобы вам было удобно сидеть за ней. Кроме того, очень важно подобрать комфортные соответствующей высоты. Если же в семье есть маленькие дети или старики, выбирайте двухуровневую барную стойку — так вы сможете создать удобное обеденное место каждому члену своей семьи.
- У вас квартира-студия? Барная стойка может стать идеальным помощником в вопросе зонирования. Элегантный бар визуально отделит кухню от комнаты. Такое зонирование будет выглядеть стильно и ненавязчиво, при этом весьма четко разграничивая две зоны.
- Если у вас небольшая семья, барная стойка вполне заменит маленький обеденный стол и сэкономит место на вашей кухне. Этот вариант подойдет тем, у кого совсем небольшие кухни — например, для . Найти метр для небольшой барной стойки значительно проще, чем для . Тем более, что бар может параллельно выполнять роль дополнительной рабочей поверхности.
- При установке барной стойки мы рекомендуем предусмотреть дополнительные места для хранения. Это могут быть как полки, так и ящики в нижнем отсеке. Правда, в последнем случае важно убедится, что свет столешницы позволяет комфортно сидеть возле барной стойки. Особенно актуально это, если вы планируете использовать ее вместо обеденного стола.
- Барная стойка способна добавить шарма любому интерьеру — ее не сложно обыграть во всех стилях оформления. При этом она станет оригинальным дополнением или даже главным смысловым акцентом кухни.
Как видите, установка барной стойки на кухне — вполне оправданный ход, который определенно заслуживает вашего внимания. Рекомендуем!

А чтобы вы не разочаровались в приобретении, прислушайтесь к советам экспертов — мы собрали рекомендации дизайнеров о том, на что обратить внимание при выборе барной стойки и как лучше вписать ее в интерьер.
Определяемся с формой
Пройдитесь по прилегающим к вашему дому кафе и барам. Обратите внимание, на то, насколько по-разному могут выглядеть барные стойки. Уверяем вас: на кухне разнообразие видов и форм баров еще шире, чем в заведениях общепита.
Барные стойки могут быть очень разнообразнымиВыбирайте, ориентируясь на стиль оформления, габариты и конфигурацию вашей кухни, чтобы создать действительно органичный интерьер, в который хорошо впишется барная стойка.


Наиболее традиционный вариант, который чаще всего используют на домашних кухнях — прямая пристенная барная стойка. В какой-то степени это альтернатива . Один из концов (чаще всего — узкий) упирается в стену. Такой тип идеально подходит для зонирования, поэтому его нередко используют в квартирах-студиях. Эти стойки часто устанавливают с целью заменить обеденный стол — однако в этом случае вы потеряете часть полезной площади, которую можно использовать для хранения.
Барная стойка у стены — самое традиционное решениеИнтересный вариант для маленькой кухни — превращение в барную стойку подоконника. Просто чуть продлите его — и вы получите компактный и удобный бар. Если семья не слишком большая, такая стойка может в полной мере заменить обеденный стол, параллельно работая дополнительной рабочей поверхностью.
Подоконник может стать отличной основой для барной стойкиПод таким баром можно спрятать батарею и обустроить место для хранения различных мелочей, которые не слишком требовательны к температурному режиму — в отопительный сезон это может быть очень важно.
Что касается непосредственно оконного проема, по бокам вы можете установить небольшие полочки. Например, для винных бутылок, чая и кофе. Впрочем, вариантов для использования этих поверхностей множество — да хоть книжные полки. Все зависит от ваших желаний.
Дополнительный бонус — красивый внешний вид из окна. Если, конечно, это предусмотрено расположением вашей квартиры.
Сейчас популярно объединение кухни с балконом или лоджией (кстати, путать два этих понятия не стоит — это абсолютно разные типы пристроек). Вы можете значительно упростить задачу, если трансформируете перегородку между кухней и наружным помещением в барную стойку. Так вам не нужно будет выламывать всю стену — достаточно открыть ее часть.
Стильное и удобное решениеОформлять такую барную стойку можно в любом стиле — она будет смотреться чрезвычайно эффектно, какой бы дизайн вы не выбрали.
Да и спроектировать саму стойку будет значительно проще, чем придумывать ее с нуля — основание у вас уже готово. Осталось решить, как вы оформите нижнюю часть и положить подходящую столешницу.
Бонус: такая барная стойка обеспечит вам превосходное неявное зонирование: с одной стороны, лаундж-зона или столовая на балконе будут отделены от кухонной зоны, с другой — переход будет выглядеть естественно и органично.
Нередко в барную стойку превращают кухонный полуостров. Подробнее об этом вы можете прочитать в . Нужно отметить, что этот прием чрезвычайно удобен — помимо бара вы получаете еще и дополнительную рабочую поверхность.
Превратите свой полуостров в барную стойкуЭто решение очень удобно для маленьких кухонь — нет необходимости продумывать, куда поставить барную стойку. Она является естественным продолжением кухонного гарнитура.
Если же у вас большая, просторная кухня, имеет смысл подумать о . Отдельно стоящая конструкция определенно привлечет внимание. Правда, такое решение подойдет не к каждому стилю оформления — например, для или бохо стойка посреди кухни может показаться явным излишеством.

Нижнюю часть конструкции вы можете использовать с пользой. Например, обустроить там дополнительные полочки для хранения разнообразной кухонной утвари. Нередко в такие барные стойки устанавливают мини холодильники или микроволновки. Простор для фантазии ничем не ограничен — такая конструкция позволяет самые разнообразные эксперименты.
Интересное решение — комбинированные барные стойки. Их чаще всего устанавливают в двух случаях: если кухня маленькая, а хочет сделать на ней бар или же если в вашей семье есть дети или старики, которым не слишком удобно сидеть на высоких стульях.
Великолепный выбор для большой семьиКомбинированная стойка представляет собой конструкцию, которая устанавливается на рабочую поверхность или обеденный стол. Таким образом вы получаете два в одном — стол или часть гарнитура, оборудованную миниатюрной барной стойкой.
Совет: В кухне-студии такую стойку можно использовать, чтобы разграничить кухню и комнату. Установить конструкцию низкой частью в сторону кухонной зоны, а барной стойкой — в сторону комнаты. Просто, но очень стильно.
Выбираем материал для барной стойки
Мало определиться с формой и типом вашей барной стойки. Немаловажную роль в ее внешнем виде играет и то, какой материал вы выбрали для оформления. Примечательно, что из всей кухонной мебели именно барная стойка в этом плане отличается удивительно широким ассортиментом.
Важно найти подходящий материал для вашей кухниПоэтому вам придется отнестись к вопросу выбора вдумчиво.
Специалисты рекомендуют учесть:
- Надежность материала. Сейчас в продаже можно встретить даже стеклянные барные стойки. Конечно, они имеют право на существование. Однако задумайтесь, сколько такой предмет мебели простоит на вашей кухне. Если же у вас есть дети или активная собака, или вы сами не отличается особой ловкостью, вопрос можно считать решенным. Стойка простоит не больше пары дней. Разумеется, речь идет не о специальном закаленном стекле, а об обычном — такие стойки создают исключительно в качестве украшения и редко используют на самом деле.
- Простоту ухода. Чем рельефнее материал, тем сложнее его будет мыть.
- Его качество. Помните, что дешевое редко бывает хорошим. Поэтому стойки из МДФ или недорогого пластика вряд ли долго прослужат вам.
- Соответствие стилю. Согласитесь, стойка из древесного массива будет не очень хорошо смотреться в интерьере . И наоборот, яркий неоновый пластик убьет викторианскую кухню. Хотя, если вы любите фьюжн…
Как видите, советы не слишком сложны. Все их можно свести к одному — руководствуйтесь здравым смыслом, тогда сделать правильный выбор будет не слишком сложно. Тем более, что выбирать действительно есть из чего!

Достаточно доступный материал — это различные виды ДСП. Рекомендуем выбирать ламинированные панели с закрытой алюминием или прочным пластиком кромкой. Так барная стойка прослужит вам значительно дольше. Основные преимущества этого варианта — низкая цена и широкий дизайнерский ряд.
Популярностью пользуется ламинированный ДСПНе слишком разорит вас и пластиковая барная стойка. К тому же, вариантов ее оформления существует бесчисленное множество — однотонная или принтованная поверхность, насыщенные оттенки, имитация натуральных материалов… Правда, найти действительно качественный пластик достаточно сложно — учитывайте это.
Пластиковые барные стойки дают широкий простор фантазииОдин из классических материалов — это дерево. Такая барная стойка смотрится дорого и элегантно. К тому же, она подходит для всех стилей, кроме, пожалуй, хай-тека. Впрочем, и в этом случае можно найти интересное решение.
Дерево — классический материал для барной стойкиПрочный, надежный и долговечный камень — еще одно очень интересное решение. Такую стойку можно органично вписать в любой интерьер — главное, найти правильную фактуру и цветовое решение. Камень может быть натуральным или искусственным, но в последнем случае вам стоит позаботиться о достоверности такой имитации.
Камень нередко используют для оформления бараК сведению: Самым популярным искусственным камнем, используемым при изготовлении барных стоек считаются изделия марки Corian. Фирма специализируется на обслуживании баров, поэтому их качество всегда выше всяких похвал.
Необычный и стильный вариант — использование стеклянной барной стойки. Помните, мы приводили стекло как отрицательный пример? Это верно, если речь не идет об особом закаленном стекле. Прозрачный или полупрозрачный бар — отличный выбор для кухни в стиле или .
Стекло лучше комбинировать с другими материаламиЛегкий и недорогой гипсокартон — еще один популярный вариант. Преимущество е
dizainkyhni.com
Барная стойка своими руками. 700 фото, чертежи, пошаговые инструкции
барная стойка для домаУгощение гостей — не единственное преимущество собственного домашнего бара – это еще удобство, стиль и конфиденциальность. Независимо от того, хотите ли выпить бокал вина после работы или бренди после ужина, ничто не сравнится с комфортом, когда можно полностью расслабиться и насладиться моментом. Для многих идея сделать домашний бар чем-то напоминает мечту, но воплотить ее в жизнь гораздо проще, чем вы думаете.
Из всей мебели, которые вы можете сделать, барная стойка своими руками не самая сложная задача. Если вы уверенны в себе и уже занимались домашними проектами, то наверняка справитесь с этой задачей самостоятельно. Итак, если прониклись идеей сделать домашнюю барную стойку своими руками, представляем 35 примеров с чертежами и пошаговыми фото.
Содержание:
- Домашняя барная стойка
- Барная стойка на кухню своими руками
- Чертежи барной стойки
- Кегератор своими руками
- Оригинальные барные стойки
- Бар в саду
- Барная стойка для веранды
- Барная стойка из поддонов
- Тики бар своими руками
- Мобильная барная стойка
Как сделать барную стойку своими руками
Хотите узнать, как сделать такой домашний бар своими руками? К сожалению, сказать, что это очень простой проект, будет не правдой. Работа с негабаритными деталями и резка под углом могут расстроить новичка. Если идея сборки барной стойки вызывает в памяти приятные и нечеткие воспоминания о том, как вас учили в школе пользоваться молотком, то этого не достаточно, этот опыт здесь мало поможет.
Это сложный предмет мебели, как вы можете видеть на фотографиях, барная стойка изготовленна из отделанных панелей, прочного дубового бруса, а опоры усилены деталями из нержавеющей стали.
Но, нет ничего невозможного. Для этого и написано это руководство с пошаговыми фото, как сделать домашний бар своими руками. Воспользуйтесь ссылкой под галереей, на сайте автора вы сможете прочитать полную инструкцию с поэтапным описанием каждого шага, ознакомится со списком материалов и инструментов, а также просмотреть детальное видио. Представленный здесь чертеж и пошаговые фото помогут вам реализовать этот проект за выходные, было бы желание. Удачи!
Автор: Дженнифер Стимпсон
Источник фото: www.thisoldhouse.com/how-to/how-to-build-bar
Как сделать барную стойку на кухне
В интернете можно встретить много проектов, как сделать барную стойку своими руками, от совершенно фантастических до вполне респектабельных. Этот вариант можно отнести к последним, выполнен в строгом стиле английского паба начала прошлого века. Размер можно изменить, такой бар можно построить даже на кухне средних размеров. Правда от некоторой мебели надо будет избавиться, и изменить дизайн, но кого будет интересовать интерьер, если у вас есть собственный бар. В общем, выбор места не ограничен, это может быть не только кухня, а и мансарда, подвал, гараж.
Ниже представлен чертеж, но вам нужно будет сделать свой, учитывая размеры помещения.
Стандартная высота балки составляет 105 см от пола, а глубина – 60 см. Варианты формы и размера практически неограниченны, но важно поддерживать стандартизованную высоту и глубину. Здесь выбран стиль полуострова, где бар простирается перпендикулярно от соседней стены.
Инструменты, которые вам понадобятся: настольная, дисковая и торцовочная пилы; ударный пистолет; дрель и клеевой пистолет.
Материалы : 3 листа фанеры ¾”; 2 кг шурупов для гипсокартона; строительный клей по вашему выбору.
Пошаговую инструкцию, как сделать барную стойку читайте на сайте, ссылка под галереей. Ниже смотрите мастер класс на пошаговых фото.
Автор: Энтони Хамфрис
Источник фото: www.thrillist.com/drink/nation/how-to-build-a-home-bar
Барная стойка своими руками для кухни
Можно годами мечтать о собственном домашнем баре, но лучше собраться и сделать его своими руками за несколько дней. Вот хороший пример, простая классическая стойка, идеальный вариант для кухни, много места не занимает, удобно и функционально. Возможно, выглядит слишком скромно, но вы можете доработать дизайн, как вам нравится. Инструкция с поэтапным описанием процесса, списками инструментов и материалов есть на сайте.
Источник фото: www.instructables.com/id/Home-bar-with-reclaimed-bowling-alley-bar-top/
Домашний бар для напитков
Инструкция, как сделать у себя дома настоящий бар, с полками, винными шкафчиками, стойкой – в общем, все как положено. Полное руководство вы можете прочитать на сайте, поэтапное и очень подробное, ссылка на первоисточник под галереей. Но хочется отметить некоторые нюансы. В верхней части рамы вы будете устанавливать доску определенного размера (вероятно, 3/4 дюйма), а затем нужно будет установить верхнюю планку над той, которая закрывает раму и простирается на 20 – 25 см дальше, чтобы не упирались коленки. Таким образом, вам нужно планировать раму исходя из фактической ширины вершины стержня, а также по конечной высоте.
В конечном итоге высота должна быть приблизительно метр. Если планируете, панель в форме L, как в данном случае, можете сделать две секции полностью по отдельности, а затем в самом конце сжать их вместе и «защелкнуть». Обычно так устроены некоторые сборные бары в мебельных магазинах.
Здесь верхняя часть стыкуется под углом 45 градусов, поэтому рама не делится. Это означает, что данный бар нельзя просто разобрать и переставить в другое место.
Многие люди сначала делают сам бар, а затем дополнительные шкафы в виде отдельной коробки, которая находится за барной стойкой. Здесь идея конструкции, сделать каркас в области шкафа прямо под стойкой, чтобы рационально использовать пространство, поэтому рама немного глубже, чем в аналогичных проектах.
Все это читайте в подробной инструкции на сайте, а ниже можете посмотреть мастер класс,
Источник фото: www.johneverson.com/diy-how-to-build-your-own-oak-home-bar/
Бар в домашних условиях
Представленный здесь домашний бар выполнен в элегантном стиле и продуман для эффективной работы бармена. Небольшой холодильник обеспечивает доступ к холодным напиткам и льду, а удобные шкафы позволяют удобно разместить всевозможные напитки. Хотя это «сухой бар» (без сантехники), дизайн можно изменить, для этого есть много способов. Если вы хотите сделать стационарную конструкцию, провести воду не проблема. Эта компактная угловая барная стойка имеет глянцевые черные фартуки из МДФ с декоративными аппликациями, образующими горизонтальный сетчатый рисунок на панелях. Столешница из вишневой фанеры расположена на L-образной коленной перегородке, что создает комфортное место для работы бармена. Откидные подъемные перегородки в барной стойке на одном конце обеспечивают простой доступ в рабочую зону. Ключевые компоненты — шкафы, ламинированная столешница, холодильник и отделка в азиатском стиле — создают основу домашнего бара.
Ниже вы видите чертеж и список деталей с размерами в дюймах. Умножьте значения на 2,54, чтобы перевести показатели в сантиметры.

Как собрать бар в домашних условиях смотрите в мастер классе на пошаговых фото.
Источник фото: www.blackanddecker.com/ideas-and-inspiration/projects/build-a-dry-bar
Барная стойка из дерева для дома
Большинство из нас хотят, чтобы его дом был особенным. Некоторым нравятся оборудованные новейшей техникой игровые комнаты, другие посвящают свободное время, чтобы сделать солидный кабинет с настоящей библиотекой, а еще кто-то хочет свой кинотеатр. Если у вас есть свободное пространство и вы хотите построить что-то интересное и оригинальное, нужно делать выбор. Есть много идей, но давайте рассмотрим то, что может поместиться в любой дом, не занимает много места и подходит как для холостяков, так и для семейных мужчин. Бар. Или, если быть более конкретным,
Автор: Иван Гаврилов
Источник фото: www.dd-space.com/2014/04/barnaiastoikaizdereva.html#more
Домашняя барная стойка
Следуя этим пошаговым инструкциям, вы научитесь, как сделать классический домашний бар, который удовлетворит ваши потребности. Наличие бара в подвале или другом жилом помещении важно для встреч, будь то с друзьями или просто провести вечер с семьей. Здесь можно пообедать, посмотреть футбол, сыграть в карты или просто расслабится с кружечкой пива на выходные. Необходимы начальные навыки работы с деревом, и не пугайтесь, если считаете, что ваших знаний недостаточно. Попросите друга или родственника, который немного разбирается в деревообработке, и это будет отличный совместный проект. Инструкция по сборке этой барной стойки есть на сайте, ссылку найдете под галереей с пошаговыми фото.
Источник фото: www.instructables.com/id/Building-a-Basic-Home-Bar/
Как сделать барную стойку дома
Здесь показано, как сделать простую барную стойку для дома своими руками. Для каркаса вам понадобится 5 трехметровых брусков 4 х 6 см. Поверхность изготовлена из клееного дерева толщиной 18 мм и глубиной 60 см, а обшивка сделана из того же дерева, но с глубиной 25 см. Также вам нужны кронштейны, где пересека
novamett.ru
Барная стойка для кухни своими руками: пошаговая инструкция
Для прочтения требуется ~2 минутыКаждый человек хочет, чтобы дома было уютное место, где можно посидеть с друзьями. И самое лучшее – это кухня, а конкретней – большая столешница. Мы поговорили с десятками строителей и профессионалов и собрали свои лучшие идеи для идеальной домашней барной стойки, которую можно сделать своими рукамиБарный стол, или функциональный шкафчик кухни
A. Стандартная его высота составляет 110 см, выше чем стол на кухне. Барные стулья будет проще найти, если вы будете придерживаться такой высоты.
Б. Отвес должен быть не менее 20 см Но будьте осторожны: некоторые табуреты на несколько сантиметров выше или, наоборот, короче.
В. В баре сверху должен быть шкафчик, стол, а также широкий молдинг; барный молдинг служит трем основным целям:- Он задерживает пролитые напитки и не дает им попасть на колени.
- Он обеспечивает удобный подлокотник и позволяет правильно сесть.
- Самое главное – он заставляет выглядеть ваш бар более официально.
Это хорошая особенность, но не является необходимостью для барного стола.
Г. Минимальное расстояние табуретки от барной стойки – 60 см. Иначе будете чувствовать себя тесно и рука будет упираться в столешницу.
Д. Подошва рельса должна быть от 17 до 25 см от пола. Металлические перила (обычно латунь) стоят дорого, поэтому многие используют для барной стойки простой карниз.
Чтобы построить бар, используйте эти стандартные правила и размеры, а также чертеж, который можно увидеть ниже.
Некоторые поставщики продают заглушки, которые легко установить своими руками, но это может выглядеть громоздко. Лучшее решение: запустить молдинг около 1,5 см мимо задней кромки панели сверху. Затем приклеить торцы из блоков, вырезанных из древесины, с подобным рисунком. Удерживайте блоки на месте около минуты. После того как клей полностью высохнет, промойте и добавьте водосливы.
С молдингом вы получаете большую площадь рабочей поверхности. Чтобы этого избежать, предварительно обработайте торцевые поверхности герметиком, который частично заполняет поры. Пара унций из полиуретана, смешанного с парой ложек растворителя (водой или уайт-спиритом, в зависимости от типа полиуретана), подходит для этого очень хорошо. Если вы промажете уплотнения силиконом, то вашей стойке бара ничего не грозит.
Так какой материал больше подходит для столешницы, и чего не побоится ваша рука? Большинство «баров» очень сложные по строению. Для обычного подходят столешницы из двух видов дерева. Нижний слой – это фанера. Верхним может быть плитка, твердые сорта дерева, металлопластик или даже камень.
Цены варьируются от 10$ до 40$ за погонный метр в зависимости от вида древесины и ширины. Большинство поставщиков поставляют столы длиной до 1.8 метра, однако некоторые из них предлагают до 2 метров длины. Ширина варьируется от 50 до 120 см, а толщина до 15 см.
Конечно, в домашних условиях вырезать стол по чертежу можно, но все же заказ готовой столешницы для дома заметно облегчит ваши усилия.
Чертеж барной стойки для дома
Прежде чем начать, нужно подробно изучить чертеж, как сделать барную стойку.
- Подготовить материал.
- Подготовить инструмент.
- Подготовить чертеж, прежде чем начать резать древесину.
Необходимые инструменты для столешницы
Приобретите необходимые инструменты и материалы для проекта, прежде чем начать. Так, вы сэкономите время и нервы.
Необходимые инструменты для этого проекта
- Воздушный компрессор,
- Степлер,
- Строительная пена,
- Хомуты,
- Дрель,
- Лобзик,
- Уровень,
- Торцовочная пила,
- Защитные очки,
- Клей для древесины.
Необходимые материалы
Избегайте поездки за материалами в последнюю минуту. Лучше заранее их подготовить.- 2 х 4 лист ДСП,
- 3 х 4 лист фанеры,
- Молдинг,
- Пивной кран (комплект),
- Строительный клей,
- Гипсокартон,
- Пена для изоляции,
- Деревянные изделия для отделки,
- Краска и лак,
- Каменное или деревянное основание.
Оборудование
Готовые столешницы в различных вариантах из разных пород древесины доступны в большинстве деревообрабатывающих магазинов. Их можно получить всего за 100 долларов за 2,5 метра материала. Большинство конструкций имеют предварительную форму, чтобы соответствовать верхней стойке, поэтому для установки просто требуется молоток, гвозди, легкое шлифование и лак, чтобы стойка соответствовала остальной части кухни.Холодильная
Не рассчитывайте на домашний холодильник для вашего бара. Если вы собираетесь пить главным образом пиво, подумайте о том, чтобы сделать свой холодильник для кегов. Если вам нужно держать бутылочное пиво, охлажденные вина или холодные коктейли, то можно использовать мини-холодильник под барной стойкой для напитков с контролем температуры. Это является самым эффективным способом дать вашим напиткам достаточное количество холода.
Осветительные приборы
Мало кто любит подвал, где светит только несколько мерцающих флуоресцентных ламп. И бар не должен быть темным и пыльным . Правильное освещение помогает поднять настроение и настроить на нужный лад.
Наборы светодиодных лент – это простой и доступный способ придать бару интересное свечение. Гибкие световые полосы выпускаются в нескольких цветах и могут быть нарезаны длиной до 5 см. Многие из гибких полосок поставляются с клейкой лентой, что позволяет легко вставлять их именно туда, где они нужны. Установка светильников под шкафами бара или верхней панели дает площади уникальное, утонченное освещение.
Еще один бонус от светодиодов – их эффективность. Сокращаются затраты электричества.
Полезные советы
Если вы наполняете свой бар широким выбором спиртных напитков, попробуйте скрытые полки, на которых, как в галерее, стоят разные бутылки. Если выпивка в домашнем баре состоит в основном из пива для приятелей, попробуйте еще один вариант: большие зеркала с рамкой или старинная карта на всю стену. Интересным вариантом может быть полка со старыми книгами и статуэтками. Телевизор будет плохим решением, т. к. он отвлекает внимание гостей.Трехмерные стеновые картины или плитки – еще один способ создать яркий вид задней панели. Найденные в большинстве магазинов домашнего декора, текстурированные панели часто бывают разных цветов и узоров. Даже несколько квадратных метров панелей добавляют еще одно измерение к домашней барной стойке.
С помощью нескольких простых шагов ваш домашний бар будет выглядеть модным и красивым. Он придется по вкусу гостям и домочадцам, а ваш дом будет любимым местом для субботнего вечера.
Видео: как сделать барную сойку самостоятельно
Фото: барные стойки в интерьере
diz-kitchen.ru
Барная стойка своими руками +фото, чертежи
Сделав современный ремонт на своей кухне, вы задумаетесь о барной стойке, которая идеально впишется в общий интерьер и сделает его более раскованным.
Расположение
Барная стойка в квартире-студии
Она подходит как для отдельно выделенной кухни, так и для квартиры-студии, в которой стойка способна зонировать пространство, не перегружая его. Барная стойка в интерьерах квартир популярна за границей, где народ известен своей любовью к перекусам, однако, у русских прием пищи является неким ритуалом, поэтому и конструкция приобрела свои особенности.
- Как правило, стойка расположена в помещении кухни.
- Данная конструкция не способна заменить собой полноценный обеденный стол, а является лишь его дополнением.
Разновидности
Классическая барная стойка
- Классический вариант конструкции основан на высоких консолях. Такая стойка имеет высоту 1,1–1,15 м. Для того чтобы такой вид стойки хорошо вписался в интерьер, стоит подобрать к ней стулья с высокими сиденьями.
Одноуровневая конструкция
- Комбинированная стойка, т.е. совмещенная с обеденной зоной. Соответственно, барная стойка будет иметь такую же высоту, как и рабочая поверхность (0,9 м) и выбирать к ней следует подходящие стулья (0,6 м). Это делается в основном для удобства.
Двухуровневая
- Если конструкция совмещенная, то она будет иметь две высоты. То есть столешница более высокого уровня играет роль барной стойки, а элемент пониже выступает в качестве обеденного стола. Это способ зачастую применяется при зонировании помещений кухни и гостиной. В этом случае обеденная зона расположена со стороны кухни, а барная – со стороны гостиной. При грамотном оформлении такой вариант довольно удобен.
Центральная совмещенная
- Еще один вариант – когда барная стойка устанавливается в центре кухни с большой площадью. При этом стойка является продолжением варочной панели и мойки. Данная модель подходит не всем, но тоже находит своих ценителей.
Обустройство бара
Барная стойка с этажеркой
Если площадь вашей квартиры довольно большая, можно обустроить отдельно полноценный бар, который не будет относиться к кухне. В таком баре присутствует место для мойки, есть холодильник для напитков и шкафчики с разнообразным алкоголем.
При таком расположении барная стойка полностью выполняет свои первоначальные функции и является местом отдыха, где можно выпить. Такой вариант актуален для небольших семей, проживающих в квартире-студии. В таком случае конструкция может быть расположена в любом месте помещения.
К сожалению, в магазинах ассортимент барных стоек невелик. Как правило, вы сможете найти комплектующие к ней: полки, подсветку, столешницу, фурнитуру. Приходится подбирать и укомплектовывать все таким образом, чтобы конструкция сочеталась с общим интерьером помещения, в котором она находится.
Изготовление
Сборка барной стойки
Чтобы в вашем интерьере появилась барная стойка, необходимо определиться с материалом для ее изготовления. Для этого можно использовать: древесину, стекло, ДСП, натуральный или искусственный камень, металл и комбинации этих материалов. Для отделки столешницы в основном применяется корин, который отличается прочностью и доступен в широкой цветовой гамме. Из него можно с легкостью изготовить желаемую форму, которая подойдет для вашего помещения.
При изготовлении необязательно делать столешницу из такого же материала, как рабочая поверхность.
Обустраивая стойку, необходимо грамотно и красиво задействовать пространство над ней. Здесь могут размещаться полки и навесы для фужеров, корзины для фруктов, салфетницы. Сделав такое многофункциональное «деревце», вы задействуете пространство и украсите помещение.
При наличии маленькой кухни необязательно отказывать себе в барной стойке. В этом случае она совмещается с обеденной зоной, но делается немного выше стола. Не стоит делать стойку слишком высокой, поскольку в небольшом помещении это будет выглядеть неуместно. Оптимальным вариантом станет продолжение рабочей поверхности или столешницы, то есть расположение в одной плоскости с остальными предметами.
Из гипсокартона

Необходимо подготовить следующий инструмент и материал:
- уровень;
- перфоратор;
- металлические профили;
- гипсокартон;
- дюбеля;
- саморезы;
- шпаклевка;
- шпатель;
- краска;
- нож;
- шуруповерт;
- просекатель;
- терка для выглаживания шпаклевки;
- герметик;
- валик, кисть и лоток для покраски.
Процесс изготовления выглядит следующим образом:
- Определяете размеры конструкции – ширину, длину и высоту стойки. Главное, чтобы за ней было удобно находиться.
- На следующем этапе изготавливается металлический каркас.
- При изготовлении каркаса очень важно придать ему достаточную жесткость. Для этого углы можно изготавливать из цельного профиля, например, надрезаете ножницами по металлу две его стенки и после загибаете угол 90°. Усилить место сгиба можно при помощи просекателя или закрутив саморезы.
- Так, направляющий профиль UD закрепляется к стене и полу. Для крепления используются дюбеля. Необходимо сделать два каркаса стенок.
- Между собой их следует соединить поперечным профилем. Каждый профиль также скрепляется просекателем.
- При необходимости соединения двух профилей перпендикулярно, — используются крабы.

Если вы хотите в будущем установить на барную стойку подсветку, то в конструкцию сразу следует завести провода, оставив снаружи выводы. Когда каркас полностью готов, проверьте его на устойчивость. После этого можно приступать к креплению гипсокартона. Шляпки саморезов следует слегка утапливать в гипсокартон. После их будет легче зашпаклевать, а всю поверхность барной стойки покрасить.
После установки гипсокартона каждый стык необходимо зашпаклевать с монтажной сеткой. Это предотвратит появление трещин.
Если по завершении работы имеются места, где стойка плохо прилегает к стене или полу, эти щели можно обработать герметиком. У пола устанавливают плинтуса.
Из дерева

Для работы потребуется следующий набор материалов:
- брус 50×100 мм;
- обрезная доска 25×300 мм;
- МДФ листы толщиной 18 мм;
- плинтус;
- молдинг;
- саморезы;
- акриловый герметик;
- лак;
- краска.
Деревянная стойка с мраморной столешницей
Процесс изготовления выглядит следующим образом:
- На первом этапе разрабатывается дизайн-проект. В конце статьи будут представлены готовые чертежи барных стоек. Можно воспользоваться уже готовым проектом или немного его модернизировать под индивидуальные потребности. На этом этапе вам следует решить, какими будут длина, высота и ширина конструкции.
- Теперь, отталкиваясь от готового проекта, можно приступать к изготовлению каркаса. Для этого сделайте разметку будущего каркаса на стене и полу, нарисовав линии контура будущего расположения барной стойки.
- Крепите брус к полу и стене по намеченным линиям.
- Также необходимо установить стойки опоры и поперечные балки для монтажа столешницы. Определите высоту стоек так, чтобы верх столешницы был в один уровень с рабочей зоной на кухне. При этом каждую вертикальную стойку следует установить по уровню.
- Между собой стойки соединяются поперечными брусьями. Для крепления можно использовать мебельные уголки.
- Когда каркас собран, выполняется его обшивка.
- Для обшивки можно использовать листы МДФ. Они дополнительно придадут конструкции необходимую жесткость.
- Столешница изготавливается из обрезной доски, которая шлифуется и покрывается лаком.
Все деревянные элементы стойки следует обработать специальными составами от коррозии для увеличения влагостойкости и для защиты от возгорания.
Все образующиеся щели между барной стойкой, стеной и полом заполните акриловым герметиком. Торцы установленной столешницы следует закрыть молдингом.
Из кирпича

Барная стойка из кирпича по-настоящему основательное сооружение, которое отличается высокой прочностью. Если в квартире деревянный пол, то от создания такой конструкции придется отказаться.

Для строительства вам потребуется цементный раствор и кирпич. Конструкция будет выглядеть в форме параллелепипеда. Ряд за рядом выкладывается кирпичная кладка, скрепляемая раствором. Для облицовки такой стойки лучше подойдет облицовочный красный кирпич, кладка которого осуществляется под расшивку. Что касается столешницы, то она может быть выполнена из натурального камня, дерева или МДФ плиты.
Из камня

Барные стойки также можно изготавливать из натурального камня. Например, отличным вариантом является полированный гранит. Поверхность не боится влаги, острых предметов, горячего и холодного, а также на ней не остается никаких пятен.
Чтобы установленная столешница из камня имела законченный вид, ее края оформляются декоративной фаской.
Можно выделить ряд преимуществ по использованию натурального камня:
- прочность;
- термостойкость;
- простота в уходе;
- большое разнообразие цветов и узоров;
- долговечность;
- устойчивость к различным воздействиям реагентов.
Небольшой совет
Белая центральная барная стойка Когда вы будете продумывать конструкцию барной стойки, старайтесь соблюдать меру. То есть конструкция не должна быть перегружена множеством предметов и деталей. Стоит отталкиваться от трех основных правил:
- Функциональность. Определитесь, что вы хотите от барной стойки и при конструировании учтите все свои предпочтения, чтобы в итоге она получилась максимально удобной.
- Разделение пространства. В том случае когда необходимо зонировать помещение, стойка должна выполнять эту роль.
- Красота. Стойка должна быть не только удобной, но и эстетичной, отлично вписываться в общий дизайн. Сочетание со всеми остальными предметами мебели – это неукоснительное требование, которому должна соответствовать конструкция.
Фото
Барная стойка классического типа
Отдельно стоящая
Комбинированная
Одновременно являющаяся столом
Барная стойка с рабочей поверхностью
С дополнительной поверхностью
Островного типа
Чертежи
При помощи предоставленных схем и чертежей, вы сможете спроектировать и сделать барную стойку самостоятельно:
Чертеж барной стойки

Элементы барной стойки
План размещения
Размеры
Схема барной стойки на трубе
Схема деревянной барной стойки
Схема конструкции из кирпича
Схема кухни с барной стойкой
Схема сборки
kakpravilnosdelat.ru
Как сделать барную стойку в кухне своими руками
Когда-то барные стойки использовались только по назначению: в питейном заведении присесть и выпить. Каким-то образом они перекочевали на кухню, и там прижились. Очень удобная оказалась деталь, тем более, что претерпела она заметные изменения и современная барная стойка для кухни имеет разнообразную конструкцию. Ее варианты могут сильно отличатся по дизайну и стилю, да и функциональное назначение у них тоже может быть разным.
Назначение и виды
Если площадь кухни позволяет, барную стойку в кухне ставят по прямому назначению: присесть выпить чашечку кофе или чего-нибудь покрепче, чем-нибудь перекусить. Тогда и «оснащение» у нее соответственное: держатели для стаканов, фужеров, рюмок, рядом полка/держатели соков, бутылок и т.п. Ставят ее опирая одним краем на стену или край кухонного гарнитура, иногда располагают в виде остова — посреди свободной зоны.

Барна стойка на большой кухне
На небольших кухнях она часто многофункциональна. Использоваться может и как разделитель на зоны — столовой и кухни, на совсем маленьких площадях часто используется как обеденный стол. Причем может быть расположена нестандартно — у стены.

Барная стойка вдоль стены
На кухнях средних размеров — 10-12 метров — часто выполняется в виде полуострова — небольшого выступа сбоку. В целях более рационального использования пространства место под столешницей занимают под полки или шкаф. Такая конструкция очень проста — столешница барной стойки часто опирается на несколько кусков прямых или наклонных труб, закрепленных на столе шкафа.

Барная стойка на кухне — полуостров
Подобные многоступенчатые кухни в последнее время стали популярны: разные операции на кухне удобнее выполнять на поверхностях с разной высотой.

Две поверхности одна над другой

Поверхность стойки немного сдвинута относительно стола
Но, все-таки, чаще барная стойка для кухни присутствует в квартирах-студиях для разграничения двух зон: кухни от гостиной или от прихожей — у кого что объединено. Причем зачастую является продолжением рабочего стола-острова или полуострова.

Барная стойка для кухни как продолжение стола-острова
Делают еще в виде перегородки. В этом случае основа чаще всего из гипсокартона, а к ней «пристраивается» — сверху или сбоку — поверхность.

Барная стойка-перегородка из гипсокартона

Такой вариант сделать несложно
Основой может быть и кирпичный
В общем, вариантов, вариаций и разных видов много. Приспосабливаете ту идею, которая понравилась под ваши условия, и можно приступать к реализации.
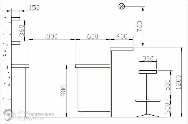
Размеры и габариты
Строгих норм на этот счет нет. Есть некоторые рекомендации, которые нарушаются примерно в половине случаев. Рекомендации касаются только высоты и ширины столешницы:
- По высоте барную стойку принято делать 1,1-1,2 метра. Тогда возле нее ставят специальные высокие стулья.
- По ширине — минимум — 30 см, оптимально 50-60 см. Меньше 30 см делать не стоит: даже небольшая тарелка уже на такой столешнице будет в опасности. И просто неудобно: ни локти поставить, ни облокотиться толком.
Длинна, форма, количество и форма ножек — это все на ваше усмотрение. Кстати о ножках. Традиционные стойки, которые были в питейных заведениях — это столешница на тумбе. Но для кухни «классикой» почему-то считается столешница на одной трубе от пола до потолка.

Что-то типа такой стойки считается в кухонных гарнитурах классикой
Кстати сказать, в таком виде она уже практически и не используется. Преобладают более функциональные аналоги со шкафами и тумбами.
Барная стойка для кухни: этапы, способы изготовления, фотоотчеты
Самый простой в исполнении вариант — это именно классический: столешница, прикрепленная одним краем к стене или мебели, а вторым опирающаяся на трубу. Со столешницей есть варианты:
- Сделать из широкой доски, желательно не хвойной породы — у них древесина слишком мягкая.
- Заказать в той же фирме, где делали кухонный гарнитур. Если купили готовый, придется искать похожий материал по фото или носить с собой по мастерским небольшую запчасть чтобы продемонстрировать что вам требуется.
- Сделать из толстой фанеры, потом чем-то задекорировать — наклеить пластик, плитку, мозаику.
Все остальное лучше выбирать в магазине, торгующем мебельной фурнитурой. Выбор очень широк, а разброс цен вообще изумляет. Например труба одного и того же диаметра может стоить в три раза больше. Но такая разница неспроста. С дешевых китайских труб/сеток/корзинок хромирование начинает через какое-то время сыпаться хлопьями. У немецкой фурнитуры ценник очень высокий, но пожизненная гарантия, поляки — посередине и по цене, и по качеству. Выбор за вами.

Самодельная барная стойка для кухни из доски
На фото выше — самодельная барная стойка, которую сделали из толстой доски. Опирается она с одной стороны на приделанную к стене полочку (тоже из досок дюймовок). Вторая опора — традиционная труба. Под трубу в теле столешницы сверлится отверстие подходящего диаметра. Под столешницу на трубу устанавливается насадка-упор «кольцо крепежное», сверху закрывается отверстие декоративным кольцом. Есть также «подпятник» или универсальное крепление трубы к полу и потолку, а также разные держатели и полочки на нее.
Если крепится столешница будет напрямую к стене, для этих целей обычно используют уголки. Можно взять усиленные, а цвет выбирайте исходя из отделки. Но данный вид крепежа устанавливают так, чтобы его не было видно — отступив от края несколько сантиметров. Можно поставить несколько небольших уголков, или один сплошной.

Держатели для полок можно поставить под столешницу
Если решено сделать барную стойку на кухне вдоль стены, можно использовать декоративные кронштейны для полок. Их несущей способности должно хватить и на столешницу, тем более, что поставить можно несколько штук. Пример сборки барной стойки простой конструкции с трубой на фото ниже.
Фотоотчет №1: самодельная стойка из столешницы и трубы
Столешницу вырезали из подоконника (массив), край скруглили, отшлифовали, затонировали и покрыли лаком. Запчасти — барная нога, кронштейны и фиксатор к полу — куплены в отделе мебельной фурнитуры.

Это исходные данные
К столешнице прикручиваем упор, к краю — уголки. Садится все на саморезы с плоской шляпкой. Работа занимает минут 7.

Основная часть собрана
Приставив собранную стойку к стене, отмечаем на стене места, где необходимо установить дюбеля. На полу обводим маркером трубу: по этой метке будем выставлять подпятник. По меткам монтируем упор для стойки, в стену ставим дюбеля.

Подготовительная часть
Ставим стойку на место, крепим шурупами. Все. Готово.

Простая барная стойка собрана своими руками
Барные стойки с полками
Если конструкция с трубой не нравится, можно обойтись без нее, но придется убрать верхнюю часть, которая находится под потолком. Вместо ноги, например, можно сделать такую же полку, как и возле стены. Вид станет сразу более динамичным и современным.

Эскизы несложных в изготовлении барных стоек
Да и вообще всю конструкцию можно собрать из широких досок, стыкуя их под прямым углом. Посмотрев на фото внизу, вы поймете о чем речь.

Барная стойка для кухни в современном стиле (для минимализма и хайтек тоже)
В современные интерьеры вообще лучше вписываются ломанные линии. Если кухня в стиле минимализм или хай тек, то классику туда тяжело вписать, а вот нечто, состоящее из ломанных линий смотреться будет очень неплохо (несколько эскизов на картинке ниже).

Барные стойки для кухни в стиле модерн
Чуть более традиционный вариант представлен на фото. От этого он не стал менее интересным. Нестандартный подход даже в незначительных дозах значительно изменяет восприятие.

Вариант барной стоки — стола
Барная стойка на основании
Все это мы рассматривали варианты без основания. Но столешницу можно прикрепить на какую-то тумбу. Если столешница будет находится точно над поверхностью стола, берем трубу и стандартный крепеж к горизонтальным поверхностям. Если же, как в данном случае, поверхность барной стойки смещена, есть специальный наклонный крепеж.

Столешницу прикрепить на шкаф — легко и просто
Тумбу можно смастерить самостоятельно. Собственно, главное — собрать каркас. Его можно обшить мебельной фанерой или каким другим отделочным материалом — это зависит от стиля вашей кухни. Каркас можно сделать из деревянных (сухих) реек, а можно — сварить и металлического уголка.

На такой стойке можно танцевать
Как вариант — собрать из профилей для гипсокартона, обшить им же или ГВЛ. Еще вариант — сложить основу из кирпича. Но это, Если позволяет несущая способность перекрытия.

В стиле лофт
С основой из гипсокартона: фотоотчет №2
Часто выбирают устройство основы из гипсокартона. Материал недорогой, технология опробована, механика знакома, результат — как минимум — хороший. По порядку работ никаких новостей: собираем каркас. В данном случае использованы деревянные бруски, но точно также можно и с использованием профилей.

Собраный каркас
Главное — соблюдать вертикальность и горизонтальность плоскостей, ставить стойки ровно под 90°. Проверяется все хорошим строительным уровнем, вертикальность лучше отслеживать отвесом: у него погрешности нет. Когда каркас собран, с двух сторон обшивается гиспокартоном или ГВЛ.

Листы гипсокартона смонтированы
Следы от саморезов, углы и стыки шпаклюем. Далее зависит от выбранного типа отделки: под некоторые необходима шпаклевка (покраска водоэмульсионкой), под другие нет. В нашем случае была выбрана фактурная краска, она наносится толстым слоем, и можно — напрямую на гипсокартон.

Покрыта фактурной краской
Осталось установить на барную стойку столешницу. Выбираете, какая больше подходит к остальной мебели на вашей кухне.
Фотоотчет №3: Барная стойка с мойкой
Это был первый опыт в создании мебели (и вообще чего-то путного) своими руками, в результате допущены некоторые конструктивные недочеты. Не самый удачный получился дизайн, хотя, о вкусах не спорят.
Исходные материалы:
- недорогие столешницы, купленные на распродаже;
- остатки от шкафа из ламинированного ДСП;
- бруски;
- пару докупленных дверок;
- сантехническая начинка: мойка, сифон, смеситель и требующиеся трубы-шланги-фитинги.

Столешницы сложены буквой «Г», соединены стальными пластинами, прикреплены боковины
Установка и замена смесителя на кухне описана тут.
На полу лицевой стороной вниз разложены столешницы. Они соединены в виде буквы «Г» с помощью клея, которым промазаны торцы и стальной полосы с перфорацией, в которую закручены саморезы. Полоса, понятное дело, закреплена снизу.
Боковины предполагалось облагородить (предположительно — ламинатом), потому использованы имеющиеся в хозяйстве остатки — старая дверь и кусок шкафа. Они прикручены при помощи уголков, выровнены по краю столешниц. И это — первая ошибка. И визуально смотрится такая тумба тяжеловесно, и сидеть неудобно. Боковины необходимо сдвинуть от края как минимум, на 10 см.
После того, как боковины установлены, тумбу перевернули, поставили на постоянное место. Все остальные работы проводили в на месте. Выпилено отверстие под мойку, установлена и подключена сантехническая часть.

Вид спереди и сзади
По полу прибиты рейки — вдоль стенок и чуть отступив от наружного края (сделан отступ 5 см, можно 10 — удобнее), сделаны полочки. Шкаф со стороны мойки закрыт дверцей, полки слева остались открытыми. Пространство частично отделано деревянными планками.
Сначала думали поставить на трубе несколько различных «прибамбасов», но от столешниц остались полукруглые края. Было решено использовать их на трубе. В качестве наружной отделки тумбы использованы панели для декорирования балконов (куплены в Леруа). Они почти подошли по размеру, а оставшиеся щели закрыли витым шнуром. Как в результате выглядит самодельная барная стойка со шкафом для мойки смотрите на фото ниже.

Барная стойка для кухни с мойкой своими руками
Есть еще замечания по отделке. Первое — шнур скоро пропитается различными жидкостями, будет иметь бледный вид и сильный «аромат». Чтобы отодвинуть срок появления запаха, его можно чем-то покрыть, хоть тем же клеем ПВА. Второе — столешницы просто состыкованы. В щель будет попадать вода, набьется различный мелкий мусор. Еще на стадии «стыковки» края необходимо промазать герметиком (прозрачным, силиконовым, не акриловым). Так же можно и нужно обработать края выреза под мойку. Тогда столешница не будет разбухать. Стыки столешниц можно отделать мебельными накладками, их же или похожие использовать и вместо шнура. Еще бюджетный вариант — пластиковые уголки и такие же Т-образные планки.
Барная стойка для кухни на остатках стены
Если кухню объединили с балконом, остается кусок стены. Место там, где раньше было окно. Если разрушать его нет желания, можно сделать барную стойку.

Остаток стены при совмещении кухни и балкона можно превратить в барную стойку
Есть два варианта:
- На той высоте которая есть, поставить столешницу. Это будет еще одна рабочая поверхность или полочка. Над ней на трубах на высоте уже порядка 1,1-1,2 м закрепить еще одну плоскость, которая и будет собственно, барной стойкой.
- Доложить/дорастить стену до нужной высоты и поставить столешницу.

Как можно оформить стойку на остатке стены
Оба варианте неплохи, но тот что на фото справа, более практичен: две поверхности на кухне всегда лучше чем одна. Обратите внимание, что размеры столешницы больше, чем ширина «ножки». Это не случайно: так можно более-менее комфортно сидеть, не разворачиваясь боком.
А если не лень эту стенку убрать, можно сделать нечто более удобное — чтобы можно было ноги поставить. Пример — на фото.

Так сидеть будет удобнее
Фото-идеи оформления

Отдельный уголок

Рабочий стол — как основа

Фото барной стойки на маленькой кухне

Вариант зонирования

Интересная подсветка

Как основа для журнального столика

На просторной кухне))

Барная стойка из кирпича или камня — стильно

Нестандартный вид и окрас

Барная стойка в квартире студии

Можно и пообедать

Два эскиза для воплощения

Барная стойка для маленькой кухни
Видео по теме
Если хотите барную стойку поставить на открытой летней кухне, идею можно позаимствовать в этом видео. Парень из найденных в лесу коряг и толстой доски соорудил интересную стойку.
Чаще всего возникают вопросы по поводу того, как сделать столешницу для барной стойки. Можно отделать ее мозаикой. А как — смотрите в видео. Вообще технология укладки мозаики несложна: на специальный клей белого цвета с последующей затиркой швов между плиточками. Сложно бывает сформировать неровный край. Вот как это сделать — смотрите в видео.
Столешница, склеенная из брусков
dekormyhome.ru
Барная стойка для кухни своими руками
Просматривая Западные фильмы, вы, наверное, не раз замечали непривычную для российского интерьера барную стойку. Перелетев через океан, идея организации дома своего мини-бара с настоящей стойкой прочно обосновалась в мире российского дизайна. Что ж, ничего специфического для этого элемента не нужно и сегодня мы подумаем, как сделать барную стойку своими силами.
Барная стойка, сделанная дома своими руками: это отличное хобби
Начало начал: выбираем стиль
Каковы ассоциации на сочетание барная стойка дома? Бар? – не обязательно. Этот элемент декора проник уже и в частные, да и в квартиры тоже. Шумная компания, душевные разговоры, дорогой алкоголь и безоблачное настроение – вот что несет в себе эта вещь дома.
Зачем покупать, когда есть прямые руки – не так ли? Доморощенные мастера на все руки согласятся с вами и будут в этом правы. Сделать барную стойку своими руками не так уж и сложно, потребуется только четко определить размеры и место. Установка элемента чаще происходит на кухне.
Вариантов и форм стоек – море, но как найти, ту единственную, конструкция которой подойдет вам? Задумавшись над этим, обращайте внимание на помещение, в котором вы ее разместите. Она, как элемент интерьера, должна лаконично вписываться в стиль помещения и главное – не мешать свободному передвижению по комнате. Обратим внимание, что сделанная барная стойка своими руками из гипсокартона ненадежна– ГК не лучший материал для такой мебели.
В просторных помещениях применим классический вариант: полукруглая конструкция, размещенная в центре комнаты. При кухнях-маломерках стоит рассмотреть угловой вариант, которая используется как рабочая зона. С любой площадью можно пофантазировать, а эта статья поможет вам посмотреть на барные стойки для кухни своими руками с технической стороны.
Необходимость барной стойки в доме обуславливается малой полезной площадью кухни
А зачем нам это нужно?
Если вы постоянно на ногах, то барная стойка для дома станет удобным подспорьем – идеальное решение для быстрых перекусов и не нужно постоянно садиться к столу. Да и отдохнуть с друзьями, потягивая виски и обсуждая очередной матч, куда удобней и приятней у нее.
К слову о столах. Если вы счастливый обладатель парочки неугомонных детишек, то стол ставится на кухне обязательно. Детям попросту неудобно сидеть за высоким столом, а вечно свисающие со стула ноги не самое полезное дело. Учитывая это, обратите внимание, что можно объединять ее со столом. Итак, почему же не стоит считать это изделие ненужной буржуазной безделушкой:
- В маленьких квартирах, а в частности и в квартирах-студиях, стойка используется как элемент зонирования. А поскольку верхняя часть – это обычно типичная столешница, то это и рабочая зона
- Конечная цена колеблется в широких пределах. Самостоятельная подготовка не требует серьезных затрат, если не выбирать дорогой материал, в то время как изготовление барных стоек дорогостоящее удовольствие
- Этот элемент декора создает атмосферу непринужденности. Добавьте точечного освещения и любые барные стойки с подсветкой со всей своей мягкостью впишутся в декор кухни
Итак, рассмотрим бюджетный вариант, отказавшись от покупки, и подумаем, как самому сделать барную стойку. Все, что нам потребуется – материалы для барной стойки, терпение и план.
Самый распространенный вариант барной стойки
План-задание
- Находим в интернете чертежи нужного типа или же чертим сами
- Выбираем и закупаем все необходимое
- Собираем каркас
- Монтируем основу и нижнюю столешницу
- Монтируем верх и обшиваем
- Занимаемся декором
Теперь барная стойка своими руками для кухни начинает свою жизнь!
Определяемся с макетом
Выбираем его с учетом площади кухни, а также общего стиля. Например, полукруглые барные стойки из дерева совсем не в пишутся в стиль hi-tech. Если выбираете гибридную стоку, где с одной стороны находится обычный стол, найдите необходимый стол или же точный чертеж.
Здесь сборку модели классической цельной формы. Этот вариант не самый сложный и достаточно распространенный, именно поэтому выбор пал на него.
Определившись с конструкцией теперь необходимо подготовить точный эскиз. В нем отражаются все размеры в трех измерениях и, по желанию, указание на материалы. Придержемся классической высоты в 1,1 метр.
По магазинам: покупаем материалы
С помощью лака создается гладкое декоративное покрытие дерева
Выбранная нами барная стойка на кухне своими руками потребует следующие материалы:
- Листовая фанера и ДСП
- Брус деревянный 50×100 мм
- Доски обрезные 25×100 мм
- Плинтуса для декорирования
- Саморезы и различные гвозди
- Лак по дереву
- Морилка
Подготавливаем каркас
Здесь нам понадобиться брус и гвозди не более 80мм. Из бруса вырезаем по чертежам элементы несущей конструкции и соединяем их гвоздями. Важны две вещи: разные детали должны максимально плотно прилегать друг к другу и находиться на одном уровне. Никакие искривления здесь недопустимы.
К получившимся брускам добавляем направляющие. Их мы делаем из купленных досок. Располагаем направляющее строго вертикально, выравниваем их под размер. Допуская ошибки на этом этапе, вы рискуете «искривить позвонок» будущей стойке. Не стоит делать все на глаз, пользуйтесь уровнем, при возможности – лазерным.
Накладываем первую столешницу
После сборки каркаса приступаем к созданию настила. Для этого используем листы фанеры, которые аккуратно прибиваем к основе – не переусердствуйте, чтобы не поломать фанеру.
Затем, из ДВП подготавливаем нижнюю столешницу. Кстати, этот этап упрощается, если делается барная стойка из столешницы, которая была закуплена ранее. После этого, соединяем каркас и нижнюю часть столешницы при помощи небольших саморезов. Внутри конструкции разбиваем пространство на несколько отдельных выемок при помощи листов фанеры.
Делаем барную стойку своими руками: уклаываем фанеру на опоры
Верхняя столешница и обшивка
Наша барная стойка на кухне своими руками практически завершена. Первым делом подготавливаем верхнюю часть столешницы из того же ДВП. Здесь важно следить за максимально плотным креплением между деталями. Когда она готова, стойка обшивается листами фанеры.
Теперь в дело идут плинтуса и финишные гвозди. Для справки: финишные гвозди – они же вагоночные – это гвозди с едва заметной головкой необходимых цветов. Итак, с помощью этих гвоздей крепим декоративные плинтуса и барная стойка из дерева своими руками почти готова. Здесь можно заняться творчеством, главное обшейте углы. В принципе, барная стойка из столешницы своими руками тоже достойное решение.
Создаем авторский декор
Теперь легкий, но затяжной этап. Покрываем стойку морилкой, тщательно каждый элемент, не пропуская ни одного миллиметра. После полного высыхания, наносите лак. Покройте стойку в два-три слоя, полная просушка занимает около 2 часов. Таким образом, вам понадобиться примерно 10 часов, чтобы полностью закончить с этим. Делается это все для защиты ее от влаги и воздуха. На этом этапе стоит быть предельно внимательным!
Последний этап декорирования: покрытие морилкой с лаком
На финишной прямой
Трудоемкий массив работ закончен, но это не означает, что сама барная стойка готова к использованию. Чтобы наш труд не «утонул» в кухне, акцентируем нашу стойку.
Вспомните, что еще является неотъемлемым атрибутом бара? Правильно – это особый свет. Над барной стойкой всегда точечно расположены элементы освещения. Специально купить их можно, но не нужно – придется думать над проведением питания, а это делается до того, как в комнате появится какая-либо мебель. Используйте галогенные лампы и удлинители (их легко скрыть), чтобы подсветить стойку.
Если же возможно, то повесьте над стойкой навесные лампы, вроде тех зеленых, что висят в каждой бильярдной. А вместо обычного выключателя используйте диммеры, которые позволят вам подобрать любой свет под любую ситуацию. А вообще лучше размещать барную стойку рядом с розетками, чтобы не возникало проблем с электричеством.
Проводя энергомост самостоятельно и специально для стойки, не обязательно ломать стены. Если на кухне есть открытый выход системы проводки, то применяйте гибкие маскировочные трубки, чтобы провести шнуры к стойке.
Завершая начатое
Стойка готова, осталось добавить необходимое оборудование. Начнем с высоких стульев. Деревянные барные стойки сочетаются со стульями без спинок с эффектом потертости.
ПОСМОТРЕТЬ ВИДЕО
Рядом располагаем бытовую технику, а для любителей – традиционный пивной кран.
Поверху расположите рейл для бокалов или вмонтировать полку для различных барных принадлежностей. И после этого барная стойка своими руками окончательно готова – наслаждайтесь! Надеемся теперь вы знаете, что барная стойка для кухни своими руками вполне реальное достижение.
obzorkuhni.ru
фото и видео-инструкция как сделать самому, изготовление пошагово

Барная стойка станет не только украшением интерьера кухни, но и функциональным элементом
Барная стойка в современных кухнях – все чаще встречающийся элемент дизайна помещения. Она актуальна везде – и в загородных домах, и в малогабаритных квартирах. Здесь барная стойка даже более актуальна, ведь с ее помощью можно наиболее оптимально использовать каждый сантиметр площади. Барная стойка может играть роль стенки, отделяющей кухню от гостиной, стола, места отдыха гостей. Остановимся подробнее на том, как сделать барную стойку своими руками.Содержание материала:
Материалы и инструменты
Сделать барную стойку на кухню своими руками достаточно просто. Этот вид мебели считается простым для исполнения и здесь не потребуется высокой квалификации в области столярных и плотницких работ. Главное – определиться с дизайном и подобрать правильные инструменты и качественные материалы.
В зависимости от дизайна кухни разрабатывается и сам облик стойки. Она может быть выполнена просто в виде высокого стола, либо столешницы с тумбой, а может иметь дополнительные полки. В этом случае понадобится труба, которая будет выполнять роль опоры. Подбор материалов осуществляют в соответствии с проектом барной стойки.

Барные стойки с каркасом отличаются своей массивностью, поэтому подойдут только для кухни большой площади
Для изготовления ее можно использовать:- ДСП или МДФ;
- ДВП;
- фанеру;
- древесину;
- постформинг;
- пластик;
- гипсокартон;
- кирпич;
- нержавеющую трубу; перфорированные листы металла для декоративной отделки.
Из инструментов понадобятся:
- электролобзик;
- дрель;
- набор отверток;
- крепеж.
Характеристика материалов
Пластик

От фактуры пластика напрямую влияет впечатление от него, поэтому экономить на материале не стоит
- легкий;
- простой в обработке;
- долговечный – не выцветает и не тускнеет;
- недорогой.
Однако пластик не очень прочен и выглядит достаточно дешево. Респектабельную барную стойку для кухни своими руками из него не сделать.
Ламинированные ДСП или МДФ

Барные стойки из ДСП и МДФ — один из лучший вариантов цена/качество
Плиты ДСП и МДФ можно найти цветные, с имитацией текстуры дерева, а также с имитацией натурального камня. Это позволяет создавать мебель для кухни самого различного стилевого направления.
Из недостатков такого материала можно выделить главный – стоит он значительно дороже пластика.долговечны;
Преимущества ламинированных панелей из ДСП или МДФ:
- устойчивы к воздействию влаги;
- имеют широкую цветовую гамму;
- выглядят современно.
Гипсокартон
- легкий;
- хорошо режется – ему легко придать любую конфигурацию;
- недорогой.
Гипсокартон всегда дает возможность реализовать практически любые задумки, будь то потолок или, в нашем случае, барная стойка

При помощи гипсокартона можно соединить барную стойку с потолком, сделав интерьер визуально «собраннее»
Из гипсокартона можно делать стойки любой формы, даже самой замысловатой. Это удобно, когда хочется создать экстравагантный интерьер, обойдясь минимумом средств. Но надо помнить, что гипсокартон боится ударов и влаги.
Дерево

Барная стойка на кухне из дерева — сама классика и отличается тем, что идеально вписывается в дизайн кухни практически любого стиля

Для того чтобы барная стойка из дерева не выглядела скучно, рекомендуется комбинировать породы
Из натурального дерева можно сделать очень респектабельную, дорого выглядящую стойку. Но здесь понадобятся навыки обращения с материалом. К недостаткам дерева можно отнести то, что оно может деформироваться из-за перепадов влажности на кухне. К тому же, работа с ним потребует профессионального инструмента для торцовки (обработки торцов), который есть далеко не у всех.
На чем остановиться

Барную стойку на кухне можно сделать разноуровневой, что будет очень удобно в повседневной жизни
Наиболее подходящим материалом для изготовления являются:Их проще обрабатывать обычным электролобзиком.
Также, для изготовления барной стойки на кухню своими руками можно использовать уже готовые детали, продающиеся в строительных магазинах – готовые столешницы, плиты из постформинга, фасады МДФ для изготовления тумб.
Кирпич используется для изготовления основания под стойку. Но стоит учитывать, что это достаточно тяжелый материал. В ряде случаев лучше применять металлические уголки и трубы.
Изготовление стойки

Барная стойка идеальна в любом помещении, будь то маленькая кухня или загородный дом
Барная стойка состоит из:
- столешницы;
- основания;
- дополнительных элементов.
Это могут быть полки, держать которые будет металлическая труба либо ящики и полки, которые помещаются в основании. Как правило, высота столешницы в барной стойке должна быть равна высоте рабочего стола либо быть чуть выше.
Стойки могут быть одно и многоуровневыми. Высота стойки обычно бывает не менее 1,5 м.
Изготовление столешницы
Столешница – одна из основных деталей изделия. Она задает основной тон. Столешница обязана быть:
- прочной;
- устойчивой к механическим повреждениям, влаге, химическим веществам;
- эстетичной.

При соединении барной стойки с подоконником в маленькой кухне, очень важно будет подобрать идентичный оттенок, чтобы элементы казались одним целым
Можно сделать столешницу самостоятельно из плиты ДСП, ДВП, МДФ. В этом случае, при помощи электролобзика из плиты вырезается деталь нужной конфигурации. По нанесенной разметке ее надо вырезать.Далее места спила – торцы необходимо тщательно зачистить и придать им законченный вид. Торцы надо обязательно оклеить специальным материалом, тогда столешница приобретет фабричный вид и будет выглядеть эстетично. К тому же, торцевание защитит материал столешницы для кухни от разрушения.
Для обработки торцов используются пластиковые полосы или меламиновые торцовые кромки, купить которые можно в магазинах. В домашних условиях своими руками проклеивать пластик без особых инструментов сложно. Но если есть инструмент для прорезания паза, то пластиковая лента будет предпочтительнее. В этом случае надо сделать паз по торцу, а после этого вклеить в паз пластиковую окантовку. Использование пластиковой окантовки торцов позволит обеспечить долгий срок службы изделия и поможет достичь эстетичного и респектабельного внешний вида.
Если не требуется, чтобы барная стойка служила десятилетия, то лучше всего воспользоваться меламиновой кромкой. Она клеится легко и просто обычным утюгом, и справиться с этой работой, при определенной тренировке, может каждый.
Можно сделать столешницу из постформинга, либо приобрести уже готовый вариант. В таком случае не придется вырезать деталь столешницы и окантовывать торцы.
Изготовление основания

В качестве основания стойки может послужить гарнитур или барная труба, если барная стойка планируется «легкого» типа
В качестве основания может выступать конструкция из металла (понадобятся уголки, либо труба), ДСП, ДВП, кирпичная стенка, даже аквариум. Крайне оригинально и дорого выглядит аквариум с рыбками в качестве тумбы – места, на чем лежит столешница. Если решено сделать ставку на аквариум, то необходимо выбрать модель, сделанную из толстостенного стекла, способного выдерживать большие нагрузки. Такой аквариум стоит дорого, хотя результат того стоит.Очень монументально и респектабельно выглядит кирпичная кладка. В этом случае предпочтительнее использовать облицовочный кирпич. Как правило, он используется для оформления островной барной стойки на кухне. В этом случае столешница для кухни должна быть из камня, постформинга или массивной доски.
Гораздо экономичнее будет основание из ДСП или МДФ. При этом, каркас может быть сделан из бруса, либо из металлических уголков. Основной плюс таких конструкций – малый вес и возможность крепления основания к полу, что только делает стойку для кухни устойчивее. Здесь можно сделать тумбу, выдвижные ящики, полки, которые одновременно выступают как декоративные элементы и как дополнительные места хранения.
Каркас из бруса крепится саморезами. Далее каркас обшивается полотнами ДСП или МДФ. Торцы деталей из ДСП обрабатываются точно также, как и торцы столешницы. Можно использовать готовые фасады из МДФ для кухонных гарнитуров. Они будут играть роль дверок. Точно также внутрь каркаса вставляются уже готовые полки из ДСП, которые можно приобрести в строительном магазине, а боковые стороны каркаса обшиваются полотнами из ДСП подходящего цвета.
Барная стойка для кухни своими руками (видео)
Крепление барной стойки

Крепиться барная стойка может как к гарнитуру, так и просто к полу, если имеет каркас
Чаще всего конструкция стойки предполагает, что она одним краем крепится к стене, а другой ее край опирается на стойку, роль которой исполняет барная хромированная труба для кухни. Купить ее не проблема – труба различной модификации продается в любых строительных и мебельных магазинах и в магазинах фурнитуры для кухни.Чтобы конструкция стойки была прочной, труба должна быть хорошо закреплена. Для ее крепления необходимо не менее 4 мест фиксации. Два должны отвечать за удержание столешницы, еще 2 – крепить трубу к полу и потолку. Труба при этом должна проходить сквозь столешницу – для этого в последней делается отверстие равное диаметру трубы.
Сделать барную стойку своими руками совсем не сложно. Она обойдется гораздо дешевле, чем покупная и при правильном качественном ее исполнении будет выглядеть дороже, ибо сделает интерьер дома неповторимым и эксклюзивным. Главное – выбрать хорошие качественные материалы и тщательно произвести все работы по изготовлению стойки.
kitchenremont.ru
