нормы и правила, варианты конструкции туалета, технология сооружения
Казалось бы, какая простая вещь — дачный туалет на участке, но построить его с соблюдением всех норм и правил усложняет задачу. Хозяину дачи необходимо не только план построения изучить, технически правильно исполнить, но выбрать правильно место на участке и соблюсти санитарно-гигиенические требования и СНиП. Не забыть о кодексе об административных правонарушениях, статья 8.6 которого, регламентирует возведение клозета.
Правила и рекомендации по обустройству туалета на даче
При возведении и оборудовании туалета, следует учесть:
| Название нормативного документа, статья. | Нормы |
| СНиП: 30−02−97 ст. 6.8 | Минимальное расстояние: От дома до уборной= 12 м. Минимальное расстояние: От колодца до уборной = 8 м. |
| КоАП: ст. 8.6 | Использование Люфт-клозета, с негерметичной выгребной ямой, сброс экскрементов в компост, расценивается как «ПОРЧА ЗЕМЛИ» |

Нормы изучены и на плане земельного участка отмечены возможные места постройки данного сооружения. Но при выборе конкретного места, выполним эстетические требования: подальше от глаз. Если участок расположен на склоне, то место для туалета выбираем внизу участка.
Основная задача хозяина дачи — построить туалет так, чтобы распространения неприятного запаха приблизить к нулю. Для этого используют разные технологические тонкости.
Виды уличных туалетов
В зависимости от способа постройки септика, они делятся на следующие виды:
- Люфт-клозет;
- Пудр-клозет;
- Туалет-скворечник с выгребной ямой.
Люфт-клозет
Этот туалет достаточно затратный, делается из бетонных блоков или монолитного бетона. Цель — полная герметизация выгребной ямы, чтобы распространение дурных запахов почти полностью отсутствовало.
Удобно делать такой туалет отдельно стоящим зданием. Оборудуют туалетную кабину вентиляционным отверстием. Приемная воронка изготавливается из оцинкованного железа, но может быть исполнена из фаянса или эмалированного чугуна.
Общая стоимость такого санузла в разы превышает, например, стоимость туалета с выгребной ямой. Опорожнять содержимое можно только способом откачки ассенизаторской машиной.
Пудр-клозет
Этот вид туалета для дачи, можно назвать еще торфяным. В местностях, где ведется переработка древесины, используются для этих целей опилки. Можно использовать и песок, но он плотнее и тяжелее.

Оборудован такой туалет специальным баком для сбора фекалий, объемом от 10 до 15 литров, который устанавливают под стульчаком. Рядом находится емкость с торфом или мелкими опилками.
Способ устранения запаха прост, после каждого использования туалета, следует пересыпать содержимое бака сухим наполнителем. Опорожнение его проводится вручную. Преимущество такого устройства в том, что разместить пудр-клозет можно даже в помещении.
Торфяно-фекальную смесь на участке можно складывать в компостную кучу, а с применением препарата «Биокомпостин» компост готовится в очень короткие сроки. Через 1 год смесь превратится в очень рыхлый компост, применяйте его для удобрения участка.
Без применения специальных препаратов, компост созревает не менее 3 лет, если его не перелопачивают, за 2 года созреет компост, если часто перемешивают отходы, дают доступ воздуха.
Устроить пудр-клозет на участке можно своими руками. Это бюджетный вариант туалета для дачи. Выпускаемые промышленностью биотуалеты, это облагороженные пудр-клозеты.
Туалет-скворечник с выгребной ямой
Чаще других на дачах строят выгребные туалеты «скворечники». Над выгребной ямой возводят стульчак в виде помоста. По мере наполнения, выгребная яма вычищается с помощью ассенизаторской техники.
В целях сохранения земли от гельминтов, яма должна быть забетонирована. В селах применяют бетонные кольца малого диаметра, дно которых цементируют или металлические бочки, у которых выбивают верхнюю часть.

Для выгребных туалетов есть дополнительные запреты: их нельзя строить вблизи родников, водоемов, колодцев. Стоки могут дренировать на большие расстояния.
Четких рекомендаций дать нельзя, каждый участок индивидуален. Но, если он большой, отнесите клозеты как можно дальше. Если живете с хорошими соседями, договоритесь и стройте отхожие места рядом.
В селах скворечники переносят на другое место раз в четыре года. Старое место засыпают песком, опилками, торфом. За три года все перегнивает и превращается в чернозем. Будочка-скворечник может прослужить до 9 лет. Стоимость такой будочки не высокая. Материалы используются самые доступные по цене, но чаще это натуральное дерево.
Как построить туалет с выгребной ямой на даче своими руками
- Яма. Обустраиваем выгребную яму в месте, где она не принесет вреда водным ресурсам и земле. Выкапывайте яму чуть шире, чем размер приготовленных бочки и кольца. Землю складывайте не далеко. Утрамбуйте грунт, вставьте емкость и засыпайте изъятую ранее землю между стенкой емкости и грунтом, утрамбуйте. Емкость установлена.
- Застилаем, временно, досками и приступаем к изготовлению опоры и каркаса санузла.
- Опора. Для передней стенки, где располагается дверь, нужно установить две опоры. В случае если выгребная яма будет вписана в размер основы туалета, потребуется еще две опоры для задней стенки. Опорой могут стать бетонные блоки, толстые деревянные столбики, столбики, выложенные из кирпича.

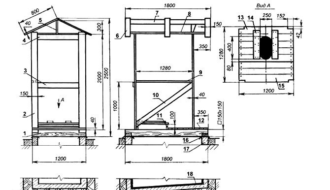
Каркас. Размеры каркаса на схеме даны оптимальные. Изменить размеры, по ширине или длине можно на усмотрение хозяина дачи. Делать сооружение выше не целесообразно.- Из деревянного бруса, по размерам указанным в схеме, делается каркас. Конструкция будет надежнее, если усилить ее раскосами. Создавая больше углов, каркас делается жестче. Для определения высоты стульчака, измерьте расстояние от пятки до колена, примерно от 45 до 53 см, на этом расстоянии от низа каркаса врезаете поперечный брус. Основа для постамента готова.

На задней стенке поперечные бруски вверху врежьте, предусматривая свободный выход воздуха — это естественная вентиляция.- В это окошко можно вставить мелкую москитную сетку. Или частично закрыть куском поликарбоната.
- Дверь. Если дверь туалета куплена готовая, по ее размерам устанавливайте дверной проем из двух вертикальных брусьев.
- Для простого «скворечника» сделать дверь самим не сложно. В соответствии с размерами по схеме или по размерам, между двумя вертикально поставленными брусками, сколачиваете каркас двери. Дверь можно набрать из досок, привернув их на два поперечных и один раскосный бруски.
- Делать разметку для навешивания петель надо на самой готовой двери. Стамеской выбираете лишнюю древесину на толщину петли и прикручиваете створку петли. Примеряя дверь в каркасе, карандашом намечаете место и глубину выемки для установки створки дверной петли. Шурупы вворачивайте аккуратно, они должны быть на уровне с высотой петельных створок.
- Крыша. Размер строения позволяет покрыть крышу по обрешетке, не используя лаг. Обрешетка выполняется из доски, толщиной 2,5 см. Материал для кровли подойдет любой. Как временное покрытие, можно использовать рубероид в два настила. Любое кровельное покрытие подойдет.
- Стульчак. На каркас набиваем обрешетку из строганых, четверченых досок. Материал должен быть сухим. Выпиливаем отверстие по размерам готовой пластиковой крышки, если она выбрана вами для такого служения. При желании, размер отверстия может отходить от стандартного, тогда крышку можно сделать из фанеры, обив или оклеив ее клеенкой. Прикручиваем удобную ручку.

Корпус. Обшивать корпус туалета желательно строганой сухой доской, с выбранной четвертью. Ширина ее не имеет значения. Обивать, в зависимости от задумки, как горизонтальным способом, так и вертикальным.- Освещение. Если это удобно, можно провести электричество и установить выключатель и патрон для лампочки. Для естественного освещения делают прорези вверху двери или остекляют верхнюю часть стенки над дверью.
Недорогая и удобная конструкция готова. Иногда с такого сооружения начинают все строительные работы на участке. Место, куда и царь пешком сам ходил, должно быть удобным, не иметь сквозняков. Применяя правила возведения такого туалета, не причините вреда соседям, себе и сохраните природные ресурсы в чистоте.
Оцените статью: Поделитесь с друзьями!Как построить туалет на дачном участке своими руками

Поэтапное строительство туалета на даче
Первая постройка на даче, за которую мы с мужем взялись – летний туалет своими руками. Одно из главных сооружений на дачном участке, без которого пребывание станет как минимум некомфортным. Строительство туалета оказалось задачей несложной, справиться с ней под силу каждому дачнику.

Разные конструкции туалетов
Чтобы построить туалет своими руками, определитесь с видом подходящего Вам санузла. Рассмотрим варианты.
Туалет с выгребной ямой
Для установки такого туалета потребуется выкопать яму и поставить на нее кабинку. При заполнении ямы раньше меняли местоположение кабинки, закапывая старую и выкапывая новую яму. Современные возможности позволяют очищать пространство с помощью ассенизаторской машины.
Пудр-клозет
Подойдет на участок, на котором грунтовые воды высоко, и выгребную яму копать нельзя. Конструкция та же, только вместо ямы используется емкость (таз, ведро). Чтобы уменьшить запах, присыпают сухим торфом. Процесс напоминает припудривание, поэтому такое специфическое название у этого туалета.
Люфт-клозет
Идеальный вариант для домашнего туалета. Его располагают у самой стены дома, делают герметичным, а выгребная яма находится снаружи.

Биотуалет и химический туалет
Принцип работы одинаков. В туалете присутствует бачок с препаратами для переработки отходов. Разница в том, что содержимое контейнеров химического туалета нельзя использовать на огороде. Переработанные отходы из биотуалета – отличное удобрение.
Торфяной туалет
Пудр-клозет, который используют внутри дома. Очень похож на привычный городской унитаз, только вместо воды сухой торф, вместо канализации емкость для нечистот. Устранение запаха достигается установкой вентиляции.
Выбор места для туалета
Прежде чем построить туалет на улице, необходимо правильно выбрать место для него. Ограничения имеются у всех видов туалетов.
- Если уровень грунтовых вод выше 2,5 м, то разрешено ставить только пудр-клозеты, люфт-клозеты или биотуалеты.
- До ближайшего источника воды (озеро, река, колодец, а также соседские источники) должно быть не менее 25 м.
- Расстояние до дома и погреба должно составлять не менее 12 м, до постройки с животными – 4 м.
- От стволов деревьев – 4 м, от кустарников – 1 м.
- Учитывайте розу ветров, чтобы запахи туалета не мешали ни вам, ни соседям.
Деревенский туалет своими руками
Первый шаг – составление чертежа будущего туалета. Готовые чертежи можно найти в Интернете. Стандартные размеры кабинки: глубина 1 м, ширина 1,5 м, высота 2,2 м. Однако, важно помнить, что туалетом должно быть удобно пользоваться всем членам семьи. Поэтому размеры можно увеличить, если требуется. Рассмотрим, как построить туалет поэтапно.
Начинаем строительство с рытья котлована.

Если планируете установку двухкамерного пластикового септика, то размеры ямы должны быть на 20-30 см больше размеров бака. Если септик не используется, то роем яму квадратной формы. На дно высыпаем дренаж из ломанного кирпича и крупного щебня с песком. Стены укрепляем сеткой-рабицей. На стены наносим бетонный раствор, после высыхания – штукатурим. Укладываем доски, оставляя два отверстия на поверхности (для стульчака и для шланга ассенизаторской машины).
Вокруг отверстий и по периметру ямы устанавливается опалубка, натягивается полиэтиленовая пленка и укладывается арматурная сетка.
Заливаем бетон и оставляем сохнуть. Основной этап строительства туалета завершен. На фотографии видно, как выглядит готовая яма.
Остается возвести кабинку дачного туалета своими руками или приобрести готовую. Как построить туалет самому, описано также в этой статье. Способов построить туалет на даче существует немало, и это вполне по силам любому начинающему дачнику.
Дачный туалет своими руками. Как сделать туалет на даче — инструкция
Даже если дача представляет собой просто голый участок земли без единой постройки, все равно не обойтись без главного – туалета. Потребность в этой незамысловатой постройке возникает уже спустя несколько часов пребывания на дачном участке. Не смотря на то, что мы все представляем, как должен выглядеть туалет и что необходимо делать, все же не стоит торопиться. В первую очередь следует изучить участок, чтобы понять, какой вид дачного туалета можно построить в конкретном случае, ведь их существует несколько. Затем необходимо определиться, где именно можно поставить туалет, соблюдая при этом санитарные правила и нормы. И только после этого можно приступать к непосредственно строительству. В том, чтобы сделать дачный туалет своими руками, нет ничего сложного. Тем не менее, изготавливать коробку туалета не обязательно самостоятельно. Современный рынок может предложить готовые туалетные домики на любой вкус. В данной статье мы разберем инструкцию, как сделать туалет своими руками, начиная с выбора вида туалета и заканчивая изготовлением домика.
- Какой туалет на даче можно обустроить – виды и особенности
- Где можно разместить дачный туалет – правила и рекомендации
- Туалет на даче своими руками – инструкция строительства пудр-клозета
- Как построить туалет на даче с выгребной ямой
- Дачный туалет люфт-клозет и его особенности
Какой туалет на даче можно обустроить – виды и особенности
На обустроенной даче, где есть дом и фактически можно жить, желательно иметь два туалета – один в доме, а второй на улице. Туалет в доме удобно использовать ночью или в непогоду, когда идет дождь. Все же в доме и теплее и комфортнее. Уличный туалет для дачи необходим для того, чтобы использовать его днем после огородно-садовых работ на участке и не нести грязь с улицы в дом.
Всего существует несколько видов туалетов, которые можно использовать на даче:
- Уличный туалет с выгребной ямой.
- Пудр-клозет.
- Люфт-клозет.
- Биотуалет.
- Химический туалет.
- Торфяной туалет для дачи.
На выбор туалета влияет такой показатель, как уровень залегания грунтовых вод. Если вода находится далеко (глубже 2,5 м) и никогда не поднимается выше этой отметки даже в сезон дождей или весенних паводков, то можно использовать любой из предложенных вариантов туалета. Если же уровень грунтовых вод высокий, вода находится близко от поверхности, то обустраивать туалет с выгребной ямой нельзя.
Уличный туалет с выгребной ямой – старая добрая проверенная временем конструкция. Она представляет собой выгребную яму глубиной до 1,5 м, сверху которой стоит туалетный домик. Нечистоты в яме накапливаются и постепенно разлагаются. Если интенсивность использования такого туалета велика, то заполнение ямы происходит стремительно, нечистоты не успевают ферментироваться. Раньше такую проблему решали просто – снимали туалетный домик, закапывали старую яму, а в другом месте выкапывали новую и ставили сверху туалет. Сейчас же предпочитают чистить выгребные ямы либо с помощью ассенизаторской машины, либо вручную.
Пудр-клозет – вариант туалета для местности, где близко находится вода. В его конструкции вовсе нет выгребной ямы. Вместо нее используется емкость (ведро, бочка, ящик), которая устанавливается сразу под стульчаком. Чтобы нечистоты не слишком напоминали о себе неприятным запахом, после каждого похода в туалет их посыпают сухим торфом, опилками или золой. Сам процесс напоминает припудривание, от чего и произошло название данного вида туалетов «пудр-клозет». После заполнения емкость достается и опорожняется в компостную яму, кучу или другое место. Со временем нечистоты, пересыпанные торфом, превратятся в чудное удобрение.
Люфт-клозет – туалет с герметичной выгребной ямой, которую очищают с помощью ассенизаторской машины. Обычно люфт-клозеты обустраивают непосредственно в доме рядом с наружной стеной дома. Выгребная яма находится снаружи, нечистоты в нее поступают по трубе. Сама яма имеет уклон в сторону от дома для удобства очистки.
Биотуалет – привычная для городских жителей кабинка с емкостью, в которую заливают активные микроорганизмы для переработки нечистот. Наверное, самый простой способ обустройства туалета на даче, так как строить ничего не нужно – можно купить готовый биотуалет любых размеров, как уличный, так и домашний.
Химический туалет отличается от биотуалета только средством переработки нечистот. Здесь используются химические реагенты, поэтому содержимое контейнера после переработки нельзя использовать в качестве удобрения на огороде, в отличие от биотуалета.
Торфяной туалет – это домашний вариант пудр-клозета. По сути пудр-клозет тоже является торфяным туалетом, ведь в нем торф используется для припудривания фекалий. Домашний торфяной туалет – модернизированное достижение цивилизации. Он очень похож на обычный унитаз, только в бачке для воды вместо воды – сухой торф, а вместо труб канализации емкость для нечистот.
Такой туалет можно смело устанавливать внутри дома. Для устранения неприятного запаха в его конструкции предусмотрена вентиляция, которую необходимо вывести на улицу.
Выбор туалета для дачи полностью зависит от ваших личных предпочтений и от условий, которые диктуют правила СанПина.
Где можно разместить дачный туалет – правила и рекомендации
На размещение уличного туалета существуют определенные ограничения. В первую очередь они касаются тех туалетов, в которых нечистоты могут контактировать с грунтом и грунтовыми водами.
- От туалета до источника воды должно быть не менее 25 м. Будь то колодец, скважина, озеро, ручей или другой водный объект. Если дачный участок располагается под некоторым уклоном, то туалет необходимо устанавливать ниже источника забора воды. Это исключит попадание стоков в питьевую воду.
Важно! Обратите внимание, что учитывать следует не только свой источник воды, но и ближайших соседей.
- От туалета до дома и погреба или подвала должно быть минимум 12 м.
- От летнего душа или бани, сауны не менее 8 м.
- Расстояние от постройки для содержания животных до туалета должно быть 4 м.
- От стволов деревьев – 4 м, от кустарников – 1 м.
- От забора до туалета должно быть не менее 1 м.
- Также обязательно учитывается роза ветров при выборе места и расположения уличного туалета, чтобы не досаждать ни себе, ни соседям неприятным амбре.
- Дверь в туалет не должна открываться в сторону соседей.
- Если грунтовые воды ниже 2,5 м, то можно обустраивать любой уличный туалет. Если выше 2,5 м, то туалет с выгребной ямой делать нельзя, только пудр-клозет или люфт-клозет, а также можно ставить биотуалеты. Такие конструкции безопасны в том плане, что нечистоты не могут попасть в грунтовые воды и загрязнить их.
Учтите, что при выборе места для туалета необходимо ориентироваться на объекты не только на своем участке, но и на соседском. Это касается и деревьев, и сараев, и дома, и всего остального. Для туалетов типа пудр-клозет и люфт-клозет перечисленные выше ограничения не действуют, так как в них нечистоты не контактируют с грунтом. Единственное, что придется учесть при их размещении, это розу ветров и удобство использования.
Туалет на даче своими руками – инструкция строительства пудр-клозета
Обустроить дачный туалет собственноручно не так уж и сложно, достаточно обладать начальными плотницкими навыками, инженерным мышлением и запастись помощью друга. Рассмотрим пример строительства туалета на даче по типу пудр-клозет. Как мы уже писали, его особенность в том, что под туалетом нет выгребной ямы. И это значительно облегчает задачу. Во-первых, такой туалет можно располагать рядом с жилым домом. Во-вторых, сама технология строительства несколько легче, не придется рыть котлован. В-третьих, исключено загрязнение грунтовых вод.
Чертеж дачного туалета
Строительство туалета необходимо начать с чертежа, чтобы все элементы и детали имели соответствующие размеры, а не на глазок. В связи с тем, что в пудр-клозете нет выгребной ямы, на чертеже будет представлена только конструкция туалетного домика.
Схематично пудр-клозет можно представить так:
Размеры туалета подбираются так, чтобы им было удобно пользоваться. Например, самый распространенный размер: ширина 1,5 м, глубина 1 м, высота 2,2 м. Размеры могут быть увеличены, если того требуют габариты хозяев. Материал изготовления туалета может быть разным: самые распространенные деревянные туалеты, но можно обшивать стены металлопрофилем, шифером или другим материалом, а также возводить стены из кирпича.
Туалет дачный деревянный – чертеж в разрезе.
Пример 1.
Пример 2.
Вы можете воспользоваться готовым чертежом, а можете составить свой. Главное – соблюдение размеров при строительстве.
Фундамент и опора для туалета
Дачный туалет – это строение, которое не требует тяжелого фундамента. В некоторых источниках Вы можете встретить предложение заливать под туалет ленточный фундамент. На самом деле это лишнее, особенно, если туалет деревянный. Опору для туалетного домика можно сделать двумя способами: первый – закопать столбы-опоры, второй выложить по периметру кирпичи или бетонные блоки.
В качестве столбов-опор можно использовать как деревянный брус или бревно, так и бетонные столбики. Последние более устойчивы к агрессивной среде и прослужат дольше.
- Первым делом размечаем участок. Крайне важно точно определить углы строения.
- Берем 4 асбестоцементные трубы диаметром от 150 мм и обмазываем их снаружи битумной мастикой.
- В углах туалетного домика выкапывает скважины и заглубляем трубы на глубину 50 – 70 см. Глубина заложения труб может быть и больше, это зависит от структуры грунта. Можно сделать 90 см или 1 м.
- На высоту 1/3 трубы их необходимо залить бетонным раствором. Старательно уплотняем бетон, чтобы удалить пузырьки воздуха.
- Внутрь труб вставляем деревянные или бетонные столбы-опоры. Чтобы закрепить их, добавляем бетонный раствор.
Столбы-опоры в данном случае могут выступать и вертикальной частью каркаса, т.е. их необходимо выгнать на высоту 2,3 м от земли. Также необходимо постоянно проверять, чтобы расположение столбов было ровным относительно углов.
Бывают случаи, когда в качестве опоры достаточно закрепить бетонные блоки или кирпичи, на которые затем будет установлен каркас. В таком случае необходимо снять верхний слой грунта на глубину 20 – 30 см и плотно утрамбовать основание. Для большей надежности на дно можно засыпать слой песка. Сверху устанавливаются бетонные блоки, кирпичи или бетонные бордюры.
Изготавливаем каркас уличного туалета
Каркас дачного туалета можно изготовить из деревянного бруса 50х50 мм или 80х80 мм. Более толстый и массивный брус 100х100 мм и больше брать не обязательно. Также можно использовать металлические уголки.
Каркас должен представлять собой конструкцию:
- 4-е несущие вертикальные опоры.
- Обвязка крыши туалета. Продольные брусья для крыши должна выступать за пределы корпуса туалета на 30 – 40 см. Спереди навес будет служить козырьком, а сзади – для отвода дождевой воды подальше от туалета.
- Обвязка или стяжка на уровне будущего стульчака. Обычно брусья обвязки стульчака крепятся в распор к несущим вертикальным опорам. Высота расположения стульчака должна быть удобной – 40 см от пола туалета.
- Диагональные укосины для прочности конструкции на задней и боковых стенках туалета.
- Каркас для крепления двери. Две вертикальные опоры на высоту до 1,9 м и горизонтальная перемычка сверху на этой же высоте.
Обязательно высчитайте высоту стульчака, так как слишком высокое сидение будет неудобным, особенно если среди хозяев есть низкорослые люди. Обозначьте, на каком уровне будет чистовой пол в туалете, и отложите от него 38 – 40 см вверх. Учтите, что сверху обвязки будет еще обшивка толщиной 20 – 25 мм.
Обшиваем корпус туалета, делаем крышу
Дальнейшее строительство дачного туалета заключается в том, чтобы обшить каркас. Так как деревянные туалеты пользуются неизменной популярностью за счет своей самобытной красоты, удобства и комфорта, то стены дачного туалета можно обшить деревянными досками.
Деревянные доски толщиной 15 – 25 мм прибивают к каркасу, плотно подгоняя их друг к другу. Располагать доски необходимо вертикально. Так как крыша будет располагаться с уклоном к задней стенке, то верхнюю часть досок обшивки придется аккуратно срезать под углом.
Вместо дерева можно использовать листы профнастила, шифера или другого материала. С ними намного легче работать, так как потребуется всего три листа для задней и двух боковых стенок. Но в таком туалете значительно менее комфортно находиться, чем в деревянном. А все потому, что не происходит естественный влажностный и воздушный обмен через стены.
На задней стенке туалета необходимо сделать дверцу, через которую можно будет вынимать емкость с нечистотами. Обычно ее делают на всю ширину задней стенки на высоту 40 см (до высоты стульчака). Закрепляется такая дверца на петлях. Выполнить ее можно из тех же деревянных досок.
Крышу дачного туалета обычно кроют тем же материалом, что и все постройки на участке, чтобы строения не выбивались из композиции. Можно использовать листы профнастила или металлочерепицу. В крыше необходимо выполнить отверстие для вентиляционной трубы, которое затем следует тщательно герметизировать.
Если Вы хотите сделать крышу туалета деревянной, то ее обязательно следует покрыть рубероидом или другим рулонным материалом, чтобы дерево не намокало.
Навешиваем дверь
Дверь для дачного туалета обычно делают деревянной. Дверь навешиваем на петлях. Количество петель 2 или 3 зависит от тяжести и массивности двери. Чем тяжелее дверь, тем больше должно быть петель. Механизм закрывания двери в туалет каждый делает, как ему больше нравится: защелка, крючок, шпингалет или деревянная задвижка. Внутри туалета также необходимо установить защелку.
Над дверью следует сделать окошко, через которое сможет проникать естественное освещение. Обычно его делают как можно ближе к крыше, чтобы внутрь не попадала вода во время дождя. Окошко можно застеклить, тогда будет не страшен ни дождь, ни насекомые, которые часто залетают через такие оконца. Как выглядит дачный деревянный туалет, можно увидеть на фото.
Дачный туалет: фото – примеры
Обустраиваем стульчак в туалете
Сиденье или стульчак в дачном туалете выполняют из деревянных досок, вагонки или влагостойкой фанеры. Лучше использовать чистое дерево без добавок, поэтому фанеру исключаем. Каркас будущего стульчака был сделан еще на этапе обустройства каркаса, поэтому сейчас достаточно аккуратно обшить его деревянными досками и окрасить. Посередине вырезаем отверстие, через которое будем справлять нужду. Обязательно проверьте, на какой глубине от начала стульчака следует сделать отверстие, чтобы им было удобно пользоваться.
Под стульчак устанавливаем емкость для нечистот объемом от 20 до 40 л. Кстати, крышку стульчака можно сделать откидывающуюся на петлях, а можно стационарную.
На стене в удобном месте навешиваем емкость для торфа. Внизу ставим ведро для туалетной бумаги. Внутри туалета можно установить умывальник, если это позволяют габариты строения. Тогда под умывальником устанавливаем ведро для помоев.
Как построить туалет на даче с выгребной ямой
Строительство туалета с выгребной ямой несколько сложнее, так как придется обустроить яму для отходов. Туалетный домик для данного вида туалетов ничем не отличается, поэтому мы его затрагивать не будем. Обозначим только, как сделать коммуникации. На схеме представлено, как должна располагаться выгребная яма относительно туалетного домика. Исходя из этого, выполняем разметку участка и приступаем к земляным работам.
- Копаем выгребную яму с уклоном в сторону задней стенки туалета глубиной 1,5 м.
- Дно и стены ямы утрамбовываем глиной слоем 15 – 25 см. Некоторые вместо глины делают стены ямы из дерева, кирпича или бетона. Если грунтовые воды находятся на достаточной глубине, то делать стены выгребной ямы полностью герметичными не обязательно. Достаточно глиняного замка.
- Основание под туалет сбиваем из деревянного бруса 100х100 мм. Также можно использовать тротуарный бордюр или бетонные блоки, уложив их на землю. Если использовать деревянный брус, то его необходимо обработать антисептиком.
- Над выгребной ямой обустраиваем настил из досок. Сначала сбиваем каркас из брусьев. Делаем между ними такое расстояние, чтобы было удобно очищать яму. Учтите, что настил делается за пределами туалетного домика, под домиком остается свободное пространство достаточного размера, чтобы нечистоты попадали в яму.
- Настил необходимо обить снизу рубероидом или другим рулонным материалом.
- За туалетом устанавливаем люк, представляющий собой откидную крышку на петлях. Люк будет использоваться при очистке ямы. Деревянный люк обрабатываем антисептиком.
- Прокладываем вентиляционную трубу из ямы. Устанавливаем ее рядом с задней стенкой туалета, выводим на 70 – 100 см выше крыши туалета. Для этих целей можно использовать обычную канализационную трубу. Сверху на трубу закрепляем козырек, чтобы внутрь не попадала вода и мусор. Закрепляем трубу к задней стенке хомутами. Нижний край вентиляционной трубы должен располагаться на 15 – 20 см ниже уровня пола туалета.
- Сверху устанавливается туалетный домик.
- Вокруг туалета с выгребной ямой необходимо обязательно делать отмостку и отведение дождевой воды, чтобы она не затопила яму с нечистотами.
Если в дальнейшем планируется очищать выгребную яму с помощью ассенизаторской машины, то туалет необходимо так располагать на участке, чтобы машина могла подъехать на достаточное расстояние. Помните, рукав такой машины всего 7 м.
Дачный туалет люфт-клозет и его особенности
Чаще всего дачный туалет типа люфт-клозет устанавливается рядом с жилым домом или внутри дома. Сточная яма располагается снаружи строения, за его стенами. Туалет такого типа можно строить только там, где есть возможность обогревать сточную яму в зимний период. Если же пользоваться туалетом зимой не будут, то перед концом сезона выгребную яму необходимо полностью очистить.
Основное отличие люфт-клозета от других видов туалетов в том, что выгребная яма в нем выполняется полностью герметичной и регулярно очищается с помощью ассенизаторской машины. Вот несколько отличий в строительстве люфт-клозета:
- Герметичная яма, чтобы нечистоты не впитывались в грунт. Можно заливать яму из бетона, выполнять ее из кирпича и оштукатуривать, а можно использовать готовые пластиковые емкости – кессоны.
- Из выгребной ямы обязательно должна идти вентиляционная труба. Проводить ее необходимо через дымоход печи или камина. В свою очередь из дымохода должна идти труба в яму, через которую будет поступать теплый воздух. Это необходимо, чтобы яма не замерзала. Материал вытяжной трубы – асбестоцементная или керамическая.
- Если в доме нет обычной печи или камина, а только газовое отопление, то обогрев выгребной ямы необходимо осуществить с помощью маломощного электронагревателя.
- Над ямой делается крышка/люк. Чтобы крышка не промерзала, ее делают двойной: верхняя – металлическая или чугунная, а нижняя – деревянная. Между крышками укладываем теплоизоляционный материал.
- Уклон ямы должен быть в сторону от дома для удобства ее очистки.
В последнее время все большей популярностью пользуются торфяные туалеты для дачи. Их удобство в том, что их можно смело располагать в доме в любом помещении. Торфяные туалеты легко чистятся, практически не издают запаха, с ними может совладать даже хрупкая женщина или пожилой человек. Также подобные туалеты можно делать на улице, тот же пудр-клозет – всего лишь предшественник современного торфяного туалета.
Дачный туалет своими руками — порядок постройки
🔨 Дачный туалет несложно сделать своими руками, если приложить некоторые старания и усилия. Мы подобрали чертежи с размерами для популярных дачных туалетов, которые прослужат вам десятки лет! Также в статье вас ждёт пошаговая фото-инструкция по строительству дачного туалета.
Самым трудоемким этапом в процессе возведения отхожего места будет рытье котлована, но и эту работу можно сделать. Эстетическая сторона постройки — это второстепенный вопрос, самое главное — правильно устроить выгребную яму и создать надежную основу для надземного строения.
Дачный туалет своими рукамиНужно отметить, что некоторые владельцы загородных участков не строят туалет по правилам и обходятся обычным ведром, подставленным под стульчак. Но, так или иначе, отходы жизнедеятельности нужно куда-то девать, поэтому без капитальной ямы все равно не обойтись. Поэтому лучше один раз выполнить все работы правильно и долгие годы не возвращаться к этому вопросу. Особенно важно сделать капитальное строение в том случае, если жильцы проводят на даче значительную часть года.
В случае если не хочется портить оформление территории участка установкой обычного туалета, то его можно скрыть в дальнем углу за домом, или же придумать для него такой дизайн, который поможет органично вписать строение в ландшафт.
Выбор места туалета и его конструкции
Обычно туалет устанавливают в ближе к дальней границе участка, и это понятно, так как хотя бы незначительный запах, но будет присутствовать в этом помещении или около него. Но иногда пользуются другим вариантом, устраивая выгребную яму рядом с домом, а для помещения туалета отводят свободный уголок дома, выводя широкую канализационную трубу в яму. Такую конструкцию в основном используют в тех случаях, когда в дом проведена вода, и в планах есть установка изолированной емкости для сбора отходов жизнедеятельности.
В любом случае, следует придерживаться, установленных санитарно-эпидемиологическими службами стандартов. Их необходимо соблюдать для того, чтобы обезопасить себя, соседей и окружающую среду от нежелательных последствий, таких, как инфекционные болезни или заражение почвы.
- Если устраивается выгребная яма, ее необходимо расположить на расстоянии, не менее чем 30 м от источников воды, а глубина ее не должна доходить до грунтовых вод.
- Если будет устанавливаться септик, то его располагают не ближе, чем 15 м от дома.
- Если планируется использовать изолированную емкость, которая будет очищаться по мере заполнения ассенизаторской машиной, то ее можно установить в любом месте, так как отходы не будут поступать в грунт.
Изолированная емкость — это еще и выход в тех случаях, когда грунтовые воды проходят не слишком глубоко и устройство выгребной ямы, вырытой в грунте, невозможно.
Обычно ямы простейшего дачного туалета имеет площадь порядка одного квадратного метра. Если же яма отрывается круглая, то ее диаметр должен быть равен, примерно 1 м. Глубина ее составляет 1,5—2 м, в зависимости от глубины залегания грунтовых вод.
После того как определено место для ямы, можно переходить к выбору конструкции туалета.
- Первое, что нужно учесть — это вес конструкции — он во многом будет предопределяться материалом, который планируется использовать для строительства. Сам домик не должен быть слишком тяжелым, так как со временем грунт под его тяжестью может начать проседать и, в конце концов, постройка деформируется и повредится.
Для строительства хорошо подойдут деревянные бруски и доски, или тонкий металл – оцинкованные профили и профнастил.
Если же принято решение возводить будку туалета из бревен или кирпича, то придется подумать о хорошо укрепленном фундаменте. Но строить такие тяжелые строения совершенно ни к чему, так как они все равно не станут теплее легких построек. Лучше, если в этом есть необходимость, термоизолировать помещение утеплителями, которые имеют небольшой вес, например, пенопластом. Такая постройка будет и легкой, и теплой, не продуваемой в холодное время года, и в ней не будет чрезмерно жарко летом.
- Определившись с материалом можно переходить к размерам будки.
Обычно стандартный туалет имеет размер в ширину 1 м, высоту — 2,3 м, а длина помещения — 1,3 ÷ 1,5 м. Однако, эти размеры – отнюдь не догма и вполне могут варьироваться. В любом случае, помещение должно быть комфортным для нахождения в нем любому члену семьи в положении и стоя, и сидя.
Что потребуется для постройки туалета
Определившись с конструкцией и размещением туалета, приобретают необходимые материалы для его постройки. Деревянный или металлический «домик» можно купить уже в готовом виде. Если же решено возводить его самостоятельно, то понадобятся следующие материалы:
- Доски и деревянные бруски.
- Крепеж — гвозди и саморезы.
- Металлические уголки для усиления конструкции деревянного каркаса.
- Ручка для двери, крючок или задвижка для закрывания двери.
- Материал для покрытия крыши – шифер или профнастил.
- Пластиковый или деревянный стульчак с крышкой.
- При необходимости — пенопласт для утепления будки, и материал для внутренней обшивки утепленных стен, ДСП, тонкая доска или фанера.
Для устройства выгребной ямы нужно потребуется:
- Цемент, щебень, песок.
- Арматура для укрепления фундамента домика.
- Металлическая сетка-рабица для обтягивания ямы и металлические скобы или штыри для крепления этой сетки к грунту.
Другим вариантом, вместо сетки и ее оштукатуривания бетоном, может стать кирпич, которым обкладывают стены ямы.
Кроме этого, для устройства ямы нередко используют бетонные кольца, имеющие в стенках отверстия. Многие дачники предпочитают старые резиновые покрышки больших размеров.
Установка бетонных колец с перфорированными стенкамиЕще одним, самым экологически чистым вариантом, может стать готовая емкость — септик. Их производят разных размеров, поэтому можно выбрать нужный, в зависимости от количества членов семьи и длительности периода проживания на даче.
Изолированные полимерные емкости для туалетовЕстественно, при возведении дачного туалета не обойтись без инструментов, поэтому в наличие нужно иметь:
- Ручной бур, который может помочь при рытье котлована.
- Совковую и штыковую лопату, с длиной и короткой ручкой.
- Если почва на участке каменистая, возможно, понадобится перфоратор.
- Молоток и шуруповерт.
- Шлифмашинка — «болгарка» с дисками по камню и металлу.
- Электролобзик.
- Разметочный инструмент – линейка, рулетка, угольник, строительный уровень, карандаш или маркер.
Первым на участке строят туалет, а затем остальные постройки!
Рекомендуем ознакомиться с пошаговой технологией строительства дачного домика, которую мы постарались изложить в данной статье — ссылка.
Кроме этого советуем прочитать про строительство беседки своими руками, строительство бытовки.
Цены на популярные септики
Септики
Устройство выгребной ямы
Классификация туалетовпо типу утилизации отходов
Безусловно, начинают всегда с разметки и рытья ямы. Она будет иметь квадратную или круглую форму, в зависимости от выбранной конструкции.
1. Если будет устанавливаться двухкамерный пластиковый септик, то яма роется таким образом, чтобы входной патрубок находился непосредственно в кабинке туалета, так как на него будет монтироваться стульчак. Горловина второй камеры должна оставаться за пределами помещения — она нужна для регулярной откачки скопившихся фекальных масс.
Один из типов двухкамерных септиков для дачного туалетаБаки бывают разной формы, и от этого будет зависеть габариты и форма ямы. Размер котлована нужно делать на 20—30 см больше имеющейся емкости, так как вокруг нее нужно хорошо утрамбовать грунт.
Септик может быть и более компактным2. Если стенки ямы будет отделываться бетоном или кирпичом, ее можно сделать круглой или квадратной формы.
Яма квадратной формы- После выкапывания ямы нужной глубины, на ее дне нужно устроить дренаж из крупного щебня, камней, обломков кирпичей
- Затем, стены ее обтягиваются металлической сеткой-рабицей с ячейками размером 50 × 50 мм. Сетку закрепляют, вбивая в грунт скобы из стальной проволоки или штыри.
- Чтобы стены получились более крепкие, можно дополнительно армировать стены металлической решеткой с крупными ячейками 100 × 100 мм.
- Далее, методом набрасывания, на стены наносят бетонный раствор, который оставляют до полного высыхания. Общая толщина бетонного слоя должна составлять около 50 ÷ 80 мм.
- После схватывания первого набросанного слоя, стены штукатурятся до ровного состояния таким же бетонным раствором. Отштукатуренную яму оставляют сохнуть.
- Перекрывают яму или готовой железобетонной плитой, или изготавливаемой по месту. Она будет служить для туалета фундаментом и площадкой вокруг него.
- На яму укладывают доски, которые должны выходить за ее пределы на 700 ÷ 800 мм и быть утоплены в землю до одного уровня с грунтом. Доски должны быть обработаны антисептическими средствами. Эту деревянную подложку под фундамент вполне можно заменить бетонными столбиками.
Укладка опорных досок для заливки фундамента- На поверхности оставляют два отверстия для установки стульчака и для выгребного отверстия, которое позже должно накрываться крышкой. Вокруг будущих отверстий устанавливается опалубка.
- На всю площадь будущего фундамента расстилается полиэтиленовая плотная пленка.
- Сверху нее укладывается арматурная решетка, которая заключается в опалубку по всему периметру будущего фундамента.
Опалубка, гидроизоляция, армирование будущего фундамента- Высота опалубки отверстий должна быть такой же, как у опалубки всего фундамента. Доски опалубки и будут служить маячками при выравнивании поверхности.
- Замешивается бетонный раствор, заливается на площадку, разравнивается и оставляется сохнуть. Для долговечности и прочности внешнего бетонного слоя можно, после первоначального схватывания, провести «железнение» влажной поверхности сухим цементом.
Получившаяся плита и перекрыла выгребную яму, и станет основанием для домика туалета- На готовую площадку после ее полного созревания можно будет устанавливать будку для туалета. На отверстие, предназначенное для откачки скопившихся отходов, нужно устроить люк. Его можно приобрести в магазине или же изготовить самостоятельно. Крышка люка должна легко открываться и закрываться.
3. Еще одним вариантом может стать круглая яма с уложенными в нее автомобильными покрышками. Но нужно отметить, что такой вид выгребных ям не подойдет для постоянного пользования. Подобный туалет можно применять только в дачных условиях, когда жильцы приезжают лишь эпизодически, например, в выходные дни, иначе очень часто придется откачивать собравшиеся отходы.
Выгребная яма из старых автомобильных покрышек- Для устройства выгребной ямы такого типа роется круглый котлован на 150 ÷ 200 мм больше, чем диаметр имеющихся покрышек.
- На дно котлована укладывается дренажный слой дренаж толщиной в 15—20 см.
- Затем ровно посередине ямы укладываются покрышки одна на другую до поверхности грунта.
- Вокруг покрышек, по мере их укладывания засыпается и утрамбовывается дренаж из щебенки и песка. Этот процесс проводится до самого верха.
- Когда покрышки полностью уложены, вокруг ямы можно устроить неглубокий ленточный фундамент. Для этого по периметру будущего туалета роется траншея глубиной порядка 500 мм, в которую будет заливаться бетон.
- Дно траншеи утрамбовывается и засыпается слоем песка в 50 ÷ 70 мм, который тоже утрамбовывается и закрывается слоем щебня той же толщины.
- Укладывается гидроизоляция из плотного полиэтилена.
- Далее можно поступить двумя способами:
— сварить и установить арматурную решетку, смонтировать опалубку высотой в 100 ÷ 150 мм над уровнем земли и затем залить бетонным раствором;
— выложить фундамент из кирпича, а затем оштукатурить его цементом.
- После застывания раствора с цементного фундамента снимается опалубка, а кирпичный выравнивается сверху.
- На его поверхность укладывается рубероид, который отделит бетонную поверхность от деревянной.
- На фундамент или устанавливается готовая конструкция туалета, или же он возводится самостоятельно.
Дачный туалет можно установить и на свайном или столбчатом фундаментеДля удобства процесса постройки, на фундамент сначала закрепляется деревянная основа-рама, изготовленная из мощных брусков, а на нее будут монтироваться другие элементы конструкции, в зависимости от выбранной модели постройки.
4. Нельзя не упомянуть и еще один способ обустройства выгребной ямы — с помощью металлических бочек с обрезанным дном. Их устанавливают одну на другую и так же, как и в предыдущем случае. Вокруг получившейся трубы утрамбовывают гравийную смесь или смесь песка со щебнем.
Выгребная яма из металлических бочек — явно долго не прослужитЦены на дачные туалеты
дачный туалет
Казалось бы, метод несложный в исполнении, но недостатков у него намного больше, нежели достоинств. Металлические бочки под агрессивным воздействием и изнутри, и снаружи, со стороны грунта, очень быстро корродировать, и прослужит такой туалет очень недолго.
Популярные проекты дачного туалета

Возведение домика дачного туалета
Когда и яма, и площадка для установки помещения туалета готовы, можно переходить к монтажу домика по заранее составленной схеме.
Домики для туалета могут иметь самые разнообразные формы, например, даже в виде сказочной избушки. Непосвященный сразу и не определит, что это за помещение так идеально вписалось в ландшафтный дизайн участка. Такое сооружение вполне можно выполнить своими руками, зная схему его сборки.
На фото представлен вариант, частично выполненный из бревен, которые придают этому строению декоративность, маскируют предназначение самой постройки.
Оригинальный теремок — не сразу и поймешь, что это туалетНа схеме представлена основа постройки бревенчатого домика, только вместо бревен использованы доски. Хорошо видно, как собираются стены и поднимаются скаты крыши. Распределено внутреннее пространство и выбрано место расположения стульчака.
Примерная схема «теремка»Следующим этапом пойдет обрешетка крыши, настил кровли и обшивка стен выбранным для этого материалом — это может быть как дерево, так и металл.
Такой домик может быть или установлен на выгребную яму, или же использован, как помещение для биотуалета.
Строите туалет? не забудьте про канализацию
Рекомендуем ознакомиться с материалом по возведению канализации в доме своими руками. Кроме этого скорее всего Вам будет полезно, как построить сарай.
О строительстве сарая читайте — здесь.
Видео: изготовления домика — «теремка» для дачного туалета
Другой вариант строения туалета, которое называют «шалаш». В этом случае домик строится в виде треугольника, и его боковые стенки одновременно являются крышей. Форма достаточно простая, поэтому возводить постройку будет несложно.
Туалет — «шалаш»
Такая конструкция не только проста в постройке, но и удобна в эксплуатации — она устойчива в основании и достаточно просторна внутри.
Монтаж туалета — «шалаша»На представленном рисунке видно все внутреннее строение домика, место установки стульчака и способ обрешетки стен-крыши. Начата обшивка передней части строения и задней стенки. Домик- «шалаш» можно поставить на обустроенную выгребную яму, как в данном случае, а можно использовать и как помещение для биотуалета.
Даже самый традиционный домик туалета можно оформить по разномуЭту форму домика можно назвать традиционной, так как чаще всего ее можно встретить на участках. Но даже такую незамысловатую конструкцию можно декорировать по своему предпочтению.
Например, туалет на этой приусадебной территории решено было сделать под японский домик. Об этом говорят иероглифы, написанные на табличке, подвешенной на цепочках, японский фонарь у входа и даже дополнительно устроенная крыша. Кроме этого, внутреннее оформление помещения также выдержано в общем стиле.
Подобное отношение к оформлению участка говорит о том, что даже из такого строения, как туалет, можно сделать маленькое произведение искусства, если приложить немного усилий.
Схема наиболее распространенного типа туалетного домикаПримерная схема постройки такого туалета представлена на рисунке. На нем хорошо видны устройство выгребной ямы, установка сверху нее строения туалета и люка для очистки. Конструкция достаточно проста в устройстве, и возвести ее несложно. Но чтобы она была надежной, необходимо достичь жесткости связок всех деталей между собой.
Внутреннее пространство туалета, устраиваемое над выгребной ямы, в процессе возведения стен может выглядеть, таким образом. То есть, на фундамент устанавливаются бруски основы, на которую закрепляется каркас будущего строения.
Над ямой крепится пояс из толстого бруса, к которому монтируются остальные детали строенияДалее, производится обшивка стен и монтаж крыши. Только после этого можно настилать пол и устанавливать стульчак.
Помещение туалета после завершения работыПосле окончательной отделки туалета изнутри, помещение может иметь такой аккуратный и уютный вид.
При желании и возможностях можно придумать и другой дизайн дачного туалета, но делать всю внутреннюю отделку нужно из теплых материалов. Не рекомендовано использовать для оформления керамическую плитку, так как это очень холодный вид материала, а кроме этого, в зимнее время кафель становится еще и очень скользким.
Видео: несколько вариантов устройства дачного туалета
Биотуалет
Если нет никакой возможности построить дачный туалет или же просто отсутствует желание связываться со строительными работами, то можно воспользоваться биотуалетом. Этот вариант избавит и от рытья ямы и, возможно, от монтажа домика.
Биотуалет — отличное решение для дачных условийБиотуалет — это автономный унитаз, не требующий ни отдельного помещения, ни подключения к отводным коммуникациям
Биотуалет состоит из двух отделений-камер, верхняя из которых исполняет роль унитаза, а другая служит для биологической переработки отходов. Во второй, нижней камере находятся активные вещества, которые разлагают фекалии и превращают их в однородную массу, которая не имеет запаха. Действия биоактивной жидкости для разложения отходов хватает на десять дней, затем камеру очищают, выливая содержимое в центральную канализацию или в почву. Способ утилизации будет зависеть от того, какие активные вещества будут использоваться в биотуалете. Эти вещества бывают трех типов: компостирующие, химические и микроорганические. Каждый из них подходит для определенного типа биотуалета.
- Для компостирующего биотуалета в качестве активного вещества используется торф. Он обладает высокой впитывающей способностью – так, один килограмм торфа поглощает десять литров жидкости. Получаемый в результате активных процессов, не имеющий запаха компост отлично подойдет для удобрения грядок.
Обычно в комплекте с таким биотуалетом идут трубы вентиляции, которые отводят неприятные запахи во время переработки.
- Биотуалет, работа которого основана на применении химических веществ, имеет индикатор, который укажет на то, что контейнер требует очистки. Отходы, переработанные таким образом, сливаются в канализацию, с целью обезопасить окружающую среду. Для таких моделей производятся специальные вещества с незамерзающим свойством.
- Третьим видом этого полезного приспособления является биотуалет, в котором переработкой отходов занимаются микроорганизмы, превращая их в компост. Полученный материал экологически чист и безвреден для почвы и животных, поэтому утилизировать его не составит труда.
Преимущества и недостатки биотуалета
Плюсы
- высокие показатели уровня экологической безопасности;
- удобство в использовании;
- отсутствие неприятных ароматов;
- доступная цена;
- прочный материал.
Минусы
- возможна утечка запаха, потребуется установка в проветриваемом помещении;
- при сильном загрязнении ёмкости приёмника, её придётся мыть собственноручно.
- в помещениях с низкой температурой использовать торфяной биотуалет не представляется возможным. От холода все процессы переработки останавливаются, содержимое нижнего резервуара замерзает, равно как и сам торф. Проблема решается переносом биотуалета в теплое помещение.
При желании биотуалет можно установить в самом обычном помещении, построенном своими руками, которое располагается во дворе, а на зимний период — занести его в дом, отведя для этих нужд удобный угол.
Цены на популярный ряд биотуалетов
Биотуалеты
Биологические средства для туалетов
В помощь владельцам дачных участков, имеющих на своей территории туалеты с выгребными ямами, разработаны специальные средства, аналогичные тем, которые используются в биотуалетах.
Одно из биологических средств для туалетов и выгребных ямОни также содержат химические, торфяные или бактериальные концентраты, которые избавят туалет от неприятных запахов, и постепенно будут перерабатывать все содержимое выгребных ям или септиков. Такие составы производятся в разных формах — это таблетки, порошки или жидкие растворы.
Перед применением средства нужно обязательно изучить инструкцию, так как состав насыпается или наливается частями. Как правильно использовать такие вещества, можно узнать из информации на упаковке, так как каждое средство дозируется по-разному. Используется подобное вещество, как правило, очень экономно. Например, одной упаковки или банки некоторых средств хватает на год для выгребной ямы объемом 3,5 ÷ 4 тонны.
Итак, способов решить проблему дачного туалета существует немало – всегда есть возможность выбрать тот или иной вариант.
строительство дачного туалета своими руками, постройка деревенского садового туалета, устройство уличного временного туалета
Содержание:
Сразу же после покупки дачного участка перед его владельцем остро встает вопрос о постройке туалета. Это достаточно простая задача, но в ней есть масса нюансов и возможностей, в которых стоит разобраться перед сооружением конструкции. О том, как построить туалет на даче, и пойдет речь в данной статье.

Виды дачных туалетов
Существуют следующие виды туалетов для дачи:
- Туалет с выгребной ямой. Такой вариант существует уже очень давно и за это время проявил себя с самой лучшей стороны. Построить дачный туалет с такой конструкцией очень просто – внизу располагается правильно сформированная выгребная яма, над которой устанавливается домик туалета. Когда яма полностью заполняется, ее нужно очистить, причем это можно сделать самостоятельно, а можно и воспользоваться услугами ассенизаторов. В крайнем случае, можно просто перенести домик на другую локацию, а старую яму закопать – со временем все нечистоты переработаются, и туалет можно будет вернуть на то же место. Также может использоваться емкость для выгребной ямы, что весьма практично.
- Люфт-клозет. Данный вид конструкций отличается тем, что их яма герметична. Постройка туалета этого типа осуществляется в тех случаях, если имеется необходимость установки туалета почти возле дома, источника питьевой воды, или при слишком высоком расположении почвенных вод на участке. Заметим, что люфт клозет весьма распространен в нашей стране.
- Пудр-клозет. Такие дачные туалеты представляют собой вполне привычную конструкцию, с той лишь разницей, что выгребная яма под ними отсутствует. Для сбора продуктов жизнедеятельности может использоваться любая емкость, объем которой соответствует регулярности пользования туалетом. Пудр-клозеты подходят для тех ситуаций, когда возможности обустроить выгребную яму нет (например, если грунтовые воды расположены почти на одном уровне с поверхностью земли).
При использовании пудр-клозетов нужно постоянно держать под рукой сухой торф (в качестве заменителя можно использовать опилки или золу), которым засыпаются нечистоты. Для хранения присыпки в домике должна быть отдельная емкость. После заполнения емкости, заменяющей яму, ее нужно очистить. Отходы, находящиеся под слоем присыпки, постепенно перегнивают, и через какое-то время их можно будет утилизировать или удобрять ими растения.
Расположение туалета на даче
Перед тем, как построить уличный туалет своими руками, нужно рассмотреть все правила, касающиеся его расположения. Любой тип дачного туалета с выгребной ямой можно располагать на участке, где глубина залегания почвенных вод превышает 2,5 метра. Помимо глубины почвенных вод, нужно принимать во внимание правила и нормативы, регламентирующие расположение туалета на даче.
Устройство туалета на даче должно выполняться на определенном расстоянии от различных объектов:
- Источники воды (колодцы, озера, реки и пр.) – расстояние не менее 25 м;
- Жилые постройки и погреба – минимальное расстояние составляет 12 м;
- Душевые кабины и банные постройки – 8 м;
- Плодовые и декоративные деревья – не менее 4 м;
- Кусты и заборы – 1 м.
Если уж мы строим туалет на даче, то при выборе места для него нужно обязательно учитывать все объекты, включая те, которые расположены на соседних участках. Кроме того, рекомендуется учесть розу ветров, чтобы запах нечистот не портил впечатление о пребывании на даче. При наличии уклона участка оптимальным местом для туалета будет точка, расположенная на минимальной высоте.
Обустройство выгребной ямы
Когда участок для туалета выбран и подготовлен, можно приступать к формированию ямы. Выгребным ямам чаще всего придают квадратную форму. Минимальная глубина ямы должна составлять 2 метра – при меньшей глубине строительство дачного туалета будет бессмысленным.
Существует два типа выгребных ям:
- Герметичные. Днище герметичных ям необходимо забетонировать, причем непосредственно перед заливкой бетонным раствором нужно армировать конструкцию. Чтобы арматура держала форму, ее фиксируют при помощи колышков. Стенки ямы тоже должны быть герметичными, для чего их покрывают раствором или же промазывают все стыки битумом.
- Поглощающие. Выгребные ямы поглощающего типа желательно выкапывать до самого песка – это позволит жидкой составляющей нечистот проходить в грунт с минимальными усилиями. На дне ямы формируется фильтр из щебня или гальки крупной фракции.
Чтобы точно знать, как правильно построить туалет, нужно заранее определиться с типом выгребной ямы, который напрямую зависит от возможностей в вопросе утилизации нечистот.
Для укрепления стенок можно воспользоваться одним из следующих решений:
- Кирпичная кладка;
- Монолитная бетонная конструкция;
- Кольца из железобетона;
- Пластиковые емкости.
Поверху ямы укладывается листовой материал или заливается бетон. Оставшегося места должно быть достаточно для отверстия, в котором будет обустраиваться стульчак. После этого постройка туалета на даче своими руками может переходить на следующий этап.
Как построить туалетный домик
Чтобы построить дачный туалет, придется заранее определиться с его габаритами. Размеры для домика обычно подбираются индивидуально, но есть и рекомендуемые значения. Оптимальное сочетание длины и ширины – 1 х 1,5 м, а высота – около 2-2,5 м. Делать туалет меньше указанных значений нежелательно – он будет недостаточно просторным, особенно если им будут пользоваться люди с крупным телосложением.
Перед тем, как построить туалет, нужно создать схему будущего домика. Впрочем, заниматься этим самостоятельно нет никакой нужды – всегда можно взять готовый проект и воспользоваться его данными. Наличие схемы существенно упрощает работу, особенно в том, что касается приобретения требуемого количества материалов и определения стоимости туалета.
В соответствии с готовым проектом можно заняться обустройством основы каркаса. Туалет на дачном участке обычно размещается так, чтобы большая его часть находилась впереди относительно ямы. Это делается ради простой цели – такое расположение позволяет в дальнейшем чистить яму за задней стенкой туалета. Читайте также: «Как сделать дачный туалет – какой вариант лучше выбрать».

Перед тем, как установить дачный туалет, нужно тщательно все подготовить. Чтобы устанавливаемый своими руками деревенский туалет был достаточно устойчивым, его нужно устанавливать на легкий фундамент. В пространстве между фундаментом и основой укладывается пара слоев рубероида, который будет выполнять функцию гидроизоляции. Если речь идет о легком деревянном домике, то в качестве фундамента можно использовать бетонные блоки или опорные столбы.
Установить каркас на четырех опорах несложно. Участки, где будут расположены углы будущего туалета, нужно углубить на глубину около 0,6-1 м (чем мягче почва, тем глубже должны быть ямы). Внутрь опускаются трубы из асбеста. Ямы на треть заливаются бетонным раствором, после чего в трубу заводится опорная балка. Остается лишь полностью заполнить оставшееся в углублениях пространство.

Следующий этап работы – сборка каркаса, которая проводится следующим образом:
- В первую очередь нужно подготовить материалы. Для некапитальных дачных построек вполне подходят брусы с квадратным сечением и стороной от 50 до 80 мм. Использовать более массивные изделия бессмысленно – таких нагрузок временный туалет на даче испытывать не будет.
- Сначала нужно собрать прямоугольную опору с перемычкой, вдоль которой будет располагаться передняя сторона стульчака. Опора прикручивается к основанию, а поверх нее настилаются доски. Для формирования пола можно использовать доски толщиной от 30 мм.
- Следующий шаг, который подразумевает строительство туалета на даче своими руками – формирование каркаса для всех стен туалета. Переднюю стенку делают немного выше задней – это позволяет создать достаточный наклон крыши, благодаря которому с нее будут самостоятельно отводиться все атмосферные осадки. На всех стенках, кроме передней, желательно установить диагональные укосины, повышающие жесткость конструкции.
- В переднюю стенку будет встраиваться дверь, а это значит, что нужно смонтировать крепления для нее. Все размеры должны соответствовать проекту. Кроме двери, в верхней части передней стены устанавливается еще и окно, для которого тоже нужно сделать подходящее отверстие.
- Собранный каркас соединяется с основой железными уголками. Над стульчаком и на его уровне нужно обязательно сделать качественную обвязку. Последнее действие на данном этапе – обустройство стульчака или альтернативного варианта (например, обычного унитаза).
Когда каркас смонтирован и укреплен, можно заняться его обшивкой. В качестве материала для обшивки чаще всего используют деревянные доски, но можно использовать и альтернативу (вполне подойдет металлопрофиль, шифер или иной листовой материал). Располагать их можно как вертикально, так и горизонтально – в первом случае получается неплохая экономия, а во втором – красивый туалет на даче, который будет не только функциональным, но и весьма эстетичным.
Доски подводятся друг к другу с минимально возможными зазорами и фиксируются на основе постройки. Перед тем, как строить туалет на даче, желательно пропитать деревянные детали специальными составами, которые обеспечат защиту материала от бактерий и влаги. Когда пропитка полностью высохнет, доски стоит покрыть краской или лаком, чтобы защитить их еще и от физических повреждений. Кроме того, покрытие положительно влияет на декоративные свойства домика.
Строительство крыши
На дачном туалете укладывается кровельная конструкция со свесами не более 30 см. Первым делом нужно установить параллельно несколько досок с небольшим зазором между ними. Далее под досками зашивается козырек, после чего можно крепить доски по периметру туалета. Эта конструкция является основанием для будущей крыши.

Поверх основания укладывается слой гидроизоляционного материала, в качестве которого чаще всего выступает рубероид. На гидроизоляцию кладется имеющееся кровельное покрытие (шифер, металлический профиль или др.). Постройка туалета на даче на этом завершается, и теперь можно заниматься оставшимися работами.
Вентиляция
Одним из условий того, как правильно построить туалет на даче, является наличие хорошей вытяжной вентиляции, позволяющей выводить из ямы характерные канализационные запахи. Вентиляция в данном случае представляет собой обычную трубу, нижняя часть которой заводится напрямую в яму, а верхний располагается над крышей таким образом, чтобы между кровлей и краем трубы было расстояние свыше 20 см.

Для вентиляции подходит любой отрезок трубы, но самым простым и доступным вариантом будет пластиковое изделием сечением 10 см. Труба устанавливается вдоль задней стенки домика и фиксируется с использованием хомутных креплений. Чтобы улучшить тягу, на оголовье трубы стоит установить дефлектор.
Монтаж двери и освещения
Обустройство дачного туалета может выполняться при помощи любых дверей, как сделанных самостоятельно, так и изготовленных на заводе. В любом случае, дверь вешается на две заранее закрепленных петли. Чтобы закрыть дверь изнутри и снаружи, можно воспользоваться любым из доступных вариантов – защелки, крючки, шпингалеты и пр. Избегать стоит разве что сложных металлических замков – они со временем ржавеют и приходят в негодность.

Чтобы собранный своими руками садовый туалет был комфортным, в нем нужно сделать хорошее освещение. Вариантов обустройства освещения очень много – от естественного света, попадающего в домик через окно, до проведения электропроводки с подключением ламп. Выбирать оптимальный вариант придется индивидуально, в зависимости от конкретных требований, предъявляемых к туалету владельцами дачи.
Заключение
Строительство туалета на даче – это сравнительно простая задача, которая не требует серьезных вложений финансов и времени. Заблаговременно сделав проект, и качественно выполнив все работы, можно в итоге получить надежную и эффективную конструкцию, которая будет служить десятилетиями.
Дачный туалет с выгребной ямой без запаха: как сделать своими руками
Дачные туалеты с выгребной ямой по старинке ассоциируются с неприятным запахом на участке. Но это не так — можно соорудить такой дачный туалет без запаха. О том, как это сделать, рассказано ниже.
Содержание статьи
Туалет на даче без запаха
Неприятный запах от дачного туалета с выгребной ямой может распространяться по трем причинам:
- негерметичная накопительная емкость;
- запах стоков из отверстия стульчака;
- плохая вентиляция кабинки.
Источники запаха в самом туалете блокируют стандартными способами ватерклозета: смыв и гидрозатвор унитаза. Конечно, накопительная ёмкость будет наполняться быстрее, но это плата за комфорт.
В качестве накопительной емкости могут использоваться разные конструкции и материалы:
- Яма из кирпича. Достоинство — любая форма и объем. Недостаток — высокая стоимость и трудоемкость, гигроскопичность материала. Необходима двойная гидроизоляция дна и стенок, иначе стоки будут просачиваться наружу или грунтовые воды внутрь.
- Металлическая емкость. Два варианта: изготовить своими руками, купить бывшую в употреблении.
- Пластиковая емкость. В продаже есть уже готовые к установке накопительные емкости для септиков и выгребных ям. Также популярна переделка «еврокубов» для сбора стоков.
- Бетонный колодец. Есть два способа изготовления: заливка монолитной железобетонной конструкции, сборка из стандартных колодезных колец. Второй вариант конструкции проще и быстрее в изготовлении.
Герметичность ямы необходима не только для того, чтобы она не пахла. Сброс нечистот в грунт приравнивается к умышленной порче земли, что подпадает под действие КоАП РФ, Земельного кодекса и закона «Об охране окружающей среды».
Как сделать дачный туалет с выгребной ямой
Проектирование дачного туалета выглядит так:
- разработка схемы и чертежей;
- расчет объема выгреба;
- выбор материала и конструкции.
Схема дачной канализации
Схема внешней канализации зависит от расположения самого туалета. Это может быть как изолированное помещение внутри дачи, так и отдельно стоящая кабинка на участке недалеко от садового домика. Но главное — это выбор места для накопительной емкости. Расположение выгребной ямы должно отвечать требованиям нормативов по минимальным расстояниям:
- от дома — 8-10 м;
- от забора с соседним участком — 2 м;
- от линии водопровода — 10 м;
- от точки водозабора — 50 м;
- от водоема — 30 м;
- от деревьев (сада) — 3 м.
Также учитывают близость подъездного пути для ассенизаторской машины. И хотя это дачный туалет с выгребной ямой без запаха, во время откачки содержимого будут слышны неприятные «ароматы» из ямы и от самой машины.
При выборе размеров ямы учитывают, что дно емкости должно находиться не глубже трех метров от поверхности.
Расчет объема и выбор материалов
На объем влияют особенности стоков и количество проживающих. И этот объем не должен превышать емкость бочки ассенизаторских машин, которые обслуживают этот участок.
Если туалет находится в доме и в емкость будут сливать все виды стоков (туалет, личная гигиена, стирка, кухня), то суточный объем потребления воды на человека принимается равным 200 л. Для троих проживающих — 0.6 м3. Если дачу посещают только в выходные и праздничные дни, то в месяц объем стоков не превысит 6 м3.
К рассчитанной величине можно добавить 25% запаса на залповый сброс в результате приезда гостей — итого 7.5 м3 в течение месяца. А значит машину надо вызывать минимум 1 раз в месяц. Емкость бочек отечественных ассенизаторских машин лежит в пределах 3.25-11.0 м3.
Для дачного туалета во дворе можно сделать отдельную фекальную канализацию с выгребной ямой вблизи от кабинки, а для серых стоков (душ, умывальник, кухня) заложить двухкамерный септик с фильтрующим колодцем.
В этом случае суточный объем для выгребной ямы на семью из трех человек будет равен около 100 л (на каждого 5-6 посещений в день при объеме сливного бачка 6 л). А если поставить бачок с двумя кнопками слива, то еще меньше. И выгребную яму с емкостью 7.5 м3 надо будет откачивать два раза за весь сезон.
Для такого объема подойдут три кольца КС20.9. Объем одного кольца равен 2.83 м3, всей емкости — 8.49 м3.
Обустройство ямы
Пошаговый алгоритм обустройства ямы из бетонных колец выглядит так:
- Планируют участок для котлована.
- Размечают трассу для труб от туалета к яме.
- Роют котлован и траншею.
- Формируют уклон траншеи в сторону котлована из расчета 2% (2 см на 1 м). Точка ввода в емкость должна лежать чуть ниже 30 см от верхнего края.
- Выравнивают дно котлована.
- Трамбуют дно траншеи и котлована. Засыпают подушку из слоя песка и щебня.
- Устанавливают днище ПН20.
- Составляют друг на друга кольца. Швы с днищем и между кольцами заделывают раствором.
- Обмазывают кольца битумной мастикой.
- Вставляют входную трубу. Герметизируют ввод.
- Устанавливают перекрытие с отверстиями для люка и вентиляции.
- Монтируют люк и трубу вентиляции.
- Проводят обратную засыпку вокруг ямы.
Туалет на даче без ямы
Есть три варианта, как можно сделать туалет на даче без выгребной ямы. Хотя не всегда без запаха. Для всех нужно отдельное помещение с вытяжной вентиляцией. А для торфяного биотуалета лучше обустроить свою кабину в стороне от дома — по устройству он напоминает пудр-клозет, которому присущ неприятный запах.
Однозначных рекомендаций при выборе нет — у каждого типа свои недостатки:
- Электрические биотуалеты. Два вида. У недорогих моделей происходит отделение жидкой фазы с отводом в отдельную емкость (или грунт), а твердая сжигается. У более дорогих образцов отходы жизнедеятельности нагреваются до испарения жидкости, а твердый остаток сжигается. Недостатки: высокая стоимость и энергозависимость.
- Торфяные биотуалеты. Переработка фекалий происходит за счет активных бактерий в составе наполнителя на основе торфа. В баке происходит разделение на три фракции. Газы принудительно выветриваются. Жидкость осветляется до состояния, пригодного для сбрасывания в грунт. Твердый остаток утилизируют в компостную яму. Недостатки: ограниченная баком производительность, запах.
- Жидкостной биотуалет. Три вида: формальдегидные, аммониевые, биологические. Нижний бак с формальдегидом надо сдавать на утилизацию, содержимое бака с аммонием можно выливать в канализацию, а отходы после биологической переработки – в компостную яму. Недостаток — ограниченная емкость бака.
- Кассетный туалет. Оснащен приемным баком (кассетой), который легко вытягивается для смены, чистки и транспортировки. Объем такого бака составляет до 25 литров. Кассету заполняют активной химической жидкостью, перерабатывающей все поступающие в нее отходы в однородную массу, которую в последствии выливают в компостную яму. Специальный индикатор показывает, когда нужно опорожнять кассету. Такой биотуалет компактен, легко размещается как в помещении, так и в уличных кабинах, без неприятного запаха. Недостатки: для использования требуется запас расходных материалов, длительный застой усложняет операцию по очистке.
Для дачи подойдут торфяные или электрические биотуалеты, отходы которых можно сбрасывать в грунт — сливать жидкую фазу, твердую утилизировать в компостную яму.
Как избавиться от запаха в туалете
Устройство любого туалета без запаха, помимо унитаза с гидрозатвором, включает вентиляцию. Для электрических биотуалетов и некоторых моделей торфяных — это принудительная вытяжка. В остальных случаях, в том числе с выгребной ямой, достаточно естественной вентиляции.
Обустройство вентиляции
Обустройство вентиляции выглядит так:
- для притока свежего воздуха делают небольшую щель в двери туалета;
- закрывают щель декоративной решеткой;
- напротив щели в стене, ближе к потолку, делают отверстие под трубу;
- выводят короткую трубу наружу, коленом соединяют с длинной (выше крыши кабинки), крепят хомутами к стене;
- на верхний срез трубы надевают козырёк, защищающий ее от осадков.
Туалет на даче без запаха можно сделать, используя современные материалы и готовые решения. А выбор конкретного варианта зависит лишь от необходимой «производительности» и бюджета.
Оцените эту статью
[Total: 0 Average: 0]Как построить туалет на даче
Если у вас есть загородный дом или коттедж со всеми удобствами, то, конечно, вам невероятно повезло. Ведь без туалета и душа не обойтись. Но тем, у кого таких построек на участке нет, предлагаем сделать унитаз своими руками. Потребуется только желание и необходимые для этого материалы.
Вариантов, как построить туалет на даче, предостаточно. Естественно, вопрос только в том, сколько денег вы собираетесь на это потратить.Лучше построить туалет отдельной автономной конструкцией, чем устанавливать его в самом доме. Во-первых, для обычного деревенского туалета на улице не нужны дорогие канализационные трубы. Во-вторых, при качественном строительстве не нужен постоянный уход, уборка. Единственный недостаток туалета на улице — дискомфортные ощущения того, кто находится в нем в осенне-зимний период. Но эту проблему при желании можно устранить, поставив в конструкции систему отопления (но в этом нет необходимости).
Итак, как построить туалет на даче? Самый дешевый вариант — выкопать глубокую яму, установить, например, деревянный забор и соорудить самый примитивный пол с небольшой ямкой. Но, скажем так, такой вариант непрактичный, недолговечный и уже устаревший.
Привлекательнее построить каменное здание. Для начала нужно определиться с местом. Унитаз должен располагаться подальше от колодца или колодца. Иначе не избежать загрязнения питьевой воды. Расстояние от туалета до источника питья должно быть не менее 25 метров.Если ваш участок находится не на ровной местности, то строительство туалета необходимо начинать в низине. Также при выборе места для туалета обратите внимание на розу ветров в вашем районе. Согласитесь, неприятные запахи чувствовать в доме или на заднем дворе не очень привлекательно.
Итак, вы определились с этим, так что можете рассказать о том, как построить туалет на даче.
Приступим. Для начала нужно выкопать яму поглубже. Не забываем о грунтовых водах. Именно от их глубины зависит, какой унитаз вы построите: чердак или пудреницу.В любом случае важно правильно и скрупулезно изолировать яму.
Туалет-пудреница представляет собой конструкцию без выгребной ямы. Он заменяет водонепроницаемую емкость, установленную под сиденьем, которая периодически выливается.
Второй вид дачного туалета — подсобный туалет. Он будет работать в том случае, если нет препятствий для передвижения и работы машины, производящей уборку ямы.
Основан на втором типе, обычном деревенском унитазе.Глубина выгребной ямы должна быть не менее 1 метра. По периметру наземная часть туалета возводится либо из дерева, либо из кирпича. Платформа обычно деревянная. Можно также соорудить сиденье из тесаных досок. Кстати, если тротуар забетонирован, установить на нем унитаз вполне реально.
Говоря о том, как построить туалет на даче, следует остановиться на самом наземном сооружении. Сегодня туалетный домик можно купить в любом специализированном магазине. Это может быть пластиковая или деревянная конструкция.С одной стороны, это удобно. Но все же лучше отдельно стоящая постройка из камня или кирпича. Так и прослужит дольше, и эстетичнее смотрится.
Если вы чувствуете, что не понимаете, как построить туалет на даче своими руками, то покупайте биотуалет. Его можно использовать не только на даче. Это удобно и практично. Кстати, по цене биотуалет есть в наличии. Он может позволить себе купить человека со средним уровнем дохода. Если вы твердо определились с тем, что необходимо построить унитаз, то при неуверенности в себе пригласите профессиональных строителей.Они быстро, а главное качественно выполнят все необходимые работы.
p> .Flush Toilet Finder поможет вам найти ближайший туалет в любой точке МИРА
Никогда больше не попадитесь в ловушку! Приложение поможет вам найти ближайший туалет в любой точке МИРА — и подскажет, можно ли им пользоваться.
- Поиск туалетов со смывом основан на глобальной базе данных из 100 000 общественных туалетов
- Он использует местоположение владельца по GPS для найти ближайшие общественные удобства
- Приложение также показывает, свободны ли туалеты, открыты и есть ли у них доступ для инвалидов
- Пользователи могут дополнительно добавлять туалеты, которые еще не включены в приложение
- Приложение бесплатна для iOS и Android и работает офлайн.
Автор Victoria Woollaston для MailOnline
Опубликовано: | Обновлено:
В мире есть тысячи общественных туалетов, но найти один — особенно когда вы в отчаянии — может оказаться невозможно.
Кроме того, становится все труднее найти работоспособное и бесплатное устройство.
Приложение Flush Toilet Finder было создано для решения этой проблемы. Он использует GPS вашего телефона, чтобы найти поблизости бесплатные общественные места по всему миру и те, которые подходят для инвалидов.
Прокрутите вниз, чтобы увидеть видео

Приложение Flush Toilet Finder (на фото) использует глобальную базу данных, содержащую 100 000 общественных туалетов и данные о местоположении телефона по GPS, чтобы находить близлежащие общественные удобства.Пользователи могут искать местоположение и перемещаться по картам Google, чтобы увидеть ближайшие варианты, а также добавлять любые общественные туалеты, которые отсутствуют в базе данных.
Он был построен 21-летним Джейком Растоном из Ротерхэма, Южный Йоркшир, и основан на глобальная база данных 100 000 общественных туалетов.
Г-н Растон сказал, что создал приложение в надежде, что оно будет полезно для людей с такими заболеваниями, как синдром Крона и синдром раздраженного кишечника, а также будет популярно среди туристов и родителей.
КАК НАЙТИ БЛИЖАЙШИЙ ТУАЛЕТ
Flush основан на глобальной базе данных, содержащей 100 000 общественных туалетов.
Пользователи могут искать местоположение и перемещаться по картам Google Maps, чтобы увидеть ближайшие варианты.
Выбор туалета предоставляет список направлений.
В качестве альтернативы, нажатие кнопки «Маршрут» приведет пользователя к ближайшему туалету без необходимости поиска.
Пользователи могут добавлять общественные туалеты, которых нет в базе данных, а результаты можно фильтровать, чтобы показать те, которые взимают плату или нуждаются в ключах.
Приложение также показывает туалеты для инвалидов.
За первые две недели после запуска бесплатное приложение было загружено более 10 000 раз.
Г-н Растон, который учится в Школе компьютерных наук Университета Восточной Англии, сказал: «Приложение получает доступ к вашему GPS-местоположению, чтобы определить местонахождение всех общественных удобств в вашем районе.
«[Это] также предоставляет информацию о том, есть ли в туалеты доступ для людей с ограниченными возможностями, нужно ли людям получать ключ для доступа, и являются ли удобства бесплатными или нет».
21-летний мужчина понял эту идею после разработки приложение для лондонского метро.
«Многие люди просили меня включить детали туалетов для Лондона, но я решил пойти дальше и спроектировать что-то для всего мира.’
Г-н Растон объединил информацию из нескольких источников, чтобы успешно предоставить необходимые данные своим пользователям.
Приложение также позволяет пользователям добавлять места расположения туалетов, которых еще нет в списке.

Он был построен 21-летним Джейком Растоном из Ротерхэма, Южный Йоркшир (на фото). Результаты можно отфильтровать, чтобы показать, какие туалеты взимают плату, нужен ключ или предоставляют доступ для инвалидов. В течение первых двух недель после запуска бесплатное приложение было загружено более 10 000 раз на устройства iOS и Android.
Г-н Растон добавил: «Были времена, когда я был в других странах, таких как Германия, и мне нужно было найти туалет, который было трудно найти из-за очевидных языковых барьеров и незнания местности.
«Я буду прислушиваться к отзывам пользователей о Flush Toilet Finder и добавлю то, что предлагают люди, поэтому я благодарен всем пользователям за поддержку, оказанную приложению на данный момент».
Приложение теперь доступно для бесплатно в магазинах приложений для iOS и Android.
Поделитесь или прокомментируйте эту статью:
.Как пользоваться приседанием в Китае: китайские туалетные подсказки
Использование туалетов для приседаний в Китае, возможно, не входит в «список 10 лучших» путешественников на время отпуска, но обычно становится частью их опыта в Китае. Общественные туалеты в Китае становятся все более и более санитарными, но некоторые по-прежнему шокируют.
Китай — одно из самых популярных мест отдыха в мире, и на это есть веские причины. Туризм и туалеты хорошо развиты в таких достопримечательностях, как Запретный город, а отели, отмеченные звездами, обычно соответствуют высоким стандартам, несмотря на то, что Китай является развивающейся страной.Однако одна вещь, которую многие люди удивляются, впервые попадая в Китай, — это приземистый унитаз.
1. Что такое приземистый унитаз? (См. Фото.)
Приземистый туалет в КитаеПриземистые туалеты не встречаются в большинстве стран Запада, но в Китае более вероятно, что человек войдет в туалет и найдет унитаз, расположенный на одном уровне (или, простите за каламбур, «смыв») с туалетом. пол. К этим туалетам нужно немного привыкнуть.
Туалеты для приседаний не слишком сложны в использовании. Большинство проблем человека возникают из-за незнания того, как пользоваться туалетом. Незнание того, как пользоваться этими туалетами, может означать ожидание в гораздо более длинных очередях за западными туалетами, поэтому лучше немного предвидеть.
2. Чего ожидать: чистота туалетов для приседаний в Китае
Чистота туалетов для приседаний во многом зависит от того, где вы находитесь в Китае. . Если вы находитесь в элитном торговом центре в центре Шанхая или в аэропорту, вы можете ожидать, что туалеты будут часто проверяться персоналом и регулярно протираться шваброй (хотя неясно, как часто чистят швабру).Если вы окажетесь в безымянной деревне на холмах, будьте готовы отправиться в кирпичную лачугу без электричества и чуть больше, чем большую дыру в земле. Они могут быть некрасивыми, но, безусловно, запоминающимися!
В целом, уровень чистоты улучшается по мере развития Китая, и вы обычно окажетесь в общественном туалете, который очень сравним с большинством западных общественных туалетов (например, вы все равно не захотите проводить слишком долго в там). Обычно там будут киоски, уборщица наготове (которая без колебаний проталкивает швабру, пока вы занимаетесь своими делами) и, если вы собираетесь в мужской туалет, несколько джентльменов, стоящих вокруг быстро выкурить перед тем, как вернуться к работе.
Туалеты в китайских поездах недолго остаются такими чистыми.Однако, если природа зовет вас на медленном поезде , будьте готовы к одному из самых ужасных моментов в вашей жизни. В каждом вагоне есть два туалета для приседаний (боюсь, только туалеты для приседаний), которые через час или два в пути превращаются в места, в которых вы действительно не хотите находиться. Из-за движения поезда прицеливание становится затруднительным, и вам нужно будет за что-то ухватиться, так как падение на этот пол — это не то, что нужно испытывать.
Если есть возможность, выбирайте поездку на высокоскоростном сверхскоростном поезде . Туалеты на них намного лучше, с хорошим обслуживанием и могут даже включать туалет в западном стиле.
Предупреждение: Будьте готовы к тому факту, что некоторые из более бюджетных общественных ванных комнат не предлагают особой конфиденциальности. Туалеты со стенами кабинки, построенными всего в метре от земли без дверей, (к счастью) заменяются более высокими кабинами с дверьми, но замки (если они все еще установлены) могут не работать, поэтому может потребоваться держать дверь закрытой или шуметь. чтобы другие не толкали дверь.
3. Перед выходом
Даже в большинстве 3-звездочных отелей Китая есть туалеты в западном стиле.Это может показаться удивительным, но использование туалета для приседаний требует некоторого планирования, прежде чем вы даже покинете свой отель / аэропорт.
Хороший совет: воспользуйтесь ванной перед отъездом из аэропорта / отеля . Посетителям Китая, вероятно, в какой-то момент придется пользоваться туалетом на корточках, но посещение отеля перед выходом из отеля сократит количество перерывов в отпуске.
Многие люди также планируют пит-стопы в торговых центрах, модных ресторанах и международных отелях, поскольку в этих местах обычно есть туалеты в западном стиле.
Многие общественные туалеты не предоставляют туалетных принадлежностей , поэтому, как правило, неплохо собрать немного вещей перед выходом на улицу.
Если вам нужно пойти, но у вас нет туалетной бумаги, у вас есть только два варианта.
- Вариант номер один (без слов): найдите ближайший магазин и купите туалетную бумагу (мандарин: wèishēngzhǐ 卫生纸).
- Вариант номер два (тоже не каламбур): найдите себе более симпатичный ресторан, так как они начинают снабжать своих клиентов туалетной бумагой.Если можете, найдите бар, в нем почти всегда есть разумные туалеты и туалетная бумага.
Также велика вероятность, что в туалете не будет мыла или бумажных полотенец (или фена), чтобы вытереть руки. Вы также обнаружите, что во многих общественных туалетах, даже в больших городах, таких как Пекин, нет подогрева воды. Летом это нормально, но в зимние месяцы, когда ртуть регулярно опускается ниже -10 ° C (14 ° F), неплохо было бы взять с собой дезинфицирующее средство для рук перед тем, как отправиться в путь.
Вам может понадобиться небольшая сумма сдачи , поскольку многие общественные туалеты начали взимать плату.
4. В уборной
Первое, что человек должен сделать перед тем, как пойти в туалет, — это попросить друга или члена семьи подержать им свои сумки (например, хозяйственные сумки, кошельки). Это не значит, что их не украдут, а скорее потому, что обычно нет крючков, на которые можно было бы повесить эти сумки, и для равновесия понадобятся обе руки.
Не забыв вынуть туалетную бумагу из сумки, вам, возможно, придется по номеру попасть в очередь для унитаза.Во многих туалетах есть как западные, так и приземистые туалеты, а на некоторых даже есть указатели, указывающие, какой туалет находится в кабинке. Не принято просто откладываться и ждать, пока откроется киоск, поэтому выберите одну линию киоска и придерживайтесь ее.
Следующий идеальный шаг для человека — это подтянуть длинные штанины вверх . Пол может быть мокрым из-за «несчастных случаев» или из-за персонала туалетов, который постоянно вытирает ванную, но в любом случае это поможет человеку избежать намокания брюк.Даже если пол выглядит сухим, упираться спинкой расшатанных штанин в пол унитаза все равно нежелательно.
5. Приседания
Туалеты для приседаний не так уж и сложны, если человек знает, как ими пользоваться. К сожалению, для многих людей, отдыхающих в Китае, это будет их первая поездка. Первое, что следует помнить, это то, что даже для мужчин положение для использования этих туалетов обращено вперед (чтобы избежать брызг на сливную трубу).
Теперь необходимо стоять так, чтобы ноги стояли по обе стороны от унитаза . На каждой стороне этих туалетов есть канавки, которые помогают человеку оставаться на месте во время использования туалета. Стопы человека должны быть ближе к середине этих бороздок и плоскими.
После того, как все вышеупомянутые приготовления выполнены, человек может спустить штаны до середины бедер и присесть на корточки над унитазом. Важно, чтобы одежда не касалась пола ; это верно, даже если место кажется чистым и безупречным.
Когда вы закончите свой бизнес, вы можете заметить табличку с просьбой не смывать туалетную бумагу и мусорное ведро рядом с вами , заполненное использованными салфетками. В настоящее время в большинстве туалетов действительно можно смыть небольшое количество туалетной бумаги, и эти уведомления в основном существуют для предотвращения выбрасывания в туалеты всех видов мусора (как это делается в сельских туалетах). Таким образом, решение остается за вами: использовать мусорное ведро или попробовать смыть туалетную бумагу.
Будьте осторожны, когда пора вставать обратно , так как средний житель Запада не привык проводить даже короткий период времени в положении на корточках.Так что кровь приливает к вашим ногам и трудности с балансированием — настоящая проблема, если у вас нет практики.
Когда вы смываете унитаз , стойте вдали от , чтобы избежать брызг и брызг.




Первым на участке строят туалет, а затем остальные постройки!