Размеры душевых кабин — как подобрать идеальный размер, советы
Ограниченная площадь ванной комнаты – еще не повод отказываться от того или иного ключевого предмета санузла.
Поместить в одном помещении раковину, унитаз, полотенцесушитель, биде и максимально комфортно обустроить пространство помогает установка кабинки для душа.
К счастью, рынок предлагает множество моделей разных габаритов, форм, типов и конструкций. В статье попробуем разобраться, существуют ли идеальные размеры душевых кабин, как определить оптимальные параметры поддона, ограждений при планировании душевой зоны.
Основные размеры кабинок для душа разных форм
Производители в основном нацелены на выпуск стандартных душевых кабин, поскольку основная часть покупателей – владельцы квартир с типовыми планировками. Конструкцию выбирают, исходя из места установки – угол, ниша, возле стены, посредине комнаты. Для каждого варианта есть стандартные размеры душевых кабин.
Квадратные (симметричные)
Это самый универсальный вариант, который идеально подходит для малогабаритных ванных комнат, поскольку наиболее эффективно экономит пространство, оставляет место для других предметов санузла.
Минимальный размер душевой кабины квадратной формы – 70×70 см, но его рекомендуется использовать только при экстремальной нехватке места. Лучше всего они подойдут для маленьких санузлов, так называемых, «хрущевок».
Душевые кабины с равными сторонами бывают следующих параметров:
- Душевые кабины 80×80 см – не совсем комфортный для взрослого человека вариант;
- Душевые кабины 90×90 см – самые популярные габариты душевой кабины. Конструкция компактная, поместится даже в ограниченном пространстве, в ней комфортно принимать душ;
- Душевые кабины 100×100 см – подойдет для людей крупной комплекции. Для дополнительного комфорта оснащается глубоким поддоном;
- Душевые кабины 110×110 см – это уже вариант для более просторных помещений;
- Душевые кабины 120×120 см – достаточно объемные конструкции, которые заказывают для обустройства санузла в просторной квартире, коттеджах, загородных домах;
- Душевые кабины 150×150 см – глубокий поддон заменяют полноценной ванной.

Диапазон высоты душевой кабины с равными стенками – 190-235 см. При установке вместо поддона ванны может быть и 240 см.
Это не все доступные размеры, а только те, которые чаще встречаются на рынке. Есть в каталогах продавцов и параметры не кратные 10 см – 92×92 или 96,5×96,5 см. Но чаще всего это сантехника китайского производства далеко не лучшего качества.
Прямоугольные душевые кабины
Вариант отлично впишется в узкую вытянутую ванную комнату. Плюсы стандартных асимметричных душевых кабин – богатый ассортимент (от 70×90 до 90×170 см) и возможность легко совместить душ и ванну.
Интересно, что прямоугольный душ с габаритами 90×100-120 см занимает столько же свободного пространства, сколько и квадратный со сторонами по 100 см, но при этом он на порядок удобнее в использовании. Если вы планируете принимать в основном ванну, стоит купить кабину с неполным набором стенок и без крыши, цена которой на порядок ниже полноценной герметичной конструкции.
Полукруглые или формы ¼ круга
Выглядят компактнее и аккуратнее, чем симметричные и ассиметричные кабинки.
Они монтируются в угол, оснащаются раздвижными дверцами, ширина которых варьируется в пределах 70-90 см. Подходят для небольших санузлов.
Относительно оптимальных размеров душевых кабин с округлой панелью, то ширина стенок варьируется в диапазоне 70-150 см, высота – до 240 см. Монтируются они на низкий поддон высотой 10-15 см.
Круглые душевые кабины
Монтаж душевых круглой формы подойдет тем, кто ищет нестандартные интерьерные решения. За счет необычной формы, такие модели одинаково хорошо впишутся в малогабаритные, просторные санузлы, у стены, по центру комнаты.
Какой размер душевой кабины выбрать зависит от доступной площади, но радиус круглых моделей варьируется в диапазоне 90-120 см.
Многоугольные
Чаще всего в категории многогранных гидробоксов встречается пятиугольная форма. Их задние стенки перпендикулярны, а фасад выполнен в виде трапеции. Это хороший вариант для установки в углу небольшого помещения. Стандартные размеры у производителей встречаются разные – 80×80, 90×100 (120), 100×110 (120) см.
Благодаря многоугольной форме можно устанавливать и раздвижные, и распашные дверцы.
Размещать выше перечисленные кабины можно у стены, в специально обустроенной нише, в углу. Оснащают глубоким (10-15 см) или низким (40-60 см) поддоном, а если позволяет площадь – полноценной ванной (70 см). Угловые и пристенные доступнее, поскольку одна-две стенки уже есть, и в итоге требуется меньшее количество ограждений.
Из минусов – труднее добиться герметичности.
Габариты кабин без задних стенок небольшие – от 70×70 до 100×100 см. Высота гидробокса редко превышает 200 см. Если нужно объединить душ и ванну, устанавливают кабинки закрытого типа. Их минимальные размеры – 90×90 см.
Производители душевых кабин
В нашем интернет-магазине сантехники представлен большой ассортимент душевых кабин от ведущих мировых производителей. Много моделей находится в наличии в нашем офлайн магазине в Киеве. Среди тех, что пользуются наибольшим спросом у наших клиентов следующие:
- Душевые кабины AM.
PM - Душевые кабины Eger
- Душевые кабины Koller Pool
- Душевые кабины Radaway
- Душевые кабины Ravak
- Душевые кабины Volle
Нестандартные размеры душевых кабин
При всем разнообразии рынка сантехники, производителей и моделей далеко не всегда стандартные размеры душевой кабины для стандартной ванной комнаты вписываются в сложную планировку.
Также просторные санузлы дают возможность владельцам экспериментировать с интерьером. В таких случаях можно заказать кабину на заказ с нестандартными параметрами, формами и внешним видом.
То есть, нет понятия «оптимальные габариты душевой кабины», есть оптимальные параметры для конкретного помещения и конкретного человека. Нестандартные размеры, которые чаще все заказывают:
- 97×97 см;
- 112×80 см;
- 105 (110,115, 126, 150, 170) x85 см;
- 170×110 см.
Нужно быть готовым, что изготовление нестандартной модели обойдется дороже обычной из каталога.
Но, это поможет максимально точно подобрать размер душевой кабины, подходящие конкретному помещению.
И напоследок, простой способ определить удобную модель для вас. Для начала согните руки в локтях, разведите их в стороны, кисти прижмите к бокам. Далее измерьте расстояние между локтями, и добавьте к полученному результату 5-15 см. Это и будет комфортный для вас размер душевой.
А вот форму уже нужно подбирать, исходя из планировки санузла.
стандарт и оптимальные размеры, рекомендации по выбору
Автор Никита Миронович Савельев На чтение 13 мин Просмотров 61 Опубликовано
Содержание
Душевые кабины обычно устанавливают в санузлах для экономии полезного пространства. Большое значение имеет высота этих устройств, поскольку их нужно соотносить с высотой потолка. В типовых панельных многоэтажках потолки находятся на расстоянии от пола в 2,4м.
Это значение закреплено ГОСТом, и изменяться не может.
Высота душевой в таких помещениях обычно имеет те же большие показатели. А наименьший высотный размер составляет 175см. Есть и немного более высокий стандарт – 210см. Всё зависит от времени постройки здания и его конкретной архитектуры.
Зная, какой высоты бывают кабинки, имеющиеся в продаже, можно подобрать для частного дома или многоэтажек разных типов. Определяя высоту кабинки, нужно ещё учитывать размеры поддона и наличие крыши.
Формы и конструктивные особенности душевых кабин
Есть нестандартные формы, но существуют основные популярные варианты. Душевая кабина должна иметь определённую вместительность и дополнительное оборудование. Но основное разделение происходит по нескольким параметрам.
Рис.1 Формы душевых кабинокДушевые боксы с закрытой формой
Рис.2 Пример душевой кабинки закрытого типаЗакрытые кабинки самые популярные. Это герметичные боксы, в которых присутствуют все стенки, дверки, крыша и поддон.
Есть модели относительно простые, которые предназначены только для того, чтобы принимать душ. Но продаются и варианты с разным дополнительным оборудованием:
- уже часто вместе с обычным душем присутствует тропический;
- встраиваются гидромассажные форсунки;
- встречается ароматический парогенератор;
- оборудуется инфракрасная сауна;
- стало модно встраивать в кабинки аудиосистемы;
- есть модели с голосовым управлением.
Если в кабинке установлен тропический душ и другое дополнительное оборудование, высота моделей составляет не менее 2м. Они обычно оснащаются высоким поддоном или ванной. В таких кабинах можно не только принимать душ, но и стирать вручную небольшие вещи и просто купаться.
Поддоны могут иметь глубину до 45см. Но на высоту конструкции это не влияет. Дно поддона и всей душевой кабины остаётся на одном и том же уровне.
Конструкция открытого типа
Так называют модели, у которых имеется негерметичный корпус.
Они отличаются отсутствием одной из стенок или крыши. Эти модели дешевле закрытых боксов, поэтому тоже имеют свой спрос. Простые варианты – это поддоны с боковыми стенками кабины, дверками или наличием раздвижной перегородки. Встречаются модели, в комплектацию которых не входят поддоны, вода сливается в специальное отверстие в полу – “трап”.
Иногда такая кабинка имеет все стены, но у неё нет крыши. Такую конструкцию называют частично открытой. Гидроизоляция здесь на высоком уровне.
В этих моделях обычно уже установлена душевая панель. Но размеры такой кабинки всё равно остаются скромными, потому что её обычно устанавливают там, где места немного.
Открытые конструкции просто устанавливать и собирать, они компактны и обладают небольшой высотой. Но у таких кабин есть и свои заметные недостатки:
- из-за отсутствия герметичности в помещении будет регулярно происходить оседание влаги на стены в виде пара;
- стены придётся отделать гидроизоляционными материалами;
- многих дополнительных функций в них нет, и установить их нет технической возможности.

Часто такие кабины оборудуют в нишах. Тогда нужно просто поставить поддон и повесить шторку. Ниша позволяет высвободить пространство, но оборудовать её можно не везде. Нужна толстая стена, а их в современных домах почти нет.
Другое дело – частный дом или коттедж. Размер тут может не иметь значения. Но бывают трудности с водоснабжением.
Асимметричные кабины для душа
Много покупателей считают, что душевая кабина имеет только строгую геометрическую форму. Но сейчас уже появились и другие конструкции.
Фото: Светлый интерьер асиметричной ванной комнаты с душевой кабиной открытого типаФорму кабины изначально определяет поддон. Если он квадратный, устанавливается и квадратная душевая. В случае, когда поддон занимает четверть круга, это – угловая конструкция. Но есть в продаже уже и ассиметричные сооружения.
Их устанавливают на изогнутые поддоны. Стороны этих поддонов имеют разную длину. В результате возникает неповторимый дизайн кабины и экономия места.
Но функциональность кабинки ни в чём не нарушается. В маленькой ванной конструкции и смотрятся стильно, и дополнительную площадь освобождают.
Универсальный вариант
Его ещё называют душевым боксом. Это закрытая конструкция, у которой стандартная высота, но поддон имеет увеличенные размеры и глубину. Поэтому можно использовать его и как ванну. Именно здесь можно оборудовать, например, сауну.
Фото: душевой бокс кабинкаПравда, в данном случае речь об экономии места не идёт. Эти конструкции можно устанавливать только в просторных помещениях.
Как типы открывания дверок влияют на размеры душевой кабины
Дверки в кабине бывают разными и по-разному открываются. От их типа зависят и размеры конструкции, и высота душевой кабины. Например, распашные двери подходят для конструкции больших размеров. А раздвижные – для невысоких угловых в маленьких помещениях.
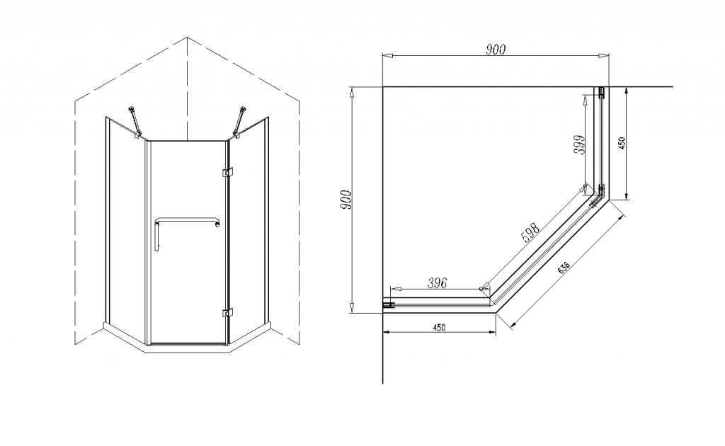
Размеры угловой душевой кабины с пятью стенками
Угловые душевые кабины сочетаются с интерьером ванной комнаты при условии удачного подбора их размера.
Рядом ещё можно добавить стиральную машину. Стандартная высота такой кабины – от 1,9 до 2,3м. Есть, конечно, гиганты и повыше, но покупают их редко, потому что обычно в маленьких санузлах и потолков очень высоких не бывает, и смотрятся высокие кабинки там инородно. Высота душевого уголка должна соответствовать его компактности.
Дверцы либо отодвигаются в сторону, либо складываются «гармошкой». Распашной вариант здесь вряд ли подойдёт, т.к. дверцам нужна дополнительная площадь.
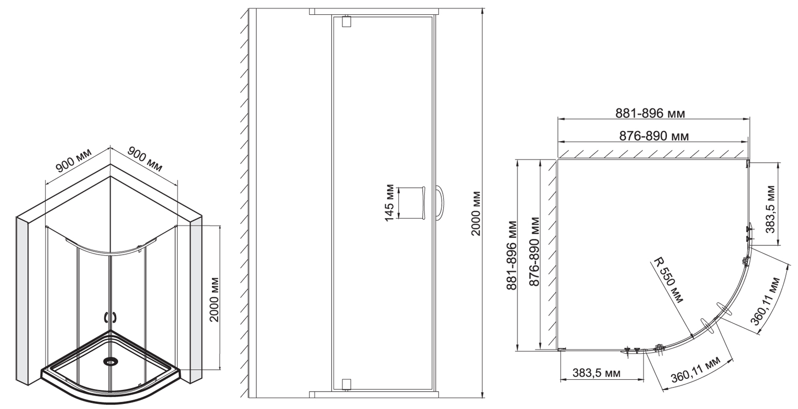
Размеры душевых кабин с округлой лицевой панелью душевой кабинки
Это вариант дизайна с округлённой дверкой и называют их иногда «четвертью», поскольку внутренне они представляют четвёртую часть круга. Покупаемые модели – 80х80 см и 90х90. В первых крупному человеку всё-таки бывает тесновато, второй вариант – в самый раз. Пользуются своим спросом и кабины 100х100 см.
Кабины с радиусом больше метра в обычной городской ванной смотрятся нелепо. Их выпускают, но чаще под заказ. Если установить такую конструкцию в стандартном санузле, придётся и умывальник угловым делать.
У высоты кабины ограничений нет. Зависит от того, какие дополнительные функции в модели будут представлены.
Иногда округлая часть выглядит эллипсом. Но и здесь большими размерами увлекаться не стоит.
Определитесь, из какого материала будет сделана дверь. В продаже два варианта: пластик и закалённое стекло.
Закалённое стекло прочнее, но дороже. Зато его можно покрыть водоотталкивающим составом, тогда жидкость по нему будет скатываться без задержки.
Что надо знать о размерах и высоте поддона душевой кабины
Изделия широко представлены на рынке, и без них душевые кабины и в банях сложно представить. Назначение поддона для душевой многофункционально. Он предохраняет пол от попадания воды, препятствует появлению грибка и, наконец, просто служит основанием для крепления всей конструкции. Но высота кабины от пола до потолка от его размеров не зависит, поскольку дно поддона будет всегда находиться внизу.
Сегодня основной материал для изготовления – акрил.
В него часто устанавливают гидромассажные форсунки. Единственный недостаток этого материала – слабая устойчивость к механическим воздействиям. Зато он неплохо смотрится и исправно служит до 15 лет.
Встречаются поддоны чугунные. Их недостаток – большой вес и трудность монтажа. Сейчас такие модели встречаются редко. Продаются модели с поддонами из камня, мозаики и из дерева. Последние используют на дачах и в загородных домах.
Поддоны для душевых кабин выпускают разной формы и размера. Часто выбирают квадратные модели. Популярный размер – 70х70 см. Прямоугольники выбирают, если поддон планируется изредка использовать вместо ванны или для двух человек сразу. Тогда размеры могут доходить до 170х90 см. Высота поддона зависит от высоты его бортов.
Есть ещё угловые и ассиметричные модели. Их размеры от перечисленных выше не очень отличаются.
Продаются поддоны и с полным отсутствием бортов или с небольшими бортами. Смотрятся они стильно, но подойдут, если в доме ещё есть ванна.
Такое сочетание сейчас уже не редкость.
Рекомендуется приобретать душевую кабину с поддоном с высокими бортами. Их глубина может доходить до 45 см, а высота от пола будет составлять 60 см. Чтобы принимать такую мини-ванну было удобно, поддоны иногда оборудуют специальным сиденьем.
Выбор оптимального размера и формы
При покупке душевой кабины изначально выберете место её будущего расположения. Для маленькой ванной комнаты подойдёт угловая модель, для более просторного помещения – прямоугольные и квадратные конструкции. Уже говорилось, что высота кабинок должна быть не менее 175 см. Если в доме проживают высокие люди, можно замахнуться и на большие размеры. Душевая кабина должна быть местом комфорта.
У душевых кабин есть несколько преимуществ:
- компактно размещаются даже в небольших помещениях;
- по сравнению с приёмом ванны расход воды значительно сокращается;
- после установки конструкции появляется дополнительное пространство;
- на водные процедуры уходит немного времени;
- с помощью кабины можно улучшить или кардинально изменить дизайн ванной комнаты.

Последнее обстоятельство объясняется тем, что выбор текстуры и цвета конструкций сейчас очень широк. Можно сделать свою ванную комнату уникальной. Но нельзя забывать и о некоторых недостатках:
- если площадь и габариты поддона небольшие, про принятие ванны можно забыть;
- иногда происходит разгерметизация швов;
- при угловой конструкции может появиться плесени.
Правда, при правильном монтаже конструкции большинства этих неприятностей можно избежать. А при должном уходе – тем более.
Стандартные размеры душевых кабин по высоте душевого уголка
Параметры душевой кабинки зависят от условий, в которых она будет располагаться. Высота уголка может быть от 180 см, но, в основном, ставят конструкции от 2 м и выше.
Размеры угловых и пристенных душевых кабин
Есть стандартные варианты. Но можно найти в продаже и необычные формы. Стандарт – это 90х90 и 80х80. Но чем просторнее поддон (соответственно, и кабина), тем комфортнее условия купания даже в угловых и пристенных конструкциях.
Но их ставят в небольших помещениях.
Полезные советы для оптимального выбора
Конечно, работы будет больше, да и сложнее она будет наверняка, но результат порадует.
Правда, не рекомендуется поручать сборку просто слесарям-сантехникам, которые живут где-нибудь поблизости. Не совсем подготовленные люди не могут собрать кабину полностью герметичной или без зазоров. Нужно доверить эту работу специалистам из магазина или сервиса.
Двери для душевых кабинок можно сделать на заказ – под окружающий дизайн. Обстановка точно будет стильной. Иногда визуально вход в душевую кабину становится незаметным.
Делать кабины шире 1,2 м не нужно, вполне будет достаточно 90х90 см. По высоте ограничений нет.
Стальные поддоны – самые дешёвые и относительно прочные, но они сильно гремят под водяными струями. Их часто используют в банях и гостиницах, но для дома они не рекомендуются.
Квадратный поддон дешевле прямоугольного, но последний не очень-то и нужен.
Специалисты думают, что душевая кабина – место уединения, поэтому встроенные гаджеты там совершенно ни к чему.
Перед покупкой душевой кабины необходимо посмотреть наличие гарантийного срока. Чем он больше, тем изделие надёжнее.
Высота душевых кабинок с низким поддоном всё равно такая же, как в стандартных моделях. Но если поддон на ножках – это уже другое дело.
Как определить удобные размеры именно для вас
Стандарты душевых кабин рассчитаны на среднюю фигуру взрослого человека, но подходят под них далеко не все. Чтобы определить удобные для себя размеры, выполните всего два действия. Нужно встать прямо, согнуть локти и поставить руки на пояс и измерить расстояние между локтями. Добавляете к этой цифре 10 см – вот и нужный вам размер по ширине. Высоту выбирают под потолок или до конца дверцы.
Фото: Комфортная душвая кабинка не симетричного в которой можно принимать ваннуюА высота поддона душевой кабины от пола произвольная. Как и высота его стенок. Всё зависит от того, собираетесь вы просто купаться под душем или принимать хотя бы сидячую ванну. Минимальная высота бортов может быть полностью нулевой.
Требования к месту установки и к душевой кабине
Душевая кабина должна располагаться так, чтобы она не загораживала подход к другим предметам в санузле или ванной. Лучше, чтобы двери кабины открывались так, чтобы выйти можно было на свободное место, – хорошо, если на середину помещения.
Высота душевой кабины с поддоном обычно соответствует высоте потолка, но если ванная маленькая, а потолок высокий, то модель большой высоты ставить не стоит. Считается, что стандартная высота душевой кабины – около 2 – 2,2м.
Резюмируя обратимся к мнению эксперта
Никита Александрович Савельев
Слесарь механосборочных работ 6-го квалификационного разряда. Санкт-Петербургский архитектурно-строительный колледж.
Задать вопрос
Душевые кабины очень удобно использовать там, где требуется экономия места в ванной. Но некоторые устанавливают их и при наличии большой жилой площади. Нужно только выбрать подходящую модель надлежащего качества. Причём, можно приобрести вполне надёжную кабину и на бюджетные средства.
Обратите внимание на гарантии и репутацию производителя и продавца товара. Качество современных душевых кабин высокое, если, правда не покупать подозрительно дешёвый товар.
Рекоменую посмотреть видео по теме, которые я отобрал для более осмысленного приятия решения в вопросе покупки душевой кабинки.
Насколько велика типичная угловая душевая? [Исследованные размеры]
Вы планируете заменить душ, но не знаете, какой размер использовать или душ стандартного размера? Что ж, вы попали в нужное место. Мы составили это руководство, чтобы помочь вам определить оптимальный размер душа для вашего помещения.
Угловые душевые кабины бывают разных размеров. Наиболее распространенный размер углового душа — 36 дюймов на 36 дюймов, но они могут быть больше или меньше.
Вы, вероятно, задаетесь вопросом, как определить размер душа, который лучше всего подходит для вашего помещения, или есть ли у угловых душей какие-либо преимущества. Продолжайте читать, чтобы узнать все о размерах душа.
Какой размер стандартной угловой душевой?
Угловые душевые блоки доступны в нескольких «стандартных» размерах для готовых блоков. 36-дюймовые душевые кабины чаще всего встречаются в домах, потому что они достаточно просторны, чтобы большинство людей могли с комфортом пользоваться ими, при этом экономя место. Вы даже можете заказать у подрядчика изготовление углового душа по индивидуальным размерам.
Какие размеры бывают угловых душевых?
Несмотря на то, что 36-дюймовые угловые душевые являются наиболее распространенными, готовые душевые кабины бывают разных размеров, чтобы удовлетворить индивидуальные потребности разных домов. Они могут быть больше или меньше 36 дюймов. Вот список распространенных размеров угловых душевых кабин:
- 32 x 32 дюйма
- 34 x 34 дюйма
- 36 x 36 дюймов
- 38 x 38 дюймов
- 42″x42″
Что такое угловой душ?
Угловые душевые под углом 90 градусов подходят для установки в углах и обычно имеют треугольное, круглое или неокруглое основание.
Этот компактный дизайн — отличный выбор для небольших ванных комнат, но его можно использовать и для увеличения пространства в больших ванных комнатах.
Какая самая просторная форма для угловой душевой? 9№ 0017
Самая просторная форма для углового душа – неоугловая. Угловой дизайн обеспечивает дополнительное пространство для внутренней части душа, предоставляя вам больше свободы движений во время принятия душа. Несмотря на то, что эта конструкция является самой просторной, она также является наиболее дорогостоящей при покупке и установке.
DreamLine 36 1/8-дюймовая нео-угловая душевая кабина
Эта стеклянная душевая кабина идеально подходит для большинства семей, а ее нео-угловая конструкция обеспечивает дополнительное пространство. Это только стекло; база продается отдельно. Он поставляется в двух разных вариантах отделки, чтобы соответствовать оборудованию в вашей ванной комнате.
Нажмите здесь, чтобы посмотреть этот душ на Amazon.
32-дюймовый угловой душ слишком мал?
32-дюймовый душ может показаться немного тесным, особенно если вы привыкли к большому душе.
Эти маленькие душевые кабины не оставляют много места для полок с туалетными принадлежностями или места для перемещения во время мытья. Люди крупного телосложения могут испытывать трудности с использованием 32-дюймового душа.
Акриловый душ Dreamline 32 дюйма
Этот комплект 32-дюймовой душевой кабины включает основание и стенки, необходимые для установки нового душа. Небольшой размер делает его идеальным для ванных комнат с ограниченным пространством. Этот душ доступен в нескольких размерах и цветах, чтобы удовлетворить потребности вашего пространства.
Нажмите здесь, чтобы увидеть этот комплект для душа на Amazon.
Угловые душевые экономят место?
Да, угловые душевые кабины — отличный способ сэкономить место в небольших ванных комнатах. Их способность так хорошо вписываться в углы может помочь освободить место на полу для других предметов первой необходимости в ванной комнате. Использование стеклянной двери в угловой душевой также может визуально увеличить всю ванную комнату, что является отличным приемом в ограниченном пространстве.
Есть ли другие преимущества угловых душевых?
Угловые душевые не только экономят место. У них есть и другие преимущества. Они эстетичны и легко вписываются в дизайн. Их стеклянные корпуса устраняют необходимость в занавесках для душа, что упрощает уборку, а плесень на занавесках остается в прошлом.
Угловые душевые кабины также очень хорошо впитывают воду и, как правило, пропускают меньше воды, чем душевые кабины, в которых вода удерживается занавесками. Это помогает предотвратить риск поскользнуться, постепенное повреждение водой и экономит время на уборку после душа.
Душевая подставка ELEGANT со стеклом
Эта нео-угловая душевая кабина представляет собой 36-дюймовую модель, включающую в себя как душевую подставку, так и стекло. Металлический каркас и дверная ручка с хромированной отделкой придают неподвластный времени элегантный вид. Основание имеет слегка текстурированную поверхность пола, предотвращающую скольжение.
Нажмите здесь, чтобы посмотреть этот душ на Amazon.
Есть ли недостатки у угловых душевых?
Угловые душевые кабины с металлическими рамками вокруг стеклянного корпуса, как известно, со временем ржавеют, особенно петли. Этого можно избежать, выбрав безрамный стеклянный корпус или выполняя меры предосторожности, такие как регулярное применение водоотталкивающего средства.
Известно, что в угловых душевых скользкий пол, что может привести к падению, если вы не будете осторожны. Этот тип несчастного случая можно легко предотвратить, используя захваты.
Нескользящие наклейки для душа Secopad
На обратной стороне этих наклеек имеется клей, который приклеивается к полу вашей ванны или душа, образуя текстурированную нескользящую поверхность. Они доступны в пяти различных цветах, а также в прозрачной версии, что дает вам возможность настроить внешний вид. Наклейки поставляются в упаковке по двадцать четыре штуки, чего должно быть достаточно, чтобы покрыть большинство полов в душе или ванне.
Нажмите здесь, чтобы увидеть эти нескользящие наклейки на Amazon.
Каков наименьший размер душа?
Наименьший размер углового душа составляет 32 на 32 дюйма. Индивидуальные душевые кабины могут быть еще меньше, например, бочки и ведра, используемые в качестве основы. Прежде чем совершать какие-либо покупки, вам нужно ознакомиться с требованиями местных строительных норм и правил, чтобы убедиться, что вы соответствуете всем правилам.
Угловой душ Ove Decors Breeze 32 дюйма
Этот угловой душ имеет размеры 32 на 32 дюйма и включает основание и стеклянный корпус. Он предлагается в двух разных цветах и трех разных размерах.
Нажмите здесь, чтобы увидеть это приложение на Amazon.
Каков максимальный размер душа?
Самая большая угловая душевая – 42 дюйма. Тем не менее, угловые душевые кабины на заказ могут быть изготовлены многими компаниями и подрядчиками. Вам также не нужно ограничивать себя готовыми юнитами; угловые душевые также могут быть встроенными. Новый душ — это крупная инвестиция, поэтому обязательно выберите то, чем вы будете довольны долгое время.
Душевой уголок DreamLine 42 дюйма
Этот корпус включает в себя неокруглое основание и бескаркасный стеклянный корпус. Большой размер создает ощущение роскоши и простора. Он поставляется в различных вариантах отделки и базовых цветов, поэтому вы обязательно найдете идеальный вариант для своей ванной комнаты.
Нажмите здесь, чтобы посмотреть этот душ на Amazon.
Каков стандартный размер сиденья для душа?
Стандартный размер углового сиденья для душа составляет от 17 до 19 дюймов в высоту и 15 дюймов в глубину. Однако они могут варьироваться от 15 до 19.дюймов в высоту и от 15 до 24 дюймов в глубину. Размеры будут варьироваться в зависимости от размера душа и того, является ли скамья встроенной или отдельной.
Угловая душевая скамья Zhuoyue
Эта угловая душевая скамья имеет дополнительную полку для хранения и резиновые накладки на ножках для предотвращения скольжения. Он сделан из бамбука и может выдерживать до 250 фунтов.
Нажмите здесь, чтобы увидеть эту угловую душевую скамейку на Amazon.
Является ли угловой душ хорошей инвестицией?
Да, угловая душевая кабина — отличное вложение, особенно если вы пытаетесь максимально использовать небольшое пространство. Это также значительные инвестиции, поэтому, если вы думаете, что в будущем вам может понадобиться ванна или что-то большее, чем угловой душ, возможно, лучше накопить на вашу конечную цель. В целом, это хороший и надежный вариант для нового душа в ванной.
Сколько стоит установка углового душа?
Установка новой душевой кабины в вашем доме будет стоить от 862 до 1010 долларов, в зависимости от используемых материалов и трудозатрат в вашем районе. Форма душа также повлияет на цену, а нео-угловые души, как правило, самые дорогие в установке. Некоторые магазины предлагают фиксированную плату за установку, если вы заказываете у них душ, поэтому обязательно изучите этот вариант.
Душ в углу
Теперь, когда вы знаете все размеры душевых кабин и то, как они могут улучшить вашу ванную комнату, вы готовы отправиться за покупками.
Выбирая душ, обязательно учитывайте, сколько места вам и вашей семье нужно, чтобы комфортно принять душ. Удачи и получайте удовольствие от своего проекта!
Вам также может понравиться
Если вы хотите узнать больше о скамейках для угловых душевых, прочитайте нашу статью «Насколько большой должна быть угловая душевая кабина?»
Чтобы узнать о расходах, связанных с установкой нового душа, прочитайте нашу статью «Сколько стоит купить и установить поддон для душа?»
Размеры углового душа по коду и для комфорта
Обновлено: | Категория: Ванная
Автор: Омар Алонсо | Редактор: Омар Алонсо
Обзор и исследование: Джен Ворст и Крис Миллер
Вы ищете дизайн душа для реконструкции вашей ванной комнаты? У вас есть много вариантов с точки зрения дизайна и размеров. Размеры угловой душевой позволяют сэкономить пространство. Они являются популярным вариантом для многих домовладельцев, которые ценят их эффективность и эффективность.
Угловой душ вписывается в угол ванной комнаты; это компактный дизайн по сравнению с другими моделями, которым требуется больше места. Эти душевые имеют конструкцию из акрила или стекловолокна, наиболее популярными из которых являются нео-угловые и треугольные формы.
В этом посте рассматриваются стандартные конструкции угловых душевых кабин, чтобы помочь вам спланировать реконструкцию.
Размеры стандартных угловых душевых кабин
Большинство угловых душевых кабин имеют стандартный размер углового душевого поддона 36 дюймов в качестве рекомендуемого минимума (хотя 30 дюймов является минимальным по коду). Однако это всего лишь стандартный размер; Для этих типов душевых поддонов доступно множество других. Вот другие распространенные размеры углового душа:
- 32 x 32 дюйма
- 34 x 34 дюйма
- 36 x 36 дюймов
- 38 x 38 дюймов
- 42 x 42 дюйма
Обратите внимание, что мы даже не упоминаем варианты размером 30 x 30 дюймов.
Возникает вопрос: в какой момент, когда вы израсходуете достаточную ширину, лучше (если у вас есть место) просто выбрать стандартную неугловую душевую кабину или комбинацию ванны и душа?
Я не предлагаю ответа, а просто задаю вопрос, так как я не вижу пространства, с которым вы работаете. Существует стандартный размер душа для неугловых конфигураций, на который вы можете посмотреть, подойдет ли он вам.
Преимущества угловой душевой
Небольшое пространство для душа может иметь много положительных сторон, особенно если учесть площадь пола, которую она освобождает в ванной для использования в других целях. Вот некоторые плюсы углового душа:
- Имеют меньшую площадь основания и занимают меньше места в ванной комнате
- Их установка более доступна по сравнению с другими моделями
- Упрощают очистку и обслуживание
- Как правило, они имеют больше возможностей, чем стандартные душевые кабины
Некоторые из этих функций, которые я имею в виду, включают аккуратные угловые раздвижные двери, несколько насадок для душа (особенно если вы создаете трехстороннюю кабинку вместо двух стен) и т.
д.
Недостатки угловой душевой
Основным недостатком угловой душевой является уменьшение пространства, которое необходимо для свободного перемещения в душе. С занавесками для душа это не будет такой большой проблемой, но все же будет раздражать прикосновение к занавеске, и вы рискуете, что вода попадет на пол в ванной. Вот еще несколько минусов, которые следует учитывать:
- Меньше места для передвижения в душе, особенно для наклона
- Металлические рамы и петли, используемые в угловых душевых, со временем ржавеют
- Основание из акрила или стекловолокна представляет опасность поскользнуться и упасть, особенно для пожилых людей
Вы можете частично избежать опасности споткнуться, установив душ с нулевым порогом, и риск поскользнуться, используя текстурированный поддон для душа, хотя и то, и другое обойдется вам дороже.
Рекомендации по установке углового душа
При планировании установки проверьте высоту потолка, чтобы обеспечить удобство использования (имеется в виду, что она не ниже 80 дюймов по коду).
Вам нужны двери или открытая конструкция? Отсутствие дверей снижает затраты на техническое обслуживание с обработкой рамы и дверных петель от ржавчины.
Установите на пол противоскользящий коврик, если у вас акриловая или стекловолоконная основа, чтобы предотвратить скольжение и падение. Вы хотите душ с плавающей скамейкой или сиденьем? Если это так, убедитесь, что у вас достаточно места для его размещения в вашем дизайне.
Экономит ли место угловой душ? №
Размеры углового душа реально экономят место в ванной комнате. Обычно они имеют прямоугольную форму, но некоторые из них имеют треугольную или неоугольную форму, что обеспечивает еще более компактные размеры. Эти формы идеально подходят для небольших ванных комнат, где ограничено пространство. Вы можете увидеть угловой душ нео-угол, изображенный выше.
Основные размеры, которые следует учитывать при проектировании душевой, — это ширина и глубина. Эти измерения определяют, сколько площади вы должны передвигаться.
Угловые душевые бывают с распашными или раздвижными дверями, в зависимости от площади ванной комнаты.
Сколько места мне нужно для угловой душевой кабины?
Размеры угловых душевых кабин варьируются от 23″ x 23″ до 48″ x 42″, а некоторые модели могут быть даже больше, в зависимости от доступного места.
Измерение ванной комнаты для угловой душевой кабины
Стандартной практики измерения углового душа не существует. Мы рекомендуем использовать измерительную ленту для задачи. Планируя свои измерения, придерживайтесь старого правила проводить измерения дважды, чтобы обеспечить точность.
Давайте посмотрим на правильную глубину и ширину вашего углового душа.
Какой должна быть правильная глубина угловой душевой кабины?
Глубина является одним из двух важных параметров при планировании углового душа. Средняя глубина варьируется от 17 до 20 дюймов, но у вас есть варианты для более мелких или более глубоких измерений в соответствии с пространством, которое у вас есть в ванной комнате.
Какова правильная ширина угловой душевой кабины?
Средняя ширина вашей душевой кабины может составлять от 36 до 48 дюймов. Как и в случае с измерением ширины, вы можете выбрать более короткие или более широкие модели, в зависимости от ваших требований к пространству.
Часто задаваемые вопросы о размерах углового душа
Это довольно сложное решение. У всех есть разные размеры туалетной комнаты, и мы все хотим сохранить как можно больше преимуществ большого душа, работая с размером углового душа. Давайте рассмотрим самые распространенные вопросы, которые возникают.
Каковы стандартные размеры угловой душевой кабины?
Стандартные размеры угловой душевой кабины: 36 x 36 дюймов. Размеры варьируются в зависимости от свободного места в ванной комнате. Средние размеры углового душа варьируются от 36 до 40 дюймов в ширину и от 32 до 36 дюймов в глубину.
Вы найдете большое разнообразие базовых конструкций из таких материалов, как стекловолокно и акрил, а также множество цветовых вариантов, которые подойдут к декору вашей ванной комнаты.
Большинство душевых поддонов из стекловолокна и акрила требуют установки нескользящего напольного коврика, чтобы предотвратить скольжение по мокрой поверхности, когда она становится скользкой.
Какие максимальные размеры доступны для угловой душевой кабины?
Самые большие модели угловых душевых имеют размеры 60 x 60 дюймов. Это самый большой доступный размер. Некоторые модели душевых кабин имеют глубину, ширину или глубину более 60 дюймов.
Однако найти основание из акрила или стекловолокна у поставщика непросто. Если вы выходите за пределы этих размеров, вам может понадобиться изготовитель, который изготовит основание по вашим требованиям.
Если вы не можете найти нестандартное основание, рассмотрите вариант с кафельным полом, чтобы разместить дополнительное пространство внутри душа.Для этих моделей требуются соответствующие гидроизоляционные мембраны, используемые в конструкции пола, чтобы предотвратить проникновение влаги в пол, где она может вызвать проблемы с повышением влажности и ростом плесени.
Какие наименьшие размеры доступны для угловой душевой кабины? №
Угловые душевые кабины славятся своей компактной конструкцией, что делает их идеальным выбором для небольших ванных комнат в квартирах и комплексных зданиях. Угловой душ доступен в моделях размером от 32 x 32 дюйма. Если у вас ограниченное пространство, это наименьший размер для стандартной комбинации ванны и душа.
Эти размеры легко доступны в подставках, но уменьшение размера означает, что вам придется использовать душевые плитки и мембраны или найти производителя нестандартных подставок для душа. У вас также возникнут проблемы с поиском дверей для душа, соответствующих меньшим размерам, менее 32 x 32 дюймов.
Какая самая просторная угловая душевая? №
Нео-угловой дизайн — лучший вариант компактной угловой душевой кабины. Многоугольная конструкция основания дает ванной комнате дополнительную площадь, что важно в небольших квартирах. Хотя это идеальный вариант для небольших помещений, он также является самым дорогим в установке.
Вы можете рассчитывать заплатить до 20% больше за основание и установку нео-углового душа по сравнению с квадратными или прямоугольными моделями.
Каковы стандартные размеры углового душа со скамейкой?
Стандартные размеры углового душа со скамьей составляют 36 x 60 дюймов. Вам нужна дополнительная ширина душа, чтобы добавить место для скамейки. Размеры душевой скамейки обычно составляют от 17 до 20 дюймов в высоту и столько же в глубину.
Эти размеры дают вам достаточную высоту и глубину, чтобы сидеть, не отрывая ног от земли, если вы невысокий человек. У вас есть варианты переносных деревянных или пластиковых скамеек в кафельных угловых душевых или встроенных кафельных скамеек. Некоторые скамьи встроены в основание для стационарного устройства.
Каковы стандартные размеры углового душа с сиденьем?
Угловые душевые часто имеют откидные сиденья, которые крепятся к стене и раскладываются. Эта конструкция дает вам больше места в небольших душевых, позволяя принимать душ с опущенным или поднятым сиденьем.
Обычно для душевых кабин с сиденьями требуются минимальные размеры 36 x 48 дюймов.
Какие стандартные размеры углового душа без бордюра?
Людям с ограниченными возможностями может быть полезна конструкция углового душа без бордюра, встроенного в основание (так называемый душ с нулевым порогом). Эти конструкции подходят для душевых со стандартными размерами 36 x 60 дюймов.
Каковы стандартные размеры углового поддона для душа?
Размеры душевого поддона выбираются в зависимости от стиля и размера углового душа. Большинство размеров душевых поддонов варьируются от 30 до 36 дюймов в ширину и от 16 до 245 дюймов в глубину. Высота варьируется, но влажные модели обычно достигают порога или чуть ниже его.
Каковы стандартные размеры треугольного углового душа? №
Треугольные душевые кабины — лучший вариант для компактного дизайна ванной комнаты. Тем не менее, у них обычно не так много места в стойле, чтобы передвигаться. Это идеальный выбор для квартир с небольшими узкими ванными комнатами, где душевая кабина занимает минимум места, чтобы освободить место в ванной комнате.
Как правило, они бывают шириной от 32 до 36 футов, но имеют меньшую глубину и размеры от 30 до 36 дюймов 9.0003
Основные выводы о размерах углового душа
Давайте подытожим основные моменты из обсуждения выше. Краткий обзор поможет нам вспомнить, что мы узнали:
- Угловой душ предлагает вам идеальную компактную конструкцию для реконструкции вашей ванной комнаты.
- Угловые душевые кабины — отличный выбор для установки и ремонта ванных комнат в квартирах с ограниченным пространством.
- Угловые душевые кабины бывают прямоугольной, квадратной, треугольной и неоугольной формы.
- Квадратная угловая душевая – самая популярная модель со стандартными размерами 36 x 36 дюймов.
- У вас есть возможность увеличить размер душа до 48 x 60 дюймов для самых больших моделей и до 32 x 36 дюймов для самых маленьких угловых душей.
- Если вы собираетесь использовать угловой душ с размерами больше 48 x 60 дюймов или меньше 32 x 36 дюймов, вам будет сложно получить формованное основание, и вам придется установить водонепроницаемую мембрану.
и кафельный пол. - Угловая душевая нео-уголка – самая популярная конструкция. Тем не менее, это также самый дорогой для покупки и установки.
- Угловые душевые кабины могут быть оснащены скамейками, сиденьями и бордюрами.
Когда вы думаете об одном из них, вы можете представить себе душ в бане в кемпинге, но угловой душ действительно может быть довольно элегантным, как я уверен, вы видели на изображениях, которые мы поделились здесь с вами.
Угловой душ Dimensions Made Clear
Чтобы облегчить жизнь, я рекомендую процесс исключения. Измерьте обозначенный угол для душа в ванной комнате. Убедитесь, что у вас есть доступ к водопроводу или вы можете проложить трубы туда, где они вам нужны. Затем вы можете исключить любые размеры большего размера, чем может поместиться в этом пространстве.
Тогда исключите размеры, которые вы определили, они просто будут для вас слишком малы. Вы можете часто ходить в крупные хозяйственные магазины и заходить в некоторые из них, чтобы понять, насколько большой или маленький будет достаточно удобным.
Теперь вы готовы решить, какую форму вы хотите. Квадрат проще всего представить, но помните, что существуют прямоугольник и даже круг. Нео-угловые душевые кабины выглядят потрясающе, если вы готовы отказаться от четвертого угла в пользу еще одной плоской 5-й стены.
Когда дело доходит до обсуждения размеров углового душа, нужно учитывать множество цифр, но, учитывая то, как мы все это разбили выше, я надеюсь, что вам будет легко разобраться и найти нужную информацию.
Вам также понравится:
- Как снять ограничитель потока лейки душа
- Стандартный душевой клапан высотой от пола
- Размеры занавесок для душа: стандарты, измерения и многое другое
- Стандартная душевая лейка Высота от пола
- Маленькие черные червячки в душе? Как избавиться от сливных мух
Автор:
Омар Алонсо Омар имеет более чем двадцатилетний опыт работы профессиональным разнорабочим и электриком, специализирующимся на ОВКВ, общем техническом обслуживании и ремонте, а также внутреннем и внешнем строительстве.


PM

и кафельный пол.