Стандартные и необычные размеры межкомнатных дверей
Размеры межкомнатных дверей
Каждый человек знает о необходимости наличия качественных межкомнатных дверей в квартире – они разграничивают пространство, дают человеку возможность побыть одному, создают барьер для запахов, звуков и холода. Большинство хозяев предпочитает выбирать межкомнатные двери, исходя из дизайна комнат, но стоит учитывать и другие параметры.

Параметры дверей
В магазинах представлены модели отечественных и Европейских производителей, в зависимости от места изготовления будет отличаться стандартная ширина двери. Российские компании изготавливают двери шириной от 55 до 90 см, а в Европе популярны стандартные размеры 60; 70; 80; 90 см.
От места производства будет так же зависеть высота дверей: европейский стандарт – 2100 мм, российский – 2000 мм, раньше это значение было еще меньше – 1900 мм. Среди нестандартных дверей есть модели до 2300 мм в высоту.
Ширину межкомнатных дверей выбирают, исходя из параметров дверного проема, а он зависит от назначения помещения
- В туалет и ванную комнату ведут узкие двери, шириной от 55 до 60 мм.
- Кухонные проемы имеют ширину примерно 700 мм.
- Межкомнатные двери – стандартный размер примерно 800 мм.
- Входные двери достигают ширины 900 мм.
Толщина двери будет зависеть от материала, например, раздвижные модели тонкие – 20 мм, а деревянные достигают толщины 50 мм.

Размеры по ГОСТу
Стандартные размеры подходят для большинства квартир, но параметры проемов незначительно отличаются. Чтобы изготовить идеально подходящую дверь, хозяева обращаются в столярную мастерскую, где дверное полотно сделают на заказ.
Согласно ГОСТ, изготавливают стандартные дверные полотна:
- При высоте двери 1900 мм., ее ширина составит 500–600 мм.
- Двери, высотой 2000 мм., имеют ширину 600; 700; 800; 900 мм.
Стандартные размеры являются ходовыми, подходят для всех типовых квартир, поэтому производители выпускают широкий модельный ряд таких дверей.

Габариты двустворчатых дверей
В гостиную люди часто ставят двухстворчатые двери. Часто двери делают стеклянными или украшают различными декоративными элементами. Высота в стандартной квартире составляет 2000 мм, а ширина варьируется от 1280 до 1600 см. Если разделить этот параметр надвое, то получится ширина каждой створки – от 640 до 800 мм.
Размеры коробки
Перед установкой двери необходимо поставить в проем дверную коробку для надежной фиксации полотна и обеспечения правильной работы двери. Почти всегда коробка для установки двери продается в комплекте с дверным полотном, для удобства монтажа производители доукомплектовывают двери необходимой фурнитурой: навесами, замками, наличниками, замками, порой в комплекте можно найти элементы крепежа. Готовый комплект для установки полностью исключает расхождения в размерах и гарантирует простоту монтажа, поэтому рекомендуется приобретать именно его.
Коробка для фиксации дверного полотна изготавливается из деревянного бруса стандартной ширины – от 30 до 35 мм, есть модели коробок нестандартного размера с брусом – от 15 до 40 мм толщиной. Стандартный размер всегда гарантирует правильность фиксации и долговечность двери. Нестандартные параметры выбирают, если хотят увеличить ширину дверного полотна, или если проем незначительно отличается от стандартных размеров.
Толщина коробки будет равна толщине стен или перегородок в доме. В кирпичные стены монтируют конструкции, толщиной 75 мм, в деревянные – до 100 мм. Если выбранная дверь и ее коробка узкие, то строители применяют доборные элементы для подгона размера проема под выбранную дверь.
Размеры проема
В большинстве домов размеры дверных проемов стандартны и рассчитаны под установку таких же типовых дверей. Высота будет от 1940 до 2050 мм. Ширина зависит от назначения помещения, в которое ведет дверной проем, узкие двери, шириной 630 мм в туалет и в ванну, и широкие – 1600 мм – в гостиную.
Важно правильно выполнить замеры по самой простой технологии:
- Сначала полностью демонтируется старая дверь, вместе с коровкой.
- Производится зачистка проема для удаления замазки, открывается конструкция стены.
- Производится замер параметров.
Замеры ширины и толщины делают в трех местах: в верхней части, около пола и посередине. Для достижения наибольшей точности рекомендуется выполнять замер с помощью уровня – это позволит проводить измерения параллельно земле.
При необходимости срочно замерить дверной проем, демонтируют только наличники и видят открытую стену, пригодную для замеров.
Двери со скрытой коробкой

Очень интересное решение – двери со скрытой коробкой. Этот вариант обладает преимуществами перед дверьми с наличниками:
- Скрытая коробка делает дверь малозаметной для людей.
- Благодаря отсутствию наличников экономится несколько сантиметров драгоценного пространства или появляется возможность установить дверь в неудобном месте.
- Отсутствие видимой коробки увеличивает световой проем.
- При оформлении двух комнат в отличном друг от друга стиле, такая дверь, как хамелеон, подстраивается под непохожий друг на друга интерьер разных помещений.
- Размерный ряд скрытых дверей предоставляет хозяевам широкий выбор нестандартных изделий, благодаря этому легко оформляется каждый проем в доме.
Но у такой конструкции есть ряд отрицательных качеств:
- Дверь будет скрыта от глаз лишь с одной стороны, с другой дверное полотно будет углублено в стену.
- Предусмотреть установку двери скрытого монтажа необходимо на ранних сроках строительства.
- Установка обойдется недешево, ведь потребует вмешательства квалифицированных специалистов.
Перед покупкой двери хозяева должны точно измерить все проемы в доме, поскольку нельзя прийти в магазин и купить стандартный вариант – они слишком сильно отличаются друг от друга. Многообразие моделей позволит подобрать идеальную модель для каждого дома.
remboo.ru
Двери межкомнатные размеры с коробкой стандартные
Стандартные размеры межкомнатных дверей с коробкой
При выборе межкомнатных дверей. главное, на что нужно обратить внимание – это их габариты. Ведь для того, чтобы исполнять свои функции, они должны четко встать в проем, или иначе говоря, иметь подходящие параметры по ширине, высоте и толщине. Единые установленные стандарты, которых должны придерживаться все производители, не определены. Но есть строительные нормы, исходя из которых, делаются дверные проемы. Поэтому ширина, высота и толщина двери напрямую зависит от этих показателей для дверного проема.
Размеры полотна
Опираясь на габариты дверного проема, стандартная ширина готовой двери отечественных производителей может находиться в диапазоне от 550 до 900 мм. Европейские изделия могут составлять по ширине 600, 700, 800 или 900 мм.
В многоквартирных домах, как правило, размер проема, а значит и двери, отличается в зависимости от назначения комнаты.
- Ширина 550-600 мм обычно делается для двери в туалет и ванную.
- Проем в 700 мм сооружают на входе в кухню.
- Дверями в 800 мм отделяют жилые помещения.
- Полотно шириною 900 мм часто устанавливают в качестве второй двери на входе.
Наиболее распространенная толщина современных дверей может лежать в пределах 35-40 мм. Но возможны отклонения как в одну, так и другую сторону. На него влияют виды изделий и материал, из которого они изготовлены. Так, толщина раздвижных конструкций может составлять всего 20 мм. А полотна, выполненные из дерева, могут доходить и до 50 мм.
Высота двери еще несколько десятилетий назад могла иметь два значения: 1,9 или 2 метра. Сегодня вследствие использования различных стилей и дизайнерских решений, предлагаемые производителями параметры могут достигать 2,1 и даже 2,3 метров. Стандарты по высоте у нас составляют 2 метра, а в Европе 2,1. Стоит отметить, что в последнее время проектировщики и строители все чаще опираются на зарубежные нормы.
Размеры коробки
Двери могут продаваться вместе с готовой коробкой и фурнитурой или без нее. Она представляет собой П-образную конструкцию и монтируется по периметру проема, помогая фиксировать полотно фурнитурой. Стандартные размеры дверных коробов для межкомнатных дверей будут отличаться друг от друга, и зависеть от величины дверного полотна. Поэтому лучше покупать дверь в сборе с уже готовой коробкой, фурнитурой и наличниками.
Изготавливается дверная коробка из брусков, которые могут отличаться по параметрам. Их ширина колеблется между 15 и 40 мм, но оптимальными считаются значения 30-35 мм. При их соблюдении обеспечивается надежность всей конструкции и длительный срок эксплуатации.
Толщина короба должна соответствовать толщине стены. Это значение важно, потому что оно не должно превышать ширину проема, в который будет производиться установка. Для кирпичных стен стандартная толщина составляет 75 мм, а для деревянных – 100. Если конструкция более узкая, то нужно будет использовать специальные доборные элементы. А короб, по размерам больший чем стена, аккуратно и надежно закрепить не удастся.
При сборе коробки вручную, для определения размера вертикальных стоек, учитывается высота полотна и толщина горизонтальной планки, монтажный зазор и величина вентиляционной щели или порога. Величина горизонтальной части определяется исходя из ширины двери.
Размеры проемов
Зная стандартные размеры межкомнатных дверей с коробкой и фурнитурой, можно без проблем определить ширину проема при строительстве стен и сооружении перегородок. Для этого к ширине полотна добавляется двойная ширина дверной коробки межкомнатной двери и величина монтажного зазора с двух сторон. Он обычно составляет 15 мм. Например, 800+30*2+15*2=890 мм.
Высота высчитывается подобным образом. Для двери без порога она составит 2000+30+15+5=2050, где 5 – это величина обязательного зазора внизу между полотном и полом для воздухообмена. При необходимости он может быть увеличен до 10 мм. А если дом снабжается сжиженным газом, то зазор должен быть не менее 15-20 мм для обеспечения хорошей вентиляции. Если у вашей двери будет порожек, то высоту проема определяют, добавив высоту порога к размеру полотна, ширине коробки и монтажному шву.
И наоборот, зная стандарты легко вычислить ширину дверного полотна для уже имеющихся проемов. Например, для проема 900 мм нужна дверь 800 мм. Рассчитывается это так: 900-15*2-30*2=810 мм. А излишние 10 мм будут успешно скрыты под наличниками.
Вычисляя размеры, желательно прибавлять величину зазора, который рекомендовано оставлять между коробом и полотном двери. Но поскольку он составляет всего 1-2 мм, то при грубых расчетах его можно не учитывать.
Двустворчатые двери
Приведенные выше значения применимы к одностворчатым конструкциям. Двустворчатые межкомнатные двери часто устанавливаются при входе в гостиную. Их стандартная ширина варьируется в диапазоне от 1 до 1,4 метра. При этом, двустворчатые виды дверей могут иметь разные или одинаковые размеры отдельных половинок. Например, изделие шириной 1400 мм может состоять из двух частей по 700 мм или одной 600, а второй 800 мм.
Двери со скрытой коробкой
Межкомнатные двери со скрытой коробкой имеют ряд преимуществ перед обычными. Но и цена таких конструкций на порядок выше. То же касается и требований к размерам готового проема.
Габариты проема должны строго соответствовать требованиям производителя двери. Стена должна быть ровной по вертикали. Допускается отклонение всего 1 мм на метр высоты. Толщина стен не должна превышать 80 мм. Оптимальное значение ширины монтажного зазора составляет 17-20 мм плюс/минус 10 мм. В некоторых моделях изделий со скрытой коробкой отклонения не допускаются вообще. Зазор под полотном должен быть в идеале равен 4.
Двери на заказ
Разнообразие габаритов межкомнатных дверей с коробкой и фурнитурой, предлагаемых производителями, очень велико. Но, несмотря на это, часто встречаются ситуации, когда ни один из выпускаемых размеров не подходит под уже существующий проем. В этом случае можно либо его скорректировать так, чтобы ширина и высота уменьшились или увеличились до нужных, либо заказать двери нестандартных параметров.
Изготавливать двери по индивидуальному заказу обходится значительно дороже, чем покупать уже готовые изделия. Но такой шаг позволит воплотить нестандартные идеи.
Стандартны размеры входных и дверных коробок
Выполняя ремонт, следует не забывать о смене входных и межкомнатных дверей, если они уже отслужили свой срок или утратили презентабельный вид. Важным критерием, влияющими на эксплуатационные характеристики дверей являются правильно проведенные замеры дверных проемов. Чем более точно будут установлены размеры, тем дольше прослужит дверь, будь она входной или межкомнатной.
Габариты входных дверей
К замерам нужно подходить правильно, вначале стоит разобраться, из каких элементов состоит:
- Полотно. Это сплошной или состоящий из нескольких частей элемент, который загромождает собой дверной проем. На нем устанавливается специальная фурнитура для удобства открывания и установки.
На фото- дверное полотно
На фото- дверной короб
На фото- дверные наличники
На фото- дверные доборы
Перед тем как купить входную, нужно не только провести замеры габаритов проема, но и установить с помощью вычислений точные размеры покупного изделия.
Правильное проведение замеров
Замерять нужно ширину, глубину и высоту. Проверять их соответствие стандартным размерам, принятым ГОСТом.
Необходимо установить расстояние самой узкой части дверного проема, вымеряя его от одной стены до второй.
На фото — ширина дверного размера
Обычно стена сужается в месте, где расположена дверь, но если она одинакова по всему проема, то размер можно мерить в любом месте. Если еще не демонтирована старая дверь, а нужно уже заказывать новую, то расстояние замеряется от середины наличников.
Высота проема
Для установки этого размера нужно найти самую низкую точку проема и от нее мерить расстояние до верхней его части. При этом замерять следует в месте сужения, если такового не наблюдается, то выполнять замеры можно по всему периметру проема.
При наличии старого экземпляра просто измеряют ее полотно, или расстояние от средней части верхнего наличника до пола.
На фото — высота дверного проёма
Стандартная высота двери равняется 200 см, но в иногда допускается больший ее размер. Некоторые производители могут выпускать изделия с размерами в пределах от 2,1 и до 2,3 м.
Глубина проема
Его замер нужно проводить в трех точках, расположенных сверху, снизу и посередине. Это необходимо чтобы установить самое широкое место.
В случае, если в проеме до сих пор имеется старая дверь, то необходимо замерить параметра коробки и расстояние, на которое выступает от нее стена.
На фото — глубина дверного проёма
Стандартные размеры выполняются в пределах 60, 70 и 80 мм.
Аналог расчета проема
При выборе коробки нужно учесть зазоры: с верхней стороны и по ширине она должна превышать полученный размер на 3 мм, нижняя ее часть увеличена на 10 мм.
При установке короба следует учесть зазоры по периметру короба между ним и стеной, они составляют 1-1,5 мм, поэтому входной проем принимается большим на 2 мм.
Высота двери определяется исходя из того, что стандартный ее размер равняется 200 см, к ней нужно добавить размер верхнего бруса короба, а это 25 мм и зазоры: верхний – 3 мм, а нижний – 10 мм.
Для балконных проемов зависят от типа здания. Для малогабаритных квартир его ширина составляет – 68 см. Можно выполнить ширину меньшим габаритом, но она должна быть не меньше 61 см, иначе сложно будет проходить на балкон.
На видео- стандартные размеры дверной коробки :
Размеры межкомнатных дверей
Их элементы выполняются из досок или бруса сосны, а сверху она декорируется шпоном деревьев более ценных пород.
Толщина коробки
В стандартных квартирах, построенных в советское время, этот размер составляет 7,5 мм, поэтому под них выбирается коробка с размером 10,8 см. Если толщина межкомнатных перегородок равняется 10 см, то нужно устанавливать коробку 12 см. Это стандартные размеры, которые приняты отечественными ГОСТами. В межкомнатных дверях зарубежных изготовителей диапазон толщины двери более широкий и идет от 8 до 20,5 см.
Если толщина стены получается больше выбранного короба, то его можно дорастить, применив доборные элементы или использовать компенсаторную раму, которая может быть телескопической, расширительной или выступать в виде трансформера.
На фото- толщина коробки
При проведении замеров межкомнатных дверей толщина проема может быть разной, это вызвано особенностью стен, они могут быть несущими или установленными в качестве перегородок.
Она регламентирован и может составлять от 190 до 200 см. Эти размеры удовлетворят габаритам проема, находящихся в пределах от 194 до 203 см или 204-211 см.
При вычислении высоты будущей двери нужно учесть порог. Он может составлять от 1 до 2 см, и в итоге может получиться – 208 см, а без него 206 см. Это идеальная высота, которая отвечает стандартным размерам многим дверным коробкам.
Ширина дверной конструкции
Она замеряется от одной до второй стены. Между этим расстоянием должно поместиться полотно и два боковых элемента короба. Стандартной величиной принята ширина в 800 мм. Практически все производители придерживаются именно этого габарита.
Размеры доборов
Они могут быть не менее важными, чем сам короб. За счет них можно устранить полый участок дверного проема.
Они бывают двух типов:
- Планки, имеющие защитную кромку. Они фиксируются в проеме на гвозди или клеевую основу. Их ширина может изменяться путем подпила, а высота составляет 2 метра.
- Телескопические доборы. Подходят для решения любого недостатка по ширине. Их установка производится за счет специального замка, который представляет собой «шип-паз». Паз, выполнен в коробе, а шип на доборе. Их ширина регулируется со стороны наличника.
Целесообразность применения доборов может быть установлена после проведения замеров ширины дверного проема.
На видео- размеры доборов:
Габариты двухстворчатых экземпляров
Комфортными для использования являются размеры по ширине дверей составляющие 120-180 см. Если проем не позволяет их выдержать, тогда полотна дверей будут разными по ширине, одна створка меньшего размера фиксируется на своем месте, а вторая с большими габаритами используется как обычная дверь. Последняя имеет стандартные размеры, а ее меньший аналог идет габаритами равными 1/3 от нее.
На фото- двухстворчатые двери
Высота таких дверей может составлять от 2 до 2,5 м. Глубина двухстворчатых дверей по стандарту равняется от 7,5 до 11 см.
Установить параметры дверных проемов несложно, если знать в каких местах их требуется измерить. Корректировка полученных параметров производится с учетом всех зазоров. Если будет допущена ошибка в случае установки межкомнатных дверей, то ее можно исправить подпилив короб или установив доборные элементы, с входной дверью дело обстоит не так просто. В случае большого просвета между ними и стеной может понадобиться установка контркоробки.
Как правильно вычислить размер межкомнатных дверей с коробкой, стандарт ГОСТ
При ремонте необходимо уделить должное внимание установке межкомнатных дверей. Безусловно, есть определённые стандартные габариты, но чтобы не пришлось разрушать стену или менять уже выбранное полотно, необходимо изучить все нюансы. В этом деле важно правильно вычислить размеры проёма, знать стандарт и особенности разных типов конструкций. На современном рынке можно встретить продукцию отечественную и зарубежную, важно помнить, что ГОСТы отличаются.

ГОСТ показатели размера полотна
Параметры дверного полотна необходимо учитывать при вычислении проёма. Двери и коробка имеют утверждённые государством стандартные размеры.
Таблица ГОСТ межкомнатных полотен:
Вид помещенияШирина смВысота смГлубина проема смкухня702007Санузел, ванна55-60190-2005-7комната802007-20Гостиная (двустворчатая дверь120 (два полотна)2007-20
Если ранее проводились ремонтные работы, стены выравнивались или демонтировались, глубина может не соответствовать вышеизложенным данным.
Рынок предлагает большой выбор дверей и комплектующих от отечественных и зарубежных производителей. Чаще всего продукция имеет высоту 200 см, ширину 60, 70, 80 см (реже 190 на 60, 70,80 см). Толщина дверной коробки начинается от 15 мм и до 45мм. Зная стандарты и размеры дверного проёма можно выбрать оптимальный вариант. Бывают ситуации, когда игнорирование параметров заканчивается расширением проёма или возвращением только что приобретённого полотна.
При покупке полотна зарубежной фирмы необходимо особо внимательно изучить размеры ведь их стандарт несколько отличается.

Формула замера дверного проема
Если необходимо сделать проём, а с дверью вопрос еще не решён, необходимо заранее учесть такие моменты:
- Габариты полотна: высота и ширина,толщина.
- Габариты дверной коробки: ширина и толщина.
- Ширина наличников.
Высота (В дв) – 200 см
Ширина (Ш дв) –70 см
Толщина (Т к) – 3 см
Блок двери (Бд) – 2 см
Формула вычислений ширины дверного проёма:

Параметры коробки и дверного полотна
Габариты коробки межкомнатных дверей должны соответствовать размерам полотна, учитывая зазоры.
Рама должна быть пропорциональна толщине стены. Если остаётся свободное место используют доборы, которые перекрывают просветы.
Добор – это стойки по периметру коробки для расширения дверного короба.
Главным элементом всё же остаются сами двери. Стандарт определен опираясь на такие параметры:
- Высота полотна межкомнатных дверей: 190-200 см. Иногда необходим индивидуальный подход. При расчётах необходимо учесть зазор между основанием и полом, чтобы полотно свободно открывалось и закрывалось.
- Ширина зависит от комнаты.
- Толщина – разная (зависит от требований производителя), стандарт – 4,5 .
Особенности двустворчатых дверей
Для гостиной удачным решением в дизайне интерьера будет установка двустворчатых межкомнатных дверей. Внимание, при вычислении размеров величины увеличить в два раза.
Что касается ГОСТа: стандартом является ширина от120 до 150 см. Этот диапазон позволяет получить удобную полноценную и функциональную конструкцию. Толщина – 4,5 см.
Подробно про замер и установку:
Если проём не соответствует заданной величине и не поддаётся расширению необходимо следующее:
- Одна створка находится в зафиксированном положении и используется по необходимости.
- Ширина этой сворки:1/2 или 1/3 от ширины стандартной межкомнатной двери.
- Вторая — полноценная дверь.
Оба варианта имеют большой плюс в функциональности: улучшают проходимость: легко вносить, выносить мебель.
Что касается высоты: если проём больше заданных стандартов (размер: 200-210 см) вверху крепится специальная неподвижная планка.

Максимальные размеры полотна
Самые широкие двери стандарт – 90 см. Только ограниченное количество производителей выпускают продукцию таких габаритов. В новостроях такие параметры межкомнатной дверной коробки не используют, потому, как конструкция смотрится нелепо или громоздко. Всё же такие размеры встречаются:
Самый ходовой материал для межкомнатных габаритных (и не только) полотен: МДФ.
Источники: http://dveridoc.ru/vybor/razmer-mezhkomnatnyx-dverej-s-korobkoj.html, http://fasdoma.ru/vxodnaya-gruppa/dveri/korobka-dvernaya-standartnye-razmery.html, http://golddveri.ru/mezhkomnatnye-dveri/razmer-mezhkomnatnyx-dverej-s-korobkoj-standart.html
gorodverey.ru
Стандартные размеры межкомнатных дверей с коробкой
При выборе межкомнатной двери важно правильно определить размеры. Комплект из распашного полотна и короба должен соответствовать проему, иначе возникнут трудности при монтаже, а слишком большая разница в габаритах сделает установку двери невозможной.
Рассмотрим стандартные размеры коробок и полотен межкомнатных дверей, особенности замера проемов и допустимые расхождения.
Кто соблюдает стандартные размеры межкомнатных дверей с коробкой
Готовый дверной комплект стоит на 30–50% дешевле изделий на заказ. Однако такие двери не регламентированы по габаритам. Например, кухонная модель может не поместиться в проем.
Если у вас типовая квартира, выбирайте двери с коробкой российского производства: они изготавливаются под стандартные размеры дверных проемов, указанные в строительных ГОСТах и СНиПах. Изделия подходят к проемам хрущевок и блочных домов, а также большинства новостроек. Габариты европейских дверей, как правило, превышают российские стандарты — придется увеличивать проемы, тратить время и деньги на строительные работы и последующую отделку стен.
В кустарных мастерских нет мощностей для поточного производства типовых изделий и контроля качества, поэтому отклонения от стандартных габаритов могут быть существенными. Дверные комплекты лучше покупать у крупных заводов.
Типовые размеры коробок межкомнатных дверей
Рационально покупать дверь в полной комплектации, которая включает полотно с фурнитурой, коробку и наличники.
В качественных готовых комплектах полотно и коробка идеально соответствуют по размерам. Между рамой и полотном предусмотрен зазор 2–3 мм во всех точках периметра. За счет этого створка движется беспрепятственно, а конструкция сохраняет хорошую звукоизоляцию.
Как правило, производители указывают габариты полотна межкомнатной двери — размеры с коробкой будут больше примерно на 3 см по всему периметру, что нужно учитывать при выборе. Если высота створки 2000 мм (российский стандарт), то высота с коробкой будет 2060 мм с порогом и 2040 мм без порога.
Стандартная ширина межкомнатных дверей (по полотну) зависит от назначения помещения:
- жилые комнаты – 800 мм;
- кухня – 700 мм;
- санузел – 600 мм.
Это параметры для однопольных дверей (с одной створкой). В квартирах с двумя и более комнат проем в гостиную может быть широким. В таком случае придется установить полуторную или двупольную модель с двумя створками.
Стандартные размеры дверных проемов
В идеале проем должен превышать размеры короба на 10–15 мм. Свободное расстояние (монтажный зазор) заполняется пеной и легко скрывается под декоративными наличниками. Исходя из стандартных габаритов дверных полотен, высота проема должна составлять 207 см, а ширина также варьируется по помещениям:
- жилые комнаты – 88–89 см;
- кухня – 78–79 см;
- санузел – 68–69 см.
Стандартные размеры полуторных и двустворчатых дверей
Широкие проемы имеют повышенную пропускную способность, через них легко проносить крупногабаритную мебель. Они часто встречаются в гостиных многокомнатных квартир. Для их обрамления предусмотрены специальные двупольные двери.
Стандартная общая ширина двух створок — 1200 мм, высота полотна — 2000 мм. Наиболее красивы и функциональны двупольные модели с одинаковыми створками шириной по 600 мм.
Нестандартные двери
В частных коттеджах, «сталинках», квартирах с индивидуальной планировкой проемы чаще всего нестандартные — в них приходится устанавливать более дорогие нестандартные двери.
Можно заказать распашную модель точно под габариты проема или выбрать решение, которое не требует перестройки прохода. Например, раздвижные двери «купе» и складные двери-книжки устанавливаются без коробки — створки движутся по роликовым направляющим.
С заказом нестандартной двери не стоит спешить. К широкому кухонному проему может подойти стандартная дверь для жилой комнаты с полотном 800 мм, а к проходу в санузел — готовый комплект для типовой кухни со створкой 700 мм.
Правила замера проемов
Чтобы выбрать готовый дверной комплект с оптимальной высотой и шириной, сделайте замеры проема минимум в трех точках по вертикали и горизонтали. За основу возьмите минимальные значения. Далее по формуле можно рассчитать габариты полотна:
- ширина проема — ширина проема минус удвоенные толщины блока (3 см) и монтажного зазора (1,5 см). Пример: 80 – 3х2 – 1,5х2 = 71 см;
- высота створки — высота проема за вычетом толщины коробки (3 см), монтажного зазора сверху (1,5 см) и воздухообменного зазора у пола (0,5 см). Пример: 207 – 3 – 1,5 – 0,5 = 202 см. Если в проеме предполагается порог, нужно вычесть двойную толщину рамы, то есть 6 см.
В этом примере нам необходимо полотно размером 202 х 71 см. Подойдет стандарт 2000 х 700 мм, лишние миллиметры скроются под наличниками.
Что делать, если проем шире двери
Если купленная дверь незначительно уже проема (на 2–3 см с каждой стороны), можно нарастить стены с помощью гипсокартонных панелей. При больших расхождениях понадобится перестройка проема или замена двери. Избежать трудоемких работ помогут декоративные вставки — антресоль и боковые панели, однако это довольно затратный вариант.
Расхождения могут быть между шириной элементов коробки и толщиной стен. Стандартные перегородки из дерева имеют толщину 10 см, из кирпича — 7,5 см. Если коробка шире, надежно зафиксировать конструкцию не получится, а наличники будут сильно выступать над плоскостью стен и испортят эстетику интерьера. Выход один — обрезать элементы рамы.
Если коробка уже стен, ее можно расширить с помощью доборов. Чтобы самостоятельно не встраивать планки, купите дверной комплект с телескопическим погонажем. Он представляет собой раздвижные доборы, которые легко регулируются под толщину стен. Доборы и наличники стыкуются по принципу «шип–паз», поэтому для фиксации блока не нужны гвозди и саморезы.
Таким образом, габариты дверей нужно выбирать тщательно. Воспользуйтесь услугами профессионального замерщика, чтобы подобрать размеры дверных коробок межкомнатных дверей точно под проем. Если мастер ошибется, фирма-производитель самостоятельно заберет неподходящую и привезет другую дверь.
Завод ДеревоизделийМосква, 2-ой Южнопортовый проезд, 26А
+7 (495) 958-89-44www.zdi-m.ru
стандартные размеры, ширина, высота и глубина короба в разрезе

Хозяину дома рано или поздно приходится решать вопрос по замене дверей. Старое дверное полотно может быть сломано, устареть по дизайну, не нравиться своим внешним видом. Иногда приходится увеличивать или уменьшить дверной проем, для этого необходимо знать, как правильно измеряется толщина дверной коробки. О вопросах, связанных с самостоятельной установкой или сменой дверей, поговорим в нашей статье.


Размеры дверей
Работа эта не очень сложная, с ней может справиться и дилетант, который немного умеет владеть инструментом. Очень важно все делать последовательно и неукоснительно придерживаться технологии.
На отечественном рынке существуют стандартные размеры дверного полотна. Это обусловлено тем, что оборудование, на котором изготавливаются двери, имеет стандартные форматы ширины: 60 см, 70 см, 80 см, 90 см.

Высота при этом остается постоянной – два метра. Нередко требуются нестандартные двери, высота которых может быть и 3 метра, а ширина – один метр.
Если же заказчик требует иных размеров, то цена будет выше по такой причине:
- Перенастройка оборудования.
- Лишние временные затраты.
- Изготовление изделия по индивидуальному заказу.
Некоторые клиенты заказывают двери раздвижными, двойными. Производство таких изделий стоит заметно дороже. Часто при этом используются дорогие нестандартные материалы, например, красное дерево.


Прежде чем делать какой-либо заказ, рекомендуется:
- Хорошо все просчитать.
- Определиться с материалом.
- Снять все размеры.
Самый разумный вариант: вызвать мастера, который будет изготавливать изделие, чтобы он лично осмотрел «фронт» будущей работы. Профессиональный человек сможет все организационные работы выполнить быстрее и четче. Также специалист даст квалифицированный совет по самому дверному блоку и его дальнейшей эксплуатации. Если твердо возникло желание устанавливать дверь самостоятельно, придется немного изучить сам процесс замеров и монтажа, чтобы конечный результат не разочаровал.

Вымеряя проем под дверь, можно выбрать совершенно новое место ее расположения, которое может быть более удобным. Оставляйте всегда сантиметров 20-30 отступа от стены до двери, чтобы там можно было установить выключатель, а также дверь имела возможность открываться больше чем на угол в девяносто градусов.
Обязательно следует проверить, есть ли возможность прорезать новый дверной проем в конкретной стене.
Если здание старое, то лишний проем может спровоцировать разрушение стены.

Проведение замеров
Дверная коробка – это конструкция П-образной или О-образной формы. Последний вариант встречается в случае, если предусмотрен порог. Элемент крепится в проеме, на него навешивается дверное полотно.
Профиль дверной коробки имеет не прямоугольную конструкцию, обычно выступ в 0.5-1 см – это тот выступ, при помощи которого после полной установки будет прихлопываться дверь, из-за чего она будет открываться в одну (нужную) сторону. На этот самый выступ при некоторых сборках крепится резиновая шумоизоляция, которая также не дает полотну получать повреждения при использовании и дверь захлопывается мягко и плавно. Но также этот выступ немного скрадывает пространство проема, и по итогу вы получаете не 60, а 58 см ширины. Этот момент стоит учитывать, когда вы планируете занос-вынос мебели или предметов интерьера через установленную дверь.


Также стоит заметить, что в ходе ремонта дверь устанавливается в последнюю очередь. Обычно сначала делаются потолок, стены, пол, только после всего приглашается мастер по установке дверей и наличников, если они необходимы. Безусловно, иногда потолок можно оставить на окончание ремонтных работ, но пол со стенами – это то, на что будет крепиться будущая дверь и посему стоит позаботиться об их отделке заранее. Для этого необходимо чтобы были правильно посчитаны ширина, высота, глубина проема под габариты новой двери.

Как правильно снять эти размеры, рассмотрим на примере дверного полотна габаритами 2000 на 60 см:
- При высоте 200 см нужно прибавить 3-4 см (толщина доски МДФ, ДСП или дерева, которую вы собираетесь установить). Добавить 3-4 см (проем между доской и стеной для хорошей фиксации монтажной пены и деревянных колышков), итак, 200+4+4= 208 см (мастера советуют прибавлять не более 10 см, 6-8 – идеально).
- При ширине в 60 сантиметров проделываем то же самое – 60+4+4=68 см или 60+3+3=66 можно взять среднее значение – 67 см (не больше 10 см для надежной фиксации).

Зазор в 10 см стоит оставлять только в случае, если вы не уверены в габаритах будущей двери и собираетесь поменять ее со временем на иную. Так будет легче увеличить проем при последующих работах через определенное время.
Отдельно внимание рекомендуется уделить доскам МДФ или ДСП, ширина их обычно до 5 см. Какую из них лучше поставить, рекомендуется посоветоваться с мастером.
Шпонированые двери имеют больший размер коробки за счет своего верхнего покрытия.

При формировании дверного проема на этапе ремонта не следует упускать из виду напольное покрытие. Некоторые подложки под ламинат имеют ширину более одного сантиметра или при заливке пола может уйти 2-5 см, даже обычный линолеум забирает от одного сантиметра. Это необходимо учитывать, чтобы потом не получилось классической ошибки начинающих мастеров, когда подготовленная высота в 2.08 м превращается в 2.01 м. Часто приходится еще раз отрезать кусок верха проема для оптимальной установки двери. Если сделать правильно все подготовительные работы, то поставить новую дверь будет несложно.

Стандартная толщина дверного короба межкомнатной двери составляет 3.5 сантиметра. Сегодня все чаще встречается производство коробов нестандартных размеров (в быту они называются облегченными). Применение их обусловлено необходимостью установки полотна немного шире по размеру.

При определении толщины дверного проема необходимо учитывать следующие моменты:
- В стандартных домах до штукатурки стен обычно это – 7-10 см, что позволяет иметь шумоизоляцию между комнатами на невысоком уровне. Штукатурка обычно забирает 1-5 см, это, безусловно, делает звук более тихим при прохождении через стену.
- Ну а если вы решили устанавливать профиль со стекловатой, тогда смело можно прибавлять все 10-15 см в доборную доску при заказе коробки. Такими досками дополняют проем, если стандартного количества (7-10 см) не хватает до полного перекрытия.

Советы по выбору
Доборные доски
Доборные доски (планки) существуют двух типов – телескопические и обычные. Обычная доборная планка – просто деревянная доска, с обеих сторон обрезанная (с одной стороны упирается в короб, с другой – с наличником, если смотреть на двери в разрезе). Телескопическая – это короб со специальными пазами внутри для установки доборов или наличников. Телескопическая является наиболее удобным и долговечным вариантом, потому что крепеж будет меньше подвергаться механическому воздействию при установке и, как следствие, прослужит дольше обыкновенных доборных планок.

Фурнитура
Фурнитура для дверей на сегодняшнем рынке – достаточно популярный и разнообразный по стилю и форме продукт. Лучшие модели сейчас делаются в Италии, Франции и Испании, но отечественное производство в последнее время практически не уступает европейским аналогам (разве что в цене).
При выборе фурнитуры рекомендуется обращать внимание на материал, из которого она изготовлена, а также разные «незначительные» мелочи, которые говорят о добросовестности производителя.
Салоны дверей обычно работают долгое время с одним и тем же поставщиком, за качество которого они несут ответственность. Всегда можно сделать возврат или поменять приобретенную продукцию и снова выбрать петли, замки, ручки самостоятельно. Если нет возможности установить фурнитуру, это могут сделать мастера по вызову.

Монтаж блока
Монтаж блока дверей (полотно + коробка) не всегда проводится специалистами именно на пену для монтажа, но любая из методик подразумевает под собой использование таковой. Существуют различные техники по типу дополнительных креплений, которые применяются при установке. В основном применяют распорки или колышки из дерева, они вставляются в полость между проемом и коробкой. При помощи таких элементов еще и выравнивается блок в проеме по монтажному уровню: каждый колышек нужно вбивать плотно таким образом, чтобы коробка не получалась деформированной, а весь блок при этом крепко держался в проеме.

Когда новый дверной проем достаточно плотно закреплен деревянными кольями, с помощью . Очень важно применять горизонтально расположенные колья внутри пространства от короба до стены, чтобы после расширения пена не наносила коробу видимых изменений в структуре. Рекомендуется следить, чтобы не было перекосов, двери в разрезе должны оставаться в пределах заданных размеров. Все это будет залогом того, что дверь прослужит долгие годы.
После нанесения монтажной пены желательно некоторое время не пользоваться дверью, а оставить ее в закрытом состоянии на сутки (до полного застывания пены, во избежание деформации короба).

Примеры и варианты
Дверное полотно стоит выбирать, отталкиваясь от наполненности светом помещения, где будет установлена новая дверь. Возможно устанавливать даже полностью стеклянные, матовые или двери с пескоструйным полотном, если это позволяет предназначение помещения за дверью. Через такие двери будет хорошо проникать солнечный дневной свет, что позволит экономить на электричестве и к тому же дневное освещение значительно более благоприятно воспринимается человеческим глазом.

Это, конечно, стоит учитывать в случае, если дверь своим полотном полностью перекроет попадание естественного освещения из окон напротив. Обратите внимание на варианты дверных полотен с элементами просветов в виде стекол.
Наиболее популярный размер дверной коробки среди опытных мастеров ремонта – 2 метра на 70 сантиметров. Такие двери будут наиболее удобны для перемещения через них мебели и предметов интерьера.

Двери МДФ по своей экологичности и практичности во много раз превосходят аналоги из ДСП. Хотя по своему изготовлению они очень схожи, мелкодисперсная фракция более устойчива к влаге, механическим воздействиям, чем древесно-стружечная плита. Разница в цене немного отличается, но человек, устанавливающий двери постоянно и имеющий опыт в эксплуатации, без промедления посоветует выбрать материал МДФ по ряду отличных качеств.

Посмотрев огромное количество видеоинструкций в интернете, можно самостоятельно установить весь дверной блок, не прибегая к помощи специалистов. Конечно, в первый раз это займет немного больше времени, но оно того стоит не только с точки зрения экономии средств, но и в плане набора опыта путем личных проб и ошибок.
Осознание того, что хозяин помещения лично своими руками:
- снимал скрупулезно размеры дверной коробки;
- обрабатывал дверной проем;
- устанавливал дверную коробку и фурнитуру;
- правильно оформлял полотно наличниками, не может не вызывать массу положительных эмоций.
О том, как установить межкомнатные двери, смотрите в следующем видео.
stroy-podskazka.ru
стандарты для габаритов, каким должны быть ширина и высота, какие бывают

Стандартные размеры межкомнатных дверей предполагают соблюдение строгих параметров длины и ширины конструкции. Это важно в процессе монтажа и дальнейшего использования дверных блоков. Расчет габаритов межкомнатной двери проводится вместе с опытными мастерами, применяющими для замеров специальное оборудование.

Какие бывают?
Как правило, речь идет о параметрах 200х80 см. Эти размеры позволяют устанавливать двери различных конструкций. Толщина является важным критерием, определяющим выбор. Можно выбрать модели с высокой шумоизоляцией. Это немаловажно для больших семей с маленькими детьми и пожилыми людьми. Установка межкомнатных блоков – процесс, требующий профессионального подхода.
В зависимости от результатов монтажа конструкции можно говорить об уровне комфорта проживания и эстетической привлекательности жилья. При этом важно следовать определенному алгоритму действий. Установка межкомнатных дверей производится на этапе проведения отделочных работ. Стандартные размеры дверных проемов предполагают фиксированные параметры коробки, ширину и высоту конструкции.
Эксперты рекомендуют выбирать конструкции с высотой двери в пределах 200 см и шириной до 80 см от проверенных производителей, зарекомендовавших себя на отечественном и зарубежном рынке. Если не рассчитать параметры, коробка просто не поместится в проем и это повлечет дополнительные затраты.

Заказ нестандартной двери создаст дополнительные трудности с монтажом конструкции. Установка наличников позволит придать дверным проемам привлекательный внешний вид и дополнить дизайн интерьера.
Установка межкомнатной двери с добором предполагает ориентацию на стандарты. Это относится к измерению высоты и толщины, выбору модели, комплектующих. Высокая функциональность и безопасность позволяют использовать эти конструкции в частном секторе и офисах. Эстетическая привлекательность достигается за счет грамотно проведенного монтажа. Опытные специалисты установят конструкцию и предоставят консультации по вопросам ее эффективного применения. Это позволит сохранить технические характеристики и внешний вид двери в первозданной форме как можно дольше.

Схемы
Выбор межкомнатных дверей должен производиться в строгом соответствии с размерами проема, формой и параметрами коробки, модификацией полотна. Параметры коробки должны соответствовать габаритам дверного полотна. Технологические зазоры устраняются за счет специальных материалов. Доборы компенсируют образовавшееся свободное пространство.
Двустворчатые двери – стильная конструкция, эффектно дополняющая любой дизайн интерьера. При установке одна створка закрепляется неподвижно, ее ширина – около трети от ширины другой. Две одинаковые створки монтируют в том случае, если габариты квартиры позволяют. Такая дверь позволяет получить оригинальный внешний вид и расширить полезное пространство комнаты.
Стандартная высота комнатных дверей – 200-210 см. При слишком высоком дверном проеме используют специальную вставку для облегчения установки и эксплуатации полотен. Такие двустворчатые двери украшают общественные палаты и государственные учреждения.

Полуторные и двупольные конструкции представляют собой оригинальные решения в области дизайна. С помощью мастерства специалистов можно добиться формы любой сложности. Крепление полотна при этом должно выдерживать сверхнагрузки, материал должен быть ударопрочным, влаго- и теплоустойчивым. Раздвижные конструкции (купейные модели, «гармошки», «книжки») – отличный вариант для компактных комнат, требующих экономного подхода к использованию пространства:
- Нестандартные формы довольно часто используются при обустройстве помещений, выполняемых по индивидуальным проектам. Они отличаются:
- высотой, при уменьшении которой происходит визуальное сужение пространства;
- особой прочностью;
- спецификой установки.

Размеры коробки выбираются в соответствии с параметрами межкомнатного полотна. При этом важно грамотно определить соотношение параметров конструкции: длина и ширина двери и размеры проема должны совпадать, в противном случае возникнет необходимость «подгона» под требуемые параметры.
Зазор между стеновой поверхностью и луткой не закрывают, это важно для правильной установки конструкции: всегда должны быть резервные сантиметры в случае неправильно выполненных замеров. Дверь должна быть меньше рамы по габаритам, что устранит вероятность затирания.
Распашные двери практически всегда вписываются в любой интерьер, но их монтаж должен производиться в рамках ГОСТ и СНиП, отвечать предпочтениям жильцов.

Стандарты разных стран
Эффектная дверь родом из Италии часто относятся к изделиям premium класса. Итальянские двери пользуются большим спросом на рынке, сочетая высокое качество изготовления с изысканным дизайном.
Европейские компании предлагают изделия из массива натурального дерева, китайские производители – модели из шпона или МДФ. Эффектная поверхность дополняется филенками и стильными штапиками. Полотна из специально обработанной древесины обеспечивают высокую эффективность использования дверей в бытовых условиях. Их можно устанавливать в помещениях с повышенным уровнем влажности, к примеру, в кухнях и ванных комнатах.
Известные производители работают в перспективных направлениях, предоставляя возможность приобрести модели стандартных и нестандартных размеров.
Эксклюзивные варианты оригинальны и эффектны, они отвечают высоким требованиям современного дизайна.

Как правильно измерить?
Замене дверного блока предшествует проведение замеров проема. После этого заказывается модель, соответствующая полученным показателям. Производить замеры необходимо с учетом:
- расстояния между нижним уровнем и верхним;
- толщины стеновых конструкций;
- уклона при перекосах.

Замеры производятся с использованием рулетки по центральной зоне и верхнему уровню. Замер параметров проводится, как правило, по внутренней части проема. Показатели с разных сторон могут различаться. Это следует учитывать при монтаже.
Ширина коробки должна быть объемнее полотна для обеспечения правильности установки. Зазоры должны обеспечивать свободное движение двери при открывании и закрывании. Короб выполняет важную функцию – он перекрывает проем.
Ширина коробки замеряется при помощи рулетки. Диагональ замеряется посредством линейки. С ее помощью фиксируются параметры проема, сопоставляются габариты верхних и нижних углов.
Отсутствие отклонений свидетельствует о грамотно проведенных работах по замерам.

Как подобрать?
Размеры стен должны соответствовать ширине и длине дверной коробки, в противном случае конструкция будет деформирована. Если при сборке не были соблюдены эти параметры, опытные специалисты смогут это исправить при помощи специальных материалов и современного оборудования. Это могут быть доборы, которые по другому называют телескопическими.
Наличник – конструкция, отличающаяся прочностью, она монтируется после установки дверных блоков. Монтаж его должен проводиться в соответствии с техническими требованиями и нормами безопасности. В процессе монтажа эксперты рекомендуют использовать детали повышенной прочности: это относится к крепежным элементам, которые должны выдерживать повышенные нагрузки и сохранять влаго- и термоустойчивость дверной конструкции.

Коробки с наличником станут надежной защитой всей конструкции, обеспечат технологичную простоту установки дверного блока. Рама закрепляется анкерами к стене. Внешне эффектный входной блок изготавливают из высококачественных натуральных материалов и их заменителей. Этот процесс должен проводиться на высоком профессиональном уровне с использованием специальных инструментов, поскольку при монтаже внешние характеристики дверей не должны пострадать. С помощью шлифования можно повысить эстетические свойства конструкции, дверная поверхность приобретет гладкость.
В условиях высоких температур и влажности материал способен разбухнуть, что вызовет проблемы эксплуатационного характера, поэтому необходимо соблюдать правила использования изделия.

Красивые примеры в интерьере
Опытные дизайнеры подскажут в выборе подходящих моделей межкомнатных дверей, соответствующих общему стилевому оформлению интерьера, техническим требованиям и предпочтениям заказчика. Разнообразие оригинальных модификаций, цветов и размеров позволит выбрать тот вариант, который обеспечит максимальный комфорт использования дверей.
В настоящее время модным считается контрастное сочетание оттенков при создании интерьера. Консультации дизайнеров помогут определиться с выбором расцветок и модификаций дверных полотен с учетом специфики помещений, характера их использования и предпочтений жильцов. При этом немаловажным является характер покрытия: для создания классического стиля подойдут матовые дверные поверхности, а для стиля хай-тек – рифленые или полированные.

Межкомнатные двери с ламинированной или шпонированной поверхностью – лидеры продаж. Специалисты помогут приобрести прочные модели, отличающиеся высоким уровнем шумоизоляции, эстетической привлекательностью, стандартными габаритами. Филенчатая конструкция – это деревянный каркас с продольными и поперечными деталями. Ее закрепляют багетом при помощи специальных инструментов. Резная конструкция отличатся наличием стеклянной, пластиковой или металлической вставки в плите из МДФ, что создает особый внешний эффект.
Декорирование производится посредством выреза: предварительно производятся замеры, определяется специфика вставных элементов, производятся работы по установке. Вырез заполняют филенкой и закрепляют специальными деталями. Такая конструкция отлично подходит для установки в загородном доме, где важна каждая деталь, подчеркивающая естественную красоту древесины.

Царговые двери выполняют из поперечных элементов (царгов). Применение вертикальных балок усиливает прочность и надежность конструкции, специальные бруски обеспечивают фиксацию креплений.
Современные модели с использованием стекольных, пластиковых, металлических деталей выглядят стильно и современно при оформлении интерьера любого помещения.

Полупрозрачные детали, пропускающие свет, позволяют создать комфорт в любое время суток: таким образом создается пространственная перспектива комнаты. Такие модели востребованы на рынке, их устанавливают в частном секторе и офисных помещениях. Применение прочных и эстетичных конструкций позволяет дополнить классический стиль в оформлении гостиной, спальни, детской – здесь всегда будет много света, комнаты будут удобны для проживания.

Эффектные дверные конструкции помогут органично дополнить интерьер квартиры или комнат загородного дома. Это может быть классический стиль или модное направление хай-тек с обилием металлического блеска и декора из стекла. Стекольные, пластиковые, металлические вставки позволяют создать оригинальные конструктивные формы.
Специалисты помогут грамотно выбрать подходящие двойные модели межкомнатных дверей от ведущих отечественных и европейских производителей, оперативно проведут замеры и установку конструкции, проконсультируют по вопросам эксплуатации дверных установок.

Важно сохранить эффектный внешний вид дверных конструкций, обеспечить высокую функциональность изделий итальянского, российского и китайского производства. Разнообразие расцветок дверных полотен позволяет создать особое «настроение». При установке дверей светлых оттенков четко обозначается пространственная перспектива: помещения визуально расширяются, становятся светлыми и просторными.
Этот аспект особенно важен для жильцов первых этажей, часто испытывающих недостаток освещенности комнат из-за густой растительности перед окнами. Красивые, прочные двери с гладкими, рифлеными, матовыми поверхностями позволяют создать комфорт проживания, стилевую завершенность интерьера, оригинальность оформления.

Экономия средств – важный показатель, на который ориентируются заказчики дверных блоков. Специалисты по дизайну и ремонту помещений помогут выбрать изделия в категории «эконом», соответствующие европейским стандартам качества и рассчитанные на самых взыскательных потребителей.
Подробнее о стандартных размерах межкомнатных дверей вы узнаете из следующего видео.
dekoriko.ru
ширина, высота стандартной двери, размеры в разрезе, глубина, толщина короба

Широкий выбор межкомнатных дверей предлагаемых современными производителями – по цвету, материалу, фактуре – большое преимущество при выборе подходящей модели. Но возникает зачастую одна проблема: правильно подобрать коробку по размеру. Измерение дверного проема не так просто, как кажется, да и оценка свойств изделия тоже имеет свои тонкости.

Особенности
Основная масса дверей делается стандартными, но важно учитывать, что однозначно предписанных величин коробок для межкомнатных проходов не существует. Рекомендуется подбирать коробку таким образом, чтобы вся конструкция могла бы гармонично войти в проем. По высоте и ширине рекомендуется брать комплект немного (в пределах трех сантиметров) уступающий проему.

Наибольший стандартный размер коробки по ширине — 90 сантиметров, но отыскать такую модель можно в каталоге далеко не каждого производителя. Ведь в многоэтажных и в современных частных домах проемы подходящего размера – большая редкость. Самые широкие двери можно встретить в «сталинской» застройке, а также в крупных офисных центрах.
Дверные коробки и полотна, выпускаемые за рубежом, делаются по совершенно иным стандартам, так что выбирать их нужно тщательнее всего!
Коробки для дверей, не имеющих порогов, делаются в форме буквы П, из пары деревянных стоек, соединяемых сверху поперечной перекладиной. Преимуществом таких решений оказывается совместимость со створками самой разной высоты и их дешевизна. Прямоугольные рамы, изначально имеющие порог, нужны тем, кто хочет максимально просто и быстро установить всю конструкцию. Рекомендуется выбирать телескопические наличники, потому что изделия с ними будет проще переставить при капитальном ремонте.

Габариты
Во внимание принимают и параметры конкретного помещения — насколько оно велико, для чего предназначено. Самый распространенный тип имеет в двух плоскостях размеры 88х205 см, при ширине 80 см — такие блоки пригодны и для квартир, и для офисов. Для кухонных проемов следует использовать коробки размером 65х200 см, а для ванной комнаты или совмещенного санузла 60х200 см. Даже если размеры входа в такие комнаты позволяют, многие люди все равно выбирают узкие коробки, восполняя недостающие сантиметры за счет доборов.

Ширина
Типичная ширина колеблется от 50 до 90 сантиметров. Во внимание принимают параметры конкретного помещения — насколько оно велико, учитывают и для чего предназначено. В гостиных принято делать самые широкие проемы, чтобы все гости могли бы проходить беспрепятственно. Зазор между стенами составляет 122 см, а дверная коробка тогда имеет 119 сантиметров в ширину и 193 сантиметра в высоту.

Для многостворчатых дверей используют створки по 55 сантиметров, для одностворчатых (в малогабаритном жилье) — по 80 или 90 сантиметров. Делать еще меньше не рекомендуется независимо от того, насколько тесно будет, ведь придется иногда выносить или заносить мебель. Внимание: французские одинарные двери стандартного образца в ширину имеют 68, 79 или 89 сантиметров.

Высота
По высоте двери для межкомнатных переходов составляют чаще всего от 195 до 207 см. В России, Финляндии, Испании и Италии выпускают конструкции высотой 190, 200 и 210 сантиметров.

Толщина
Этот параметр колеблется в разных конструкциях от 2 до 7,5 сантиметров. Ничего удивительного тут нет — разная толщина оптимальна для разных стен. Если они сделаны из гипсокартона или представляют собой кирпичную кладку, правильнее всего покупать коробки толщиною 75 миллиметров. Смонтировать их вам будет проще, а если и возникнет небольшая разница с реальным размером, устранить ее доборами не составит труда.
Как выбрать?
Проще всего купить для создания деревянной межкомнатной двери доски и бруски 5-6 сантиметров толщиной, 10 сантиметров шириной. Но правильнее будет потратить немного дополнительного времени и выбрать брус, толщина которого ни на миллиметр не отличается от толщины двери.

Кроме размера межкомнатной двери, нужно выбирать и материал для нее. Лиственница и липа считаются лучшими сортами древесины, сосна всего лишь приемлема. А вот ольха, граб, бук плохи тем, что часто коробятся при иссушении или чрезмерной влажности воздуха. Дуб более надежен в этом отношении, но использовать его широко мешают высокие цены.
Стальные и пластиковые конструкции могут использоваться как коробки для дверей на входе, либо в ванных комнатах, туалетах и санузлах. Всегда оценивайте и цветовые решения, и вид отделки, и его фактуру, и тип порога. При оценке подходящих размеров нужно учитывать, будет использоваться автоматический доводчик или нет. Когда известно, что полы еще не уложены, вводится поправка на высоту стяжки и характеристики самого покрытия, нельзя игнорировать ограничения, связанные с применением водяных и инфракрасных теплых полов.

Кроме параметров проема, ширина коробки должна подстраиваться и под высоту потолков. Довольно часто возникает ситуация, когда из-за нее по дизайнерским соображениям нельзя использовать нужную дверь. При монтаже коробки на гипсокартонные стены нужно иметь схему местоположения несущего каркаса, чтобы не понадобилось внезапно перемещать часть стены.

Ширина створки при расчетах увеличивается на двойную толщину бруса (не забывайте, что сечение короба Г-образное). Примите во внимание выходящую за контур проема часть уплотнительного материала (она может составлять от 30 см и иметь в высоту 2,5-3 сантиметра), и опорную поверхность под брусья. Добавив еще 20-25 миллиметров зазора под установку коробки, сопоставьте получившуюся цифру с фактическими размерами прохода. Те же принципы помогут рассчитать и окончательную высоту (для нее нужно еще ввести поправку на порог).

Расширение проема при необходимости — лучше, чем искусственное сужение при помощи различных конструкций: дверь при установке с доборами не встанет так устойчиво, как размещенная вплотную к стене. Да и тепла будет уходить больше.
Чтобы параметры были измерены максимально точно и быстро, используйте всегда уровень, желательно — лазерный. Когда глубина проема на 10% и более превосходит глубину изделия, могут возникнуть серьезные проблемы. Тогда нужно или ставить откосы, или (что менее профессионально), пропиливать брус по длине, уменьшая его толщину, но не более чем на 1-1,5 сантиметра.

Учтите, что браться за такую работу должны только опытные исполнители, располагающие качественным инструментом. Если точную ширину и высоту проема не удается установить из-за его сложной конфигурации, требуется сделать замеры хотя бы в трех местах для каждой плоскости. Как окончательное значение принимается среднее арифметическое полученных результатов.
Когда нужно комплектовать дверную коробку доборами, лучше берите пластиковые элементы, они самые гибкие и упрощают подгонку к основным поверхностям. К сведению: любой доборный элемент должен иметь те же цвет и фактуру, что и вся остальная конструкция. Чтобы меньше делать разрезов, промежутки, отделяющие проем от коробки, правильнее перекрывать широкими наличниками. Выбрать типоразмер, подходящий именно вам, не составит особенных трудностей в любом специализированном магазине.

Не покупайте дверные коробки, сделанные из сочетания разных материалов — у них неизбежно отличаются физические свойства, а потому может скоро возникнуть коробление, дверь будет тяжелее закрывать. Важно: когда старая дверь еще стоит, замер расстояний проводится от центральной части наличников.

В квартирах, введенных в строй до 1991 года, используют межкомнатные двери с коробками размером 108 миллиметров; если перегородка составляет 10 сантиметров в толщину, требуется устанавливать уже коробку толщиной 120 миллиметров. Внимание: по действующим нормативным требованиям в любом помещении, где может одновременно находиться 16 человек и более, можно использовать только двери от 1,2 метров шириною.
Монтаж
Монтаж дверной коробки проводится с использованием клиньев и брусьев, электрической фрезы, ножовки, стусла, дрели. Дополнительно потребуются монтажная пена и карандаш, строительный уровень, нож с тонкой заостренной режущей кромкой, саморезы и гвозди с миниатюрными шляпками. Когда начата установка короба, откосы должны быть уже проверены хотя бы в трех местах и по вертикали, и по горизонтали. Недопустимо отклонение в пять сантиметров и более, оно требует дополнительного выравнивания. Не забудьте выдержать технологический зазор до поверхности пола, он составляет 1,5 см.
При отсутствии опыта установки дверей следует собирать их элементы под углом 45 градусов — это самое простое решение. Фрезой проделывают выемки для петель, край любой петли должен находиться не ближе 18 сантиметров к верхней и нижней границам полотна. Все поверхности следует тщательно зачистить и выровнять, только после отметки на приставленной двери делают углубления под шарниры.
Готовя отверстия для саморезов, правильнее всего брать сверла того же диаметра, что и сами крепежи.
Перевернув полотно горизонтально (петли в это время уже должны стоять), на противоположной от них стороне сверлят выемку под замок с защелкивающим устройством. Наметив карандашом окантовку, снова берут фрезу и готовят паз для лицевой планки. Закончив с установкой замка, сверлят отверстия под ручки (сами ручки ставят на саморезы и накладные детали с помощью шестигранного ключа). Все, теперь можно полностью собирать коробку и ставить ее в проем!
При выполнении работы и вычислении размеров не забывайте, что монтажная пена неизбежно будет расширяться при затвердевании. Если сомневаетесь в полученном результате или в своих возможностях, правильнее вызывать подготовленных замерщиков перед установкой двери.

О том, как правильно замерить дверные проемы перед покупкой межкомнатной двери, смотрите в следующем видео.
dekoriko.ru
стандартные размеры с коробкой, измерение, универсальный размер, ГОСТ, максимальные габариты
Коробка представляет собой конструкцию из отдельных элементов, именно в нее вставляется дверь.
Для того, чтобы ничего не выпирало, или не пришлось заделывать большое количество щелей, нужно тщательно промерить пространство, которое будет занимать конструкция.
Это важно еще и потому, что влияет на срок ее работоспособности.
Измерение проема для межкомнатной двери

Требует изучения его конфигурации. Для арки, например, параметров, которые надо измерить, будет больше.
Идеально использовать штангенциркуль, в крайнем случае подойдет линейка. Нужны также рулетка, карандаш и бумага для записи результатов.
Какие замеры необходимы?
- Для того, чтобы замеры были произведены с максимальной точностью, необходимо дублировать их, произведя не менее трех в различных местах. Для ширины это внизу, у самой половой поверхности, приблизительно на средней части высоты и сверху.
- Высота проема межкомнатной двери измеряется с учетом возможных изменений уровня пола. Возможно, планируется выбросить паркет или наоборот, настелить его. Необходимо просчитать уровень изменений и внести необходимую коррекцию, отбросив или прибавив высоту настила.
3. Толщина стены измеряется в трех местах. Для стен, у которых замер больше 10 см, устанавливается доборный элемент обычная деревянная планка нужного размера. В противном случае может просматриваться часть стены. Планка входит в коробку на 1 см.
4. Вертикальность боковых сторон. Отклонение должно быть не больше 2-5 мм, в противном случае элемент должны устанавливать только специалисты, выбирая вид монтажа индивидуально, вплоть до проведения некоторых строительных работ.
Универсальный размер межкомнатных дверей

Промышленность выпускает межкомнатные двери с коробкой стандартных типов, и при строительстве зданий архитекторы учитывают эту особенность, выбирая удобные в дальнейшем размеры нужных пролетов.
В старых зданиях, после дизайнерских ремонтов и в частных зданиях габариты могут отличаться.
Есть два выхода из ситуации:
· Сделать индивидуальный заказ на изготовление конструкции.
· Провести строительные мероприятия, которые помогут привести размеры в соответствие со стандартными до проведения чистовой отделки стен.
Второй вариант значительно дешевле.
Размеры, при которых не требуется проведения дополнительных работ

ГОСТ на межкомнатные двери с коробкой
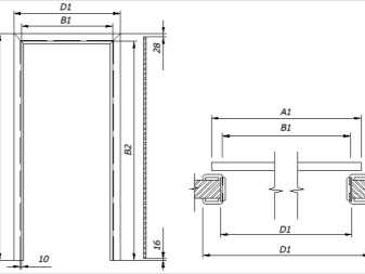
Должны соответствовать чертежам, установленным ГОСТ конструкционно, размерами и формой по чертежу 1, сечения – чертежу 2.
Чертеж №1

Чертеж №2

Стандартная высота дверного пролета 2 м, а ширина 60, 70 или 80 см. Ширина коробки находится в пределах 15-45 мм, толщина стен 75-80 мм.
Раздвижные межкомнатные двери

Раздвижные межкомнатные двери значительно экономят пространство в помещении. Обычные стандартные двери при открытии занимают 90 см – почти метр рабочей площади.
С ними удобно, а для детей и пожилых людей – безопасно, поскольку конструкция не предполагает порогов. Инвалиды могут передвигаться в специальных креслах, не испытывая никаких сложностей.
Есть несколько видов раздвижных межкомнатных дверей:
· Купе;
· Каскадные;
· Сборные;
· Радиусные.
Чаще всего устанавливается межкомнатные полотна с коробкой стандартных вариантов, вариант «купе». Выбирают одно, реже два полотна. Их не только просто устанавливать, но и использовать.
С другой стороны, это – красивый вид помещения, современный и стильный.
Рекомендуемые размеры дверных проемов для соответствующих вариантов конструкции(купе)

Максимальные габариты

Современные дизайнеры активно выходят за стандартные рамки, что касается и дверных конструкций. Вопрос уже не в выборе производителей, размеры продукции которых отличаются.
Изменения стали кардинальными. Модно использовать необычные формы и габариты.
Коттеджи, квартиры со свободной планировкой и студии не останавливаются и перед таким новшеством, как проем высотой до потолка, 2.4-3 метра. Габариты по ширине тоже раздвинулись до 90 см.
Что касается административных зданий, развлекательной индустрии и элитных точек общественного питания, можно говорить и о более смелых амплитудах в размерах межкомнатных дверей с коробкой, стандартные варианты давно не вписываются в общую концепцию помещений.
Поставить новую дверь легко в случае стандартных вариантов проема и нормального состояния стен.
Если же при измерениях обнаружились погрешности, разумно пригласить специалистов. Они точно сделают замеры, грамотно решат проблему погрешностей, установят дверь быстро и аккуратно, снижая до минимума расходы на последующий ремонт.
tk-konstruktor.ru
